Party - Cuisinière Steel Cucine - Notice d'utilisation et mode d'emploi gratuit
Retrouvez gratuitement la notice de l'appareil Party Steel Cucine au format PDF.
| Caractéristiques techniques | Cuisinière à gaz avec 4 foyers, four à convection, finition en acier inoxydable |
|---|---|
| Dimensions | Largeur : 90 cm, Profondeur : 60 cm, Hauteur : 85 cm |
| Capacité du four | Capacité de 100 litres |
| Utilisation | Idéale pour la cuisson de plats variés, facile à utiliser avec des commandes intuitives |
| Entretien | Nettoyage facile grâce à la surface en acier inoxydable, grilles amovibles |
| Maintenance | Vérification régulière des brûleurs et nettoyage des filtres recommandés |
| Sécurité | Système de sécurité avec arrêt automatique en cas d'extinction de la flamme |
| Informations générales | Garantie de 2 ans, conforme aux normes de sécurité européennes |
FOIRE AUX QUESTIONS - Party Steel Cucine
Téléchargez la notice de votre Cuisinière au format PDF gratuitement ! Retrouvez votre notice Party - Steel Cucine et reprennez votre appareil électronique en main. Sur cette page sont publiés tous les documents nécessaires à l'utilisation de votre appareil Party de la marque Steel Cucine.
MODE D'EMPLOI Party Steel Cucine
Nous vous remercions d'avoir choisi notre produit, désormais cuisiner va devenir un véritable plaisir grâce à votre nouvelle cuisine.
Nous vous conseillons de lire attentivement toutes les instructions contenues dans ce manuel, elles vous guideront pour une utilisation adaptée et sûre de votre cuisineire. Ces instructions permettent également de connaître tous les composants de la cuisineire.
Vous trouverez également des conseils concernant l'utilisation des récipients, des ustensiles, des positions des commandes et les programmations des commandes. Il est important d'effectuer correctement les opérations de nettoyage indiquées dans ce manuel afin de préserver la cuisinière dans des conditions optimales.
Les paragraphes sont présentés de manière à découvrir progressivement toutes les fonctionnalités de la cuisine, les textes sont facilement compréhensibles, agrémentés d'images détaillées et de pictogrammes d'utilisation courante.
Une lecture approfondie de ce manuel vous donnera les réponses aux questions que vous vous posez sur la bonne utilisation de votre nouvelle cuisine.

INSTRUCTIONS POUR L'INSTALLATEUR: elles s'adressent à un technicien qualifié. Ce dernier devra vérifier l'installation du gaz, effectuer l'installation, la mise en service et le branchement de l'appareil.

INSTRUCTIONS POUR L'UTILISATEUR: elles fournissent les conseils d'utilisation, la description des commandes et les opérations de nettoyage et de maintenance de l'appareil.
- Informations générales 169
- Avertissements pour la sécurité et l'utilisation 170
3. Installation 172
3.1 Avertissement général 174 3.2 Remplacement des pieds réglables 174 3.3 Montage de la moulure avant (disponible sur certains modèles) 175 3.4 Montage du rebord (disponible sur certains modèles) 175 3.5 Branchement électrique 176 3.6 Ventilation des locaux dans lesquels sont installés les appareils à gaz 178 3.7 Branchement au gaz 179 3.8 Réglements du gaz 182 3.9 Branchement au gaz butane-propane 182
- Opérations finales 184
4.1 Mise à niveau de la cuisine au sol 184
5. Description des commandes 185
5.1 Le panneau frontal 185
- Utilisation du plan de cuisson 196
6.1 Allumage des brûleurs 196 6.2 Extinction des brûleurs 196
- Utilisation du plan de cuisson à induction 197
7.1 Avertissements généaux 197 7.2 Distribution automatique de la puissance radiante 198 7.3 Tableau d'utilisation du régulateur d'énergie 199 7.4Premier allumage du plan à induction 199 7.5 Reconnaissance casserole 200 7.6 Allumage d'un élément radiant 201 7.7 Extinction automatique 203 7.8 Extinction manuelle 203 7.9 Sécurité enfants 204 7.10 En cas de pannes et d'anomalies 204
- Utilisation des jours 206
8.1 Avertissements généraux 206 8.2 Tiroir de rangement (disponible uniquement sur certains modèles) 206 8.3 Risque de buée 206 8.4 Utilisation du four électrique quadrifonction 207 8.5 Utilisation du four auxiliaire à convection naturelle 209
9. Conseils de cuisson 210
9.1 Conseils pour l'utilisation correcte des brûleurs de plan 210 9.2 Conseils pour l'utilisation correcte du plan à induction 210 9.3 Conseils pour une bonne utilisation du four 210
10.1 Nettoyage des surfaces en acier inox 213 10.2 Nettoyage des surfaces émaillées 213 10.3 Nettoyage des surfaces peintes 213 10.4 Nettoyage des surfaces, accessoires et pièces en bois 213 10.5 Nettoyage des boutons et du panneau de commandes 213 10.6 Nettoyage des grilles et des brûleurs 214 10.7 Nettoyage des bougies et thermocouples 214 10.8 Nettoyage du plan à induction 214 10.9 Nettoyage du four 215
11. Maintenance extraordinaire 216
11.1 Démontage de la porte du four 216 11.2 Enlevement des chassis lateraux de support des grilles 217 11.3 Demontage et nettoyage du ventilateur interne du four 218 11.4Changement de la lampe d'éclairage four 218
Le présent manuel d'utilisation fait partie intégrante du produit acheté. L'opérateur est tenu de conserver correctement le présent manuel d'utilisation et de faire en sorte qu'il soit toujours disponible pour la consultation pendant les opérations d'utilisation et de maintenance du produit. Conserver le présent manuel d'utilisation pour toute référence future. En cas de revente du produit, le présent manuel devra être transféré à tout détenteur ou utilisateur ultérieur du produit.
Le fabricant décline toute responsabilité pour les inexactitudes, imputables à des erreurs d'impression ou de transcription, contenues dans cette notice. Il se réserve le droit d'apporter les modifications qu'il juge nécessaires ou utiles à ses produits, même dans l'intérêt de l'utilisateur, sans pour autant compromettre les caractéristiques essentielles relatives au fonctionnement et à la sécurité.
Classes des appareils
Les appareils de cuisson décrits dans ce manuel d'utilisation appartiennent aux classes d'installations suivantes:
- Coupe 1: appareil de cuisson non encastrable;

- Coupe 2 - sous classe 1: appareil de cuisson encastrable entre deux meubles composé d'une unité unique mais pouvant également être installé de manière à ce que les parois latérales soient accessibles.

1. Informations générales
Ce produit a été fabriqué conformément aux directives suivantes:
2006/95/CE relative au matériel électrique destiné à être employé dans certaines limites de tension. 2004/108/CE relative à la compatibilité électromagnétique. Dans le respect des dispositions relatives à la compatibilité électromagnétique, le plan de cisson à induction électromagnétique apparaît au groupe 2 et à la classe b (EN 55011). 2009/142/CE relative aux "Appareils à gaz". - Règlement CE n° 1935 du 27/10/2004 concernant les matériaux et les objets destinés à entrer en contact avec les produits alimentaires. 2011/65/CE (RoHS) en matière de limitation d'utilisation de substances dangereuses dans les matériaux de fabrication.
Cet appareil avant de quitter l'usine, a été vérifié et mis au point par du personnel expert et spécialisé afin de garantir les résultats de fonctionnement. Toute réparation ou mise au point ultérieure devra être effectuée avec le maximum de soin et d'attention. Nous vous recommandons de vous adresser au Concessionnaire qui vous a vendu l'appareil ou à notre Centre d'Assistance le plus proche en spécifiant le type de problème et le modèle de l'appareil.

2. Avertissements pour la sécurité et l'utilisation

CE MANUEL FAIT PARTIE INTEGRANTE DE L'APPAREIL. IL EST NECESSAIRE DE LE CONSERVER INTEGRALEMENT ET DE LE GARDER A PORTEE DE MAIN DURANT TOUTE LA DUREE DE VIE DE LA CUISINIÈRE. NOUS VOUS CONSEILLONS DE LIRE ATTENTIVEMENT TOUTES LES INSTRUCTIONS CONTENUES DANS CE MANUEL AVANT D'UTILISER LA CUISINIÈRE. SI ELLE EST PRESENTE, CONSERVER AUSSI LA SÉRIE DE BUSES FOURNIE. L'INSTALLATION DEVRA ÉTRE EFFECTUE PAR DU PERSONNEL QUALIFIE ET DANS LE RESPECT DES NORMES EN VIGueur. CET APPAREIL EST PREVU POUR UN EMPLOYO DE TYPE DOMESTIQUE, IL EST CONFORME AUX DIRECTIVES CEE ACTUELLEMENT EN VIGueur. L'UTILISATION PROFESSIONNELLE ET L'INSTALLATION DANS DES ESTABLISSEMENTS PUBLICS TELS QUE RESTAURANTS, CAFES, CANTINES D'ENTREPRISE ET TOUT AUTRE EMPLOYO AUTRE QUE CELUI INDIQUE ENTRAINTE LA NULLITE IMMEDIATE DE LA GARANTIE. L'APPAREIL EST Construit POUR EFFECTUER LES FONCTIONS SUIVANTES: CUIRE ET RECHAUFFER DES ALIMENTS, IL NEST ADAPTE A AUCUNE AUTRE UTILISATION. LE CONSTRUCTEUR DECLINE TOUT RESPONSABILITE POUR DES UTILISATIONS DIFFÉRÊNTES DE CELLES INDIQUÉES.
AU MOMENT DE L'ACHAT, L'OPÉRATEUR DEVIENT LE RESPONSABLE DIRECT DU PRODUIT ET IL DOIT DONC S'ASSURER QUE, PAR UNE UTILISATION NORMALE, IL NE SE PRODUIT PAS D'INSTABILITE, DE DEFORMATIONS, DE RUPTURES OU D'USURES POUVANT EN DIMINUER LA SECURITE.
LE PRODUIT EST PENSE ET FABRIQUE DE MANIÈRE ÀPOUVOIR FONCTIONNER EN Toute SéCURITE ET À NE PAS PRÉSENTER DE DANGERS POUR LES PERSONNES, LES ANIMaux DOMESTIQUES ET LES BIENS MATériELS.

NE PAS LAISSE R ES RESTES D'EMBALLAGE SANS SURVEILLANCE DANS LE CADRE DE VOTRE FOYER. SEPARER LES DIFFERENTS MATERIALAUX DE REBUT PROVENANT DE L'EMBALLAGE ET DEPOSEZ LES DANS LE CENTRE DE TRI LE PLUS PROCHE DE CHEZ VOUS.

LE BRANCHEMENT TERRE DOIT ETRE EFFECTUE SELON LES MODALITES PREVUES PAR LES NORMES DE SECURITE DE L'INSTALLATION ELECTRIQUE.

LA FICHE A RELIER AU CABLE D'ALIMENTATION ET LA PRESE DEVRONT ETRE DU MEME TYPE ET CONFORMES AUX NORMES EN VIGUEUR. APRES L'INSTALLATION DE L'APPAREIL S'ASSURER QUE LA FICHE DE PRESE DE COURANT SOIT ACCESSIBLE POUR L'INSPECTION PERIODIQUE. NE JAMAIS DEBRANCHER LA PRESE EN TIRANT LE CABLE.

SI LES ROBINETS DE GAZ RESISTENT A LA MANCEUVRE DE ROTATION DES BOUTONS, IL EST NECESSAIRE DE LES GRAISSER EN UTILISANT UN PRODUIT ADAPTE AUX HAUTES TEMPERATURES. POUR CETTE OPERATION IL EST NECESSAIRE DE FAIRE APPEL AU SERVICE ASSISTANCE.

JUSTE APRES L'INSTALLATION EFFECTUER UN TEST DE BRANCHEMENT DE L'APPAREIL EN SUIVANT LES INSTRUCTIONS DECRITES PLUS LOIN. SI L'APPAREIL NE FONCTIONNE PAS LE DEBRANCHER DU RESEAU ELECTRIQUE ET APPELER LE CENTRE D'ASSISTANCE TECHNIQUE LE PLUS PROCHE. NE PAS TENTER DE LE REPARER SOI-MEME.

L'UTILISATION D'UN APPAREIL DE CUISSON À GAZ PRODUIT DE LA CHALEUR ET DE L'HUMIDITE DANS LE LOCAL OU IL EST INSTALLÉ. IL CONVIENT D'ASSURER UN BONNE AÉRATION DU LOCAL : GARDER OUVERTS LES ORIFICES D'AÉRATION OU INSTALLER UN DISPOSITIF D'AÉRATION MÉCANIQUE (HOTTE D'ASPIRATION AVEC CONDUITE D'ÉVACUATION). UNE UTILISATION INTENSIVE DE L'APPAREIL PEUT NÉCESSITER UNE AÉRATION SUPPLEMENTaire, PAR EXemple L'OUVERTURE D'une FENÊTURE, UNE AÉRATION PLUS EFFICACE, EN AUGMENTANT LA PUISSANCE D'ASPIRATION MÉCANIQUE, SI ELLE EXISTE.

A LA FIN DE CHAQUE UTILISATION DU PLAN, TOUJOURS VERIFIER QUE LES BOUTONS DE COMMANDE SONT EN POSITION (ETEINT).

NE JAMAIS METTRE D'OBJECTS INFLAMMABLES DANS LE FOUR: SI LE FOUR EST ALLUME CELA PEUT PROVOQUER UN INCENDIE. EN CAS D'INCENDIE: FERMER LE ROBINET GENERAL D'ALIMENTATION GAZ ET COUPER LE COURANT ELECTRIQUE. NE PAS JETER D'EAU SUR DE L'HUILE EN FEU OU EN TRAIN DE FRIRE. NE PAS ENTREPOSER DE PRODUITS INFLAMMABLES OU DE BOUTEILLES AEROSOLS PRES DE L'APPAREIL ET NE PAS VAPORISER A PROXIMATE DES BRULEURS ALLUMES. NE PAS PORTER DE VETEMENTS AMPLES OU DES ACCESSOIRES NON ADHERENTS QUAND LES BRULEURS SONT ALLUMES. SI LES TISSUS PRENNENT FEU, CELA PEUT PROVOQUER DE GRAVES BRULURES.

NE PAS POSER SUR LE PLAN DE CUISSON DES POELES QUI N'ONT PAS UN FOND PARFAITEMENT LISSE ET REGULIER.

NE PAS UTILISER DES RECIPIENTS GRIL POUVANT DEPASSER LE PERIMETRE EXTERNE DU PLAN DE CUISSON.

LA PLAQUE SIGNALETIQUE PORTANT LES CARACTERISTIQUES TECHNIQUES, LE NUMERO DE SERIE ET LE MARQUAGE SE TROUVE A L'ARRIRE DE L'APPAREIL. UNE SECONDE PLAQUE, AVEC LES DONNÉES RÉCAPITULATIVES DU MODELE ET LE NUMéro DE SÉRIE, SE TROUVE À L'INTÉRIEUR DE L'APPAREIL SUR LE FLANC GAUCHE ET EST VISIBLE EN OUVRANT LA PORTE DU FOUR.
LES PLAQUES NE DOIVENT JAMAIS ETRE ENLEVÉES.

L'APPEARIL DOIT ETRE UTILISÉ PAR DES PERSONNES ADULTES. NE PAS PERMETTRE AUX ENFANTS DE S'EN APPROCHER OU D'EN FAIRE UN OBJECT DE JEU. ÉVITER DE POSER SUR L'APPEARIL DES OBJECTS POUVANT ATTIRER L'ATTENTION DES ENFANTS. LE RECHAUFFEMENT CERTAINES PARTIES DE L'APPEARIL ET DES CASSEROLES UTILISÉES PEUVENT DEVENIR DES SOURCES DE DANGER POTENTIAL, PAR CONSEQUENT, PENDANT LE FONCTIONNEMENT, ET PENDANT TOUTE LE TEMPS NÉCESSAIRE AU REFROIDISSEMENT, IL CONVIENT DE DISPOSER LES CASSEROLES DE MANIÈRE À ÉVITER TOUT DANGER DE BRULURES OU DE RENVERSEMENT. ÉVITER DE LAISSE RA PORTE DU FOUR OUVERTE AUSSI BIEN PENDANT LE FONCTIONNEMENT QUE DANS LES MINUTES SUIVANT L'EXTINCTION. ÉVITER ÉGÀLEMENT TOUT CONTACT AVEC LES ÉLÉMENTS CHAUFFANTS DU FOUR.

S'APPUER OU S'ASSEOIR SUR LA PORTE DU FOUR OUVERTE, DES TIROIRS OU DU COMPARTIMENT RANGEMENT PEUT FAIRE BASCULER L'APPAREIL ET ETRE DANGEREUX POUR LES PERSONNES. LES TIROIRS ONT UNE PORTEE DYNAMIQUE DE 25 KG.
SI LA CUISINIÈRE EST PLACÉE SUR UN PIEDESTAL, IL FAUT PRENDRE DES MESURES POUR ÉVITER QUE L'APPAREIL NE GLISSE DU PIEDESTAL.

L'APPAREIL MIS HORS SERVICE DEVRA ETRE DEPOSE DANS UN CENTRE DE TRI DES DECHETS. COUPER LE CORDON D'ALIMENTATION APRES AVOIR DEBRANCHÉ LA FICHE DE LA PRISE DE COURANT. SECURISER LES PARTIES QUI PEUVENT CONSTITUER UN DANGER POUR LES ENFANTS (PORTES, ETC.).

CET APPAREIL PORTE LE SYMBOLE DU RECYCLAGE CONFORMÉMENT À LA DIRECTIVE EUROPEENNE 2002/96/CE CONCERNANT LES DÉCHETS D'ÉQUIPEMENTS ÉLECTRIQUES ET ÉLECTRONIQUES (DEEE OU WEEE). EN PROCÉDANT CORRECTEMENT À LA MISE AU REBUT DE CET APPAREIL, VOUS CONTRIBUEREZ À EMPÊCHER TOUTE CONSÉQUENCE NUISIBLE POUR L'ENVIRONNEMENT ET LA SANTÉ DE L'HOMME.
LE SYMBOLE PRSENT SUR L'APPAREIL OU SUR LA DOCUMENTATION QUI L'ACCOMPAGNE INDIQUE QUE CE PRODUIT NE POT EN AUCUN CAS ETRE TRAITE COMME DECHET MENAGER. IL DOIT PAR CONSEQUENT ETRE REMIS A UN CENTRE DE COLLECTE DES DECHETS CHARGÉ DU RECYCLAGE DES ÉQUIPÉMENTS ÉLECTRIQUES ET ÉLECTRONIQUES. POUR LA MISE AU REBUT, RESPECTEZ LES NORMES RELATIVES À L'ELIMINATION DES DECHETS EN VIGUEUR DANS LE PAYS D'INSTALLATION. POUR OBTENIR DE PLUS AMPLES DÉTAILS AU SUJET DU TRAITEMENT, DE LA RÉCUPÉRATION ET DU RECYCLAGE DE CET APPAREIL, VEUILLEZ VOUS ADRESSER AU BUREAU COMPÉTENT DE VOTRE COMMUNE, À LA SOCIÉTÉ DE COLLECTE DES DECHETS OU DIRECTEMENT À VOûTRÉ REVENTEUR.
Le constructeur décline toute responsabilité concernant des dommages sur des personnes ou des choses, causés par le non-respect des instructions décrites ci-dessus ou dérivant d'une utilisation inappropriée d'une partie de l'appareil ou de l'utilisation de pièces de rechange non originales.
3. Installation
DIMENSIONS (mm)









Dimensions (mm)
OXFORD


ENFASI


3.1 Avertissement général

Les installations suivantes doivent être effectuées par un technicien installateur qualifié. Le technicien installateur est responsable de la belle mise en marche selon les normes de sécurité en vigueur. Avant d'utiliser l'appareil, enlever les protections en plastique sur le panneau de commandes, sur les parties en acier, inox etc.
Le constructeur décline toute responsabilité concernant des eventuels dommages sur des personnes, des animaux ou des choses provoqués par le non-respect des normes indiquées ci-dessus (cf. chapitre "2. Avertissements pour la sécurité et l'utilisation").
Les données techniques sont indiquées sur la plaque située à l'arrière de l'appareil. Les conditions de réglage sont reportées sur une étiquette sur l'emballage de l'appareil.

Ne pas utiliser la poignée de la porte du four pour les opérations de levage et de manutention, y compris celle nécessaire pour enlever l'appareil de l'emballage.

3.2 Remplacement des pieds réglables
La cuisinière est livrée avec les pieds standard déjà montés.

Les pieds standard permettent de régler la hauteur de façon à mettre à niveau la cuisinière au sol ; en les dévissant excessivement, la cuisinière devient instable.

Pour soulever la cuisinière, il est conseillé de remplacer les pieds standard par d'autres pieds plus hauts (fournis sur certains modèles ou bien à demander à votre revendeur), qui permettent une hauteur de 3 cm.

Avant de procéder au retournement de la cuisinière, il est conseillé d'enlever toutes les parties qui ne sont pas fixées de façon stable à la cuisinière, notamment les grilles du plan de cuisson et les brûleurs. Pour alléger le poids de la cuisinière, il est conseillé d'enlever aussi les accessoires présents à l'intérieur du four, de façon à éviter toute déterioration accidentelle au cours de l'opération de retournement.
Pour remettre en place les pieds, il est possible de procéder de deux façons:
A En soulevant l'appareil du sol. B En couchant l'appareil sur l'arrière.
Sortir les pieds de l'intérieur de l'emballage et les visser sur le fond de la cuisinière.
Le réglage final des pieds, pour permettre à niveau l'appareil au sol, devra être fait au terme des branchements gaz et électrique.


Si un réglage des pieds est nécessaire, visser à fond les pieds et procéder à leur réglage uniquement une fois les opérations terminées.
3.3 Montage de la moulure avant (disponible sur certains modèles)
Pour certains modèles de cuisine, une moulure avant est disponible pour compléter la ligne esthétique.

Avant de procéder au retournement de la cuisinière, il est conseillé d'enlever toutes les parties qui ne sont pas fixées de façon stable à la cuisinière, notamment les grilles du plan de cuisson et les brûleurs. Pour alléger le poids de la cuisinière, il est conseillé d'enlever aussi les accessoires présents à l'intérieur du four, de façon à éviter toute déterioration accidentelle au cours de l'opération de retournement.
Pour le montage, procéder comme suit :
- incliner la cuisine vers l'arrière;
approcher la moulure A du logement de montage de la façon indiquée dans l'illustration;
applique la moulure jusqu'à obtenir le contact en butée avec le logement de montage;
- tirer vers le bas la moulure de telle sorte qu'elle s'accroche avec les 4 pivots B (deux de chaque côté) déjà présents sur la cuisinière.


3.4 Montage du rebord (disponible sur certains modèles)
Pour le montage, procéder comme suit :
- poser le rebord A à l'arrière du plan en faisant correspondre les orifices;
- Avec un tournevis à étoile, visser à fond les 4 vis B.



Le jaunissement eventuel de l'acier, qui peut se produire avec le temps, est un phénomène tout à fait naturel qui ne compte en aucune façon les caractéristiques d'origine. Il peut être éliminé en utilisant des produits spécifiques pour le nettoyage de l'acier.
3.5 Branchement électrique

Vérifier que le voltage et la capacité de la ligne d'alimentation correspondent aux caractéristiques indiquées sur la plaque située à l'arrière de l'appareil.
Une seconde plaque, avec les données récapitulatives du modèle et le numéro de série, se trouve à l'intérieur de l'appareil sur le flanc gauche et est visible en ouvrant la porte du four.
Les plaques ne doivent jamais être enlevées.

La fiche à l'extrémité du câble d'alimentation ainsi que la prise murale doit être du même type et conformes aux normes sur les implantations électriques en vigueur. Vérifier que la ligne d'alimentation est pourvue d'une prise de terre. Après l'installation de l'appareil, la fiche de prise de courant doit être accessible pour l'inspection périodique.

Prévoir sur la ligne d'alimentation de l'appareil un dispositif d'interruption omnipolaire avec une distance d'ouverture des contacts égale ou supérieure à 3 mm placé de manière accessible et proche de l'appareil.

Éviter l'utilisation de réducteurs, adaptateurs ou dérivateurs.
Avant d'effectuer le branchement électrique, vérifier l'efficacité de la prise de terre.
Vérifier que la valve de limitation et l'installation domestique sont en mesure de supporter la charge électrique de l'appareil.
Le câble de terre jaune/vert ne doit pas subir d'interruption.
Le câble électrique ne doit pas être en contact avec des parties ayant des températures supérieures à 50^ en plus de la température ambiante.
3.5.1 Section des câbles d'alimentation électrique
Selon le type d'alimentation, utiliser un câble répondant aux caractéristiques conformes au tableau suivant.
Fonctionnement à 400V3N~ (modèles branchés selon le SCHEMA "A") : utiliser un câble pentapolaire de type H05RR-F (câble de 5 x 2.5 mm²).
Fonctionnement à 230V3~ (modèles branchés selon le SCHEMA "C" mais commutes par l'installateur selon le SCHEMA "B") : utiliser un câble tétrapolaire de type H05RR-F (câble de 4 × 4 mm²).
Fonctionnement à 230V1N~ (modèles branchés selon le SCHEMA "C"): jusqu'à 2,9 kW utilisér un cable tripolaire de type H05RR-F (câble de 3 x 1,5 mm²); au-delà de 2,9 kW jusqu'à 5,4 kW utilisér un cable tripolaire de type H05RR-F (câble de 3 x 2.5 mm²); plus de 5,4 kW jusqu'à 7 kW utilisér un cable tripolaire de type H05RR-F (câble de 3 x 4 mm²); plus de 7 kW utilisér un cable tripolaire de type H05RR-F (câble de 3 x 6 mm²).
L'extémité à relier à l'appareil devra avoir le fil de terre (jaune/vert) plus long d'au moins 20mm.



3.5.2 Type d'alimentation
Il est possible d'obtenir différents branchements en fonction du voltage en déplaçant simplement les petits câbles sur la boîte à bornes comme indiqué dans les schémas suivants.
Selon le modele se reporter au tableau "BRANCHEMENT A LA BOITE A BORNES".
| MODELE PUISSANCE kW | ALIMENTATION | |
| CUISINIÈRE 5 BRULEURS (1 FOUR) | 2,9 | SCHEMA “C” |
| CUISINIÈRE 6 BRULEURS (1 FOUR) | 2,9 | |
| CUISINIÈRE PLAN À INDUCTION (1 FOUR) (6 ÉLÉMENTS) | 10,1 | |
| CUISINIÈRE 6 BRULEURS (2 FOURS) | 3,9 | |
| CUISINIÈRE PLAN À INDUCTION (2 FOURS) (6 ÉLÉMENTS) | 11,1 |
LES MODELES BRANCHÉS SELON LE SCHEMA "A" PEUVENT ÉTRE COMMUTÉS PAR L'INSTALLATEUR SELON LE SCHEMA "B".
LES MODELES BRANCHÉS SELON LE SCHEMA "C" PEUVENT ÉTRE COMMUTÉS PAR L'INSTALLATEUR SELON LE SCHEMA "A".

3.5.3 Changement du câble électrique
Pour le changement du câble électrique il est nécessaire d'accéder à la boîte à bornes. Elle est située à l'arrière de l'appareil comme indiqué sur le dessin.
Pour changer le câble, suivre les indications :
ouvrir la boîte à bornes;
- dévisser la vis A qui bloque le câble;
- desserrer les contacts à vis et changer le câ âbles d'alimentation électrique";
- le conducteur de terre "jaune-vert" doit être relié à la borne et doit être 20 mm plus long que les conducteurs de ligne;
- le conducteur neutre "bleu" doit être relié à la borne qui porte la lecture N;
- le conducteur de ligne doit être relié à la borne qui porte la dénommée L.

3.6 Ventilation des locaux dans lesquels sont installés les appareils à gaz
Cet appareil n'est pas relié à un dispositif de vidange des produits de la combustion, il doit donc être installé et branché conformément aux normes d'installation en vigueur. Il est particulièrement important de prendre en considération les normes applicables en matière d'aération du lieu d'installation.
Cet appareil doit être installé dans un local bien ventilé, selon les normes en vigueur, afin de permettre grâce aux ouvertures sur les parois externes, une bonne ventilation pouvant assurer de manière permanente et suffisante l'émission de l'air nécessaire à une belle combustion et l'évacuation de l'air vicié.

L'utilisation d'un appareil de cuisson à gaz produit de la chaleur et de l'humidité dans le local où il est installé. Il convient d'assurer une bonne aération du local : garder ouverts les orifices d'aération ou installer un dispositif d'aération mécanique (hotte d'aspiration avec conduite d'évacuation).
Une utilisation intensive de l'appareil peut nécessiter une aération supplémentaire, par exemple l'ouverture d'une fenêtre, une aération plus efficace, en augmentant la puissance d'aspiration mécanique, si elle existe.
Si seul cet appareil à gaz est installé dans le local, il faudra prévoir une hotte afin d'assurer l'évacuation naturelle et directe de l'air vicié, à l'aide d'un conduit vertical d'une longueur d'au moins deux fois le diamètre et une section minimum d'au moins 100cm²
L'émission d'air frais étant indispensable, il est nécessaire de prévoir une ouverture d'au moins 100cm² communiquant directement vers l'extérieur, située proche du niveau du sol, de manière à ce que rien ne puisse l'obstruer du côté externe ou interne de la paroi, et pour ne pas gêner la combustion des brûleurs et l'évacuation de l'air vicié. Respecter une différence de hauteur par rapport à l'ouverture de sortie d'au moins 180cm.


La quantité d'air nécessaire à la combustion ne doit pas être inférieure à 2m³/h par kW de puissance (voir puissance totale en kW indiquée sur la plaque des caractéristiques de l'appareil).
Dans tous les autres cas, c'est-à-dire lorsque d'autres appareils à gaz sont présents dans le local, ou s'il n'est pas possible d'obtenir une ventilation naturelle directe, il est nécessaire de réaliser une ventilation naturelle indirecte ou une ventilation forcée : pour ce type d'intervention s'adresser à un technicien qualifié qui effectuera l'installation et la réalisation de l'installation de ventilation dans le respect des précautions continues dans les normes en vigueur.
Le positionnement des ouvertures devra être effectué de manière à éviter la formation de courants d'air insupportables pour les occupants. Pour la vidange des produits de la combustion, il est interdit de se servir des conduits des fumées déjà utilisées par d'autres appareils.
3.7 Branchement au gaz
Les conditions de réglage de l'appareil sont indiquées sur la plaque présente derrière l'appareil.
Les appareils à gaz de ville non branchés à une conduite d'évacuation des produits de combustion, ne doivent pas provoquer de concentration de monoxyde de carbone telle qu'elle puisse présenter un risque pour la santé des personnes exposées en fonction du temps d'exposition prévu pour ces personnes.

Il est recommandé de contrôler que l'appareil est adapté au type de gaz distribué. Le branchement au tuyau du gaz doit être effectué dans les règles de l'art, conformément aux normes en vigueur qui prescrivent l'installation d'un robinet de sécurité situé à l'extrémité du tuyau. Le tuyau de branchement au gaz 1 / 2 fileté est situé à l'arrière de l'appareil à droite.

Pour le gaz butane et propane, il est nécessaire de prévoir un réducteur de pression conforme aux normes en vigueur. Les joints d'étanchéité devront être conformes aux normes en vigueur. Lorsque les opérations de branchement au gaz sont terminées, contrôler l'étanchéité des raccords avec une solution d'eau et de savon.
Il est possible d'effectuer le branchement gaz selon les manières suivantes:
- avec un tube rigide en fer ou cuivre;
- avec un tube flexible en acier inoxydable à paroi continue (sans interruption) avec attache mécanique conforme aux normes en vigueur (longueur maximale du tube étendu 2000 mm); le tube est directement relié au coude de la rampe;
- par l'insertion d’un tube flexible en caoutchouc conforme aux normes en vigueur ; ce tube est directement raccordé sur l’embout P relatif au gaz utilisé et bloqué avec un collier F conformes aux normes en vigueur. Dans ce cas, contrôler la date limite d’utilisation du tube estampillé et le changer avant la date.
GAZ BUTANE-PROPANE GAZ NATUREL

En utilisant les tubes flexibles en caoutchouc d'une longueur max. 1500 mm :
- éviter tout étranglement ou écrasement du tube;
- Ils ne doivent pas être soumis à des efforts de traction ou de torsion;
- éviter les contacts avec des objets tranchants, arêtes vives, etc...
- ne pas les mettre en contact avec des parties qui peuvent atteindre des températures supérieures à 70°C
- faire en sorte qu'ils puissent être inspectés sur tout le parcours.

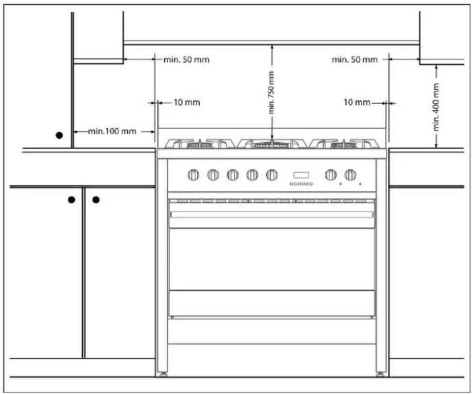
Le revêtement du meuble doit être constitué d'un matériel résistant à la chaleur (minimum 90°C). Si l'appareil est installé près d'un meuble, respecter les espaces minimum comme indiqués sur le diagramme suivant.


3.8 Réglages du gaz

Les injecteurs, non fournis avec l'appareil, doivent être demandés au Centre d'assistance.
Si l'appareil de cuisson n'est pas adapté au type d'alimentation disponible, il est nécessaire de changer les injecteurs, régler le début minimum et changer l'embout.
Pour changer les injecteurs du plan de cuisson effectuer les opérations suivantes:
- enlever les grilles;
- enlever les brûleurs et les couronnées (Fig. A);
- extraire l'injecteur (Fig. B) et le changer avec un injecteur adapté au nouveau type de gaz (voir "TABLEAU GENERAL INJECTEURS" page 183-184);
- Si l'appareil est pourvu de pièces d'adaptation, remplacer l'étiquette indiquant le type de gaz (située derrière l'appareil) par la nouvelle étiquette fournie avec les injecteurs de rechange;
- Remonter le tout en effectuant les opérations dans le sens inverse du démontage en faisant attention de bien mettre en place la couronne sur le brûleur.

3.8.1 Débit minimum des robinets du plan avec valve
- Allumer le brûleur et tourner le levier de commande sur la position de début minimum à
- enlever la poignée;
- avec un tournevis régler la vis interne 2 jusqu'à atteindre une flamme minimum correcte;
- Remonter la poignée.


- Dévisser la vis Z de réglage pour augmenter le débit ou, au contraire, la dévisser pour le diminuer. Le réglage est correct quand la flamme minimum mesure environ 3 ou 4 mm. Pour le gaz butane/propane, la vis de réglage doit être visée à fond.
- Quand on passe d'un coup du débit maximum au débit minimum et vice versa, vérifier que la flamme ne s'éteint pas.

3.9 Branchement au gaz butane-propane
Utiliser un régulateur de pression et réaliser le branchement sur la bouteille en respectant les indications établies par les normes en vigueur.

| TABLEAU GENERAL INJECTEURS (ALUMINIUM) | ||||||
| TYPE DE GAZ | mbar | BUSE N. | BRULEURS POSITION TYPE | PUISSANCE Watt CONSOMMATION | EE | |
| MAX. MIN. | MAX. % | |||||
| G20/G25NATUREL | 20/25 | 115 RAPIDE (A) 3000 750 286 l/h 58.9 | ||||
| 97 SEMI-RAPIDE (B) 1750 480 167 l/h 58.7 | ||||||
| 128 TRIPLE COURONNE (C) 3500 1400 | 333 l/h | 52.9 | ||||
| 72 | AUXILIAIRE (D) | 1000 | 330 | 95 l/h | ||
| BUTANE G30PROpane G31 | 28/3037 | 85 | RAPIDE (A) | 3000 | 750 | 219 g/h |
| 65 | SEMI-RAPIDE (B) | 1750 | 480 | 128 g/h | ||
| 96 | TRIPLE COURONNE (C) | 3500 | 1400 | 254 g/h | ||
| 50 | AUXILIAIRE (D) | 1000 | 330 | 73 g/h | ||

| TABLEAU GENERAL INJECTEURS (LAITON) | ||||||
| TYPE DE GAZ | mbar | BUSE N. | BRULEURS POSITION TYPE | PUISSANCE Watt CONSOMMATION | EE | |
| MAX. MIN. | MAX. % | |||||
| G20/G25NATUREL | 20/25 | 115 RAPIDE (A) 3000 750 286 l/h 53.8 | ||||
| 97 SEMI-RAPIDE (B) 1750 480 167 l/h 54 | ||||||
| 132 | TRIPLE COURONNE (C) | 3500 | 1800 | 333 l/h | ||
| 72 | AUXILIAIRE (D) | 1000 | 330 | 95 l/h | ||
| BUTANE G30PROPANE G31 | 28/3037 | 85 | RAPIDE (A) | 3000 | 750 | 219 g/h |
| 65 | SEMI-RAPIDE (B) | 1750 | 480 | 128 g/h | ||
| 94 | TRIPLE COURONNE (C) | 3500 | 1800 | 254 g/h | ||
| 50 | AUXILIAIRE (D) | 1000 | 330 | 73 g/h | ||
4.1 Mise à niveau de la cuisine au sol
Après avoir effectué les branchements à l'électricité et au gaz, mettre la cuisine à niveau au sol au moyen des pieds réglables, précédemment vissés sur le fond de l'appareil.


S'il devrait être nécessaire de trainer l'appareil, visser à fond les pieds et ne procéder à leur réglage qu'une fois les opérations terminées.
5.1 Le panneau frontal
Toutes les commandes du plan et du four sont réunies sur le panneau frontal.
PANNEAU DE COMMANDES

Description du bouton des bruleurs du PLAN
L'allumage de la flamme se fait en appuyant et en tournant en même temps le bouton dans le sens contraire des aiguilles d'une montre sur le symbole flamme minimum à
Pour régler la puissance de la flamme, tourner le bouton sur la zone entre le maximum et le minimum. Pour éteindre le brûleur, remettre le bouton en position.
EMPLACEMENT DES BRULEURS - Description des symboles

AVANT GAUCHE

AVANT DROIT

ARRIÈRE GAUCHE

ARRIÈRE DROIT

CENTRAL

ARRIÈRE CENTRAL

AVANT CENTRAL
Description du bouton minuteur
Pour charger la sonnerie, tourner à fond le bouton dans le sens des aiguilles d'une montre. Le temps désiré peut être programmé jusqu'à 60 minutes. Une sonnerie prévient que le temps programmé est écoulé.

Description des boutons du PLAN a induction
Le plan à induction est doté de boutons de commande du niveau de puissance.
Pour sélectionner un niveau de puissance différent, tournez le bouton de commande sur la valeur souhaitée (1 - 9 et P).
La valeur "P" est la puissance maximale applicable sur chaque élément radiant.
À chaque variation de puissance, le dispositif d'affichage montrera la valeur sélectionnée au cas par cas sur le bouton.


DISPOSITION DES ELEMENTS RADIANTS - Description des symboles

ARRIERE GAUCHE

ARRIERE DROIT

AVANT GAUCHE

AVANT DROIT

CENTRAL
Toutes les commandes des éléments radiants sont réunies sur le panneau situé en façade ; les afficheurs correspondants sont visibles sur le plan à induction.






Description des boutons du FOUR electrique
Le four électrique est commandé par deux boutons : bouton de sélection fonction et bouton thermostat. Ils permettent de choisir le type de chauffe le plus adapté aux exigences de cuisson, en insérant de manière appropriée les éléments chauffants et en réglant la température sur la valeur désirée.


La position du bouton thermostat met en marche le ventilateur centrifuge du four.
Sous le bouton du four, deux témoins sont présents : le témoin vert indique la mise en marche du four ; le témoin orange indique que la température demandée est atteinte. Lorsque le témoin orange s'allume et s'éteint, c'est qu'il est en train d'intervenir automatiquement pour maintenir à l'intérieur du four la température programmée par le thermostat.
Le four est muni d'une lampe d'éclairage interne. Durant le fonctionnement, la lampe est toujours allumée. Si l'on souhaite l'utiliser lorsque le four est éteint pour les opérations de nettoyage, tourner le bouton de sélection fonction sur le symbole.
Descriptions des symboles du bouton de selection fonction

ALLUMAGE DE LA LAMPE INTERNE DU FOUR

ELEMENTS CHAUFFANTS SUPERIEURS ET INFERIEURS

ELEMENT CHAUFFANT SUPERIEUR

ELEMENT CHAUFFANT INFERIEUR

ELEMENTS GRIL

ELEMENTS GRIL-VENTILATEUR

ELEMENTS CHAUFFANTS SUPERIEURS ET INFERIEURS - VENTILATEUR

ELEMENT CHAUFFANT-CONVECTION

DECONGELATION
Description du bouton du FOUR electrique auxiliaire
Certains modèles de cuisine sont dotés d'un four électrique auxiliaire à convection naturelle, commandé par un seul bouton. Il permet de choisir le type de chauffe le mieux adapté aux différentes exigences de cuissons, en insérant de manière appropriée les éléments chauffants et en réglant la température sur la valeur désirée. Sur le même bouton il est aussi possible de programmer les fonctions décrites dans le tableau.

Sous le bouton du four auxiliaire il existe une lampe témoin orange qui indique que la température programmée a été atteinte. Lorsque le témoin orange s'allume et s'éteint, c'est qu'il est en train d'intervenir automatiquement pour maintenir à l'intérieur du four la température programmée par le thermostat.
Le four auxiliaire est muni d'une lampe d'éclairage interne. Durant le fonctionnement, la lampe est toujours allumée. Si l'on souhaite l'utiliser lorsque le four est éteint pour les opérations de nettoyage, tournez le bouton de sélection fonction sur le symbole
Description des symboles du bouton du FOUR electrique auxiliaire

ALLUMAGE DE LA LAMPE INTERNE DU FOUR
100÷260 ELEMENTS CHAUFFANTS INFERIEUR ET SUPERIEUR

ELEMENT CHAUFFANT SUPERIEUR

ELEMENT GRILL + TOURNE-BROCHE

ELEMENT CHAUFFANT INFERIEUR
Utilisation et programmation de l'horloge digitale FOURS
L'afficheur de fin de cuisson contrôle électroniquement le fonctionnement du four. La programmation de l'afficheur permet de programmer l'allumage ou l'extinction du four en choisissant les horaires désirés

| BOUTON MINUTEUR |
| BOUTON DUREE CUISSON |
| BOUTON FIN DE CUISSON |
| BOUTON FONCTIONNEMENT MANUEL |
| - BOUTON DIMINUTION VALEUR |
| + BOUTON AUGMENTATION VALEUR |
Reglage de l'heure
Lors de la première utilisation du four ou après une coupure de courant électrique, l'afficheur clignote et indique 0:00.
En appuyant sur la touche, on arrête le clignotement. En appuyant pendant 5 secondes sur les touches de variations valeurs, on ajoute ou retire une minute à chaque pression. Appuyer sur une des deux touches de variation valeur jusqu'à ce que l'heure soit correctement réglée.
Avant chaque programmation de l'afficheur de fin de cuisson, sélectionner la fonction et la température désirée. La fonction ±bP est pas habilitée.
Cuisson semi-automatique
Cette programmation permet l'extinction automatique du four en fin de cuisson.
Appuyer sur la touche afficheur s'allume et indique le chiffre ; garder appuyé et presser en même temps les touches de variations valeur ou pour programmer la durée de la cuisson. En relâchant la touche, se met en route le compteur de la durée de cuisson programmée et sur l'afficheur apparait l'heure courante en même temps que les symboles AUTO et
CuissoN Automatique
Ce réglage permet l'allumage et l'extinction automatique du four.
En appuyant sur la touche l'afficheur s'allume et indique 0:00 ; laisser appuyé et presser en même temps les touches de variations valeur - ou + pour programmer la durée de cuisson.
En appuyant sur la touche, apparait sur l'afficheur la somme de l'heure courante plus la durée de la cuisson. Laisser appuyé et presser en même temps sur les touches de variations valeur - ou + pour régler l'heure de fin de cuisson.
En relâchant le bouton le compteur se met en route et sur l'afficheur apparait l'heure courante avec les symboles AUTO et
Après la programmation, pour vérifier le temps de cuisson restant, appuyer sur la touche ; pour voir l'heure de fin de cuisson, appuyer sur la touche
Fin de cuisson
À la fin de la cuisson, le four s'éteint automatiquement et une sonnerie intermittente se déclenche. À la fin de la sonnerie, l'afficheur se remet sur l'heure courante avec le symbole qui signale le retard aux conditions d'utilisation normales du four.


Reglage du volume sonnerie
Le volume de la sonnerie peut être réglé (3 degrés de volumes différents) pendant qu'elle fonctionne en appuyant sur la touche.
Desactivation de la sonnerie
La sonnerie cesse automatiquement de fonctionner au bout de sept minutes. Il est possible de la désactiver manuellement en appuyant sur la touche

Après avoir appuyé sur la touche, le four se remet en marche : pour l'éteindre, tourner le bouton de sélection fonctions et le bouton thermostat sur la position
Il est possible de désactiver la sonnerie en appuyant sur n'importe quels boutons fonction. Le four s'éteindra quel que soit la fonction ou la température programmée. Apparaît alors le symbole clignotant AUTO. Pour interrompre le clignotement du symbole AUTO appuyer sur , tourner le sélecteur fonctions et le thermostat sur la position
Minuteurs
L'afficheur de fin de cuisson peut être utilisé comme minuteur.

L'utilisation comme minuteur n'interrompt pas le fonctionnement du four à la fin du temps programmé.
En appuyant sur la touche l'afficheur indique le chiffre ; le garder appuyé et presser en même temps les touches de variation valeur - ou +. En relâchant la touche le compteur programme se met en marche et sur l'afficheur apparaisent les symboles et

Après la programmation du minuteur, l'afficheur revient sur l'heure courante. Pour vérifier le temps restant, appuyer sur la touche.

La programmation de valeurs incohérentes est impossible (ex. un écart entre une fin de cuisson et une durée plus longue ne sera pas accepté par l'afficheur de fin de cuisson).
Effacement des donnees enregistrees
Avec le programme enregistré, garder appuyée la touche de fonction "effacer" et chercher en même temps la valeur 0.00 avec les touches de variation valeurs - ou +. L'effacement de la durée sera interprétable par l'afficheur comme fin de cuisson.
Modification des donnees enregistrees
Les données enregistrées pour la cuisson peuvent être modifiées à n'importe quel moment en maintenant appuyée la touche de la fonction et en appuyant en même temps sur les touches de variation valeur ou +.
Utilisation et programmation de l'horloge digitale FOURS “TOUCH SCREEN
L'horloge digitale permet de programmer l'allumage et l'extinction automatiques du four.

| - | TOUCHE DIMINUTION VALEUR |
| ◎ | TOUCHE MODE |
| + | TOUCHE AUGMENTATION VALEUR |

Ce programmateur fonctionne selon le principe tactile ; appuyer la phalange du doigt sur la touche pendant quelques secondes pour obtenir l'activation de la touche.
Premier allumage et configuration de l'heure
Au premier allumage ou après une coupure de courant, le dispositif d'affichage affiche 0:00 l'indication AUTO clignotante. Toucher la touche "Mode" jusqu'à interrompre le clignotement et agir sur les touches + / - pour configurer l'heure (en maintenant le doigt sur les touches + / - on active la fonction de défilament rapide).
Pour régler l'heure dans des conditions de fonctionnement normales, autrement dit quand l'horloge est déjà allumée, toucher simultanément les deux touches +/- pendant au moins deux secondes pour entrer dans la fonction de configuration de l'heure.
Utilisation manuelle
Cette fonction sert à utiliser le four sans aucune programmation.
Il est toujours possible de passer d'une fonction programmée à la fonction "Manuelle" en touchant la touche "Mode" ; désirer la fonction "Manuelle" si l'on ne souhaite pas utiliser de programmes de cuisson.
Programmation du minuteur
Cette fonction sert à disposer d'une alarme sonore au bout d'un temps prédefini, sans interférer avec le fonctionnement du four.
L'horloge digitale peut être utilisée également comme minuteur :
- Touchez la touche "Mode" pendant au moins 2 secondes pour entrer dans le menu de programmation, on verra apparaître le symbole clignotant;
- agir sur les touches +/- pour configurer le temps souhaité : le dispositif d'affichage affiche le temps résiduel. Le minuteur démarre automatiquement et le symbole cesse de clignoter. Une fois atteint le temps programme, il se déclenchera une alarme sonore pendant 7 minutes et le symbole clignotera;
- Toucher une touche quelconque pour interrompre le signal sonore ou la touche "Mode" pour annuler le programme.
Programmation de la DUREE de cuisson
Cette fonction permet de programmer la durée de cuisson pour éteindre automatiquement le four au terme de la cuisson.
- Configurer la fonction de cuisson et la température en agissant sur les boutons de contrôle prévus à cet effet;
- Toucher la touche "Mode" pour entrer dans le menu de programmation, en la touchant de nouveau on doit apparaître le message "Dur";
- Agir sur les touches +/- pour configurer la durée de cuisson. Le message "Auto" clignote pendant toute la durée de la phase de programmation. Au bout de 7 secondes, le programme de cuisson démarre et le symbole s'allume tandis que le message "Auto" cesse de clignoter.
Au terme du temps de cuisson programme, il se déclenchera une alarme sonore pendant 7 minutes, le symbole AUTO clignotera sur le dispositif d'affichage et le symbole s'éteindra en éteignant automatiquement le four;
- Toucher une touche quelconque pour interrompre le signal sonore ou la touche "Mode" pour annuler le programme.
Programmation de la DUREE de cuisson et de fin cuisson
Cette fonction sert à programmer l'allumage du four à une heure prédéfinie et son extinction automatique au terme de la cuisson.
- Configurer la fonction de cuisson et la température en agissant sur les boutons de contrôle prévus à cet effet;
- Toucher la touche "Mode" pour entrer dans le menu de programmation, en le touchant de nouveau on doit apparaître le message "Dur";
- agir sur les touches +/ pour configurer la durée de cuisson;
- En touchant la touche ⦁ "Mode", on va apparaître le message "end". Agir sur les touches +/ pour configurer l'heure de fin de cuisson.
Le message "Auto" clignote pendant toute la durée de la phase de programmation. Au bout de 7 secondes le programme quitte le menu de programmation et le message "Auto" cesse de clignoter. Une fois atteint l'heure de début cuisson, on verra apparaitre sur le dispositif d'affichage le symbole en allumant automatiquement le four.
Au terme du temps de cuisson programme, il se déclenchera une alarme sonore pendant 7 minutes, le symbole AUTO clignotera sur le dispositif d'affichage et le symbole s'éteindra en éteignant automatiquement le four;
- Toucher une touche quelconque pour interrompre le signal sonore ou la touche "Mode" pour annuler le programme.
Sonnerie
Au terme de chaque fonction programmée se déclenche un signal sonore qui s'arrête automatiquement au bout de 7 minutes; toucher la touche "Mode" si l'on souhaite interrompre immédiatement le signal sonore.
Il est possible de choisir entre 3 différents types de signal sonore ; pour le modifier, toucher simultanément les touches + / - puis toucher la touche "Mode" jusqu'à ce qu'apparaisse l'indication "Tone" sur le dispositif d'affichage, choisir le ton souhaité en touchant la touche
Utilisation et programmation de l'horloge digitale analogique des FOURS
L'horloge digitale permet de programmer l'allumage et l'extinction automatiques du four.


Premier allumage et configuration de l'heure
Au premier allumage ou après une coupure de courant, le dispositif d'affichage clignote. Presser la touche pour interrompre le clignotement et agir sur les touches / pour configurer l'heure (en maintenant le doigt sur les touches / on active la fonction de défilement rapide).
Utilisation manuelle
Cette fonction sert à utiliser le four sans aucune programmation.
Il est toujours possible de passer d'une fonction programmée à la fonction "Manuelle" en pressant la touche. CHOISIR LA FONCTION "Manuelle" si on ne souhaite pas utiliser de programmes de cuisson.
Programmation du minuteur
Cette fonction sert à disposer d'une alarme sonore au bout d'un temps prédefini, sans interférer avec le fonctionnement du four.
L'horloge digitale analogue peut être utilisée également comme minuteur:
- Presser la touche, le dispositif d'affichage s'allume de la façon indiquée à la figure Fig. 1;
- agir sur les touches / pour configurer le temps souhaité, le dispositif d'affichage allumera un segment pour chaque minute configurée (la Fig. 2 représente 10 minutes de cuisson).
Le minuteur démarre automatiquement et le symbole cesse de clignoter. Au bout de quelques secondes, le dispositif d'affichage revient en mode horloge;
- Presser pour visualiser le temps résiduel. Une fois atteint le temps programme, il se déclenchera une alarme sonore pendant 7 minutes et le symbole clignotera;
- presser la touche pour remettre à zéro le programme.
Fig. 1
Fig. 2

Programmation de la DUREE de cuisson
Cette fonction permet de programmer la durée de cuisson pour éteindre automatiquement le four au terme de la cuisson.
- Configurer la fonction de cuisson et la température en agissant sur les boutons de contrôle prévus à cet effet;
- Presser la touche pour entrer dans le menu de programmation, le dispositif d'affichage s'allumera de la façon indiquée à la figure Fig. 3;
- agir sur les touches +/- pour configurer la durée de cuisson, à chaque pression de la touche + on ajoute une minute de cuisson et toutes les douze minutes un segment interne s'allume (Fig. 4). Au bout de 7 secondes le programme de cuisson démarre et l'on voit s'allumer le symbole
Au terme du temps de cuisson, programme il se déclenchera une alarme sonore pendant 7 minutes, le symbole et les nombres du cadran commenceront à clignoter en éteignant automatiquement le four;
- Presser une touche quelconque pour interrompre le signal sonore ou la touche pour annuler le programme.
Fig. 3
Fig. 4
Programmation de la DUREE de cuisson et de fin cuisson

Cette fonction sert à programmer l'éclairage du four à une heure prédéfinie et son extinction automatique au terme de la cuisson.
Configurer la fonction de cuisson et la température en agissant sur les boutons de contrôle prévus à cet effet.
Outre configurer la durée de la cuisson, définir également l'heure d'allumage du four:
- Presser la touche pour entrer dans le menu de programmation, le dispositif d'affichage s'allumera de la façon indiquée à la figure Fig. 3 et l'on doit s'allumer le symbole |→|;
- agir sur les touches +/- pour configurer la durée de cuisson, à chaque pression de la touche + on ajoute une minute de cuisson et toutes les douze minutes un segment interne s'allume (Fig. 4);
- Presser de nouveau la touche et agir sur les touches +/- pour définir l'heure de fin de cuisson (heure de fin de cuisson moins durée de cuisson = heure de début cuisson), le symbole → s'allume.
Au bout de 7 secondes le dispositif d'affichage affiche l'heure actuelle en montrant l'heure de début cuisson et la durée de cuisson au moyen de l'allumage des segments internes, qui resteront fixes jusqu'au début de la cuisson et clignoteront pendant toute la durée de la cuisson. À l'heure configurée le four s'allumera automatiquement ; au terme du temps de cuisson programé il se déclenchera une alarme sonore pendant 7 minutes, les symboles et les nombres du cadran commenceront à clignoter en éteignant automatiquement le four ; - presser une touche quelconque pour interrompre le signal sonore ou la touche pour annuler le programme.
La Fig. 5 fournit un exemple de programmation : l'heure actuelle est 7:06, le début est programmé pour 8h et la fin à 9h.
Quand il sera 8 h, les segments internes compris entre 8 et 9 commenceront à clignoter et l'aiguille des heures restera fixe.
Fig. 5
Sonnerie
Au terme de chaque fonction programmée se déclenche un signal sonore, qui s'arrête automatiquement au bout de 7 minutes; presser la touche si l'on souhaite interrompre immédiatement le signal sonore.
Il est possible de choisir entre 7 différents types de signal sonore ; pour le modifier, presser pendant au moins 7 secondes la touche - , à chaque pression supplémentaire de la touche - le ton changera.
Luminosite
Il est possible de varier la luminosité de l'horloge ; presser simultanément pendant au moins 5 secondes les touches et agir ensuite sur les touches / pour varier la luminosité du cadran.
Graphisme
Il est possible de modifier le graphisme de l'horloge ; presser simultanément les touches et agir sur la touche pour visualiser et CHOISIR le graphisme préféré
6. Utilisation du plan de cuisson
Vérifier que les couronnés, les chapeaux et les grilles sont montés de manière correcte.


Durant le fonctionnement normal, l'appareil chauffe beaucoup. Il est nécessaire d'adopter les précautions nécessaires. Ne pas laisser les enfants s'approcher. Surveiller le plan de cuisson pendant la durée du fonctionnement.
6.1 Allumage des brûleurs

Tous les boutons des brûleurs du plan comportent les symboles suivants :
Robinet fermé flamme maximum flamme minimum
La position de flamme minimum se trouve à la fin de la rotation dans le sens contraire des aiguilles d'une montre du bouton. Toutes les positions intermédiaires sont comprises entre la flamme maximum et minimum, jamais entre le maximum et la fermeture.
6.1.1 Allumage électrique (one-touch)
Les brûleurs du plan sont dotés d'un système d'allumage "one-touch". Pour allumer l'un des brûleurs, appuyer sur le bouton correspondant au brûleur choisi et tourner le bouton dans le sens contraire des aiguilles d'une montre jusqu'à la position minimum. En maintenant appuyé le bouton, on active le système d'allumage automatique du brûleur, notamment appuyer le bouton pendant environ 10 secondes, de manière à permettre l'ouverture de la valve de sécurité. En cas de panne d'électricité, le brûleur pourrait être allumé avec une allumette (voir paragraphe "6.1.2 Allumage manuel").

Si le brûleur s'éteint accidentellement, le thermocouple de sécurité se déclenche et bloque la sortie de gaz même si le robinet est ouvert.

Le dispositif ne doit pas être actionné pendant plus de 15s. Si à l'issue de ces 15s le brûleur ne s'est pas rallumé, cesser d'agir sur le dispositif, ouvrir la porte de l'enceinte et/ou attendre au moins une minute avant toute nouvelle tentative d'allumage du brûleur. Dans le cas d'une extinction accidentelle des flammes du brûleur, fermer la manette de commande du brûleur et ne pas essayer de rallumer le brûleur pendant au moins une minute.
6.1.2 Allumage manuel
Pour allumer un des brûleurs, approcher une allumette allumée du brûleur, appuyer sur le bouton correspondant au brûleur choisi et le tourner dans le sens inverse de celui des aiguilles d'une montre jusqu'à la position de minimum. Relâcher le bouton.
6.2 Extinction des brûleurs
Au terme de la cuisson, ramener le bouton en position.
7. Utilisation du plan de cuisson à induction
Le plan est doté d'un générateur radiant pour chaque zone de cuisson. Chaque générateur situé sous la surface de cuisson en vitrocéramique génère un champ électromagnétique qui induit un courant thermique sur la base de la casserole.
Dans la cuisson à induction, la chaleur n'est pas transmise par une source de chaleur, mais créée par les courants inductifs directement à l'intérieur du récipient.

Avantages du plan de cuisson à induction:
Économies d'énergie grâce à la transmission directe de l'énergie à la casserole par rapport à la cuisson traditionnelle électrique et au gaz. - Plus de sécurité grâce à la transmission d'énergie au seul récipient posé sur le plan de cuisson. - Rendement élevé dans la transmission d'énergie de la zone de cuisson à induction à la base de la casserole. Vitesse de réchauffement rapide. - Danger réduit de brûlures car la surface de cuisson n'est chauffée que par la base de la casserole. - Les aliments qui débordent ne collent pas à la surface du plan.
7.1 Avertissements généraux
Enlever toutes les étiquettes autocollantes et les résidus éventuels de colle de la surface en verre du plan.
Avant de brancher l'appareil au réseau d'alimentation électrique, s'assurer qu'il est resté pendant au moins 2 heures à température ambiante.

Les porteurs de stimulateurs cardiaques ou d'autres dispositifs similaires doivent s'assurer que le fonctionnement de leurs appareils n'est pas compromis par le champ inductif, dont la gamme de fréquence est comprise entre 20 et 50kHz.
Eviter de porter des objets métalliques et des bijoux en contact direct avec le corps. Ceux-ci, en entrant dans le champ radiant du plan à induction, peuvent surchauffer et constituer un danger de brûlures. Avec les métaux non magnétisables (p. ex., or et argent), ce risque n'existe pas.
Les objets munis d'une bande magnétique (cartes de crédit, cartes diverses, disquettes etc.) ne doivent pas être placés près de l'appareil quand il est allumé.
Ne pas chauffer des boîtes de conserve ou des récipients fermés. Pendant la cuisson, il peut se développer des surpressions à l'intérieur, représentant un danger d'explosion.
Ne pas poser d'objets métalliques tels que des couverts sur la surface du plan de cuisson à induction, car ils pourraient surchauffer. Danger de brûlures.
Pour éviter toutes surchauffes et brûlures, l'appareil ne doit pas être recouvert de chiffons ou de toiles de protection.
Ne pas utiliser la surface en verre du plan comme zone d'appui ou de travail.
S'assurer que les câblages d'autres appareils, fixes ou mobiles, n'entrent jamais en contact avec la surface en verre de l'appareil.

Les pannes de l'appareil causées par l'utilisation de casseroles non appropriées à la cuisson à induction, ou bien d'accessoires amovibles, placés entre la casserole et l'élément radiant, ont pour effet d'annuler la garantie. Le fabricant décline toute responsabilité concernant les dommages au plan de cuisson ou autres dommages liés à une utilisation non correcte.
7.2 Distribution automatique de la puissance radiante
La puissance maximale applicable est distribuée entre les éléments radiants actifs, le dernier niveau de puissance paramétré a la priorité sur les paramétrages précédents des autres éléments radiants.
La distribution automatique a lieu entre les trois éléments radiants de gauche (A) et les deux de droite (B).

| A B | |||||
| ÉLÉMENT RADIANT | 1Ø 145 | 2Ø 180 | 3Ø 260 | 2Ø 180 | 4Ø 210 |
| PUISSANCE (W) | 1400 1600 | 2400 1600 | 2300 | ||
| PUISSANCE AVEC FONCTION “BOOSTER” (W)(réf. paragraphe “7.6.3”) | 1800 3000 | 3200 3000 | 3200 | ||
| PUISSANCE MAXIMALE TOTALE AVAILABLE (W) | 3700 | 3700 | |||
| NIVEAU DE PUISSANCE SÉLECTIONNÉ | 1 | 2 | 3 | 4 | 5 | 6 | 7 | 8 | 9 | ||||||||||||||||||||||||||||||||||||||||||||||||||||||||||||||||||||||||||||||||||||||||||||||||||||
| % PUISSANCE FOURNIE | 3 | 6.5 | 11 | 15.5 | 19 | 31.5 | 45 | 64.5 | 100 |
En utilisant simultanément plusieurs éléments radiants, il pourrait arriver que le dernier élément activé maintienne la valeur paramétrée au détriment des autres éléments paramétrés précédemment, qui pourraient subir effectivement une réduction de puissance. En effet, en activant le dernier élément radiant, les valeurs sur les dispositifs d'affichage des autres éléments, paramétrées précédemment, commenceront à clignoter en montrant automatiquement la nouvelle valeur de puissance inférieure fournie. Quand la valeur du réchauffement d'un quelconque élément radiant est réduite manuellement, la différence de puissance est redistribuée entre les éléments restants.

Vu que la cuisson continue avec les nouvelles valeurs de puissance, automatiquement reparamétrées, il faut en tenir compte en fonction du type d'aliments.
7.3 Tableau d'utilisation du régulateur d'énergie
Le tableau suivant donne les valeurs de puissance qui peuvent être réglées et en regard de chacune d'entre elles le type de plat que l'on peut obtenir. Les valeurs peuvent varier selon la quantité d'aliments et le goût personnel.

| 1-2 | Pour réchauffer des aliments, maintainir en ébullition de petites quantités d'eau, pour batten des sauces de jaune d'oeuf ou de beurre. |
| 3-5 | Pour la cuisson d'aliments solides et liquides, maintainir en ébullition l'eau, décongélation de surgelés, omelettes de 2-3 oeufs, plats à base de fruits et de légumes, cissons diverses. |
| 6-8 | Cuisson de viandes, poissons et légumes à l'étouffée, plats contenant plus ou moins d'eau, préparation de confitures etc. |
| 9 | Viandes ou poissons rôtis, steaks, foie, viandes et poissons rissolés, oeufs etc. |
| P | Friture à l'huile de pommes de terre etc., porter rapidement l'eau à ébullition. |
7.4 Premier allumage du plaǹ à induction
Nettoyer l'appareil avec un chiffon humide et l'essuyer soigneusement. Ne pas utiliser de produits de nettoyage qui pourrait entraîner des colorations anormales du verre.
Au moment du premier allumage, les dispositifs d'affichage de tous les éléments radiants s'allumeront simultanément en affichant les symboles de la façon présentée dans la figure ; les dispositifs d'affichage s'éteindront tout de suite après sans émettre aucun signal sonore.


Si au moment du premier allumage un ou plusieurs boutons ne sont pas sur la position "0", les dispositifs d'affichage correspondants s'allument régulièrement, mais l'élément radiant n'entre pas en fonction.
En tournant le bouton on voit apparaître, sur le dispositif d'affichage correspondant, le symbole présenté dans la figure ci-contre, qui signale le non fonctionnement de l'élément radiant. L'élément ne pourrait entrer en fonction qu'après que le bouton aura été ramené en position "0" et qu'on aura paramétré la nouvelle valeur de puissance souhaitée.

7.5 Reconnaissance casserole
Un capteur électronique détecte la présence ou l'absence de la casserole sur l'élement radiant, si le type de casserole est non approprié à la cuisson par induction magnétique (voir paragraphe "7.5.1") ou bien si la casserole est trop petite (voir tableau "DIAMETRE MINIMUM" page 200) on verra s'afficher le symbole représenté dans la figure ci-contre.
Si pendant la cuisson une casserole est enlevée de l'élément radiant sans avoir ramené le bouton correspondant sur la position “0”, la valeur de la puissance, précédemment paramétrée et affichée sur le dispositif d'affichage correspondant, sera remplacée automatiquement par le symbole
Si la casserole est ramenée correctement sur l'élément radiant, le symbole s'éteint et la cuisson reprend normalement ; sinon, au bout de 10 minutes, le symbole s'éteint quand même, mais pour pouvoir réutiliser l'élément radiant il faut ée.
Si un bouton est tourné sur une position quelconque, avant d'avoir placé la casserole sur l'élément radiant, on verra apparaître sur le dispositif d'affichage correspondant la valeur de puissance paramétrée qui sera toutefois immédiatement remplacée par le symbole (l'élément radiant restera en attente pendant 10 minutes). Si, entre-temps, une casserole est placée correctement sur l'élément radiant, la cuisson commence; sinon, l'élément radiant ne s'active pas et le symbole s'éteint. Pour pouvoir réactiver l'élément radiant, on devra ramener le bouton correspondant sur la position "0" et paramétrer la nouvelle valeur de puissance souhaitation.
Limites de reconnaissance de la casserole : le diamètre de la base de la casserole est signalé par une circonférence sur la zone de cuisson.

| 1 Ø 145 | 2 Ø 180 | 3 Ø 260 | 4 Ø 210 | ||
| DIAMETRE MINIMUM (mm) | 120 145 180 145 | ||||

7.5.1 Casseroles appropriées à la cuisson à induction
En règle générale, les fabricants indiquent si les récipients de cuisson sont appropriés pour la cuisson à induction. Le pictogramme ci-contre indique un exemple de conformité à la cuisson à induction et il est placé habituellement sur le fond du récipient.
Utiliser uniquement des récipients représentant un fond approprié pour la cuisson à induction, parfaitement plats et lisses.
Les récipients utilisés pour la cuisson à induction doivent être des alliages ferreux ou des aciers ferritiques, avoir des propriétés magnétiques et un fond d'une épaisseur suffisante.
Pour s'assurer que la casserole est appropriée, il suffit d'approcher un aimant de son fond : s'il est attiré, la casserole est appropriée pour la cuisson à induction. Si l'on ne dispose pas d'un aimant, on peut mettre dans le récipient une petite quantité d'eau, le poser sur une zone de cuisson et mettre le plan en fonction.
Certains récipients peuvent entraîner des bruits s'ils sont posés sur une zone de cuisson à induction ; cela ne signifie pas que le plan à induction est défectueux ou qu'il fonctionne de façon anormale.
- Récipients en acier ferritique émaillés à fond épais.
- Récipients en fonte ferreuse à fond émaillé.
- Récipients en acier inox multicouches, acier ferritique inoxydable et aluminium à fond spécial pour cuisson à induction.
- Récipients en cuivre, acier inox, aluminium, verre réfractaire, bois, céramique et terre cuite.
7.6 Allumage d'un élément radiant
Avant d'activer un élément radiant, placer sur la circonférence de cuisson correspondante une casserole appropriée.
En tournant dans le sens des aiguilles d'une montre un quelconque bouton, un signal sonore sera émis et tous les dispositifs d'affichage s'allumeront ; celui correspondant au bouton actionné présentera la valeur de puissance sélectionnée, alors que sur les autres dispositifs d'affichage sera affichée la valeur 0.
En tournant un second bouton, il ne sera émis aucun signal sonore et la valeur de puissance paramétrée pour ce bouton sera affichée sur le dispositif d'affichage.
7.6.1 Variation du niveau de puissance
Chaque bouton présente une échelle graduée incrémentale dans le sens des aiguilles d'une montre qui va de "0" au niveau "9". La puissance de réchauffement des éléments radiants augmente en tournant dans le sens des aiguilles d'une montre un quelconque bouton en partant de la position "0", et diminue en tournant le bouton dans le sens inverse de celui des aiguilles d'une montre par rapport à la position atteinte.

La position par défaut du bouton correspond au niveau "0" (valeur 0 sur le dispositif d'affichage correspondant). En tournant le bouton, on verra s'afficher, sur le dispositif d'affichage correspondant, le niveau de puissance sélectionné.
En tournant le bouton dans le sens des aiguilles d'une montre au-delà du niveau de puissance "9", il se produit un déclic mécanique et un signal sonore qui active la fonction "Booster" indiquée sur le dispositif d'affichage par le symbole P; ensuite, ramener le bouton au niveau "9" (voir paragraphe "7.6.3").


7.6.2 Fonction réchauffement rapide
Cette fonction permet d'atteindre plus rapidement le niveau de puissance souhaité, mais reste active pendant un temps très limité.
En partant de la position "0" tourner le bouton dans le sens inverse de celui des aiguilles d'une montre jusqu'à obtenir un déclic mécanique et le maintenir dans cette position pendant 2 secondes, le dispositif d'affichage s'allume en affichant le symbole ci-contre. À partir de ce moment-là, on dispose de 10 secondes pour tourner le bouton sur le niveau de puissance souhaité ; le dispositif d'affichage commencera à clignoter en alternant le symbole R avec le nouveau niveau de puissance paramétré avec le bouton.

Le tableau suivant présente les temps de réchauffement rapide pour les niveaux de puissance sélectionnés.
| NIVEAU DE PUISSANCE SÉLECTIONNÉ | 1 2 3 4 5 6 | 7 8 9 | ||||||
| DURÉE EN SECONDES | 48 144 | 230 312 | 408 408 | 120 168 | 216 - |

7.6.3 Fonction "booster
Tourner le bouton dans le sens des aiguilles d'une montre au-delà du niveau de puissance "9" jusqu'à obtenir un déclic mécanique et un signal sonore (on voit apparaître sur le dispositif d'affichage le symbole ci-contre); ensuite, ramener le bouton au niveau "9".

Le bouton doit être correctement ramené au niveau "9", sinon le symbole P, affiché sur le dispositif d'affichage, sera remplacé par le code d'erreur qui signale la désactivation de l'élément radiant; pour rétablir l'élément radiant, suivre les instructions exposées au paragraphe "7.6.7".
La durée max du réchauffement, avec la fonction "Booster", est de 10 minutes.
Au terme de la durée maximale du réchauffement, le symbole clignotera pendant quelques secondes et la puissance sera automatiquement réparamétrée en affichant sur le dispositif d'affichage la valeur 9
Avec la fonction "Booster" activée, il est possible de répéter plusieurs cycles consécutifs.

7.6.4 Chaleur résiduelle
Après avoir terminé une cuisson et ramené le bouton sur la valeur de puissance "0", le dispositif d'affichage de l'élément radiant montre le symbole ci-contre alternant avec la valeur pour indiquer que cet élément radiant vient d'être utilisé et qu'il est donc encore plutôt chaud.
Le symbole H clignotera pendant quelques secondes, puis deviendra fixe et restera allumé jusqu'à ce que la température du verre redescende au-dessous du niveau de sécurité.
7.6.5 Ventilation
Le ventilateur de refroidissement s'active automatiquement et démarre à petite vitesse dès que les valeurs des dispositifs électroniques dépassent un seuil donné. Quand le plan à induction est utilisé intensément, le ventilateur fonctionne à grande vitesse. Le ventilateur recommence à fonctionner plus lentement et s'arrête automatiquement quand les dispositifs électroniques ont suffisamment refroidi.
7.6.6 Surchauffe
Le plan à induction dispose d'un dispositif de sécurité contre la surchauffe de l'électronique interne. Ce dispositif ne nécessite pas l'attention de l'utilisateur et permet de continuer à utiliser le plan en toute tranquillité.



7.6.7 Désactivation d'un seul élément radiant
En tournant un quelconque bouton dans le sens inverse de celui des aiguilles d'une montre et en le maintenant dans cette position pendant plus de 30 secondes, on verra apparaître sur le dispositif d'affichage correspondant le symbole ci-contre qui signale la désactivation de l'élément radiant correspondant.
Si un bouton n'est pas placé correctement, le dispositif d'affichage correspondant affiche le code d'erreur qui signale la désactivation de l'objet radiant. Il n'est pas nécessaire d'appeler le Service d'Assistance ; pour rétablir l'objet radiant, il suffit de ramener le bouton en position "0" et de régler à nouveau la valeur de puissance souhaitée.
L'utilisation de cette fonction est conseillée pour exclure un élément radiant donné en cas d'anomalie ou de dysfonctionnement de ce dernier.
Après la réparation de l'élement radiant, par le Service d'Assistance Technique agréé, il sera possible de le réactiver en tournant de nouveau le bouton dans le sens inverse de celui des aiguilles d'une montre et en le maintenant dans cette position pendant plus de 30 secondes.
7.7 Extinction automatique
À partir de la dernière variation de puissance sélectionnée s'active un compteur automatique qui détermine la durée maximale du réchauffement; cette durée varie en fonction du niveau de puissance sélectionné.
Si un élément radiant est laissé allumé par inadvertance (avec la présence d'une casserole placée correctement) il s'éteindra automatiquement au moment où sera atteinte la durée maximale de réchauffement par rapport à la puissance sélectionnée.
| NIVEAU DE PUISSANCE SÉLECTIONNÉ | 1 | 2 | 3 | 4 | 5 | 6 | 7 | 8 | 9 | P |
| TEMPS MAXIMAL EN MINUTES | 360 | 360 | 300 | 300 | 240 | 90 | 90 | 90 | 90 | 10 |

7.8 Extinction manuelle
Tourner tous les boutons sur la position "0", sur chaque dispositif d'affichage on verra apparaître un point clignotant de la façon présentée dans la figure ci-contre ; au bout de 15 secondes tous les dispositifs d'affichage s'éteindront en émettant un signal sonore et l'appareil passera en "veille".

7.9 Sécurité enfants
Il est possible de désactiver les éléments radiants. Tourner simultanément les deux premiers boutons de gauche dans le sens inverse de celui des aiguilles d'une montre et les maintenir dans cette position pendant au moins 2 secondes, jusqu'à ce que sur tous les dispositifs d'affichage apparaisse le symbole.


Au bout de quelques minutes les symboles s'éteindront, mais en tournant un bouton quelconque les symboles de blocage réapparaîtront sur tous les dispositifs d'affichage et les éléments radiants ne s'activeront pas.
La désactivation n'a pas de limites de temps. Une interruption prolongée de courant électrique peut annuler la désactivation effectuée.
Pour réactiver les éléments radiants, tourner simultanément les deux premiers boutons de gauche de nouveau dans le sens inverse de celui des aiguilles d'une montre.

7.10 En cas de pannes et d'anomalies
Si on constate un défaut de fonctionnement, éteindre l'appareil et le débrancher du réseau électrique.
Ne jamais essayer de réutiliser l'élement radiant en panne jusqu'à sa réparation par le Service d'Assistance Technique agréé.
Toute réparation doit être effectuée exclusivement par du personnel qualifié. N'ouvrir l'appareil sous aucun prétexte.
Si la surface du verre est fêlée, éteindre immédiatement l'appareil pour éviter tout risque d'électrocution et appeler le Service d'Assistance Technique.
En cas de panne d'un élément radiant, tous les éléments restants seront normalement utilisables.
Pour enlever le code d'erreur des dispositifs d'affichage, amener tous les boutons sur la position "0" et paramétrer les nouvelles valeurs de puissance.
La liste suivante (page 205) contient les anomalies les plus fréquentes, dont les causes peuvent être éliminées par l'utilisateur ou avec l'intervention du Service d'Assistance Technique.
| ANOMALIE CAUSE REMÉDE | |||
| Le plan ou les zones de cuisson ne s'allument pas. | L'appareil n'est pas branché correctement au réseau électrique. | Brancher correctement au réseau électrique. | |
| La fonction de blocage du plan a été activée. | Prologue à la désactivation du blocage en suivant les instructions correspondantes figurant au paragraphe 7.9 | ||
| U | Sur le dispositif d'affichage est affché le symbole cl-contre. | Il n'y a pas de-scription sur la zone de cuisson. | Placer un-scription approprié en suivant les instructions correspondantes figurant au paragraphe 7.5 |
| Le-scription n'est pas approprié pour la cuisson à induction magnétique. | Remplacer le-scription par un-scription approprié comme indiqué au paragraphe 7.5 | ||
| Le diamètre du fond du-scription est trop petit pour la zone de cuisson. | Remplacer le-scription par un-scription approprié comme indiqué au paragraphe 7.5 | ||
| P | Sur le dispositif d'affichage est affché le symbole cl-contre. | Lebouton n'est pas placée correctement. Il n'est pas nécessaire d'appeker le Service d'Assistance; pour rétablir l'élement radiant, il suffit de ramener lebouton en position "0" et de régler à nouveau la valeur de puissance souhaitée. | |
| E | Sur le dispositif d'affichage est affché le code cl-contre alternant avec des chiffres ou des lettres. | Contacter le Service Assistance et communiquer le code affché sur le dispositif d'affichage. | |
| Le plan ou une zone de cuisson s'éteignent. | Le dispositif de sécurité s'est déclenché. Le dispositif se déclenché quand on oublie d'eteindre une zone de cuisson. | Ramener le bouton relatif à la zone de cuisson sur la position "0". | |
| Un-scription de cuisson vide est en surchauffe. | Enlever le-scription vide de la zone de cuisson. | ||
| Après avoir étéint le plan, le ventilateur de refroidissement resté en fonction. | Il ne s'agit pas d'une panne. | Le ventilateur continuera à fonctionner jusqu'à ce que le plan ait refroidi. Le ventilateur s'éteindra automatiquement. | |
8.1 Avertissements généraux

Quand le four ou le grill sont en fonction, les parois externes et la porte du four peuvent devenir très chaudes : il convient de tenir les enfants à l'écart de l'appareil.
Ne pas permettre aux enfants de s'asseoir sur la porte du four ou de jouer avec elle.
Ne pas utiliser la porte comme appui.
Ne jamais poser de récipients ou de papier aluminium sur le fond du four ; cela pourrait abimer gravement l'émail du four.
Éviter de cuire les aliments sur la base du four.
Lors de la première utilisation du four, après une coupure de courant, l'afficheur clignote régulièrement avec l'indication. Pour le réglage, se reporter au paragraphe "REGLAGE DE L'HEURE" page 189.
Ne pas tenter de démonter la porte du four sans avoir consulté avec attention les instructions correspondantes (lire le paragraphe "11.1 Démontage de la porte du four") : il existe le danger de se blesser les mains avec les charnières de la porte du four.

Blocage rechauffement du FOUR
Si, pendant le fonctionnement normal, le four devait interrompre le rechauffement et que l'afficheur du programmateur commence à clignoter et se remette à zéro, vérifier si :
- il n'y a pas eu une coupure de courant.
Si, une fois redémarré le programme de cuisson, le blocage devait se répéter, cela signifie qu'est intervenu le dispositif de sécurité. Ce dispositif intervient en cas de défaut du thermostat et évite la surchauffe du four. Il est conseillé de ne pas essayer de nouveau le rallumage et de contacter le centre d'Assistance le plus proche.
8.2 Tiroir de rangement (disponible uniquement sur certains modèles)
Les cuisinières sont dotées d'un tiroir de rangement situé dans la partie inférieure, sous le four. Ne ranger dans le tiroir de rangement que les ustensiles métalliques de la cuisinière.

Pendant l'emploi du four, l'intérieur du tiroir se réchauffe ; éviter le contact avec les parties internes pour empêcher toute brûlure.
Ne pas ranger à l'intérieur du tiroir de matériaux inflammables tels que chiffons, papier ou autres.
8.3 Risque de buée

- Certaines cuissons à teneur élevée en eau associées à l'emploi de fonctions spécifiques peuvent entraîner la formation de buée sur la vitre interne de la porte. Pour empêcher ce phénomène, ouvrir pendant quelques secondes la porte du four une ou plusieurs fois pendant la cuisson.
- Ne pas laisser refroidir les aliments dans le four après la cuisson pour éviter la formation de buée sur la vitre interne de la porte, qui pourrait goutter du four lors de l'ouverture de la porte.
8.4 Utilisation du four électrique multifonction

L'afficheur de fin de cuisson et les boutons de commande du four principal n'influent en aucune façon sur le fonctionnement du four auxiliaire.

8.4.1 Premier allumage du four
Lors du premier allumage, le four pourrait dégager de la fumée et une odeur acre causées par les résidus huileux de fabrication, ce qui pourrait conférer une odeur et un goût désagréables aux aliments. Avant d'introduire les aliments à cuire, réchauffer le four à la température maximale pendant une durée de 30-40 minutes porte fermée et attendre que la fumée et les odeurs cessent.



Pour éviter la vapeur éventuellement présente dans le four puisse créer une gêne, procéder de la façon suivante : tourner le bouton de sélection des fonctions sur la position ou bien sur la fonction ouvrir la porte en deux temps : la maintenir semi-ouverte (environ 5 cm) pendant 4-5 secondes, puis l'ouvrir complètement. Si des interventions sur les aliments devaient être nécessaires, laisser la porte ouverte le moins de temps possible pour éviter que la température à l'intérieur du four s'abaisse au point de compromettre la cuisson.

8.4.2 Cuissons traditionnelles
Tourner le bouton du sélecteur de fonctions sur la position et le bouton du thermostat au niveau de la valeur de température souhaitée. Pour un réchauffement différent dans la partie supérieure ou inférieure des aliments : amener le sélecteur de fonctions sur la position (chaud dessus) ou bien (chaud dessous). Pour un réchauffement plus uniforme dans chaque partie du four : tourner le bouton du sélecteur de fonctions sur la position

Le four est doté d'un système automatique de refroidissement réglé par la température de la porte. Une fois atteinte la température limite, le ventilateur de refroidissement démarre automatiquement en s'éteignant quand la température de la porte descend au-dessous de la limite prédéfinie. Le fonctionnement du ventilateur de refroidissement peut durer au-delà de l'extinction du four. Si cela ne se vérifie pas, éteindre l'appareil et contacter le service après-vente.
Tourner le bouton du sélecteur de fonctions sur la position ; tourner le bouton du thermostat au niveau de la valeur de température souhaitée.
8.4.4 Cuisson au grill ventilé (avec porte fermée)
Tourner le bouton du sélecteur de fonctions sur la position ; tourner le bouton du thermostat au niveau de la valeur de température maximale.
8.4.5 Cuisson au gril + tournebroche (avec porte fermée)
Tourner le bouton du sélecteur de fonctions sur la position ; tourner le bouton du thermostat au niveau de la valeur de température maximale. Pendant le fonctionnement du gril, on a le fonctionnement simultané du tournebroche, ce qui permet la cuisson à la broche.
8.4.6 Cuisson au tournebroche (avec porte fermée)
Si votre modèle de four est doté d'un tournebroche, procédez de la façon suivante:
enfiler les viandes à cuire sur la broche A et les bloquer au moyen des fourchettes réglables ; accrocher le crochet B sur la partie supérieure du four de la façon indiquée dans l'illustration ; - introduire la broche A du tournebroche dans l'orifice C présent dans le carter du four ; avant de fermer la porte du four, s'assurer que la tige A est correctement insérée dans l'orifice C (introduire la tige en la tournant légèrement dans le sens des aiguilles d'une montre et dans le sens inverse) ; - accrocher l'autre extrémité de la broche au crochet B (la poulie de la broche A devra être placée sur l'anse du crochet B) ; - fermer la porte du four et actionner la broche en tournant le bouton du sélecteur de fonctions sur la position - une fois la cuisson terminée, ouvrir la porte du four et sorting la broche en se servant de la poignée en plastique D qui devra être vissée à la base de la broche A.

8.4.7 Décongélation
Tourner le bouton du selector sur la position. Tourner le bouton du thermostat sur la position. Cela a pour effet d'activer le ventilateur qui, en remuant l'air à l'intérieur du four, favorise la décongélation des aliments surgelés.
8.4.8 Extinction du four
L'extinction se fait en ramenant le bouton du thermostat en position.

8.5 Utilisation du four auxiliaire à convection naturelle
L'afficheur de fin de cuisson et les boutons de commande du four principal n'influent en aucune façon sur le fonctionnement du four auxiliaire.

Le four auxiliaire à convection naturelle est doté de:
- un élément chauffant placé sur le plan inférieur du four (en bas);
- un élément chauffant placé sur le plan supérieur du four (en haut) + grill.

8.5.1 Premier allumage du four auxiliaire
Lors du premier allumage, le four auxiliaire pourrait dégager de la fumée et une odeur acre causées par les résidus huileux de fabrication, ce qui pourrait conférer une odeur et un goût désagréables aux aliments. Avant d'introduire les aliments à cuire, réchauffer le four auxiliaire à la température maximale pendant une durée de 30-40 minutes porte fermée et attendre que la fumée et les odeurs cessent.
Pour activer le rechauffement du four auxiliaire, il faut sélectionner la température (100÷ 260) ou la fonction souhaitée en tournant le bouton du thermostat.

8.5.2 Cuisson au gril (avec porte fermée)
Tourner le bouton du thermostat sur la position lasse. Préchauffer le four auxiliaire pendant environ 5 minutes. Pour assurer le bon fonctionnement, placer la grille de support plats sur le troisième rail en partant du bas. Il est possible de toute façon de varier la position de la grille de support plats selon le goût personnel et les exigences de cuisson. Avant de mettre au four, il faut préchauffer pendant 5 minutes. Un système de refroidissement empêchera les boutons de commande de surchauffer.
8.5.3 Cuisson au tournebroche (avec porte fermée)
Si votre modèle de four est doté d'un tournebroche, procédez de la façon suivante:
- tourner le bouton du thermostat sur la position et laisser préchauffer le four auxiliaire pendant environ 5 minutes;
- enfiler les aliments sur la tige du tournebroche A en veillant à l'immobiliser entre les deux fourches B, en l'équilibrant de façon à éviter des efforts inutiles sur le réducteur;
- placer la poulie C de la tige du tournebroche sur le support D après avoir introduit son extrémité opposée dans l'orifice E, jusqu'à obtenir le blocage avec le réducteur F et la rotation consécutive de la tige;
- Verser un peu d'eau dans la lèchefrite et la placer sous la tige du tournebroche;
- surveiller de temps en temps la cuisson en vérifiant la rotation de la tige du tournebroche; au terme de la cuisson, désactiver le réchauffement du four auxiliaire en ramenant le bouton du thermostat en position; sortir la tige du tournebroche du four auxiliaire en utilisant le bouton G et en se servant d'un gant de protection.

8.5.4 Extinction du four auxiliaire
L'extinction se fait en ramenant le bouton du thermostat en position
9.1 Conseils pour l'utilisation correcte des brûleurs de plan

Le diamètre du fond des récipients de cuisson devra être approprié au diamètre du brûleur utilisé (voir tableau ci-contre). La flamme du brûleur ne doit jamais sortir du diamètre du récipient. Utiliser des récipients à fond plat. Cuire en utilisant si possible des casseroles dotées de couvercle, cela permet d'utiliser des puissances plus faibles. Pour réduire les temps de cuisson, cuire les légumes, les pommes de terre etc. avec peu d'eau.
| Brûleur | Diamètre réciendent(en cm) |
| Rapide | de 24 à 26 |
| Semi-rapide | de 16 à 22 |
| Auxiliaire | de 8 à 14 |
| Triple couronne | de 24 à 26 |

9.2 Conseils pour l'utilisation correcte du plan à induction
Pour obtenir un bon rendement et une consommation d'énergie appropriée, il est indispensable d'utiliser uniquement des éléments appropriés à la cuisson à induction. Le diamètre du fond des éléments doit être égal au diamètre du cercle tracé sur la zone de cuisson (paragraphe "7.5") ; s'ils ne correspondent pas, il y aura gâchis d'énergie.
Le fond des récipients doit être en alliage ferréux ou en acier ferritique et parfaitement plan. Par ailleurs, il doit être parfaitement propre et sec, tout comme le verre de la zone radiante.
Ne pas utiliser de casseroles à fond rêche, rayé ou endommagé car elles pourraient rayer la surface radiante.

Les substances sucrées, les matériaux synthétiques et le papier alu ne doivent jamais entrer en contact avec la surface radiante car, pendant le refroidissement, ils peuvent causer des fêlures ou altérations du plan en vitrocéramique. Avant la cuisson d'aliments sucrés, il est conseillé de traiter le plan vitrocéramique au moyen d'un produit spécifique à base de silicone, de façon à isoler la surface du plan de l'agression de résidus brûlés eventuels.
Ne pas poser ou laisser des casseroles vides sur la surface en vitrocéramique.
Eviter de faire tomber des objets, même sur la surface en vitrocéramique.
Le sable ou les autres substances abrasives peuvent endommager la surface en vitrocéramique.
Si on pose des casseroles sur des résidus abrasifs, le verre pourrait se rayer. Les rayures éventuelles, toutefois, compromettent la cuisson à induction.
S'assurer que la ventilation de l'appareil fonctionne correctement.
9.3 Conseils pour une bonne utilisation du four

Le four permet d'optimiser les cuissons. Il est possible d'effectuer des cuissons traditionnelles, à convection et au grill.
Tous les types de cuisson doivent être effectués avec la porte du four complètement fermée.

9.3.1 Cuisson traditionnelle
Pour ce type de cuisson, la chaleur arrive du haut et du bas, il est donc préférible d'utiliser les plaques centrales. Si la cuisson nécessite une chaleur plus importante du haut ou du bas, utiliser les plaques inférieures ou supérieures. La cuisson traditionnelle est conseillée pour tous les aliments qui requirement des températures de cuisson élevées ou des longs temps de braisage. Ce système est aussi conseillé lorsque l'on utilise pour la cuisson des récipients en terre cuite, porcelaine etc.

9.3.2 Cuisson à convection
Avec ce type de cuisson, la chaleur est transmise aux aliments par l'air préchauffé et tournant grâce à un ventilateur situé sur la paroi arrière du four. La chaleur atteint rapidement et uniformément toutes les parties du four, permettant ainsi de cuire différents aliments sur plusieurs étages. L'élimination de l'humidité de l'air et l'ambiance plus sèche empêchent la transmission et le mélange des odeurs et des saveurs.
La possibilité de cuire sur plusieurs étages permet de réaliser en même temps plusieurs plats différents. Il est possible de cuire des gâteaux et des pizzas dans trois plats différents. Le four peut cependant être utilisé pour une cuisson sur un seul étage. Pour une meilleure cuisson, utiliser les plaques basses.
La cuisson à convection est particulièrement recommandée pour la décongélation des aliments surgelés, pour stériliser les conserves, les fruits en sirop maison et enfin pour faire sécher des champignons ou des fruits.

9.3.3 Cuisson au grill
La chaleur est transmise par le haut. Presque toutes les viandes peuvent être cuites au grill, exceptées les viandes maigres de gibier et les boulettes. Les viandes et les poissons cuits au grill seront légèrement recouverts d'huile et disposés sur la grille ; celle-ci doit être placée sur les plaques les plus proches ou les plus éloignées de l'élément gril, selon l'épaisseur de la viande afin d'éviter qu'elle ne soit brûlée en surface et pas assez cuite à l'intérieur.
Conseillé pour : viandes peu épaisses, toast.

Placer le lèchefrite au niveau le plus bas pour recueillir les sautes et les graisses; verser un verre d'eau dans le lèchefrite pour empêcher la formation de fumée due à la surchauffe des graisses.

9.3.4 Cuisson au grill ventilé
Elle se fait par le fonctionnement combiné du gril et du ventilateur.
Ce type de cuisson permet à la chaleur de pénétrer progressivement à l'intérieur des aliments bien que la surface soit exposée à l'action directe du gril.
Conseillée pour : viandes épaisses, volailles.
9.3.5 Cuisson de la viande et du poisson
La viande à cuire au four doit peser au moins 1 kg. Les viandes rouges tendres qui doivent être cuites saignantes (roast-beef, fillet etc.) ou qui doivent être bien cuites à l'extérieur tout en conservant leur saveur intérieure requièrent une cuisson à haute température pendant peu de temps (200 - 250^). Les viandes blanches, les volailles et le poisson requièrent une cuisson à basse température (150 - 175^).
Les ingrédients de la sauce doivent être immédiatement disposés dans le plat si le temps de cuisson est court. Sinon, il est conseillé de les ajouter dans les dernières dix minutes. Les viandes peuvent être disposées sur un plat adapté à la cuisson au four ou directement sur le grill sous lequel on place la lèchefrite servant à recueillir le jus. La cuisson peut être contrôlée en écrasant la viande avec une cuillère ; si elle ne cède pas, c'est qu'elle est cuite à point.
À la fin de la cuisson, il est conseillé d'attendre au moins 15 minutes avant de couper la viande de manière à ce que le jus ne sorte pas. Les assiettes avant d'être servies peuvent être maintenues au four à température minimale.
9.3.6 Cuisson des gâteaux
Les pâtes battues doivent se détacher difficilement de la cuillère, car une pâte trop fluide nécessiterait un temps de cuisson inutilément long. Les gâteaux nécessitant une température moyenne (comprise entre 150 - 200°C) requièrent un préchauffage (10 minutes environ). La porte ne doit pas être ouverte avant au moins 3/4 d'heure de cuisson.
9.3.7 Tableau de cuisson conseillée
Les temps de cuisson varient selon la nature, l'homogénéité et le volume des aliments. Il est conseillé de surveiller les premières cuissons pour voir si en réalisant les mêmes plats dans les mêmes conditions on obtient les mêmes résultats. À titre indicatif, vous trouverez ci-dessous trois tableaux (I, II et III).
TABLEAU TEMPS DE CUISSON À CONVECTION ET TRADITIONNELLE (I)
| TYPE DE CUISSON | QUANTITE KG. | POSITION CONDUITE DU BAS | TEMPERATURE °C | TEMPS EN MINUTES | ||
| CONVECTION | TRADITIONNEL | CONVECTION | TRADITIONNEL | |||
| GATEAUX | ||||||
| AVEC PATE BATTUE, EN MOULE | 1 | 1-3 | 2 | 175 | 200 | 60 |
| AVEC PATE BATTUE SUR L'LECHEFRITE | 1 | 1-3 | 2 | 175 | 200 | 50 |
| PATE BRISEE FOND DE TARTE | 0.5 | 1-3 | 3 | 175 | 200 | 30 |
| PATE BRISEE GARNITURE HUMIDE | 1.5 | 1-3 | 2 | 175 | 200 | 70 |
| PATE BRISEE GARNITURE SECHE | 1 | 1-3 | 2 | 175 | 200 | 45 |
| AVEC PATE À LEVURE NATURELLE | 1 | 1-3 | 1 | 175 | 200 | 50 |
| PETITS GATEAUX | 0.5 | 1-3 | 3 | 160 | 175 | 30 |
| VIANDES | ||||||
| VEAU | 1 | 2 | 2 | 180 | 200 | 60 |
| BCEUF | 1 | 2 | 2 | 180 | 200 | 70 |
| ROAST-BEEF A L'ANGLAISE | 1 | 2 | 2 | 220 | 220 | 50 |
| PORC | 1 | 2 | 2 | 180 | 200 | 70 |
| POULET | 1-1.5 | 2 | 2 | 200 | 200 | 70 |
| ESTOUFFADES | ||||||
| BCEUF BRAISE | 1 | 1 | 2 | 175 | 200 | 120 |
| VEAU BRAISE | 1 | 1 | 2 | 175 | 200 | 110 |
| POISSONS | ||||||
| FILETS, STEAKS, MORUE, MERLAN, SOLE | 1 | 1-3 | 2 | 180 | 180 | 30 |
| MAQUEREAU, TURBOT, SAUMON | 1 | 1-3 | 2 | 180 | 180 | 45 |
| HUITRES | 1 | 1-3 | 2 | 180 | 180 | 20 |
| PLATS EN MOULE | ||||||
| PATES EN MOULE | 2 | 1-3 | 2 | 185 | 200 | 60 |
| LEGUMES EN MOULE | 2 | 1-3 | 2 | 185 | 200 | 50 |
| SOUFFLES SUCRES ET SALES | 0.75 | 1-3 | 2 | 180 | 200 | 50 |
| PIZZA ET CALZONE | 0.5 | 1-3 | 2 | 200 | 220 | 30 |
Les temps se réfèrent à la cuisson sur un seul étage, pour plusieurs étages augmenter les temps de 5-10 minutes. - Les temps de cuisson s'entendent avec un préchauffage de 15 minutes environ. L'indication des plaques dans le cas de cuisson sur plusieurs étages, l'indication préférentielle. Pour les rois de bœuf, veau, porc et dinde, avec os ou enroulés, augmenter les temps de 20 minutes.
TABLEAU TEMPS DE CUISSON AU GRIL ET GRIL VENTILE (II)
| GRILLADES TRADITIONNEL | ||||
| TYPE DE CUISSON QUANTITE | KG. | POSITION CONDUITE DU BAS | TEMPERATURE °C | TEMPS EN MINUTES |
| POULET | 1-1.5 | 3 | MAX | 30 PAR COTE |
| TOAST | 0.5 | 4 | MAX | 5 PAR COTE |
| SAUCISSES | 0.5 | 4 | MAX | 10 PAR COTE |
| COTES | 0.5 | 4 | MAX | 8 PAR COTE |
| POISSONS | 0.5 | 4 | MAX | 8 PAR COTE |
| GRILLADES AVEC GRIL VENTILE | ||||
| TYPE DE CUISSON QUANTITE | KG. | POSITION CONDUITE DU BAS | TEMPERATURE °C | TEMPS EN MINUTES |
| ROTI DE PORC | 1.5 | 2 | 170 | 180 |
| ROAST-BEEF | 1.5 | 3 | 220 | 60 |
| POULET | 1.2 | 2 | 190 | 90 |
La lèchefrite doit être placée sur la première plaque du bas.
TABLEAU TEMPS DE DECONGELATION (III)
| DECONGELATION | |||
| TYPE D'ALIMENTS QUANTITE | KG. | POSITION CONDUITE DU BAS | TEMPS EN MINUTES |
| PLATS PREPARES | 1 | 2 | 45 |
| VIANDES | 0.5 | 2 | 50 |
| VIANDES | 0.75 | 2 | 70 |
| VIANDES | 1 | 2 | 110 |
La décongélation à température ambiante à l'avantage de ne pas modifier le goût et l'aspect de la viande.
10. Nettoyage et maintenance

Avant chaque intervention, couper l'alimentation électrique de l'appareil et fermer le robinet de l'installation gaz.

Eviter de nettoyer les surfaces de l'appareil lorsqu'elles sont encore chaudes. Pour le nettoyage des surfaces de l'appareil, n'utiliser que des produits nettoyants appropriés. Le fabricant décline toute responsabilité et ne répond pas des dommages eventuels résultant de l'utilisation de produits nettoyants appropriés et/ou autres que ceux indiqués. Pour le lavage de l'appareil ne pas utiliser de jet à pression ou de vapeur.

10.1 Nettoyage des surfaces en acier inox
Pour nettoyer et conserver les surfaces en acier inox, utiliser quotidiennement une solution chaude d'eau et de vinaigre ou de savon neutre ; verser la solution sur un chiffon humide et passer sur la surface en acier dans le sens du satinage, rincer soigneusement et essuyer à l'aide d'un chiffon doux ou d'une peau de chamois.
Eviter l'utilisation d'éponges métalliques et d'objets coupants qui pourraient endommager les surfaces. Utiliser des éponges qui ne raient pas et eventuellement des ustensiles en bois ou en plastique.

10.2 Nettoyage des surfaces émaillées
Nettoyer avec une éponge non abrasive humidifiée d'eau et de savon neutre. Les taches de gras peuvent être éliminées facilement avec un produit spécifique vendu dans le commerce pour le nettoyage de l'émail. Rincer soigneusement et sécher avec un chiffon doux ou une peau de chamois. Eviter les produits contenant des substances abrasives, paillettes, laine de verre ou acides qui pourraient endommager la surface. Eviter de laisser sur l'émail des substances acides ou alcalines (jus de citron, vinaigre, sel etc.).

10.3 Nettoyage des surfaces peintes
Nettoyer avec une éponge anti-rayures de type non abrasif imbibée d'eau chaude et de savon neutre ou d'un produit nettoyant normal pour surfaces peintes. Rincer et essuyer soigneusement au moyen d'un chiffon doux.
Eviter les produits contenant des substances abrasives, les éponges métalliques, la laine d'aciers ou les acides qui pourraient abîmer les surfaces. Ne pas utiliser d'alcool.

10.4 Nettoyage des surfaces, accessoires et pièces en bois
Pour le nettoyage, il est conseillé d'utiliser des produits spécifiques normalement disponibles dans le commerce ; ces produits garantissent l'inaltérité du bois dans la durée. Si l'on ne dispose pas de ces produits, il est conseillé d'essayer d'enlever la saleté le plus vite possible à l'aide d'un chiffon humecté d'eau et de savon neutre ; rincer soigneusement et essuyer à l'aide d'un chiffon doux. Enlever les incrustations les plus grossières et les résidus les plus tenaces en utilisant un racloir anti-rayures pour bois ou une éponge spéciale pour surfaces fragiles.
Eviter l'utilisation d'éponges métalliques et d'objets coupants qui pourraient endommager les surfaces.
Ne pas laver les accessoires et les pièces en bois au lave-vaisselle ; ne pas les conserver dans des locaux humides et éviter les écarts de température. L'excès d'humidité et les écarts de température pourraient déformer irrémédiablement les accessoires et les pièces en bois.
10.5 Nettoyage des boutons et du panneau de commandes
Nettoyer les boutons et le panneau de commandes avec un chiffon humide.
10.6 Nettoyage des grilles et des brûleurs
Pour procéder au nettoyage des grilles et des brûleurs du plan de cuisson, les enlever de leur emplacement en les faisant glisser vers le haut (voir le dessin) et les laisser tremper une dizaine de minutes dans de l'eau chaude mélangée à un détergent neutre non abrasif. Rincer et sécher avec soin.
Il est conseillé de ne pas laver les brûleurs et les plateaux au lave-vaisselle.
Contrôler que les ouvertures des brûleurs ne sont pas obstruées.
Remonter correctement les brûleurs en vérifier l'uniformité des flammes.
Il est conseillé d'effectuer cette opération 1 fois par an et chaque fois qu'elles.

10.7 Nettoyage des bougies et thermocouples
Pour un bon fonctionnement, les bougies d'allumage et les thermocouples doivent toujours être propres. Contrôlez régulièrement et, si nécessaire, nettoyez-les avec un chiffon humide, essuyez soigneusement.
Certains résidus secs peuvent être enlevés avec une tige en bois ou une aiguille, en faisant bien attention de ne pas endommager la partie isolante en céramique.

10.8 Nettoyage du plan à induction
Le plan à induction ne nécessite pas d'un entretien ou d'un nettoyage spéciaux. Toutefois, si, après la cuisson, il reste des résidus brûlés à proximité de la zone radiante, il convient de les enlever au moyen d'un racloir anti-rayures, puis rincer à l'eau et bien essuyer au moyen d'un chiffon propre. L'utilisation constante du racloir évite l'emploi de produits chimiques pour le nettoyage du plan.
Avant de déplacer ou trainer les casseroles sur le plan, s'assurer qu'il ne présente pas de grains ou d'impuretés qui pourraient le rayer.
Ne pas utiliser d'éponges ou de produits nettoyants abrasifs. Éviter les produits chimiques agressifs, tels que par exemple les sprays utilisés pour le nettoyage des joints, les produits anti-taches, mais aussi les produits de nettoyage pour salles de bain ou ceux de type universel.

Veiller à ce que le plan en vitrocéramide chaud n'entre pas en contact avec du plastique, du papier alu, du sucre ou des aliments contenant du sucre. Ils peuvent endommager la surface du plan et doivent donc être enlevés immédiatement en utilisant un racloir anti-rayures.
Avant la cuisson d'aliments sucrés, il est conseillé de traiter le plan vitrocéramique au moyen d'un produit spécifique à base de silicone, de façon à isoler la surface du plan de l'agression de résidus brûlés éventuels.
Pour le nettoyage de la surface du plan en vitrocéramique, procéder de la façon suivante :
- Enlever les incrustations les plus grosses et les résidus les plus tenaces en utilisant un racloir anti-rayures ou une éponge spéciale pour surfaces délicates.
- Attendre le refroidissement complet de la surface du plan, verser quelques gouttes de produit nettoyant spécifique puis frotter au moyen d'essuie-tout ou d'un chiffon propre. En alternative, utiliser une éponge spéciale pour surfaces fragiles.
- Passer sur la surface du plan avec un chiffon humecté ou bien avec le côté lisse d'une éponge spéciale.






10.9 Nettoyage du four
Pour une bonne conservation du four, il est nécessaire de le nettoyer régulièrement. L'idéal étant de le faire après chaque utilisation après l'avoir laissé refroidir.
Nettoyer les parties en acier inox et les parties émaillées comme décrit aux paragraphes "10.1 Nettoyage des surfaces en acier inox" et "10.2 Nettoyage des surfaces émaillées".
Extraire toutes les parties mobiles et les laver séparément, rincer et sécher soigneusement avec un chiffon propre.
10.9.1 Nettoyage des parois du four
Pour le nettoyage de ce type de fours, il ne faut jamais utiliser de produits détergents.
Les parois du four peuvent être nettoyées au vinaigre blanc et rincées au moyen d'un chiffon humecté d'eau. Ensuite, réchauffer le four pendant au moins une heure à 150°C pour en faciliter le nettoyage. Rincer encore avec un chiffon humecté d'eau tiède après refroidissement du four.
10.9.2 Nettoyage de la porte du four
Il est conseillé de maintenir la porte du four toujours bien propre. Utiliser de l'essuie-tout, en cas de saleté persistante laver avec une éponge humide et du détergent.

Les produits "spray" pour le nettoyage du four ne doivent pas être utilisés pour le nettoyage du ventilateur et des capteurs du thermostat placés à l'intérieur du four.
11. Maintenance extraordinaire
Le four nécessite périodiquement des petites interventions de maintenance ou des changements de parties sujettes à l'usure. Ci-dessous vous trouverez les instructions spécifiques pour chaque intervention de ce type.

Avant chaque intervention, il est nécessaire de couper l'alimentation électrique de l'appareil et de fermer le robinet de l'installation gaz.
11.1 Démontage de la porte du four
Il est possible de démonter complètement la porte du four pour en permettre un nettoyage plus soigneux.
Cette opération, bien que prévue, n'est pas à la portée de tout le monde. Il faut la force nécessaire pour soutenir la porte et un minimum de pratique pour la remonter. Si on n'est pas sûr de pouvoir le faire, il est conseillé de nettoyer la porte du four sans la démonter ou, dans des cas spéciaux, de s'adresser au Centre d'Assistance agréé le plus proche.
Pour le démontage de la porte, procéder comme suit:
Ouvrir la porte du four et décrocher les sécurités des charnières en tournant vers l'arrière les axes A (un par charnière) ; fermer la porte du four jusqu'à l'épuisement de la tension de chargement des ressorts (la porte du four formera un angle d'environ - avec les deux mains, accompagner le mouvement de la porte vers la fermeture et, en même temps, la soulever vers le haut ; tourner la partie inférieure de la porte vers l'extérieur en libérant les charnières B de leurs logements.



Il est possible d'enlever la vitre interne pour effectuer un nettoyage plus approfondi.
Procéder comme suit :
- desserrer la vis C par une rotation d'un demi tour pour permettre le soulevement de la platine de blocage de la vitre droite et gauche;
- soulever les deux platines de blocage de la vitre et sortir la vitre interne;
- Pour le remontage de la vitre, procéder dans le sens inverse par rapport aux instructions fournies ci-dessus.

Pour le nettoyage de l'espace compris entre la vitre externe et la vitre intermédiaire, utiliser un écouvillon douple qu'on introduira dans l'espace présent entre les vitres, de la façon indiquée page 216.
Pour le remontage de la porte, procéder dans le sens inverse par rapport aux instructions fournies page 216.
Une fois réintroduites dans leurs logements les charnières B, ouvrir la porte en fin de course puis réarmer les sécurités des charnières, en rabaissant les axes correspondants A (un pour chaque charnière).

ATTENTION: après le remontage de la porte four, il convient de réarmer toujours les sécurité des charnières.

11.2 Enlèvement des châssis latéraux de support des grilles
Les chassis de support des grilles sont amovibles de façon à pouvoir être lavés séparément et pour faciliter le nettoyage des parois du four. Les chassis sont accrochés à la paroi du four dans les trois points indiqués par les flèches dans l'illustration (détail 1).
- Faire pression avec les doigts vers le bas, de façon indiquée dans le détail 2 dans l'illustration, de manière à décrocher le châssis de l'axe supérieur;
- soulever le chassin vers le haut et le sortir.
Pour le remontage, procéder dans le sens inverse : placer sur les axes correspondants la partie inférieure du châssis puis presser la partie supérieure contre la paroi du four jusqu'à obtenir l'emboîtement avec l'axe.

11.3 Démontage et nettoyage du ventilateur interne du four
Le ventilateur interne du four ventilé pourrait nécessiter un nettoyage périodique. Pour le démontage du ventilateur, procédez comme suit:
- s'assurer que l'alimentation électrique de l'appareil est désactivée; enlever tous les composants internes du four (grilles, lechefrite);
- Dévisser et enlever les quatre vis A du carter;
- enlever le carter B;
- à l'aide d'une pièce de monnaie, dévisser l'écrou de fixation C du ventilateur (ce filetage est inverse, pour dévisser tourner dans le sens des aiguilles d'une montre);
- enlever le ventilateur D et le laver en le plongeant dans de l'eau chaude additionnée de produit à vaisselle. Ne jamais utiliser de produits abrasifs, corrosifs, de produits en poudre ou d'éponges métalliques. Rincer le ventilateur et le sécher soigneusement.
Remonter le ventilateur et le carter en procédant dans le sens inverse des instructions de montage.

11.4 Changement de la lampe d'éclairage four

Avant toute intervention, désactiver l'alimentation électrique de l'appareil.
Procéder de la manière suivante:
ouvrir la porte du four; - dévisser dans le sens contraire des aiguilles d'une montre la calotte de protection en verre; dévisser la lampe et la changer avec une nouvelle adaptée aux hautes températures (300^) et avec ces caractéristiques:
Tension: 230 V / 50 Hz
Puissance: 15 W
Fixation: E 14

- Remonter la calotte en verre et remettre le courant électrique. Il est possible de vérifier le fonctionnement de la lampe interne du four même lorsque la porte est fermée en tournant le bouton de sélection de fonctions sur la position

Notice Facile