Party - Cucina Steel Cucine - Manuale utente e istruzioni gratuiti
Trova gratuitamente il manuale del dispositivo Party Steel Cucine in formato PDF.
Domande frequenti - Party Steel Cucine
Scarica le istruzioni per il tuo Cucina in formato PDF gratuitamente! Trova il tuo manuale Party - Steel Cucine e riprendi in mano il tuo dispositivo elettronico. In questa pagina sono pubblicati tutti i documenti necessari per l'utilizzo del tuo dispositivo. Party del marchio Steel Cucine.
MANUALE UTENTE Party Steel Cucine
Vi ringraziamo per aver scelto quello nostro prodotto, da ora in poi cucinare sare creativamente piacevole con la vostra nuova cucina.
Consigliamo di leggere attendamente tutte le istruzioni contenate in quello manuale in cui si è dedicato molto spazio alle condizioni più idonee per un corretto e sicuro utilizzato della cucina. Inoltre, queste istruzioni facilitano la conoscenza di agli singolo componente.
Vengono forniti utili consigli per l'utilizzo di recipienti, utensili, posizioni delle guid e impostazioni dei comandi.
Le corrette operazioni di pulizia contenate in quello manuale consentiranno di mantenere inalterate nel tempo le prestazioni della cucina.
I singoli paragrafi sono proposti in modo da giungere passo dopo passo a conoscere tutte le funzionalità della cucina, i testi sono disponibile comprensibili, corredati da immagini dettagliate e da pittogrammi d'uso comune.
L'approfonditalettura diquesto manuale fornirarelresistoste adognidomanda che potrasorgere sul correttoutilizzato della vostra nuova cucina.

ISTRUZIONI PER L'INSTALLATORE: sono destinate al tecnico qualificato che deve svolgere un'adeguata verifica dell'impianto gas, eseguire l'installazione, la messa in servizio ed il collaudio dell'apparecchio.

ISTRUZIONI PER L'UTENTE: indicano i consigli d'uso, la descrizione dei comandi e le corrette operazioni di pulizia e manutenzione dell'apparecchio.
- Informazioni generali 7
1.1 Assistenza technique 7
- Avverenze per la sicurezza e l'uso 8
3.Installazione 10
3.1 Avvertenze generali 12
3.2 Sostituzione piedini regolabili 12
3.3 Montaggio modanatura anteriore (disponibile solo su alcuni modelli) 13
3.4 Montaggio alzatina (disponibile solo su alcuni modelli) 13
3.5 Collegamento elettrico 14
3.6 Ventilazione dei locali che ospitano apparente a gas 16
3.7 Collegamento gas 17
3.8 Regolazioni gas 20
3.9 Allaccimento al gas liquido 20
- Operazioni finali 22
4.1 Livellamento della cucina al pavimento 22
- Descrizione dei comandi 23
5.1 Il pannello frontale 23
- Uso del piano di cottura 34
6.1 Accensione dei brucitori 34
6.2 Spegnimento dei bruciatori 34
- Uso del piano di cottura ad induzione 35
7.1 Avvertenze generali 35
7.2 Distribuzione automatica della potenza radiante 36
7.3 Tabella d'uso del regolatore di energia 37
7.4 Prima accensione del piano ad induzione 37
7.5 Riconoscimento pentola 38
7.6 Accensione di un elemento radiante 39
7.7 Spegnimento automatico 41
7.8 Spegnimento manuale 41
7.9 Sicurezza bambini 42
7.10 In caso di guasti e anomalie 42
- Uso dei fornì 44
8.1 Avvertenze generali 44
8.2 Cassetto ripostiglio (disponibile solo su alcuni modelli) 44
8.3 Rischio condensa 44
8.4 Uso del forno elettrico multifunzione 45
8.5 Uso del forno ausiliario a convenzione naturale 47
9.Consigli di cottura 48
9.1 Consigli per il corretto uso dei brucitori di piano 48
9.2 Consigli per il corretto uso del piano ad induzione 48
9.3 Consigli per il corretto uso del forno 48
Sommario
10.Pulizia e manutenzione 51
10.1 Pulizia delle superfici in acciaio inox 51
10.2 Pulizia delle superfici smaltate 51
10.3 Pulizia delle superfici verniciate 51
10.4 Pulizia delle superfici, accessori e parti in legno 51
10.5 Pulizia delle manopole e del pannello comandi 51
10.6 Pulizia delle griglie e dei brucitori 52
10.7 Pulizia delle candelette et termocoppie 52
10.8 Pulizia del piano ad induzione 52
10.9 Pulizia delorno 53
11.Manutenzione straordinaria 54
11.1 Smontaggio porta del forno 54
11.2 Rimozione dei telaietti reggigriglie laterali 55
11.3 Smontaggio e pulizia della ventola interna del forno 56
11.4 Sostituzione della lampada di illuminazione del forno 56
Il presente manuale d'uso è parte integrante del prodotto acquistato. L'operaatore è tenuto alla corretta conservazione del presente manuale d'uso facendo in modo cheesso sia sempre disponibile per la consulatoriazione durante le operazioni d'uso e manutenzione del prodotto. Conservare il presente manuale d'uso per futuri riferimenti. In caso di rivendita del prodotto il presente manuale andrastaserito a agli successivo detentore o utilizzatore del prodotto stesso.
La casa costruttice non risponde delle possibili inesattezze, imputabili ad errorsi di stampa o di trascrizione, contenate nel presente libretto. Si riserva di apportare ai propri prodotti nelle modifiche che ritenesse necessarie o utili,anche nell'interesse dell'utenza,senza pregiudicare le caratteristiche essentiali di funzionalità e sicurezza.
CLASSI DI APPARECCHI
Gli appearecchi di cottura descritti nel presente manuale d'uso apparpengono alle classi di installatione definite di seguito:
- Classe 1: apparecchio di cottura non da incasso;

- Classe 2 - sottoclasse 1: apparecchio di cottura da incasso tra due mobili, composto da un'unica unità, ma che è possibile installareanche in modo che le pareti laterali siano accessibili.

1. Informazioni generali
Questo prodotto è stato fabbricato in conformità alle seguenti direttive:
2006/95/CE relativ a materiale elettrico destinato ad essere adoperato entro taluni limiti di tensione.
2004/108/CE relativà alla compatibilità elettromagnetica. Nel rispetto delle disposizioni relative alla compatibilità elettromagnetica, il piano di cottura ad induzione elettromagnetica appartiene al gruppo 2 ed alla classe b (EN 55011).
2009/142/CE relativa agli "Apparecchi a gas".
Regolamento CE n. 1935 del 27/10/2004 riguardante i materiali e gli oggetti destinati a venire a contatto con i prodotti alimentari.
2011/65/CE (RoHS) sulla limitazione dell'uso di sostanze pericolose nei materiali di fabbricazione.
1.1 Assistenza tecnica
Questa apparecchiatura, prima di lasciare la fabbrica, è stata collaudata e messa a punto da personale esperto e specializzato, in modo tale da garantire i migliori risultati di funzionamento. Ogni riparazione o messa a punto che si rendesse in seguito necessaria, dovrá essere fattà con la massima cura ed attenzione. Raccomandiamo pertanto di rivolgersi sempre al Concessionario che ha effettuato la vendita o al nostro Centro di Assistenza più vicino specificando il tipo di inconveniente ed il modello di apparecchiatura.

2. Avverenze per la sicurezza e l'uso

QUESTO MANUALE COSTITUISCE PARTE INTEGRANTE DELL'APPARECCHIO. OCCORRE CONSERVARLO INTEGRO E A PORTATA DI MANO PER TUTTO IL CICLO DI VITA DELLA CUCINA. CONSIGLIAMO UNA ATTENTA LETTURA DI QUESTO MANUALE E DI TUTTE LE INDICAZIONI IN ESso CONTENUTE PRIMA DI UTILIZZARE LA CUCINA. SE PRESENTE CONSERVARE ANCHE LA SERIE DI UGELLI IN DOTAZIONE.
L'INSTALLAZIONE DOVRA ESSERE ESEGUITA DA PERSONALE QUALIFICATO E NEL RISPETTO DELLE NORME VIGENTI. QUESTO APPARECHIO E PREVISTO PER UN IMPIEGO DI TIPO DOMESTICO, ED E CONFORME ALLE DIRITTIVE CEE ATTALMENTE IN VIGORE.
LA DESTINAZIONE AD USO PROFESSIONALE E L'INSTALLAZIONE IN ESERCIZI PUBBLICI QUALI RISTORANTI, BAR, MENSE AZIENDALI ED OGNI ALTRO USO DIVERSO DA QUELLO SPECIFICATO, COMPORTA LA DECADENZA IMMIEDIATA DELLA GARANZIA.
L'APPEARCCHIO E COSTRUITO PER SVOLGERE LA SEGUIENTE FUNZIONE: COTTURA E RISCALDAMENTO DI CIBI; OGNI ALTRO USO VA CONSIDERATO IMPROPRIO. IL COSTRUTTORE DECLINA OGNI RESPONSABILITA PER UTILIZZI DIVERSI DA QUELLI INDICATI.
AL MOMENTO DELL'ACQUISTO L'OPERATORE DIVENTA IL DIRETTO RESPONSABILE DEL PRODOTTO E DOVRAPERTANTO ASSICURARSI CHE, USANDOLO NORMALMENTE, NEL TEMPO NON SI PRODUCANO IN ESSOINSTABILITA, DEFORMAZIONI, ROTTURE O USURE CHE NE DIMINUISCANO LA SICUREZZA.
IL PRODOTO E PROGETTATO E COSTRUITO IN MODO DA POTER FUNZIONARE IN CONDIZIONI DI SICUREZZA E NON PRESENTARE PERICOLI PER LE PERSONE, GLI ANIMALI DOMESTICI ED I BENI.

NON LASCiare I RESIDUI DELL'IMBALLO INCUSTODITI NELL'AMBIENTE DOMESTICO. SEPARARE I VARI MATERIALI DI SCARTO PROVENIENTI DALL'IMBALLO E CONSEGNARLI AL PIU VICINO CENTRO DI RACCOLTA DIFFERENZIATA.

E' OBBILIGATORIO IL COLLEGAMENTO DI TERRA SECONDO LE MODALITA PREVISTE DALLE NORME DI SICUREZZA DELL'IMPIANTO ELETTRICO.

LA SPINA DA COLLEGARE AL CAVO DI ALIMENTAZIONE E LA RELATIVA PRESA DOVRANNO ESSERE DELLO STESSO TIPO E IN CONFORMITA ALLE NORME IN VIGORE. DOPO L'INSTALLAZIONE DELL'APPARECCHIO LA SPINA DOVRA ESSERE ACCESSIBLE PER L'ISPEZIONE PERIODICA. NON STACCCARE LA SPINA TIRANDONE IL CAVO.

QUALORA I RUBINETTI GAS RESISTESSERO ALLA MANOVRA DI ROTAZIONE DELLE MANOPOLE, OCCORRERA INGRASSARLI UTILIZZANDO UN PRODOTTO SPECIFICO PER ALTE TEMPERATURE. PER QUESTA OPERAZIONE OCCORRE INTERPELLARE IL SERVIZIO DI ASSISTENZA.

SUBITO DOPO L'INSTALLAZIONE EFFETTUARE UN BREVE COLLAUDIOLL'APPARECCHIO SEGUENDO LE ISTRUZIONI PIU AVANTI RIPORTATE. IN CASO DI MANCATO FUNZIONAMENTO, SCOLLEGARE L'APPARECCHIO DALLA RETE ELETTRICA ED INTERPELLARE IL PIU VICINO CENTRO DI ASSISTENZA TECNICA. NON TENTARE DI RIPARARE L'APPARECCHIO.

L'UTILIZZO DI UN APPARECCchio DI COTTURA A GAS PRODUCE CALORE E UMIDITA NEL LOCALE IN CUI è STATO INSTALLATO. VOGLIATE ASSICURARE UNA BUONA AERAZIONE DEL LOCALE: MANTENERE APERTI GLI ORIFIZI DI AERAZIONE NATURALE O INSTALLARE UN DISPOSITIVO DI AERAZIONE MECCANICA (Cappa DI ASPIRAZIONE CON CONDotto DI SCARICO). UN UTILIZZO INTENSIVO E PROLUNGATO DELL'APPARECCchio PUO NECESSITARE DI UNA AERAZIONE SUPPLEMENTARE, PER ESEMPIO L'APERTURA DI UNA FINESTRA, UN'AERAZIONE PIU EFFICACE, AUMENTANDO LA POTENZA DI ASPIRAZIONE MECCANICA, SE ESSA ESISTE.

AL TERMINE DI OGNI UTILIZZO DEL PIANO, VERIFICARE SEMPRE CHE LE MANOPOLE DI COMANDO SIANO IN POSIZIONE (SPENTO).

MAI IMMETTERE OGGETTI INFIAMMBILI NEL FORNO: QUALORA VENISSE INCIDENTALMENTE ACCESO POTREBBE INNESCARSI UN INCENDIO. IN CASE D'INCENDIO: CHUIDERE IL RUBINETTO GENERALE DI ALIMENTAZIONE GAS E DISINSERIRE LA CORrente ELETTRICA; NON GETTARE ACQUA SULL'OLIO IN FIAMME O CHE STA FRIGGENDO. NON TENERE PRODOTTI INFIAMMBILI O BOTTGILIE AEROSOL VICINI ALL'APPEARCCHIO E NON VAPORIZZARE IN PROSSIMITA DEI BRUCIATORI ACCESI. NON INDOSSARE INDUMENTI AMPI O ACCESSORI NON ADERENTI QUANDO I BRUCIATORI SONO ACCESI: L'INCENDIO DEL MATERIALTE TESSILE PUO CAUSARE SERIE FERITE ALLA PERSONA.

NON APPOGGIARE SUL PIANO DI COTTURA PENTOLE CON IL FONDO NON PERFETTAMENTE LISCIO E REGOLARE.

NON IMPIEGARE RECIPIENTI O BISTECCHIERE CHE SUPERINO IL PERIMETRO ESTERNO DEL PIANO.

LA TARGA DI IDENTIFICAZIONE, CON I DATI TECNICI, IL NUMERO DI MATRICOLA E LA MARCATURA SI TROVA VISIBILMENTE POSIZIONATA SUL RETRO DELL'APPARECCHIO. UNA SECONDA TARGHETTA, CON I DATI RIASSUNTIVI DEL MODELLO E NUMERO DI SERIAL, E POSIZIONATA ALL'INTERNO DELL'APPARECCHIO SUL FIANCO SINISTRO ED E VISIBLE APRENDO LA PORTA DEL FORNO.
LE TARGHETTE NON DEVONO MAI ESSERE RIMOSSE.

L'APPEARCCHIO E' DESTINATO ALL'USO DA PARTE DI PERSONE ADULTE. NON PERMETTERE AI BABBINI DI AVVICINARVISI O DI FARNE OGGETTO DI GIOCO. EVITARE DI APPOGGIARE OGGETTI SULL'APPEARCCHIO CHE POSSONO RICHIAMARE L'ATTENZIONE DEI BABBINI. IL RISCALDAMENTO DI ALCUNE PARTI DELL'APPEARCCHIO E DELLE PENTOLE UTILIZZATE POSSONO DIVENTARE FONTI DI POTENZIALE PERICOLO, PERTANTO DURANTE IL FUNZIONAMENTO, E PER TUTTO IL TEMPO NECESSARIO AL RAFFREDDAMENTO, DISPORRE LE PENTOLE IN MODO TALE DA PREVENIRE PERICOLI DI SCOTTATURE O ROVESCIAMENTI. EVITARE DI LASCIARE LA PORTA DEL FORNO APERTA SIA DURANTE IL FUNZIONAMENTO CHE NEI MINUTI SUCCESSIVI ALLO SPEGNIMENTO. EVITARE ALTRESI'IL CONTATTO CON GLI ELEMENTI RISCALDANTI DEL FORNO.

APPOGGIARSIOSEDERSI SULLA PORTADEL FORNO APERTA,ICASSETTI OIL VANO RIPOSTIGLIO PUO CAUSARE IL RIBALTAMENTO DELL'APPARECCHIO,CON CONSEGUENTE PERICOLO PER LE PERSONE. I CASSETTI HANNO UNA PORTATA DINAMICA DI 25 KG.
SE LA CUCINA É POSTA SU UN PIEDISTALLO, SI DEVONO PRENDERE MISURE PER EVITARE CHE L'APPEARCCHIO SCIVOLI DAL PIEDISTALLO.

L'APPARECCHIO DISMESSO DOVRÀ ESSERE CONSEGNATO AD UN CENTRO DI RACCOLTA DIFFERENZIATA. TAGLIARE IL CAVO DI ALIMENTAZIONE DOPO AVER STACCATO LA SPINA DALLA PRESA DI CORRENTE. RENDERE INNOCUE QUELLE PARTI CHE POSSONO COSTITUIRE PERICOLO PER I BAMBINI (PORTE, ECC.).

QUESTO APPARECCHIO CONTRASSEGNATO IN CONFORMITA ALLA DIRTTIVA EUROPEA 2002/96/EC, WASTE ELECTRICAL AND ELECTRONIC EQUIPMENT (WEEE). ASSICURANDOSI CHE QUESTO PRODOTTO SIA SMALTITO IN MODO CORRETTO, L'UTENTE CONTRIBUISCE A PREVENIRE LE POTENZIALI CONSEGUENZE NEGATIVE PER L'AMBIENTE E LA SALUTE.
IL SIMBOLO SUL PRODOTTO O SULLA DOCUMENTAZIONE DI ACCOMPAGNAMENTO INDICA CHE QUESTO PRODOTTO NON DEVE ESSERE TRATTATO COME RIFIUTO DOMESTICO MA DEVE ESSERE CONSEGNATO PRESSO L'IDONEO PUNTO DI RACCOLTA PER IL RICICLAGGIO DI APPARECCHIATURE ELETTRICHE ED ELETRONICHE. DISFARSENE SEGUENDO LE NORMATIVE LOCALI PER LO SMALTimento DEI RIFIUTI. PER ULTERIORI INFORMAZIONI SUL TRATTAMENTO, RECPUERO E RICICLAGGIO DI QUESTO PRODOTTO. CONTATTARE L'IDONEO UFFICIO LOCALE, IL SERVIZIO DI RACCOLTA DEI RIFIUTI DOMESTICI O IL NGOZIO PRESSO IL QUALE IL PRODOTTO è STATO ACQUISTATO.
Il costruttore declina agli responsabilità per danni subiti da persone e cose, causati dall'inosservanza delle suddette prescrizioni o derivanti alla manomissione anche di una singola parte dell'apparecchio e dall'utilizzo di ricambi non originali.
3. Installazione
DIMENSIONI (mm)









DIMENSIONI (mm)

OXFORD



ENFASI


3.1 Avvertenze generali

I seguenti interventi devono essere seeguiti da un tecnico installatore qualificato. Il tecnico installatore è responsabile della corretta messa in opera secondo le norme di sicurezza vigenti. Prima di utilizzato l'apparecchio, togliere le protezioni in plastica sul pannello comandi, sulle parti in acciaio inox, ecc...
Il costruttore declina agli responsabilità per eventuali danni a persone, animali o cose derivanti alla mancata osservanza delle norme più sopra indicate (cfr. capitolo "2. Avvertenze per la sicurezza e l'uso").
I dati tecnici sono indicati sulla targa caratteristiche situata sul retro dell'apparecchio. Le condizioni di regolazione sono riportate su un'etichetta applicata sull'imballo e sull'apparecchio.

Non usare la maniglia della porta del forno per operazioni di sollevamento e movimentazione, compresaQLlla necessaria per togliere l'apparecchio dall'imballo.

3.2 Sostituzione piedini regolabili
La cucina viene consegnata con i piedini standard già montati.

I piedini standard consento di regolare l'altezza in modo da livellare la cucina al pavimento, svitandoliccessivamente la cucina diventa instabile.

Per alzare la cucina si consiglia di sostituire i piedini standard con altri piedini più alto (forniti in dotazione su alcuni modelli oppure da richiedere al vostro rivenditore) che permettono un'altezza di 3 cm.

Prima di procedere col ribaltamento della cucina si consiglia di rimuovere tutte le parti che non sono stabilmente fissate alla cucina stessa, in particolare le griglie del piano di cottura e i bruciatori. Per alleggerire il peso della cucina si consiglia di rimuovereanche gli accessori all'interno del forno, evitandoneosi danneggiamento accidentale nel corso dell'operazione di ribaltamento.
Per sostituire i piedini è possibile procedere in due modi:
A Sollevando I'apparecchio dal suolo.
B Coricando I'apparecchio sul retro.
Estrarre i piedini dall'interno dell'imballaggio e avvitarli sul fondo della cucina.
La regolazione finale dei piedini, per livellare l'apparecchio al pavimento, andrata fatt a termine degli allacciamenti gas ed elettrico.


Qualora si rendesse necessario il trascinamento dell'apparecchio, avvitare a fondo i piedini e procedere alla loro regolazione soltanto a operazioni ultimate.
3.3 Montaggio modanatura anteriore (disponibile solo su alcuni modelli)
Per alcuni modelli di cucina è disponibile una modanatura anteriore di complemento della linea estetica.

Prima di procedere col ribaltamento della cucina si consiglia di rimuovere tutte le parti che non sono stabilmente fissate alla cucina stessa, in particolare le griglie del piano di cottura e i bruciatori. Per alleggerire il peso della cucina si consiglia di rimuovereanche gli accessori all'interno del forno, evitandoneosi danneggiamento accidentale nel corso dell'operazione di ribaltamento.
Per il montaggio procedere come segue:
- inclinare la cucina verso il retro;
accostare la modanatura A alla sede di montaggio come individato nel riquadro in figura; - aplicare la modanatura sino ad ottener il risconto in battuta con la sede di montaggio;
- tirare verso il basso la modanatura in modo tale che vada ad agganciarsi con i 4 perni B (due su agli bianco) già presenti sulla cucina.


3.4 Montaggio alzatina (disponibile solo su alcuni modelli)
Per il montaggio procedere come segue:
appoggiare l'alzatina A sul retro del piano facendo combaciare i fori;
- con un cacciavite a stella avvitare a fondo le 4 viti B.



L'eventuale ingiallemento dell'acciao, che avviene nel tempo, è un fenomeno del tutto naturale e non pregiudica in alcun modo le caratteristiche originarie; cui essere rimioso con l'utilizzo di prodotti specifici per la pulizia dell'acciaio.
3.5 Collegamento elettrico

Accertarsi che il voltaggio e il dimensionamento della linea di alimentazione corrispondano alle caratteristiche indicate sulla targhetta posta sul retro dell'apparecchio.
Una seconda targhetta, con i dati riassuntivi del modello e numero di serie, è posizionata all'interno dell'appareccchio sul bianco sinistro ed è visiblejànpro do la porta del forno.
Le targhette non devono mai essere rimosse.

La spina all'estremità del cavo di alimentazione e la presa a muro dovranno essere dello stesso tipo e conformi alle normative sugli impianti elettrici in vigore. Verificare che la linea di alimentazione sia provvista di adeguata messa a terra. Dopo l'installazione dell'apparecchio la spina dovrà essere accessibile per l'ispezione periodica.

Prevedere sulla linea di alimentazione dell'apparecchio un dispositivo di interrupzione onnipolare con distance d'apertura dei contatti uguali o superiore a 3 mm, situato in posizione disponibile raggiungibile e in prossimità dell'apparecchio.

Evitare l'utilizzo di riduzioni, adattatori o derivatori.
Prima di effettuare il collegamento elettrico, assicurarsi dell'efficienza della messa a terra.
Accertarsi che la valvola limitatrice e l'impianto domestico siano in grado di sostortare il carico elettrico dell'apparecchiatura.
Il cavo di terra giallo/verde non deve subire interruzioni.
Il cavo elettrico non deve venire a contatto con parti aventi temperature maggiori di 50^ in aggiunta a quella ambiente.
3.5.1 Sezione dei cavi di alimentazione elettrica
In base al tipo di alimentazione utilizzare un cavo avente caratteristiche conformi alla tabella seguente.
Funzionamento a 400V3N~~ (modelli collegati secondo lo SCHEMA "A"): utilizzare un cavo pentapolare di tipo H05RR-F (cavo di 5 × 2,5 ~mm^2 ).
Funzionamento a 230V3~ (modelli collegati secondo lo SCHEMA "C" ma commutati dall'installatore secondo lo SCHEMA "B"): utilizzare un cavo tetrapolare di tipo H05RR-F (cavo di 4 × 4 mm^2 ).
Funzionamento a 230V1N~ (modelli collegati secondo lo SCHEMA "C"): fino a 2,9 kW utilizzare un cavo tripolare di tipo H05RR-F (cavo di 3 × 1,5 ~mm^2 );或者其他 2,9 kW fino a 5,4 kW utilizzare un cavo tripolare di tipo H05RR-F (cavo di 3 × 2,5 ~mm^2 );或者其他 5,4 kW fino a 7 kW utilizzare un cavo tripolare di tipo H05RR-F (cavo di 3 × 4 ~mm^2 );或者其他 7 kW utilizzare un cavo tripolare di tipo H05RR-F (cavo di 3 × 6 ~mm^2 ).
L'estremità da collegare all'apparecchio dovrà avere il filo di terra (giallo-verde) più lungo di almeno 20 mm.



3.5.2 Tipo di alimentazione
E' possibile ottenere diversi collegamenti in funzione del voltaggio simplicamente spostando i cavallotti sulla morsettiera come riportato negli schemi seguenti.
Secondo il modello, consultare la tabella "ALLACCIAMENTO ALLA MORSETTIERA".
3.5.3 Sostituzione del cavo elettrico
Per la sostituzione del cavo elettrico occorre accedere alla morsettiera. Essa è situata sul retro dell'apparecchio come migliorato in figura.
Per la sostituzione del cavo procedere come segue:
- après la scatola della morsettiera;
- svitare la vite A che blocca il cavo;
- allentare i contatti a vite e sostituire il cavo con uno di lunghezza uguali e corrispondente alle caratteristiche descrirente nella tabella al paragrafo "3.5.1 Sezione dei cavi di alimentazione elettrica";
- il conduttore di terra "giallo-verde" andr'a collegato al morsetto dovra essere più lungo di circa 20 mm rispetto ai conduttori di linea;
- il conduittore neutro "blu" andra collegato al morsetto contraddistinto con la lettera N;
- il conduttore di linea andra collegato al morsetto contraddistinto con la lettera L.


3.6 Ventilazione dei locali che ospitano appearecchi a gas
Questo appearecchio non è collegato ad un dispositivo di scarico dei prodotti della combustione, andr perci installato e collegato conformmente alle norme di installatione vigenti. Occorera tenere in particolare considerazione le norme applicabili in materia di aerazione del locale.
Questo appearecchio più essere installato soltanto in locali ben ventilati, secondo le norme in vigore, tali da permettere, con aperture su pareti esterne o con appositi condotti, una corretta ventilazione naturale o forzata che assicuri in modo permanente e sufficiente tanto l'immissione dell'aria necessaria ad una corretta combustione che l'evacuatione dell'aria viziata.

L'utilizzo di un appearecchio di cottura a gas produce calore e umidità nel locale in cui è stato installato. Vogliate assicurare una buona aerazione del locale: Maintainere aperti gli orifizi di aerazione naturale o installare un dispositivo di aerazione meccanica (cappa di aspirazione con condotto di scarico).
Un utilizzo intensivo e prolongato dell'apparecchio può necessitarde una aerazione supplementare, per esempio l'apertura di una finestra, un'aerazione più efficace, augmentando la potenza di aspirazione meccanica, se esta esiste.
Nel caso in cui nell'ambiente si presente sostanto quello appearecchio a gas, occorrerà prevedere una cappa tale da assicurare l'evacuatione naturale e diretta dell'aria viziata, con un condotto verticale rettilineo di lunghezza uguali ad almeno due volte il diametro ed una sezione minima di almeno 100~cm^2
Per l'indispensabile immissione di aria fresca nell'ambiente occorrera prevedere un'analoga aperture di almeno 100~cm^2 che comunichi direttamente verso l'esterno, situata ad una quota prossima al livello del pavimento in modo da non venire ostruita tanto all'interno che all'esterno della parete e tale da non provocare disturbi alla corretta combustione dei bruciatori ed alla regolare evacuatione dell'aria viziata e con una differenza di altezza rispetto all'aperture di uscita di almeno 180~cm .


Si ricorda che la quantità d'aria necessaria alla combustione non deve essere minore a 2^3 / per anni kW di potenza (vedere potenza totale in kW riportata sulla targa caratteristiche dell'apparecchio).
In tutti gli altri casi, quando cie è sono presenti nella stesso ambiente altri appearecchi a gas, oppure, qualora non fosse possibile avera una ventilazione naturale diretta, occorrera realizzare una ventilazione naturale indiretta od una ventilazione forzata: per questo tipo di intervento sare necessario rivolgersi ad un technician qualificato che provveda all'installazione ed alla realizzazione dell'impianto di ventilazione nell'osservanza scrupolosa delle precauzioniicontunate nelle norme in vigore.
Il posizionamento delle aperture dovra essere tale da non permettere la formazione di alcuna corrente d'aria insopportabile per gli occupanti; inoltre, per lo scarico dei prodotti della combustione, è vietato serviri di canne fumarie giornizzate da altri appearecchi.
3.7 Collegamento gas
Le condizioni di regolazione dell'apparecchio sono indicate nella targhetta posta sul retro dell'apparecchio.
Gli apparecchi a gas per uso domestico, non collegati ad un condotto di evacuatione dei prodotti di combustione, non devono provocare una concentrazione di monossido di carbonio che possa rappresentare un rischio di natura tale da intaccare la salute delle persone esposte in funzione del tempo di esposizione previsto di tali persone.

Si raccomanda di controllare che l'apparecchio si esattamente predisporto per il tipo di gas distribuito. Il collegamento alla tubazione del gas dovra essere effettuato a regola d'arte, nonché conformmente alle normative in vigore che prescrivono l'installazione di un rubinetto di sicurezzaippo all'estremità della tubazione. Il tubo di allacciamento gas da 12 filetto è situato posteriormente sul dato dell'apparecchio.

Per il gas butano e propano, occorra prevedere un riduttore di pressione conforme alle norme UNI-CIG 7432. Le guarizioni di tenuta dovranno essere conformi alle norme UNI-CIG 9264. Terminate le operazioni di collegamento gas, controllare la tenuta dei raccordi con una soluzione di acqua e sapone.
E' possible effettuare il collegamento gas nei modi seguenti:
- mediate tubo rigido in ferro orame;
- mediate tubo flessible in acciaio inossidabile a parete continua con attacco meccanico conforme alle norme UNI-CIG 9891 (massima lunghezza del tubo esteso 2000mm ); Il tubo va collegato direttamente al gomito della rampa;
- mediate l'insertimento di un tubo flessibile in gomma conforme alle norme UNI-CIG 7140; tale tubo va innestato direttamente sul portagomma P relativo al gas utilizzato, e bloccato con una fascetta F conforme alle norme UNI-CIG 7141. In quest'ultimo caso controllingare la data di scadenza del tubo stampigliata e sostituirlo prima di tale data.
Utilizzando tubi flessibili in gomma con lunghezza max. 1500 mm:
- evitare strozzature o schiacciamenti del tubo;
non devono essere soggetti a sforzi di trazione e di torsione; - evitare contatti con corpi taglienti, spigoli vivi, ecc...
- non metterli a contatto con parti che possono raggiungere temperature maggiori di 70^ in aggiunta a quella ambiente;
- renderli ispezionabili lungo tutto il loro percorso.

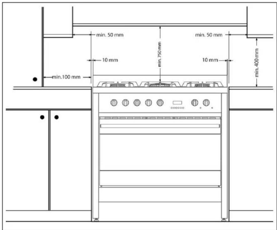
Il rivestimento del mobile dovra essere di materiale resistente al calore (minimo 90^ ). Se l'apparecchio andra installato vicino ai mobili, occorrera prevedere g spazi minimi suggeriti dal diagramma seguente.


3.8 Regolazioni gas

Gli iniettori non forniti con l'apparecchio vanno richiesti al Centro Assistenza.
Se l'apparecchio di cottura risulta predisporto per un diverso tipo di gas da quello di alimentazione disponibile, occorrera sostituirne gli iniettori, regolare la portata minima e cancellare il portagomma. Per sostituire gli iniettori del piano di cottura, è necessario effettuare le seguenti operazioni:
- togliere le griglie;
- togliere i brucitori e gli spartifiamma (Fig. A);
- estrarre l'iniettore (Fig. B) e sostuirlo con quello adatto al nuovo tipo di gas (vedere "T ABELLA GENERALE INIETTORI" a pag. 21-22);
- sostituire l'etichetta di collaudo gas (posta sul retro dell'apparecchio) con quella nuova. Se l'apparecchio è dotato del kit di ricambio ugelli, insieme ad essi è fornita ancche la nuova etichetta;
- rimontare il tutto procedendo in senso inverno alle istruzioni di smontaggio e facendo attenzione di collocare lo spartifiamma in modo corretto sul bruciatore.

3.8.1 Portata minima dei rubinetti di piano valvolati
- Accendere il bruciatore e ruotare la manopola di lavoro verso la posizione di portata minima;
- estrarre la manopola;
- con un cacciavite regolare la vite interna Z fino ad ottenere una corretta fiamma di minimo;
- rimontare la manopola.


- Svitare la vite Z di regolazione per augmentare la portata, oppure avvitarla per diminuire la portata.
La regolazione è corretta quando la fiamma minima misura circa 3 o 4 mm.
Per il gas butano/propano, la vite di regolazione andra avvitata a fondo. - Quando si passa bruscamente alla portata massima alla portata minima e viceversa: assicurarsi che la fiamma non si spenga.

3.9 Allaccimento al gas liquido
Utilizzare un regolatore di pressione e realizzare il collegamento sulla bombola nel rispetto delle prescrizioni stabilite delle norme UNI-CIG 7432 e UNI-CIG 7131.

| TABELLA GENERALE INIETTORI (ALLUMINIO) | ||||||
| TIPO DI GAS | mbar | UGELLO N. | BRUCIATORI POSIZIONE TIPO | POTENZA Watt CONSUMO EE | ||
| MAX. MIN. | MAX. % | |||||
| G20 METANO | 20 | 115 RAPIDO (A) 3000 750 286 l/h 58.9 | ||||
| 97 SEMI RAPIDO (B) 1750 480 167 l/h 58.7 | ||||||
| 128 | TRIPLA CORONA (C) | 3500 | 1400 | 333 l/h | ||
| 72 | AUSILIARIO (D) | 1000 | 330 | 95 l/h | ||
| G.P.L. BUTANO G30 PROPANO G31 | 30 | 85 | RAPIDO (A) | 3000 | 750 | 219 g/h |
| 28 | 65 | SEMI RAPIDO (B) | 1750 | 480 | 128 g/h | |
| 37 | 96 | TRIPLA CORONA (C) | 3500 | 1400 | 254 g/h | |
| 50 | AUSILIARIO (D) | 1000 | 330 | 73 g/h | ||

| TABELLA GENERALE INIETTORI (OTTONE) | ||||||
| TIPO DI GAS | mbar | UGELLO N. | BRUCIATORI POSIZIONE TIPO | POTENZA Watt CONSUMO EE | ||
| MAX. MIN. | MAX. % | |||||
| G20 METANO | 20 | 115 RAPIDO (A) 3000 750 286 l/h 53.8 | ||||
| 97 SEMI RAPIDO (B) 1750 480 167 l/h 54 | ||||||
| 132 | TRIPLA CORONA (C) | 3500 | 1800 | 333 l/h | ||
| 72 | AUSILIARIO (D) | 1000 | 330 | 95 l/h | ||
| G.P.L. BUTANO G30 PROPANO G31 | 30 | 85 | RAPIDO (A) 3000 750 219 g/h | 53.8 | ||
| 28 | 65 SEMI RAPIDO (B) 1750 480 128 g/h | 54 | ||||
| 37 | 94 | TRIPLA CORONA (C) | 3500 | 1800 | 254 g/h | |
| 50 | AUSILIARIO (D) | 1000 | 330 | 73 g/h | ||
4. Operazioni finali
4.1 Livellamento della cucina al pavimento
Dopo aver effettuato gli allacciamenti elettrico e gas, livellare al pavimento la cucina tramite i piedini regolabili, precedentemente avvitati sul fondo dell'apparecchio.


Qualora si rendesse necessario il trascinamento dell'apparecchio, avvitare a fondo i piedini e procedere alla loro regolazione soltanto a operazioni ultimate.
5. Descrizione dei comandi
5.1 Il pannello frontale
Tutti i comandi e i controlli del piano e del forno sono riuniti sul pannello frontale.

PANNELLO COMANDI

DESCRIZIONE MANOPOLA DEI BRUCIATORI DI PIANO
L'accensione della fiamma avviene premendo e contemporaneamente ruotando la manopola in senso antiorario sul symbolo di fiamma minima Per regolare la portata della fiamma ruotare la manopola sulla zona tra il massimo il minimo Lo spegnimento del bruciatore avviene riportando la manopola in posizione

DISPOSITIONE DEI BRUCIATORI - Descrizione dei symboli

ANTERIORE SINISTRO

ANTERIORE DESTRO

POSTERIORE SINISTRO

POSTERIORE DESTRO

CENTRALE

CENTRALE POSTERIORE

CENTRALE ANTERIORE
DESCRIZIONE MANOPOLA CONTAMINUTI
Per caricare la suoneria occorre ruotare a fondo la manopola in senso orario; è possibile impostare il tempo desiderato fino ad un massimo di 60 min. Trascorso il tempo fissato entrera in funzione una breve suoneria.

DESCRIZIONE MANOPOLE DEL PIANO AD INDUZIONE
Il piano ad induzione è dotato di manopole di controllo del livello di potenza.
Per selezionare un diverso livello di potenza, ruotare I manopola di commando sul valore desiderato (1 - 9 e P). Il valore "P" è la massima potenza applicabile su agli singolo elemento radiante.
Ad agli variazione di potenza il display mostrera il valore selezionato di volta in volta sulla manopola.


DISPOSITIONE DEGLI ELEMENTI RADIANTI - Descrizione dei symboli

POSTERIORE SINISTRO

POSTERIORE DESTRO

ANTERIORE SINISTRO

ANTERIORE DESTRO

CENTRALE
Tutti i comandi degli elementi radianti sono riuniti sul pannello frontale e sul piano ad induzione sono visibili i relativi display.

DESCRIZIONE MANOPOLE DEL FORNO ELETTRICO
Il forno elettrico è comandato da due manopole: manopola di selezione funizione e manopola termostato Esse consentono di scegliere il tipo di riscaldamento più idoneo alle diverse esigenze di cottura, inserendo in mod appropriato gli elementi riscaldanti e regolando la temperatura sul valore desiderato.


La posizione della manopola termostato mette in funzione la ventola centrifuga delorno.
Sotto le manopole del forno sono presenti due lampade spia: la spia verde indica la messa in funzione del forno; la spia arancione indica il raggiungimento della temperatura preimpostata. Le successive accensioni e spegnimenti della spia arancione indicano l'intervento automatico del riscaldamento al fine di Maintainere la temperature all'interno del forno al livello impostato con la manopola termostato.
Il forno è dotato di una lampada di illuminazione interna. Durante il funzionamento la lampada è sempre accesa: volendola utilizzare a forno spento, per le normali operazioni di pulizia, ruotare la manopola di selezione funzione sul symbolo
DESCRIZIONE DEI SIMBOLI DELLA MANOPOLA DI SELECTIONE FUNZIONE

ACCENSIONE DELLA LAMPADA INTERNA DEL FORNO

ELEMENTO GRILL-VENTILATORE

ELEMENTI RISCALDANTI SUPERIORE E INFERIORE

ELEMENTI RISCALDANTI SUPERIORE E INFERIORE - VENTILATORE

ELEMENTO RISCALDANTE SUPERIORE

ELEMENTO RISCALDANTE-CONVEZIONE

ELEMENTO RISCALDANTE INFERiore

SCONGELAMENTO

ELEMENTO GRILL
DESCRIZIONE MANOPOLA DEL FORNO ELETTRICO AUSILIARIO
Alcuni modelli di cucina sono dotati di un forno elettrico ausiliario a convenzione naturale, comandato da una sola manopola. Essa consente di scegliere il tipo diiscaldamento più idoneo alle diverse esigenze di cottura, inserendo in modo appropriato gli elementi riscaldanti e regolando la temperatura sul valore desiderato. Sulla stessa manopola èanche possibile impostare le funzioni descrirente in tabella.

Sotto la manopola del forno ausiliario è presente una lampada spia arancione che indica il raggiungimento della temperature preimpostata. Le successive accensioni e spegnimenti della spia arancione indicate l'intervento automatico del riscaldamento al fine di mantenere la temperature all'interno del forno ausiliario al livello impostato con la manopola di lavoro.
Il forno ausiliario è dotato di una lampada di illuminazione interna. Durante il funzionamento la lampada è sempre accesa: volendola utilizzare a forno spento, per le normali operazioni di pulizia, ruotare la manopola di selezione funzione sul symbolo
DESCRIZIONE DEI SIMBOLI DELLA MANOPOLA DEL FORNO ELETTRICO AUSILIARIO

ACCENSIONE DELLA LAMPADA INTERNA DEL FORNO
100 ÷ 260
ELEMENTO RISCALDANTE INFERiore E SUPERiore

ELEMENTO RISCALDANTE INFERiore

ELEMENTO RISCALDANTE SUPERIORE

ELEMENTO GRILL ^+ GIRARROSTO
USO E PROGRAMMAZIONE DELL'OROLOGIO DIGITALE FORNI
Il display di fine cottura controlling alettronicamente il funzionamento del forno. La programmazione del display consente di impostare l'accensione e lo spegnimento del forno scegliendo gli orati desiderati.


REGOLAZIONE DELL'ORA
Utilizzato il forno per la prima volta, oppure, dopo un'interruzione di corrente elettrica, il display lampeggerà ad intermittenza regolareindicando.000
Premendo il tasting si pone termine all'interrivenza del display. Premendo entro 5 secondi tasti di variazione valore o si ottiene l'incremento o il decremento di un minuto per agli singola pressione. Premere uno dei due tasti di variazione valore sono a fare apparire l'ora corrente.
Prima di anni impostazione del diplay di fine cottura occorre selezionare la funzione e la temperature desiderate. La funzione ±bP non èabilitata.
COTTURA SEMIAUTOMATICA
Questa impostazione consente il solo spegnimento automatico del forno a fine cottura.
Premendo il tasto il display si illumina molto escre ; Mantenere premuto e agire contemporaneamente sui tasti di variazione valeo per impostare la durata della cottura.
Rilasciando il tasto avr inizio il conteggio della durata di cottura programmata e sul display comparirà l'ora corrente unitamente ai symboli AUTO e
COTTURA AUTOMATICA
Questa regolazione consente l'accensione e lo spegnimento del forno in modo del tutto automatico.
Premendo il tastingoIl display si illumina molto escono; naintenere premuto e agire contemporaneamente sui tasti di variazione valore o per impostare la durata della cottura.
Premendo il tasto comparirà sul display la somma dell'ora corrente più la durata della cottura: Maintainere premuto e agire contemporaneamente sui tasti di variazione valore o per regolare l'ora di termine cottura.
Rilasciando il tasto 念 avr inizio il conteggio programmatico e sul display comparirà l'ora corrente unitamente ai symboli AUTO e
Dopo l'impostazione, per osservare il tempo restante di cottura premere il tasto, per vedere l'ora di fine cottura premere il tasto
TERMINECOTTURA
Al terme della cottura il forno si spegnerà automaticamente e contemporaneamente entrera in funzione una suoneria intermittente. Dop la disattivazione della suoneria, il display tornera a migliorare l'ora corrente unitamente al significolo, che segnala il ritorno alla condizione d'uso manuale del forno.


REGOLAZIONDE DEL VOLUME SUONERIA
La suoneriacouldesserevariatdivolume(3gradazioni)mentehinfunizione premendo itastoo
DISATTIVAZIONE DELLA SUONERIA
La suoneria cessa automaticamente il proprio funzionamento dopo sette minuti. E' possibile disattivarla manualmente premendo il tasto

Dopo aver premuto il tasto il fornro riprenderà a funzionare: per spegnerlo occorrera ruotare la manopola di selezione funzioni e la manopola termostato sulla posizione
E'anche possibile disattivare la suoneria premendo uno qualunque dei pulsanti funzione. Ilorno si spegnerà qualunque sia la funzione o la temperatura impostata e lampeggerà il symbolo AUTO. Per interrompere anche il lampeggiamento del symbolo AUTO: premere il pulsante, ruotare il selettore funzioni e il termostato sulla posizione
CONTAMINUTI
Il display di fine cottura più essere utilizzatoanche come semplice contaminuti.

L'utilizzo come contaminuti non interromperà il funzionamento del forno al termine del tempo impostato.
Premendo il tasto il display在哪;mantener premuto e agire contemporaneamente sui tasti di variazione vale - o +. Rilasciendo il tasto avrì inizio il conteggio programmatico e sul display compariranno i simboli e.

Dopo la programmazione del contaminuti il display tornera a migliorare l'ora corrente, per visualizzare il tempo residuo premere il tasto.

L'impostazione con valori incoerenti è impedita logicamente (es. un contrasto tra un termine cottura ed una durata più lunga non verrà accettato dal diy play di fine cottura).
CANCELLAZIONE DEI DATI IMPOSTATI
Con il programma impostato, Maintainere premuto il tasto della funzione da cancellare nelle contemporaneamente si raggiunge il valore 0.00 con i tasti di variazione valore - o + . La cancellazione della durata verrà interpretata dal display come terme della cottura.
MODIFICADA DEI DATI IMPOSTATI
I dati impostati per la cottura possono essere modificati in qualsiasi momento mantenendo premuto il tasto della funzione e contemporaneamente-agendo sui tasti di variazione valore o . +
USO E PROGRAMMAZIONE DELL'OROLOGIO DIGITALE FORNI "TOUCH SCREEN"
L'orologio digitale consente di programmare l'accensione e lo spegnimento automatico delorno.

TASTO DECREMENTO VALORE
TASTOMODE
+ TASTO INIncremento VALORE
Questo programmatore funziona con il principio "touch screen"; appoggiare la falange del dito sul tasto per alcuni secondi per ottenere l'attivazione del tasto.
PRIMA ACCENSIONE ED IMPOSTAZIONE DELL'ORA
Alla prima accensione o dopo una interruzione di corrente il display visualizza e l'eritta AUTO lampeggianti. Toccare il tasting "Mode" fino ad interrormere il lampeggio ed agire sui tasting + / - per impostare l'ora (mantendo il dito sui tasting + / - si attiva la funzione scorrimento veloce).
Per reimpostare l'ora in condizioni di funzionamento normali, quandocisionl orologio è già acceso, toccare contemporaneamente i due tasti + / - per almeno due secondi per entrare nella funzione di impostazione dell'ora.
UTILIZZO MANUALE
Questa funzione serve per usare ilorno alla programmazione.
E' sempre possible passare da una funzione programmata alla funzione "Manuale" toccando il tasting. "Mode"; scegliere la funzione "Manuale" se non si desidera utilizzare programmi di cottura.
PROGRAMMAZIONE DEL CONTAMINUTI
Questa funzione serve per avere un allarme sonoro dopo un tempo prefissato, alla interferire con il funzionamento delorno.
L'orologio digitale più essere utilisermente sont contaminuti:
- toccare il tasto "Mode" per almeno 2 secondi per entrare nel menu di programmazione, comparirà il symbolo lampeggiante;
- agire sui tasti +/- per impostare il tempo desiderato ed il display mostrera il tempo residuo. Il contaminuti parte automaticamente ed il symbolo smetera di lampeggiare. Al raggiungimento del tempo programmatico verrà emesso un allarme acustico per 7 minuti ed il symbolo dampeggerà;
- toccare un tasting qualunque per interrompere il segnale acustico o il tasting "Mode" per cancellare il programma.



PROGRAMMAZIONE DELLA DURATA DI COTTURA
Questa funzione consente di programmare la durata di cottura per spegnere automaticamente il forno al termine della cottura.
- Impostare la funzione di cottura prescelta e la temperatura agenda sulle apposite manopole di controllo;
- toccare il tastinge "Mode" per entrare nel menu di programmazione, toccandolo nuovamente appara il messaggio "Dur";
- agire sui tasti +/- per impostare la durata di cottura. Il messaggio "Auto" lampeggia per tutte la durata della fase di programmazione. Dopo 7 secondi il programma di cottura parte e si accende il symbolo -, lavor che le messaggio "Auto" cessa di lampeggiare.
Al terminel del tempo di cottura programmatico verrare emesso un allarme acustico per 7 minuti, sul display lampeggerà il symbolo AUTO e si spegnerà il symbolo spegnendo automaticamente ilorno;
- toccare un taste qualunque per interrompere il segnale acustico o il tasto "Mode" per cancellare il programma.
PROGRAMMAZIONE DELLA DURATA DI COTTURA E DI FINE COTTURA
Questa funzione serve a programmare l'accensione del forno ad un'ora prefissata ed il suo spegnimento automatico al termine della cottura.
- Impostare la funzione di cottura prescelta e la temperatura agenda sulle apposite manopole di controllo;
- toccare il tasto "Mode" per entrare nel menu di programmazione, toccandolo nuovamente appara il messaggio "Dur";
- agire sui tasti / perimpostare la durata di cottura;
- toccando il tasting "Mode" appeare il messaggio "end", agire sui tasti + / - per impostare l'ora di fine cottura.
Il messaggio "Auto" lampeggia per tutte la du rata della fase di programmazione. Dopo 7 secondi il programma esce dal menu di programmazione ed il messaggio "Auto" cessa di lampeggiare. Al raggiungimento dell'ora di inizio cottura sul display comparirà il simbolo accendendo automaticamente ilorno.
Al terminel del tempo di cottura programmatico verrare emesso un allarme acustico per 7 minuti, sul display lampeggerai il symbolo AUTO e si spegnerai il symbolo spegnendo automaticamente ilorno;
- toccare un taste qualunque per interrompere il segnale acustico o il tasto "Mode" per cancellare il programma.
SUONERIA
Al termine di agli funzione preimpostata viene emesso un segnale acustico che si spegne automaticamente dopo 7 minuti; toccare il tasting "Mode" se si desidera interrompere immediatamente il segnale acustico.
E' possibl e scegliere tra 3 diversi tipi di segnale acustico; per modificarlo toccare contemporaneamente i tasti + / - poi toccare il tasto "Mode" fino al comparire della dicitura "Tone" sul display, scegliere il tono preferito toccando il tasto-.
USO E PROGRAMMAZIONE DELL'OROLOGIO DIGITALE ANALOGICO FORNI
L'orologio digitale consente di programmare l'accensione e lo spegnimento automatico delorno.


PRIMA ACCENSIONE ED IMPOSTAZIONE DELL'ORA
Alla prima accensione o dopo una interruzione di corrente il display lampeggia. Premere il tasto per interrompere il lampeggio ed agire sui tasti + / - per impostare l'ora (mantendo il dito sui tasti ^+ si attiva la funzione scorrimento veloce).
UTILIZZO MANUALE
Questa funzione serve per usare il fornso alla programmazione.
E' sempre possible passare da una funzione programmata alla funzione "Manuale" premendo il tasto; scegliere la funzione "Manuale" se non si desidera utilizzato programmi di cottura.
PROGRAMMAZIONE DEL CONTAMINUTI
Questa funzione serve per avere un allarme sonoro dopo un tempo prefissato, alla interferire con il funzionamento delorno.
L'orologio digitale analogico cui si estere utilizzato anche come contaminuti:
- premere il tasto , il display si illumina come migliorato in Fig. 1;
- agire sui tasti / per impostare il tempo desiderato, il display illuminerà un segmento per agli minuto impostato (in Fig. 2 sono rappresentati 10 minuti di cottura). Il contaminuti parte automaticamente ed il simbolo smetterà di lampeggiare. Dopo pochi secondi il display torna in funzione orologio;
- premere © per visualizzare il tempo residuo. Al raggiungimento del tempo programmato verrà emesso un allarme acustico per 7 minuti ed il symbolo ® ampeggerà;
- premere il tasting per resettare il programma.

Fig. 1

Fig. 2

PROGRAMMAZIONE DELLA DURATA DI COTTURA

Questa funzione consente di programmare la durata di cottura per spegnere automaticamente il forno al termine della cottura.
- Impostare la funzione di cottura prescelta e la temperatura agenda sulle apposite manopole di controllo;
- premere il tasto per entrare nel menu di programmazione, il display si illuminerà come migliorato in Fig. 3;
- agire sui tasti +/- per impostare la durata di cottura, ad agli pressione del tasto + siaggiungerà un minuto di cottura ed agli dodici minuti si illuminerà un segmento interno (Fig. 4). Dop o 7 secondi il programma di cottura parte e si accende il symbolo i→
Al termine del tempo di cottura programmatico verrà emesso un allarme acustico per 7 minuti, il symbolo è l numero del quadrante inizieranno a lampeggiare spegnendo automaticamente ilorno;
- premere un tasting qualunque per interrompere il segnale acustico o il tasting per cancellare il programma.

Fig. 3

Fig. 4
PROGRAMMAZIONE DELLA DURATA DI COTTURA E DI FINE COTTURA

Questa funzione serve a programmare l'accensione del forno ad un'ora prefissata ed il suo spegnimento automatico al termine della cottura.
Impostare la funzione di cottura prescelta e la temperatura agendo sulle apposite manopole di controlo.
Oltre ad impostare la durata della cottura, définire ancè l'ora di accensione delorno:
- premere il tasto 山山 per entrare nel menu di programmazione, il display si illuminerà come migliorato in Fig. 3 e si accende il symbolo
- agire sui tasti +/- per impostare la durata di cottura, ad agli pressione del tasto + si aggiungerà un minuto di cottura ed agli dodici minuti si illuminerà un segmento interno (Fig. 4);
- premere nuovamente il tasto ed agire sui tasti +/ - per definire l'orario di fine cottura (orario di fine cottura meno durata di cottura = orario di inizio cottura), si accende il significo→Dopo 7 secondi il display visualizzera l'orario corrente migliorando l'ora di inizio cottura e la durata di cottura mediante l'illuminazione dei segmenti interni che resteranno fissi fino all'inizio della cottura e lampeggeranno per tutto il tempo di durata della cottura.
All'ora impostata il forno si accendera automaticamente; al termine del tempo di cottura programmatico verrà emesso un allarme acustico per 7 minuti, i simboli ed i numeroi del quadrante inizieranno a lampeggiare spegnendo automaticamente il forno;
- premere un tasting qualunque per interrompere il segnale acustico o il tasting © per cancellare il programma.
In Fig. 5 è riportato un esempio di programmaticazione: l'ora corrente è 7:06, l'inizio cottura è programmatico per le 8 e il termine alle 9.
Quando saranno le 8 i segmenti interni compresi tra 8 e 9 cominceranno a lampeggiare e restera fissa la lancetta delle ore.

Fig. 5
SUONERIA
Al termine di anni funzione preimpostata viene emesso un segnale acustico che si spegne automaticamente dopo 7 minuti; premere il tasting se si desidera interrompere immediatamente il segnale acustico.
E' possibl e scegliere tra 7 diversi tipi di segnale acustico; per modificarlo premere per almeno 7 secondi il tasto ; ad agli ulteriori pressione del tasto il tono cambierà.
LUMINOSITA
E' possibile variate la luminosità dell'orologio; premere contemporaneamente per almeno 5 secondi tasti e agire poi sui tasti / per variate la luminosità del quadrante.
GRAFICA
E' possibile modificare la grafica dell'orologio; premere contemporaneamente i tasti e agire sul tasting per visualizzare e scegliere la grafica preferita.
6. Uso del piano di cottura

Assicurarsi che le corone spartifiamma, i cappellotti e le griglie siano montati in modo corretto.

Durante il normale funzionamento l'apparecchio si riscaldera notevolmente: occorrera pertanto usare le dovute cautele. Non lasciare avvincare i bambini. Sorvegliare il piano di cottura per tutto il tempo di funzionamento.
6.1 Accensione dei brucitori

Tutte le manopole dei brucitori di piano riportano i seguenti simboli:
■ rubinetto chiuso
fiammasmassima
fiamma minima
La posizione di fiamma minima si trova al termine della rotazione antioraria della manopola. Tutte le posizioni intermediie andranno scelte tra la fiamma massima e minima, mai tra il massimo e la chiusura.
6.1.1 Accensione elettrica (one-touch)
I bruciatori di piano sono dotati diSYSTEMA di accensione "one-touch". Per accendere uno dei bruciatori, premere la manopola corrispondente al bruciatore prescelto e ruotarla in senso antiorario fino alla posizione di minimo Mantenendo premuta la manopola si attiverà ilsystema di accensione automatica del bruciatore. Dopo l'accensione del bruciatore, Maintainere premuta la manopola per circa 10 secondi, in modo tale da consentire l'apertura della valvola di sicurezza. In mancanza di corrente elettrica, il bruciatore potra essere accesso anche con un fiammifero (vedere paragrafo "6.1.2 Accensione manuale").

Se il bruciatore dovesse spegnersi accidentallymente, interverra la termocoppia di sicurezza a bloccare l'uscita del gas,anche a rubinetto aperto.

Il dispositivo non deve essere azionato per più di 15 secondi. Se allo scadere di questo tempo il bruciatore non si è ancora acceso, cessare di agire sul disposito, arieggiare l'ambiente e attendete 1 minuto prima di effettuire un nuovo tentativo di accensione. In caso di spegnimento fortuito della fiamma del bruciatore, chiudere la manopola di commando e non tentare una riaccensione del bruciatore per alamento 1 minuto.
6.1.2 Accensione manuale
Per accendere uno dei bruciatori, avvicinare un fiammifero accesso al bruciatore, premere la manopola corrispondente al bruciatore prescelto e ruotarla in senso antiorario fino alla posizione di minimo Rilasciare la manopola.
6.2 Spegnimento dei brucitori
Al terme della cottura riportare la manopola sulla posizione
7. Uso del piano di cottura ad induzione
Il piano è dotato di un genatore radiante per agli zona di cottura. Ogni genatoreippo sulla superficie di cottura in vetroceramica origina un Campo elettromagnetico che induce una corrente termica sulla base della pentola.
Nella cottura ad induzione il calore non viene trasmesso da una fonte di calore, ma创建工作 delle correnti induttive direttamente all'interno del recipientte.

Vantaggi del piano di cottura ad induzione:
Risparmio energetico grazie alla trasmissione diretta dell'energia alla pentola rispetto alla tradizionale cottura elettrica e gas.
- Maggiore sicurezza grazie alla trasmissione di energia solo al recipiente appoggiato sul piano di cottura.
Elevato rendimento nella trasmissione di energia alla zona di cottura ad induzione alla base della pentola.
Rapida velocità di riscaldamento.
- Ridotto pericolò di bruciature, poiché la superficie di cottura viene riscaldata solo nella base della pentola.
- I cibi traboccati non si attaccano alla superficie del piano.
7.1 Avvertenze generali
Rimuovere tutte le etichette adesive ed eventuali residui di colla alla superficie in vetro del piano.
Prima di collegare l'apparecchio alla rete di alimentazione elettrica accertarsi di averlo lasciato per almeno 2 ore a temperature ambiente.

I portatori di pacemaker o di altri dispositivi simili devono assicurarsi che il funzionamento dei loro appearecchi non sua pregiudicato dal Campo induttivo, la cui gamma di frequenza è compresa tra 20 e 50kHz
Evitare di indossare oggetti metallici e monili a diretto contatto con il corso. Questi, entrando nel Campo radiante del piano a induzione, possono surriscaldarsi con pericolo di usioni. Con metalli non magnetizzabili (es. oro o argento), non si corre quello rischio.
Gli oggetti muniti di banda magnetica (carte di credito, tessere, floppy disc, ecc.) non devono essere posizionati vicino all'apparecchio quando quello è accesso.
Non riscaldare scatolame o contentitori chiusi. Durante la cottura si possono generare sovrappressioni all'interno dei contentitori con pericoli di scoppio.
Non appoggiare oggetti metallici come stoviglie o posate sulla superficie del piano di cottura ad induzione perché potrebbero surriscaldarsi. Pericolo di scottature.
Per evitare surriscaldamenti e bruciature l'apparecchio non va in nessun caso ricoperto con panni o teli protettivi.
Non utilizzato la superficie in vetro del piano come zona di appoggio o di lavoro.
Verificare che i cablaggi di altri appearecchi, fissi o mobili, non vengano mai a contatto con la superficie in vetro dell'apparecchio.

Eventuali guasti all'apparecchio causati dall'utilizzo di pentole non idonee alla cottura ad induzione, oppure, di accessori rimovibili, posti tra la pentola e l'elemento radiante, fanno decadere la garanzia. Il costruttore non può considerato responsable per qualsiasi danno al piano di cottura o danni correlati causati da un utilizzo non corretto.
7.2 Distribuzione automatica della potenza radiante
La potenza massima applicabile viene distribuita tra gli elementi radianti attivi, l'ultimo livello di potenza impostato ha la priorità sulle precedenti impostazioni degli altri elementi radianti.
La distribuzione automatica avviene tra i tre elementi radianti di sinistra (A) e i due di destra (B).

| A B | |||||
| ELEMENTO RADIANTE | 1∅ 145 | 2∅ 180 | 3∅ 260 | 2∅ 180 | 4∅ 210 |
| POTENZA (W) | 1400 1600 | 2400 1600 | 2300 | ||
| POTENZA CON FUNZIONE "BOOSTER" (W)(rif. paragrafo "7.6.3") | 1800 3000 | 3200 3000 | 3200 | ||
| TOTALE POTENZA MASSIMA EROGABILE (W) | 3700 | ||||
| LIVELLO DI POTENZA SELEZIONATO | 1 2 3 4 5 6 7 8 9 |
| % POTENZA EROGATA | 3 6.5 11 15.5 19 31.5 45 64.5 100 |
Utilizzato contemporaneamente più elementi radianti potrebbe accadere che l'ultimo elemento attivato mantenga il valore impostato a discapito degli altri elementi impostati precedentemente, i quali potrebbero risentire effettivement di una riduzione di potenza. Infatti, attivando l'ultimo elemento radiante, i valori sui display degli altri elementi, precedentamente impostati, inizieranno a lampeggiare molto automaticamente il nuovo valore di potenza inferiore erogata. Nel momento in cui il valore del riscaldamento di un qualsiasi elemento radiante venisse ridotto manualmente, la differenza di potenza verrà ridistribuita tra gli elementi restanti.

Dato che la cottura proseguirà con nuovi valori di potenza, automaticamente reimpostati, occorrera tenerne conta in funzione del tipo di vivande.
7.3 Tabella d'uso del regolatore di energia
Nella seguente tabella sono riportati i valori di potenza che posso essere impostati e in corrispondenza di ognuno è indicato il tipo di pietanza che si può ottenere. I valori possono variar a seconda della quantità di vivande e del gusto personale.

| 1 - 2 | Per riscaldare vivande,mantere in ebollizione piccole quantità d'acqua,per sbattere salse di tuorlo d'uovo o burro. |
| 3 - 5 | Per la cottura di vivande solide e liquide,mantenere in ebollizione acqua,scongelamento di surgelati,frutta di 2-3 uova,pietanze frutta e verdura,cotture varie. |
| 6 - 8 | Cottura di carni,pesci e verdure in umido,pietanze con più o meno acqua,preparazione di marmellate,ecc. |
| 9 | Arrosti di carne o pesci,bistecche,fegato,rosolatura di carni e pesci,uova,ecc. |
| P | Friggere a bagno d'olio patate ecc.,portare velocemente in ebollizione l'acqua. |
7.4 Prima accensione del piano ad induzione
Pulire l'apparecchio con un panno umido e asciugarlo accuratamente. Non utilizzare detergenti che potrebbero causare colorazioni anomale del vetro.
Al momento della prima accensione i display di tutti gli elementi radianti si illumineranno contemporaneamente visualizzando i symboli come migliorato in figura; i display si spegneranno subito快来 alla emettere alcun segnale acustico.


Se al momento della prima accensione una o più manopole non si trovassero sulla posizione "0", i relativi display si illumineranno regolarmente, ma l'elemento radiante non entrera in funzione.
Ruotando la manopola comparirà, sul relativo display, il symbolo molto在哪 figura a bianco, che segnala il mancato funzionamento dell'elemento radiante. L'elemento pourraitentrare in funzione solo dopo che la manopola sare stata riportata sulla posizione "0" e impostato un nuovo valore di potenza desiderato.

7.5 Riconoscimento pentola
Un sensore elettronico rileva la presenza o la mancanza della pentola sull'elemento radiante, se il tipo di pentola è inadequata alla cottura per induzione magnetica (vedere paragrafo "7.5.1") oppure se la pentola è troppo piccola (vedere tabella "DIAMETRO MINIMO" a pag. 38) verrà visualizzato il symbolo molto nella figura a fianco.
Se durante la cottura una pentola venisse rimossa dall'elemento radiante月以来 riportato la relativa manopola sulla posizione "0", il valore della potenza, precedentemente impostato e visualizzato sul relative display, verrà sostituito automaticamente dal symbolo.
Se la pentola verrà riposizionata correttamente sull'elemento radiante, il symbolo si spegnerà e la cottura riprenderà normalmente; diversamente, dopo 10 minuti, il symbolo si spegnerà usualmente, ma per poter riutilizzato l'elemento radiante si dovrà portare la relativa manopola sulla posizione "0" e reimpostare un nuovo valore di potenza desiderato.
Nel caso in cui una manopola venisse ruotata su una qualiasi posizione, prima di aver posizionato la pentola sull'elemento radiante, sul relativo display comparirà il valore di potenza impostato che verrà perché immediamente sostituito dal simbolo (l'elemento radiante restera in attesa per 10 minuti). Se nel frattopona una pentola verrà posizionata correttamente sull'elemento radiante la cottura avrav inizio; diversamente l'elemento radiante non si attiverà e il simbolo si spegnerà. Per poter riattivare l'elemento radiante si dovrà riportare la relativa manopola sulla posizione "0" e reimpostare un nuovo valore di potenza desiderato.
Limiti nel riconoscimento pentola: il diametro della base della pentola è segnalato da una circonferenza sulla zona di cottura.

| 1 Ø 145 | 2 Ø 180 | 3 Ø 260 | 4 Ø 210 | ||
| DIAMETRO MINIMO (mm) | 120 | 145 | 180 | 145 | |

7.5.1 Pentole adatte alla cottura ad induzione
In via di massima, i fabbricanti indicano se i recipienti di cottura sono adatti per la cottura ad induzione. Il pittogramma a fianco indica un esempio di idoneità alla cottura ad induzione ed è situato solitamente sul fondo del recipiente.
Utilizzare solo recipienti, con fondi adatti per la cottura ad induzione, perfettamente piatti e lisci.
I recipienti utilizzati per la cottura ad induzione devono essere lege ferrose o acciai ferritici, avere proprieta magnetiche e un fondo di spessore sufficiente.
Per verificare che la pentola sia adatta è sufficiente avvincare una calamita al fondo: se esta viene attratta la pentola è adatta per la cottura a induzione. Se non si dispone di una calamita si può mettere nel recipiente una piccola quantità d'acqua, posarlo su una zona di cottura e mettere in funzione il piano.
Alcuni recipienti possono generare rumori se vengono posti su una zona di cottura ad induzione; ciò non significica che il piano ad induzione sia difettoso o che funzioni in modo anomalo.
RECIPIENTI ADATTI RECIPIENTI INADATTI
Recipienti di acciaio ferritico smaltato con fondo spesso.
- Recipienti in ghisa ferrosa con fondo smaltato.
- Recipienti in acciaio inox multistrato, accia ferritico inossidabile ed alluminio con fondospeciale per cotture a induzione.
- Recipienti in rame, acciaio inox, alluminio, vetro refrattario, legno, ceramica e terracotta.
7.6 Accensione di un elemento radiante
Prima di attivare un elemento radiante, posizionare sulla relativa circumferenza di cottura una pentola adeguata.
Ruotando in senso orario una qualsiasi manopola verrà emesso un segnale acustico e si accenderanno tutti i display; quello corrispondente alla manopola azionata migliorare il valore di potenza selezionato, nelle sugli altri display verrà visualizzato il valore
Ruotando una seconda manopola non verrà emesso alcun segnale acustico e verrà visualizzato sul display il valore di potenza impostato per那一 bella manopola.
7.6.1 Variazione del livello di potenza
Ogni manopola presenta una Scala graduata incrementale in senso orario che va da "0" fino al livello "9". La potenza di riscaldamento degli elementi radianti si incrementa ruotando in senso orario una qualiasi manopola partendo alla posizione "0", e si riduce ruotando la manopola in senso antiorario rispetto alla posizione raggiunta.
La posizione di "default" della manopola è correspondente al livello "0" (valore sul relativo display). Ruotando la manopola verrà visualizzato, sul relativo display, il livello di potenza selezionato.

Ruotando la manopola, in senso orario il livello di potenza "9", avverrà uno scatto meccanico insieme ad un segnale acustico che abiliterà la funzione "Booster" indicata sul display con il symbolo; successivamente riposizionale la manopola sul livello "9" (vedere paragrafo "7.6.3").

7.6.2 Funzione riscaldamento rapido
Questa funzione permette di raggiungere più rapidamente il livello di potenza desiderato, ma rimane attiva per un periodo di tempo molto limitato.
Partendo alla posizione "0" ruotare la manopola in senso antiorario sino ad ottenerere uno scatto meccanico e mantenerla in tale posizione per 2 secondi, il display si illuminerà molto lo significato a fianco. Da quello momento si avranno a disposizione 10 secondi per ruotare la manopola sul livello di potenza desiderato; il display comincera a lampeggiare alternando il symbolo con il nuovo livello di potenza impostato con la manopola.

La tabella segunte molto i tempi di riscaldamento rapido relativamente ai livelli di potenza selezionata.
| LIVELLO DI POTENZA SELEZIONATO | 1 2 3 4 5 6 7 8 9 |
| DURATA IN SECONDI | 48 144 230 312 408 120 168 216 - |

7.6.3 Funzione "Booster"
Ruotare la manopola in senso orario il livello di potenza "9" sono ad ottenerere un scatto meccanico insieme ad un segnale acustico (sul display verrà visualizzato il symbolo a fianco); successivement riposizione la manopola sul livello "9".
La manopola deve essere correttamente riposizionata sul livello "9" altrimenti il symbolo P, visualizzato sul display, verrà sostituito dal codice di erre che segnala la disattivazione dell'elemento radiante; per ripristinare l'elemento radiante seguire le istruzioni presenti al paragrafo "7.6.7".

La durata massima del riscaldamento, con la funzione "Booster", è di 10 minuti.
Al termine della durata massima del riscaldamento, il simbolo lampeggera per alcuni secondi e la potenza verrà automaticamente reimpostata visualizzando sul display il valore.
Con la funzione "Booster" attenuata è possible ripetere più cicii consecutivi.

7.6.4 Calore residuo
Dopo aver completinga una cottura e rigosizionata la manopola sul valore di potenza "0", il display dell'elemento radiante mostrera il significato a fianco altempato al valore ad indicare che quell'elemento radiante è appena stato utilizzato ed è quando più piuttosto caldo.
Il simbolo lampeggerà per alcuni secondi, poi diventerà fisso e rimarra accesso fino a quando la temperature del vetro non sare ridiscesa al di sotto del livello di sicurezza.
7.6.5 Ventilazione
La ventola di raffreddamento si attiva automaticamente e si avvia a bassa velocità appena i valori dei dispositivi elettronici superano una determinata soglia. Quando il piano ad induzione viene usato intensamente, la ventola funziona ad alta velocità. La ventola riprenderà a funzionare più lentamente e si spegnerà automaticamente quando i dispositivi elettronici si saranno sufficientemente raffreddati.
7.6.6 Surriscaldamento
Il piano ad induzione dispone di un dispositivo di sicurezza contro il surriscaldamento dell'elettronica interna. Tale dispositivo non richiede l'attenzione dell'utente e permette di continuare ad utilizzato il piano in tutte tranquilità.



7.6.7 Disattivazione di un singolo elemento radiante
Ruotando una qualsiasi manopola in senso antiorario e mantenendola in tale posizione per più di 30 secondi, sul display relativo comparirà il significolo a fianco che segnala la disattivazione dell'elemento radiante relativo.
Nel caso in cui una manopola non venisse posizionata correttamente, sul relative display verrà visualizzato il codice di erre che segnala la disattivazione dell'elemento radiante. Non è necessario chiamare il Servizio Assistenza; per poter ripristinare l'elemento radiante sare sufficiente riportare la manopola sulla posizione "0" e reimpostare il valore di potenza desiderato.
L'uso di questa funzione è raccomandabile per escludere il singolo elemento radiante in caso di avaria o malfunzionamento dello stesso.
Dopo la riparazione dell'elemento radiante, da parte del Servizio di Assistenza Tecnica autorizzato, sare possibile riattivarlo ruotando nuovamente la manopola in senso antiorario e mantenendola in tale posizione per più di 30 secondi.
7.7 Spegnimento automatico
Dall'ultima variazione di potenza selezionata si attiva un contatore automatico che determina la durata massima del riscaldamento; esta durata varia in funzione del livello di potenza selezionato.
Nel caso in cui un'elemento radiante venisse dimincenticato acceso (con la presenza di una pentola posizionata correttamente) quello si spegnerà automaticamente nel momento in cui verrà raggiunta la durata massima di riscaldamento rispettovamente alla potenza selezionata.
| LIVELLO DI POTENZA SELECTIONATO | 1 | 2 | 3 | 4 | 5 | 6 | 7 | 8 | 9 | P |
| TEMPO MASSIMO IN MINUTI | 360 | 360 | 300 | 300 | 240 | 90 | 90 | 90 | 90 | 10 |

7.8 Spegnimento manuale
Ruotare tutte le manopole sulla posizione "0", su ogni display comparirà un puntino lampeggiante come migliorato nella figura a fianco; dopo 15 secondi tutti i display si spegneranno emettingendo un segnale acustico e l'apparecchio entrera in "stand-by".

7.9 Sicurezza bambini
E' possibile disattivare gli elementi radianti. Ruotare contemporaneamente le prime due manopole di sinistra in senso antiorario e mantenerle in questa posizione per almeno 2 secondi, fino a quando su tutti i display comparirà il symbolo


Dopo alcuni minuti i symboli si spegneranno, ma ruotando una manopola qualsiasi i suddetti symboli di blocco verranno riproposti su tutti i display e gli elementi radianti non si attiveranno.
La disattivazione non ha limiti di tempo. Un'interruzione prolongata corrente elettrica cui annullare la disattivazione effettuata.
Per riattivare gli elementi radianti ruotare contemporaneamente le prime due manopole di sinistra di nuovo in senso antiorario.

7.10 In caso di guasti e anomalie
Se sinota un difetto di funzionamento, specnere l'apparecchio e disconnetterlo alla rete elettrica.
Non tentare di riutilizzare l'elemento radiante guasto fino alla sua riparazione da parte del Servizio di Assistenza Tecnica autorizzato.
Qualsiasi riparazione deve essere compiuta esclusivamente da personale qualificato. Non aprire l'apparecchio per nessun motivo.
Se la superficie del vetro è incrinata, spagnere immediatamente l'apparecchio per evitare il rischio di scosse elettriche e chiamare il Servizio di Assistenza Tecnica.
In caso di guasto di un elemento radiante, tutti i rimanenti elementi saranno normalmente utilizzabili.
Per rimuovere il codice di erre dai display, posizionare tutte le manopole sulla posizione "0" e impostare nuovi valori di potenza.
Il seguente elenco (pag. 43) comprende le anomalie più frequenti, le cui cause possono essere rimosse dall'utente o con l'intervento del Servizio di Assistenza Tecnica.
| ANOMALIA CAUSA RIMEDIO | |||
| Il piano o le zone di cottura non si accendono. | L'apparecchio non è collegato correttamente alla rete elettrica. | Rieffettuare un correto allacciamento alla rete elettrica. | |
| È stata attivata la funzione di blocco del piano. | Procedere alla disattivazione del blocco seguito le relative istruzioni presenti al paragrafo 7.9 | ||
| U | Sul display viene visualizzato il symbolo a fianco. | Non è presente un recipientile sulla zona di cottura. | Procedere alla corretta sistematiche di un recipientile idoneo seguito le relative istruzioni presenti al paragrafo 7.5 |
| Il recipientile non è idoneo per la cottura ad induzione magnetica. | Sostituire il recipientile con uno idoneo come indicato al paragrafo 7.5 | ||
| Il diametro del fondo del recipientile è troppo piccolo per la zona di cottura. | Sostituire il recipientile con uno idoneo come indicato al paragrafo 7.5 | ||
| P | Sul display viene visualizzato il symbolo a fianco. | La manopola non è posizionata correttamente. | Non è necessario chiamare il Servizio Assistenza; per poter ripristinare l'elemento radiante sare sufficiente riportare la manopola sulla posizione "0" e reimpostare il valore di potenza desiderato. |
| E | Sul display vlene visualizzato il codice a fianco alternato a numero l o lettere. | Contattare il Servizio Assistenza e comuncare il codice visualizzato sul display. | |
| II plano o una zona di cottura si spengono. | È scattato il dispositorio di sicurezza. Il dispositorio scatta quando ci si dimentica di spegnere una zona di cottura. | Riportare la manopola relativiva alla zona di cottura sulla posizione "0". | |
| Un recipientile di cottura vuoto si è surriscaldato. | Rimuovere il recipientile vuoto alla zona di cottura. | ||
| Dopo aver spento il piano, la ventola di raffreddamento rimane in funzione. | Non si tratta di un guasto. | La ventola continuerà a funzionare fino a quando il piano non si sare raffreddato. La ventola si spegnerà automaticamente. | |
8. Uso dei fornì
8.1 Avvertenze generali

Quando il forno o il grill sono in funzione, le pareti esterne e la porta del forno possono divertare molto calde: è opportuno tenere i bambini lontani dall'apparecchio.
Non permettere ai bambini di sedersi sulla porta forno o giocare conessa.
Nonutilizzare la porta come sgablo.
Non appoggiare mai contentitori o pellicole di alluminio sul fondo del forno; lo smalto del forno potrebbe essere seriamente danneggiato.
Evitare di cuocere gli alimenti sulla base delorno.
Utilizzato il forno per la prima volta, oppure, dopo un'interruzione di corrente elettrica, il display lampeggerà ad intermittenza regolareindicando 000. Per la regolazionefare riferimento al paragrafo "REGOLAZIONE DELL'ORA" a pag.27.
Non tentare di smontare la porta del forno senza aver consultato conattenzione le relative istruzioni (leggere in proposo il paragrafo "11.1 Smontaggio porta del forno"): sussiste il pericolò di ferirsì le mani con le cerniere della porta del forno.

BLOCCORISCALDAMENTODELFORNO
Se durante il normale funzionamento il forno dovesse interrimpere il riscaldamento e il display del programmatore iniziasse a lampeggiare azzerandosi, verificare se:
- vi sua stata una interruzione di corrente.
Se una volta riavviato il programma di cottura il blocco dovesse ripetersi, significiva che è intervenuto il dispositivo di sicurezza. Tale dispositivo interviene in caso di guasto al termostato ed evita il surriscaldamento delorno. Si raccomanda di non tentare nuovamente la riaccensione e di interpellare il più vicino centro di Assistenza.
8.2 Cassetto ripostiglio (disponibile solo su alcuni modelli)
Le cucine sono dotate di un cassetto ripostiglio situato nella parte inferiore, sotto il forno. Alloggiare nel cassetto sostanto gli accessori metallici della cucina.

Durante l'uso del forno il vano cassetto si riscalda; evitare il contatto con le parti interne per prevenir scottature.
Non tenere all'interno del cassetto materiali inflammabili come stracci, carta od alto.
8.3 Rischio condensa

- Certe cotture ad alto contento di acqua abbinate all'uso di specifiche funzioni sono causare formazione di condensa sul vetro interno della porta. Per prevenir quello fenomeno aprire per pochi secondi la porta del forno una o più volte durante la cottura.
Non lasciare raffreddare il prodotto nel forno dopo la cottura per evitare la formazione di condensa, sul vetro interno della porta, che potrebbe sgocciolare fuori dal forno all'apertura della porta stessa.
8.4 Uso del forno elettrico multifunzione

Il display di fine cottura e le manop ole di lavoro del forno principale non influenzano in alcun modo il funzionamento del forno ausiliario.

8.4.1 Prima accensione del forno
Alla sua prima accensione, il forno potrebbe sviluppare fumo e odore acre causato da eventuali residui oleosi di fabbricazione che potrebbero conferire odori e sapori sgradevoli ai cibi. Prima di introdurre le vivande da cuocere riscaldare il forno alla massima temperatura per una durata di 30-40 minuti a porta chiusa e attendere la cessatione della fuoriuscita di fumo e odori.



Per evitare che l'eventuale vapore contento nel forno arrechi fastidio, procedere come segue: ruotare la manopola di selezione funzioni sulla posizione oppure, sulla funzione aprire la porta in due tempi. mantenerla semiaperta (ca. 5 cm) per 4-5 secondi, poi aprirla completeness. Se si rendessero necessari interventi sui cibi, occorrera lasciare la porta aperta il più brevamente possibile per evitare che temperatura all'interno del forno si abbassi a tal punto da pregiudicare la buona riuscita della cottura.

8.4.2 Cotture tradizionali
Ruotare la manopola del selettore funzioni sulla posizione la manopola del termostato in corrispondenza del valore di temperatura desiderato. Per un riscaldamento differenziato nella parte superiore o inferiore delle pietanze: portare il selettore funzioni sulla posizione (caldo sopra) oppure (caldo fatto). Per un riscaldamento più uniforme inogni parte del forno: ruotare la manopola del selettore funzioni sulla posizione

Il forno è dotato di un sistema automatico di raffreddamento regolato alla temperatura della porta. Al raggiungimento della temperature limite, la ventola di raffreddamento parte automaticamente spagnendosi quando la temperatura della porta scende quello il limite prefissato. Il funzionamento della ventola di raffreddamento può perdurare nelle spagnimento del forno stesso. Nel caso cui non si verificasse, spegnere l'apparecchio e contattare immediatamente il Centro Assistenza.
8.4.3 Cottura a convezione
Ruotare la manopola del selettore funzioni sulla posizione; ruotare la manopola del termostato in corrispondenza del valore di temperatura desiderato.
8.4.4 Cottura al grill ventilato (con porta chiusa)
Ruotare la manopola del selettore funzioni sulla posizione; ruotare la manopola del termostato in corrispondenza del valore di temperatura massima.
8.4.5 Cottura al grill e girarrosto (con porta chiusa)
Ruotare la manopola del selettore funzioni sulla posizione ; rubtare la manopola del termostato in corrispondenza del valore di temperatura massima. Durante il funzionamento del grill si ha il contemporaneo funzionamento del girarrosto, che consenteanche cotture allo spiedo.
8.4.6 Cottura al girarrosto (con porta chiusa)
Se il vosto modello di forno è provvisto di girarrosto, procedere nel modo seguente:
- inflatable le vivande da cuocere sull'asta girarrosto A e bloccarle con le apposite forchette regolabili;
- appendere il gancio B sul cielo delorno come migliorato in figura;
- introdurre l'asta A del girarresto nell'apposto foro C presente nel carter del forno; prima di chiudere la porta del forno accertarsi che l'asta A sua correttamente inserta nel foro C (introdurre l'asta ruotandola leggermente in senso orario e antiorario);
- appendere l'altra estremità dell'asta girarrosto al gancio B (la puleggia dell'asta A andra collocata sull'ansa del gancio B);
- chiudere la porta del forno e azionare il girarrosto ruotando la manopola del selettore funzioni sulla posizione.
- a cottura ultimata aprise la porta del forno ed estrarre l'asta girarrosto servendosi dell'impugnatura in plastica D che andrà avvitata alla base dell'asta A.

8.4.7 Scongelamento
Ruotare la manopola del selettore funzioni sulla posizione, tare la manopola del termostato sulla posizione: in questo modo viene inserto il motoventilatore che, agitando l'aria all'interno delorno, favorisce lo scongelamento dei cibi surgelati.
8.4.8 Spegnimento del forno
Lo spegnimento si effettua riportando la manopola del termostato in posizione.
8.5 Uso del forno ausiliario a convezione naturale

Il display di fine cottura e le manopole di lavoro del forno principale non influenzano in alcun modo il funzionamento del forno ausiliario.

Il forno ausiliario a convenzione naturale è dotato di:
- un elemento riscaldante posizionato sulla suola del forno (in basso);
- un elemento riscaldante posizionato sul cielo del forno (in alto) + grill.

8.5.1 Prima accensione del forno ausiliario
Alla sua prima accensione, ilorno ausiliario potrebbe sviluppare fumo e odore acre causato da eventuali residui oleosi di fabbricazione che potrebbero conferire odori e sapori sgradevoli ai cibi. Prima di introdurre le vivande da cuocere riscaldare il fornso ausiliario alla massima temperatura per una durata di 30-40 minuti a porta chiusa e attendere la cessazione della fuoriuscita di fumo e odori.
Per inseire il riscaldamento del forno ausiliario occorre selezionare la temperatura (100÷ 260) o la funzione desiderata ruotando la manopola del termostato.

8.5.2 Cottura al grill (con porta chiusa)
Ruotare la manopola del termostato sulla posizione e lasciare preriscaldare il forno ausiliario per circa 5 minuti. Per il corretto funzionamento posizionare la griglia porta piatto sulla terza guida partendo dal basso. E' comunique possibile variate la posizione della griglia porta piatto a seconda del proprio gusto personale e delle diverse necessità di cottura. Prima di informare, occorre effettuare un preriscaldamento della durata di 5 minuti. Unsystema di raffreddamento impedirà alle manopole di lavoro di surriscaldarsi.
8.5.3 Cottura al girarrosto (con porta chiusa)
Se il vosto modello di forno è provvisto di girarrosto, procedere nel modo seguente:
- ruotare la manopola del termostato sulla posizione e lasciare preriscaldare il forno ausiliario per circa 5 minuti;
- inflare il cibo nell'asta girarrosto A avendo cura d'immobilizzarlo tra le due forcelle B, equilibrandolo in modo da evitare sforzi inutili al motoriduttore;
collocare la puleggia C dell'asta girarrosto sul supporto D dopo aver introdotto la sua estremita opposta nel foro E, fino all'avvenuto aggancio col motoriduttore F e consequente rotazione dell'asta; - versare un poco d'acqua nella leccarda e posizionarla sotto all'asta girarrosto;
- sorvegliare di tanto in tanto la cottura verificando la corretta rotazione dell'asta girarrosto;
- al terme della cottura, disinserire il riscaldamento del forno ausiliario riportando la manopola del termostato in posizione;
- estrarre l'asta girarrosto dal forno ausiliario utilizzato la manopola G e servendosi di un dato di protezione.

8.5.4 Spegnimento del forno ausiliario
Lo spegnimento si effettua riportando la manopola del termostato in posizione.
9. Consigli di cottura
9.1 Consigli per il corretto uso dei bruciatori di piano

Il diametro del fondo dei recipienti di cottura dovrè essere adeguato al diametro del bruciatore utilizzato (vedere tabella a fianco). La fiamma del bruciatore non deve mai fuoriuscire dal diametro del recipientie. Utilizzato recipienti con fondo piatto. Cuocere utilizzato possibilmente pentole munite di coperchio: ciò consente di utilizzato potenze piùasse. Per ridurre i tempi di cottura cuocere le verdure, le patate, ecc., con poca acqua.
| Bruciatore | Diametro recipiente (in cm) |
| Rapidò | da 24 a 26 |
| Semi rapidò | da 16 a 22 |
| Ausiliario | da 8 a 14 |
| Tripla corona | da 24 a 26 |

9.2 Consigli per il corretto uso del piano ad induzione
Per ottenere un buon rendimento ed un consumo d'energia adeguato è indispensableabile usare solo recipienti adatti alla cottura ad induzione. Il diametro del fondo dei recipienti deve essere uguali al diametro del cerchio tracciato sulla zona di cottura (paragrafo "7.5"); se questi non corrispondono si avrare uno spreco di energia.
Il fondo dei recipienti delve essere lega ferrosa o acciaio ferritico e perfettamente piano, inoltre, delve essere perfettamente pulito ed asciuttoosi come il vetro della zona radiante.
Non utilizzare pentole con il fondo ruvido, graffiato o danneggiato perché potrebbero provocare graffiti sulla superficie radiante.

Le sostenze zuccherine, i materiali sinteti e i fogli di alluminio non devono venire a contatto con la superficie radiante perché, durante il raffreddamento, possono causare incrinature o alterazioni del piano vetroceramico. Prima della cottura di cibi zuccherini si consiglia di trattare il piano in vetroceramica con un prodotto silicone specifico, in modo da isolare la superficie del piano dall'aggressione di eventuali residui di cibo bruciati.
Non mettere o lasciare pentole vuote sulla superficie in vetroceramica.
Evitare di far cadere oggetti,anche piccoli,sulla superficie in vetroceramica.
Sabbia o altre sostanze abrasive possono danneggiare la superficie in vetroceramica.
Appoggiando pentole su residui abrasivi, il vetro potrebbe graffitis. Eventuali graffiti, comunique, non compromettono la cottura ad induzione.
Assicurarsi che la ventilazione dell'apparecchio funzioni correttamente.
9.3 Consigli per il corretto uso delorno

Il forno consente di ottimizzare le cotture. E' possibile effettuare cotture tradizionali, a convenzione e al grill.
Tutti i tipi di cottura vanno effettuati con la porta del forno completenesschiusa.

9.3.1 Cottura tradizionale
Con quello tipo di cottura il calore proviene dall'alto e dal basso; è quindi preferibile utilizzare le guide centrali. Se la cottura necessita di maggior calore dal basso o dall'alto, utilizzato le guid inferiori o superiori. La cottura tradizionale è consigliata per tutti i cibi che richiedono temperature di cottura elevate, o lunghi tempi di brasatura. Taleistema è inoltre consigliato qualora vengano impiegati per la cottura recipienti in terracotta, porcellana e simili.

9.3.2 Cottura a convezione
Con quello tipo di cottura il calore viene trasmesso ai cibi mediane aria preriscaldata e fattacircolare forzatamente nel vano forno grazie ad un ventilatoreippo sulla parete posteriore delforno stesso. Il calore raggiunge rapidamente e uniformmente agli parte del forno potendo cosicuocere contemporaneamente diversi cibi sistemi su più ripiani. L'eliminazione dell'umiditàdell'aria e l'ambiente più secco impedisco la trasmissione e la miscelegation di odori e sapori.
La possibilità di cuocere su più ripiani, consente di realizzare contemporaneamente tanti piatti diversi. E' possibile cuocere biscotti e pizzette in tre teglie diverse. Ilorno, comunique, cui quere sono utilizzato per la cottura su un solo ripiano. Per meglio ispezionare la cottura, utilizzato le guide più basse.
La cottura a convenzione è particolaremente conveniente per riportare rapidamente a temperatura ambiente i cibi surgelati, per sterilizzare le conserve, la frutta sciroppata preparata in casa e infine per essicare funghi o frutta.

9.3.3 Cottura al grill
Il calore proviene dall'alto. Quasi tutte le carni possono essere cotte al grill; fanno eccezione alcune carni magre di selvaggina ed i polpettoni. Le carni ed i pesci da cucinare al grill vanno leggermente cosparsi d'olio e collocati sempre sulla griglia;但这a, va sistemata nelle guid piu vicine o più lontane dall'elemento grill, in proportione allo spessore della carne stessa, onde evitare di bruciarla in superficie e cucinarla molto all'interno.
Adatta per: carni di piccolo spessore; toast.

Posizione la leccarda al livello piu basso per raccogliere sughi e grassi; versare un bicchiere di acqua nella leccarda per prevenir la formazione di fumo dovuto al sovriscaldamento dei grassi.

9.3.4 Cottura al grill ventilato
Avvienetramite il funzionamento combinato del grill e della ventola.
Questo tipo di cottura permette al calore di penetrare gradualmente all'interno del cibo, sebbene la superficie sua esposta all'azione diretta del grill.
Adatta per: carni di grosso spessore; volatili.
9.3.5 Cottura della carne e del pesce
La carne da cuocere al forno dovrebbe pesare almeno 1 kg. Le carni rosse molto tenere da cuocere al sangue (roast-beef, filletto, ecc.), o che devono risultare ben cotte all'esterno conservando tutto il loro sugo all'interno, richiedono una cottura ad alta temperatura protratta per breve tempo (200 - 250^) . Le carni bianche, i volatili ed il pesce richiedono una cottura a bassa temperatura (150 - 175^) .
Gli ingredienti del sugo andranno subito collocati nella teglia solo se il tempo di cottura sare breve, diversamente, andranno aggiunti nell'ultima mezz'ora. Le carni possono essere sistmate su un piatto adatto per le cotture al forno oppure direttamente sulla griglia, sotto la quale andra insertita la leccarda per raccogliere il sugo. Lo stato della cottura può controllato schiacciando la carne con un cucchiaio; se non cede significa che è cotta al punto giusto.
A cottura ultimata è consigliabile attendere almeno 15 minuti prima di tagliare la carne in modo che il sugo non fuoriesca. I piatti, prima di essere serviti, possono essere tenuti in caldo nelorno alla temperatura minima.
9.3.6 Cottura dei dolci
Gli impasti sbattuti debbono staccarsi dal cucchiaio con dificoltà perché l'ecessiva fluidità prolongherebbe inutilmente il tempo di cottura. I dolci necessitano di una temperatura moderata (compresa di norma tra 150-200°C) e richiedono il preriscaldamento (10 minuti circa). La porta non deve essere aperta prima che siano trascorsi almeno 34 del tempo di cottura.
9.3.7 Tabelle di cottura consigliate
I tempi di cottura variano secondo la natura, l'omogeneità ed il volume delle vivande. Si consiglia di sorvegliare le prime cotture e verificarne i risultati, in quanto, realizzando gli stessi piatti, nelle medesime condizioni, si ottengono risultati simili. A titolo significativo riportiamo di seguito tre tabelle (I, II e III).
TABLELA TEMPI DI COTTURA A CONVEZIONE E TRADIZIONALE (I)
| TIPO DI COTTURA | QUANTITÀ KG. | POSIZIONE GUIDA DAL BASSO | TEMPERATURA °C | TEMPO IN MINUTI | ||
| CONVEZIONE | TRADIZIONALE | CONVEZIONE | TRADIZIONALE | |||
| DOLCI | ||||||
| CON IMPASTO SBATTUTO, IN STAMPO | 1 | 1-3 | 2 | 175 | 200 | 60 |
| CON IMPASTO SBATTUTO, SU LECCARDA | 1 | 1-3 | 2 | 175 | 200 | 50 |
| PASTA FROLLA, FONDO TORTA | 0.5 | 1-3 | 3 | 175 | 200 | 30 |
| PASTA FROLLA CON RIPIANO UMIDO | 1.5 | 1-3 | 2 | 175 | 200 | 70 |
| PASTA FROLLA CON RIPIANO SECCO | 1 | 1-3 | 2 | 175 | 200 | 45 |
| CON IMPASTO A LIEVITAZIONE NATURALE | 1 | 1-3 | 1 | 175 | 200 | 50 |
| PICCOLI DOLCI | 0.5 | 1-3 | 3 | 160 | 175 | 30 |
| CARNE | ||||||
| VITELLO | 1 | 2 | 2 | 180 | 200 | 60 |
| MANZO | 1 | 2 | 2 | 180 | 200 | 70 |
| ROAST BEEF ALL'INGLESE | 1 | 2 | 2 | 220 | 220 | 50 |
| MAIALE | 1 | 2 | 2 | 180 | 200 | 70 |
| POLLO | 1-1.5 | 2 | 2 | 200 | 200 | 70 |
| STRACOTTI | ||||||
| STRACOTTO DI MANZO | 1 | 1 | 2 | 175 | 200 | 120 |
| STRACOTTO DI VITELLO | 1 | 1 | 2 | 175 | 200 | 110 |
| PESCI | ||||||
| FILETTI, BISTECCHE, MERLUZZO, NASELLO, SOGLIOLA | 1 | 1-3 | 2 | 180 | 180 | 30 |
| SGOMBRO, ROMBO, SALMONE | 1 | 1-3 | 2 | 180 | 180 | 45 |
| OSTRICHE | 1 | 1-3 | 2 | 180 | 180 | 20 |
| SFORMATI | ||||||
| SFORMATI DI PASTA ASCIUTTA | 2 | 1-3 | 2 | 185 | 200 | 60 |
| SFORMATO DI VERDURA | 2 | 1-3 | 2 | 185 | 200 | 50 |
| SOUFFLES DOLCI E SALATI | 0.75 | 1-3 | 2 | 180 | 200 | 50 |
| PIZZA E CALZONE | 0.5 | 1-3 | 2 | 200 | 220 | 30 |
I tempi si riferiscono alla cottura su un solo ripiano; per più ripiani augmentare i tempi di 5-10'.
I tempi di cottura si intendono molto più preriscaldamento di 15' circa
L'indicazione delle guide, nel caso di cottura su più ripiani, è quella preferenziale.
Per gli arrosti di manzo, vitello, maiale e tacchino, con osso o arrotolati, augmentare i tempi di 20^
TABLELA TEMPI DI COTTURA AL GRILL E GRILL VENTILATO (II)
| GRIGLIATURE TRADIZIONALI | ||||
| TIPO DI COTTURA QUANTITÀ | KG. | POSIZIONE GUIDA DAL BASSO | TEMPERATURA °C | TEMPO IN MINUTI |
| POLLO | 1-1.5 | 3 | MAX | 30 PER LATO |
| TOAST | 0.5 | 4 | MAX | 5 PER LATO |
| SALSICCE | 0.5 | 4 | MAX | 10 PER LATO |
| BRACIOLE | 0.5 | 4 | MAX | 8 PER LATO |
| PESCE | 0.5 | 4 | MAX | 8 PER LATO |
| TIPO DI COTTURA QUANTITA | KG. | POSIZIONE GUIDA DAL BASSO | TEMPERATURA °C | TEMPO IN MINUTI |
| ARROSTO DI MAIALE | 1.5 | 2 | 170 | 180 |
| ROAST-BEEF | 1.5 | 3 | 220 | 60 |
| POLLO | 1.2 | 2 | 190 | 90 |
- La leccarda per la raccolta dei sughi di cottura va sempre posizionata nella 1^st guida dal basso.
TABELLA TEMPI DI SCONGELAMENTO (III)
| SCONGELAMENTO | |||
| TIPO DI CIBO QUANTITÀ | KG. | POSIZIONE GUIDA DAL BASSO | TEMPO IN MINUTI |
| PIATTI PRONTI | 1 | 2 | 45 |
| CARNE | 0.5 | 2 | 50 |
| CARNE | 0.75 | 2 | 70 |
| CARNE | 1 | 2 | 110 |
Lo scongelamento a temperatura ambiente ha il vantage di non modificare il gusto e l'aspetto delle vivande.
10. Pulizia e manutenzione

Prima di agli intervento occorre disinserire l'alimentazione elettrica dell'apparecchio e chiudere il rubinetto dell'impiano gas.

Evitare di pulire le superfici dell'apparecchio quando le stesse sono ancora calde. Per la pulizia delle superfici dell'apparecchio utilizzato solo detergenti idonei. Il costruttore declina agli responsabilità e non risponde di eventuali danni derivanti dall'uso di detergenti non idonei e/o diversi da quelli indicati.
Per il lavaggio dell'apparecchio non utilizzato lance a pressione o a vapore.

10.1 Pulia delle superfici in acciaio inox
Per pulire e conservare le superfici d'acciaio inox usare quotidianamente una soluzione calda di acqua e aceto o sapone neutro; versare la soluzione su un panno umido e passare sulla superficie in acciaio seguendo il senso della satinatura, risciacquare accuramente e asciugare con un panno morbido o con una pelle di daino.
Evitare nel modo più assoluto l'uso di spugne metalliche e raschietti taglienti che potrebbero danneggiare le superfici. Serviri soltanto di spugne antigraffio di tipo non abrasivo ed eventualmente di utensili di legno o materiale plastico.

10.2 Pulizia delle superfici smaltate
Pulire con una spugna antigraffio di tipo non abrasivo inumidita in acqua e sapone neutro. Le macchie di grasso sono essere facilitamente eliminate con acqua calda o con un prodotto specifico reperibile in commercio per la pulizia dello smalto. Risciacquare accuratamente e asciugare con un panno morbido o con una pelle di daino.
Evitare prodotti abrasivi, pagliette, lane di acciaio o acidi, che potrebbero rovinare le superfici. Evitare di lasciare sullo smalto sostanze acide o alcaline (succo di limone, aceto, sale, ecc.).

10.3 Pulizia delle superfici verniciate
Pulire con una spugna antigraffio di tipo non abrasivo inumidita in acqua calda e sapone neutro o con un normale detergente per superfici verniciate. Risciacquare e asciugare accuratamente con un panno morbido.
Evitare prodotti abrasivi, pagliette, lane di acciaio o acidi, che potrebbero rovinare le superfici. Non utilizzato alcohol.

10.4 Pulizia delle superfici, accessori e parti in legno
Per la pulizia si consiglia di usare prodotti specifici normalmente reperibili in commercio; tali prodotti garantiscono l'alterabilità nel tempo del legno. Nel caso non si disponga di quei prodotti, è consigliabile cercare di rimuovere lo sporco il più presto possibile utilizzando un panno inumidito con acqua e sapone neutro; risciacquare accuramente e asciugare con un panno morbido. Rimuovere le incrostazioni più grossolane e i residiui più tenaci utilizzato un raschietto antigraffio per legno o una spugna speciale per superfici delicate.
Evitare nel modo più assoluto l'uso di spugne metalliche e raschietti taglienti che potrebbero danneggiare le superfici.
Non lavare accessori e parti in legno in lavastoviglie; non conservarli in ambienti umidi ed evitare sbalzi termici. La troppa umidità e gli sbalzi termici potrebbero deformare irrimiadiabolmente gli accessori e le parti in legno.
10.5 Pulizia delle manopole e del pannello comandi
Pulire le manopole ed il pannello comandi con uno straccio umido.
10.6 Pulizia delle griglie e dei bruciatori
Per procedere alla pulizia delle griglie e dei bruciatori del piano di cottura, occorre estrarli alla loro sede sfilandoli versuso l'alto come migliorato in figura, e immergerli per una decina di minuti in una soluzione d'acqua calda con l'aggiunta di detersivo neutro non abrasivo. Risciacquare e asciugare accuramente. Si consiglia di non lavare i bruciatori e i piattelli in lavastoviglie.
Controllare sempre che nessuna delle aperture dei bruciatori si otturata.
Si raccomanda di rimontare i brucitori in modo corretto, verificando l'uniformità della fiamma. E' consigliabile eseguire questa operazione almeno una volta la settimana e agli qualvolta se ne presenti la necessità.

10.7 Pulizia delle candelette e termocoppie
Per un buon funzionamento le candelette d'accensione e le termocoppie devono essere sempre ben pulite. Controllarle frequentlymente e se necessario pulirle con uno straccio umido; asciugare accuratamente.
Eventuali residui secchi vanno rimossi con uno stecchino di legno o un ago, facendo perché attenzione a non danneggiare la parte isolante in ceramica.

10.8 Pulizia del piano ad induzione
Il piano ad induzione non necessita di particolare manutenzione o pulizia. Ma nel caso in cui, dopo la cottura, rimanessero residui bruciati in prossimità della zona radiante, rimuoverli con un raschietto antigraffio, risciacquare con acqua ed asciugare bene con un panno pulito. L'utilizzo costante del raschietto evita l'impiego di prodotti chimici per la pulizia del piano.
Prima di spostare o trascinare le pentole sul piano, accertarsi che su diesso non siano presenti granelli o impurità che potrebbero graffiarlo.
Non utilizzare spugne o detergenti abrasivi. Evitare i prodotti chimici aggressivi, come ad esempio gli spray per la pulizia delorno, i prodotti antimacchia, maanche i detergenti per il bagno o quelli di tipo universale.

Fare attenuation che il piano in vetroceramica caldo non venga a contatto con plastica, pellicola di alluminio, zucchero o cibi contenti zucchero. Queste sostanze possono danneggiare la superficie del piano e vanno pertanto rimosse immediatamente utilizzato un raschietto antigraffio.
Prima della cottura di cibi zuccherini si consiglia di trattare il piano in vetroceramica con un prodotto siliconico specifico, in modo da isolare la superficie del piano dall'aggressione di eventuali residiui di cibo bruciati.
Per la pulizia della superficie del piano in vetroceramica, procedere nel seguente modo:
- Rimuovere le incrostazioni più grossolane e i residui più tenaci utilizzando un raschietto antigraffio o una spugna speciale per superfici delicate.
- Attendere il completo raffreddamento della superficie del piano, versare quale goccia di detergente specifico e quindi strofinare con carta da cucina o con un panno pulito. In alternatively utilizzato una spugna speciale per superfici delicate.
- Ripassare la superficie del piano con un panno inumidito, oppure con il lato liscio di una spugna speciale.






10.9 Pulizia del forno
Per una buona conservazione del forno occorre pulirlo regolarmente, meglio se dopo agli uso, perché averlo lasciato raffreddare: in quello modo sare è possibile asportare più facilmente i risultui nella cottura, evitando che brucino al successivo utilizzato del forno.
Pulire le parti in acciaio inox e le parti smaltate come descrizione ai relativi paragrafi "10.1 Pulizia delle superfici in acciaio inox" e "10.2 Pulizia delle superfici smaltate".
Estrarre tutte le parti removibili e lavarle separatamente; risciac quarle ed asciugarle accuramente con un panno pulito.
10.9.1 Pulizia pareti delorno
Per la pulizia di quello tipo di fornì non vanno mai usati prodotti detergenti.
Le pareti del forno possono essere pulite con aceto bianco e risciacquate con un panno inumidito d'acqua. Successivement riscaldare il forno per almeno un'ora a 150^ per agevolarne la pulizia. Risciacquare ancora con un panno inumidito d'acqua tiepida dopo che il forno si sare raffreddato.
10.9.2 Pulizia della porta del forno
Si consiglia di mantenere la porta del forno sempre ben pulita. Utilizzato carta assorbente da cucina, in caso di sporco persistente, lavare con una spugna umida e detergente comune.

I prodotti «spray» per la pulizia del forno non devono essere utilizzati per la pulizia della ventola e del sensore del termostato posti all'interno del vano forno.
11. Manutenzione straordinaria
Periodicamente, il forno necessita di piccoli interventi di manutenzione o sostituzione di parti soggette ad usura. Di seguito vengono fornite le istruzioni specifiche per agli intervento di quello tipo.

Prima di agli intervento occorre disinserire l'alimentazione elettrica dell'apparecchio e chiudere il rubinetto dell'impiano gas.
11.1 Smontaggio porta del forno
E' possible smontare completeness la port del forno per consentire una più accurata pulizia.
Questa operazione, benché prevista, non è alla portata di tutti. Occorre la forza necessaria a reggere la porta e un minimo di perizia per rimontarla. Se non si è certi di poterlo fare consigliamo di pulire la porta delorno senza smontarla o, in casi particulari, di rivolgersi al Centro Assistenza autorizzato più vicino.
Per lo smontaggio della porta procedere come segue:
- après la porta del forno e sganciare le sicure delle cerniere ruotando all'indietro i relativi permi A (uno per agli cerniera);
- socchiudere la porta del forno fino all'esaurimento della tensione di carico delle molle (la porta del forno formera un angolo di circa 30^ );
- con entrambe le mani accompagnare il movimento della porta verso la chiusura e contemporaneamente sollevarla verso l'alto;
- ruotare la parte inferiore della porta verso l'esterno liberando le cerniere B dalle proprie sedi.



E' possible rimuovere il vetro interno per una piu approfondita pulizia.
Procedure come segue:
- allentare la vite C con una rotazione di mezzo giro per consentire il sollevamento del piastrino ferma vetro destro e sinistro;
- sollevare i due piastrini ferma vetro e sfilare il vetro interno;
per il rimontaggio del vetro procedere in senso inverso rispetto alle istruzioni sopra riportate.

Per la pulizia dell'area compresa tra il vetro esterno ed il vetro intermedio utilizzato uno scovolino morbido infilandolo nell'intercapedine tra i vetri, come migliorato a pag. 54.
Per il rimontaggio della porta procedere in senso inverso rispetto alle istruzioni riportate a pag. 54. Una volta reintrodotte nelle proprie sedi le cerniere B, après la porta a fine corsa e riarmare le sicure delle cerniere, riabbassando i relativi perni A (uno per agli cerniera).

ATTENZIONE: dopo il rimontaggio della porta forno occorre riarmare sempre le sicure delle cerniere.

11.2 Rimozione dei telaietti reggigriglie laterali
I telaietti reggigriglie sono rimovibili per lavarli separatamente e per facilitare la pulizia delle pareti del forno. I telaietti sono agganciati alla parete del forno nei tre puniti indicati dalle frece in figura (dettaglio 1).
- Fare pressione con le dita verso il basso, come indicato nel dettaglio 2 in figura, in modo tale da sganciare il telaietto dal perno superiore;
- sollevare il telaietto verso l'alto ed estrarlo.
Per il rimontaggio procedere in senso inversion: collocare sui relativi perni la parte inferiore del telaietto e poi premere la parte superiore contro la parete delorno fino ad ottenere l'incastro con il perno.

11.3 Smontaggio e pulizia della ventola interna del forno
La ventola interna del forno ventilato potrebbe richiedere una periodica pulizia. Per lo smontaggio della ventola procedere come segue:
accertarsi che l'alimentazione elettrica dell'apparecchio sia disinserita;
- rimuovere tutti i componenti interni delorno (grigie, leccarde):
- svitare ed estrarre le quattro viti A del carter di copertura;
- sfilare il carter di copertura B:
- con l'auto di una moneteta svitare il dato di fissaggio C della ventola (questa filettatura è inversa, per svitare girare in senso orario);
- rimuovere la ventola D e lavarla immergendola in acqua calda e detergente per piatti. Non utilizzare in nessun caso detergenti abrasivi, corrosivi, prodotti in polvere o spugnette metalliche. Risciacquare la ventola e asciugarla accuratamente.
Rimontare la ventola e il carter di copertura procedendo in senso inverno alle istruzioni di smontaggio.

11.4 Sostituzione della lampada di illuminazione del forno

Prima di anni intervento occorre disinserire l'alimentazione elettrica dell'apparecchio.
Procedere nel modo seguente:
- après la porta del forno;
- svitare in senso antiorario la calotta di protezione in yetro:
- svitare la lampada e sostituirla con un'altra adatta per alte temperature (300^) e con queste caratteristiche:
Tensione: 230 V/50 Hz
Potenza: 15 W
Attacco: E 14

- Rimontare la calotta in vetro e riattivare l'erogazione di energia elettrica. E' possible verificare il funzionamento della lampada interna del fornoanche a porta chiusa ruotando la manopola di selezione funzione sulla posizione
ManualeFacile