Party - Herd Steel Cucine - Kostenlose Bedienungsanleitung
Finden Sie kostenlos die Bedienungsanleitung des Geräts Party Steel Cucine als PDF.
Häufig gestellte Fragen - Party Steel Cucine
Laden Sie die Anleitung für Ihr Herd kostenlos im PDF-Format! Finden Sie Ihr Handbuch Party - Steel Cucine und nehmen Sie Ihr elektronisches Gerät wieder in die Hand. Auf dieser Seite sind alle Dokumente veröffentlicht, die für die Verwendung Ihres Geräts notwendig sind. Party von der Marke Steel Cucine.
BEDIENUNGSANLEITUNG Party Steel Cucine

GAS LIQUIDO GAS METANO

Wir bedanken uns, dass Sie eines unserer Produkte gewählt haben. Ab jetzt werden sie mit ihrem neuen Herd auf angenehme und kreative Weise kochen konnen.
Wie empfehlen, alle in thisem Handbuch enthaltenen Anweisungen sorgfältig zu lessen. Den für eine sichere und korrekte Benutzung des Herdes wichtigsten Voraussetzungen wurde viel Raum gewidmet. darüber hinaus erleichtern diese Anleitungen die Kennnis jeder einzelnen Komponente.
Es werden nützliche Hinweise zur Benutzung von Behälter, Werkzeugen, zu den Positionen der Führungen und den Einstellungen der Bedienungselemente geliefert. Die korrekten Reinigungserbeiten nach Anweisung theses Handbuches erlauben die dauerhafte Erhaltung der Betriebsleistungen des Herdes.
Die einzelnen Abschnitts sind so aufgebaut, dass sie Schritt für Schritt alle Funktionalitäten des Herdes erklärren. Die Texte sind leicht verständlich und durch detaillierte Abbildungen und allgemein übliche Piktogramme ergänzt.
Die vertierte Lekture theses Handbuches liefert die Antwerten auf alle Fragen hinsichtlich der korrekten Benutzung Ihres neuen Herdes.

ANWEISUNGEN FÜR DEN INSTALLATEUR: Diese richten sich an den qualifizierten Techniker, der eine entsprachtende Überprüfung der Gasleitung vorzunehmen, die Installation, Inbetriebnahme und die Endabnahme des Geräts durchzuführen hat.

ANWEISUNGEN FÜR DEN BENUTZER: Gebrauchshinweise, Beschreibung der Bedienungselemente sowie die korrekten Reinigungs- und Pflegearbeiten.
- Allgemeine Informationen 115
1.1 Technische Kundendienst 115
- Hinweise zur Sicherheit und zur Bedienung 116
3.Installation 118
3.1 Allgemeine Hinweise 120
3.2 Auswechselung der verstillbaren StutzfuBe 120
3.3 Montage der Vorderleiste (erhaltlich nur bei einigen Modellen) 121
3.4 Montage des Spritzschutzes (erhältlich nur bei einigen Modellen) 121
3.5 Elektrischer Anschluss 122
3.6 Belüftung der Räume, in denen Gasgeräte aufgestellt werden 124
3.7 Gasanschluss 125
3.8 Gasregulierungen 128
3.9 Flüssiggasanschluss 128
4.AbschlieBende MaBnahmen 130
4.1 Ausrichtung des Herds auf dem Fußboden 130
5.Beschreibung der Bedienungselemente 131
5.1 Vordertafel 131
- Bedienung der Kochfläche 142
6.1 Anzünden der Brenner 142
6.2Ausschalten der Brenner 142
7.Benutzung des Induktionsherds 143
7.1 Allgemeine Hinweise 143
7.2 Automatische Verteilung der Strahlungsleistung 144
7.3 Tabelle zur Benutzung den Energiereglerknopf 145
7.4 Erstes Einschalten des Induktionsherds 145
7.5 Erkennen des Topfes 146
7.6Einschalten eines Strahlelements 147
7.7 Automatische Abschaltung 149
7.8 Manuelle Abschaltung 149
7.9 Kindersicherung 150
7.10 Bei Defekten und Störungen 150
8.Benutzung der Öfen 152
8.1 Allgemeine Hinweise 152
8.2 Schublade fur Zubehor (erhaltlich nur bei einigen Modellen) 152
8.3 Gefahr durch Kondenswasser 152
8.4 Benutzung des Multifunktions-Elektroherds 153
8.5 Benutzung des Hilfsofens mit natürlicher Konvektion 155
9.Ratschlage zumKochen/Garen 156
9.1 Ratschlage zur korrekten Gebrauch der Gasbrenner 156
9.2 Ratschlage zur korrekten Gebrauch des Induktionsherds 156
9.3 Ratschlage zum korrekten Gebrauch des Backofens 156
10. Reinigung und Pflege 159
10.1 Reinigung der Oberflächen aus Edelstahl 159
10.2 Reinigung der emailierten Oberflächen 159
10.3 Reinigung der lackierten Oberflächen 159
10.4 Reinigung von Oberflächen, Zubehor und Holzteilen 159
10.5 Reinigung der Bedienungsknöpe und der Bedienungstafel 159
10.6 Reinigung der Roste und Brenner 160
10.7 Reinigung der Zündkerzen und Thermoelemente 160
10.8 Reinigung des Induktionsherds 160
10.9 Reinigung des Backofens 161
11.AußerordentlicheWartung 162
11.1 Ausbau der Ofentur 162
11.2 Ausbau der seitlichen Rosthalterungen 163
11.3 Ausbau und Reinigung des Innentilators des Ofens 164
11.4 Auswechselung der Ofenbeleuchungslampe 164
Dieses Handbuch ist Bestandteil des gekauften Produkts. Der Bediener ist gehalten, theses Handbuch sorgfaltig aufzubewahren und hat davon zu sorgen, dass these wesend Gebrauch und Wartung des Produkst stets griffbereit ist. Bewahren Sie theses Handbuch fur zukunftige Bezugnahmen auf. Bei einem Wiederverkauf des Produkts ist theses Handbuch jedem nachfolgenden Betreiber beziehungsweise Anwender des Produkts selbst zu übergeben.
Die Herstellerfirma haftet nicht für mögliche Ungenauigkeiten infolge Druck- oder Schreibfehler in thisem Anleitungsheft. Sie behalt sich außer dem das Recht vor, an ihren Produkten samtliche Änderungen vorzunheiten, die sie auch im Interesse des Benutzers für erforderlich oder nutzlich erachtet, ohne die wesentlichen Merkmale in Bezug auf Funktionalität und Sicherheit zu beeinträchtigen.
GERATEKLASSEN
Die in thisem Handbuch beschrieben Kochgeräte gehoren den nachfolgend beschriebenen Installationsklassen an:
- Klasse 1: nicht eingefasstes Kochgerät;

- Klasse 2 - Unterklasse 1: Kochgerät zur Einfassung zwischen zwei Möbeln, bestehend aus einer einzigen Einheit, die aber auch so installiert werden kann, dass die Seitenwände zugänglich sind.

1. Allgemeine Informationen
Dieses Produkt wurde in Übereinstimmung mit folgenden Richtlinien hergestellt:
2006/95/EG betreffend elektrische Betriebsmittel zur Verwendung innerhalb bestimmter Spannungsgrenzen.
2004/108/EG betreffend die elektromagnetische Verträgelichkeit. Unter Einhaltung der Vorschriften betreffend die elektromagnetische Verträgelichkeit gehört der elektromagnetische Induktionsherd zur Gruppe 2 und zur Klasse b (EN 55011).
2009/142/EG bezuglich "Gasperate".
- EG-Reglement Nr. 1935 vom 27/10/2004 betreffend die zum Kontakt mit Lebensmittelprodukten bestimmten Materialien und Gegenstände.
2011/65/EG (RoHS) zur Beschränkung der Verwendung bestimmter gefährlicher Stoffe in den Herstellungsmaterialien.
1.1 Technische Kundendienst
Vor dem Verlassen des Werks wurde diese Gerät von Fachpersonal und Experten abgenommen und eingestellt, so dass die besten Betriebsergebnisse gewährleistet sind. Alle in der Folge notwendigen Reparaturen und Einstellungen sind mit größter Sorgfalt vorzunehmen.itte wenden Sie sich daher unbedingt stets an ihren Vertragshandler, bei dem sie das Gerät gekauft haben oder an das am nachsten gelegene Kundendienstzentrum unter Angabe der Störung und des Gerätemodells.

2. Hinweise zur Sicherheit und zur Bedienung

DIESES HANDBUCH STELLT EINEN BESTANDTEIL DES GERÄTS DAR UND IST DAHER VOLLSTÄNDIG UND GRIFFBEREIT FÜR DIE GESAMTE LEBENSDAuer DES HERDES AUFZUBEWAHREN. WIR EMPFEHLEN EINE AUFMERKSAME LEKTURE DIESES HANDBUCHES UND ALLER IN DIESEM ENTHALTENER ANWEISUNGEN VOR DER BENUTZUNG DES HERDES. BEWAHREN SIE, FALS VORHANDEN, Auchen DEN MITGELIEFERTEN SATZ DUSEN AUF. DIE INSTALLATION IST VON FACHPERSONAL SOWIE UNDER EINHALTUNG DER GELTenden VORSCHRIFTEN DURCHZUHFHRN. DIESES GERÄT IST FÜR DEN EINSATZ IM HÄUSLIChEN BEREICH VORGESEHEN UND STEHE IN ÜBEREINSTIMMUNG MIT DEN AKTUELLE GELTenden EWG RICHTLINIEN. DIE PROFESSIONELLE VERWENDUNG UND DIE INSTALLATION IN ÖFFENTLIChEN BETRIEBEN WIE RESTAURANTS, BARS. BETRIEBSKANTINEN SOWIE JEGLiche WEITERE VON DER SPEZIFIZIERTEM ABWEICHENDED VERWENDUNG FÜRHN ZUM UNVERZUGLIChEN VERFALL DER GARANTIE. DOS GERÄT IST AUSGELEGT ZUR ERFULLUNG FOLGENDER FUNKTIQ: GAREN UND ERHITZEN VON LEBENSMITTELN. JEDE SONSTige VERWENDUNG IST ALS UNZULASSIG ZU BETRachtEN. DER HERSTELLER LEHNT JEDE HAFTUNG FÜR VON DEN BEZEICHNETEN ABWEICHENDED VERWENDUNGEN AB.
BEIM KAUF WIRD DER BEDIENER ZUM DIREKT HAFTENDEN DES PRODUKTS UND HAT MITHIN SICHERZUSTELLEN, DASS SICH BEI NORMALBETRIEB IM LAUFE DER ZEIT KEINE DIE SICHERHEIT BEEINTRACHTIGENDE INSTABILITÄT, VERFORMUNGEN ODER VERSCHLEISSERSCHEINUNGEN EINSTellen.
DAS PRODUKT WURDE DERART GESTALTET UND KONSTRUIERT, DASS DER BETRIEB UNDER SICHERHEITSBEDINGUEN GEWÄHRLEISTET IST UND KEINE GEFAHREN FÜR PERSONEN, HAUSTIERE UND GEGENSTÄNDE GEGEBEN SIND.

LASSEN SIE DIE PACKUNGSREST NICT UNBEAUFSICHTIGT IM HÄUSLICHEN BEREICH HERUMLIEGEN. TRENNEN SIE DIE VERSCHIEDENEN ABFALLMATERIALIEN AUS DER VERPACKUNG UND ENTSORGEN SIE DIESE AN DER NACHSTEN GEEIGNETEN SAMMELSTELLE.

DER ERDSCHLUSS GEMÄSS DEN GELTenden VORSCHRIFTEN ZUR SICHERHEIT VON ELEKTROINSTALLATIONEN IST OBLIGATORISCH.

DER AN DAS VERSORGUNGSKABEL ANZUSCHLIESSENDE STECKER UND DIE ZUGEHÖRIGE STECKDOSE MÜSSEN VOM SELBEN TYP SEIN UND IN ÜBEREINSTIMMUNG MIT DEN GELTenden VORSCHRIFTEN STEHEN. NACH DER INSTALLATION DES GERÄTS MUSS DER STECKER ZUR REGELMÄSSIGEN INSPEKTION ZUGÄNGLICH SEIN. ZIEHEN SIE DEN NETZSTECKER NICT AM KABEL AUS DER STECKDOSE.

SOLLtEN SICH DIE GASHAHNE NUR SCHWER OFFNEN LASSEN, SIND DIESE UTER VERWENDUNG EINES SPEZIFISCHEN PRODUKTS FÜR HOHE TEMPERATUREEN ZU FETTEN. FÜR DIESEN EINGRIFF IST DER TECHNISCHE KUNDENDIENST ANZURUFEN.

SOFORT NACH DER INSTALLATION IST EINE KURZE TECHNISCHE ABNAHME UNDER BEFOLGEN DER ANWEISUNGEN WEITER UNTEN DURCHZUFUHREN. BEI FUNKTIONSSTÖRUNGEN IST DAS GERÄT VON DER STROMVERSORGUNG ZU TRENNN UND DAS AM NACHSTEN GELEGENE KUNDENDIENSTZENTRUM ZU KONTAKTIEREN. VERSUCHEN SIE NICT, DAS GERÄT ZU REPARIEREN.

DIE VERWENDUNG EINES GASKOCHGERÄTS ERZEUGT WÄRME UND FEUCHTIGKEIT IN DEM RAUM, IN DEM ES INSTALLIERT WIRD. STELEN SIE EINE GUTE BELÜFTUNG DES RAUMS SICHER: HALten SIE DIE SCHLITZE FÜR DIE NATürliche BELÜFTUNG GEÖFFNET ODER INSTALLIEREN SIE EINE MECHANISCHE BELÜFTUNGSVORRichtUNG (ABSAUGHAUBE MIT AUSLASSKANAL). DIE INTENSIVE UND LÄNGERE BENUTZUNG DES GERÄTS KANN EINE ZUSATZLCHE BELÜFTUNG ZUM BEISPIEL DURCH ÖFFNUNG EINES FENSTERS BEZIEHUNGSEISE EINE WIRKSAMERE BELÜFTUNG DURING ERHÖHUNG DER MECHANISCHEN SAUGLEISTUNG, FALLS VORHANDEN, ERFORDERN.

AM ENDE JEDES GEBRAUCHS DER KOCHFLÄCHE IST STETS SICHERZUSTELLEN, DASS DIE BEDIENUNGSKNÖPFE IN DER POSITION (AUS) STEHEN.

GEBEN SIE NIEMALS ENTFLAMMBARE GEGENSTände IN DEN OFEN: BEI VERSEHENTLICHEM EINSCHALTEN KONNE EIN BRAND ENTSTEHEN. IM BRANDFALL: SCHLIESSEN SIE DEN HAUPTGASHAHN UND SCHALTEN SIE DEN ELEKTRISCHEN STROM AB. KEIN WASSER AUF BRENNENDES ODER BACKENDES OL RICTEN. KEINE ENTFLAMMBAREN PRODUKTE ODER AEROSOL-FLASCHEN IN DER NAHE DES GERÄTS AUFBEWAHREN UND NICT IN DER NAHE EINGESCHALTETER BRENNER SPRUHEN. TRAGEN SIE KEINE WEITEN KLEIDUNGSSTUCKE ODER NICT ANLIEGENDE ACCESSIORES BEI EINGESCHALTETEN BRENNER: DAS ANZUNDEN DER TEXTILIER KANN ZU SCHWEREN VERLETZUNGEN VON PERSONEN FUHREN.

SETZEN SIE KEINE TÖPFE AUF DIE KÖCHFLÄCHE, DEREN BODEN NICT VOLLKOMMEN GLATT UND Gleichmässig IST.

VERWENDEN SIE KEINE BEHÄLTER ODER GRILLPLATTEN, DEREN AUSSENUMFANG DEN DER KÖCHFLÄCHE ÜBERRAGT.

DAS TYPENSCHILD MIT TECHNISCHEN DATEN, SERIENNUMMER UND MARKIERUNG BEFINDET SICH IN EINER GUT SICHTBAREN STEILLE AN DER RÜCKSEITE DES GERÄTS.
EIN ZWEITES SCHILD MIT DEN KENNDATEN DES MODELLS UND DER SERIENNUMMER BEFINDET SICH IM INNERN DES GERÄTS Auf DER LINKEN SEITE UND WIRD BEIM ÖFFNEN DER OFENTÜR SICHTBAR.
DIE SCHILDER DURFEN NIEMALS ENTFERNT WERDEN.

DAS GERÄT IST ZUM GEBRAUCH DURCH ERWACHSENE PERSONEN BESTIMMT. KINDERN IST DER ANNÄHERUNG ODER DAS SPIELEN MIT DEM GERÄT ZU UNTERSAGEN. LASSEN SIE KEINE GEGENSTände Auf DEM GERÄT, WELCHE DIE AUFRMERKSAMKEIT VON KINDERN WECKEN KÖNNTEN. DIE ERHITZUNG EINIGER TEILE DES GERÄTS UND DER VERWENDETEN TÖPFPE KANN ONE GEFAHRENQUELLE DARSTELLEN. WÄHREND DES BETRIEBS SOWIE WÄHREND DER GESAMTEN NOTWENDIGEN KÜHLZEIT SIND DIE TÖPFPE DAHER DERART ANZUORDNEN, DASS DIE VERBRENNUNGS-BZW. UMSTURZGEFAHR UTERBUNDEN WIRD. LASSEN SIE DIE OFENTÜR WÄHREND DES BETRIEBS SOWIE IN DEN MINUTEN UNMITTELBAR NACH DEM AUSSCHALTEN NICT GEÖFFNET. VERNEIDEN SIE DARÜBER HINAUS DIE BERUHRUNG DER HEIZELEMENTE DES OFENS.

DAS ABSTUTZEN ODER SETZEN Auf DIE OFFENE OFENTÜR, DIE SCHUBLADEN ODER DAS ABLAGEFACH KÖNNEN ZUM UMKIPKEN DES GERÄTS FührREN, MIT DARAUS FOLGENDER GEFAHR FÜR PERSONEN. DIE SCHUBLADEN HABEN EINE DYNAMISCHE TRAGFÄHIGKEIT VON ZIRKA 25 KG.

WENN DER OFEN AUF EIN PODEST GESETZT WIRD, SIND MASSNAHMEN GEGEN DAS ABRUTSCHEN DES GERÄTS ZU ERGREIFEN.

DAS AUSSER BETRIEB GESETZTE GERAT IST EINER ENTSPRECHENDEN SONDERMULLSTELLE ZUZUFUHREN. TRENNEN SIE DAS STROMKABEL AB, NACHDEM SIE DEN STECKER AUS DER NETZDOSE GEZOGEN HABEN. SORGEN SIE DAFUR, DASS DIE TEILE (TUREN USW.), DIE EINE GEGAHR FÜR KINDER DARSTELLEN KONNEN, ENTSPRECHEND ABGESICHERT SIND.
IN ÜBEREINSTIMMUNG MIT DEN ANFORDERUNGEN DER EUROPÄISCHEN RICHTLINIE 2002/96/EG ÜBER ELEKTRÖ- UND ELEKTRONIK-ALTGERATE (WEEE) IST VORLIEGENDES GERAT MIT EINER MARKIERUNG VERSEHEN. SIE LEISTEN EINEN POSITIVEN BEITRAG FÜR DEN SCHUTZ DER UMWELT UND DIE GESUNDheit DES MENschen, WENN SIE DIESES GERAT EINER GESONDERTEN ABFALLSAMMLUNG, ZUFUHREN. IM UNSORTIERTEM SIEDLUNGSMÜLL KONNE EIN SOLCHES GERAT DURCH UNSACHGEMÄBE ENTSORGUNG NEGATIVE KONSEQUENZEN NACH SICH ZIEHEN.
AUF DEM PRODUKT ODER DER BEILIEGenden PRODUKT DOKUMENTATION IST FOLGENDES SYMBOL EINER DURCHGESTRICHENEN ABFALLTONNE ABGEBILDET. ES WEIST DARAUF HIN, DASS ONE ENTSORGUNG IM NORMALEN HAUSHALTSBAFALL NOTZ ZULASSIG IST ENTSORGEN SIE DIESES PRODUKT IM RECYCLINGHOF MIT EINER GETRENNTEN SAMMLUNG FÜR ELEKTRO- UND ELEKTRONIKGERATE. DIE ENTSORGUNG MUSSS GEMAB DEN ORTlichen BESTIMMUNGEN ZUR ABFALLBESEITIGUNG ERFOLGEN. BITTE WENDEN SIE SICH AN DIE ZUSTANDIGEN BEHRDEN IHRER GEMEINDEVERWALTUNG, AN DEN LOKALEN RECYCLINGHOF FÜR HAUSHALTSMULL ODER AN DEN HANDLER, BEI DEM SIE DIESES GERAT ERWORBEN HABEN, UM WEITERINE INFORMATIONEN UBER BEHANDLUNG, VERWERTUNG UND WIEDERVERWENDUNG DIESES PRODUKTZ U ERHALTEN.
Der Hersteller leht jegliche Verantwortung für Schäden an Personen oder Gegenständen aufgrund der Nichtbeachtung der oben stehenden Vorschriften oder aufgrund der Manipulation auch nur eines Einzelteils des Geräts sowie der Verwendung nicht originaler Ersatzteile ab.
3. Installation
ABMESSAGENGEN (mm)









ABMESSAGEGEN (mm)
OXFORD



ENFASI



3.1 Allgemeine Hinweise

Die nachfolgenden Eingriffe sind von einem qualifizierten Installationstechniker durchzuführen. Der Installationstechniker ist verantwortlich für die korrekte Inbetriebnahme gemäß den geltenden Sicherheitsvorschriften. Vor der Benutzung des Geräts sind die Kunststoffschutzfolien von der Bedientafel, von den Teilen aus Edelstahl uw. zu entfernen...
Der Hersteller leht jegliche Verantwortung für Schäden an Personen, Tieren oder Gegenständen aufgrund der Nichtbeachtung der oben stehenden Vorschriften ab (vgl. Kapitel "2. Hinweise zur Sicherheit und zur Bedienung").
Die technischen Daten sind auf dem Typenschild an der Geräterückseite angegeben. Die möglichen Regulierungen sind auf einem Etikett auf der Verpackungen sowie auf dem Gerät selbst angegeben.

Verwenden Sie den Griff der Ofentür nicht zum Anheiten und Transportieren, einschließlich der zur Entfernung des Geräts aus der Verpackung notwendigen Arbeitsschritte.

3.2 Auswechselung der verstillbaren Stützfuße
Der Herd wird mit bereits montierten Standard-Stützfußen gefleert.

Die Standard-Stutzfuße erlauben die Hohenregulierung, sodass der Herd am Fußboden nivelliert wird. Bei zu starkem Aufschrauben der Stutzfuße verliert der Herd an Standfestigkeit.

Zur Erhöhung des Herdes empfeht es sich, die Standard-Stützfuße durch andere höhere (bei einigen Modellen mitgelieferte oder bei ihrem Endverkäfer anzufordernde) Stützfuße auszuwechseln, die eine Höhe von 3 cm erlauben.

Vor dem Kippen des Herdes sollenn alle nicht stabil an thisem befestigten Teile entfernt werden, insbesondere der Kochplattenrost und die Brenner. Zur Verringerung des Herdgewichts empfeht es sich, auch die Zubehorteile im Innern des Ofens zu entfernen und so die unbeabsichtigte Beschädigung des Herds beim Kippvorgang zu vermeiden.
Zur Auswechselung der Stützfuße kann wie folgt vorgegangen werden:
A Anheben des Gerats vom Boden.
B Legend des Gerats auf die Rückseite.
Ziehen Sie die Stützfuße aus dem Innern der Packung und verschrauben sie am Boden des Herdes.
Die Endregulierung der Stützfuße zum Ausrichten des Geräts auf dem Fußboden erfolgt nach Herstellung der Gas- und Elektroanschluss.


Sollte das Verschieben des Gerats notwendig sein, schrauben Sie die Stützfuße ganz zu und regulieren diese erst nach Abschluss der Arbeitsen.
3.3 Montage der Vorderleiste (erhältlich nur bei einigen Modellen)
Für einige Herdmodelle ist eine Vorderleiste zur Abstimmung auf das Design erhältlich.

Vor dem Kippen des Herdes sollenn alle nicht stabil an thisem befestigten Teile entfernt werden, insbesondere der Kochplattenrost und die Brenner. Zur Verringerung des Herdgewichts empfeht es sich, auch die Zubehorteile im Innern des Ofens zu entfernen und so die unbeabsichtigte Beschädigung des Herds beim Kippvorgang zu vermeiden.
BeiderMontageistwifofgltvorzugehen:
- Neigen Sie den Herd nach hinter.
- Nähern Sie die Leiste A dem Montagesitz wie im Bildausschnitt zu sehen.
- Setzen Sie die Leiste so ein, dass der Anschlag mit dem Montagesitz erhalten wird.
- Ziehen Sie die Leiste nach unten, sodass diese mit den bereits auf dem Herd vorhandenen 4 Zapfen B (zwei auf jeder Seite) einrastet.


3.4 Montage des Spritzschutzes (erhältlich nur bei einigen Modellen)
BeiderMontageistwifofgltvorzugehen:
- Stützen Sie den Spritzschutz A so an die Rückseite der Kochplatte, dass die Bohrungen zusammenreffen.
Drehen Sie die 4 Schrauben B mit einem Kreuzschraubenzieher bis zum Anschlag fest.



Die eventuell im Laufe der Zeit eintretende Gelbfarbung des Stahls ist eine vollkommen natürliche Erscheinung, welche die Originaleigenschaften in keiner Weise beeinträchtigt. Die Gelbfarbung lassst sich mit Spezialprodukten zur Reinigung von Stahl entfern.
3.5 Elektrischer Anschluss

Stellen Sie sicher, dass die Spannung und Freqenz der Netzspannung mit den Werten auf dem Typenschild an der Geräterückseite übereinstimmen.
Ein zweites Schild mit den Kenndaten des Modells und der Seriennummer befindet sich im Innern des Geräts auf der linken Seite und wird beim Öffnen der Ofentür sightbar.
Die Schilder dürfen niemals entfernt werden.

Der Stecker am Ende des Versorgungskabels sowie die Steckdose in der Wand mussen vom selbst Typ sein und mit den geltenden Vorschriften zu Elektroinstallationen übereinstimmen. Stellen Sie sichere, dass die Versorgungsleitung mit einem vorschrifsmäßigen Erdschluss versehen ist. Nach der Installation des Geräts muss der Stecker zur regelmässigen Inspektion zugänglich sein.

Sehen Sie auf der Versorgungsleitung des Geräts eine allpolige Unterbrechungseinrichtung vor, deren Kontaktöffungsabstand größter oder gleich 3 mm ist, in einer leicht zugänglichen Position und in der Höhe des Geräts.

Vermeiden Sie die Verwendung von Reduzierstücken, Adaptern oder Nebenanschlussungen.
Stellen Sie vor der Herstellung des elektrischen Anschlusses die Wirksamkeit des Erdschlusses safer.
Stellen Sie sicher, dass das Begrenzungsventil sowie die Hausanlage für die elektrische Leitungsaufnahme des Gerätes ausgelegt sind.
Das gelb/grüne Erdkabelarfkeine Unterbrechungen aufweisen.
Das Elektrokabelarf nicht in Kontakt mit Teilen geraten, deren Temperatur die Umgebungstemperatur um mehr als 50^ übersteigt.
3.5.1 Querschnitt der elektrischen Versorgungskabel
Je nach Art der Stromversorgung ist ein Kabel mit Eigenschaften in Übereinstimmung mit der nachfolgenden Tabelle zu verwenden.
Betrieb bei 400V3N~ (Modèle angeschlossen nach SCHEMA "A"): Verwenden Sie ein Fünfpolkabel vom Typ H05RR-F (Kabel von 5 × 2.5 mm^2 ).
Betrieb bei 230V3~ (Modèle angeschlossen nach SCHEMA "C", aber vom Installateur umgeschaltet gemäß SCHEMA "B"): Verwenden Sie ein Vierpolkabel vom Typ H05RR-F (Kabel von 4 x 4 mm²).
Betrieb bei 230V1N~ (Modelle angeschlossen nach SCHEMA "C"): bis zu 2,9 kW: Verwenden Sie ein Dreipolkabel vom Typ H05RR-F (Kabel von 3 x 1,5 mm²); über 2,9 kW bis zu 5,4 kW: Verwenden Sie ein Dreipolkabel vom Typ H05RR-F (Kabel von3 x 2.5 mm²); über 5,4 kW bis 7 kW Werwenden Sie ein Dreipolkabe vom Typ H05RR-F (Kabel von 3 x 4 mm²); bei über 7 kW Verwenden Sie ein Dreipolkabel vom Typ H05RR-F (Kabel von 3 x 6 mm²).
Das mit dem Gerät zu verbindende Ende muss den Erdleiter (gelbrün) um mindestens 20 mm länger haben.



3.5.2 Stromversorgungsart
Es besteht die Mogglichkeit, je nach Spannung verschiedene Anschluss zu erhalten, indem einfach die Bugel auf dem Klemmenbrett nach den nachfolgenden Schemen umgestellt werden.
Entnehmen Sie die Informationen für das jeweilige Modell der Tabelle "A NSCHLUSS AN DAS KLEMMBRETT".
VOM HERSTELLER EINGESTELLTER ORIGINALANSCHLUSS.



ANSCHLUSS AN DAS KLEMMBRETT
| MODELL LEISTUNG | kW | STROMVERSORGUNG |
| HERD 5 BRENNER (1 OFEN) | 2,9 | |
| HERD 6 BRENNER (1 OFEN) | 2,9 | |
| HERD INDUKTIONSKOCHFELD (1 OFEN) (6 ELEMENTE) | 10,1 | SCHEMA "C" |
| HERD 6 BRENNER (2 ÖFEN) | 3,9 | |
| HERD INDUKTIONSKOCHFELD (2 ÖFEN) (6 ELEMENTE) | 11,1 |
DIE MODELLE MIT ANSCHLUSS GEMÄB SCHEMA "A" KÖNNEN VOM INSTALLATEUR NACH SCHEMA "B" UMGESCHALTET WERDEN.
DIE MODELLE MIT ANSCHLUSS GEMÄB SCHEMA "C" KÖNNEN VOM INSTALLATEUR NACH SCHEMA "A" UMGESCHALTET WERDEN.

3.5.3 Auswechselung des Stromkabels
Zur Auswechselung des Stromkabels muss auf das Klemmenbrett zugegriffen werden. Diese befindet sich auf der Geräterückseite wie in der Abbildung gezeigt.
Zur Auswechselung des Stromkabels ist wie folgt vorzugehen:
- Offnen Sie das Klemmenbrettgehäuse.
- Losen Sie die Schraube A zur Sicherung des Kabels.
- Losen Sie die Schraubkontakte und ersetzen Sie das Kabel durch eines mit derselbe Lange sowie mit den Eigenschaften in Übereinstimmung mit den Angaben in der Tabelle im Abschnitt "3.5.1 Querschnitt der elektrischen Versorgungskabel".
- Der Erdleiter "gelb-grün" ist an die Klemme zu gegen und muss zirka 20 mm länger bezüglich der Phasenleiter sein.
- Der Neutraleiter "blau" ist an die Klemme mit dem Kennbuchstaben N zu legen.
- Der Phasenleiter ist an die Klemme mit dem Kennbuchstaben L zu legen.

3.6 Belüftung der Räume, in denen Gasgeräte aufgestellt werden
Dieses Gerät ist mit keiner Vorrichtung zur Ableitung von Verbrennungsrückständen ausgestattet und ist somit in Übereinstimmung mit den geltenden Installationsvorschriften aufzustellen und anzuschreiben. Insbesondere sind die zuständigen Vorschriften zur Raumbelüfung zu befolgen.
Dieses Gerätarf nach den geltenden Vorschriften nur in gut belufteten Räumen aufgestellt werden, in denen über Öffnungen an den Außenwänden oder mit entsprechenden Leitkanalen eine korrekte natürliche oder forcierte Belüftung möglich ist, so dass eine dauerhafte und ausreichende Einleitung von Luft gewährleistet wird, die sowohl für eine korrekte Verbrennung wie für die Ableitung der Abluft notwendig ist.
Die Verwendung eines Gaskochgerats erzeugt Wärme und Feuchtigkeit in dem Raum, in dem es installiert wird. Stellen Sie eine gute Belülfung des Raums safer: Halten Sie die Schlitze für die natürliche Belülfung geöffnet oder installieren Sie eine Mechanische Belüftungsvorrichtung (Absaughabause mit Auslasskanal).
Die intensive und langere Benutzung des Gerats kann eine zusätzliche Belüftung zum Beispiel durch Öffnung eines Fensters beziehungsweise eine wirsamere Belüftung durch Erhöhung der mechanischen Saugleistung, falls vorhanden, erfordern.
Sollte in der Umgebung nur这点es Gaserat vorhanden sein, ist eine Abzugskappe vorzusehen, die den natürlichen und direkten Auslass der Abluft gewährleistet, und waar mittels eines vertikalen geradlinigen Leitkanals mit einer Länge von mindestens zweimal dem Durchmesser und einem Mindestquerschnitt von 100~cm^2
Für den unverzichtbaren Einlass von Frischluft in die Umgebung ist eine analoge Öffnung von mindestens 100cm^2 vorzusehen, die direkt mit dem Außenbereich communiziert und auf einer Höhe in der Nähe des Fußbodens eingebaut ist, und darüber so, dass diese weder von der Innenseite noch von der Außenseite der Wand verschlossen werden kann. Die Öffnung dar auf über hinaus nicht die korrekte Verbrennung der Flammen und die gleichmäßige Ableitung der Abluft behindern, der Hohenunterschied zur Auslassöffnung muss mindestens 180cm betragen.




Es sei daran erinnert, dass die zur Verbrennung notwendige Luftmenge mindestens 2^3/ pro kW Leistung beträgt (siehe Gesamtleistung in kW auf dem Typenschild des Geräts).
In allen anderen Fällen, wenn in derselben Umgebung weitere Gasgeräte vorhanden sind oder dann, wenn eine direkte natürliche Belüfung nicht möglich ist, ist eine indirekte natürliche Belüfung oder eine forcierte Belüfung zu realisieren: Für diesen Eingriffstyp ist es notwendig, mit einem Fachtechniker Kontakt aufzunehmen, der die Installation und Realisierung der Belüftungsanlage übernimmt, und darüber unter strikter Einhaltung der in den geltenden Vorschriften enthaltenen Maßnahmen.
Die Positionierung der Öffnung muss so beschaffen sein, dass die Bildung jeglicher für die Anwesenden unverträglicher Luftströmung unmöglich gemacht wird. Darüber hinaus ist es verboten, bereits von anderen Geräten genutzte Abzugskamine für die Ausleitung der Verbrennungsdprodukte zu verwenden.
3.7 Gasanschluss
Die Bedingungen für die Einstellung des Geräts sind auf der Plakette an der Rückseite des Gerätes angegeben.
Gashausgeräte ohne Anschluss an einen Abzugskanal für die Verbrennungsdprodukte dürfen keine Kohlenmonoxidkoncentration hervorrufen, die je nach der für die Personen vorgesehenen Aussetzungsszeit ein Gesundheitsrisiko für die ausgesetzten Personen darstellt.

Es ist unablässlich sicherzustellen, dass das gerät exakt für den Typ des gelieferten Gases ausgelegt ist. Der Anschluss an die Gasleitung ist in Übereinstimmung mit den geltenden Vorschriften durchzuführen, welche die Installation eines Sicherheitsahns am Ende der Rohrleitung vorsieht. Das mit Gewinde versehene 12 "Gasanschlussrohr ist hinten auf der rechten Seite des Geräts angebracht.

Für Butan- und Propangas ist ein Druckreduzierer in Übereinstimmung mit den geltenden Normen vorzusehen. Die Haltedichtungen müssen mit den geltenden Normen übereinstimmen. Nach Abschluss der Gasanschlussarbeiten kontrollieren Sie mit einer Lösung aus Wasser und Seite die Dichtigkeit der Fittings.
Der Gasanschluss kann auf folgende Weisen durchgeführt werden:
- Mittels steifem Rohr aus Eisen oder Kupfer.
- Mittels biegsamem Rohr aus Edelstahl mit unterbrechungsfreier Wand und mechanischem Anschluss in Übereinstimmung mit den geltenden Normen (maximale Länge des ausgestreckten Rohres 2000 mm). Das Rohr ist direkt an das Winkelstück der Rampe anzuschreiben.

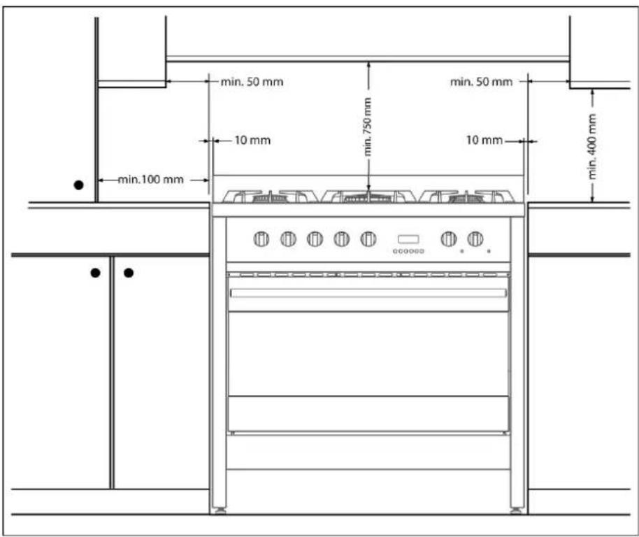
Die Beschichtung des Mobels muss aus hitzebestandigem Material (mindestens 90^ ) sein. Sollte das Gerät in der Nähe von Möbeln aufgestellt werden, sind d ie vom nachstehenden Diagramm empfohlenen Mindestabstände einzuhalten.


3.8 Gasregulierungen

Die nicht mit dem Gerat gelieferten Injektoren sind beim Kundendienstzentrum anzufordern.
Wenn das Kochgerät für einen anderen Gastyp als den verfügbaren ausgelegt sein sollte, sind die Düsen auszuwechseln, das Mindestfordervolumen zu regulieren und die Gummifassung auszuwechseln. Zur Auswechselung der Düsen der Arbeitsplatte sind folgende Schritte durchzuführen:
-
Entfernen Sie die Roste.
-
Entfernen Sie Brenner und Flammenverteilerkappen (Abb. A).
-
Ziehen Sie die Düse (Abb. B) Heraus und ersetzen diese mit der zum neuen Gastyp passenden (siehe "ALLGEMEINE TABELLE DER DUSEN" auf Seite 129-130).
-
Ersetzen Sie die Gasprüfetikette (auf der Rückseite des Geräts) durch die neue. Wenn das Gerät mit dem Düsenersatz-Kit ausgestattet ist, wird zusammen mit diesen auch die neue Etikette geleiefert.
-
Montieren Sie alles wieder, wobei Sie in umgekehrter Reihenfolge bezüglich des Ausbaus vorgehen. Achten Sie damit darauf, die Flammenverteilerkappe korrekt auf den entsprechenden Brenner zu setzen.

3.8.1 Mindestfordervolumen der Kochflächenhöhne mit Ventilen
Zunden Sie den Brenner an und drehen Sieden Bedienungsknopf in Richtung der Position Mindestfordervolumen
- Ziehen Sie den Bedienungsknopf Heraus.
Regulieren Sie mit einem Schraubenzieher die interne Schraube Z bis zum Erreichen einer korrekten Mindestflamme.
- Setzen Sie den Bedienungsknopf wieder ein.


- Schrauben Sie die Einstellschraube Z auf zur Erhöhung des Fördervolumens beziehungsweise zur Verringerung des Fördervolumens.
Die Einstellung ist korrekt, wenn die Mindestflamme zirka 3 oder 4 mm beträgt. - Bei Butan-/Propangas ist die Einstellschraube bis zum Anschlag zuzudrehen.
- Beim Schnellen Übergang vom Höchstkördervolumen zum Mindestfördervolumen und umgekehrt: Sicherstellen, dass die Flammne nicht ausgeht.

3.9 Flüssiggasanschluss
Einen Druckregler verwenden und den Anschluß an die Gasflasche gemäß den geltenden Normen ausführten.
| EE % | 5 BRENNER | 6 BRENNER EE % |
| 57.6 57.8 | B A C B | B B A A C B |
| 57.4 | B A C D | B B A A C D |
| ALLGEMEINE TABELLE DER DÜSEN (ALUMINIUM) | |||||||
| GASTYP | mbar | DÜSE Nr. | BRENNER POSITION TYP | LEISTUNG Watt VERBRAUCH EE | |||
| MAX. MIN. MAX. % | |||||||
| G20 METHAN | 20 | 115 SCHNELL (A) 3000 750 286 l/h 58.9 | |||||
| 97 HALB-SCHNELL (B) 1750 480 167 l/h 58.7 | |||||||
| 128 | DREIFACHKRANZ (C) | 3500 | 1400 | 333 l/h | 52.9 | ||
| 72 | HILFSPOSITION (D) | 1000 | 330 | 95 l/h | - | ||
| G25 METHAN | 20 | 134 SCHNELL (A) 3000 750 332 l/h 58.9 | |||||
| 100 | HALB-SCHNELL (B) 1750 480 194 l/h 58.7 | ||||||
| 145 | DREIFACHKRANZ (C) | 3500 | 1400 | 388 l/h | 52.9 | ||
| 77 HILFSPOSITION (D) 1000 | 330 111 l/h - | ||||||
| G30 BUTAN PROPAN | 50 | 75 | SCHNELL (A) | 3000 | 750 | 219 g/h | 58.9 |
| 58 | HALB-SCHNELL (B) | 1750 | 480 | 128 g/h | 58.7 | ||
| 73 | DREIFACHKRANZ (C) | 3500 | 1400 | 254 g/h | 52.9 | ||
| 43 | HILFSPOSITION (D) | 1000 | 330 | 73 g/h | - | ||

| ALLGEMEINE TABELLE DER DÜSEN (MESSING) | ||||||
| GASTYP | mbar | DÜSE Nr. | BRENNER POSITION TYP | LEISTUNG Watt VERBRAUCH EE | ||
| MAX. MIN. MAX. % | ||||||
| G20 METHAN | 20 | 115 SCHNELL (A) 3000 750 286 l/h 53.8 | ||||
| 97 HALB-SCHNELL (B) 1750 480 167 l/h | 54 | |||||
| 132 | DREIFACHKRANZ (C) | 3500 | 1800 | 333 l/h | ||
| 72 | HILFSPOSITION (D) | 1000 | 330 | 95 l/h | ||
| G25 METHAN | 20 | 135 SCHNELL (A) 3000 750 332 l/h 53.8 | ||||
| 100 | HALB-SCHNELL (B) | 1750 | 480 | 194 l/h | ||
| 145 | DREIFACHKRANZ (C) | 3500 | 1800 | 387 l/h | ||
| 77 HILFSPOSITION (D) | 1000 | 330 111 l/h | ||||
| G30 BUTAN PROPAN | 50 | 75 | SCHNELL (A) | 3000 | 750 | 219 g/h |
| 58 | HALB-SCHNELL (B) | 1750 | 480 | 128 g/h | ||
| 80 | DREIFACHKRANZ (C) | 3500 | 1800 | 254 g/h | ||
| 43 | HILFSPOSITION (D) | 1000 | 330 | 73 g/h | ||
4. AbschlieBende Maßnahmen
4.1 Ausrichtung des Herds auf dem Fußboden
Nach der Herstellung der Elektro- und Gasanschlüsse, richten Sie den Herd mit Hilfe der zuvor am Boden des Geräts angeschraubten verstellbaren Stützfuße am Fußboden aus.


Sollte das Verschieben des Gerats notwendig sein, schrauben Sie die Stutzfüge ganz zu und regulieren diese erst nach Abschluss der Arbeiten.
5. Beschreibung der Bedienungselemente
5.1 Vordertafel
Alle Bedienungs- und Kontrollelemente der Kochfläche und des Ofens sind auf der Vordertafel vereint.

BEDIENUNGSTAFEL

BESCHREIBUNG BEDIENUNGSKNOPF DER KOUCHFLÄCHENBRENNER
Das Züden der Flamme erfolgt durch Drücken und gleichzeitiges Drehen des Bedienungsknopfes gegen den Uhrzeigersinn auf das Symbol der Mindestflamme Zur Regulierung der Flamme drehen Sie den Bedienungsknopf auf den Bereich zwischen Maximum und Minimum . Das Ausschalten des Brenners erfolgt durch Rückstellen des Bedienungsknopfes in die Position

BESCHREIBUNG DER BRENNER-Beschreibung der Symbole

VORNE LINKS

VORNE RECHTS

HINTEN LINKS

HINTEN RECHTS

MITTE

HINTEN MITTE

VORNE MITTE
BESCHREIBUNG MINUTENUHR-DREHKNOPF
Zum Aufziehen des Akustikmelders ist der Bedienungsknopf im Uhrzeigersinn zu drehen. Die gewünschte Zeit kann bis auf maximal 60 min eingestellt werden. Nach Ablauf der festgelegten Zeit ertont ein kurzer Akustikmelder.

BESCHREIBUNG DER BEDIENKNÖPFE DES INDUKTIONSHERDS
Der Induktionsherd ist mit Bedienknopfen zur Kontrolle des Leistungslevels ausgestattet.
Zur Wahl eines anderen Leitungslevels drehen Sie den Bedienknopf auf den gewünschten Wert (1 - 9 und P).
Der Wert “P” ist die maximal auf jedem einzelnen Strahlelement aufnehmbare Leistung.
Bei jeder Änderung der Leistung zeigt das Display der jeweils auf dem Bedienknopf gewährten Wert an.


ANORDNUNG DER STRAHLELEMENTE - Beschreibung der Symbole

HINTEN LINKS

HINTEN RECHTS

VORNE LINKS

VORNE RECHTS

MITTE
Alle Bedienknöffe der Strahlelemente sind auf der Vorderseite des Herds angebracht, auf dem Induktionsherd sind die zugehörigen Displays zu sehen.






BESCHREIBUNG BEDIENUNGSKNÖPFE DES ELEKTROBACKOFENS
Der Elektrobackofen wird von zwei Bedienungsknopfen kontrolliert: Bedienungsknopf zur Funktionenwahl und Thermostat-Bedienungsknopf. These lauben die Wahl des geeignsten Heizungstyps für die verschiedene Kochanforderungen, mit entsprechender Einschaltung der passenden Heizelement und Einstellung der Temperatur auf den gewünschten Wert.


Die Position des Thermostat-Bedienungsknops fsetz den Zentrifugalventilator des Ofens in Betrieb. Unter den Bedienungsknopfen des Ofens befinden sich zwei Kontrollleuchten: Die grüne Kontrolleuche zeigt die Inbetriebsetzung des Ofens an. Die orangefarbene Kontrollleuche zeigt das Erreichen der voreingestellen Temperatur an. Die anschließenden Einschaltungen und Ausschaltungen der orangefarbene Kontrollleuche zeigen die automatische Intervention der Heizung zur Beibehaltung der Temperatur im Innern des Ofens auf dem mit dem Thermostat-Bedienungsknopf eingestellten Wert an.
Der Ofen ist mit einer Lampe zur Innbeleuchting ausgestattet. Wahrend des Betriebs ist die Lampe stets eingeschaltet: Zum Einsatzen der Lampe bei ausgeschalteten Ofen für die üblichen Reinigungserarbeiten drehen Sie den Funktionenwahl-Bedienungsknopf auf das Symbol
BESCHREIBUNG DER SYMBOLE DES FUNKTIONENWAHL-BEDIENUNGSKNOPFES

EINSCHALTEN DER LAMPE ZUR INNENBELEUCHTUNG DES OFENS

ELEMENT GRILL-VENTILATOR

HEIZELEMENT OBEN UND UNTEN

HEIZELEMENTE OBEN UND UNTEN - VENTILATOR

HEIZELEMENT OBEN

HEIZELEMENT-KONVEKTION

HEIZELEMENT UNTEN

AUFTAUEN

ELEMENT GRILL
BESCHREIBUNG BEDIENUNGSKNOPF DES HILFS-ELEKTROBACKOFENS
Eine Herdmodelle sind mit einem Hilfs-Elektrobackofen mit natürlicher Konvekti on ausgestattet, der mit nur einem Bedienungsknop kontrolliert wird. Dies erlaubt die Wahl des geeignetsten Heizungstyps für die verschiedeneen Kochanforderungen, mit entsprechender Einschaltung der passenden Heizelemente und Einstellung der Temperatur auf den gewündschen Wert. An demselben Bedienungsknop können auch die in der Tabelle beschriebenen Funktionen eingestellt werden.

Unter dem Bedienungsknopf des Hilfsofens befindet sich eine orangefarbene Kontrollleuche, diese zeigt das Erreichen der voreingestalten Temperatur an. Die anschließenden Einschaltungen und Ausschaltungen der orangefarbene Kontrollleuche zeigen die automatische Intervention der Heizung zur Beibehaltung der Temperatur im Innern des Hilfsofens auf dem mit dem Bedienungsknopf eingestellten Wert an.
Der Hilfsofen ist mit einer Lampe zur Innbeleuchung ausgestattet. Wahrend des Betriebs ist die Lampe stets eingeschaltet: Zum Einschalten der Lampe bei ausgeschalteten Ofen für die üblichen Reinigungsergebnissen drehren Sie den Funktionenwahl-Bedienungsknopf auf das Symbol
BESCHREIBUNG DER SYMBOLE DES HILFS-ELEKTROBACKOFEN-BEDIENUNGSKNOPFES

EINSCHALTEN DER LAMPE ZUR INNENBELEUCHTUNG DES OFENS

HEIZELEMENT OBEN
100÷260 HEIZELEMENT UNTEN UND OBEN

ELEMENT GRILL + DREHSPIESS

HEIZELEMENT UNTEN
VERWENDUNG UND PROGRAMMIERUNG DER DIGITALUHR DER ÖFEN
Der Programmierer kontrolliert elektronisch den Ofenbetrie. Die Programmierung des Displays erlaubt das Einschalten und Ausschalten des Ofens mit Wahl der gewünschten Uhrzeiten.

TASTER MINUTENZAHLER
TASTER GARZEIT
TASTER ENDE DER GARZEIT
TASTERHANDBETRIEB
TASTER WERTZUNAHME
+ TASTER WERTABNAHME
EINSTELLUNG DER UHRZEIT
Bei erstmaliger Benutzung des Ofens oder nach einem Ausfall des elektrischen Stroms blinkt das Display mit Anzeige von .00
Beim Drucken der Taste endet das Blinken des Displays. Beim Drucken innerhalb von 5
Sekunden der Tasten zur Änderung des Wertes - oder + erhält man die Erhöhung oder
Erniedrigung um eine Minute bei jedem einzelnen Drücken. Drücken Sie eine der beiden Tasten
zur Änderung des Wertes bis zum Erschinen der aktuellen Uhrzeit.
Vor jeder Einstellung des Programmierers sind die gewünschte Funktion und Temperatur zu wahren. Die Funktion ±bP ist nicht wirsam.
HALBAUTOMATISCHES GAREN
These Einstellung erlaubt nur das automatische Ausschalten des Ofens am Ende der Garzeit.
Beim Drücken der Taste leuchtet das Display auf und zeigt die Ziffern 品 Halten Sie gedrückt und betätigten Sie gleichzeitig die Tasten zur Änderung des Wertes oder zur Eingabe der Garzeit.
Beim Loslassen der Taste beginnt die Rechnung der programmierten Garzeit, und auf dem
Display erscheint die aktuelle Uhrzeit zusammen mit den Symbolen AUTO und
AUTOMATISCHE GARZEIT
These Einstellung erlaubt das vollautomatische Einschalten und Ausschalten des Ofens.
Beim Drücken der Taste gleucht das Display auf und zeigt die Ziffern Halten Sie gedrückt und betätigten Sie gleichzeitig die Tasten zur Änderung des Wertes oder +zur Eingabe der Garzeit.
Beim Drucken der Taste eischeint auf dem Display die Summe der aktuellen Uhrzeit plus der
Garzeit: Halten Sie gedrückt und betätigten Sie gleichzeitig die Tasten zur Änderung des Wertes oder zur Eingabe des Endes der Garzeit.
Beim Loslassen der Taste Gbeginnt die Rechnung der programmierten Garzeit, und auf dem
Display erscheint die aktuelle Uhrzeit zusammen mit den Symbolen AUTO und
Nach der Einstellung drücken Sie zur Kontrolle der verbliebenen Garzeit die Taste. Um die Uhrzeit des Garendes zu sehen, drucken Sie die Taste.
ENDE DER GARZEIT
Am Ende der Garzeit schaltet sich der Ofen automatisch aus, und gleichzeitig setzen sich ein Akustikmelder in Betrieb. Nach der Deaktivierung des Akustikmelders zeigt das Display wieder die aktuelle Uhrzeit zusammen mit dem Symbol, das auf die Rückkehr zum manuellen Betrieb des Ofens hinweist.


EINSTELLUNG DER AKUSTIKMELDER-LAUTSTARKE
Die Lautstarke des Akustikmelders kann eingestellt werden (3 Stufen), während dieser in Betrieb ist, undzar durch Drucken der Taste
DEAKTIVIERUNG DES AKUSTIKMELDERS
Der Akustikmelder stellt seinen Betrieb nach sieben Minuten automatisch ein. Der Melder kann auch manuell durch Drucken der Taste abgestellt werden.

Nach dem Drücken der Taste wird der Ofen wieder in Betrieb gesetzt. Zum Ausschalten sind der Funktionenwahl-Bedienungsknopf und der Thermostat-Bedienungsknopf in die Position zu stellen.
Es besteht auch die Möglichkeit, den Akustikmelder zu deaktivieren, indem eine beliebige Funktionstaste gedrück wird. Der Ofen wird ausgeschelt, und bzw unabhängig von der eingestillten Funktion und Temperatur, das Symbol AUTO blinkt. Um auch das Blinken des Symbols AUTO zu unterbrechen: Drücken Sie den Taster ,drehen Sie den Funktionen- und den Thermostat-Wahrschein in die Position
MINUTENZÄHLER
Der Programmierer kann auch als einfacher Minutenzahler verwendet werden.

Die Verwendung als Minutenzahler unterbricht nicht den Betrieb des Ofens am Ende der eingestillten Zeit.
Beim Drücken der Taste zeigt das Display die Ziffern 0:00 an. Halten Sie gedrückt und betätigten Sie gleichzeitig die Tasten zur Änderung des Wertes oder +Beim Loslassen der Taste beginnt die programmierte Rechnung, und auf dem Display erschienen die Symbole und.

Nach der Programmierung des Minutenzahlers zeigt das Display wieder die aktuelle Uhrzeit; zur Anzeige der Restzeit drucken Sie die Taste

Die Einstellung mit nicht folgerichtigen Werten wird logisch unterbunden (z.B. wird der Widerspruch zwischen einem Garzeitende und einer längeren Garzeitdauer vom Programmierer nicht angenommen).
LOSCHEN DER EINGESTELLTEN WERTE
Mit eingestelltem Programm halten Sie die Taste der zu loschenden Funktion gedrückt, während gleichzeitig der Wert 0-00 mit den Tasten zur Wertänderung - oder + erreicht wird. Das Löschen der Zeitdauer wird vom Display als Ende der Garzeit interpretiert.
ÄNDERUNG DER EINGESTELLTEN WERTE
Die für die Garzeit eingestellten Werte können zu jedem beliebigen Zeitpunkt geändert werden, und darüber durch Gedrückthalten der Funktionstaste und gleichzeitiges betätigten der Wertänderungstasten oder +
VERWENDUNG UND PROGRAMMIERUNG DER DIGITALUHR DER “TOUCHSCREEN” ÖFEN
Die Digitaluhr erlaubt die Programmierung der automatischen Einschaltung und Ausschaltung des Ofens.



These Programmiervorrichtung arbeitet nach dem "Touchscreen"-Prinzip. Halten Sie zur Aktivierung der Taste ein Fingerlied für eine Sekunden auf die Taste.
ERSTEINSCHALTUNG UND EINSTELLUNG DER UHRZEIT
Bei Ersteinschaltung sowie nach einem Stromausfall zeigt das Display und die Meldung AUTO im Blinkmodus an. Berühren Sie die Taste "Mode" bis zur Unterbrechung des Blinkens und betätigten Sie die Taten + / - zur Einstellung der Uhrzeit (beim Halten der Finger auf den Taten + / - wird die Schnelldurchlauffunktion aktiviert).
Zur Rücksetzung der Uhr in normale Betriebsbedingungen, wenn die Uhr bereits eingeschaltet ist, berühren Sie gleichzeitig die beiden Tasten +/- für mindestens zwei Sekunden, um in die Uhreinstellfung einzusteigen.
MANUELLE BEDIENUNG
These Funktion dient der Verwendung des Ofens ohne irgendine Programmierung.
Es besteht stets die Möglichkeit, von einer programmierten Funktion auf die Funktion "Manuale" (Hand) überzugehen, indem die Taste "Mode" gedrück wird. Wahlen Sie die Funktion "Manuale", wenn keine Verwendung von Garprogrammen gewünscht ist.
PROGRAMMIERUNG DES MINUTENZAHLERS
These Funktion dient dazu, einen Akustikalarm nach einer festgesetzten Zeit zur Verflügung zu haben, ohne den Betrieb des Ofens zu beeinträchtigen.
Die Digitaluhr kann auch als Minutenzahler verwendet werden:
- Berühren Sie die Taste "Mode" für mindestens 2 Sekunden, um das Programmiermen zu öffnen. Es erscheint das blinkende Symbol
- Betätigten Sie die Tasten +/- zur Einstellung der gewünschten Zeit. Das Display zeigt die Restzeit an. Der Minutenzahler startet automatisch, und das Symbol Åort auf zu blinken. Beim Erreichen der programmierten Zeit wird ein Akustikalarm von 7 Minuten Dauer ausgegeben, und das Symbol Å blinkt.
- Berühren Sie eine beliebige Taste zur Unterbrechung des Akustik signals oder die Taste "Mode" zum Löschen des Programms.
PROGRAMMIERUNG DER GARDDAUER
These Funktion erlaubt die Programmierung der Gardauer, sodass der Ofen am Ende des Garvorgangs automatisch abgeschaltet wird.
- Stellen Sie die vorgewählte Garfungtion und die Temperatur mit Hilfe der entsprechenden Kontrollknöppe ein.
- Berühren Sie die Taste "Mode", um das Programmiermenü zu öffnen. Bei erneuter Berührung erscheint die Meldung "Dur".
- Betätigten Sie die Tasten +/- zur Einstellung der Gardauer. Die Meldung "Auto" blinkt für die gesamte Dauer der Programmierphase. Nach 7 Sekunden startet das Garprogramm, und das Symbol leuchtet auf, während die Meldung "Auto" aufhört zu blinken.
Am Ende der programmierten Garzeit wird ein Akustikalarm von 7 Minuten ausgegeben, auf dem Display blinkt das Symbol AUTO, das Symbol goes aus, und der Ofen wird automatisch ausgeschaltet.
- Berühren Sie eine beliebige Taste zur Unterbrechung des Akustiksignals oder die Taste "Mode" zum Löschen des Programms.
PROGRAMMIERUNG DER GARDAUER UND DES ENDES DES GARVORGANS
These Funktion dient der Programmierung des Einschaltens des Ofens zu einer festgelegten Uhrzeit sowie seiner automatischen Abschaltung am Ende der Garzeit.
- Stellen Sie die vorgewählte Garfunktion und die Temperatur mit Hilfe der entsprechenden Kontrollnöffe ein.
- Berühren Sie die Taste "Mode", um das Programmiermen zu öffnen. Bei erneuter Berührung erscheint die Meldung "Dur".
- Betätigen Sie die Tasten / zur Einstellung der Gardauer.
- Bei Berührung der Taste "Mode" entscheidt die Meldung "end". Betätigten Sie die Tastes +/zur Einstellung de Uhrzeit für das Ende des Garvorgangs.
Die Meldung "Auto" blinkt für die gesamte Dauer der Programmierphase. Nach 7 Sekunden verlassst das Programm das Programmiermenu, und die Meldung "Auto" hört auf zu blinken. Beim Erreichen der Uhrzeit für den Beginn des Garvorgangs erscheidt auf dem Display das Symbol 出 , und der Ofen wird automatisch eingeschaltet.
Am Ende der programmierten Garzeit wird ein Akustikalarm von 7 Minuten ausgegeben, auf dem Display blinkt das Symbol AUTO, das Symbol goes aus, und der Ofen wird automatisch ausgeschaltet.
- Berühren Sie eine beliebige Taste zur Unterbrechung des Akustik signals oder die Taste "Mode" zum Löschen des Programms.
AKUSTIKMELDER
Am Ende jeder voreingestalten Funktion wird ein Akustikalarm ausgegeben, der nach 7 Minuten automatisch abgestellt wird. Berühren Sie die Taste "Mode", wenn die sofortige Unterbrechung des Akustikalarms gewünscht ist.
Es besteht die Möglichkeit zur Wahl unter 3 verschiedene Akustiksignalen. Zur Änderung Berühren Sie gleichzeitig die Tasten + / - , Berühren Sie anschließend die Taste "Mode" bis zum Erscheinen der Anzeige "Tone" auf dem Display. Wahlen Sie den gewünschten Ton durch Berühren der Taste -
VERWENDUNG UND PROGRAMMIERUNG DER DIGITAL-/ANALOGUHR DER ÖFEN
Die Digitaluhr erlaubt die Programmierung der automatischen Einschaltung und Ausschaltung des Ofens.

TASTE MINUTENZAHLER
TASTE ENDE DER GARZEIT
TASTER FÜR UHRZEITEINSTELLUNG UND RESET
TASTE ZUR ERNIEDRIGUNG DES WERTES
+ TASTE ZUR ERHÖHUNG DES WERTES
ERSTEINSCHALTUNG UND EINSTELLUNG DER UHRZEIT
Bei Ersteinschaltung sowie nach einem Stromausfall blinkt das Display. Drücken Sie die Taste bis zur Unterbrechung des Blinkens und betätigten Sie die Taten +/- zur Einstellung der Uhrzeit (beim Halten der Finger auf den Taten +/- wird die Schnelldurchlauffunktion aktiviert).
MANUELLE BEDIENUNG
These Funktion dient der Verwendung des Ofens ohne irgendeine Programmierung.
Es besteht stets die Möglichkeit, von einer programmierten Funktion auf die Funktion "Manuale" (Hand) überzugehen, indem die Taste gestrukt wird. Wahlen Sie die Funktion "Manuale", wenn keine Verwendung von Garprogrammen gewünscht ist.
PROGRAMMIERUNG DES MINUTENZÄHLERS
These Funktion dient dazu, einen Akustikalarm nach einer festgesetzten Zeit zur Verflugung zu haben, ohne den Betrieb des Ofens zu beeinträchtigen.
Die Digital-/Analoguhr kann auch als Minutenzahler verwendet werden:
- Beim Drücken der Taste leuchtet das Display auf, wie zu sehen in Abb. 1.
- Betätigen Sie die Tasten / zur Einstellung der gewünschten Zeit, das Display beleucht ein Segment für jeder eingestellte Minute (in Abb. 2 werden 10 Minuten Garzeit dargestellt). Der Minutenzahler startet automatisch, und das Symbol hert auf zu blinken. Nach weniger Sekunden kehr das Display zur Uhrfungtion darüber.
- Drücken Sie zur Anzeige der Restzeit. Beim Erreichen der programmierten Zeit wird ein Akustikalarm von 7 Minuten Dauer ausgegeben, und das Symbol blinkt.
- Drucken Sie die Taste zRücksetzung des Programms.

Abb.1

Abb.2
PROGRAMMIERUNG DER GARDAUER

These Funktion erlaubt die Programmierung der Gardauer, sodass der Ofen am Ende des Garvorgangs automatisch abgeschaltet wird.
- Stellen Sie die vorgewählte Garfunktion und die Temperatur mit Hilfe der entsprechenden Kontrollnöpfie ein.
- Drücken Sie die Taste um das Programmiermen zu öffnen, das Display leuchtet auf wie zu sehen in der Abb. 3.
- Betätigten Sie die Tasten + / - zu Einstellung der Gardauer. Bei jedem Drücken der Taste + wird eine Minute Garzeit hinzugeführ, und allezwölf Minuten leuchtet ein Innensegment auf (Abb. 4). Nach 7 Sekunden startet das Garprogramm, und das Symbol Heuchtet auf. Am Ende der programmierten Garzeit wird ein Akustikalarm von 7 Minuten ausgegeben, das Symbol und die Zahlen des Quadranten beginnen zu blinken, und der Ofen wird automatisch ausgeschelt.
- Drücken Sie eine beliebige Taste zur Unterbrechung des Akustiksignals oder die Taste © zum Löschen des Programms.

Abb.3

Abb. 4
PROGRAMMIERUNG DER GARDAUER UND DES ENDES DES GARVORGANS

These Funktion dient der Programmierung des Einsatzs des Ofens zu einer festgelegten Uhrzeit sowie seiner automatischen Abschaltung am Ende der Garzeit.
Stellen Sie die vorgewählte Garfunktion und die Temperatur mit Hilfe der entsprechenden Kontrollknöpfie ein.
Definieren Sie zusätzlich zur Einstellung der Garzeitdauer auch die Einschaltuhrzeit des Ofens:
- Drücken Sie die Taste um das Programmiermenü zu öffnen, das Display leuchtet auf wie zu setzen in der Abb. 3, und das Symbol leuchtet auf.
- Betätigen Sie die Tasten +/- zu Einstellung der Gardauer. Bei jedem Drücken der Taste + wird eine Minute Garzeit hinzugeführ, und allezwif Minuten leuchtet ein Innensegment auf (Abb. 4).
- Drücken Sie erneut die Taste und betätigten Sie die Tasten +/ - zu Definition der Garende-Uhrzeit (Garende-Uhrzeit minus Gardauer = Garbeginn-Uhrzeit), das Symbol leuchtet auf. Nach 7 Sekunden zeigt das Display die aktuelle Uhrzeit an. Die Garbeginn-Uhrzeit und die Gardauer werden durch das Aufleuchten der Innensegmente angezeigt, die bis zum Garbeginn fix bleiben und für die gesamte Gardauer blinken.
Zur eingestellten Uhrzeit wird der Ofen automatisch eingeschaltet. Am Ende der programmierten Garzeit wird ein Akustikalarm von 7 Minuten ausgegeben, die Symbole und die Zahlen des Quadranten beginnen zu blinken, und der Ofen wird automatisch ausgeschaltet.
- Drücken Sie eine beliebige Taste zur Unterbrechung des Akustiksignals oder die Taste © zum Löschen des Programms.
In Abb. 5 ist ein Programmierbeispiel wiedergegeben: Die aktuelle Uhrzeit ist 7:06, der Garzeit-Beginn ist für 8 Uhr programmiert, Garzeit-Ende ist um 9 Uhr.
Um 8 Uhr beginnen die Innensegmente zwischen 8 und 9 zu blinken, der Stundenzeiger bleibt fix.

Abb.5
AKUSTIKMELDER
Am Ende jeder voreingestalten Funktion wird ein Akustikalarm ausgegeben, der nach 7 Minuten automatisch abgestellt wird. Drücken Sie die Taste, wenn die sofortige Unterbrechung des Akustikalarms gewünscht ist.
Es kann aus 7 verschiedene Akustiksgenialypen gewählt werden. Zu Änderung drucken Sie für mindestens 7 Sekunden die Taste-. Bei jedem weiteren Drucken der Taste -ändert sich der Ton.
HELLIGKEIT
Es besteht die Möglichkeit, die Helligkeit der Uhr einzustellen. Drücken Sie gleichzeitig für mindestens 5 Sekunden die Tasten und undändern Sie die Helligkeit des Quadranten anschließend mit Hilfe der Tasten + -
GRAFIK
Es besteht die Möglichkeit, die Graphik der Uhr zuändern. Drücken Sie gleichzeitig die Tasten und und bringen Sie anschließend mit Hilfe der Taste + die gewünschte Graphik in die Anzeige.
6. Bedienung der Kochfläche

Stellen Sie sicher, dass die Flammenverteilerkränze, die Brennerdeckel und die Roste korrekt montiert sind.

Während des Normalbetriebs heizt sich das gerät betrachtlich auf: Es sind daher entsprchende Vorsichtsmaßnahme zu ergreifen. Kinder sind fernzuhalten. Überwachen Sie die Kochfläche für die gesamte Betriebszeit.
6.1 Anzünden der Brenner

Alle Bedienungsknöpfe der Kochflächen-Brenner sind mit folgenden Symbolen versehen:
Hahn geschlossen
Maximale Flamme
Minimale Flamme
Die Mindestflammenposition befindet sich am Ende der Gegenuhrzeiger-Drehung des Bedienungsknopfes. Sämtliche Zwischenpositionen sind zwischen der maximalen und der minimalen Flamme zu wahlen, niemals zwischen der maximalen und der Schließposition.
6.1.1 Elektrozündung (One Touch)
Die Kochflächen-Brenner sind mit dem "One-Touch"-Zündsystem ausgestattet. Zum Anzüden eines der Brenner drücken Sie den Bedienungsknopf in Übereinstimmung mit dem gewählten Brenner und drehen diesen im Gegenuhrzeigersinn bis zur Mindestposition Beim Gedrückthalten des Bedienungsknopf wird das automatische Zündsystem des Brenners aktiviert. Nach dem Zünd des Brenners halten Sie den Bedienungsknopf für zirka 10 Sekunden gedrückt, so dass die Öffnung des Sicherheitsventils ermöglicht wird. Beim Fehlen des elektrischen Stroms kann der Brenner auch mit einem Streichholz gezündet werden (siehe Abschnitt "6.1.2 Manuelles Zünd").

Sollte der Brenner unbeabsichtigt ausgehen, spricht das Sicherheits-Thermoelement an und sperrt den Gasaustritt, auch bei geöffnetem Hahn.

Die Vorrichtungarf nicht fur mehr als 15 Sekunden betatigt werden. Wenn der Brenner nach Ablauf dieser Zeit noch nicht an ist, stellen Sie die Betatigung der Vorrichtung ein, luften den Raum und warten 1 Minute bis zur Durchführung eines neuen Einschaltversuchs. Bei unbeabsichtigtem Löschen der Flamme des Brenners drehen Sie den Bedienungsknopf zu und versuchen Sie keine Wiedereinschaltung des Brenners fur mindestens 1 Minute.
6.1.2 Manuelles Zünden
Zum Zünden eines der Brenner nahern Sie ein angezündetes Streichholz dem Brenner, drücken den Bedienungsknopf in Übereinstimmung mit dem vorgewählten Brenner und drehen den Knopf im Gegenahrzeigersinn bis zur Mindestposition Lassen Sie den Bedienungsknopf los.
6.2 Ausschalten der Brenner
Am Ende der Kochzeit stellen Sie den Bedienungsknopf auf die Position zurück.
7. Benutzung des Induktionsherds
Der Herd ist mit einem Strahlungsgenerator für jeder Kochfeld ausgestattet. Jeder Generator unter der Kochfläche aus Glaskeramik erzeugt ein elektromagnetisches Feld, das einen Wärnestrom am Boden des Topfes induziert.
Beim Induktionskochverfahren wird die Wärme nicht durch eine Wärmequelle übertragen, sondern durch die Induktsströme direkt im Innern des Behalters erzeugt.

Vorteile des Induktionsherds:
- Energieersparnis im Vergleich zu herkömmlichen Elektro- und Gasherden dank der direkten Energieübertragung auf den Topf.
- Höhere Sicherheit dank der Energieübertragung nur auf den auf das Kochfeld gesetzten Behälter.
- Hoher Wirkungsgrad bei der Energieübertragung vom Induktionskochfeld zum Topfboden.
Hohe Erhitzungsgeschwindigkeit. - Geringe Gefahr von Verbrennungen, da die Kochfläche nur am Topfboden erhitz wird.
- Lebensmittelreste können nicht auf dem Kochfeld einbrennen.
7.1 Allgemeine Hinweise
Entfernen Sie alle Haftetiketten und eventuellen Leimreste von der Glasoberfläche der Platte.
Stellen Sie vor dem Anschluss des Gerätes an die elektrische Stromversorgung sichere mindestens 2 Stunden bei Raumtemperatur zu halten.

Träger von Herzschrittmachern oder sonstigen ähnlichen Vorrichtungen haben sicherzustellen, dass der Betrieb ihrer Geräte nicht durch das Induktionsfeld, dessen Frequenzband zwischen 20 und 50kHz liegt, beeinträchtigt wird.
Vermeiden Sie das Tragen metallischer Gegenstände und von Schmuckstücken in direktem Kontakt mit dem Körper. Diese können beim Eintreten in das Strahlfeld der Induktionsvatte überhitzen und Verbrennungsgefahr herbeiführen. Bei nicht magnetisierbaren Metallen (z.B. Gold oder Silber) besteht diese Gefahr nicht.
Die mit Magnetband ausgestatteten Objekte (Kreditkarten, Ausweise, Datenträger usw.) dürfen sich nicht in der Höhe des Gerätes befinden, wenn diese eingeschaltet ist.
Erhitzen Sie keine Dosen oder sonstigen geschlossenen Behälter. Wahrend des Kochens konnen Überrücke im Innern der Behälter entstehen und Explosionsgefahr herbeiführen.
Legen Sie keine metallischen Gegenstände wie Töppe oder Besteck auf die Oberfläche des Induktionsherds, da diese überhitzen und Verbrennungsgefahr herbeiführen können.
Zur Vermeidung von Überhitzungen und Verbrennungen darf das Gerät in keinem Fall mit Lappen oder Schutztuchern bedeckt werden.
Verwenden Sie die Glasoberfläche der Platte nicht als Ablage- oder Arbeitsbereich.
Stellen Sie sicher, dass die Verkabelungen anderer fester oder beweglicher Geräte keinen Kontakt mit der Glasoberfläche des Geräts hat.

Eventuelle Schäden am Gerät aufgrund der Verwendung nicht für Induktionsherde geeigneter Töppe oder zwischen Topf und Strahlelement gesetzten, abnehmbaren Zubehör's führen zum Verfall der Garantie. Der Hersteller kann für keinerlei Schaden an der Kochplatte aufgrund einer nicht korrekten Verwendung haftbar gemacht werden.
7.2 Automatische Verteilung der Strahlungsleistung
Die maximale anwendbare Leistung wird zwischen den aktiven Strahlelementen verteilt. Die zuletzt eingestellte Leistungsstufe hat Priorität über die vorhergehenden Einstellungen der anderen Strahlelemente.
Die automatische Verteilung erfolgt zwischen den drei Strahlelementen auf der linken Seite (A) und den zwei Strahlelementen auf der rechten Seite (B).

| A B | |||||
| STRAHLELEMENT | 1Ø 145 | 2Ø 180 | 3Ø 260 | 2Ø 180 | 4Ø 210 |
| LEISTUNG (W) | 1400 1600 | 2400 1600 | 2300 | ||
| LEISTUNG MIT “BOOSTER"-FUNKTION (W)(Bez. Abschnitt "7.6.3") | 1800 3000 | 3200 3000 | 3200 | ||
| MAXIMAL LIEFERBARE GESAMTLEISTUNG (W) | 3700 3700 | ||||
| GEWÄHLTE LEISTUNGSSTUFE | 1 | 2 | 3 | 4 | 5 | 6 | 7 | 8 | 9 | ||||||||||||||||||||||||||||||||||||||||||||||||||||||||||||||||||||||||||||||||||||||||||||||||||||
| % ABGEGBENE LEISTUNG | 3 | 6.5 | 11 | 15.5 | 19 | 31.5 | 45 | 64.5 | 100 | ||||||||||||||||||||||||||||||||||||||||||||||||||||||||||||||||||||||||||||||||||||||||||||||||||||
Bei Verwendung mehrerer Leistungselemente möglichst es vorkommen, dass das letzte aktivierte Element den eingestellen Wert zum Nachteil der anderen zuvor eingestellen Elemente beibehalt, bei denen es effektiv zu einer Leistungsreduzierung kommt können. Bei Aktivierung des letzten Strahleelements beginnen die Werte auf den Displays der zuvor eingestellen anderen Elemente entsprichend zu blinken und zeigen automatisch den abgegebenen neuen und niedrigeren Leistungswert an. Soltte der Heizwert eines beliebigen Strahleelements manuell reduziert werden, wird die Leistungsdifferenz auf die übrigen Elementen verteilen.

Der Garvorgang lauft mit den automatisch eingestellten neuen Leistungswerten weiter, was je nach dem Typ der Lebensmittel zu berücksichtigten ist.
7.3 Tabelle zur Benutzung den Energiereglerknopf
In der nachstehenden Tabelle werden die Leistungswerte, die eingestellt werden konnen, jeweils mit dem Gericht, das zubereitet werden kann, angegeben. Die Werte konnen je nach der Menge der Lebensmittel und dem persönlichen Geschmack variieren.

| 1-2 | Erhitzen von Lebensmitteln, Beibehaltung des Kochens kleiner Wassermengen, Aufschlagen von Eigelb oder Butter. |
| 3-5 | Garen fester und flüssiger Lebensmittel, Kochenlassen von Wasser, Auftauen von Tiefgefrenem, Omelettes mit 2-3 Eiern, Gerichte mit Obst und Gemüse, sonstige Gerichte. |
| 6-8 | Garen von Fleisch, Fisch und Gemüse in Sauce, Gerichte mit mehr oder weniger Wasser, Zubereitung von Marmeladen usw. |
| 9 | Fleischbraten oder Fisch, Steaks, Leber, Anbraten von Fleisch oder Fisch, Eier usw. |
| P | Frittieren von Kartoffeln im Ölbad, schnelles Aufkochen von Wasser. |
7.4 Erstes Einschalten des Induktionsherds
Reinigen Sie das Gerät mit einem feuchten Lappen und trocknen sorgfältig.
Verwenden Sie keine Reinigungsmittel, die anomale Verfürbungen des Glases verursachen konnten.
Zum Zeitpunkt der ersten Einschaltung leuchten die Displays aller Strahlelemente gleichzeitig und zeigen das Symbol wie in der Abbildung darestellt an. Die Displays gehen sofort aus, ohne irgendine akustische Meldung auszugegeben.







Wenn sich zum Zeitpunkt der ersten Einschaltung ein oder mehrere Drehknöpfe nicht in der Position "0" befinden sollenn, leuchten die zugehörigen Displays regula r auf, aber das Strahlelement setzt sich nicht in Betrieb.
Beim Drehen des Knopfes erscheint auf dem zugehörigen Display das in der Nebenstehenden Abbildung gezeigte Symbol, das den Betriebsausfall des Strahleelements meldet. Das Element kann erst in Betrieb gehen, nachdem der Drehknopf wieder in die Position "0" gestellt und ein neuer gewünschter Leistungswert eingestellt wurde.

7.5 Erkennen des Topfes
Ein elektronischer Sensor erfasst das Vorhandensein oder das Fehlen des Topfes auf dem Strahlelement. Wenn der Topf ungeeignet zum Kochen durch magnetische Induktion ist (siehe Abschnitt "7.5.1") oder wenn der Topf zu Klein ist (siehe Tabelle "MINDESTDURCHMESSE" auf Seite 146), erscheint das in der Nebenstehenden Abbildung gezeigte Symbol.
Wenn während des Garvorgangs der Topf vom Strahlelement entfernt wird, ohne dass der zugehörige Drehknopf in die Position "0" gestellt wurde, dann wird der zuvor eingestellte und auf dem zugehörigen Display angezeigte Wert automatisch durch das Symbol ersetzt.
Wenn der Topf korrekt auf das Strahlelement zusückgestellt wird, goes das Symbol aus, und der Garvorgang wird normal wieder aufgenommen. Andernfalls goes das Symbol nach 10 Minuten gleichfalls aus. Zur erneuten Verwendung des Strahlelements ist jedoch der zugehörige Drehknopf in die Position "0" zu stellen und ein neuer gewünschter Leistungswert einzustellen.
Sollte ein Drehknopf in eine beliebige Position gedrecht werden, erscheidt vor dem Stellen des Topfas auf das Strahlelement der eingestellte Leistungswert, der jedoch sofort ersetzt wird durch das Symbol (das Strahlelement bleibt für 10 Minuten in Wartestellung). Wenn zwischenheitlich ein Topf korrekt auf das Strahlelement gesetzt wird, beginnt der Garvorgang. Andernfalls wird das Strahlelement nicht aktiviert, und das Symbol goes aus. Zur erneuten Verwendung des Strahlelements ist der zugehörige Drehknopf in die Position "0" zu stellen und ein neuer gewünschter Leistungswert einzustellen.
Topferkennungsgrenzen: Der Durchmesser des Topfodens wird durch einen Umfang auf dem Kochfeld markiert.

| 1 Ø 145 | 2 Ø 180 | 3 Ø 260 | 4 Ø 210 | ||
| MINDEST- DURCHMESSER (mm) | 120 | 145 | 180 | 145 | |

7.5.1 Für Induktionsherde geeignete Töpfe
Die Hersteller liefern grundsätzliche Angaben zur Eignung der Kochbehältnisse für Induktionsherde. Das darüber hende Piktogramm gibt ein Beispiel zur Eignung fur Induktionsherde. Normalerweise befindet es sich am Boden des Behaltnisses.
Verwenden Sie nur Behältnisse mit passenden, vollkommen ebenen und glatten Böden für Induktionsherde.
Die für Induktionsherde verwendeten Behälter müssen aus Eisenlegierungen oder Ferritstählen beschaffen sein, magnetische Eigenschaften aufweisen und einen ausreichend starken Boden haben.
Zur Überprüfung, ob der Topf geeignet ist, reicht es aus, einen Magneten dem Boden anzunahern: Wenn der Magnet angezogen wird, ist der Topf für Induktionsherde geeignet. Wenn kein Magnet zur Verfügung stehen, kann ein kleine Menge Wasser in den Behälter gegeben, dieser auf ein Kochfeld gestellt und letzteres eingeschaltet werden.
Eineige Behaltnisse konnen Gerausche verursachen, wenn sie auf ein Induktionskochfeld gestellt werden. Dies bedeutet nicht, dass der Induktionsherd defekt ist oder nicht einwandfrei Funktioniert.
GEEIGNETE BEHÄLTER UNGEEIGNETE BEHÄLTER
- Behalter aus lackierten Ferritstahlen mit starkem Boden.
- Behälter aus Gusseisen mit lackiertem Boden.
-
Behalter aus mehrschichtigem Inox-Stahl oder rosfreiem Ferritstahl und Aluminium mit Spezialboden für Induktionsherde.
-
Behalter aus Kupfer, Inox-Stahl, Aluminium, Thermoglas, Holz, Keramik und Terrakotta.
7.6 Einsatz eines Strahlelements
Stellen Sie vor der Aktivierung eines Strahlungselements einen passenden Topf auf das entsprechende Kochfeld.
Beim Drehen eines beliebigen Drehknopfs im Uhrzeigersinn wird ein akustisches Signal ausgegeben, und alle Displays schalten sich ein. Das dem betätigten Drehknopf entsprechende Display zeigt den gewährten Leistungswert an. Auf allen anderen Displays erscheidt hingegen der Wert
Beim Drehen eines zweiten Knopfes wird keinerlei akustisches Signal ausgegeben, und auf dem Display erscheint der für diesen Drehknopf eingestellte Leistungswert.
7.6.1 Änderung der Leistungsstufen
Jeder Drehknopf weist eine Inkrement-Gradskala im Uhrzeigersinn von Stufe "0" bis Stufe "9". Die Heizleistung der Strahlelemente wird erhöht durch Drehen eines beliebigen Drehknopfes im Uhrzeigersinn ausgegehend von der Position "0" beziehungsweise erniedrigt durch Drehen des Drehknopfes im Gegenuhrzeigersinn in Bezug auf die erreichte Position.
Die "Default"-Position des Drehknopfes entspricht der Stufe "0" (Wert auf dem zugehörigen Display). Beim Drehen des Knopfes erscheint die gewählte Leistungsstufe auf dem zugehörigen Display.

Beim Drehen des Knopfes im Uhrzeigersinn über die Leistungsstufe "9" hinaus erfolgt eine mechanische Auslösung zusammen mit einem Akustiksignal, welche die auf dem Display mit dem Symbol bezeichnete Funktion "Booster" freigibt. Positionieren Sie anschließend den Drehknopf auf die Stufe "9" (siehe Abschnitt "7.6.3").

7.6.2 Schnellheizfunktion
These Funktion erlaubt das schnellere Erreichen der gewünschten Leistungsstufe, bleibt aber nur für eine sehr begrenzte Zeitdauer aktiv.
Ausgehend von der Position "0" drehen Sie den Knopf im Gegenuhrzeigersinn bis zum Erhalt einer mechanischen Auslösung und haltenihn für 2 Sekunden in dieser Position. Das Display leucht auf und zeigt das Symbol an der Seite. Ab thisem Zeitpunkt stehen 10 Sekunden zur Verfügung, um den Knopf auf die gewünschte Leistungsstufe zu drehen. Das Display beginnt blinken und zeigt damit abwechselnd das Symbol A und die mit dem Drehknopf eingestellte Leistungsstufe.

Die nachstehende Tabelle zeigt die Schnellheizteiten mit Bezug auf die gewählten Leistungsstufen.
| GEWÄHLTELEISTUNGSSTUFE | 1 2 3 4 5 6 7 8 9 |
| DAUER IN SEKUNDEN | 48 144 230 312 408 120 168 216 - |

7.6.3 Funktion "Booster"
Drehen Sie den Knopf im Uhrzeigersinn über die Leistungsstufe "9" hinaus bis zum Erhalt einer mechanischen Auslösung zusammen mit einem Akustiksignal (am Display erscheint das nebenstehende Symbol). Positionieren Sie anschließend den Drehknopf auf die Stufe "9".
Der Drehknopf muss wieder korrekt auf die Stufe "9" positioniert werden. Andernfalls wird das am Display angezeigte Symbol durch den Fehlercode 1 ersetzt, der die Deaktivierung des Strahleelements meldet. Zur Rücksetzung des Strahleelements folgen Sie den Anweisungen im Abschnitt "7.6.7".

Die maximale Heizdauer mit der Funktion "Booster" beträgt 10 Minuten.
Am Ende der maximalen Heizdauer blinkt das Symbol für eineuge Sekunden, und die Leistung wird automatisch neueingestellt mit Anzeige des Wertes auf dem Display.
Bei aktivierter Funktion "Booster" ist die Wiederholung mehrerer aufeinanderfolgender Zyklen möglich.

7.6.4 Resthitze
Nach Abschluss eines Garvorgangs und Positionierung des Drehknopfes auf den Leistungswert "0" zeigt das Display des Strahleelements das darübersehende Symbol abwechselnd mit dem Wert 0 an, um darauf hinzuweisen, dass das Strahlelement gerade verwendet wurde und noch ziemlich heißt ist.
Das Symbol H blinkt für einige Sekunden, wird danach fix und bleibt einige Sekunden lang eingeschaltet, bis die Glastemperatur unter das Sicherheitslevel gesunken ist.
7.6.5 Belüftung
Der Kuhlventilator wird automatisch aktiviert und startet bei niedriger Geschwindigkeit, sobald die Werte der elektronischen Vorrichtungen eine bestimmte Schwelle überschreiben. Bei Intensivnutzung des Induktionsherdes Funktioniert der Ventilator bei hoher Geschwindigkeit. Der Ventilator arbeitet wieder langsamer und schaltet automatisch ab, sobald die elektronischen Vorrichtungen automatisch abgekühlt sind.
7.6.6 Überhitzung
Der Induktionsherd verfügt über eine Sicherheitsvorrichtung gegen die Überhitzung der internen Elektronik. Diese Vorrichtung erfordert keine Beachtung durch den Benutzer und erlaubt die weitere problemlose Verwendung des Herds.
7.6.7 Deaktivierung eines einzelnen Strahlelements
Beim Drehen eines beliebigen Knopfes im Gegenuhrzeigersinn und Halten desselben in dieser Position für mehr als 30 Sekunden erscheint auf dem zugehörigen Display das(NO) Nebenstehende Symbol, um die Deaktivierung des zugehörigen Strahleelements anzuzeigen.



Sollte ein Drehknopf nicht korrekt positioniert werden, erscheint am entsprechenden Display der Fehlercode, der die Deaktivierung des Strahleelements meldet. Es ist nicht notwendig, den Kundendienst zu rufen. Zur Rücksetzung des Strahleelements ist der Drehknopf in die Position "0" zu stellen und ein neuer gewünschter Leistungswert einzstellen.
Die Verwendung dieser Funktion empfeht sich, um das einzeln Schraht element bei Betriebsstörungen desselben auszuschreiben.
Nach der Reparatur des Strahlelements durch den autorisierten Kundendienst ist es möglich, diese wieder zu aktivieren, indem ermut der Knopf im Gegenuhrzeigersinn gedreht und diese Position für mehr als 30 Sekunden beibehalten wird.
7.7 Automatische Abschaltung
Von der letzten gewährten Leistungsänderung wird ein automatischer Zähler aktiviert, der die maximale Heizdauer bestimmt. Diese Dauerändert sich je nach der gewährten Leistungsstufe.
Sollte ein Strahlelement unbeabsichtigt eingeschaltet bleiben (mit Vorhandsein eines korrekt positionierten Topfes) schaltet these automatisch ab, sobald die maximale Heizdauer mit Bezug auf die gewährte Leistung erreicht wird.
| GEWÄHLTE LEISTUNGSSTUFE | 1 | 2 | 3 | 4 | 5 | 6 | 7 | 8 | 9 | P |
| HÖCHSTZEIT IN MINUTEN | 360 | 360 | 300 | 300 | 240 | 90 | 90 | 90 | 90 | 10 |
7.8 Manuelle Abschaltung
Drehen Sie den Knopf in die Position "0". Auf allen Displays erscheint ein blinkender Punkt wie in der bereits henden Abbildung gezeigt. Nach 15 Sekunden schalten alle Displays ab und geben ein Akustiksignal aus. Das Gerät schaltet auf "Standby".


7.9 Kindersicherung
Es ist möglich, die Strahlelemente zu deaktivieren. Drehen Sie gleichzeitig die ersten beiden Knöppe links im Gegenuhrzeigersinn und halten diese für mindestens 2 Sekunden in dieser Position, bis auf allen Displays das Symbol lerscheint.
Nach einigen Minuten gehen die Symbole aus. Durch Drehen eines beliebigen Knopfes werden die obengenannten Sperrsymbole jedoch erneut auf allen Displays vorgegeben, und die Strahlelemente werden nicht aktiviert.


Die Deaktivierung ist zeitlich unbegrenzt. Eine langere Unterbrechung der elektrischen Stromversorgung kann die vorgenommene Deaktivierung annulieren.
Zur Wiederaktivierung der Strahlelemente drehen Sie erneut gleichzeitig die ersten beiden Knöpfle links im Gegenuhrzeigersinn.
7.10 Bei Defekten und Störungen

Bei Feststellung einer Betriebsstörung schalten Sie das Gerät ab und trennen es vom elektrischen Stromnetz.
Versuchen Sie bis zur Reparatur durch den autorisierten technischen Kundendienst nicht, das defekte Strahlelement wiederzuverwenden.
Jegliche Reparatur ist ausschließlich durch Fachpersonal auszuführen. Öffnen Sie das Gerät aus keinem Grund.
Wenn die Glasoberfläche Sprünge/Risse aufweist, schalten Sie das Gerät unverzüglich ab, um die Gefahr elektrischer Stromschläge auszuschreiben, und rufen Sie den technischen Kundendienst an.
Bei Störung eines Strahleelements sind alle verbleibenden Strahlelemente normal verwendbar.
Zum Löschen des Fehlercodes vom Display stellen Sie alle Drehknöpfe in die Position "0" und stellen Sie neue Leistungswerte ein.
Das nachstehende Verzeichnis (Seite 151) umfasst die haufigsten Störungen, deren Ursachen sich vom Benutzer oder den technischen Kundendienst beheben让他们.
| STÖRUNG ursache BEHELF | |||
| Die Kochplatte oder die Kochfelder schaltet/n sich nicht ein. | Das Gerät ist nicht korrekt an das Stromnetz angeschlossen. | Stellen Sie den korrekten Anschluss an das Stromnetz her. | |
| Die Kochplatten-Sperrfunktion wurde aktiviert. | Nehmen Sie die Deaktivierung der Sperre unter. Befolgen der entsprechenden Anweisungen im Abschnitt 7.9 vor. | ||
| Auf dem Display erscheint das nebenstehende Symbol. | Es befindet sich kein Behältnis auf dem Kochfeld. | Stellen Sie einen geeigneten Behälter korrekt auf. Befolgen Sie dazu die entsprechenden Anweisungen im Abschnitt 7.5 | |
| Das Behältnis ist nicht zum Kochen mit magnetischer Induktion geeignet. | Ersetzen Sie das Behältnis durch ein geeignetes wie angegeben im Abschnitt 7.5 | ||
| Der Durchmesser des Behältnisbodens ist zu Klein für das Kochfeld. | Ersetzen Sie das Behältnis durch ein geeignetes wie angegeben im Abschnitt 7.5 | ||
| Auf dem Display erscheint das nebenstehende Symbol. | Der Drehknopf ist nicht korrekt positioniert. | Es ist nicht notwendig, den Kundendienst zu rufen. Zur Rücksetzung des Strahleelements ist der Drehknopf in die Position "0" zu stellen und ein neuer gewünschter Leistungswert einzustellen. | |
| Auf dem Display erscheint der nebenstehende Code, gebildet abwechselnd aus Ziffern oder Buchstaben. | Kontaktieren Sie den Kundendienst und teilen thisem den am Display angezeigten Code mit. | ||
| Die Kochplatte oder das Kochfeld liegt aus. | Die Sicherheitsvorrichtung wurde ausgelöst. Die Vorrichtung wird ausgelöst, wenn vergessen wird, ein Kochfeld auszuschalten. | Stellen Sie den zum Kochfeld gehörenden Knopf in die Position "0" darüber. | |
| Ein leeres Kochbehältnis wurde überhitzt. | Entfern den Sie das leere Behältnis vom Kochfeld. | ||
| Nach dem Abschalten der Kochplatte bleibt der Kühlventilator in Betrieb. | Es handelt sich nicht um einen Defekt. Der Ventilator lauft weiter, bis die Kochplatte abgekühlt ist. Der Ventilator automatisch ab. | ||
8. Benutzung der Öfen
8.1 Allgemeine Hinweise

Wenn Ofen oder Grill in Betrieb sind, konnen Außenwände und Tur des Ofens sehr heißt werden: Kinder sind unbedingt fern vom gerät zu halten.
Erlauben Sie Kinder nicht, sich auf die Ofentür zu setzen oder mit dieser zu speilen. Verwenden Sie die Tur nicht als Hocker.
Lassen Sie niemals Behälter oder Folie aus Aluminium am Boden des Ofens. Der Lack könnte ernsthaft beschädigt werden.
Garen Sie die Lebensmittel möglichst nicht im unteren Bereich des Ofens.
Bei Erstbenutzung des Ofens oder nach einem Ausfall des elektrischen Stroms blinkt das Display gleichmäß intermittierend mit der Anzeige von . Zuo Einstellung ist bezug auf den Abschnitt "EINSTELLUNG DER UHRZEIT" auf Seite 135 zunehmen.
Versuchen Sie nicht, die Ofentür abzumontieren, ohne sorgfältig die entsprichenden Anweisungen gelesen zu haben (lesen Sie dazu den Abschnitt "11.1 Ausbau der Ofentür"): Es besteht Verletzungsgefahr für die Höhe an den Scharnieren der Ofentür.

AUSFALL DER OFENHEZUNG
Falls die Ofenheizung während des Betriebs unterbrochen werden und das Programmier-Display zu blinken beginnen und sich auf null stellen sollen, ist wie folgt vorzugehen:
- Stellen Sie sicher, dass die Stromzufuhr nicht unterbrochen wurde.
Sollte sich nach dem Neustart des Kochprogramms die Blockierung wiederholen, bedeutet dies, dass die Sicherheitsvorrichtung ausgelöst wurde. Diese Vorrichtung spricht bei einem Defekt des Thermostats an und vermeidet die Überhitzung des Ofens.itte versuchen Sie auf keinen Fall eine erneute Wiedereinschaltung und behmen Sie umgehend Kontakt mit dem nachsten Kundendienstzentrum auf.
8.2 Schublade für Zubehör (erhaltlich nur bei einigen Modellen)
Die Herde sind mit einer Schublade unter dem Ofen ausgestattet. Bringen Sie nur das Herdzubehör aus Metall in der Schublade unter.

Während des Ofenbetriebs wird das Schubladenfach erhützt. Vermeiden Sie den Kontakt mit den Innenteilen, um Verbrennungen zu vermeiden.
Verwahren Sie keine brennbaren Materialien wie Textilien, Papier oder Ähnliches in der Schublade.
8.3 Gefahr durch Kondenswasser

- Bestimmte Garvorgänge mit hohem Wasser gehalt können in Verbindung mit spezifischen Funktionen zur Bildung von Kondenswasser an der Innenschibe der Tur führen. Zu Vermeidung dieser Erscheinung öffnen Sie die Ofentür einmal oder mehrmals während des Garens.
- Lassen Sie das Produkt nach dem Garen nicht im Ofen abkühlen, um die Bildung von Kondenswasser an der Innenschibe der Tur zu vermeiden, das an der Öffnung der Tur selbst abtropfen könnte.
8.4 Benutzung des Multifunktions-Elektroherds

Der Programmierer und die Bedienungsknöffe zur Kontrolle des Hauptofens haben keinerlei Einfluss auf den Betrieb des Hilfsofens.

8.4.1 Erste Benutzung des Backofens
Bei der Ersteinschaltung konnte der Ofen einen beibenden Rauch und Geruch, der von üligen Fabrikationsrückständen stammen und das gegarte Produkt ungenießbar machen konnte. Heizen Sie den Ofen vor dem Einführer der zu garen den Lebensmittel für eine Dauer von 30-40 Minuten auf und warten Sie, bis kein Rauch und keine Gerüche mehr austreten.



Um zu vermeiden, dass der eventuell im Ofen enthaltene Dampf zu Belastigungen führt, gehen sie wie folgt vor: Drehen Sie den Funktionenwahl-Bedienungsknopf in die Position oder öffnen Sie, auf der Funktion; die Tur in zwei Phasen: Halten Sie die Tur zunachst halb offen (ca. 5 cm) für 4-5 Sekunden und öffnen sie dann ganz. Solle es notwendig sein, an den Ofengerichen zu arbeiten, ist die Öffnung der Tur so kurz wie möglich zu halten um zu vermeiden, dass die Temperatur im Innern des Ofens derart sinkt, dass das Gelingen des Rezepts gefährdet wird.

8.4.2 Traditionelle Garmethoden
Drehen Sie den Bedienungsknopf des Funktionen-Wahlschalters in die Position Drehen Sie den Bedienungsknopf des Thermostats in Übereinstimmung mit dem Wert der gewünschten Temperatur. Zur differenzierten Erhitzung im oberen und unteren Teil der Gerichte: Stellen Sie den Funktionen-Wahlschalter in die Position (oben hei) oder (unter hei). Für eine gleichformigere Erhitzung in jedem Teil des Ofens: Drehen Sie den Bedienungsknopf des Funktionen-Wahlschalters in die Position

Der Ofen ist mit einem automatischen Kuhlsystem mit Regelung durch die Turtemperatur ausgestellt. Beim Erreichen der Grenztemperatur startet der Kuhlventilator automatisch und schaltet ab, sobald die Turtemperatur unter die festgelegte Grenze sinkt. Der Betrieb des Kuhlventilators kann über die Abschaltung des Ofens hinaus dauern. Soltte dies nicht gegeben sein, schalten Sie das Gerät aus undnehmen unverzüglich Kontakt mit dem Kundendienstzentrum auf.
8.4.3 Garen mit Konvektion
Drehen Sie den Bedienungsknopf des Funktionen-Wahlschalters in die Position Drehen Sie den Bedienungsknopf des Thermostats in Übereinstimmung mit dem Wert der gewünschten Temperatur.
8.4.4 Garen mit Umluft-Grill (bei geschlossener Tur)
Drehen Sie den Bedienungsknopf des Funktionen-Wahlschalters in die Position Drehen Sie den Bedienungsknopf des Thermostats in Übereinstimmung mit dem Wert der maximalen Temperatur.
8.4.5 Garen mit Grill + Bratenspieß (bei geschlossener Tur)
Drehen Sie den Bedienungsknopf des Funktionen-Wahlschalters in die Position Drehen Sie den Bedienungsknopf des Thermostats in Übereinstimmung mit dem Wert der maximalen Temperatur. Wahrend des Grillbetriebs hat man gleichzeitig den Betrieb des Bratenspieß, was auch das Garen von Spielten möglich macht.
8.4.6 Garen auf dem Bratenspieß (bei geschlossener Tur)
Wenn Ihr Ofenmodell mit Bratenspieß ausgestattet ist, gehen Sie wie folgt vor:
- Führn Sie das zu garende Lebensmittel auf die Bratenspießstange A und sichern mit den vorgesehenen verstelltbaren Gabeln.
Hängen Sie den Haken B wie in der Abbildung zu sehen am Ofendach ein.
-
Führn Sie die Stange A des Bratenspiebes in die vorgesehene Öffnung C im Ofenrahen. Stellen Sie vor dem Schlieben der Ofentür safer, dass die Stange A korrekt in die Öffnung C geführt wurde (drehen Sie die Stange beim Einführn leicht im Uhrzeiger- und Gegenuhrzeigersinn).
-
Hängen Sie das andere Ende der Bratensprüßstange am Haken B ein (die Riemenschleebe der Stange A ist an der Schleife des Hakens B) anzubringen.
-
Schlieben Sie die Ofentür und aktivieren Sie den Bratenspieß, indem Sie den Drehknopf des Funktionswahlschalters in die Positionstellen;
-
Offnen Sie nach Ende des Garvorgangs die Ofentür undziehen Sie den Bratenspieß Heraus. Benutzen Sie damit den am Stangensockel A angeschraubten Kunststoffgriff D.

8.4.7 Auftauen
Drehen Sie den Bedienungsknopf des Funktionen-Wahlschalters in die Position Drehen Sie den Bedienungsknopf des Thermostats in die Position Auf diese Weise wird der Motorventilator aktiviert, der Luft ins Innere des Ofens stöhlt und so das Auftauen der gefrorenen Lebensmittel fordert.
8.4.8 Ausschalten des Backofens
Das Ausschalten des Ofens erfolgt durch Stellen des Thermostat-Bedienungsknopfes in die Position ■
8.5 Benutzung des Hilfsofens mit natürlicher Konvektion

Der Programmierer und die Bedienungsköpe zur Kontrolle des Hauptofens haben keinerlei Einfluss auf den Betrieb des Hilfsofens.
Der Hilfsofen mit natürlicher Konvektion ist ausgestattet mit:
- einem Heizelement an der "Sohle" des Ofens (unter);
- einem Heizelement am "Dach" des Ofens (oben) + Grill
8.5.1 Erste Einschaltung des Hilfsofens
Bei der Ersteinschaltung konne der Hilfsofen einen beiBenden Rauch und Geruch, der von oIigen Fabrikationsrückstanden stammen und das gegarte Produkt ungeniebar machen konnte. Heizen Sie den Ofen vor dem Einfahren der zu garenden Lebensmittel fur eine Dauer von 30-40 Minuten auf und warten Sie, bis kein Rauch und keine Gerüche mehr austreten.
Zur Einschaltung der Heizung des Hilfsofens ist die Temperatur (100÷ 260) oder die gewünschte Funktion durch Drehen des Thermostat-Bedienungsknopfs zu wahlen.



8.5.2 Grillen (bei geschlossener Tur)
Drehen Sie den Thermostat-Bedienungsknopf in die Position und halten Sie den Hilfsofen zirka 5 Minuten vorheizen. Für den korrekten Betrieb positionieren Sie den Plattenhalterost auf der dritten Führung von unter. Es ist jedoch möglich, die Position des Plattenhalterostes je nach personlichem Geschmack und Erfordernissen beim Garen zuändern. Vor dem Einschieben des Gerichts in den Ofen ist eine Vorheizzeit von zirka 5 Minuten einzuhalten. Ein Kühlsystem verhindert, dass die Bedienungsknöffe überhitzen.
8.5.3 Garen mit dem Drehspiess (bei geschlossener Tur)
Wenn Ihr Ofenmodell mit Drehspiess ausgestattet ist, gehen Sie wie folgt vor:
-
Drehen Sie den Thermostat-Bedienungsknopf in die Position und setzen Sie den Hilfsofen zirka 5 Minuten vorheiten;
-
Schieben Sie die Lebensmittel auf die Bratendreherstange A und achten Sie darauf auf, diese zwischen den zwei Gabeln B zu sichern und gleichmäßig anzuordnen, um unnötgigen Beanspruchungen des Getriebemotors entgegenzuwirken.
-
Setzen Sie die Riemenschieve C der Bratendreherstange auf die Halterung D, nachdem Sie das gegenüberliegende Ende der Stange in die Öffnung E geführt haben, bis die Einkupplung mit dem Getriebemotor F mit anschließender Drehung der Stange erfolgt ist.
-
Geben Sie etwas Wasser in das Backblech und positionieren Sie diesen unter der Bratendreherstange.
-
Kontrollieren Sie den Garvorgang ab und zu, indem Sie die korrekte Drehung der Bratendreherstange überprüfen.
-
Am Ende der Garzeit schalten Sie die Heizung des Hilfsofens aus, indem Sie den Thermostat-Bedienungsknopf in die Position zusückstellen.
-
Ziehen Sie die Bratendreherstange mit Hilfe des Bedienungsknopf G aus dem Hilfsofen Heraus. Verwenden Sie darauf einen Schutzhandschuh.

8.5.4 Ausschalten des Hilfsofens
Zum Ausschalten stellen Sie den Thermostat-Bedienungsknopf in die Position zurück.
9. Ratschlage zum Kochen/Garen
9.1 Ratschlage zur korrekten Gebrauch der Gasbrenner

Der Durchmesser der Kochgefälboden muss dem Durchmesser des verwendeten Brenners entsprechen (siehe darüber hinae den Durchmesser des GefaBes übbragen. Verwenden Sie Töpfe mit flachen Böden. Verwenden Sie beim Kochen möglichst Töpfe mit entsprchenden Deckeln: Dies erlaubt die Nutzung niedrigrer Energiestufen. Zur Reduzierung der Kochzeiten garen Sie Gemüse, Kartoffeln usw. mit weniger Wasser.
| Brenner | Gefäßdurchmesser (in cm) |
| Schnell | von 24 bis 26 |
| Halb-schnell | von 16 bis 22 |
| Hilfskomponente | von 8 bis 14 |
| Dreifachkranz | von 24 bis 26 |

9.2 Ratschlage zur korrekten Gebrauch des Induktionsherds
Zum Erhalt eines optimalen Wirkungsgrades und eines angemessene Energieverbrauchs ist es unverzichtbar, nur für Induktionsherde geeignete Behälter zu verwenden. Der Durchmesser des Bodens der Behälter muss gleich dem Durchmesser des auf dem Kochfeld vorgezeichneten Kreises sein (Abschnitt "7.5"). Wenn diese nicht übereinstimmen, kommt es zu Energieverlusten. Der Bodenbehälter muss aus Eisenlegierung oder Ferritstahl, vollkommen eben und darüber hinausubenso wie das Glas des Strahlungsbereiches perfekt sauber und trocken sein. Verwenden Sie keine Töppe mit rauem, zerkratzem oder beschädigten Boden, da dieser Kratzer an der Strahlungsoberfläche herbeiführen könnte.

Zuckerhaltige Substanzen, Kunststoffe und Aluminiumfolie dürfen keine Berührung mit der Strahloberfläche haben, da diese beim Abkühlen Sprünge oder sonstige Beschädigungen der Glaskeramikplatte verursachen können. Vor dem Zubereiten zuckerhaltiger Speisen empfeht es sich, die Glaskeramikplatte mit einem spezifischen Siliconprodukt zu behandeln, um die Oberflächen des Herdes gegen das Angreifen eventueller eingebrannter Speisereste zu isolieren.
Stellen oder setzen Sie keine leeren Töppe auf der Glaskeramikoberfläche.
Lassen Sie keine Gegenstände, auch keine klinen, auf die Glaskeramikoberfläche fallen.
Sand oder sonstige schürfenden Substanzen können die Glaskeramikoberfläche beschädigten.
Wenn die Töpfe auf scheuernde Rückstände gesetzt werden, konnte das Glas zerkratzen Eventuelle Kratzer beeinträchtigen jedoch nicht den Induktionskochvorgang.
Stellen Sie sicher, dass die Belüfung des Gerätes korrekt Funktioniert.
9.3 Ratschlage zum korrekten Gebrauch des Backofens

Der Ofen erlaubt die Optimierung der Garzeiten. Es besteht die Möglichkeit, auf traditionelle Weise, mit Konvektion oder auf dem Grill zu garen.
Alle Garvorgänge sind bei vollkommen geschlossener Ofentür durchzuführen.

9.3.1 Traditionelles Garen
Bei diesen Gartyp kommt die Hitze von oben und von unter. Es sollen denaher möglichst die mittleren Führungen verwendet werden. Sollte das Garen mehr Hitze von unten oder von ober erfordern, verwenden Sie die unteren oder oberen Führungen. Die traditionelle Garmethode eignet sich fur alle Lebensmittel, die hohe Kochtemperaturen oder large Schmorzeiten erfordern. Dieses System ist außer dem dann ratsam, wenn zum Garen Behalter aus Terrakotta, Porzellan oder Ahnliches verwendet werden.

9.3.2 Konvektions-Garen
Bei dieser Garmethode wird die Hitze mittels vorerhitzer Luft auf die Lebensmittel übertragen. Dabei wird die Luft zur Zirkulation in den Ofenraum forciert, undzarank eines Ventilators in der Hinterwand des Ofens selbst. Die Hitze erreicht sochnell und gleichmabig alle Bereiche des Ofens. Auf these Weise konnen gleichmabig mehrere Gerichte auf verschieden Ebenen zubereitet werden. Die Beseitigung der Luftfeuchigkeit und die trockenere Umgebung unterbinden die Übertragung und Vermischung von Geruchen und Aromen.
Die Möglichkeit des Garens auf mehreren Ebenen erlaubt die zeitgleiche Realisierung mehrerer unterschiedlicher Gerichte. Platzchen und Pizzastücke konnen in drei verschiedene Formen gehalten werden. Der Ofen kann allerdings auch zum Backen auf nur einer Ebene benutzt werden. Zur betteren Kontrolle des Garens verwenden Sie die niedrigsten Führungen.
Die Konvektions-Methode eignet sich besonderss zum Schnellen Auftauen tief gefrorener Lebensmittel, zur Sterilisation von Konserven, hausgemachten Fruchtsirups sowie zum Trocknen von Pilzen und Obst.

9.3.3 Grillen
Die Hitze kommt von oben. Fast alle Fleischsorten können auf dem grill zubereitet werden, mit Ausnahme entsprechenden zarten Wildfleisches und von Frikadellen. Die zu grillenden Fleisch- und Fischstücke sind leicht mit Öl zu bestreichen und stets auf dem Rost anzuordnen. Diese ist dann in die am nachsten oder am weitesten vom Grill-Element gelegen den Führungen zu setzen, im Verhältnis zur Dicke des Fleischstückes, so dass these an der Oberfläche nicht verbrannt und im Innern richtig gegart wird.
Geeignet für: nicht zu dicke Fleischstücke; Toast.

Positionieren Sie den Fettfänger auf der unteren Stufe zum Auffangen von Saucen oder Fett. Geben Sie ein Glas Wasser in den Fettfänger, um Rauchbildung aufgrund der Überhitzung der Fete zu vermeiden.

9.3.4 Garen am Luft-Grill
Erfolgtdurchden kombinierten Betrieb des Grills und des Ventilators.
Dieses Garmethode macht es möglich, dass die Hitze stufenweise ins Innere des Lebensmittels eindringt, obwohl die Oberfläche direkt der Wirkung des Grills ausgesetzt ist.
Geeignet fur: dicke Fleischstücke; Geflügel.
9.3.5 Garen von Fleisch und Fisch
Das im Ofen zu garende Fleisch sollte mindestens kg wiegen. Die roten, sehr weichen Fleischsorten, die english zu garen sind (Roastbeef, Fillet usw.) oder die außen durch zu garen sind und im Innern saftig bleiben sollen, verlangen eine kurze Garzeit bei hoher Temperatur (200 - 250^) . Weiße Fleischsorten, Geflügel und Fisch erfordern eine niedrige Temperatur (150 - 175^) .
Nur bei kurzen Garzeiten sind die Saucenzutaten sofort in die Form zu geben, andernfalls soll dies in der letzten halben Stunde zu geschehen. Die Fleischstücke konnen auf einen ofenfesten Teller oder direkt auf den Rost gegeben werden, unter den dann der Fettfänger zum Aufgangen der Sauce zu stellen ist. Der Fortgang des Garens kann kontrolliert werden, indem das Fleischstück mit einem Löfffel gedrückt wird. Wenn es nicht nachgibt, so bedeutet dies, dass es richtig gegart ist.
Nach dem Ende der Garzeit sollen den wichtstens 15 Minuten abgewartet werden, bevor das Fleisch angeschnitten wird, damit these seinen Saft nicht verliert. Die Teller konnen vor dem Servieren im Ofen bei Mindesttemperatur warm gehalten werden.
9.3.6 Zubereitung von Süsspeisen
Geschlagene Teige sollen sich nur muhsam vom Löffel losen, da eine zu starke Dündflüssigkeit die Kochzeit unnötg verlangern wurde. Sübspeisen verlangen eine gemäßte Temperatur (in der Regel 150-200°C) sowie Vorheizen (zirka 10 Minuten). Die Tur darf nicht geöffnet werden, bevör羌igstens 34 der Garzeit verstrichen sind.
9.3.7 Tabellen mit empfohlenen Garzeiten
Die Garzeiten sind verschiedene je nach Art, Homogenität und Volumen der Lebensmittel. Es empfehlts sich, die ersten Garvorgänge zu überwachen und die Ergebnisse zu prufen, da bei der Herstellung derselben Gerichte unter denselben Bedingungen ähnliche Resultate erzielt werden. Die nachstehenden drei Tabellen (I, II und III) liefern dazu Richtwerte.
LABELLE DER GARZEITEN FÜR DIE KONVEKTIONSMETHODE UND DIE TRADITIONELLE METHODE (I)
| GARTYP | MENGEN KG. | POSITION DER FÜRHRUNG VON UNTEN | TEMPERATUR °C | ZEIT IN MINUTEN | ||
| KONVEktion | TRADITIONELL | KONVEktion | TRADITIONELL | |||
| SÜSSPEISEN | ||||||
| GESCHLAGENER TEIG, IN DER FORM | 1 | 1-3 | 2 | 175 | 200 | 60 |
| GESCHLAGENER TEIG, AUF FETTFÄNGER | 1 | 1-3 | 2 | 175 | 200 | 50 |
| MÜRBETEIG, TORTENBODEN | 0.5 | 1-3 | 3 | 175 | 200 | 30 |
| MÜRBETEIG MIT FEUCHTFÜLLUNG | 1.5 | 1-3 | 2 | 175 | 200 | 70 |
| MÜRBETEIG MIT TROCKENFÜLLUNG | 1 | 1-3 | 2 | 175 | 200 | 45 |
| TEIG MIT NATÜRlicher SÄUERUNG | 1 | 1-3 | 1 | 175 | 200 | 50 |
| KLEINE SÜSSPEISEN | 0.5 | 1-3 | 3 | 160 | 175 | 30 |
| FLEISCHE | ||||||
| KALB | 1 | 2 | 2 | 180 | 200 | 60 |
| RIND | 1 | 2 | 2 | 180 | 200 | 70 |
| ROASTBEEF ENGLISH | 1 | 2 | 2 | 220 | 220 | 50 |
| SCHWEIN | 1 | 2 | 2 | 180 | 200 | 70 |
| HUHN | 1-1.5 | 2 | 2 | 200 | 200 | 70 |
| SCHMORBRATEN | ||||||
| RINDERSCHMORBRATEN | 1 | 1 | 2 | 175 | 200 | 120 |
| KALBSSCHMORBRATEN | 1 | 1 | 2 | 175 | 200 | 110 |
| FISCH | ||||||
| FILETS, SCHNITZEL, KABELJAU, SEEHECHT, SEEZUNGE | 1 | 1-3 | 2 | 180 | 180 | 30 |
| MAKRELEN, SCHOLLE, LACHS | 1 | 1-3 | 2 | 180 | 180 | 45 |
| AUSTERN | 1 | 1-3 | 2 | 180 | 180 | 20 |
| AUFLÄUFE | ||||||
| NUDELAUFLÄUFE | 2 | 1-3 | 2 | 185 | 200 | 60 |
| GEMÜSEAUFLÄUFE | 2 | 1-3 | 2 | 185 | 200 | 50 |
| SUSSE UND SALZIGE SOUFFLÉS | 0.75 | 1-3 | 2 | 180 | 200 | 50 |
| PIZZA UND TEIGTASCHEN | 0.5 | 1-3 | 2 | 200 | 220 | 30 |
Die Zeiten beziehen sich auf das Garen auf nur einer Ebene. Bei mehreren Ebenen sind die Zeiten um 5-10' zu erhöhen.
Die Garzeiten verstehen sich nach einer Vorheizzeit von 15' zirka.
Die Angabe der Führungen, im Fall des Garens auf mehreren Ebenen, bezieht sich auf die zu bevorzugende.
- Bei Rinder-, Kalbs-, Schweine- und Putenbraten mit Knochen oder gerollt sind die Zeiten um 20' zu verlangem.
LABELLE DER GARZEITEN AM GRILL UND LUFT-GRILL (II)
| TRADITIONELLE GRILLPLATTEN | ||||
| GARTYP MENGEN | KG. | POSITION DER FÜRUNG VON UNTERN | TEMPERATUR °C | ZEIT IN MINUTEN |
| HUHN | 1-1.5 | 3 | MAX | 30 PRO SEITE |
| TOAST | 0.5 | 4 | MAX | 5 PRO SEITE |
| BRATWÜRSTE | 0.5 | 4 | MAX | 10 PRO SEITE |
| KOTELETTS | 0.5 | 4 | MAX | 8 PRO SEITE |
| FISCH | 0.5 | 4 | MAX | 8 PRO SEITE |
| GRILLPLATTEN MIT LUFT-GRILL | ||||
| GARTYP MENGEN | KG. | POSITION DER FÜRUNG VON UNTERN | TEMPERATUR °C | ZEIT IN MINUTEN |
| SCHWEINEBRATEN | 1.5 | 2 | 170 | 180 |
| ROASTBEEF | 1.5 | 3 | 220 | 60 |
| HUHN | 1.2 | 2 | 190 | 90 |
- Der Fettfänger zum Aufnehmen der Kochsäfte ist stets auf die 1. Führung von unter zu positionieren.
LABELLE DER AUFTAUZEiten (III)
| AUFTAUEN | |||
| LEBENSMITTELART MENGEN | KG. | POSITION DER FÜRHRUNG VON UNTEN | ZEIT IN MINUTEN |
| FERTIGERICHTE | 1 | 2 | 45 |
| FLEISCHE | 0.5 | 2 | 50 |
| FLEISCHE | 0.75 | 2 | 70 |
| FLEISCHE | 1 | 2 | 110 |
Das Auftauen auf Umgebungstemperatur hat den Vorteil, Geschmack und Beschaffenheit der Lebensmittel nicht zu verändern.
10. Reinigung und Pflege

Vor jedem Eingriff ist die elektrische Stromversorgung des Geräts zu unterbrechen und der Gashahn zu schreiben.

Vermeiden Sie es, die Oberflächen des Geräts zu reinigen, solange diese noch heiß sind. Zur Reinigung der Geräteoberfläche dürfen nur geeignete Reinigungsmittel verwendet werden. Der Hersteller leht jegliche Haftung für eventuelle Schäden durch die Verwendung von ungeeigneten und/oder anderen Reinigungsmitteln als den angegebenen ab. Verwenden Sie zum Waschen des Geräts keine Druck- oder Dampfdüssen.

10.1 Reinigung der Oberflächen aus Edelstahl
Zur Reinigung und Pflege der Edelstahloberflächen tätig eine Lösung aus HeiBwasser und Essig oder neutraler Seite verwenden. Einen Lappen damit befeuchten und die Stahloberfläche in der Richtung der Mattierung reinigen, sorgfältig spulen und mit einem weichen Lappen oder einem Hirschleder trocknen.
Vermeiden Sie auf jeder fall die Verwendung metallischer Schwämme oder von Stahlwolle, welche die Oberflächen beschädigten konnten. Verwenden Sie nur kratzfrei Schwämme sowie gegebenenfalls Gegenstände aus Holz oder Kunststoff.

10.2 Reinigung der emailierten Oberflächen
Reinigen Sie mit einem kratzfreien Schwamm, der nicht scheuert, angefeucht mit Wasser und neutrale Seite. Die größten Flecken halten sich leicht mit heiBem Wasser oder einem handelsüblichen Spezialprodukt für die Reinigung emailierter Oberflächen entfernen. Spulen Sie sorgfältig und trocknen Sie mit einem weichen Tuch oder mit Wildleder.
Vermeiden Sie auf jeder fall die Verwendung metallischer Schwämme oder von Stahlwolle, welche die Oberflächen beschädigen konnten. Lassen Sie keine sauren oder alkalischen Substanzen auf dem Lack (Zitronensaat, Essig, Salz usw.).

10.3 Reinigung der lackierten Oberflächen
Reinigen Sie mit einem in warmes Wasser und neutrale Seite oder ein normales Reinigungsmittel für lackierte Oberflächen getränkten Kratzschutzschwamm vom nicht scheuernden Typ. Spulen Sie nach und trocknen Sie sorgfältig mit einem trockenen Tuch. Vermeiden Sie scheuernde Substanzen enthaltende Produkte, Stahlwollen oder Säuren, welche die Oberflächen beschädigen konnten. Verwenden Sie keinen Alkohol.

10.4 Reinigung von Oberflächen, Zubehor und Holzteilen
Zur Reinigung empfeht sich die Verwendung von spezifischen, handelsüblichen Produkten. Diese Produkte gewährleisten dauerhafte Schönheit des Holzes. Falls keine solchen Produkte vorhanden sind, empfeht es sich, Verschmutzungen sochnell als möglich mit einem, mit Wasser und neutraler Seite befeuchteten Lappen zu reinigen, sorgfältig zu spulen und mit einem weichen Lappen zu trocknen. GröBere Verkrustungen und zähe Reste mit einem kratzfesten Schaber für Holz oder einem Spezialschwamm für empfindliche Oberflächen entfernen.
Vermeiden Sie auf jeder fall die Verwendung metallischer Schwämme oder von Stahlwolle, welche die Oberflächen beschädigen konnten.
Zubehör- und Holzteile)dürfen nicht im Geschirrspüller gewaschen werden. Diese nicht in feuchten Räumen aufbewahren und Temperaturschwankungen vermeiden. Zu große Feuchtigkeit und Temperaturschwankungen können die Zubehör- und Holzteile unrettbar verformen.
10.5 Reinigung der Bedienungsknöffe und der Bedienungstafel
Säubern Sie die Bedienungsknöffe und die Bedienungstafel mit einem feuchten Tuch.
10.6 Reinigung der Roste und Brenner
Zur Reinigung der Roste und Brenner der Kochfläche sind diese wie in der Abbildung gezeigt nach oben hersauszuziehen und für zirka 10 Minuten in eine Lösung warmen Wassers mit Zugabe von Spülmittel zu tauchen, welche nicht scheuert. Spulen und trocknen Sie sorgfältig.
Es empfehlts sich, die Brenner und Teller im Geschirrspulier nicht zu reinigen.
Stellen Sie stets sicher, dass keine der Brenneröffnungen verstopt sind.
Die Brenner sind unbedingt korrekt zu montieren, die Gleichmäßigkeit der Flamme ist sicherzustellen.
These Arbeitsorte weniger pro Wochendurchgeführten werden sowie jedesmal dann, wenn sich dies als notwendig erweist.

10.7 Reinigung der Zündkerzen und Thermoelemente
Zur Gewährleistung der Zündkerzen und Thermoelemente sind diese stets sauber zu halten. Kontrollieren Sie dies früig und reinigen Sie gegebenenfalls mit einem sauberen Tuch. Sorgfältig trocknen.
Eventuelle trockene Rückstände sind mit einem Holzstübchen oder einer Nadel zu entfernen. Achten Sie darauf darauf, den isolierenden Teil der Keramik nicht zu beschädigen.

10.8 Reinigung des Induktionsherds
Der Induktionsherd erfordert keine spezielle Pflege oder Reinigung. Sollte es jedoch nach dem Kochen zu eingebrannten Resten in der Höhe des Strahlungsfelds kommt, beseitigen Sie diese unter Verwendung eines nicht kratzenden Schabers, spulen Sie mit Wasser nach und trocknen Sie gut mit einem sauberen Tuch. Die regelmäßige Verwendung des Schabers vermeidet den Einsatz chemischer Produkte zur Reinigung der Platte.
Stellen Sie vor dem Verschieben oder Verstellen der Töpe auf dem Herd sicher, dass sich auf thisem keine Splitter oder sonstige Verunreinigungen befinden, die Kratzer herbeiführen konnten.
Verwenden Sie keine scheuernden Schwämme oder Reinigungsmittel. Vermeiden Sie chemisch angreifende Produkte wie zum Beispiel Backofenspray, Fleckenloser, aber auch Sanitärreiniger oder Universalmittel.

Achten Sie daraufuf, dass die heiBe Glaskeramikflache nicht in Kontakt mit Kunststoff, Aluminiumfolie, Zucker oder zuckerhaltigen Nahrungsmitteln gerat. Diese Substanzen konnen die Herdoberflächen beschädigten und sind daher unverzuglich unter Verwendung eines nicht kratzenden Schabers zu entfernen.
Vor dem Zubereiten zuckerhaltiger Speisen empfieht es sich, die Glaskeramikplatte mit einem spezifischen Silikonprodukt zu behandeln, um die Oberflächen des Herdes gegen das Angreifen eventueller eingebrannter Speisereste zu isolieren.
Gehen Sie zur Reinigung der Glaskeramikplatte wie folgt vor:
- Entfernen Sie die grobsten Verkrustungen und zahsten Lebensmittelrechte unter Verwendung eines nicht kratzenden Schabers oder einer Spezialbürste für empfindliche Oberflächen.
- Warten Sie die vollständige Abkuhlung der Herdoberfläche ab, tragen Sie eine Tropfen Spezialreiniger auf und reiben Sie anschließend mit Kuchenpapier oder einem sauberen Tuch. Verwenden Sie alternative eine Spezialbürste für empfindliche Oberflächen.
- Gehen Sie noch einmal mit einem angefeuchteten Tuch oder mit der glatten Seite einer Spezialbürste über die Herdoberflächen.






10.9 Reinigung des Backofens
Für eine gute Erhaltung des Ofens ist dieser regelmäßig zu reinigen, am besten nach jedem Gebrauch, nach dem dieser abgekühlt hat: Auf diese Weise lassen sich Kochrückstände better entfernen, wobei vermieden wird, dass diese bei der anschliebenden Benutzung des Ofens einbrennen. Reinigen Sie die Teile aus Edelstahl und die lackierten Teile wie in den entsprechenden Abschnitten "10.1 Reinigung der Oberflächen aus Edelstahl" und "10.2 Reinigung der emaillierten Oberflächen" beschreiben. Ziehen Sie die abnehmbaren Teile hereaus und waschen diese getrennt. Spulen Sie klar und trocknen Sie sorgfältig mit einem sauberen Tuch.
10.9.1 Reinigung der Ofenwände
Zur Reinigung theses Ofentyps durren niemals Reinigungsmittel verwendet werden.
Die Ofenwände konnen mit weiBem Essig gereinigt und mit einem in Wasser getrakten Lappen nachgewischt werden. Heizen Sie den Ofen anschlieBend fur eine Stunde auf mindestens 150^ um den Reinigungsvorgang zu unterstützen. Wischen Sie nach dem Abkuhlen des Ofens erneut mit einem in lauwarmem Wasser getrakten Lappen nach.
10.9.2 Reinigung der Ofentür
Die Ofentür sollte stets gut sauber gehalten werden. Verwenden Sie dazu Kuchenpapier. Bei sehr hartenrückigen Verschmutzungen reinigen Sie mit einem feuchten Schwamm und allgemein üblichem Spulmittel.

"Sprays" zur Reinigung des Ofens dürfen nicht für die Reinigung des Ventilators und des Thermostat-Sensors im Innern des Ofenschachs verwendet werden.
11. Außerordentliche Wartung
Der Ofen erfordert regelmäßige keine Wartungseingriffe oder die Auswechselung von Verschleibteilen. Nachstehend die spezifischen Anweisungen für jeder Eingriff dieser Art.

Vor jedem Eingriff ist die elektrische Stromversorgung des Geräts zu unterbrechen und der Gashahn zu schreiben.
11.1 Ausbau der Ofentür
Die Ofentür kann zwecks sorgfälliger Reinigung komplett abmontiert werden.

Dieser Eingriff istzarvogesehen,chodnicht furjen einfach durchzufuhren.Zum Halten der Tur ist die entsprechende Kraft notwendig,der Wiedereinbau erfordert eine gewisse Fertigkeit.Sollten Sie Zweifel daran haben, diesen Eingriff durchfuhren zu konnen,empfehlen wir Ihnen, die Reinigung der Tur ohne Ausbau durchzufuhren oder sich gegebenenfalls an ein Kundendienstzentrum zu wenden.
Zum Ausbau der Tur ist wie folgt vorzugehen:
- Öffnen Sie die Ofentür und hängen Sie die Scharniersicherungen aus, indem Sie die zugehörigen Zapfen A (einen pro Scharnier) zurückdrehen.
Schlieben Sie die Tur halb bis zur Entspannung der Federn (die Ofentur bildet einen Winkel von zirka 30^ - Begleiten Sie die Bewegung der Tur mit beiden Händen bis zum Schlieben und haben sie gleichzeitig an.
Drehen Sie den unteren Teil der Tur nach auBen und losein die Scharniere B aus ihren Sitzen.



Für eine grundlichere Reinigung kann die Innenscheibe entfernt werden.
Gehen Sie wie folgt vor:
- Losen Sie die Schraube C um eine halbe Umdrehung, um das Anheiten des rechten und linken Scheibensicherungsplattchens zu ermögen.
- Heben Sie die beiden Scheibensicherungsplattchen an undziehen Sie die gesamte Scheibe ab.
- Beim Wiedereinbau der Scheibe ist die bezüglich der oben stehenden Beschreibung umgekehrte Reihenfolge einzuhalten.

Zur Reinigung des Bereiches zwischen der Außenscheibe und der Zwischenscheibe verwenden Sie eine weiche Bürste im Zwischenraum zwischen den Scheiben, wie zu sehen auf Seite 162.
Beim Wiedereinbau der Tur ist die bezüglich der oben stehenden Beschreibung umgekehrte Reihenfolge einzahlten, siehe Seite 162.
Öffnen Sie die Tur nach dem Wiedereinführn in die vorgesehenen Scharniersitze B bis zum Endanschlag und belasten die Scharniersicherungen wieder, indem Sie die zugehörigen Zapfen A (einen pro Scharnier) wieder senken.

ACHTUNG: Die Scharniersicherungen sind nach dem Wiedereinbau der Ofentür immer zususetzen.

11.2 Ausbau der seitlichen Rosthalterungen
Die Rosthalterungen konnen ausgebaut und getrennt gewaschen werden, um die Reinigung der Ofenwände zu erreichtern. Die Halterungen sind an den drei durch die Pfeile in der Abbildung bezeichneten Punkten an den Ofenwänden eingehängt (Detail 1).
- Üben Sie mit dem Finger Druck nach unten aus, wie im Detail 2 in der Abbildung angegeben, sodass die Halterung vom oberen Zapfen gelöst wird.
- Hebien Sie die Halterung an undziehen sie ab.
Beim Wiedereinbau ist in umgekehrter Reihenfolge vorzugehen. Setzen Sie den unteren Teil der Halterung auf die zugehörigen Zapfen und drücken den oberen Teil gegen die Ofenwand, bis der Zapfen einrastet.

11.3 Ausbau und Reinigung des Innenventilators des Ofens
Der Innenventilator des Ofens konnte eine regelmäßige Reinigung erfordern. Zum Ausbau des Ventilators ist wie folgt vorzugehen:
- Stellen Sie sicher, dass die elektrische Stromversorgung des Geräts ausgeschelt ist.
- Entfernen Sie alle internen Komponenten des Ofens (Roste und Fettfänger).
- Lösen Sie die vier Schrauben A des Abdeckgehauses und ziehen diese hersaus.
- Ziehen Sie das Abdeckgehäuse B ab.
- Schrauben Sie mit Hilfe einer Münze die Mutter C zur Befestigung des Ventilators auf (dieses Gewinde ist invers, zum Lösen drehen Sie im Uhrzeugersinn).
- Nehmen Sie den Ventilator D Heraus und waschen Sie diesen eingetaucht in warmes Wasser mit Spülmittel. Verwenden Sie in keinem Fall scheuernde oder korrosive Reinigungsmittel, Produkte in Pulverform oder Metallschwämme. Wischen Sie den Ventilator nach und trocknen Sie sorgfältig.
Montieren Sie Ventilator und Abdeckgehause wieder. Gehen Sie damit in der zu den Ausbauanweisungen umgekehrten Reihenfolge vor.

11.4 Auswechselung der Ofenbeleuchungslampe

Trennen Sie vor jedem Eingriff die elektrische Stromversorgung des Geräts.
Gehen Sie wie folgt vor:
- Offnen Sie die Ofentür.
- Schrauben Sie die Schutzkappe aus Glas im Gegenuhrzeigersinn ab. Entfernen Sie die Lampe (Birne) und setzen Sie eine neue, für hohe Temperaturen (300^) geeignete ein, die außer dem folgende Eigenschaften aufweist:
Spannung: 230V / 50Hz
Leistung: 15 W
Fassung: E 14

- Montieren die Glaskappe und aktivieren Sie die Stromzufuhr. Die Funktionstüchtigkeit der Lampe kann auch bei geschlossener Ofentür kontrolliert werden, indem der Funktionenwahl-Bedienungsknopf in die Position gestellt wird.
EinfachAnleitung