MSR1200 - Outils multifonctions MAC ALLISTER - Notice d'utilisation et mode d'emploi gratuit
Retrouvez gratuitement la notice de l'appareil MSR1200 MAC ALLISTER au format PDF.
| Caractéristiques techniques | Outil multifonction avec moteur de 1200 W, vitesse variable, et accessoires interchangeables. |
|---|---|
| Utilisation | Idéal pour le ponçage, le découpage, le meulage et le polissage de divers matériaux. |
| Maintenance et réparation | Nettoyage régulier des filtres, vérification des accessoires, lubrification des pièces mobiles. |
| Sécurité | Utiliser des lunettes de protection, des gants et un masque anti-poussière. Ne pas utiliser à proximité de matériaux inflammables. |
| Informations générales | Poids léger pour une manipulation aisée, garantie constructeur de 2 ans. |
FOIRE AUX QUESTIONS - MSR1200 MAC ALLISTER
Questions des utilisateurs sur MSR1200 MAC ALLISTER
0 question sur cet appareil. Repondez a celles que vous connaissez ou posez la votre.
Poser une nouvelle question sur cet appareil
Téléchargez la notice de votre Outils multifonctions au format PDF gratuitement ! Retrouvez votre notice MSR1200 - MAC ALLISTER et reprennez votre appareil électronique en main. Sur cette page sont publiés tous les documents nécessaires à l'utilisation de votre appareil MSR1200 de la marque MAC ALLISTER.
MODE D'EMPLOI MSR1200 MAC ALLISTER
AVERTISSEMENT! Lisez ce mode d'emploi avant d'utiliser l'appareil!
Mode d'emploi...
Ce mode d'emploi est important pour votre sécurité. Lisez-le attentivement dans son intégralité avant d'utiliser l'appareil, et conservez-le pour pouvoir vous y reférer ultérieurement.

Pour commencer... 02
Sécurité 03
Le produit 12
Avant de commencer 15

En détails... 22
Fonctions de l'appareil 23
Utilisation 28
Entretien et maintenance 33
Dépannage 36
Mise au rebut et recyclage 37
Garantie 37
Déclaration de Conformité CE 39
Avertissements de sécurité généraux pour l'outil

AVERTISSEMENT! Lire tous les avertissements de sécurité et toutes les instructions. Ne pas suivre les avertissements et instructions peut donner lieu à un choc électrique, un incendie et/ou une blessure sérieuse. Conserver tous les avertissements et toutes les instructions pour pouvoir s'y reporter ultérieurement. Le terme «outil» dans les avertissements fait référence à votre outil électrique alimenté par le secteur (avec cordon d'alimentation) ou votre outil fonctionnant sur batterie (sans cordon d'alimentation).
Sécurité de la zone de travail
Conserver la zone de travail propre et bien éclairée. Les zones en désordre sont propices aux accidents. Ne pas faire fonctionner les outils électriques en atmosphère explosive, par exemple en présence de liquides inflammables, de gaz ou de poussières. Les outils électriques produisent des étincelles qui peuvent enflammer les poussières ou les fumées. Maintenir les enfants et les personnes présentes à l'écart pendant l'utilisation de l'outil. Les distractions peuvent vous faire perdre le contrôle de l'outil.
Sécurité électrique
Il faut que les fiches de l'outil électrique soient adaptées au socle. Ne jamais modifier la fiche de chaque façon que ce soit. Ne pas utiliser d'adaptateurs avec des outils à branchement de terre. Des fiches non modifiées et des socles adaptés réduiront le risque de choc électriques. Eviter tout contact du corps avec des surfaces reliées à la terre telles que les tuyaux, les radiateurs, les cuisinières et les réfrigérateurs. Il existe un risque accru de choc électriques si votre corps est relié à la terre. Ne pas exposer les outils à la pluie ou à des conditions humides. La pénétration d'eau à l'intérieur d'un outil augmentera le risque de choc électriques. Ne pas maltraiter le cordon. Ne jamais utiliser le cordon pour porter, tirer ou débrancher l'outil. Maintenir le cordon à l'écart de la chaleur, du lubrifiant, des arêtes ou des parties en mouvement. Des cordons endommagés ou emmêlés augmentent le risque de choc électrique. Lorsqu'on utilise un outil à l'extérieur, utiliser un prolongateur adapté à l'utilisation extérieure. L'utilisation d'un cordon adapté à l'utilisation extérieure réduit le risque de choc électrique. Si l'usage d'un outil dans un emplacement humide est inévitable, utiliser une alimentation protégée par un dispositif à courant différentiel résiduel (DDR). L'usage d'un DDR réduit le risque de choc électrique.
Sécurité des personnes
Rester vigilant, regarder ce que vous êtes en train de faire et faire preuve de bon sens dans votre utilisation de l'outil. Ne pas utiliser un outil lorsque vous êtes fatigué ou sous l'emprise de drogues, d'alcool ou de médicaments. Un moment d'inattention en cours d'utilisation d'un outil peut entraîner des blessures graves des personnes. Utiliser un équipement de sécurité. Toujours porter une protection pour les yeux. Les équipements de sécurité tels que les masques contre les poussières, les chaussures de sécurité antidérapantes, les casques ou les protections acoustiques utilisés pour les conditions appropriées réduiront les blessures de personnes. Éviter tout démarrage intempestif. S'assurer que l'interrupteur est en position arrêt avant de brancher l'outil au secteur et/ou au bloc de batteries, de le ramasser ou de le porter. Porter les outils en ayant le doigt sur l'interrupteur ou brancher des outils dont l'interrupteur est en position marche est source d'accidents. Retirer toute clé de réglage avant de mettre l'outil en marche. Une clé laissée fixée sur une partie tournante de l'outil peut donner lieu à des blessures de personnes. Ne pas se précipiter. Garder une position et un équilibre adaptés à tout moment. Cela permet un meilleur contrôle de l'outil dans des situations inattendues. S'habiller de manière adaptée. Ne pas porter de vêtements amples ou de bijoux. Garder les cheveux, les vêtements et les gants à distance des parties en mouvement. Des vêtements amples, des bijoux ou les cheveux longs peuvent être pris dans des parties en mouvement.
Mises en garde
Si des dispositifs sont fournis pour le raccordement d'équipements pour l'extraction et la récupération des poussières, s'assurer qu'ils sont connectés et correctement utilisés. Utiliser des collecteurs de poussière peut réduire les risques dus aux poussières.
Utilisation et entretien de l'outil
Ne pas forcer l'outil. Utiliser l'outil adapté à votre application. L'outil adapté réalisera mieux le travail et de manière plus sûre au régime pour lequel il a été construit. Ne pas utiliser l'outil si l'interrupteur ne permet pas de passer de l'état de marche à arrêt. Tout outil qui ne peut pas être commandé par l'interrupteur est dangereux et il faut le réparer. Débrancher la fiche de la source d'alimentation en courant et/ou le bloc de batteries de l'outil avant tout réglage, changement d'accessoires ou avant de ranger l'outil. De telles mesures de sécurité préventives réduisent le risque de démarrage accidentel de l'outil. Conserver les outils à l'arrêt hors de la portée des enfants et ne pas permettre à des personnes ne connaissant pas l'outil ou les générales instructions de le faire fonctionner. Les outils sont dangereux entre les mains d'utilisateurs novices. Observer la maintenance de l'outil. Vérifier qu'il n'y a pas de mauvais alignement ou de blocage des parties mobiles, des pièces cassées ou toute autre condition pouvant affecter le fonctionnement de l'outil. En cas de dommages, faire réparer l'outil avant de l'utiliser. De nombreux accidents sont dus à des outils mal entretenus.
Garder affûtés et propres les outils permettant de couper. Des outils destinés à couper correctement entretenus avec des pièces coupantes tranchantes sont moins susceptibles de bloquer et sont plus faciles à contrôler. Utiliser l'outil, les accessoires et les lames etc., conformément à ces instructions, en tenant compte des conditions de travail et du travail à réaliser. L'utilisation de l'outil pour des opérations différentes de celles prévues pourrait donner lieu à des situations dangereuses.
Maintenance et entretien
Faire entretenir l'outil par un réparateur utilisant uniquement des pièces de rechange identiques. Cela assurera que la sécurité de l'outil est maintenue.
qualifié
Avertissements de sécurité pour défonceuses
Tenir l'outil électrique uniquement par les surfaces de préhension isolantes, car la main peut être en contact avec son propre câble. Le fait de couper un fil "sous tension" peut également mettre "sous tension" les parties métalliques exposées de l'outil électrique et provoquer un choc électrique sur l'opérateur. Utiliser des pinces ou un autre moyen pratique de fixer et soutenir la pièce à usiner à la platte stable. Le fait de tenir la pièce de travail avec la main ou contre son corps la rend instable et peut entraîner une perte de contrôle. La vitesse assignée de l'accessoire doit être égale ou inférieure à la vitesse maximale marquée sur l'outil électrique. Des accessoires fonctionnant à une vitesse supérieure à la vitesse assignée peuvent se casser et se détacher de l'outil.
Réduction du bruit et des vibrations
Afin de réduire l'impact négatif des vibrations et du bruit, limitez la durée des séances de travail, travaillez en mode de bruit et de vibrations réduits, et portez des équipements de protection individuelle.
Afin de minimiser l'exposition aux vibrations et aux bruits, tenez compte des points suivants :
Utilisez seulement l'appareil d'une manière conforme à son design et aux instructions. Faites en sorte que l'appareil reste en bon état et correctement entretenu. Utilisez les outils adéquats avec l'appareil, et faites en sorte qu'ils restent en bon état. Gardez toujours une bonne prise sur les poignées / surfaces de préhension. Cet appareil doit être correctement entretenu de la manière décrite dans le mode d'emploi. Faites en sorte qu'il soit suffisamment graissé (le cas échéant). Si vous devez travailler avec un appareil à fortes vibrations, étalez le travail sur plusieurs jours.
Urgences
À l'aide du présent mode d'emploi, familiarisez-vous avec l'utilisation de cet appareil. Assimilez bien les mises en garde et suivez-les à la lettre. Cela permettra de réduire les risques d'accidents.
Restez vigilant à tout instant lorsque vous utilisez cet appareil. Vous serez ainsi en mesure d'anticiper les risques et de les gérer. Une réaction rapide permet de réduire les risques de dommages corporels et matériels.
En cas de dysfonctionnement, éteignez et débranchez l'appareil. Faites examiner l'appareil par un spécialiste qualifié et, le cas échéant, faites-le réparer avant de le réutiliser.
Risques résiduels
Même si vous utilisez cet appareil en respectant les normes de sécurité, certains risques de dommages corporels et matériels subsistent. Du fait du mode de construction et de fonctionnement de l'outil, vous pouvez notamment être exposé aux suivants:
Les fortes vibrations peuvent être nuisibles à la santé si l'outil est utilisé pendant une durée trop longue, ou si l'outil n'est pas utilisé et entretenu conformément aux instructions. Dommages aux biens et aux personnes causés par des accessoires cassés ou par l'impact soudain de l'outillge avec des objets cachés en cours d'utilisation. Dommages aux biens et aux personnes résultat de la projection d'objets.

AVERTISSEMENT! Cet appareil génère un champ électromagnétique pendant qu'il fonctionne! Dans certaines circonstances, ce champ magnétique peut interférer avec les implants médicaux actifs ou passifs! Afin de réduire les blessures graves voire mortelles, les personnes portant des implants médicaux doivent consulter leur médecin et le fabricant de leur implant avant d'utiliser ce produit!
Mises en garde

AVERTISSEMENT ! Certaines poussières engendrées par ponçage, sciage, meulage, perçage et d'autres activités du domaine de la construction contiennent des substances chimiques considérées comme cancérigènes, tératogènes ou nocives pour les fonctions reproductrices. Liste non exhaustive de ces substances :
- Le plomb contenu dans les peintures au plomb.
- La silice cristalline contenue dans les briques, le ciment et d'autres matériaux de construction.
- L'arsenic et le chrome contenus dans le bois de construction Traits chimiquement.
Les risques engendrés par l'exposition à ces substances dépendent de la fréquence de ce type de travaux. Pour réduire votre exposition à ces substances chimiques,
- Travailler dans un endroit bien aéré.
- Travailler avec des équipements de sécurité approuvés (ex : masques anti-poussière spécialement conçus pour filtrer les particules microscopiques).
Symboles
Sur l'appareil, sur la plaque signalétique et dans le mode d'emploi, vous trouverez entre autres les symboles et abréviations suivants. Familiarisez-vous avec leur signification afin de réduire les risques de dommages matériels.
V~ Volt (tension alternative) mm Millimètre
Hz Hertz kg Kilogramme
W Watt dB(A) Decibel (pondéré A)
/min ou min⁻¹ Par minute m/s² Mètres par seconde carrière

Verrouiller / serrer ou fixer.

Déverrouiller / desserrer.

Remarque. Attention / advertisement.


Lisez le mode d'emploi.

Porter une protection auditive.

Portez des lunettes de protection.

Portez un masque antipoussière.

Portez des gants de travail.

Porter des chaussures de protection.
yyWxx
Code de la date de fabrication ; année de fabrication (20yy) et semaine de fabrication (Wxx)

Éteignez et débranchez l'appareil avant de le ranger, de le transporter et d'effectuer toute manipulation de montage, de nettoyage, de réglage et d'entretien.

Ceci est un produit de classe de protection II. Cela signifie qu'il est équipé d'une isolation renforcée ou d'une double isolation.

Ce produit est conforme aux directives européennes applicables et a subi un test de conformité avec les directives en question.

Symbole DEEE. Les produits électriques usagés ne doivent pas être jetés avec les ordures ménagères. Apportez le produit à un endroit où il pourrait être recyclé. Pour plus d'informations sur le recyclage, adressez-vous au magasin d'achat ou aux autorités de votre commune.
Le produit



- Ouvertures d'aération
- Cordon d'alimentation avec prise
- Poignée droite
- Molette de fixation du guide parallèle (x2)
- Bouton de verrouillage de la broche
- Broche a. Écrou de verrouillage
- Embase
- Bouton rotatif
- Butée de profondeur
- Molette de fixation de la butée de profondeur
- Poignée gauche
- Molette de réglage fin de la profondeur
- Bouton marche/arrêt
- Bouton de verrouillage
- Sélecteur de vitesse
- Lever de fixation de la profondeur
- Adaptateur d'évacuation des poussières
- Guide parallèle
a. Tige (x2) b. Rondelle élastique (x2) c. Vis (× 2)
- Pince de serrage 6 mm/8 mm
- Axe de centrage
- Clé
- Bague de copiage a. Vis (x2)

REMARQUE: Les éléments marqués d'une * ne sont pas présents dans cet aperçu. Veuillez-vous référer à la section correspondante de ce mode d'emploi.
Généralités
Tension nominale d'entrée: 220 - 240V~, 50 Hz
Puissance nominale d'entrée : 1200 W Vitesse nominale à vide n_0 : 10000 - 30000 min Classe de protection : Poids : env. 2,9 kg Plongée max. : 55 mm Dimension de la pince de serrage : 6 mm / 8 mm
Bruit mesuré en ISO 3744 et EN ISO 11203
Pression acoustique L_pA : 86 dB(A) Puissance acoustique L_WA : 97 dB(A) Incertitude KpA, KwA : 3 dB(A)
Vibrations mesurées selon la norme en 60745-1
Vibration main-bras a_h : 4,145 m/s² Incertitude K : 1,5 m/s²
La pression acoustique pour l'opérateur peut dépasser les 80 dB(A), portez une protection auditive.
La valeur totale de vibrations déclarée a été mesurée conformément à une méthode d'essai normalisée (EN60745-2-17) et peut être utilisée pour comparer un outil à un autre;
La valeur totale de vibrations déclarée peut également être utilisée pour une évaluation préliminaire de l'exposition.

Avertissement :
L'émission de vibration au cours de l'utilisation réelle de l'outiletectrique peut différer de la valeur totale déclarée, selon les méthodes d'utilisation de l'outil; et - Les mesures de sécurité visant à protéger l'opérateur, qui sont basées sur une estimation de l'exposition dans les conditions d'utilisation réelles (compte tenu de toutes les parties constitutives du cycle de fonctionnement, telles que les temps d'arrêt de l'outil et de fonctionnement au repos, en plus du temps de déclenchement).
Déballage
Sortez les pièces de l'emballage et posez-les sur une surface plane et stable. Enlevez tous les matériaux d'emballage ainsi que les accessoires de livraison, le cas échéant. Vérifiez que le produit est complet et en bon état. Si l'une des pièces est manquante ou endommagée, n'utilisez pas l'appareil et contactez le magasin d'achat. L'utilisation d'un produit incomplet ou endommagé peut représenter un danger à la fois pour les biens et pour les personnes. Vérifiez que vous disposez de tous les accessoires nécessaires au montage et à l'utilisation de l'appareil. Les accessoires incluent notamment les équipements de protection personnelle.

AVERTISSEMENT! Ne pas laisser les enfants jouer avec l'outil et ses emballages. Les sacs plastiques, les feuilles protectrices et les petites pièces présentent un risque d'étouffement!
Accessoires requis
(éléments non fournis)
Équipement de protection individuelle ajusté Tournevis cruciforme ajusté FraiseUSES
(elements fournis)
Adaptateur d'évacuation des poussières [17] Guide parallèle [18] Pince de serrage 6/8 mm [19] Axe de centrage [20] Clé [21] Bague de copiage [22]
Préparation

AVERTISSEMENT! L'outil doit être entièrement assemblé avant son utilisation.
Ne pas utiliser un outil qui n'est que partiellement assemblé ou assemblé avec des pièces endommagées. Suivre les montages étape par étape et utiliser les illustrations fournies comme guide pour assembler facilement l'outil. Ne pas brancher l'outil avant qu'il ne soit complètement assemblé!
MSR1200 par MacAllister
Fraises
Il est possible d'utiliser différentes fraises avec cet appareil en fonction du matériel travaillé.

AVERTISSEMENT ! Utilisez toujours des fraises adaptées à l'utilisation prévue !
Respectez les exigences techniques de ce produit (voir section «Spécifications techniques») lors de l'achat et de l'utilisation femmes!
Certaines fraises sont très acérées et s'échauffent par l'utilisation! Veuillez les manipuler avec précaution! Portez des gants de protection lorsque vous manipulez les fraises de façon à éviter des blessures par brûlure ou coupure!
Types et formes
Les fraises sont disponibles en différentes formes et tailles. Ci-dessous figure seulement un petit aperçu des formes les plus courantes. Pour d'autres formes, demandez en magasin.
| Type Profile | ||
| Fraise droite | ||
| Fraise à chanfreiner | ||
| Fraise à queue d'aronde | ||
| Fraise à gorge | ||
| Matière de la+Faise Utilisation | |
| HSS (acier rapide) | matériaux tendres, par exemple bois tendre et plastique |
| TCT (carbure de tungstène) | matériaux durs et abrasifs, par exemple bois dur et aluminium |

AVERTISSEMENT! Toujours vous assurer que le diamètre de tige de la fraise est ajusté à la pince de serrage fournie avec le produit. N'utilisez jamais une fraise dont la tige ne convient pas à la pince de serrage. Les revendeurs spécialisés proposent des pinces de serrage de différentes tailles.
Fixation
Exercez une légère pression sur les poignées [3, 11] et desserrez en même temps le levier de fixation de la profondeur [16] afin de relever le boîtier (Figs. 1, 2).


Fig. 1 Fig. 2
AVERTISSEMENT! Ne pas desserrer le levier sans exercer de pression sur les poignées! Sinon, lorsque le levier est relâché, le boîtier remonte rapidement!
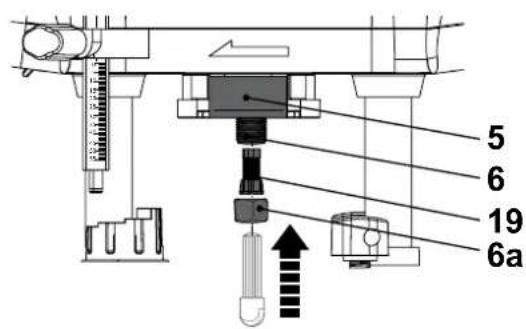
Resserrez le levier de fixation de la profondeur [16]. Appuyez sur le bouton de verrouillage de la broche [5] et maintenez-le en position tout en desserrant l'écrou de verrouillage [6a] à l'aide de la clé [21] (Fig. 3).
Fig. 3
Fraises

REMARQUE : Il existe des pinces de serrage pour des fraises avec différentes tailles de tige. Choisissez une pince de serrage adaptée à la fraise utilisée.
Vérifiez régulièrement que la pince de serrage ne présente pas de défauts ou traces d'usure. Si nécessaire, remplacez-la par une pince neuve du même type.
Vérifiez que la pince de serrage [19] installée convient à la fraise désirée, si ce n'est pas le cas, retirez l'écrou de verrouillage [6a] et la pince de serrage [19] de la broche [6]. Installez une pince de serrage [1_9] appropriée et remontez l'écrou de verrouillage [6a] (Fig. 4). Introduisez une fraise dans la pince de serrage [19] au moins jusqu'à la marque «K» sur la tige (lorsqu'elle existe), ou bien jusqu'à 20 mm à l'intérieur de la pince de serrage [19] (Fig. 4).

Fig. 4 Fig. 5
Appuyez sur le bouton de verrouillage de la broche [5] et maintenez-le en position tout en desserrant l'écrou de verrouillage [6a] à l'aide de (Fig. 5). Tirez prudemment sur la fraise afin de vérifier qu'elle est solidement fixée. Il ne doit pas être possible de la retirer.
Changement / démontage
Assurez-vous que l'appareil est en position haute et posez-le sur une surface plane et stable. Appuyez sur le bouton de verrouillage de la broche [5] et maintenez-le en position tout en desserrant l'écrou de verrouillage [6a] à l'aide de la clé [21]. Retirez la fraise de la pince de serrage [19] et insérez une nouvelle fraise si nécessaire (Fig. 6).
Fig. 6
Guide parallèle
Attachez le guide parallèle [18] pour réaliser des coupes parallèles à un côté de la pièce à travailler.
Retirez la vis [18c] avec rondelle élastique [18b] de la tige [18a].
Alignez le filetage de l'extrémité de la tige [18a] sur le trou de montage du guide parallèle [18].
Fixez l'ensemble avec la rondelle élastique [18b] et la vis [18c] à l'aide d'un tournevis cruciforme approprié (Fig. 7).
Fig. 7
Répétez les étapes ci-dessus pour fixer la seconde tige [18a]. Faites glisser les extrémités libres des tiges [18a] dans les trous de l'embase [7] (Fig. 8).
Fig. 8
Réglez la largeur souhaitée et fixez solidement le guide parallèle [18] en serrant les deux molettes de fixation [4].
Axe de centrage
Utilisez l'axe de centrage [20] pour découper des cercles dans la pièce à travailler.
Enlevez le guide parallèle de l'appareil et retournez-le. Alignez le filetage de l'extrémité de l'axe de centrage [20] sur l'un des trous de montage du guide parallèle [18]. Fixez l'ensemble avec la rondelle élastique et la vis à l'aide d'un tournevis cruciforme approprié (Fig. 9a).
Fig. 9a
Faites glisser les extrémités libres des tiges [18a] dans les trous de l'embase [7] (Fig. 9b).
Fig. 9b
Réglez le rayon souhaité et fixez solidement l'axe de centrage [20] en serrant les molettes de fixation [4].
Bague de copie
Utilisez la bague de copiage [22] pour suivre des gabarits ou des modèles sur les pièces à travailler.
Positionnez la bague de copiage [22] sur l'embase [7], col vers le haut, fixez-la solidement avec les deux vis [22a] (Fig. 10).
Fig. 10
Adaptateur d'évacuation des poussières
Insérez l'adaptateur d'évacuation des poussières [17] à l'arrière du produit. Poussez l'adaptateur d'évacuation des poussières [17] vers l'avant (Fig. 11, étape 1) puis vers le bas, jusqu'à ce qu'il s'enclenche de manière audible (Fig. 11, étape 2).
Pour le démonter de l'appareil, poussez l'adaptateur d'évacuation des poussières [17] vers l'avant. souveze-ile.
Fig. 11
Branchement de l'appareil
Assurez-vous que le bouton marche/arrêt [13] est bien sur la position arrêt. Branchez la prise maje sur une prise de courant adaptée.

AVERTISSEMENT! Vérifiez la tension de la prise. Elle doit correspondre à celle indiquée sur la plaque signalétique de l'appareil.
Notre outil est maintenant prêt à l'emploi.
En détails...

Fonctions de l'ordinateur 23
Utilisation 28
Entretien et maintenance 33
Dépannage 36
Mise au rebut et recyclage 37
Garantie 37
Déclaration de conformité CE 39

Domaine d'utilisation
Ce produit est conçu pour réaliser des rainures, des cordures, des profils et des troughs oblongs dans le bois, le plastique et les matériaux de construction légers, en reposant fermement sur la pièce à travailler. Le produit position verticale. Ne jamais l'utiliser pour réaliser un travail en hauteur (au-dessus de la tête) ou sur des surfaces verticales.
Ne pas travailler des matériaux nocifs pour la santé.
Pour des raisons de sécurité, il est essentiel de lire le mode d'emploi dans son intégralité avant d'utiliser cet outil pour la première fois et toutes les consignes qu'il contient.
Cet appareil est conçu pour une utilisation domestique seulement.
Il n'est pas conçu pour une utilisation commerciale. Ne l'utilisez pas pour d'autres travaux que ceux décrits dans le mode d'emploi.
Adaptateur d'évacuation des poussières
Toujours raccorder un dispositif d'extraction de poussière approprié à l'adaptateur d'évacuation [17] du produit durant son utilisation, afin de maintenir la zone de travail propre.
Fig. 12

AVERTISSEMENT ! Toujours utiliser un dispositif d'extraction de poussière et porter un masque anti-poussière durant l'utilisation du produit ! La poussière peut être nocive pour la santé ! En particulier la poussière et les copeaux du bois qui a été traité, par exemple avec un agent de protection du bois ou une lasure !
Sélecteur de vitesse
Le sélecteur de vitesse [15] permet de limiter la vitesse maximale.
Tourner le sélecteur de vitesse [15] vers l'arête pour augmenter la vitesse maximum (Fig. 13). Une vitesse élevée est adaptée à l'utilisation de fraise de diamètre plus grand ou le travail de matériaux durs comme le bois. Tourner le sélecteur de vitesse [15] vers l'avant pour réduire la vitesse maximum (Fig. 14). Une vitesse lente est adaptée à l'utilisation de fraise de diamètre plus petit ou le travail de matériaux tendre comme le plastique.
Fig. 13 Fig. 14

Vitesse de rotation recommandée
| Matériaux Vitesse | |
| Bois dur (hêtre) 4 – MAX | |
| Bois tendre (sapin) 5 – MAX | |
| Panneaux de particules 3 – 5 | |
| Plastique 2 – 3 | |
| Aluminium 1 – 4 |

REMARQUE: Les valeurs ci-dessus sont données à titre indicatif uniquement et peuvent varier en fonction de la pièce travaillée.
Bouton marche/arrêt
Appuyez sur le bouton de verrouillage [14] et maintenez-le en position. Appuyez sur le bouton marche/arrêt [13] pour mettre le produit en marche (Fig. 15). Relâchez le bouton marche/arrêt [13] pour éteindre le produit.
Fig. 15
Ajustement de la profondeur de coupe

AVERTISSEMENT! Éteignez et débranchez toujours l'outil avant d'effectuer tout réglage!
Ajustez la profondeur de coupe en 2 étapes.
Réglage de base
Placez le produit avec la fraise prémontée sur la pièce à travailler. Réglez le bouton rotatif [8] sur sa position la plus basse. Desserrez la molette de fixation de la butée de profondeur [10], de sorte que la butée de profondeur [9] puisse bouger librement. Libérez le levier de fixation de la profondeur [16] et faites descendre doucement l'appareil, jusqu'à ce que la fraise touche la surface de la verrouillez le levier de fixation de la profondeur [16] lorsque l'appareil est à sa position la plus BASSE. Réglez la butée de profondeur [9] de sorte qu'elle touche la position la plus basse du bouton rotatif [8] et lisez la valeur indiquée sur l'échelle. Ajoutez la profondeur de coupe souhaitée et réglez ensuite la butée de profondeur [9] en conséquence (Fig. 16).
Ajustement de la profondeur de coupe

Fig. 16
EXAMPLE: La valeur indiquée est 10 mm, la profondeur de coupe désirée est 4 mm. La valeur totale est 14 mm. Tirez la butée de profondeur vers le haut jusqu'à ce que la valeur 14 mm soit affichée.
Serrez la molette de fixation de la butée de profondeur [10] afin de fixer la butée de profondeur [9].

REMARQUE: Faites un essai de coupe dans une chute de bois.
Réglage fin
Utilisez la molette de réglage fin de la profondeur [12] pour régler avec précision la profondeur de coupe (Fig. 17). Tournez la molette de réglage fin profondeur [12] dans le sens des aiguilles d'une montre pour augmenter la profondeur de coupe. Tournez la molette de réglage fin de profondeur [12] dans le sens inverse des aiguilles d'une montre pour diminuer la profondeur de coupe. Lisez la valeur indiquée sur l'échelle.
Fig. 17

REMARQUE: Après le réglage de la profondeur de coupe, la position du repère de réinitialisation sur la butée de profondeur est modifiée, afin que le réglage en cours puisse toujours être lu sur l'échelle.
Bouton rotatif
Utilisez le bouton rotatif [8] pour réaliser des coupes plus profondes en plusieurs étapes, chacune enlevant moins de matière. Ce produit permet de réaliser les coupes en un maximum de 8 étapes (Fig. 18).
Fig. 18

REMARQUE : Il est utile de procéder en plusieurs étapes pour les coupes plus profondes. Sinon, la pièce travaillée est endommagée.
Réglez la profondeur de coupe souhaitée avec le niveau le plus bas du bouton rotatif [8] comme décrit ci-dessus. Mettez le produit dans sa position haute. Réglez le bouton rotatif [8] sur une position plus élevée. Réalisez la première coupe avec ce réglage.

REMARQUE : Les marches du bouton rotatif sont de différentes hauteurs.
Tournez le bouton rotatif [8] vers une position inférieure et effectuez une nouvelle coupe. Recommencez l'opération avec la position inférieure suivante si nécessaire. Enfin, tournez le bouton rotatif [8] sur sa position la plus BASSE et réalisez la dernière coupe.
Utilisation générale
Avant chaque utilisation, examinez le câble, la prise mâle et les accessoires afin de vous assurer qu'ils sont en bon état. N'utilisez pas l'appareil s'il est usé ou endommagé. Re vérifiez le montage des accessoires. Portez toujours l'appareil en le tenant par ses poignées. Afin d'assurer une bonne prise, les poignées doivent rester sèches. Les ouvertures d'aération doivent rester propres et dégagées en permanence. Le cas échéant, nettoyez-les avec une brosse à poils mous. Si elles sont obstruées, l'appareil risque de surchauffer et d'être endommagé. Éteignez immédiatement l'appareil si vous êtes distraint par quelqu'un ou si une personne s'approche de la zone de travail. Attendez l'arrêt complet de l'appareil avant de le poser. Limitez votre temps de travail : faites des pauses régulières, cela vous permettra d'être plus concentré dans votre travail et de garder le contrôle de l'appareil.
Sens de l'avance
Toujours avancer dans la direction opposée au sens de rotation de la fraise. Sinon, la fraise va prendre du jeu dans la pince de serrage (Figs. 19, 20).
Fig. 19 Fig. 20

Déplacez le produit dans les sens inverse des aiguilles d'une montre quand vous travailliez l'extérieur de la pierre. Déplacez le produit dans le sens des aiguilles d'une montre quand vous travailliez l'intérieur de la pièce 21).
Fig. 21
Veuillez noter que lorsqu'il est utilisé sans guide, le produit a tendance à tourner vers la droite s'il est déplacé en direction de l'opérateur (Fig. 22), et vers la gauche s'il s'éloigne de l'opérateur (Fig. 23).
Fig. 22 Fig. 23


REMARQUE : Pour obtenir un résultat satisfaisant, nous recommandons d'utiliser plusieurs les guides fournis.
Généralités sur la coupe

REMARQUE: Avant la première découpe d'une pièce, familiarisez-vous aux différents modes de déplacement en réalisant des essais sur des chutes de matériel.
Même si vous connaissiez bien ce produit, faites toujours un essai sur des chutes de matériel au fin de tester les réglages de vitesse, de profondeur, ainsi que la+Faise.
Déplacement




AVERTISSEMENT! L'utilisation de ce produit génère des poussières fines!
Certaines poussières sont hautement inflammables et explosives! Ne pas fumer pendant l'utilisation. Maintenir les sources de chaleur et les flammes nues hors de la zone de travail!
Toujours porter un masque anti-poussière pour vous prémunir des risques liés aux poussières fines !
Avant de couper, vérifie qu'il n'y a pas d'obstacles, comme des clous ou des vis, sur la pièce à travailler. Enlevez-les si nécessaire.
Fixez la fraise désirée et branchez un dispositif d'extraction de poussière.
Assurez-vous que le levier de fixation de la profondeur [16] est serré avant de placer l'appareil sur la pièce à travailler.
Tenez l'appareil fermement avec vos deux mains sur les poignées [3, 11] puis mettez-le en marche.
Attendez que la fraise atteigne sa vitesse maximale, puis exercez une légère pression sur les poignées [11] afin de pousser le boîtier vers le bas. La fraise va s'enfoncer dans la pièce travaillée.
Maintenez la pression sur les poignées [3, 11] et verrouillez au même temps le levier de fixation de la profondeur [16] lorsque la profondeur de coupe désirée est atteinte (Fig. 24).
Fig. 24
Déplacez le produit vers l'avant à une vitesse lente et constante. Faites attention au sens d'avance. Immobilisez le produit à la fin de la découverte, relâchez le bouton marche/arrêt et attendez que la fraise soit tout à fait immobile avant de retirer l'appareil de la pièce travaillée.

REMARQUE: Pour obtenir une coupe régulière, exercez toujours une pression constante sur les poignées et sur la pièce travaillée.
Coupes parallèles
Installez le guide parallèle [18] sur le produit. Placez le produit sur la pièce à travailler de sorte que le guide parallèle [18] soit appuyé contre le bord de celle-ci et réglez la largeur souhaitée. Serrez fermement les molettes de fixation [4]. Exercez une légère pression contre la pièce travaillée pendant la découpe, afin que le guide parallèle reste bien à plat contre le bord de la pièce. Pour la réalisation de coupe/bordure parallèle, poussez l'appareil vers l'avant quand le guide parallèle est installé à droite (vu depuis la position de l'opérateur) (Figs. 25, 26). Pour la réalisation de coupe/bordure parallèle, tirez l'appareil vers l'arrière quand le guide parallèle est installé à gauche (vu depuis l'opérateur) (Figs. 27, 28).
Fig. 25 Fig. 26
Fig. 27 Fig. 28
Coupe de bordure
Installez le guide parallèle [18] sur le produit. Installez une fraise avec roulement sur la pince de serrage [19]. Placez le produit sur la pièce à travailler de sorte que le guide parallèle [18] et le roulement soient appuyés contre le bord de celle-ci. Exercez une légère pression contre la pièce travaillée pendant la découverte, afin que le guide parallèle [18] et le roulement restent bien à plat contre le bord de la pièce (Figs. 29, 30).
Fig. 29 Fig. 30

Cercles
Installez l'axe de centrage [20] sur le produit. Réglez le rayon du cercle souhaité. Marquez le centre du cercle et enoncez légèrement la broche dedans. Pour obtenir un résultat satisfaisant, assurez-vous qu'elle ne risque pas de s'échapper pendant le travail (Figs. 31, 32).
Fig. 31 Fig. 32

Découpe au gabarit
Installez la bague de copiage [22] sur le produit.
Posez le gabarit sur la pièce à travailler et fixez-le à l'aide de serre-joints appropriés. Installez les serre-joints de façon qu'ils ne gênent pas le passage de l'appareil.
Placez le produit sur la pièce à travailler de sorte que le col de la bague de copiage [22] soit appuyé contre le bord du gabarit.
Placez le produit sur la pièce à travailler de sorte que la bague de copiage [22] soit contre le bord du gabarit.
Exercez une légère pression contre le gabarit pendant la découpe, afin que la bague de copiage reste bien à plat contre le bord du gabarit.

Après usage
Éteignez l'appareil, débranchez-le et laissez-le refroidir.
Examinez l'appareil, nettoyez-le puis rangez-le de la manière décrite ci-dessous.
Les règles d'or pour l'entretien

AVERTISSEMENT! Éteignez l'appareil, débranchez-le et laissez-le refroidir avant de l'examiner et d'effectuer toute manipulation de nettoyage ou d'entretien.
L'appareil doit rester propre. Nettoyez-le après chaque utilisation et avant de le ranger. Un nettoyage régulier et approfondi permet d'assurer la sécurité d'utilisation de l'appareil et contribue à prolonger sa durée de vie. Avant chaque utilisation, examinez l'appareil afin de vous assurer qu'il n'est pas usé ou endommagé. Ne l'utilisez pas si des pièces sont cassées ou endommagées.
Les règles d'or pour l'entretien

AVERTISSEMENT! N'essayez pas d'effectuer d'autres manipulations de réparation et d'entretien que celles décrites dans le mode d'emploi! Toute autre manipulation doit être effectuée par un spécialiste qualifié!
Nettoyage général
Nettoyez le produit avec un chiffon sec. Pour les endroits difficiles à atteindre, utilisez une brosse. En particulier, les ouvertures d’aération [1] doivent être nettoyées après chaque utilisation, à l'aide d'un chiffon et d'une brosse. Enlevez les poussières tenaces avec de l'air comprimé (max. 3 bars).

REMARQUE: N'utilisez pas de substances chimiques, alcalines ou abrasives, ni de détergents ou de désinfectants caustiques; ceux-ci sont de nature à endommager les surfaces de l'appareil.
Examinez l'appareil pour voir si certaines pièces sont usées ou endommagées. Changez les pièces usées ou adressez-vous à un centre de réparation/agréé pour faire réparer l'appareil avant de le réutiliser.
Maintenance
Avant et après chaque utilisation, inspectez l'outil et les accessoires à détecteur d'éventuels signes d'usure ou d'endommagement. Si besoin, remplacez les comme indiqué dans le mode d'emploi. Respectez les exigences techniques.
Câble d'alimentation
Si le câble d'alimentation de l'outil est endommagé, il doit être remplacé par un câble spécifique préparé disponible auprès du service après-vente.
Réparation
Cet appareil ne contient aucune pièce pouvant être réparée par l'utilisateur. Faites examiner et réparer l'appareil par un spécialiste qualifié.
Rangement
Éteignez l'appareil et débranchez-le avant de le déplacer où que ce soit. Nettoyez l'appareil (voir plus haut). Rangez l'appareil et ses accessoires dans un endroit sec et à l'abri du gel. L'appareil doit toujours être rangé dans un endroit hors de portée des enfants. Dans l'idéal, la température de la pièce dans laquelle l'appareil est rangé doit être comprise entre 10°C et 30°C. Nous vous recommandons de ranger l'appareil dans son emballage d'origine ou de le recouvrir avec un tissu afin de le protéger contre la poussière.
Transport
Éteignez l'appareil et débranchez-le avant de le déplacer où que ce soit. Montez les protections de transport, le cas échéant. Portez toujours l'appareil en le tenant par ses poignées [3, 11]. Protégez l'appareil contre les risques de chocs ou de fortes vibrations auxquels il pourrait être soumis lors d'un déplacement en véhicule. Maintenez-le bien en place de manière à ce qu'il ne puisse ni glisser ni tomber.
Dépannage
Les dysfonctionnements supposés sont souvent liés à des causes que l'utilisateur peut éliminer par lui-même. Il est donc recommandé de consulter cette section en cas de besoin. Dans la plupart des cas, le problème peut être résolu rapidement.

AVERTISSEMENT! N'essayez pas d'effectuer d'autres manipulations que celles décrites dans le mode d'emploi! Si vous n'arrivez pas à résoudre le problème par vous-même, toutes les autres manipulations de contrôle, d'entretien et de réparation devront être effectuées par un centre de réparation agréé ou par un spécialiste équivalent.
| Problème Cause | use possible Solution | |
| 1. L'appareil ne démarre pas | 1.1 Il n'est pas branché 1.2 Le cable ou la prise mâle sont défectueux 1.3 Autre dysfonctionnement | 1.1 Branchez-le 1.2 Consultez un électricien qualifié 1.3 Consultez un électricien qualifié |
| 2. L'appareil ne fonctionne pas à pleine puissance | 2.1 La rallonge ne convient pas à l'appareil 2.2 La tension de l'alimentation (ex: générateur) est trop faible 2.3 Les ouvertures de ventilation sont bloquées | 2.1 Utilisez une rallonge adéquate 2.2 Essayez une autre source d'alimentation 2.3 Nettoyez les ouvertures de ventilation |
| 3. Résultat insatisfaisant | 3.1 La fraise est usée/ abimée 3.2 La fraise ne convient pas pour le matériel | 3.1 Changez-la 3.2 Utilisez une fraise adéquate |
| 4. Vibration ou bruit excessif | 4.1 La fraise est usée/ abimée. 4.2 Boulons/écrous desserrés | 4.1 Changez-la 4.2 Serrez les boulons/écrous |
Mise au rebut et recyclage

Les produits électriques usagés ne doivent pas être jetés avec les ordures ménagères. Apportez le produit à l'endroit où il pourrait être recyclé. Pour plus d'informations sur le recyclage, adressez-vous au magasin d'achat ou aux autorités de votre commune.
Certificat de garantie
Le constructeur garantit sa machine pendant 24 mois à compter de la date d'achat. Les machines destinées à la location ne sont pas couvertes par la présente garantie.
Le constructeur assure le remplacement de toutes les pièces défectueuses par un défaut ou un vice de fabrication.
En effet, la garantie ne peut donner lieu à un remboursement du matériel ou à des dommages et intérêts directs ou indirects.
Cette garantie ne couvre pas :
- une utilisation anormale
- un manque d'entretien
- une utilisation à des fins professionnelles
- le montage, le réglage et la mise en route de l'appareil
- tout dégât ou perte survenant pendant un transport ou déplacement
- les frais de port et d'emballage du matériel. Dans tous les cas, ceux-ci restent à la charge du client. Tout envoi chez un réparateur en port d' sera refusé.
- les pièces dites d'usure (mandrin, courroies, lames, supports de lame, câbles, roues, déflecteurs, ampoules, sacs, filtres, télécommandes, etc.)
Garantie
Il est entendu que la garantie sera automatiquement annulée en cas de modifications apportées à la machine sans l'autorisation du constructeur ou bien en cas de montage de pièces ne sont pas d'origine.
Le constructeur décline toute responsabilité en matière de responsabilité civile découlant d'un emploi abusif ou non conforme aux normes d'emploi et d'entretien de la machine.
L'assistance sous garantie ne sera acceptée que si la demande est adressée au service après-vente agréé, accompagnée de la carte de garantie accomplétée et du ticket de caisse.
Aussitôt après l'achat, nous vous conseillons de vérifier l'état intact du produit et de lire attentivement la notice avant son utilisation.
Dans toute demande de pièces de rechange, on devra spécifier le modèle exact de la machine, l'année de fabrication et le numéro de série de l'appareil.
NOTA BENE. Utiliser exclusivement des pièces de rechange d'origine.
Déclaration de conformité CE

Castorama France, C. S. 50101 Templemars, 59637 Wattignies CEDEX
Déclaré que la machine désignée ci-dessous :
DEFONCEUSE 1200 W MSR1200 Ref.: 654962
Est conforme aux dispositions des directives européennes suivantes :
Directive sur la compatibilité électromagnétique 2004/108/CE
Est conforme aux dispositions des normes harmonisées suivantes :
EN 60745-1:2009+A11:2010
EN 60745-2-17:2010
EN 55014-1:2006+A1:2009+A2:2011
EN 55014-2:1997+A1:2001+A2:2008
EN 61000-3-2:2006+A1:2009+A2:2009
EN 61000-3-3:2008
Cette déclaration couvre les machines dont le nombre de série est compris entre 1 et 100000.
Signataires et responsable de
la documentation technique autorisée :
Dominique Dole
Directeur qualité et expertise
A Templemars le 30/04/2014

Castorama France
C.S. 50101 Templemars
59637 Wattignies CEDEX
www.castorama.fr
N° Azur 0810 104 104
Dites «Question»
(prix appel local)

Castorama France
C.S. 50101 Templemars
59637 Wattignies CEDEX
www.castorama.fr
N° Azur 0810 104 104
Dites «Question» (prix appel local)
Notice Facile