AEC 22 - Aérotherme S.PLUS - Notice d'utilisation et mode d'emploi gratuit
Retrouvez gratuitement la notice de l'appareil AEC 22 S.PLUS au format PDF.
| Type d'appareil | Aérotherme eau chaude |
| Alimentation | Non précisé |
| Puissance thermique | Non précisé |
| Dimensions | Non précisées |
| Poids | Non précisé |
| Matériau du corps | Non précisé |
| Type de montage | Fixation murale ou plafond |
| Type de fluide caloporteur | Eau chaude |
| Pression maximale | Non précisée |
| Débit d'air | Non précisé |
| Type de ventilateur | Non précisé |
| Alimentation électrique ventilateur | Non précisée |
| Installation | Intérieure |
| Utilisation | Chauffage et ventilation |
| Maintenance | Non précisée |
| Normes | Non précisées |
FOIRE AUX QUESTIONS - AEC 22 S.PLUS
Téléchargez la notice de votre Aérotherme au format PDF gratuitement ! Retrouvez votre notice AEC 22 - S.PLUS et reprennez votre appareil électronique en main. Sur cette page sont publiés tous les documents nécessaires à l'utilisation de votre appareil AEC 22 de la marque S.PLUS.
MODE D'EMPLOI AEC 22 S.PLUS
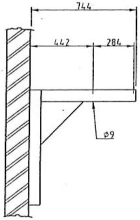
Spécifications de l'aérotherme en application murale, y compris dispositif de réduction des vibrations (option).
Aérotherme 02 Console murale
03 Dispositif de réduction des vibrations 04 Conduite d'alimentation 05 Conduite de retard T Modèle G Raccordement Poids en kg
1.1.2
Spécifications de l'aerotherme execution plafonnier, y compris dispositif réduction des vibrations (option).
01 Aérotherme 02 Console de plafond
03 Dispositif de réduction des vibrations 04 Conduite d'alimentation 05 Conduite de retard T Modèle Poids en kg
1.1
1.1.3

1.1.4


| Dim. | ||
| REF | A | |
| AEC 12-13 | 387 | 7,5 |
| AEC 22-23 | 517 | 7,5 |
| AEC 32-33 | 667 | 7,5 |
| AEC 42-43 | 797 | 7,5 |
1.1.5


| Dim. | ||
| REF | A | |
| AEC 12-13 | 387 | 7,5 |
| AEC 22-23 | 517 | 7,5 |
| AEC 32-33 | 667 | 7,5 |
| AEC 42-43 | 797 | 7,5 |
1.1.3
Spécifications de l'aerotherme exécution plafonnier, y compris dispositif de réduction des vibrations (option).
Aérotherme > 02 Console de plafond
03 Dispositif de réduction des vibrations 04 Conduite d'alimentation 05 Conduite de retard
Pour les dimensions et les poids, voir 1.1.1
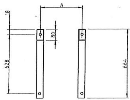
Console murale
Modèle Poids en kg
1.1.5
Dispositif de réduction des vibrations apparenté à pulsion horizontale
Modèle Poids en kg
L'absence d'amortisseurs de vibrations peut causer des problèmes de bruit!
1.2
1.2.1

1.2.2



1.2.3


1.2.4




Généralités
Pour le raccordement de l'aérotherme au réseau, il convient d'utiliser une clef serre-tubes supplémentaire afin d'éviter toute distorsion du tuyau.
1.2.2
Pour raccorder correctement l'aérotherme, il convient de raccorder le fluide chaud sur la conduite d'alimentation B et le fluide froid sur la conduite de retard A.
A Conduite de retard B Conduite d'alimentation
Il est impossible d'effectuer des raccordements vers le haut ou vers le bas car l'aération et la vidange seraient alors impossibles.
Protection contre le gel
Dans certaines situations, (air extérieur à 5°C) il peut y avoir des risques de gel. Dans ce cas, il convient d'installer un système de protection contre le gel!

IMPORTANT
Avant mise en service, orienter les ailettes de soufflage selon besoin (ne pas les laisser fermées!!!)


1.3.1
A Schéma électrique de raccordement moteur 1 B Option: schéma électrique de raccordement moteur 1 avec sectionneur.
L = Phase
N Zero
TK = Thermocontact
PE Terre
U-V-W = 3-Phase
1.3.2
A Schéma électrique de raccordement moteur 3 position bas. B Option : schéma électrique de raccordement moteur 3 position bas avec sectionneur. En inversant L1 et L2, on change la direction de rotation.
1.3.3
A Schéma électrique de raccordement moteur 3 position haut. B Option : schéma électrique de raccordement moteur 3 position haut avec sectionneur. En inversant L1 et L2, on change la direction de rotation.
1.3.4
A Schéma électrique de raccordement moteur 3 position haut/bas. B Option : schéma électrique de raccordement moteur 3 position haut / bas avec sectionneur.
1.4
Eléments de montage



25 1



6a 11



17 8

10 12 14
5 6
7 9 10 11
| A | B | C | D | E | F | G | H | I | K | L | N | R | S | T | U | |
| AEC 12-13 | 390 | 415 | 443 | 463 | 690 | 740 | 690 | 380 | 440 | 800 | 516 | 386 | 439 | 212 | 120 | 406 |
| AEC 22-23 | 520 | 545 | 573 | 593 | 920 | 920 | 820 | 510 | 570 | 895 | 666 | 516 | 573 | 253 | 151 | 530 |
| AEC 32-33 | 670 | 695 | 723 | 743 | 1180 | 1240 | 975 | 665 | 720 | 940 | 796 | 666 | 724 | 300 | 175 | 680 |
| AEC 42-43 | 800 | 835 | 853 | 873 | 1420 | 1240 | 1110 | 800 | 850 | 1075 | 1005 | 796 | 853 | 329 | 220 | 815 |
Descriptif
1 Capot de soufflage vertical a 4 cots
2 Capot de soufflage horizontal a 4 cots
3 Capote de soufflage 4 cots dorsontaux
4 Cone de soufflage
5 Caisson de mélange d'air 2 cots, commande manuelle
6 Caisson de mélange d'air pour clapets
7 Caisson de mélange d'air
8 Clapet jalousie
9 Section filtré (EU 3)
10 Cadre pour raccordement gains
11 Grille
11a Grille
12 Grille d'air frais ≤50% d'air frais
13 Grille d'air frais ≥50% - 100% d'air frais
14 Pièce d'adaptation
15 Section vide (b=120 mm)
16 Capote pare-pluie complément plaque à coller (aluminium)
17 Plaque de recouvrement
18 Capet jalousie pour protection moteur
19 Section vide (B=240 mm)
20 Console murale
21 Dispositif de réduction des vibrations pour 21 et 24
22 Console de plafond verticale
23 Dispositif de réduction des vibrations pour 22
24 Console plafond horizontale
25 Clapets à induction
Notice Facile