IC44821 - Système de lavage ELECTROLUX LAUNDRY SYSTEMS - Notice d'utilisation et mode d'emploi gratuit
Retrouvez gratuitement la notice de l'appareil IC44821 ELECTROLUX LAUNDRY SYSTEMS au format PDF.
| Type d'appareil | Sèche-linge industriel |
| Capacité d'évaporation d'eau | Environ 35 à 60 l/h |
| Diamètre du cylindre | Environ 479 mm |
| Vitesse de repassage | 1,5 à 1,9 m/min |
| Chauffage électrique | 33 à 54 kW |
| Chauffage vapeur (900 kPa) | 83 à 121 kg/h |
| Consommation gaz | Non précisé |
| Type de commande | Commande électronique compatible RABC et Biocontamination Control |
| Système de gestion d'humidité | Direct Inner Advanced Moisture Management System (DIAMMS) |
| Type de rouleau presseur | Avec ressorts pour qualité de repassage exceptionnelle |
| Sortie avant | Installation possible pour économiser de l'espace |
| Version avec pliage | Version LF avec pliage longitudinal automatique |
| Sécurité machine | Machine avec arrêt arrière et barre de sécurité main |
| Bandes de repassage | Bandes Nomex résistantes à plus de 200°C |
| Cylindre | Acier nickelé pour protection contre corrosion |
| Chauffage gaz | Rampe céramique sans entretien |
| Options principales | Cylindre multicouches Dubixium, logiciel CMIS pour maintenance |
| Norme | Conforme à la norme EN14065 |
FOIRE AUX QUESTIONS - IC44821 ELECTROLUX LAUNDRY SYSTEMS
Questions des utilisateurs sur IC44821 ELECTROLUX LAUNDRY SYSTEMS
0 question sur cet appareil. Repondez a celles que vous connaissez ou posez la votre.
Poser une nouvelle question sur cet appareil
Téléchargez la notice de votre Système de lavage au format PDF gratuitement ! Retrouvez votre notice IC44821 - ELECTROLUX LAUNDRY SYSTEMS et reprennez votre appareil électronique en main. Sur cette page sont publiés tous les documents nécessaires à l'utilisation de votre appareil IC44821 de la marque ELECTROLUX LAUNDRY SYSTEMS.
MODE D'EMPLOI IC44821 ELECTROLUX LAUNDRY SYSTEMS
Séchues repasseuses industrielles
IC44819, IC44821, IC44825, IC44828, IC44832 R/LF

éristiques et points forts
- Plastron de commande électronique, facile à utiliser et compatible RABC (Risk Analysis and Biocontamination Control - EN 14065) (Analyse des risques et maîtrise de la biocontamination)
- Système DIAMMS (Direct Ironer Advanced Moisture Management System); gestion automatique de la visées avec capteurs d'humidité pour un résultat parfait garanti
- Rouleau presseur avec ressorts pour une qualité de repassage exceptionnelle
- Sortie avant, installation possible contre un mur pour économiser de l'espace (version de base et version LF)
- Version LF avec piage longitudinal automatique pour une meilleure production
- Version R avec sortie arrêté
Machine entiement encastrée pour une sécurité maximale de l'environnement de travail et une economie d'énergie -
Barre de sécurité main pour la protection des opérateurs
-
Bandes de repassage Nomex®, résistant à des températures supérieures à 200°C
- Cylindre acier nickelé pour une(Meilleure protection contre la corrosion et une plus grande longévité
- Chauffage gaz par rampe céramique sans entretien plus fiable. 20% plus efficace que les rampes à flamme bleue standard. Rampe unique brevetée par Electrolux
Principales options
- Cylindre multicouches Dubixium™ pour les chauffages gaz ou électricque pour une production maximum dans toutes les conditions d'utilisation
- Logiciel CMIS (Clarus Maintenance Information System) pour l'enregistrement des paramètres de repassage selon la norme EN14065
| Caractéristiques principales | IC44819 | IC44821 | IC44825 | IC44828 | IC44832 | |
| Capacité*, évaporation d'eau max.** | l/h | 38/57/35 | 40/63/37 | 48/75/46 | 51/81/51 | 59/93/59 |
| Cylindre, diamètre (él, gaz/vapeur) | ø mm | 479/457 | 479/457 | 479/457 | 479/457 | 479/457 |
| longueur | mm | 1910 | 2120 | 2540 | 2750 | 3170 |
| Vitesse de repassage | m/min | 1.5-9 | 1.5-9 | 1.5-9 | 1.5-9 | 1.5-9 |
| Chauffage, électricité | kW | 33 | 37 | 44 | 47 | 54 |
| vapeur (900 kPa) | kg/h | 83 | 92 | 110 | 123 | 141 |
| gaz | Btu/h | 133100(39) | 150100(44) | 177400(52) | 191100(56) | 221800(65) |
| * 50 % d'humidité résiduelle (coton 180 g/m²) et utilisation du cylindre à 100 % (ISO 9398). ** électricité/vapeur/gaz. | ||||||
| Raccordement électrique* | IC44819 | IC44821 | IC44825 | IC44828 | IC44832 | |
| Chauffage Tension | ||||||
| ÉI. 400-415V 3AC 50 Hz | kW(A) | 35 (63) | 38 (63) | 45 (80) | 49 (80) | 56 (100) |
| Gaz, vapeur 400-415V 3AC 50 Hz | kW(A) | 2 (16) | 2 (16) | 2 (16) | 2 (16) | 2 (16) |
| Raccordement de vapeur, de gaz et d'air | ||||||
| Vapeur | DN | 20 | 20 | 20 | 20 | 20 |
| Pression de vapeur rec. | kPa | 900 | 900 | 900 | 900 | 900 |
| Condensat | DN | 10 | 10 | 10 | 10 | 10 |
| Gaz | DN | 20 | 20 | 20 | 20 | 20 |
| Pression du gaz, gaz naturel (G20/G25) | Pa | 2000/2500 | 2000/2500 | 2000/2500 | 2000/2500 | 2000/2500 |
| propane (G31) | Pa | 3700/5000 | 3700/5000 | 3700/5000 | 3700/5000 | 3700/5000 |
| Sortie d'air | ø mm | 160 | 160 | 160 | 160 | 160 |
| Air évacué | m³/h | 580 | 590 | 610 | 640 | 650 |
| Chute de pression | max. Pa | 200 | 200 | 200 | 200 | 200 |
| Niveau sonore | ||||||
| Niveau sonore aérien | dB(A) | 65 | 65 | 65 | 65 | 65 |
| Déperdition calorifique | ||||||
| % maximum de la puissance installée | 3 | 3 | 3 | 3 | 3 | |
| Dimensions et poids du colis (version de base et LF) | ||||||
| net, kg avec caisse, kg | 700/840 | 750/890 | 860/980 | 940/1060 | 1040/1150 | |
| 1025/1160 | 1065/1205 | 1190/1375 | 1375/1500 | 1475/1625 | ||
| Volume emballé, version de base & LF/R | m³ | 4.5/6.8 | 4.8/6.7 | 5.4/7.6 | 5.6/8.0 | 6.2/8.9 |
| Dimensions en mm | ||||||
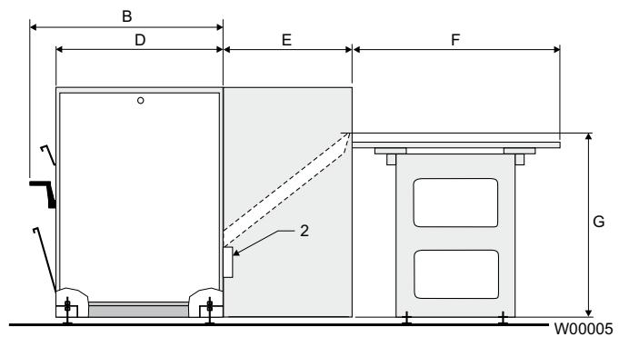
| A Largeur | 2575 | 2785 | 3205 | 3415 | 3835 | |
| B Profondeur | 1070 | 1070 | 1070 | 1070 | 1070 | |
| C Hauteur | 1270 | 1270 | 1270 | 1270 | 1270 | |
| D 950 950 950 950 950 950 950 950 950 950 950 950 950 950 950 950 950 950 950 950 950 950 950 950 950 951 950 951 950 951 950 951 950 951 950 951 950 951 950 951 950 951 950 951 950 951 950 951 950 951 951 950 951 950 951 950 951 950 951 950 951 950 951 950 951 950 951 950 951 950 951 950 951 950 950 951 950 951 950 951 950 951 950 951 950 951 950 951 950 951 950 951 950 951 950 951 950 950 950 951 950 951 950 951 950 951 950 951 950 951 950 951 950 951 950 951 950 951 950 951 951 950 950 951 950 951 950 951 950 951 950 951 950 951 950 951 950 951 950 951 950 951 950 951 951 951 950 951 950 951 950 951 950 951 950 951 950 951 950 951 950 951 950 951 950 951 950 951 951 951 951 950 951 950 951 950 951 950 951 950 951 950 951 950 951 950 951 950 951 950 951 950 950 951 951 950 951 950 951 950 951 950 951 950 951 950 951 950 951 950 951 950 951 950 951 950 950 950 950 951 950 951 950 951 950 951 950 951 950 951 950 951 950 951 950 951 950 951 950 950 951 950 950 951 950 951 950 951 950 951 950 951 950 951 950 951 950 951 950 951 950 951 950 950 951 951 951 950 951 950 951 950 951 950 951 950 951 950 951 950 951 950 951 950 951 950 951 951 950 951 951 950 951 950 951 950 951 950 951 950 951 950 951 950 951 950 951 950 951 950 951 951 950 950 950 951 950 951 950 951 950 951 950 951 950 951 950 951 950 951 950 951 950 951 950 950 950 951 951 950 951 950 951 950 951 950 951 950 951 950 951 950 951 950 951 950 951 950 951 951 951 950 950 951 950 951 950 951 950 951 950 951 950 951 950 951 950 951 950 951 950 951 950 950 950 950 950 951 950 951 950 951 950 951 950 951 950 951 950 951 950 951 950 951 950 951 951 950 951 950 950 951 950 951 950 951 950 951 950 951 950 951 950 951 950 951 950 951 950 951 951 950 951 951 951 950 951 950 951 950 951 950 951 950 951 950 951 950 951 950 951 950 951 950 950 951 950 951 951 950 951 950 951 950 951 950 951 950 951 950 951 950 951 950 951 950 951 950 950 951 950 950 950 951 950 951 950 951 950 951 950 951 950 951 950 951 950 951 950 951 950 951 951 950 950 951 951 950 951 950 951 950 951 950 951 950 951 950 951 950 951 950 951 950 951 950 950 951 951 950 950 951 950 951 950 951 950 951 950 951 950 951 950 951 950 951 950 951 950 951 951 950 950 950 950 951 950 951 950 951 950 951 950 951 950 951 950 951 950 951 950 951 950 951 951 951 950 951 951 950 951 950 951 950 951 950 951 950 951 950 951 950 951 950 951 950 951 950 950 950 951 950 950 951 950 951 950 951 950 951 950 951 950 951 950 951 950 951 950 951 950 951 951 951 950 950 950 951 950 951 950 951 950 951 950 951 950 951 950 951 950 951 950 951 950 951 951 951 951 950 950 951 950 951 950 951 950 951 950 951 950 951 950 951 950 951 950 951 950 951 951 951 951 951 950 951 950 951 950 951 950 951 950 951 950 951 950 951 950 951 950 951 950 951 951 951 951 951 951 950 951 950 951 950 951 950 951 950 951 950 951 950 951 950 951 950 951 950 950 951 951 951 951 950 951 950 951 950 951 950 951 950 951 950 951 950 951 950 951 950 951 950 950 950 951 951 951 950 951 950 951 950 951 950 951 950 951 950 951 950 951 950 951 950 951 950 950 950 950 951 951 950 951 950 951 950 951 950 951 950 951 950 951 950 951 950 951 950 951 950 950 950 950 950 950 951 950 951 950 951 950 951 950 951 950 951 950 951 950 951 950 951 950 950 951 950 951 950 950 951 950 951 950 951 950 951 950 951 950 951 950 951 950 951 950 951 950 950 951 950 951 951 951 950 951 950 951 950 951 950 951 950 951 950 951 950 951 950 951 950 951 951 950 951 950 951 951 950 951 950 951 950 951 950 951 950 951 950 951 950 951 950 951 950 951 951 950 951 950 950 950 951 950 951 950 951 950 951 950 951 950 951 950 951 950 951 950 951 950 950 951 950 950 951 951 950 951 950 951 950 951 950 951 950 951 950 951 950 951 950 951 950 951 951 950 951 951 950 950 951 950 951 950 951 950 951 950 951 950 951 950 951 950 951 950 951 950 950 951 950 950 950 950 951 950 951 950 951 950 951 950 951 950 951 950 951 950 951 950 951 950 950 951 951 950 951 951 950 951 950 951 950 951 950 951 950 951 950 951 950 951 950 951 950 951 951 950 950 951 950 950 951 950 951 950 951 950 951 950 951 950 951 950 951 950 951 950 951 950 950 951 951 950 950 952 952 | ||||||
- Autres tensions disponibles, voir manuel d'installation.

Vue de face

Vue de côté

Vue de dessus

Chauffage gaz par rampe céramique sans entretien plus fiable. 20% plus efficace que les rampes à flamme bleue standard. Rampe unique brevetée par Electrolux.

Cylindre multicouche à fluide thermique
Dubixium™ guarantissant un fonctionnement constant grâce à la disparition des surchauffes des côtes.

Le système DIAMMST de régulation automatique de la vitesse est basé sur une mesure réelle de l'humidité du linge. Une et brevete.
Notice Facile