CAD HRMURAL ET CAD RHRM - Ventilation UNELVENT - Notice d'utilisation et mode d'emploi gratuit
Retrouvez gratuitement la notice de l'appareil CAD HRMURAL ET CAD RHRM UNELVENT au format PDF.
| Intitulé | Description |
|---|---|
| Type de produit | Ventilateur de récupération de chaleur mural |
| Caractéristiques techniques principales | Récupération de chaleur, ventilation, fonctionnement silencieux |
| Alimentation électrique | 230 V, 50 Hz |
| Dimensions approximatives | Dimensions : 600 x 300 x 200 mm |
| Poids | Environ 15 kg |
| Compatibilités | Compatible avec les systèmes de ventilation standard |
| Puissance | Max 200 W |
| Fonctions principales | Récupération de chaleur, amélioration de la qualité de l'air intérieur |
| Entretien et nettoyage | Filtres à nettoyer tous les 6 mois, vérification annuelle du système |
| Pièces détachées et réparabilité | Disponibilité des pièces détachées, réparabilité facile |
| Sécurité | Conforme aux normes de sécurité électrique, protection contre les surcharges |
| Informations générales utiles | Installation recommandée par un professionnel, garantie de 2 ans |
FOIRE AUX QUESTIONS - CAD HRMURAL ET CAD RHRM UNELVENT
Questions des utilisateurs sur CAD HRMURAL ET CAD RHRM UNELVENT
0 question sur cet appareil. Repondez a celles que vous connaissez ou posez la votre.
Poser une nouvelle question sur cet appareil
Téléchargez la notice de votre Ventilation au format PDF gratuitement ! Retrouvez votre notice CAD HRMURAL ET CAD RHRM - UNELVENT et reprennez votre appareil électronique en main. Sur cette page sont publiés tous les documents nécessaires à l'utilisation de votre appareil CAD HRMURAL ET CAD RHRM de la marque UNELVENT.
MODE D'EMPLOI CAD HRMURAL ET CAD RHRM UNELVENT

Les plus
- Échangeur à contre-courant à haut rendement de 95 %
- Moto-ventilateur à moteur électrique basse consommation
- Construction monobloc double peau.
- Solution « prêt à brancher »
Gamme
CAD HR mural : 3 tailles de 100 à 800 m³/h. CAD RHRm : 5 tailles de 100 à 4000 m³/h.
Applications
- Introduction et extraction d'air dans les locaux tertiaires recherchant des économies d'énergie.
- Installation à l'intérieur ou à l'extérieur des bâtiments.
- Solution complémentaire au puits canadien.

Locaux tertiaires
Construction commune au CAD HRmural et CAD RHRm
- Caisson à structure en profilé aluminium extrudé anodisé.
- Panneau double peau avec isolation par plaques PSE ignifugées
- Finition extérieure en acier prépeint de type polyester thermoréticulable silicone.
- Finition inté
- Échangeur haut rendement de type air/air à contre-courant réalisé en aluminium « seawater résistant » pour une température jusqu'à 80°C
- Filtre plan plissé G4 à l'extraction, équipé d'une poignée facilement accessible par le côté.
- Moteur à courant continu à basse consommation, quelle que soit sa vitesse de rotation.
- Régulation complète permettant un fonctionnement soit :
- Débit constant (jusqu'à 3 consignes de débit)
- Pression constante
- Par signal 0/10V
- By-Pass partiel (50%)
- Bac de récupération des condensats
- Protection antigel
Particularités CAD HRmural
- Panneau double peau, épaisseur 15 mm.
- Filtre plan plissé G4 à l'aspiration d'air frais
- Version pré-câblée en standard sur CAD HR mural 450 uniquement
- Version extérieure sur CAD HR mural 600 et 800 uniquement.
- Configurations :
| Type | Pré-câblé | Version verticale | Version horizontale | Version interieure | Version extérieure |
| 450 | ✓ | ✓ | ✓ | ||
| 600 | * | ✓ | ✓ | ✓ | |
| 800 | * | ✓ | ✓ | ✓ | ✓ |
Particularités CAD RHRm
- Panneau double peau, épaisseur 30 mm.
- Filtre plan plissé F7 à l'aspiration d'air frais.
- Possibilité de pré-câblage sur toute la gamme.
- Configurations : Intérieur - Extérieur - Précâblé - Avec ou sans By-Pass
Accessoires en option
- By-Pass 100% (CAD RHRm) pour toiture sur version extérieure
- Manchette souple circulaire ou rectangulaire (CAD RHRm)
- Pièce de raccordement circulaire pulsion - extraction (CAD RHRm)
- Volet de surpression (refoulement)
- Sondes de température, sonde CO2, pression, détection de présence
Courbes aérauliques


- Plenum pour raccordement circulaire (CAD RHRm)
- Batterie de préchauffe électrique antigel
- Batterie de post-chauffe électrique ou eau chaude pour la régulation de température de soufflage. Commande à distance.
En hiver :
- L'air extrait traverse l'échangeur à contre-courant et cède la majeure partie de sa chaleur à l'air neuf insufflé. Économie d'énergie.
- Pas ou peu besoin de batterie de post-chauffage.
Exen
- RHRm 1200 Débit 1000 m³/h - Air neuf extérieur : T° = -10°C, HR = 90% - Air de reprise : T° = 22°C, HR = 50%
- Température de soufflage : 19.1 °C ; HR : 10.6 %
Rendement = 91 % - Puissance récupérée = 9,8 kW
- Dans le cas de locaux climatisés, l'air extrait plus frais traverse l'échangeur et refroidit l'air neuf insufflé.
- Le By-Pass permet de court-circuiter partiellement (50 %) ou totalement (100 %) l'échangeur pour réduire l'échange thermique.
- Il s'utilise lorsque l'on souhaite diminuer la température ambia basse.
- la nuit par exemple, on parle de free cooling.
Fonctionnement du by-pass et antigel

Air (1) = air frais (extérieur vers intérieur). Air (2) = air extrait (intérieur vers extérieur).
By-pass :
- Ouverture du By-Pass si :
- T° Ext (S1) < T° Int (S2) et T° Ext (S1) > 15°C et T° Int (S2) > 22°C. Fermeture du By-Pass si :
- T° Ext (S1) > T° Int (S2) et T° Ext (S1) < 14°C
Protection antigel de l'échangeur (sans batterie antigel)
Si la température extérieure (S3) est supérieure à +5 °C : fonctionnement normal. Si la température extérieure (S3) est comprise entre +1 °C et +5 °C : - Mode Débit constant (CA) ou Proportionnel signal 0-10 V (LS). Le débit de pulsion varie entre 100 % et 33 % du débit de consigne.
- Mode Pression constante calculée (CPf) ou Pression constante mesurée par sonde (CPs). La pression varie entre 100% et 50% de la pression de consigne.
Si la température extérieure (S3) est inférieure à +1°C
- La ventilation de pulsion est arrêtée tant que la température extérieure (S3) ne redevient pas supérieure à 1°C.
Fonctionnement de la batterie de post-chauffe électrique (option)
- Batterie de post chauffe électrique dont la puissance est régulée afin de maintainir une consigne de température d'air de pulsion. La régulation automatique se compose de :
- un régulateur avec affichage
- un relais statique pour la modulation de la puissance de chauffe et de son refroidisseur
- d'une sonde de température à monter dans la gaine de pulsion. La régulation ne permet l'enclenchement de la batterie électrique que si le(s) ventilateur(s) de pulsion tourne(nt).
- Lors de l'arrêt de la ventilation, l'alimentation est coupée via son régulateur, les ventilateurs continuant de fonctionner durant le temps de post-ventilation permettant le refroidissement des résistances avant arrêt total. L'ensemble est livré entièrement monté, câblé et testé en usine.
Fonctionnement des ventilateurs
- Le boîtier de contrôle permet la configuration de 4 modes de fonctionnement.
- Dans tous les modes de fonctionnement, le (ou les) ventilateur(s) de pulsion fonctionne(nt) dans le mode choisi et sur base de la consigne. Le fonctionnement du (ou des) ventilateur(s) d'extraction est un pourcentage du débit du ventilateur de pulsion (généralement 100%).
Mode débit constant (CA)
- L'installateur définit 3 consignes de débits constant .
Mode signal 0-10V (LS) - La valeur de consigne de débit est fonction d'un signal 0-10V. L'installateur définit les 4 valeur : Vmin, Vmax, m³/h ≈ Vmin et m³/h ≈ Vmax (voir schéma ci-dessous).
Principe de fonctionnement mode 0-10V (LS)

Mode P (CPf)
- per une valeur de p , mesurée sans capteur.
Mode Pression constante par sonde (CPs) - per une valeur de pression constante mesurée par une sonde externe.
Fonctionnement de la protection antigel via la batterie de préchauffe (option)
- Batterie de préchauffe électrique dont la puissance est régulée afin d'assurer la fonction de protection antigel du récupérateur.
- Système régulé automatiquement afin de maintenir constante la
- un régulateur avec affichage
- un relais statique pour la modulation de la puissance de chauffe et de son refroidissement
- une sonde de température
La régulation ne permet l'enclenchement de la batterie électrique que si le(s) ventilateur(s) de pulsion tourne(nt).
- Lors de l'arrêt de la ventilation, l'alimentation est coupée via son régulateur, les ventilateurs continuant de fonctionner durant le temps de post-ventilation permettant le refroidissement des résistances avant l'arrêt total. L'ensemble est livré entièrement monté, câblé et testé en usine.
Fonctionnement de la batterie de post-chauffe eau chaude (option)
- Si une batterie de post-chauffe eau chaude est intégrée au RHRm afin de maintenir une température constante, sa puissance est entièrement gérée par la régulation via la vanne 3 voies fournie, à monter sur la batterie (installateur).
Capteurs et sondes sélectionnables
- Sondes CO2 - SCO2 010A ou 010G. Sondes de pression SPRD 010A. Sondes de température STEM 010 ou 010A.
- Capteurs de présence CPFL-S ou CPFL-E
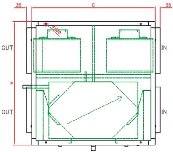
Séries CAD HRmural et CAD RHRmural
Dimensions (mm)
CAD HR Mural 450, 600, 800 - version verticale



CAD HR Mural 800 - version horizontale



| Désignations | A | B | C | D | E | F | G | H | I | J | K | L |
| CAD HR 450 | 500 | 500 | 712 | 250 | 220 | 280 | 140 | 220 | 140 | 200 | 60 | 60 |
| CAD HR 600 | 500 | 712 | 1000 | 250 | 250 | 250 | 170 | 372 | 170 | 250 | 110 | 15 |
| CAD HR 800 V | 500 | 860 | 860 | 250 | 250 | 250 | 243.5 | 435.5 | 181 | 315 | 55 | 55 |
| CAD HR 800 H | 500 | 712 | 1000 | 250 | 250 | 250 | 170 | 372 | 170 | 250 | 405 | 455 |
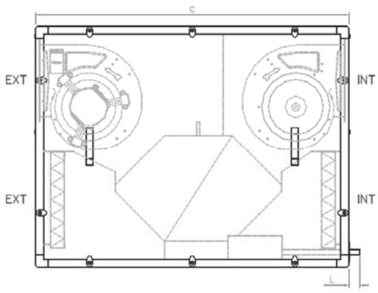
Séries CAD HRmural et CAD RHRmural
Dimensions (mm)
CAD RHRm 800 - 1200


CAD RHRm 2000 - 3000


CAD RHRm 4000


| Désignations | A | B | C | D | E | F | G | H | I | J | K | L | M | N |
| CAD RHRm 800 | 530 | 1060 | 1062 | 470 | 370 | 243 | 210 | 76.5 | 55 | 55 | 20 | 40 | 143.5 | 90 |
| CAD RHRm 1200 | 890 | 1060 | 1160 | 830 | 370 | 310 | 210 | 72 | 55 | 55 | 20 | 40 | 290 | 90 |
| CAD RHRm 2000 | 1062 | 1060 | 1590 | 1002 | 370 | 343 | 210 | 80 | 530 | 190 | 32 | 60 | 359.5 | 30 |
| CAD RHRm 3000 | 1430 | 1060 | 1590 | 1370 | 370 | 380 | 210 | 75 | 530 | 190 | 32 | 60 | 525 | 30 |
| CAD RHRm 4000 | 1800 | 1060 | 1590 | 1740 | 370 | 343 | 210 | 108 | 530 | 190 | 32 | 60 | 394 | 30 |
Caractéristiques électriques
Moteur à commutation électronique 230V - 50 Hz, classe B IP 44
| Désignations | Type de moto-ventilateur | Puisance unitaire Maxi | Intensité unitaire | Puisance Totale max. Extraction, + pulsion | Intensité Totale Extraction + pulsion | Intensité de protection |
| CAD HR mural | ||||||
| 450 | DS 140-60 | 240 W | 1.6 A | 480 W | 3.2 A | 4 A |
| 600 | DD 160-160 TAC | 230 W | 1.5 A | 460 W | 3 A | 4 A |
| 800 | DD 9-7 TH TAC1/2 | 600 W | 3.6 A | 1200 W | 7.2 A | 8 A |
| CAD RHRm | ||||||
| 800 | DD 9-7 TH TAC 1/2 | 600 W | 3.6 A | 1200 W | 7.2 A | 8 A |
| 1200 | DD 9-9 TH TAC 1/2 | 600 W | 3.6 A | 1200 W | 7.2 A | 8 A |
| 2000 | DD 10-10 TAC 3/4 | 960 W | 5.6 A | 1920 W | 11.2 A | 16 A |
| 3000 | DD 11-11 TAC 1/1 | 1250 W | 7 A | 2500 W | 14 A | 20 A |
| 4000 | 2 X DD 10-10 TAC 3/4 | 1920 W | 11.2 A | 3840 W | 22.4 A | 32 A |
Protection recommandée : soit cartouche fusible de classe AM, soit disjoncteur magnétothermique avec une courbe de déclenchement type D et un pouvoir de coupure de 10 000 A - AC3.
Caractéristiques des batteries électriques anti-gel ou post-chauffe
| Désignations | Tension | Puisance | Intensité maximum |
CAD RHRm
| 800 | 3 x 400 V + N | 3 KW | 4.3 A |
| 1200 | 3 x 400 V + N | 4.5 KW | 6.5 A |
| 2000 | 3 x 400 V + N | 6 KW | 8.7 A |
| 3000 | 3 x 400 V + N | 9 KW | 13 A |
| 4000 | 3 x 400 V + N | 12 KW | 17.3 A |
\section*{Caractéristiques des batteries électriques anti-gel}
| Désignations | Raccord | Puisance (*) | Débit d'eau (*) | △ P'eau (*) |
CAD RHRm
| 800 | 1/2 | 4.5 KW | 199 l/h | 14 Kpa |
| 1200 | 1/2 | 8.0 KW | 353 l/h | 6.54 Kpa |
| 2000 | 1/2 | 13.2 KW | 585 l/h | 11.1 Kpa |
| 3000 | 1/2 | 19.4 KW | 857 l/h | 20.4 Kpa |
| 4000 | 1/2 | 27.8 KW | 1200 l/h | 26.8 Kpa |
- Valeurs nominales pour une température d'air de 18°C et un régime d'eau de 90/70°C.
Notice Facile