SE2631TC - Kookplaat SMEG - Gratis gebruiksaanwijzing en handleiding
Vind de handleiding van het apparaat gratis SE2631TC SMEG in PDF-formaat.
Download de handleiding voor uw Kookplaat in PDF-formaat gratis! Vind uw handleiding SE2631TC - SMEG en neem uw elektronisch apparaat weer in handen. Op deze pagina staan alle documenten die nodig zijn voor het gebruik van uw apparaat. SE2631TC van het merk SMEG.
GEBRUIKSAANWIJZING SE2631TC SMEG
U heeft een keramische kookplaat met tiptoetsbediening gekocht.
Om langdurig plezier van uw apparaat te hebben, verzoeken wij u speciale aandacht te besteden aan de hoofd-stukken 2 en 3 van deze gebruiksaanwijzing.
Deze gebruiksaanwijzing geldt voor meertere types van kookplaten. Uit het typeplaatje op de voorkant van deze gebruiksaanwijzing kut u opmaken welk type kookplaat u hebts gekocht.
Inhoud
1. Bediening
1.1 Uw neue kookplaat
1.2 Touch-Control-bedieningsveld
1.3 Touch-Control-bediening
2. Waarop u要去 letten
2.1 Enkele tips m.b.t. de pannen
2.2 Belangrijke opmerkingen
3. Reiniging en onderhoud
4. Montage
4.1 Uitzagen van het aanrechtblad
4.2 Inbouw
4.3 Elektrische aansluiting
4.4 Servicewerkzaamheden
Verpakking en het oude apparaat verwijderen
Verwijder de transportverpakking op een zo milieubewust möglichke manier.
De recyclage van het verpakkingsmaterial bepaart grondstoffen en verminder de afvalberg. Oude apparaten bevatten nog bruikbare materialen. Breng uw oude apparaat waar een recyclagecentrum. Oude apparaten要去 een onbruikbaar worden gemaakt voor ze worden weggebracht. Zo worden misbruik voorkomen.
1. Bediening
1.1 Uw neue kookplaat met Touch-Control-bediening
Deze handleiding geldt het type SE 2631 TC.
1.2 Touch-Control-bedieningsveld
Na het inschakelen van de voedingsspanning (aansluiting op het net) vindt eerst een zichtest van de besturing plaats, die door een korte signaaltoon worden afgesloten.
Aan/uit-toets (besturing)
② Vergrendeltoets
③ Controleampje vergrendeling (besturing)
④ Min-toets
⑤ Plus-toets
⑥ Kookzonetoets
⑦ Kookstandweergave
(8) Gereedheidspunt kookzone (brandt: kookzone kan worden bediend)


1.3 Touch-Control-bediening
Principeel wordt elke bediening van de toetsen door een signaaltoon bevestigd.
Door op de aan/uit-toets ① te drukken, worden de besturing ingeschakeld: om in te schakelen de vinger op de toets leggen tot bij alle kookstandweergaven een „0" brandt en het gereedheidspunt kookzone ⑧ knippert. Elke verdere bediening moet binnen de volgende tien seconden gebeuren odomat de besturing zich anders automatisch weeuitschakelt.
Om een kookzone in te schakelen op de kookzonetoets ⑥ van de gewenste kookzone drukken. Het overeenkomstige gereedheidspunt kookzone ⑧ van de geactiveerde kookzone Licht op.
Met de min- of plustoets ④ / 5 een kookstand tussen 1 en 9kiezen. Het is steeds möglichk een ingeschakelde kookzone uit te schakelen. Hiervoor要去 de gewenste kookzone geactiveerd zich; het kookzone-geredheidspunt ⑧ licht dan op.
Met de min-toets ④ kan de kookstand waar op „0" worden verlaagd of onmiddelijk worden uitgeschakeld door tegelijk op de min- en de plus-toets ④ + 5 te drukken.
Principieel kan de volledig besturing op elk moment met de aan/uit-toets ① worden uitgeschakeld. Om de volledige kookplaat uit te schakelen de vinger even op de aan/uit-toets ① leggen tot de controlampjes uit+zijn.
Door op de vergrendeltoets ② te drukken, worden verhinderd dat alle toetsen behalve de aan/uit-toets ① ongewensteken worden bediend. Als de kookplaat vergrendeld is, worden dit door het controlelampje ③ weergegeven. Door opnieuw op de vergrendeltoets ② te drukken, worden deze toestand wee opgeheven.
Restwarmteweergave
De restwarmte worden aangetoond door een „H" op de correspondenderende kookstandweergave ⑦.
Kookstoot
De kookzone met de kookzonetoets ⑥ activeren. De mintoets ④ bedieren en kookstand 9kiezen. Daarna met de plustoets ⑤ de kookstoot inschakelen. De kookstandweergave ⑦ wisselt tijdens de aankooktijd voortdurendCUSen het teken,A" (kookstoot) en de ingestelde kookstand. Nu kan men voor het verdere koken een niveau tussen 1 en 8kiezen. Indien men aller op kookstand 9 blijft zonder een doorkookstand 1-8 tekiezen,wordt de kookstoot na 10 seconden automatisch uittgeschakeld. De duur van de kookstoot is afhankelijk van de gekozen doorkookstand en kan uit de bijgevoegde tijdtabel worden afgelezen.
Indien na de keuze van de gewenste doorkookstand op de plustoets ⑤ wordt gedrukt, wordt de duur voor de kookstoot in overeenstemming met de tijdtabel maar boven aangepast. Indien na de keuze van de gewenste doorkookstand op de mintoets ④ wordt gedrukt, wordt de kookstoot voortijdig beeindigd.
Veiligheidsuitschakeling
Het continu-bedrijf van elke individuele kookzone is inijd beperkt door een veiligheidsuitschakeling, die de kookzone naargelang van de gekozen kookstand na een bepaalde tjdsduuruitschakelt. De werkingsstijden van dit veiligheidssystem kunnen uit de bijgevoegde tijdtabel worden afgelezen. Als de veiligheidsuitschakeling de Touch-Control-besturing heeft uittgeschakeld, verschijnt in de kookstandweergave ⑦ een "0" ofeen "H" indien nog restwarmte aanwezig is. Na bediening van de aan/uit-toets ① is de besturing opnieuw bedrijfsklaar.
Indien, behalte bij de min- en plustoets, gelijktijdig op meer dan een toets worden gedrukt, worden dit door de besturing nicht als een geldige bediening van de toetsen geaccepteerd. Indien er bijv. tengevolge van overkoken of een verkeerd staande pan langer dan een halve minuut op een ofmeer toetsen worden gedrukt, neemt de besturing aan dat er een fouit voorigt en schakelt zich automatisch uit. Indien de bediening van de toets blijft duren, is een continue signaaltoon te horen.
Tijdtabel
KS = kookstoot, duur in minutes, seconden
| Kookstand | KS (min:sec) |
| 1 | 01:00 |
| 2 | 03:00 |
| 3 | 04:48 |
| 4 | 06:30 |
| 5 | 08:30 |
| 6 | 02:30 |
| 7 | 03:30 |
| 8 | 04:30 |
| 9 | —:— |
Tijdtabel
GDBPR = Gebruiksduurbeperking, in uren
2. Waarop u moet letten
2.1 Enkele tips m.b.t. de pannen
Gebruik alleen potten en pannen met een stevige, vlakke en zo dik möglichke bodem. Dat geldt vooral voor het koken op hoge temperaturen, bijv. frituren. Oneffen bodems verlengen de bereidingstijden en verhogen het energieverbruik. U bereikt de Beste warmteoverdracht, wanner pan en kookzonedezelfde groote hebben. Zet een deksel op de pan. Zonder of met een verschoven deksel worden zeer veel energia verspild.
Om direct op de kookzones te werken=kunt u kookservies van vuurvast glas of porcelein gebruiken, als de bodem ervan vlakgeslepen is. Lees altijd eerst de gebruiksaanwijzing van de fabrikant.
Overgelopen bereidingen onmiddelijk verwijdersen.
Voordat u de eerste keer kookt, moet u de kookplaat schoonmaken. Vervolgens schakelt u de kookzones een na een, zonder pannen, gedurende drie minuten op de hoogste stand in; zo verdwijnt de „nieuwe" geur en eventuele vochtigheid uit de verwarmingselementen verdampt. Dat is nodig opdat de elektronische schakelkringen probreemloos hunnen functioneren.
2.2 Belangrijke opmerkingen
Let op: De oppervlakken van verwarmings- en kookzones worden bij het werkken heet.
Daarom要去kneine kinderen principieeluit de buurt worden gehonden.
Zorg ervoor dat er geen harde voorwerpen op de kookplaat+kunnen vallen. Onder bepaalde voorwaarden kan het materiaal gevoelig op mechanische belastingen reageren. Puntvormige slagbelasting kan de kookplaat doen breken. Indien er door een ondeskundige of slordige behandeling barsten, breuken of scheuren in de keramische plaat te zien,zijn, moet de kookplaat dadelijk afgezet en van het stroomnet gescheiden worden. Hiertoe要去 ook de veiligheidsschakelaar voor het fornuis in de zekeringenkast worden uitgeschakeld. Waarschuw in dergelijk gevallen tevens de klantenservice.
De keramische kookplaat mag nicht worden gebrukt om er voorwerpen op neer te leggen! Op de hare kookzones mogen geen spijzen in aluminiumfolie of plastic schaaltjes e.d. worden kraargemaakt.
De kookzones alleen maar in gebruik nemen, als er een pan op staat. Geen brandgevaarlijke, Licht ontvlambare of verrormbare voorwerpen onmiddelijk onder de kookplaat leggen.
Blij in de buurt als u gerechten met vet of olie bereidt. Oververhitte olie kan spontaan ontbranden. Giet nooit water in brandend vet of olie. Gevaar van verbranding! Dek de pan af zodat het vuur verstikt en schakel de kookzoneuit. Laat de pan op de kookzone afkoelen. Bovendienogens geen aansluitleidingen van elektrische toestellen, die bijv. in contactdozen in de buurt van de kookplaat�n ingestoken, met de hete kookzones in aanraking komen.
De keramische kookplaat mag in geen geval met een stoomreinigingsapparaat of dergelijkere worden schoongemaaakt!
3. Reiniging en onderhoud
Maak de afgekoelde kookplaat telkens na gebruik schoon. Zelfs de gingste verontreiniging bakt bij het volgende inschakelen vast. Gebruik alleen maar de aanbevolen reinigingsmiddelen. Staalwol, schuursponsjes en poedervormige productenveroorzaken krassen. Ovenspray is Niet geschikt odomat ze agressief is en de kookplaat aantast.
Verwijder lichte verontreinigingen met een vochtige doek of met warm sop. De resten van afwasmiddel met koud water afwassen en dan deplaat goed droogwrijven. Watervlekken die door overkokend water zijn ontstaan要去en met azijn of citroen of met een kalkoplossend middel worden verwijderd.
Verwijder sterke verontreinigingen met „Sidol special voor roestvrij staal", „Staalfix" of „Cerafix". Het reinigingsmiddel onverdund met keukenpapier aanbrengen en uitwrijven. Laat het middel inwerken. Wis het dan met koud water helmaal weg en wrijf de kookplaat droog. Reinigingsmiddel dat op het kookvlak gebleven is, kan als het terug warm worden, agressief werken.
Hardnekkige verruiling en aankorsting kut u het best met een glasschaper verwijderen ⑥ . Glasschrapers zich verkrijgbaar in winkels voor huishoudartikelen, in verf- en hobbywinkels of via once klantenservice. Let bij de aankoop op het handvat. Dat mag Niet uit kunststof zich, odomat kunststof aan de hete kookplaat blijt plakken. Opgelet bij de omgang met een schraper: gevaar voor verwondeningen.
Gerechten die suiker bevatten können het keramische oppervlak permanent beschadigen,,ondat ze bij het indrogen krassen achefterlaten. Om dergelijk beschadigingen van het oppervlak te vermijden, deze resten dadelijk met de glasschraper verwijderen, zolang ze nog heet zich ① ⑤
Kleurveranderingen van de kookplaat
Deze hebben geen enkele invloed op de functie en de stevigheid van de vitro-keramiek. Het handelt zich hierbij nicht om een verandering van het materiaal, maar om Niet verwijderde, ingebrande resten.
Metaalachtig glanzende verkleuringen © ontstaan door afwrijving van de panbodem of door Niet geschikte reinigingsmiddelen. Ze können alleen maar moeizaam met „Sidol special voor roestvrij staal" of „Staalfix" worden verwijderd. Eventueel要去 de reinigingeermaals herhalen.
Afgeschuurd decor . Door het gebruik van agressieve reinigingsmiddelen en door schurende panbodems worden het decor in de loop van dearend afgeschuurd en er ontstaan donkere vlekken.
Aangesmolten suiker of suikerhoudende spijzen onmiddelijk in hete toestand met een glasschaper ⑥ verwijderen; anders können beschadigingen ontstaan ①, ⑤ .
Bij adequaat onderhoud blijft uw kookplaat langeijd Mooi en is het makkelijker hem schoon te make.
Voor het onderhoud adviseren we „Cerafix". Door het hoge siliconenaandeel van dit product ontstaat een beschemende film, die water en vuil tegenhoudt. Alle verontreinigingen blijven op de film en+kunnen daardoor veel gemakkelijk worden verwijderd. Regelmatig onderhoud is dus belangrijk.








4. Montage
4.1 Uitzagen van het aanrechtblad
Alle uitsnijdingen in meubelen of in het aanrechtblad voor het inzetten van de apparaten UITvoeren en spaanders verwijderen.
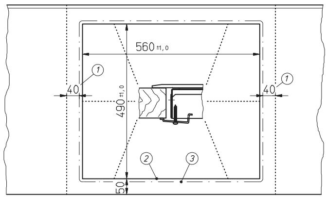
De maten voor de uitsparingen in het aanrechtblad vindt u op de maat-tekening (afb. 1+2).
De snijvlakken dieren met een waterwerende beschermlaag te worden verzegeld.
Het aanrechtblad en dus ook de kookplaat要去en absolut hurzon-taal worden ingebouwd. Als de kookplaat verwrongen of scheef zit of spans, bestaat er verhoogd breukgevaar.

4.2 Inbouw
Controleer voor de inbouw of de pakking rondon de kookplaat zonder onderbreking ingelegd is.
Bij inbouw van de keramische kookplaat in een aanrechtblad met een keramisch of vergelijkbaar oppervlak (te-gels)要去 de pakking van de kookplaat worden verwijderd. In deplaats waarvan要去 de verbindingussen kookplaat en aanrechtblad met plastische afldichtmaterialen, zoals warmtebestendig siliconerrubber worden afgedicht.
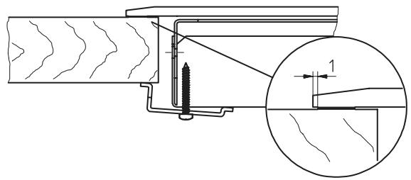
Opgelet! Indien de kookplaat boven meubelgedeelten (zijwanden, laden e.d.) ligt,要去en tussenbodem worden ingebouwd, zodate de onderkant van de kookplaat Niet toevallig kan worden aangeraakt. De tussenbodem mag alleen met gereedschap verwijderbaar zich en要去en minimumafstand van 20 mm t.o.v. de onderkant van de kookplaat aangebracht zich, zodate de aansluitkabel de onderkant van de kookplaat Niet raakt (afb. 4).
Als de kookplaat boven een inbouwoven worden geplaatst, moet deze met een koelventilator uitgerust zijn. Een tussenbodem is in dat geval nicht nodig.
Ter hoogte van de uitsparing in het aanrechtblad mogen zich onder het aanrechtblad geen dwarslijsten bevinden.
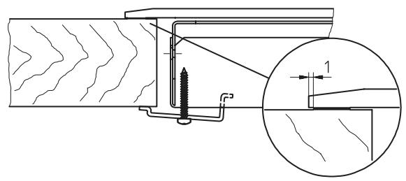
De kookplaat zorgvuldig in de uitsparing leggen en met de passende bevestigingselementen vast met het aanrechtblad verbinden (afb. 3). De schroeven alleen met een schroevendraaier met de hand aanhalen; geen elektrische schroevendraaier gebruiken.
Let erop dat het aanrechtblad en de kookplaat waterpas liggen. U moet verhinderen dat er tussen de rand van de kookplaat en het aanrechtblad of tussen het aanrechtblad en de muur vloeistoffen in de daaronder ingebouwde elektrische apparaten konnen indringen. Dichtingsprofielen, richtingsbanden, richtingsmiddelen gebruiken.
4.3 Elektrische aansluiting (aansluitwaarden)
(Aansluitwaarden en model: zie titelblad van de gebruiksaanwijzing)
De elektrische aansluiting要去 door een erkend installerateur worden uitgevoerd, die erop要去 letten, dat het apparaat volgens de wettelijk erkende voorschriften (Duitsland VDE, Oostenrijk ÖVE, Zwitserland SEV, Nederland o.a. NEN, Belgie NBN enz.) is ingebouwd. Hij要去 er vooral op letten, dat deze voorschriften en die van deplaatslijke electriciteitsmaatschappijen nauwgezet worden nageleefd.
Bij het installereren moet voor het elektrische apparaat een alpolig werkzame scheidingsinrichting met tenminste 3mm contactopening voorgeschakeld worden. U要去 er ook op letten dat de netspanning met de op het typeplaatje aangegeven netspanning overeenstemt.
Om de aansluiting uit te voeren要去 het deksel van het schakeelement aan de onderkant van het apparaat los-gemaakt worden om zo de aansluitklem te bereiken. Na de aansluiting要去 het deksel waar vastgemaakt en de aansluitleiding met de snoerklem beveiligd worden.
De aansluitleiding moet minstens van het type H05 VVF zijn.
Als de aansluitleiding van dit apparaat worden beschadigd, moet ze door de fabrikant of zich klantenservice of door een gelijkaardig gequalificierde personen worden verrangen om risico's te vermijden.
Er moet op gelet worden dat de Niet benodigde lenghte van de aansluitleiding nicht in de buurt van de ingebouwde kookplaat worden weggestopt. Voor deplaatsen waar u de kabel要去en doorvoeren, zie afb. 4. Bij het ingebouwde apparaat mag geen contact maybek+zijn met onderdelen die bij het gebruik onder spanning staan.
Aansluitingsmogelijkheden

4.4 Servicewerkzaamheden
Bij reparaties moet het apparaat stroomloos worden gemaaakt, d.w.z. de externe scheidingsinstallatie moet eerst worden geopend. Indien u zich tot de klantenservice wendl, geef dan.altijd het type en het fabricagenummer aan. U vindt deoodzakelijkgegevens op het typeplaatje of op de voorkant van de bedieningshandleiding. Na elkeuitbouw van de keramische inbouwkookplaat moet de pakking gecontroleerd en eventueel vernieuwd worden.

Afb. 1

Afb. 2
① Minimumaufstand tot naburige wanden
② Uitfreesmaat
③ Buitenafm. kookplaat
④ Kabeldoorvoer door de hinterwand

Afb. 3



Afb. 4
SimpelGids