SE2631TC - Kochfeld SMEG - Kostenlose Bedienungsanleitung
Finden Sie kostenlos die Bedienungsanleitung des Geräts SE2631TC SMEG als PDF.
Laden Sie die Anleitung für Ihr Kochfeld kostenlos im PDF-Format! Finden Sie Ihr Handbuch SE2631TC - SMEG und nehmen Sie Ihr elektronisches Gerät wieder in die Hand. Auf dieser Seite sind alle Dokumente veröffentlicht, die für die Verwendung Ihres Geräts notwendig sind. SE2631TC von der Marke SMEG.
BEDIENUNGSANLEITUNG SE2631TC SMEG
Lichte verontreinigungen
Sterke verontreinigungen
Sie haben ein Glaskeramik-Kochfeld mit einem Touch-Control-Bedienfeld erworben.
Damit Sie lange Zeit Freude an Ihrrem Kochfeld haben, beachten Sieittebesonderss die Kapitel 2 und 3 in dieser Gebrauchsanweisung.
These Gebrauchsanweisung gilt für mehrere Kochfeld-Typen. Dem Typenschild auf der Vorderseite dieser Gebrauchsanweisung können Sie entnahmen, welchen Kochfeld-Typ Sie erworben haben.
Inhalt
1. Bedienung
1.1 Ihr neues Kochfeld
1.2 Touch-Control-Bedienfeld
1.3 Touch-Control-Bedienung
2. Worauf Sie achten müssen
2.1 Einige Tipps zu den Töpfen
2.2 Wichtige Hinweise
3. Reinigung und Pflege
4. Montage
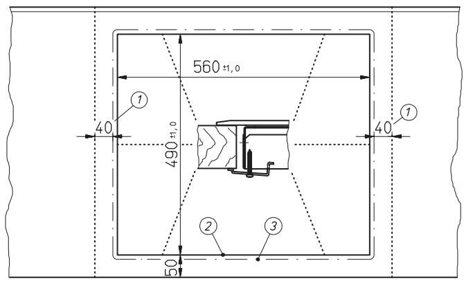
4.1 Arbeitsplattenausschnitt
4.2 Einbau
4.3 Elektrischer Anschluss
4.4 Service-Arbeiten
Verpackungsmaterial und Altgerät entsorgen
Entsorgen Sie die Transportverpackung möglichst umweltgerecht.
Das Rückführung der Verpackungsmaterialien in den Materialkreislauf spart Rohstoffe und verringert das Müllaufkommen. Altgeräte enthalten noch Wertstoffe. Geben Sie Ihr Altgerät in eine Wertstoffsammelstelle. Altgeräte sind vor dem Entsorgen unbrauchbar zu machen. Damit verhindern Sie Missbrauch.
1. Bedienung
1.1 Ihr neues Kochfeld mit Touch-Control-Bedienung
These Anleitung gilt fur den Typ SE 2631 TC.
1.2 Touch-Control-Bedienfeld
Nach dem Anlagen der Versorgungsspannung (Netzanschluss) erfolgt zuerst ein Selftest der Steuerung, der durch einen kurzen Signatlon abgeschlossen wird.
① Ein-/Ausschalttaste (Steuerung)
② Verriegelungstaste
③ Kontrolleuchte Verriegelung (Steuerung)
④ Minustaste
⑤ Plustaste
⑥ Kochzonentaste
⑦ Kochstufenanzeige
Bereitschaftspunkt Kochzone (leuchtet: Kochzone bedienbar)


1.3 Touch-Control-Bedienung
Grundsätzlich wird jeder Tastenbetätigung durch einen Signalton bestätigt.
Durch Betätigung der Ein-/Ausschalttaste ① wird die Steuerung eingeschaltet. Zum Einschalten den Finger auf die Taste legen bis bei allen Kochstufenanzeigen eine „0" leuchtet und der Bereitschaftspunkt Kochzone ⑧ blinkt. Die weitere Betätigung muss nun innerhalb der{nachsten zehn Sekunden erfolgen, da die Steuerung sich ansonsten wieder automatisch ausschaltet.
Um eine Kochzone einszuschalten, die entsprechende Kochzonentaste ⑥ der gewünschten Kochzone betätigten. Der jeweilige Bereitschaftspunkt Kochzone ⑧ der aktivierten Kochzone leuchtet auf.
Mit der Minus- oder Plustaste 4 / 5 eine Kochstufe von 1 bis 9 wahren. jeder Kochzone kann im eingeschalteten Zustand jederzeit ausgeschelt werden. Die gewünschte Kochzone muss dazu aktiviert sein; Bereitschaftspunkt Kochzone ⑧ leuchtet auf.
Mit der Minustaste ④ kann die Kochstufe auf „0" heruntergeschaltet oder durch gleichzeitiges Betätigten der Minus- und Plustaste ④+⑤ direkt ausgeschalten werden.
Grundsätzlich kann die komplette Steuerung zu jedem beliebigen Zeitpunkt über die Ein-/Ausschalttaste ① ausgeschaltet werden. Zum Ausschalten der gesamten Mulde den Finger kurze Zeit auf die Ein-/Ausschalttaste ① legen bis die Kontrolleuchten aus sind.
Durch Betätigung der Verriegelungstaste ② werden alle Tasten, bis auf die Ein-/Ausschalttaste ①, gegen unbeabsichtigte Betätigung gespeit. Eine erfolgte Verriegelung wird durch die Kontrollleuche ③ angezeigt. Ein erneutes Betätigten der Verriegelungstaste ② hebts diesen Zustand wieder auf.
Restwärmeanzeige
Die Restwärmeanzeige erfolgt durch ein leuchtendes „H“ auf der jeweils zugehörgen Kochstufenanzeige ⑦.
Ankochstoß
Kochzone durch die Kochzonentaste ⑥ aktivieren. Die Minustaste ④ betätigten und die Kochstufe 9 wahren. Danach mit der Plustaste ⑤ Ankochstoß einschalten. Die Kochstufenanzeige ⑦ wechselt während der Ankochzeit ständig zwischen dem Zeichen „A" (Ankochstoß) und der eingestellenten Kochstufe. Jetzt kann man die gewünschte Fortkochstufe von 1-8 wahren. Belässst man jeder die Kochstufe 9 ohne eine Fortkochstufe 1-8 zu wahren, so wird der Ankochstoß nach 10 Sekunden automatisch ausgeschelt. Die Dauer des Ankochstoßes ist von der gewährten Fortkochstufe abhängig und aus der beigefugten Zeittabelle zu entnahmen.
Wird nach dem Wahlen der gewünschten Fortkochstufe die Plustaste ⑤ gedrückt, so wird die Zeitdauer des Ankochstoßes, entsprechend der Zeittabelle, nach oben angepasst. Wird nach dem Auswahlen der gewünschten Fortkochstufe die Minustaste ④ gedrückt, so wird der Ankochstoß vorzeitig beendet.
Sicherheitsabschaltung
Der Dauerbetrieb jeder einzelnen Kochzone ist durch eine Sicherheitsabschaltung zeitlich begrenzt, die die Kochzone entsprechend der gewährten Kochstufe nach einer bestimmten Zeitspanne abschaltet. Die Eingriffszeiten dieser Sicherheitsvorrichtung können aus der beigefugten Zeittabelle entnomen werden. Wenn die Sicherheitsschaltung die Touch-Control-Steuerung abgeschelt hat, erscheint in der Kochstufenanzeige ⑦ ein „0“ bzw. ein „H“ bei vorhandener Restwärme. Bei Betätigung der Ein-/Ausschalttaste ① ist die Steuerung wieder betriebsbereit.
Wird mehr als eine Taste gleichzeitig betätigt, ausgenommen die Minus- und Plustaste, so wird dies nicht als gültige Tastenbetätigung von der Steuerung akzeptiert. Werden eine oder mehrere Tasten länger als eine halbe Minute betätigt, durch Überkochen oder durch einen Topf, so Goes the Steuerung von einem Fehlerfall aus und schaltet sich automatisch ab. Falls die Tastenbetätigung andauert, erfolgt ein Dauer-Signalton.
Zeittabelle
AKS = Ankochstob, Zeitdauer in Minutes, Sekunden
| Kochstufe | AKS (Min:Sec) |
| 1 | 01:00 |
| 2 | 03:00 |
| 3 | 04:48 |
| 4 | 06:30 |
| 5 | 08:30 |
| 6 | 02:30 |
| 7 | 03:30 |
| 8 | 04:30 |
| 9 | —:— |
Zeittabelle
BDBGR = Betriebsdauerbegrenzung, Angabe in Stunden
2. Worauf Sie achten müssen
2.1 Einige Tipps zu den Töpfen
Verwenden Sie nur Töppe und Pfannen mit festen, ebenen und möglichst dicken Böden. Dies gilt besonderss für das Garen bei hohen Temperatures, z.B. Frittieren. Unebene Böden verlangern die Garzeiten und erhöhen den Energieverbrauch. Die Beste Wärmeübertragung erzielen Sie, wenn Topf und Kochstelle gleich groß sind. Schließen Sie die Töppe mit einem Deckel. Ohne oder mit verschobenem Deckel wird sehr viel Energie verschwendet.
Um direkt auf den Kochzonen zu arbeiten, können Sie Kochgeschirr aus feuerfestem Glas oder Porzellan verwenden, wenn deren Böden plangeschliffen sind.itte beachten Sie bzw die Gebrauchsanweisungen der Hersteller.
Übergelaufenes Gargut sollenn Sie sofort entfernen.
Bevor Sie zum ersten Mal kochen, sollte das Kochfeld gereinigt werden. Anschließlich schalten Sie die Kochstellen nacheinander, ohne Töppe, für drei Minuten auf der hochsten Stufe ein. Damit wird der Neugeruch beseitigt und eventuelle Feuchtigkeit aus den Heizkörpern verdampft. Dieses ist notwendig, damit die elektronischen Schaltkreise einwandfrei Funktionieren.
2.2 Wichtige Hinweise
Achtung: Die Oberflächen an Heiz- und Kochstellen werden bei Betrieb frei. Aus thisem Grunde sollenn Kleinkinder grundsätzlich ferngehalten werden.
Vermeiden Sie, dass harte Gegenstände auf die Kochfläche fallen. Das Material ist unter bestimmten Voraussetzungen empfindlich gegen Mechanische Belastungen. Punktförmige Schlagbelastung kann zum Bruch der Kochfläche führen. Falls durch unachtsame Behandlung die Keramikplatte Brüche, Sprünge oder Risse aufweist, ist sie sofort außer Betrieb zunehmen und vom Netz abzuschalten. Dazu ist der Schutzschalter für den Herdanschluss im Sicherungskosten auszuschalten. Der Kundendienst muss verständigt werden.
Das Glaskeramikkochfeldarf nicht als Abstellflache verwendet werden! Das Zubereiten von Speisen in Alufolien und Kunststoffgefasen auf den heilben Kochzonen ist nicht zulässig.
Die Kochzonen nie ohne aufgestelltes Kochgut in Betriebnehmen. Keine feuergefahrenlichen, leicht entzündbaren oder verformbaren Gegenstände direkt unter das Kochfeld legen.
Bleiben Sie in der Höhe, wenn Sie Speisen mit Fett oder Öl Zubereiten. Überhitztes Öl kann sich entzünden. Gießen Sie niemals Wasser in brennendes Fett oder Öl. Verbrennungsgefahr! Decken Sie das Geschirr zu, damit das Feuer erstickt, und schalten Sie die Kochstelle aus. Lassen Sie das Geschirr auf der Kochstelle auskühlen. Außen dem dürfen keine Anschlussleitungen von Elektrogeräten, die z.B. in Steckdosen in Kochfeldnahme eingesteckt sind, mit den freißen Kochzonen in Berührung kommt.
Das Glaskeramikkochfeldarf unter keinem Umständenmit einem Dampfreinigungsgeratoder ahnlichem gereinigt werden!
3. Reinigung und Pflege
Reinigen Sie das abgekühte Kochfeld nach jeder Benutzung. Selfest geringe Verschmutzungen brennen beim nachsten Einsalten fest. Verwenden Sie nur die empfohlenen Reinigungsmittel. Stahlwolle, Putzschwämme und pulverförmige Mittel erzeugen Kratzer. Backofenspray ist nicht geeignet, da es aggressiv ist und die Kochfläche angreift.
Leichte Verschmutzungen
Entfernen Sie leichte Verschmutzungen mit einem feuchten Tuch oder mit warmer Spüllauge. Spülmittelreiste mit kaltem Wasser abwaschen, dann die Fläche gut trockenreiben. Wasserflecken die durch überkochendes Wasser entstan den sind, sollen den Sie mit Essig bzw. Zitrone oder kalklosenden Mitteln beseitigen.
Starke Verschmutzungen
Entfernen Sie starke Verschmutzungen mit „Sidol Spezial für Edelstahl“, „Stahlfix“ oder „Cerafix”. Den Reiniger unverdünnt mit einem Haushaltspapiertuch auftragen und verreiben. Lassen Sie das Mittel einwirken, wischen Sie es dann mit kaltem Wasser vollständig ab und reiben Sie das Kochfeld trocken. Auf der Kochfläche verbliebener Reiniger kann beim Wiederaufheizen aggressiv werden.
Hartnäckige Verschmutzungen und Verkrustungen können Sie am besten mit einem Glasschaber entfernen ⑥. Glasschaber erhalten Sie in Geschäften für Haushaltswaren, Maler- und Heimwerkerbedarf oder über unseren Kunden. Achten Sie beim Kauf auf den Griff. Er sollen nicht aus Kunststoff sein, da Kunststoff an der früben Kochfläche anklebt. Vorsicht bei der Handhabung Verletzungsgefahr.
Zuckerhaltige Speisen können die Glaskeramikoberfläche dauerhaft schädig, weil sie diese nach dem Eintrocknen zerkratzen. Um solche Oberflächen-beschädigungen zu vermeiden,(sofort im früben Zustand mit dem Glasschaber entfernen ①, ②.
Farbliche Veränderungen des Kochfeldes
Sie haben keinen Einfluss auf Funktion und Stabilität der Glaskeramik. Es handelt sich damit nicht um Veränderungen des Materials, sondern um nicht entferente, eingebrannte Rückstände.
Metallisch schillernde Verfährungen © entstehen durch Abrieb des Topbodens oder durch ungeeignete Reinigungsmittel. Sie{lassen sich nur muhsam mit „Sidol Spezial für Edelstahl" oder „Stahfix" beseitigen. Eventuell,müssen Sie die Reinigung mehrmals wiederholen.
Abgeschmirgeltes Dekor. Durch die Verwendung aggressiver Reinigungsmittel und durch scheuernde Topföden wird das Dekor mit der Zeit abgeschmirgelt und es entstehen dunkle Flecken.
Angeschmolzenen Zucker oder zuckerhaltige Speisensofar in heism Zu-stand mit einem Glasschaber entfern; sonst konnen Schaden entstehen ①, ②
Bei sachgemäßer Pflege bleibt Ihr Kochfeld lange Zeit schon, und Sie erleichen sich die Reinigung.
Zur Pflege empfehlen wir Ihnen „Ceratif". Der hohe Silikonanteil theses Mittels erzeugt einen Schutzfilm, der wasser und schmutzabweisend wirkt. Alle Verschmuzungen bleiben auf dem Film und halten sich dadurch viel leichter entfernen. Wichtig ist also eine regelmäßige Pflege.








4. Montage
4.1 Arbeitsplattenausschnitt
Alle Ausschnittsarbeiten an Möbel und Arbeitsplatte vor dem Einsetzen der Geräte durchführren und die Späne entfern.
Die Maße des Arbeitsplattenausschnitures sind aus der Maßzeichnung zu entnahmen (Abb. 1+2).
Die Schnittflächen sollen mit einem Wasserabweisendem Schutzan-strich versiegelt werden.
Die Arbeitsplatte und somit die Kochfläche müssen unbedingt waagerecht eingebaut werden. Ein Verspannen der Kochfläche durch windschiefe Auflage erhöht die Bruchgefahr.

4.2 Einbau
Prufen Sie vor dem Einbau, ob die umlaufende Kochfeldddichtung lückenlos eingelegt ist.
Bei Einbau des Glaskeramikkochfeldes in eine Arbeitsplatte mit einem keramischen oder ähnlichen Belag (Kacheln), ist die an dem Kochfeld befindliche Dichtung zu entfernen und die Abdichtung der Kochfläche gegenüber der Arbeitsplatte durch plastische Dichtungsmaterialien, wie wärmebeständiger Silikon-Kautschuk, vorzunheiten.
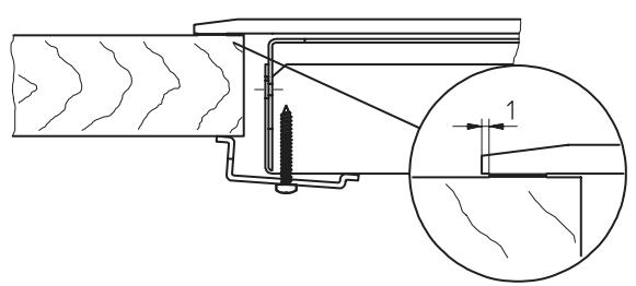
Achtung! Liegt das Kochfeld über Möbelteilen (Seitenwände, Schubkästen, etc.), so muss ein Zwischenboden eingebaut werden, sodass eine zufällige Berührung der Kochfeldunterseite nicht möglich ist. Der Zwischenbodenarf nur mit Werkzeugen entfernbar sein und muss mit einem Mindestabstand von 20 mm zur Kochfeldunterseite angebracht werden, sodass das Netzanschlusskabel nicht die Kochfeldunterseite berührt (Abb. 4).
Soll das Kochfeld über einen Einbaubackofen eingebaut werden, so muss dieser mit einem Kuhlgeblase ausgerüstet sein. Ein Zwischenboden ist in thisem Fall nicht notwendig.
Im Bereich des Arbeitsplattenausschnittes unterhalb der Arbeitsplatte dürfen keine Traversleisten vorhanden sein.
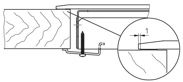
Das Kochfeld sorgfältig in den Ausschnitt einlagen und mit den entsprechenden Befestigungselementen fest mit der Arbeitsplatte verbinden (Abb. 3). Die Schrauben nur mit einem Schraubendreher von Hand anziehen; keinen Akkuschrauber verwenden.
Achten Sie auf eine waagerechte Lage der Arbeitsplatte bzw. des Kochfeldes. Es muss verhindert werden, dass Flüssigkeiten zwischen Kochfeldrand und Arbeitsplatte oder zwischen Arbeitsplatte und Wand in elevt. darunter eingebaute Elektrogeräte eindringen können. Dichtungsprofile, Dichtungsbänder, Dichtungsmittel einsetzen.
4.3 Elektrischer Anschluss (Anschlusswerte)
(Anschlusswerte und Modellbezeichnung: siehe Vorderseite der Gebrauchsanleitung)
Der elektrische Anschluss muss von einem konzessionierten Fachmann ausgeführrt werden, der sich damit von dem ordnungsgemäßen Einbau entsprechend den gesetzlich anerkannten Vorschriften (Deutschland VDE, Österreich ÖVE, Schweiz SEV usw.) überzeugen muss. Es ist besonderss darauf auf zuchten, dass diese Vorschriften und die des ortlichen Elektrizitäts-Versorgungsunternehmens vollständig eingehalten werden.
Dem Elektrogerät ist installationsseitig eine allpolig wirksame Trenneinrichtung mit mindestens 3 mm Kontaktöffnung vorzuschalten.itte beachten Sie, dass die vorhandene Netzspannung mit der auf dem Typenschild übereinstimmt.
Zum Anschluss muss der Schalterteildeckel, auf der Geräteunterseite, gelöst werden, um an die Anschlussklemme zu gelangen. Nach dem Anschluss muss der Deckel wieder befestigt und die Anschlussleitung mit der Zugentlastungsschelle geschichert werden.
Die Anschlussleitung muss mindestens dem Typ H05 VVF entsprechen.
Wenn die Anschlussleitung these Gerätes beschädigt wird, muss sie durch den Hersteller oder seinen Kundendienst oder eine ähnlich qualifizierte Person ersetzt werden, um Gefährdungen zu vermeiden.
Es ist darauf zu achtenden, dass die unbenöttige Länge der Anschlussleitung nicht im Einbaubereich des Kochfeldes verlegt wird. Die Lage der Kabeldurchführung entnehmer Sieitte der Abb. 4.
Der vollständige Berührungsschutz muss durch den Einbau sichergestellt sein.
Anschlussmöglichkeiten

(*) These Anschlussvariante ist in der Schweiz durch den SEV nicht zugelassen.
4.4 Service-Arbeiten
Bei Reparatur muss das Gerät stromlos gemacht werden, d.h. die installationsseitige Trennvorrichtung muss vorher geöffnet werden. Bei Kundendienstfällen immer Typ und Fabr.Nr. angegeben. Sie finden die notwendigen Daten auf dem Typenschild oder auf der Vorderseite der Bedienungsanleitung. Nach jedem Ausbau der Glaskeramik-Einbaukochfläche ist die Dichtung zu prüfen und gegebenenfalls zu erneuern.
Typ: SE 2631 TC

Abb. 1

Abb. 2
① Mindestabstand zu benachbarten Wänden
② Ausfrasmaß
③ KochfeldauBenmaB
④ Kabeldurchführung in Rückwand

Abb. 3



Abb. 4
EinfachAnleitung