Black Diamond Compact - Verwarming WANDERS - Gratis gebruiksaanwijzing en handleiding
Vind de handleiding van het apparaat gratis Black Diamond Compact WANDERS in PDF-formaat.
Veelgestelde vragen - Black Diamond Compact WANDERS
Questions des utilisateurs sur Black Diamond Compact WANDERS
0 question sur cet appareil. Repondez a celles que vous connaissez ou posez la votre.
Poser une nouvelle question sur cet appareil
Download de handleiding voor uw Verwarming in PDF-formaat gratis! Vind uw handleiding Black Diamond Compact - WANDERS en neem uw elektronisch apparaat weer in handen. Op deze pagina staan alle documenten die nodig zijn voor het gebruik van uw apparaat. Black Diamond Compact van het merk WANDERS.
GEBRUIKSAANWIJZING Black Diamond Compact WANDERS
Handleiding en installmentvoorschriften 2
GB
Van harte gefeliciteerd met de aanschaft van uw Black Diamond houtkachel. Een comfortabile warmtebron, waar u jarenlang plezier van zult hebben.
Bij de ontwikkeling van deze houtkachel hebben we gelet op gebruiksgemak, veiligheid en vormgeving. De Black Diamond is ontwikkeld en geprodueerd in once eigena fabriek in Netterden en voor een belangrijk deel handgemaakt. Voor de constructie zich alleen de Beste materialen gebruikt die voldoen aan de Europees geldende normen. Zo garanderen wij u een lange levensduur en optimaal stockplezier.
In het eerste deel van deze handleiding vindt u tips en aanwijzingen voor een juist en veilig gebruik van uw houtkachel. In deel twee staan de installmentievoorschriften en de technische specificaties van de Black Diamond. Deze� vooral van belang voor de installmenteur.
Het is raadzaam om voor de ingebruikname van uw houtkachel deze handleiding zorgvuldig te lezen en hem verwolgens goed te bewaren. uw installmenter kan deze handleiding nodig hebben voor het Jaarlijkse onderhoud van uw Black Diamond.
Wij wensen u veel warmte met uw aanschaf.
Het Team van WANDERS.

- Het toestel mag nicht gebruikt worden zonder glas.
- Er mogen geenlicht ontvlambare materialen, zoals nylon kleding of brandbare vloeistoffen in denabijheid van het toestel gebracht worden.
- Dit toestel is Niet bedoelt voor gebruik door Personen (incl. kinderen) met beperkte lichamelijke of geestelijkke vermogens of Personen die Niet op de hoogte� zijn van de werkking van een kachel. Zorg ten allen tijden dat deze Personen zich uitsluitend onder toezicht in de nabijheid van het toestel begeven.
- Gebruik een haardschem gegen verbranding ter bescherming van de hierboven vermelde kinderen en Personen.
- Het toestel dient geplaatst en aangesloten te worden door een erkend installmenteur volgens dit installmentievoorschrift, de nationale en de plaatselijk geldende voorschriften.
Inhoudsopgave
Algemeen 4
Installatie 4
Aansteken van de kachel 4
Eerstekeerstoken5
Brandstof 6
De optimale stockwijze 6
Schoorsteen en rookkanaal 7
Onderhoud 7
Klein onderhoud 7
Buiten gebruickstelling 8
Jaarlijks onderhoud 8
Veiligheid 8
Garantie 8
Installatievoorschriften Black Diamond en Black Diamond Compact 9
Voorbereidig 9
Het schoorsteenkanaal 9
Brandveiligung 10
Installatie
Verbrandingslucht toevoer 10
11
Aansluiten van de haard 11
Montage staande versie 11
Montage hangende versie 12
Montage aansluiting exter luchttoevoer 12
Reparations
Vervangen van het glas in de deur 13
Vervangen van de voorruit 13
Technische gegevens

Black Diamond Compact met kanaalommanteling
De Black Diamond is een combinatie van comfort en efficiente warmteafgifte. De große glasvlakken stralen de warmte in de kachel direct uit maar de omgeving, zodate uw vertrek nsl behaaglijk warm worden. De ingebouwde rookgas keerplaat zorgt ervoor dat de rookgassen in het binnenwerk worden rondgeleid. In combinatie met de extra naverbranding betekent dit dat de rookgassen better verbranden, zodate het milieu minder worden belast. Met de ingebouwde luchtschuif kut u zich de toevoer van de verbrandingslucht regelen. Zo regelt u zich hoe hard de haard brandt en Hoeveel warmte de haard afgeeft.
Installatie
Over het algemeen zorgt de dealer waar u de Black Diamond heeft aangeschaf, ook voor deplaatsing. Is dat Niet het geval, verzeker u er dan van dat deplaatsing worden UITgevoerd door een erkende installmenteur. Een erkende installmenteur kan u ook het juiste advies given over het rookkanaal waarop de haard要去 worden aangesloten. Aansluiten van houtkachels door onbevoegden is verboden. Wij kannen u in dat geval geen garantie given op de juiste werkig van de Black Diamond.
Houd bij de installment ook rekening met de brandveiligheid. Zie pagina 10.

De houthaard is geschikt als bijverwarming en is geen verwanger voor bijvoorbeeld uw CV-installatie.
Aansteken van de kachel

Aansteken in de vroege herfst of late winter
Wanner debuiten-en binnentemperatuurniet veel vanelkaarverschillen iseen goedeschoorsteentrek een ware uittdaging. In de vroege herfst of late winterdagen kut u de schoorsteentrek een handje helpen door weinig hout te verbranden terwijl u alle luchtopeningen maximaal open houdt. Veel luchttoevoer bevordert snelle opwarming en dat stimuleert de schoorsteentrek weeer. Stoken met weinig hout voorkomt dat rook de kamer weein instroomt, ook dient de klep hiet helemaal dicht te staan

De haard worden bij het aansteken en stoken erg heet en heeft zeker twee uw nodig om af te koelen. Raak de kachel waarom Niet onbeschermd aanijdens het stoken en twee uw daarna. Bedien de haard.altijd met een handschoen, anders kurz u zware brandwonden oplopen.
Schuif de klep in het rookgasafvoerkanaal ① open. Schuif de luchtschuif ④ in de maximale stand. Open de deur en leg een paar propjes papier of aanmaakblokjes in de kachel met waar bovenop een aantalkleine stukjes hout. Steek de stukjes hout aan en zet de deur op een kier voor extra luchttoevoer, schuif eventueel de aslade ③ en het schudrooster ② een Klein stukje open. Wanner de haard brandt, na ongeveer vrij minuten, kunt u de deur en de aslade weeer sluiten. Leg Niet meer dan drie houtblokken tegelijk in de kachel. Zorg algijd voor voldoende ventilatie wanner u de houtkachel brandt. Indien u het vuur wilt temperen, sluit dan eerst de klep in de

rookgasafvoer en sluit daarna pas de luchttoevoer en het schudrooster.

Let op vingerafdukken
Pas op dat u het glas aan de binnenzijde van de kachel Niet met de vingers aanraakt. Vinge-rafdukken branden in het glas zodra u gaat stoken en+zijn daarna Nieteer te verwijderen.
Het is verboden om met vloeibare middelen zoals benzine en spiritus de kachel aan te steken.
Voorkom dat indezelfdereuimteaarudekachelstookteenafzugkapaanstaat. Raak de gelakte delen nooit aan bij het opwarmen van de haard.
Eerstekeerstoken

Verkleuren van wanden, plafonds en roosters
Na het stoken van de haard hunnen wanden, plafonds en roosters verkleuren. Dit komt doordat stofdeeltjes verbranden in de convectiemantel. Dit is een natuurlijk proces waar WANDERS nicht verantwoordelijk voor is. Om verkleuring te minimisieren verwijzen wij hier het advies dat gegeven worden in de sfeerhaardenbranche. Uw installateur kan u.daarover informeren.
Wanner u de Black Diamond voor de eerste keer gebruikt, moet de haard instoken'. Het toestel is voorzien van een hittebestendige laklaag die bij temperaturen hoger dan 400 graden Celcius in de kachel branden. Dat gebeurt de eerste paar keren dat u stookt, als de temperaturen oplopen tot 600 grade N Calcius. Overigens kan dit instoken' een onaangename geur met zich meebrengen, maar die is onschadelijk. We raden u aan om de kachel -de eerste 4 tot 5 keer dat u stookt- minimaal 6 uu terlaten branden met Niet te veel brandstof. Ventileer deruimte goed terwijl u stookt. Zorg ervoor dat indezelfde ruimte geen afzuigkap aanstaat terwijl de haard brandt; een afzuigkap trekt verbrandingslucht weg die de haard nodig heeft.
Tijdens het instoken kan er aanslag komen op het glas van de kacheldeur. Deze aanslag verwijdert u eenvoudig met eenlicht vochtige doek, als de kachel koud is. Gebruik eventueel special schoonmaakmiddel voor keramische kookplaten. Raak het schone glas Niet更是 met de vingers aan. Vingerafdrukken branden in het glas en zijn daarna Niet更是 te verwijderen.

Nieuwbouwwoning of recentere renovatie
Wacht zes weken met stoken in een nieuwbouwwoning die recent is opgeleverd, of een ruimte die onlans sterk is gerenoveerd. In muren en plafonds zitten dan nog gassen,weekmakers en vocht afkomstig van stuc-en schilderwerk. Door de warme luchtstromen, kunnen de vele stofdeeltjes in de ruimte verkleuren en vastplakken aan wanden en plafonds. Ook het vocht in demuren en plafonds worden warm, wat gele vlekken kanveroorzaken.
Brandstof

Houtsoorten en opslag
Alle soorten schoon, gekapt en droog hout kutu gebruiken als brandstof. Harde houtsoorten zoals eik, beuk en berg branden langzaam, geven veel warmte af en vormen gemakkelijk houtskool. Zachtere houtsoorten zoals spar, den en populier geen meer vlammen, maar minder warmte en minder houtskool.
Hout Aunt u het Beste opslaan op een winderinge plek, beschut gegen de regen. Zo droegt het hout op een natuurlijke wijze. Stapel de houtblokken op een oude pallet of rooster. Zo kan het hout ook vanaf de onderkant drogen en komen de onderste houtblokken Niet in contact met water.
| Houtsoort Droogtijd | ||
| Den, Populier 1aar | ||
| Linde, Wilg, Spar, Berk, Es, Els 1,5 | aar | |
| Fruitboom, Beuk 2aar | ||
| Eik 2,5aar | ||
De Black Diamond kan alleen gestoekt worden met hout. Leg Niet meer dan 3 tot 4kg brandstof tegelijk in de kachel. Gebruik alkijd schoon, gekapt hout dat voldoende droog is. Zie voor de droogtijden bovenstaande tabel. Nat hout verbrandt slecht en zorgt voor overmatige rookontwikkeling. Daardoor kan de ruit van uw haard zwart van roet worden. Ook hunnen roetdeeltjes zich vastzetten in het rookkanaal. Dat vergroot de kans op schoorsteenbrand.
Vers nat hout, bevat ongeveer 50% procent vocht. Na een Jaar drogen, bevat gekloofd hout nog 20% vocht. Na twee Jaar drogen is het vochtpercentage gedaald tot 12 tot 15 procent. Droog hout geeft een Mooi vlambeeld en weinig tot geen rook. Tijdens het branden hoort u het hout knappenen. Nat hout geeft een sissend geluid, veel rook en een minimaal vlambeeld. Het verminder het stookplezier en rendement aanzienlijk.

Gebruik geen paraffinehoudende houtblokken in uw haard. Als de deur gesloten is, smelt door de hoge但它 de paraffine te snel uit de houtblokken. De verruilde rookgassen die hierdoor ontstaan slaan direct neer op het glas van de kacheldeur, branden in het glas en zich dan nicht meer te verwijderen.
Gebruik geen hout dat is geverfd, geimpregneerd, verliimd of anderszins bewerkt. De rookgassen zijn zeer schadelijk voor het milieu en+kunnen uw haard aantasten. Ook is het verboden om plastics en ander afval te verbranden vanwege de giftige rookontwikkeling.
De optimale stockwijze
Kachels van WANDERS zich zo ontworpen, dat ze maximaal rendement leveren. Een goed gestookte houtkachel kan een rendement halen van ongeveer 75% . Hierdoor heeft u minder hout nodig voor evenveel warmte. Bovendien geeft een goed gestookte kachel minder rookveruiling. Een aantal tips voor optimaal stockplezier:
Stook uw kachel aktijd met gesloten deur; daardoor verbetert het stookrendement 8 tot 10 keer. Bij een open deur trekt de schoorsteen更是 lucht aan dan nodig voor een goede verbranding. De relatief koude lucht koelt het vuur af. Tevens voorkomt u brandschade door möglichuk uitspattende vuurdeeltjes, met name van naaldhout.
Leg nicht meer dan 3 houtblokken ineens op het vuur. Veel brandstof ineens werkt efficiente verbranding
tegen en belast het milieu onnodig.
- Ventileer de ruimte goed als uw haard brandt. Een knetterend houtvuar heeft een minimaal verbruik van 25 kubieke meter lucht per uur. Zet nooit uw afzuigkap aan als uw kachel indezelfde ruimte brandt.
Wees voorzichtig met stoken bij mist of windstil werk. Bij windstil werk is er nauwelijks trek in de koude schoorsteen. Omdat rook zwaarder is dan lucht bestaat de kans dat de rook dan de kamer instroomt. Bij mist zal de rook uit de schoorsteen (buiten) snel afkoelen, omlaag zakken en overlast veroorzaken in uw omgeving. - Doof het vuur Niet plotseling met water maar het opbranden. De materialen binnen in de haard kunnen verrormen of scheuren door plotselinge, grote temperatuurverschillen.
- Indien u het vuur wilt temperen, sluit dan eerst de klep in de rookgasafvoer en sluit daarna pas de luchttoevoer.
Schoorsteen en rookkanaal

Watedeon bij schoorsteenbrand?
Bij schoorsteenbrand sluit u direct de afsluitklep in de schoorsteen en alle luchttoevoerkanalen. Bel de brandweer. Na het blussen要去en schoorsteen en kachel opnieuw worden gekeurd door uw installerateur.
De schoorsteen is het belangrijkke onderdeel van uw houthaard. De juiste schoorsteen voorkomt rook in de kamer, aanslag op de ruit en slechte verbranding. Voordat hij tot installmentie overgaat, dient uw installerateur, of een erkend schoorsteenveger, te controleren of het schoorsteenkanaal over de gehele lenghte een diameter heeft van minimaal 150 millimeter en of het kanaal schoon, glad en lekdicht is.

Schoorsteen met een goede trek
Warne lucht wil opstijgen. Van dat principe maakt iedere schoorsteen gebruik. Wat meehelpt, is als de wind bij de schoorsteenmond ook nog eens de lucht uit de schoorsteen 'wegzuigt'.
Soms kan valwindECHter het omgekeerde effect geven, en de lucht juist terug de schoorsteen inblazen. Ook relatief zware koude mistlucht kan een goede trek van uw schoorsteen gegenwerken, evenals een lang rookkanaal met een ruw oppervlak en veel bochten. Bij slechte natuurlijke trek kan uw installmenteur u voorlichten over het gebruik van een ventilator voor uw rookkanaal.
Onderhoud
Klein onderhoud
Wij adviseren u om een laagje as van tweet tot drie centimeter te lately liggen. Zo beschermt u de stookplaat.
Verwijder twee á drie keer per week de afgekoelde as uit deaslade. Wij adviseren u om een asemmer te gebruiken. Een schoneaslade is belangrijk odomat de kachel ook via deaslade verbrandingslucht aanzuigt.
Maak het schudrooster in de kachel met een zachtberstel schoon.
- Reinig de kachel aan de buitenkant met een Licht vochtige doek die nicht pluist. Gebruik geen agressieve schoonmaak- en schuurmiddelen.
Maak het koude glas schoon met schoonmaakmiddel voor keramische kookplaten. Raak het schone glas Niet meer met de vingers aan.Vingerafdrukken branden in het glas.
Olie af en toe de scharnieren en de deursluiting.

Gebruik geen agressieve schoonmaak- en schuirmiddelen om uw haard te onderhoden.
Buitengebruikstelling
- Sluit alle deuren en luchttoevoeren in het zomerseizoen
- Plaats vochtabsorberend zout in de kachel als die in een vochtige ruimte staat
Jaarliks onderhoud
Laat, in verband met brandveiligheid en een eventuele brandverzekering, ieder Jaar uw schoorsteen grondig vegen door een erkende schoorsteenveger.
Laat jaarljks de dichtheid controeren van de rookgasafvoer en de verbrandingsluchttoevoer van het dubbelwandige rookkanaalsystem
- Laat elk jaar de schuiven en/of kleppen controleren op hun werking.
- Laat Jaarlijks alle affdichtingen van deuren en glasramen controeren op slijtage.
Veiligheid
Met een houthaard van WANDERS heeft u een comfortabile en veilige warmtebron in hous.
De brandveiligheid begint bij een correcte installmentie en een goed werkend rookgasafvoerkanaal. Uw installateur dient zich daartoe te houden aan de installmentevoorschriften, zoals omschreiben op pagina 9 en verder. Voor verig stoken+zijn verder de volgende punten van belang:
- Stook uw haard zo veel möglichk met een gesloten deur. Dat verhoegt het rendement en is ook beter voor het milieu.
- Voorkom datkleine kinderen of hulpbehoevenden in de buurt van een brandende kachel komen en laat ze Niet alleen als de haard brandt. Gebruik eventueel een haardschem.
- Giet of leg geen brandbare vloeistoffen en materiaalen in de kachel. Dit kan de kachel onherstelbaar beschadigden.
- Als de vloer rond de haard van brandbaar materiaal is, gebruik dan een vloerplaat. De vloerplaat dient een minimale grotte te hebben van: aan de voorzijde van de deur: 50~cm uit de haard. Aan elke zijkant van de deur: 30~cm uit de haard
- Plaats geen brandbare materialien, bijvoorbeeld gordijnen, houten voorwerpen (kasten, scholderijen), vlakbij de kachel of het rookkanaal. Houd minimaal een afstand van 80 centimeter aan vanaf de buitenzijde van de haard en het schoorsteenkanaal.
- Laat de schouw nooit bekleden met brandhaar materiaal (zoals papierbehang).
- Houd de punten in acheit die staan onder het kopje 'Optimale stookwijze', op pagina 6.
- Laat de haard alleen repareren door een erkend installeur en met originele onderdelen.
Garantie
Op uw houtkachel besteht WANDERS Metalproducten B.V. te Netterden een garantie van 5aar na aankoopdatum, mits de haard op een juiste wijze is geinstalleerd en worden gezrukt volgens de aanwijzingen in deze handleiding. Onder de garantie vallen alle gebreken die te herleiden zijn tot materiaal- en constructiefouten. In die geallen ontvangt u gratis neue onderdelen. Arbeidsloon en andere kosten vallen nicht onder de garantie. Defecte onderdelen kunt franco toezenden aan WANDERS Metalproducten B.V., Amtweg 4, 7077 AL, Netterden.
Voordat de haard geplaatst worden, moet u controlleren of er zichbare schade is aan het toestel.
In dat geval moet u het toestel Niet accepteren, maar contact opnemen met uw leverancier.
Buiten de garantie vallen: het glas, storingen ontstaan door onoordeelkundig gebruik; nicht juiste naleving van de landelijkke voorschriften en de bijgevoegde installment- en bedieningsvoorschrift-ten; installment door een Niet door WANDERS erkend installeratleur of dealer; verwaarlozing van het toestel en bij wisseling van eigenaar. De garantie verralt ook bij gebruik van een verkeerde brandstof.
Voor de volgende onderdelen geldt een garantietermijn van 1aar: alle gietijzeren en vermiculite onderdelen, de elektrische onderdelen, dethermostaatklep en de lak.
WANDERS is nicht verantwoordelijk voor eventuele scheuren in sierpleisterwerk en verkleuringen van wanden, plafonds en/of roosters na het stoken van de haard. Verkleuringen können ontstaan doordat stofdeeltjes verbranden in de convectiemantel. Om de kans op scheuren in sierpleisterwerk en eventuele verkleuringen te minimaliseren verwijzen wij hier het advies dat gegeven worden in de sfeerhaardenbranche. Uw installateur kan u hierover informeren.
Klachten worden in behandeling genomen nadat de verkoopfirma/installateur of het gasbedrijf een klacht heeft ingediend, vergezeld van de aankoopdatum en een kopie van de aankoopbon. Reparations given geenrecht op verlenging van de garantietermijn. Alle gevolgschade wordenuitgesloten.
Installatievoorschriften Black Diamond en Black Diamond Compact
De Black Diamond is gekeurd volgens de internationale normering EN 13240 en kent een extrauitbreidingsnormering voor optimaal milieu vriendelijk stoken met betrekking tot rookgassen (art. 15a B-Vg. Des BmfWA). De haard kan aangesloten worden op een rookkanaal waar meerere kachels op+zijn aangesloten. De pijp voor de rookgasafvoer heeft een diameter van 150 millimeter.

Het toestel mag alleen geplaatst en aangesloten worden door een erkend installerateur en volgens de onderstaande installmentevoorschriften. Daarnaast gelden de nationale en lokale wet- en regelgeving voorplaatsing en gebruik van houtkachels. WANDERS biedt geen garantie wanner de Black Diamond onvolledig of onjuist is aangesloten of geinstalleerd.
Het is nicht toegestaan de kachel teplaatsen in:
- Algemeen toegankelijke galerijen en gangen.
- Trappenhuizen, behalte in gebouwen met nicht meer dan twee woningen
- Ruimtes waarlicht ontvlambare of explosieve en gevaarlijke stoffen worden verwerkt.
- Ruimtes waar een afzuiigkap aanstaat of een mechanisch afzuiigsysteme is geplaatst, behalve wanner u de luchtaanvoerrechtstreeks van buiten haalt, zodate een gevaarloze verbranding verzekerd is.
Voorbereiding
Het schoorsteenkanaal
Voordat u de haard plaatst dient u de volgende punten in acht te nemen:
- Als u de kachel aansluit op een bestande schoorsteen, dan moet die eerst vakkundig schoongemaakt en gecontroleerd worden door een erkend schoorsteenveegbedrijf. Eventuele aflsuitkleppen dieren te worden verwijderd.
- De rookgasafvoer van de haard dient zonder omwegen te worden aangesloten op het schoorsteenkanaal.
- De onderdruk in het schoorsteenkanaal moet minimaal 12 Pa of 0,12 mbar়n.
- Het schoorsteenkanaal moet.altijd in uitmondingsgebied 1uit komen. Zie onderstaande tekening.

X>23°

X<23°
- Het schoorsteenkanaal dient ten tijd de vanplaatsing schoon en lekdicht te+zijn en zonder enige belemmering een diameter van minstens 150 millimeter te hebben.
Eventuele bochten in het rookkanaal mogen Niet groter zichn dan 45 graden.
U dient zich ervan te overtuigen dat het schoorsteenkanaal de rookgassen voldoende, goed en veilig kan afvoeren. - De waardes voor de berekening van het schoorsteenkanaal vindt u onder de Technische gegevens op bladzijde 14.
Brandveiligigkeit
In verband met brandveiligheid is het belangrijk om onderstaande voorschriften in acht te nemen voordat de kachel worden geinstalleerd.
- Als de vloer rond de haard van brandbaar materiaal is gebruik dan een vloerplaat. De vloerplaat dient een minimale grotte te hebben van:- aan de voorzijde van de deur: 50 centimeter uit de haard - aan de zijkant van de deur: 30 centimeter uit de haard
- Houd minimaal 80 centimeter afstand tussen de kachel en brandbare objecten, zoals: gordijnen, houten voorwerpen (kasten en scholderijen) en glazen objecten. Houd bezelfde afstand aan ten opzichte van het rookkanaal.
- Houten constructieonderdelen binnen het stralingsbereik van de kachel (80 centimeter vanaf buitenzijde kachel) dienen brandvrij bekleed te worden.
- Indien de rookgasafvoer door een plafond en/of dak gaat dat bestaat uit brandbare materialen, dienen plafond en dak ongeveer 80 centimeter rondon bekleed te worden met brandvrije materialen. Let hierbij op balklagen en eventuale elektrische leidingen.
- Tussen de kachel en dragende, stalen constructieonderdelen moet minimaal een afstand van 50 centimeter zitten (in allerichtingen).
- Scherm alle brandbare materialen auf die sich binnen een straal van 80 centimeter van de kachelopeningen bevinden. Doe dit met nicht brandbare materialen.
- Bekleed de schouw nooit met brandhaar materiaal (zoals papierbehang).
- De muur darüber de kachel moet uit brandvrijne materialen bestaan of ermee geisoleerd worden. Het isolatiematerialiaal dient een temperatuur van 700 graden Celsius te weerstaan en een dichtheid van 80kg/ m3 te hebben. Zie voor de isolatiematerialien tabel op pagina 15).
- Voorkom bij hetplaatsen van de haard warmte-doorslag. De warmte afgifte van een brandende haard kan door de muur hebnek. Dit kan zichs brand verooorzaken aan de andere kant van de muur. Voorkom dit
Installatie
De Black Diamond is gekeurd volgens de internationale normering EN 13240 en kent een extrauitbreidingsnormering voor optimaal milieu vriendelijk stoken met betrekking tot rookgassen (art. 15a B-Vg. Des BmfWA). De haard kan aangesloten worden op een rookkanaal waar meerde kachels op+zijn aangesloten. De pijp voor de rookgasafvoer heeft een diameter van 150 millimeter.
Verbrandingslucht toevoer
De haard dient voldoende verse verbrandingslucht toegevoerd te krijgen. Maak indien nodig een extra luchttoevoer opening, zo zich möglichk bij de kachel; zo vermijdt u tocht. Een extra luchttoevoeropening is absolutut vereist indien:
- Het vertrek is voorzien van een warmteterugwinsystem.
- Het vertrek is voorzien van een centraal afzuigsystemeem.
Een afzuigkap indezelfdruimte staat.
De luchttoeoperopening moet aflsuitbaar zich indien deze door een brandwerende muur loopt. Zijn er meerde verbrandingstoestellen indezelfde ruimte aanwezig, dan要去en er voldoende luchtopeningen zich om een zorgeloze verbranding te garanderen.
External luchttoevoer
Het kanaal voor de aanvoervan verse buiutenlucht heefteen diameter van 100 millimeter. Het luchttoevoerkanaal kan via een onderaansluiting aangebracht worden. Gaat de externe luchttoevoer door een brandmuur, dan dient dit kanaal aflsuitbaar te zijn. Is het kanaal langer dan 1 meter, inclusief een bocht van 90 graden, dan moet de diameter van het kanaal worden vergroot. Voor het aansluiten van de externe luchttoevoer kijkt u op pagina 13.
Aansluiten van de haard
De Black Diamond is een zware houthaard. De staande versie weegt -inclusief 2 meter rookgasafvoer-kanaal-150 kilo. Verzeker uervandat demuur of vloer waar u de haard op of aan monteert, dit gewicht probleemloos kan dragen. Volg, voordat u de haard monteert, eerst de aanwijzingen op uit het vorige hoofdstuk 'Voorbereiding'. Bescherm uw rug en de vloerijdens de hele montage.
Montage staande versie
- Controller of de muur waar u de haard voor staat brandwerend genoeg is. Kijk daartoe onder het kopje 'Brandveiligheid' op pagina 10.
- Controller de verpakkingsdoos van de haard en die van de voet. Monteer geen kachel of voet die beschadigd uij een doos komt. Meldt eventuele schade bij WANDERS.
- Wees voorzichtig bij het uitpakken van de haard en bescherm de vloer als u dit doet: de pijpmond onderaan de kachel heeft een scherpe rand.
- Verwijder de glasplaat van de haard. Dit om eventuele schade te voorkomen.
- Indien u een exter leuchtaanvoer aansluiting aan de haard wilt leest u nu de alinea"Montage aansluiting exter luchtaanvoer" op pagina 13.
- Bescherm de vloer en kantel de haard voorzichtig op de rug.
- Verwijder de 4 schroeven aan de onderziende.
- Pak de voet uit de doos en haal de voorplaat van de voet af, deze zit geklemd.
- Maak de voet met de 4 schroeven vast aan de haard.
- Til voorzichtig de haardrechtop en zet die op de gewensteplaats.Denk aan uw rug.
- Sluit, indien gewenst, een apart luchttoevoerkanaal aan (minimale diameter: 100 millimeter). Maak hierbij gebruik van de onderaansluiting.
- Klik de voorplaat van de voet waar terug op+zijn plaats.
- Monteer de haard aan de boenzijde vast aan de muur. Gebruik geen kunststof bevestigingsmaterialen.
- Plaats de glasplaat terug op de haard.
- Monteer dan de rookgasafvoer afwaterend.

Montage hangende versie
- Controller of de muur waar u de haard voor staat brandwerend genoeg is. Kijk daartoe onder het kopje 'Brandveiligheid' op pagina 10.
- Controller de verpakkingsdoos van de haard en die van de voet. Monteer geen kachel of voet die beschadigd uit een doos komt. Meld eventuele schade bij WANDERS.
- Wees voorzichtig bij het uitpakken van de haard en bescherm de vloer als u dit doet: de pijpmond onderaan de kachel heeft een scherpe rand.
- Verwijder de glasplaat van de haard. Dit om eventuele schade te voorkomen.
- Monteer de ophangbeugel aan de muur. Gebruik hiervoort nooit kunststof bevestigingsmaterialen. Zorg ervoor dat de beugel precies midden onder het afvoergat zit en dat de haken waarboven wijzen. Bevestigingsbauten moot hier dan 10 mm uit de wand steken.
- Sluit, indien gewenst, een apart luchttoevoerkanaal aan met een minimale diameter van 100 millimeter. Gebruik hiervoordonde onderaansluiting.Kijk voor hetplaatsen van de externe luchttoevoer bij de volgende alinea.
- Hang de haard in de beugels. Denk aan uw rug. Om gewicht te besparenkest u tijdelijk het glas en de stookplaat verwiederen. Monteer de haard aan de bovenziije aan de muurbeugel.
- Plaats de glasplaat谈起 op de haard.
- Monteer de rookgasafvoer afwaterend.




Black Diamond
Black Diamond Compact
Montage aansluiting exterle luchttoevoer
- Volg de punten 1 tot en met 5 UIT de vorige alinea Montage hangende versie.
- Kijk voor de maatvoering voor het boren van de gaten op de figuur in de vorige alinea.
- Hang de haard in de beugel (denk aan uw rug). Om gewicht te besparenkest u het glas en de stookplaat verwijderen (zie hoofdstuk reparations op pagina 13).
- Indien achteraansluiting: schuif de externe luchttoevoerbuis in het gat en schuif de externe luchtkastussen de lippen.
- Indien onderaansluiting: de extra lucht kast is dan nicht möglich.
- Ga nu verdier met sunt 7 UIT de vorige alinea Montage hangende versie.

Reparaties
Vervangen van het glas in de deur
- Open de deur met de kapotte ruit.
- Verwijder de glasstrips aan de binnenkant van de deur.
Vervang de glasruit. Let op: het glas is scherp. - Controller of de keramische band heel is en goed vast zit aan de deur. Zo Niet: plank deze opniew vast met neutrale siliconenkit of verrang.Deze geheel.
- Vervang het gebroken glas (let op scherpe randen).
Monteer alles wee terug.

Vervangen van de voorruit
Verwijder de glasplaat en schroef de twee beugels los.
Pak de gebogen voorruit door het waar voren te halen enlicht te laten zakken. Let op: het glas is scherp.
Verwijder de glasstrips.
- Controller of de keramische glasband heel is en vastzit op de haard. Zo Niet: plank deze opnieuw vast met neutrale siliconenkit of verrang deze geheel.
- Vervang de gebogen voorruit. Let waar bij op scherpe randen.
Monteer de haard.


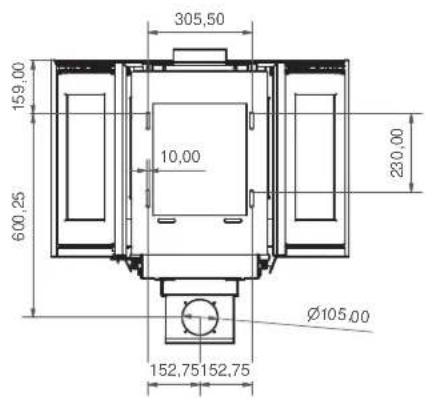
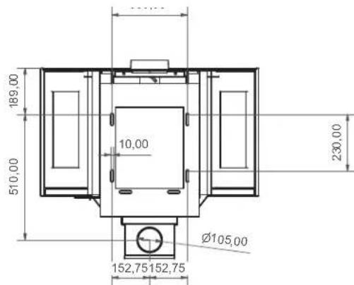
Technische gegevens
| Black Diamond Black Diamond Compact | ||
| Deur sluiting I & II & II Ba | ||
| Nominaal vermogen* 8 7 kW | ||
| Pijpdiameter verbrandingsgassen 150 150 mm | ||
| Maximale vulling met hout 3 3 kg | ||
| * nominale warmte worden vergreten bij een schoorstentrek van 0,12 mBar | ||
| Brandstof; houtblokken (30 x 10 cm) | |
| Maximale opleg hoeveelheid 3 stuks | |
| Primaire luchtklep | maximaal |
| Secundaire luchtopening | maximaal |
| Brandtijd brandstof | ongeveer 1aar |
| Rookgaswaarden volgens DIN 4705, DIN 18895 deel 2 Bij gesloten deur met als brandstof hout | |||
| Black Diamond | Black Diamond Compact | ||
| Rookgashoeveelheid | 8,4 | 8,4 | g/s |
| Rookgastemperatuur | 290 | 290 | °C |
| Voordruk | 0,12 | 0,12 | mBar |
| Rendement | 78,9 | 79,0 | % |
| CO op 13% O2 | 0,07 | 0,05 | % |
| Fijnstof | 26 | 25 | mg/m3 |
| Keuringsinstituut | 1625 | 1625 | |
| Keuringsnorm EN13240 EN13240 | |||
| Keuringsrapportnummer | RRF - 400 169 | RRF - 4011 2705 | |
Richtwaarden voor de inhoud van de te verwarmen ruimte:
Niet alle vertrekken voldoen aan de huidige isolatiewaarden. Voor de inhoud van de te verwarmen ruimte können volgens DIN 18893 de volgende waarden aangehonden worden:
Bij gunstige verwarmende omstandigheden:
bereken volgens DIN 4701
Bij minder gunshote omstandigheden:
135 (Black Diamond) 125 (Compact) ^3
Bij ontunstige omstandigheden:
95 (Black Diamond) 90 (Compact) m³
Voorijdelijkke verwarming, bij een onderbreking van meer dan 8aar, kan voor de te verwarmen inhoud 25% );
minder gerekend worden.
Tabel isolatiedikte bij muurdikte
| muurdikte 10 cm is | solistie convectiernantel | |
| Bescherming van de muur | Achterkant8 cmZijkant8 cmOnderkant6 cm | |
| Wanden uit brandbare bouwdelen XX | ||
| Dragende wanden uit staalbouw XX | ||
| Inbouw meubel gegen kachel | XX | |
| Inbouwmeubel in achechterliggende muur | XX | |
| Overige wanden | ||
| Wand dikte < 10 cm | XX | |
| Wand dikte > 10 cm (kan gemetselde muur+zijn) | - | |
| Tabel geeft aan welke isolatiedikte gekozen要去 worden bij welke muurdikte, ter bescheming vaninbouwwanden | ||
Tabel isolatiematerialiaal, NB: alleen wat in het gearzeege gebied staat is toegestaan
| Isolatie Verpakt gebrukstemp. | Warmtegeleiding | Bovenste Dichtheid | |||||||
| nr | artikel nr | vormnr verpakt | nr °C nr kg/m3 | ||||||
| 10 | mineraal Wol | 01 | banen | 01 | matten verstikt | 10 | 100 | 02 | 20 |
| 11 | glaswol | 02 | losse wol | matten verstikt | 12 | 120 | 03 | 30 | |
| 12 | steenwol | 03 | wol | 02 | matten verstikt | 14 | 140 | 04 | 40 |
| 13 | slakken | granulaat | g. kromme 2 | 16 | 160 | 05 | 50 | ||
| 04 | vilt | 06 | 60 | ||||||
| 05 | lamellen mat | 10 | schilfers | 07 | 70 | ||||
| g. kromme 1 | 08 | 80 | |||||||
| 06 | matten verstikt | 11 | schilfers | 09 | 90 | ||||
| 07 | platen | g. kromme 2 | 10 | 100 | |||||
| 08 | schalen | 72 | 720 | 11 | 110 | ||||
| 09 | segmenten | 20 | platen | 74 | 740 | 12 | 120 | ||
| 10 | gevlochten | g. kromme 1 | 76 | 760 | 13 | 130 | |||
| 21 | platen | ||||||||
| g. kromme 2 | 18 | 180 | |||||||
| 99 | overige | 99 | enkel | 99 | 99 | ||||
Zoek in deze tabel het isolatiematerialiaaluit. Groep 99 is NIET toegestaan.
kopie aankoopbewijs bijvoegen Aub // / please enclose copy of proof of purchase
postcode - plaats / postal code - town code postal - lieu / postleitzahl - ort
land / country / pays / land
dealer geveens / dealer information / l'information revendeur / handler informationen
naam / name / nom / name
adres / address / adress / adress
postcode - plaats / postal code - towncode postal - lieu / postleitzahl - ort
land / country / pays / land
Onder de garantie vallen alle gebreaken die te herleidenen zich tot materiai- en constructiefouten. In die gewallen ontvangt u gratis neue onderelden. Ardebildoon en andere Kosten vallen nicht oder de garantie. Defecte onderdenk sunt franco toezenden aan WANDERS Metaalproducken B.V., Amtweg 4,7077 AL, Netterden.
Voordat de haarl geplaatst worden, moet u controlleden er zichtbare schado is aan het toestel.
In dat geval moet u het tostell net accepteren, maar contact opopenen met uw leveranciar.
Buiten de garantie vallen: het glas, storingen ontstaan door onoordeelkundig gebruicui niet juiste naeling van de landelijkke voorschriften en de bijgevoegde installmente - en bediiningsvourschriften; installeat door een niel door WANDERS erkend installeur de dealer; verwaalzoing van het toestel en bij wisseling en eisenaar. De garantie verrait ook bij gelebruik van een veerkeerde brandstoff.
WANDERS is nicht verantwortedordelijk voor eventuele schuren in sierpleistenwerk en verkleuringen van wanden, plafonds en/of roosters na het stoken van de haard. Verkleuringen kannen ontstaan doordat stofdeelijtes verbranden in de convectiemantem. Om de kans op schuren in sierpleistenwerk en eventuele verkleuringen te minimisieren verwijen wij hier het advies dat gegeven worden in de steerhaardenbranche. Uw installeur kan u hierover informeren.
Klachten worden in behandelung genommen natad de verkoopfirma/instandaller het gasbedrijn een klacht heegt ingiend, vergezeld van de aankoopdatum en een klop van de aankoopboon. Reparatures given geenrecht op verlangen van de guarantiertijmern.
Alle gevolgschade worden ultgesloten.
SimpelGids