2520VG - Open haard DOVRE - Gratis gebruiksaanwijzing en handleiding
Vind de handleiding van het apparaat gratis 2520VG DOVRE in PDF-formaat.
Veelgestelde vragen - 2520VG DOVRE
Gebruikersvragen over 2520VG DOVRE
0 vraag over dit apparaat. Beantwoord die u kent of stel uw eigen vraag.
Stel een nieuwe vraag over dit apparaat
Download de handleiding voor uw Open haard in PDF-formaat gratis! Vind uw handleiding 2520VG - DOVRE en neem uw elektronisch apparaat weer in handen. Op deze pagina staan alle documenten die nodig zijn voor het gebruik van uw apparaat. 2520VG van het merk DOVRE.
GEBRUIKSAANWIJZING 2520VG DOVRE
Prestatieverklaring 4
Veiligheid 9
Ventilatie van de ruimte 10
Vloer en wanden 11
Productbeschrijving 11
Installatie 13
Voorbereiding 13
Inbouwen in een bestande schouw 14
Inbouwen in een neue schouw 15
Uitwendige kader monteren 17
Gebruik 18
Eerste gebruik 18
Brandstof 18
Aanmaken 19
Stoken method 20
Stoken met bruinkoolbriketten 21
Stoken met antracietkolen 21
Regeling van de verbrandingslucht 22
Doven van het vuur 22
Ontassen 22
Nevel en mist. 23
Eventuele problemen 23
Onderhoud 23
Schoorsteen 23
Schoonmaken en ander regelmatig onderhoud23
Bijlage 1: Technische gegevens 26
Bijlage 2: Aansluitschema's 28
Bijlage 3: Afmetingen 31
Bijlage 4: Afstand tot brandaar materiala..40
Index 42
Inleiding
Geachte gebruiker,
Met de aankoop van dit verwarmingstoestel van
DOVRE heeft u gekozen voor een kwaliteit'sproduct.
Dit product maakt deel uit van een neue generatie energiezuinige en milieuvriendelijkke ver-
warmingstoestellen. Deze toestellen make npoptimal gebruik van zowel convectiewarmte als stralingswarmte.
Uw DOVRE toestel is geproduced met de modernste productiemiddelen. Mocht er onverhoopt toch iets mankeren aan uw toestel, dan kunt u altijd een beroep doen op de DOVRE service.
Het toestel mag nicht gewijzigd worden; gebruik steeds originele onderdelen.
Het toestel is bedoeld voorplaatsing in een woonruimte. Het moet hermetisch worden aangesloten op een goedwerkende schoorsteen.
Wij adviseren u het toestel te lately installereren dooreen bevoegt installmenter.
DOVRE kan nicht aansprakelijk worden gesteld worden voor problemen of schade door een onjuiste installmentie.
Bij installmentie en gebruik要去en de hierna beschrevenveiligheidsvoorschriften in acht worden genomen.
In deze handleiding leest u hoe u het DOVRE verwarmingstoestel op een veilige manier installeert, gebrukt en onderhoudt. Als u aanvullende informatatie of technische gegevens wilt of een installmentie-probleem heeft, neemt u dan eerst contact op met uw leverancier.
© 2013 DOVRE NV
Prestatieverklaring
Volgens de bouwproductenverordening 305/2011
Nr. 102-CPR-2013
- Unieke identificatiecode van het producttype:
2020S / 2200 / 2210 / 2220
- Type-, partij- of serienummer, dan wel een ander identificatiemiddel voor het bouwproduct, zoa voorgeschreven in articlel 11, lid 4:
Uniek serienummer.
- Beoogde gebruiken van het bouwproduct, overeenkomstig de toepasselijke geharmoniseerde technische specificatie, zoals door de fabrikant bepaald:
Kachel voor vaste brandstof zichonder productie van warm water volgens EN 13240.
- Naam, geregistreerde handelsnaam of geregistreerd handelsmerk en contactadres van de fabrikar zoals voorgeschreiben in article 11, lid 5:
Dovre N.V. Nijverheidsstraat 18 2381 Weelde Belgium.
-
Indien van toepassing, naam en contactadres van de gemachtigde wiens mandaat de in article lid 2, vermelde taken bestrijkt:
-
Het systeme of de systemen voor de beoordeling en verificatie van de prestatiebestendigheid bouwproduct, vermeld in bijlage V:
System 3
- Indien de prestatieverklaring betrekking heeft op een bouwproduct dat onder een geharmoniseen norm valt:
De aangestelde instantie RRF, geregisteerd onder het nummer 1625, heeft onder system 3 een type-keuruitgevoerd en heeft het testrapport nr 2905903 verstrekt.
- Indien de prestatieverklaring betrekking heeft op een bouwproduct waarvoor een Europese technische beoordeeling is afgegeven:
9. Aangegeven prestatie:
| De geharmoniseerde norm EN 13240 | :2001/A2 :2004/AC :2007 | ||
| Essentièle karakteristieken | Prestaties Hout | Prestaties Bruinkool | Prestaties olen |
| Brandveiligheid | |||
| Vuurbestendigheid A1 A1 A1 | |||
| Afstand tot brandhaar materiaal(minimale afstand in mm) | Achterkant: 100 Zijkant: 100 | Achterkant: 100 Zijkant: 100 | Achterkant: 100 Zijkant: 100 |
| Risico van uittvallende gloeende deeltjes | Conform Conform | Conform | |
| Emissie van verbrandingsproducten | CO: 0,10% (13%O2) | CO: 0,06% (13%O2) | CO: 0,04% (13%O2) |
| Oppervlaktetemperatuur Conform Conform | Conform | ||
| Elektrische verilgheid | - | - | - |
| Gemakkelijk te reinigen | Conform Conform | Conform | |
| Maximale werkingsdruk | - | - | - |
| Rookgastemperatuur bij nominaal vermogen | 295 °C | 289 °C | 272 °C |
| Mechananse watertand(gewicht dragen van schoorsteen) | Niet bepaald | Niet bepaald | Niet bepaald |
| Nominaal vermogen | 7 kW | 7 kW | 8 kW |
| Rendement | 78,3 % | 75,4 % | 76,4 % |
- De prestaties van het in de punten 1 en 2 omschreiben product waar conform de in punt s gegeven prestaties.
Deze prestatieverklaring worden verstrekt onder de exclusive verantwoordelijkheid van de in punt 4 vermelde fabrikant:

Tom Gehem
26/08/2013 Weelde
CEO

Volgens de bouwproductenverordening 305/2011
Nr. 105-CPR-2013
- Unieke identificatiecode van het producttype:
2500/2510/2520/2620
- Type-, partij- of serialummer, dan wel een ander identificatiemiddel voor het bouwproduct, zoa voorgeschreven in articikel 11, lid 4:
Uniek serienummer.
- Beoogde gebruiken van het bouwproduct, overeenkomstig de toepasselijk geharmoniseerde technische specificatie, zoals door de fabrikant bepaald:
Kachel voor vaste brandstof zonder productie van warm water volgens EN 13240.
- Naam, geregistreerde handelsnaam of geregistreerd handelsmerk en contactadres van de fabrikar zoals voorgeschreiben in article 11, lid 5:
Dovre N.V. Nijverheidsstraat 18 2381 Weelde Belgium.
- Indien van toepassing, naam en contactadres van de gemachtigde wiens mandaat de in article lid 2, vermelde taken bestrijkt:
一
- Het systemd of de systemen voor de beoordeling en verificatie van de prestatiebestendigheid bouwproduct, vermeld in bijlage V:
Systeem 3
- Indien de prestatieverklaring betrekking heeft op een bouwproduct dat onder een geharmoniseer norm valt:
De aangestelde instantie RRF, geregisteerd onder het nummer 1625, heeft onder systeme 3 een type-keuruitgevoerd en heeft het testrapport nr 2905904 verstrekt.
- Indien de prestatieverklaring betrekking heeft op een bouwproduct waar voor een Europese technische beoordeeling is afgegeven:
9. Aangegeven prestatie:
| De geharmoniseerde norm EN 13240 | :2001/A2 :2004/AC :2007 | ||
| Essentièle karakteristieken | Prestaties Hout | Prestaties Bruinkool | Prestaties Kolen |
| Brandveiligheid | |||
| Vuurbestendigheid A1 A1 A1 | |||
| Afstand tot brandhaar materiaal(minimale afstand in mm) | Achterkant: 100 Zijkant: 100 | Achterkant: 100 Zijkant: 100 | Achterkant: 100 Zijkant: 100 |
| Risico van uittvallende gloeendiende deeltjes | Conform Conform | Conform | |
| Emissie van verbrandingsproducten | CO: 0,10% (13%O2) | CO: 0,09% (13%O2) | CO: 0,05% (13%O2) |
| Oppervaktetemperatuur Conform Conform | Conform | ||
| Elektrische veiligheid | - | - | - |
| Gemakkelijk te reinigen | Conform Conform | Conform | |
| Maximale werkingsdruk | - | - | - |
| Rookgastemperatuur bij nominaal vermogen | 264 °C | 318 °C | 314 °C |
| Mechananse watertand(gewicht dragen van schoorsteen) | Niet bepaald | Niet bepaald | Niet bepaald |
| Nominaal vermogen | 10 kW | 10 kW | 10 kW |
| Rendement | 80,0 % | 76,4 % | 79,0 % |
- De prestaties van het in de punten 1 en 2 omschreiben producteren conform de in punt s gegeven prestaties.
Deze prestatieverklaring worden verstrekt onder de exclusive verantwoordelijkheid van de in punt 4 vermelde fabrikant:

Tom Gehem
26/08/2013 Weelde
CEO

In het kader van een continue productverbetering, können specificaties van het geleverde toestel afwijken van de beschrijving in deze brochure, zonder voorafgaande kennisgeving.
DOVRE N.V.
Nijverheidsstraat 18 Tel: +32 (0) 14 65 91 91
B-2381 Weelde Fax: +32 (0) 14 65 90 09
Belgié E-mail : info@dovre.be
Veiligheid
Let op! Alle veiligheidsvoorschriften要去en strikt worden nageleefd.
Lees aandachtig de instructies voor installmentie, gebruik en onderhoud die met het toestel zich meegeleverd, voordat u het toestel in gebruik neemt.
Het toestel moet worden geinstalleerd overeenkomstig de wetgeving en voorschriften van uw land.
Alle lokale bepalingen en de bepalingen die betrekking hebben op nationale en Europese normen要去en worden nageleefd bij het instal-leren van het toestel.
Laat het toestel bij voorkeur installereren door een bevoegd installmenteur. Deze is op de hoogc van de geldende bepalingen en voorschriften.
Het toestel is ontworpen voor verwarmingsdoeleinden. Alle oppervlaktes, inclusief het glas en de aansluitbuis konnen zeer heet worden (meer dan 100^ ! Gebruik voor de bediening een 'koude hand' of een hittebestendige handschoen.
Zorg voor voldoende afterscherming alsjonge kinderen, mindervaliden en ouderen zich in denabijheid van het toestel bevinden.
Veiligheidsafstanden tot brandbaar materiaal moeten strikt worden aangehouden.
A Plaats geen gordijnen, kleren, wasgoed of andere brandbare materialen bovenop of in nabijheid van het toestel.
Gebruik tijdens het gebruik van uw toestel geenlicht ontvlambare of explosieve stoffen in de nabijheid van het toestel.
De schoorsteen is nodig voor:
Voorkom schoorsteenbrand door regelmatig de betreffende schoorsteen te latent reinigen. Stook het toestel nooit met open deur.
Bij schoorsteenbrand: sluit de luchtinlaten van het toestel en waarschuw de brandweer.
Als het glas van het toestel is gebroken of gebarsten, moet dit glas worden verrangen voordat u het toestel opnieuw in gebruik neemt.
Zorg voor voldoende ventilatie van de ruimte waar het toestel worden geplaatst. Bij onvoldoende ventilatie vindt onvolledige verbranding plaats, waardoor zich giftige gassen in de ruimte+kunnen verspreiden.Zie het hoofdstuk "Installatiecondities"oormeer informatie over ventilatie.
Installiecondities
Algemeen
Het toestel moet worden aangesloten op een goed werkende schoorsteen.
Voor de aansluitmaten: zie de bijlage "Technische gegevens".
Informeer bij de brandweer en/of verzekeringsmaatschappijaar eventuele specifieke vereisten en voorschriften.
Schoorsteen
Het afvoeren van de verbrandingsgassen doon natureurlijke trek.
i De warme lucht in de schoorsteen isichter dan de buitenlucht en stijgt.darom.
Het aanzuigen van lucht, nodig voor de verbranding van de brandstof in het toestel.
Een Niet goed werkende schoorsteen kanijdens het openen van de deur rookterugslag gezven. Schade

ontstaan door rookterugslag is uitgesloten van garantie.
Sluit Niet meerere toestellen (bijvoorbeeld ook nog een centraleverwarmingsketel) op verzelfde schoorsteen aan, tenzij lokale of nationale regelgeving hierin voorziet. Zorg in ieder geval bij twee aansluitingen dat het hoogteverschil tussen de aansluitingen minimaal 200mm bedraagt.
Vraag uw installateur om advies over de schoorsteen. Raadpleeg de Europese norm EN13384 voor een juiste berekening van de schoorsteen.
De schoorsteen moet aan de volgende voorwaarden voldoen:
De schoorsteen要去 gemaakt zijn van vuurvast materiaal, bij voorkeur keramiek of roestvrij staal.
De schoorsteen要去 luchtdicht en goed:gereinig. Zijn en voldoende trek garanderen.
Een trek/onderdruk van 15 - 20 Pa tijdens normale belasting is ideaal.
De schoorsteen moet - vertrekend van de uitgang van het toestel - zo vertical vermijl lopen. Richteisveranderingen en horizontale stukken verstoren de afvoer van verbrandingsgassen enveroorzaken maybeijk roetophoping.
De binnenmaten mogen nicht te groot zich, om te voorkomen dat de verbrandingsgassen te sterk afkoelen waardoor de trek minder worden.
De schoorsteen moet bij voorkeurdezelfdiediameter hebben als de aansluitkraag.
Voor de nominale diameter: zie de bijlage "Technische gegevens". Als het rookkanaal goed is geisoleerd, kan de diameter eventuee wat groter zijn (maximaal tweemaal de sectie van de aansluitkraag).
De sectie (oppervlakte) van het rookkanaal要去 constant zijn. Verwijdingen en (vooral) vernauwingen verstoren de afvoer van verbrandingsgassen.
Bij toepassing van een regenkap/afvoerkap op de schoorsteen: let erop dat de kap Niet de uitmonding van de schoorsteen vernauwt en dat de kap Niet de afvoer van verbrandingsgassen belemmert.
De schoorsteen moet uitmonden in een zone dieen. Niet worden verstoord door omliggende gebouwen, vlakbijstaande bomen of andere hindernissen.
Het schoorsteengedeelte buiten de woning要去 en geisoleerd zich.
- De schoorsteen moet minimaal 4 meter hoog zijn.
- Als vuistregel geldt: 60cm boven de nok van het dak.
Als de nok van het dak meer dan 3 meter is verwijderd van de schoorsteen: houd de maten aan die in de volgende figuur zijn aangegeven. A = het hoogste punt van het dak binnen een afstand van 3 meter.

Ventilatie van de ruimte
Voor een goede verbranding heeft het toestel lucht (zuurstof) nodig. Die lucht worden via regelbare lucht- inlaten aangevoerd vanuit de ruimte waar het toestel is geplaatst.
Bij onvoldoende ventilatie vindt onvolledige verbranding plaats, waardoor zich giftige gassen
in de ruimte kunnen verspreiden.
Een vuistregel is dat de luchttoevoer 5,5cm^2 /kW moet zich. Extra ventilatie is nodig:
- Als het toestel in een ruimte staat die goed is geïsoleerd.
Als er mechanische ventilatie is, by een centraal afzuigsysteme om een afzuigkap in een open keuken.
U kunt voor extra ventilatie zorgen door een ventilatierooster in de buitenmuur te latelyplaatsen.
Zorg dat andere luchtverbruikende apparaten (zoals een wasdroger, ander verwarmingstoestel of bad-kamerventilator) een eigena buitenluchtaanvoer hebben, of zich uitgeschakeld wonneer u het toestel stookt.
Vloer en wanden
De vloer waarop het toestel worden geplaatst,要去 voldoende draagvermogen hebben. Voor het gewicht van het toestel:zie de bijlage "Technische gegevens". 6

In de vloer onder het toestel en in de wanden rond het toestel月至gen zich geen elektrische leidingen bevinden.

Onder het toestel moeten alle brandbare materialen verwijderd zijn of beschermd zich met minimaal 6 cm betonplaat.

Brandbare wanden grenzend aan het toestel moeten beschermd worden met minimaal 10 cm stenen wand en 5 cm isolatie.

Bescherm nicht-brandbare wanden grenzend aan het toestel met minimaal 2,5 cm isolatie voorkoming van scheurvorming.

Beschem een brandbare vloer door middel van een onbrandbare vloerplaat gegen warmte-uitstraling en eventueel uittallende assen. Zie de bijlage "Afstand tot brandaar materiaaal".

Zorg voor voldoende afstandCUSHT het toestelen brandbare materialen zoals meubels.

Zorg voor voldoende ventilatie rondon brandbare materialen zoals een sierbalk. Zie bijlage "Afstand tot brandbaar materiaal".

Een vloerkleed moet minimaal 80~cm van het vuur verwijderd zijn.

Plaats geen brandbare materialen binnen 50~cm van de eventuele convectie-uit- laatopeningen.
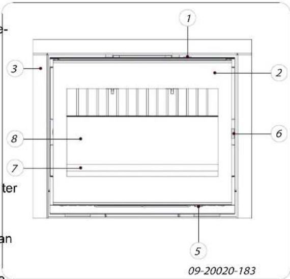
Productbeschrijving



- Secundaire luchtschuif
- Deur
- Uitwendig sierkader
- Schudstang
- Primaire luchtschuif
- Grendel
- Vuurkorf
- Vuurvaste binnenplaten
Kenmerken van het toestel
Het toestel worden geleverd met een losse hand-greep voor het openen van de deur, de zogenaamde "koude hand".
Het toestel worden geleverd met een tweede losse handgreep voor het verwijderen van de aslade, de zogenaamde "koude hand";zie volgende figuur.

De draairichting van de deur kan gewijzigd worden Het toestel worden geleverd met een rechtsdraaiende deur. Voor een linksdraaiende deur is een optioneel verkrijgbare grendelstang nodig. De instructies voor het wijzigen van de draairichting worden met deze grendelstang meegeleverd.
De draairichting van de deur kan gewijzigd worden Het toestel worden gelevererd met een linksdraaiende deur. Voor een rechtsdraaiende deur is een opti- oneel verkrijgbare grendelstang nodig. De instru-c ties voor het wijzigen van de draairichting worden
met deze grendelstang meegeleverd.
Het toestel worden geleverd met een aansluitset voor de buitenluchttoevoer.
Het toestel is nicht geschikt voor continu gebruik.
Deinzehaard heeft een geintegreerd convectiesystem. Bij de inbouw van het toestel hoeft er dus geen afzonderlijke convectieruimte gebouwd te worden en de toepassing van luchtinlaatroosters en luchtuitlaatroosters ten behoeve van de convectie is overbodig.
i De ruimte tussen de gietijzeren haard en de sta- len convectiekast doet diest als convectieruimte. Onderaan het toestel wordt de omgevingslucht aangezogen. De lucht worden om de haard geleid waar de lucht verwarmd wordt. Vervolgens verlaat de verwarmde lucht aan de voorzijde de convectieruimte door de luchtopening aan de bovenzijde van de haard.
Het toestel is uitgerust met twee extra aansluitingen om convectiewarmte te transporteren maar andere ruimtes.
Het toestel is uitgerust met twee ingebouwde ventilatoren die de convectie bevorderen. De draaisnelheid van de ventilatoren is regelbaar door een toerenregelaar. Deze toerenregelaar is meegeleverd. De ventilator en toerenregelaar worden aangesloten op het elektriciteitsnet;zie de para-graaf "Ventilator aansluiten op het elektriciteitsnet".
i De ventilator werkt thermostatisch, dat houdt in dat de ventilator pas in werkig treedt als deinzehaard voldoende warm is en dat de ventilator uitschakelt als deinzehaard voldoende is afgekoeld.
Het toestel kan geleverd worden met een uitwendig kader waar u een sierkader op kurz bevestigen.Het sierkader is optioneel leverbaar.
Installatie
Voorbereiding
- Controller het toestel onmiddelijk bij ontvangst (transport)schade en eventuele gebreken.
Als u (transport)schade of gebreken hebte geconstateerd, neem het toestel dan nicht in gebruik en stel de leverancier op de hoogte. -
Verwijder de demontabele onderdelen (vuuvaste binnenplaten, stookbodem, vuurkorf, asluik enaslade) uit het toestel voordat u het toestel gaat installereren.
i Door de demontabele onderdelen te verwijderen, kunt u het toestel gemakkelijker verplaatsen en beschadiging voorkomen.
Let bij het verwijderen van demontabele onder-delen op hun oorspronkelijke positie, om ze later weeer op de juiste plaats te kunnen aan-brengen. -
Open de deur van het toestel.
- Verwijder de vuurvaste binnenplaten.
Gietijzeren binnenplaten beschermen de verbrandingskamer en geben warmte door aan omgeving.
Handgreep monteren
Het toestel worden geleverd met een losse handgreep de zogenaamde "koude hand".
De vorm van de koude hand is afhankelijk van de uitvoeringsvorm van het toestel.
Bevestig met bijgeleverde schroef M8x50 het houten handvat aan het verloopstuk; zie volgende figuur.

Voor het openen van de deur zich volgende figuur.

Draairichting van de deur wijzigen
Desgewenst kan de draairichting van de deur gewijzigd worden. Het toestel worden geleverd met een rechtsdraaiende deur. Volg onderstaande instructies.
- Schroef de grendel van de deur.
- Schroef de sluitnok van de deur UIT de stijl.
- Trek de scharnierpennen uit de scharnieren.
Zorg ervoor dat u de deur voldoende onder steunt; zonder scharnierpennen kan de deur onverwachslos komen van het toestel.
- Verwijder de deur van het toestel.
- Neem de sluitingen van de scharniernok enplaats\ deze aan de andere zijde van het toestel.
-
Positioneer de deur boven de scharniernokken en plaats de scharnierpennen in de scharnieren.
-
Schroef de grendel aan de andere zichde van de deur.
- Schroef de sluitnok aan de andere zichde van de deur.
Opmerking: Voor het bijstellen van de deursluiting zie het hoofdstuk "Onderhoud".
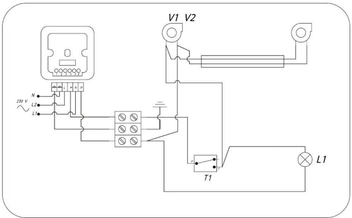
Ventilator aansluten op het elektriciteitsnet
Deinzehaard worden geleverd met twee ingebouwde ventilatoren en met een losse toerenregelaar. Daarnaast is het toestel uitgerust met een thermo-switch die de ventilator in- en uitschakelt bij een vast ingestelde temperatuur.
Deze onderdelen要去 op het elektriciteitsnet aangesloten worden volgens een van de onderstaande aansluitschema's.

Het aansluitschemaismodelspecifiek.

Laat de aansluiting uityoeren door een deskundig installmenter.

Deinzetaard is voorzien van een drie-aderig snoer.

Deinzehaard moet van het elektriciteitsnet geschreibenen zijn door middel van een dubbelpolige schakelaar.

Zorg voor een goede aarding van de inzehaard.
Zie bijlage 2 voor uitgebreide aansluitschema's.
Inbouwen in een bestaandeschouw
Voor het inbouwen van de haard in een bestaandeschouw volgt u onderstaande instructies:
Houd de elektrische kabel van het toestel vrij.
- Als u een uitwendig kader op het toestel gaatplaatsen moet u de meegeleverde kleplaten aan de zijkanten van het toestel bevestigen zonder de schroeven helemaal vast te draaien. Het uittendig kader klemt namelijkCUSSEN het toestel en de kleplaten;zie volgende figuur.

09.20015.061
- Sluit de basis van de schoorsteen af met een onbrandbaar materiaal.
- Maak een opening in de basis ten behoeve van de afvoerbuis met diameter 150~mm
- Centreer de opening in de basis met de aan-sluitkraag op de haard.
- Plaats de afvoerbuis in de opening. Zorg ervoor dat de buis waar beneden getrokken kan worden zodate hij op de aansluitkraag past. Gebruik bijvoorbeeld een buis met regelbare lenghte.

Bij gebruik van RVS-flexibele buis: schroef de buis aan het meegeleverde aansluitstuk,plaats het aansluitstuk in de aansluitkraag en fixeer het aansluitstuk door de twee lipjes maar buiten te buigen.
- Zet het toestel op de juiste hoogte, vlak en water de volgende figuur geeft een voorbeeld van deplaatpas. sing van een inbouwhaard in een schouw die volgens

bovenstaande instructies en voorschriften is gebouwd.

A Bestaande haard
B Ventilatieruimte (minimaal 15 mm)
C Bestaand rookkanaal
D Vuurvast materiaal of een verbindingstuk
E Opening ter voorkoming van drukopbouw
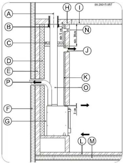
Inbouwen in een neue schouw
De installmentie van de inbouwhaard bestaat uit twee onderdelen:
Deplaatsing en aansluiting van de inbouwhaard
De schouw rond de inbouwhaard opbouwen.
Inbouwhaard plaatsen en aansluiten
- Zet het toestel op de juiste hoogte, vlak en waterpas.
- Als u een uitwendig kader op het toestel gaatplaal sen moet u de meegeleverde klemplaten aan de zijkanten van het toestel bevestigen zonder deschroeven helemaal vast te draaien. Het uittwendig kader klemt namelijkCUSen het toestel en de klemplaten;zie volgende figuur.

- Zorg dat:tussen de bestaande wanden, voorzien van de benodigde isolatie (zie het hoofdstuk "Installatieconditions"), en de achterkant van het toestel minimaal 15mm vrije convectieruimte is.
- De inbouwhaard mag Niet het metselwerk dragen. Gebruik desgewenst een ondersteuning zoals een draagijzer. Laatussen de ondersteuning en het toestel minimaal 3 mm spelimg.
- Sluit het toestel hermetisch aan op de schoorsteen.
- Controller de trek in de schoorsteen en de affidichting van de aansluiting op het rookgasafvoerkanaal door een Klein hevig proefvuur te makesen van krantenpapier en droog dun hout.

Wacht bij neueuw metselwerk tot het met-selwerk voldoende droog is.
Convectielucht aftappen
Het toestel is uitgerust met twee extra aansluitingen, om convectiewarmte te transporteren maar andere ruimtes. In deze ruimtes dienen luchtuitlaatroosters aanwezig te+zijn. Als u van deze functie gebruik wil makeen gaat u als volgt te werk:

Gebruik in de inbouwruimte geen brandbaar materiaal en voorkom de werkking van warmtebruggen bij het gebruik van warmtegeleidende materialen.
Volg onderstaande instructie bij de opbouw van de schouw:
1.1. Metsel de voet van de haard.

Zorg dat de deur van de haard vrij over het plateau van de haard kan draaien.
- Verwijder de twee drukplaten bovenop de convectiekast door deze met een hamer los te tikke.
- Monteer de twee meegeleverde aansluitkragen met diameter 125 mm op de ontstane openings met de meegeleverde M8x16 schroeven en M8 bouten.
- Sluit hierop flexibele buis met diameter 125 mm aan en voer deze maar de gewenste ruimtes.
-
Sluit de flexibele slang aan op de uitlaatroosters de ruimtes.
-
Metsel de haard verder op tot aan de rookvang.

Zorg dat er.altijd 2mm spelimgblijfttussen de inbouwhaard en metselwerk om de warmteuitzetting van de inbouwhaard op te vangen.
- Bekleed desgewenst de binnenzijde van beschouw met reflecterend isolatiematerialial.

Extra bekleding van de inbouwruimte voorkomt onnodige warmteuitstralingaar möglichke buitenmuren en/of naast gelegen ruimtes.Het voorkomt ook aantasting van de spouwmuurisolatie.
Opbouw van de{nieuwe schouw
In de schouw maakt u de convectieruimte. Indezere imte moet lucht vrij hunnen bewegen. Er moet lucht aangezogen hunnen worden voor de verbranding en de door de inbouwhaard verwarmde lucht (de convectielucht) moet vrij de te verwarmen ruimte in kunnen stromen;zie volgende figuur.
Metsel de schouw verder af tot aan de rookgasopening in het plafond.

De inbouwhaard mag Niet het metselwerk dra-gen. Gebruik een ondersteuning zoals eendraagijzer. Laatussen de ondersteuning en
Volg bij de bouw van de schouw de volgende voorschriften:
het toestel minimaal 3 mm spelimg.
- Sluit de inbouwruimte af met de afsluitplaat.
De bovenzijde van de schouw要去 luchtdicht afgesloten zijn met een afluitplaat van onbrandaar en hittebestendig materiaal.
En Plaats onder de aflsuitplaat een luchtrooster in verband met de ventilatie van het toestel.
De afluitplaat moet waterpas liggen en minimaal 30~cm onder de rookgasopening in het plafond geplaatst zich.
- Maak boven de aflsuitplaat een opening om eventuele drukopbouw te voorkomen.
Desgewenst kunt u aan de boenzijde van deschouw en vlak onder de aflsuitplaat een extra luchtuitlaatrooster plaatsen.
De volgende figuur geeft een voorbeeld van deplaatsing van een inbouwhaard in een schouw die volgens bovenstaande instructies en voorschriften is gebouwd.

A Schoorsteen
B Vuurvast materiaal of een verbindingstuk
C Afdekplaat
D Isolatiematerialiaal (minimaal 5 cm)
E Onbrandbare muur
F Brandbare muur
G Ventilatieruimte (minimaal 15 mm)
H Onbrandbaar plafond
I Brandbaar plafond
J Convectieluchtopening
K Isolatie (optioneel)
L Onbrandbare bodem
M Brandbare bodem
N Opening gegen drukopbouw
O Aansluitbuis
P Convectielucht andere ruimte
Uitwendige kader monteren
Het toestel kan geleverd worden met een bijbehorendriezijdig of vierzijdig uitwendig kader. Optioneel is ook een sierkader leverbaar dat aan het uitwendig kader worden bevestigd.
- Monteer het uitwendig kader door de zijdes met twee schroeven aan elkaar te verbinden; die vol-gende figuur.

- Monteer het sierkader door de zijdes van het sierkader met behulp van het verbindsingelement te koppelen en verrolgens te fixeren door de tweeschroeven (A) van het verbindsingelement aan te draaien;zie volgende figuur.

- Centreer het sierkader ten opzichte van het uitwendig kader; zie volgende figuur.


- Plaats aan elke zijde drie ondersteuningsplaatjes tussen het sierkader en het uitwendig kader; zie volgende figuur.

- Bevestig het (samengestelde) kader op het toeste door de bevestigingslippen aan de verticale zijde van het kader,ussen het toestel en de klemplate schuiven;zie volgende figuur.

Aferking
- Plaats alle gedemonteerde onderdelen op de juiste plaats terug in het toestel.
- Zorg dat de新模式 gebouwde schouw voldoende droog is, voordat u gaat stoken.
Laat het toestel nooit branden zonder de vourvaste binnenplaten.
Het toestel is nu klaar voor gebruik.
Gebruik
Eerste gebruik
Wonneer u het toestel voor het eerst gebruikt, stook het dan enkele uren flink door. Hierdoor za de hittebestendige lak uitharden. Hierbij kan wel wat rook en geurhinder ontstaan. Zet eventueel in de ruimte waar het toestel staat de ramen en deuren even open.
Brandstof
- Het toestel is geschikt voor het stoken vanATURELICK teel
- hout (gezaagd en gekloofd en voldoende droog), voor de
- het stoken van bruinkoolbriketten en voor het stoken
- wateren van antracietkolen.
Gebruik geen andere brandstoffen, want die kuren leiden tot ernstige schade aan het toestel.
De volgende brandstoffen mag u niedebruiken odomdat zij het milieu verruilen, en odomdat zij het toestel en de schoorsteen sterk verruilen waardoor schoorsteenbrand kan ontstaan:
Behandeld hout, zoals sloophout, geverfd hout, geimpregneerd hout, verduurzaamd hout, multiplex en spanplaat.
Kunststof, oud papier en huishoudelijk afval.
Hout
- Gebruik bij voorkeur hard loofhout zoals eik, beuk, berg en fruitbomenhout. Dit hout brandt langzaam met rustige vlammen. Naaldhout bevat meer hors, brandt sneller en geeft meer vonden.
Gebruik gedroogd hout met een vochtpercentage van maximaal 20% . Hiervoor要去 het hout minstens 2aar zijn gedroogd.
Zaag het hout op maat en klief het als het nog vers is. Vers hout klieft gemakkelijker en gekloven hout droogt better. Bewaar het hout onder een afdek waar de wind vrij spel heeft.
- Gebruik geen nat hout. Nat hout geeft geen warmiteStapel twee lagen middelgrote houtblokken kruis-omdat alle energie gaat zitten in het verdampen ings op elkaar.
van vocht. Dit geeft veel rook en roetaanslag op de. 2. Stapel bovenop de houtblokken twee lagen aanmaakhoutjes kruislings op elkaar.
deur van het toestel en in de schoorsteen. De
waterdamp condenseert in het toestel en kan langsnaden uit het toestel lekken en Zwarte vlekken op3. Leg een aanmaakblokjeussen de onderste laag aanmaakhoutjes en stek het aanmaakblokje aanvlogens de instructies op de verpakking.
de vloer gezven. De waterdamp kan ook in de
schoorsteen condenseren en creosoot vormen.
Creosoot is zeer brandaar en kan schoorsteenbrandveroorzaken.
Bruinkoolbriketten
Bruinkoolbriketten haben ongeveer bezelfde brandeigenschappen als hout.
Zorg voor een goed houtskoolbed voordat u bruin-koolbriketten gaat stoken.
Volg voor het aanmaken van de haard de instructies in de paragraaf "Aanmaken".
Antracietkolen
Antracietkolen worden ingedeeld in categorieen op 4. grond van kenmerken, soms bij wet bepaald, zoals het percentage vluchtige stoffen. Het asgehalte van antracietkolen ligtCUSnen de 3 % en 13 % Hoe lager het asgehalte hoe hoger de stockwaarde en hoe minder vaak u hoeft te ontassen.
- Gebruik bij voorkeur categorie A antracietkolen met een laag asgehalte.
- Gebruik het aanbevolen formaat 12/22 of 20/30.
Volg voor het aanmaken van de haard de instructies in de paragraaf "Aanmaken".
Aanmake

- Sluit de deur van het toestel en zet de primaire luchtinlaat en de secundaire luchtinlaat van het toestel open;zie volgende figuur.
Laat het aanmaakvuur flink doorbranden totdat het een gloeiend houtskoolbed is geworden. Hierna kunt u een volgende vulling doe en het toestel gaan regelen; zi de paragraaf "Stoken met hout".
Bediening van de Iuchtschuiven
Het toestel heeft twee luchtschuiven. De primaire luchtschuif zit onderaan in de deur en regelt de lucht onder het rooster. Boven de deur bevindt zich de secundaire luchtschuif die de lucht regelt voor het glas (air-wash system).
U kunt controleren of de schoorsteen voldoende trek heeft door boven de vlamplaat een prop krantenpapier De luchtschuif kan worden bediend met de koude aan te steken. Bij een koude schoorsteen is er vaak hand. De vom van de koude hand is afhankelijk van onvoldoende trek in de schoorsteen en kan er rook de uitvoeringsvorm van het toestel. de kamer kom. Door het toestel op de hier beschvor de open- en dichtpositie van de luchtschuif, zie ven manier aan te make, voorkomt u dit probleem de volgende afbeeldingen.



Nadat u de instructies voor het aanmaken hebt gevolgd:
- Open langzaam de deur van het toestel.
- Verdeel het houtskoolbed gelijkmatig over de stookvloer.
- Stapel enkele houtblokken op het houtskoolbed.

Losse stapeling
Bij een losse stapeling verbrandt het hout vlug omdat de zuurstof elk stuk hout gemakkelijk kan bereiken. Gebruik een losse stapeling als u kort wilt stoken.

Compacte stapeling
Bij een compacte stapeling verbrandt het hout langzamer komt de zuurstof maar enkele stukken hout kan bereiken. Gebruik een compacte stapeling als u langer wilt stoken.
- Sluit de deur van het toestel.
- Sluit de primaire luchtinlaat en LAST de secundaire luchtinlaat open staan.
Vul het toestel voor maximaal een derde.
Stoken met bruinkoolbriketten
Sluit bij het stoken van antracietkolen alsijd de secundaire luchtschuif.
Bruinkoolbriketten branden op nagenoegdezelfdemanier als hout. Zorg met behulp van de primaire inlaat voor voldoende luchttoevoer onder het vuur. verder de paragraaf "Stoken met hout".
Zet het stockrooster open door de schudstang, aan voren te trekken.
Nadat u de instructies voor het aanmaken hebt
Het branden van bruinkoolbriketten geeft veel as. V wijder de overtollig as regelmatig. Zie de paragraaf "Ontassen" voor instructies.
i
Voor de eigenschappen en het gebruik van de bruinkoolbriketten: raadpleeg uw leverancier van de bruinkoolbrikten of zich de verpakking van de bruinkoolbrikten.
- Zet de primaire luchtschuif volledig open.
- Open langzaam de deur van het toestel.
- Verdeel het houtskoolbed gelijkmatig over de stookyloer.
-
Verspreid een schep kolen op het houtskoolbed en wacht met de volgende schep tot de kolen gaan gloeien.
-
Voeg nu meer kolen toe.
Nadat u de instructies voor het aanmaken hebt gevolgd:
- Open langzaam de deur van het toestel.
- Verdeel het houtskoolbed gelijkmatig over de stookvloer.
- Leg de bruinkoolbriketten op het houtskoolbed.
- Sluit de deur.
Let op dat u het vuur Niet dooft door in een keer te veel kolen toe te voegen.
U heeft de maximale bijvulling bereikt als degloed van de vorige vulling nog net zichtaar is.
- Sluit de deur.
- Laat de kolen 20 tot 30 minutesvironnement goed doorewabranden en regel de luchttoevoer met de primaireverluchtschuif.
- Gebruik de schudstang om het rooster te schudden tot er gloeende deeltje in de asla vallen.
- Zet de primaire luchtschuif helemaal open.
- Vul opniew kolen bij tot de maximale vulling.
Let op dat het rooster open staat door deschudstang maar voren te trekken.
- Zet na enkel minuten de primaire luchtschuif in degewenste positie.
Als de vuurkorf of het schudrooster rood beginnen te gloeien, bent u te hard aan het stoken. Het schudrooster en/of de vuurkorf kennendaardoor verrormen.
Stoken met antracietkolen
Gebruik een kolenkorf om de antracietkolen in te ren; zie volgende figuur. De kolenmof is optioneel krijjbaar.

Regeling van de verbrandingslucht
Het toestel heeft diverse voorzieningen voor de lucht- lijk. regeling.
De primaire luchtschuif regelt de lucht onder het rooster.
De secundaire luchtschuif regelt de luckt voor het (air-wash).
Adviezen

Stook nooit met open deur.

Stook het toestel regelmatig flink door.
Regelmatig eenkleinehoeveelheidbruinkoolbriketen ofantracietkolentoevoegen isbeter danvee bruinkoolbriketen of antracietkolen tege
Doven van het vuur
Vul geen brandstof bij en LAST de kachel gewoon uita. gaan. Als een vuur wordt getemperd door de lucht-glas toevoer te verminderen, komen schadelijke stoffen vrij. Laat waarom het vuur vanzelf uitbranden. Houd toezicht op het vuur totdat het goed is gedoofd. Als het vuur volledig is gedoofd+kennen alle luchtschuiven worden gesloten.
Ontassen
Als u langdurig op lage stand stookt, kan zich Na het stoken van hout blijft een relatiefkleine hoe-in de schoorsteen een afzetting vormen van veelheid as over. Dit asbed is een goede isolator voor teer en creosoot. Teer en creosoot zicheer de stookbodem en geeft een betere verbranding. Laat brandhaar. Als de afzetting van deze stoffen taaarom gerust een dun laagje as op de stookbodem liggroot worden, kan bij een plotselinge hoch temgen.
peratuur een schoorsteenbrand ontstaan. Door
regelmatig fink doorstoken, verdwijnen eventuale afzettingen van teer en creosoot.
Daarnaast kan zich bij te laag stoken teer a ten op de ruit en deur van het toestel.
Bij een milde buitentemperatuur is het dus beter om het toestel eenaar uur intens te latenten branden, dan large tijd laag te stoken.
Na het stoken van bruinkoolbriketten en antra-cietkolen blijf er relatief veel as over. Verwijder regel-matig de overtollige as.

De as mag nooit de onderkant van het rooster raken. Het rooster raakt dan oververhit en beschadigd.
Regel de luchttoevoer met de secundaire lucht-inlaat.

De secundaire luchtinlaat belucht nicht alleen het vuur maar ook het glas, zodat het glas snel verwuilt.
De luchttoevoer door de stockbodem mag darüber nicht worden belemmerd en er mag zich geen as ophopen darüber een binnenplaat. Verwijder THATOM REGELMATIG de overtollige as.
- Open de deur van het toestel.
Zet de primaire luchtinlaat tijdelijk open als de luchttoevoer via de secundaire luchtinlaat onvoldoende is of als u het vuur wilt aanwakkeren. 3.
- Gebruik de schudstang om de overtollige as via ucht- het rooster in de asla te latent vallen.
Regelmatig eenkleinehoeveelheid houtblokken bijvullen isbeter danvee houtblokken tegelijk.
- Verwijder deaslade met behulp van de bij- geleverde koude hand en leeg deaslade; ziede deij- volgende twee figuren.


Aan het begin van het stookseizoen:That de schoorsteen vegen door een erkend schoorsteenveger.
Tijdens het stockseizoen en nadat de schoorsteen lange&tijd Niet is gebruikt:laat de schoorsteen controeren op roet.
Na afloop van het stockseizoen: sluit de schoorsteen af met een prop krantenpapier.

Schoonmaken en anderregelmatig onderhoud

Maak het toestel nicht schoon wanner het nog warm is.
Maak de buitenkant van het toestel schoon met een droge Niet pluizende doeK.
- Plaats de aslade terug en sluit de deur van het stel.
Na afloop van het stockseizoen(Int)kunt u de binnenkant toe-van het toestel goed schoonmaken:
Nevel en mist
Nevel en mist belemmeren de afvoer van rookgassen door de schoorsteen. Rook kan neerslaan en stank-overlast gehen. Als het Niet=echt nodig is, kunt u bij nevel en mist beter nicht stoken.
- Verwijder eventuele eerst de vuurvaste binnenplaten. Zie het hoofdstuk "Installatie" voor instructies voor het verwijdersen en aanbrengen van binnenplaten.
Eventuele problemen
Raadpleeg de bijlage "Diagnoseschema" om eventuele problemen bij het gebruik van het toestel op losesen.
bI Maak eventueel de luchtaanvoerkanalen schoon.
Verwijder de vlamplaat boven in het toestel en maak deze schoon.
Onderhoud
Volg de onderhoudsinstructies in dit hoofdstuk om toestel in goede staat te honden.
Vuurvaste binnenplaten controlleren
De vuurvaste binnenplaten zijn verbruiksonderden die aan slijtage onderhevig他们是 Vermiculite binnenplaten zijn kwetsbaar. Stoot het houtblokken gegen de binnenplaten. Controller de binnenplaten regelmatin en verrang ze indien nodig.
Zie het hoofdstuk "Installatie" voor instructies voor het verwijderen en aanbrengen van binnenplaten.
Schoorsteen
In veel landen bent u wettelijk verplicht de schoorsteen te latent controlleren en onderhoden.
i De isolerende vermiculite of chamotte binnenplaten kennen haarscheuren gaan vertonen, maar dat heeft geen nadelig effect op hun werking.

Gietijzeren binnenplaten gaan lang mee als u regelmatig as verwijdert die zich möglich erachter ophoopt. Als opgehoopte as acheer een gietijzerenplaat Niet worden verwijderd, kan deplaat de warmte Niet meer afgeven aan de omgeving en kan deplaat verrormen of schet ren.
b. Verwijder het vuil met een vochtige doek of keukenpapier.
- Maak het glas nogmaals schoon met een gewoon in glasreinigingsproduct.
Wrijf het glas schoon met een droge doek of keukenpapier.

Laat het toestel nooit branden zonder de vuurvaste binnenplaten.
Gebruik geen schurende of bijtende producten om het glas schoon te make.
Klep en vlamplaat demonteren
Zowel de klep als de vlamplaat zijn demontabel. Om de vlamplaat te demonteren要去erst de klep en de klepstang worden verwijderd.
Gebruik schoonmaakhandschoenen om uw handen te beschermen.
- Open de deur van het toestel.

Als het glas van het toestel is gebroken of gebarsten, moet dit glas worden verrangen voordat u het toestel opnieuw in gebruik neemt.
- Til de gesloten klep iota op en schuif hem boven de vlamplaat zodate beiden vrij়.

Voorkom dat kachelruitreiniger:tussen het glas en de gietijzeren deur loopt.
- Verwijder de klep en de klepstang uit het toeste
Smeren
- Schroef het steunplaatje los door de de moer M8 los te draaien. Het steunplaatje bevindt zich in het midden gegen de topplaat van het toestel.
Hoewel gietijzer enigszins zichsmerend is, moet u 8 bewegende delen toch regelmatig smeren. net
- Til de vlamplaat aan de voorkant op, trek de vlampaat waar voren en neem de vlamplaat uit het toestel.
Smeer de bewegende delen (zoals gelei
dersystemen, scharnierpennen, fremds en lucht-schuiven) met hittevast vet dat verkrijgbaar is bij de vakhandel.
Opmerking: Volg voor de montage van de klep en
Afwerklaag bijwerken
vlamplaat, voor het in gebruik nemen van het toest bovenstaande instructies in omgekeerde volgorde.
Kleine lakbeschadigingen Aunt u bijwerken met een spuitbus special hittebestendige lak die verkrijgbaar is bij uw leverancier.
Glas schoonmaken
Goed schoongemaakt glas neemt minder snel vuil Ga als volgt te werk:
Afdichting controlleren
- Verwijder stof en loszittend roet met een droge doek.
Controller of het afldichtingskoord van de deur nog goed aflsuit. Afdichtkoord verslijt en moetijdig worden verrangen.
- Maak het glas schoon met kachelruitenreiniger: a. Breng kachelruitenreiniger aan op een keukenspons, wrijf het gehele glasoppervlak in en LAST even inwerken.
Controller het toestel op luchtlekken. Kit eventuele kieren dicht met kachelkit.

Laat de kit goed uitharden voordat u het toestel aanmaakt, anders blaast het vocht in de kit open ontstaat opnieuw eenlek.
Deur bijstellen
Controleer of de deur goed sluit en stel zonodig descharnierstijl bij; zie volgende figuur.

- Open de deur van het toestel; de scharnierstijl is nu zichtaar en toegankelijk.
- Draai de twee bevestigingsbouten van de scharnierstijl iets los. De bevestigingsbouten bevinden zich aan de binnenzijde van de haard.
- Verschuift de scharnierstijl in de gewenste positie.
- Gebruik de stelschroeven om de scharnierstijl in de breedte van het toestel te positioneren.
- Draai de twee bevestigingsbauten vast en contruleer de sluiting van de deur.
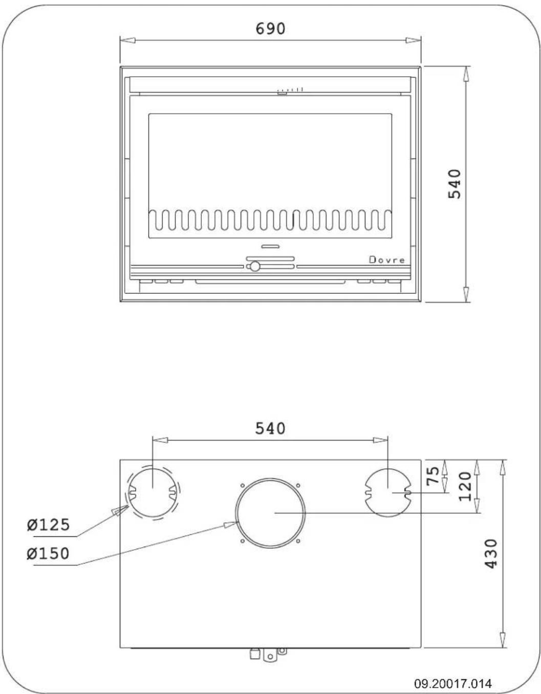
Bijlage 1: Technische gegevens
Model 2200 / 2210 / 2220 / 2020
| Model 2200 2210 2220 2020 | ||||
| Nominal vermogen 8 kW 8 kW 8 kW | 7 kW | |||
| Schoorsteenaansluiting (diameter) 150 mm | mm 150 mm | 150 mm | 150 mm | |
| Gewicht | 140 kg | 175 kg | 150 kg | 130 kg |
| Aanbevolen brandstof | Hout | Hout | Hout | Hout |
| Kenmerk brandstof, max. lenght hout | 50 cm | 50 cm | 50 cm | 40 cm |
| Elektrische aansluiting | 230 V, 50 Hz, 0,5 A | |||
| Brandstof | Hout | Bruinkoolbriketten | Antracietkolen |
| Massadebiet van rookgassen | 7,7 g/s | 8,9 g/s | 7,8 g/s |
| Temperatuurstijging gemeten in de meet-sectionie | 295 K | 289 K | 272 K |
| Temperatuur gemeten aan de uitgang het toestel | van 340 °C | - | - |
| Minimum trek | 14 Pa | 14 Pa | 14 Pa |
| CO-emissie (13%Q) | 0,10 % | 0,06 % | 0,04 % |
| NOx-emissie (13% Q) | 106 mg/Nm3 | - | - |
| CnHm-emissie (13%Q) | 51 mg/Nm3 | - | - |
| Stofemissie | 31 mg/Nm3 | - | - |
| Rendement | 78,3 % | 75,4 % | 76,4 % |
Model 2500 / 2510 / 2520 / 2620
| Model 2500 2510 2520 2620 | ||||
| Nominal vermogen 10 kW 10 kW 10 | kW 10 kW | |||
| Schoorsteenaansluiting (diameter) 150 mm 150 mm 150 mm 150 mm | mm 150 mm 150 mm 150 mm | mm 150 mm | mm | |
| Gewicht 150 kg 180 kg | 160 kg | 160 kg | ||
| Aanbevolen brandstof | Hout | Hout | Hout | Hout |
| Kenmerk brandstof, max. lenghte hout | 50 cm | 50 cm | 50 cm | 50 cm |
| Elektrische aansluiting | 230 V, 50 Hz, 0,5 A | |||
| Brandstof | Hout | Bruinkoolbriketten | Antracietkolen |
| Massadebiet van rookgassen | 9,2 g/s | 9,7 g/s | 8,1 g/s |
| Temperatuurstijging gemeten in de meet-sectionie | 264 K | 318 K | 314 K |
| Temperatuur gemeten aan de uitgang van het toestel | 320 °C | - | - |
| Minimum trek | 14 Pa | 14 Pa | 14 Pa |
| CO-emissie (13%O2) | 0,10 % | 0,09 % | 0,05 % |
| NOx-emissie (13% Q) | 52 mg/Nm3 | - | - |
| CnHm-emissie (13%Q) | 21 mg/Nm3 | - | - |
| Stofemissie | 16 mg/Nm3 | - | - |
| Rendement | 80,0 % | 76,4% | 79,0 % |
Bijlage 2: Aansluitschema's
De in de schema's voorkomende aanduidingen hebben de volgende betekenis:
T1 thermo-switch
V1 ventilator
V2 ventilator
L1 lamp
R1 weerstand
S1 2-standenschakelaar
Model 2020

Model 2220, model 2520 en model 2620

Model 2210 en model 2510

Model 2200 en model 2500

De modellen 2200 en 2500 zijn uitgevoerd met een tweestandenschakelaar om de snugheid te reg. er is geen thermostaatfunctie aanwezig.
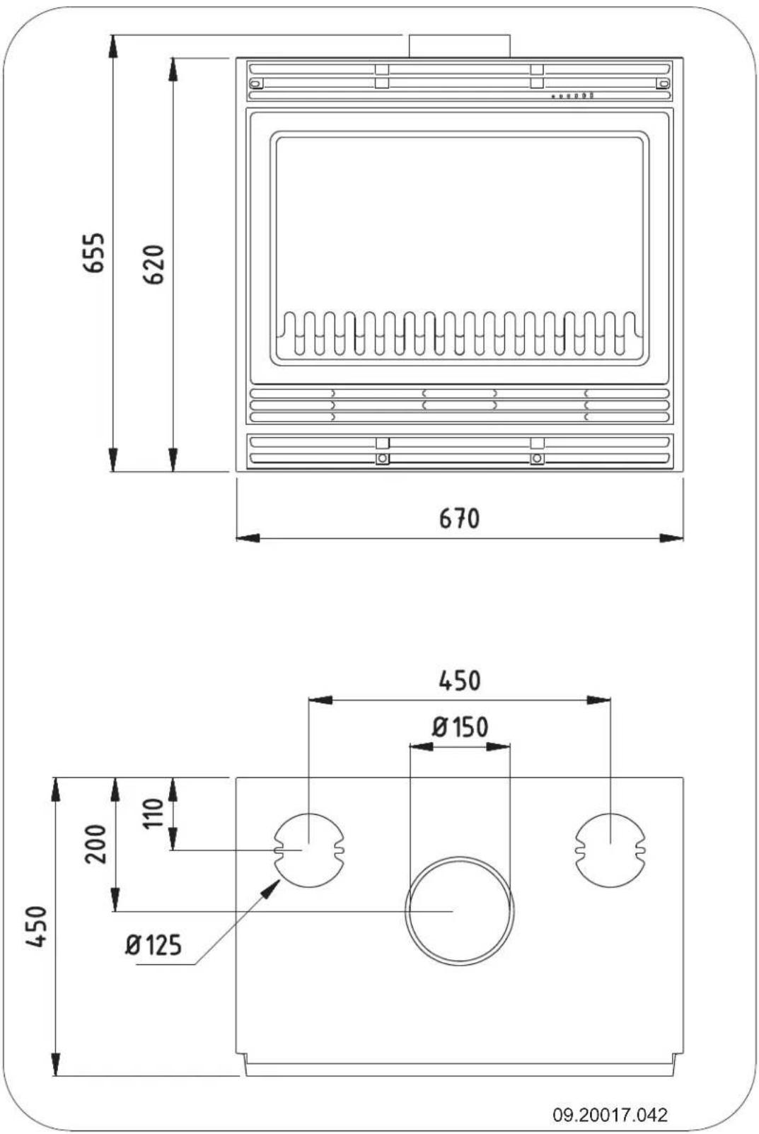
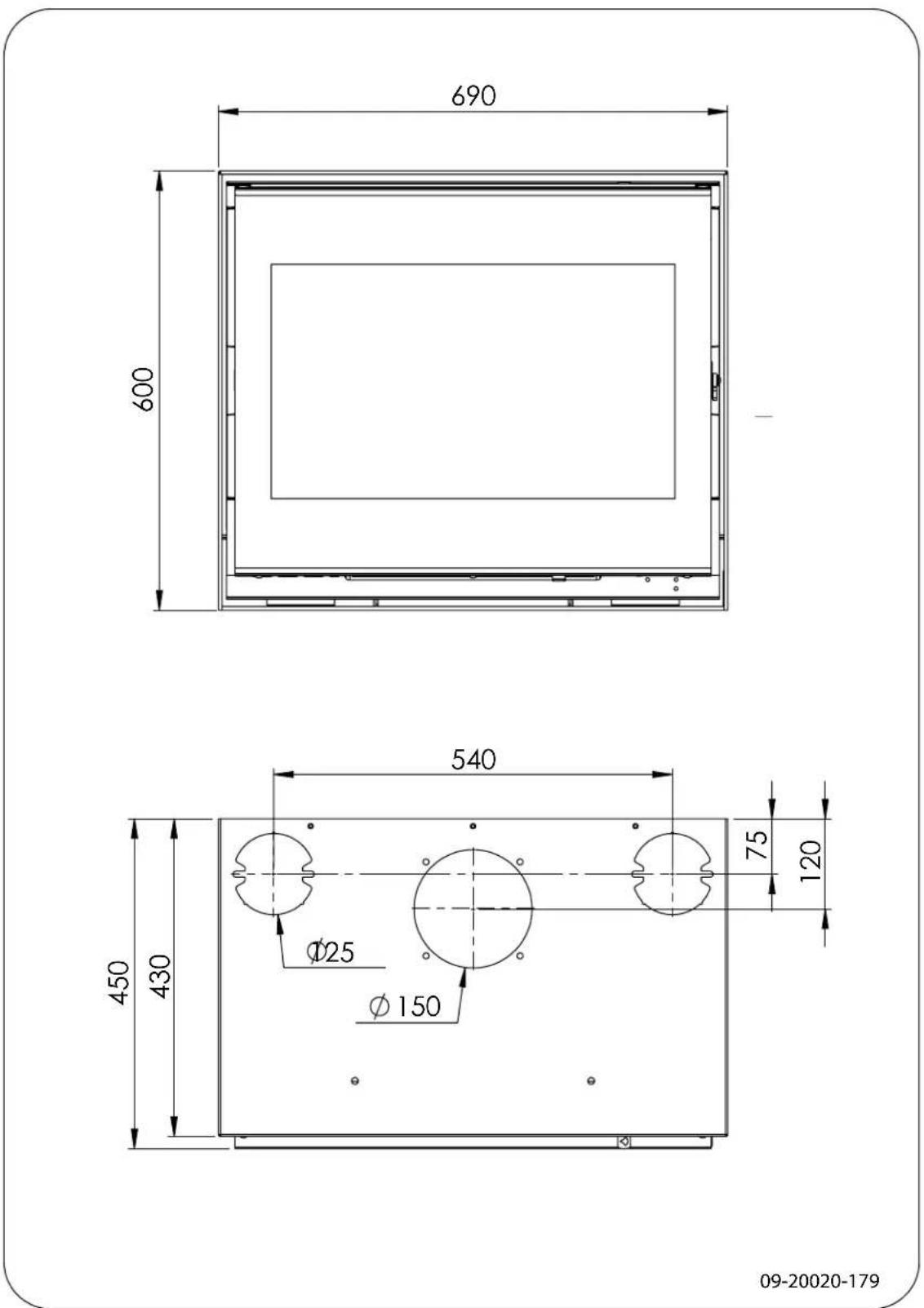
Bijlage 3: Afmetingen
2020


09.20017.044

2200
2210


2220
2500



2510

2520

2520BS

Bijlage 4: Afstand tot brandhaar materiaal
Minimale ventilatieruimte buiten het stralingsbereik

Afmetingen onbrandbare vloerplaat in centimeters


Minimale afafetigenen onbrandbare vloerplaat
$$ \begin{array}{l} V > H + 3 0 > 6 0 \ S > H + 2 0 > 4 0 \ \end{array} $$
| Probleem | |||||
| ● | Hout wil nicht doorbranden | ||||
| ● | Geeft onvoldoende warmte | ||||
| ● | Rookterugslagijdens het bijvullen | ||||
| ● | Toestel brandt te hevig, nicht goed regelbaar | ||||
| Aanslag op het glas | |||||
| mogelijkkeoorzaak mogelijk oplossing | |||||
| ● | ● | ● | ●Onvoldoende trek | Een koude schoorsteen creëert vaak onvoldoende trek. Volg de instructies voor het aanmaken in het hoofdstuk "Gebruik"; open een raam. | |
| ● | ● | ● | ●Hout te vochtig Gebruik hout met maximaal 20% vocht. | ||
| ● | ● | ● | ●Afmetingen hout te groot | Gebruik keine stukjes aanmaakhout. Gebruik gekloven houtblokken met een omtrek van maximaal 30 cm. | |
| ● | ● | ● | ● | ●Stapelhout Niet correct | Stapel het hout zadanig dat er voldoende lucht tussen de hout-blokken kan stromen (losse stapeling, zich "Stoken met hout"). |
| ● | ● | ● | ●Werking van de schoorsteen onvol-doende | Controler of de schoorsteen aan de voorwaarden voldoet: mini-maal 4 meter hoop, juiste diameter, goed geisoleerd, gladde bin-nenzijde, Niet te veel bochten, geen obstructiesin de schoorsteen (vogelnest, te veel roetafsetting), hermetisch dicht (geen kieren). | |
| ● | ● | ● | ●Uitmonding van de schoorsteen Niet correct | Voldoende hoog boven het dakvlak, geen obstructies in de nabij-heid. | |
| ● | ● | ● | ● | Instelling van de luchtinlaten Niet correct | Open de luchtinlaten volledig. |
| ● | ● | ● | ●Aansluiting van het toestel met de schroom Niet correct | hoort-Aansluiting moet hermetisch dichtijken. | |
| ● | ● | ● | ●Onderdruk in de ruimte waar het toestel is geplaatst | Zet afzuigsystemen uit. | |
| ● | ● | ● | ●Onvoldoende toevoer van verse lucht | Zorg voor voldoende luchttoevoer, kaak desnoods gebruik van de buitenluchttaansluiting. | |
| ● | ● | ● | ●Ongunstige weersomstandig-heden? Inversie (omgeekerde lucht-stroom in de schoorsteen door hove tentemporatuur), extreme windsnelheden | Bijin inversie is gebruik van het toestel af te raden. Plaats desnoods血液循环 van een deur of verwarmingsluchtkanalen. | |
| ● | Tocht in de woonkamer | Voorkom/tocht in de woonkamer; plaats het toestel niets in de nabij-heid van een deur of verwarmingsluchtkanalen. | |||
| Vlammen raken het glas | Zorg dat het hout Niet te richt gegen het glas ligt. Schuif de primaire luchtinlaat verder dicht. | ||||
| Toestel lekt lucht Controller de africhting | Toestel lekt lucht Controller de africhting | ||||
Index
A
Aanmaakvuur 19
Aansluiten afmetingen 31
Aansteken 19
Afsluitplaat convectieruimte 16
Aftappen convectiewarmte .12..16.
Afwerking sierkader.17
Afwerklaag, onderhoud 24
Antracietkolen .19.
As verwijderen 22. bruinkool 21
Aslade openen 22
B
Beluchting van het vuur. 22
Bijvullen
antracietkolen 22
bruinkoolbriketten 22
Bijvullen van brandstof 22
Binnenplaten gietijzeren 13
Brandbaar materialiaafstand tot. 40
Brandstof
antracietkolen 18-19
benodigde hoeveelheid 23
bijvullen 20, 22
bruinkool 18
bruinkoolbriketten 19
geschichte 18
hout 18
ongeschikte .18
Brandveiligheid afstand tot brandbaar materiaal. 40
meubels 11
vloer 11
wanden 11
Bruinkool as 21
stoken 21
Bruinkoolbriketten 19
Buitenluchtaanvoer
aansluiting op 15
C
Continu gebruik 12
Convectie aftappen 12, 16
Convectieruimte aufsluitplaat 16
Covectie
externeruimtes 12,16
Creosoot 22
D
bijstellen 25
draairichting wizigen 12
sluiting 25
Draagvermogen van vloer 11
Draairichting wijzigen 12
Drogen van hout. 18
G
Geschikte brandstof. 18
Gewicht 26-27
Gietijzer binnenplaten 13
vuurvast .13
Glas
schoonmaken 24
H
Hout 18
bewaren .18
drogen 18
geschichte soort.18
nat 18
Houtblokken stapelen.20
K
Kachelrutenreiniger.24.
Kader monteren.17
Kap op de schoorsteen 10
Kieren in toestel.24
Klep monteren.24
Kolen asgehalte 19
L
Lak 18
Luchtinlaten 19
Luchtlek 24
Luchtregeling 22
Luchttoevoer regelen 22
M
Onderhoud afdichting 24
glas schoonmaken 24
schoorsteen 23
smeren 24
toestel schoonmaken 23
vuurvaste binnenplaten 23
Ongeschikte brandstof 18
Ontassen 22
Opensn aslade 22
Opslag van hout 18
P
Plaatsen afmetingen 31
Primaire luchtinlaat 19
Problemen oplossen 23
R
Rendement 5,7,26-27
Rook bijeerste gebruik 18
Rookgas massedebiet 26-27 temperatuur 5,7
Rookterugslag 10
Ruiten schoonmaken 24
s
Schanier
stellen 25
Schoonmaken glas 24 toestel 23
Schoorsteen
aansluitdiameter 26-27
aansluiting op. 15
hoogte .10

onderhoud.23
voorwaarden 10
Schoorsteenbrand voorkomen.22
Schoorsteenkap 10
Secundaire luchtinlaat.19
Sierrand monteren .17
Smeren.24
Stof-emissie 26-27.
Stoken 20
antracietkolen .21
brandstof bijvullen .20-22
bruinkoolbriketten .21
onvoldoende warmte
T
Teer 22
Temperatuur.26:27
Temperatuurstijging meetsectie 26-27
Trek 26-27
U
Uitgaan van vuur 22
V
Vegen van schoorsteen 23
Ventilatie 10
vuistregel 10
Ventilatierooster .10
Ventilator elektrisch 12
thermostatisch 12
Verbrandingsluchtregeling 22
Verwijderen as 22
Vet voor smering 24
Vlamplaat monteren 24
Vloeren brandveiligigkeit 11 draagvemogen 11
Vloerkleed 11
Vulhoogte van toestel 20
Vuur aanmaken .19. doven 22
Vuurvaste binnenplaten
onderhoud 23
waarschuwing 18
W
Waarschuwing brandbare materialen 9
glas gebroken of gebarsten 9,24
heet oppervlak 9
verzekeringsvoorwaarden 9
voerschriften 9
vuurvaste binnenplaten 18
Warmte, onvoldoende 23
Weersomstandigheden, nicht stoken 23
Table of contents
Introduction 3
Dovre N.V. Nijverheidsstraat 18 2381 Weelde Belgium.
Dovre N.V. Nijverheidsstraat 18 2381 Weelde Belgium.
Nijverheidsstraat 18 Tel: +32 (0) 14 65 91 91
B-2381 Weelde Fax: +32 (0) 14 65 90 09
Belgium E-mail:info@dovre.be

Safety
Dovre N.V. Nijverheidsstraat 18 2381 Weelde Belgique.
Dovre N.V. Nijverheidsstraat 18 2381 Weelde Belgique.
Nijverheidsstraat 18 Tél.: +32 (0) 14 65 91 91
2381 Weelde, Belgique Fax: +32 (0) 14 65 90 09
Dovre N.V. Nijverheidsstraat 18 2381 Weelde Belgium.
Dovre N.V. Nijverheidsstraat 18 2381 Weelde Belgium.
Nijverheidsstraat 18
Tel: +32 (0) 14 65 91 91
B-2381 Weelde
Fax: +32 (0)14 65 90 09
Belgien
E-Mail: info@dovre.be

Sicherheit
Dovre N.V. Nijverheidsstraat 18 2381 Weelde Bélgica.
Dovre N.V. Nijverheidsstraat 18 2381 Weelde Bélgica.
Nijverheidsstraat 18 Tel.: +32 (0) 14 65 91 91
B-2381 Weelde Fax: +32 (0) 14 65 90 09
Dovre N.V. Nijverheidsstraat 18 2381 Weelde Belgio.
Dovre N.V. Nijverheidsstraat 18 2381 Weelde Belgio.
Nijverheidsstraat 18 Tel: +32 (0) 14 65 91 91
B-2381 Weelde Fax: +32 (0) 14 65 90 09
Belgio E-mail : info@dovre.be
SimpelGids