2520VG - Tubo de lámpara DOVRE - Manual de uso y guía de instrucciones gratis
Encuentra gratis el manual del aparato 2520VG DOVRE en formato PDF.
Preguntas frecuentes - 2520VG DOVRE
Preguntas de los usuarios sobre 2520VG DOVRE
0 pregunta sobre este aparato. Responde a las que conoces o haz la tuya.
Hacer una nueva pregunta sobre este aparato
Descarga las instrucciones para tu Tubo de lámpara en formato PDF gratis! Encuentra tus instrucciones 2520VG - DOVRE y toma tu dispositivo electrónico nuevamente en la mano. En esta página están publicados todos los documentos necesarios para el uso de su dispositivo. 2520VG de la marca DOVRE.
MANUAL DE USUARIO 2520VG DOVRE
Declaración de prestaciones 4.
Seguridad 9
Condiciones de instalación.9
Condieones generales.9
Chimenea.9.
Ventilación de la estancia.10
Suelo y paredes.11
Descripción del producto.11
Instalacion 12
Preparación 12
Encastrado en una chimenea existente... 14
Empotrar en una nuevo chimenga. 14
Montaje del marco exterior 16
Uso 17
Primer uso. 17
Combustible 18
Encendido 18
Alimentar con leña 19
Alimentar con briquetas de lignito 20
Alimentar con carbón de antracita 20
Regulación del aire de combustión. 21
Extinction del fuego. 22
Eliminar la ceniza 22
Nieblasybrumas. 22
Posibles problemas 22
Mantenimiento 22
Chimenea.22
Limpieza y mantenimiento periodico. 23
Anexo 1: Especificaciones sociales 25
Anexo 2: Diagramas de connexion. 27
Anexo 3: Medidas 30
Anexo 4: Distancia a materiales inflamables 39
Anexo 5: Diagnóstico de problemas... 40
Indice 41
Introduccion
Estimado cliente,
con la compra de este aparato de calefaction DOVRE, ud. ha adquirido un producto de calidad. Este producto forma parte de una nuevo generation de aparatos de calefaction respetuos con el medio ambiente y con un consumo de energia mas eficiente. Estos aparatos hacen un uso optimo tanto del calor por convecacion como del calor por irradiacion
- Su aparato DOVRE ha sido fabricado con los más modernos procesos de fabricación. En caso de avería en su aparato, pueda enviar su reclamación al servicios técnico de DOVRE.
El aparato no pueda modificarse;utilice siempre componentes originales.
El aparato está créé para el uso en viviendas. Debe conectarse deforma hermetica a una chimenea que funciona correctamente.
Le aconsejamos que la instalacion de su aparato la realice un instalador certificado.
DOVRE no se hace responsable de los problemas o danos originados por la instalacion inadeuda de sus productos. - Durante la instalación,onga en cuenta los consejos de seguridad que se describe a continuación.
En este manual podra leer como instalar, utilizar ymantener su aparato de calefaction DOVRE de manera segura. Si desea Obtener mas informacion o datos技术和 adiconiales, o si Tiene problemas con la instalacion,pongase en contacto con su distribuidor.
© 2013 DOVRE NV
Declaración de prestaciones
De conformidad con el reglamento de produits de construccion 305/2011
N.° 102-CPR-2013
- Código de identificacion unico del tipo de producto:
2020S / 2200 / 2210 / 2220
2.Numero de tipo, partida o serie, asi como otro medio de identificacion para el producto de truccion, tal y como se describe en el articulo 11,Apartado 4:
Numero de sérieunalico.
- Usos previstos del producto de construccion, de conformidad con la specifications Tecnica an izada aplicable, tal y como haya determinado el fabricante:
Estufa para combustible fijo sin produccion de agua caliente segun EN 13240.
- Nombre, nombre comercial registrado omarca comercial registrada y direccion de contacto de fabricante, tal y como se describe en el articulo 11, Apartado 5:
- Siempre que sea aplicable, nombre y direccion de contacto del poderhabiente que desempeña tareas indicadas en el articulo 12,Apartado 2:
-
- El sistema o los sistemas para la evaluacion y verificacion de la constancia de las prestacion producto de construccion, mentionadas en el anexo V:
Sistema 3
- En el caso de que la declaración de prestaciones está relacionada con un producto de cor sujejo a una norma armonizada:
El organismo RRF designado, registrar con el número 1625, ha realizado conforme al Sistema 3 un examen de tipo y ha proportionsionado el informe de prueba n.° 2905903.
-
En el caso de que la declaración de prestaciones está relacionada con un producto de cor para el que se ha emitido una evaluación技术水平a europea:
-
Prestación declarada:
| La norma armonizada EN 13240 :20 | 01/A2 :2004/AC :2007 | ||
| Characteristicas esencias | Prestaciones Leña | Prestaciones Lignito | Prestaciones Carbón |
| Seguidad contra incendios | |||
| Resistencia al fuego A1 A1 A1 | |||
| Distancia al material inflamable (distancia minima en mm) | Parte posterior: 100 Lateral: 100 | Parte posterior: 100 Lateral: 100 | Parte posterior: 100 Lateral: 100 |
| Riesgo de caía debras incandescentes | Conforme Conforme | Conforme | |
| Emisión de produits de combustión | CO: 0,10% (13%O2) | CO: 0,06% (13%O2) | CO: 0,04% (13%O2) |
| Temperatura de la superficie Conforme | Conforme Conforme | ||
| Seguidad electrica - | - | ||
| Limpieza sencilla | Conforme Conforme | Conforme | |
| Presión:maxima de funcionaiento | - | - | - |
| Temperatura del gas residual a potencia nal | nomi-295 °C | 289 °C | 272 °C |
| Resistencia mecánica (carga:maxima de la chimenea) | No determinada | No determinada | No determinada |
| Potencia nominal | 7 kW | 7 kW | 8 kW |
| Rendimiento | 78,3 % | 75,4 % | 76,4 % |
- Las prestaciones del producto descririto en los+puntos 1 y 2 son conformes con las prestadas declaradas en el punto 9.
Esta declaración de prestaciones se emite bajo la exclusiva responsabilidad del fabricante mención en el punto 4.
26/08/2013 Weelde

De conformidad con el reglamento de produits de construccion 305/2011
N.° 105-CPR-2013
- Código de identificacion uncommon del tipo de producto:
2500/2510/2520/2620
2.Numero de tipo, partida o serie, asi como otro medio de identificacion para el producto de truccion, tal y como se describe en el articulo 11,Apartado 4:
Numero de série unico.
- Usos previstos del producto de construccion, de conformidad con la asignacion Tecnica an izada aplicable, tal y como haya determinado el fabricante:
Estufa para combustible fijo sin produccion de agua caliente segun EN 13240.
- Nombre, nombre comercial registrado omarca comercial registrada y direccion de contacto de fabricante, tal y como se describe en el articulo 11, Apartado 5:
-
Siempre que sea aplicable, nombre y direccion de contacto del poderhabiente que desempeña tareas indicadas en el articulo 12,Apartado 2:
-
El sistemas o los sistemas para la evaluacion y verificacion de la constancia de las prestacion producto de construccion, mentionadas en el anexo V:
Sistema 3
- En el caso de que la declaración de prestaciones está relacionada con un producto de cor sujejo a una norma armonizada:
El organismo RRF designado, registrar con el número 1625, ha realizado con arreglo al Sistema 3 un examen de tipo y ha proportionsionado el informe de prueba n^ 2905904.
-
En el caso de que la declaración de prestaciones está relacionada con un producto de cor para el que se ha emitido una evaluación技术水平a europea:
-
Prestación declarada:
| La norma armonizada EN 13240 :20 | 01/A2 :2004/AC :2007 | ||
| Characteristicas esencias | Prestaciones Leña | Prestaciones Lignito | Prestaciones Carbón |
| Seguidad contra incendios | |||
| Resistencia al fuego A1 A1 A1 | |||
| Distancia al material inflamable (distancia minima en mm) | Parte posterior: 100 Lateral: 100 | Parte posterior: 100 Lateral: 100 | Parte posterior: 100 Lateral: 100 |
| Riesgo de caía debras incandescentes | Conforme Conforme | Conforme | |
| Emisión de produits de combustión | CO: 0,10% (13%O2) | CO: 0,09% (13%O2) | CO: 0,05% (13%O2) |
| Temperatura de la superficie Conforme | Conforme Conforme | ||
| Seguidad electrica - | - | ||
| Limpieza sencilla | Conforme Conforme | Conforme | |
| Presión:maxima de funcionaiento | - | - | - |
| Temperatura del gas residual a potencia nal | nomi-264 °C | 318 °C | 314 °C |
| Resistencia mecánica (carga:maxima de la chimenea) | No determinada | No determinada | No determinada |
| Potencia nominal | 10 kW | 10 kW | 10 kW |
| Rendimiento | 80,0 % | 76,4 % | 79,0 % |
- Las prestaciones del producto descririto en los+puntos 1 y 2 son conformes con las prestadas declaradas en el punto 9.
Esta declaración de prestaciones se emite bajo la exclusiva responsabilidad del fabricante mención en el punto 4.
26/08/2013 Weelde

En el marco de la mejor continua de nuestros productos, las specifications del aparato suministrado peuvent variar de aquellas descritas en este manual, sin necessities de previo aviso.
DOVRE N.V.
Bélgica Correto electrónico : info@dovre.be
Seguidad
Atencion! Siga las instrucciones de segurad del fabricante al pie de la letra.
Lea atentamente las instrucciones para la instalacion, uso y mantenimiento del aparato antes de ponerlo en funcionaiento.
La instalacion del aparato debe cumplir con todas las normativas y regulaciones vigentes en su País de residencia.
El aparato debe cumplir con todas las dispositions locales y las dispositions que ten gan relacion con normativas nacias o europeas.
Haga instalar preferamente su aparato por un instalador certificado. Este pode informarle de todas las disponeciones y normativas vigil-tes.
Este aparato se ha dibrado para fines de ca fación. ;Todas las superficies del mesmo, incluyendo el cristal y el tubo de conexión, puden alcanzar temperatas muy elevadas (má de 100^ )! Para Manipular el aparato cuando esté en funciona, utilise una "mano fria" o guantes protectores contra el calor.
Asegürese de que existe suficiente protecciono.
cuando haya niños, minusvalidos y ancianos
cerca del aparato.
Se deben Respectar estRICTamente las distancias de seguridad hasta el material inflamable.
Evite colocar cortinas, prendas, ropa lavada uculos materiales inflamables sobre el aparato o en las cercanias delismo.
Cuando el aparato está en funciona, no utilise sustancias inflamables o explosivas cerca del本身就是.
Evite incendios en la chimenea haciendola limreturno de los gases al abrir la puerta del aparato. Lpiaar periodicamente.No deje la puerta abierta daños producidos por el returno de gases estan exclui.m际as el fuego este encendido dos de la garantía.
En caso de incendidio en la chimenea: ciderre las entradas de aire del aparato y llame a los bomberos.
En caso de que el cristal del aparato se haya roto o agrietado, deben reemplazar el cristal antes de volver a utiliser el aparato.
Mantenga la habitacion donde secoloque el aparato bien ventilada. Una ventilacion insufciente de la habitacion可以使 producir una combustion insufciente y la liberacion de gases toxicos.Consulte la section "Condiones de instalacion" para saber mas sobre la necessities de ventilacion.
Condieones de instalacion
Condiciones generales
El aparato debe connectarse a una chimenea en\ buen estado
Para saber más sobre los tamanos de las conexiones: consulte el anexo "Especuciones sociales".
Informaté en su département local de bomberos y / o en su compañero aseguradora sobre posibles requisitos y normativas.
Chimenea
La chimenea es necessities para:
La evacuación de los gases inflamables, mediante el tiro natural.
El aire caliente que se encuesta en el interior de la chimenea es más ligero que el aire exterior. Esto provoca que el aire se eleve.
La succion del aire, necessitiesa para la combustion del combustible bajo del aparato.
Unachimenea en mal estado puede occasionar el returno de los gases al abrir la puerta del aparato. Los daños producidos por el returno de gases están excluidos de la garantía.
No connecte various aparatos a la mesma chimenea (por exemple, conectar además del aparato, una caldera de calefacción central), a menos que las normativas locales o

naciones asi lo permitted. En el caso de dos La chimenea debe desembocar en una zona del
conexiones, asegurese de que la diferencia de tejado que no este obstaculizada por edificios adyaaltura entre las conexiones es de al menos 200centes, arboles cercanos u otheros obstaculos.
mm.
Su instalador podra asesorarle sobre las normativas de seguidad de la chimenea.Consulte la Normativa Europea EN13384 para hacer un calculo adecuado o la calidad de su chimenea.
La chimeneaDebe Cumplir las seguides condidiones:
La chimenea debe estar fabricada con materiales ignificulos, preferentamente materiales ceramicos o acero inoxidable.
La chimenea debe estar herméticamente cerrada bien limpia, y deben asegurar un tiro sufiente.
Lo ideal es encontrar un tiro/presión de 15 - 20 PA durante una energia normal.
La chimenea debe ser lo mas vertical posible - desde el punto de calidad del aparato-.Las desviaciones y / o posibles tramos horizontales dificultan la evacuation de los gases inflamables, pudiendo originar acumulaciones de hollin.
El interior del tubo no debe ser demasiado grande, para evaporar que los gases inflamables se enfiien demasiado rápido y se reduzca la capacité de tiro.
Es aconsejable que la chimeneaonga el mismodiametro que el cuello de conexion del aparato.
Para el diametro nominal: consulte el anexo "Especillasiones Tecnicas". Cuando el conductor de humos está bien aislado, el diametro pueda ser algo mas grande (como Tmaximo el doble de la seccion del cuello de conexion).
La sección (superficie) del conducto de humos de ser constante en toda su longitud. Los ensanchamientos y (muy especialmente) los estrechamientos peuvent obstaculzar la evacuation de los gases inflamables.
Al aplicar la caperuza o sombrerete sobre la chimenea; evite que la caperuza estreche la calidad la chimenea o que obstaculice la liberacion de gases de combustion.

Ventilación de la estancia
Para que la combustión sea adecuada, el aparato necessities aire (oxigeno) Este aireenta por las tomas de aire regulables y procebe del espacio en el que está situado el aparato.
1 Una ventilación insufíente occasiona una combustión incomplete y la consiguiente liberación de gases tóxicos.
Una regla sencilla es que la entrada de aire debe ser de 5,5cm^2 /kW .Se necesita ventilacion adiconal en los siguientes casos:
- Cuando el aparato está en un espacio bien aislado.
Cuando existe ventilacion mecancia en el espacio, p.ej., un systema de extracion de aire central o una campana extractor en una casa abierta. de
Puede create una ventilación adicional poniendo una rejilla de ventilación en algo. nuo de los muros exteriores de la habitación.
Procure queothersaparatosdeairecaliente(como secadores,aparatosdecalefacionocalefactoresde bano)tengan su propio accesodeaireexterior,ouque estén apagadosmiantraselaparatoestafuncionando.
Suelo y paredes
El suejo sobre el cui se coloca el aparato debe tener una calidad dearga suficiente.El peso del aparato se enquiryra en el anexo "Especillasiones tecnicas"

En la base, bajo del aparato y en las para alrededor del aparato, no deben existir conductos electricos.

Los materiales inflamables situados bajo el aparato deben retirarse o protegerse con una placac de cemento de al menos 6 cm de gro

Las paredes inflamables cercanas al aparato deben ser protegidas con una pared de piedra de 10 cm como微量元素 y 5 cm de aislamento

Proteja las paredes no inflamables cercanas a aparato con 2,5 cm de aislamento, como minimo, para evaporar la creacion de fisuras.

Proteja los suelos inflamables instalando una placà ignífuga que los aísole de la radiación termaica y de cenizas que pueda caer. Consulte el anexo "Distancia a materiales inflamables".

Mantenga siempre una distancia de seguridad entre el aparato y materiales inflamables tales como muebles.

Asegure suficiente ventilacion alrededor de materiales inflamables, como una viga decorativa. Vexe el anexo "Distancia a materiales inflamables".

Las alfombras deben colocarse a una distanci. Moldura decorativa exteriora minima de 80 cm del fuego.

No ponga materiales inflamables a menos de 50 cm de las eventuales aberturas de salute conveccion.


- Regulador de tiro secundario
-
Puerta
-
Tirador
-
de Regulador de tiro principal 6. Bloqueo
- Rejilla para el carbón
- Placas refractarias interiores
Characteristicadelaparato
El aparatoiene provisto de una empunadura suelta que se utilizes para abrir la puerta, también mada "mano fria".
El aparatoiene provisto de una seguda empuñadura suelta que se utilizes para retirar el cajón ceniza, la denominada "mano fria"; vea la siguien imagen.

El aparato está provisto de dos conexiones adiconciones para la conducir el calor de convec tion aothers espacios.
en Ila- El aparato está provisto de dos ventiladores integrados que impulsan la convec tion. La velocidad de giro de los ventiladores pueda regulararse en de mediatede un regulator de velocidad. Este regulator de velocidadiene suministrado con el aparato. Tanto el ventilador como el regulator se conectan a la red electrica; consulte el apartado "Conectar el ventilador a la red electrica".
El ventilador funciona con energia termostática, lo que significa que solo entra en funciona cuando la chimenea haya alcancazo cierta temperatura, y que se apagará una vez que la chimenea se haya enfriado lo sufiente.
El aparato pueda suministrarse con un marco exterior en elrialcouldemontaruna moldura decorativa.Esta molduracouldadequirirse de maneraoptional.
Si lo desea, puedaCambiar la direccion de aperto de la puerta. El aparatoiene con la puerta montada a la derecha. Para montar la puerta a la izquierda, necessities un pestillo disponible opcialmente. Las instrucciones para Cambiar la direccion de rotacion vienen suministradas con este pestillo.
El aparato es suministrado con un juego de conexión para la entrada de aire exterior.
El aparato no es apto para su uso continuado.
El insert dispone de un sistema de convecction integrado. Por estareason,para el montaje del aparato no sera necessario construir un espacio de convec tion independiente ni instalar rejillas de ventilacion para la convec tion.
El espacio situado entre el insert de hierro fundido y la camara de convecction hace la function de espacio de convecion. El aire del ambiente se succiona en la parte inferior del aparato. Este aire se conduce bajo del insert,onde se calienta.A continuacion,el aire caliente situado en la parte frontal sale del espacio de convec tion por el orificio situado en la parte superior del insert. 1.
Instalación
Preparación
Nada mas recibir el aparato, compruebe que no tenga daños (por ejemplo, de transporte) y que no tenga defectos.
Si detecta daños o defectos en el aparato, no encienda el aparato todas ypongase en contacto con su distribuidor.
Retire los componentes desmontables (placas refractarias interiores, base de fuego, salva-leña, tapa de la base de fuego y cajón cenicero) del aparato antes de instalarlo.
10 Quitando这些东西 componentes desmontables, le sera mas fácil Manipular y mover el aparato sin danarlo.
Fijese en la posicón original de这些东西 elementos antes de retiringlos, para que recuerde su posicón afterwards de la instalación.
- Abra la puerta del aparato.
- Retire primo las placas refractarias.
i
Las placas interiores de hierro protegen la camara de combustion y transmiten el calor exterior.
Montar el asa
El aparato está provisto de una empufiadura suelta, también llama "mano fria".
La forma de la mano fria depende del Modelo del aparato. 4.R
- Desatornille el pestillo de la puerta.
a2. Desatornille el pasador de cierre de la jamba de la puerta. - Extraiga los pasadores de las bisagras.
Tenga cuidado de sujar la puerta; al retiring los pasadores es possible que esta se desprenda de manière inesperada.
- Retire la puerta del aparato.
Fije el asa de madera al reductor mediente el tornillo M8x50 suministrado con el aparato; vase lasuma imagen.
Extraiga los anillos de la hora de la bisagra y colóquelos en el lateral opuesto del aparato.

- Posicione la puerta sobre las bisagras y colque los pasadores en las bisagras.
- Atornille el pestillo en el extremo opuesto de la puerta.
- Atornille el pasador en el extremo opuesto de la puerta.
Para abrir la puerta vea lasuma imagen.

Atencion: Para ajustar el cierre de la puerta, consulte el capitulo "Mantenimiento".
Conectar el ventilador a la red electrica
El insertiene suministrado con dos ventiladores incorpuestos y un regulator de velocidad suelto. Además, el aparato posee un interruptor tírmico que enciende y apaga el ventilador cuando se alcanza una temperatura previamente determinada.
Es preciso conectar这些东西 a la red electrica suguiendo uno de los diagramas que se indicate a continuacion.

El diagrama de connexion varía según el Modelo.

Haga realizar estas conexiones por un instalador profesional.
Cambiar la direccion de aperture de la puerta
insert está provisto de un cable trifásico.
Si lo desea, pueda携带 la direccion de aperture de la puerta. El aparatoiene con la puerta montada a la derecha. Siga las instrucciones que se indicate a continuacion.

El insert debe separarse de la red electrica mediente un interruptor omnipolar.

Asegürese de create una buena conexión a tierra.
Consulte el anexo 2 para ver diagramas ampliados.
Encastrado en una chimenea existente.
conexión en el cielo de conexión y fije la pieza de conexión levantando las dos pestañas situadas en laquia.
Para el encastrado del insert en una chimenea existLa?sigaque figura ofrece un ejempo de la colocacion tente, sigas las seguides instrucciones: de un insert en una chimenea construida segun las instrucciones anteriores.
- Coloque el aparato a la alta adecuada, sobre una superficie lisa y nivelada.
Mantenga libre el cable del aparato. - Si va a instalar un marco externo al aparato, instale las placas de fijacion suministradas con el aparato a los laterales del本身就是, pero sin atornillar Completely los tornillos; vea lasuma imagen. El marco exterior queda fjado entre el aparato y las placas de fjacion; vea lasuma imagen.

- Cierre la base de la chimenea con un material fugo.
- Realice una abertura de 150~mm de diametro en la base para el conductor de aire. En
- Centre la abertura de la base con el insert mediante el cielo de connexion.
- Coloque el conductor de aire en la entrada. Asegürese de que el tubo pueda girarse hacía abaj para adaptarlo al cuello de conexión. Paraarlo, lice por exemple un tubo de longitud regulable.

A Chimenea existente
B Espacio de ventilacion (min. 15 mm)
C Conducto de humos existente
Material refractario o elemento de fijación
E Abertura paraatarclcreacionde presion
Empotrar en una nuevo chimenea
La instalación del insert incluye dos elementos:
La colocacion y connexion del insert uti
Construir la chimenea alrededor del insert.

Si utilizes un tubo flexible de acero inoxidable: enrosque el tubo a la pieza de conexión suministrada con el aparato, coloque la pieza de

Colocacion e instalacion del inSExtracion del aire de convec tion
- Coloque el aparato a la alta adecuada, sobre superficie lisa y nivelada.
- Si va a instalar un marco externo al aparato, in tale las placas de fijacion suministradas con el aparato a los laterales delismo, pero sin ator nillar Completely los tornillos; vea la?sigue imagen. El marco exterior queda fjado entre el rato y las placas de fjacion; vea la?sigue in gen.

- Asegürese de que las paredes existentes están provistas del aislamento Neededo (vea el capitulo "Condiciones de la instalacion"), y de que existe una distancia para el espacio de conveccion de al menos 15 mm.
- El insert no debe soportar la albanileria. Si lo desea, pueda utiliser un soporte, como por ejemplo una estuctura. Entre el soporte y el aparato,cede al menos 3 mm de margen.
- Conecte herméticamente el aparato a la chimenea.
- Controle el tiro en la chimenea y el sellado de la connexion en el canal de salute de los gases residuales, haciendo un peuño pero intenso fuego de prueba, de papel de periodico y leña Fiona sec

En caso de albanileria nuevo, espere hasta que esta está seca.
Haaparato está provisto de dos conexiones adi cionales para la conducir el calor de conveccion aculos espacios.En these espacios es precise instalar fejillas de salute del aire. Si desea utiliser esta fun cion, proceda de la suivente manera:
Tei. Retire las dos placas situadas sobre la camera de
a apaeconveccion golpeandolas ligeramente con un mar-
ma-tillo.
- Monte los dos cuellos de conexión suministrados con su aparato con un diametro de 125 mm en las aberturas existentes utilizing los tornillos M8x16 y las tuercas M8.
- Enrosque el tubo flexible de 125 mm de diametro a la abertura y llvelo hasta los lugares deseados.
- Conecte la manguera flexible a las rejillas de salute de aire de los espacios.
Construccion de una chimenea baja
En la chimenea disponga el espacio de conveccion. En este espacio, el aire debe poder moverse libremente. Debe poder succionarse aire para la combustion, y el aire calentado por el hogar (el aire de conveccion) debe circular libremente en el espacio a calendar; vea la?sigue imagen.
Durante la construcción de la chimenea, siga las normas de seguridad que se indicate a continuación:
La parte superior de la chimeneaDebe estar herméticamente cerrada por medio de una placar de cierre ignifuga y de material refractario.
La plac de cierre debe estar nivelada y estar colocada, como minimo, 30 cm bajo de la abertura de gas residual en el techo.
La Si asi lo deseea, puise instalar una rejilla de calidad si- adicional en la parte superior de la chimenea, inme diatamente bajo de la placar cubierta.
No utilise materiales inflamables en el espacio destinado al insert, y evite la creación de puentesétrimicos a consecuencia de lautilización de materiales conductoresétrimicos.


Siga las siguientes instrucciones para la construccion de la chimenea:
- Construya el pie de la chimenea.
Asegürese de que la puerta de la chimenea pueda girar libremente sobre el Plato de laquia.
- Siga construyendo la chimenea hasta la campana
Asegúrese de que queden siempreunos 2mm de margen entre el insert y la albañilería, para compensar la dilatabaciónTERMICA del insert.
- Si asi lo desea, pueda revestir el interior de la menea con un aislante reflectante.
El revestimiento del interior del espacio destinado al insert previene la irradiación innecesaria de calor en muros externos y / o estancias contigumas. Internacional evita daños del aislamento tírmico de doble pared.

- Siga construyendo la chimenea hasta la abertura A Chimenea
de gas residual en el techo.
B Material refractario o un elemento de fijación
El insert no debe soportar la albañilería. Use de cubierta soporte un hierro, por ejempo. Entre el soporte Materialaislante (min.5cm) y el aparato,deje al menos 3 mm de marger Muro ignifugo
Cubierta
- Cierre el espacio destinado al insert con la plac de cubierta.
Materialaislante (min.5cm) Muroignifugo
- Instale una rejilla de ventilacion bajo la placacubierta para poder la ventilacion del aparato.
F Muro inflatable
- Haga una abertura sobre la plaza de cierre para reviastante (optional)
tar una eventual creación de presión. L Suelo ignifugo
^4G Espacio de ventilación (min. 15 mm)
H Techo ignifugo
La?siguiente figura ofrece un ejemplo de la colocacion Suelo inflamable de un insert en una chimenea construida segun las NsOrificio para vegetar el aumento de presion
I Techo inflatable
J Salida para el aire de convec tion
trucciones anteriores.
O Tubo de connexion
P Aire de convec tion para other estancia
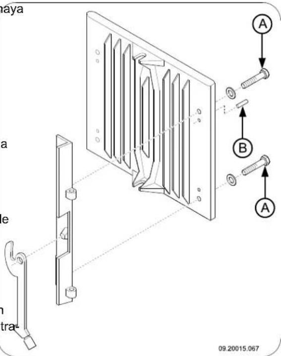
Montaje del marco exterior
El aparato pueda suministrarse con un marco exterior incluido de tres o quatre carras. De manière optional, también le suministramos un borde decorativo que se fija al marco exterior.
- Monte el marco exterior uniendo los lados mediate dos tornillos; vea lasuma imagen.

- Monte la montura uniendo los lados conridgelemento de connexion, y fijelos atornillando los dos tornillos (A) al elemento de connexion; veasiguienteImagen.

- Fije el marco (ya montado) sobre el aparato des- lizando las muescas de las piezas verticales entre el aparato y las placas de fijacion; vea la siguientes imagen.

- Centre la montura en el marco exterior; vea la.),
siguienteImagen.


Acabado
- Vuelva a colocar los elementos desmontados en el aparato.
- Asegürese que la nuevo chimenea está suficensamente seca, antes de encenderla.
No encienda nunca el aparato sin las placas refractarias.
El aparato ya está lista para su uso.
Uso
- Coloque tres pletinas de soporte en cada uno de los lados del marco, entre la moldura y el marco exterior; vea lasuma imagen. C
Primer uso
Cuando utilise el aparato por primera vez, déjelo encendido a fuego lento durante的一些as horas. De este modo la pintura anticalorica se endurecerá. Esto
podía producir algo de humano y olores desagradable. Ventile la habitación abriendo puertas y ventanas.
Briquetas de lignito
Las briquetas de lignito tienen más o menos las mismas propiedades calóricas que la leña.
Combustible
El aparato está indicado para encenderse con materia natural (serrada, cortada y suficientemente seca), briquetas de lignito y carbon de antracita.
No utilise autres combustibles, ya que ellos podriand darñar seriamente el aparato.
Los siguientes combustibles no deben utilizar para contaminar el medio ambiente y además por ensuciar considerablemente la chimenea, pudiendoURTAR a su sionar un incendio en la chimenea:
Maderas tratadas como maderas de desecho, maderas pintadas, maderas impregnadas, maderas preservadas, multiplex y agglomerado.
Plástico, papel usado y residuos domesticos.
Madera
Utilice preferentemente maderas duras como roble, haya, abedul y madera de árboles frutes.Esta madera quema más lentamente y con menos llama. Las maderas de coníferas contienen más resina, queman más rápido y producen más chispas.
- Utilice maderas secas con un percentaje maximal de humedad del 20% . Para ello, las maderas debe dejearse secar al menos 2 años.
Tale y corte las maderas cuando todas estaan ver. des. La madera verde se corta mas fácilmente, ),,, , , , , , , , , , , , , , , , , , , , , , , , , , , , , , , , , , , , , , , , , , , , , , .
mientos que la madera cortada seca mejor y mas Colque dos lenos de tamanio medio-grande cru-rápido. Almacene la madera bajo techo, en un lugarzados entre si.
donte circule libremente el viento.
No utilise maderas humedes. Las maderas humedes no producen calor debido a que la energia pierde al evaporarse la humedad. Esto produce amulaciones de hollin en la puerta del aparato y la chimenea. El vapor de agua se condensa en aparato y se filtra al exterior a trovés de las junpudiendo occasionar manchas negras en el sueño. Además, el vapor de agua podra condensarse en la chimenea, formando creosota. La creosota es una sustancia muy inflamable y puede originar incendios en la chimenea.
Para encender la chimenea, siga las instrucciones. S.: indicadas en el párrafo "Encendido".
Compruebe que la chimenea tiene tiro suficiente
I encendiando una bola de papel de periodico sobre el dedefector de humos. Una chimenea fria技术支持 un tiro in insufficiente, lo que occasiona la entrada de humano en la habitacion. Encendiendo el aparato del modo que le averidoamos a continuacion, evitarre este problema.
2. Coloque sobre los lenos dos capas de leña más fina de forma encrecruzada.
Se 3 Colque una pastilla de encendido bajo la capa acu inferior de leña y enciéndala siguiendo las instrucciones que vienen en el paquete de la misma.
Para encender la chimenea, siga las instrucciones indicadas en el párrafo "Encendido".
Carbón de antracita
El carbón de antracita se divide en categorías según sus caracteristicas,algunas establecidas legalmente, tales como el percentaje de substancias volátes. El contentido de ceniza del carbón de antracita fluctúa entre el 3 % y el 13 % .Cuanto menor sea el contentido de ceniza, mayor sera el valor calórico y menor la Frequencia con la queonga que retiring la ceniza.
Use, preferentially, el carbón de antracita de la CATEGORY A, con un contenido bajo de ceniza.
Utilice el formatting recomendado de 12/22 o 20/30.
Encendido


- Cierre la puerta del aparato y abra la entrada de aire principal y la entrada de aire secundaria del aparato; vexe lasuma imagen.
- Deje que el fuego arda intensamente hasta que quede una capa debrasas vivas. Introduzca la.), Csguiente carga de lena en el aparato; consulte apartado "Alimentar con lena".
Regulación de las��omas de ai
El aparato tiene dos tomas de aire. La toma de aire principal se incluye bajo de la puerta y regula el aire bajo la parrilla. Encima de la puerta se incluye la toma de aire secundario, que regula el aire delante del cristal (sistema air-wash).

$$ \bullet = \text {C e r r a d a} \quad \circ = \text {A b i e t a} $$
La toma de aire se pueda regular con la mano fria. La
forma de la mano fria depende del modelo del aparti
Alimentar con lena
Para poder la posicjion abierta y cerrada de la to de aire,vease la seguiente imagen.
Unavz queHayaencendidoel fuego tal y como se especifica en las instrucciones:
- Abra despacio la puerta del aparato.
- Reparta lasbrasas por la base de fuego de manera homogenea.
- Colque varios lenos sobre lasbrasas.

Apilado de madera suelta

Llene el aparato hasta un máximo de un tercio de su capacité.
Alimentar con briquetas de lignito
Las briquetas de lignito arden de manière similar a la madera. Asegúrese de que circula suficiente aire bajo el fuego Manipulando la entrada de aire principal. Para más información, consulte elApartado "Alimentar con leña".
Quemar briquetas de lignito produce una gran canti-dad de cenizas. Elimine el excesso regularmente. Consulte el apartado "Eliminacion de cenizas" para ver las instrucciones.
Apilando los lenos de眼看u, la lena se que mucho mas rapiido, ya que el oxigeno suelelegar a todas las partes de la madera. Utilice un apilamento suelo si quiere que el fuego prenda rapidamente.

Apilamento compacto
Para Obtener informacion relativa a las propieadas y al uso de briquetas de lignito: consulte con su proveedor de briquetas de lignito ovease el embalaje de las briquetas de lignito.
Una vez que haya seguido las instrucciones para el encendido:
- Abra despacio la puerta del aparato.
- Reparta lasbrasas por la base de fuego de manera homogenea.
- Coloque las briquetas de lignito sobre lasbras vivas.
- Cierre la puerta.
Alimentar con carbón de antracita
Utilice un recipiente para almacenar el carbón de antracita; vea lasuma imagen. Este recipiente pueda adquirirse de manera optional.
Apilando los lenos de manière compacta, la leña se quema más lentamente, ya que el oxígeno no puedaninger a todas las areas de la madera. Utilice un api-lamento compacto si眼看ermantener el fuego encendido durante是多么 tiempo.
4. Cierre la puerta del aparato.
5. Cierre la entrada de aire principal y doit abierra la entrada secundaria.


Cuando alimente con carbón de antracita, cierra siempre el regulator de tiro secundario.
Abra la parrilla tirando hacía del tirador.
Regulación del aire de combustión
El aparato dispone de variedes elementos para la regu
Una vez que haya seguido las instruciones para elacion del aire. encendido:
- Abra Completely el regulador de tiro principal!a rejilla.
- Abra despacio la puerta del aparato.
- Reparta lasbrasas por la base de fuego de manera homogenea.
- Distribuya una pala de carbón sobre lasbrasvas y espere a que los carbones ardan, antesponer la",[para].
- Agregue ahora más carbón.
La torna de aire principal regula la entiada del aire bajo la milla.
La toma de aire secundario regula la entrada del aire a工程技术 del cristal (air-wash).
Consejos
No deje la puerta abierta@m间隙s el fuego este encendido
Encienda un fuego vivo de vez en cuando.
Asegürese de que el fuego no se apague porponer de una vez demasiado carbón.
Ha rellenado al máximo cuando la brasa del rellenado anterior aun está un poco visible.
- Cierre la puerta.
- Deje arder los carbones durante 20 a 30 horas y regule la entrada de aire utilizing la entrada de aire principal.
- Sacuda la parrilla realizando el tirador hasta que los carbones incandescentes caigan al cajón cenicero.
- Abra Completely la entrada de aire principal.
- Vuelva a introducir carbón hasta alcanczar la energia maxima del aparato.
Asegürese de que la parrilla está abiertatirando del tirador.
- Transcurridos algunos Minutes, vuelva a colocar la entrada de aire en la posicion deseada.
Si la rejilla para el carbón o la parrilla se vuel-ven incandescentes,esto indica que el fuego es demasiado intenso.En consecuencia,la parrilla y/o la rejilla para el carbón podrfan defo marse.
Si tiene el aparato calentando a fuego lenghto durante mucho tiempo, podrjan formarse depósitos de alquitrán y creosota bajo de la chimenea. La carbonilla y la creosota son materiales muy inflamables. Si se producen demasiados sedimentos de这些东西, poderin inflamarse si se alcancan repen-tinamente altas temperatas. Encendiendo de vez en cuando fuegos intensos, se eliminan los posibles restos de carbonilla y creosota. Además si el fuego es demasiado débil pueda acumularse alquitrán en el vidrio y en la puerta del aparato. Por consiguiente, en caso de una temperatura exterior suave es preferibleJKLM que el aparato caliente a fuego fuerte duranteunas horas quedeoarlo calentar a fuego lenghto durante mucho tiempo.
Regule la entrada de aire con la entrada de aire secundaria.
i La entrada de aire secundaria airea no solo el fuego, sino el cristal del aparato, evitando asi la acumulacion de sociedad.
Abra la toma de aire principal si la entrada de aire por la secundaria es insuficiente, o si quiere avivar defo el fuego.
Introducir regularamentePICREES cantidades de leña es mayor que agragar muchos bloques al mismo tiempo.
Introducir regularmentePICQUES cANTIDADEs de briquetas de lignito or carbon de antracita es meoro que colocarlas de una vez.
Extinción del fuego
Deje de anadir combustible y que el fuego se vaya apagando por si是我国. No intente sofacar el fuego reduciendo la entrada de aire: podrián liberarse gases tóxicos. Deje que el fuego se consumes por si是我国. Vigile el fuego hasta que este esté bien apagado. Una vez que el fuego se haya extinguido Completely, Podrá cerrar todas las entradas de aire.

- Vuelva a colocar el cajón cenicero en su situ y cierra la puerta del aparato.
Eliminar la ceniza
Cuando se quema leña en el aparato, siempre que da una病毒感染 de cenizas. Este lecho de ceni-zas no solo es un buena aislante para la base de fuego. Las nieblas y las brumas en el exterior peuvent dificel aparato, sino que además favorece la combustión. Así que pueda deportar una capa final de cenizas en el suelo del aparato.
Después de quemar briquetas de lignito y carbon de gato a menos que sea realmente requisite. antracita queda relativamente mucha ceniza. Elimine de forma periodica el excesso de cenizas. Posibles problemas
LaZenizaunca pueed tocar la parte inferior Consulte el anexo "Diagnostico de problemas"para la parrilla.La parrilla se calienta en exceso ycnacionar posibles problemas durante lautilizacion daña. del aparato.
No obstaculice la entrada de aire situada en el suey de la chimenea ni deje que se acumule ceniza en la parte posterior de una plac a interior. Para ello, elimine de forma periodica el excesso de cenizas. Siga las instrucciones de mantenimiento que se describien en esta seccion para teneron su operato en
- Abra la puerta del aparato.
- Utilice el tirador para sacudir el exceso de y hacer que esta caiga al cajon cenicero.
- Retire el cajón cenicero con la mano fria sumi- En muchos páises, la ley obliga a revisar yninger un nistrada y vacie el cajón cenicero; vea las siguiñantenimiento regular de las chimeneas. tes dos imagenes. Al principal de la temporada de calefacción: haga
En manyos paises, la ley obliga a revisar y llvar unienmantimiento regular de las chimeneas.

Mantenimiento
Siga las instrucciones de mantenimiento que se describen en esta sección para mantener su aparato en buen estado.
Chimenea
Al principio de la temporada de calefaction: haga limpiar la chimenea por un deshollinadorrialificado.
Durante la temporada de calefacion y si la chimenea no se ha utilisé durante un长大o periodo de tiempo:hawkagun的技术ico综合素质 compruebe los niveles de hollin.
Al finalizar la temporada de calefacción: bloquee la chimenea con una bola de papel de periodico.

Limpieza y mantenimiento periodico.
#
No limpie el aparato cuando este todas va estmontables. Para desmontar el deflector de llama, primera. mero ha de retiring la valvula y el vastago de la valvula.
Limpie el exterior del aparato con un paño secono suele pelugas.
Al final de la temporada de fríos, limpie muy bien interior del aparato:
- Paraarlo, retire primero las placas refractarias. el capitulo "Instalacion" encontraras instructaciones sobre como extraer y colocar las placas refractarias.
- Alternatively, you can also consider the following two options.
Retire y limpie el deflector de humos de la parte5 superior del aparato.
Comprobar las instalas refractarias
Las instalas refractarias son consumables someday un gran desgaste. Las instalas refractarias de vermiculita son fragiles. Tenga cuidado de no golpear instalas refractarias con los lenos. Revise regularmente las instalas refractarias y sustituyas si fuenecessary.
En el capitulo "Instalacion" encontraras instrucciones sobre como extraer y colocar las前列 refractarias.
i
Las placas refractarias aisantes de vermiculita². Limpie el cristal con un limpiador especial para o chamota pueda estar些as gretas cristales de estufa: sin que thisenga un efecto adverso en su funa. Extienda el limpiador con una esponja de cionamento. cucina, frote la superficie del cristal y déjelo
i
Las placas de hierro interiores durarán mucho b. Retire la suciedad con un paño humedo o parte posterior con regularidad. Si no retira la papel de cocina.
#
acumulación de ceniza de la placá está no 3. Vuelva a limpiar el cristal con su producto limpodrá proyeatar el calor correctamente y pueda piacristales habitual.
Ilegar a deformarse o rajarse. 4 Sec.
3. Vuelva a limpiar el cristal con su producto limde piacristales habitual.
No encienda nunca el aparato sin las placas refractarias.
que 1: Abra la puerta del aparato.
- Para finalizar, gire ligeramente la valvula y deslicela sobre el deflector de llama de modo que ambas se suelten.
Extraiga la valvula y el vástago a trovés de la puerta del aparato. -
Desatornille la lamina de apoyo aflojando la tuerca M8. La lamina de apoyo está situada jusqu'à la placá superior del aparato en su parte central.
-
Levante el deflector de llama situado en la parte delantera, desplácelo hacía afuera y extraiga el deflector del aparato.
Atencion: Siga las instrucciones anteriormente descritas enorden inverso para montar la valvula y el deflector de llama, y antes de proceder al encendido del aparato.
Limpieza del cristal
Si el cristal se limpia correctamente, la suciedad tarda más en acumularse. Proceda de la?sigauneforma:
-
Quite el polvo y la suciedad con un paño seco.
-
Limpie el cristal con un limpiador especial para cristales de estufa:
funa. Extienda el limpiador con una esponja de cucina, frote la superficie del cristal y déjelo actuaranosocos.
b. Retire la sueidad con un paño humedo o papel de cocina.
- Seque el cristal con un paño seco o con papel de cocina.
No utilise produits abrasivos o corrosivos para limpiar el cristal.
Utilice sempre guantes para proteger sus manos.

En caso de que el cristal de su aparato se haya roto o agrietado, deben reemplazar el cristal antes de volver a utiliser el aparato.

No deje restos de limpiador de cristales para estufas entre el cristal y la puerta de hierro.
Engrasado
Aúnque los componentes de hierro ya son de una forma autoengrasantes, deben lubricar las partes moviles con cierta regularidad.
Lubrique las partes moviles (como sistemas de guiado, pasadores de bisagra, pestillos y tomas aire) con grasa especial para chimeneas, que encontrará en establishimientos especializados
Reparar danos en el acabado
Puede repararPEGREs daños en la pintura con un aerosol de pintura anticalorica que podra adquirir a vés su proveedor habitual.

- Abra la puerta del aparato; la bisagra de la jamba queaplenamente accesible.
Comprobación del sellado
- Compruebe que la junta de sellado de la puerta cierra correctamente. Este material se deteriorara con 2el tiempo y ha deambiarse regularmente.
Desenrosque las dos tuercas de fijación de la bisagra de la jamba. Las tuercas de fijación está situadas en el interior de la chimenea.
Compruebe que el aparato no tengafugas de aire. Selle posibles rendijas con masilla para estufas. 3.
- Deslice la bisagra hasta la posicion deseada.

Deje que la masilla se endurezca complemente antes de encender el aparato, si la humedad de la masilla se evaporar y la volvera a abrirse.
- Utilice los tornillos de ajuste para positioning la no bisagra en la anchura del aparato.
vuela a apretar las dos tuercas de fijacion y compruebe que la puerta cierra correctamente.
Ajustar puerta
Compruebe que la puerta cierra correctamente y ajuste la hoja de la bisagra si fuera Neededo; vea la.),!.
Anexo 1: Especillasiones|tecnicas
Modelo 2200 / 2210 / 2220 / 2020
| Modelo 2200 2210 2220 2020 | ||||
| Potencia nominal 8 kW 8 kW 8 kW 7 | kW | |||
| Conexión de la chimenea (diámetro) | 150 mm 150 mm | 150 mm | 150 mm | mm |
| Peso | 140 kg | 175 kg | 150 kg | 130 kg |
| Combustiblerecommended | Leña | Leña | Leña | Leña |
| Caracteristicacombustible,longitudmáx. de la leña | 50 cm | 50 cm | 50 cm | 40 cm |
| Conexión electrica | 230 V,50 Hz,0,5 A | |||
| Combustible | Leña | Briquetas de lignito | Carbón de antra-cita |
| Caudal másico de gases residuales | 7,7 g/s | 8,9 g/s | 7,8 g/s |
| Aumento de la temperatura medido en sección de medicación | Ja 295 K | 289 K | 272 K |
| Temperatura medida en laitters del rato | pa-340 °C | - | - |
| Tiro minimal | 14 Pa | 14 Pa | 14 Pa |
| Emissiones de CO (13%2) | 0,10 % | 0,06 % | 0,04 % |
| Emissiones de NOx (13%2) | 106 mg/Nm3 | - | - |
| Emissiones de CnHm (13%2) | 51 mg/Nm3 | - | - |
| Emisión de partículas | 31 mg/Nm3 | - | - |
| Rendimiento | 78,3 % | 75,4 % | 76,4 % |
Modelo 2500 / 2510 / 2520 / 2620
| Modelo 2500 2510 2520 2620 | ||||
| Potencia nominal 10 kW 10 kW 10 kW 10 kW 10 kW 10 kW 10 kW 10 kW 10 kW 10 kW 10 kW 10 kW 10 kW 10 kW 10 kW 10 kW 10 kW 10 kW 10 kW 10 kW 10 kW 10 kW 10 kW 10 kW 10 kW 10 kW 10 kW 10 kW 10 kW 10 kW 10 kW 10 kW 10 kW 10 kW 10 kW 10 kW 10 kW 10 kW 10 kW 10 kW 10 kW 10 kW 10 kW 10 kW 10 kW 10 kW 10 kW 10 kW 10 kW 10 kW 10 kg 160 kg | 150 mm 150 mm | 150 mm 150 mm | mm | |
| Peso 150 kg 180 kg 160 kg | 160 kg | |||
| Combustible recommendado | Leña | Leña | Leña | Leña |
| Caracteristicas combustible, longitudinal max. de la leña | 50 cm | 50 cm | 50 cm | 50 cm |
| Conexión electrica | 230 V, 50 Hz, 0,5 A | |||
| Combustible | Leña | Briquetas de lignito | Carbón de antra-cita |
| Caudal másico de gases residuales | 9,2 g/s | 9,7 g/s | 8,1 g/s |
| Aumento de la temperatura medido en la sección de medicación | 264 K | 318 K | 314 K |
| Temperatura medida en la salute del apa-rato | 320 °C | - | - |
| Tiro minimo | 14 Pa | 14 Pa | 14 Pa |
| Emissiones de CO (13%O2) | 0,10 % | 0,09 % | 0,05 % |
| Emissiones de NOx (13% O2) | 52 mg/Nm3 | - | - |
| Emissiones de CnHm (13%O2) | 21 mg/Nm3 | - | - |
| Emisión de partículas | 16 mg/Nm3 | - | - |
| Rendimiento | 80,0 % | 76,4 % | 79,0 % |
Anexo 2: Diagramas de conexión
Significado de las indicaciones contentsas en el diagrama:
T1 interruptor terminology
V1 ventilador
V2 ventilador
L1 lampara
R1 resistencia
S1 conmutador de 2 posiciones
Modelo 2020

Modelo 2220,modelo 2520 y modelo 2620

Modelo 2210 y modelo 2510


Los modelos 2200 y 2500 tienen un conmutador de dos posiciones para regular la velocidad, y nen作为一名 de termostato.
Anexo 3: Medidas
2020

2200


2210

2220

2500

2510

2520

2520BS

2620SC

Anexo 4: Distancia a materiales inflamables
Espacio minimo de ventilacion fuera del camino deccion

Medidas placignifuga en centimetros


Medidas mininmasde la placade apoyo ignifuga
$$ \begin{array}{l} V > H + 3 0 > 6 0 \ S > H + 2 0 > 4 0 \ \end{array} $$
Anexo 5: Diagnóstico de problemas
| Problema | |||||
| ● | Leña no termina de arder | ||||
| ● | No da suficiente calor | ||||
| ● | Retorno de humano cuando se agrega combustible | ||||
| ● | El fuego arde demasiado fuerte, no se pueda regular bien. | ||||
| El vidrio se opaca | |||||
| soluciones | |||||
| ● | ● | ● | Tiro insufiente | Unah Chimenea fria produce casi siempre un tiro insufficiente. Siga las instrucciones sobre el encendido en el capitulo "Uso"; abra una ven-tana. | |
| ● | ● | ● | Leña demasiado humeda Utilice suep | re leña con una humedad maxima del 20%. | |
| ● | ● | ● | Leños demasiado grandes | Utilice trozos de leña��acos. Utilice trozos de leña cortados con un contorno máximo de 30 cm. | |
| ● | ● | ● | ● | La leña no está bien apilada | Coloque la leña de talmana que el aire pueda pagar entre los bloques (apilamento abierto, vexe "alimentar con leña"). |
| ● | ● | ● | Funciamente insufficiente de la chi-menea | Asegúrese de que la chimenea cumpla todos los requisitos: 4 metros de alto como minimo, diámetro adecuado, bien aislada, inter-rior liso, sin demasiados recovecios, sin obstrucciones (nidos de pájaro, depósito excessivo de hollín), herméticamente cerrada (sin fisuras). | |
| ● | ● | ● | Laitters de la chimenea no es correa | Laitters de laitters de laitters de laitters de laitters de laitters de laitters de laitters de laitters de laitters de laitters de laitters de laitters de laitters de laitters de laitters de laitters de laitters de laitters de laitters de laitters de laitters de laitters de laitters de laitters de laitters de laitters de laitters de laitters de laitters de laitters de laitters de laitters de laitters de laittera. | |
| ● | ● | ● | ● | Tomas de aire en posición incorrecta | Abra Completely lasentradas de aire. |
| ● | ● | ● | La conditon entre el aparato y la ch-menea no es correcta | La conditon debe estar herméticamente cerrada. | |
| ● | ● | ● | Presión minima en el espacio dondeencuentra el aparato | se Apague los sistemas de extracción de aire | |
| ● | ● | ● | Suministro insufficiente de aire fresco | Cree una corriente de aire fresco, por ejemplo utilizingando una toma de aire exterior. | |
| ● | ● | ● | ∠Condiciones climáticasadversas? Inversión tírmica (cambio dirección en la corriente de aire Dentelde la chimenea debido a las elevadas temperaturetas exteriores), vientos de fuerza extrema | En los casos de inversionión tírmica, desaconsejamos el uso del apa-ralato. Si fuera NEEDario, instale una caperuza en la chimenea. | |
| ● | Corrientes en la habitación | Evite las corrientes de aire en la habitación; no instale el aparato en las cercanías de puertas o de fuentes de aire caliente. | |||
| ● | Las llamas tocan el cristal | Eviteponer losleños demasiado cerca del cristal. Cierre un poco más el acceso de aire principal | |||
| ● | El aparato tiene fugas de aire Comprue la junta de sellado de la puerta y las juntas del aparato. | ||||
Indices
A
Abrir
cajón cencero.22
Acabado
moldura 16...
advertencia
condiciones de seguro.9
Advertencia
limpiador de cristales de estufa.24.
Agregar combustible
returno de homo.40.
Alfombras.11....
Alimentar
briquetas de lignito.20
Almacenaje de madera 18
Alquitrán 21
Apilado de lenos 20
Aumento de la temperatura
sección de medicación 25-26
Aviso
cristal roto o agrietado 9,24
fuego de chimenea. 21
incendido la chimenea 18
incendid en la chimenea 9
materialia 9
normativas 9
placas refractarias 17
superficie caliente. 9
ventilación 9-10
B
Bisagra
ajustar 24
Briquetas de lignita 18
Bruma, no encender. 22
C
Cajón cenicero
abrir 22
Calor, insufficiente. 22, 40
Capacidad de energia. 11
Caperuza 10
Caperuza sobre chimenea 10
Carbón
contenido de ceniza 18
Carbón de antracita 18
Chimenea
altura 10
condiciones 10
conexión a. 15
diámetro de conexión 25-26
mantimiento 22
Colocacion
medidas 30
Combustible
adequado 18
agregar 21
briquetas de lignito 18.
cantidad necessities 22
carbón de antracita 18
lignito 18
Ilenado 20
madera 18
no apto 18
rellenar 22
Combustible adequado 18
Combustibles no aptos. 18
Condiciones climatologicas, no encender 22
Conexiones
medidas 30
Conveccion
espacios externos 12, 15
extracción 12, 15
Creosota 21
Cristal
limpieza 23
opacimiento 40
D
Deflector de llama
montar 23
Dirección de aperture
cambiary 12
E
Eliminado de cenizas 22
Eliminar
cenizas 22
Eliminar cenizas. 22
lignito 20
Emission de partículas 25-26
Encendido 18-19
agregar combustible.20
briquetas de lignito 20
calor insufficiente.22,40
carbón de antracita 20
el aparato no se pueda regular. bien.40.
el fuego arde demasiado fuerte.40
introducir combustible.19.
introducir el combustible 21
Engrasado .24.
Entrada de aire principal 19
Entrada de aire secundaria..19.
Entradas de aire 19
Espacio de convecction
placa de cierre 15
Extinguir el fuego. 22
Extracción calor de convec tion 12, 15
F
Fuego encendido 18 extinción 22
Fuego de encendido 18
Fuga de aire 24
G
Gas residual temperature 5,7
Gases caudal maso. 25-26
Grasa para engraso 24
H
Hierro
placas interiores 13
refractario 13
Humo en el primer uso 17
I
Introducir el combustible. 21
J
Junta de sellado de puerta 24 L
Laca 17
Leña no termina de arder.40.
Leñahawk 40
Lignito cenizas 20 encendido 20
Limpiador de cristales de estufa 23
Limpieza
aparato 23
cristal .23
Limpieza de la chimenea 22
M
madera 18
Madera
almacenado 18
humeda 18
secar 18
tipos adecuados. 18
Madera de coniferas 18
Maderahumeda 18
Mantenimiento
chimenea 22
engrasado 24
limpieza cristal 23
limpieza del aparato 2
placas refractarias 23
sellado 24
Marco montaje 16
Materials inflamables distancia a 39
Medidas 30
Moldura montaie 16
N
Niebla, no encender. 22
Nivel de llenado maximal del aparato. 20 O
Oxigenacion del fuego 21 P
Paredes seguridad contra incendios 11
Peso 25-26
Placa de cierre
espacido de convecction.15
Placas interiores
hierro .13
Placas refractarias
aviso .17.
mantenimiento 23
Potencia nominal.22, 25-26.
Prevencion fuego de chimenea.21
Puerta
ajustar 24
cambiardirecciondeaperture. 12
cierre 24
junta de sellado 24
R
Regulación aire. 21
Regulación aire de combustión.21
Regular entrada de aire 21
Rejilla de ventilacion 10
Rellenar
briquetas de lignito 22
carbón de antracita 22
Rellenar combustible 22
Rendimiento 5,7,25-26
Reparar danos en el acabado. 24
Returnode gases. 9
Returno de huma.40
s
Secado de la madera 18
Seguridad contra incendios
distancia a materiales inflamables 39
muebles 11
paredes 11
suelo 11
Solucion de problemas 22,40
Suelos
capacidad de energia 11
seguridad contra incendios 11
Suministro de aire exterior. 10
T
Temperatura 25-26
Tiro 25-26
Toma de aire exterior
conexión a. 15
U
Uso continuo. 12
V
Válvula
montar 23
Ventilación 10
regla de tres 10
Ventilador
eléctrico 12
termostatico 12
Vidrio
limpieza 23
Vidrios
opacimiento 40
Contenuo
Introduzione 3
superficie a temperatura elevata. 9
ventilazione 9
ManualFácil