TK 64 SD BI - Kookplaat INDESIT - Gratis gebruiksaanwijzing en handleiding
Vind de handleiding van het apparaat gratis TK 64 SD BI INDESIT in PDF-formaat.
Download de handleiding voor uw Kookplaat in PDF-formaat gratis! Vind uw handleiding TK 64 SD BI - INDESIT en neem uw elektronisch apparaat weer in handen. Op deze pagina staan alle documenten die nodig zijn voor het gebruik van uw apparaat. TK 64 SD BI van het merk INDESIT.
GEBRUIKSAANWIJZING TK 64 SD BI INDESIT
Elektrische aansluiting
Beschrijving van het apparatusat, 60
Bedieningspaneel
Starten en gebruik, 61-63
Inschakelen kookplaat
Inschakelen kookgedeeltes
Inschakelen verlengbare kookgedeeltes
Uitschakelen kookgedeeltes
Blokkering van de bediening
Uitschakelen kookplaat
De verwarmingselementen
Praktische tips voor het gebruik van het apparaat
Veiligheidsmechanismen
Voorzorgsmaatregelen en advies, 64
Algemene veiligkeit
Afvalverwijdering
TK 64 CL
TK 64 S IX
TK 64 S
TK 64 SD IX
TK 64 SD BI
TK 64 SD
TK 63 T
TK 63 T BI
Onderhoud en verzorging, 65
De elektrische stroom afsluiten
Reinigen van het apparatus
De kookplaat verwijderen
Technische beschrijving van de modellen, 66
! Het is belangrijk dit boekje zorgvuldig te bewaren voor eventuele verdere raadpleging.. Wanner u het product weggeeft, verkoopt, of wanner u verhuist, dient u dit boekje bij het apparaat te bewaren zDat alle nodige informatie voorhanden blijft.
! Lees de gebruiksaanwijzingen zorgvuldig door: er staat belangrijke informatatie in over installmentie, gebruik en veiligheid.
Plaatsing
! Het verpakkingsmaterial is nicht bestemd voor kinderen en dient waarom te worden weggegooid volgens de geldende normen (zie Voorzorgsmaatregelen en advies).
! De installmentie要去 worden uitgevoerd door een bevoegde installmenteur en volgens de instructies van de fabrikant. Een verkeerde installmentie kan schade berokkenen aan Personen, dieren of dingen.
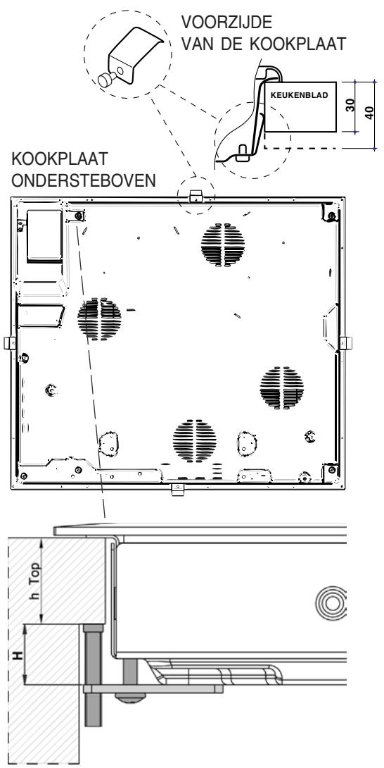
Inbouw
Voor een goede werkig van het apparaat moet het keukenmeubel de juiste kenmerken hebben:
- het keulenblad要去ithittebestendigmaterialzijn vervaardigdeen een temperatuur van circa 100^ kunnenverdragen;
- als de kookplaat boven een oven worden geinstalleerd要去 deze voorzien van een geforceerd geventileerd afkoelingssystem;
- Installeeer de kookplaat Niet boven een vaatwasser; mocht dit darüber onvermijdelijkঃ, breng dan een waterdicht scheidingselement

tussen de twee apparaten aan;
- afhankelijk van de te installereren kookplaat (zie afbeeldingen), moet de ruimte van het meubel de volgende afmetingen hebben:
Boven een leeg meubel of een lade.
Er is een tussenruimte nodig van minstens 40~mm of een opening van 5 mm op de breedte van het meubel.

Een opening van minstens 5 mm op de hele bredte van het vlak.
Ventilatie
Om een juiste ventilatie te verkrijgen en een oververhitting van de oppervlakken rond het apparatus te voorkomen,要去 de kookplaat geinstalleerd worden:
- op een minimum afstand van 40 mm van dechterwand of op 600 mm van elk ander verticaal

oppervlak;
- op zodanige wijze dat er een minimum afstand overblijft van 10 mm:tussen het inbouwmeubel en het onderstaande meubel.
Bevestigen
Het apparaat要去 op een absolut horizontal oppervlak worden geinstalleerd.
Eventuele door onjuiste installmentie veroorzaakte verrormingen kuren de eigenschappen en de prestaties van de kookplaat aantasten.

De lenghte van de regelschroef van de bevestigingshaken moet op basis van de dikte van het keukenblad worden ingesteld voordat de haken worden gemonteerd:
- als de dikte 30~mm is: schroef 17,55 mm;
- als de dikte 40 ~mm is: schroef 7,55 mm.
Voor het bevestigen moet u als volgt te werk gaan:
- Schroef met korte, puntloze schroeven de 4
centreringsklemmen in de openingsen in het midden van
elke zichde van het blad vast; - zet de kookplaat in het midden van de opening van het keukenmeubel door gelijke druk uit te oefenen op de hele omtrek totdat de kookplaat perfect aansluit op het keukenblad.
- voor platen met zichprofielen: nadat u de kookplaat in het keukenmeubel heeft geplaatst moet u de 4 bevestigingshaken (elk met+zijn eigen pen) aan de onderste rand van de kookplaat vastschroeven met gespunte, Lange schroeven, net zolang tot het glas goed aan het blad vastzit.
! De schroeven van de centeringsklemmen要去en te allenlijke bereikbaar blijven.
! Volgens de veiligheidsnormen mag er geen contact meer möglichelijk zijn met de elektrische onderdelen nadat het apparaat is ingebouwd.
!Alle beschemende onderdelen moeten zodanig worden bevestigd dat ze Nieturon worden verwijderdzonder gereedschap te gebruiken.
Elektrische aansluiting
! De elektrische aansluitingen van de kookplaat en van de eventuele inbouwoven要去en apart worden uitgevoerd, zowel om elektrische verilgheidsredenen als om de oven eventeel eenvoudiger te kunnen verwijderen.
Eenfasige aansluiting
De kookplaat is voorzien van een voedingskabel bestemd voor een eenfasige aansluiting. Voer de draadverbinding uit zoals aangegeven in de volgende babel en tekeningen:
| Spanningtype en netfrequentie | Elektrische kabel | Draadverbinding |
| 230V 1+N ~ 50 Hz | N L | ?: geel/groen; N: de 2 blauwe draden samen L: bruin en zwart samen |
Andere soorten aansluitingen
Als het elektrische net overeenkomt met een van de volgende eigenschappen:
Spanningstype en netfrequentie
- 400V - 2+N ~ 50 Hz
- 230V 3 ~ 50 Hz
- 400V - 2+2N ~ 50 Hz
Scheid de kabels en voer de draadverbinding uit zoals aangegeven in de volgende tabel en tekeningen:
| Spanningtype en netfrequentie | Elektrische kabel | Draadverbinding |
| 400V - 2+N ~ 50 Hz | N L1 L2 | ÷: geel/groen; N: de 2 blauwe draden samen L1: zwart L2: bruin |
| 230V 3 ~ 50Hz | ||
| 400V - 2+2N ~ 1 50 Hz | N1 N2 L1 L2 | ÷: geel/groen; N1: blauw N2: blauw L1: zwart L2: bruin |
Als het elektrische net overeenkomt met een van de volgende eigenschappen:
Spanningstype en netfrequentie
- 400V 3 - N ~ 50 Hz
ga dan als volgt te werk:
! De eventuele bijgeleverde kabel is nicht geschikt voor dit type installmentie.
- Gebruik een geschikte voedingskabel, type H05RR-F of met een hogere waarde, met de juiste afmetingen (diameter kabel: 25 mm).
- Licht de lippen aan de zijkant van het deksel van het klemmenbord op met een schroevendraaier en open het. (zie afbeelding Klemmenbord).
- Draai de schroef van de kabelklem en de schroeven van de benodigde klemmetjes los en bevestig de verbindingskabels volgens de aanwijzingen van de volgende babel en afbeeldingen.
- Plaats de draden zoals aangegeven in de volgende afbeeldingen en tabel en stel een verbinding tot stand door alle schroeven van de klemmetjes goed vast te draaien.
| Spanningtype en netfrequentie | Elektrische aansluitingen | Klemmenbord | ||||
| 400V 3-N ~ 1 50 Hz | 1 L1 | 2 L2 | 3 L3 | 4 N | 5 | Driefasen 400 |
- Bevestig de voedingskabel in de speciale kabelklem en sluit het deksel af.

Fase Verbindingskabel Fase Fase Neutraal Aarde
Driefasen 400
Het aansluiten van de voedingskabel aan het elektrische net
Bij een rechtstreekse aansluiting op het net moet u tussen het apparaat en het net eeneerpolige schakelaar aanbrengen met een minimum afstand van 3 mm tussen de contacten.
! De installmenteur is verantwoordelijk voor de correcte elektrische verbinding en het in acht nemen van de geldende verligheidsnormen.
Voor het aansluiten moet u controlleren dat:
- de contactdoos geaard is en voldoet aan de geldende normen;
- het stopcontact in staat is het maximale vermogen van het apparaat te verdragen, zoals aangegeven op het typeplaatje dat zich op het apparaat bevindt;
- de spanning zich befindt:tussen de waarden die staan aangegeven op het typeplaatje;
- de contactdoos en de stekker overeenkomen. Als dat Niet zo is, dient u ofwel de stekker ofwel de contactdoos te verrangen; gebruik geen verlengsnoeren of dubbelstekkers.
! Wanner het apparaat geinstalleerd is, moeten het snoer en het stopcontact makkelijk te bereiken zich.
! De kabel mag nicht worden gebogen of samengedrukt.
! De kabel要去 vanijd tot vrij worden gecontroleer en mag alleen door erkende monteurs worden verrangen.
! De fabrikant kan nicht aansprakelijk worden gesteld wonneer deze normen nicht worden nageleefd.
Bedieningspaneel
Het bedieningspaneel dat hier worden beschreiben en aufgebeeld geldt alleen als voorbeeld: het is möglichk dat het Niet precies overeenkomt met het door u aangeschafte model.

- Toets ON/OFF voor het aan- en uitzetten van het apparaat.
- Toets BLOKKERING VAN DE BEDIENING om ongeoorloofde veranderingen aan de kookplaat teverhinderen (zie Starten en gebruik).
- Controleampje BLOKKERING BEDIENINGSPANIEL geeft de blokkering van de bediening aan (zie Starten en gebruik).
- Controleampje GESELECTEERDE KOOKGEDEELTE geeft aan dat betreffend kookgedeelte geseleerd is en dat u het kurz regelen.
-
Toets SELECTEREN KOOKGEDEELTE voor het kiezen van de gewenste kookzone
-
Indicator VERMOGEN geeft het bereekte warmteniveau aan.
- Toets MEER VERMOGEN voor het inschakelen van de kookplaat en het regelen van het vermogen (zie Starten en gebruik).
- Toets MINDER VERMOGEN voor het regelen van het vermogen en het uitschakelen van de kookplaat (zie Starten en gebruik).
- Toets VERLENGBARE PLAAT* voor het activeren van de uittrekbare plaat (zie Starten en gebruik).
-
Controleampje VERLENGBARE PLAAT AAN*: geeft aan dat de dubbele kookplaat aan is..
-
Alleen bij enkele modellen aanwezig
! De lijm die gebruikt is voor de afdichtingen LAST wat vetvlekjes achechter op het glas. Voordat u het apparaat gebruikt raden wij u aan de vlekken te verwijderen met een speciaal Niet-schurend schoonmaakmiddel. Gedurende de eerste paar uur dat u het apparaat gebruikt kan hetijken dat u een rubbergeur ruikt. Deze zal erchter snel wegtrekken.
! Als de kookplaat elektrisch worden aangesloten hoort u na enkele seconden een kort geluidssignaal afgaan. Alleen dan kurz u de kookplaat aanzetten.
Inschakelen kookplaat
Druk ongeveer 1 seconde lang op de knop ① voor het inschakelen van de kookplaat.
Inschakelen kookgedeeltes
ledere kookgedeelte worden door middel van een stroomsterkteregelaar bediend. Deze regelaar bestaat uit twee toetsen (- en +).
- Druk op de toets om de kookplaat in te schakelen en stel verzolgens het gewenste vermogen in door op de toetsen en te drukken.
- Om de kookplaat direct op het maximale vermogen in te stellen drukt u kort op de toets () .
-
Het is möglich de verwarmingstijd van een kookzone te versnellen door als volgt te werk te gaan:
-
zet de stroomsterkte van de kookzone op maximum (9);
- verwolgens op de toets drukken; op de display van het vermogen verschijnt "A".
- op dit punt stelt u het gewenste vermogen in dat u wilt bereiken voor het koken (b.v.5).. Als deze temperatuur is bereikt worden de functie van het snel verwarmen automatisch onderbroken en gaat het koken normalaal door op sterkte 5.
Inschakelen verlengbare kookgedeeltes*
-
Dubbele kookplaat:
-
Druk op de toets voor het inschakelen van het meest interne kookgedeelte.
-
Druk op de toets voor het in- of uitschakelen van het tweede kookgedeelte.
-
Driedubblele kookplaat:
-
Druk op de knop voor het activeren van de tussenin liggende kookzone.
- Druk 2 keer op de toets om de hele kookzone te activeren.
! Als u wilt terugkeren maar een Kleinere zone drukt u opnieuw op de toets
Uitschakelen kookgedeeltes
- Druk op de knop (-): het vermogen van de kookzone vermindert geleidelijk, totdat hij UIT is.
- Of druk tegelijkertijd op de toetsen () en : het vermogen gaat onmiddelijktering ug maar 0 en het kookgedeelte gaatuit.
Blokkering van de bediening
Als de kookplaat in werkung is Aunt u het bedieningspaneel blokkeren om een ongewenst aanraken te vermijden (kinderen, schoonmaakhandelingen, enz.). Door op de toets ① te drukken zal het bedieningspaneel worden geblokkeerd. Het contrôlelampje boven de toets gaat aan.
Als u het bedieningspaneel wij wilt gebruiken (bv. als u wilt stoppen met koken) moet u de blokkering uitschakelen: druk even op de toets ①. Het controleampje gaat uit en het bedieningspaneel worden waar geactiveerd.
Uitschakelen kookplaat
Druk op de toets ① ; het apparaat gaat uit.
Als het bedieningspaneel is geblokkeerd, blijft dit ook geblokkeerd nadat u de kookplaat opnieuw inschakelt. Als u de kookplaat opnieuw wilt inschakelen moet u eerst het bedieningspaneel deblokkeren.
De verwarmingselementen
Afhankelijk van het model kuren op de kookplaat twee verschillende typen verwarmingselementen worden gemonteerd: halogeen of stralend.
De halogeenelementen verspreiden de warmte door de uitstraling van de halogeenlamp die zich erin befindt.
Het bezit de eigenschappen van het gasfornuis: snelle reactie op de bediening, onmiddelijk zichtaar worden van het vermogen.
De stralingselementen bestaat uit een hoeveelheid spiralen die het gelijkmatig verspreiden van de warmte op de bodem van de pan garanderen, dat wil zaggen de perfecte functie voor het bereiden van etenswaren op een laag vuur: voor stoofschotels, sausen of het opwarmen van gerechten.
Praktische tips voor het gebruik van het apparaat
Teneinde optimale resultaten te bereiken van het kookvlak:
- gebruik pannen met een platte bodem die perfect aansluiten op het verwarmgedeelte;


- Gebruik paffen die groot genoeg zich on de kookplaat geheel te bedekken zDat alle beschikbare但它 wordt benut.



- Houd de bodem van de pannen algid goed schoon en droog zodat ze goed aansluten op het kookvlak. Dit verlangt de levensduur van zowel de pannen als het kookvlak zich.
- vermijddezelfde pannen te gebruiken die u ook op een gasfornuis gebruikt: de warmteconcentratie van gasbranders kan de bodem van pannen verrormen,waardoor ze nicht goedmeer aansluten.
- maar nooit een kookgeedele aan staan zonder een pan erop. De verhitting, die snel het maximum niveau bereikt, zou de verwarmingselementen können beschaden.
Aangeraden stroomsterktes voor verschillende bereidingen:
| Stroom-sterktes | Kleine kookplaat (1100 -> 1400 W) | Middelste kookplaat (1800 -> 2000 W) | Grote kookplaat (2300 -> 2500 W) |
| Mini | Chocolade | Verwarmen | Op laag vuur koken |
| Middel-maat | Saus | Op laag vuur koken | Vloeistoffen koken |
| Maxi | Op laag vuur koken | Vloeistoffen koken | Bakken/Grillen |
Veiligheidsmechanismen
Aanwijzers van de resterende warmte
Zolang de temperatuur van de kookgedeeltes ook na het uitschaken boven de 60^ blijft, blijven de aanwijzers van de resterende warmte die zich naast het betreffende kookgedeelte bevinden aan, zodate uzich nicht verbrandt.
Non-actief
Als een kookplaat worden ingeschakeld maar 2\ iminen lang nicht worden gebruikt, worden de\ blokkering van het bedieningspaneel geactiveerd.
Als darüber situaie nog onceveer 4 halten lang aanhoudt,.gaat de kookplaat automatisch uit.
Oververhitting
Langdurig gebruik van de kookplaat kan het oververhitten van de elektronische elementen veroorzaken.
Een thermisch verilgheidsmechanisme stelt in deze gevallen in de voorste gedeeltes tijdelijk een beperkte stroomsterkte in (gelijk aan 3) totdat de temperatuur is gezakt tot een acceptabeliveau.
Veiligheidsschakelaar
Het apparaat beschikt over een.
veiligheidsschakelaar die de kookgedeeltes
automatisch uitschakelt als de tijdslimiet voor een
bepaald vermogensniveau is bereikt. Tijdens deze
veiligheidsonderbreking vertoont het display het "0". B.v.: de kookplaat rechtsachter staat op 5, verwijl de
plaat linksvoor op 2 staat. De plaat rechtsachter za
automatisch na 3 eer uitgaan, deplaat linksvoor na 10 eer.
| Vermogens-niveau | Maximale werkingsduur |
| 1-2 | 10 uu r |
| 3 | 5 uu r |
| 4 | 4 uu r |
| 5-6 | 3 uu r |
| 7-8 | 2 uu r |
| 9 | 1 uu r |
Geluidssignaal
Enkele storingen, zoals:
- een voorwerp (pan, bestek, enz.) dat meer dan 10 seconden op het bedieningsspaneel ligt,
gemors op het bedieningspaneel, - een lange druk op een toets, können een geluidssignaal veroorzaken. Verwijder deoorzaak van de storing en het geluidssignaal houdt op. In deze gezallen zal het bedieningspaneel automatisch worden geblokkeerd: om het wee in te schakelen moet u op de toets ① drukken. De instelleningen worden behouden. Als deoorzaak van de storing Niet wordt verwijderd blijft het geluidssignaal gaan en gaat het kookvlakuit.
Voorzorgsmaatregelen en advies
NL
! Dit apparaat voldoet aan de geldende internationale verilgheidsvoorschriften. Deze aanwijzingen zijn geschreven voor uw verilgheid en u dient ze derhalve goed door te nemen.
Deze apparatuur voldoet aan de volgende EU voorschriften:
- 73/23/EEG van 19/02/73 (laagspanning) en successievelijke modificaties
- 89/336/EEG van 03/05/89 (elettromagnetische compatibilititeit) enaaropvolgende modificaties
-
- 93/68/EEG van 22/07/93 en waaropvolgende wijzigingen.
Algemene veiligheid
- Dit apparaat is vervaardigd voor Nietprofessioneel gebruik binnenshuis.
- Het apparaat dient Niet buitenshuis te worden geplaatst, ook Niet in overdekte toestand. Het is erg gevaarlijk als het in aanraking komt met regen of als het onweert.
- Raak de machine Niet aan als men op blote voeten is of als de handenof voeten nat+zijn.
- Het apparaat dient om gerechten te koken. Het mag uitsluitend door volwassenen worden gebruikt en alleen volgens de instructies die beschreiben staan in deze handleiding. Gebruik het kookvlak Niet om voorwerpen op teplaatsen en ook Niet als snijplank.
- Het glaskeramische kookvlak is bestand gegen Mechanische stoten. Het kan darüber worden beschadigd (of barsten) als het worden geraakt door een puntig object, bijvoorbeeld door gereedschap. Als dit gebeurt要去 onmiddelijk het apparaat aflsuielen van de elektrische stroom en contact opnemen met de Technische Dienst.
- Als het oppervlak van de kookplaat gebarsten is moet u het apparaat uitschakelen om te voorkomen dat u een elektrische schok krijgt.
- Voorkom dat elektrische snoeren van anderekleine keukenapparaten op warme delen van dekookplaatterechtkommen.
-
Vergeet zich dat de temperatuur in het kookgedeelte aanzienlijk hoog blijft tot minstens 30 minutes nadat u het uitschakelt. De restwarmte worden ook door een indicator aangegeven (zie Starten en gebruik).
-
Houd voorwerpen die kuren smelen op afstand van de kookplaat, zoals bv. plastic, aluminium of suikerhoudende etenswaren. Let vooral op plastic of aluminium verpakkingen en folie: als u ze op het nog warme of lauwe kookvlak neerlegt, kurz u zware schade aanrichten.
- Richt de handvaten van de pannen algid maar de binnenzijde van de kookplaat zodat u er Niet per ongeluk tegenaan stoot.
- Trek nooit de stekker aan het snoeruit het stopcontact, maar pak algijd de stekker direct beet.
Maak het apparaat Niet schoon of voer geen onderhoud uit als de stekker nog in het stopcontact zit.
Afvalverwijdering

- Verwijderen van het verpakkingsmateriaal: houdt u aan deplaatselijke normen, zodat het verpakkingsmateriaal hergebruikt kan worden.
- De Europese richtig 2002/96/EG, betreffende afgedankte elektrische en elektronische apparatuur (AEEA), voorziet dat huishoudelijkke apparatuur Niet met het normale afval mag worden meegegeven. De verwijdderde apparaten要去 apart worden opgehaald om het terugwinnen en recyclen van de materialen waaruit ze bestaan te optimaliseren en te voorkomen dat er eventuele schade voortvloeit voor de gezondheid en het milieu. Het symbool van de afvalemmer met een kruis staat op alle producten om de consument eraan te herinneren dat dit geschienen afval is. Om meer informatie te verkrijgen betreffende een juiste verwijdering van huishoudapparaten kan de consument zichRCTEN tot de gemeentelijkke reinigingsdienst of de verkopers.
De elektrische stroom afsluiten
Sluit altijd eerst de stroom af voordat u tot enige handeling overgaat.
Reinigen van het apparatus
! Vermijd het gebruik van schuurmiddelen of bijtende middelen, zoals sprays voor barbecues en ovens, vlekkenmiddelen, roestverwijderende producten, schoonmaakmiddelen in poedervorm of schuursponzen: deze können het oppervlak onherstelbaar krassen.
! Gebruik nooit huishoudapparaten met stoom of hoge druk voor het reinigen van de kookplaat.
- Voor normalaal onderhoud moet u de kookplaat met een vochtige spons reinigen en afdrogen met keukenpapier.
- Als deplaat erg vuil is要去 hij worden schoongemaakt met een special middel voor keramiekplaten. Daarna要去 u hem afspoelen en afdrogen.
- Voor het verwijderen van hardnekkig vuil kunt u een hiervoord bestemd schrapertje gebruiken.Doe dit zo snel möglich voordat het apparaat afkoelt, zodat de etensresten Niet aankoeken.Uitstekende resultaten bereikt u ook met een speciaal voor keramiekplaten vervaardigd roestvrij staal sponsje dat u in een sopje doopt.
- Als er op de kookplaat onverhoopt voorwerpen of plastic materiaal of suiker zouden smelten,要去 u ze onmiddelijk met het schrapertje verwijderen zolang het oppervlak nog warm is.
- Als hij schoon is kan deplaat met een special middel voor onderhoud en protectie worden behandeld: dit LAST een dun laagje achefter dat de planta beschermt gegen eventueel overkooksel.Dit soort handelingen要去en worden uitgevoerd als de planta law of koud is.
- Vergeet Niet de kookplaat algijd met schoon water na te spoelen en zorgvuldig af te drogen: restjes van schoonmaakmiddelen konnen aankoeken gedurende het volgende gebruik van de kookplaat.
Frame van roestvrij staal (alleen in modellen met lijst)
Roestvrij staal kan vlekken gaan vertonen als er voor langereijd kalkhoudend water op blijft liggen of als gevolg van gebruik van schoonmaakmiddelen die fosfor bevatten.
Spoel en droog de kookplaat.altijd goed af nadat u hem heeft schoongemaakt. Droog gemorst water altijd meteen goed af.
! Enkele kookplaten haben een lijst van aluminium die lijkt op roestvrij staal. Gebruik voor het reinigen en ontvetten geen producten die nicht geschikt zijn voor aluminium.
De kookplaat verwijderen
Als u de kookplaat要去 verwijden:
- verwijder de schroeven die de
centreringsklemmen aan de zijkant vasthouden; - kaak de schroeven van de bevestigingshaken op de hoeken los;
- haal de kookplaat uit het meubel.
! U mag nooit aan het interne systeme sleutelen om een reparatie proberen uit te voeren. Als er een storing is moet u contact opnemen met de Service Dienst.
Technische beschrijving van de modellen
NL
In deze tabellen vindt u de waarden terug van de energiaopname voor ieder afzonderlijk model, het type verwarmingselement (halogeen of stralend) en de diameter van iedere kookplaat.
| KOOKPLATEN | TK 64 SD TK 64 SD TK 64 SD | TK 64 CL TK 64 S TK 64 S | TK 63 T TK 63 T | |||
| Kookgeedelettes | Vermogen (in W) | Diameter (in mm) | Vermogen (in W) | Diameter (in mm) | Vermogen (in W) | Diameter (in mm) |
| Links acheter | RD 2300/-1000 | 210 | R 2300 | 210 | ||
| Links voor | R 1200 | 145 | R 1200 | 145 | ||
| Rechts acheter | R 1200 | 145 | R 1200 | 145 | R 600 | 120 |
| Rechts voor | R 1800 | 180 | R 1800 | 180 | R 1800 | 180 |
| Links | RT 1050/1950/2700 | 250 | ||||
| Totaal vermogen | 6500 | 6500 | 5100 | |||
| R = stralend enkel, RD = stralend dubbel, RT = stralend drie-dubbel | ||||||
NL
NL
Notice-Facile