TK 64 SD BI - Hob INDESIT - Free user manual and instructions
Find the device manual for free TK 64 SD BI INDESIT in PDF.
Download the instructions for your Hob in PDF format for free! Find your manual TK 64 SD BI - INDESIT and take your electronic device back in hand. On this page are published all the documents necessary for the use of your device. TK 64 SD BI by INDESIT.
USER MANUAL TK 64 SD BI INDESIT
Electrical connection
Description of the appliance, 16
Control panel
Start-up and use, 17-19
Switching on the hob
Switching on the cooking zones
Switching on the extendable cooking zones
Switching off the cooking zones
Control panel lock
Switching off the hob
Heating elements
Practical advice on using the appliance
Safety devices
Precautions and tips, 20
General safety
Disposal
TK 64 CL
TK 64 S IX
TK 64 S
TK 64 SD IX
TK 64 SD BI
TK 64 SD
TK 63 T
TK 63 T BI
Care and maintenance, 21
Switching the appliance off
Cleaning the appliance
Disassembling the hob
Technical description of the models, 22
! Before operating your new appliance please read this instruction booklet carefully. It contains important information concerning the safe operation, installation and maintenance of the appliance.
! Please keep these operating instructions for future reference. Pass them on to any new owners of the appliance.
Positioning
! Keep all packaging material out of the reach of children. It may present a choking or suffocation hazard (see Precautions and tips).
! The appliance must be installed by a qualified professional in accordance with the instructions provided. Incorrect installation may damage property or cause harm to people or animals.
Built-in appliance
Use an appropriate cabinet to ensure that the appliance operates properly.
- The supporting surface must be heat-resistant up to a temperature of approximately 100^ .
- If the appliance is to be installed above an oven, the oven must have a forced ventilation cooling system.
- Avoid installing the hob above a dishwasher: if this cannot be avoided, place a waterproof

separation device between the two appliances.
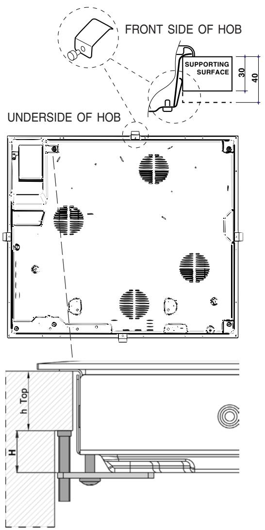
Depending on the hob you want to install, the cabinet must have the following dimensions (see figure):
Above an empty cabinet or a drawer
A space of at least 40~mm or an opening of 5mm on the width measurement of the cabinet, should be created.

Opening of at least 5mm on the overall width measurement of the surface.
Ventilation
To allow adequate ventilation and to avoid overheating of the surrounding surfaces the hob should be positioned:
- At a minimum of 40~mm from the back panel and

600 mm from any other vertical surfaces.
- So that a minimum distance of 10mm is maintained between the installation cavity and the cabinet underneath.
Fixing
The appliance must be installed on a perfectly level supporting surface.
Any deformities caused by improper fixing could alter the features and the operation of the hob.

The thickness of the supporting surface should be taken into account when choosing screws for the fixing hooks:
- 30 mm thick: 17.55 mm screws
- 40 mm thick: 7.55 mm screws
Fix the hob as follows:
- Use short flat-bottomed screws to fix the 4 alignment springs in the holes provided at the central point of each side of the hob.
- Place the hob in the cavity, make sure it is in a central position and push down on the whole perimeter until the hob is stuck to the supporting surface.
- For hobs with raised sides: After inserting the hob into its cavity, insert the 4 fixing hooks (each has its own pin) into the lower edges of the hob, using the long pointed screws to fix it in place, until the glass is stuck to the supporting surface.
! The screws for the alignment springs must remain accessible.
! In order to adhere to safety standards, the appliance must not come into contact with electrical parts once it has been installed.
! All parts which ensure the safe operation of the appliance must not be removable without the aid of a tool.
Electrical connection
! The electrical connection of the hob and any built-in oven must be carried out separately, both for safety purposes and to make extracting the oven easier.
Single-phase connection
The hob is equipped with a pre-connected electricity supply cable, which is designed for single-phase connection. Connect the wires in accordance with the instructions given in the following table and diagrams:
| Voltage and mains frequency | Electrical cable | Wire connection |
| 230V 1+N ~ 50 Hz | N L | ±: yellow/green; N: the two blue wires together L: brown and black together |
Other types of connection
If the mains supply corresponds with one of the following:
Voltage and mains frequency
- 400V - 2+N ~ 50 Hz
- 230V 3 ~ 50 Hz
- 400V - 2+2N ~ 50 Hz
Separate the wires and connect them in accordance with the instructions given in the following table and diagrams:
| Voltage and mains frequency | Electrical cable | Wire connection |
| 400V - 2+N ~ 50 Hz | N L1 L2 | ±: yellow/green; N: the two blue wires together L1: black L2: brown |
| 230V 3~ 50Hz | ||
| 400V - 2+2N ~ 1 50 Hz | N1 N2 L1 L2 | ±: yellow/green; N1: blue N2: blue L1: black L2: brown |
If the mains supply corresponds with one of the following:
Voltage and mains frequency
- 400V 3 - N ~ 50 Hz
proceed as follows:
! The cable provided is not suitable for the following types of installation.
- Use a suitable supply cable, H05RR-F or higher, with the right dimensions (cable section: 25 mm).
- To open the terminal board, insert a screwdriver into the side tabs of the cover (see Terminal board picture).
- Loosen the cable clamp screw and the terminal board screws in accordance with the type of connection required and position the connection supports as shown in the following table and diagrams.
- Position the wires according to the information given in the following table and diagrams and connect the appliance by tightening all the screws for the springs as much as possible.
| Voltage and mains frequency | Electrical connections | Terminal board | |||||
| 400V 3-N ~ 1 50 Hz | 1 | 2 | 3 | 4 | 5 | - | Three-phase 400 |
| L1 | L2 | L3 | N | ||||
- Fix the power supply cable in place by fastening the cable clamp screw, then put the cover back on.

Phase U-bolt
Phase Phase Neutral Earth
connection support
Three-phase 400
Connecting the electricity supply cable to the mains
If the appliance is being connected directly to the electricity mains an omnipolar switch must be installed with a minimum opening of 3mm between contacts.
! The installer must ensure that the correct electrical connection has been performed and that it is fully compliant with safety regulations.
Before connecting the appliance to the power supply, make sure that:
- The appliance is earthed and the plug is compliant with the law.
- The socket can withstand the maximum power of the appliance, which is indicated on the data plate located on the appliance itself.
- The voltage is in the range between the values indicated on the data plate.
- The socket is compatible with the plug of the appliance. If the socket is incompatible with the plug, ask an authorised technician to replace it. Do not use extension cords or multiple sockets.
! Once the appliance has been installed, the power supply cable and the electrical socket must be easily accessible.
! The cable must not be bent or compressed.
! The cable must be checked regularly and replaced by authorised technicians only.
! The manufacturer declines any liability should these safety measures not be observed.
Control panel
The control panel described in this manual is only a representative example: it may not exactly match the panel on your appliance.

- ON/OFF button switches the appliance on and off.
- CONTROL PANEL LOCK button prevents accidental changes to the hob settings (see Start-up and use).
- CONTROLS LOCKED indicator light shows the control panel has been locked (see Start-up and use).
- COOKING ZONE SELECTOR button shows a particular cooking zone has been selected and therefore various adjustments are possible.
-
COOKING ZONE SELECTOR button is used to select the required cooking zone.
-
POWER indicator provides a visual display for the current heat level.
- INCREASE POWER button switches on the hotplate and controls the power (see Start-up and use).
- REDUCE POWER button controls the power and switches off the hotplate (see Start-up and use).
- EXTANDABLE HOTPLATE* button switches on the extendable hotplate (see Start-up and use).
- EXTENDABLE PLATE ON* indicator light: shows the extendable hotplate has been switched on.
! The glue applied on the gaskets leaves traces of grease on the glass. Before using the appliance, we recommend you remove these with a special non-abrasive cleaning product. During the first few hours of use there may be a smell of rubber which will disappear very quickly.
! A few seconds after the hob is connected to the electricity supply, a buzzer will sound. The hob may now be switched on.
Switching on the hob
To switch the hob on, press and hold the button for approximately one second.
Switching on the cooking zones
Each cooking zone is controlled by a device consisting of two buttons (- and +).
- Press the button to activate the hotplate, then set the power to the required level using the and buttons.
- To set the power to maximum, hold down the (一) button briefly.
-
It is possible to accelerate the heating-up time of a cooking zone as follows:
-
Adjust the power of the cooking zone so that it is at the maximum level (9).
- Press the button: “A” appears on the power level display.
- At this point, set the desired power level to be implemented for the actual cooking procedure (5, for example).
When the correct temperature has been reached, the rapid heating function stops automatically and cooking continues normally at power level 5.
Switching on the extendable cooking zones*
-
Double hotplate:
-
Press the (+) button to switch on the smaller internal cooking zone.
-
Press the button to switch the second cooking zone on (or off).
-
Triple hotplate:
-
Press the button to switch on the intermediate cooking zone.
- Press the button twice to switch on the entire cooking zone.
! To revert to a smaller-sized cooking zone, press the button again.
Switching off the cooking zones
- Press the () button: the power of the cooking zone will progressively decrease until it is switched off.
- Alternatively, the and buttons may be pressed simultaneously. This immediately returns the power setting to 0 and the cooking zone switches off.
Control panel lock
When the hob is switched on, it is possible to lock the oven controls to avoid accidental changes being made to the settings (by children, during cleaning, etc.). Press the button to lock the control panel: the indicator light above the button will switch on. To use any of the controls (e.g. to stop cooking), you must switch off this function. Press the button for a few moments, the indicator light will switch off and the lock function will be removed.
Switching off the hob
Press the ① button to switch the appliance off. If the control panel lock has been activated, the controls will continue to be locked even after the hob is switched on again. In order to switch the hob on again, you must first remove the lock function.
Heating elements
It is possible to install two types of heating elements according to the appliance model: halogen and radiant elements.
Halogen elements emit heat via radiation from the halogen lamps they contain.
They have similar properties to gas burners: they are easy to control and reach set temperatures quickly, allowing you to see the power used.
Radiant elements consist of a series of coils which allow heat to be distributed evenly at the base of the cookware, so that all slow-flame cooking may be performed successfully, for example stews, sauces or reheated dishes.
Practical advice on using the appliance
To obtain the best results from your hob:
- Use flat-bottomed pans to ensure that they adhere to the cooking zone perfectly.

- Always use pans with a diameter which is large enough to cover the hotplate fully, in order to use all the available heat.

- Make sure that the base of the cookware is always clean and dry, in order to fully utilise and extend the life of both the cooking zones and the cookware.
- Avoid using the same cookware which has been used on gas burners: the heat concentration on gas burners may distort the base of the pan, causing it not to adhere correctly.
- Never leave a cooking zone on without cookware placed on it because it heats up and rapidly reaches the maximum level, which could damage the heating elements.
Recommended power levels for various types of cooking:
| Power | Small plate (1100 -> 1400 W) | Medium plate (1800 -> 2000 W) | Large plate (2300 -> 2500 W) |
| Mini | Chocolate | Reheating | Slow-flame cooking |
| Medium | Sauces | Slow-flame cooking | Boiling liquids |
| Maxi | Slow-flame cooking | Boiling liquids | Frying / Grilling |
Safety devices
Residual heat indicators
While the temperature of the cooking zone remains above 60^ , even after the programme has finished, the residual heat indicators placed near the relevant cooking zone remain lit to prevent the risk of burns.
Inactive function
If the hob is on but has not been used for approximately 2 minutes, the control panel will be locked. If this continues for an additional 4 minutes, the hob will switch off automatically.
Overheating protection
Prolonged use of the hob can cause the electronic components to overheat.
When this happens, an overheating protection device reduces the power level of the front cooking zones (to about 3) until the temperature reaches a safer level.
Safety switch
The appliance has a safety switch which automatically switches off the cooking zones when they have been in operation for a certain amount of time at a given power level. When the safety switch has been triggered, the display shows "0".
For example: the right rear hotplate is set to 5 and will switch off after 3 hours of continuous operation, while the front left hotplate is set to 2 and will switch off after 10 hours.
| Power level | Maximum duration of operation |
| 1-2 | 10 hours |
| 3 | 5 hours |
| 4 | 4 hours |
| 5-6 | 3 hours |
| 7-8 | 2 hours |
| 9 | 1 hour |
Buzzer
This can also indicate several irregularities:
- An object (a pan, cutlery, etc.) has been placed on the control panel for more than 10 seconds.
- Something has been spilt on the control panel.
- A button has been pressed for too long. All of the above situations may cause the buzzer to sound. Remove the cause of the malfunction to stop the buzzer. The control panel locks automatically in the above situations. To unlock the control panel press the ① button; the previous settings will have been maintained. If the cause of the problem is not removed, the buzzer will keep sounding and the hob will switch off.
! This appliance has been designed and manufactured in compliance with international safety standards. The following warnings are provided for safety reasons and must be read carefully.
CE This appliance conforms to the following European Economic Community directives:
- 73/23/EEC dated 19/02/73 (Low Voltage) and subsequent amendments;
- 89/336/EEC dated 03/05/89 (Electromagnetic Compatibility) and subsequent amendments;
- 93/68/EEC dated 22/07/93 and subsequent amendments.
General safety
- The appliance was designed for domestic use inside the home and is not intended for commercial or industrial use.
- The appliance must not be installed outdoors, even in covered areas. It is extremely dangerous to leave the appliance exposed to rain and storms.
- Do not touch the appliance with bare feet or with wet or damp hands and feet.
- The appliance must be used by adults only for the preparation of food, in accordance with the instructions provided in this booklet. Do not use the hob as a worktop or chopping board.
- The glass ceramic hob is resistant to mechanical shocks, but it may crack (or even break) if hit with a sharp object such as a tool. If this happens, disconnect the appliance from the electricity mains immediately and contact a Service Centre.
- If the surface of the hob is cracked, switch off the appliance to prevent electric shocks from occurring.
- Make sure that power supply cables of other electrical appliances do not come into contact with the hot parts of the hob.
-
Remember that the cooking zones remain relatively hot for at least thirty minutes after they have been switched off. An indicator light provides a warning when residual heat is present (see Start-up and use).
-
Keep any object which could melt away from the hob, for example plastic and aluminium objects, or products with a high sugar content. Be especially careful when using plastic film and aluminium foil or packaging:
if placed on surfaces which are still hot, they may cause serious damage to the hob.
- Always make sure that pan handles are turned towards the centre of the hob in order to avoid accidental burns.
- When unplugging the appliance, always pull the plug from the mains socket; do not pull on the cable.
- Never perform any cleaning or maintenance work without having disconnected the appliance from the electricity mains.
Disposal

- When disposing of packaging material: observe local legislation so that the packaging may be reused.
- The European Directive 2002/96/EC relating to Waste Electrical and Electronic Equipment (WEEE) states that household appliances should not be disposed of using the normal solid urban waste cycle. Exhausted appliances should be collected separately in order to optimise the cost of re-using and recycling the materials inside the machine, while preventing potential damage to the atmosphere and to public health. The crossed-out dustbin is marked on all products to remind the owner of their obligations regarding separated waste collection.
For further information relating to the correct disposal of exhausted household appliances, owners may contact the public service provided or their local dealer.
Switching the appliance off
Disconnect your appliance from the electricity supply before carrying out any work on it.
Cleaning the appliance
! Do not use abrasive or corrosive detergents (for example, products in spray cans for cleaning barbecues and ovens), stain removers, anti-rust products, powder detergents or sponges with abrasive surfaces: these may scratch the surface beyond repair.
! Never use steam cleaners or pressure cleaners on the appliance.
- It is usually sufficient simply to wash the hob using a damp sponge and dry it with absorbent kitchen roll.
- If the hob is particularly dirty, rub it with a special glass ceramic cleaning product, then rinse well and dry thoroughly.
- To remove more stubborn dirt, use a suitable scraper. Remove spills as soon as possible, without waiting for the appliance to cool, to prevent residues from forming crusty deposits. You can achieve excellent results by using a rustproof steel wire sponge - specifically designed for glass ceramic surfaces - soaked in soapy water.
- If any plastic or sugary substances are accidentally melted on the hob, remove them immediately with the scraper, while the surface is still hot.
- Once it is clean, the hob may be treated with a special protective maintenance product: the invisible film left by this product protects the surface from drips during cooking. This maintenance task should be carried out while the appliance is warm (not hot) or cold.
- Always remember to rinse the appliance well with clean water and dry it thoroughly: residues can become encrusted during subsequent cooking processes.
Stainless steel frame (only in models with outer frame)
Stainless steel can be marked by hard water which has been left on the surface for a long time, or by cleaning products containing phosphorus. After cleaning, it is advisable to rinse the surface well and dry it thoroughly. If water is spilt on the surface, dry it quickly and thoroughly.
! Some hobs have an aluminium frame which is similar to stainless steel. Do not use any cleaning or degreasing products which are not suitable for use with aluminium.
Disassembling the hob
If it is necessary to disassemble the hob:
- Loosen the screws fixing the alignment springs on each side.
- Loosen the screws holding the fixing hooks in each corner.
- Take the hob out of its installation cavity.
! Do not attempt to repair the appliance yourself. If the appliance breaks down, contact a Service Centre.
Technical description of the models
GB
This table provides a model-by-model list of the energy absorption values, type of heating elements (halogen or radiant elements) and diameters of each cooking zone.
| HOBS | TK 64 SD TK 64 SD IX TK 64 SD BI | TK 64 CL TK 64 S TK 64 S IX | TK 63 T TK 63 T BI | |||
| Cooking zone | Power (W) | Diameter (mm) | Power (W) | Diameter (mm) | Power (W) | Diameter (mm) |
| Back Left | RD 2300-1000 | 210 | R 2300 | 210 | ||
| Front Left | R 1200 | 145 | R 1200 | 145 | ||
| Back Right | R 1200 | 145 | R 1200 | 145 | R 600 | 120 |
| Front Right | R 1800 | 180 | R 1800 | 180 | R 1800 | 180 |
| Left | RT 1050/1950/2700 | 250 | ||||
| Total power | 6500 | 6500 | 5100 | |||
| R = radiant single, RD = radiant double, RT = radiant triple | ||||||

Italiano, 1

English, 12

Français, 23

Espanol, 34

Portugués, 45

Nederland56
TK 64 CL
TK 64 S IX
TK 64 S
TK 64 SD IX
TK 64 SD BI
TK 64 SD
TK 63 T
TK 63 T BI
Sommaire
Installation, 24-26
Positionnement
Acender as zonas de cozedura
Acender as zonas de cozedura extensaieis
Desligar as zonas de cozedura
ManualGo.com