ZEN 102 - Caminetto DOVRE - Manuale utente e istruzioni gratuiti
Trova gratuitamente il manuale del dispositivo ZEN 102 DOVRE in formato PDF.
Domande frequenti - ZEN 102 DOVRE
Domande degli utenti su ZEN 102 DOVRE
0 domanda su questo apparecchio. Rispondi a quelle che conosci o fai la tua.
Fai una nuova domanda su questo apparecchio
Scarica le istruzioni per il tuo Caminetto in formato PDF gratuitamente! Trova il tuo manuale ZEN 102 - DOVRE e riprendi in mano il tuo dispositivo elettronico. In questa pagina sono pubblicati tutti i documenti necessari per l'utilizzo del tuo dispositivo. ZEN 102 del marchio DOVRE.
MANUALE UTENTE ZEN 102 DOVRE
Anschluss Abmessungen.19
Dichiarazione di prestazione 4
Sicurezza 6
Requisiti per l'installazione 6
Generalità .6
Canna fumaria 6
Aerazione dell'ambiente 7
Pavimento e pareti.8
Descrizione del prodotto 8
Installazione 9
Preparazione generale 9
Preparazione del collegamento allapresa d'aria
esterna 10
Incorporare in un camino nuovo. 10
Uso 13
Prima accensione. 13
Combustible 13
Accensione 14
Funzionamento a legna 14
Regolazione dell'aria di combustione. 15
Estituere il fuoco. 16
Rimozione dellacene 16
Foschia e nebbia 16
Eventuali problemi 17
Manutenzione 17
Canna fumaria 17
Pulizia e manutenzione periodica 17
Allegato 1: Dati tecnjci. 19
Allegato 2: Dimensioni. 20
Allegato 3: Distanza da materiali
inflammabili 22
Allegato 4: Schema diagnostico 24
25
Introduzione
Gentile cliente,\ acquistando quello apparecchio da riscaldamento di DOVRE, Lei ha scelto un prodotto di alta qualità.\ Questo prodotto fa parte di una nuova generatione di apparecchi da riscaldamento ecologici a basso consumo energetico, in grado di sfruttare in modo ottimale sua calore di convenzione, sua quello di irraggiamento.
Il Suo appearecchio DOVRE è stato realizzato con processi di produzione all'avanguardia. Qualora dovessero presentarsi difetti o irregularità, Le consigliamo vivamente di contattare il servizio clienti DOVRE.
Non è consentito apportare modifiche all'apparecchio. Si raccomanda di usare sempre parti di ricambio originali.
L'apparecchio è stato progettato per la collocazione in ambienti abitativi e Deve essere collegato ermeticamente a una canna fumaria funzionante.
Le consiglio di fidare l'installazione dell'apparecchio a un technician补水.
DOVRE declina ogni responsabilità per problemi o danni causati da un'installazione non a regola d'arte.
Per l'installazione e per l'uso devono essere osservate le norme di sicurezza riportate nel manuale.
Questo manuale contiene tutte le istruzioni per l'installazione, l'uso e la manutenzione dell'apparecchio da riscaldamento DOVRE. Se desidera ricevere informazioni o dati tecnici aggiuntivi, Le consigliamo di contattare in un primo momento il fornitore dell'apparecchio.
© 2014 DOVRE NV
Dichiarazione di prestazione
In conformità al Regolamento sui prodotti da costruzione 305/2011
N.116-CPR-2014
- Codice di identificazione unico del tipo di prodotto:
ZEN
2.Numero di modello, lotto o serie, o altri mezzo identificativo per il prodotto da costruzione, previsto dall'articolo 11, paragrafo 4:
Numero di serie unico.
- Usi previsti del prodotto in conformità alle relative specifiche tecniche armonizzate, come stabili dal fabbricante:
Stufa per combustibile solido alla produzione di acqua calda in conformità a EN 13229
- Denominazione, denominazione commerciale registrata o marchio commerciale registrato e indirizzo di lavoro del fabbricante, come previsto dall'articolo 11, paragrafo 5:
- Se applicabile, nome e indirizzo di lavoro del delegato il cui mandato prevece lo svolgimento compiti descritti nell'articolo 12, paragrafo 2:
-
- Ilsystemo o i sistemi per la valutazione e la verifica della costanza delle prestazioni del precostruzione, menzionati nell'allegato V:
Sistema 3
- Se la dichiarazione di prestazione fa riferimento a un prodotto da costruzione che rientra in norma armonizzata:
L'istanza designata KVBG, registrata con il numero 2013, ha eseguito una certificazione della tipologia sulsystema 3 e ha rilasciato il rapporto di prova n. H2014/0030.
- Se la dichiarazione di prestazione fa riferimento ad un prodotto da costruzione per il quale consecnata una valutazione tecnica europea:
9. Prestazioni dichiarate:
| La norma armonizzata EN 13229:2001/A2 ;2 | 2004/AC :2007 |
| Caratteristiche essenziali Prestazioni Legna | |
| Misure antincendio | |
| Resistenza al fuoco A1 | |
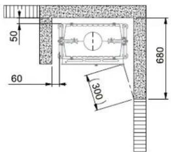
| Distanza da materiali inflammabili | Distanza minima in mmRetro: 50 con isolamentoLato: 60 con isolamento |
| Rischio di caduta di brace Conforme | |
| Emissione prodotti della combustione CO: 0,09% | (13% O2) |
| Temperatura della superficie Conforme | |
| Sicurezza elettrica - | |
| Facile da pulire | Conforme |
| Pressione massima di servizio | - |
| Temperatura dei fumi di combustione in caso di potenza termica nominale | 175 °C |
| Resistenza meccanica (sostenere il peso della carfumaria) | Non stabilito |
| Potenza nominale | 4,75 kW |
| Rendimento | 80,1% |
- Le prestazioni del prodotto descritto nei punti 1 e 2 sono conformi alle prestazioni previste punto 9.
La presente dichiarazione di prestazione viene rilasciata molto esclusiva responsabilità del fabbricant menzionato nel punto 4:

10/02/2014 Weelde (Belgio)
Tom Gehem
CEO
Nell'ambito del costante miglioramento del prodotto, le specifiche tecniche dell'apparecchio fomito potrebbero differire alla descrizione in quello manuale, agli obbligo di preavviso escluso.
DOVRE N.V.
Attenzione! è obbligatoria l'osservanza di tutte le norme di sicurezza.
Leggere attendamente le istruzioni per l'installazione, l'uso e la manutenzione in dotazione, prima di mettere in funzione l'apparecchio.
L'apparecchio deve essere installato in conformità alle disposizioni tecniche e di legge vigenti nel Suo paese.
Durante l'installazione dell'apparecchio è obbligatorio osservare tutte le disposizioni locali e quella riferibili alla normativa europea
Si consiglia di affidare l'installazione dell'apparecchio a un technician qualificato che costamente informato sulle disposizioni e sulle norme vigenti.
L'apparecchio è stato progettato per il riscaldamento domestico. Tutte le sue superfici, vetro e raccordo di collegamento compresi, possono raggiungere temperature elevate (superiori ai 100^ ! Usare un dato isolante o una maniglia mobile ("mano fredda" per eseguire operazioni a stufa accesa.
Provedere ad un'adeguata protezione se bambini, invalidi o anziani si trovano in prossimità dell'apparecchio.
Le distance di sicurezza da materiali inflammabili devono essere rigorosamente rispetto.
Non collocare tende, indumenti, biancheria o altri materiali inflammabili sopra o nelle vicinanze dell'apparecchio.
Non usare sostanze inflammabili o esplovice nelle vicinanze della stufa accesa.
Per evitare incendi della canna fumaria, provvedere alla pulizia periodica della stessa. Non accendere mai l'apparecchio con la porta aperta.
In caso di incendio della canna fumaria: chiudere le prese d'aria dell'apparecchio e chiamare i vigili del fuoco.
Qualora il vetro dello sportello sua rotto o crepato, non usare l'apparecchio fino a quando il vetro non sare sostituito.
Assicurarsi che vi sia sufficiente aerazione nel locale di posa. In caso di scarsa ventilazione, la combustione non sare completinga causando eventually l'emissione di gas tosici nel locale. Per ulteriori informazioni sull' aerazione, si veda il capitolo "Requisiti per l'installazione".
Requisiti per l'installazione
Generità
L'apparecchio devese essere collegato ermeticamente a una canna fumaria funzionante.
Per le dimensioni di collegamento: si veda l'allegato "Dati tecnici".
I vigil del fuoco e/o la società di assicurazione possono informarla relativamente a eventuali requisiti e prescrizioni particulari.
Canna fumaria
La canna fumaria serve per:
L'evacuatione dei prodotti di combustione grazie al tiraggio naturale.
L'aria calda presente nella canna fumaria tende a salire in alto perché è più leggera dell'aria esterna.
L'aspirazione dell'aria necessaria alla combustione del combustibile nell'apparecchio.
Qualora il tiraggio della canna fumaria non sia sufficiente, durante l'apertura della porta potrebbe fuoriscire del fumo. Il danno causato da ritorno di fumo è escluso alla garanzia.
Non collegare più di un appearecchio (a.e. una caldaia) alla medesima canna fumaria, a meno che non sia consentito dalle norme locali o nazionali. In caso di due collegamenti, provvedere a mantenere tra di essi un dislivello minimo di 200 mm.
Si consiglia di consultrare l'installatore riguardo alla canna fumaria. La norma europea EN13384 contiene parametri per il calcolo della capacité di camini e canne fumarie.
La canna fumaria deve ave un'altezza minima di 14 metri.
Di norma, il comignolo deve superare di 60 cm il colmo del fatto.
La canna fumaria delve soddisfare i seguenti requisiti:
La canna fumaria delve essere realizzata in materiale resistente al fuoco, preferibilmente ceramica refrattaria o acciaio inox.
Quando il colmo del fatto dista più di 3 metri alla canna fumaria: Maintainere le misure indicate nella figura seguente. A = il punto più alto del fatto entro una distance di 3 metri .
Deve essere pulita e perfettamente a tenutaagna, con una sufficiente energia di tiraggio.
Un tiraggio/depressione di 15 - 20 Pa durante l'esercizio normale sarebbe il valore ideale.
Il percorso della canna fumaria - a partire dall'us dei fumi dell'apparecchio - delve essere il più verticale possibile. Gomiti e raccordi orizzontali ostacolano l'evacuzione dei prodotti di combustione, causando depositi di fuliggine.

Le dimensioni interne dovrebbero essere contente, onde evitare che i fumi di combustion si raffreddino eccessivamente diminuendoosi il tiraggio naturale.
Di regola il diametro della canna fumaria dovrebl corrispondere a quello del manicotto di collegamento.
i Per il diametro nominale: si veda l'allegato "Dati tecnici". Quando la canna fumaria è ben isolata, è consentitoanche un diametro maggiore (al massimo il doppio del diametro I del manicotto di collegamento).
Il diametro (superficie) del canale dei fumi deve essere regolare. Eventuali allargamenti, e soprattutto i restringimenti, ostacolano lo scarico dei prodotti di combustione.
Nell'applicare un cappello antipioggia/cappello di aspirazione alla canna fumaria: assicurarsi che il comignolo non restringa l'uscita del camino e non ostacoli l'evacuatione dei prodotti di combustione.
La parte terminale della canna fumaria deve essituata in una posizione sufficientemente distante da edifici circostanti, alberi o altri ostacoli.
La parte che emerge dal fatto dell'edificio deve essere opportunamente isolata.
Aerazione dell'ambiente
Per garantire una regolare combustione, l'apparecchio ha bisogno di aria (ossigeno). L'aria viene aspirata fall'ambiente dove l'apparecchio è stato installato, incontraverso le prese dell'aria regolabili.
In caso di scarsa ventilazione, la combustione non sare completea causando eventualmente l'emissione di gas tosici nel locale.
La regola prescive un apporto d'aria parla a 5,5 cm^2 /kW .Si dovra provedere a un'aerazione supplementare:
Qualora l'apparecchio sua stato installato in un locale ben isolato.
In presenza di ventilazione meccanica forzata, a.e. un sistema di ventilazione centralizzato o una cappa nell'angolo cottura.
L'airazione può essere migliorata installando una griglia di aerazione nella parete esterna dell'edificio.
Si raccomanda di provvedere a una presa d'aria esterna indipendente per gli altri apparecchi che consumano aria (quali asciugatrici, altri apparecchi di riscaldamento o ventilatori da bagno) o di spegnerli durante il funzionamento della stufa.

E possible collegare l'apparecchio a una pres d'aria esterna tramite un apposto set in dotazione. In tal caso gli accorgimenti per laerazione supplementare possono essere omessi.
Pavimento e pareti
La portata di carico della superficie di appoggio dell'apparecchio deve essere sufficiente. Per il peso dell'apparecchio: si veda l'allegato "Dati tecnici".

Pavimenti in materiale inflammabile devono essere protetti contro l'irraggiamento di calore per mezzo di una piastra ignifuga. Si veda l'allegato "Distanza da materiale inflammabile".

Prima di posare la piastra salvapavamenti, rimuovere materiali infiammabili come linoleum, moquette, ecc.

Assicurarsi che la distance tra la stufa e materiali inflammabili, come pareti e mobili di legno, sua sufficiente.

Si deve tener conta del fatto cheanche il tub di collegamento emana calore.Assicurarsi che la distanza tra il tubo di collegamento e i materiali inflammabili sua sufficiente. Per un tubo simplice tale distanza devele essere almeno tre volte il diametro del tubo stesso.Qualora il tubo sia provvisto di rivestimento,la distanza si riduce a una volta diametro.

Tenere tappeti e moquette a una distanza minima di 80 cm dal focolare.

Il pavimento davanti alla stufa deve essere protetto contro la caduta di genere ardente p mezzo di una piatra salvapavimenti ignifuga.
La piastra deve soddisfare i requisiti stabiliti delle norme nazionali.

Per le dimensioni della piatra salvapavamenti si veda l'allegato "Distanza da materiale inflammabile".

Per ulteriori requisiti antincendio, si veda l'allegato "Distanza da materiale inflammabile".

-
Manicotto di collegamento
-
Rivestimento ignifugo
-
Porta
Piastra di combustione.
-
Chiavistello
-
Presa d'aria
-
Collegamento alla presa d'aria esterna
-
Sostegno
-
Piedini di regolazione
-
Prolunga (opzionale)
-
Ancoraggio a muro (opzionale)
-
Perno filettato M8 (opzionale)
- Mascherina di finitura
Installazione
Preparazione generale
- Controllare, alla consegna, che l'apparecchio non presenti danni (di trasporto) o eventuali altri difetti L'apparecchio è fissato sul bancale per mezzo di bulloni.
Nel caso si constatino danni (dovuti al trasporto) o difetti, non mettere in funzione l'apparecchio e rivolgersi al rivenditore.
Rimuovere tutti i componenti amovibili prima di installare l'apparecchio.
i Senza il peso di questi componenti è più facile spostare l'apparecchio, evitando eventuali danni.
E importante ricordarsi la posizione esatta dei componenti amovibili che devono essere riassemblati dopo la posa dell'apparecchio.
Apertura sportello
Aprière lo sportello tirando in avanti il chiavistello e sbloccando lo sportello; si veda la figura seguente.


Poiché il chiavistello si riscalda durante l'uso dell'apparecchio, viene fornito un dato per protezione delle mani.
Rimozione delle piastre refrattarie interne

Le piastre interne in vermiculite sono molto leggere. Quando sono nuove sono di colore ocra. Isolano la camera di combustione, migliorando quando il processo di combustione.

Pos. Descrizione
1 piatra interna anteriore sinistra
2 piastra interna posteriore sinistra
3 piatra interna dorso
4 piatra interna anteriore destra
5 piatra interna posteriore destra
6 piatra interna alta
7 tagliafiamma
8 supporto tagliafiamma
Seguire le istruzioni sottostanti per rimuovere le piastre interne; si veda la figura precedente.
- Rimuovere prima le piastre interne laterali (1), (2), (4) e (5) sollevandole ed extraendole dall'apparecchio attraverso l'apertura dello sportello.
- Rimuovere entrambe le piastre interne (6).
- Rimuovere entrambe le piastre interne (3).
- Rimuovere i due tagliafiamma (7) dal supporto tagliafiamma (8).
- Rimuovere il supporto del tagliafiamma (8).
Rimuovere la piastra di combustione
La piatra di combustione è protetta da piastre interne
ignifughe. Rimuovere prima queste piastre interne e
estrarre quindi la piastra di combustione
dall'apparecchio.

Le piastre interne in chamotte presentano alla
consegn a unccesso di colore. Isolano la camera di combustione, migliorando quando ilprocesso di combustione.

Pos. Descrizione
1 piatra interna laterale
2 piatra interna anteriore e posteriore
3 convogliatore d'aria
4 piatra di combustione
5 aperture aria
Seguire le istruzioni sottostanti per rimuovere le
piastre interne e la piastra di combustione; si veda
figura precedente.

Nello smontare la piastra di combustione, assicurarsi che i due fori di sfiato (5) siano rivolti in avanti.
Preparazione del
collegamento alla
presa d'aria esterna
Se la stufa viene installata in una stanza con scarsa
ventilazione, si consiglia di collegare la stufa a una
presa d'aria esterna,utilizzando il set di collegamento.
Il tubo per l'aria esterna ha un diametro di 100 mm. Se
viene usato un tubo liscio, la lunghezza non devel
essere superiore a 12 metri. Qualora vengano usati
raccordi, come gomiti, la lunghezza massima (12
metri) delve essere diminuuita di 1 metro per agli
raccordo.
Collegamento alla presa d'aria
esterna attraverso la parete o il
pavimento e il manicotto di
collegamento
- Praticare un foro nella parete o sul pavimento (per una corretta posizione del foro si veda l'allegato 2 "Dimensioni").
- Collegare il tubo dell'aria esterna ermeticamente alla parete esterna.
Incorporare in un camino
nuovo
L'installazione della stufa ad incasso è divisa in due
fasi:
L'installazione e il collegamento della stufa ad
La costruzione del camino intorno alla stufa ad
ali incasso.
Installare e collegare la stufa ad
incasso
-
Rimuovere i convogiatori d'aria (3) sul lato sinistro
e destro. -
Rimuovere prima le due piastre interne (1) laterali
inclinandole in avanti ed extraendole
dall'apparecchioattraverso l'apertura dello
sportello.
- Rimuovere le piastre interne (2) sul lato anteriore e
posteriore.
- Rimuovere il supporto della piastra di combustione
(4).
- Posizionare l'apparecchio all'altezza giusta, su
una superficie pianae orizzontale.

A tal fine è possibile servirsi dei piedini di
appoggio e dell'ancoraggio a muro opzionali.

- Assicurarsi di lasciare uno spazio libero tra le pareti esistenti, dotate dell'isolamento necessario, e il lato posteriore dell'apparecchio.
- Collegare l'apparecchio alla canna fumaria per mezzo di un manicotto a tenuta stagna.
- Controllare il tiraggio della canna fumaria e la chiusura ermetica del collegamento al condotto di scarico dei fumi accendendo un fuoco di prova piccolo e intenso con carta di giornali e legnetti sottili e asciutti.

Attendere che l'opera muraria sia sufficientemente asciutta prima di procedere con i lavori.
5. In caso di collegamento alla presa d'aria esterna, collegare la presa d'aria esterna al set di collegamento precedentemente montato sull'apparecchio.
Struttura del camino
Creare nel camino la camera di convezione dove l'aria è libera di circolare. Deve essere garantito l'apporto di aria per la combustione e l'aria riscaldata alla stufa ad incasso (l'aria di convezione) delve poter circolare liberamente nell'ambiente da riscaldare; si veda la figura seguente.

09-2020-310
A corrente d'aria di convezione
B irradiazione del calorie
C apporto d'aria proveniente dall'ambiente da riscaldare
Per il montaggio del camino seguire le indicazioni riportate di seguito per la camera di convezione:
La parte superiore della camera di convezione deve essere chiusa ermeticamente mediante una piastra di copertura costituita da materiale non infammabile e resistente ad alte temperature.
La piatra di copertura deve essere posizionata orizzontalmente, ad una distanza minima di 30 cm dal foro per i fumi di combustione sul soffitto.
Per l'apporto di aria ambiente è necessario 4. installare griglie de entrata dell'aria sulla parte inferiore del camino. L'apertura di entrata dell'aria deve essere un'area minima pari a 250~cm I'ambiente non è sufficientemente ventilato, è necessario provvedere ad un'apporto di aria esterna mediante l'apposto set di collegamento ad una presa d'aria esterna in dotazione oppure mediana il set di valvole d'aria dotato del pulsante di regolazione.
E necessaria l'installation di griglie di uscita dell'aria sul dato superiore del camino, proprio除去 la piastra di copertura. L'apertura di entrata dell'aria delve ave un'area minima pari a 50 cm
i Le griglie di entrata e di uscita dell'aria sono disponibili su richiesta.
Non utilizzato materiali infiammabili nella camera di convenzione e impedire la creazione di ponti termici evitando l'uso di materiali termovettori.
- Terminare la costruzione del camino fino al foro per i fumi di combustione sul soffitto.
La stufa ad incasso non più sostenere il peso dell'opera muraria. Si consiglia pertanto diutilizzare un sostegno quale, ad esempio, unabarra di supporto. Lasciare uno spazio libero diminimo 3 mm tra il sostegno e l'apparecchio.
- Chiudere la camera di convezione mediante la piastra di copertura.
- Installare le griglie di uscita dell'aria sotto la piastra di copertura.
- Creare un'apertura al di sopra della piastra di copertura per evitare un'eventuale risalita di pressione.
La seguente figura rappresenta un esempio di installazione della stufa a incasso in un camino. Pemontato seguito le istruzioni e leindicazioni sopra la riportate.
Per la costruzione del camino seguire le istruzioni riportate di seguito:
- Costruire la base della stufa e collocarvi le griglie di entrata dell'aria.
è possibile installare le griglie di entrata su tutti i lati della base.
Assicurarsi che la porta della stufa possa ruotare liberamente sulla piattaforma.
- Proseguire con la costruzione della stufa fino alla cappa di scarico.
Assicurarsi che rimangano sempre 2 mm di spazio libero tra la stufa a incasso e l'opera in muratura per immortizzare la dilatazione termica della stufa a incasso. - Rivestire eventuallyla parte interna della camera di convenzione con materiale isolante riflettente.
i L'ulteriori rivestimento della camera di convezione evita l'irradiamento del calore versuso eventuali muri esterni e/o ambienti adiacenti e previene inoltre danni all'isolamento di muri a intercapedine.

A Canna fumaria
B Guarnizione
C Piastra di copertura
D Isolamento 10 cm
E Parete non inflammabile min. 10 cm (es. calcestruzzo aerato)
F Parete inflammabile
G Camera di convezione
H Soffitto non inflammabile
I Soffitto infiammabile
J Uscita dell'aria di convezione
K Isolamento
M Pavimento inflammabile
N Apertura per evitare risalita di pressione
O Tubo di collegamento
Collocare la mascherina di finitura
- Collocare i quattro magneti (2) in dotazione sula parte laterale del telaio; si veda la figura seguente.

- Far scivolare la mascherina (1) nel telaio.
Completamento
- Rimettere nella posizione originale tutti i componenti precedentamente tolti.
- Assicurarsi che il camino di nuova costruzione sia sufficientemente asciutto prima di metterlo in funzione.
Non usare la stufa alla senza le piastre interne refrattarie.
L'apparecchio è ora pronto per l'uso.
Uso
Prima accensione
Alla prima accensione l'apparecchio deve funzionare a piena capacité per alcune ore per In quello modo, si consente il completo indurimento della vernice resistente al calore. L'eventuale presenza di fumo e cattivi odori è solo temporanea. Aprire eventuallymente le porte e le finestre del locale per cancellare l'aria.
Combustible
L'unico combustibile adatto a esta stufa è legna naturale; tagliata, spaccata e sufficientemente essiccata.
Non usare altri combustibili: possono provocare gravil. Accastare due strati di ceppi medi, riponendoli danni all'apparecchio. perpendiculararmente (incrociati).
Non è consentito alimentare la stufa con i seguenti 2ipRiporre sulla i ceppi due strati incrociati di legnetti di combustibile poiché inquinano l'ambiente e accendifuoco.
depositano nell'apparecchio e nella canna fumaria residui di combustione che potrebbero provocare incendi di camino:
- Inserire un cubetto accendifuoco tra i legnetti del primo strato e accenderlo secondo le istruzioni sulla relativa confezione.
Legno trattato, come legno verniciato, impregnato, multistrato, compensato e di demolizione.
Materia plastica, carta e rifiuti domestici.
Legna
- Usare preferibilmente legna dura di latifogli come la quercia, il faggio, la betulla e alberi da frutto. Questi tipi di legna bruciano lentamente a fiamma moderata. La legna di conifere contiene più resina, si consuma velocemente e produce scintille.
- Usare legname essiccato con un tasso di umidità inferiore al 20% . che è stato immagazzinato per almeno 2 anni.
- Tagliare la legna nella misura adatta e spaccarla quando è ancora verde. La legna verde si lascia spaccare più facilemente; inoltre, una volta spaccata, si secca rapidamente. Stoccare la legna sulla tettoia esposta al vento.
Non usare legna umida. La legna umida non produce calore perché l'energia viene utilizzata per l'evaporazione dell'umidità, un processo che produceanche molto fumo e fuliggine sulla porta e nella canna fumaria. Il vapore acqueo si condensa nell'apprecchio e potrebbe non solo sgocciolare dalle giunture della stufa creando macchie nere sI pavimento, maanche condensarsi nella canna fumaria formando creosoto. Creosoto è una sostanza lavorente infiammabile e la causa principale di incendi di camino.
Accensione
È possibile controllare il tiraggio della canna fumaria3. accendendo una palla di carta da giornale sopra il deflettore. Quando la canna fumaria è fredda, spesso il tiraggio è insufficiente e il fumo potrebbe propagarsi nella stanza. Accendendo la stufa secondo la procedura sottostante, quello problema non si presentera:

- Chiudere la porta della stufa e après completely la presa d'aria nella porta.
- Far avviare bene il fuoco iniziale fino a quando non si sarediventato un letto di brace ardente.
er Successivamente si può caricare altri combustibile e regolare il funzionamento della stufa; si veda il paragrafo "Funzionamento a legna".
Funzionamento a legna
Dopo aver seguito le istruzioni per l'accensione:
- Apire lentamente la porta della stufa.
- Distribuire il fatto di brace in modo uniforme sulla piastra di combustione.
- Accatasare alcuni ceppi di legna sul letto di brace.
Accatatamento disunito

In caso di accastamento disunito, la legna si consumes più rapidamente a causa della buona ossigenazione. Adottare quello sistema quando la stufa deve rinanere accesa per molto tempo.
Accatasamento compatto

In caso di accastamento compatto, la legna si consumes più lentamente perché l'ossigeno arrivava soltanto ai ceppi esterni. Adottare quello sulla quando la stufa deve rinanere accesa per lungo tempo.
- Chiudere la porta della stufa.
- Chiudere la presa dell'aria primaria e lasciare aperta quella dell'aria secondaria.
Ricaricare la stufa per al massimo un terzo della capacité.
Regolazione dell'aria di combustione
L'apparecchio è dotato di diversi dispositivi per la regolazione dell'aria; si veda la figura seguente.

L'aria primaria regola l'apporto d'aria nella piastra di combustione (1).
L'aria secondaria regola l'apporto d'aria per il vetro (sistema di pulizia airwash) (2).
L'aria secondaria ha delle aperture sopra la piastra di combustione (3) che assicurano la postcombustione.
L'apparecchio è dotato di una sola regolazione per l'aria, che regola sia l'aria primaria sia l'aria secondaria. Se la posizione della regolazione dell'aria è completamente a destra, circola sia l'aria primaria sia l'aria secondaria. Nella misura in cui la presa d'aria viene spinta verso sinistra si chiude l'aria primaria, quandoanche l'aria secondaria. Quando la presa d'aria è completamente chiusa rimane una piccola apertura per assicurare la postcombustione; si veda la figura seguente.

Stato Descrizione
Aria primaria aperta (fase di accensione)
Aria secondaria aperta (postcombustione)
Pulizia del vetro aperta
Aria secondaria aperta (postcombustione) Pulizia del vetro aperta
Aria secondaria minima aperta (postcombustione)
Consigli

Non tenere aperta la porta della stufa quando esta è accesa.

Di tanto in tanto la stufa delve funzionare a regime massimo.
In caso di prolongato funzionamento a basso regime, si possono formare depositi di catrame e creosoto. Catrame e creosoto sono sostanze altamente infiammabili. Un effecssivo deposito di queste sostanze cui causare l'incendio della canna fumaria quando la temperatura dei fumi sale effecssivamente in poco tempo. Un saltuario funzionamento a regime massimo fa si che gli eventuali depositi di catrame e creosoto vengano eliminati.
Inoltre, il funzionamento a basso regime cui provocare il deposito di catrame sul vetro e sulla porta della stufa.
Quindi, nella mezza stagione è preferibile far funzionare la stufa a regime alto per un paio ore e non continuamente a regime basso.
Regolare l'apporto d'aria mediante la presa d'aria.

La presa dell'aria non alimenta soltanto il fuocoma createancheventilazione sul vetro prevenendo cosi il deposito di sporco.
- Apire temporaneamente la presa dell'aria primaria quando l'apporto d'aria secondaria è insufficiente o la fiamma è troppo Bassa.
E meglio aggungere regolarmente piccole quantita di legna e non caricare troppo la stufa.
Estringuere il fuoco
Non aggiuungere altri combustibile e aspettare che la stufa si spenga. Quando la fiamma viene smorzata riducendo l'apporto di aria, si liberano delle sostanze tossiche. Pertanto, è preferibile che il fuoco si spenga lentamente. Aspettare che il fuoco sia completamente spento e chiudere tutte le prese dell'aria di combustione.
Rimozione dellacene
La combustione di legna produce quantità limitate di cenere. Il letto di cenerere costituisce un buon isolante e facilita la combustione. Si consiglia pertanto di mantenere sempre uno strato sottile di cenerere sul fondo.
L'apporto di ariaattraverso la piastra di combustione nonva tuttavia ostacolato.Pertanto laceneve essere eliminata periodicamente.
- Apriere la porta della stufa.
- Rimuovere lacene inccesso con una paletta o impiegare un apposto aspiratore percene.

Utilizzato sempre un aspiratore per genere: l'uso di un normale aspirapolvere sprovvisto dello speciale adattatore cui arrecare gravi danni all'aspiratore.
3. Chiudere la porta della stufa.
Foschia e nebbia
Foschia e nebbia possono ostacolare l'evacuatione dei fumi di combustione attraverso la canna fumaria. L'eventuale ritorno dei fumi provoca cattivi odori.
Quindi, in caso di foschia e nebbia, è meglio non.
D'accendere l'apparechio.
Eventuali problemi
Consultare l'allegato "Schema diagnostico" per risolverve eventuali problemi relativi al funzionamento dell'apparecchio.
Manutenzione
Seguire le istruzioni per la manutenzione per mantenere a livelli ottimali l'efficienza dell'apparecchio.
Canna fumaria
In molti Paesi vige l'obbligo di manutenzione e controlo della canna fumaria.
All'inizio della stagione invernale: far pulire la canna fumaria da un technician specializzato.
- Durante la stagione invernale e dopo un lungo periodo di inutilizzato: far controllare che nella can fumaria non sia presente fuliggine.
Terminata la stagione invernale: chiudere la canna fumaria con carta di giornale appallottolata. 1
Pulizia e manutenzione periodica

Non pulire la stufa quando è ancorta calda.
▶ Pulire la superficie esterna dell'apparecchio con un panno asciuttoswana pilucchi.
La pulizia della parte interna dell'apparecchio può essere effettuata alla fine della stagione invernale:
Rimuovere eventually le piastre refrattarie. Si veda il capitolo "Installazione" per la rimozione e riposizonzamento delle piastre interne.
Pulire eventually le prese dell'aria.
Sfilare eventuallymente il tagliafiamma alla parte superiore dell'apparecchio e pulirlo.
Controllo delle piastre refrattarie interne
Le piastre interne ignifughe sono parti consumabili soggette a usura. Le piastre interne in vermiculite sono vulnerabili. Non urtare le piastre interne con
ceppi di legna. Controllare a intervalli regolari lo stato delle piastre interne e sostituirle se necessario.
Si veda il capitolo "Installazione" per la rimozione e il riposizionamento delle piastre interne.
E possibile che con il tempo le piastre interne isolanti in vermiculite o chamotte presentino delle fessure capillari che, comunique, non pregiudicano la loro funzionalità.
i Le piastre interne in ghisa durano di più quando lacene accumulatasi dietro le piastre viene rimossa a intervalli regolari. La presenza di cenere dietro la piastra in ghisa ostacola la cessione del calore, provocando così la deformazione o la rottura della piastra stessa.

Non usare la stufa alla le piastre refrattarie.
Pulizia del vetro
Un vetro pulito attira meno sporco.Seguire la seguente procedura:
1. Rimuovere la polvere e la fuliggine con un panno asciutto.
2. Pulire il vetro con un detergente vetri per stufe. a. Applicare il detergente per vetri su una spugnetta, passare il prodotto su tutte la superficie del vetro e lasciar riposare per un po'.
un b. Rimuovere lo sporco con un panno umido o con carta da cucina.
3. Pulire il vetro un'altra volta con un normale detergente per vetri.
- Asciugare il vetro con un panno asciutto o con la carta da cucina.
Per la pulizia del vetro non usare prodotti abrasivi o aggressivi.
Usare guanti di plastica per proteggere le mani.

Qualora il vetro dello sportello sia rotto o crepato, non usare l'apparecchio fino a quando il vetro non sare sostituito.

Assicurarsi che il detergente per vetri non sgoccioli fra il vetro e lo sportello in ghisa.
Ingrassaggio
Nonostante la ghisa abbia proprieta autolubrificanti, le parti mobili devono essere ingrassate di tanto in tanto.
Ingrassare le parti mobili (i sistemi di guida, le cerniere, la chiusura dello sportello e le presede dell'aria) con grasso per alte temperature disponibile in ferramenta.
Riparazione del rivestimento
È possibile rimediare a piccole imperfezioni della vernice per mezzo di una bombola spray di vernice resistente ad alte temperature, disponibile presso il fornitore di fiducia.
Controllo guarnizione
- Controllare che la guarnizione della porta garantisce una Buona tenuta. La guarnizione si consuma e delve essere sostituita a intervalli regolari.
Controllare che non vi siano spifferi d'aria e chiudere le eventuali fessure con masticce per alte temperature.
Il mastiche deve indurirsi prima della prossima accensione per evitare che l'umidita presente nel mastiche formi bolle d'aria, creando nuove fissure.
Allegato 1: Dati tecnici
| Modello ZEN | |
| Potenza nominale 4,75 kW | |
| Collegamento canna fumaria (diametro) 150 mm | |
| Peso 100 - 115 kg | |
| Combustibile consigliato Legna | |
| Caratteristica combustibile, lunghezza max. 30 cm | |
| Portata massima dei fumi di combustione 5,1 g/s | |
| Temperatura dei fumi rilevata nella sezione di misura 198 °C | |
| Temperatura rilevata all'uscita dell'apparecchio 247 °C | |
| Tiraggio minimo | 12 Pa |
| Emissione di CO (13%2)O | 0,09 % |
| Emissione di NOx (13%2) | 111 mg/Nm3 |
| Emissione di CnHm (13%2) | 238 mg/Nm3 |
| Emissione di polveri | 293 mg/Nm3 |
| Emissione di polveri secondo NS3058-NS3059 | 4,76 g/kg |
| Rendimento | 80,1 % |
Allegato 2: Dimensioni
ZEN 100



09-20020-311
A Prólunga opzionale
ZEN 102



09-20020-312
A Prölunga opzionale
Allegato 3: Distanza da materiali inflammabili
ZEN 100 - Distanze minime in millimetri






09-20020-301
| Materialia infiammabile | |
| Materiale non infiammabile, spessore 100 mm |
ZEN 102 - Distanze minime in millimetri

| Materialia infiammabile | |
| Materiale non infiammabile, spessore 100 mm |
Dimensioni della piastra salvapavamenti in centimetri

Dimensioni minime della piastra salvapavimenti
$$ \begin{array}{l} V > H + 3 0 > 6 0 \ S > H + 2 0 > 4 0 \ \end{array} $$
Allegato 4: Schema diagnostico
| Problema | |||||
| ● | La legna non brucia bene | ||||
| ● | Scalda peu | ||||
| ● | Ritorno del fumo durante il caricamento | ||||
| ● | L'apparecchio funziona a regime troppo elevato, non regolabile | ||||
| Il vetro si sporca | |||||
| possibile causa possibile | rimedio | ||||
| ● | ● | ● | Tiraggio insufficiente | Quando la canna fumaria è fredda, talvolta iltiraggio non è sufficiente.Seguire le istruzioni per l'accensione nel capitolo "Uso";apurre una finestra. | |
| ● | ● | ● | La legna è troppo bagnata Usare legna | con un tasso di umidità inferiore al 20%. | |
| ● | ● | ● | Ceppi troppo grossi | Usare legnetti accendifuoco. Usare ceppi spaccati, con una circonferenza massima di 30 cm. | |
| ● | ● | ● | ● | Legna non accastata correttamente. | Accastare la legna di modo che l'apporto di aria fra i ceppi sia sufficiente (accastamento incrociato, si veda "Accendere con legna"). |
| ● | ● | ● | Insufficiente tiraggio della canna fumaria | Controllare che la canna fumaria soddisfi i requisiti: altozza minima 4 metri, diametro giusto, isolata bene, parete interna liscia, poche curve, libera da ostruzioni (nidi d'uccello, cumulidi fuliggine), tenuta stagna (senza fissure). | |
| ● | ● | ● | Posizione non idonea della canna fumaria | L'altezza giusta rispetto al colmo delolio, nessun ostacolo nelle vicinanze. | |
| ● | ● | ● | ● | Regolazione scorretta delle prese d'aria | Aprire completamente le prese dell'aria. |
| ● | ● | ● | Collegamento scorretto dell'apparecchio alla canna fumaria | Il collegamento delve essere a tenuta stagna. | |
| ● | ● | ● | Depressione nel locale dove si trov a'apparecchio | Spagnere tutti i sistemi di aspirazione e ventilazione. | |
| ● | ● | ● | Apporto d'aria insufficiente | Provvedere a un buon apporto di aria, eventualmente per mezzo di una presa d'aria esterna. | |
| ● | ● | ● | Condizioni meteorologiche sfavorevoli? Inversione (flusso d'aria inverso nella canna fumaria a causa elevate temperature esterne), vento forte | In caso di inversionione, è meglio non usare l'apparecchio.Eventualmente installare un antivento sul comignolo. | |
| ● | Corrente d'aria nel locale | Evitare corrente d'aria nel locale; non installare l'apparecchio nelle vicinanze di una porta o di canali d'airazione. | |||
| Le fiamme vengono in contatto con il vetro | Assicurarsi che la legna non sua troppo vicina al vetro. Chiudere ulteriormente la presa dell'aria primaria. | ||||
| ● | Esce aria dall'apparecchio Controllare | la guarnizione della porta e le giunture dell'apparecchio. | |||
Indice
A
Accatasamento dei ceppi di legna.15
Accendere .14
Aerazione regola .7
Aerazione del fuoco 16
Alle intemperie, non accendere l'appareccchio 16
Altezza di caricamento della stufa.15...
Apertura sportello chiavistello 9 quanto 9
Avvertenza condizioni assicurative.6.
detergente vetri per stufe 17. incendi di camino.. 14
Aventamento aerazione.7.
disposizioni 6
incendio della canna fumaria. 6
materiali inflammabili 6
Avviso incendio della canna fumaria 16
C
Camera di convenzione
norme 11
piatra di copertura. 11
Canna fumaria altezza 7
collegamento a 11
diametro di collegamento 1
manutenzione 17
requisiti 7
Cappello canna fumaria 7
Cappello sulla canna fumaria. 7
Caricamento del combustible 16
ritorno del fumo 24
Catrame 16
Chamotte refrattaria 10
Collegamenti a presa d'aria esterna. 10
collegamento alla presa d'aria esterna. 10
Collegare dimensioni 20
Combustibile adatto 13
aggiungere. 15-16
inadatto 14
legna 14
quantità 17
Combustible adatto 13
Combustible inadatto 14
Componenti amovibili 9
Componenti, amovibili 9
Creosoto 16
D
Danni 9
Detergente vetri per stufe 17
Dimensioni 20
E
Emissione di polveri. 19
Essiccazione della legna 14
F
Fessure nell'apparecchio 18
Foschia, non accendere l'apparecchio. 16
Fumi di combustione temperature 5, 19
Fumo al primo utilizzato. 13
Fumo di combustione portata massima. 19
Funzionamento 14
a regime troppo elevato. 24
aggiungere combustibile 16
calore insufficiente. 17
poco calore. 24
regolazione insoddisfacente. 24
riempire di combustibile 14
Fuoco accensione 14 estinguere 16
Fuoco iniziale 14
Fuoriuscita di fuoco. 16
G
Grasso per ingrassaggio.18
Griglia di entrata dell'aria
collocazione 12
requisiti 12
Griglia di ventilazione.7
Guarnizione dello sportello..18.
1
Immagazzinamento della legna.14.
Ingrassaggio 18
Installare dimensioni 20
L
Legna 14.
essiccazione 14.
non brucia bene 24.
stoccare.
tipi adatti.
umida
Legna di conifere 14
Legna umida. 14
Legnetti ascendifuoco 24
M
Magnetete 13
Manutenzione
canna fumaria 17
guarnizione 18
ingrassaggio 18
piastre interne ignifughe 17
pulizia del vetro 17
pulizia dell'apparecchio 17
Mascherina di finitura 13
Materiale inflammabile distanza da 22
Misure antincendio distanza da materiale inflammabile 22
Muri sicurezza antincendio 8
N
Nebbia, non accendere l'apparecchio 16
P
Pareti sicurezza antincendio. 8
Pavimenti portata di carico 8 sicurezza antincendio 8
Peso 19
Piastra di combustione 10 rimuovere 10
Piastra di copertura camera di convezione 11
Piastre interne
chamotte 10
vermiculite 9
Piastre interne ignifughe manutenzione 17
Piastre interne, ignifughe
Piastre interne
rimuovere 9
Piastre refrattarie interne
avvertimento 13
Portata di carico del pavimento 8
Potenza nominale 17, 19
Presa d'aria esterna 10
Presa d'aria esterna 7
collegamento a 11
Prevenire l'incendio della canna fumaria.... 16
Pulizia
apparecchio 17
vetro 17
Pulizia della canna fumaria. 17
R
Regolare l'apporto d'aria. 16
Regolazione dell'aria di combustione 15
Regolazione dell'aria. 15
Rendimento 5, 19
Rimozione della cenere 16
Rimuovere
cenere 16
piatra di combustione 10
piastre interne 9
Rimuovere la cenere 16
Risoluzione problemi. 17, 24
Ritorno del fumo.24
Ritorno di fumo 6.
Rivestimento, manutenzione.18
s
Sicurezza antincendio
mobili 8
pareti 8.
pavimento 8
Spifferi d'aria.18
Sportello
guarnizione .18.
T
Tappeto .8.
Temperatura 19
Tiraggio 19
V
Ventilazione 7
collegare la presa d'aria esterna. 10
Vermiculite
ignifuga 9
Vernice 13
Vetri
pulizia 17
sporco 24
Vetro
pulizia 17
sporco 24
Innhold
Innledning 3
Ytelseserklaerig .4
Sikkerhet 6
Monteringsvilkar 6
ManualeFacile