Boston - Fűtés Wamsler - Ingyenes használati útmutató
Találja meg az eszköz kézikönyvét ingyenesen Boston Wamsler PDF formátumban.
Gyakran ismételt kérdések - Boston Wamsler
Töltse le az útmutatót a következőhöz Fűtés PDF formátumban ingyenesen! Találja meg kézikönyvét Boston - Wamsler és vegye vissza elektronikus eszközét a kezébe. Ezen az oldalon közzé van téve az eszköze használatához szükséges összes dokumentum. Boston márka Wamsler.
HASZNÁLATI ÚTMUTATÓ Boston Wamsler
BEJELENTETTSZERVEZET(RegisztraciOs szam:1420)

Vizagalat vgezenekeideje:
23.05-07.06.2011
Fachdirektorin:
Szakigzgato:


Produktspezialist:
Temsefteles:

A muszaki dokumentaciot archivaltuk
B019K
Eliras az Ausztrai normal szenint (15a B-VG) (13% O2-ve vonahtoztata)
| Emissionen Emissionszio | Grenzwert Határéréták | Gemeist / Mérétérk | Erfüllt megfeiI | Brennstoffe Fūtōanyag | |
| Nennwärmeleistung Névleges teljesitmény | Schwachlast Kis teljesitmény | ||||
| CO-Gehalt | ≤1100 mg/MJ | 686/486 | 1086/394 | jal igen | Scheitholz (oben)/ Braunkohlebrikettis (unter) |
| CO-tartalom | |||||
| NOx-Gehalt | ≤150 | 54/66 | jal igen | ||
| NOx-tartalom | ≤100 | ||||
| mg/MJ | |||||
| CnHm-Gehalt | ≤50 | 33/44 | 48/63 | jal igen | Hasábfa (feiU)/ Barnaszén brikett (sul) |
| CnHm-tartalom | ≤80 | ||||
| mg/MJ | |||||
| Staubgehalt | ≤60/35* | 24/21 | jal igen | ||
| Portartalom | ≤50/35* | ||||
| mg/MJ | |||||
| Wirkungsgrad | ≥80 % | 82,2/79,4 | 80,7/79,7 | jal igen | |
| Hatásfok | ≥78 % | ||||
| Leistung | kW | 5,2/5,3 | 2,4/2,6 | jal igen | |
| Telésirmény | |||||
*geplant ab 2015; érvényes 2015-tol
Jovsbeni eliris Nernetszegban a 2 lepcso szerint (ervnyes 2015-td)
| CO-Gehalt | ≤1250 mg/Nm3 | 13% | 1069 / 825 | jal/igen | Scheilholz (oben)/Braunkohlebriketts (unter)Hasabfa (felül) /Barnaszön brikett (aful) |
| CO-tartafom | |||||
| Staubgehalt | ≤40 mg/Nm3 | 37/35 | jal/igen | ||
| Portartafom | |||||
| Wirkungsgrad | ≥73 % | 82,2 /79,4 | jal/igen | ||
| Hatásfok |
Foreword
Dear Customer!
Köszönjuk megtisztelő bizalmát, hovy a mi kandallónkat valasztotta! Helyesendeşött.
Ezen termek megvasarlasaval On garanciat kap:
a legjobb es már bevált anyagok felhasznalásával a jó minósegre
- a mūködési biztonságra, amelyet a német és európai(normák szerint Ellenőriznek (Megfelel az EN 13240 szabványnak.)
- a robosztus felépítés általBiztosított hosszú élettartamra.
Azért, hogy valóban hosszú ideigörémét leje az uy kandallojában,át kell tanulmányoznia a kovetkező hasznalati utmutató. Ebben megtalál minden tudnivalót, valamintnéhány kiegészítő tippet.
FIGYELEM! A típustáblán felTÜntetét cikkszámot és gyártási számot a pótalkatrész rendelésnél meg kell adni!
Tartalomjegyzék
Eloszo 86
Tartalomjegyzek. 86
BIZTONSAGIELOIRASOK 87
1. Hasznalat 89
1.1 A kandallo felépitése 89
1.2 Üzembe helyezés 89
1.3 Üzemen kivül-helyezés 92
1.4 Futesi utmutatasok 92
1.5 Tisztítás es gondoźás 93
1.6 Üzemzavar-okok,elhárításuk 95
2. Elhelyezes 96
2.1 Eloirasok 96
2.2 Elhelyezesi helsseg 96
2.3 Tavolsagok 96
2.4 Kéménycsatlakozás 97
2.5 Külso levego bevezetese 99
3.Muszaki adatok. 100
3.1 Mérétrajzok 100
3.2 Muszaki jellemzok 103
3.3 EK Konformitás nyilatkozat. 103
BIZTONSÁGI ELOÍRÁSOK
HU
- A keszülékek a EN 13240 vagy a EN 12815 norma alapján bevizsgálársa kerültek (keszülék típusát meghatározó tabla).
- A beallitashoz es a kéménycsatlakoztatashoz az adott ország tuzvédemi rendelkezeseit kell betartani. A keszülék tokeletes muködéséhz a kéménynek, amelyre a keszüléket akarja csatlakoztatni, tokeletes allapotban kell lennie.
- Az elso üzembe helyezés és a kéménycsatlakoztatas elott a hasznalati utmutató alaposan át kell olvasni, és az illetékes kémenyseprot tajékoztatni kell.
- Ajanlatos a keszülek beallitásakor tiszta pamutkesztyu használni, hogy a késöbb nehezen eltüntethető ujjlenyomatokat elkerüljuk.
- A levego tisztan tartasa és a keszülék érdekében a használati utmutatóban megadott maximálisuzzielőanyag-mennyiséget nem szabad tullépní és a keszülék ajtajait zárva kell tartani, kulönben fennáll a tulfútes veszelye, amely a keszülék károsodásához gezethet. Az ilyen típusú károk esétén nem vallalunk garanciát.
- A keszülék ajtajainak muködes kozben mindig zárva kell lenniuk.
-
Engedélyezett tuzelóanyagok:
-
természetes faanyag (max. 25 cm hosszúságban)
- esetlegesen barnaszén-brikett (Id. használati utasítás)
- Ne hasznaljon folyekony gyujoanyagot. A tuz meggyujtasahoz specialis gyuitoanyagot yagy szaraz gyuitost lehet hasznalni.
- Hulladek, szentörmelek, forgácslapmaradékok, nedves és favedő szerrel kezelt fa, papir és karton yagy hasonlók égetese tilos.
- Az elso begyuktasnal fust es kellemetlen szagok képzódhetnek. Feltétlenul gondoskodjon a helyiség megfelelo szellözséröl (ablakok és ajtok nyitasa), és legalább egy orán at a maximálisnevleges fütoertéken futsön. Amennyiben az elso fute snel nem eri el a maximális homersekletet, uyg ezek a jelensegek késöbb is fellephetnek.
- A kezelési elementek és a beallitó egységeket a hasznalati utmutatóban leirtaknak megfeleloen kell beallitani. Amennyiben a keszülék felforrosodott, a kezeléshez hasznalja a segédeszközoket vagy védökesztýüt.
-
A fūtōajtō nyitāsakor, vagy elegtelen kéményhuzat esetén füst keletkezhet. Feltétlenül ügyeljen arra, hogy a tūzelōajtôt csak lassan szabad kinyitni, elǒször csak résnyire, majd néhány másodperc mulva teljesen. Ezen kívül, ha további tūzelōanyagot akar a tūzre tenni, az ajtó kinyitāsa elöttt már csak a parázságy lehet az égéstérben, azaz nem szabad, hogy lángok, legyen lathatok.
-
Fútó üzemmodban a felületek, a betekintó ablakok és a fogók nagyon felforrósdhatnak. Figyelmeztesse a gyermekeket ezekre a veszélyekre és a fütés idejérè tartsa őket távol a kandallótl.
- Ügyeljen rá, hogy a hamuláda mindig utközésig be legyen tola, és különösen ügyeljen arra, hogy a forró hamut soha ne vegye ki (túzveszély).
- Az atmeneti időszakban a kéményhuzat csökkenhet, melynek következtében a termelődő gazok elszívása nem tokeletes. Ilyenkor a kandalló egy kisebb tüzelési mennyiséggel, lehetőleg faforgáccsal vagy száraz gyújtóssal kell megtölteni, Ellenőrzés mellett beüzemelni, és ezzel a kéményhuzatot stabilizálni. A rostély legyen mindig tiszta.
- Minden fūtési szezon után érdemes a berendezést szakemberrel átnézetni. Szintén ajánlatos alaposan kitisztítani a távozo füstgázok utjat és a csöveket is.
- Ha javitásokat vagy felújításokat kell végezni, kérjuk idöben forduljon szakszervizhez, a pontos cikkszám és gyártási szám megadásával. Csakeredeti Wamsler alkatrészeket szabad használni.
- A szilard tuzelésú keszülék, amely az égéshez szükséges levegőt, az azt korülvevő helyiségból vonja el. Ez abban az esetbenbiztosított, ha 1kW névleges fûtoértekre 4 legköbmétérfogat esik. Amennyiben ez a terfogat kisebb, úgy szellózonyilások segitségével az égéshez levegő-osszeköttetés teremthető más helyiségekkel (min. 150cm^2 ).
- Ügyeljen az éghető alkatrészektól és anyagoktól való oldal- és hatso irányú távolságok betartására. Ezeket, a távolságokat megtalálja a kezelési utmutatóban vagy a típustáblán.
- A keszüléket tilos átalakítani.
- Tilos olyan kéményre csatlakoztatni, melynek hatomagassága 5 méternél alacsonyabb. A keszülék csatlakoztatására kivalasztottk kéményre legfeljebb két masik keszülék csatlakozható.
- Kéménytúz esétén azonnal zárjon be minded nyílást a berendezésen, és értesítse a túzoltókat. Semmikiépp ne probálkozzon a túz eloltásával. Ezután feltétlenül Ellenőriztesse a kéményt szakemberrel.
1. Használat
1.1 A kandallo felépítése

1.2 Üzembe helyezés
A kandallo üzemmodjai (begyuktas /uzemen kivul helyezés) illetve a tuzelóanyag kivalasztasa (szen /fa), az „A” és „B” jelu szabályzókarok kihúzásával vagy betolásával allithatok be.



Figyelem!
Ø120mm-es füstcsö bekotés eseten a 120/150 füstcsö adaptert el kell távolítani a készülékröl! A füstcsonk帽子ó kivezetésre szerelésekor szerelje le a füstcsonket, a hatlapon talalhato zárólapot, és a kandallótestrol a帽子ó füst kivezetés zárólemezét. A füstcsonket szerelje fel a帽子ó helyzetbe, a zárólemezt pedig a füstcsonk helyère a kandallótest felso részérè.
Ha kémény csatlakozása150 mm-es, a mellekelt füstcső adaptert szerelje fel füstcsonkra, és rögzítse a használati utmutató tasakjában található csavarral.
Tüzelöanyagok:
A keszülék az alábbiakban felsorolt tuzelőanyagokkal használható. Csak ez általbiztositható a „füstşegény" és zavarmentedes üzemeltétés. Csak száraz fáthasználjon max. 20% nedvességxtartalommal.
| TÜzelőanyag-fajták | Fütoórték kb. KJ/kg |
| Keményfa 19.500 | |
| Puhafa 14.600 | |
| Barnaszén - brikett | 11.500 |
1.tablazat
Toltési mennyiségek:
Hasábfa: max. hossz.: 25 cm, max.: 2 hasab toltésenként kb. 1,2 kg. Barnaszén - brikett max: 1,4 kg (2db)
| Tüzelőanyag | Tüzelőanyag ványasztó „A“ állása | Primerlevegő szabályzó „B“ állása | |
| Felfűtés, begyújtás | KI | KI | |
| Fa | Névleges hőtelj. | KI | BE |
| Barna-szén | Névleges hőtelj. | BE | KI |
| Üzemen kívül helyezés | BE | BE | |
2. tablázat
TILOS környezetszennyező anyagok elégetése a készülékben! A begyújtáshoz vékony száraz gyújtóst,faorgácsot vagy grillbegyújtókell felhasználni, de semmi esetben sem szabad folyékony segédanyagot!
ELSO BEGYUJTÁS
Figyelem! Az elso begyuktasnál füst és kellemetlen szagok képzödhetnek. Feltétlenül gondoskodjon a helyiség megfelelo szellözséról (ablakok és ajtok nyitasa), és legalabb egy orán at a maximálisnevleges futoteljesitményen futsön. Amennyiben az elso futsnel nem éri el a maximális homérsékletet, uyg ezek a jelensegek késöbb is fellephetnek meg.
-
Az ajtó a fogantú emelésével nyissa ki (2. kép). Amennyiben a készülék forró, használjon hoalló kesztyút.
-
Allitsa be a primerlevego szabalyozot es tuzel'oanyag valasztó (3. kép) a 2. tablázat alapján
-
Helyezzen gyújtost vagy faforgácsot a rostélyra. Erre elóször kisebb, majd nagyobb fát tegyen, gyújtsa meg és zárja vissza az ajtó. Ha a fa élenken ég és kielegítő parázs képzödtö, tegyen rá újból tuzelőanyagot. Ezután aprimerlevego szabályozó (3. kép) és tuzelőanyag valaszto 2. tablázatnak megfeleloén be kell állitani
-
Begyújtásnál teljesen normalis, de szellöztétés szükséges.
1.3 Üzemen kívül-helyezés
- A parazsat elhamvasztani és a kályhát lehülni hagyni.
- A tüzteret és a hamuladat kiüriteni!
- Ajtókat bezární,primerlevegó szabályozó tésTÜzelőanyag valasztóta 2. tablázatnak megfeleloen beállitani.
- Hideg allapotban, az üvegre rakódott kormot és szennyeződés vizes szivaccsal lehet eltávolítani, majd szárazra törölni.
1.4 Fūtési utmutatások
A kandallóc sak zárt túztérajtóval szabad üzemeltetni.
A zart tuzteru kandalloknek onzaródo tuzterajtójuk van. Ezt csak a begyuktashoz, a tapalashoz, vagy a tuzter tiszitatasakor szabad kinyitni, (egyébkent esetleges huzatproblema lép fel a tobbi kéménybe csatlakoztatott keszülékeknél).
Figyelem!
Az ajtó nyitásakor helytelen kezelés vagy elegtelen kéményhuzat eseten füst keletkezhet. Feltétlenül ügyeljen arra, hogy az ajtó csak lassan szabad kinyitni, először csak résnyire, majdnéhány masodperc mulva teljesen. Ezen kivül, ha további tuzeloanyagot akar a tuzre tenni, az ajtó kinyitása elött marCsak a parázságy lehet a tuzterben, azaz nem szabad, hogy langok legyenek lathatok benne.
A szekunder levego gondoskodik a fustgazban talalhato éghetö összetevok utolagos elegetéséról. Ez a környezetet kimelö, fust es koromszegény égést jalenti. Amennyiben a kandalloját az atmeneti idōben üzembe helyezné, akkor ellenorizze elózetesen a kéményhuzatot, mivel ez magas kūlso hòmér sékletnél nagyon csekély lehet. E celból tartson egy égo gyufát a kissé nyitott tüzelóajtóban. Ha a langot nem egyertelmüen szívja befelé, akkor a kéményhuzat nem megfelelo. Ennek kiküszöbel séhez a kandalloban, vagy a kémény tiszítányilásában rovid ideig faorgácsot kell meggyújtani. A rostélyt minded begyújtás elott ki kell tiszítani, hogy jo levegoáramlástBiztositsunk az égeshez. A hamuladát rendszeresen uriteni kell (4. kép). Üglyeljenarra, hogy a hamulá mindig utközésig be legyen tola.
Figyelem! A levego tisztasaga és a kandallo erdekében ne lépje tul a megadott maximálisuzzieloanyag-mennyiségeket, kulönben fennáll a tulhevülés veszelye, amely a keszülék károsodásahoz gezethet. Az ilyentípus árok esétén nem vallalunk garanciát. A kandalloknal csak egyrétegúuzzieloanyag-bekészítés megengedett. Alacsonyabb hoteljesitményt csak auzzieloanyag mennyiségénék csökkentésével, és ne az elódleges levego csökkentésével probáljon elerni.
1.5 Tisztítás és gondozás
A fūtési idōszak bafejezhével ajánlatos egy alapos kandallo és fūstcso - tiszítías. Ha alábbhagy a hóteljesítmény, vagy a készülék üzemeltetešekor füstöl az szinte mindig a füstáratok elszennyezódésenek következménye. A tiszításhoz a terelólapot (7. kép) elore kell húzni és felemelve kivenni. Ezáltal a füstutak belürlöl, vagy ha a füstcsövet eltávolitjuk, akkor felürol kitisztíthatók. A terelólapot a tiszítías után ismét teljesen hátra kell tolni! (7. kép).
A rostély hideg állapotban kivehétó, tiszṭithato.
Figyelem!
Minden fūtési periodus után alaposan ḅt ke lllenörizni a kandallót. Amennyiben javītas vagy felújītas szükséges, forduljon idōben a szakservízhez, megadva készüleke cikk és gyartási számát (lásd a típustáblán).
Ugyeljenarra, hogy semmilyen parazsló, izzó hamumaradvány ne kerüljön a szemétgyüjtőbe.
A kulso felületek tisztlatasaCsak hideg kalyhanel ajanlatos. A felületeket hideg vizzel kell tisztlani, vagy kulönleges esetakben szappannal, vagy mosogatoszerrel és azután szarazra kell torolni.
A hoalló - üveget az elso hasznalat elott tiszíttsa meg nedves, tiszta kendóvel. Kenjen szét ezután néhány cseppet egy üvegkerámia-tiszítószerból egy konyhai papirral az üveg mindkét oldalan.
A leoblítés és szárazra törles utan a hoáló üveg felületén a láthatatlan filmréteg segít az üveg tiszántartásaban, és rendszeresen megismételve- megkönnyiti a tisz tíst.
Figyelem!
Semmilyen esetben sem szabad surolószereket, agresszív, vagy karcoló tiszítószereket hasznánlí!

2.kép

3.kép

4.kép

5.kép

6.kép

7.kép
1.6 Üzemzavar-okok,elhárításuk:
| Üzemzavar fajtája | Lehetőséges okai: Elhárítás: | |
| Szagképszódés: | A felhasznált védőfesték kikeményedese Olajmaradékok kigőzölgése | A kandalló t használat utasítás szerint több orán át kis fokozaton üzemeltetni. Ezek után több orára maximál teljesitményre felfüteni. |
| Túl kevés hő leadásifustképszódés: | Túl kis készülékteljesítményt választottuk | Szakemberrel vizsgáltassuk meg az Öl hósszükségletét. |
| Túl csekény a kéményhuzat | A kémény huzatnak min.10 Pa-nak kell lennie. Ellenőrizable a kéményének a tömitettségét, és hogy más, ehvez a kéményhez csatlakozó tűzhelyek ajtajai tömitetten (jól) záródnak. Mindenek elött ügyeljen a tömitetlen kéménytiszító becsatlakozásokra. | |
| Túl hosszú és tömitetten füstcső. | Az összes füstcsőkötesnek jól tömitettnek és túzallónak-szigeteltnek kell lennie. | |
| Üvegkormozódás | Tömtét Lenség az ajtóüvegnél | Tömtétst ellenőrizni, az ajtól jól bezárnii. Esetlegesen a tömitó zsinórt kicserélni. |
| Túl nedves fá használata | Csak jól kiszárított fát alkalmazzunk. | |
Teendok kéménytuz esétén
A kémény nem megfelelo tiszítása esétén, nem megfelelo tuzelóanyag (pl. tul nedves fa) vagy nem megfelelo égési levego-beállitas esétén kéménytuz keletkezhet. Ebben az esetben zárja el a készüléknél a égési levegőt és azonnal hívja a tuzoltókat.
A viz használata az oltáshoz tilos !
2. Elhelyezés
2.1 Eloirasok
Az elhelyezésnel és a füstcsöoldali becsatlakoztatásnál az egyes vonatkozó építési rendelkezesek tuzvédelmi kovetelmenyevt kell figyembe venni.
Az On kandalojanak kifogastalan mukodese erdekuben a kemenynek, amibe a keszulékét akarja becsatlakoztatni, kifogastalan allapotban kell lennie.
2.2 Elhelyezési helség
Mivel a kandallo az égeshez szükséges levegöt az elhelyezési helységból veszi, ezert gondoskodni kell álandóan elég levegǒutánpótlársól. Biztosítani kell, hogy 4m^3 légtérfogat jusson minded kW névleges teljesitményre. Erre a kandallóra ez azt jelenti, hogy az elhelyezési helységnek min. 20m^3 -nek kell lennie. Amennyiben a méret csekélyebb lenne, uyg mas helységek, összenyītasával kell letrehozni a szellőzonyílasokat (ÖsszeköTÜ nyílasok min. mérete 150 cm²).
2.3 Távolságok
Minden éghető berendezést, bʊtort, vagy pl. dekoranyagokat is a kandallo közvetlen környezétében a hǒhatástól védeni, kell.
Berendezési tárgyak a sugárzási tartományiban
A kandallo sugárzási tartományaban 80cm min. Távolságot kell betartani, az éghető berendezések, butorok, vagy pl. dekoranyagok és a kandallo elölapja közott.
ABiztonsagi tavolsag 50 cm-re csokkenhet,ha egy sugarzásvedo kerul a védendó tárgy elé. (B) (lásd a 8. kép).
Berendezési tárgyak a sugárzási tartományon kivül
A keszülék mögotti és melletti falak nem keszülhetnek éghető anyagokból, vagy nem lehetnek ilyen anyagokkal (bevona) burkolva, hacsa keszülék és a fal közöttti távolság nincs oldalt 30 cm és hatul 20 cm.
A fa- és műanyag-bútorok esétén hasonloan 30 cm oldaltávolságot kell betartani, (lásd a 9. kép).

8.kép

9.kép
A kandallo alatti padlozat
Az éghetó anyagokból keszült padlót, mint pl. szonyeg, parketta, vagy parafa, a kandallo alatt, valamint a tuzter elott 50 cm-re és oldalt 30 cm-re egy nem éghetó anyagból keszült burkolóval kell védeni, mint pl.: kerámia-, ko-, üveg-padlo, vagy fém.
2.4 Kéménycsatlakozás
Figyelem!
A keszülék csatlakoztatása elött minded esetben az illetékes kéménysepro-mester hozzajárulását kell kéri.
Az összekö- és bekötesi elemeknek mind a készülékhez, mind pedig egymáshoz jól tömítve és tartosan kell csatlakozniuk. A füstcső nem nyúlhat be a kémény szabad keresztmetszetébe. A kémény és a kandallo közöttti összekötelemnek ugyanolyan keresztmetszetünek kell lennie, mint a kandallo csócsonkja. Azok a csövek, amelyek nem hóvedettek, vagy nem fuggolegesen gezetnek, 1 m-tól ne legyenek hosszabbak.
Azoknak a vizszintes csócsatlakozó elementeknek, amelyek 0,5 m-nél hosszabbak,10 fokos emelkedéssel kell csatlakozniuk a kandallohoz. A kandallo beköelemeinek az éghető anyagoktól min. 40 cm-es távolságot kell betartani. Ha az összekö'tő elementek egy min.
2 cm vastagságú, nem éghető burkolattal vannak ellátva, akkor azoknak az éghető anyagoktól való távolság min. 10 cm lehet.
Az összekötoelemeket, amennyiben éghetó anyagokból keszült berendezéken gezetnek keresztül
- min. 20 cm-es távolságban nem éghető anyagból készült, védócsovel kell ellatni, vagy
- min. 20 cm-es körzetben nem éghető anyaggal kell burkolni.
Kisebb távolságok akkor engedélyezhetök, ha a kandallo névleges teljesítmenyen való üzemeléskor, az éghető anyagokból készült berendezeseken a hòmér séklet nem tobb mint 85^ .
Figyelem!
Az olyan kéménycsatlakozás nem megengedhető, ahol a kémény toldások hossza 5 m-tól kevesebb (lásd a kéményszámítások adadatait a 96. oldalon).
A kandallo csatlakozásához tervbe vett kéményhez maximum 2 további készülék kothető be.


2.5 Külso levego bevezetese
Ennel a keszüléknél az égeslevego hozávezetése kivülrol is lehetséges. Ez megkönnyiti a passzív és alacsony energiafelhasznalású lakóházakban az Ellenőrzött lakóter-szellózs melletti felallitást. A csatlakozás 100 mm. Átméröjü csoelemmel történhet. Az égeslevego hozávezétest a kályha közelében elzáró csappantyúval kell ellatni. Természetesen a helyiség levegojével történő fûtes is lehetséges. Lásd ehez a 2.2 pontot.

| Kandallo típus | „A“ |
| 111 50 BOSTON 266mm | |
| 111 51 CHICAGO 266mm | |
| 111 53 MANHATTAN 266mm |
3. Muszaki adatok
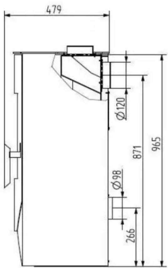
3.1 Méretrajzok

111 50 BOSTON


111 51 CHICAGO




111 53 MANHATTAN


3.2 Muszaki jellemzok
| Típus | 111 50 / 51 / 53 |
| Névleges teljesítmény 5 kW | |
| 18893/TAB 2 | |
| DIN szabvány szerinti fūtǒképesség m³ | |
| -kedvező | 88 |
| -kevésbé kedvező | 53 |
| -kedvezőtlen fūtési feltételeknél | 34 |
| Fūtǒanyag: | Bükkfa/ BB7 |
| -füstgázáramlás: | 5,6 / 5,4 g/s |
| -füstgázhömér séklet: | 234 / 320 °C |
| -a névleges teljesítményhez szükséges huzatnyomás: | 12 Pa |
| Portartalom (13% O₂): | < 40mg/m³ |
| CO (13% O₂): | 1069 / 825mg/m³ |
| Hatásfok: | 82,2 / 79,4 % |
A feltüntetett méretadatok tajékoztató jellegüek!
Cegunk a konstrukcio módosításanak jogat fenntartja, amennyiben ezek a muszaki szírvonalat emelik, vagy a minóseget javítják.
3.3 EK Konformitás nyilatkozat

Notice-Facile