ZIHS30Z - Distribuidor Zipper - Manual de uso y guía de instrucciones gratis
Encuentra gratis el manual del aparato ZIHS30Z Zipper en formato PDF.
Descarga las instrucciones para tu Distribuidor en formato PDF gratis! Encuentra tus instrucciones ZIHS30Z - Zipper y toma tu dispositivo electrónico nuevamente en la mano. En esta página están publicados todos los documentos necesarios para el uso de su dispositivo. ZIHS30Z de la marca Zipper.
MANUAL DE USUARIO ZIHS30Z Zipper
ES MANUAL DE INSTRUCCIONES
FR MANUEL D'UTILISATION
HOLZSPALTER
LOG SPLITTERS
ASTILLADORA DE TRONCOS
FENDEUR DE BOIS

ZI-HS16E
EAN: 9120039233697

ZI-HS30EZ
EAN: 9120039233710


ZI-HS22EZ
EAN: 9120039233703
ZI-HS30Z
EAN: 9120039233727
21.1 Instrucciones de seguridad 48
21.2 Riesgos residuales 49
22 MONTAJE 50
22.2.1 Montaje del eje PTO 56
22.2.2 Desacoplar el eje del PTO 57
23 TRANSPORTE 57
23.1 ZI-HS16E 57
23.2 ZI-HS22EZ y ZI-HS30(E)Z 58
24.1.1 Lubricacion de la cuna astilladora 59
24.1.2 Purga del problema hidráulico 59
24.1.3 Comprobar el sentido de giro del motor - solo para los modelos ZI-HS16E, ZI-HS22EZ, ZI-HS30EZ 60
24.2.1 Palanca de división 60
24.2.2 Proceso de división 61
24.2.3 Retirar la madera atascada 62
25 MANTENIMIENTO 62
25.1 Plan de mantenimiento 62
25.2 Cambio del aceite hidráulico 62
25.3 Afilar la cuña astilladora 63
25.4 Lubricación de engranajes: sólo para los modelos ZI-HS22EZ y ZI-HS30(E)Z ... 63
26 ELIMINACION 64
27 SOLUCIOn DE PROBLEMAS 64
28 AVANT-PROPOS (FR) 65
29 SECURITE 66
ES SENALES DE SEGURIDAD DEFINICION DE SIMBOLOS
FR SYMBOLES DE SECURITE SIGNIFICATION DES SYMBOLES

ES CONFORME CE - Este produito cumple con las Directivas CE.
iLEA EL MANUAL! Lea el manual de uso y mantenimiento cuidadosamente familiarícese con los 控les con el fin de utiliser la láquina correctamente, para evaporar lesiones y defectos de la láquina.
ES Mantenga su lugar de trabajo ordinado! El desorden peuvent causar accidentes.
ES Este prohibido retirar o Manipular los dispositivos de proteccion o seguidad.
ES iElimine el aceite usorespetando el medio ambiente!
ES iProhibido fumar y el fuego abierto!
ES iPeligro! Mantenerse alejado de las partes moviles!
FR Danger! Se ternir éloigner des pieces mobiles!















ES iNo retire los troncos atascados con sus manos!
ES iPeligro de objetos lanzados!
FR Attention! Expulsion de pieces!
ES Siempre desconecte laquina de la red eléctrica antes derialquier mantenimiento, reparación, chequeo o de limpieza!
ES iEvitar lesiones con la cuna astilladora en movimiento!
REQUISITOS ELECTRICOS
Con el motor trifásico de 400 voltios / 50 Hz, la astilladora de troncos debe conectarse a una red electrica estandar de 400V± 10% / 50Hz± 1% Hz. El suministro electrico debe estar equipado con dispositivos de proteccion contra subtension, sobretension, sobrecorriente y con un disposito de corriente residual con una corriente residual nominal maxima de 0,03 A.
El cable de la fuente de alimentacion y el cable de extension deben ser de 5 hilos = 3P + N + PE (3 / N / PE). La connexion a la red electrica debe estar protegida con un maximo de 16 A. Los cables de connexion electrica de goma deben estar complir con la norma EN60245 y estar marcados con el symbolo "H 07 RN". El marcado de los cables es obligatorio por ley.
EXIGENCES ÉLECTRIQUES
Este manual contiene informacion y consejos para el uso correcto y seguro, y el mantenimiento de las astilladoras de troncos ZI-HS16E / ZI-HS22EZ / ZI-HS30EZ / ZI-HS30Z.
Despues la denominacion commercial usual del equipo en este manual se sustituye por el termino "maquina" (ver portada).
El manual forma parte de laquina y no podra ser guardado por分开ido. Guardelo para futuras consultas. iCuando laquina seenta a otheras personas, adjunte siempre el manua a laquina!
iPor favor, siga las instrucciones de seguridad!
iLea el manual atentamente antes de usar laquina!

Aténgase a las instrucciones de seguridad. Hacer caso omiso de estas instrucciones能把 resultar en lesiones graves.
Debido al desarrollo continuo de nuestros productos, las ilustraciones, las imagenes peuvent variar ligeramente. Si enquiryra algo n error, por favor, haganoslo saber.
iSujeto a Modifications sociales!
Copyright
© 2018
Este documento está protegado por la ley internacional de derechos de autor. Todos los derechos reservados. Especiallyla reimpresion, asi como la traduccion y la representacion de imagenes sera perseguida por la ley.
La jurisddiccion es del Tribunal Regional de Linz o del tribunal para 4707 Schlusslberg.
Atencion al cliente
iUtilice laquina solo en un estado专业技术e perfecto y de acuerdo con su uso previsto, consciente de la seguridad y de los peligros! iElimine inmediamente los fallos que能把 perjudicar la sécurité!
Laquina está destinada exclusivamente para las siguientes本次活动:
Para la división de troncos en la direccion de la veta, con dimensiones que se encontrartran bajo el limites asignados en la sección de "Datos技术和s".
El proceso de división con laquina está Diseñado para ser operado por una sola persona.
Por un uso diferente o adicional y como resultado daños materiales o lesiones, ZIPPER-MASCHINEN no se hará responsable y no aceptará ninguna garantía.
Condieones ambientales:
Laquina puede functionar en las conditiones siguientes:
Humedad: max. 50%
Temperatura: +5^ C a +40^ C
Altitud sobre el nivel del mar hasta 1000 m
Cualquier uso indefinido o desconocimiento de la informacion y las instrucciones proportionadas en este manual invalidará todas las reclamaciones de garantía y por daños, contra Zipper GmbH.
Uso prohibido:
- Usar laquina sin un adecuado estado fisico y mental.
- Uso de laquina sin conocimiento de las instrucciones de funciona.
- Cambios en el Diseño de laquina.
- Uso de laquina en conditiones explosivas.
- Usar laquina fuera del rango de potenciapecified.
- Retirar las marcas de seguridad adheridas a laquina.
Alterar, eludir o anular los dispositivos de seguridad de laquina.
21.1 Instrucciones de seguridad
iLas señales o pegatinas de advertencia si sufren desgaste o se quitan han de ser inmediamente renovadas!
iLas leyes y regulaciones locales aplicablesuenespecificar laidad minima del operador y limitar el uso de estaquina!
Para evaporar el mal funciona, los defectos de laquina y las lesiones, lea las siguientes instrucciones de seguridad:
- No dividla maderasi está humeda.
- iSól dividir la madera en posición vertical en la direccion de la veta!
No dividla madera que contiene objectos extraños, como clavos, cables, etc. - Use laquina solo en sitios bien ventilados o al aire libre.
- Nunca use laquina al aire libre cuando este lloviendo.
- Elija una superficie plana, sin vibraciones y antideslizante como lugar de instalacion.
- Asegurar conditiones de luz adequadas en el lugar de trabajo.
- Mantenga el area de trabajo libre de obstáculos (como piezas de madera, residuos de madera, etc.).
- Antes de cada uso, verifique el estado de laquina (ajuste apretado de los tubos y tornillos, funciona bajo).
- Nunca deje laquina en funciona bajo desatendida.
- Laquina solo puede ser operada, Maintaina o reparada por personas familiarizadas con ella y que Sean conscientes de los peligos que pueda surgir en el camino de este trabajo.
- Nicht anders, als die konservativität des Staaten führte.
-
Aussure es posibie que various operadores peuvent travaçar en laística (por exemple, para cargar y descargar), solo una persona debe hacer el proceso de división.
-
Como operador de laquina, asegúrese de que las personas no autorizadas mantengan una distancia segura de la unidad y, en particular, mantengan a los niños alejados de laquina.
- Use ropa de trabajo adecuada (proteccion para los ojos, guantes de trabajo, zapatos de seguidad y ropa de proteccion ajustada, nunca use ropa suehta, corbatas, joyas, etc.). iPeligro de atraparse!
- Mantenga sus manos alejadas de las grietas que se abran en el tronco.
- No toque la zona de la brecha.
- iNo trabajo en laquina en caso de cansancio, falta de concentracion o bajo la influencia de medicamentos, alcohol o drogas!
- Mantenga la unidad alejada de posibles fuentes de ignacion, como luces piloto y / o llamas abiertas (peligro de incendio y explosión).
- No fume cerca de laquina.
- Asegürese de que el interruptor de encendido / apagado está en la posición "apagado" antes de encender laquina.
- Asegürese de que el dispositivo está conectado a tierra si es Needed.
- Utilice únicamente cables de extension adequados.
- Desconecte sempre el dispositivo de la fuente de alimentación o de la unidad antes de realizar trabajo de limpieza, mantenimiento o reparación, y asegúrelo contra reinicios involuntarios.
- Sólo utilise herramientos impecables.
21.2 Riesgos residuales
Aun裱pliendosalasnormasde seguridade instruccionedesuso,hayqueconsiderarlossiguientesriesgosresidualesque seidentificandela siguiente maneraeneste manual:

PELIGRO
Esta informacion de seguridad indica una situacion de peligro inminente que, si no se evita, causar la muerte o lesiones graves.

ADVERTE NC IA
Esta información de seguridad indica una situación potencialmente peligrosa que, si no se evita,ouldacause la muerte o lesiones graves.

ATENCI ON
Esta informacion de seguidad indica una situacion potencialmente peligrosa que, si no se evita,uede provocar lesiones leves o moderadas.

NOTA
Dicho之意 de segurar indica una situacion potencialmente peligrosa que, si no se evita,uede causar daños a la propidad.
Estos riesgos peuvent ser minimizados si todas las normas de seguridad se aplican, laquina cuenta con los servicios y el mantenimiento adecuado y el equipo es operado por personal capacitado. A pesar de todas las normas de sécurité, su sentido común y su correspondiente aptitud / capacitación技术水平 para el uso de unaquina es y sigue siendo el factor decurity más importante. iEl trabajo seguro depende de usted!
22 MONTAJE

22.1 ZI-HS16E
A. Fijación del eje de la rueda: fije el eje de la rueda a la astilladora con pernos en U y contratuercas.

B. Montaje de las ruedas: Coloque una arandela en el eje, bajo una rueda seguida de另一边 arandela y asegúrela con un pasador de chaveta. Repita el procedimiento en el(otherlado.

C. Levante el cilindro: Sostenga el soporte contra la cuña y bajo también mangos de control para levantar el cilindro (1). Inserte los pernos en L para asegurar el cilindro a la astilladora de troncos (2,3). Bloquee los pernos en L en las lengüetas de resorte (4).

Extracción del soporte: suele los mangos de control para retraer la cúa. Retire el soporte.

D. Asegurar el brazo protector: Alinee el orificio y el pasador de bloqueo del brazo protector con soporte. Asegure el brazo de proteccion con un tornillo hexagonal M10x40, dos arandelas y una tuerca de la Bolsa de piezas pequeñas provista.

E. Montaje del gancho de seguidad: Coloque el gancho de seguidad en el marco y asegúrelo con dos pernos y tuercas hexagonales M10x35.

F. Montaje del elevador de troncos: coloque el elevador de troncos bajo del soporte de montaje y alinee los orificios del soporte de montaje. Asegúrelo con un perno hexagonal M16 x 100 y una tuerca. Enganche laceda de elevación a la guía de deslizamente de cuña.
A. Montaje de los pasadores de conexión: Asegure los pasadores de conexión a la abrazadora.

B. Colocacion de la cubierta del PTO: Fije la cubierta del PTO con dos tuercas M10 al divisor.

NOTA
El motor no arranca si la cubierta de la TDF no está montada (interruptor de seguridad).

C. Levante el cilindro: Sostenga el soporte contra la cuña y bajo también mangos de control para levantar el cilindro (1). Inserte los pernos en L para asegurar el cilindro a la astilladora de troncos (2,3). Bloqueel los pernos en L en las lengüetas de resorte (4).

Extracción del soporte: suele los mangos de control para retraer la cuna. Retire el soporte.

D. Asegurar el brazo protector: Alinee el orificio y el pasador de bloqueo del brazo protector con soporte. Asegure el brazo de proteccion con un tornillo hexagonal M10x40, dos arandelas y una tuerca de la Bolsa de piezas pequeñas provista.

E. Montaje del gancho de seguridad: Coloque el gancho de sécurité en el marco y asegúrelo con dos pernos y tuercas hexagonales M10x35.

F. Montaje del elevador de troncos: colque el elevador de troncos bajo del soporte de montaje y alinee los orificios del soporte de montaje. Asegúrelo con un perno hexagonal M16 x 100 y una tuerca. Enganche laceda de elevación a la guía de deslizamente de cuña.

G. Montaje de la rueda de soporte: monte la rueda de soporte con el pasador de bloqueo y el perno de pivote.

H. Para trabajo, inserte el pasador de bloqueo en el orificio superior. (Para el transporte, inserte el pasador de bloqueo en el orificio inferior).
22.2.1 Montaje del eje PTO
La astilladora de troncos se pueda hacer por medio de un eje cardán que transmite el par desde el tractor durante el funcionaatorio normal. (Atencion: iEl eje de la PTO no está incluido en la entrega de la astilladora de troncos!). El extremo de la toma de fuerza de la caja de Cambios tiene un diametro de 34,8 mm (1 3/8") y una conexión hexagonal (PTO de categoria estándar 1).

NOTA
El eje del PTO es una possible fuente de peligro. Lea atentamente el manual queiene con el eje del PTO y preste especial atencion a las instrucciones de seguidad.

- Retroceda la parte trasera del tractor hacía la astilladora. Coloque los brazos de tiro inferiores lo suficientemente cerca de los pasadores de conexión de la astilladora. Aplique el freno de mano del tractor apaguee el motor.
- Asegure el tractor sobre cuñas (uthers设计理念) a cada lado de las ruedas traseras.
- Retire la funda de plástico con cierre automatico de la astilladora y fjela a la proteccion del PTO.
- Deslice los brazos de tiro inferiores sobre los pasadores de conexión de la astilladora y asegúrelos con los pasadores de bloqueo.

- Coloque el brazo de tiro superior bajo del soporte de montaje y alinee con los orificios del soporte de montaje. Inserte el pasador de enganche para asegurar el brazo de tiro superior en su lugar.
- Deslice el eje de transmisión del PTO sobre los extremos del eje del PTO en la caja de engranajes y el tractor, Respectivamente.
- Presione hacía adentro los pasadores de resorte que se encontrartran en ambos extremos del eje de transmisión del PTO.
- Continuideslizando el eje de transmisión sobre los extremos del eje del PTO hasta que los pasadores de resorte salgan y se bloqueen en los retenes en los extremos del eje del PTO.
- Fije las cadenas de seguridad del eje del PTO a las partes estacionarias de la astilladora y del tractor para evaporar que gire el protector.

Atencion: Mantenga el extremo del eje del PTO en astilladora (1) y el extremo del eje del PTO en el tractor (2) en paralelo desde la parte superior y el lado de los ejes. Mantenga el ángulo del eje de transmisión (a) lo más(PCPO.
22.2.2 Desacoplar el eje del PTO

NOTA
Hay un dispositivo de contacto del motor dentro del manguito autoblocante. Cuando se retira el manguito, el motor no可以选择 arrancar. Por lo tanto, laquina se funciona cuando está conectada solo al motor o solo al PTO.
Para desacoplar el eje del PTO, haha lo siguientes:
- Antes de apagar el PTO, reduzca el acelerador a ralenti, aplicque el freno de mano y detenga el motor.
- Retire los pasadores de seguridad de los enlaces inferiores y deslícelos de los pasadores de connexion de la astilladora de madera.
- Retire el pasador de acoplimiento del acoplimiento superior y extragalido del soporte.
- Suelte laceda de segudad y los pasadores de resorte de ambos extremos del eje del PTO.Desconecte el eje PTO de los extremos del eje del PTO.
- Montar la funda protectora autoblocante.
23 TRANSPORTE
23.1 ZI-HS16E
Para poder el transporte, la astilladora tiene dos ruedas, una rueda de soporte y un mango de transporte.
ADVERTENC IA


- Cuando utilise una grúa para levantar, fije el gancho de la grúa solo al punto de elevación deseado (a); vea la ilustración a la izquierda.
- iNuncaswithguelgeelgancho de la grua en el asa de transporte (b)!
- Antes de mover la astilladora, asegúrese de que la tapa del tanque de aceite está bien cerrada.
- Para mover, sujete la astilladora por el asa (b) e inclinelo con cuidado hacía extras.

A. Colocar la rueda de soporte a la posicacion d transporte: Para montar la rueda de soporte, retire el perno de resorte y empuje el tubo cuadrado con la rueda de soporte en el soporte (1). Luego seleccione el orificio apropiado y fije el tubo cuadrado en la posicion deseada usingo el perno de resorte (2).

B. Despliegue del asa de transporte: El asa de transporte normalmente se fija en una posicion vertical. Para transporte la astilladora, el asa d transporte debe estar desplegada como se muestra en la ilustracion de la izquierda. Para desplegar, suele el pasador (1),despliegue el asa de transporte (2) y fijela en la posicion desplegada utilizingo el pasador (3).
23.2 ZI-HS22EZ y ZI-HS30(E)Z
El acoplamente de 3+puntos al tractor hace que la astilladora sea fácil de mover. Antes del transporte, asegúrese de que la astilladora esté correctamente conectada al tractor y que las cadenas de seguidad estén en su lugar. Asegúrese de que la astilladora esté elevada lo suficiente para evacar obstáculos durante el transporte. iNunca transporte la astilladora cuando el eje del PTO está encendido! En situaciones de conducccion, por exemple, al girar, estacionar o pagar cruces,onga en cuenta el excesso de longitud causado por la astilladora enganchada.
ADVERTENCIA

- Cuando utilise una grúa para levantar, fije el gancho de la grúa solo al punto de elevación desedo (a); vea la ilustración a la izquierda.
- iNuncaswitheguelgancho de la grua en el asa de transporte (b)!
- Antes de mover la astilladora, asegúrese de que la tapa del tanque de aceite está bien cerrada.
- Para mover, sujete la astilladora por el asa (b) e inclínelo con cuidado hacía extras.!.

A. Colocacion de la rueda de transporte: saque el pasador de bloqueo, bajo la rueda de apoyo a posicion de transporte.

B. iInserte el pasador de bloqueo en el orificio inferior y fijelo con el pasador!
24 FUNCIONAMIENTO
24.1 Preparación
24.1.1 Lubricación de la cuna astilladora
Aplique una capa delgada de grasa a la cuna astilladora de la astilladora de troncos antes de comenzar a trabajo. Esto prolonga la vida uyil de la herramienta.
24.1.2 Purga del sistemas hidráulico
NO TA

iNo olvde aflojar la tapa del deposito de aceite! De lo contrario, el aire en el systemase comprimir y liberar a una y othery, lo que destruira las juntas del circuitohidráulico y hara que la astilladora de troncos quede inutilizable.

Purgue el sistema hidráulico antes de起初 la astilladora de troncos.
Para hacer este, afloje la tapa del tanque de aceite hidráulicounascuantas vueltas hasta que el aire能把 entrada ysalir suavamente.
El flujo de aire a工程技术 del tanque de aceite debe se visible durante la operacion.
iPara evaporar que el aceite se escape, deben cerrar bien la tapa del tanque de aceite antes de cada transporte!
24.1.3 Comprobar el sentido de giro del motor - solo para los modelos ZI-HS16E, ZI-HS22EZ, ZI-HS30EZ
NOTA

Inversor de fase
Nunca haga的功能行的 motor en la direccion equivocada. Esto dajará la bomba y anulará la garantía.

Compruebe la direccion de rotacion del motor. (inversor de fase bajo del enchufe, vea laImagen a la izquierda)
24.2 Funcionamento
24.2.1 Palanca de división
La fuerza de división y la velocidad de división son controladas por la palanca de división. La operación se realiza simplement subiendo o bajo la palanca.

Para Obtener la maxima potencia de división a una velocidad más baja, como la-Requerida al comienzo de la operation de división, o para dividir truncos especialmente durros y depositados, empujé la palanca de división hasta la mitad.
Por otherwise, empujé la palance de división Completely para augmentar la velocidad de división cuando que al mesmo tiempo reduce la fuerza de división, por exemple, para finalizar la división o para dividir los troncos convenciones.

24.2.2 Proceso de división

- Coloque el tronco verticalmente en la mesa de soporte, de modo que quede plano sobre s cara. Presione la palanca izquierda para bajo la garra de fijacion del tronco extendida contra el tronco para asegurarlo. La garra de fijacion del tronco extendido se possible ajustar para que se ajuste a los tronco con differsentes alturas.

- Sostenga la palanca de la izquierda. Mientras tanto, mueva la cuña divisora hacía abajo presionando la palanca de division derecha hasta la mitad de la carrera para dividir el tronco lentamente primero y luego presione hasta el final hasta que el tronco está Completely dividido.


- Retroceso de la cuna divisora a la posicion inicial: use la palance de control de retracción con resorte para levantar la cuna por encima de la alta del tronco que se va a dividir.
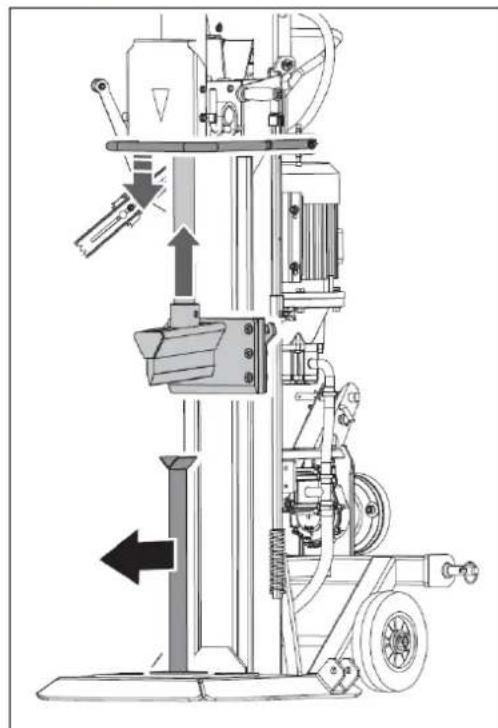
24.2.3 Retirar la madera atascada
No intente eliminar la madera atrapada con las manos descubiertas, ni usted, nioras personas. Si la madera está atascada, pare el motor. Luego, si es necessitiesario, con una carrera descendente (varias pulsaciones descendentes), afloje la pieza de madera con un martillo en el tronco.
25 MANTENIMIENTO

ADVERTE NCIA
Antes de realizarrialquier travafo de mantenimiento,asegurese de que las partes moviles estén estacionarias,que laquina este desconectada de la fuente de alimentacion o que el eje del PTO no este acoplado.
25.1 Plan de mantenimiento
| Actividad | Modelo | |||
| ZI-HS16E | ZI-HS16E | ZI-HS16E | ZI-HS16E | |
| Comprobar;nvelde aceite | Después de cadacambio de aceiteo cada 8 of* | Después de cadacambio de aceiteo cada 8 of* | Después de cadacambio de aceiteo cada 8 of* | Después de cadacambio de aceiteo cada 8 of* |
| Cambio de aceitehidráulico | 1 x año | 1 x año | 1 x año | 1 x año |
| Cambio de aceitede engranajes | tras 25 of,posteriormentecadaphissemosocada 250 of | tras 25 of,posteriormentecadaphissemosocada 250 of | tras 25 of,posteriormentecadaphissemosocada 250 of | |
*) of ... horas de funcionaarto
25.2 Cambio del aceite hidráulico
NOT A

Compruebe regularmente el nivel de aceite. Bombe el aceite hidráulico completamente al menos una vez al año. Deseche tiempo el aceite uso correctamente y inunca lo tire a la basura domestica o al agua residual!
El planta hidráulico de la astilladora de troncos es un planta cerrado con tanque de aceite, bomba de aceite y valvula de control. El aceite debe cambiarse Completely una vez al ano. Se recomienda los siguientes aceites para el planta hidráulico de la astilladora de troncos:
- Shell Tellus 22
Mobil DTE 11 - Aral Vitam GF 22 or
BP Energol HLP-HM 2

Si el nivel de aceite es demasiado bajo, la bomba de aceite pueda darnarse y el llenado excessivo pueda sobrecalentar el sistemas hidráulico. Por lo tanto, compruebe regularmente el nivel de aceite con la varilla de medicación. iVea laImagen a la izquierda!


Los aceites usados son toxicos y no deben ser liberados al medio ambiente. Si esnecessary,pongase encontacto con las autoridades locales para Obtener informacion sobre la eliminacion adecauda.
Cambio del aceite hidráulico:
- Retire el tapón de trenaje de aceite para drenar el aceite del sistemas hidráulico.
- Use una bandeja de recolección para recolectar aceite uso y partículas.
- Inspeccione el aceite en busca de virutas de metal. (Las virutas de metal en el aceite son una indication de un mayor desgaste).
- Después de drenar Completely el aceite de laquina, vuelva a instalar el tapón de drenaje.
- Rellene el aceite hidráulico nuevo recommendado a工程技术 del puerto de llenado de aceite.
- Después de combustir el aceite, opere la astilladora de troncos varias vezes sin dividirrealmente la madera.
- Contralar el nivel de aceite con una varilla.
25.3 Afilar la cuna astilladora
La astilladora de troncos está equipada con una cuña astilladora reforzada con filo especialmente tratado. Después de un长大o periodo de operación y, si esnecessary, afile la cuña con una lima Fiona para eliminar rebabas o mellas.
25.4 Lubricación de engranajes: sólo para los modelos ZI-HS22EZ y ZI-HS30(E)Z

La caja de engranajes se preajusta con aceite para engranajes SAE90.
- Drene el aceite para engranajes afterwards de las primeras 25 horas de uso y vuelva a llenarlo con aceite nuevo como se specifiesca.
- Luego cambie cada 250 horas de uso o cadaarethesmes, lo que ocurre primero.
- Después de cada cambio de aceite, verifique que se hayaVERTido lacantidad correcta de aceite en la caja de engranajes.
- Compruebe el nivel de aceite cada 8 horas: el nivel de aceite es correcto si el borde inferior del orificio de inspections está casi cubierto de aceite.
26 ELIMINACION
| Observe las normas nationales de eliminación de residuos. No desechec la这其中, los componentes o el equipo de la这其中 como basura normal. Si es必需ario, comuniqué con las autoridades locales para Obtener información sobre las options de eliminación disponibles. Cuando compra una这其中你需要 o equivalente a su distribuidor, en algunos países se requiere que desechec su这其中 vieja de manière adecuada. | |
| Los aceites usados son tóxicos y no deben ser liberados al medio ambiente. Si es必需ario, póngase en contacto con las autoridades locales para Obtener información sobre la eliminación adecuada. |
27 SOLUCION DE PROBLEMAS
| PROBLEMA | PROBABLE CAUSA | SOLUTION |
| El motor no arranca | El interruptor está apagado. El mango autoblocante está desconnectado (vea los capítulos 14.2.1 y 14.2.2) | Poner el interruptor en ON. Conecte el mango autoblocante. |
| Dirección incorrecta de rotación del motor | Conexión erronea | Invertir la polaridad (por un electricista). |
| Laquina no funcionaminternas el motor está en marcha. | Válvula no abierta debido a piezas de conexión flojas. Palanca de mando o piezas de conexión dobladas. Nivel de aceite hidráulico demasiado bajo. | Revisar yJKLM. Reparar partes dobladas. Revisar y rellenar con aceite. |
| Laquina funciona con vibraciones y ruidos anormales | Nivel de aceite hidráulico demasiado bajo. | Revisar y rellenar con aceite. |

iTodas las reparaciones de estaquina deben ser realizadas por un especialista para este producto!

28 AVANT-PROPOS (FR)
(ES) Con las piezas de recambio originales de ZIPPER utilizar piezas que están en sintonía con lasDEMás piezas, acortando el tiempo de instalación y alargando la vidautilde laquina.
IMP OR TAN T E
La instalación de piezas no originales hace nula la garantía. iUse sólo repuestos originales!
Envíe su pregunta sobre las piezas que necesite al revendedor donde compró laquina o al Atencion al Cliente de ZIPPER.
Cuando Solicite piezas de repuesto, utilise el formulario de servicios que se encontrar al final de este manual. Indique siempre el tipo dequina, el número de pieza de repuesto y el nombre. Para evaporar malentendidos, recomendamos hacer un pedido de piezas de repuesto con una copia del despiece en el que estén marcadas claramente las piezas de repuesto necessarias.
Puede encontrar la direccion de pedidos en el(prefacio de este manual de instrucciones.
La Empresa ZIPPER Maschinen ofrece un garantia para los componentes mecánicos y electricos de 2 años para uso de bricolaje y 1 año para uso industrial, a partir de la Fecha de compra por el usuario final. En caso de defectos durante este periodo, que no son excluidos por el párrafo 3, ZIPPER reparó o reemplazará laquina a su descripción.
2.) Informe:
Con el fin de comprobar la legitimidad de las reclamaciones de garantía, el usuario final debe ponarse en contacto con su distribuidor. El distribuidor tiene que informar por escrito el defecto ocurrido a ZIPPER. Si la reclamación de garantía es legitimá, ZIPPER recogerá laquina defectuosa al distribuidor. Enviños devueltos por los distribuidores que no han sido coordinadas con ZIPPER, no serán aceptados y serán rechazados.
3.) Condiciones:
a) Sólo se acceptorán reclamaciones de garantía si laquina vaacompañada de la copia de la factura original o el comprobante de caja del distribuidor de ZIPPER. El derecho de garantía expira si los accesos pertenecientes a laquina no está jusqu'ào con laquina para su recogida.
b) La garantía no incluye revisiones gratis, mantenimiento, inspeccion o problemas en laquina. Los defectos debidos a un uso Incorrecto del usuario final o su distribuidor tampoco seran aceptados como garantía. Algunos ejemplos: uso de carburante inadequado, daños por heladas en los tanques de agua,øjando el combustible en el tanque durante el invierno, etc.
c) Los defectos en piezas de desgaste son excluidos, por exemple, escobillas de carbón, bolas de aspirador, cuchillas, cilindros, hojas de corte, embragues, juntas, ruedas, hojas de sierra, cuñas de división, disco incisor, extensiones de la cuña de división, aceites hidráulicos, filtros de aceite / aire / combustible, cadenas, bujías, bloques de deslizamente, etc.
d) también está excluidos los días en laquina causados por un uso incorrecto o inadecuado, si laquina se ha utilisé cuando se omiso a las instrucciones de utilizesción, por fuerza mayor, las reparaciones o manipulaciones技术水平as talleres no autorizados o por el propio cliente, el uso de repuestos o accesorios no originales de ZIPPER.
e) Después de la revisión por nuestro personal calificado, por las reclamaciones de garantía no legítimas, los costos de laquia (como por exemple los gastos de transporte) y otros gastos, se le cobrarán al cliente final o al distribuidor.
f) Dispositivos fuera del periodo de garantía: la reparación se produce sólo afterwards del pago por adelantado o a la cuenta del distribuidor de acuerdo con la estimación de los costos (incluyendo los portes) de ZIPPER.
g) Las reclamaciones de garantía sólo peuvent concedese para los clients de un distribuidor autorizzato ZIPPER que compró laquina de manière directa a ZIPPER. Estas reclamaciones no son transferibles en caso demultipless ventas de laquina.
4.) Reclamaciones de indemnización y otheras obligaciones:
La responsabilidad de la Empresa ZIPPER se limita al valor de las mercancías en todos los casos. No se acaptará reclamaciones por días y perjuicios debido a los malos resultados, los defectos o días derivados o la perdida de ingresos debido a un defecto durante el periodo de garantía. LaEmpresa ZIPPER está en su derecho de mejorar posteriormente un dispositivo.
ManualFacil