DW60S3IBPSS - Dishwasher BERTAZZONI - Free user manual and instructions
Find the device manual for free DW60S3IBPSS BERTAZZONI in PDF.
User questions about DW60S3IBPSS BERTAZZONI
0 question about this device. Answer the ones you know or ask your own.
Ask a new question about this device
Download the instructions for your Dishwasher in PDF format for free! Find your manual DW60S3IBPSS - BERTAZZONI and take your electronic device back in hand. On this page are published all the documents necessary for the use of your device. DW60S3IBPSS by BERTAZZONI.
USER MANUAL DW60S3IBPSS BERTAZZONI
| EN | INSTALLATION MANUAL USER AND MAINTENANCE MANUAL DW60S3IBPSS | 3 |
| IT | MANUALE D'INSTALLAZIONE MANUALE D'USO E MANUTENZIONE DW60S3IBPSS | 61 |
| FR | MANUEL D'INSTALLATION MANUEL D'UTILISATION ET D'ENTRETIEN DW60S3IBPSS | 123 |
| NL | INSTALLATIEHANDLEIDING GEBRUKS- EN ONDERHOUDSHANDLEIDING DW60S3IBPSS | 187 |
| SV | INSTALLATIONSHANDBOK BRUKS- OCH UNDERHÄLLSHANDBOK DW60S3IBPSS | 247 |
| DA | INSTALLATIONSVEJLEDNING BRUGS- OG VEDLIGEHOLDESESVEJLEDNING DW60S3IBPSS | 305 |
FROM THE DESK OF OUR PRESIDENT
Dear new owner of a Bertazzoni appliance,
I want to thank you for choosing one of our beautiful products for your home.
My family started manufacturing kitchen appliances in Italy in 1882, building a reputation for quality of engineering and passion for good food.
Today, our products stand out because of their unique blend of authentic Italian design and superior appliance technology. It is our mission to make products that function perfectly and bring joy to their owners.
By making beautiful products we respond to our customers' flair for good design. By making them versatile and easy-to-use, cooking with Bertazzoni becomes a real pleasure.
This manual will help you learn to use and care for your Bertazzoni appliance in the safest and most effective way, so that it can give you the highest satisfaction for years to come.
Enjoy!
Paolo Bertazzoni
President
fes
USER MANUAL VALIDITY
The following manual is valid only for DW60S3IBPSS product code.
GENERAL INFORMATION 7
SAFETY INFORMATION 7
RECYCLING 9
CE DECLARATION OF CONFORMITY 9
DISPOSAL OF YOUR OLD MACHINE 9
INSTALLATION MANUAL 10
SPECIFICATIONS 10
GENERAL APPEARANCE 10
TECHNICAL SPECIFICATIONS 10
INSTALLATION 11
CUTOUT DIMENSIONS 11
CUSTOMDOOR PANEL (FOR PANEL-READY MODELS) 11
POSITIONING THE DISHWASHER 12
ELECTRICAL REQUIREMENTS 13
PLUMBING REQUIREMENTS 13
INSTALLATION 16
USER AND MAINTENANCE MANUAL 24
USE 24
GETTING STARTED 24
PLATE ARRANGEMENT 25
UPPER RACK 26
LOWER RACK 26
THIRD RACK (DEPENDING ON MODEL) 27
SILVERWARE BASKET (DEPENDING ON MODEL) 28
INCORRECT LOADS 28
WHAT SHOULD NOT BE WASHED IN YOUR DISHWASHER? 29
RACKS 30
CONTROL PANEL 37
OPERATION 38
DETERGENT & RINSE-AID DISPENSER 43
SALT DISPENSER (FOR MODELS WITH WATER SOFTENER) 49
CLEANING AND CARE 52
SPRAY ARMS 53
FILTER 53
DRAIN PUMP 54
TROUBLESHOOTING 55
AUTOMATIC FAULT WARNINGS 58
WARRANTY AND ASSISTANCE 59
WARRANTY AND SERVICE 59
These instructions are suitable for different types of appliances, so they may contain descriptions of functions which your appliance may not include or support.
The images and illustrations in this document refer to various models and may differ slightly from the product purchased.
The manufacturer does not accept any liability for personal injury or damage to property arising from incorrect installation or misuse of the appliance.
The manufacturer reserves the right to modify the various models as required to comply with the technical regulations in force.
In the event of complaints, please contact customer service. Read the instructions provided in this manual thoroughly before installing and/or using the appliance. This will help you get to know your new appliance. Keep this document at hand so that you can consult it at any moment, and pass it on to any subsequent owners.
Read the safety messages provided in the introduction to this manual and give due consideration to the safety notes, such as: "Attention", "Warning" and "Danger" which appear in the text.

DANGER
This symbol indicates a situation that is a danger to you and others. Read it carefully and make sure that you have perfectly understood the causes of potential dangerous or fatal accidents.

WARNING
This symbol indicates safety information. Read it carefully and make sure that you have perfectly understood the causes of potentially dangerous accidents.

CAUTION
This symbol indicates a procedure which could put the appliance's structure or components at risk. Take particular care over these procedures.

NOTE
This symbol highlights methods or procedures for correct use of the appliance.
The Model, Sales Code and Serial Number are printed on the nameplate. Refer to the Specifications section of this manual for nameplate location.

NOTE
You are advised to make a note of the appliance's data and serial numbers so they are immediately available if required.

NOTE
State the information provided on the nameplate to improve the efficiency of the after-sales and parts services. For warranty purposes, you will also need the date of installation and name of your authorized Bertazzoni dealer.
SAFETY INFORMATION

WARNING
When using your dishwasher, follow basic precautions. Read all instructions before using the dishwasher. Save these instructions and pass them on to any future user.
- Use the dishwasher only for its intended purpose.
This appliance is intended for residential use only. - Use only detergents recommended for use in a dishwasher and keep them out of the reach of children.
-
When loading items to be washed:
-
place sharp items so they are not likely to damage the door seal, and
-
load sharp knives with the handles up to reduce the risk of injury.
-
Do not wash plastic items unless they are marked "dishwasher safe" or equivalent. For unmarked plastic items, check the manufacturer's recommendations.
- Do not touch the heating element during or immediately after use.
- Do not tamper with the controls.
- Do not operate your dishwasher unless all enclosure panels are properly in place.
- Do not remove the dishes from the appliance until the wash cycle is complete.
- To avoid risk of injury, always use caution when opening the door during or following a wash cycle as hot water or steam may escape. D
- Check that the detergent dispenser is empty after the completion of each wash cycle.
- Some dishwasher detergents are strongly alkaline. They can be extremely dangerous if swallowed. Avoid contact with the skin and eyes and keep children away from the dishwasher when the door is open.
- Do not misuse, sit on, or stand on the door or dish rack of the dishwasher. The appliance could tip forward.
- The cup racks are designed to hold cups, glasses, and kitchen utensils. Do not lean on or use the cup racks support your body weight.
- To avoid a tripping hazard, do not leave the dishwasher door open.
- Do not allow children to play in or on a dishwasher (EN60335-1).
- When children become old enough to operate the appliance, it is your responsibility to ensure that they are properly instructed about the safety practices contained in this manual.
This appliance is not intended for use by persons (including children) with reduced physical, sensory or mental capabilities, or lack of experience and knowledge, unless they have been given supervision or instruction concerning use of the appliance by a person responsible for their safety (IEC60335-1).
This appliance must be grounded. In the event of a malfunction or breakdown, grounding will reduce the risk of electric shock by providing a path of least resistance for electric current. This appliance is equipped with a cord having an equipment grounding conductor and a grounding plug. The plug must be plugged into an appropriate outlet that is installed and grounded in accordance with all local codes and ordinances.

WARNING
Improper connection of the equipment-grounding conductor can result in a risk of electric shock. Check with a qualified electrician or service representative if you are in doubt whether the appliance is properly grounded. Do not modify the plug provided with the appliance if it does not fit the outlet. Have a proper outlet installed by a qualified electrician.

WARNING
Before any maintenance operation, turn off the appliance and disconnect the mains plug from the socket.
- Do not use high pressure water sprays and/or steam to clean the appliance.
- Ensure there are no visible water leaks during and after first use of the appliance.
To avoid floor damage and possible mold growth, do not use the allow wet areas to remain around or under the dishwasher.
To avoid dishwasher damage, do not allow water to remain in your dishwasher system through extended freezing periods.
Do not store or use flammable liquids or vapors inside, near, or on the appliance.
Under certain conditions, hydrogen gas may be produced in a hot water system that has not been used for two or more weeks. HYDROGEN GAS IS EXPLOSIVE. If the hot water system has not been used for two or more weeks, before using the dishwasher, turn on all hot water faucets and let the water flow from each e for several minutes. This releases any accumulated hydrogen gas. As the gas is flammable, do not smoke or use an open flame during this time.
Please check the water supply line periodically. It is susceptible to breakage. It becomes less flexible as time goes by. Replace it immediately when it is torn, cut, swollen, or there is water leakage.
Please unplug the appliance before cleaning and maintenance.
- When loading your dishwasher, locate sharp items so that they are not likely to damage the door seal.

WARNING
Knives and other utensils with sharp points must be loaded in the basket with their points facing down or placed in a horizontal position.
RECYCLING
Packaging materials protect your machine from damage that may occur during transportation. The packaging materials are environmentally friendly as they are recyclable. The use of recycled material reduces raw material consumption and therefore decreases waste production.
Some machine components and packaging consist of recyclable materials:
Plastics are marked with the international abbreviations: (>PE<, >PP<, etc.)
- The cardboard parts consist of recycled paper. They can be put into wastepaper containers for recycling.
Material unsuitable for domestic waste must be disposed of at recycling centres.
- Contact a relevant recycling centre to obtain information about disposal of different materials.
CE DECLARATION OF CONFORMITY
We declare that our products meet the applicable European Directives, Decisions and Regulations and the requirements listed in the standards referenced.
DISPOSAL OF YOUR OLD MACHINE

The symbol on the product or on its packaging indicates that this product may not be treated as household waste. Instead, it shall be taken to the applicable collection point for the recycling of electrical and electronic equipment. By ensuring this product is disposed of correctly, you will help prevent potential negative consequences for the environment and human health, which could otherwise be caused by inappropriate waste handling of this product. For more detailed information about recycling this product, please contact your local city office, your household waste disposal service or the shop where the product was purchased.

Fig. 1
GENERAL APPEARANCE
1) Upper basket
2) Upper spray arm
3) Lower basket
4) Lower spray arm
5) Third rack (depending on model)
6) Top nozzle (depending on model)
7) Silverware basket (depending on model)
8) Filters
9) Rating plate
10) Control panel
11) Detergent and rinse-aid dispenser
12) Salt dispenser
13) Upper basket track latch

NOTE
Image is purely representative, some models may vary slightly.
TECHNICAL SPECIFICATIONS
| Permissible water pressure | 0,04 - 1 MPa (0,4 - 10 bars) |
| Electrical connection | 220-240 V (volts), 10 A (amps), 50 Hz (hertz) |
| Total power | 1760 - 2100 (W) |
| Heater power | 1800 (W) |

NOTE
Because we continually strive to improve our products, we may change our specifications and design without prior notice. This device corresponds to the following directives:
EU ecodesign legislation.
CUTOUT DIMENSIONS
Cabinet depth shown includes kitchen cabinet front panel. For a flush installation, a minimum inset depth of 580 mm (22 13/16") is required with a custom door panel thickness of 20 mm (3/4").

TOP VIEW
SIDE VIEW
Fig. 4

C 820 mm - 870 mm (32 1/4" - 34 1/4")
CUSTOM DOOR PANEL (FOR PANEL-READY MODELS)
Fig. 2
The thickness of the custom panel may vary. A minimum 15mm (9 / 16^ ) thick panel is required, but the thickness can be increased provided the panel does not exceed 11kg (24 lbs). Minimum panel weight is 5kg (11 lbs). The custor door panel template provided accommodates panels with the dimensions specified below.
A 580 mm (22 13/16")
FRONT VIEW
Fig. 3

B 600 mm (23 5/8")
FRONT VIEW

Fig. 5
D 728 mm - 808 mm (28 11/16" - 31 13/16")
E 595 mm - 597 mm (23 7/16" - 23 1/2")
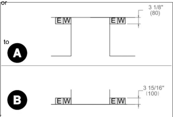
The height of a custom plith may vary depending on the If the dishwasher is placed next to a corner cabinet, height of the cutout opening and door panel, but must be additional space should be left so that the door can be within the following range:
0 mm - 80 mm (0" - 3 1/8")
If the dishwasher feet are raised, the plinth can be raised by an additional 50~mm (2^ )
A minimum space of 3mm (1 / 8^ ) is required between the plinth and the panel.
POSITIONING THE DISHWASHER
When positioning the machine, place it in an area where dishes can be easily loaded and unloaded. Do not put the machine in an area where the ambient temperature falls below 0^ .
Read all warnings located on the packaging before removing the packaging and positioning the machine.
Place the machine close to a water tap and drain. Take into a dishwasher.
consideration that the connections will not be altered once the machine is in position.
The dishwasher is equipped with water supply and drain hoses that can be positioned either to the right or the left. Minimum space of 50 mm.
Leave an adequate distance around the machine to allow ease of movement when cleaning.

CAUTION
Do not hold the machine by its door or panel.

CAUTION
Ensure the water inlet and outlet hoses are not squeezed or trapped and that the machine does not stand on the electrical cable while positioning.
Adjust the feet so the machine is level and balanced. The machine should be placed on flat ground otherwise it will be unstable and the door of the machine will not close properly.

CAUTION
Please install the decorative panel as indicated on the assembly sheet. Otherwise, the door may not open properly and steam leakage problem may occur.
If the dishwasher is placed at the corner of the cabinet, there should be some space when the door is opened.

Fig. 6
by
into a. Dishwasher.
b. Door of dishwasher.
c. Cabinet.
d. Minimum space of 50 mm.

NOTE
Depending on where your electrical outlet is, you may need to cut a hole in the opposite cabinet side.
ELECTRICAL REQUIREMENTS
Please check the electrical standards and local codes before installing the appliance.
Connect to a properly rated, protected, and sized power supply circuit to avoid electrical overload. The dishwasher is designed for an electrical supply of 220-240 V (volt), 50Hz (hertz), connected to a separate, properly-grounded electrical circuit servicing only this appliance, with a fuse or breakers rated for 10 amperes. Connect the product to a grounded outlet protected by a fuse. The earthed plug of the machine must be connected to an earthed outlet supplied by suitable voltage and current.
If the mains voltage supply to your machine is 110V connect a transformer of 110 / 220V and 3000W between the electrical connection.
Never connect the ground wire to gas lines, or hot water pipes, plumbing lines.
Do not use any extension cord or portable outlet device to connect the dishwasher to a power supply.
These requirements must be met to prevent injury and damage to the machine. Consult a qualified electrician if doubt.

Fig. 7
A TOP VIEW
B FRONT VIEW

A properly-grounded, horizontally-mounted electrical receptacle should be installed according to this drawing.
Connections placement must be located on either side of the cutout.

NOTE
The plug on this appliance may incorporate 13 A fuse depending on the target country (e.g. UK, Saudi Arabia)
PLUMBING REQUIREMENTS
Installation must comply with all applicable plumbing codes.
Place the water supply and drain in an adjacent cabinet.

NOTE
The dishwasher must be connected to a cold water inlet hose.

WARNING
A hose that attaches to a tap can burst if installed on the same water line as the dishwasher. If your sink has one, it is recommended to disconnect the hose and plug the hole.
We recommend fitting a filter to your water inlet supply in order to prevent damage to your machine due to contamination (sand, rust, etc.) from indoor plumbing. This will also help prevent yellowing and deposit formation after washing.
The edges of the opening must be smooth and round.
The water supply may be connected to the dishwasher with either:
A metal braided hose
Copper tubing
Use the new water inlet hose supplied with your machine, do not use an old machine's hose.
Run water through the new hose before connecting. This precaution is needed to avoid the risk of the water inlet to be blocked and damage the appliance.
Connect the cold water supply hose to a threaded 3 / 4" connector and make sure that it is fastened tightly in place.
The pressure supplied by the tap should be a minimum of 0.04MPa and a maximum of 1MPa . If the pressure exceeds 1MPa , a pressure relief valve must be fitted between the connection.
After the connections are made, turn the tap on fully and Purge the water supply prior to final connection to the unit. check for water leaks.
A safety supply hose is available with some models. The system ensures its intervention by blocking the flow of water in the event of a break in the supply hose and when the air space between the supply hose itself and the outer corrugated hose is full of water.
To connect a safety supply hose:
1) Pull the safety supply hoses out from storage compartment located at rear of dishwasher.
2) Tighten the screws of the safety supply hose to the faucet with thread 3/4 .
3) Turn the water fully on before starting the dishwasher.
To disconnect a safety supply hose:
1) Turn off the water.
2) Unscrew the safety supply hose from the faucet.
Connect the water drain hose directly to water drain pipe to the sink outlet spigot. This connection should be minimum 30~cm and maximum 100~cm from floor that dishwasher is placed.
The free end of the hose must not be immersed in water avoid the back flow of it.

WARNING
If the connection to the drain pipe is positioned higher than 1000mm excess water may remain in the drain hose. It will be necessary to drain excess water from the hose into a bowl or suitable container that is held outside and lower than the sink.

Fig. 8
A. max 100 cm
B.min 30 cm
C.min 4 cm
Purge the water supply prior to final connection to the unit.
This will remove any debris that may be present in the tubing when installing the new water supply. Connect the braided tubing from the unit to the household water supply with the fitting provided.
Check all water supply fittings for leaks.

NOTE
Items will not wash properly if an extension drain hose longer than 4m is used.
Any waste connection must be within 1000mm (maximum) of the bottom of the dishwasher.
These requirements must be met to prevent injury and damage to the machine. Consult a qualified plumber if in doubt.

Fig. 9
A TOP VIEW
B FRONT VIEW
W
To connect the water mains to the water inlet valve thread, use a 3/4'' threaded connector (not supplied).
INSTALLATION
TOOLS THAT MAY BE REQUIRED

Fig. 10
1 Pipe Wrench
2 Hole Saw
3 Tape Measure
4 Adjustable Wrench
5 Level
6 Wire Cutter
7 Hammer
8 Torx Screwdriver (T20)
9 Slot Screwdriver
10 Brush
11 Drill
12 Wire Stripper
13 Phillips Screwdriver
14 Scissors
15 Pencil
MATERIALS THAT MAY BE REQUIRED
(Additional materials may be required to comply with local In addition to these instructions, the dishwasher shall be codes) installed in accordance with all local codes.

Hot Water Supply Line - Minimum 3/4" O.D. copper tubing or metal braided dishwasher supply line.

UL listed conduit connector or strain relief.

Teflon tape or other pipe thread compound to seal plumbing connections.

Shut-off valve and fittings appropriate for hot water supply line (copper tubing/compression fitting, or braided hose).

Silicone

Glue
MATERIALS SUPPLIED
The parts required for positioning the dishwasher are in plastic bags. Check that all of the following parts are contained in plastic bags.
IMPORTANT SAFETY INSTRUCTIONS
In addition to these instructions, the dishwasher shall be installed in accordance with all local codes.
When installing the dishwasher, follow basic precautions, including the following:
- Installation and repair should be performed by a qualified installer. Work by unqualified persons could be dangerous and may void the warranty.

NOTE
The dishwasher should be installed by an insured licensed plumber, contractor, or trained installer. Installation performed by persons other than these could result in improper installation and damage to property.
- Do not operate the appliance if damaged, malfunctioning, partially disassembled or if it has missing or broken parts.
- Before installation or service, disconnect the power supply to the work area by unplugging the unit, "tripping" the circuit breaker or removing the fuse.
- Only connect the dishwasher to the power supply when all installation and plumbing work is complete.
- Never connect the ground wire to gas lines, or hot water pipes, plumbing lines.
If the dishwasher is installed in a location that is subjected to freezing temperatures (e.g., vacation home, cabin, etc.), you must drain all water from the dishwasher's interior. Water system breakdowns that occur due to freezing water are not covered under warranty. - The dishwasher must be secured to adjacent cabinetry using the brackets provided. Failure to do so may cause damage to property or bodily injury.
- The dishwasher is intended for residential use only and should not be used in commercial establishments.

NOTE
Do not use any extension cord or portable outlet device to connect the dishwasher to a power supply.

WARNING
Danger of suffocation! Ensure that any plastic wrappings, bags, small pieces, etc., are disposed of safely and kept out of the reach of children.
INSTALLING THE OUTER DOOR PANEL (DEPENDING ON MODEL)
Before starting the installation of the custom door panel, make sure that the measurements are within the ranges specified in the CUSTOM DOOR PANEL (FOR PANEL-READY MODELS) section of this manual.
- Install the hook on the aesthetic panel (Fig. 11) and p the hook into the slot of the outer door of dishwasher (Fig. 12). After positioning of the panel, press top of aesthetic panel to make sure that the plastic hook are fastened.


Fig. 11
Fig. 12

NOTE
In any cases, please DO NOT insert the fingers into the side holes on dishwasher door, since that may cause serious hazard.
Please DO NOT leave the installation hole open after installation. Plug the holes by the rubber plug immediately after installation to avoid any potential damage to children

NOTE
Before mounting the wooden door on the dishwasher, mount the handle on the wooden door as in Fig. 13.

Fig. 13
The door springs are set at the factory to the proper tension for the outer door of the dishwasher.
The door spring tension must be adjusted according to the weight of the custom door panel installed.
1) Adjust the tension of the door springs by using an Allen key turning in a clockwise motion to tighten the left and right door springs.
2) Adjust the tension of the door springs by using an Allen key turning in a counterclockwise motion to loosen the left and right door springs

WARNING
Failure to do this could cause damage to your dishwasher.
The door spring tension is correct when the door remains horizontal in the fully open position, but lifts up to a close with the slight lift of a finger.

Fig. 14
Check whether the bottom of the door hits the toe kick oSTEAM PROTECTION FOIL the kitchen cabinet.
If the door hits the toe kick, cut the required section out of the toe kick.
- Apply silicone or sealant to the cut edge of the kitchen cabinet toe kick or paint it so that it does not absorb moisture.

Fig. 15
Steam will be released when the dishwasher door is opened during operation of the dishwasher and after completion of the working cycle. In order to prevent the resulting steam from collecting and damaging the underside of the countertop, use a steam protection foil included in the plastic bag.
Clean the surface with a damp cloth before applying steam protection to the underside of the countertop.

Fig. 16
Apply the condensation strip under the countertop of the cabinet. Ensure that the condensation strip is flush with the edge of the countertop.

Fig. 17

CAUTION
Steam protection foil must be applied where the steam escapes when the door is first opened. Failure to install the steam protection foil during installation can lead to damage to the cabinets and countertop.

Fig. 18
PLACEMENT OF DISHWASHER INTO THE OPENING
Now place the dishwasher into the opening and get ready to connect all hoses and electrical connections.
1) Connect the inlet hose to the cold water supply.
2) Connect the drain hose.
3) Connect the power cord.
4) Place the dishwasher into the cabinet.

CAUTION
Make sure that all hoses are pulled through the side opening of the cabinet, that no hoses are kinked and that all slack is taken out as shown in the figure.
ADJUSTING THE HEIGHT
1) Keep the front feet at the minimum height before and while positioning the dishwasher into the cabinet cutout.
2) Adjust the front foot level with a slot screwdriver to stabilize the dishwasher and raise it to the enclosure height.
3) Adjust the rear foot level with a Phillips screwdriver to balance and raise the dishwasher to the enclosure height.
The rear foot is located in the centre front at the base of the appliance.

NOTE
Make sure the dishwasher is plumb and note that the dishwasher can be placed with a small clearance under the countertop.

Fig. 19
The dishwasher must be level to ensure proper dish rack operation and washing performance.
Place a spirit level on door and basket rail inside the tub, as illustrated, to check that the dishwasher is level.
Level the dishwasher by adjusting the three levelling points individually.

Fig. 20
a. Check level front to back.
b. Check level side to side.

CAUTION
When levelling the dishwasher, take care not to tip it over.
FIXING THE DISHWASHER INTO THE CABINET
The dishwasher must be secured in place into the cabinet.
Depending on the cabinet, you can choose top or side fixation. The fixed operation is as follows:
A. Normal work surface: Put the installation hook into the slot of the side plane and secure it to the work surface with the screws.

Fig. 21

NOTE
Turn the screwdriver clockwise to raise the height, and turn it anticlockwise to lower the height.
B. Marble or granite worktop: Fix the side with screws.

NOTE
The maximum adjustment height of the feet is 50~mm

Fig. 22
ATTACHING THE KICKPLATE
The following options are available. Follow the supplied instructions.
Option 1: Attach the furniture kickplate.

Fig. 23
- Option 2: Attach the adjustable plinth group. Follow the instructions supplied with the adjustable plint group.

Fig. 24
INSTALLER CHECKLIST
Your installer must have completed and checked the following:
The dishwasher is square and level.
The dishwasher is fastened securely to the cabinetry.
The dishwasher door opens and closes freely. The dishwasher door must close without hitting any cabinetry or countertop.
The inlet water supply is turned on and checked for leaks.
The drain hose has been connected and checked for leaks. There must be no kinks or obstructions in the drain hose.
The drain hose must be installed with a 762 mm (30") high drain loop for drain hook-ups without any air removed.
The drain hose must be installed with a 30^ (762 mm) high drain loop for drain hook-ups without any air removed.
If you connect the water drain hose to a trap spigot under the sink, remove the plastic membrane. If you do not remove the entire membrane, leftover food could cause a blockage in the drain hose spigot. Ensure a hose clamp is used to secure the hose to the spigot.
The spray arms are free and rotate freely.
The rinse cycle has been run.
The water level will be below the filter screen after the end of the wash program. It is normal to find some water in the drain filter area.
FINAL INSTRUCTIONS
1) Press the On/Off button to turn the dishwasher on.
2) Power indicator light comes on.
3) Use the Program Select button to choose a washing program.
4) Start the program with the Start/Pause button.
5) Run the dishwasher through one complete cycle. When the wash cycle is completed, use the On/Off button to turn the dishwasher off.

NOTE
If the dishwasher does not operate properly, see the Self Help Tips.
SELF-HELP TIPS
The screen does not come on:
- Check to make sure the breaker to the dishwasher is in the ON position.
- Check to make sure that the supply cord is plugged.
No water is coming into the dishwasher:
- Check to make sure the water shutoff is in the ON position.
Water does not drain:
- Make sure the drain hose is not kinked or sticking out of the air gap next to the sink.
- Remove the drain hose from the garbage disposal making sure the plug is removed.

NOTE
If your dishwasher is not operating properly after following these steps: Contact your dealer to schedule an authorized service agent to inspect your new dishwasher for any function-related failure.
The manufacturer warranty does not cover installation, conversion or customer training service visits.
You will find the model and serial number information on the label located on the right-hand side of the inner door of your dishwasher.

NOTE
Please make a copy of your invoice and keep it with this manual and register your dishwasher on-line.
GETTING STARTED
PREPARING YOUR DISHWASHER FOR FIRST USE
- Make sure the electricity and supply water specifications match the values indicated in the installation instructions for the machine.
- Remove all packaging material inside the machine.
- Set the water softener level according to the instructions in this manual and fill the dispenser with salt (depending on model). Water supplies with a hardness level higher than 9^ need to be softened.
- Set the rinse-aid dosage according to the instructions in If the hardness level of the water that you use is above 90, this manual. or if you are using well water, then we recommend using
- Fill the Auto Dose system with liquid detergent (depending on model).
- dishware and in the dishwasher. Your dishwasher has a special water softening system to remove tap water or hardness. Setting this system correctly will increase washing effectiveness.
SETTING THE WATER SOFTENER
The dishwasher needs soft water for good cleaning results. Hard water results in a build-up of limescale deposits on
The dishwasher is preset at level H3 water hardness. If this setting matches the hardness of your water, you do not need to do anything else. The dishwasher must be programmed for the water hardness of your area.
To find out the water hardness level of your area, contact your local Water Board, or determine the water hardness level using a test strip.

WARNING
If you move to a different location, the water hardness level could be different. It is essential to reset the water hardness in order to obtain optimum washing efficiency.

NOTE
The level is set to H3 as default. If the water is well water or has a hardness level above 90 dF, we recommend using filter and refinement devices.
Follow the steps in the image when using the test strip.

RUN WATER THROUGH THE TAP (1MIN.)
KEEP THE STRIP IN THE WATER (1SEC)
SHAKE THE STRIP
WAIT (1MIN.)
SET THE HARDNESS VEL OF YOUR MACHINE
WATER HARDNESS
Adjust the water hardness setting of your machine according to the level specified on the test strip (if available).
In order to change the water hardness level, follow the steps below:
1) Turn on the machine and press the Self-Cleaning button for 5 seconds to enter water softener settings.
2) Press the Self-Cleaning button again to select the water hardness level (e.g. H3)
3) Change the water hardness level by pressing the Self-Cleaning button, the setting will change in the following sequence: H3→H4→H5→H6→H1→H2→H3
4) Press the Power button to save desired level: the newly selected level will stop flashing

WARNING
In order for the water softening system to work properly, the dishwasher must be filled with dishwasher salt before the first wash. See instructions in the salt dispenser chapter.
| LEVEL GERMAN °DH FRENCH °FH | BRITISH °CLARKE | REGENERATION OCCURS EVERY X PROGRAM SEQUENCE* | SALT CONSUMPTION (GRAM/ CYCLE) | ||
| H1 | 0-5 | 0-9 | 0-6 | No regeneration | 0 |
| H2 | 6-11 | 10-20 | 7-14 | 10 | 9 |
| H3 | 12-17 | 21-30 | 15-21 | 5 | 12 |
| H4 | 18-22 | 31-40 | 22-28 | 3 | 20 |
| H5 | 23-34 | 41-60 | 29-42 | 2 | 30 |
| H6 | 35-55 | 61-98 | 43-69 | 1 | 60 |
*Every cycle with a regeneration operation consumes additional 2.0 litres of water, the energy consumption increases by 0.02kWh and the program extents by 4 minutes.
PLATE ARRANGEMENT
If you place your dishes into the machine properly, you will be using it in the best way in terms of energy consumption, washing and drying performance (EN60436).
Into the lower basket, you can load round and deep items such as pots with long handles, pot lids, plates, salad plates, cutlery sets. The upper basket has been designed for dessert plates, salad bowls, cups and glasses. When placing long stem glasses and goblets, lean them against the basket edge, rack or glass supporter wire and not against other items. Do not lean long glasses against one another or they will lose their balance and may be damaged. It is more appropriate to place thin narrow parts into the middle sections of baskets. You can place spoons among other cutlery sets in order to prevent them from sticking to one another.
We recommend that you use the cutlery grid for best results. To avoid possible injury, always place long-handled and sharp-pointed utensils such as serving forks, bread knives, etc., with their sharp points facing downwards or horizontally on the baskets.

WARNING
Place your dishes into your machine so that they will not prevent the upper and lower spray arms from spinning.

WARNING
Do not put into the appliance items that can absorb water (sponges, dishcloths).

NOTE
Place all containers such as cups, glasses and pots into the dishwasher with the opening facing downwards (so that they cannot collect water).

NOTE
Dishes and cutlery should not be placed above one another.

NOTE
Very small items should not be washed in the dishwasher as they could easily fall out of the basket.

NOTE
Do not overload your dishwasher and pay attention to manufacturer instructions regarding dishes which are appropriate for use in a dishwasher. Only with suitable dishes (mentioned in section 5) will you obtain optimal washing results with a sensible use of energy.
High temperature water and dishwasher detergent may form a chemical synthesis that can damage certain items.

WARNING
Be careful when loading and unloading sharp items. Load sharp knives with the handles up to reduce the risk of personal injury.
Follow the steps below before loading dishwasher.
1) Open the door.
2) Remove leftover food remains from tableware. It is not necessary to rinse the dishes under running water.
3) Load the dishwasher.

NOTE
If you open the door while the appliance is running, all functions are automatically interrupted. Once the door is closed, functions will resume operation.
When unloading the dishwasher, to prevent water dripping from the upper basket into the lower basket, it is recommended to empty the lower basket first, followed by the upper basket.

WARNING
Items will be hot! To prevent damage, do not take glass and cutlery out of the dishwasher for around 15 minutes after the program has ended.
UPPER RACK
Load the upper rack with dessert plates, cups, glasses, etc.

Fig. 25
| NUMBER | ITEM |
| 1 | Cups |
| 2 | Saucers |
| 3 | Glasses |
| 4 | Mugs |
| 5 | Dessert bowls |
| 6 | Glass bowl |
LOWER RACK
Into the lower basket, you can load round and deep items such as pots with long handles, pot lids, plates, salad plates, cutlery sets. The lower rack should not be used for small items such as cups, wine glasses.

Fig. 26
| NUMBER ITEM | |
| 7 | Dessert plates |
| 8 | Melamine plates |
| 9 | Dinner plates |
| 10 | Soup plates |
| 11 | Melamine bowls |
| 12 | Glass |
| 13 | Oval platter |
| 14 | Oven pot |
| 15 | Small pot |

NOTE
Place all large and very dirty items in the lower rack.

WARNING
Large knives and other utensils with sharp tips and edges must be placed horizontally on the upper rack due to the risk of injury. Other smaller knives and sharp utensils should be placed sharp side down in the cutlery basket.

NOTE
Make sure that large items do not interfere with the rotation of the spray arms, and do not prevent the detergent dispenser from opening.

NOTE Important Note for Test Laboratories
For detailed information required for tests according to EN normatives and a soft copy of the manual, please send the model name and serial number to the following address: dishwasher@standardtest.info
THIRD RACK (DEPENDING ON MODEL)
Cutlery should be placed in the cutlery rack separately from each other in the appropriate positions, and make sure utensils do not nest into each other, as this may cause poor performance. For top quality cleaning, place the silverware in the basket making sure that:
They do not nest into each other.
- Load silverware with pointed and sharp sides downwards.
- Long utensils are in the middle.

Fig. 27
Cutlery Rack load pattern for 14 place settings.
SILVERWARE BASKET (DEPENDING ON MODEL)

Fig. 28
INCORRECT LOADS
- Incorrect loading can cause poor washing and drying performance. Please follow the manufacturer recommendations for good results.

Fig. 29
1) Salad forks
2) Teaspoons
3) Dinner forks
4) Knives
5) Serving spoons
6) Serving forks
Cutlery Basket load pattern for 12 place settings.

WARNING
Sharp cutlery may shift position during the wash cycle, and may be also wet and slippery. Take care when removing them to prevent injury.

Fig. 30

NOTE
Small items should therefore be placed in the cutlery tray or cutlery basket (depending on model), as small items can fall from the baskets through the holders.
- Please do not overload your dishwasher. This is important for good results and for reasonable consumption of energy.


Fig. 31
Fig. 32
WHAT SHOULD NOT BE WASHED IN YOUR DISHWASHER?
- All items to be placed in the dishwasher should be dishwasher-safe.
Only plastics with "dishwasher safe" or equivalent label may be placed in dishwashers. Plastics may lose their shape or color. Check with the manufacturer for recommendations. - Any dishes made out of wood, or that include wooden parts, are not suitable for washing in dishwashers. High temperatures can cause the wood to swell or crack.
Silver items without a "dishwasher safe" label should not be washed in the dishwasher as high temperatures and detergent can damage the silver. Check with the manufacturer for recommendations.
"Dashwasher safe" silver items and stainless steel items should not come into contact, as the silver can become discolored.
Porcelain and glassware with decorations and hand-painted utensils may lose their color and patterns due to the high temperatures. Non-decorated items are dishwasher-proof. Check with the manufacturer for recommendations.
Aluminum can turn dark in the dishwasher due to the heat, the detergent used or even just certain minerals in your water. - Do not wash sponges or dishcloths in the dishwasher.
- Do not wash any materials such as acrylic, copper, brass, pewter, iron, bronze or tin.
- Pots without a non-stick coating are safe to be cleaned by your dishwasher but some non-stick pots and pans can lose their coating and also sticking ability.
- Glued dishes or cutlery are not suitable for machine washing since adhesives that join materials such as plastic, wood, bone, steel, copper, tin, etc., may loosen.
Crystal glass should not be washed in the dishwasher.
Remember, if you have any questions or concerns
regarding items to be washed in the dishwasher, follow the instructions of the items' manufacturers, or wash the items by hand.
RACKS
UPPER BASKET FOLDING TINES AND ETAGERES

WARNING
If in doubt, wash by hand, or follow the instructions from the manufacturer of the utensils, dishes, glasses or pots and pans. Do not wash items soiled with cigarette ash, candle wax, varnish, paints or chemicals since they can damage your dishwasher.
The étagères are designed to increase the capacity of the top basket. You can place cups and glasses on these. Thanks to the adjustable nature of the étagères, you can place glasses of different sizes under them.
Height-adjustable étagères mounted on the basket allow mug and glass shelves to be in 2 different positions.
You can also place long knives, forks and spoons on the étagères horizontally so they do not to block the movement of the spray arms.

WARNING
Empty the lower rack first and then the upper rack. This will avoid water dripping from the upper rack onto dishes in the lower rack.


WARNING
In general, it is not advisable to open the door while the dishwasher is in operation. If the door is opened, a safety device stops the dishwasher. Care should be taken when opening the door immediately following the cycle, as steam may escape.

Fig. 33
Fig. 34
The horizontal wire located on the top basket allows you to place your plates and bowls where required. You can also wash kitchenware such as pots or pans by closing the folding tines.

NOTE
Bringing the wires to the horizontal position by holding them from the ends may cause them to bend. It is therefore a good idea to bring the wires in the middle to the horizontal or vertical position by holding them from their stems and pushing.

NOTE
When the upper basket is set to the top position, the étagères cannot be folded up.

NOTE
Make sure that both levers catch in the same height position.
1) Height adjustment with load (depending on model)
The upper basket includes a mechanism that allows the height of the basket to be adjusted to the upper (Fig. 35) or lower (Fig. 36), position without having to remove the basket. Grasp the basket on both sides and pull it up or down, ensuring that both sides of the upper basket are in the same position.
To lower the upper basket, lift the adjustment handles on each side to release the basket and lower it to the lower position.

Fig. 35

Fig. 36

NOTE
When the upper basket locks in the upper position, It can't fold back the cup shelves.

Fig. 37
2) Height adjustment without load (depending on model)
In certain models, the height setting of the upper rack may be changed using the wheels which are present at two height levels.

CAUTION
Make sure that the rack is empty. Changing the height setting while the rack contains tableware could cause the contents to dislodge, causing personal injury or damage to the tableware.
- Release the latches on both the right and left tracks of the upper rack by turning them outwards, A.

Fig. 38
Pull out the rack completely, B.

Fig. 39
- Place the rack into the tracks again at the desired height, C.

Fig. 40
- Push the latches back into the correct position.
LOWER BASKET FOLDING TINES
Folding tines consist of four parts located on the lower basket of your machine, and are designed to make it easier to place big items such as pots, pans, etc. If necessary, each part can be folded separately, or all of them can be folded and larger spaces can be obtained. You can use folding tines by raising them upwards, or by folding them.


Fig. 41
Fig. 42
EASY LIFT LOWER BASKET (DEPENDING ON MODEL)
Hold the handle of the basket separately, and gently pull out thebasket horizontally to the bottom (until it cannot be pulled horizontally)


Fig. 45
Fig. 43
Then hold the handle of the basket separately and lift it up to the bottom. Touch the lock catch to lock the basket in this position.
At this point, the basket fixed in a high position and can be used to place tableware.

Fig. 44
After placing the tableware, hold both the basket and the unlocking mechanism handle.
First, pull up the unlocking mechanism handle to unlock the bowl basket, and then press down the bowl basket handle to push the bowl basket back into the dishwasher along the same pat.
SILVERWARE TRAY (DEPENDING ON MODEL)
The silverware tray is designed for you to place forks, spoons and knives, long dippers and small items.

Fig. 46
The right side of the cutlery tray can be removed.

Fig. 48

WARNING
Knives and other sharp objects must be placed horizontally in the cutlery basket.
The silverware tray is composed of two pieces; if you need to space for the dishes in the upper basket, you can slide the left or right part of the upper cutlery basket in order to obtain more space.

Fig. 47
SILVERWARE BASKET (DEPENDING ON MODEL)
- The silverware basket is designed to wash knives, forks, spoons, etc.
According to the model purchased, you may have a sliding basket, or a standard one.

Fig. 49
BOTTLE HOLDER (DEPENDING ON MODEL)
TRAY HOLDER (DEPENDING ON MODEL)
The bottle rack lets you wash large open containers, such The tray holder lets you easily place trays and pots of as bowls, pans, or Tupperware, as well as tall items, such various sizes in the lower basket and provide the best as jugs. The bottle rack can be pulled out in the direction washing performance.
the arrow, as shown below.


This function is used to wash glasses, bottles and the like by directing the water upwards when the apparatus in the upper basket shown in the figure is in the vertical position. When the apparatus is in the horizontal position, the water goes down, which allows the lower basket to be washed.


Fig. 53

Fig. 54

STEMWARE HOLDER (DEPENDING ON MODEL)
Fig. 56
The sides of the stemware holder can be folded up so as to make the accessory more compact for storage when not needed.

Unfold the stemware holder before placing it on the dishwasher's lower rack.

CONTROL PANEL
Fig. 59
| SYMBOL DESCRIPTION SYMBOL DESCRIPTION | ||
| 1 On/Off Button 3 | Options Buttons | |
| 2 | Program Buttons | 3.1 Turbo Speed+ |
| 2.1 Eco 3.2 ECO | Extra Dry | |
| 2.2 | Auto 3.3 Auto Dose | A° |
| 2.3 | Hygiene | 3.4 Auto Open Door Cancel |
| 2.4 Extra Silence 4 Half load Button | ||
| 2.5 | Rapid 90 min | 5 Display |
| 2.6 Glass 6 | Delay Start Button | |
| 2.7 | Rapid 45 min | 7 Start Pause Button |
| 2.8 Rinse | ||
| 2.9 | Self-Cleaning | |

Display
Fig. 60
| SYMBOL DESCRIPTION SYMBOL DESCRIPTION | ||
| 8 Warning Indicators | 13 Water Gauge Indicator | |
| 9 Salt Indicator 14 | Low Liquid Detergent Indicator | |
| 10 Rinse Aid | Energy Consumption Indicator | |
| 11 Half Load Indicators 16 | Water Consumption Indicator | |
| 12 Delay Start Indicator | 17 Consumption Indicators | |
OPERATION
Setting a wash cycle
1) Press the button for the desired wash cycle.
2) Press Start/Pause and close the door. The cycle will start right after.
3) The display shows total time of the selected cycle and the remaining time during operation.
Changing a cycle
Switching the dishwasher off
To change the wash cycle while the dishwasher is running. When the selected program is completed, the buzzer will open the door and press the Program button for 3 seconds so sound 5 times. You can then switch your machine off to select a new cycle, then press the Start/Pause button. using the Power On/Off button. Disconnect the plug and After closing the door, the newly selected cycle will resume off the water tap. the course of the old one.

NOTE
A program can only be changed if it has been running only for a short period of time, otherwise the detergent may have already been released or the wash water with detergent has already been drained. If this is the case, the dishwasher needs to be reset and the detergent dispenser must be refilled

NOTE
If the power is cut off during the drying process, the program will terminate. Your machine will be ready for a new program selection.

NOTE
To save energy, in stand by mode, the appliance will switch of automatically after 15 minutes without any user interaction.
To reset the dishwasher, follow the instructions below:
1) Open the door a little to pause the cycle, after the sprying water from the dishwasher
arthritis stopped working you can open the door completely.
2) Press Start/Cancel button for more than three seconds, the dishwasher will be in program selection mode.
3) You can change the program to the desired cycle setting.
4) Press the Start/Cancel button, and close the door, the dishwasher will restart to run.
Pausing a cycle
A forgotten dish can be added any time before the detergent dispenser opens. If this is the case, follow the instructions below:
1) Open the door a little to stop the washing cycle
2) After the spray arms stop spinning, open the door completely
3) Add forgotten dishes
4) Close the door and dishwasher will resume its operation after 10 seconds

WARNING
It is dangerous to open the door mid-cycle, as hot steam may escape from the
dishwasher. Always be cautious and open After completing a wash cycle the door opens automatically the door ever so slightly first, then fully only to achieve better drying results. after a few minutes.
D'Yaining water from the dishwasher
The dishwasher is equipped with a tank that contains water.
'At a room temperature below 0^ C, the water in the tank can freeze. Therefore, it is not advisable to operate the dishwasher when the room temperature is below 0^ C.
It is recommended to empty the water in the tank if the environment drops below 0^ to prevent the machine from freezing.
When opening the door, press the Eco and Turbo Speed buttons for 3 seconds, then close the door to turn on to the drainage function.
All programs indicator lights will turn on and the screen will display "- - " when entering the drainage function.
The water in the tank is drained in 4 minutes.
If the door is opened during the draining process, the machine suspends draining and continues draining after closing the door.
Auto open door
After completing a wash cycle the door opens automatically. To achieve better drying results.

NOTE
The dishwasher door must not be blocked when set to open automatically. this can disrupt door lock functionality.
WASH CYCLES
| CYCLE DESCRIPTION | CYCLE TIME | WATER USAGE | POWER CONSUMPTION | DETERGENT OPTIONS | ||
| Eco | For normally soiled dishes in typical everyday use. | 03:40 | 9,5 l/cycle | 0,65 kWh/cycle | 22 g Turbo Speed+, Extra Dry, Auto Dose, Auto Open Door Cancellation | |
| Lowest energy and water consumption. | ||||||
| Auto | For all soil levels and all types of crockery. | |||||
| Automatically adjusts to the optimal wash time, water temperature, and water consumption. | 1:29 to 2:06 | 10,3 to 17,0 l/cycle | 0,93 to 1,47 kWh/cycle | 5/17 g Auto Dose, Auto Open Door Cancellation | ||
| Hygiene | For all soil levels and all types of crockery. | |||||
| Provides maximum water temperature for thorough sanitising of dishes. | 03:15 | 13,9 l/cycle | 1,65 to 1,72 kWh/cycle | 5/17 g Turbo Speed+, Extra Dry, Auto Dose, Auto Open Door Cancellation | ||
| Extra Silence | For normally soiled dishes and glasses. | |||||
| Designed for evening or night operation, achieves the lowest noise level. | 4:15 | 9,5 l/cycle | 0,85 to 1,00 kWh/cycle | 22 g Turbo Speed+, Extra Dry, Auto Dose, Auto Open Door Cancellation | ||
| Rapid 90 min | For a quick wash of normally soiled daily dishes. | 01:30 | 11,2 l/cycle | 0,96 to 1,03 kWh/cycle | 22 g Turbo Speed+, Extra Dry, Auto Dose, Auto Open Door Cancellation | |
| Glass | For lightly soiled crockery and glass. | 2:00 | 13,9 l/cycle | 0,85 to 0,93 kWh/cycle | 5/17 g Turbo Speed+, Extra Dry, Auto Dose, Auto Open Door Cancellation | |
| Rapid 30 min | For a quick wash of lightly soiled dishes. | :30 | 10,3 l/cycle | 0,56 kWh/cycle | 15 g Auto Dose | |
| Rinse | For all soil levels. | |||||
| Rinses and holds dishes for a future wash cycle. | :15 | 3,9 l/cycle | 0,12 kWh/cycle | - - | ||
| CYCLE DESCRIPTION | CYCLE TIME | WATER USAGE | POWER CONSUMPTION | DETERGENT OPTIONS | ||
| Self-Cleaning | For effective self-cleaning of the inside of the dishwasher. | 2:10 | 15,1 l/cycle | 1,48 to 1,52 kWh/cycle | 5/17 g | Auto Dose |
NOTE
The program duration may change according to the amount of dishes, the water temperature, the ambient temperature and selected additional functions.
- Values given for wash cycles, other than the Eco cycle, are indicative.
Only use powder detergent for short cycles. - Short cycles do not include drying.
- To assist drying, we recommend slightly opening the door after a cycle is complete.
- You can access the product database where the model information is stored by reading the QR code on the energy label.

NOTE
The Eco program is the most efficient program in terms of its combined energy and water consumption, and it is used to assess compliance with the EU eco design legislation (EN60436).

NOTE
An indicator on the display shows the water consumption level of each selected program. The more bars are displayed, the higher the water consumption is.
An indicator on the display shows the energy consumption level of each selected program. The more bars are displayed, the higher the water consumption is.
WASH CYCLES FLOW CHART
| ECO | AUTO | HYGIENE | EXTRA SILENCE | RAPID 90 MIN | GLASS | RAPID 45 MIN | RINSE | SELF-CLEANING |
| - | Prewash (45°C) | Pre-wash (45°C) | - | - | Pre-Wash (40°C) | - | Prewash | Prewash |
| Wash (45°C) | Wash (55-65°C) | Wash (72°C) | Wash (55°C) | Wash (55°C) | Wash (45°C) | Wash (45°C) | - | Wash (60°C) |
| Rinse | Rinse | Rinse | Rinse | Rinse | - | Rinse | - | Rinse |
| Rinse (42°C) | Rinse | - | - | - | Rinse | Rinse (45°C) | - | - |
| - | Rinse (55-65°C) | Rinse (65-72°C) | Rinse (55-65°C) | Rinse (60-65°C) | Rinse (55-60°C) | - | - | Rinse (70-72°C) |
| Drying | Drying | Drying | Drying | Drying | Drying | - | - | Drying |
WASH OPTIONS
| OPTION DESCRIPTION ACTIVATION | |
| Turbo Speed+ Reduces cycle time by 15%-50% due to increased temperature and motor speed. | Press the Turbo Speed+ button to speed up the duration of the selected wash cycle. The display will show the updated cycle duration. Press the Start/Pause button and close the door to activate the option. |
| Extra Dry Adds extra heating and drying steps to the selected wash cycle to get perfectly dry dishes. Increases the rinse water temperature and extends the dry time. | Press the Extra Dry button and then the Start/Pause button, then close the door to activate the option. |
| Auto Dose Automatically dispenses the correct amount of liquid detergent and rinse aid each wash program. When the Auto Dose indicator is lit, avoid using other types of detergents (such as powder or tablets). | Press the Auto Dose button and then the Start/Pause button, then close the door to activate the option. |
| Auto Open Door Cancel | Cancels the Auto Open Door function. If the function is not deactivated, the door is the automatic door opening at the end of each wash cycle. When the Auto Open Door Cancel option is selected, the indicator light turns off. If you prefer that the door does not open automatically at the end of the wash cycles mentioned on the left because you have a particularly delicate countertop, you must select the Auto Open Door Cancel option at the beginning of each wash cycle. |
| Half Load Directs | press the Half Load button to activate the Half Load option on the upper rack, lower rack or both. The corresponding indicators will appear on the display. Press the Start/Pause button and close the door to activate the option. The option cannot be used with Rapid 45 min program. |
| Delay | Delays the start of the selected wash cycle. Press the Delay button to delay the cycle start time by 1 hour. The display will show cycle duration and programmed delay time alternately for 2 seconds. Continue to press Delay until you reach the desired delay time. The corresponding indicator will also appear on the display. Press the Start/Pause button and close the door to activate the option. |

NOTE
If the indicator is it, it means the liquid detergent is low on the dispenser and requires a refill.

WARNING
Do not use detergent in the Rinse cycle (depending on model). If you do not know the hardness of your water supply, use 15 ml / 3 tsp detergent. Increase the amount of detergent if you see white watermarks, especially on the surface of glassware.

NOTE
1) The liquid detergent indicator will turn if you cancel the Automatic Dosing System function.
Off Should you need more information concerning the detergent you intend to use, contact the detergent manufacturers directly. is empty after the completion of each wash program.
2) After adding the liquid detergent, the indicator light will turn off only after running at least one washing program.
DETERGENT & RINSE-AID DISPENSER

WARNING
Only use detergents specifically designed for household dishwashers.
You can find powder, gel, and tablet detergents in the market that have been designed for household dishwashers. Add the proper detergent for the selected program to ensure the best performance. Use less detergent if the dishes are only lightly soiled. Using excess detergent can leave a film on dishes and in the dishwasher resulting in poor wash performance.

NOTE
The amount of detergent needed depends on the cycle, load size, and soil level of dishes. Too much detergent in soft water may cause glass corrosion and does not dissolve in water.

WARNING
Do not use too much detergent if your water supply is soft.

WARNING
Keep your detergents in a cool, dry place out of the reach of children. See the detergent manufacturer's instructions for further information.

WARNING
Detergent tablets do not fully dissolve with short programs. To prevent detergent residue on tableware, we recommend using tablets with long programs.
FILLING THE DETERGENT

NOTE
The dispenser should be refilled just before the start of each program.
1) Press the button on the left side to open the detergent container as shown in the image (Fig. 61).

Fig. 61
2) Pour/put the detergent into the dispenser (Fig. 62).

Fig. 62
3) Close the lid and press it until it locks in place (Fig. 63).

Fig. 63

NOTE
If you wish to use regular detergent (powder, tablet, etc.), make sure the "Auto Dose" indicator light is off, as leaving it on may affect cleaning performance.

NOTE
If the dishes are heavily soiled, increase the dose of detergent. Alternatively, in addition to the detergent in the dispenser, pour a small amount of detergent on the inside of the door. The additional detergent will be activated during the pre-wash phase.

NOTE
The flap is always open at the end of a program.

WARNING
Follow the instructions on the detergent package when using liquid dishwasher detergent, concentrated powder detergent, or tablet detergent.

WARNING
Amounts may vary if you use liquid or concentrated powder detergent. Tablet detergents should be placed in the detergent container.
FILLING THE AUTO DOSE DETERGENT SYSTEM
Option 1. Filling the detergent
- Press this button as shown in the figure, and the lid of the detergent will open automatically.

Fig. 64
- Add detergent into the cavity as shown in the figure.
Please refer to the (Fig. 65) Wash Cycle Table for the specific quantity of detergents.
- Push in the direction of the arrow and close the cover.

Fig. 66

NOTE
If you want to use regular (powder, tablet, etc) detergent, please ensure the A function indicator light is off, otherwise the cleaning performance will be influenced.

Fig. 65
Option 2. Filling the Automatic Dosing System
You should select function button on the control panel before using the Automatic Dosing System
- Push the left and right switches in the direction of the arrow in the picture simultaneously, the Automatic Dosing System cover will open.

Fig. 67
Take out the empty liquid detergent bottle and put the liquid detergent into it as Fig. 68 (Use only liquid detergent for the dishwasher).

Fig. 68
Install the refill bottle or a new bottle as Fig. 69.

Fig. 69
- Close the cover.

Fig. 70

NOTE
The capacity of the bottle of liquid detergent is 300ml
Bottles are not consumables, and the liquid detergent inside can be refilled by oneself 1. The capacity of the bottle of liquid after use.
It is recommended to replace the bottle after filling 20 times (about 6-8 months).

NOTE
Use only liquid detergent suitable for the dishwasher.
Do not mix different brands of liquid detergents.
Do not fill the liquid detergent box with liquids or chemical cleaners (vinegar, bleacher etc.) other than liquid detergent.
Liquid detergents that lost their fluidity and became firm must not be used in automatic liquid detergent dosing system.
If a different brand or type of liquid detergent will be used, make sure previous detergent is depleted completely and then remove and clean the liquid detergent tank under tap water.
Wipe clean any spilled rinse aid outside the reservoir. Otherwise, it will cause foaming in the next washing cycle, reducing the washing performance of the product.
When the liquid detergent is less than 20% , the indicator will be lit. Here you can only use the automatic dosing system about 1-3 times. Please refill the liquid detergent in time.
USING COMBINED DETERGENTS
Combined detergents must be used according to manufacturers' instructions.
Never put combined detergents inside the dishwasher's tub or the cutlery basket.
Always put tablets in the detergent dispenser.
Combined detergents contain not only the detergent, but also rinse-aid, salt replacement substances and additional components depending on the combination.
If you stop using combined detergents, make sure that water hardness and rinse-aid settings are set to the correct level.
If you want to obtain better results while using combined detergents, add salt and rinse-aid into your machine and adjust the water hardness setting and the rinse-aid setting to the lowest position.

CAUTION
The solubility of the tablet detergents produced by different companies may vary depending on the temperature and time. Therefore, it is not recommended to use such detergents in short programs. Please use powder detergents in such programs.

WARNING
Should any problem, which you have not encountered before, arise with the use of this type of detergents, contact the detergent manufacturers directly.

RINSE-AID USAGE
Rinse-aid helps dry the dishes without streaks or stains. Rinse-aid is required for stain-free utensils and clear glasses and is automatically released during the hot rinse phase.
If rinse-aid dosage is set too low, white stains will remain on glasses and dishes. If rinse-aid dosage is set too high, light blue stains will remain on glasses and dishes.

CAUTION
Only use rinse-aid intended for residential dishwashers.
Filling the rinse-aid dispenser with detergent will damage the dispenser.

NOTE
Your dishwasher is designed to use liquid rinse-aid.

NOTE
When the rinse-aid indicator lights up, the rinse-aid dispenser contains enough rinse-aid for 2 - 3 programs only. When using "Tab" detergents, rinse-aid is not needed.
Do not overfill the rinse-aid dispenser.
FILLING THE RINSE-AID AND SETTING
1) To fill the rinse-aid compartment, press the button as shown Fig. 71.

Fig. 71
2) Fill the compartment with rinse-aid to the MAX level and then close the cap. Be careful not to overfill the rinse-aid compartment and wipe any spills Fig. 72.

Fig. 72
3) Close the cap until it clicksFig. 73.

Fig. 73
In order to change the rinse-aid level, follow the steps below:
1) Turn on the machine and press the Self-Cleaning button for 5 seconds, then press the Delay button to enter Menu settings: the Rinse Aid indicator will start flashing.
2) Change the rinse-aid level by pressing the Self-Cleaning button, the setting will change in the following sequence: D3→D4→D5→D6→D1→D2→D3. The higher the number, the more rinse-aid the dishwasher will use.
The factory setting is "D3".
NOTE
If the dishes are not drying properly or are spotted, increase the level. If blue stains form on your dishes, decrease the level.
| LEVEL | BRIGHTENER DOSE | INDICATOR |
| 1 | Rinse-aid not dispensed | D1 is shown on the display. |
| 2 | 1 dose is dispensed | D2 is shown on the display. |
| 3 | 2 doses are dispensed | D3 is shown on the display. |
| 4 | 3 doses are dispensed | D4 is shown on the display. |
| 5 | 4 doses are dispensed | D5 is shown on the display. |
3) Exit Menu settings by waiting 5 seconds or turn the machine off.
SALT DISPENSER (FOR MODELS WITH WATER SOFTENER)
Please check the salt indicator on the control panel to see whether there is enough softening salt in the dishwasher. The salt dispenser must be refilled with salt whenever the salt warning indicator appears on the control panel of your machine.
FILLING THE DISHWASHER SALT DISPENSER

WARNING
Cooking and table salts do not dissolve in water easily, using these kinds of salts will damage the water softener system of your machine.

NOTE
The machine can only use special dishwasher salt to soften the water. Do not use any small-grained or powder-type salts which are easily soluble. Using any other type of salt can damage your machine. The manufacturer is not liable for damages resulting from using the wrong type of salt.

WARNING
Dishwasher detergent will damage the softener assembly. Do not fill the salt container with dishwasher detergent.

WARNING
If the water in your area is very soft and consistently lower than 9^ you do not have to add dishwasher salt.

Fig. 74
1) To fill the dishwasher with salt, first remove the lower basket and then open the salt compartment cap by turning it counterclockwise. Fig. 74 A-B
When preparing to add salt, first remove the upper bowl basket, and then pull the lower bowl basket horizontally to the bottom (until it cannot be pulled horizontally).
At this point, the water softener cover appears unobstructed at the back of the lower basket, reach out and unscrew it, then add salt.
After adding salt, screw on the cover of the water softener, install it back into the basket, and complete the salt adding work.

Fig. 75

e) Upper bowl basket
Fig. 76
f) Water softener cover
g) Lower bowl basket
2) At first use, fill the compartment with 0.6kg salt and water Fig. 74 C to the overflow level. If available, using the funnel (Fig. D) provided will make filling easier.
3) Refit the cap and close it.

WARNING
If the softener salt has overflowed and you do not start the machine immediately, run a short washing program to protect your machine against corrosion. These types of damages are out of warranty.

NOTE
Fill the salt compartment with water only the first time you fill the salt compartment.

NOTE
If the salt warning lamp on the control panel lights up, fill the salt compartment with salt again.

WARNING
Use softener salt specifically made for use in dishwashers.
SALT REFILL INDICATOR

WARNING
If the salt indicator light comes on during a program, wait until the end of the program to fill the salt dispenser with dishwasher salt. After the salt dispenser has been filled, the refill indicator may still be lit up if the salt concentration has not yet reached the correct level. It will go out when the correct concentration is reached.

NOTE
The salt refill indicator will turn off if you have programmed the dishwasher for a water hardness below 9^ .
The salt dispenser should be refilled after every 20-30 cycles (approx. 0.6kg

WARNING
Before cleaning or carrying out maintenance, switch off the appliance, disconnect the mains plug and turn off the water tap. Your dishwasher can only be repaired by an authorized service agent.

WARNING
All surfaces are susceptible to scratching. Contact with unsuitable cleaning agents can alter or discolor all surfaces.

WARNING
Keep the floor around your dishwasher clean and dry to prevent any possible injury. We recommend keeping your dishwasher clean, empty and with doors slightly open to allow air to circulate in of any extended unused time.
The dishwasher door can be damaged by abrasive cleaners, scouring pads, abrasive cloths. Cleaning the machine at regular intervals prolongs the machine's service life.
Oil and limescale may accumulate in the machine's washing section. In case of such accumulation, fill the detergent compartment without loading any dishes into the appliance, select a program that runs at a high temperature, and start the dishwasher. If not enough, use special cleansing agents available on the market.
To clean any residue that has accumulated in the door seals, wipe the seals regularly using a damp cloth.
Clean the appliance, filter, and spray arms at least once a month. Unplug your machine and turn off its tap before cleaning. Do not use hard materials when cleaning your machine. Wipe with a soft cleaning material and a damp cloth.

WARNING
To avoid water infiltration in the door lock and electrical components, do not use a spray cleaner of any kind directly on the dishwasher.
| MATERIAL | PROCEDURE |
| Stainless steel | Use a non-abrasive steel detergent and apply with a soft lint-free cloth. To bring out the natural luster, lightly wipe surface with a water-dampened microfiber cloth followed by a dry polishing chamois. Always follow the grain of the stainless steel. |
| Control panel | Wipe with a damp cloth. |
| Dishwasher racks | Wipe with a damp cloth. |
| Interior | Wipe interior, door edge, and rubber seal with a damp cloth. If necessary, spray household cleaner on the cloth. Do not spray directly on the door. Use a dishwasher cleaner (follow the instructions on the package) or place 1 cup of vinegar and 2 tbsp of baking soda in a container on the middle rack and run a Heavy Wash cycle. |
| Spray arms | Place under running water and use a paper clip or similar to remove debris from holes. |
| Filter | Clean with soap and water. For hard-to-remove soils or calcium deposits, use a soft brush. Do not use a wire brush or scouring pad. |
| Gasket | Wipe with a damp cloth. Use warm soapy water and a toothbrush. If mold or mildew are present, spray with 3% hydrogen peroxide. |
After every wash, it is recommended to close the water If the appliance must be moved, try to keep it in a vertical supply of the appliance and leave the door slightly open position. If absolutely necessary, it can be positioned on its a while so that moisture and odours do not get trapped back. inside.
When you plan to not use the dishwasher for a long period of time, it is recommend to run a wash cycle with the dishwasher empty and then remove the plug from the socket, turn off the water supply and leave the door of the appliance slightly open. This will help the door seals to last longer and prevent odours from forming within the appliance.
SPRAY ARMS
The upper and lower spray arms can be removed for cleaning.
Periodically check whether the holes for the upper and lower spray arms are clogged. If you see any clogging, remove the spray arms and clean them under running water.
The impellers should be cleaned once a week for the appliance to operate efficiently.
To remove the upper spray arm:
1) Hold the nut and rotate the arm counterclockwise.

Fig. 77
To remove the lower spray arm:
1) Pull out the spray arm upward.

Fig. 78
2) Wash the arms in soapy and warm water and use a soft brush to clean the jets. Reposition them after rinsing them thoroughly.

Fig. 79
FILTER
The filter should be cleaned often. Heavy use may require more frequent cleaning.
Periodically check whether there is any food waste left on the coarse and fine filters. If there is any food waste left, remove the filters, and clean them thoroughly under running water.
To take out the filter from the dishwasher, first remove the lower rack and lower spray arm.

Fig. 80
a. Micro Filter
b. Coarse Filter
c. Metal/Plastic Main Filter
1) Hold the coarse filter and rotate it counterclockwise to unlock the filter. Lift the filter upwards and out of the dishwasher.
2) The micro filter can be pulled off the bottom of the filter assembly. The coarse filter can be detached from the main filter by gently squeezing the tabs at the top and pulling it away.
3) Larger food residues can be cleaned by rinsing the filter under running water. For a more thorough clean, use a soft cleaning brush.
4) Reassemble the filters in the reverse order of the disassembly, replace the filter insert, and rotate clockwise to the close arrow.

WARNING
Do not over tighten the filters. Put the filters back in sequence securely, otherwise coarse debris could get into the system and cause a blockage.

WARNING
Never use the dishwasher without filters in place. Improper replacement of the filter may reduce the performance level of the appliance and damage dishes and utensils.
DRAIN PUMP
Large food residues or foreign objects which were not captured by the filters may block the waste water pump. The rinsing water will then be above the filter.

WARNING
Warning Risk of cuts
When cleaning the waste water pump, ensure that you do not injure yourself on pieces of broken glass or pointed implements.
In this case:
1) First always disconnect the appliance from the power supply.
2) Take out baskets.
3) Remove the filters.
4) Scoop out water, use a sponge if required.
5) Check the area and remove any foreign objects.
6) Install filters.
7) Re-insert baskets.
FAULT POSSIBLE CAUSE TROUBLESHOOTING
| The program does not start. | Your dishwasher is not plugged in. Plug your dishwasher in. | |
| Your dishwasher is not switched on. Switch your dishwasher on by pressing the On/Off key. | ||
| Fuse blown. Check your indoor fuses. | ||
| Water inlet tap is closed. Turn on the water inlet tap. | ||
| Your dishwasher door is open. Close the dishwasher door. | ||
| Water inlet hose and machine filters are clogged. Check the water inlet hose and machine filters and make sure they are not clogged. | ||
| Water pressure is low. Check that the water supply is connected properly and the water is turned on. | ||
| Water remains inside the machine. | Water drain hose is clogged or twisted. Check the drain hose, then either clean or untwist it. | |
| The filters are clogged. Clean the filters. | ||
| The program is not finished yet. Wait until the program is finished. | ||
| The kitchen sink is clogged. Check the kitchen sink to make sure it is draining well. If the problem is the kitchen sink that is not draining, you may need a plumber rather than a serviceman for dishwashers. | ||
| Machine stops during washing. | Power failure. Check mains power. | |
| Water inlet failure. Check water tap. | ||
| There is foam in the tub. | Wrong detergent. Only use dishwasher detergent. Open the dishwasher and let suds evaporate. Add 1L of cold water to the bottom of the dishwasher. Close the dishwasher door, then select any cycle. Initially, the dishwasher will drain out the water. Open the door after draining stage is complete. | |
| Spilled rinse-aid. Always wipe up spills immediately. | ||
| Rattling noise during a wash cycle. | Items of crockery are loose in the dishwasher. Interrupt the program and rearrange the items of crockery. | |
| Shaking and bumping noises are heard during a wash cycle. | The spray arm is hitting the dishes in Move or remove items blocking the spray arm. | |
FAULT POSSIBLE CAUSE TROUBLESHOOTING
| Dishes are not clean. | Dishes placed incorrectly, sprayed water not reaching affected dishes. | Do not overload baskets. |
| Dishes leaning against each another. | Place dishes as instructed in the section on loading your dishwasher. | |
| Not enough detergent used. | Use the correct amount of detergent, as instructed in the program table. | |
| Wrong wash program selected. | Use the information in the program table to select the most appropriate program. | |
| Spray arms clogged with food waste. | Clean the holes in the spray arms with thin objects. | |
| Filters or water drain pump clogged filter misplaced. | Check that the drain hose and filters are correctly fitted. | |
| There are whitish stains left on the dishes. | Not enough detergent used. | Use the correct amount of detergent, as instructed in the program table. |
| Rinse-aid dosage and/or water softener setting set too low. | Increase rinse-aid and/or water softener level. | |
| High water hardness level. | Increase water softener level and add salt. | |
| Salt compartment cap not closed properly. | Check that the salt compartment cap is closed properly. | |
| Dishes do not dry. | Drying option is not selected. Select Improper loading of dishwasher. | a program with a drying option. Use gloves if detergent residue can be found on dishes to avoid skin irritations. Make sure to place cups and glasses at an angle against the wire cup tray in the upper basket. |
| Rinse-aid dosage set too low. Increase rinse-aid dosage setting. | ||
| Dishes are removed too soon. | Do not empty your dishwasher immediately after washing. Open the door slightly so that the steam can come out. Take out the dishes until the inside temperature is safe to touch. Unload the lower basket first to prevent the dropping water from the upper basket. | |
| Black or grey marks on dishes. | Aluminium utensils have rubbed against dishes. | Use a mild abrasive cleaner to eliminate those marks. |
| Rust stains have formed on the dishes. | Stainless-steel quality of the dishes is insufficient. | Use only dishwasher-proof sets. Adjust the water hardness level using the water hardness table. |
| Salt compartment cap not closed properly. | Check that the salt compartment cap is closed properly. | |
| Too much salt spilled in the dishwasher while filling it with salt. | Use funnel while filling compartment with salt to avoid spillage. | |
| Poor mains grounding. | Consult a qualified electrician immediately. | |
| FAULT POSSIBLE CAUSE TROUBLESHOOTING | ||
| Detergent was added when the detergent compartment was wet. | Make sure detergent compartment is dry before use. | |
| Improper loading of dishwasher. | Use gloves if detergent residue can be found on dishes to avoid skin irritations. Make sure to place cups and glasses at an angle against the wire cup tray in the upper basket. | |
| Detergent remains in the detergent compartment. | Dishes are removed too soon. | Do not empty your dishwasher immediately after washing. Open the door slightly so that the steam can come out. Take out the dishes until the inside temperature is safe to touch. Unload the lower basket first to prevent the dropping water from the upper basket. |
| Cloudiness on glassware. | Combination of soft water and too much detergent. | Use less detergent if you and select a shorter cycle to wash the glassware and to get them clean. |
| FAULT CODE POSSIBLE FAULT WHAT TO DO | ||
| E1 | Longer water inlet time | Make sure the water inlet tap is open and water is flowing. |
| Separate the inlet hose from the tap and clean the hose filter. | ||
| Contact service if the error continues. | ||
| Make sure the water pressure is not too low for the appliance. | ||
| E3 | Water not reaching required temperature | Contact service. |
| E4 | Overflow | Unplug the machine and close the tap. |
| Contact service. | ||
| Ed | Failure of communication between main circuit board and display circuit board | Contact service. |
| Ec | Failure of the washing control system | Contact service |
| L4 | Motor failure | Contact service |
| Auto Dose system function indicator | Communication failure or motor stall of the Auto Dose system | |

WARNING
If overflow occurs, turn off the main water supply before calling a service.
If there is water in the base pan because of an overfill or small leak, the water should be removed before restarting the dishwasher.
If there is an error code that cannot be solved, please request professional assistance.

Bertazzoni is committed to providing the highest quality service to our customers. In the unlikely event that your product should have a manufacturing defect, please contact our service team at:
https://uk.bertazzoni.com/more/care-service
You will be requested to provide product information, proof of purchase, a photo of the silver data label and a description of the issue. Please have this information ready.
DALLA SCRIVANIA DEL PRESIDENTE
Gentile Cliente,
Déclaration CE DE CONFORMITÉ
You will be requested to provide product information, proof of purchase, a photo of the silver data label and a description of the issue. Please have this information ready.
VAN HET BUREAU VAN ONZE VOORZITTER
EU ecodesign-wetgeving.
ALGEMEEN AANZIEN
The drain hose must be installed with a 30^ (762 mm) high drain loop for drain hook-ups without any air removed.
You will be requested to provide product information, proof of purchase, a photo of the silver data label and a description of the issue. Please have this information ready.
FRAN CHEFENS SKRIVBORD
MATERIAL SOM KAN KOMMA ATT BEHÖVAS
OVERKORGENS VIKBARA PINNAR OCH HYLLOR
ATT ANVANDA SPOLGLANS
ATT FYLLA PÁ SPOLGLANS OCH STÄLLA IN DEN
https://SE.bertazzoni.com/more/care-service
You will be requested to provide product information, proof of purchase, a photo of the silver data label and a description of the issue. Please have this information ready.
INSTALLATIONSMANUAL 312
SPECIFKATIONER 312
GENERELTDUSEENDE 312
TEKNISKE SPECIFICATIONER 312
INSTALLATION 313
UDSKAERINGMÄL 313
BRUGERTILPASSET LAGEPANEL (TIL PANELFORBEREDTE MODELLER) 313
PLACERING AF OPVASKEMASKINEN 314
ELEKTRISKE KRAV 315
VVS-KRAV 315
INSTALLATION 318
BRUGS-OGVEDLIGEHOLDELSESVEJLEDNING 326
BRUG 326
KOMGODTGANG 326
PLACERING AF TALLERKNER 327
OVERSTE STATIV 328
NEDERSTE STATIV 328
TREDJE STATIV (AFH/ENGIGT AF MODEL) 329
BESTIKKURV (AFHæNGIGT AF MODEL) 330
FORKERT FYLDNING 330
HVAD BØR IKKE VASKES I OPVASKEMASKINEN? 331
STATIVER 332
BETJENINGSPANEL 339
FUNKTION 340
OPVASKEMIDDEL OG AFSPENDINGSMIDDEL 346
SALTDISPENSER (TIL MODELLER MED VANDBLGORER) 353
RENGORGINGOGPLEJE 356
SPRØJTEARME 357
FILTER 357
UDLØBSPUMPE 358
FEJLFINDING 359
AUTOMATISKADEVARSLER OM FEJL 362
GARANTIOG SERVICE 363
GARANTIOG SERVICE 363
The drain hose must be installed with a 30^ (762 mm) high drain loop for drain hook-ups without any air removed.
https://DK.bertazzoni.com/more/care-service
You will be requested to provide product information, proof of purchase, a photo of the silver data label and a description of the issue. Please have this information ready.
www.bertazzoni.com
Via Palazzina, 8
42016 Guastalla RE
EasyManual