DW60S3IBPSS - Diskmaskiner BERTAZZONI - Gratis bruksanvisning och manual
Hitta enhetens manual gratis DW60S3IBPSS BERTAZZONI i PDF-format.
Questions des utilisateurs sur DW60S3IBPSS BERTAZZONI
0 question sur cet appareil. Repondez a celles que vous connaissez ou posez la votre.
Poser une nouvelle question sur cet appareil
Ladda ner instruktionerna för din Diskmaskiner i PDF-format gratis! Hitta din manual DW60S3IBPSS - BERTAZZONI och ta tillbaka ditt elektroniska enhet i hand. På denna sida publiceras alla dokument som behövs för att använda din enhet. DW60S3IBPSS av märket BERTAZZONI.
BRUKSANVISNING DW60S3IBPSS BERTAZZONI
Bäste ägare till en Bertazzoni-apparat,
Tack for att du har valt en av vara kvalitetsapparater till ditt hem.
Min familj har tillverkat spisar i Italien sedan 1882 och under vagen har vi skaffat ossett grundmurat gott rykte for vara utmärkta tekiskaprodukter - nagot som fotts ur var passion for god mat.
Väraprodukter stoltserar idag med en exklusiv och typisk italiensk design i absolut teknik toppniva. Vär mission ar att tillverka hushállsapparater som fungerar perfekt och som skänker glädje at den som användem dem.
Vi svarar pa vara kunders behov genom att tillverkaprodukter med mycket hoga estetiska varden. Vara hushallsapperater ar dessutom mangsidiga och lattanvanda, sa att laga mat med dem blir till ett rent noje.
Denna handbokkommen att hjälpa dig att lara dig att ta hand om din Bertazzoniprodukt pa allra basta och sakkraste vis, sa att du kan fä full tillfredsstellelse dà du använder den i鬆nga,鬆nga ár.
Njut!
Paolo Bertazzoni
Verkställande Direktör

ANVÄNDARHANDBOKENS GILTIGHET
Dessa instruktioner ar lampliga forflera olika typar av apparater, sa de kan innehalla beskrivningar av functiomer som kanske inte stods av uller finns pa din apparat.
Bilder och illustrationer i detta Dokument refererar till olika modeller och kan variera en aning frän den produit du harköpt.
Tillverkaren ansvarar inte for personskador eller skador pa eigendom som beror på felaktig installation eller felaktig användning av apparaten.
Tillverkaren forbahller sig ratten att modifiera de olika modellerna for att uppfylla gallande sakerhetsforeskrifter.
Vid eventuella reklamationer, var god kontakta Kundtjänst.
Läs noga alla instruktioner i denna handbok innan du installerar och/eller anvander apparaten. Detta kommt att hjälpa dig lara kanna din nga apparat. Förvara detta dokument nara till hands sa att du kan lasa det nar sá kravs, och se till att det medfoljer till en eventuell ny ägare.
Läs sakerhetsmeddelandena i introduktionen tillenna handbook, och observera speicielt sakerhetsanmärkningarsasom: "Observera", "Varning" och "Fara" som visas i texten.

FARA
Denna symbol visar på en situation som kan vara en fara for dig och for andra personer. Las texten noggrant och se till att du har forstatt exakt vad som kan utgora orsak till eventuell fara eller olycka med dodlig utgang.

WARNING
Denna symbol visar sakerhetsinformation. Las texten noggrant och se till att du noga har forstatt ansakerna till potentiellt farliga olyckor.

OBSERVERA
Denna symbol visar på en procedur som kan äventyra apparatens stonne eller komponenter. Var speziellt fösiktig med dessa procedurer.

ANMÄRKNING
Denna symbol markerar metoder aller procedureforskorrekt anvandning av apparaten.
Modell, saljkod och serienummer ar tryckta på typskylten. Se avsnittet Specifikationer ienna handbok for placeringen av typskylten.

ANMÄRKNING
Du bör notera apparatens data och serienummer sa att de omedelbart finns till hands om dessa uppgifter behövs.

ANMÄRKNING
Uppge informationen som anges pa typskylten for att forbätra effektiviteten hos Kundtjänst och reservdelsavdelningen. For garantiändamål behöver du också installationsdatum och namnet på din auktoriserade Bertazzoni-Äterforsäljare.
SÄKERHETSINFORMATION

WARNING
När du använder din diskmaskin skau du alltid följa vissa grundläggande forsiktighetsatgärder. Läs alla instruktioner innan diskmakinen används. Spara dessa instruktioner och overlamna dem till en eventuell fremtida användare.
- Använd endast diskmaskinen für sin avsedda användning.
Denna apparat ar endast avsedd for anvandning i hemmet. - Använd endast diskmedel som rekommenderas for användning i diskmaskin, och halldem utom räckhäll for barn.
-
Dá du lastar in disk:
-
Placera vassa foredaal sa att de inte kan skada luckans forsegling, och
-
Placera vassa knivar med handlagen uppåt for att minska risiken for skärskador.
-
Diska inte plastfremål sävida de inte ar märkta med diskmaskinssymbolen eller liknande. För iced-märkta plastfremål skau du kontrollera tillverkarens rekommendationer.
- Rör inte vid värmeelementet under aller direkt after användning.
Manipulera inte kontrollpanelen. - Använd inte din diskmaskin om inte alla skyddär korrekt monterade.
- Avlagsna inte diskgodset fällän diskprogrammet ar fälligt.
Var forsiktig när du öppnar luckan, für att undvika skada, bäde under och afterett diskprogram - detta eftersom hett vatten eller Angela kan komma ut. - Kontrollera att diskmedelsf Jacket er somt d'programmet er klart.
- Vissa diskmedel für diskmaskiner ar mycket alkaliska. De kan vara mycket farliga att svälja. Undvik kontakt med hud och ögon och halb barn borta frän diskmaskinen nar luckan ar öppen.
- Sitt aller sta aldrig pa den öppna luckan eller pa diskkorgen. Apparaten kan välta framåt.
Korgarna for koppar ar avsedda for att halla koppar, glas och diskkorgen. Luta dig inte mot dem, och anvand inte korgarna for att stodja din vikt. - För att undvika snubbelmisk skä du inte lamna diskmaskinens lucka öppen.
- Lat inte barn leka med ell er inuti diskmaskinen (EN60335-1).
- Då barn ar gamla nog att börja använda apparaten ar det din skyldighet att se till att de fär korrekt information angäende sakerhetskraven ienna handbok.
Denna apparat ar inte avsedd att anvandas av personer (inkl. barn) med reducerad fysisk, kanslomassig ell er mental formaga aller bristande erfarenhet och kunskap, savida de inte fär vigledning aller instruktioner om anvandningen av apparaten av en person som ansvarar for deras sakerhet (IEC 60335-1).
Denna apparat maste jordas. Vid elfel,kommen en jordning att reducera risken for elchock genom att utgora en minsta-motstandets-vag for elstrommen. Denna apparat har en strömkabel med en elektrisk jordledare for utrustingen och en jordningsströmkontakt. Kontakten skull stickas in i korrekt vagguttag som skall vara installerat och jordat enligt alla gängse normer och bestammelser.

WARNING
Olamplig koppling av utrustningsjorden kanresultera i risk for elchock. Hör med enkvalificerad eltekniker aller serviceteknikerom du har nagot tvivel om att apparateninte ar korrekt jordad.Modificera inte den strömkontakt som leveraderes med apparaten om den inte passar vagguttaget. Lat istallet en kvalificerad elektrikerinstallera ett nytt vagguttag.

WARNING
Innan nāgon typ av underhäll gös mastemaskinen stängas av och skiljas fran strömforande nat.
Använd inte högtryckstvätt eller Angela für att rengörar apparaten.
Se till att det inte finns nagra synliga lackor under och after forsta anvandning av apparaten.
- För att undvika skador på golv och eventuell mogeltillväxt ská du inte lata vata ligga kvar rund eller under diskmaskinen.
- För att undvika skada på diskmaskinen skä du inte lata vatten stå kvar i diskmaskinens system genom langre fryssperioder.
- Forvara och använd aldrig brandfar Liga material eller vatskor inuti, i narheten av eller ovanpå denna apparat.
Under vissa villkor kanvatgas uppsta i ett varmvattensystem som inte anvants under tva veckor eller mer. VATGAS AR EXPLOSIV. Om varmvattensystemet inte anvants under tva aller fler veckor, skall du lata varmvatten floda under ett par minutes ur alla kranar. Detta kommt att frigora eventuell vatgasansamling. Eftersom gasen ar brandfarlig skall du inte roka aller anzenda oppen eld underenna tid.
- Kontrollera vatteninloppet regelbundet. Den kan gå sönder. Den blir mindre flexibel med tiden. Byt genast ut den om den ar trasig, med hal, ser svullen ut eller om d ser vattenlackage.
- Koppla loss apparaten fran elnätet fore rengöring och underhall.
När du laddar diskmaskinen, placera vassa foremål sa att de inte skadar lucktätningen.

WARNING
Knivar och andra koksgerad med vassa spetsar maste laddas i korgen med spetsarna vanda nedat aller placeras horisontellt.
ATERVINNING
Förpackningsmaterial skyddar maskinen fran skador som kan uppsta under transport. Förpackningsmaterialen ar miljövänliga eftersom de ar atervinningsbara. Användning av atervunnet material minskar forbrukningen av ravaror och minskar avfallsproduktionen.
Vissa maskinkomponenter och forpackningar bestar av atervinningsbara material:
- Plast ar märkt med internationella förkortningar: (>PE<, >PP<, etc.)
- Kartongdelarna bestar av atervunnet papper. De kan laggas i pappersbehallare for atervinning.
- Material olampliga for hushållsavfall skall tas om hand på atervinningscentraler.
- Kontakta en relevant Ātervinningsstation für att fā information om kassering av olica material.
EG-FÖRSÄKRAN OM ÖVERENSSÄMMELSE
Vi forsakrar att varaprodukter uppfyller de gallande EU-direktiv, beslut och forordninger och de krav som anges i de standarder som det refereras till.
KASSERING AV DIN GAMLA MASKIN

Denna symbol på produit eller forpackningen innebär att produits inteör behandlas som hushállsavfall. I stället skall den overlamnas till lamplig insamlingsplats for atervinning av elektrisk och elektronisk utrustning. Genom att sakerstalla en korrekt kassering av denna produit bidrar du till att forhindra potentiella, negativa konsekvenser for var miljo och var halsa, som annars kan bli foljen om produits inte hanteras på rätt satt. För mer detaljerad information om atervinning av denna produit, kontakta dina lokala myndigheter, atervinningscenter aller butiken darüber du harköpt produits.


Fig. 1
ANMÄRKNING
Eftersom vi stravar after att kontinuerigt forbätra varaprodukter kan specifikationer och design andras utan foregående varning. Denna apparat overensstämmer med foljande direktiv:
EU:s ekodesignlagstiftning.
ALLMÄNT UTFÖRANDE
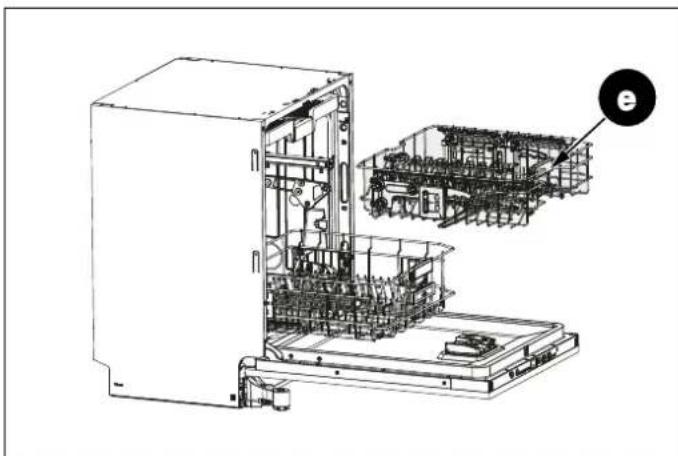
1) Overkorg
2) Ovre spolarm
3) Underkorg
4) Undre spolarm
5) Tredje korg (beroende pa modell)
6) Övre spolarmunstycke (beroende på modell)
7) Bestickkorg (beroende pa modell)
8) Filter
9) Markplatta
10) Kontrollpanel
11) Diskmedels- och spolglansfack
12) Saltbehallare
13) Ovre korg sparsparr

ANMÄRKNING
Bilden ar endast representativ, vissa modeller kan variera nagot.
TEKNISKA SPECIFICATIONER
| Tillätet vattentryck | 0,04 - 1 MPa (0,4 - 10 bar) |
| Elanslutting | 220-240 V (volt), 10 A (ampere), 50 Hz (hertz) |
| Total effekt 1760 - 2100 (W) | |
| Uppvärmningseffekt | 1800 W |
UTTAGSMÄTT
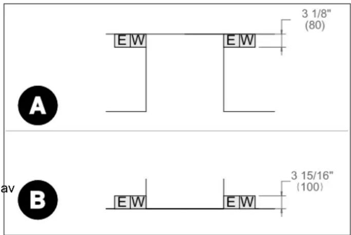
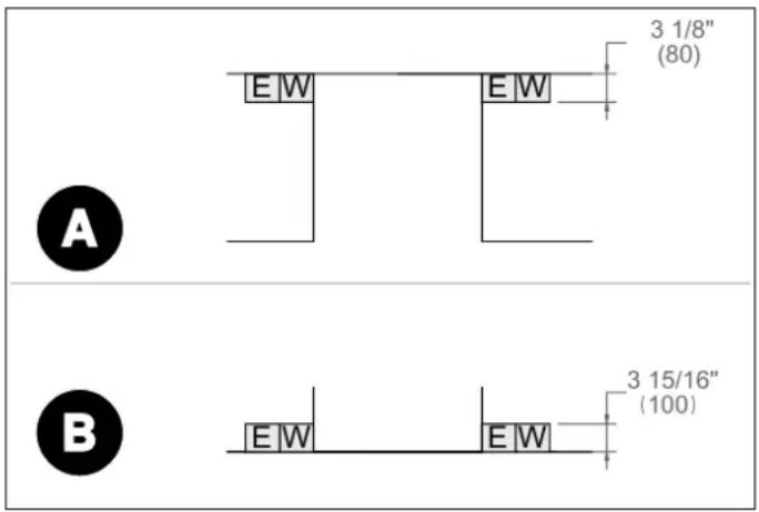
Skapets djup visas och inkluderar koksskapets frontpanel. For en helt jamm installation kravs ett minsta infällningsdjup om 580 mm (22 13/16") med en tjocklek på frontpanelen om 20 mm (3 / 4^ )

VY FRAN OVAN

VY FRAN SIDAN
Fig. 4
C 820 mm - 870 mm (32 1/4" - 34 1/4")
ANPASSAD DÖRRPANEL (För PANELFÄRDIGA MODELLER)
Fig. 2
Tjocklen på frontpanelen kan variera. En minst 15 mm (9/16") tjock panel kravs, men tjocklen kan ökas sä länge panelen inte väger mer än 11 kg (24 lbs). Min. panelvikt ar 5 kg (11 lbs). Bifogad frontpanelsmall visar paneler med mätten som specificeras nedan.
A 580 mm (22 13/16")

VY FRAMIFRAN
Fig. 3
B 600 mm (23 5/8")
VY FRAMIFRAN

Fig. 5
D 728 mm - 808 mm (28 11/16" - 31 13/16")
E 595 mm - 597 mm (23 7/16" - 23 1/2")
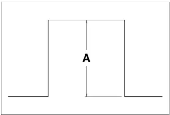
Höjden på en anpassad sockel kan variera beroende på höjden på utskärningsöppningen och luckpanelen, men maste vara inom följande område:
0 - 80 mm (0" - 3 1/8")
Om diskmaskinens fötter hojs kan sockeln hojas med ytterligare 50~mm (2^ )
Ett utrymme på minst 3 mm (1/8") kravs mellan sockeln och panelen.
ATT PLACERA DISKMASKINEN
När du placerar maskinen, placera den i ett område)där disken latt kan laggas i och plockas ur. Placera intemaskinen i ett område darr omgivningstemperaturensjunker under 0^
Läs alla varninger på förpackningen innan du tar bort förpackningen och placerar maskinen. Placera maskinen
nara en vattenkran och avlopp. Tank pa att anslutningarnb. Lucka till diskmaskin.
inte andras när maskinen ar pa plats.
Diskmaskinen har slangar for vattenforsorjning och tömning som kan placeras på antingen höger eller vänster sida for att underlättä lamplig installation.
Lämna ett tillräckligt avstand runt maskinen for att underlatta rörelse vid rengöring.

OBSERVERA
Håll inte maskinen i dess lucka eller panel.

OBSERVERA
Se till att vatteninlopps- och utloppsslangarna inte klams aller fastnar och att maskinen inte star på elkabeln nar den placeras.
Justera stödbenen sa att maskinen star plant och i balans. Maskinen ska placeras pa plant underlag, annars ar den instabil och maskinens lucka stangs inte ordentlich.

OBSERVERA
Installera dekorationspanelen enligt anvisingarna pa monteringsarket. I annat fall kanske dorren inte oppnas ordentligt och problem med anglackage kan uppsta.
Om diskmaskinen placeras i hörnet av skåpet skä det finnas ett visst fritt utrémme nar luckan öppnas.
Om diskmaskinen placeras intill ett hörnskap ske ytterligare utrymme lämnas sa att luckan kan öppnas.

Fig. 6
a. Diskmaskin.
b. Lucka till diskmaskin.
c. Skap.
d. Min. utrymme 50~mm

ANMÄRKNING
Beroende på var eluttaget sitter kan du behöva góra ett hal i den motsatta skápsidan.
ELEKTRISKA KRAV
Kontrollera den elektriska standarden och lokala foreskrifter innan du installerar apparaten.
Anslut till en korrekt märkt, skyddad och dimensionerad nätkrets - delta for att undvika elektrisk überbelastning. Diskmaskinen ar utformad for en stromforsörjning pa 220-240 V (volt), 50Hz (hertz) som ansluts till en separat, korrekt jordad elektrisk krets som endast stromforsörjerenna apparat, med en sakring/brytare klassad for 10 A. Anslutprodukten tillett jordat strömuttag som ar skyddaten sakring/propp. Maskinens jordade stickkontakt maste anslutas tillett jordat vagguttag med passande nominell spanning och markström.
Om natspanninger till din maskin ar 110 V sha du ansluta en transformator for 110/220 V och 3 000 W mellan elanslutningen.
Anslut aldrig jordkabeln till gasledning, varmvatteninlopp erler andra rorledninger.
Använd inte nàgon forlängningskabel aller Lös fordelardosa für att ansluta diskmaskinen tillett vagguttag.
Dessa krav mäste motas für att forbindra skador och skador pa maskinen. Kontakta en behörig elektriker om tvekar.

Fig. 7
A VY FRAN OVAN
B VY FRAMIFRÁN

Ett korrekt jordat, vagratt installeratel elektriskt vagguttag maste installereras enigt ritningen nedan.
Anslutningarnas placering ske vara pa endera sidan om uytskärningen.

ANMÄRKNING
Kontakten pa den har apparaten kan innehalla en 13 A-sakring beroende pa destinationsland (UK, Saudarabien)
VVS-KRAV
Installationen maste uppfylla kraven i tillampliga, lokala regler for VVS.
Placera vatteninlopp och avloppsör i skåpet intill.

ANMÄRKNING
Diskmaskinen maste anslutas till en inloppsslang med kallt vatten.

WARNING
En slang som ansluts till en kran kan brista om den installeras på sama vattenledning som diskmaskinen. Om din diskho har en sādan rekommenderar vi att koppla loss slangen och plugga igen hålet.
Vi rekommenderar att du monterar ett filter pa vatteninloppet fort affhindra skador pa din maskin pa ground av fororeninger (sand, rost, etc.) fran rordragningen inomhus. Detta hjalper ocksa till att forhindra att det gulnar och det sker avlagringar after disk.
Kanterna på öppingen måste vara jämna och runda.
Vatteninloppet kan anslutas till diskmaskinen med antingen:
En flatad metallslang
Kopparrö
Använd den nga vatteninloppsslangen som medfoljer din maskin, använd inte en gammal masks slang.
Kör vatten genom den nya slangen innan du ansluter. Denna forsiktighetsatgård ar nödvändig for att undvika risiken for att vatteninloppet skä blockeras och skada apparaten.
Anslut kallvattenslangen till en gängad 3 / 4" koppling och dra at den ordentlich pa plats. Det tryck som levereras av kranen borbara min.0,3 bar (0,04 MPa) och max.10 ba MPa). Om trycket overstiger 10 bar (1 MPa) maste en tryckavlastningsventil monteras mellan anslutningen.
När anslutningarna År gjorda, vrid på kranen helt och kontrollera om det finns vattenlackage.
En sakerhetsforsorjningssslang ar tillganglig for vissa modeller. Systemet sakerstaller dess intervention genom att blockera vattenflodet i handelse av ett brott i forsorjningssslangen och nar luftgapet mellan sjalva forsorjningssslangen och den yttre korrugerade slangen ar full av vatten.
For att ansluta en sakerhetsforsorjningsslang:
1) Dra ut sakerhetsforsorjningsslangen fran forvaringsutrymmet baktill pa diskmaskinen.
2) Dra at sakerhetsforsorjningssslangens skruvar pa kranen med 3/4"-ganga.
3) Satt pa vattnet for fullt innan diskmaskinen startas.
For att kopla loss en sakerhetsforsorjningsslang:
1) Stäng av vattnet.
2) Skruva loss sakerhetsforsorjningsslangen fran kranen.
Anslut vattentömmingsslangen direkt till vattenavloppsledningen aller diskhons utloppskran. Denna anslutning sca vara min. 30 cm och max. 100 cm frang golvet dar diskmaskinen placerats.
Slangens friä,ande fär inte sankas ned i vatten for att forhindra backflode.

WARNING
Om anslutningen till tömningsledningen placeras högre an 1000 mm kan överskottsvatten stanna kvar i tömningssslangen. Det blir dä nödvändigt att tomma överskottsvatten frän slangen i en skål erler lamplig behällare som hälls utanfor och lagre an diskhon.

Fig. 8
A.max.100 cm
B.min 30 cm
C.min 4 cm
Blas ur vatteninloppet innan du slutgiltigt ansluter apparaten.
Detta kommt att avlagsna eventuellt skrapp i ledningen dà den nya vatteninloppsslangen installeras. Anslut den flâtade slangen fran encheten till hushallets vatteninlopp med hjälp av den medfoljande kopplingen.
Kontrollera alla kopplingar for att se om de laxer.

ANMÄRKNING
Föremälkommeninteattiskasordentigt om en tommingsslang som ar langre an 4 m används.
Varje avfallsanslutning maste vara inom 1000 mm (max.) av diskmaskinens botten.
Dessa krav maste uppyllas for att forhindra personskador och skador pa maskinen. Kontakta en kvalificerad rormokare om du ar osaker.

Fig. 9
A VY FRAN OVAN
B VY FRAMIFRAN

For att ansluta vattenforsorjningen till vatteninloppets ventilganga, anvand en 3/ 4^ -gangad anslutning (medfoljer ej).
INSTALLATION
VERKTYG SOM KAN KOMMA ATT BEHÖVAS

Fig. 10
1 Rortang
2 Halsag
3 Mattband
4 Skiftnyckel
5 Niva
6 Avbitartang
7 Hammare
8 Torxmejsel (T20)
9 Vanlig skruvmejsel
10 Borste
11 Borr
12 Skaltang
13 Stjärnskruvmejsel
14 Sax
15 Blyertspenna
Andra material kan behövas beroende på lokala foreskrifter)

Hetvatteninlopp - Minst kopparrormed 3 / 4" utsidesdiameter erler flatadmetallslang for diskmaskinensvatteninlopp.

UL-certifierad resistanskontakt aller belastningsavlasting.

Teflontepller annan blandning for tätning av rörledningsansluttingar.

Avstängningsventil och kopplingar som passar for hetvatteninloppet (kopparrör/kompressionskoppling aller flatad slang).

Silikon

Lim
MEDFÖLJANDE MATERIAL
De erforderliga delarna for att placera diskmaskinen finns plastpäsarna. Kontrollera att foljande delar finns i plastpäsarna.
VIKTIG SAKERHETSINFORMATION
Förutom att du foljer dessa sakerhetsinstruktioner vid installation,cka diskmaskinen installeras i enlighet med alla lokala bestammelser.
Dà du installerar diskmaskinen, folj grundläggande forsiktighetsatgärder, inklusive:
Installation och reparation ska utforas av kvalificerad installer. Arbete utfort av iche-kvalificerad person kan bade vara farlig och kan gora att garantin forfaller.

ANMÄRKNING
Diskmaskinen ske installeras av en forsakrad och auktoriserad VVS-montor, behörig byggentreprenör eller behörig installationstekniker. Installation utförd av andra personer an dessa kan resultera i inkorrekt installation och skador på egendom.
- Använd inte apparaten om den är skadad, fungerar däligt, är delvis nedmonterad aller om den har delar som fattas eller är trasiga.
- Färe all installation och service, skilj apparaten frän strömforande nat, genom att ta ut kontakten ut vagguttagen, trigga automatssakringen eller genom att ta ut sakringen/proppen.
- Anslut diskmaskinenigen Först dä allt installations- och VVS-arbete ar klart.
- Anslut aldrig jordkabeln till gasledning, varmvatteninlopp erler andra rorledninger.
1 Om diskmaskinen installeras pa en plats som kan utsattas for fygrader (t. ex. sommarhus, stuga, etc) maste allt vatten draineras ur diskmaskinens inre. Skador som uppstar i vattensystemet pa grund av fryst vatten tacks inte av garantin.
Diskmaskinen maste fästas till inbyggnadsskapet med hjalp av de medfoljande beslagen. Att inte gora detta kan fororsaka skada pa egendom aller persorskada.
Diskmaskinen ar endast avsedd for anvandning i hemmet och ska inte anvandas i kommersiellt foretag.

ANMÄRKNING
Använd inte;nagon förlängningskabel eller los fordelardosa for att ansluta diskmaskinen tillett vagguttag.

WARNING
Risk für kvävning! Se till alla plastfilmer, pāsar, smádelar etc blir sākert omhändertagna och att de hallas utom räckhall for barn.
INSTALLERA DEN YTTRE LUCKPANELEN (BEROENDE PÄ MODELL)
Innan installationen av den anpassade luckpanelen inleds, se till att mätten ar inom de områden som specificeras i avsnittet ANPASSAD DÖRRPANEL (För PANELFÄRDIGA MODELLER) ienna handbok.
Fäst kroken pa den estetiska panelen (Fig. 11) och placera den i spåret pa diskmaskinens yttre lucka (Fig. 12). När panelen har positionerats, tryck pa toppen av den estetiska panelen for att kontrollera att plastkroken har fäst.


Fig. 11
Fig. 12

ANMÄRKNING
I vilket fall som helst, for INTE in fingrarna sidohålen på diskmaskinens lucka eftersom detta kan medfora en allvarlig sakerhetsrisk.
Lämna INTE installationshalet öppet after installation. Plugga halen med gummipluggen omedelbart after installation for att undvika potentiella skador på barn.

ANMÄRKNING
Innan du monterar träluckan pa diskmaskinen ske du montera handtagen pa träluckan, se instruktionerna i Fig.13.

Fig. 13
Luckfjädrarna ar fabriksiinstälda på lämplig spansning for diskmaskinens yttre lucka.
Luckans fjaderspänning maste justeras after vikten pa den anpassade luckpanelen som installeras.
1) Justera spanningen i luckfjadrarna genom att vrida en insexnyckel medurs for att dra at de vänstra och högra luckfjadrarna.
2) Justera spanningen i luckfjadrarna genom att vrida en insexnyckel moturs for att lossa de vänstra och högra luckfjadrarna.

WARNING
Underlåtenhet att göra detta kan skada din diskmskin.
Luckans fjaderspänning ar korrekt nar luckan forblir horisontell i den welt öppna positionen, och lyfts enkelt till stängning med att finger.

Fig. 14
- Om luckan slár emot sparklisten: skär ut sá mycket so behövs frán sparklisten.
Applicera en silikonsträng pa den skurna kanten pa skapets sparklist aller mälä den sa att den inte kan absorbera fukt.

Fig. 15
ANGSKYDDSFOLIE
Anga kommt att komma ut dà diskmaskinens lucka öppnas under drift, och även dà diskprogrammet ár klart. För att forebygga att ánga ansamlas och skadar undersidan av arbetsbängen sca du anvanda en ángskyddsfolie - den finns i plastpåsen.
Rengör ytan med en fuktad trasa innan du fester ángskyddsfolien till arbetsbänkens undersida.

Fig. 16
Aptera kondensremsan under bankskivan i skapet. Se till att kondensremsan ar jams med bankskivans kant.

Fig. 17

OBSERVERA
Angskyddsfolien maste fastas dar angan kommer ut da luckan forst oppnas. Att inte fasta angi skyddsfolien under installationen kan leda till skada pa bade skapen och pa arbetsbanken.

Fig. 18
ATT PLACERA DISKMASKINEN I ÖPPNINGEN
Placera diskmaskinen pa sin plats i öppningen och gör dig redo for att koppla alla slangar och elektriska anslutninger
1) Anslut inloppsslangen till kallvattenforsorjningen.
2) Anslut tomningslangen.
3) Anslut natkabeln.
4) Placera diskmaskinen i skapet.

OBSERVERA
Se till att alla slangar har dragits fram genom sidooppningen pa skapet och att inga slangar har snott sig, och att slangen inte hanger los, se bilden.
ATT JUSTERA HOJDEN
1) Lämna de främre stödbenen i minsta Höjdjustering före och under placering av diskmaskinen i skapet.
2) Justera det främre stödbenet i vig med hjälp av en vanlig, rak skruvmejsel for att stabilisera diskmaskinen och lyfta den till korrekt Höjd.
3) Justera det bakre stödbenet i vag med hjälp av en stjärnskruvmejsel for att balansera diskmaskinen och lyfta den till korrekt Höjd.
Den bakre foten sitter i centrum vid fronten av apparatens bas.

ANMÄRKNING
Se till att diskmaskinen stared i vag och notera att diskmaskinen kan placeras med lite mellanrum till arbetsbängen.

Fig. 19
Diskmaskinen mäste vara i vag für att sakerställa korrekt Funktion hos diskställ och diskprestanda.
Placera ett vattenpass på luckan och korgskenan innate i trumman, se figur, for att kontrollera att diskmaskinen ar i vag.
Avvag diskmaskinen genom att justera de tre nivelleringspunkterma individuellt.

Fig. 20
a. Kontrolleran nivan fran front till baksida.
b. Kontrollera nivan fran sida till sida.

OBSERVERA
När diskmaskinen avvågs, se noga till att den inte välter.
FIXERA DISKMASKINEN I SKAPET
Diskmaskinen maste sakras i skapet.
Beroende pa skapet kan du valja fixering overst aller pa sidan. Den fasta operationen ar som foljer:
A. Normal arbetsyta: Placera installationskroken i spåret på sidoplanet och säkra den mot arbetsytan med skruvarna.

Fig. 21

ANMÄRKNING
Vrid slruvmejeln medurs for att oka hojden B. Arbetsyta av marmor eller granit: Fixera sidan med och moturs for att minska hojden. skruvarna.

ANMÄRKNING
Fötternas max. justeringshöjd ar 50 mm.

Fig. 22
ATT FÄSTA SPARKLISTEN
Följande alternatively ar tillgangliga. Folj de medfoljande instruktionerna.
Alternative 1: Fäst möbelns sparklist.

Fig. 23
- Alternativ 2: Fäst den justerbara sockeln. Folj instruktionerna som medfoljer den justerbara sockeln.

Fig. 24
INSTALLATÖRENS CHECKLISTA
Din installer r ska ha gjort klart och kontrollerat foljande:
Diskmaskinen ar vagratoch i niva.
Diskmaskinen har fests sakert till skapet.
Diskmaskinens lucka oppnas och stangs utan hinder. Diskmaskinens lucka maste stangas frittutan att sla emot skap aller arbetsbank.
Vatteninloppet ar paslaget och lackagetestat.
Avloppsslangen har anslutits och lackagetestats. Det far inte finnas nagra vridningar erler hinder i avloppsslangen.
Avloppsslangen maste installeras med en 762 mm hog tomningsloop (30^ ) for draneringsslang utan luftavlagsnande.
Avloppsslangen maste installeras med en 30^ hog tommingsloop (762 mm) for draineringsslang utan luftavlagsnande.
Om du ansluter vattenavloppsslangen till diskhons vattenlas, se till att du avlagsnar plastmembranet. Om du inte avlagsnar hela membranet kan matrester fastna och fororsaka stopp i avloppsslangens vattenlas. Se till att en slangklamma fester slangen till vattenaset.
Spolarmarna roterar fritt.
Ett afterdiskprogram har korts.
Vattennivánkommen att vara under filterskarmen i slutet av diskprogrammet.Det ar normalt att finalite vatten i tomningsfiltretts omrade.
AVSLUTANDE INSTRUKTIONER
1) Tryck på På/Av -knappen for att satta på diskmaskinen.
2) Strömindikatorlampan tänds.
3) Använd Programvalsknappen für att välja ett diskprogram.
4) Starta programmet med Start/Paus-knappen.
5) Kör diskmaskinen genom att helt program. När programmet ar klart, använd På/Av-knappen for att stänga av diskmaskinen.

ANMÄRKNING
Om diskmaskinen inte fungerar korrekt, se Självhjalpstairsen.
SJÄLVHJKLMPSTIPS
Skärmen tänds inte:
- Kontrollera att sakkringen till diskmaskinen ar i lage PÅ.
- Kontrollera att stromkabeln ar inford i vagguttaget.
Inget vattenkommen till diskmaskinen:
- Kontrollera att vattenkranen ar i lage PÅ.
Vatten toms inte ut:
- Kontrollera om avloppsslangen ar vriden allerkommen ut ur airgap bredvid diskhon.
- Avlagsna avloppsslangen fran avfallskvarnen och se till att pluggen ar utdragen.

ANMÄRKNING
Om din diskmaskin inte fungerar korrekt after att du utfort dessa kontroller: Kontakta din aterforsäljare for att lata inspektera dinnya diskmaskin av en auktoriserad servicetekniker, som kan finna Funktionslaterade fel.
Tillverkarens garanti tacker inte installation, konvertering aller servicebesok for att undervisa användaren.
Du finner information angäende modell och serienummer på etiketten som sitter på höger sida om innerluckan på din diskmaskin.

ANMÄRKNING
Gör en kopia av din faktura och spara dentilsammans medenna handbok - och registrarana din diskmaskin online.
KOMMA IGANG
ATT FÖRBEREDA DISKMASKINEN FÜR FÖRSTA ANVÄNDNING
- Se till att spekifikationerna for elektricitet och vatteninlopp uppfyller de varden som anges av installationsanvisingarna for maskinen.
Ta bort allt forpackningsmaterial inuti maskinen. - Ställ inHardhetsgraden pa avhärdningsystemet enligt instruktionerna ienna handbok och fyll dispenserern m salt (beroende pa modell).
- Ställ in afterdiskdosering,enligt instruktionerna ienna handbook.
- Fyll på Auto Dose-systemet med flytande diskmedel (beroende på modell).
ATT STÄLLA IN AVHÄRDAREN
Diskmaskinen behöver kalkfritt vatten für att leverera goda rengöringsresultat. Hart vatten resulterar i en uppyggnad av kalkavlagringar på bade diskgods och diskmaskin. Din diskmaskin har att specifikt avhärdningsystem for att avlagsna kranvattnets hardshtsgrad. Att ställa in detta system korrektkommen att öka effektiviteten i diskningen.
Vatteninlopp med en hardshtsgrad högre an 9^ maste avhärdas.
Om hardhetsgraden på inloppsvattnet ligger over 90^ , aller om du anvander brunnsvatten, reckommender vi att du anvanderett vattenfilter och vattenreiningsenheter.
Diskmaskinen ar Förinstäldd på niva H3 für vattnetsHardhet. Om denna inställning passar for hardshtersgraden på ditt vatten behöver du inte gora nagonting alls. Diskmaskinen maste programmeras for vattnets hardshtesgrad i ditt område.
For att ta reda på vattnets hardhetsgrad i ditt område, kontakta den lokala vattenleverantoren aller bestam vattnets hardhetsgrad med en testremsa.

WARNING
Om du flyttar till ett nytt omrade kan vattnets hardhetsgrad vara pa en helt annan niva. Det ar av grundlaggande vikt att aterstalla vattnets hardhetsgrad for att faj optimalt diskresultat.

ANMÄRKNING
Nivan ar satt till H3 som standard. Om vattnet ar brunnsvatten, aller har en hardhetsniva over 90 dF, reckommenderar vi att du anvander filter- och reningsenheter.
Följ noga de olika stegen i bilden for att anvanda testremsan.
LAT VATTEN
FLÖDA GENOM
KRANEN (1
MIN.)
HALL REMSAN I VATTNET (1 SEK)
SKAKA REMSAN
VANTA (1 MIN.)
STALL IN MASKINENS HARDHETS-GRAD





1
2
3
4
5
6
VATTNETS HARDHETSGRAD
Justera vattnets hardhetsgrad pa din maskin enligt den niva som visades pa din testremsa (om sadan finns).
Följ nedanstäende steg für att äandra vattnets hardshtetsgrad:
1) Satt pa maskinen och tryck pa knappen Självrengöring i 5 sekunder for att ta fram installingarna for vattenhärdhet.
2) Tryck pa knappen Självrengöring ingen for att valja vattnets hardhetsgrad (t.ex. H3).
3) Åndra vattnets härdhetsgrad genom att trycka pa knappen Självrengöring. Inställningen andras i följande ordning: H3→H4→H5→H6→H1→H2→H3
4) Tryck igen pa Ström-knappen for att spara önskad niva: den valda nivan slutar att blinka

WARNING
For att vattenavhärdningsystemet skafungera korrekt maste diskmaskinen fyllas med diskmaskinssalt innan forsta disk. Seinstruktionerna i kapitlet angäende saltbehällare.
| NIVÅ | TYSKA °DH FRANSKA °FH | BRITTISKA °CLARKE | REGENERER-ING AGER RUMVAR X:EPROGRAMSE-KVENS* | SALTFÖR-BRUKNING(GRAM/CYKEL) | |
| H1 | 0-5 | 0-9 | 0-6 | Ingenregenerering | 0 |
| H2 | 6-11 | 10-20 | 7-14 | 10 | 9 |
| H3 | 12-17 | 21-30 | 15-21 | 5 | 12 |
| H4 | 18-22 | 31-40 | 22-28 | 3 | 20 |
| H5 | 23-34 | 41-60 | 29-42 | 2 | 30 |
| H6 | 35-55 | 61-98 | 43-69 | 1 | 60 |
- Varje cykel med en regeneringsoperation Förbrukar ytterligare 2,0 liter vatten, energiförbrukningen ökar med 0,02 kWh och programmet fändlängs med 4 minutes.
PLACERING AV TALLRIKAR
Om du placerar ditt diskgods korrekt i maskinenkommen d att anvanda den pa basta satt vad galler energiforbrukning och prestanda for diskning och torkning (EN 60436).
I den undre korgen kan du placera runda och djupa redskap, som kastruller med langa handtag, kastrullock, salladsfat, bestick. Den övre korgen har designats for desserttallrikar, salladsskálar, koppar och glas. När du placerar glas pá fot och bagare, luta dem mot korgens kant eller galler eller glasssted, och inte mot andra foremål. Luta inte l lungsa glas mot varann eftersom de kan falla och skadas. Det ar bättre att placera tunna smala delar i mittendelen av korgarna. Du kan placera skedar bland de andra besticken for att Förhindra att de fastnar i varandra.
Vi rekommender att du anvander bestickgallret for bastaresultat. For att undvika skada bor du alltid placera redskap med langa handtag och vassa spetsar som serveringsgafflar, brodknivar, osv., med vassa spetsar nedat i korgen, alternativt kan de ligga ned pa korgarna.

WARNING
Placera ditt diskgods i maskinen sa att det intekommen atthindra de ovre och undrespolarmarnas rorelse.

WARNING
Placera inte sādant som absorberar vatten i maskinen (disktrasor, svampar, etc.).

ANMÄRKNING
Placera alla behallare som koppar, glas och skalar i diskmaskinen med oppningen nedat, (sà att de inte samlar vatten).

ANMÄRKNING
Tallrikar och bestick ske inte placeras ovanfor varandra.

ANMÄRKNING
Mycket sma foremal bor inte diskas i diskmaskinen aftersom de latt kan falla ut korgen.

ANMÄRKNING
Överlusta inte diskmaskinen och var uppmärksam på tillverkarens instruktioner angäende vilket diskgods som ar godkänf for att användas i diskmaskiner. Endast med passande diskgods (enligt avsnitt 5)kommen du att fä optimalt diskresultat med god energiförbrukning.
Hoga temperaturer på vatten och diskmedel for diskmaskin kan forma en kemisk forening som kan skada vissa foremål.

WARNING
Var forsiktig dà du lastar in och ur vassa foremål. Placera vassa knivar med handtagen uppåt for att minska risken for personskador.

Fig. 25
| NUMMER | FÖREMÁL |
| 1 | Koppar |
| 2 | Tefat |
| 3 | Glas |
| 4 | Muggar |
| 5 | Dessertskålalr |
| 6 | Glasskål |
Följ noga de olika stegen nedan innan du lastar in diskgods i maskinen.
1) Oppna luckan.
2) Avlagsna matrester fran diskgodset. Det ar inte nödvändigt att skölja disken under rinnande vatten.
3) Lasta in diskgodset i diskmaskinen.

ANMÄRKNING
Om du öppnar luckan medan att program pagarkommen alla Funktioner att automatiskt avbrytas. D'luckan Åter stängskommen Funktionerna att Åter fortssätta.
När disken tas ur maskinen rekommenderar vi att tömma den nedre korgen Först och sedan den övre korgen, detta für att hindra vatten fran att droppa fran den övre korgen ned i den nedre korgen.

WARNING
Föremål blir heta! För att undvika skador, ta inte ut glas och bestick frän diskmaskinen forrän after cirka 15 minutes programmet ar klart.
ÖVERKORG
Lasta overkorgen med desserttallrikar, koppar, glas etc.
UNDERKORG
I den undre korgen kan du placera runda och djupa redskap, som kastruller med langa handtag, kastrullock, salladsfat, bestick. Underkorgen ske inte anvandas for sma foremål, som koppar och vinglas.

Fig. 26
| NUMMER | FÖREMÁL |
| 7 Dessertallrikar | |
| 8 | Melamin plattor |
| 9 | Middagstellrikar |
| 10 | Sopptallrikar |
| 11 Melaminskål | |
| 12 Glass | |
| 13 Ovalt fat | |
| 14 | Ugnsgryta |
| 15 Litet kokkärl | |

ANMÄRKNING
Placera stora och mycket smutsiga foremal i underkorgen.

WARNING
Stora knivar och andra, spetsiga och vassa koksredskap skaplaceras liggande i den ovre korgen pa ground av skaderiskeen. Andra, minre knivar och vassa koksredskap skaplaceras med den vassadelen nedat i bestickkorgen.

ANMÄRKNING
Se till att stora foremal inte blockerarspolarmarnas rotation, och inte hindrar diskmedelsbehallaren fran att oppnas.

ANMÄRKNING Viktig anmärkning for testinstitut
For detailerad information for test enligt EN-normer och en digital kopia av handboken, var vänlig sänd modellnamn och -nummer till foljande adress dishwasher@standardtest.info
TREDJE KORG (BEROENDE PÄ MODELL)
Bestick ska placeras i bestickkorgen separat fran varandra i korrekta platser - se till att de inte fastnar i varandra, eftersom detta kan inverka pa diskresolutatet. For din sakerhet och for basta möjiga diskresolutat, placera besticken i korgen och var noga med att:
Deinte fastnar i varandra.
- Lasta in länga och spetsiga aller vassa foremål med den vassa sidan nedät.
Länga bestickimitten.

Fig. 27
1) Soppskedar
2) Gafflar
3) Knivar
4) Teskedar
5) Dessertskedar
6) Serveringsskedar
7) Serveringsgafflar
8) Sassked
Laddningsmonster for bestickstallet for 14 kuvert.
BESTICKKORG (BEROENDE PÄ MODELL)

Fig. 28
FELAKTIG INLASTNING
Felaktig inlastning kan fororsaka/DDig prestanda for diskning och torkning.Folj tillverkarens rekommendationer for ett bra resultat.

Fig. 29
1) Salladsgafflar
2) Teskedar
3) Bordsknivar
4) Knivar
5) Serveringsskedar
6) Serveringsgafflar
Vassa bestick kan rora sig under diskningen, och kan även vara vata och hala. Var/Internalforsiktig nar du tar ut dem, detta for att forbhindra personskada.

Fig. 30

ANMÄRKNING
Små foremål ská dārfor placeras i bestickkorgen eller bestickgallret (beroende pa modell), eftersom små foremål kan falla genom korgarna.
- Overbelastainte din diskmaskin. Detta ar viktigt for godaVAD SKA INTE DISKAS I DIN DISKMASKIN? resultat och for en rimlig energiforbrukning.


Fig. 31
Fig. 32
- Alla foremål som placeras i diskmaskinen måste vara diskmaskinssäkra.
- Endast plast med etiketten "diskmaskinssaker" aller liknande markning fär placeras i diskmaskinen. Plast kan forlora bade färg och form. Kontrolera med tillverkaren for rekommendationer.
- Allt diskgods av tra, eller som innehaller delar av tra, ar inte passande for disk i diskmaskin. Hoga temperaturer kan fororsaka træt att svälla eller spricka.
Silverforemål utan markningen "diskmaskinssaker" bör inte diskas i diskmaskinen, eftersom höga temperaturer och diskmedel kan skada silvret. Kontrolera med tillverkaren for rekommendationer.
Silverforemål och foremål av rostfritt stål med markningen "diskmaskinssaker" bör inte röra vid varandra eftersom silvret då kan missfargas.
Fremal av porslin och glas med decorationer och handmalade koksredskap kan forlora bade monster och farger pa grund av hoga temperaturer. Icke-dekorerade fremal ar sakra att diska i maskinen. Kontrollera med tillverkaren for recommendationer.
Aluminium kan mörkna i diskmaskinen på grund av värmen, det använda diskmedlet eller helt enkelt på grund av de mineraler som finns i ditt vatten. - Diska inte svampar eller disktrasor i diskmaskin.
- Diska inte nagra material av typen akryl, koppar, mässing, tenn, järn, brons eller plat.
Kastrullen utan non-stickbelaggning ar diskmaskinssakra, men vissa av non-stickkastruller kan forlora sin belaggning och non-stick-kvalitet.
Limmat diskgods aller bestick passar inte for diskmaskinen eftersom faspmedlet i material som plast, tra, ben, stal, koppar, plat etc kan lossna.
Kristallglas borb inte diskas i diskmaskinen.
Kom ihag, om du har nagra fragor aller tvivel angaende vilka foremal som kan diskas i diskmaskinen, folj instruktionerna som foremålens tillverkare tilhandahällit, dessi diska dem for hand.

WARNING
Om du har nagra som helst tvivel, diska dem for hand aller folj instruktionerna fran foremålens tillverkare, galler aven for tallrikar, glas, kastruller och langpannon. Diska inte foremal som smutsats med cigarettaska, stearin, lack, malarfarg eller kemikalier, eftersom dessa kan skada din diskmaskin.

WARNING
Borja med att tomma underkorgen och fortssatt sedan med overkorgen. Detta forhindrar att vatten fran diskgodset i overkorgen droppar ner pa diskgodset i underkorgen.

WARNING
Det ar i allmänhet inte tillrändigt att öppna luckan daskmaskinen ar igang. Om luckan öppnas stannas diskmaskinen av en sakerhetsanordning. Var försiktig d du öppnar luckan afterett diskprogram aftersom ánga kan valla ut.
DISKKORGAR
Dessa hyllor ar designade for att oka kapaciteten pa den oversta korgen. Du kan har placera bade koppar och glas. Tack vare den justerbara möljigheten pa hyllorna sa kan du placera glas av olika storlekar under dem.
Höjdusterade hyllor monterade på korgen:gör att muggar och glas kan placeras i 2 olika positioner.
Du kan även placera lαnga knivar, gafflar och skedar pa hyllorna i liggande lage sa att de inte blockeraspolarmarnas rorelse.


Fig. 33
Fig. 34
De vagrata gallerstöden i den övre korgen gör det möjligt att placera dina tallrikar och skálar var du vill. Du kan även diska kóksgerad som kastruller eller stekpannor genom att stänga de vikbara pinnarna.

ANMÄRKNING
Att dra pinnarna till vagrat position genom att halla i deras andar kan gora att de bojs. Det ar dafor en god ide att for dem i mitten i vagrat ellodrat position genom att halla i dem i deras fsten och trycka dar.

ANMÄRKNING
När overkorgen ar satt i den oversta positionen kan inte hyllorna fällas upp.

ANMÄRKNING
Se till att bägge spakarna fastnar i sama hojdläge.
1) Höjdjustering med last (beroende pa modell)
Den övre korgen har en mekanism som gör att Höjden på korgen kan justeras till det övre (Fig. 35) eller nedre (Fig. 36) laket utan att behöva ta bort korgen. Ta tag i korgen på bāda sidor och dra den uppät eller nedät, och se till att bāda sidorna av den övre korgen ar i sama Lage.
For att sänka overkorgen, lyft justeringshandtagen pa vardera sida for att frigora korgen och sänka den till den lagsta positionen.

Fig. 35

Fig. 36

ANMÄRKNING
När overkorgen laser i den övre positionen kan den inte vika tillbaka kopphyllorna.

Fig. 37
2) Höjdjusteringutanlast(beroendepa modell)
Pá vissa modeller kan hójdnställningen av overkorgens hylla andras med hjälp av hjulen som sitter vid de två hójdnivaerna.

OBSERVERA
Försakra dig om att korgen ar tom. Att andra Höjdinstalling dä korgen innehaller diskgods kan gora att detta faller, vilket kan fororsaka personskador erler skador på diskgodset.
Lossa spannena pa bade den hogra och den vänstra sidan av overkorgens hylla genom att vrida dem utat, A.

Fig. 38
Dra ut hyllan helt, B.

Fig. 39
Placera hyllan i onskad hojd papi plats, C.

Fig. 40
Tryck tillbaka spannena pa sina platser.
UNDERKORGENS VIKBARA PNNAR
De vikbara pinnarna bestar av fyra delar som sitter i diskmaskinens underkorg, och de ar designade for att gora det lattare att placera stora foremal som kastruller, stekpannor, etc. Om nodvandigt kan varje pinne vikas ned separat, ell er sa viker du allihop och mycket stor yta frigors. Du kan anvanda de vikbara pinnarna genom att dra upp dem ell er vika ner dem.


Fig. 41
Fig. 42
ENKELT LYFT AV UNDERKORG (BEROENDE PÄ MODELL)
Häll korgens handtag separat och dra försiktigt ut korgen horisontellt till botten (tills den inte kan dras langre).


Fig. 45
Fig. 43
Häll sedan korgens handtag separat och lyft upp den till botten. Tryck på lassparren for att lasa korgen ienna position.
I detta lage ar korgen fixerad i en hog och kan anvandas for att placera diskgods.

Fig. 44
När diskgodset har placerats,hall bade korgen och den upplasande mekanismens handtag.
Dra Först upp den upplasande mekanismens handtag for att lasa upp skalkorgen, och tryck sedan ned skalkorgens handtag for att trycka tillbaka skalkorgen in i diskmaskinen langs sama vag.
BESTICKGALLER (BEROENDE PÄ MODELL)
Bestickgallret ar utformat for dig for att placera gafflar, skedar och knivar, langa skopor och sma foremal.

Den högra sian av bestickbrickan kan avlågsnas.

Fig. 48

Fig. 46
WARNING
Knivar och andra vassa foremal maste placeras horisontellt i bestickkorgen.
Brickan for bordssilver bestar av två delar. Om du behöver góra plats for disken i övre korgen kan du dra ut den vänstra eller högra delen av övre bestickkorgen for att fæ mer utrymme.

Fig. 47
BESTICKKORG (BEROENDE PÄ MODELL)
Bestickkorgen ar designad for att diska knivar, gafflar, skedar, etc.
Beroende pa modell du har inforskaffat sa kan detta vara en glidande korg ell eren standardkorg.

Fig. 49
FLASKHALLARE (BEROENDE PÄ MODELL)
Flaskstallet kan anvandas for att diska stora oppna behallare, sasom skalar, langpannon erller tupperware, foremal som ar hoga, sasom kannor. Flaskstallet kan ut i pilens riktning, som visas nedan.
BRICKHÄLLARE (BEROENDE PÄ MODELL)
Brickhallaren gör att du enkelt kan placera brickor och samtastruller i olika storlekar i den undre korgen och erhalla drasbasta diskresultat.


Denna fonction används für att diska glas, flaskor och liknande genom att rikta vattnet uppät nar apparaten i den övre korgen som visas i figuren ar i vertikalt lage. När apparaten ar i vagrätt lage sjunker vattnet, vilket gör att den undre korgen kan diskas.

Fig. 53
HÄLLARE FÖR GLAS MED FOT (BEROENDE PÄ MODELL)

Fig. 56
Sidorna av hallaren for glas med fot kan vikas upp sa att tillbehören blir mer kompakt d det inte används.

Fig. 54

Fig. 57


Fig. 58
Fig. 55
Vik ner hallaren for glas med fot innan du placerar den i diskmaskinens underkorg.

KONTROLLPANEL
Fig. 59
| SYMBOL BESKRIVING SYMBOL BESKRIVING | ||||
| 1 | ① | På/Av-knapp | 3 | Tillvalsknappar |
| 2 | Programknappar | 3,1 | Turbo hastighet+ | |
| 2,1 | ECO | Eko | 3,2 | Extra torrt |
| 2,2 | A | Auto | 3,3 | Automatisch dosering |
| 2,3 | Hygien | 3,4 | Avbryt automatisk lucköppning | |
| 2.4 | Extra tystgående | 4 | Halv diskmängd - Knapp | |
| 2,5 | 90' | Snabb 90 min | 5 | Display |
| 2,6 | Glas 6 | Fördröjd start - Knapp | ||
| 2,7 | 45' | Snabb 45 min 7 | Start / Paus - Knapp | |
| 2,8 | Sköljning | |||
| 2,9 | Självrengöring | |||

Display
Fig. 60
| SYMBOL BESKRIVING SYMBOL BESKRIVING | ||
| 8 | Warning("Varning")-indikator | 13 Vattenkran Indikator |
| 9 Saltindikato4 | Indikator für lög nivå av flytande tvättmedel | |
| 10 | Spolglans | 15 Energiförbrukning - Indikator |
| 11 | Halv diskmängd - Indikatorer | 16 Vattenforbrukning - Indikator |
| 12 | Fördröjd start - Indikator | 17 Förbrukning - Indikatorer |
DRIFT
Att stalla in ett diskprogram
1) Tryck pa knappen for onskat diskprogram.
2) Tryck på Start/Paus-knappen och stäng luckan. Programmet startar genast.
3) Displayen visar total tid for valt program och Återstaende tid under drift.
Att andra ett program
For att andra diskprogrammet medan diskmaskinen arbetar, oppna luckan och tryck pa Program-knappen i 3 sekunder for att valja ett nytt program, och tryck sedan Start/Paus-knappen. Efter att luckan stangs kommt det nya programmet att starta pa nytt.
Att stänga av diskmaskinen
När det valda programmet ar klart ljuder ochssummern 53 gänger. Du kan sedan stanga av din maskin genom att parycka pa knappen Pa/Av. Koppla loss stickkontakten och stang av vattenkranen.

ANMÄRKNING
Ett program kan endast ändras om det endast har körts under en kort stund, annars kan diskmedlet redan ha dispenserats aller kanske diskvattnet med diskmedel redan har tomts. Om detta ar fallet behöver diskmaskinen Återställas och diskmedelsdispensern maste fyllas på nytt.

ANMÄRKNING
Om strömmen bryts under torkningsprocessen, avslutas programmet. Maskinen ar redo for nett nytt programval.

ANMÄRKNING
For att spara energia, i standby-lage, stangs apparaten av automatiskt after 15 minuterutan att anvandaren behover gora nagot.
For att aterstalla diskmaskinen, folj instruktionerna nedan.
1) Öppna luckan nagot for att pausa programmet. När sprayarmarna stannar kan du öppna luckan helt.
2) Tryck pa knappen Starta/Avbryt i mer an tre sekunder, varpa diskmaskinen gär in i programvalsäöge.
3) Du kan andere programmet till onskad programinstallingnVid en rumstemperatur under 0^ kan vattnet i tanken
4) Tryck pa knappen Starta/Avbyt och stang luckan, varpafrysa. Det ar darrfor inte tillradligt att anvanda diskmaskinen diskmaskinen startar om. nar rumstemperaturen ar under 0^ .
Pausaettprogram
En glömd disk kan laggas till nar som helst innan diskmedelsdispensern öppnar. Om detta ar fallet, folj instruktionerna nedan:
1) Oppna luckan nagot for att avbryta diskprogrammet.
2) När sprayarmarna slutar snurra, öppna luckan helt.
3) Lagg till glömd disk.
4) Stäng luckan, varpà diskmaskinen fortsätter programmet after 10 sekunder.

WARNING
Det ar farligt att oppna luckan mitt i ett program eftersom het anga kan stromma ut fran diskmaskinen. Var alltid forsiktig och oppna luckan forsiktigt, och oppna sedan luckan helt forst after nagra minutes.
Vi rekommenderar att tomma vattnet i tanken om miljon faller under 0^ for att hindra maskinen fran att frysa.
När luckan öppnas, tryck på knapparna Eko och Turbo hastighet i 3 sekunder och stäng sedan luckan for att sätta på tomningsfunktionen.
Alla programindikatorer tänds och skärmen visar "- - ")när du gär in i tomningsfunktionen.
Vattnet i tanken toms pa 4 minuter.
- Om luckan öppnas under tömningsprocessen skjuter maskinen upp tömningen och fortsetter att tomma när at luckan stängs.
Automatisk lucköppning
När att diskprogram avslutas öppnas luckan automatiskt für att erhälla bättre torkresultat.

ANMÄRKNING
Luckan fär inte blockeras nar den ar installd for att öppnas automatiskt eftersom detta kan stora lucklåsets Funktion.
TVÄTTPROGRAM
| PROGRAM BESKRIVNING | PRO-GRAMTID | VATTEN-FÖBRUKNING | ENERGI-FÖBRUKNING | DISKMEDEL | ALTERNATIV | |
| Eko | Für normalt smutsad disk i vardagsanvändning. | 03:40 | 9,5 I/ program | 0,65 kWh/ program | 22 g | Turbo hastighet+, Extra torr, Automatism dosering, Avbryt automatisk lucköppning |
| Lögsta energia- och vattenförderbrukning. | ||||||
| Auto | Für alla smutsnivãer och alla typavorslin. | 1:29 till 2:06 | 10,3 till 17,0 I/ program | 0,93 till 1,47 kWh/ program | 5/17 g | Automatism dosering, Avbryt automatisk lucköppning |
| Justerar automatiskt till optimal disktid, vattentemperatur och vattenförderbrukning. | ||||||
| Hygien | Für alla smutsnivãer och alla typavorslin. | 03:15 | 13,9 I/ program | 1,65 till 1,72 kWh/ program | 5/17 g | Turbo hastighet+, Extra torr, Automatism dosering, Avbryt automatisk lucköppning |
| Ger max. vattentemperatur För noggrann sanering av diskgods. | ||||||
| Extra Silence | Für normalt smutsad disk och glas. | 4:15 | 9,5 I/ program | 0,85 till 1,00 kWh/ program | 22 g | Turbo hastighet+, Extra torr, Automatism dosering, Avbryt automatisk lucköppning |
| Utformad für drift på kvällen eller under natten, aver den lögsta bullernivån. | ||||||
| Snabb 90 min | Für en snabb Disk av normalt smutsad vardagsdisk. | 01:30 | 11,2 I/ program | 0,96 till 1,03 kWh/ program | 22 g | Turbo hastighet+, Extra torr, Automatism dosering, Avbryt automatisk lucköppning |
| Für lätt smutsat porslin och glas. | ||||||
| Glas | Für lätt smutsat porslin och glas. | 2:00 | 13,9 I/ program | 0,85 till 0,93 kWh/ program | 5/17 g | Turbo hastighet+, Extra torr, Automatism dosering, Avbryt automatisk lucköppning |
| Für en snabb Disk av lätt smutsad vardagsdisk. | :30 | 10,3 I/ program | 0,56 kWh/ program | 15 g | Automatism dosering | |
| PROGRAM BESKRIVNING | PRO-GRAMTID | VATTEN-FÖRBR-UKNING | ENERGI-FÖRBRUKNING | DISKMEDEL | ALTERNATIV | |
| Sköljning | Für alla smutsnivåer. | |||||
| Sköljer och häller diskgods För att fremtida diskprogram. | :15 | 3,9 I/ program | 0,12 kWh/ program | - | - | |
| Självrengöring | Für effektiv självrengöring av diskmaskinen insida. | 2:10 | 15,1 I/ program | 1,48 till 1,52 kWh/ program | 5/17 g | Automatisk dosering |
ANMÄRKNING
Programtiden kan andras beroende pa mangden diskgods, vattentemperaturen, omgivningstemperaturen och valda tillaggsfunktioner.
Värdena givna for diskprogrammen ar, Förutom Eko-programmet, endast indikativa.
- Använd endast pulverdiskmedel für korta program.
Korta program inkluderar inte torkning.
- För att underlätta torkning rekommenderar vi att luckan öppnaslett after att ett program ar klart.
- Dukommen at Produktdatabaseen dar modellinformationen finns lagrad genom att lasa QR-koden på energimärkningen.

ANMÄRKNING
Eko-programmet ar det mest effektiva programmet vad gäller dess kombinerade energi- och vattenforbrukning, och det används for att bedöma afterlevnaden medEU: slagstiftning om ekodesign (EN 60436).

ANMÄRKNING
En indicator på displayen visar vattenforbrukningsnivan for varje valt program. Ju fler falt som visas, desto storre ar vattenforbrukningen.
En indicator på displayen visarenergiforbrukningsnivan for varjevalt program.Ju fler falt som visas,desto storre arvattenforbrukningen.
DISKPROGRAM - FLODESSCHEMA
| EKO | AUTO | HYGIEN | EXTRA SILENCE | SNABB 90 MIN | GLAS | SNABB 45 MIN | SKÖLJNI-NG | SJÄLVREN-GÖRING |
| - | Fördisk (45 °C) | Fördisk (45 °C) | - | - | Fördisk (40 °C) | - | Fördisk | Fördisk |
| Disk (45 °C) | Disk (55-65 °C) | Disk (72 °C) | Disk (55 °C) | Disk (55 °C) | Disk (45 °C) | Disk (45 °C) | - | Disk (60 °C) |
| Sköljning | Sköljning | Sköljning | Sköljning | Sköljning | - | Sköljni-ng | - | Sköljning |
| Sköljning (42 °C) | Sköljning | - | - | - | Sköljning | Skölj- ning (45 °C) | - | - |
| - | Sköljning (55-65 °C) | Sköljning (65-72 °C) | Sköljning (55-65 °C) | Sköljning (60-65 °C) | Sköljning (55-60 °C) | - | - | Sköljning (70-72 °C) |
| Torkning | Torkning | Torkning | Torkning | Torkning | Torkning | - | - | Torkning |
DISKALTERNATIV
| ALTERNATIV | BESKRIVNING AKTIVERING | |
| Turbo hastighet+ | Reducerar programtiden med 15-50 % tack vare ökad temperatur och motorhastighet. | Tryck på knappen Turbo hastighet+ für att pâskynda varaktigheten hos det valda diskprogrammet. Displayen visar den upppaterade programtiden. |
| Tryck på Start/Paus -knappen och stäng luckan für att aktivera alternatively. | ||
| Extra torrt Lägger till extra värme och torksteg tilldet valda diskprogrammet für att erhälla perfekt tortr diskgods. Ökar sköljvattenstemperaturen och fällänger torktiden. | Tryck på knappen Extra torr och sedan på Start/Paus- knappen, stäng sedan luckan für att aktivera alternativet. | |
| Automatisk dosering | Dispenserar automatisk rätt mängd flytande diskmedel och spolglans i varje diskprogram. När Auto Dose-indikatom Är tänd, undvik att använda andra typ er av diskmedel (såsom pulver eller tabletter). | Tryck på knappen Automatisk dosering och sedan på Start/Paus-knappen, stäng sedan luckan für att aktivera alternativet. |
| Avbryt automatisk lucköppning | Avbryter Funktionen Öppna lucka automatisch. Om fonctionen inte inaktiveras öppnas luckan automatisk För programmen Eko, Auto, Hygien, Extra tyst Snabb 90 min och Glas. | Tryck på knappen Avbryt automatisk lucköppning für att inaktivera den automatiska lucköppningen i slutet av varje diskprogram. |
| När alternativet Avbryt automatisk lucköppning har valts släcks indicatorlampan. | ||
| Om du foredrar att dörren inte öppnas automatisk i slutet av diskprogrammen som nämns till vänster på grund av att du har en särskilt kändlig bänskiva, måste du valja alternativet Avbryt automatisk lucköppning i början av varje diskprogram. | ||
| Halv diskmängd | Dirigerar diskfunktionerna till bäde överkorgen och unterkorgen. Förkortar det valda programmets tidsåtgäng och reducerer energia- och vattenforbrukning. | Tryck på knappen Halv diskmängd für att aktivera alternativet Halv diskmängd für övre ställ, nedre ställ eller bāda. Motsvarande indicatorer visas på displayen. |
| Tryck på Start/Paus -knappen och stäng luckan für att aktivera alternatively. Alternativet kan inte användas med programmet Snabb 45 min. | ||
| Fördröjd start Senarelägger det valda diskprogrammet med 1-24 timmar i steg om 1 timme. | Tryck på Fördröjning-knappen für att fördröja programstarten med 1 timme. | |
| Displayenkommen att visa programmets varaktigkeit och den programmerte fördröjningen alternerande under 2 sekunder. | ||
| Fortsätt att trycka på Fördröjd tills du när den önskade fördröjningstiden. Motsvarande indicatorlampa visas på displayen. | ||
| Tryck på Start/Paus -knappen och stäng luckan für att aktivera alternatively. | ||

ANMÄRKNING
Om indikatornaland innebär detta att nivan av flytande diskmedel ar lag i dispensern och behover fyllas pa.

WARNING
Användinte diskmedel under sköljprogrammet (beroende pa modell). Om du inte vet hur harti ditt vatten ar, anvand 15 ml / 3 teskedar diskmedel. Okamängden diskmedel om du ser vita vattenmärken specielt pa glasytor.

ANMÄRKNING
1) Indikatorn for flytande diskmedel slocknar om du avbryter det automatisk doseringssystemets Funktion.
2) När du har tillsatt flytande diskmedel slocknar indicatorlampan Först after körning av minst att diskprogram.
Om du behöver mer information om det diskmedel du tänker använda, kontakta diskmedelstillverkaren direkt.
DISKMEDELS- OCH SPOLGLANSFACK

WARNING
Använd endast diskmedel speziellt konstruerade für hushällsdiskmaskiner.
Du finner dessa i pulverform, som gel eller i tablettform och de har alla tagits fram for hushallsdiskmaskiner. Tillsatt ratt diskmedel for det valda programmet for att sakerstalla basta prestanda. Anvand minre mangd diskmedel om du bara sca diska latt smutsad disk. Att anvanda for mycket diskmedel kan lamna rester på diskgodset och diskmaskinen kan prestera samre.

ANMÄRKNING
Mängden diskmedel som behövs beror på programmet, diskmängd, och diskens smutsniva. För mycket diskmedel i mjukt vatten kan góra att glas fläckas daß det inte loseses upp ordentlich i vattnet.

WARNING
Använd inte für mycket diskmedel om ditt vatten ar mjukt.

WARNING
Forvara ditt diskmedel svalt och torrt utom
rackhall for barn. Se
diskmedelstillverkarens anvisningar for
ytterligare information.

WARNING
Diskmedelstabletter hinner inte Lösas upp helt under korta diskprogram. For att forhindra diskmedelsrester på diskgodset rekommenderar vi att du bara anvander diskmedelstabletter vid langa program.
PAFYLLNING AV DISKMEDEL

ANMÄRKNING
Dispensern bör fyllas på strax före starten av varje program.
1) Tryck på knappen på vänster sida für att öppna diskmedelsbehällaren sasom visas i bilden (Fig. 61 A)

Fig. 61
2) Häll/lägg i diskmedel i dispenserern (Fig. 62).

Fig. 62
3) Stäng locket och tryck tills det klickar pa plats (Fig. 63).

Fig. 63

ANMÄRKNING
Om du vill använda reguljärt diskmedel (pulver, tabletter, etc.), se till att indicatorlampan for "Auto Dose" ar släckt. Om den lämnas på kan rengöringsprestandan paverkas.

ANMÄRKNING
Om disken ar harte smutsad,oka dosendiskmedel. Alternativt, utover diskmedlet i dispensern,hall en liten mangd diskmedelpa insidan av luckan.Det ytterligare diskmedlet aktiveras under fordiskfasen.

ANMÄRKNING
Luckan ar alltid oppen i slutet av ett program.

WARNING
Följ användarinstruktionerna pa diskmedelsforpackningen dà du anvander flytande diskmedel, pulveriskmedel eller diskmedel i tablettform.

WARNING
Mängderna kan variera beroende på om du anvander flytande diskmedel aller koncentrerat pulverdiskmedel. Diskmedel i tablettform skapleras diskmedelsdispensern.
FYLLA PÅ SYSTEMET FÖR AUTOMATISK DOSERING Tryck i pilens riktning och stäng locket. AV DISKMEDEL
Alternative 1. Fylla pa diskmedel
Tryck på denna knapp sösom visas i figuren, sä öppnas diskmedelsloket automatiskt.

Fig. 64
Tillsatt diskmedel i utrymmet sasom visas i figuren.
Se diskprogramtabellen (Fig. 65) for den spekifica mangden diskmedel.

Fig. 65

Fig. 66

ANMÄRKNING
Om du vill använda reguljärt diskmedel (pulver,tabletter,etc.),se till att indicatorlampan for Funktionen ar släckt, annars paverkas rengöringsprestandan.
Alternative 2. Fylla på det automatiska doseringsystemet
Du bör valja funktionsknappen på kontrollpanelen innan du använderAutomatisch doseringsssystem
Tryck samtidigt pa de vänstra och högra brytarna i pilens riktning i bilden, varpa locket till det automatiska doseringsystemet öppnas.

Fig. 67
Ta ut den tomma flaskan for flytande diskmedel och tillsatt flytande diskmedel i den enligt Fig. 68 (Använd endast flytande diskmedel für diskmaskinen.)

Fig. 68
- Installera pafyllningsflaskan erer en ny flaska enligt Fig. Fyll inte pa facet for flytande diskmed med vatskor ell 69. kemiska rengoringsmedel (vinager, blekmedel, etc.), utan

Fig. 69
Stang locket.

Fig. 70

ANMÄRKNING
Flaskan for flytande diskmedel har en kapacitet pa 300 ml.
Flaskor ar inte forbrukningsartiklar och det flytande diskmedlet kan du sjalv fylla pa 1. Kapaciteten hos vatskeflaskan after anvandning.
Vi rekommenderar att byta ut flaskan after pafyllning 20 ganger (cirka 6-8 manader).

ANMÄRKNING
Använd endast flytande diskmedel som ar lampligt for diskmaskinen.
Flytande diskmedel som har forlorat deras fluiditet och blivit fasta fär inte användas i automatiska doseringsystem För flytande diskmedel.
Om ett annat marke eller typ av flytande diskmedelkommen att användas, se till att det tidigare diskmedlet har tomtshelt och avlågsna sedan och rengörfacet for flytande diskmedel under kranvatten.
Torka upp eventuelt utspilld spolglans atanfor behallaren. Annarskommen det att orsaka skumbildning i nasta diskprogram och reduceraprodukteniskprestanda.
När det flytande diskmedlet ar mindre an 20 % tänds indikatorn. Här kan du endast använda det automatiska doseringssystemet cirka 1-3 gänger. Fyll pa det flytande diskmedlet i god tid.
ATTANVANDAKOMBINATIONSDISKMEDEL
Kombinationsdiskmedel maste anvandas enligt tillverkarens instruktioner.
Placera aldrig kombinationsdiskmedel inuti diskutrymmet eller bestickkorgen.
Lagg alltid dismedelstablett i diskmedelsdispensern.
Kombinerade diskmedel innehälter inte bara diskmedletutan även spolglans, saltersättningsamnen och ytterligarekomponenter beroende på kombinationen.
När du slutar använda kombinerade diskmedel, se till att installingarna für vattenhardshet och spolglans ar installda på rätt niva.
Om du vill fã bättre resultat dã du använder kombinationsdiskmedel ská du tillsätta salt och spolglans i din diskmaskin och justera inställningen for vattnetsHardhetsgrad och for spolglans till lagsta laget.

OBSERVERA
Hur upplösiga diskmedelstabletter ar beror pa tillverkaren, och pa temperatur och disktid. Det ararily inte mojligt att rekommendera den typen av diskmedel for korta program. Anvand pulverdiskmedel i sabana program.

WARNING
Om du skulle fä problem som du aldrig sett Förut medenna typ av diskmedel, kontakta diskmedelstillverkaren direkt.
Spolglans hjälper till att torka disken utan ränder och fläckar. Spolglans kravs for att fä fläckfria köksredskap och rena glas, och den släpps automatiskt under det heta skölprogrammet.
Om spolglansdoseringen ar for lagkommen vita flackar att uppsta pa glas och porslin. Om spolglansdoseringen ar for hogkommen lijusblaa flackar att uppsta pa glas och porslin

OBSERVERA
Använd endast spolglans som ar avsedd for användning i hushallets diskmaskiner.
Att fylla spolglansdoseraren med diskmedelkommen att skada doseraren.

ANMÄRKNING
Din diskmaskin ar utformad for att anvanda flytande spolglans.

ANMÄRKNING
Dá spolglansindikatorn lyser har doseraren tillrackligt med spolglans forytterligare cirka 2-3 diskprogram. Dá du anvander tablettdiskmedel behövs inte spolglans.
Overfyll inte spolglansdispensern.
(1) För att fylla på spolglansfacket, tryck på knappen sasom visas i Fig. 71.

Fig. 71
2) Fyll pa behällaren med spolglans upp till MAX-nivan och satt tillbaka locket. Var noga med att inte fylla pa for mycket spolglans i behällaren och torka upp allt spill Fig. 72.

Fig. 72
3) Stang locket tills det klickarFig. 73.

Fig. 73
Följ nedanstäende steg für att andere inställningen für spolglans:
1) Satt pa maskinen och tryck pa knappen Självrengöring i 5 sekunder och tryck sedan pa Fördröjning-knappen for att ta fram menyn Installninger: indikatorn Spolglans börjar att blinka.
2) Åndra spolglansnivān genom att trycka på knappen Självrengöring. Installingen andras i följande ordning: D3→D4→D5→D6→D1→D2→D3. Ju högre nummer, desto mer spolglanskommen diskmaskinen att använda.
Fabrikinställningen ar "D3".

ANMÄRKNING
Om disken inte torkar ordentigt aller ar flackig, öka nivan. Om blä flackar bildas på disken, sank nivan.
| NIVÅ | SPOLGLANS-DOS | INDIKATOR | |
| 1 | Spolglans har inte dispensersats | D1 visas på displayen. | |
| 2 | 1 dos dispenseras | D2 visas på displayen. | |
| 3 | 2 doser dispenseras | D3 visas på displayen. | |
| 4 | 3 doser dispenseras | D4 visas på displayen. | |
| 5 | 4 doser dispenseras | D5 visas på displayen. |
3) Gā ur menyn Inställningar genom att vänta 5 sekunder,
eller stäng av maskinen.
SALTDOSERARE (FOR MEDELLER MED VATTENAVHÄRDARE)
Kontrolera saltindikatorn pa kontrollpanelen for att se om det finns tillrackligt med avhärdningssalt i diskmaskinen. Saltdoseraren maste fyllas med salt da varningsindikatorn lyser pa maskinens kontrollpanel.
ATT Fylla PÄ DISKMASKINENS SALTBEHÄLLARE

WARNING
Koksalt och bordssalt loseste inte upp korrekt i vatten, och att anvanda den typen av salt kan skada din diskmasks vattenavhärdningsystem.

ANMÄRKNING
Maskinen kan endast anvandas med specialiskmaskinssalt for att avhärda vattnet. Använd inte nagra smakorniga eller pulveriserade salter som lätt kan Lossas. Att anvanda nçon annan typ av salt kan skada din maskin. Tillverkaren ansvarar inte for skada som uppstår vid användning av fel typ av salt.

WARNING
Diskmedel skadar vattenavhärdningsenheten. Fyll inte pa saltbehällaren med diskmedel.

WARNING
Om vattnet i ditt omrade ar mycket mjukt och konstant ligger under 9 F behöver du inte tillsätta salt.

Fig. 74
1) For att fylla diskmaskinen med salt, avlagsna forst den undre korgen och oppna sedan saltbehällarens lock genom att vrida det moturs.Fig. 74 A-B
När du forbereder att fylla på salt, avlagsna Först den övre skålkorgen och dra sedan den nedre skålkorgen horisontellt till botten (tills den inte kan dras horisontellt).
I detta lage ser du vattenavhärdningslocket pa baksidan av den nedre korgen. Sträck dig och skruva loss den och tillsatt sedan salt.
När du har tillsatt salt, skruva pa vattenavhärdningslocket, installerera Åter i korgen och slutfor arbetet med att tillsätta salt.


Fig. 75
Fig. 76
f) Lock vattenavhards
g) Nedre skalkorg
2) Vid Första använding, fyll behällaren med 0,6 kg salt och vatten Fig. 74 C till overflödesniván. Använd,tratten (Fig.D)(om sādan finns)-det blir dà lattare att fylla pa salt.
3) Satt tillbaka locket och stang det.

WARNING
Om avhärdningssaltet har flödat over och du inte startup maskinen omedelbart, kör att kort diskprogram for att skydda din maskin mot korrosion. Dessa typer av skador täcks inte av garantin.

ANMÄRKNING
Fyll pa saltbehällaren med vatten endast den forsta gangen du fyller saltbehällaren.

ANMÄRKNING
Om saltbehällarens varningslampa lyser pa kontrollpanelen skadu fylla pa saltbehällaren med salt igen.

WARNING
Använd avhärdningssalt som ar speciellt framtaget for användning i diskmaskiner.
SALTPÄFYLLNINGSINDIKATOR

WARNING
Om saltindikatorlampan tänds under ett program, vanta tills programmet ar klart innan du fyller pa salt i behällaren. Dá saltbehällaren ar fylld kan indicatorlampan fortşatta att lysa ettag innan saltkconcentrationen natt korrekt niva. Denkommen att slockna dà korrekt koncentration uppnàtts.

ANMÄRKNING
Saltpäfyllningsindikatorn kommen att systkna om du har programmerat diskmaskinen till en vattenhardshtetsgrad under 9 F.
Saltbehällaren skafyllas pafter cirka 20-30 program (ungefar.0.6 kg).

WARNING
Innan rengöring eller underhäll utförs skadu stänga av maskinen, dra ut strömkontakten ur eluttaget och stängavattenkranen. Din diskmaskin fär endast repareras av en auktorisarad serviceagent.

WARNING
Alla ytor kan repas. Kontakt med felaktiga rengöringsmedel kan forandra aller missfarga alla ytor.

WARNING
Häll golvytan rund din diskmaskin ren och torr für att undvika personskador. Vi rekommenderar att du häller din diskmaskin ren, tom och med luckan nagot öppen für att tillata luftcirkulation vid eventuellt langre stillestand.
Diskmaskinens lucka kan skadas av slipande rengöringsmedel, skursvampar, slipande trasor. Att regelbundet rengöra maskinen frolänger dess livslängd vasantigt.
Olja och kalkavlagringar kan ackumuleras i maskinens diskutrymme. Vid sādana avlagringar sku du fylla diskmedelsf Jacket utan att lasta in diskgods i apparaten och sedan välja ett program som körs på hög temperatur och starta diskmaskinen. Om detta inte räcker sku du använda de rengöringsmedel som finns tillganglia på marknaden.
For att rengöra frän alla rester som ansamlats på luckans tätningslister sku du regelbundet torka av listerna med en fuktig trasa.
Rengör maskinen, filter och sprutarmar minst en gang i帽子en. Skilj din maskin frän strömforande nat och stäng av vattenkranen innan du rengör den. Använd inte HARDamaterial vid rengöring av din diskmaskin. Torka av med ett neutralr rengöringsmedel och en fuktig trasa.

WARNING
For att undvika vatteninfiltration i lucklas och elektriska componenter, använd inte sprayrengöringsmedel igraphic form direkt på diskmaskinen.
| MATERIAL | PROCEDURE |
| Rostfritt stål | Använd ett icede rengöringsmedel ffor rosfritt stål - applicera det med en mjuk, luddfri trasa. För att få fram stålets lyster kan du lätt eftertorka ytan med en fuktig mikrofibertrasa och sedan följa after med ett torrt sãmskskinn. Följ alltid stålets riktning. |
| Kontrollpanel | Torka av med en fuktig trasa. |
| Diskkorgar | Torka av med en fuktig trasa. |
| Innerutrymme | Torka av innerutrymmet, luckans kanter och tätningslister med en fuktig trasa. Om nödvändigt kan du spraya lite allrengöringsmedel på trasan. Spraya inte direkt på luckan. Använd diskmaskinsrengöring (folj instruktionerna på paketet) eller placera 1 kopp ättika och 2 matskedar bakpulver i en behällare i mittenkorgen och kör ent Intensivt diskprogram. |
| Spolarmar | Placera dem under rinnande vatten och använd ett gem für att gora rent hål en frän skråp. |
| Filter | Rengör med sapa och vatten. För ingrodd smuts eller kalkavlagringar kan du använda en mjuk borste. Undvik att använda ståsvamp erller skursvamp. |
| Tätningslist | Torka av med en fuktig trasa. Använd varmt tvålvatten och en tandborste. Om du ser mögel skä du spraya med 3% väteperoxid. |
After varje disk rekommenderar vi att stanga vattenforsorjningen till apparaten och lamna luckan latt pa glant en穩定 sa att fukt och odorer inte fastnar inuti maskinen.
När du planerar att inte använda diskmaskinen under en langre tidsperiod rekommenderar vi att körä ett diskprogram med diskmaskinen tom och lossa stickkontakten frän eluttaget, stänga av vattenförsörjningen och lamna luckan nagot på glant. Detta bidrar till att lucktätningarna häller langre och forhindrar att odörer bildasi apparaten.
Om apparaten maste flyttas, forsok att halla den i en vertical position. Om det ar absolut nodvändigt kan den positioneras på dess baksida.
SPOLARMAR
De övre och undre spolarmarna kan avlågsnas for rengöring.
Kontrolera regelbundet att halen i de övre och undrespolarmarna inte ar tilläppta. Om de ar tilläppta sku du avlågsna polarmarna och rengöra dem under rinnande vatten.
Skovelbladen ske rengoras en gang i veckan for att maskinen ske fungera korrekt.
Foratt avlagsna den ovre spolarmen:
1) Hall muttern och vrid armen moturs.

Fig. 77
Foratt avlagsna den undre spelarmen:
1) Dra ut spelarmen uppát.

Fig. 78
2) Tvatta armarna i sapa och varmt vatten och använd en mjuk borste for att rengöra jetmunstyckena. Satt tillbaka dem nar de har sköljts noga.

Fig. 79
FILTER
Filtret skull rengöras ofta. Intensiv användning kan krāva rengöring oftare.
Kontrollera regelbundet om det finns matrester kvar i grovfilret aller i det fina filret. Om det finns matrester kvar: avlagsna filtren och rengör dem grundlicht under rinnande vatten.
Ta ut filtret ur diskmaskinen genom att Först ta ut undertkorgen och den andere spolarmen.

Fig. 80
a. Mikrofilter
b. Grovfilter
c. Huvudfilter av metall/plast
1) Hall det grova filtret och vrid det moturs for att lasa upp filtret. Lyft filtret uppat och ut ur diskmaskinen.
2) Mikrofiltret kan dras ut fran botten av filterenheten. Det grova filtret kan lossas fran huvudfiltret genom att forsiktigt krama flikarna langst upp och dra undan det.
3) Större matrester kan rengöras genom att skölja filtret under rinnande vatten. För en mer noggrann rengöring, använd en mjuk rengöringsborste.
4) Satt tillbaka filtren i omvänd ordning och vrid medurs till stängningspiren.

WARNING
Överdra inte filtren. Sätt tillbaka filtren sækert i ordning, annars kan skråp komma in i systemet och orsaka blockage.

WARNING
Använd aldrig diskmaskinen atan att filtren ar på plats. Felaktig montering av filtret kan reducera apparatens prestandanivå och skada disk och köksgeråd.
AVLOPPSPUMP
Stora matrester aller främande foremal som inte fangats av filtren kan blockera avloppspumpen. Sköljvattnetkommen i sa fall att vara over filtret.

WARNING
Varning Risk for skärskador
Vid rengöring av avloppsvattenpumpen, set till att du inte skadar dig själv pa bitar av glas aller spetsiga redskap.
Om sa ar fallet:
1) Skilij apparaten fran stromforande nat.
2) Ta ut korgarna.
3) Avlagsna filtren.
4) Ta ut ansamlat vatten, använd en svampom sa kravs.
5) Kontrollera omraret och avlagsna eventuella frammande foremal.
6) Installera filtren.
7) Satt tillbaka korgarna.
| FEL | MÖJLIG ORSAK ÅTGÄRD | |
| Programmet startar inte. | Diskmaskinen Är inte nätansluten. | Koppla in din diskmaskin. |
| Diskmaskinen Är inte pâslagen. | Sätt på diskmaskinen genom atttrycka på På/Av-knappen. | |
| En säkring har gätt. | Kontrolera dina inomhussäkringar. | |
| Vatteninloppskranen Är stängd. | Öppna vatteninloppskranen. | |
| Din diskmaskinslucka Är öppen. Stäng diskmaskinsluckan. | ||
| Vatteninloppsslangen ochmaskinfiltren Är tilläppta. | Kontrolera vatteninloppsslangen ochmaskinfiltren och se till att de inte ártiltäppta. | |
| Vattentrycket Är lågt. | Kontrolera att vattenförsörningen árkorrekt ansluten och att vattnet ápà. | |
| Vatten stär kvar i maskinen. | Tömningslangen Är tilläppt ellervriden. | Kontrolera tömningslangen ochrengörllervid den rätt. |
| Filtren Är tilläppta. Rengör filtretn. | ||
| Programmet Är inte klart ännu. Vänta tills programmet ár klart. | ||
| Diskhon àr igentäppt. | Inspektera diskhon für att sakerställaatt den tommer korrekt. Om problemeär att diskhon inte tommer kanske du behöver en rörmkare i stället für enservicetekniker für diskmaskiner. | |
| Maskinen stannar under diskning. | Strömavbrott. Kontrolera elnätet. | |
| Vatteninloppsfel. | Kontrolera vattenkranen. | |
| Det ar skum i trumper. | Fel diskmedel. | Använd endast rengöringsmedel foriskaskiner.Öppna diskmaskinen och låt lõderevaporera.Tillsät 1 liter vatten på botten aviskaskinen. Stäng luckan tilldiskmaskinen ochwäj sedan ettprogram, vilket som helst. Initialtömmer diskmaskinen ut vattnet.Oppna luckan Norwayömmingen árclar. |
| Utspilld spolglans. Torka alltid upp spill omedelbart. | ||
| Skramlande lod under ettdiskprogram. | Porslinsföremål Är lösai diskmaskinen. | Avbryt programmet och placera omorslinet. |
| Skakande och bankande lod hörsumunder ettdiskprogram. | Spolarmen slår i disken i den undere korgen. | Flytta erler ta bort föremål somblockerar spolarmen. |
| FEL | MÖJLIG ORSAK ATGÄRD | |
| Disken侦 inte ren. | Diskgodset felplacerat, det sprutade vattnet*nar inte berörd disk. | Överbelasta inte korgarna. |
| Diskgodset lutar mot varandra. | Placera diskgodset enlicht instruktionerna i avsnittet om hur du fyller på din diskmaskin. | |
| Inte tillräckligt med diskmedel används. | Använd rätt mängd diskmedel, enlicht instruktionerna i programtabellen. | |
| Fel diskprogram har valts. | Använd informationen i programtabellen für att välja det program som passar böst. | |
| Spolarmarna侦 tilläppta med matavfall. | Rengör hälen i spolarmarna med smala foremål. | |
| Filter eller vattenavloppspump侦 tiläppta erller filter felaktigt placerade. | Kontrollera att avloppsslangen och ordentligt stångt. | |
| Det finns vitaktiga fläckar på diskgodset. | Inte tillräckligt med diskmedel används. | Använd rätt mängd diskmedel, enlicht instruktionerna i programtabellen. |
| Dosering av spolglans och/eller inställning for avhärdare for lög. | Öka spolglansniván och/eller vattenavhärdarens nìvà. | |
| Hög hardhetsgrad på vattnet. | Öka vattenavhärdaren och tillsätt salt. | |
| Saltbehällarens lock inte stängt ordentligt. | Kontrollera att saltbehällarens lock侦 ordentligt stångt. | |
| Diskgodset torkar inte. | Torkningsalternativ侦 inte valt. | Välj ett program med torkningsalternativ. |
| Felaktig laddning av diskmaskinen. | Använd handskar om diskmedelsrester observeras på disken for att undvika hudirritation. Var noga med att placera koppar och glas i en vinkel mot koppbrickan i den övre korgen. | |
| Spolglansdosingeren侦 for lågt inställd. | Öka spolglansdoseringsinställingen. | |
| Disk plockas ur for snabbt. | Töm inte din diskmaskin omedelbart fter diskning. Öppna luckan nógot sá att ørgan kan strömma ut. Ta ut disken tills den invändiga temperaturen侦 saker att vidröra. Töm den nedre korgen Först für att undvika droppende vatten frän den övre korgen. | |
| Svara aller grå märken på disk. Aluminiumföremål har gnidit mot disk. | Användett milt abrasivt rengöringsmedelfor att eliminera dessa märken. | |
| FEL | MÖJLIG ORSAK ÅTGÄRD | |
| Rostfläckar bildas på diskgodset. | Kvaliteten på det rostfria stålet på diskgodset är otillräcklig. | Använd endast diskmaskinssäkert diskgods. |
| Hög nivå av salt i diskvattnet. | Justera vattenhårdhetsnivån med hjällp av tabellen für vattenhårdhet. | |
| Saltbehållarens lock inte stängt ordentlig. | Kontrolera att saltbehållarens lock är ordentligt stängt. | |
| Für mycket salt spilldes i diskmaskinen under pafyllning av salt.för att undvika spill. | Använd en tratt vid pafyllning av salt. | |
| Dålig elnätsjordning. | Kontakta en behörig elektriker omedelbart. | |
| Diskmedel finns kvar i diskmedelsfacket. | Diskmedel har lagts i:när diskmedelsfacket var vätt. | Se till att diskmedelsfacket är torrt före användning. |
| Felaktig laddning av diskmaskinen. | Använd handskar om diskmedelsrester observeras på disken for att undvika hudirritation. Var noga med att placera koppar och glas i en vinkel mot koppbrickan i den övre korgen. | |
| Disk plockas ur För snabbt. | Töm inte din diskmaskin omedelbart after diskning. Öppna luckan nagot sä att øgangan kan strömma ut. Ta ut disken tills den invändiga temperaturen är saker att vidröra. Töm den nedre korgen Först für att undvika droppande vatten frän den övre korgen. | |
| Grumlighet på glas. | Kombination av mjukt vatten och für mycket diskmedel. | Användindre diskmedel och välj att kortare program für att diska glasvaror och fã dem rena. |
| FELKOD | MÖJLIGHT FEL ÅTGÄRD | |
| E1 | Längre vatteninloppstid | Se till att vatteninloppskranen är öppen och att vattnet rinner. |
| Separera inloppsslangen från kranen och rengör filtret på slangen. | ||
| Kontakta service om felet kvarstår. | ||
| Se till att vattentrycket inte är für lågt För apparaten. | ||
| E3 | Vatten uppnår inte önskad temperaturkontakta service. | |
| E4 | Bräddavlopp | Koppla ur maskinen och stäng kranen. |
| Kontakta service. | ||
| Ed | Kommunikationsfel mellan huvudkretskort och displaykretskort | Kontakta service. |
| Ec | Fel i diskstyrsystemet | Kontakta service. |
| L4 | Motorfel Kontakta service. | |
| Auto Dose system function indicatorCommunication failure or motor stall of the Auto Dose system | Contact service | |

WARNING
Om overflöde inträffar, stäng av huvudvattenforsörŋningen innan du kontaktar service.
Om det ar vatten i baspannan pa ground av overfylling aller en mindre lacka bor vattnet avlagsnas innan diskmaskinen startas om.
Om det ar en felkod som inte kan losas, begar professionell assistans.

Bertazzoni ar starkt engagerat i att leverera hogsta kvalitet pa service till sina kunder. I den mycket osannolika handelsen av att din apparat skulle ha ett fabrikationsfel, varVINlig kontakta vart serviceteam pa:
EU-lovgivning om miljøvenligt design.
UDSKAERINGMÄL
Den viste kabinetdybde omfatter kokkenskabets frontpanel. Til en planforsenet installation kraves en minimumsdybpe 580 mm (22 13/16") med en brugertilpasset lagepaneltykkelse p 20 mm (3 / 4^ )

SET FRA OVEN
SET FRA SIDEN
Fig. 4

C 820 mm - 870 mm (32 1/4" - 34 1/4")
BRUGERTILPASSET LAGEPANEL (TIL PANELFORBEREDTE MODELLER)
Fig. 2
A 580 mm (22 13/16")
SET FORFRA
Fig. 3

B 600 mm (23 5/8")
- Fyld opvaskemiddel i hulrummet som vist på figuren.
EnkelManual