TVS635 - Ceramic hob FRIONOR - Free user manual and instructions
Find the device manual for free TVS635 FRIONOR in PDF.
User questions about TVS635 FRIONOR
0 question about this device. Answer the ones you know or ask your own.
Ask a new question about this device
Download the instructions for your Ceramic hob in PDF format for free! Find your manual TVS635 - FRIONOR and take your electronic device back in hand. On this page are published all the documents necessary for the use of your device. TVS635 by FRIONOR.
USER MANUAL TVS635 FRIONOR
3. CARACTERISTIQUES DU PRODUIT

Thank you for choosing this product.
This User Manual contains important safety information and instructions on the operation and maintenance of your appliance.
Please take the time to read this User Manual before using your appliance and keep this book for future reference.
| Icon | Type | Meaning |
| A | WARNING | Serious injury or death risk |
| S | RISK OF ELECTRIC SHOCK | Dangerous voltage risk |
| A | FIRE | Warning; Risk of fire / flammable materials |
| ! | CAUTION | Injury or property damage risk |
| O | IMPORTANT / NOTE | Operating the system correctly |
CONTENTS
1.SAFETYINSTRUCTIONS. 4
1.1 General SafetyWarnings 4
1.2 InstallationWarnings 6
1.3 During Use 7
1.4 During Cleaning and Maintenance 7
2.INSTALLATION AND PREPARATION FOR USE 9
2.1 Installation of the Hob 9
2.2 Electrical Connection and Safety 11
3.PRODUCT FEATURES 12
4. USE OF PRODUCT 13
4.1 Hob controls 13
A heater can be turned off in 3 different ways: 14
5.CLEANING AND MAINTENANCE 17
5.1 Cleaning 17
6.TROUBLESHOOTING&TRANSPORT 19
6.1 Troubleshooting 19
6.2 Transport 19
1. SAFETY INSTRUCTIONS
- Carefully read all instructions before using your appliance and keep them in a convenient place for reference when necessary.
- This manual has been prepared for more than one model therefore your appliance may not have some of the features described within. For this reason, it is important to pay particular attention to any figures whilst reading the operating manual.
1.1 GENERAL SAFETY WARNINGS
- This appliance can be used by children aged from 8 years and above and by persons with reduced physical, sensory or mental capabilities or lack of experience and knowledge if they have been given supervision or instruction concerning use of the appliance in a safe way and understand the hazards involved. Children should not play with the appliance. Cleaning and user maintenance should not be made by children without supervision.
WARNING: The appliance and its accessible parts become hot during use. Care should be taken to avoid touching heating elements. Keep children less than 8 years of age away unless they are continually supervised.
WARNING: Unattended cooking on a hob with fat or oil can be dangerous and may result in fire. NEVER try to extinguish such a fire with water, but switch off the appliance and cover the flame with a lid or a fire blanket.
CAUTION: The cooking process has to be supervised. A short term cooking process has to be supervised continuously
WARNING: Danger of fire: Do not store items on the cooking surfaces.
WARNING: If the surface is cracked, switch off the appliance to avoid the possibility of electric shock.
- For models which incorporate a hob lid, clean any spillages off the lid before use and allow the cooker to cool before closing the lid.
- Do not operate the appliance by means of an external timer or separate remote-control system.
- Do not use harsh abrasive cleaners or scouring pads to clean oven surfaces. They can scratch the surfaces which may result in shattering of the door glass or damage to surfaces.
- Do not use steam cleaners for cleaning the appliance.
- Your appliance is produced in accordance with all applicable local and international standards and regulations.
- Maintenance and repair work should only be carried out by authorised service technicians. Installation and repair work that is carried out by unauthorised technicians may be dangerous. Do not alter or modify the specifications of the appliance in any way. Inappropriate hob guards can cause accidents.
- Before connecting your appliance, make sure that the local distribution conditions (nature of the gas and gas pressure or electricity voltage and frequency) and the specifications of the appliance are compatible. The specifications for this appliance are stated on the label.
CAUTION: This appliance is designed only for cooking food and is intended for indoor domestic household use only. It should not be used for any
other purpose or in any other application, such as for non-domestic use, in a commercial environment or for heating a room.
- All possible measures have been taken to ensure your safety. Since the glass may break, care should be taken when cleaning to avoid scratching. Avoid hitting or knocking the glass with accessories.
- Make sure that the supply cord is not trapped or damaged during installation. If the supply cord is damaged, it must be replaced by the manufacturer, its service agent or similarly qualified persons in order to prevent a hazard.
- Please keep children and animals away from this appliance.
1.2 INSTALLATION WARNINGS
- Do not operate the appliance before it is fully installed.
- The appliance must be installed by an authorised technician. The manufacturer is not responsible for any damage that might be caused by defective placement and installation by unauthorised people.
- When the appliance is unpacked, make sure that it is not been damaged during transportation. In the case of a defect do not use the appliance and contact a qualified service agent immediately. The materials used for packaging (nylon, staplers, Styrofoam, etc.) may be harmful to children and they should be collected and removed immediately.
- Protect your appliance from the atmosphere. Do not expose it to sun, rain, snow, dust or excessive humidity.
- Materials around the appliance (i.e. cabinets) must be able to withstand a minimum temperature of
100^ C .
- The temperature of the bottom surface of the hob may rise during operation, therefore a board must be installed underneath the product.
1.3 DURING USE
- Do not put flammable or combustible materials in or near the appliance while it is operating.
Do not leave the cooker unattended when cooking with solid or liquid oils. They may catch fire under extreme heating conditions. Never pour water on to flames that are caused by oil, instead switch the cooker off and cover the pan with its lid or a fire blanket. - Always position pans over the centre of the cooking zone, and turn the handles to a safe position so they cannot be knocked or grabbed.
- If the product will not be used for a long period of time, turn the main control switch off.
- Make sure the appliance control knobs are always in the "0" (stop) position when the appliance is not in use.
1.4 DURING CLEANING AND MAINTENANCE
- Make sure that your appliance is turned off at the mains before carrying out any cleaning or maintenance operations.
- Do not remove the control knobs to clean the control panel.
- To maintain the efficiency and safety of your appliance, we recommend you always use original spare parts and to call our authorised service agents when needed.
CE Declaration of conformity
CE We declare that our products meet the applicable European Directives, Decisions and Regulations and the requirements listed in the standards referenced.
This appliance has been designed to be used only for home cooking. Any other use (such as heating a room) is improper and dangerous.
The operating instructions apply to several models. You may notice differences between these instructions and your model.
Disposal of your old machine

This symbol on the product or on its packaging indicates that this product should not be treated as household waste. Instead it should be handed over to the applicable collection point for the recycling of electrical and
electronic equipment. By ensuring this product is disposed of correctly, you will help prevent potential negative consequences for the environment and human health, which could otherwise be caused by inappropriate waste handling of this product. For more detailed information about recycling of this product, please contact your local city office, your household waste disposal service or the retailer who you purchased this product from.
2. INSTALLATION AND PREPARATION FOR USE

WARNING : This appliance must be installed by an authorised service person or qualified technician, according to the instructions in this guide on compliance with the current local regulations.
Incorrect installation may cause harm and damage, for which the manufacturer accepts no responsibility and the warranty will not be valid.
- Prior to installation, ensure that the local distribution conditions (electricity voltage and frequency and/or nature of the gas and gas pressure) and the adjustments of the appliance are compatible. The adjustment conditions for this appliance are stated on the label.
- The laws, ordinances, directives and standards in force in the country of use are to be followed (safety regulations, proper recycling in accordance with the regulations, etc.).
Instructions for the Installer General instructions
- After removing the packaging material from the appliance and its accessories, ensure that the appliance is not damaged. If you suspect any damage, do not use it and contact an authorised service person or qualified technician immediately.
Make sure that there are no flammable or combustible materials in the close vicinity, such as curtains, oil, cloth etc. which may catch fire. - The worktop and furniture surrounding the appliance must be made of materials resistant to temperatures above 100^ .
- If a cooker hood or cupboard is to be installed above the appliance, the safety distance between cooktop and any cupboard/cooker hood should be as shown below.

- The appliance should not be installed directly above a dishwasher, fridge, freezer, washing machine or clothes dryer.
- If the base of the appliance is accessible by hand, a barrier made from a suitable material must be fitted below the base of the appliance, ensuring that there is no access to the base of the appliance.
2.1 INSTALLATION OF THE HOB
The appliance is supplied with an installation kit including adhesive sealing material, fixing brackets and screws.
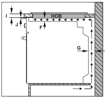
- Cut the aperture dimensions as indicated in the figure. Locate the aperture on the worktop so that, after the hob is installed, the following requirements are followed.
| B (mm) | 590 | min. A (mm) | 50 |
| T (mm) | 520 | min. C (mm) | 50 |
| H (mm) | 41-47.5 | min. E (mm) | 500 |
| C1 (mm) | 560 | min. F (mm) | 10 |
| C2 (mm) | 490 | G (mm) | 20 |
| D (mm) | 50 | I (mm) | 25 |
| J (mm) | 5 |




- Apply the supplied one-sided self-adhesive sealing tape all the way around the lower edge of the cooktop. Do not stretch the tape.

-
Screw the 4 worktop mounting brackets on to the side walls of the appliance.
-
Insert the appliance into the aperture.
2.2 ELECTRICAL CONNECTION AND SAFETY

WARNING: The electrical connection of this appliance should be carried out by an authorised service person or fired electrician, according to the actions in this guide and in compliance the current local regulations.

WARNING: THE APPLIANCE MUST BE EARTHED.
- Before connecting the appliance to the power supply, the voltage rating of the appliance (stamped on the appliance identification plate) must be checked for correspondence to the available mains supply voltage, and the mains electric wiring should be capable of handling the appliance's power rating (also indicated on the identification plate).
- During installation, please ensure that isolated cables are used. An incorrect connection could damage your appliance. If the mains cable is damaged and needs to be replaced this should be done by a qualified person.
- Do not use adaptors, multiple sockets and/or extension leads.
- The supply cord should be kept away from hot parts of the appliance and must not be bent or compressed. Otherwise the cord may be damaged, causing a short circuit.
- If the appliance is not connected to the mains with a plug, a all-pole disconnector switch (with at least 3 mm contact spacing) must be used in order to meet the safety regulations.
- The fused switch must be easily accessible once the appliance has been installed.
- Ensure all connections are adequately tightened.
Fix the supply cable in the cable clamp and then close the cover. - The terminal box connection is placed on the terminal box.

3. PRODUCT FEATURES

Important: Specifications for the product vary and the appearance of your appliance may differ from that shown in the figures below.
List of Components

- Ceramic Heater
- Control Panel
4. USE OF PRODUCT
4.1 HOB CONTROLS
The appliance is operated by pressing buttons, confirmed by displays and audible sounds.

1- Heater display
2- Activate/Deactivate heater
3-Timer display
4- Timer function cooking zone indicators
5-Triple zone indicator
6-Dual zone indicator
7-Dual/triple zone selection
8- Heat setting/timer decrease
9- Activate/Deactivate timer
10- Heat setting/timer increase
11- Decimal point
12- Key lock indicator
13-Key lock
14- On/Off
| Mode Descriptions | ||
| Stand-By-Mode | S-Mode | Mains supply is applied to the hob control and all heater displays are off or a residual heat display is active. |
| Operating-Mode | B-Mode | At least one heater display shows a heat setting between ‘0’ and ‘9’. |
| Lock Mode | VR-Mode | The hob control is locked. |
Switching the Appliance On and Off
If the appliance is in Stand-By mode, it is put in Operating mode by pressing the On/Off button 1 for at least 1 second. A buzzer will sound to indicate the successful operation.
A "0" will appear on all heater displays and all decimal points corresponding to the heaters will flash (1 second on, 1 second off).
If there is no operation within 10 seconds,
the display on all heaters will switch off.
If the displays do switch off, the heater will be sent into Stand-By mode.
If ① is pressed for more than 2 seconds (in Operating mode), the appliance is switched off and is sent into S-Mode again. The appliance can be switched off by pressing ① at any time; even if other buttons are pressed simultaneously.
If there is any residual heat from a heater, this will be indicated in the corresponding Heater Display with a 'H'.
Selecting a Heater
If a single heater is chosen with the corresponding Activate/Deactivate Heater Button , the decimal point of the Heater Display will flash. For the selected heater, the heat level can be set between 1 and 9 by pressing the Heat Setting Buttons or
The buttons must be pressed within 3 seconds of selecting a heater, otherwise the heater selection will be erased and the heat setting decimal point will disappear. If there is no further operation within 10 seconds, the heater will revert back to S-Mode.
The heat setting can always be changed by pressing or . The available settings are between 1 and 9.
Each button operation or each display change is accompanied by a buzzer sound.
Switching On the Dual and Triple Zones Switching on the Dual Zone
The Dual Zone can be activated by pressing, after a heater and its corresponding desired heat level (between 1 and 9) is selected. This is confirmed by a buzzer sound. At the same time, the corresponding Dual Zone Indicator will illuminate. To deactivate the Dual Zone, press again.
Switching on the Triple Zone
Similar to activating the Dual Zone, a triple zone can only be switched on if the basic zone of a heater has been selected and its corresponding heat level, between 1 and 9, has been set. This will be indicated by the illumination of the heater's corresponding decimal point.
If is pressed, the signal will sound and the Dual Zone Indicator will illuminate. If is pressed a second time, another buzzer will sound to indicate the activation of the Triple Zone. The Triple Zone Indicator will illuminate to confirm this.
Pressing again will switch off the Triple Zone of the heater. Each operation causes a status change of the Dual and Triple zones in the following manner: dual zone on/off, triple zone on, all extended zones off, dual zone on/off, triple zone on, all zones off, and so on.
Set Cooking Level with and without Heat Boost
All heaters are equipped with the heat boost function.
If the heat boost is required, set the heat from the current level to level 9 by pressing the button only. Once level 9 has been reached, press to activate the heat boost. The display will flash "A" alternating with the heat setting value "9" to show the heat boost is active.
If the heat boost is active, the heater will operate with maximum power for a period of time dependent on the heat setting selected before the heat boost was activated.
Once the heat boost time has ended, only the heat setting will be indicated on the heater display.
The heat boost can be deactivated by pressing until the heat setting "0" is displayed.
Switching Off Individual Heaters
A heater can be turned off in 3 different ways:
- Simultaneous pressing of and buttons
Reduction of the heat setting to 0^ by pressing the button
Use of the timer switch-off function for the corresponding heater.
Simultaneous operation of and buttons
The corresponding heater must be chosen with the Activate/Deactivate Heater Button , the Decimal Point of the related Heater Display will then flash. To switch off the heater, and must be pressed simultaneously. A buzzer will sound and "0" will appear in the heat setting display when this is successful.
If the timer is active for the selected heater, then "0" will appear in the heater and timer displays, and the related Cooking Zone Indicator and the Timer Function will both switch off.
If there is any residual heat for the heater, this will be indicated by a "H" in the heat
setting display.
Reduction of the heat setting to "0" by operating button
The heater can also be switched off by reducing the heat setting to "0". This causes the associated Decimal Point of the heater, the related Cooking Zone Indicator and the Timer Display to all switch off, also.
If there is any residual heat for the heater, this will be indicated by a "H" in the heat setting display.
Use of timer switch-off function for corresponding heater
After counting down to zero, the timer will stop. The corresponding heater will show "0" in the Heater Display and the Timer Display will show "00". The corresponding Cooking Zone Indicator will disappear.
An assigned Dual/Triple Zone Selection Indicator will also disappear if it is active.
Additionally, the buzzer will sound when the timer stops. Pressing any button will silence the timer.
Timer Function
The timer provides the following features.
The control can run a maximum of 2 heater assigned timers and 1 minute minder timer (which is not assigned to a heater) simultaneously.
The timers can only be used in B-Mode. A heater timer can only be assigned to an active heater set at a level between 1 and 9. The minute minder timer is independent of any heater.
In order to use both functions, the timer function must be activated using the Activate/Deactivate Timer button
Pressing for the fist time, after activating the heaters, controls the minute minder timer (no Cooking Zone Indicator will flash, they will all be either on or off).
Pressing for a second time, will assign a timer to one of the activated heaters. The Cooking Zone Indicator will begin flashing.
Pressing again, will assign the next timer in a clockwise direction to the next active heater, and so on.
Minute Minder Timer
The Minute Minder Timer can be operated by pressing , whether a heater has been activated or not, and is selected only when all Cooking Zone Indicators are either on or off, i.e. none are flashing.
The Timer Display will show "00", indicating
the timer is active. The decimal point on the Timer Display indicates that and can now be used to set the timer value.
The Minute Minder Timer will begin counting down once it has been set, it will not stop if the appliance is switched off or if the Key Lock function is activated.
Once it has reached zero, "00" will be displayed on the Timer Display and the buzzer will sound. Press any button to stop the buzzer sound.
Heater Timer
Heater Timers can only be set when a heater has been activated, i.e. a heater level must be set between 1 and 9. Pressing once will activate the Minute Minder Timer, pressing again will assign the timer to an activated heater. This will be indicated by the corresponding Cooking Zone Indicator flashing. Pressing for a third time, after setting the first heater timer, will activate the timer for the next active heater in a clockwise direction. This will be indicated by its corresponding Cooking Zone Indicator flashing. Pressing and will allow the timer to be set a value for the active heater.
The timer for the heater that was set first will be indicated by the illumination of its corresponding Cooking Zone Indicator. Pressing again allows more timers to be assigned to the other activated heaters. The Timer Display will change, 10 seconds after the last operation, to the timer that will run out next. The number of timers that are running is indicated by the number of illuminated Cooking Zone Indicators.
The timer values for the Heater Timer and the Minute Minder Timer can be displayed by pressing , a Cooking Zone Indicator will flash for the timer it is assigned to. If no Cooking Zone Indicator flashes, the Minute Minder Timer value will be shown on the Timer Display.
All Heater Timers can be removed by switching the appliance into S-Mode using ① , however this will have no effect on the Minute Minder Timer which will continue counting down.
To remove a timer in Operation Mode, first select the timer using the Activate/ Deactivate Timer Button until the desired timer is displayed on the Timer Display. It can then be removed in 2 ways:
Decrease the value by pressing until "00" appears on the Timer Display
- Press and simultaneously for 0.5 seconds until "00" is shown on the Timer Display.
Once a timer reaches "00", the level of its corresponding heater will also set to "00". The end of both the Heater Timer and the Minute Minder Timer is indicated by the buzzer sound, this can be stopped by pressing any button.
Key Lock
The key lock function is used to set 'safe mode' on the appliance and can only be used in Operating Mode (B-Mode). The lock function becomes active when the key Lock button is pressed for at least 2 seconds. This operation is acknowledged by a buzzer and the Key Lock Indicator will flash to indicate the heater is locked.
If the heater is locked, it will only be possible to switch the appliance off by pressing ① , all other buttons are blocked and it will not be possible to make any adjustments by pressing the buttons. If any other button is pressed in the lock mode, the buzzer will sound and the Key Lock Indicator will flash.
Only the switch-off operation by pressing ① is possible. However, if the appliance is switched off, it can not be restarted again without being unlocked.
Child Lock
The child lock function is used to lock the appliance in a complicated multi-step process. Child lock (and unlocking) is only available in the S-Mode.
First, ① must be pressed until the buzzer sounds, then ④ and ⑤ must be pressed simultaneously for at least 0.5 seconds, but no longer than 1 second. Following this, press ④ to activate the child lock. All four heater displays will show "L" as confirmation.

If the minute minder timer is still running, it will proceed until "00" is reached and the timer will beep. After confirmation of timer completion, the appliance will be fully
locked. None of the buttons can be used as long as the appliance is locked.
Child lock can be deactivated by pressing ① until the buzzer sounds. Then ④ and ⑤ must be pressed simultaneously for at least 0.5 seconds, followed by pressing ⑦ only. As confirmation for successful unlocking, "L" will no longer be displayed.

Touch Control Safety Functions
The following safety functions are available to avoid unintended operations.
Sensor Safety Cut-Off
Button monitoring is included to prevent the appliance from unwanted button operation. In cases where one or more buttons are pressed for longer than 12 seconds, the buzzer will sound for ten minutes to indicate an incorrect operation. For example, an object may be placed on a button, or there could be a sensor failure and so on.
The safety switch-off will cause the hob to go into S-mode and all heater displays will flash "F". If there is no incorrect operation present, both the visual and audible signals will disappear.
If residual heat is present, "H" will be displayed on all other heater displays.

Over Temperature Switch-Off
Due to the controls being very close to the heater in the middle of the front of the hob, it can occur that an incorrectly placed pot is not sensed by the sensor safety cut-off therefore heating up the hob to a very high temperature. This makes the glass and the buttons dangerous to touch.
To prevent the hob control unit from damage, the controls constantly monitor the temperature and the hob will automatically switch off if overheating occurs.
This will be indicated by the letter "t" in the heater display until the temperature decreases.

Once the temperature has dropped, the "t" in the heater display will disappear and the hob control unit will revert back into S-Mode. This means that the user can reactivate the appliance by pressing ① .
Operating Time Limitations
The hob control unit has a limitation on the operating time. If the heat setting for a heater has not been changed for a certain time, the heater will switch off automatically. A "0" will be displayed for 10 seconds, however there may be some residual heat present. The limit of the operating time depends on the selected heat setting.
After a heater automatically switches off, as described above, the heater can be used and the maximum operating time for this heat setting is applied.
Residual Heat Functions
After all cooking processes, some heat will be stored in the vitroceramic glass called residual heat. The appliance can calculate roughly how hot this glass is. If the calculated temperature is higher than +60^ , then this will be indicated in the corresponding heater display for as long as the calculated temperature remains above +60^ , even after the appliance has been switched off.
The residual heat indicator has the lowest priority and is overwritten by every other display value, including during safety switch-off and the displaying of an error code. When voltage is supplied to the hob after a power interruption, the residual heat display indicator will flash. If a heater had a residual heat of greater than +60^ before the power interruption occurred, the display will flash while the residual heat remains
or until the heater is selected for another cooking operation.
Hints and Tips

Important: When ceramic heaters are
operated in higher heat settings, the
heated areas may be seen switching
on and off. This is due to a safety device, which prevents the glass from overheating.
This is normal at high temperatures,
causing no damage to the hob and little delay in cooking times.

WARNING:
-
Never operate the hob without pans on the cooking zone.
-
Use only flat saucepans with a sufficiently thick base.
- Make sure the bottom of the pan is dry before placing it on the hob.
While the cooking zone is in operation, it is important to ensure that the pan is centred correctly above the zone.
In order to conserve energy, never use a pan with a different diameter to the hotplate being used.




Circular Saucepan Base

Small Saucepan
Diameter

Saucepan base that
has not settled
- Do not use saucepans with rough bottoms since these can scratch the glass ceramic surface.
If possible, always place lids on the pans to avoid heat loss. - The temperature of accessible parts may become high while the appliance is operating. Keep children and animals
well away from the hob during operation and until it has fully cooled after operation.
If you notice a crack on the cooktop, it must be switched off immediately and replaced by authorised service personnel.
5. CLEANING AND MAINTENANCE
5.1 CLEANING

WARNING: Switch off the appliance
and allow it to cool before cleaning is
to be carried out.
General Instructions
- Check whether the cleaning materials are appropriate and recommended by the manufacturer before use on your appliance.
- Use cream cleaners or liquid cleaners which do not contain particles. Do not use caustic (corrosive) creams, abrasive cleaning powders, rough wire wool or hard tools as they may damage the cooker surfaces.

Do not use cleaners that contain particles, as they may scratch the glass, enamelled and/or painted parts of your appliance.
- Should any liquids overflow, clean them immediately to avoid parts becoming damaged.

Do not use steam cleaners for cleaning any part of the appliance.
Cleaning the Ceramic Glass
Ceramic glass can hold heavy utensils but may be broken if it is hit with a sharp object.

WARNING : Ceramic Cooktops - if the
surface is cracked, to avoid the possibility of an electric shock, switche appliance and call for service.
- Use a cream or liquid cleaner to clean the vitroceramic glass. Then, rinse and dry them thoroughly with a dry cloth.

Do not use cleaning materials meant for steel as they may damage the glass.
- If substances with a low melting point are used in the cookware's base or coatings, they can damage the glass
ceramic cooktop.If plastic, tin foil, sugar or sugary foods have fallen on the hot glass-ceramic cooktop, please scrape it off the hot surface as quickly and as safely as possible. If these substances melt, they can damage the glass-ceramic cooktop. When you cook very sugary items like jam, apply a layer of a suitable protective agent beforehand if it is possible.
- Dust on the surface must be cleaned with a wet cloth.
- Any changes in colour to the ceramic glass will not affect the structure or durability of the ceramic and is not due to a change in the material.
Colour changes to the ceramic glass may be for a number of reasons:
- Spilt food has not been cleaned off the surface.
- Using incorrect dishes on the hob will erode the surface.
- Using the wrong cleaning materials.
Cleaning the Stainless Steel Parts (if available)
- Clean the stainless steel parts of your appliance on a regular basis.
- Wipe the stainless steel parts with a soft cloth soaked in only water. Then, dry them thoroughly with a dry cloth.

Do not clean the stainless steel parts while they are still hot from cooking.

Do not leave vinegar, coffee, milk, salt, water, lemon or tomato juice on the stainless steel for a long time.
6. TROUBLESHOOTING&TRANSPORT
6.1 TROUBLESHOOTING

If you still have a problem with your appliance after checking these basic troubleshooting steps, please contact an authorised service person or qualified technician.
| Problem | Possible Cause | Solution |
| Hob control card's display is blacked out. The hob or cooking zones cannot be switched on. | There is no power supply. | Check the household fuse for the appliance. Check whether there is a power cut by trying other electronic appliances. |
| The hob switches off while it is in use and an 'F' flashes on each display. | The controls are damp or an object is resting on them. | Dry the controls or remove the object. |
| The hob switches off while it is use. | One of the cooking zones has been on for too long. | You can use the cooking zone again by switching it back on. |
| The hob controls are not working and the child lock LED is on. | The child lock is active. | Switch off the child lock. |
6.2 TRANSPORT
If you need to transport the product, use the original product packaging and carry it using its original case. Follow the transport signs on the packaging. Tape all independent parts to the product to prevent damaging the product during transport.
If you do not have the original packaging, prepare a carriage box so that the appliance, especially the external surfaces of the product, is protected against external threats.

EasyManual