RAV-SP1402AT-E - Air-conditioner TOSHIBA - Free user manual and instructions

Find the device manual for free RAV-SP1402AT-E TOSHIBA in PDF.

📄 72 pages English EN 💬 AI Question
Notice TOSHIBA RAV-SP1402AT-E - page 12
View the manual : Français FR English EN
Manual assistant
Powered by ChatGPT
Waiting for your message
Product information

Brand : TOSHIBA

Model : RAV-SP1402AT-E

Category : Air-conditioner

Download the instructions for your Air-conditioner in PDF format for free! Find your manual RAV-SP1402AT-E - TOSHIBA and take your electronic device back in hand. On this page are published all the documents necessary for the use of your device. RAV-SP1402AT-E by TOSHIBA.

USER MANUAL RAV-SP1402AT-E TOSHIBA

8-1. Specifications 8-2. Dimension 8-3. Wiring diagram 8-4. Sound characteristics 8-5. Capacity variation ratio according to temperature: 8-8

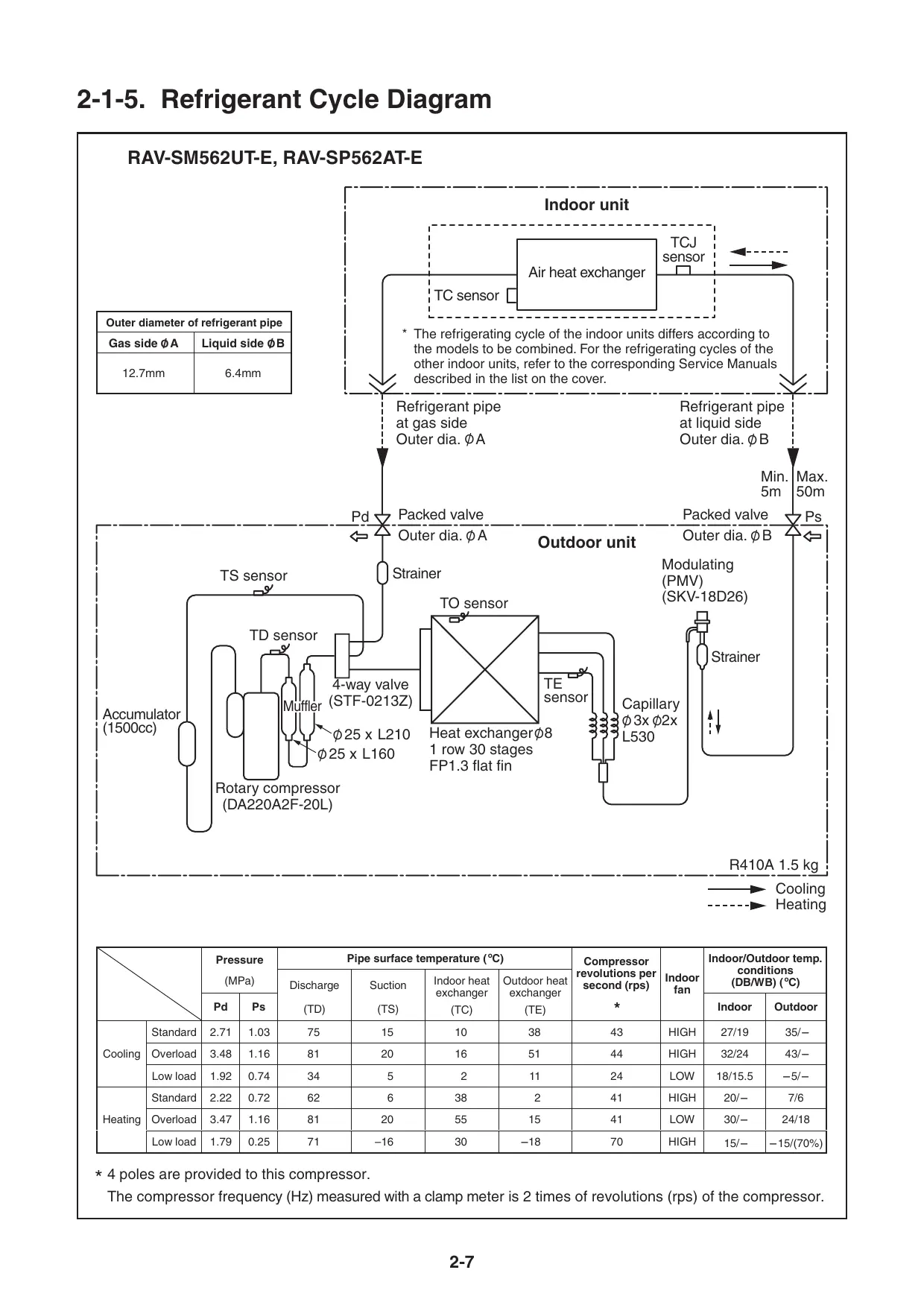
  • 4 poles are provided to this compressor. The compressor frequency (Hz) measured with a clamp meter is 2 times of revolutions (rps) of the compressor. 2-7

Outer diameter of refrigerant pipe Gas side DA | Liquid side DB 15.9mm 9.5mm ———————. "À TS sensor TD sensor Accumulator ee — —— 4-way valve Mutter (STF-02132Z) Refrigerant pipe at gas side 1 Outer dia. 9 A PAS Packed valve Strainer Outdoor unit TO sensor

  • The refrigerating cycle of the indoor units differs according to the models to be combined. For the refrigerating cycles of the other indoor units, refer to the corresponding Service Manuals described in the list on the cover. NZ a Refrigerant pipe at liquid side Outer dia. ÿB Outer dia. A Outer dia. SE À Modulating (PMV) (SKV-1
  • 4 poles are provided to this compressor. The compressor frequency (Hz) measured with a clamp meter is 2 times of revolutions (rps) of the compressor. 2-8

Indoor unit TCJ sensor —} Distributor (Strainer incorporated)

  • 4 poles are provided to this compressor. The compressor frequency (Hz) measured with a clamp meter is 2 times of revolutions (rps) of the compressor. 2-9

RAV-SM1402UT-E, RAV-SP1402AT-E [ 7 | ! Distributor 1 ! 1 TCJ sensor A | | ! s (Strainer incorporated) | | trainer not | i . [1 < | | + + Air heat exchanger T7 >) |! | 1 TC sensor ! | qq qq SES = Outer diameter of refrigerant pipe | * The refrigerating cycle of the indoor units differs according to | | the models to be combined. For the refrigerating cycles of the ! Gas side PA | Liquid side PB | other indoor units, refer to the corresponding Service Manuals | 15.9mm 9.5mm | described in the list on the cover. | ! Refrigerant pipe Refrigerant pipe | at gas side at liquid side ' Ÿ Outer dia. A Outer dia.@B ÿ Min. |Max. 5m |70m Ball valve Packed valve K PE À ui qe DA Our da 6 AAC | il > Outer dia. @A Outdoor unit Outer dia. 9B <= | | Strainer PMV | | TS sensor Check joint (UKV-25D22) | ! TO sensor | | LA — ï | TD sensor 27 | n TE sensor Strainer | 4-Way valve L | | (STF-0401G) ° il | | Muffler Heat exchanger : ‘ | 2 row 52 stages Distributor | | Outside : | | D25xL210 98 FP1.3 flat fin | | p25xL180 Inside: ï

! Accumulator Rotary ® ! | | (2500cc) … compressor Ï Il (DA420A3F -21M) R410A 2.95kg ———+- Cooling = » Heating Pressure Pipe surface temperature (°C) Compressor Indoor/Outdoor temp. û conditions (MPa) Discharge | Sucton | Indoorheat [Ouidoorheat|'Rebna nn" [Indoor | (DBAWB) CC) exchanger | exchanger fan Pa | Ps (TD) «rs) (To) (TE) * Indoor | Outdoor Standard | 2.76 | 0.91 74 11 9 39 53 HIGH | 27/19 35/— Cooling | Overload | 3.46 | 1.03 8 17 16 48 si HIGH | 32/24 43 Low load | 1.77 | 0.78 48 9 6 27 24 Low | 18155 | -5/- Standard | 2.65 | 0.69 75 3 43 3 55 HIGH | 20/— 76 Heating | Overload | 3.33 | 1.08 74 19 55 15 24 Low | 30— | 2418 Low load | 2.50 | 0.22 98 22 43 18 73 HIGH | 15/— |-15470%)

  • 4 poles are provided to this compressor. The compressor frequency (Hz) measured with a clamp meter is 2 times of revolutions (rps) of the compressor.

TC:Total Capacity [KW] SHC:Sensible Heat Capacity [KW]

Octave band frequency (Hz)

CEE] Octave band frequency (Hz)

{TC sensor [| Outer diameter of refrigerant pipe | DIT TT ide Ÿ iquid side ! * The refrigerating cycle of the indoor units differs according to Gas side PA | Liquid side ÿB | the models to be combined. For the refrigerating cycles of the ! other indoor units, refer to the corresponding Service Manuals 12.7mm 6:4mm | described in the list on the cover. : |_Refrigerant pipe Refrigerant pipe ! | at gas side at liquid side | v Outer dia. pA Outer dia. pB v Min Pd Packed valve Packed Yake _s7 à = re TP 1 | <= Outer dia. ® A Outdoor unit Outer dia. B | H : Modulatin: | | TS sensor Strainer (PMV) 8 | ! TO sensor (SKV-18D26) | | æ E | TD sensor | | Strainer | | 4-way valve | (STF-02132) | Accumulator | MEET k | (1500cc) @25 x L210 Heat exchangerp8 L R410A 1.5 k TT 2 9 ————- Cooling === » Heating Pressure Pipe surface temperature (°C) Compressor Indoor/Outdoor temp. ie conditions QUPa) | pischarge | Sucion | Mdcorheat lOutdoorneat| "Rond qee |Md00r| (DBWE) CC) sr exchanger | exchanger P: fan Pd Ps (TD) (TS) (TC) (TE) * Indoor | Outdoor Standard | 2.71 | 1.03 75 15 10 38 43 HIGH | 27/19 35/— Cooling | Overload | 3.48 | 1.16 ai 20 16 si 44 HIGH | 32/24 43 Low load | 1.92 | 0.74 34 5 2 11 24 Low | 18155 | -5/- Standard | 2.22 | 0.72 62 6 38 2 41 HIGH | 20/— 7/6 Heating | Overload | 3.47 | 1.16 at 20 55 15 41 LOW | 30 24118 Low load | 1.79 | 0.25 71 16 30 —18 70 HIGH | 15 |-15470%)

  • 4 poles are provided to this compressor. The compressor frequency (Hz) measured with a clamp meter is 2 times of revolutions (rps) of the compressor.
  • 4 poles are provided to this compressor. The compressor frequency (Hz) measured with a clamp meter is 2 times of revolutions (rps) of the compressor. 2-20

Outer diameter of refrigerant pipe | * The refrigerating cycle of the indoor units differs according to | | the models to be combined. For the refrigerating cycles of the ! Gas side GA | Liquid side DB | other indoor units, refer to the corresponding Service Manuals | 15.9mm 9.5mm | described in the list on the cover. ! CNE | 1 _Refrigerant pipe Refrigerant pipe | ! at gas side at liquid side ! Ÿ Outer dia. DA Outer dia.PB W Min. |Max. 5m |70m Ball valve Packed valve _—

  • 4 poles are provided to this compressor. The compressor frequency (Hz) measured with a clamp meter is 2 times of revolutions (rps) of the compressor. 2-21

[ 7 | TCJ sensor Distributor 1! | (Strainer incorporated) | | : nl > ! | | Air heat exchange 4 2 = 1 | : ! n | ' TC sensor ' | LE 2 Outer diameter of refrigerant pipe | * The refrigerating cycle of the indoor units differs according to | | the models to be combined. For the refrigerating cycles of the ! Gas side PA | Liquid side PB | other indoor units, refer to the corresponding Service Manuals | 15.9mm 9.5mm | described in the list on the cover. | NT NZ. 1 Refrigerant pipe Refrigerant pipe! ' S : : ' 1 at gas side at liquid side 1 Ÿ Outer dia. pA Outer dia.pB _Y Min. |Max. 5m |70m Ball valve Packed valve K PT 7 7 D D OutrdiapA pes + OuterdiapB A | l > Que dia. @A Outdoor unit Outer dia. @B < | rainer ! | TS . PMV | | sensor Check joint (UKV-25D22) | : TO sensor | | s — : | TD sensor 2 | H TE sensor Strainer | | 4-way valve h |

| Muffler Heat exchanger Lu ‘ | | 2 row 52 stages Distributor | | Outside : / | p25xL210 68 FP1.8flatfin | 25xL180 Inside: . H | #25 x 99.52 FP1.5 fiat fin | Accumulator Rotary |” (@500cc) compressor Ï l (DA420A3F —-21M) R410A 2.95kg | ———- Cooling - æ Heating Pressure Pipe surface temperature (°C) Compressor Indoor Outdoor temp. x ti (Po | Dichage | Sucton | Mécorneat Toudoorneat| en pe) [indoor | (DBAVE) (°C) exchanger | exchanger fan Pd | Ps (TD) (TS) (TC) (TE) * Indoor | Outdoor Standard | 2.76 | 0.91 74 1 ° 39 53 HIGH | 27/19 35/— Cooling | Overioad | 3.46 | 1.03 &æ 17 16 48 st HIGH | 32/24 431 Low load | 1.77 | 0.78 48 ° 6 27 24 LOW | 18155 | -5- Standard | 2.65 | 0.69 75 3 43 3 55 HIGH | 20/— 7/6 Heating | Overload | 3.33 | 1.08 74 19 55 15 24 Low | 30/- 2418 Low load | 2.50 | 0.22 98 22 43 18 73 HIGH | 15/— |-15/70%)

  • 4 poles are provided to this compressor. The compressor frequency (Hz) measured with a clamp meter is 2 times of revolutions (rps) of the compressor. 2-22

TC:Total Capacity [KW] SHC:Sensible Heat Capacity [KW] 2-23

84 | (Knockout hole) jos, (Inner dia. 926, hose attached) 8 = E = + 8 R = elë 5 È G sé qe S Refrigerant pipe 8 Bts 2 Left drain size (Liquid side DC) 2É EC 56 5le & |A B (Hanging position) Drain pipe connecting port Refrigerant pipe (Gas side D) ÊLs 46 Remote controller cable take- in port Hanging boit Power supply cable take-in port (Knockout hole) TM PE | jCeiling surface 47 ppy por ( ) £ 262 Remote controller cable take- in port £a] Unit {Knockout hole) È 15,8 SE 84,4 Æ “ F Fr [0 +

© à Outside air take-in port (Duct sold separately)(Knockout hole 992)

1 RY ot Na £t ET \LX NN Be T6SA P301 cat CN68 0060069 04] (BLU) UD as ER j« (BLK) no (GRY) (WHI) Wired Remote no RED|WHI |BLK Controller no Capacitor {op} CE \ - Nos RES | Giosed-end 9 connector 4 [TT rl EX D Read Color indoor unit Identification NOTE earth screw

Outer diameter of refrigerant pipe Gas side DA | Liquid side B 12.7mm 6.4mm Refrigerant pipe at gas side Outer dia. A Pd Packed valve Le] Outer dia. pA TS sensor Strainer (sl Air heat exchanger TCJ sensor Outdoor unit TO sensor

  • The refrigerating cycle of the indoor units differs according to the models to be combined. For the refrigerating cycles of the other indoor units, refer to the corresponding Service Manuals described in the list on the cover. Refrigerant pipe at liquid side Outer dia. pB Packed valve
  • 4 poles are provided to this compressor. The compressor frequency (Hz) measured with a clamp meter is 2 times of revolutions (rps) of the compressor. 2-32
  • 4 poles are provided to this compressor. The compressor frequency (Hz) measured with a clamp meter is 2 times of revolutions (rps) of the compressor. 2-33
  • 4 poles are provided to this compressor. The compressor frequency (Hz) measured with a clamp meter is 2 times of revolutions (rps) of the compressor. 2-34
  • 4 poles are provided to this compressor. The compressor frequency (Hz) measured with a clamp meter is 2 times of revolutions (rps) of the compressor. 2-35

TC:Total Capacity [KW] SHC:Sensible Heat Capacity [KW] 2-36

g 7 El poor “ {Knockout hole) Pipe port from right ; = {Knockout hole) E + =: | m [£] Pipe port from lower side 15,156 Z views {Knockout hole)

SR RE Te LOT 110 390 Drain hose 290 Refrigerant pipe connecting port B Refrigerant pipe connecting port A

1.153 or more 53 or more | |

  • 4 poles are provided to this compressor. The compressor frequency (Hz) measured with a clamp meter is 2 times of revolutions (rps) of the compressor. 2-44
  • 4 poles are provided to this compressor. The compressor frequency (Hz) measured with a clamp meter is 2 times of revolutions (rps) of the compressor. 2-45

TC:Total Capacity [KW] SHC:Sensible Heat Capacity [KW] 2-46

Celing height (m) Horizontal distance (mi) 2-47

4-1. Remote Controller Line-UP indoor unit | Way Cassette Type | Duct Type Ceiling Type | High-Wall Type RAV-SM*2UT-E | RAV-SM*2BT-E | RAV-SM“2CT-E | RAV-SM*2KRT-E RAV-SP1102UT-E Remote À controller & Adaptor RBC-AMT31E Wired remote controller ° ° e e RBC-AS21E2 Simple wired remote controller e Le e e TBC-AX21U(W)-E2 e …: …: . Wireless remote controller kit RBC-AX22CE2 … … . … Wireless remote controller kit TCB-AX21E2 Wireless remote controller kit En ° En e RBC-EXW21E2 Weekly timer ° ° e Le TCB-SC642TLE2 Central remote controller e LL e e TCB-TC21LE2 Remote sensor pes e e e e TCB-PCNT30TLE2 “1:1 model” connection interface e e e — (for connecting to central control wiring) Li] WH-H2UE È … … … e Wireless remote controller Packed with FCU 4:Way Cassette Type | Duct Type Ceiling Type | High-Wall Type Group control (e] O [e) [e] “1:1 mode 1:1 model" "1:1 model" Can connect without Central remote controller connection interface | connection interface | connection intertace | 1:1 model" TCB-PONT3OTLE2 |TCB-PCNTS3OTLE2 |TCB-PCNT3OTLE2 | connection interface Auto Restart Operation How to set the AUTO RESET Function Indoor unit Remote controller Setting Procedure 4-way cassette Type | RAV-SM2UT-E RBC-AMT31E Set the code on wired remote controller. 0001 : Reset 0000 : none “When the unit are shipped from the factory “Auto restart function‘ is set up *0000" operation Duct Type RAV-SM*2BT-E RBC-AMT31E Set the code on wired remote controller. 0001 : Reset 0000 : none “When the unit are shipped from the factory “Auto restart function‘ is set up *0000" operation Ceiling Type RAV-SM*2CT-E RBC-AMT31E Set the code on wired remote controller. 0001 : Reset 0000 : none “When the unit are shipped from the factory “Auto restart function‘ is set up *0000" operation High-wall Type RAV-SM“*2KRT-E RBC-AMT31E Set the code on wired remote controller. 0001 : Reset 0000 : none “When the unit are shipped from the factory “Auto restart function‘ is set up *0000" operation

4-2. Group Control Max. 8 indoor units can be controlled by one remote controller on a group control. Twin control of 1 by 1 model is one grop control. Header indoor unit controls indoor air temperrature based on setting temperature of the remote controller. [ System sample ] Outdoer unit Heador Indoor Indoor Indoor Indoor uit |,, uit |, [un |, uit is os Max. 8 units Remote certrller [NOTE] Be sure to supply the power for all indoor units on the group control. Ifthe powerisn't supplied tothe header indoor unit, communication betweenindoor units andremote controller can'tbe performed. 4-3. Central Control Connectable units + Max.64 of indoor units or groups can be connected and controlled in one central remote controller. -1t count the number of the twin unit as the one [ System sample ] wired remote controller — = EE © mm ae E L Men nr Wireless remote controller Virass rente conoler Group operation al CE Ed F7 FF] F7] À À i À HO © D de Î ù Î res remote oonroter ire rente conroler Na remcte controler Be sat use TOB-PISOVUE and TCB-FONTIUTLEZ en cor pact ay casse core cata art

TCB-UFM11BFCE TCB-UFM21BFCE TCB-UFM21BE TCB-UFM31BE TCB-UFM41BE For rear suction (2P for 3HP ) For rear suction ( 2P for 4-5HP ) For Underside suction (for 2HP ) For Underside suction ( for 3HP ) For Underside suction ( for 4-5HP ) High Efficiency Filter 90 ù + TCB-UFH51BFCE TCB-UFH61BFCE TCB-UFH61BE TCB-UFH71BE TCB-UFH81BE For rear suction (2P for 3HP ) For rear suction ( 2P for 4-5HP ) For Underside suction (for 2HP ) For Underside suction ( for 3HP ) For Underside suction ( for 4-5HP )

5-3. Twin kit + COMPONENT The following parts are supplied as accessories of the branch pipes. Check them when opening the carton box. Part Quantity Shape Use Installation Instructions 1 This booklet For installation works For refrigerant pipe branching and Gas side 1 ne collection Branch pipe Liquid side 1 A Noise filter 2 S For connection on the PC. board + REFRIGERANT PIPING [Tolerance of pipe length and pipe head Indoor unit B Indoor unit A

RCD Outdoor unit Pipe Lengih (One Direction) Height Difference Outdoor Unit - Difference Indoor Unit of branch H Between Model Full length Ério piping Outdoor Outdoor Mdoor Remarks (RAV-) Piping lengi Unit Unit ni L+aor Installed Installed L+b ab b-a,or Above Below Dh a-b Indoor Indoor Unit Unit Below 50r Below 15r 1102AT actual actual Below Below Below Below Less than 1402AT length) length) 10m 30m 30m 0.5m 10 bends CAUTION Ensure that the shortest pipe length complies with the following: L + b=>5m a=b When planning a layout for Units A and B, comply with the following: 1.The lengths after branching ("a" and “b') should be equal i feasible. Install Units A and B so that the difference of the branching lengths becomes less than 10m if the lengths cannot be equal due to the branch pipe position. 2.Install Units A and B on the same level. If Units À and B cannot be installed on the same level, the difference in level should be limited to 0.5m or less. 3.Be certain to install Units À and B in the same room. Units À and B cannot be operated independentiy each other. 5-5

Piping materials and sizes Use copper tube of Copper and copper alloy seamless pipes and tubes, with 40mg/10m or less in the amount of oil stuck on inner walls of pipe and 0.8mm in pipe wall thickness for diameters 6.4, 9.5 and 12.7mm and 1.0mm, for diameter 15.9mm. Never use pipes of thin wall thickness such as 0.7mm. Model (RAV -) 1102AT Ï 1402AT Gas side Main piping 915.9 (10) Pipe side Branch piping 912.7 (0.8) . C É 9(1.0) Main piping 25 (8 Liquid side ù Branch piping 964 (0.8) I 99.5 (0.8) In parentheses ( ) are wall thickness Branch pipe Now the refrigerant pipe is installed using branch pipes supplied Os as accessories. = Bend and adjust the refrigerant piping so that the branch pipes | and pipe after branching become horizontal. t = Fix the branch pipes onto a wall in a ceiling or onto a column. nus: = : x Provide a straight pipe longer than 500mm in length as the main TS ans EE — piping of the branches. L Additional Refrigerant Amount <Formula for Calculating Additional Refrigerant Amount> Indoor unit B Indoor unit À Do not remove the refrigerant even if the additional refrigerant amount … becomes minus result as a result of calculations by the following formula À — and operate the air conditioner as it is. Additional refrigerant amount (kg) = Main piping additional refrigerant amount (kg) + Branch piping additional il refrigerant amount (kg) = Ax(L-18)+Bx(a+b-4) piping Branch pipe Additional refrigerant amount per meter of actual main piping length (kg) 8 Branch Additional refrigerant amount per meter of actual branch piping length (kg) piping Actual length of main piping (m) L H a, b: Actual length of branch piping (m) Main Standar d piping length Additional refnigerant pipng amount per Meter (kg/m) Main piping | Branch A B : 7 ———° piping Outdoor unit 1102AT 18m 2m 0.040 0.020 1402AT 18m 2m 0.040 0.040 Be certain to write the additional refrigerant amount, pipe length (actual length), head and other specification on the nameplate put on the outdoor unit for recording. Seal the correct amount of additional refrigerant in the system.

Indoor Unit P.C electrical parts This work is unnecessary for Hi-Wall Type. This work is necessary for each indoor unit.

1. Disconnect the read wire between remote control terminal and CN41 (RC) connector on the P.C.board.

P.C board of Indoor Unit Remote control terminal 2.Connect the Noise Filter between remote control terminal and CN41 (RC) connector on the P.C.board. CN41 connecter Bind band (Local Producement) Change this wire to Noise filter (Accessory part) 8.Bind this wire and main terminal wire by bind band. Wiring Diagram Remote Controller Main Indoor unit Sub Indoor Unit Outdoor Unit LG 2) @ © Wiring Specification Specification of Wires Between Units and Numbers of Wires. Outdoor unit - indoor unit No. of wires 4 (include ground wire) main uni El Wire diameter HO7RN-F or 245IEC66 1.5mm° or more Indoor unit _- indoor unit No. of wires 2 {main unit) (sub unit) Wire diameter HO7RN-F or 245IEC66 1.5mm° or more No. of wires 2 Remote control wiring Wire diameter Between 0.5mm° and 2mm° (up to 200m) Grounding wire of indoor sub unit HO7RN-F or 245IEC66 1.5mm° or more Procure necessary parts and perform all connection work locally.