GRIT GKS 75 2H - Drtič Fein - Bezplatný návod k obsluze

Najděte návod k zařízení zdarma GRIT GKS 75 2H Fein ve formátu PDF.

📄 96 stran Čeština CS 💬 Otázka AI
Notice Fein GRIT GKS 75 2H - page 67

Stáhněte si návod pro váš Drtič ve formátu PDF zdarma! Najděte svůj návod GRIT GKS 75 2H - Fein a vezměte svůj elektronický přístroj zpět do rukou. Na této stránce jsou zveřejněny všechny dokumenty potřebné k používání vašeho zařízení. GRIT GKS 75 2H značky Fein.

NÁVOD K OBSLUZE GRIT GKS 75 2H Fein

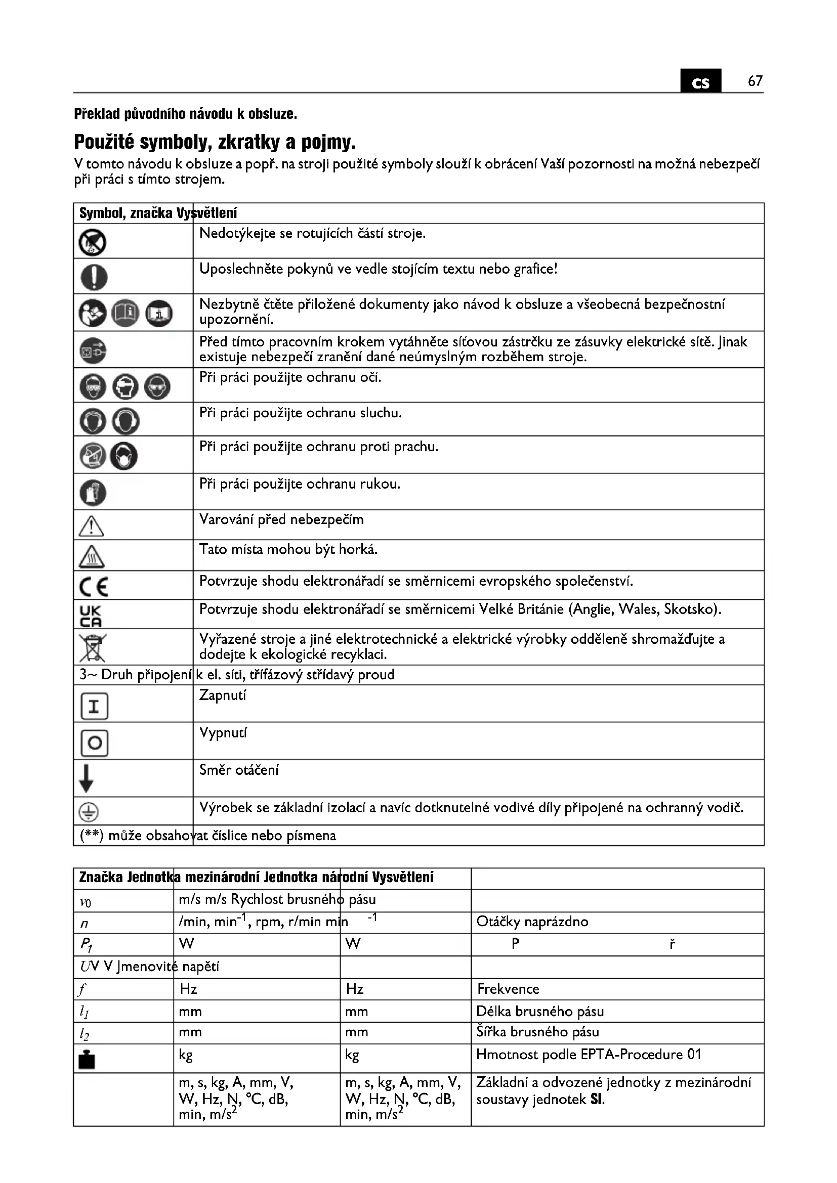
Překlad původního návodu k obsluze. Použité symboly, zkratky a pojmy. V tomto návodu k obsluze a popř. na stroji použité symboly slouží k obrácení Vaší pozornosti na možná nebezpečí při práci s tímto strojem. Symbol, značka Vysvětlení Nedotýkejte se rotujících částí stroje. Uposlechněte pokynů ve vedle stojícím textu nebo grafice! Nezbytně čtěte přiložené dokumenty jako návod k obsluze a všeobecná bezpečnostní upozornění. Před tímto pracovním krokem vytáhněte síťovou zástrčku ze zásuvky elektrické sítě. Jinak existuje nebezpečí zranění dané neúmyslným rozběhem stroje. Při práci použijte ochranu očí. Při práci použijte ochranu sluchu. Při práci použijte ochranu proti prachu. Při práci použijte ochranu rukou. Varování před nebezpečím Tato místa mohou být horká. Potvrzuje shodu elektronářadí se směrnicemi evropského společenství. Potvrzuje shodu elektronářadí se směrnicemi Velké Británie (Anglie, Wales, Skotsko). Vyřazené stroje a jiné elektrotechnické a elektrické výrobky odděleně shromažďujte a dodejte k ekologické recyklaci. 3~ Druh připojení k el. síti, třífázový střídavý proud Zapnutí Vypnutí Směr otáčení Výrobek se základní izolací a navíc dotknutelné vodivé díly připojené na ochranný vodič. (**) může obsahovat číslice nebo písmena Značka Jednotka mezinárodní Jednotka národní Vysvětlení

m/s m/s Rychlost brusného pásu

WWPříkon U V V Jmenovité napětí f Hz Hz Frekvence

mm mm Délka brusného pásu

Základní a odvozené jednotky z mezinárodní soustavy jednotek SI.68

Pro Vaši bezpečnost. Tento stroj nepoužívejte, dokud jste si důkladně nepřečetli a zcela nepochopili tento návod k obsluze včetně vyobrazení, specifikací a bezpečnostních předpisů. Dbejte rovněž příslušných národních ustanovení pro elektrickou bezpečnost a bezpečnost práce (v Německu: BGV A2, BGR 500). Nedbání bezpečnostních upozornění v uvedené dokumentaci může vést k zásahu elektrickým proudem, k požáru a/nebo k vážným zraněním. Tento návod k obsluze uschovejte pro pozdější použití a při poskytnutí či prodeji stroje jej přiložte. Určení stroje. Stroj k broušení kovových materiálů (kromě hořčíku) pomocí firmou FEIN schválených brusných pásů v prostředí chráněném před povětrnostními vlivy. Speciální bezpečnostní předpisy. Noste osobní ochranné vybavení. Podle aplikace použijte ochranu celého obličeje, ochranu očí nebo ochranné brýle. Taktéž adekvátně noste ochrannou masku proti prachu, ochranu sluchu, ochranné rukavice nebo speciální zástěru, jež Vás ochrání před malými částicemi brusiva a materiálu. Oči mají být chráněny před odletujícími cizími tělísky, jež vznikají při různých aplikacích. Protiprachová maska či respirátor musejí při používání vznikající prach odfiltrovat. Pokud jste dlouho vystaveni silnému hluku, můžete utrpět ztrátu sluchu. Při práci nenoste žádný volný oděv, šperky nebo volné, dlouhé vlasy. Volné předměty mohou být i přes ochranné přípravky zachyceny pohybujícími se díly a vést k poraněním. Nepoužívejte žádné opotřebované, zatržené nebo silně zanesené brusné pásy. Zacházejte s brusnými pásy pečlivě a uskladňujte je podle pokynů výrobce. Brusné pásy nelámejte! Poškozené brusné pásy se mohou roztrhnout, odmrštit a někoho zranit. Nepoužívejte žádné brusné pásy nebo jiné příslušenství, které není speciálně výrobcem vyvinuto či schváleno. Bezpečný provoz není samotný dán tím, že se brusný pás nebo příslušenství hodí k Vašemu stroji. Vždy používejte na stroji se nacházející ochranná zařízení. Ochranná zařízení musejí být na stroji spolehlivě namontována tak, aby se dosáhlo nejvyšší míry bezpečnosti. Ochranná zařízení mají chránit obsluhu před odletujícími brusnými částicemi a neúmyslným dotykem s brusným pásem. Pozor, nebezpečí požáru a výbuchu! Při broušení kovů (např. hliníku) vzniká prach, který může být hořlavý nebo výbušný. Stroj neprovozujte v blízkosti hořlavých materiálů. Jiskry mohou tyto materiály zapálit. Pozor, nebezpečí požáru! Při broušení kovů vznikají rozžhavené částice kovu a brusného pásu, jež se shromažďují v nádobce na piliny. Obsah nádobky na piliny musí být před vyprázdněním dostatečně ochlazený a smí být likvidován pouze ve vhodných nádobách. Dbejte na to, aby žádné osoby nebyly ohroženy odletem jisker. Odstraňte z blízkosti hořlavé materiály. Při broušení kovů vzniká odlet jisker. Dbejte u ostatních osob na bezpečnou vzdálenost k Vaší pracovní oblasti. Každý, kdo vstoupí do této pracovní oblasti, musí nosit osobní ochranné vybavení. Úlomky obrobku nebo ulomených nasazovacích nástrojů mohou odlétnout a způsobit poranění i mimo přímou pracovní oblast. Obrobek musí vždy bezpečně přiléhat k opěrce při broušení a k dorazu. Příliš malé nebo tenké obrobky se nesmějí opracovávat. Existuje nebezpečí poranění odmrštěným obrobkem. Opracovávaná plocha může být velmi horká. Nedotýkejte se jí rukou. Nikdy se nedotýkejte běžícího brusného pásu. Existuje nebezpečí zranění. V nebezpečné situaci ihned stiskněte bezpečnostní vypínací tlačítko. Stroj dobíhá až 50 sekund. Pravidelně čistěte větrací otvory stroje. Ventilátor motoru vtahuje do tělesa prach. To může při nadměrném nahromadění kovového prachu způsobit elektrické ohrožení. Dbejte na bezpečné umístění a vodorovné ustavení stroje. Překlopí-li se stroj během práce, může to způsobit těžká zranění. Zástrčku stroje smí namontovat pouze odborník v oboru elektro. Ochranný vodič v síťové zásuvce musí být spojen s ochranným uzemněním elektrické sítě. Při údržbě a opravě vytáhněte síťovou zástrčku! Zapne- li se neúmyslně stroj, pak to může vést k těžkým zraněním. Elektrickou bezpečnost stroje nechte pravidelně zkontrolovat podle zákonných ustanovení. U neprověřených strojů existuje nebezpečí zásahu elektrickým proudem! Před prvním uvedením do provozu zkontrolujte směr otáčení motoru. Při nesprávném směru otáčení může být obrobek odmrštěn a způsobit úrazy. Směr otáčení smí být změněn pouze odborníkem v oboru elektro. Nikdy nestůjte Vy ani jiné osoby při zapnutí stroje přímo proti brusnému pásu. Brusný pás se může roztrhnout a způsobit těžká zranění. Zacházení s nebezpečným prachem Při pracovních procesech s úběrem materiálu pomocí tohoto nářadí vzniká prach, který může být škodlivý. Dotyk nebo vdechnutí některého prachu jako např. azbestu a materiálů s obsahem azbestu, olovnatých nátěrů, kovu, některých druhů dřeva, minerálů, částeček křemičitanů z materiálů s obsahem kamene, rozpouštědel barev, prostředků na ochranu dřeva, antivegetativních nátěrů plavidel, může u osob vyvolat alergické reakce a/nebo onemocnění dýchacích cest, rakovinu, poruchy reprodukce. Riziko dané vdechnutím prachu závisí na expozici. Použijte odsávání určené na vznikající prach a též osobní ochranné pomůcky a postarejte se o dobré větrání pracovního místa. Opracovávání materiálů s obsahem azbestu přenechte pouze odborníkům.69

Dřevěný prach a prach lehkých kovů, horké směsi z brusného prachu a chemických látek se mohou za nepříznivých podmínek samy vznítit nebo způsobit výbuch. Zabraňte odletu jisker ve směru zásobníku prachu a též přehřátí elektronářadí a broušeného materiálu, nádobu na prach včas vyprazdňujte, dbejte upozornění výrobce materiálů k opracovávání a též ve Vaší zemi platných předpisů pro opracovávané materiály. Na první pohled. 1 Ochrana proti jiskrám 2 Křídlový šroub ochrany proti jiskrám 3 Opěrka při broušení 4 Nádobka na piliny 5 Hvězdicový šroub opěrky při broušení 6 Pedál 7 Bezpečnostní vypínací tlačítko 8 Hvězdicový šroub, seřízení běhu pásu 9 Zástrčka 10 Větrací otvory 11 Spínač 12 Kontaktní kotouč 13 Hnací kotouč 14 Šroub bočního krytu 15 Boční kryt 16 Hrdlo odsávání prachu 17 Štítek s upozorněními 18 Přepínač počtu otáček 19 Upevňovací šrouby podstavce, pracovního stolu Pokyny k montáži (obrázek 5) Upevněte stroj pomocí vhodných hmoždinek a šroubových spojů na podlahu. Všechna upevnění musejí vyhovovat silám vyskytujícím se při práci. Chybná montáž může vést k tomu, že se stroj během pracovního procesu převrhne a způsobí těžké úrazy. Elektrické připojení. Elektrické připojení na straně stavby musí být provedeno odborníkem v oboru elektro. Dbejte síťového napětí: Síťové napětí a frekvence zdroje napětí musí souhlasit s údaji na typovém štítku stroje. Před prvním uvedením do provozu zkontrolujte směr otáčení motoru. Směr otáčení smí být změněn pouze odborníkem v oboru elektro. Nastavení. Před každou prací na stroji vytáhněte síťovou zástrčku ze zásuvky. Nastavení ochrany proti jiskrám (1). Povolte křídlový šroub (2) a ochranu proti jiskrám (1) nastavte tak, aby byl brusný pás co možná nejvíce zakryt. Křídlový šroub opět utáhněte. Nastavení opěrky při broušení (3) (obrázek 2). Povolte hvězdicový šroub (5) a nastavte rozměr štěrbiny na max. 2 mm. Hvězdicový šroub opět utáhněte. Seřízení běhu pásu. Stroj pouze krátce zapněte a zkontrolujte běh pásu. Pokud se pás pohybuje vpravo nebo vlevo, seřiďte běh pásu pomocí hvězdicového šroubu (8) na střed. Jestliže nelze seřídit běh pásu na střed: Očistěte hnací kotouč (13) a kontaktní kotouč (12) tlakovým vzduchem. Zkontrolujte obrus, deformaci a opotřebení hnacího a kontaktního kotouče. Poškozené díly nechte ihned vyměnit! Výměna brusného pásu. Před každou prací na stroji vytáhněte síťovou zástrčku ze zásuvky. Uvolněte šroub (14) a otevřete boční kryt (15). Stlačte pedál (6) směrem dolů, aby se odlehčilo napínací zařízení. Odstraňte starý brusný pás. Před nasazením nového brusného pásu si všimněte údaje o směru běhu na zadní straně brusného pásu! Musí souhlasit se směrem otáčení hnacího kotouče. Přiložte brusný pás současně na hnací kotouč (13) a kontaktní kotouč (12). Manipulujte pedálem (6) směrem nahoru, aby se brusný pás napnul. Zavřete boční kryt (15) a šroub (14) opět utáhněte. Zapněte stroj a seřiďte běh pásu. Pokyny k provozu. Zapnutí a vypnutí. Zapnutí: Odjistěte a odklopte bezpečnostní vypínací tlačítko (7). Stlačte tlačítko „I“ (11). Vypnutí: Odklopte bezpečnostní vypínací tlačítko (7). Stlačte tlačítko „0“ (11). Stroj po vypnutí ca. 50 sekund dobíhá. Bezpečnostní vypínací tlačítko: V nebezpečných situacích stlačte pro vypnutí stroje červené bezpečnostní vypínací tlačítko. Přepínání počtu otáček GKS752H. Poloha spínače 1: nízký počet otáček Poloha spínače 2: vysoký počet otáček Počet otáček se smí přepnout pouze za klidu stroje pomocí přepínače (18). Ochrana proti přetížení. Při delší dobu trvajícím vysokém zatížení se stroj vypne. Po ochlazení za ca. 15 minut je stroj opět připraven k použití.70

Kontaktní broušení (obrázky 3+4). Ujistěte se, že je hvězdicový šroub (5) pevně utažený. Zkontrolujte rozměr štěrbiny opěrky při broušení. Zkontrolujte, zda je ochrana proti jiskrám (1) správně nastavená a utažená. Zapněte stroj a zkontrolujte běh pásu. Položte obrobek pevně na opěrku při broušení. Obrobek veďte oběma rukama nebo jej zafixujte v přípravku. Odsávací zařízení Doporučujeme používání odsávacího zařízení. Stroj lze přes hrdlo (16) připojit na odsávací zařízení. Hodnoty emisí hluku. Údržba a servis. Opravu smí provádět pouze kvalifikovaný odborník podle platných předpisů. Pro opravu doporučujeme servis FEIN, smluvní opravny FEIN a zastoupení FEIN. Pokud je poškozené napájecí elektrické vedení, musí být nahrazeno speciálně připraveným napájecím vedením, jež je dostupné přes zákaznický servis FEIN. Aktuální seznam náhradních dílů tohoto stroje naleznete na internetu na www.fein.com. Denní údržba Pomocí tlakového vzduchu vyfukujte chladící větrací otvory (10) na motorové skříni a označená místa (viz štítek s upozorněními (17)). Stroj každý den olejujte na označených místech strojním olejem (viz štítek s upozorněními (17)). Při každé výměně brusného pásu zkontrolujte opotřebení a poškození hnacího (13) a kontaktního kotouče (12). Poškozené díly nechte vyměnit. Otevřete boční kryt (15). Odstraňte nádobku na piliny (4) a zlikvidujte kovový prach. Obsah nádobky na piliny musí být před vyprázdněním dostatečně vychladnutý a smí se zlikvidovat pouze pomocí vhodných nádob. Stroj zvnějšku očistěte tlakovým vzduchem. Následující díly můžete, je-li třeba, vyměnit sami: brusný pás, ochranu proti jiskrám (1) Záruka a ručení. Záruka na výrobek platí podle zákonných ustanovení země uvedení do provozu. Nad to navíc poskytuje firma FEIN záruku podle prohlášení o záruce výrobce FEIN. V obsahu dodávky Vašeho stroje může být obsažen i jen jeden díl příslušenství popsaného nebo zobrazeného v návodu k obsluze. Prohlášení o shodě. CE prohlášení platí pouze pro země Evropské unie a EFTA (European Free Trade Association) a pouze pro výrobky, které jsou určené pro trh EU nebo EFTA. Po uvedení výrobku do oběhu na trhu EU ztrácí označení UKCA svou platnost. UKCA prohlášení platí pouze pro britský trh (Anglie, Wales a Skotsko) a pouze pro výrobky, které jsou určené pro britský trh. Po uvedení výrobku do oběhu na britském trhu ztrácí označení CE svou platnost. Firma FEIN prohlašuje ve výhradní zodpovědnosti, že tento výrobek odpovídá příslušným ustanovením uvedeným na poslední straně tohoto návodu k obsluze. Technické podklady u: C. & E. Fein GmbH, D-73529 Schwäbisch Gmünd Ochrana životního prostředí, likvidace. Obaly, vyřazené stroje a příslušenství dodejte k opětovnému zhodnocení nepoškozující životní prostředí. Schémata elektrického zapojení. Typ GKS75-4KW strana 89 Typ GKS752H strana 90 Typ GKS75-3KW strana 91 Typ GKS75-1,5KW strana 92 Typ GKS75-EF strana 93 Akustická emise Běh naprázdno Broušení Naměřená hodnocená hladina emise akustického tlaku A na pracovišti

(re 20 μPa), v decibelech 80,5 94 Nepřesnost

, v decibelech 4 4 Naměřená hodnocená hladina akustického výkonu A

(re 1 pW), v decibelech 90 100,5 Nepřesnost

, v decibelech 2,5 2,5 Provozní podmínky Počet otáček (/min) 3000 3000 Materiál – ST 37 Rozměr – 8 x 40 Brusný pás

Grit by FEIN 36R POZNÁMKA: součet z naměřené hodnoty emise a příslušné nepřesnosti představuje horní hranici hodnot, jež se mohou při měřeních vyskytnout. Používejte ochranu sluchu! Naměřené hodnoty zjištěny podle odpovídající výrobkové normy.71

Technické údaje 4 4 Nameraná hodnota A hladiny akustického tlaku

Asistent návodu
Využívá ChatGPT
Čekání na vaši zprávu
Informace o produktu

Značka : Fein

Model : GRIT GKS 75 2H

Kategorie : Drtič