WKL 2002 - Vytápění AEG - Bezplatný návod k obsluze
Najděte návod k zařízení zdarma WKL 2002 AEG ve formátu PDF.
Stáhněte si návod pro váš Vytápění ve formátu PDF zdarma! Najděte svůj návod WKL 2002 - AEG a vezměte svůj elektronický přístroj zpět do rukou. Na této stránce jsou zveřejněny všechny dokumenty potřebné k používání vašeho zařízení. WKL 2002 značky AEG.
NÁVOD K OBSLUZE WKL 2002 AEG
Návod k obsslze a montáži
Cesky
Konwektory
1.3 Bezpečnostní predpisy 18
1.4 Udrzba 18
- Pokyny k montáži 19
2.1 Montáz držák na stěnu 19
2.2 Upevnéni konvektoru 19
2.3 Elektrické pripojeni 20
3.Zarucni podminky 20
3.1 Zivotni prostreia recyklace 20
Otočenim ovladače pro nastaveni teploty (2) dolea se zapíná topení a nastavujé se teplota. Po zapnuti začne pristroj rychle a rovnoměrně vyhřivat mistnost. Vzduch vstupujé do pristroje ze spodni strany, ohřiva se, diky konvekci proudí nahoru a prěs vystupné mřížku vystupujé ven z pristroje. Pozadovanou teplotu mistnosti lze plynule nastavit mezi 6 a cca 30^ . Regulátor teploty vypné topení, jakmile je nastavená teplota mistnosti dosažena, a tato je dále udržována na konstantní hodnotě občasným

Pro stejnou teplotu ve dvou ruznych mistnostech je normalni, ze ovladace pro nastaveni teploty nemusi byt zcela shodne nastaveny. Totéz platí pro dvě topné tělesa instalovaná v teže mistnosti. Aby se zabránilo prilis vytoké spotřebe proudly otevřenych oknech, je nutno pristroj vypnout pomoci spinače.
1.2.1 Ochrana proti zamrznuti
Ovladač pro nastavení teploty (2) se nastaví do polohy *.
Regulator teploty automatickny prepne na rezim vytapeni, jestlze teplata mistrostiPoklesne pod cca +6^ .Dbejte na spravne stanoveni spotreby tepla vzhledem k topnemu vykonu pristroje!
1.2.2 Omezeni regulatoru teploty
Aby se rozsah nastaveni ovladače teploty omezil na určité nastavení, je třeba uvolnit oba kolíky (3) na zadné straně spinác skřínký a na obou stranách namontovat požadované značky. Oba kolíky mohou být rovně použity pro omezení rozsahu teploty.
1.3 Bezpečnostní predpísey

Přistroj se nesmí použivat
- v prostorach, v nichž hrozi nebezpeči vybuchu vzhledem k pritomnosti chemikálii, prachu, plynú nebo výparú,
- v bezprostředni blízkosti vedeni nebo nádob, které vedou nebo obsahuji horlavé nebo vybusné látky.

Z tohoto duvo du musi byt bezpodminecnedodrzovany minimalni vzdalenosti.
V dilnach nebo jin'ych prostorach, kde se vyskytuji zplodiny, nebo kde se pracuje s Rozpoustedy a chemikaliemi, je citit zapach oleje, benzizu a podobne, muze dochazet k deletrvajicimu neprijemnemu pachu a pripadne ke zneciisteni.
Nesmi byt omezovano volné prouděni vzduchu. Z bezpečnostnich duvodu se proto nesmi zcela ani céstečné zakryvat horní a spodnívduchove mřížky na pristroji, např. záclonami, kusy pradla apod. Na pristroj se rovněz nesmiPokládat zádné prěděmty nebo jezasunovat mezi pristroj a stěnu. V proudu teplého vzduchu v blízkosti topidla se nesmi nacházet zádné hořlavé prěděmty ze děva, papíru, textilii apod. a rovněk latky nachylné k zážehu nebo vzplanuti např. vosk, benz

V dusledku vystupu tepleho vzduchu muze, stejn jeako u vsech ostatnich topidel, dochazet k zabarveni steny.

Prace, pri nichz vznikaji vznetlive vypary, napr. priPokladani nebo lepeni parketnebo podlah z PVC nebo pri pouziti spreje na podlahy a benzinu a pod., provadejte vyhradnenepri topidle vyrazenem z provozu.
1.4 Udrzba
K Čišěni skrīne se nesmí používat zádné abrazivné nebo agresivné púsobici Čistici prostředky. Pravidelné Čišěte horní a spodní vzduchovou mǐfíku prístroje pomoci yvasače.
2. Pokyny k montáži
Montáž a pripojení konvektorú AEG musi provadět odborník, a to pri dodrženi těchtoPokynú k montáži.
Pokyny k montázi patří k pristroji a je třeba, aby je majitel pristroje pečlive uchovával. V pripadě zmeny majitele je třeba je predat nasledujicimu majiteli.
Konvektory AEG jsou elektrické primitopné prístroje, které se upevnji na stenu a jsou vchodné zejměna pro vytapěni mensich prostor, např. pracovny, kuchyně, koupelny, umyvärný apod.

Pri prvnim uvedeni pristroje do provozu docházi k vyskyt zapachu, takze je nutno zajistit dostatečné vetrání prostoru (napr. prestavení oken do vyklopené polohy).
Konvektor je dodáván como kompletní Jednotka s privodním kabelem a vidlici. (Výjimka: WKL502 C až WKL3002 C)
Topidlo nesmi byt instalovano a nesmi se použivat bezprostředne pod sit'ovou zasuvkou!
2.1 Montáž držák na stěnu
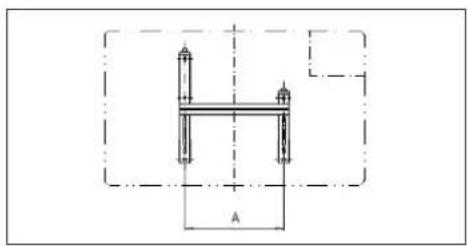
Držák na stěnu je orientován na střed (viz obrázek a následujíci tabulku).
Müze sám sloužit jako šablona pro upevněi a pritom zajist'ovat potbrebnou vzdalenost od podlavy.
Držák na stěnu postavte na podlahu a označte polohu spodních otvorů (①), které odpovidaji otvorům A a D, na (I).

| Typ WKL WKL WKL WKL WKL | WKL WKL | ||||||
| 502 75 | 2 1002 15 | 02 2002 | 2502 300 | 2 | |||
| Příkon W 500 750 1000 1500 | 2000 25 | 00 3000 | |||||
| Šiřka mm 370 370 445 590 | 740 890 | 1036 | |||||
| Výška mm 450 450 450 450 | 450 450 | 450 | |||||
| Hloubka mm | 78 | 78 | 78 | 78 | 78 | 78 | 78 |
| s držákem na stěnu | 100 | 100 | 100 | 100 | 100 | 100 | 100 |
| Rozměr A | 121 12 | 1 195 | 343 49 | 639 790 | |||
| Hmotnostkg | 4,1 | 4,1 | 4,7 | 6,1 | 7,4 | 8,1 | 10,0 |
Poté nadzvedněte držák na stenu nahoru, a to tak, aby otvory B v držáku na stenu byly v zákrytu s práve vyznacenými body (①).
Nyni muzete pomoci otvoru C a D v drzaku na stenu označit oba horní otvory pro upevněni na stenu (II). Poté vyvrtejte otvory, vložte hmoźinky a upevněte drzák na stenu pomoci 4 šroubú.

2.2 Upevněni konvektoru
Konvektor je t'reba upevnovacimi dražkami na zadni straně pristroje současné zavěsít na 4 závesy na držákù na stěnu a zatlačit dolú do aretované polohy. Poté je t'reba fixačné šroub (4) upevněné na stěnu ve směru hodinovych ručíček dotáhnout až na doraz a tím upevněné zajistit.
Při uvolnéni konvektoru je třeba shora uvedene úkony provest v obraceném poradi.

2.3 Elektrické pripojeni

Přistroj je určen pro střidávy proudly 230 V.
Dodržujte ustanoveni VDE 0100, predpisy vašeho dodavatele elektrické energia aPokyny na vyrobnim štiku.
Elektrická bezpečnost!
Konvektory spadaji pod tridu ochrany II (2) a ochrany proti strikajici vode (IP24).
Uvedené napétí musi souhlasit s napétimsite. Použijte dostatečné prúžeč privodnich vodiču. Pro priopojen je třeba ve vzdálenosti nejměne 10 cm od topidla naintalovat zásuvku nebo krabici pro pavné priopojen préstroje.
Pevně instalované elektrické vedení musi byt podle prędpisù zřizovatele vybaveno vsepólovym spinacim zařizením, které má rozevřeni kontaktu alespón 3 mm.
Je-li privodni kabel pristroje viditelne poskozen, je nutne nechat kabel vymenit vyrobcem, servisem vyrobce nebo kvalifikovanym odbornikem a zabrinit tak moznym nebezpecim.
Obecné platí:
Pri instalaci topidla v prostorach s vanou nebo sprchou je tbreba dodrzet stupen ochrany podle VDE 0100/DIN 57 100, cAst 701 v souladus udaji na vyrobnim stitku.
Bezpečnostní prvky
Konvektory jsou vybaveny bezpečnostnim omezovacem teploty (STB), který pri nebezpeči vypné topeni. V pripadě, ze došlo k vypnutí púsobením tepelné ochrany, je nutno odstranit pričinu (např. zakrytý vystupni otvor).
Po nekolika minutách chlazování se prístroi opět uvede do provozu. jestlíze pří následujícím uvedeni do provozu tepelná ochrana opět prístroi vypne, je třeba se obrátit na autorizovaný servis, aby poruchu odstranil.

Pozor!
Dodržujte bezpečnostní vzdálenosti (mm) podle následujíciho obrázku.

3. Záručni podmíky
Uplatnováni nároku na poskytnuti záruky je mozné pouze v zemi, kde byl pristroj zakoupen. Obrat'te se prosím na príslušné zastoupení firmy AEG nebo na dovozce.

Montáž (elektrickou instalaci), první uvedeni do provozu a udrzbu tohoto pristroje smi provadét pouze odbornik, ktery se pri tom bude ridit timto námodem.
Vyrobce neruci za pristroje poskozené vivem nedodrženiPokynu pro montáž a provoz uvedenych v prislušnémtážním a provoznim navodu.
3.1 Zivotni prostre di a recyklace
Zadame Vás, abyste nám byli napomocni pri ochrané zivotniho prostředí. Proto odstraťte obal v souladu s platnými predpisy pro zpracovani opadu.
SnadnýManuál