ERT 16002 W8 - Kylskåp ELECTROLUX - Gratis bruksanvisning och manual
Hitta enhetens manual gratis ERT 16002 W8 ELECTROLUX i PDF-format.
Användarfrågor om ERT 16002 W8 ELECTROLUX
0 fråga om denna apparat. Svara på dem du kan eller ställ din egen.
Ställ en ny fråga om denna apparat
Ladda ner instruktionerna för din Kylskåp i PDF-format gratis! Hitta din manual ERT 16002 W8 - ELECTROLUX och ta tillbaka ditt elektroniska enhet i hand. På denna sida publiceras alla dokument som behövs för att använda din enhet. ERT 16002 W8 av märket ELECTROLUX.
BRUKSANVISNING ERT 16002 W8 ELECTROLUX
Välkommen till Electrolux värld
Tack för att du har valt en förstklassig produkt från Electrolux, vilken vi hoppas skall ge dig mycket nöje i framtiden.Electrolux ambition är att erbjuda ett brett sortiment av produkter som kan göra livet enklare.Du hittar några exempel på omslaget till denna bruksanvisning.Avsätt några minuter till att läsa denna bruksanvisning så att du kan utnyttja fördelarna med din nya produkt.Vi lovar att den kommer att vara överlögset användarvänlig. Lycka till!
Innan installation och användning av skåpet läs noggrannt igenom bruksanvisningen. Den innehåller säkerhetsåtgärder, tips, information och uppslag. Om kylskåpet används enligt instruktionerna kommer det att fungera som det ska och vara till största belåtenhet.
Symbolerna nedan hjälper dig att lättare hitta information.

Säkerhetsåtgärder
Denna symbol upplyser dig om varningsord och information gällande ditt skåp.

Tips och användbar information.

Miljö-information.

Symbol för uppslag
Vid denna symbol hittar ni uppslag om förvaring av matvaror

Symbolen på produkten eller emballaget anger att produkten inte får hanteras som hushållsavfall. Den skall i stället lämnas in på uppsamlingsplats för återvinning av el- och elektronikkomponenter. Genom att säkerställa att produkten hanteras på rätt sätt bidrar du till att förebygga eventuellt negativa miljö- och hälsoeffekter som kan uppstå om produkten kasseras som vanligt avfall. För ytterligare upplysningar om återvinning bör du kontakta lokala myndigheter eller sophämtningstjänst eller affären där du köpte varan.
Innehållsförteckning
Viktig säkerhetsinformation....19
Allmänna säkerhetsåtgärder 19
Åtgärder för barns säkerhet....19
Säkerhets åtgärder för installation 20
Säkerhetsföreskrifter för Isobutan....20
Instruktion för användaren....21
Allmän information....21
Skåpets beskrivning, huvudkomponenter....21
Att kontrollera temperatur-inställning 21
Tips för lagring....21
Lagringstid och matens temperatur....22
Hur man använder kylutrymmet 22
Användbara råd och tips 22
Tips och uppslag 22
Energibesparande....22
Skrotning och återvinning 22
Underhållning 22
Avfrostning....22
Regelbunden rengöring 23
Om skåpet inte används 23
Felsökning 23
Byte av lampa 23
Om något ej fungerar....24
Installations - instruktioner 25
Teknisk data 25
Att installera skåpet....25
Transport och uppackning 25
Rengöring....25
Ställ skåpet på plats....25
Omhängning av dörr 26
Elektrisk koppling 27
Lagringstidstabell....27
Viktig säkerhetsinformation

Allmänna säkerhetsåtgärder
- Spara bruksanvisningen då den måste finnas med om skåpet säljs eller överlåts till annan person.
- Skåpet är avsett för förvaring av matvaror för normalt hushållsbruk enligt denna bruksanvisning.
- Endast specialiserade företag med behörighet kan genomföra underhållsarbete, reparation och byte av elsladden. Endast reservdelar tillhandahållna av dessa ska användas, annars finns det risk för skador på person eller produkt.
- Skåpet är strömlöst endast om sladden är urkopplad. Innan städning och underhållning måste kontakten vara urkopplad (Dra ej ut kontakten med själva sladden) Om uttaget är svårt att nå, stäng av skåpet genom att stänga av strömmen.
- Elsladden får ej förlängas.
- Kontrollera att sladd och stickkontakt inte kommer i kläm bakom kyl/frysen.
- en skadad sladd och kontakt kan överhettas och orsaka brand.
- Kontrollera att kyl/frysen eller något annat inte står på sladden.
- det kan orsaka kortslutning och risk för brand
- Tag inte ur stickkontakten genom att dra i sladden, speciellt om skåpet ska dras fram ur en nisch.
- skador på sladden kan orsaka elektrisk stöt, kortslutning och risk för brand.
- om elsladden är skadad måste den bytas ut av en certifierad elektriker eller servicetekniker.
- Anslut inte stickkontakten om vägguttaget sitter löst.
- Då finns risk för elektrisk stöt eller brand.
- Använd ej skåpet utan lampskydd för inre belysningen.
- Under städning, låt inte vassa eller hårda föremål komma i kontakt med kylsystemet då de kan orsaka skada på skåpet.
- Se till så att inte vätska kommer i kontakt med termostat och belysningslåda.
- Ställ aldrig något varmt på plastdelarna.
- Förvara aldrig explosiva gaser eller vätskor i kyl- eller frysutrymme då de kan explodera.
- Kontrollera och rengör utloppet för avrinningsvatten. Om utloppet blir tilltäppt kan avrinningsvattnet orsaka skada på skåpet.

Åtgärder för barns säkerhet
- Låt aldrig barn leka med skåpets emballage. Plast kan orsaka kvävning.
- Vuxna ska hantera skåpet. Låt ej barn leka med det eller dess reglage.
- Vid kassering av skåpet, stäng av skåpet och dra ut stickkontakten, klipp av anslutningssladden (så nära skåpet som möjligt) och avlägsna dörren. Därigenom undviks att lekande barn kan låsa in sig i skåpet (risk för kvävning) eller kan råka ut för andra livsfarliga situationer.
- Denna apparat är inte avsedd att användas av personer (inklusive barn) med nedsatt eller begränsad fysisk, sensorisk eller mental förmåga, eller av personer i avsaknad av erforderliga kunskaper, såvida inte apparaten brukas under överinseende av en ansvarig vuxen person eller efter instruktioner från densamma.

Säkerhets åtgärder för installation
- Placera skåpet mot vägg för att förebygga risken för beröring av varma delarna (kompressor, kondensator) och därmed undviks eventuella brännskador.
- Vid flyttning av skåpet, se till att kontakten är urtagen.
- Vid placering av skåpet se till att inte den står på sladden.
- Se till att det finnas tillräckligt med luftcirkulation runt om skåpet. Underlåtenhet kan leda till överhettning. Följ installationsinstruktioner för lämplig ventilation.

Säkerhetsföreskrifter för Isobutan
- Köldmedlet i skåpet är isobutan (R600a)
- Luftcirkulationen runt skåpet ska vara god och luftkanalerna under och bakom ska vara fria och oblockerade.
- Låt inte vassa föremål komma i kontakt med kylsystemet bakom och inuti skåpet. Punkteras kylsystemet förstörs skåp och matvaror.
- Använd inte andra mekaniska isskrapor eller andra hjälpmedel för att påskynda avfrostningen än vad tillverkaren rekommenderar.
- Använd inga elektriska apparater i skåpet förutom de som tillverkaren rekommenderar.

För din egen säkerhet och egendom se till att
bruksanvisningen alltid finns till hands. Tillverkarna är ej ansvariga för skador som åstadkommits genom försummelse.
Instruktion för användaren
Allmän information
Skåpets officiella benämning är kylskåp utan frysfack avsett för normalt hushållsbruk. Enligt dess beskrivning är den avsedd för att rymma kylvaror men är ej lämplig för frysta och djupfrysta matvaror och framställer inte heller is.
Skåpet uppfyller standardkraven mellan olika temperaturnivåer enligt klimatklassificering.
Bokstavssymbolen för klimatnivå finns angiven på typskylt.
Hantering av skåpet
Att starta skåpet
Placera tillbehören inne i kylskåpet och sätt i kontakten i vägguttaget. För att starta nedkylningen, vrid kontrollvredet på högra sidan om kylutrymmet från „0” medurs enligt illustration. På läge „0” är kylskåpet ur drift.
Nästa stycke ger instruktioner för inställning.

Att kontrollera temperatur-inställning
Termostatisk reglering avbryter skåpets gång automatiskt under lång eller kort tid beroende på inställning sedan återställs den när den uppnått nödvändig temperatur.
Vridning av kontrollvredet mot de högre siffrorna ger en mer intensiv kyla.
Om termostatens kontrollvred vrids till „3“ kommer temperaturen i kyl-utrymmet automatiskt att ligga på omkring +5 °C eller under. Läge „3“ uppfyller i allmänhet behoven för kylning av mat.
Temperaturen i kylskåpet påverkas inte bara av termostatens position utan också av omgivande temperatur, antal gånger dörren öppnas och mängden av mat nyinställd i kylskåpet osv.
Vid max-inställning, läge „5“ då minskad temperatur krävs p ga t ex värmebölja kan kompressorn vara i drift oavbrutet. Detta skadar inte kylskåpet.
Tips för lagring
Tänk på skissen i illustration vid placeringen av olika matvaror.
- Konditorivaror, färdiglagad mat, mat i skålar, färsk kött, kallskuret, dryck.
- Mjölk, mejeriprodukter, mat i skålar.
- Frukt, grönsaker, sallad
- Ost, smör
- Ägg
- Yoghurt gräddfil
- Små flaskor, läskedryck
- Stora flaskor

Lagringstid och matens temperatur
Lagringstid kan ej beräknas exakt på förhand, det beror på matens färskhet och behandling innan. Därför räknas lagringstiden mer som informativ.
Om du inte vill använda djupfryst mat på en gång kan du lagra den ett dygn i kylskåpet (tills den har tinat). Om den har tinats ska den inte omfrysas utan användas snarast.
Hur man använder kylutrymmet
För att den kalla luften ska kunna cirkulera fritt se till att inte täcka hyllorna med papper, brickor osv.
i Ställ inte in varma varor, utan vänta tills de svalnat något, (rumstemperatur) på så sätt undviker du onödig frostbildning.
i Täck över alla varor ordentligt (plast och aluminiefolie), lukt och smak kan annars spridas mellan varorna. På så sätt behåller maten sin fuktighet och exempelvis grönsaker blir inte uttorkade på bara några dagar.
Användbara råd och tips
i Lägg märke till de ställbara hyllorna, de ökar kylutrymmets användbarhet betydligt. Det är möjligt att ordna om hyllorna när dörren står öppen i 90° vinkel.
Tips och uppslag
Detta kapitel innehåller praktiska tips och uppslag om användning av skåpet för att uppnå maximalt energibesparande, det finns också miljöinformation om skåpet

Energibesparande
- Undvik att placera skåpet på en solig plats eller i närheten av någonting som utstrålar värme.
- Se till att kondensator och kompressor får tillräckligt ventilation. Täck ej över delarna där ventilationsgallret sitter.
- Slå in alla varor i täta förpackningar så undviks onödig frostbildning.
- Öppna inte skåpet onödigt länge eller ofta.
- Mat förvaras i slutna kärl.
- Varm mat ska ha rumstemperatur innan den ställs in i skåpet.
- Håll kondensatorn, på baksidan av skåpet, ren.

Skrotning och återvinning
Kontakta Elkretsen AB eller återförsäljaren för att få reda på var du kan lämna produkten för skrotning och återvinning. Du kan också gå in på www.el-kretsen.se för att ta reda på närmaste inlämningsställe.
När det gäller kyl- och frysprodukter skall du kontakta din kommun för att få reda var du kan lämna in produkten för skrotning och återvinning.
Material som använts i skåpet markerademed symbol återvinningsbart.
Underhåll
Avfrostning
Fuktbildning i kylutrymmet i form av frost och is är normalt vid användning av skåpet.
Tjock frost och is har en isolerande effekt som kan reducera avkylnings effektiviteten då temperaturen stiger och den kräver mer energi.
Den här typen av skåp har automatisk avfrostning utan extern intervention.
En termostatkontroll avbryter kompressors gång med regelbunda intervaller, under tiden avbryts avkylningsprocessen. Kylutrymmets temperatur stiger och avfrostning påbörjas. Efter avfrostningen startar termostatens funktion automatiskt.
Avrinningsvatten flödar ut genom utloppet till avdunstningsbrickan som sitter ovanpå kompressorn och avdunstas beroende på värmen.
Kontrollera avrinningsrännan då och då i förebyggande syfte (mot tilltäppning). Om denna blir tilltäppt kan det leda till kortare livslängd av skåpet.
Rengör avrinningsrännan med den medföljande skrapan som kan ses i figur. Skrapan ska förvaras i rännan.

Kontrollera avrinningsutloppet då och då i förebyggande syfte (mot stopp i utloppet).
Den vanligaste orsaken till stopp i utloppet är att man har lagt papper kring maten som då fryser fast på bakre plattan i kylskåpet. I försök att ta bort pappret kan det gå av och orsaka stopp i utloppet. Var då försiktig och tänk på ovan nämnda angående placering av inslagen mat i skåpet.
i Vid ökade belastning på skåpet då minskad temperatur krävs p ga t ex värmebölja, kan kompressorn vara i drift oavbrutet. Under tiden fungerar inte den automatisk avfrostningen.
Det är inte onormalt med kvarstående is och frostfläckar efter avfrostning.
Regelbunden rengöring
Rengör gärna kylskåpet var 3:e- 4:e vecka.
Rengöringsmedel för hushåll eller tvål får ej användas.
Efter att ha stängt av elen, rengör skåpet med ljummet vatten.
Rengör dörrens magnet-gummi med rent vatten.
Efter rengörning, anslut stickkontakten till vägguttaget.
Damm och smuts som samlas bakom kylskåpet på kondensatorn bör avlägsnas och avdunstningsbrickan ovanpå kompressorn bör torkas av två gånger om året.
Om skåpet inte används
Om skåpet inte ska användas under en längre tid följ dessa råd:
Stäng av skåpet och dra ur stickkontakten ur vägguttaget alt skruva ur säkringen.
Ta ut varorna ur skåpet.
Avfrosta och rengör som i tidigare anvisningar.
Lämna skåpet öppet för att undvika instängd luft.
Felsökning
Byte av lampa
Om lampan ej tänds kan du byta ut den enligt nedan.
Skåpet ska vara strömlöst.
Ta bort lampans hölje enligt illustrationer i nedersta pilens riktning kan glödlampan bytas ut. (Glödlampans modell: Mignon 322, 230 V, 15 W, E 14 thread)

text_image
MAX 48 WEfter lampans utbyte, sätt tillbaka lampans hölje och anslut skåpet igen. Avsaknaden av lampan påverkar ej kylskåpets gång.
Om något ej fungerar
Under skåpets gång kan små men besvärliga problem dyka upp, som ej behöver åtgärdas av en tekniker. I nästa kapitel finns information om olika fel för att undvika onödiga kostnader för reparation.
Fäst uppmärksamhet på att skåpet kan låta något under gång (kompressor, och cirkulations ljud). Det är inget fel, bara skåpets normala gång.
Fäst uppmärksamhet på att skåpet fungerar med avbrott, så att när kompressorn stannar betyder det inte att strömmen är bruten. Därför ska du se till att dra ut stickkontakten ur vägguttaget innan du rör skåpets elektriska delar.
| Problem | Möjlig orsak | Lösning |
| Det är för varmt i frysen. | Termostaten har för låg inställning.För mycket varor för infrysning har lagts in.Om varma varor har lagts in i frysen.Dörren är inte riktigt stängd.Termostaten har för hög inställning. | Ställ in en kallare temperatur.Mindre mängd för infrysning.Vänta några timmar och kontrollera temperaturen igen.Kontrollera dörren.Ställ in en varmaren temperatur. |
| Det är för kallt i skåpet | Det finns ingenluftcirkulation i skåpet. | Se till att luften kan cirkula mellan varorna. |
| Skåpet går inte alls. | Termostaten har för hög inställning.Stickkontakten sitter inte i ordentligt.Säkringen är sönder.Termostaten är „0” ställd. | Ställ in en varmare temperatur.Kontrollera kontakt.Kontrollera säkring.Kontrollera inställn. |
| Skåpets ljudnivå är för hög. | Skåpet är inte uppställt ordentligt. | Kontrollera att skåpet står stabilt. |
Om inte råden ger resultat, kontakta närmaste återförsäljare.
Installations - instruktioner
Teknisk data
| Modell | ERT 16002W8 |
| Totalkapacitet (l) | Kylutrymme: 155 |
| Nettokapacitet (l) | Kylutrymme: 152 |
| Bredd (mm) | 550 |
| Höjd (mm) | 850 |
| Djup (mm) | 612 |
| Energiförbrukning (kW/24h) | 0,326 |
| (kW/år) | 119 |
| Energiklass enligt EU-standard | A+ |
| Nominell strömstyrka (A) | 0,5 |
| Vikt (kg) | 33 |
Att installera skåpet
Transport och uppackning
i Leverera skåpet i originalförpackningen, det ska stå lodrätt med hänsyn till skyddsvarningar på emballaget.
Efter varje transport, låt skåpet stå ca. två timmar innan det sätts igång.
Packa upp skåpet och kontrollera att det är felfritt och utan skador. Eventuella skador ska omedelbart anmälas till återförsäljaren. I detta fall ska emballaget behållas.
Rengöring
Ta bort tejpen som har hållit fast de lösa delarna under transporten.
Tvätta sedan skåpet invändigt med ljummet vatten och ett milt handdiskmedel. Använd en mjuk trasa.
Ställ skåpet på plats
Omgivande temperatur påverkar skåpets energiförbrukning och funktion. Vid placeringen, tänk på att det är praktiskt att placera skåpet på en plats med omgivande temperaturnivåer enligt klimatklassificeringen som finns angiven i tabellen nedan och också återfinns på typskylten i skåpet.
| Klimatklassificering | Omgivande temperatur |
| SN +10 ... +32 | °C |
| N +16 ... +32 | °C |
| ST +18 ... +38 | °C |
Om omgivande temperatur ligger under lägsta temperatur i tabellen kan temperaturen i kylfacket falla under fastställd temperatur.
Om omgivande temperatur överstiger den högre temperaturen i tabellen måste kompressorn arbetar längre, vilket ger sammanbrott i automatiska avfrostning och detta höjer temperaturen i kylfacket och ökar energi-konsumtionen.
Vid placering av skåpet, se till att det stå rakt uppställt och vilar stadigt på alla fötter. Detta uppnås med två justerbara fötter (1) under skåpet längst fram. 1-1 mellanläggsbrickor (2) medföljer som tillbehör till justerbara fötter. Om
utjämning av skåpet behövs, kan mellanläggsbrickorna tas bort.

Skåpet ska inte stå i direkt solljus eller i närheten av någon värmekälla tex. spis, element.
Om det är oundvikligt på grund av begränsade möbleringsmöjligheter, ta då hänsyn till dessa rekommendationer för minimumavständ:
- Mellan skåpet och gas- eller elspis måste 3 cm finnas emellan. Om mindre, se till att sätta en 0,5-1 cm flamsäker isolering mellan apparaterna.
- Mellan skåpet och olje- eller vedeldad spis måste avståndet vara 30 cm eftersom de utstrålar mer värme.
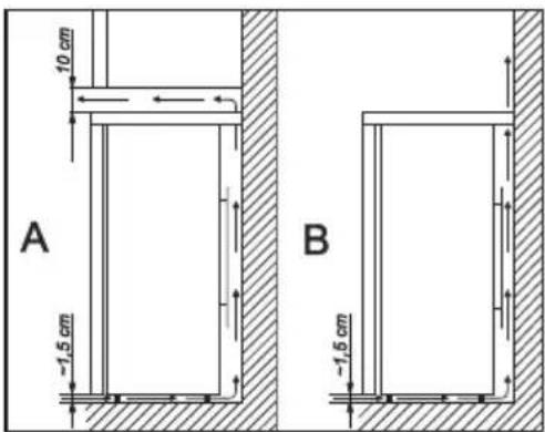
Kylskåpet är utformat att fungera platt mot väggen.

Vid placering av kylskåpet behåll de minimala avständ rekommenderade i illustration.
A: placering under ett väggskåp.
B: placera fristående.

text_image
10 cm -1,5 cm A B -1,5 cmOmhängning av dörr
Skulle skåpets placering eller hantering kräva det, kan omhängning av dörren bytas från höger till vänster sida.
Följande steg skall utföras med hjälp av illustration:
• Ta ut stickkontakten ur vägguttaget.
- Luta skåpet bakåt försiktigt så att inte kompressorn rör vid golvet. En person håller skåpet i en säker position medan den andre fortsätter med dörrbytet.
- Skruva loss de justerbara fötterna som sitter på båda sidorna (2 stycken), sedan skruvarna som håller de nedre gångleden på plats (2 stycken)

- Sätt i bulten i den nedersta gångledsplattan i samma riktning som pilen.
- Fäst plattan på andra sidan utan att flytta dörren.
- Skruva i skruven som tagits från den andra sidan och också de justerbara fötterna (2 stycken). Ställ sedan upp skåpet.

- För att sätta fast det övre gångledet, skruva loss de två (2) skruvarna som fäster överstycket i plast bakpå skåpet.
- Skjut bak överstycket och lyft detsamma ur fäst-delarna.

- Skruva loss skruvarna som fäster det övre gångledet (2 stycken).
- Sätt i bulten i den nedersta gångledsplattan i samma riktning som pilen.
- Passa och fäst gångledsplattan på andra sidan utan att flytta dörren.
- Sätt tillbaka överstycket i plast i fästdelarna och dra den framåt.
- Fäst överstycket med skruvarna (2 stycken) på baksidan av skåpet.

- Placera skåpet på dess plats, gör inställningarna och anslut det.
Om du ej vill utföra omhängningen själv, kontakta närmaste behörig fackman eller återförsäljare.
Elektrisk koppling
Detta kylskåp är utformat att fungera med strömstyrka 230 V AC (\~) 50 Hz matarströmkrets.
Stickkontakten måste sättas i ett jordat uttag. Om sådan inte finns, rekommenderas att kontakta en elektriker som kan åtgärda detta Utaget skall uppfylla standardkrav för närhet till kylskåp.

Detta skåp uppfyller med följande E.E.C-direktiv:
- 73/23 EEC satta 73.02.19 (Lågspännings-direktiv) och efterföljande modifikationer,
- 89/336 EEC satta 89.05.03 (Elektromagnetisk sdirektiv) och Kompatibilitet- efterföljande modifikationer,
- 96/57 EEC - 96/09/03 (energieffektivitetsdirektivet) och senare ändringar av detta direktiv.
Lagringstidstabell
Tid och metod för lagring av färskvaror i kylskåpet.
| Mat Lagringstid i dagar Förpackningsmetod | 7 | |||||||
| 1 | 2 | 3 | 4 | 5 | 6 | |||
| Rätt kött X X x x x plastfolie, luft-tätt | ||||||||
| Kokt kött X X X x x x täckt skål | ||||||||
| Stekt kött | X | X | X | x x täckt skål | ||||
| Rå köttfärs | X | täckt skål | ||||||
| Stekt köttfärs | X | X | x | x | täckt skål | |||
| Kallskuret | X | X | x | x | plastfolie, cellofanpapper, fettåligt papper | |||
| Färsk fisk | X | x | x | plastfolie, luft-tätt | ||||
| Kokt fisk | X | X | x | x | täckt skål | |||
| Stekt fisk | X | X | x x x | täckt skål | ||||
| Burkfisk,öppnad | X | x | x | täckt skål | ||||
| Färsk kyckling | X | X | X | x | x | x | plastfolie, luft-tätt | |
| Stekt kyckling | X | X | X | x | x | x | täckt skål | |
| Färsk höna | X | X | x | x | x | plastfolie, luft-tätt | ||
| Kokt höna | X | X | x x x | täckt skål | ||||
| Färsk gås | X | X | X | x | x | x | plastfolie, luft-tätt | |
| Stekt gås | X | X | X | X | x | x | x | täckt skål |
| forts. från föregående sida... | X | |||||||
| Smör, oöppnat | X | X | X | X | X | X | X | originalförpackning |
| Smör, öppnat | X | X | x | x | x | x | x | originalförpackning |
| Mjölk | X | X | X | x x originalförpackning | ||||
| Grädde | X | X | x | x | plastlåda | |||
| Gräddfil | X | X | X | X | x | x | x | plastlåda |
| Ost, hård | X | X | X | X | X | X | X | aluminiumfolie |
| Ost, mjuk | X | X | X | X | x | x | x | plastfolie |
| Östmassa | X | X | X | X | x | x | x | plastfolie |
| Ägg | X | X | X | X | X | X | X | |
| Spenat, syra | X | X | x | x | plastfolie | |||
| Gröna ärter& bönor | X | X | X | X | x | x | x | plastfolie |
| Svamp | X | X | x x x | plastfolie | ||||
| Morötter,rötter | X | X | X | X | X | X | X | plastfolie |
| Paprika | X | X | x x x | plastfolie | ||||
| Tomat | X | X | X | X | X | X | X | plastfolie |
| Kål | X | X | X | X | X | x | x | plastfolie |
| Snabbruttnande frukt (jordgubbar, hallon etc.) | X | X | X | x | x | plastfolie | ||
| forts. från föregående sida... | ||||||||
| Annan frukt | X | X | X | X | x | x | x | plastfolie |
| Konserverad frukt, öppnad | X | X | X | x | x | täckt skål | ||
| Gräddtårta etc. | X | X | x | x | täckt skål | |||
Notera:
X Vanlig förvaringstid
x Möjlig förvaringstid vid riktigt färska produkter
- Ikke la barn leke med emballasjen skapet kom med. Plastfolie kan forårsake kvelning.
Neste avsnitt gir anvisninger om innstillingene.

Om inte råden ger resultat, kontakta närmaste återförsäljare.
EnkelManual