HAYWARD CrystalLogic - Éclairage

CrystalLogic - Éclairage HAYWARD - Notice d'utilisation et mode d'emploi gratuit

Retrouvez gratuitement la notice de l'appareil CrystalLogic HAYWARD au format PDF.

📄 34 pages Français FR 💬 Question IA 10 questions ⚙️ Specs
Notice HAYWARD CrystalLogic - page 2
Caractéristiques techniques Éclairage LED, plusieurs couleurs disponibles, puissance variable, compatible avec les systèmes de contrôle à distance.
Utilisation Conçu pour l'éclairage de piscines, spas et autres espaces aquatiques, installation facile et rapide.
Maintenance et réparation Vérification régulière des connexions électriques, nettoyage des lentilles pour maintenir la luminosité, remplacement des ampoules si nécessaire.
Sécurité Conforme aux normes de sécurité électrique, installation à l'écart de l'eau, utilisation de transformateurs adaptés.
Informations générales Durée de vie des LED prolongée, garantie constructeur, options de personnalisation des couleurs et des modes d'éclairage.

FOIRE AUX QUESTIONS - CrystalLogic HAYWARD

Comment installer les lumières HAYWARD CrystalLogic ?
Pour installer les lumières CrystalLogic, suivez les instructions fournies dans le manuel d'utilisateur. Assurez-vous que l'alimentation est coupée avant l'installation. Fixez les lumières selon les recommandations et vérifiez les connexions électriques.
Que faire si les lumières ne s'allument pas ?
Vérifiez d'abord que l'alimentation est bien connectée. Assurez-vous que le disjoncteur n'a pas sauté. Si le problème persiste, vérifiez les connexions et remplacez l'ampoule si nécessaire.
Les lumières HAYWARD CrystalLogic sont-elles étanches ?
Oui, les lumières CrystalLogic sont conçues pour être étanches et adaptées à une utilisation en extérieur. Elles sont classées pour résister aux conditions humides.
Comment changer la couleur des lumières ?
Les lumières HAYWARD CrystalLogic permettent de changer de couleur via le contrôleur inclus. Suivez les instructions du manuel pour sélectionner les différentes options de couleurs.
Quelle est la durée de vie des ampoules ?
Les ampoules HAYWARD CrystalLogic ont une durée de vie estimée de 25 000 heures, selon l'utilisation et les conditions d'installation.
Puis-je utiliser les lumières sous l'eau ?
Oui, les lumières HAYWARD CrystalLogic sont conçues pour être utilisées sous l'eau, tant qu'elles sont installées conformément aux instructions du fabricant.
Que faire si les lumières scintillent ?
Un scintillement peut être causé par un problème d'alimentation ou une connexion lâche. Vérifiez les câbles et les connexions. Si le problème persiste, consultez un électricien qualifié.
Les lumières sont-elles compatibles avec un système de contrôle à distance ?
Oui, les lumières HAYWARD CrystalLogic peuvent être intégrées à des systèmes de contrôle à distance compatibles. Consultez le manuel pour les instructions d'intégration.
Comment effectuer l'entretien des lumières ?
Pour l'entretien, nettoyez les lumières régulièrement avec un chiffon doux et de l'eau. Évitez les produits abrasifs. Vérifiez également les connexions électriques et remplacez les ampoules si nécessaire.
Où puis-je acheter des pièces de rechange ?
Les pièces de rechange pour les lumières HAYWARD CrystalLogic peuvent être achetées sur le site Web du fabricant ou auprès de revendeurs agréés.

Téléchargez la notice de votre Éclairage au format PDF gratuitement ! Retrouvez votre notice CrystalLogic - HAYWARD et reprennez votre appareil électronique en main. Sur cette page sont publiés tous les documents nécessaires à l'utilisation de votre appareil CrystalLogic de la marque HAYWARD.

MODE D'EMPLOI CrystalLogic HAYWARD

N’utilisez que des pièces de rechange des marques Hayward® Rev. C

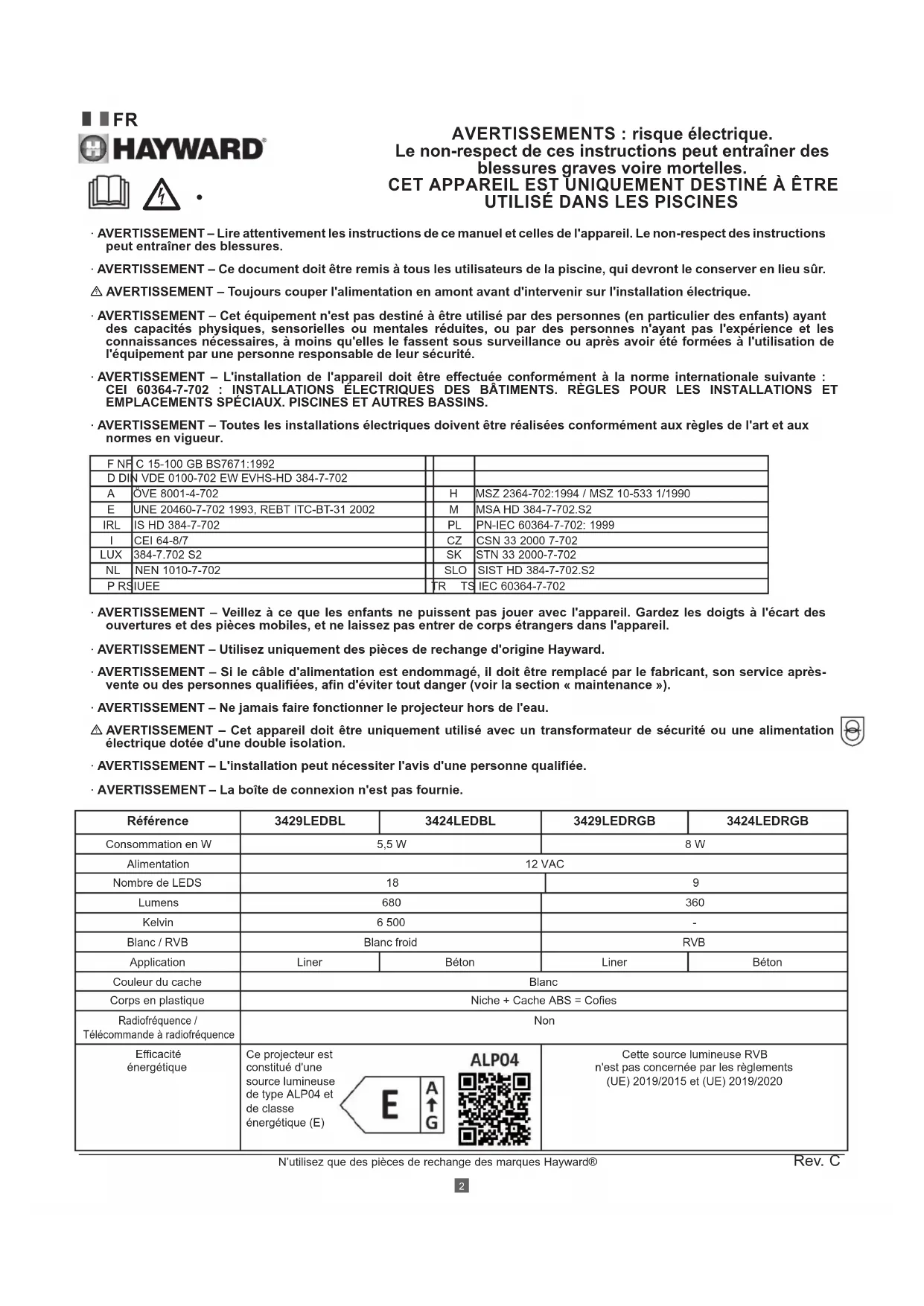
  • AVERTISSEMENT – Lire attentivement les instructions de ce manuel et celles de l'appareil. Le non-respect des instructions peut entraîner des blessures.
  • AVERTISSEMENT – Ce document doit être remis à tous les utilisateurs de la piscine, qui devront le conserver en lieu sûr. c AVERTISSEMENT – Toujours couper l'alimentation en amont avant d'intervenir sur l'installation électrique.
  • AVERTISSEMENT – Cet équipement n'est pas destiné à être utilisé par des personnes (en particulier des enfants) ayant des capacités physiques, sensorielles ou mentales réduites, ou par des personnes n'ayant pas l'expérience et les connaissances nécessaires, à moins qu'elles le fassent sous surveillance ou après avoir été formées à l'utilisation de l'équipement par une personne responsable de leur sécurité.
  • AVERTISSEMENT – L'installation de l'appareil doit être effectuée conformément à la norme internationale suivante : CEI 60364-7-702 : INSTALLATIONS ÉLECTRIQUES DES BÂTIMENTS. RÈGLES POUR LES INSTALLATIONS ET EMPLACEMENTS SPÉCIAUX. PISCINES ET AUTRES BASSINS.
  • AVERTISSEMENT – Toutes les installations électriques doivent être réalisées conformément aux règles de l'art et aux normes en vigueur. F NF C 15-100 GB BS7671:1992D DIN VDE 0100-702 EW EVHS-HD 384-7-702 A ÖVE 8001-4-702 H MSZ 2364-702:1994 / MSZ 10-533 1/1990 E UNE 20460-7-702 1993, REBT ITC-BT-31 2002 M MSA HD 384-7-702.S2 IRL IS HD 384-7-702 PL PN-IEC 60364-7-702: 1999

I CEI 64-8/7 CZ CSN 33 2000 7-702

  • AVERTISSEMENT – Veillez à ce que les enfants ne puissent pas jouer avec l'appareil. Gardez les doigts à l'écart des ouvertures et des pièces mobiles, et ne laissez pas entrer de corps étrangers dans l'appareil.
  • AVERTISSEMENT – Utilisez uniquement des pièces de rechange d'origine Hayward.
  • AVERTISSEMENT – Si le câble d'alimentation est endommagé, il doit être remplacé par le fabricant, son service après- vente ou des personnes qualifiées, afin d'éviter tout danger (voir la section « maintenance »).
  • AVERTISSEMENT – Ne jamais faire fonctionner le projecteur hors de l'eau. c AVERTISSEMENT – Cet appareil doit être uniquement utilisé avec un transformateur de sécurité ou une alimentation électrique dotée d'une double isolation.
  • AVERTISSEMENT – L'installation peut nécessiter l'avis d'une personne qualifiée.
  • AVERTISSEMENT – La boîte de connexion n'est pas fournie. AVERTISSEMENTS : risque électrique. Le non-respect de ces instructions peut entraîner des blessures graves voire mortelles.

c • Référence 3429LEDBL 3424LEDBL 3429LEDRGB 3424LEDRGB Consommation en W 5,5 W 8 WAlimentation 12 VACNombre de LEDS 18 9Lumens 680 360Kelvin 6 500 -Blanc / RVB Blanc froid RVB Application Liner Béton Liner Béton Couleur du cache BlancCorps en plastique Niche + Cache ABS = CoesRadiofréquence / Télécommande à radiofréquence Non E󰀩cacitéénergétiqueCe projecteur est constitué d'une source lumineuse de type ALP04 et de classe énergétique (E) Cette source lumineuse RVB n'est pas concernée par les règlements (UE) 2019/2015 et (UE) 2019/20203

N’utilisez que des pièces de rechange des marques Hayward® Rev. C 30 cm

1B2 INSTALLATION Caractéristiques techniques

  • Le projecteur doit éclairer dans le sens opposé à la maison ou la terrasse pour ne pas éblouir.
  • Le projecteur doit être situé au maximum à 30 cm sous la margelle à partir de l'axe de la lampe.
  • L'étanchéité de la sortie et de la gaine doit être réalisée selon les règles de l'art.
  • Le projecteur est un appareil de classe III avec un indice de protection IP68 jusqu'à 1 m de profondeur. La lampe a une tension d'alimentation de sécurité très basse, de 12 VAC.
  • Lors de l'installation, prévoir une longueur de câble suffisante pour pouvoir changer la lampe hors de l'eau. Structure maçonnée avec liner
  • Sceller la traversée de paroi du projecteur (réf. 3353) dans la maçonnerie en prévoyant de finir l'enduit ou le carrelage à fleur de la face avant.
  • Visser la gaine sur la niche du projecteur en réalisant l'étanchéité.
  • Visser l'ensemble dans la traversée de paroi en réalisant une autre étanchéité.
  • Poser le joint sur la face avant de la niche du projecteur.
  • Poser le joint sur la bride de la niche du projecteur.
  • Fixer la bride d'étanchéité après la pose du liner.
  • Découper le liner à l'intérieur de la niche.
  • Aiguiller le câble de l'optique du projecteur dans la gaine jusqu'à la boîte de connexion (réf. 3495EURO). Présenter l'optique devant la niche en remontant le câble dans la boîte de connexion et fixer l'optique sur le support en plastique.
  • Tirer et enrouler le câble dans la boîte de connexion et réaliser l'étanchéité au niveau de la boîte. Structure à panneaux liner :
  • Percer un trou de 110 mm dans le panneau.
  • Poser la niche du projecteur par l'intérieur du bassin. Visser l'écrou arrière (réf. 3492) pour la maintenir en place.
  • La réalisation de l'étanchéité du liner, du câble de la gaine et la pose de l'optique du projecteur suivent la même procédure que celle du projecteur liner. Structure maçonnée sans liner
  • Sceller la traversée de paroi (réf. 3352) dans la maçonnerie en prévoyant de finir l'enduit ou le carrelage à fleur de la face avant.
  • Visser la niche du projecteur dans la traversée de paroi.
  • La réalisation de l'étanchéité du liner, du câble de la gaine et la pose de l'optique du projecteur suivent la même procédure que celle du projecteur liner.4

N’utilisez que des pièces de rechange des marques Hayward® Rev. C Boîte de connexion (Réf. 3495EURO) (non fournie)

  • Raccorder la gaine du projecteur à la sortie 3/4’’ située sur le fond de la boîte de connexion en réalisant une autre étanchéité.
  • Utiliser les blocs de jonction fournis avec les boîtes de connexion pour raccorder le projecteur à l'alimentation, en torsadant les fils et en serrant bien les vis des bornes de jonction. Puissance du transformateur
  • Utiliser un transformateur avec une tension au secondaire de 12 V (12,5 V selon le modèle). Sa puissance doit être en adéquation avec la puissance du ou des projecteurs à raccorder (puissance minimale = 9 VA pour une lampe blanche et 13 VA pour une lampe RVB).
  • Dans tous les cas, la somme des puissances des projecteurs doit être inférieure ou égale à la puissance du transformateur.
  • Il est nécessaire d'avoir une protection différente pour chaque projecteur. Une protection en sortie du transformateur doit être assurée en utilisant des fusibles ou des disjoncteurs de 2 A (voir schéma suivant).

Projecteur 1 Projecteur 1Projecteur 2Exemple avec 2 projecteursExemple avec 1 projecteurProtection 2 A Protection 2 AProtection 2 A5

N’utilisez que des pièces de rechange des marques Hayward® Rev. C UTILISATION Mode autonome (projecteur couleur RVB uniquement) En l'absence de boîtier de télécommande, les projecteurs fonctionnent de manière autonome et l'utilisateur peut choisir entre 18 modes différents : 11 couleurs fixes et 7 séquences automatiques de changement de couleurs (voir tableau de séquences ci-dessous). Séquence Couleur/Programme Séquence Couleur/Programme 1 Couleur : Blanc 10 Couleur : Vert 2 Couleur : Bleu 11* Couleur : Vert émeraude 3 Couleur : Bleu lagon 12 Programme : Alternance de couleurs rapide 4 Couleur : Cyan 13 Programme : Alternance de couleurs lente 5 Couleur : Pourpre 14 Programme:11couleursxes 6 Couleur : Magenta 15 Programme : Psychédélique 7 Couleur : Rose 16 Programme : Bleu/Cyan/Blanc 8 Couleur : Rouge 17 Programme : Couleurs Aléatoire 1 9 Couleur : Orangé 18 Programme : Couleurs Aléatoire 2

  • : Séquence éventuellement personnalisable en utilisant et raccordant le boîtier de commande. Le changement de couleurs peut être obtenu en coupant l'alimentation des projecteurs pendant un temps très court (<1 s). Par interruptions successives, il est possible de faire défiler les 18 modes de fonctionnement. Après le mode 18, les projecteurs reviennent à la première séquence automatique (mode 1). Pour synchroniser les projecteurs en les ramenant simultanément au mode 2, couper l'alimentation pendant environ 2 secondes. Lorsque le projecteur est mis en marche après un arrêt de plusieurs secondes (>4 s), il éclaire en Blanc pendant 15 secondes puis revient au mode dans lequel il se trouvait la dernière fois qu'il a été éteint. Cela permet d'avoir un maximum d'éclairage en cas de chute accidentelle dans le bassin. Sécurité (projecteur couleur RVB uniquement) En cas d'augmentation anormale de la température à l'intérieur de la lampe, un dispositif de sécurité stoppe l'éclairage et la lampe émet des flashs rouges. Dès que la température revient à la normale, la lampe reprend son fonctionnement. En cas de détection d'une tension trop faible (<11 V) ou trop élevée (>15 V), la lampe cesse de fonctionner et émet des flashs verts. Il est indispensable de couper l'alimentation des projecteurs pour revenir à un fonctionnement normal. MAINTENANCE Le remplacement des pièces doit être effectué en utilisant des pièces d'origine. La lampe doit être changée hors de l'eau. Le remplacement de la source lumineuse de ce projecteur ne doit être effectué que par le fabricant ou son représentant ou une personne de qualification équivalente. Lors du remplacement de la lampe et/ou du câble, il est recommandé de changer toutes les pièces assurant l'étanchéité. Lors du remplacement de la lampe, le joint et les éléments d'étanchéité doivent être changés. Vérifiez qu'ils sont montés correctement. En cas de panne, il est nécessaire de remplacer la totalité de la lampe LED. Ne l'ouvrez pas et n'essayez pas de le réparer. Pour éviter les accidents, si le cordon d'alimentation ou la gaine du câble est endommagé, le remplacement doit être effectué par le fabricant, un centre de service agréé ou un technicien qualifié. Le câble doit être conforme aux exigences mécaniques et électriques suivantes : H05RN-F avec une section minimale de 2 x 1,5 mm

TRAITEMENT DES LAMPES ET DES TÉLÉCOMMANDES EN FIN DE VIE UTILE : Le symbole représentant une poubelle avec une ligne en dessous indique la nécessité d'effectuer une collecte séparée des appareils électriques ou électroniques. Cela signifie que ces appareils et leurs déchets ne doivent pas être jetés avec les ordures ménagères, mais doivent être déposés dans un point de tri sélectif. Pour plus d'informations, contactez votre mairie ou le revendeur auprès duquel vous avez acheté le produit. Une correcte élimination des appareils électriques et électroniques permet d'éviter d'éventuels dommages à l'environnement, à la santé humaine et contribue à préserver les ressources naturelles.6

Assistant notice
Powered by ChatGPT
En attente de votre message
Informations produit

Marque : HAYWARD

Modèle : CrystalLogic

Catégorie : Éclairage