CHIMNEY HOOD - Hotte de cuisine RANGEMASTER - Notice d'utilisation et mode d'emploi gratuit
Retrouvez gratuitement la notice de l'appareil CHIMNEY HOOD RANGEMASTER au format PDF.
| Type de produit | Hotte de cuisine à cheminée |
| Caractéristiques techniques principales | Extraction d'air, filtration à charbon, éclairage LED |
| Alimentation électrique | 230 V, 50 Hz |
| Dimensions approximatives | Largeur : 60 cm, Hauteur : 90 cm, Profondeur : 50 cm |
| Poids | Environ 15 kg |
| Compatibilités | Compatible avec les cuisines standard, installation murale |
| Puissance | Max 300 W |
| Fonctions principales | Extraction des odeurs, éclairage de la zone de cuisson, réduction de la vapeur |
| Entretien et nettoyage | Filtres lavables en machine, nettoyage régulier de la surface extérieure |
| Pièces détachées et réparabilité | Filtres disponibles en remplacement, assistance technique recommandée pour réparations |
| Sécurité | Protection contre les surcharges électriques, installation conforme aux normes de sécurité |
| Informations générales | Garantie de 2 ans, disponible en plusieurs finitions |
FOIRE AUX QUESTIONS - CHIMNEY HOOD RANGEMASTER
Téléchargez la notice de votre Hotte de cuisine au format PDF gratuitement ! Retrouvez votre notice CHIMNEY HOOD - RANGEMASTER et reprennez votre appareil électronique en main. Sur cette page sont publiés tous les documents nécessaires à l'utilisation de votre appareil CHIMNEY HOOD de la marque RANGEMASTER.
MODE D'EMPLOI CHIMNEY HOOD RANGEMASTER
La presente notice d'emploi vaut pour plusieurs versions de l'appareil. Elle peut conténir des descriptions d'accessoires ne figurant pas dans votre apparéil.
INSTALLATION
- Le fabricant decline toute responsabilité en cas de dommage du à une installation non correcte ou non conforme aux règles de l'art.
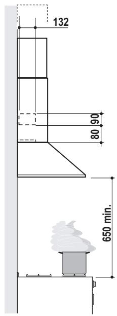
- La distance minimale de sécurité entre le plan de cuisson et la hotte doit être de 650 mm au moins.
- Vérifier que la tension du secteur correspond à la valeur qui figure sur la plaquette apposée à l'intérieur de la hotte.
- Pour les Appareils appartenant à la lère Classe, veiller à ce que la mise à la terre de l'installation électrique domestique ait été effectuee conformément aux normes en vigueur.
- Connecter la hotte à la sortie d'air aspiré à l'aide d'une tuyauterie d'un diamètre égal ou supérieur à 120 mm. Le parcours de la tuyauterie doit être le plus court possible.
- Ne pas connecter la hotte à des conduites d'évacuation de fumées issues d'une combustion tel que (Chaudière, cheminée, etc...).
- Si vous utilise des appareils qui ne fonctionnent pas à l'électricité dans la piece ou est installée la hotte (par exemple: des appareils fonctionnant au gaz), vous doivent prévoir une aération suffisante du milieu. Si la cuisine en est dépourvue, pratique une ouverture qui communique avec l'extérieur pour garantir l'infiltration de l'air pur.
UTILISATION
- La hotte a eté concue exclusivement pour l'usage domestique, dans le but d'éliminer les odeurs de la cuisine.
- Ne jamais utiliser abusivement la hotte.
- Ne pas laisser les flammes libres à force intensité quand la hotte est en service.
- Toujours régler les flammes de manière à éviter toute sortie l'érale de ces dernières par rapport au fond des marmites.
- Contrôler les friteuses lors de l'utilisation car l'huile surchauffée pourrait s'enflammer.
- Ne pas préparer d'aliments flambés sous la hotte de cuisine : risque d'incendie
- Cet apparéil ne doit pas être utilisé par des personnes (y compris les enfants) ayant des capacities psychiques, sensorielles ou mentales réduites, ni par des personnes n'ayant pas l'expérience et la connaissance de ce type d'appareils, à moins d'être sous le contrôle et la formation de personnes responsables de leur sécurité.
- Les enfants doivent être surveillés pour s'assurer qu'ils ne jouent pas avec l'appareil.
ENTRETIEN
- Avant de procéder à toute opération d'entretien,sterol la hotte en retardant la fiche ou en actionnant l'interrupteur général.
- Effectuer un entretien scrupULEux et en temps du des Filtres, à la cadence conseillée.
Pour le nettoyage des surfaces de la hotte, il suffit d'utiliser un chiffon humide et déter-sif liquide neutre.
Le symbole sur le produit ou son emballage indique que ce produit ne peut etre traite comme dechet menager. Il doit plutot etre remis au point de ramassage concerné, se chargeant du recyclage du materiel electrique et electronique. En vous assurant que ce produit est elimine correctement, vous favorisez la prevention des conséquences négatives pour l'environnement et la santé humaine qui, sinon, seraient le résultat d'un traitement inapproprié des déchets de ce produit. Pour obtenir plus de détails sur le recyclage de ce produit, veuillez prendre contact avec le bureau municipal de voire region, voite service d'elimination des déchets menagers ou le magasin ou vous aze achete le produit.



Encombrement



Composants
| Réf. | Q.té | Composants de Produit |
| 1 | 1 | Corps Hotte équipé de: Commandes, Lumière, Groupe Ventilateur, Filtres |
| 2 | 1 | Cheminée Télescopique formée par : |
| 2.1 | 1 | Cheminée Supérieure |
| 2.2 | 1 | Cheminée Inférieure |
| 8a | 1 | Grille en Direction Droite Sortie Air |
| 8b | 1 | Grille en Direction Gauche Sortie Air |
| 9 | 1 | Flasque de réduction Ø 150-120 mm |
| 10 | 1 | Anneau de raccord Ø 120 - 125 mm |
| 15 | 1 | Raccord Sortie Air |
| Réf. | Q.té | Composants pour l'installation |
| 7.1 | 2 | Brides Fixation Corps Hotte |
| 7.2.1 | 2 | Brides Fixation Cheminée Supérieure |
| 11 | 8 | Chevilles |
| 12a | 8 | Vis 4,2 x 44,4 |
| 12c | 6 | Vis 2,9 x 9,5 |
| 12d | 2 | Vis M4 x 25 |
| Q.té | Documentation | |
| 1 | Manuel d'instructions |

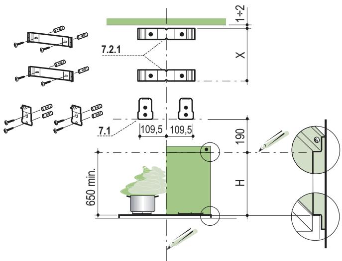
Perçage Paroi et Fixation Brides

Tracer sur la paroi :
- une ligne verticale allant jusqu'au plafond ou à la limite supérieure, au centre de la zone prévue pour le montage de la hotte.
- une ligne horizontale à 650 mm min. au-dessus du plan de cuisson pour installation sans embases : à la cote H (H = hauteur de la partie en vue de l'embase), en cas d'installation avec embase.
- Poser comme indiqué une bride 7.2.1 sur la paroi à 1 - 2mm du plafond ou de la limite supérieure, en alignant son centre (découpes) sur la ligne verticale de repère.
- Marquer les centres des trous de la bride.
- Poser comme indiqué la bride 7.2.1 à X mm sous la première bride (X = hauteur cheminée supérieure fournie), en alignant son centre (découpes) sur la ligne verticale de repère.
- Marquer les centres des trous de la bride.
- Poser comme indiqué, la bride 7.1 à 109,5 mm de la ligne verticale de repère, et 190 mm au-dessus de la ligne horizontale de repère.
- Marquer les centres des trous de la bride.
- Répéter cette opération sur le côte opposé.
L'Embase doit être montée avant d'instructor le corps de la hotte et si l'on souhaite la fixer au mur par le haut ou par le bas, il est nécessaire de la monter à la juste hauteur avant de monter les bases. Comme il s'agit d'une opération complexe, elle doit être confiée à l'installateur de la cuisine ou à un personnel compétent ayant pris reconnaissance de toutes les dimensions finale des meubles.
En se limitant à la fixation supérieure, proceder comme suit :
- Poser l'embase sur la base en insérant l'intercalaire inférieur entre le plan supérieur et la parroi, en le centrant par rapport à la ligne verticale de repère.
- Marquer les centres des deux troughs de l'intercalaire supérieur.
- Percer de 8 mm tous les points marqués.
- Insérer les chevilles 11 dans les trouss.
- Fixer les brides en utilisant les vis 12a fournies.
-
Si présente, fixer l'embase, en utilisant les vis 12a fournies.
-
Visser sur les brides 7.1 les 2 vis 12d fournies.
- Accrocher le corps hotte aux brides 7.1, en le centrant sur la ligne verticale.
- Agir sur les vis 12d, par le dessous de la hotte pour en niveler le corps.

Connexions
SORTIE DE L'AIR EN VERSION EVACUATION
Pour l'installation dans la Version Aspirante, connecter la hotte au tuyau d'évacuation, au moyen d'un tuyau rigide ou flexible de 150 ou 125 mm, que l'installateur pourrait désirar à son propre gré.
- Pour raccord de 125 mm ,insérer la bride de réduction 9 sur la sortie du corps de hotte et l'anneau d'agrandissement 10 de 120 - 125 mm sur la bride.
- Fixer le tuyau à l'aide du collet serre-tuyaux. Le matériel nécessaire n'est pas fourni avec l'appareil.
- Retirer les filtres anti-odeur au charbon actif, s'ils sont montés.

SORTIE AIR VERSION FILTRANTE
- Appliquer par pression le raccord sortie air 15 sur la sortie du corps de la hotte.
- S'assurer de la présence des filtres anti-odeur au charbon actif.

BRANCHEMENT ELECTRIQUE
- Brancher la hotte sur le secteur en interposant un interrupteur bipolaire avec ouverture des contacts d'au moins 3mm .
- Enlever les filtres àGRAISSÉ (voir § "Entretien") et s'assurer que le connecteur du cable d'alimentation soit bien branché dans la prise du diffuseur.

Montage Cheminée
Cheminée supérieure
- Elargir légarement les deux bords latéraux, et les accrocher derrière les brides 7.2.1; referrer jusqu'à la butée.
- Fixer létalement aux brides, à l'aide des 4 vis 12c (2,9 x 9,5) fournies.
Cheminée inférieure
- Elargir légèrement les deux bords lateraux de la Cheminée et les accrocher entre la Cheminée supérieure et la paroi; refermer jusqu'à la butée.
- Fixer létalement la partie inférieure au corps hotte, à l'aide des deux 2 vis 12c (2,9 x 9,5) fournies.
- Pour la version filtrante, appliquer les grilles de direction 8a - 8b dans les logements prévus à cet effet, pour que les symboles de direction soient orientés vers le haut et le face avant de la hotte. S'assurer qu'elles soient bien insérées dans le Raccord 15.


L Lumières Allume et étant l'éclairage.
M Moteur Allume et eteint le moteur aspiration
V Vitesse Determine les vitesses d'exploitation ainsi subdivisées:
- Vitesse minimale, pour un changé d'air permanent particulièrement silencieux en cas de faibles vapeurs de cuisson.
- Vitesse moyenne pour la plupart des conditions d'utilisation, étant donné le rapport optimal entre début d'air traité et niveau sonore.
- Vitesse maximum, pour faire face aux émissions maximum de vapeur de cuisson, même pendant des temps prolongés.
Filtres anti-graisse
NETTOYAGE FILTRES ANTI-GRAISSE METALLIQUES AUTOPORTEURS
- Lavables au lave-vaisselle, ils doivent être lavés environ tous les 2 mois d'emploi ou plus frequently en cas d'emploi particulièrement intense.
- Retirer les filtres l'un après l'autre, en les poussant vers la partie arrêté du groupe et en tirant simultanément vers le bas.
- Laver les filtres en évitant de les plier et les laisser secher avant de les remonter.
- Remonter les filtres en veillant à ce que la poignée reste vers la partie visible externe

Filtre anti-odeur (Version filtrante)
Il ne sont pas lavables ni régénérables, il faut les replacer au moins tous les 4 mois d'emploi ou plus frequentlyment en cas d'emploi particulièrement intense.
REEMPLACEMENT Filtre AU CHARBON ACTIF
- Retirer les filtrres anti-graisse métalliques.
- Retirer les filtres anti-odeur au charbon actif satures, comme indiqué (A).
- Monter les nouveaux filtres (B).
- Remonter le filtres anti-graisse métalliques.

Eclairage
Lampes à incandescence de 40 W
- Retirer les filtrres anti-graisse métalliques.
- Dévisser les lampes et les remplacer par de nouvelles avec les mêmes caractéristiques.
- Remonter les filtres anti-graisse métalliques.

Notice Facile