CHIMNEY HOOD - Keukenafzuigkap RANGEMASTER - Gratis gebruiksaanwijzing en handleiding
Vind de handleiding van het apparaat gratis CHIMNEY HOOD RANGEMASTER in PDF-formaat.
Download de handleiding voor uw Keukenafzuigkap in PDF-formaat gratis! Vind uw handleiding CHIMNEY HOOD - RANGEMASTER en neem uw elektronisch apparaat weer in handen. Op deze pagina staan alle documenten die nodig zijn voor het gebruik van uw apparaat. CHIMNEY HOOD van het merk RANGEMASTER.
GEBRUIKSAANWIJZING CHIMNEY HOOD RANGEMASTER
Libretto Istruzioni Instructions Manual Manuel d'Instructions Bedienungsanleitung Gebruiksaanwijzing
www.rangemaster.co.uk
INDICE
IT
Deze gebruiksaanwijzing geldt voor verschlende uitvoeringen van het apparaat. Het is möglichd dat er een,aantal kenmerken worden beschreiben die nicht van toe-passing zich op uw apparaat.
INSTALLATIE
- De fabrikant aanvaardt geen enkele aansprakelijkheid voor schade die voortkomt uit onjuiste ofiet overeenkomstig de regels der kunst uitgevoerde installmenties.
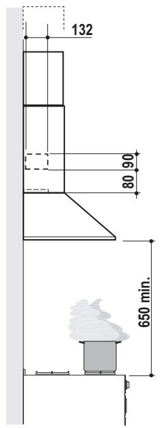
- De minimale veiligheidsafstand zusammen de kookplaat en de wasemkap bedraagt 650 mm.
- Controller of de netspanning correspondiert met de spanning die aangegeven is op hetplaatje aan de binnenkant van de wasemkap.
- Voor apparaten van klasse I dient u zich ervan te verzekeren dat het elektriciteitsnet in uw huis over een goede aarding beschikt.
- Verbind de wasemkap met de luchtuitlaat door middel van een leiding met een diameter van 120mm of groter. De leiding要去 een zo kort möglichke route afleggen.
- Sluit de wasemkap Niet aan op afvoerijpen van rook die geproduerd is door verbranding (verwarmingsketels, open haarden etc.).
- Als er in het vertrek zowel de wasemkap als apparaten die nicht op elektricitit werkken (bijvoorbeeld gasapparaten) worden gezruikt, moet ervoor worden gezorgd dat het vertrek voldoende geventileerd worden. Indien de keulen geen Gat in de buitenmuur heeft om de aanvoer van schone lucht te garanderen, dient dit gemaatkt te worden.
GEBRUIK
- De wasemkap is uitsluitend ontworpen voor huishoudelijk gebruik, voor het elimineren van kookgeuren. Gebruik de kap nooit op oneigenlijke wijze.
- Laat geen hoog brandende branders onbedekt onder de wasemkapter werwijl.Deze in werkig is.
Regel de vlammen altijd zo dat ze Niet langs de pannen omhoogkomen. - Controller frituurpannenijdens het gebruik: de oververhitte olie zou vlam können vatten.
- Er mag nicht onder de afzuiigkap geflambeerd worden; brandgevaar
- Dit apparaat mag nicht worden gebruikt door Personen (inclusief kinderen) met beperkte psychische, sensorische en geestelijkke vermogens, of door Personen zonder ervaring en kennis, tenzij ze onder toezicht staan of worden geinstrueerd over het gebruik van het apparaat door Personen die verantwoordelijk hij voor hun verigheid.
- Kinderen moeten worden gecontroleerd om er zeker van te zich met het apparaat spelen.
ONDERHOUD
- Alvorens onderhoudswerkzaamheden uit te voeren,要去 de wasemkap uittgeschakeld worden door de stekker uit het stopcontact te halen of de hoofdschakelaar om te zetten.
- Voer het onderhoud van de filters altijd tijd vrijdig en nauwgezet uit, volgens de aanbevolen intervallen.
- Om de oppervlakken van de kap schoon te make n is het voldoende een vochtige doek en een neutraal reinigingsmiddel te gebruiken.



Het symbool op het product of op de verpakking wijst erop dat dit product Niet als huishoudafval mag worden behandeld. Het moetECHter aan een plaats worden gebracht waar elektrische en elektronische apparatuur wordt gerecycled. Als uervoort zorgt dat dit product op de correcte manier wordt verwijderd,voorkomtu mogelijk voor mens en milieu negatieve gevolgen die zich zouden konnen voordoen in geval van verkeerde afvalbehandeling.Vooreer details in verband met het recylen van dit product,neemu het best contact op met de gemeentelijke instanties,het bedrijf of de diest belast met de verwijdering van huishoudafval of de winkel waar u het product hebt gekocht.
Buitenafmetingen



Onderdelen
| Ref. | Productonderdelen | |
| 1 | 1 | Wasemkap compleet met: bedieningen, Licht, ventilat--orgroep, filters |
| 2 | 1 | Telescopische schouw bestaande UIT: |
| 2.1 | 1 | Bovenstuk |
| 2.2 | 1 | Onderstuk |
| 8a | 1 | Richtingsrooster rechts luchtuitlaat |
| 8b | 1 | Richtingsrooster links luchtuitlaat |
| 9 | 1 | Reductieflens ø 150-120 mm |
| 10 | 1 | Flens ø 125 mm |
| 15 | 1 | Verbindingsstuk luchtuitlaat |
| Ref. | Installatieonderdelen | |
| 7.1 | 2 | Bevestigingsbeugels wasemkap |
| 7.2.1 | 2 | Bevestigingsbeugels bovenstuk van de schouw |
| 11 | 8 | Pluggen |
| 12a | 8 | Schroeven 4,2 x 44,4 |
| 12c | 6 | Schroeven 2,9 x 9,5 |
| 12d | 2 | Schroeven M4 x 25 |
| Documentatie | ||
| 1 | Gebruiksaanwijzing |

Boren van gaten in de wand en bevestiging van de beugels

Trek de volgende lijnen op de wand:
- een verticale hijn tot aan het plafond of tot aan de bovenlimiet, in het midden van de zone waar u de wasemkap wilt installeren;
- een horizontale bijn op: min. 650~mm boven de kookplaat, voor installmentie zonder muurplaat; op hoogte H (hoogte van het zichtbare gedeelte van de muurplaat), voor installmentie met muurplaat.
- Plaats, zoals aangegeven, de beugel 7.2.1 op 1 - 2mm van het plafond of van de bovenlimiet, en lijn het midden ervan (inkepingen)uit op de verticale referentielijn.
- Teken de middelpunten van de gaten in de beugel af.
- Plaats, zoals aangegeven, de beugel 7.2.1 op X mm onder de eerste beugel ( X = hoogte bijgeleverde bovenstuk van de schouw), enlient het midden ervan (inkepingen)uit op de verticale referentielijn.
- Teken de middelpunten van de gaten in de beugel af.
- Plaats, zoals aangegeven, de beugel 7.1 op 109,5 ~mm van de verticale referentielijk en 190 mm boven de horizontale referentielijk.
- Teken de middelpunten van de gaten in de beugel af.
Herhaal deze handeling aan de andere kant.
De muurplaat要去 gemonteerd worden voordat de wasemkap worden gemonteerd en dient, als men de planta zowel aan de bovenkant als aan de onderkant aan de wand wil bevestigen, op de juiste hoogte te worden aangebracht voordat de bases worden gemonteerd. Aangezien het hier een gecompliceerde operatie betreft,要去 denze werkzaamheden worden uitgevoerd door de installerateur van de keuken, of door vakbekwaam personeel dat alle uiteindelijk afmetingen van de meubels kent.
Voor bevestiging alleen aan de bovenkant, gaat u als volgt te werk:
- Plaats deplaat op de basis en schuif de onderste klepussen het bovenvlak en de wand, en centreer deplaat op de verticale referentielijk.
- Teken de middelpunten van de twee gaten van de bovenklep af.
Boor op de afgetekende punten gaten van 8mm
Schuif de pluggen 11 in de gaten. - Bevestig de beugels met behulp van de bijgeleverde schroeven 12a (4,2 x 44,4).
-
Bevestig, indien aanwezig, de muurplaat met behulp van de bijgeleverde schroeven 12a (4,2 x 44,4).
-
Schroef de 2 bijgeleverde schroeven 12d in de beugels 7.1.
Haak de wasemkap aan de beugels 7.1 en centreer hem op de verticale lui. - Draai van onder de kap aan de schroeven 12d om de wasem-kaprecht te hangen.

Aansluitingen
LUCHTUITGANG - AANZUIIGENDE UITVOERING
Voor de installmentie van de Aanzuigende Uitvoering de Kap aansluiten op de uitgaande leiding met behulp van een onbuigzame of buigzame buis van 150 of 125mm , de keuze worden overgelaten aan de installerateur.
- Voor de aansluiting van 125mm , de reductieflens 9 op de uitgang van de behuizing van de kap schuiven en de vergrottingsring 10 120 - 125mm op de flens.
- Maak de buis vast met geschikte slangbeugelstrips. Het benodigde materiaaal is nicht bijgeleverd.
- Verwijder eventuale actieve koolstof geurfilters.

LUCHTUITLAAT FILTERVERSIE
- Druk het luchtuitlaatverbindingstuk 15 met kracht op de luchtuiat van de wasemkap.
- Verzeker uervaan dat de geurfilters met actieve koolstof geinstalleerd zich.

- Sluit de wasemkap aan op de netspanning met een tweepolige schakelaar ertussen met een opening tussen de contacten van tenminste 3mm .
- Verwijder de vetfilters (zie par. "Onderhoud") en verzeker uervaan dat de stekker van de voedingskabel goed in de contactdoos van de afzuigkap is gestoken.

Montage van de schouw
Bovenstuk van de schouw
- De twee lijnten enigszins openen, ze vasthaken darüber de beugels 7.2.1 en ze weiter zo ver möglichsl sluiten.
- Aan de zijkant aan de beugel bevestigen met de 4 bijgeleverde schroeven 12c (2,9 x 9,5).
Onderstuk van de schouw
- De twee lijplaten van de schouw enigszins openen, ze vasthakenussen het bovenstuk van de schouw en de wand en zeeweer zo ver möglichk sluiten.
- Bevestig het onderstuk aan de zijkanten aan de wasemkap met 2 van de bijgeleverde schroeven 12c (2,9 x 9,5).
- Voor de filterversie de richtingsroosters 8a - 8b in de behui-zingenplaatsen, zodanig dat de richtingssymbolen maar de bo-venkant enaar de voorkant van de wasemkap zich gewicht. Verzeker u ervan dat ze correct in het verbindingsstuk 15 zit-ten.


L Lichten Hiermee schakelt u de verlichting aan en uit
M Motor Hiermee schakelt u de afzuigmotor aan en uit
V Snelheid Instelling van de werkingsnelheid:
- Minimumsnelheid, geschikt voor een continue en zeer stille luchtverversing,als er weinig kookdampen+zijn.
2.Gemiddelde snelheid, geschikt voor de meeste gebruiksomstandigheden, gezien de uitstekende verhouding tussen de hoeveelheid behandelde lucht en het geluidsniveau. - Maximumsnelheid, geschikt om de grootste kookdampen gegen te gaan, ook voor langerearend.
Vetfilters
REINIGING VAN DE ZELFDRAGENDE METALEN VETFILTERS
- De filters要去en eens in de 2 maanden of, bij bijzonder intensief gebruik, vaker gereinigd worden, en{kunnen ook in de vaatwasmachine worden gewassen.
- Verwijder de filtersën voor een door ze waar de achterkant van de groep te duwen en ze tegelijkertijd omlaag te trekken.
- Was de filters en vermijd hierbij ze te buigen, en LAST zedrogen alvorens ze terug te plaatsen.
- Plaats de vetfilterstering en let er hierbij op dat de handgreep zichtaar blijft.

Geurfilter (filterversie)
De filters können nicht gewassen en nicht geregenererd worden en dieren bij gebruik van de kap tenminste eens in de 4 maanden of, bij bijzonder intensief gebruik, vaker te worden verrangen.
VERVANGING FILTER MET ACTIEVE KOOLSTOF
- Verwijder de vetfilters.
- Verwijder de verzadigde geurfilters met actieve koolstof, zoals aangegeven (A).
Monteer de nouvelle filters (B). - Plaats de vetfilters terug.

Verlichting
VERVANGING VAN DE LAMPEN
Gloeilampen van 40 W
- Verwijder de metalen vetfilters.
- Schroef de lampen los en verrang ze door neue lampen met verzelfde eigenschappen.
- Plaats de metalen vetfilters terug.

SimpelGids