CHIMNEY HOOD - Cappa da cucina RANGEMASTER - Manuale utente e istruzioni gratuiti
Trova gratuitamente il manuale del dispositivo CHIMNEY HOOD RANGEMASTER in formato PDF.
Scarica le istruzioni per il tuo Cappa da cucina in formato PDF gratuitamente! Trova il tuo manuale CHIMNEY HOOD - RANGEMASTER e riprendi in mano il tuo dispositivo elettronico. In questa pagina sono pubblicati tutti i documenti necessari per l'utilizzo del tuo dispositivo. CHIMNEY HOOD del marchio RANGEMASTER.
MANUALE UTENTE CHIMNEY HOOD RANGEMASTER
CONSIGLI E SUGGERIMENTI 3
CARATTERISTICHE 4
INSTALLAZIONE 5
USO 8
MANUTENZIONE 9
INDEX
EN
RECOMMENDATIONS AND SUGGESTIONS 10
CHARACTERISTICS 11
INSTALLATION 12
USE 15
MAINTENANCE 16
SOMMAIRE
FR
CONSEILS ET SUGGESTIONS 17
CHARACTERISTIQUES 18
INSTALLATION 19
UTILISATION 22
ENTRETIEN 23
INHALTSVERZEICHNIS
DE
Questo libretto di istruzioni per l'uso è previsto per più versioni dell'apparecchio. É possibile che siano descritti singoli particolari della dotazione, che non riguardano il Vostro apparecchio.
INSTALLAZIONE
Il produttore declina qualsi asi responsabilita per danni dovuti ad installmentione non corretta o non conforme alle regole dell'arte.
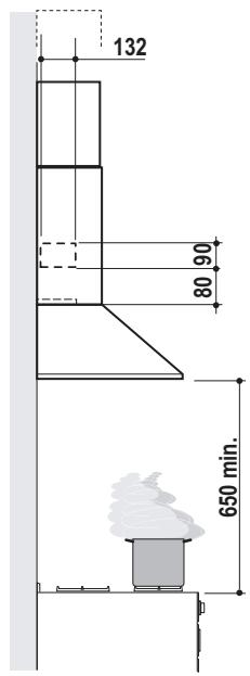
- La distanza minima di sicurezza tra il Piano di cottura e la Cappa deve essere di 650 mm.
- Verificare che la tensione di rete corrisponda a quella riportata nella targhetto posta all'interno della Cappa.
- Per Apparecchi in Classe I' accertarsi che l'impiano elettrico domestico garantisce un corretto scarico a terra.
- Collegare la Cappa all'uscita dell'aria aspirata con tubazione di diametro pari o superiore a 120 mm. Il percorso della tubazione deve essere il più breve possibile.
Non collegare la Cappa a condotti di scarico dei fumi prodotti da combustione (caldaie, caminetti, ecc.).
- Nel caso in cui nella stanza vengano utilizzati sa la Cappa che appearecchi non azionati da energia elettrica (ad esempio appearecchi utilizzatori di gas), si deve provvedere ad una aerazione sufficiente dell'ambiente. Se la cucina ne fosse sprowvista, praticare un'apertura che comunichi con l'esterno, per garantire il richiamo d'aria pulita.
USO
- La Cappa è stata progettata esclusivamente per uso domestico, per abbattere gli odori della cucina.
NonfaremaiusoimpropriodellaCappa. - Non lasciare fiamme libero a forte intensità molto la Cappa in funzione.
- Regolare sempre le fiamme in modo da evitare una evidente fuoriuscita laterale delle stesse rispetto al fondo delle pentole.
- Controllare le friggitrici durante l'uso: l'olio surriscaldato potrebbe inflammarsi.
Non preparare alimenti flambé sotto la cappa da cucina; pericolo d'incendio. - Questo appearecchio non deve essere utilizzato da persone (bambini inclusi) con ridotte capacità psichiche, sensoriali o mentali, oppure da personaenza esperienza e conoscenza, a meno che non siano controllati o struitti all'uso dell'apparecchio da persone responsabili della loro sicurezza.
- I bambini devono essere supervisionati per assicurarsi che non giochino con l'apparecchio.
MANUTENZIONE
- Prima di procedere a qualsiasi operazione di manutenzione, disinserire la Cappa togliendo la spina elettrica o spegnendo l'interruttore generale.
- Effettuare una scrupolosa e tempestiva manutenzione dei Filtri secondo gli intervalli consigliati.
- Per la pulizia delle superfici della Cappa è sufficiente utilizzato un panno umido e detersivo liquido neutro.
Il significato sul prodotto o sulla confezione indica che il prodotto non deve essere considerato come un normale rifiuto domestico, ma deve essere portato nel punto di raccolta appropriato per il riciclaggio di apparecchiature elettriche ed elettroniche. Provedendo a smaltire questo prodotto in modo appropriato, si contribuisce a evitare potenziali consequences negative per l'ambiente e per la salute, che potrebbero derivare da uno smallimento inadaguato del prodotto. Per informazioni più dettagliate sul riciclaggio di quello prodotto, contattare l'ufficio comunale, il servizio locale di smaltimento rifiuti o il negazio in cui è stato acquistato il prodotto.



Ingombro



Componenti
| Rif. | Q.tà | Componenti di Prodotto |
| 1 | 1 | Corpo Cappa completo di: Comandi, Luce, Filtri, Moto-re |
| 2 | 1 | Camino Telescopico formato da: |
| 2.1 | 1 | Camino Superiore |
| 2.2 | 1 | Camino Inferiore |
| 8a | 1 | Griglia direzionata Destra |
| 8b | 1 | Griglia direzionata Sinistra |
| 9 | 1 | Flangia di Riduzione ø 150-120 mm |
| 10 | 1 | Anello di Maggiorazione ø 120-125 mm |
| 15 | 1 | Raccordouscita Aria |
| Rif. | Q.tà | Componenti di Installazione |
| 7.1 | 2 | Staffe Fissaggio Corpo Cappa |
| 7.2.1 | 2 | Staffe Fissaggio Camino Superiore |
| 11 | 8 | Tasselli |
| 12a | 8 | Viti 4,2 x 44,4 |
| 12c | 6 | Viti 2,9 x 9,5 |
| 12d | 2 | Viti M4 x 25 |
| Q.tà | Documentazione | |
| 1 | Libretto Istruzioni |

Foratura Parete e Fissaggio Staffe

Tracciare sulla Parete:
- una linea Verticale fino al soffitto o al limite superiore, al centro della zona prevista per il montaggio della Cappa;
- una linea Orizzontale a: 650~mm min. sobre il Piano di Cottura, per installatione alla Fondale; alla quota H (H=altezza della parte in vista del Fondale), per installatione con Fondale.
- Appoggiare come indicate la Staffa 7.2.1 a 1-2 mm dal soffitto o dal limite superiore, allineando il suo centro (intagli) sulla linea Verticale di riferimento.
- Segnare i centri dei Fori della Staffa.
- Appoggiare come indicate la Staffa 7.2.1 a X mm sotto la prima staffa (X = altezza Camino Superiore in dotazione), allineando il suo centro (intagli) sulla linea Verticale di riferimento.
- Segnare i centri dei Fori della Staffa.
- Appoggiare come indicato, la Staffa 7.1 a 109,5 mm alla linea Verticale di riferimento, e 190 mm sopra la linea Orizzontale di riferimento.
- Segnare i centri dei Fori della Staffa.
Ripeterequestaoperazionedallaparteopposta.
FONDALE (OPZIONALE)
Il Fondale va montato prima di montare il Corpo Cappa e, se si desidera fissarlo alla parete sua superioremente che inferiormente, è necessario montarlo alla giusta altezza, prima del montaggio delle basi. Essendo esta operazione complessa va effettuata solamente dall'installatore della cucina o da personale competente che conosca tutte le dimensioni finali dei mobili. Limitandosi al solo fissaggio superiore, procedere come segue:
- Appoggiare il Fondale sulla base inserendo la faldina inferiore tra il piano superiore e la pa rete, centrandolo sulla linea Verticale di riferimento.
- Segnare i centri dei due fori della faldina superiore.
- Forare 8mm i punti segnati.
- Inserire i tasselli 11 nei fori.
- Fissare le Staffe, utilizingando le Viti 12a (4,2 x 44,4) in dotazione.
-
Se presente, fissare il Fondale, utilizzando le Viti 12a (4,2 x 44,4) in dotazione.
-
Avvitre sulle Staffe 7.1, le 2 Viti 12d in dotazione.
- Agganciare il Corpo Cappa alle Staffe 7.1, centrandolo sulla linea verticale.
- Agire sulle Viti 12d, dal sotto della Cappa, per livellare il Corpo Cappa.

Connessioni
USCITA ARIA VERSIONE ASPIRANTE
Per installatione in Versione Aspirante collegare la Cappa alla tubazione di uscita per mezzo di un tubo rigido o flessibile di 150 o 125mm , la cui scelta è lasciata all'installatore.
- Per collegamento con tubo 125mm , inserire la Flangia di riduzione 9 sull'Uscita del Corpo Cappa e l'anello di maggiorazione 10 120 -125 sulla Flangia.
- Fissare il tubo con adeguate fascette stringitubo. Il materiale occorrente non è in dotazione.
- Togliere eventuali Filtri Antiodore al Carbone attivo.

USCITA ARIA VERSIONE FILTRANTE
- Applicare a pressione il Raccordo Uscita Aria 15 sull'Uscita del Corpo Cappa.
- Assicurarsi della presenza del Filtro Antiodore al Carbone attivo.

CONNECTION ELETTRICA
- Collegare la Cappa all'Alimentazione di Rete interponendo un Interruttore bipolare con aperture dei contatti di almeno 3mm .
- Rimuovere i Filtri antigrasso (vedi par. "Manutenzione") e assicurarsi che il connettore del Cavo di alimentazione sia correttamente inserito nella presa dell'Aspiratore

Montaggio Camino
Camino superiore
- Allargare leggermente le due falde laterali, agganciarle dietro le Staffe 7.2.1 e richiuderle fino a battuta.
- Fissare lateralmente alle Staffe con 4 Viti 12c (2,9 x 9,5) in dotazione.
Camino inferiore
- Allargare leggermente le due falde laterali del Camino, agganciarle tra il Camino superiore e la parete e richiuderle sono a battuta.
- Fissare lateralmente la parte inferiore al Corpo Cappa con 2 Viti 12c (2,9 x 9,5) in dotazione.
- Per la Versione Filtrante con Griglie per uscita laterale, aplicare le Griglie direzionate 8a - 8b nelle apposite sedi, in modo che i symboli direzionali risultino orientati versuso l'alto e il fronte della Cappa. Assicurarsi che risultino inserte correttamente nel Raccordo 15.


L Luci Accende e spegne l'Impianto di Illuminazione.
M Motore Accende e spegne il motore Aspirazione.
V Velocità Determina la velocità di esercizio:
- Velocità minima, adatta ad un ricambio d'aria continuo particolaremente silenzioso, in presenza di pochi vapori di cottura.
- Velocità media, adatta alla maggior parte delle condizioni d'uso, dato l'ottimo rapporto tra portata d'aria trattata e livello sonoro.
- Velocità massima, adatta a fronteggiare le massime emissioni di vapore di cottura,anche per tempi prolongati.
Filtri antigrasso
PULIZIA FILTRI ANTIGRASSO METALLICI AUTOPORTANTI
- Sono lavabilianche in lavastoviglie, e necessitano di essere lavati ogni 2 mesi circa di utilizzo o più frequently, per un uso particularmente intenso.
- Togliere i Filtri uno alla volta, spingendoli verso la parte posteriore del gruppo e tirando contemporaneamente verso il basso.
- Lavare i Filtri evitando di piegarli, e lasciarli asciugare prima di rimontarli.
- Rimontarli facendoattenzione a mantenere la maniglia verso la parte visibile esterna.

Filtri antidore al Carbone attivo (Versione Filtrante)
Il Filtro antidore al Carbone attivo non è lavabile e non è rigenerabile, va sostituito anni 4 mesi circa di utilizzo o più frequentlymente, per un uso particolaremente intenso.
SOSTITUZIONE
- Togliere i Filtri antigrasso.
- Rimuovere i Filtri antidore al Carbone attivo saturi, come indicato (A).
- Montare i nuovi Filtri, come indicato (B).
Rimontare i Filtri antigrasso.

Illuminazione
SOSTITUZIONELAMPADE
Lampade a incandescenza da 40 W
- Togliere i Filtri antigrasso metallici.
- Svitare le Lampade e sostituirle con nuove di uguali caratteristiche.
- Rimontare i Filtri antigrasso metallici.

ManualeFacile