MODE D'EMPLOI W4600H ELECTROLUX LAUNDRY SYSTEMS
\section*{Caracteristiques et points forts}
Vitesse elevée pour un essorage efficace
- Clarus Control® entièrement programmable, à microprocesseur avec 192 programmes pré-établis
- Grande ouverture de la porte pour un chargement/ déchargement facile
- Préparé pour 13 produits liquides
- Huit raccords d'alimentation lessive liquide
- Acier inoxydable dans toutes les parties essentielles, pour un niveau de protection contre la rouille élevé
- Panneau avant en acier inoxydable et panneaux latéraux points par poudrage
Chauffage à la vapeur directe
- Chauffage électric (uniquement W4600H)
- Moteur à fréquence contrôle pour une polyvalence maximale
- Lubrification des garnitures des roulements
- Conçu pour un entretien et une maintenance facies
- Puissance d'essorage correcte garantie avec SuperBalance™

Principales options
- Inclinaison vers l'avant ou inclinaison avant / arrêt pour une action de renversement totalement contrôleé
- Isolation thermique/phonique, <70 dB(A)
- Robinet prise de bain avec niveau
- Double vanne de vidange pour récapération d'eau/solvant
- Distributeur de produits à cinq entées
- Troisième vanne d'eau
- Vannes d'eau grandeaille (DN 50/2") (ne concerne pas W4600H)
- Système de pesage intégré (IWS)
- Lubrification des garnitures de roulements avec averissement en cas de réservoir vide
- Connexion pour systèmes de nettoyage intelligents (DMIS)
Photo non contractuelle
| Caractéristiques techniques principales | W4600H | W4850H | W41100H |
| Capacité max. | kg/lb | 65/135 | 90/200 | 120/250 |
| Volume du tambour | litres | 600 | 850 | 1100 |
| diamètre | ø mm | 980 | 1220 | 1220 |
| Essorage | rpm | 800 | 720 | 663 |
| Facteur G | | 350 | 350 | 300 |
| Possibilités de chauffage | vapeur | x | x | x |
| sans chauffage | x | x | x |
| électricité | 36 ou 54 | - | - |
| Consommation, Programme "Normal" à 60 °C * | Vapeur** | El. 36 kW | El. 54 kW | | |
| Temps total (froide+chaude/froide) | min | 44/49 | 48/- | 46/- | 45/50 | 45/50 |
| Consommation d'eau (froide/chaude) | litres | 555/92 | 555/92 | 555/92 | 713/125 | 850/153 |
| Consommation d'énergie (moteur/chauffage) | kWh | 1.2/- | 1.2/4.7 | 1.2/4.7 | 2.3/- | 2.4/- |
| Consommation de vapeur (froide/chaude) | kg | 7 | - | - | 10 | 12 |
| Consommation de vapeur (froide) | kg | 14 | - | - | 19 | 23 |
| * Température de l'eau froide: 15°C, de l'eau chaude: 65°C. |
| ** Vapeur à 300-400 kPa. |
| Branchement électrique* | W4600H | W4850H | W41100H |
| Chauffage El. | Tension | | | |
| 230V 3AC 50 Hz kW(A) | 38 (100) | - | - |
| 230V 3AC 50 Hz kW(A) | 56 (160) | - | - |
| 240V 3AC 60 Hz kW(A) | 38 (100) | - | - |
| 240V 3AC 60 Hz kW(A) | 56 (160) | - | - |
| 400-415V 3N AC 50 Hz kW(A) | 38 (63) | - | - |
| 400-415V 3N AC 50 Hz kW(A) | 56 (100) | - | - |
| Vapeur ouSans chauffage | 200V 3AC 60 Hz kW(A) | - | 6.7 (35) | 5.3 (35) |
| 230V 3AC 50Hz kW(A) | 4 (16) | 6.7 (25) | 5.3 (25) |
| 230V 3AC 60Hz kW(A) | 4 (16) | 6.7 (20) | 5.3 (20) |
| 400-415V 3N AC 50 Hz kW(A) | 4 (16) | 6.7 (16) | 5.3 (16) |
| Raccordement d'eau, de vapeur et d'air comprimé | | | |
| Vannes d'admission d'eau | DN | 32 | 40 | 40 |
| Pression d'eau rec. | kPa | 200-600 | 200-600 | 200-600 |
| Limites de fonctionnement de la valve d'admission d'eau | kPa | 50-1000 | 50-1000 | 50-1000 |
| Capacité à 300 kPa | l/min | 150 | 200 | 200 |
| Vanne de vidange | ø mm | 110 | 110 | 110 |
| Débit de la vidange | l/min | 400 | 400 | 400 |
| Vanne de vapeur | DN | 20 | 32 | 32 |
| Pression de vapeur rec. | kPa | 300-600 | 300-600 | 300-600 |
| Limites de fonctionnement de la vanne vapeur | kPa | 50-800 | 50-800 | 50-800 |
| Air comprimé | DN | 6 | 6 | 6 |
| Pression d'air | kPa | 500-700 | 500-700 | 500-700 |
| Consommation d'air | l/h | 20 | 20 | 20 |
| Efforts au sol | | | |
| Fréquence des efforts dynamiques | Hz | 12.7 | 12.0 | 11.1 |
| Charge maximal au sol lors de l'essorage | kN | 15.9±6.4 | 22±7.3 | 24±7.3 |
| Niveau sonores | | | |
| Niveau sonore | dB(A) | 76 | 73 | 73 |
| Niveau sonore avec isolation | dB(A) | < 70 | < 70 | < 70 |
| Déperdition calorifique | | | |
| % de la puissance installée, max 90° | 6 | 6.7 | 6.8 |
| Emballage | | | |
| net, kg | 1380 | 2200 | 2300 |
| Volume emballé | m³ | 5.7 | 7.6 | 8.4 |
- Autres tensions disponibles, voir manuel d'installation.
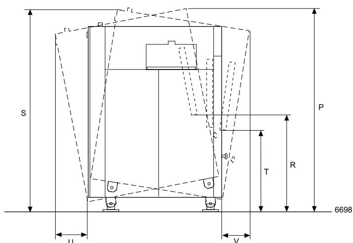
| Dimensions en mm | W4600H | W4850H | W41100H |
| A | Largeur | 1390 | 1640 | 1640 |
| B | Profondeur | 1585 | 1635 | 1850 |
| C | Hauteur | 2015 | 2230 | 2230 |
| D | | 910 | 995 | 995 |
| E | | 300 | 380 | 380 |
| F | | 1865 | 2135 | 2135 |
| G | | 270 | 1070 | 1070 |
| H | | 660 | 830 | 830 |
| I | | 525 | 635 | 635 |
| K | | 425 | 445 | 445 |
| L | | 960 | 1140 | 1140 |
| M | | 1425 | 1660 | 1660 |
| N | | 420 | 435 | 435 |
| O | | 435 | 820 | 820 |
| P | | 2200 | 2410 | 2400 |
| R | | 1120 | 1175 | 1160 |
| S | | 2225 | 2480 | 2480 |
| T | | 935 | 960 | 955 |
| U | | 300 | 285 | 240 |
| V | | 325 | 400 | 335 |
1 Bandeau de commande
2 Ouverture de la porte 700 (W4850H, W41100H), 535 (W4600H)
3 Raccordement d'arrivalde du détergent, poudre (option)
4 Raccord eau froide
5 Raccord eau chaude
6 Troisième raccord eau (option)
7 Raccord de vapeur
8 Vidange
9 Branchement électrique
10 Air compré
11 Alimentation exter en liquides, 6 pieces 0 10, 1 piece 0 16 et 1 piece 0 20
12 Raccord eau, injecteur pour l'alimentation en lessive (option)

Avant

Côté droit

Arrière

Mouvement pendant le
basculement
Principales Options
- Dispositif de basculement vers l'avant ou avant / arrière pour décharger facilement, avec un tambour qui se transforme en panier.
- Isolation sonore / thermique ; les bruits sont inférieurs à 70 dB(A).
- Robinet prise de bain avec niveau - permet de prélever des échantillons de bain de lavage.
- Récupération d'eau/solvant -deux vannes de vidange permettant de récapierer l'eau de rinçage et de la réutiliser pour le lavage.
- Injecteur d'alimentation cinq compartments (5 x 2 litres), cote croit ou à l'avant. (uniquement W4850H, W41100H).
- Injecteur d'alimentation cinq compartments (5 x 1 litre), monté sur la partie avant (uniquement W4850H, W41100H), monté sur la partie avant ou laterale (uniquement W4600H).
- Lubrification des garnitures de roulements avec averissement en cas de réservoir vide.
Vannes d'eau grande taille (DN 50/2") (ne concerne pas W4600H)
- Connexion pour systèmes de nettoyage intelligents (DMIS).
- Troisième vanne d'eau - vanne d'admission d'eau à commande électrique pour l'eau dure, par exemple.
- Détail de connexion: modèle vapeur.
- Détail de connexion: modèle à 2 prises.
- Détail de connexion: modèle à 3 prises.
- Système de pesage intégré (IWS), indique le poids de la charge sur l'affichage du programme.
- Modèle combiné: vapeur et électricité - permet de désirer entre chauffage électricque ou chauffage à vapeur à l'aide d'un commutateur (uniquement W4600H).
- Entrée d'eau via pompe-entrée d'eau supplémentaire pour l'admission d'eau contrôleé par une pompe d'un système de récapération.
Accessoires
Kit de connexion au réseau CMIS (Certus Management Information Systems). CMIS fournit des statistiques essentielles, codes d'erreur, périodes de maintenance, imprime des tickets, etc.

CMIS peut être installé sur les laveuses-essoreuses équipées de Clarus Control, sur les séchoirs à tambour équipés de Selecta Control et sur les repasseuses équipées d'un système de commandelectronique. Pour acceder aux données statistiques et les visualiser, il suffit d'un PC normal.