PLENUMS - Grille d'aération UNELVENT - Notice d'utilisation et mode d'emploi gratuit
Retrouvez gratuitement la notice de l'appareil PLENUMS UNELVENT au format PDF.
| Intitulé | Description |
|---|---|
| Type de produit | Plenum de ventilation UNELVENT |
| Caractéristiques techniques principales | Conception en tôle galvanisée, isolation acoustique, plusieurs dimensions disponibles |
| Dimensions approximatives | Variantes de 600x600 mm à 1200x600 mm |
| Poids | Selon la taille, de 10 kg à 25 kg |
| Compatibilités | Compatible avec les systèmes de ventilation UNELVENT et autres marques standards |
| Fonctions principales | Distribution uniforme de l'air, réduction du bruit, amélioration de l'efficacité énergétique |
| Entretien et nettoyage | Nettoyage régulier recommandé, vérification des filtres et des conduits |
| Pièces détachées et réparabilité | Disponibilité de pièces de rechange, facilité de démontage pour maintenance |
| Sécurité | Conforme aux normes de sécurité en vigueur, protection contre les surchauffes |
| Informations générales | Produit conçu pour une utilisation dans des environnements résidentiels et commerciaux |
FOIRE AUX QUESTIONS - PLENUMS UNELVENT
Questions des utilisateurs sur PLENUMS UNELVENT
0 question sur cet appareil. Repondez a celles que vous connaissez ou posez la votre.
Poser une nouvelle question sur cet appareil
Téléchargez la notice de votre Grille d'aération au format PDF gratuitement ! Retrouvez votre notice PLENUMS - UNELVENT et reprennez votre appareil électronique en main. Sur cette page sont publiés tous les documents nécessaires à l'utilisation de votre appareil PLENUMS de la marque UNELVENT.
MODE D'EMPLOI PLENUMS UNELVENT
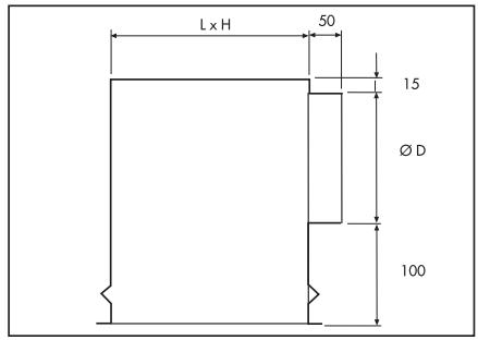
PLENUMS POUR GRILLES A raccordement circulaire arrriere

- Construction acier galvanisé
- Piquage de raccordement circulaire rivété
Fixation des grilles par emboitement - Pour grilles GAO, GAF, GRM, GLF, PER et GRE
- Autres dimensions : nous consulter
- Isolation interieure par mousse de polyéthylène M1 épaisseur 5mm (série PGR)

Serie PGR
| H(mm) | L = 200 mm | ||
| Récurrence | Code | Ø | |
| 100 | PGR 200x100 | 872 732 | 100 |
| 200 | PGR 200x200 | 872 750 | 160 |
| H(mm) | L = 300 mm | ||
| Récurrence | Code | Ø | |
| 100 | PGR 300x100 | 872 733 | 100 |
| 150 | PGR 300x150 | 872 742 | 160 |
| 200 | PGR 300x200 | 872 751 | 200 |
| 300 | PGR 300x300 | 872 759 | 250 |
| H (mm) | L = 400 mm | ||
| Récurrence | Code | Ø | |
| 100 | PGR 400x100 | 872 734 | 100 |
| 150 | PGR 400x150 | 872 743 | 160 |
| 200 | PGR 400x200 | 872 752 | 200 |
| 300 | PGR 400x300 | 872 760 | 250 |
| 400 | PGR 400x400 | 872 766 | 250 |
| H(mm) | L = 500 mm | ||
| Récurrence | Code | Ø | |
| 100 | PGR 500x100 | 872 735 | 100 |
| 150 | PGR 500x150 | 872 744 | 160 |
| 200 | PGR 500x200 | 872 753 | 200 |
| 300 | PGR 500x300 | 872 761 | 315 |
| 400 | PGR 500x400 | 872 767 | - |
| 500 | PGR 500x500 | 872 774 | 315 |
| H(mm) | L = 600 mm | ||
| Référence | Code | Ø | |
| 100 | PGR 600x100 | 872 736 | 100 |
| 150 | PGR 600x150 | 872 745 | 160 |
| 200 | PGR 600x200 | 872 754 | 200 |
| 300 | PGR 600x300 | 872 762 | 315 |
| 400 | PGR 600x400 | 872 768 | 315 |
| 500 | |||
| 600 | PGR 600x600 | 872 780 | 500 |
| H(mm) | L = 800 mm | ||
| Référence | Code | Ø | |
| 100 | PGR 800x100 | 872 738 | 2 x 100 |
| 150 | PGR 800x150 | 872 747 | 160 |
| 400 | PGR 800x400 | 872 770 | 400 |
| 600 | PGR 800x600 | 872 782 | 500 |
| 800 | PGR 800x800 | 872 789 | 630 |
| H(mm) | L = 1000 mm | ||
| Référence | Code | Ø | |
| 100 | PGR 1000x100 | 872 740 | 2 x 100 |
| 150 | PGR 1000x150 | 872 749 | 2 x 160 |
| 400 | PGR 1000x400 | 872 773 | 400 |
| 600 | PGR 1000x600 | 872 784 | 500 |
| 800 | PGR 1000x800 | 872 791 | 630 |
| 1000 | PGR 1000x1000 | 872 794 | 630 |
Série PGRI - isolée
| L = 200 mm | ||
| Référence | Code | Ø |
| PGRI 200x100 | 878 419 | 100 |
| PGRI 200x200 | 870 331 | 160 |
| L = 300 mm | ||
| Référence | Code | Ø |
| PGRI 300x100 | 878 420 | 100 |
| PGRI 300x150 | 878 422 | 160 |
| PGRI 300x200 | 878 497 | 200 |
| PGRI 300x300 | - | 250 |
| L = 400 mm | ||
| Référence | Code | Ø |
| PGRI 400x100 | 878 421 | 100 |
| PGRI 400x150 | 878 423 | 160 |
| PGRI 400x200 | 878 425 | 200 |
| PGRI 400x300 | 870 093 | 250 |
| PGRI 400x400 | 870 010 | 250 |
| L = 500 mm | ||
| Référence | Code | Ø |
| PGRI 500x100 | 878 493 | 100 |
| PGRI 500x150 | 878 424 | 160 |
| PGRI 500x200 | 878 426 | 200 |
| PGRI 500x500 | 878 426 | 315 |
| L = 600 mm | ||
| Référence | Code | Ø |
| PGRI 600x100 | 878 494 | 100 |
| PGRI 600x150 | 878 495 | 160 |
| PGRI 600x200 | 878 427 | 200 |
| PGRI 600x300 | 878 429 | 315 |
| PGRI 600x400 | - | 315 |
| L = 800 mm | ||
| Référence | Code | Ø |
| PGRI 800x100 | - | 2 x 100 |
| PGRI 800x150 | 878 496 | 160 |
| PGRI 800x400 | - | 400 |
| PGRI 800x600 | - | 500 |
| PGRI 800x800 | - | 630 |
| L = 1000 mm | ||
| Référence | Code | Ø |
| PGRI 1000x100 | - | 2 x 100 |
| PGRI 1000x150 | 870 101 | 2 x 160 |
PLENUMS POUR GRILLES
A raccordement circulaire létéral

- Construction acier galvanisé
- Piquage de raccordement circulaire rivété
Fixation des grilles par emboitement - Pour grilles GAO, GAF, GRM, GLF, PER et GRE
- Autres dimensions : nous consulter
- Isolation interieure par mousse de polyéthylène M1 épaisseur 5mm

Série PGL
| H(mm) | L = 200 mm | ||
| Référence | Code | Ø | |
| 100 | PGL 200x100 | 878 393 | 125 |
| 200 | PGL 200x200 | - | 125 |
| H(mm) | L = 300 mm | ||
| Récurrence | Code | Ø | |
| 100 | PGL 300x100 | 878 394 | 125 |
| 150 | PGL 300x150 | 878 396 | 200 |
| 200 | PGL 300x200 | 878 483 | 250 |
| 300 | PGL 300x300 | 870 007 | 250 |
| H(mm) | L = 400 mm | ||
| Récurrence | Code | Ø | |
| 100 | PGL 400x100 | 878 395 | 160 |
| 150 | PGL 400x150 | 878 397 | 200 |
| 200 | PGL 400x200 | 878 399 | 250 |
| H (mm) | L = 500 mm | ||
| Récurrence | Code | Ø | |
| 100 | PGL 500x100 | 878 479 | 125 |
| 150 | PGL 500x150 | 878 398 | 200 |
| 200 | PGL 500x200 | 878 400 | 250 |
| 300 | |||
| 400 | |||
| 500 | PGL 500x500 | - | 315 |
| H(mm) | L = 600 mm | ||
| Référence | Code | Ø | |
| 100 | PGL 600x100 | 878 480 | 125 |
| 150 | PGL 600x150 | 878 481 | 200 |
| 200 | PGL 600x200 | 878 401 | 250 |
| 300 | PGL 600x300 | 878 403 | 315 |
| 400 | PGL 600x400 | 870 055 | 315 |
| 500 |
| 600 |
| H(mm) | L = 800 mm | ||
| Récurrence | Code | Ø | |
| 100 | PGL 800x100 | - | 200 |
| 150 | PGL 800x150 | 878 482 | 200 |
| H(mm) | L = 1000 mm | ||
| Récurrence | Code | Ø | |
| 100 | PGL 1000x100 | - | 200 |
| 150 | PGL 1000x150 | - | 200 |
Série PGLI - isolée
| L = 200 mm | ||
| Référence | Code | Ø |
| PGLI 200x100 | 878 406 | 125 |
| PGLI 200x200 | 870 122 | 125 |
| L = 300 mm | ||
| Référence | Code | Ø |
| PGLI 300x100 | 878 407 | 125 |
| PGLI 300x150 | 878 409 | 200 |
| PGLI 300x200 | 878 490 | 250 |
| PGLI 300x300 | - | 250 |
| L = 400 mm | ||
| Référence | Code | Ø |
| PGLI 400x100 | 878 408 | 160 |
| PGLI 400x150 | 878 410 | 200 |
| PGLI 400x200 | 878 412 | 250 |
| PGLI 400x300 | - | 250 |
| PGLI 400x400 | 870 226 | 250 |
| L = 500 mm | ||
| Référence | Code | Ø |
| PGLI 500x100 | 878 486 | 125 |
| PGLI 500x150 | 878 411 | 200 |
| PGLI 500x200 | 878 413 | 250 |
| PGLI 500x300 | 878 492 | 300 |
| PGLI 500x500 | - | 315 |
| L = 600 mm | ||
| Référence | Code | Ø |
| PGLI 600x100 | 878 487 | 125 |
| PGLI 600x150 | 878 488 | 200 |
| PGLI 600x200 | 878 414 | 250 |
| PGLI 600x300 | 878 416 | 315 |
| PGLI 600x400 | 870 239 | 315 |
| PGLI 600x600 | - | 500 |
| L = 800 mm | ||
| Référence | Code | Ø |
| PGLI 800x100 | - | 200 |
| PGLI 800x150 | 878 489 | 200 |
| L = 1000 mm | ||
| Référence | Code | Ø |
| PGLI 1000x100 | - | 200 |
| PGLI 1000x150 | 870 108 | 200 |
Registre de réglage - Série VDR

- Registre de réglage à volets contrerotatifs
- Réglage manuel
Fixation par emboitement sur les grilles - Pour grilles GAO, GAF, GRM et GLF
- Autres dimensions : nous consulter

| H(mm) | L = 150 mm | |
| Récurrence | Code | |
| 100 | ||
| 150 | VDR 150x150 | - |
| 200 | ||
| H(mm) | L = 400 mm | |
| Référence | Code | |
| 100 | VDR 400x100 | 878 368 |
| 150 | VDR 400x150 | 878 370 |
| 200 | VDR 400x200 | 878 372 |
| 300 | VDR 400x300 | - |
| 400 | VDR 400x400 | 870 014 |
| H(mm) | L = 800 mm | |
| Référence | Code | |
| 100 | VDR 800x100 | 870 002 |
| 150 | VDR 800x150 | 878 465 |
| 200 | VDR 800x200 | 878 375 |
| 300 | VDR 800x300 | 878 377 |
| 400 | VDR 800x400 | 878 470 |
| L = 200 mm | |
| Référence | Code |
| VDR 200x100 | 878 366 |
| VDR 200x200 | 870 026 |
| L = 500 mm | |
| Référence | Code |
| VDR 500x100 | 878 462 |
| VDR 500x150 | 878 371 |
| VDR 500x200 | 878 373 |
| VDR 500x300 | 878 468 |
| L = 1000 mm | |
| Référence | Code |
| VDR 1000x100 | 870 001 |
| VDR 1000x150 | - |
| VDR 1000x400 | 878 471 |
| L = 300 mm | |
| Référence | Code |
| VDR 300x100 | 878 367 |
| VDR 300x150 | 878 369 |
| VDR 300x200 | 878 466 |
| L = 600 mm | |
| Référence | Code |
| VDR 600x100 | 878 463 |
| VDR 600x150 | 878 464 |
| VDR 600x200 | 878 374 |
| VDR 600x300 | 878 376 |
| VDR 600x400 | 878 469 |
Contre-cadres de fixation - Série CPG

- Construction acier galvanisé
- Pattes latérales à sceller dans la maconnerie
Fixation des grilles par emboitement - Pour les grilles GAO, GAF, GRM, GLF, PER et GRE/25
- Autres dimensions : nous consulter
| H (mm) | L = 150 mm | |
| Rémonce | Code | |
| 100 | ||
| 150 | CPG 150x150 | - |
| 200 | ||
| 300 | ||
| L = 200 mm | |
| Récurrence | Code |
| CPG 200x100 | 878 379 |
| CPG 200x200 | 872 798 |
| L = 300 mm | |
| Récurrence | Code |
| CPG 300x100 | 878 380 |
| CPG 300x150 | 878 382 |
| CPG 300x200 | 878 476 |
| CPG 300x300 | 870 025 |
| H(mm) | L = 400 mm | |
| Référence | Code | |
| 100 | CPG 400x100 | 878 381 |
| 150 | CPG 400x150 | 878 383 |
| 200 | CPG 400x200 | 878 386 |
| 300 | CPG 400x300 | - |
| 400 | CPG 400x400 | 870 030 |
| L = 500 mm | |
| Référence | Code |
| CPG 500x100 | 878 472 |
| CPG 500x150 | 878 384 |
| CPG 500x200 | 878 387 |
| CPG 500x300 | 878 478 |
| L = 600 mm | |
| Référence | Code |
| CPG 600x100 | 878 473 |
| CPG 600x150 | 878 474 |
| CPG 600x200 | 878 388 |
| CPG 600x300 | 878 390 |
| CPG 600x400 | 870 015 |
| H(mm) | L = 800 mm | |
| Référence | Code | |
| 100 | CPG 800x100 | 870 095 |
| 150 | CPG 800x150 | 878 475 |
| 200 | CPG 800x200 | 878 389 |
| 300 | CPG 800x300 | 878 391 |
| 400 | CPG 800x400 | - |
| 600 | CPG 800x600 | - |
| 800 | CPG 800x800 | 870 061 |
| L = 1000 mm | |
| Référence | Code |
| CPG 1000x100 | - |
| CPG 1000x150 | 870 090 |
| CPG 1000x200 | 878 477 |
| CPG 1000x300 | 878 392 |
| CPG 1000x400 | - |
| CPG 1000x600 | - |
| CPG 1000x800 | - |
Notice Facile