660110 INSERT - Insert de cheminée GODIN - Notice d'utilisation et mode d'emploi gratuit
Retrouvez gratuitement la notice de l'appareil 660110 INSERT GODIN au format PDF.
| Type de produit | Insert de cheminée |
|---|---|
| Caractéristiques techniques principales | Insert à bois avec rendement élevé, compatible avec les cheminées ouvertes |
| Alimentation | Bois de chauffage |
| Dimensions approximatives | Largeur : 60 cm, Hauteur : 50 cm, Profondeur : 40 cm |
| Poids | 150 kg |
| Compatibilités | Compatible avec les conduits de cheminée standards |
| Puissance nominale | 10 kW |
| Rendement énergétique | 80% |
| Fonctions principales | Chauffage, ambiance chaleureuse, réduction des émissions de particules |
| Entretien et nettoyage | Nettoyage régulier du foyer et du conduit, vérification des joints |
| Pièces détachées et réparabilité | Disponibilité de pièces de rechange auprès du fabricant |
| Sécurité | Conforme aux normes de sécurité en vigueur, protection contre la surchauffe |
| Informations générales | Garantie de 2 ans, installation recommandée par un professionnel |
FOIRE AUX QUESTIONS - 660110 INSERT GODIN
Téléchargez la notice de votre Insert de cheminée au format PDF gratuitement ! Retrouvez votre notice 660110 INSERT - GODIN et reprennez votre appareil électronique en main. Sur cette page sont publiés tous les documents nécessaires à l'utilisation de votre appareil 660110 INSERT de la marque GODIN.
MODE D'EMPLOI 660110 INSERT GODIN
INSERT « Réf. 660110»
NOTICE D'INSTALLATION ET D'UTILISATION
Attention pour éviter tout risque d'incendie, cet apparéil doit être installé dans les règes de l'art (D.T.U. 24.2) et conformément aux règes techniques rappelées dans la notice obligatoirement jointe à l' apparéil. Son installation doit être effectué par un professionnel ou une personne qualifiée.

Nous vous remercions de la confiance que vous nous avons temoignee en achetant un insert GODIN.
Votre appareil a ete concu, et longuement teste afin de vous assurer une totale satisfaction.
Il faudra cependant lui assurer une bonne installation et un raccordement à un conduit de cheminée bien adapté, capable d'assurer une dépression et un début suffisants.
Nous vous invitons à dire attentivement cette brochure et à en respecter les consignes.
Il est préférible, bien sur, que la mise en place soit exécutée par un professionnel de l'installation.
- Les connaissances des règles de l'art, des règles de sécurité et de la réglementation sont le gage du bon
fonctionnement de l'installation finale.
Le respect scrupuleux des instructions de la presente brochure et des règles de l'art stipulées dans les DTU 24-1 et 24-2 sont pour vous le gage d'une totale sécurité.
Si toutesis un cas particulier se presentait, n'hesitez pas à vous adresser à nos services techniques.
Une équipe de techniciens est à votre disposition pour vous conseiller.
LE CONDUIT DE CHEMINÉE
- Toujours respecter les regles en vigueur dans le pays où l'appareil est installé. En France, le système d'évacuation des produits de combustion doit être réalisé en conformité avec le DTU 24.1 de Férvrier 2006.
Sasser t dabd de la bonne qualite du conduit de chemine. Son roe est primordial. Il va condionner le rsiutat final en assurant l'alimentation du foyer en air primaire et extraire les gaz de combustion.
La plupart des désagrements que vous pourriez rencontres à l'utilisation sont liés à une défaillance du conduit de cheminée. Nous ne saurions trop insister sur ce point...
Il ne faut pas se contenter de se reférer aux résultats obtenus avec un precedent apparéil dont les besoin en air pouvaient être très différents.
- Une bonne cheminée doit être construite en matériel au peu conducteur de la chaleur et ne pas se refroidir facilement.
Le diametre minimal du conduit pour le fonctionnement en porte fermée peut etre de 150~mm sous reserve que le dimensionnement du conduit de fumee suivant la norme EN 13384.1 autorise cette dimension.Des le cas de cet appariel, nos conseillons l'utilisation d'un conduit ayant un diametre minimum interieur de 180~mm
Toute diminution de cette section, meme en sortie ne doit etre tolere, sous peine de reduire le debit de fumee, ce qui entrainerait des refoulements dans la piece au moment de I'ouverture de la porte.
La cheminée doit avoir son origine dans la pierce où est installé l'appareil. - Les clapets de tirage sont interdits.
Le conduit doit être parfaitement étanche.
Le conduit de fumée ou tubage utilisés doivent être désignés G, c'est-à-dire résistant au feu de cheminée). Les apparêls doivent être raccordés à des conduits désignés de 50^ de plus que la température déclarée pour l'appareil,quel que soit le mode raccordement.
Sa hauteur ne doit pas etre inferieure a 5 metres et it doit deboucher convenablement a l'air libre a 0,40 m au moins au-dessus du faitage ou de tout autre obstacle situé a moins de 8 metres du conduit. - Les dévoiements éventuels doivent être très couverts.
Le tirage doit etre compris entre 12 et 15 pascals en allure normale et doit chuter a 5 pascals environ au ralenti. En aucun cas il ne doit descendre en dessous de 12 pascals en allure normale sous peine de fonctionnement mediocre.
Si la dépression est trop importante, prévoir la pose d'un modéréur de tirage. Si la dépression est insuffisante, respecter les caractéristiques du conduit prescrites dans ce paragraphe.
Si la section du conduit est surdimentionnee, le volume a rechauffer est trop grand et le tirage ne s'établit pas normalement. Dans ce cas, il y lieu de prévoir le tubage du conduit avec un produit agreé bois/charbon.
Tout tubage doit être conformes au DTU 24.1. Son dimensionnement répond à des régles de calcul précises (norme EN 13384.1) que celui un professionnel est apte à définir.
Supprimer les poteries qui ne peuvent pas une section de sortie d'au moins 2.5dm^2
Il est recommendé qu'une trappe de ramonage bien etanche soit placée 50 cm environ au dessous de l'axe du tuyau de fumee.
Avant d'envisager le raccordement, il convient de s'assurer de la parfaite propre du conduit. Si nécessaire, effectuer un ramonage.
- Les appareils doivent être installés conformément aux specifications des D.T.U en vigueur, l'installation par un professionnel qualifié est recommandée. Toutes les réglementations nationales et locales doivent être respectées.
- Les extracteurs utilisés dans la même piece ou dans le même espace que l'appareil peuvent perturber dangereusement le fonctionnement de celui-ci.
Le fonctionnement simultané d'autres apparèils dans le même espace que l'appareil peut générer des perturbations de tirage.
- Ne jamais obstruer les entrées d'air prévues dans la piece. Les placer de telle façon que leurs obstructions soient difficilement réalisées, en effet l'appareil utilise de l'air qu'il préleve dans la piece et il convient d'assurer son alimentation par un apport extérieur suffisant.
- Ces appareils ne sont pas prévus pour être raccordés à un conduit multiple.
IMPORTANT :
Bien verifier que le sol a une capacité portante suffisante. Si nécessaire placer une plaque de répartition de charge, ou prendre toute mesure adequate nécessaire.
Si le sol est constitué de matériaux combustibles, il convient de le protégger convenablement à l'aide d'une plaque incombustible dépassant la face de l'appareil d'au moins 40 cm.
- Utiliser des tuyaux du diamètre prévu de préférence émailles, car leur résistance à la corrosion est remarquable. Leur longueur devra être aussi courte que possible afin que la chaleur que conservent les fumées soit, comme il se doit, utilisée pour étabir le tirage.
Le mur ariere, les murs situés à gauche, à droite ne doit pas compter d'eléments combustibles.
L'appareil rayonne naturellement et nous vous conseillons d'eligner tout materiaiu combustible (chaises en bois, canapes,...) se trouvant face à l'avant de l'appareil au minimum de 150 cm.
LOGEMENT DE L'INSERT
Avant de metre l'appareil en place, il convient de s'assurer que le logement de l'insert est bien à l'épreuve du feu.
En effet, même si le foyer à l'âtre donne relativement satisfaction du point de vus fonctionnement, il faut penser que l'énorme quantité d'air frais qui passé dans le conduit d'un foyer ouvert contribue fortement à préserver les parois d'un échauffement important.
La presence de l'insert dont le role est de conserver la chaleur pour assurer le chauffage de la piece, va provoquer l'élévation de la température des parois de l'âtre et de la cloison sur laquelle la cheminée est adossée.
C'est pourquoi, il est impératif de s'assurer qu le la cheminée n'est pas adossée à une cloison légère et notamment qu'il n'y ait ni bois, ni polystyrene.
La hotte et son environnement doit également être vérifiés avec soins :
La ou les parois d'adossement doivent etre incombustibles. Le plafond aux alentours de la traversee par le conduit doit etre exempt de bois, de polystyrene ou autres matieres inflmables:
Penser que la température des fumées peut atteindre 400^ .
En cas d'installation d'une cheminée sur une paroi légère, il est nécessaire de monter sur la ou les cloisons une protection en béton cellulaire de 10cm , puis un panneau de laine de roche haute température de 50~mm au moins.
En cas d'installation d'une « fausse hotte», prévoir une ouverture en haut de celle-(ci d'au moins 2 dm2 afin d'éviter les « pieges à calôres »
Une ouverture en partie basse de cette « fausse hotte » permet une parfaite ventilation.
Si I'avaleur de la cheminée est équipé d'une trappe d'obturation, il faut démonter cette dernière avec son système de commande.
Si une arrivée d'air frais est aménagée dans le foyer, il faut obligatoirement l'obturer.
SECURITE INCENDIE - RÉGLEMENTATION
Le raccordement doit etre effectue conformément aux regles de l'art et a la reglementation en vigueur, en particulier respecter les prescriptions des DTU 24-1 et 24-2.
Les tuyaux de fumées devront toujours être suffisamment éloignés de toute matière combustible, nous vous conseillons :
- 5cm s'il s'agit de conduit isolé à double paroi (type Metalbestos ou Poujoulat).
16 cm s'il s'agit de tuyaux ordinaires entoures d'un isolant.
25 cm sans protection particuliere.
Si le sol est constitue de matiere combustible, il convient de la proteger efficacement. Cette protection doit s'etendre a au moins 0,40 m de la face avant de l'appareil.

CHARACTERISTIQUES GENÉRALES
L'insert « reférence 660110 » est un apparéil de chauffage qui dispose d'une chambre de combustion (en fonte).. Il est destiné à être encastré dans des éléments en maconnerie.
Cet appeareil est conforme à l'annexe ZA de la norme europeenne NF EN 13229.
1.1 Caracteristiques :
La dépression du conduit de fumée nécessaire au bon fonctionnement et développement la(Meilleure puissance calorifique de l'appareil est de 12 Pa (Pascal) mais peut-etre comprise entre 10 et 14 Pa. Un tirage trop important, supérieur à 20 Pa, dû à un conduit trop long ou dans certaines conditions de tubage par exemple, provoque des allures trop vives, une consommation de combustible excessive, une baisse de rendement, une déterioration anormale de l'appareil et une annulation de la garantie. Dans ce cas, faites contrôler le tirage de l'insert en fonctionnement par un professionnel, le montage conforme d'un moderationur de tirage (justifiable d'un avis technique) peut être nécessaire.
| TABLEAU DES CHARACTERISTIQUES GENERALES | ||
| Départ des fumées | Libre sur le dessus | |
| Combustible recommends | bois en boucheslongueur maximum : 60 cm | |
| Combustibles interdits | tous les autres | |
| Vitre en vitrocéramique | 585 mm x 345 mm | |
| Dimensions minimales de la niche (H x L x P) | 560 mm x 710 mm x 450 mm | |
| Dimensions interieures du foyer (H x L x P) | 390 mm x 624 mm x 305 mm | |
| Poids | 149 kg | |
| Puisance | 12 kW | |
| Durée de fonctionnement à allure normale* | 1 heures 10 min | |
| Durée de fonctionnement à allure réduite* | 3 heures | |
| Débit massique des fumées | 13,32 g/s | |
| Température moyenne des fumées à allure normale | 269 °C | |
| Rendement de l'appareil | 72,5 % | |
| Taux d'émission de CO à 13% d'02 | 0,725 % | |
| Consommation à allure normale | 4,28 kg/h | |
| Consommation à allure réduite | 1,67 kg/h | |
| Distance minimale aux matériaux combustibles | lateralé gauche & latérale droite | 40 cm |
| arrière | 40 cm | |
| avant | 150 cm | |
| Appareil CONTINU | ||
| Débit d'un moteur | 160m3/h en position II | |
| Consommation d'un moteur | 18 W | |
*avec un chargement de 5 kg de bois à 15 % d'humidité et d'un pouvoir calorifique de 15,4 MJ/kg.



Tout ce qui se trouve derrière la façade de l'appareil sera directement exposé à la flamme, au rayonnement et aux fumées. Toute partie inflammable représentera un risque d'incendie.

INSTALLATION
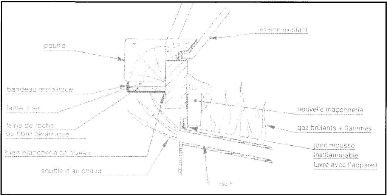
1/ L'appareil n'était pas relié au conduit de fumée, il est indispensable d'ajuster les dimensions d'ouverture de l'âtre de votre cheminée à celles de l'insert, pour assurer l'étanchéité entre l'appareil et l'intérieur de la cheminée (dimensions d'ouverture d'encastrement : longueur 71 cm, hauteur : 56,5 cm).
La nouvelle maconnerie sera réalisée en tuilots, briquettes, pierres, panneaux de staff armé découpés - qui pourrait être habités d'un parement décoratif - ou autres matériaux réfractaires ayant une bonne tenue mécanique.
S'assurer de la belle planéité de la sole foyère.
Le joint mousse ininflammable, adhesif sur une face, qui se trouve a l'intérieur de l'appareil sera collé sur le contour de la face arrête du cadre et prendra appui sur la nouvelle maconnerie pour assurer l'étanchéité.
2/ avant de logger, l'insert, il faut pccer le pilier de suaive cheminée afin de permetre le passage du cable electrique. Pccer de I'exterieur vers I'intérieur de suaive cheminée pour eviter tout eclatement visible, avec une meeche de diametre de 8 mm minimum.
3/ A pse s t t t t t t t t t t t t t t t t t t t t t t t t t t t t t t t t t t t t t t t t t t t t t t t t t t 0
IMPORTANT: prendre soin, lors des manœuvres, de ne pas bloquer et détiériorer le cable électrique.

BRANCHEMENT ELECTRIQUE
L'appareil est livre avec un cable haute température à cause de son passage à l'intérieur de la cheminée.
Il est obligatoire de conserver ce cable dans cette zone.
Ce dernier est relié à un domino en porcelainie situé derrière la trappe d'accès.
Lors d'un démontage, il y aura lieu de bien repérer les fils et de les remonter dans le bon ordre.
Relier le cable au secteur en le raccordant obligatoirement à la terre de votre réseau électrique.
Pour cette intervention électrique se situe dans l'embase en fonte de l'insert et il est fixé derrière le ventilateur de droite.
Les ventilateurs sont visibles par les grilles situées de chaque côte du cendrier. Il y a donc lieu de prendre des précautions au niveau de cette zone
(example: éviter des projections d'eau, ne pas introduire d'objet par les trous des grilles, etc).

UTILISATION
Cet appeareil est conqu pour fonctionner au bois, de la briquette de lignite ou de la tourbe : interdition d'utiliser du charbon ou autre combustible similaire. Il est prevu pour etre utilise quinquement porte fermée.
L'alimentation en air de combustion se regule avec le bouton situé en façade dendrier qui permet de contrôler l'allure du feu.
Pour une bonne marche de l'appareil, la dépression du conduit doit être comprise entre 15 et 20Pa
IMPORTANT :
- il est recommendé, lors des premiers feu, de charger modérément en bois et de et de réduire l'ouverture du registre d'arrivée d'air, afin de limiter l'intensité du feu : ceci permettra une montée en température progressive de l'ensemble et évitera des contraintes brutes/
ne pas laisser l'appareil s'emballer par une ouverture exagérée des différentes arrivées d'air frais ; de même pour le cendier qui doit rester fermé.
En acas de coupure de courant, il est recommende de charger moderement le foyer et de reduire l'arrival d'air de combustion afin d'eviter une surchauffe et de garantir une durée de vis maximale des ventilateurs. - De même, ne pas débrancher le foyerpendant lachauffe.
FONCTIONNEMENT DE LA VENTILATION
Les moteurs qui équipent notre ensemble de soufflerie sont auto-protégés. Ils se refroidissent par l'intermédiaire de l'air qu'ils aspirent dans la pièce.
Ils sont protégés thermostatique : leur mise ne marche est automatique à la vitesse la plus rapide des que la température atteint 90^ dans la partie basse de l'enceinte.
Cette mise en route automatique peut se produit à n'importe quel moment lorsque la température s'éleve. Elle peut se produit lorsque les ventilateurs sont à l'arrêt ou à vitesse réduite.
Par mesure de sécurité, pour la protection des moteurs, il y a lieu de réduire l'allure de combustion en cas de panne de secteur.
Les moteurs ne souffrent pas s'ils sont bloqués accidentellement par un objet quelconque.
En allure noramle, l'air qui entre à une température moyenne de 18^ ressort vers 150^ .
ENTRETIEN
- il y a lieu de proceder régulierement au nettoyage de l'échangeur thermique de votre apparéil : Brosser entre les tubes de l'échangeur à l'aide d'un écouillon, pour enlever les dépôts de suie et gratter les événuels agglomerés de goudron.
Vider regulierement le cendrier pour eviter une accumulation de cendres qui pouraient obstruer la grille foyere. Attention aux braises incandescents jetées négligement : elles peuvent réenflammer tout matérieliau combustible. - Notre conduit de cheminée doit être ramone périodiquement, suivant la législation en vigueur. L'insert doit être retire, ce qui permettra de le nettoyer intégralement ainsi que l'intérieur de la cheminée. Pour cette intervention, il faut couper l'alimentation électrique.
- A la fin de la saison de chauffe, il faut bien nettoyer tous les éléments fonte interieurs de votre insert (profiter du ramonage pour cette opération).
- Nous vous conseillons, lors de la non utilisation, de laisser les arrivées d'air ouvertes pour permettre une circulation d'air dans l'appareil et dans le conduit, sur tout dans les résidences secondaires.
IMPORTANCE DU COMBUSTIBLE
Cet appeareil doit vous donner entiere satisfaction. Cependant il ne faut pas oublier qu'un appeareil qu'il soit ne peut que libérer l'énergie contenue dans le combustible qu'il brûle.
S'il vous semble que vous appareilCHAUFFe mal, on peut affirmer que:
- Soit la quantité de combustible brûlé est trop faible.
- Soit le combustible brûlé n'a pas suffisamment d'énergie disponible.
Ne brûlèr que du bois sec ayant au moins 2 ans d'abatage (36 mois seraient更好地 nouveaux encore). Nous vous conseillons fortement l'utilisation de bois labellisé NF bois de chauffage.
En principe, tous les bois ont le même pouvoir calorifique pour le même poids. Le bois dur sera intereessant parce qu'il est plus dense et souvent moins humide.
L'humidité contenu dans le bois varie de 15% pour du bois sec à 50% pour du bois humide. Penser qu'il faudra beaucoup d'énergie pour vaporiser cette eau.
L'énergie disponible pour le chauffage sera de 4,16 Wh par Kilo de bois sec. Elle ne serait plus que de 1,73 Wh pour du bois à 50% d'humidité.
L'utilisation du bois humide entrainerait, de plus, des condensations dans la cheminée, ce qui l'encrasserait rapidement et risquerait, à terme, de produit des yeux de cheminée.
DECENDRAGE
Vider le cendrier au moins tous les 2 a 3 jours suivant l'utilisation. Cette operation doit se faire avec une precaution, ennant bien soin d'utiliser le gant pour transporter le cendrier et la clé à crochet pour manqueevr le tiroir.
- Ne jamais laisser les cendres s'amonceler dans le cendrier jusqu'au contact de la grille. Celle-ci ne serait plus refroidie et se deteriorerait rapidement.
RAMONAGE
Faire ramoner Your chemine par un professionnel par un moyen mecanique au moins deux fois par an, dont un pendant la saison de chauffe. Un certificat doit vous etre remis par I'entrepreneur. Il est ealment possible d'entretenir les conduits avec un produit adapte. Toutfois, cela n'exclut en rien le ramonage mecanique obligatoire.
Vérifier l'appareil et assurez-vous que les joints de porte sont en bon état, les remplaçer si nécessaire.
Nettover complètement l'intérieur de l'appareil sans oublier les carneaux de passage des fumées.
Nettoyer le hublot avec le GODIN NET spécial vitre (ref. 0009).
- En cas de feu de cheminée fermer le registre d'air et appeler les pompiers.
ENTRETIEN
Faire vérifier l'appareil par une personne compétente au moins une fois par an.
ATTENTION
LORS DES PREMIERS ALLUMAGES IL EST NÉCESSAIRE DE FAIRE FONCTIONNER L'APPAREIL À ALLURE MODÉRÉE, AFIN DE PERMETTRÉ AUX PIEÇES DE SE DILATER NORMALEMENT.
- LES POIGNÉES SONT CHAUDES PENDANT LE FONCTIONNEMENT. UTILISER LE GANT (si fourni).
LE GANT NE DOIT ETRE UTILISÉ QUE POUR MANEUVRER LA POIGNÉE. IL N'EST PAS ADAPTE POUR LA MANIPULATION D'OBJECTS EN IGNITION. IL N'EST PAS ÉTANCHE AUX LIQUIDES. NE PAS UTILISER CONTRE LES RISOUES CHIMIQUES.
VEILLER A DEPOSER VOTRE GANT APRES CHAQUE UTILISATION A UN ENDROIT DEPOURVU DE RESIDUS DE COMBUSTION (Cendres) ET NON CHAUD.
Ne pas s'inquieter si des émissions de fumée et une odeur un peu acre se manifestent aux premiers allumages, ceci etant d'la peinture des differentes pieces. Ces phenomenes peuvent persister plusieurs jours.
Entretien de la fonte et de l'acier
Tout poèle acier ou fonte necessite un minimum d'entretien, après chaque hiver, pendant la saisson chaude, afin de preserver sa tenue dans le temps. En effet, lorsqu'un poèle fonctionne, il n'y a aucune possibilité d'oxydation des pieces constituant l'appareil. Elle n'a lieu que pendant un arrêt prolongé.
les ci s'applique a froid, tel un cirage et necessite, des qu'elle est s'este, un lustrage avec un chiffon doux.
De la peinture haute température (gris fonte ref 0001) aérosol peut aussi être utilisée pour obtenir une finition plus nette sur les parties extérieures du poèle. Veiller, avant l'application de la peinture, à enlever toute trace d'oxydation à l'aide d'une toile émeri de faible grain.
Les poëles tout fonte avec une finition extérieure émaillée nécessitant l'entretien interieur du foyer.
L'entretien est d'autant plus indispensable dans le cas d'appareils installés dans des maisons occupées occasionnellement.
Tous nos produits d'entretien sont répertoriés dans notre catalogue général (pâté à fournaux, peinture, nettoyage des vitres, produits de ramonage, etc.). Vous pouvez vous les procurer par l'intémediaire de nos revendeurs.
Mise en garde particuliere concernant la porte foyer :
Nos portes sont équipées sur leurs axes de vis pointeau ou de rondelles freins.
ATTENTION : Lors du démontage éventuel de la porte par votre installer (replacement de la vitre,...) il est important de replacer sur les axes de cette porte des rondelles freins (neuves) et/ou les vis pointeau d'origine.
PIÉCES DE REMPLACEMENT
Si après de longues années le remplacement de certaines pieces s'avere nécessaire ; adressez-vous à votre FOURNISSEUR ou à tout autre PROFESSIONNEL DE NOTRE MARQUE.
Precisez-lui les indications portées sur la PLAQUE SIGNALÉTIQUE, celle-ci est placée à l'ARRÊRE DE L'APPAREIL ou sur le BON DE GARANTIE, à conserver impératifement même après la date de péremption.
En possession des nomenclatures et de toute la documentation technique relative à notre fabrication, celui-ci sera en mesure de vous fournirrapidement toute piece de remplacement et proceder aux réparations nécessaires.
Ne jamais utiliser de pieces de remplacement qui n'aurait pas ete fournies par la société GODIN S.A.
Ne jamais apporter de modifications à l'appareil sans autorisation.
RESPONSABILITÉ
Nous vous rappelons que la responsabilité du constructeur se limite au produit tel qu'il est commercialisé et que l'installation et la mise en service sont sous la responsabilité entière de l'installateur qui devra intervenir selon les règles de l'art et suivant la prescription de la notice.
Afin d'améliorer constamment la qualité de ses produits, la société GODIN S.A. se réserves le droit de modifier ses apparèils sans préavis.
NOMENCLATURE DES PIECES DÉTACHÉES
| N° | Nbre | Désignation | Codification | N° | Nbre | Désignation | Codification |
| 01 | 1 | Loquet | - | 14 | 1 | Bac cendrier tôle | 00134 3156 |
| 02 | 2 | Ventilateur | 00130 3156 | 15 | 1 | Joint plat autocollant largeur verre | 1 8841 660110 |
| 03 | 1 | Vis | - | 16 | 1 | Façade | 1 2101 660110 |
| 04 | 1 | Échangeur inférieur | 1 2300 3156 | 17 | 1 | Grille foyer | 1 0247 660110 |
| 05 | 1 | Échangeur supérieur | 1 2302 3156 | 18 | 1 | Porte cendrier | 1 2801 660110 |
| 06 | 1 | Bac cendrier | 1 3316 3156 | 19 | 1 | Plaque de protection | 1 2420 660110 |
| 07 | 1 | Chenet | 1 0221 3156 | 20 | 2 | Trappe d'accès aux ventilateurs | - |
| 08 | 1 | Côté droit | 1 2301 3156 | 21 | 1 | Écusson | 1 8501 6726 |
| 09 | 1 | Côté gauche | 1 2305 3156 | 22 | 3 | Boulet boutet 26x24 | - |
| 10 | 1 | Embase | 1 2205 3156 | 23 | 1 | Inverseur noir 3 positions | 00001304785 |
| 11 | 1 | Fond fixe | 1 2205 3156 | 24 | 2 | Rivet acier TR 6x30 noir | 00001301998 |
| 12 | 1 | Plaque arrière | 1 0177 3156 | 25 | 2 | Vis TF90M4x10 fendue laiton | 00001304310 |
| 13 | 1 | Porte chargement | 1 2831 660110 | ||||

GARANTIE CONTRACTUELLE GODIN
Tous nos apparèils bénéficient d'une garantie de 2 ans (sauf insert bois - foyer fermés bois) contre tout défaut à compter de leur date de vente aux utilisateurs, dans les limites du respect des conditions d'installation, d'utilisation, et d'entretien spécifique sur la notice livrée avec l' apparèil.
A l'exclusion des pieces en contact direct avec les températures importantes pouvant subir des déformations suite à des phénomènes d'usure qui sont garanties 1 an en échange standard, telles que :
les plaques decor, les plaques de cotés, les grilles et soles foyeres.
- les deflecteurs, les chicanes, les clapets, les chenets, le cendrier.
les briques réfractaires,
les mecanismes d'articulation, (Charnieres de portefour des cuisinières, poignées, Etc.)
les ventilateurs, les thermostats de surchauffe de nos apparéils équipés d'une soufflerie,
les organes de controle de temperatures, thermostats de four, resistances, ventilateurs chaleur tournante des ciusinières gaz électricité.
les brûleurs, les catalyseurs, les anneaux de brûleur des apparéils fioul.
les bouteurs des cusicentrales bois charbon.
Nos apparèils sont conçus spécialément pour que ces pieces puissant être replacées dans le cadre de l'entretien de votre apparéil.
Certaines pieces bénéficient d'une garantie de durée supérieure :
3 ans sur les corps de chauffe en fonte ou en acier de nos chaudières de chauffage central.
Les inserts bois (foyers fermés bois) bénéficient d'une garantie de 5 ans (Corps de chauffe de l'appareil uniquement, à l'exclusion des pieces en contact direct avec les températures importantes et soumises à usure enumeratedes ci-dessus qui sont garanties 1 an).
Notre garantie se limite à l'échange de l'élément reconnu défectueux par notre service après vente. Elle exclut toute indemnité, dommages et intérêts, frais de main d'oeuvre et transport.
Au cas ou la réparation ou l'échange s'avérait trop onéreux par rapport au prix de l'appareil, la décision de changer ou de réparer l'appareil, appar tient seulement au service après vente.
Ne sont pas couvert par la garantie : LES VITRES DE NOS APPAREILS
En effet, en ce qui concerne les vitres vitrocéramiques, ces dernières peuvent résister à des chocs thermiques de l'ordre de 750^ . Les éventuelles casses ne pouvant provenir que d'un choc mécanique lors de l'utilisation ou de sa manutention, ces dernières ne pouvant être échangées dans le cadre de garantie.
De même que les joints qui sont considérés comme pieces d'usure sont exclus de la garantie.
La garantie ne prendra pas effet lorsque :
- Les avaries qui résultataient de l'utilisation de l'appareil avec un combustible autre que celui préconse dans nos notices.
Les déteriorations de pieces provenant d' éléments extérieurs (refoulement de cheminée, effets d'orages, humidité, pression ou depression non conforme, chic thermique, etc.); - Les anomalies, déteriorations ou accidents provenant de chute, chic, négligence, défaut de surveillance ou d'entretien de l'acheteur ;
L'utilisation ou usage anormal de l'appareil dans des conditions differentes de celles pour lesquelles il a ete construit; c'est le cas par exemple du non respect de nos notices techniques (mauvais raccordement electrique, fonctionnement a sec d'une chaudiere, etc.)
Toutes modifications, touts transformations ou toutes interventions effectuees par un personnel ou une entreprise non agreeees par la S.A. GODIN ou realises par des pieces de rechanges non d'origine ou non agreees par le constructeur ;
L'installation, le montage, les frais de démontage et les conséquences de l'immobilisation de l'appareil, résultat des opérations de garantie n'incombent pas à la S.A. GODIN.
En conséquence, la S.A. GODIN ne peut tenu être responsable des dégats matériels ou des accidents de personnes, consécutifs à une installation non conforme aux dispositions légales et réglementaires (par exemple, absence de raccordement à une prise de terre, mauvais tirage de cheminée, etc.).
Dans un souci constant d'améliorer nos fabrications, nous nous réservons le droit de modifier sans préavis nos apparéils. Toutes les dimensions et caractéristiquesannoncées sont sujéttes à variation en fonction des impératifs techniques.
En cas d'applen en garantie, veuillez you munir obligatoirement d'une copie de la facture, du bon de garantie comitant les refecences de l'appareil, le cachet du revendeur, la date de mise en service de I'appareil, et de contacter voe revendeur pour toute reclamation.
Chaudières - Cuisinières - Appareils de chauffage - Fonderie
GODIN S.A. - 532, rue Sadi Carnot - 02120 GUISE - France
Nous vous rappelons que le Service Apre s Vente doit etre assuré par le revendeur, ou l'installateur, responsable sur place, que nous ne traitons pas directement avec les particuliers.
Tout client particulier s'adressant directement à notre société, sera renvoyé automatiquement chez son revendeur, et devra s'adresser auprès de lui, pour tout problème de Service ÀpreS Vente ou commercial.
FICHE DE CONTROLLE
| Nom et adresse du distributeur | BENEFICIAIRE DE LA GARANTIE : | |
| ADRESSE : | ||
| Tél.: Date de mise à disposition : | Date d'installation : | |
| Tél: | Le : à : | |
| Signature : | ||
| LIBELLÉ DES PIEÇES À REMPLACER | ||
| Désignation : | Référence : | Observations : |
| Certificat de contrôle :Type d'Appareil :Version :Contrôleur : | FICHE DE CONTRÔLÉVérification du corps de chauffe (aspect et étanchéité)Vérification pièces amoviblesVérification fermeture portes(Vérification des registres allumagePrésence plaque signalétiquePrésence notice / bon de garantie | |
| N° de Plaque Signalétique :N° de Garantie : | Présence cendrierPrésence étiquette mise en gardePrésence main froide | |
| GODIN S.A. - 532 RUE SADI CARNOT - 02120 GUISE | Date création du document : 19/10/06RéVISION : .J../. | |
Notice Facile