Impression - Riscaldamento Wamsler - Manuale utente e istruzioni gratuiti
Trova gratuitamente il manuale del dispositivo Impression Wamsler in formato PDF.
Domande frequenti - Impression Wamsler
Scarica le istruzioni per il tuo Riscaldamento in formato PDF gratuitamente! Trova il tuo manuale Impression - Wamsler e riprendi in mano il tuo dispositivo elettronico. In questa pagina sono pubblicati tutti i documenti necessari per l'utilizzo del tuo dispositivo. Impression del marchio Wamsler.
MANUALE UTENTE Impression Wamsler
Istruzioni per uso e installmente
ci complimentiamo con Lei per aver acquistato esta stufa da riscaldamento e per l'ottima scelta effettuata!
Questo prodotto Le garantisce
- qualità elevata grazie all'utilizzo di ottimi materiali testati
- funzionamento sicuro grazie alle avanzate technologie verificate in modo rigoroso in base alla norma europea EN 13240
- lunga durata nel tempo grazie alla robusta struttura Per garantire un lungo funzionamento nel tempo della Sua stufa è importante leggere attendamente le seguenti istruzioni, nelle quali troverà tutte le informazioni necessarie或者其他 che utili suggerimenti.
ATTENZIONE
Per la richiesta di pezzi di ricambio indicate il N^ di articolo/Article No. e il N^ di serie/Serial No. riportati sulla targa di identificazione dell'apparecchio.
INDICE
Gentilissimo Cliente, 49
INDICE 49
AVVERTENZE DI SICUREZZA. 51
- Istruzioni per l'uso 52
1.1 Struttura stufa 52
1.2 Accensione 53
1.3 Spegnimento 55
1.4 Generalità sul funzionamento 55
1.5 Pulizia e manutenzione 56
1.6 Cause e risoluzione anomalie 58
2.Installazione 59
2.1 Prescrizioni e norme 59
2.2 Distanze di sicurezza 60
2.3 Collegamento alla canna fumaria 61
3. Schede tecniche 66
3.1 Disegno dimensionale 66
3.2 Dimensioni 67
3.3 Dichiarazione di conformità CE 68
-
L' apparecchio e i loro dispositivi sono stati testati sulla base della norma EN 13240 o secondo EN 12815 (vedi targa di identificazione).
-
Per un funzionamento ottimale della Sua stufa è fondamentale che la canna fumaria alla quale volete effettuare il collegamento sia in condizioni perfette.
-
L'installazione e l'uso delle apparecchiature, deve avvenire esclusivamente in ambiente giudicato idoneo dagli enti preposti e soprattutto in conformità alle norme e prescrizioni vigenti in materia.
Gli impiani technologici e l'installazione degli apparecchi devono essere effettuali da personale professionalmente qualificato, autorizzato a rilasciare certificato di conformità e rispondenza alle norme in vigore.
- Nel luogo di installatione devono essere rispetto delle leggi, norme e direttive in vigore, in materia di edilizia civile e/o industriale, utilizzato sempre i dispositivi di sicurezza individuale e gli altri mezzi di protezione previsti per legge.
Devono inoltre essere rispettate tutte le leggi, norme, direttive in vigore in materia di impiantistica, canne fumarie, elettricità, acqua, ventilazione/aspirazione.
-
Prima di procedere all'accensione dell'apparecchio, leggere attendamente tutte le istruzioni per l'uso e contattare un technician specializzato.
-
Per il posizionamento degli appearecchi si consiglia di indossare quanti puliti di cotone per evitare di lasciare impronte digitali difficili da rimuovere in seguito.
-
Per mantenere l'aria pulita e garantire un funzionamento sicuro dell'apparecchio, il carico del combustibile non deve superare le quantità massime indicate nelle istruzioni per l'uso. Gli sportelli devono inoltre rimanere sempre chiusi per evitare un surriscaldamento che danneggerebbe la stufa. Eventuali danni come quello appena descrizione non sono coperti alla garanzia.
-
Quando l'apparecchio è in funzione gli sportelli devono sempre rimanere chiusi.
-
Sono ammessi i seguenti combustibili:
-
ceppi di legna allo stato naturale (lunghezza max. 33 cm)
-
mattonelle di lignite (v. tabella dei combustibili ammessi nelle istruzioni per l'uso)
-
Non utilizzato combustibili liquidi per l'accensione. Utilizzato solo apposti accendi fuoco o bricchetti di legno.
- E vietato bruciare rifiuti, minuzzoli di legna, corteccia, polverino di carbone, trucioli, legna umida e trattata con antisettici, carta, cartone e simili.
- Durante la prima accensione la stufa potrebbe emanare fumi e odori sgradevoli. Provedere subito ad arieggiare bene il locale (apire porte e finestre) e riscaldare alla potenza termica nominale massima per almeno un'ora. Se non viene raggiunta la temperatura massima con il primo riscaldamento, quosti fenomeni potrebbero ripresentarsi ancche in seguito.
- Gli elementi di lavoro e i dispositivi di impostazione sono da regolare secondo le istruzioni per l'uso. Se l'apparecchio è caldo si raccomanda di servirsi di attrezzi speciali o dei quanti di protezione.
-
Aprendo lo sportello del focolare potrebbe verificarsi un'uscita di fumo dovuta ad un utilizzo improprio o ad uno scarso tiraggio della canna fumaria. Si raccomanda pertanto, di aprire lo sportello lentamente e solo di quale centimetro, prima di aprirlo completamente. Prima di aprire lo sportello per la ricarica di combustibile, assicurarsi che nel focolare vi sia solo il letto di brace e che le fiamme siano tutte spente.
-
Quando la stufa è in funzione tutte le superfici, in particolare i vetri, le maniglie e i dispositivi di commando, possono raggiungere temperature elevate. è importante controllare che bambini, adolescenti, persone anziane e animali domestici mantengano una distanza di sicurezza dall'apparecchio quando questo è in funzione. Per manipolare la stufa servirsi del quanto di protezione o degli attrezzi speciali forniti. Bambini e adolescenti al di quello dei 16 anni possono utilizzato la stufa solo se sorvegliati da uomini.
- Assicurarsi che il cassetto cenere venga sempre spinto nella sua sede fino al raggiungimento dello scatto e, soprattutto, che non vengano smaltiti tizzoni/braci ardenti (pericolo di incendio).
- Nei periodi di mezza stagione possono verificarsi anomalie della canna fumaria che possono compromettere la corretta espulzione dei gas combusti. In quello caso è opportuno riempire la camera di combustione con una quantità minore di combustibile, meglio se con trucioli o bricchetti di legno. Quindi mettere in funzione la stufa e con attenzione, stabilizzarne il tiraggio. Per un buon funzionamento della stufa la Griglia Focolare deve essere pulita quotidianamente.
- Dopogni accensione stagionale è opportuno far ispezionare la stufa da tecnici qualiati ed effettuare una pulizia completa di tubi e giro fumi.
- Per eventuali riparazioni o sostituzioni contattare tempestivamente il proprio rivenditore avendo cura di comunicare l'esatto n° di articolo e di series dell'apparecchio. Tutti i componenti dovanno essere sostituiti esclusivamente con pezzi originali Wamsler.
- Eventuali lavori, in particolare l'installazione, il montaggio, la prima accensione, nonché i servizi di assistenza e di riparazione sono essere eseguiti solo da una ditta specializzata (in impianti di riscaldamento o riscaldamento ad aria). Eventuali installazioni errate faranno decadere agli forma di garanzia.
- E importante che vengano rispetto le distance di sicurezza ai lati e sul retro per tutti i componenti e materiali infiammabili. Le distance sono riportate nelle istruzioni per l'uso o sulla targa dell'apparecchio.
- E vietato apportare qualsiasi tipo di modifica all'apparecchio. Non è ammesso il collegamento ad una canna fumaria con altezza utile inferiore ai 4 metri. In caso di incendio della canna fumaria chiudere subito tutte le aperture dell'apparecchio e avvertire i Vigili del Fuoco. Non provare in nessun caso a spegner autonomamente. Dop o l'incendio e assolutamente necessario far ispezionare la cann fumaria da un tecnico specializzato.
- Poiché i combustibili solidi bruciando producono fuliggine, sul vetro della stufa potrebbero formarsi depositi; ciò non è da considerarsi un difetto dell'apparecchio.
- Essendo la pietra ollare/arenaria pietre naturali, eventuali alterazioni cromatiche sono normali e non costituiscono motivo di reclamo.
- L'apparecchiatura deve essere impiegata solo per l'uso per il quale è stata esplificamente concepita, altri impieghi sono impropri e pertanto pericolosi.
- L' apparecchiatura non deve essere utilizzata come inceneritore.
- In caso di vetro del portello focolare rotto e/o incrinato,osto come in caso di anomalie di funzionamento, l'apparecchio non può essere messo in funzione, se non dopo aver ris-mioso l'anomalia.
- Non ostruire le aperture o feritoie di aspirazione o di smaltimento del calorie.
- Tutti i regolamenti locali, inclusi quelli riferiti alle Norme Nazionali ed Europee devono essere rispetto nell'installazione dell'apparecchio.
- Il funzionamento dell'apparecchio è di tipologia intermittente, quando richiede che il combustibile venga caricato manualmente durante il funzionamento.
1. Istruzioni per l'uso
1.1 Struttura stufa

1.2 Accensione
Combustibili
Per garantire un corretto funzionamento della stufa e una formazione minima di fumo devono essere utilizzati esclusivamente i combustibili elencati di seguito: legna secca allo stato naturale con umidità massima del 20% e mattonelle di lignite.
La leva di regolazione dell'aria secondaria è montata sul lato posteriore. Per il legno impostarla sulla posizione 2, per la lignite sulla posizione 1.
| Tipodi combustibile | Valore calorico ca. kJ/kg |
| Mattonelle di lignite | 19.500 |
| Legna dura | 15.900 |
| Legna morbida | 11.500 |
É vietato bruciare i seguenti combustibili:
Rifiuti, minuzzoli di legna, corteccia, polverino di carbone, trucioli, legna umida e trattata con antisettici, carta, cartone e simili. Per l'accensione utilizzato bricchetti di legno o accendi fuoco da grill.
N.B. Per l'accensione non utilizzato mai : alcohol, benzina, o altri combustibili liquidi.
Attenzione!
Durante la prima accensione la stufa potrebbe emanare fumi e odori sgradevoli. Provedere subito ad arieggiare bene il locale (aprire porte e fine-stre) e riscaldare alla potenza termica nominale massima per almeno un'ora. Se non viene raggiunta la temperatura massima con la prima accensione, questi fenomeni potrebbero ripresentarsi although in seguito.
Mediante la leva dell'aria primaria è possibile impostare in continuo i valori compresi nel Campo di regolazione per ottenere la potenza calorica desiderata.
Impostazione aria di combustione:
Le leve devono sempre trovarsi al centro dei symboli.
Tabella 1
| Combustibile | Posizione leva aria primaria | Posizione scelta combustibile | |
| Accensione | III H | ||
| Ceppi di legna | Potenza termica nominale | II H | |
| Mattonelle di lignite | Potenza termica nominale | III K | |
| Spegnimento | I K | ||
Quantità di carico orario:
7kW
Per il legno non superare una quantità di due ceppi (lunghezza max. 33 cm) per un carico di circa 1,7 kg. Per le mattonelle di lignite carico max. 1,7 kg (circa 2-3 pezzi).
Prima accensione
- Prima di procedere all'accensione rimuovere il materiale di imballaggio del parafiamma sopra il focolare (fig. 6) ed eventualmenteanche il nastro adesivo del vetro alla lasciare residui.
Aprière lo sportello del focolare sollevando la maniglia verso l'alto (fig. 2). Se l'apparecchio è caldo, utilizzare un quanto di protezione isolato. Impostare l'aria primaria e la scelta di combustibile (fig. 3) secondo quando indicato alla tabella 1.
Posizione sulla griglia focolare bricchetti di legno o accendi fuoco eaggiungervi sopra dei trucoli di legno. Procedere con una piccola carica di legna per poi augmentarne la quantità, accendere, e poi richiudere lo sportello del focolare. Quando la fiamma si è ben sviluppata, e si è formato un buon strato di brace,aggiungere un'ulteriore carica di combustibile. In seguito impostare l'aria primaria secondo quando indicate alla tabella 1.
Per la prima accensione è opportuno procedere in modo "lieve" con piccole quantità di combustibile, per consentire ai componenti di abituarsi al calore. Durante但这a fase la stufa potrebbe emanare fumi e odori sgradevoli. Provedere subito ad arieggiare bene il locale (aprire porte e finestre) e riscaldare alla potenza termica nominale massima per almeno un'ora. Se non viene raggiunta la temperatura massima con la prima accensione, questi fenomeni potrebbero ripresentarsi anche in seguito.
Il combustibile non deve esseregettato, ma appoggiato nel focolare con delicatezza per evitare di danneggiare la parte in muratura dell'apparecchio.
Attenzione!
Aprendo lo sportello del focolare potrebbe verificarsi un'uscita di fumo dovut aad un utilizzo improprio o ad uno scarso tiraggio della canna fumaria. Si raccomanda pertanto di aprire lo sportello lentamente, e solo di quale centimetro, prima di aprirlo completeness. Prima di aprire lo sportello per la ricarica di combustibile, assicurarsi che nel focolare vi sia solo il fatto di brace e che le fiamme siano tutte spente.
1.3 Spegnimento
Chiudere gli sportelli e portare la regolazione dell'aria primaria in posizione chiusa. Lasciar consumare la brace rimasta e far raffreddare la stufa. Pulire e svuotare il focolare e il cassetto cenere solo quando la stufa si è raffreddata a temperatura ambiente! Raccomandiamo di far attenzione alla possibile presenza di braci o tizzoni caldi.
1.4 Generalità sul funzionamento
Gli sportelli del focolare devono rinanere sempre chiusi nelle stufa è in funzione. É possibile aprirli per l'accensione, l'aggiunta di carico o per la pulizia del focolare.
Un adeguato apporto di aria secondaria consente di bruciareanche i componenti combustibili dei gas di scarico. Non più essere escludo un eventuale deposito di sporco sul vetro dovuto ai combustibili solidi e ciò non è da considerarsi come un difetto dell'apparecchio. Grazie a questo systema la combustione genera molto fumo e fuliggine garantendo il rispetto dell'ambiente. Qualora la stufa venga utilizzata nei periodi di mezza stagione è necessario prima controllare il tiraggio della canna fumaria, che potrebbe essere scarso se la temperature esterna è elevata. A quello scopo avvincare un fiammifero acceso allo sportello del focolare leggermente a perto. Se la fiamma non dovesse tirare sufficientemente in direzione dell'apertura, bruciare per breve tempo dei trucoli o bricchetti di legno nella stufa o nell'apertura di ispezione della canna fumaria. Per consentire un buon apporto di aria, prima di agli combustione pulire e scuotere la griglia focolare (fig. 5). Svuotare regolarmente il cassetto cenere ad apparecchio freddo (fig. 4). Se l'apparecchio è ancora caldo, indossare il quanto di protezione fornito. Accertarsi che durante esta procedure non vengano smaltiti residui di combustione ardenti (braci o tizzoni caldi).
Assicurarsi che il cassetto cenere venga sempre spinto nella sua sede fino al raggiungimento dello scatto.
Attenzione!
Per garantire aria pulita e una Buona resa dell'apparecchio, il carico del combustibile non deve superare le quantità max indicate nelle istruzioni per l'uso per evitare un surriscaldamento che danneggerebbe la stufa. Eventuali danni come quello appena descripto non sono coperti alla garanzia. Una minore resa termica si ottiene soltanto riducendo le quantità di carico e non mediante diminuzione dell'aria primaria.
1.5 Pulizia e manutenzione
Un buon utilizzato dell'apparecchio associato ad un'accurata pulizia e manutenzione garantiscono la stabilità dei valori e una lunga durata nel tempo dell'apparecchio. Ciò consente di risparmiare prezioso risorse, rispetto l'ambiente ed evitare ulteriori spese. Per procedere alla pulizia tirare in avanti il parafiamma (fig. 7, n° 2). In quello modo è possibile pulire il giro fumi dall'interno o, rimuovendo il tubo di scarico, dall'alto.
Al termine dell'operazione di pulizia reinserire il parafiamma (fig. 7) nella posizione iniziale.
Attenzione!
A fine stagione è opportuno sottoporre la stufa a una pulizia completa. Per eventuali riparazioni o sostituzioni contattare tempestivamente il proprio rivenditore avendo cura di comunicare l'esatto n^ di articolo e di seriè dell'apparecchio (v. targa di identificazione).
La pulizia delle superfici esterne è da effettuare a stufa fredda. Devono essere pulite con acqua corrente o, in casi particulari, pretrattate con acqua saponata o detersivo per piatti, e poi strofinate fino a complete asciugatura.
Prima del primo utilizzato pulire il vetro ROBAX S della stufa con un panno umido e pulito e aggiungere poi delle gobce di detergente per vetroceramica su entrambi i lati del vetro mediate carta da cucina.
La pregiata superficie di ROBAX S è rivestita con una pellicola invisibile che consente di Maintainere il vetro pulito e che agevola le operazioni di pulizia sequeste sono svolte regolarmente.
I combustibili solidi bruciando producono fuliggine e la formazione sul vetro di eventuali depositi non più essere mai del tutto esclusa; perché non è da considerarsi un difetto dell'apparecchio.
Pulizia delle ceramiciche: sporco e grasso possono essere rimossi con acqua e sapone.
Pulizia di pietra allare e arenaria: essendo pietra allare e arenaria pietre naturali, eventuali alterazioni cromatiche sono normali e non costituiscono motivo di reclamo! Sporco e grasso possono essere rimossi con acqua e sapone, piccoli graffi con carta abrasiva a umido (grana 240).
Important: non utilizzato in nessun caso spugne, abrasivi e detergenti, aggressivi o che potrebbero graffiare le superfici!
Eventuali lavori, in particolare l'installazione, il montaggio, la prima accensione, nonché i servizi di assistenza e di riparazione possono essere es
guiti solo da una ditta specializzata (in impianti di riscaldamento o riscaldamento ad aria). Eventuali installazioni errate faranno decadere agli forma di garanzia.

Fig. 2


Fig. 3


Fig. 6
Rimuovere carta ondulata di imballaggio

Fig. 5

Fig. 7
1.6 Cause e risoluzione anomalie
| Tipodi di anomalia | Cause possibili Rimedi | |
| Formazione di odori: | Asciugatura della vernice utilizzata ed evaporazione dei residui diolio. | Lasciare la stufa in funzione per diverse ore sulla posizione minima sono comeindicato nelle istruzioni per l'uso. In seguito lasciare riscaldare per diverse ore a potenza massima. |
| Scarsa emissione di calore: | • è stata scelta una potenza troppo bassa • Tiraggio troppo basso | • Far verificare il Suo fabbisogno termico da un technique esperto. • La stufa richiede un tiraggio min di 11 Pa e più arrivare ad un max di 18 Pa per breve tempo. Controllare la tenuta della canna fumaria. Verificare soprattutto le aperture della canna fumaria e di pulizia. Se necessario collegare un tratto verticale. • Tutti i collegamenti dei tubi di scarico devono averera una buona tenutaagna ed essere isolati con materiale refrattario. • Controllare la tenuta e chiudere bene gli sportelli. In caso far sostituire i nastri sigillanti. • Utilizzare solamente legna ben asciutta. |
| • Tubo di scarico troppo lungo e non sigillato | ||
| • Sportelli vetro, focolare ocene non ermetici | ||
| • Combustione di legna troppo umida |
Provvedimenti da attuare in caso di incendio di canna fumaria
Una pulizia non completa della canna fumaria, l'utilizzo di combustibile non idoneo (per esempio legna troppo umida) o l'impostazione sbagliata dell'aria della combustione potrebbero provocare un incendio della canna fumaria. In questo caso chiudere la presa d'aria della stufa e chiamare immediatamente i Vigili del Fuoco.
N.B. Non provare mai ad estinguere il fuoco con acqua.
2. Installazione
2.1 Prescrizioni e norme
-
Leggere attendamente il contentuto del presente manuale, in quanto fornisce importanti significazioni ed istruzioni riguardanti l'installazione, l'uso, la manutenzione e soprattutto la sicurezza del prodotto.
-
L'installazione e l'uso delle apparecchiature, deve avvenire esclusivamente in ambiente giudicato idoneo dagli enti preposti e soprattutto in conformità alle norme e prescrizioni vigenti in materia.
Gli impianti technologici e l'installazione degli appearecchi devono essere effettuati da personale professionalmente qualificato, autorizzato a rilasciare certificato di conformità e rispondenza alle norme in vigore.
-
Nel luogo di installmente devono essere rispetto delle leggi, norme e direttive in vigore, in materia di edilizia civile e/o industriiale, utilizzando sempre i dispositivi di sicurezza individuale e gli altri mezzi di protezione previsti per legge.
-
Devono inoltre essere rispetto delle leggi, norme, direttive in vigore in materia di impiantistica, canne fumarie, elettricità, acqua, ventilazione/aspirazione.
-
Il costruttore declina agli responsabilità derivante da installazione errata, manomissione, utilizzo non corretto dell'apparecchio, uso improprio, cattiva manutenzione, inosservanza delle normative vigenti e imperizia d'uso.
Operazioni preliminari
-
Togliere delicatamente l'imballo.
-
Il materiale che compone l'imballo va riciclato mettendolo negli apposti contentitori o conferito al site preposto nel comune di residenza.
-
Prima dell'installazione assicurasi dell'integrità dell'apparecchio, in caso di dubbio non utilizzato e rivolgersi al rivenditore.
Posizionamento apparecchio
-
Il除去 dell'apparecchio deve prevedere:
-
Una pavimentazione di adeguata energia di carico, superiore al peso dell'apparecchio. Se la costruzione esistente non soddisfa quello requisito, misure appropriate dovanno essere prese (Es. piastra di distribuzione di carico).
-
Una pavimentazione adatta all'irraggiamo calorico che garantisce l' edificio contro i rischi di incendio.
-
L'installazione dell'apparecchio deve garantire facile accesso per la pulizia dell'apparecchio stesso, dei condotti dei gas di scarico e della canna fumaria.
2.2 Distanze di sicurezza
Proteggere dall'effetto del calorie tutti gli elementi costruttivi, mobili o tessuti di arredamento infiammabili situati nelle vicinanze della stufa.
Oggetti all'interno della zona di irraggiamento
Per gli elementi costruttivi, i mobili e i tessuti di arredamento inflammabili situati nella zona di irraggiamento della stufa è necessario rispetto una distanza minima di 80 cm (A), misurati dal bordo anteriore dell'apertura del focolare. La distanza di sicurezza si riduce ai 40 cm (B) qualora di fronte all'elemento sia installata una protezione areata (v. fig. 8).
Oggetti al di fuori della zona di irraggiamento
Le pareti laterali e quella posteriore all'apparecchio non possono essere realizazate o rivestite con materiale infiammabile qualora la distanza laterale sua inferiore ai 20 cm e quella posteriore ai 30 cm.
Anche per mobili in legno o in plastica deve essere rispettata una distanza laterale di 20 cm (v. fig. 9).


Pavimento sotto e davanti alla stufa
I pavimenti in materiale infiammabile come moquette, parquet o sughero devono essere sostituiti o protetti fatto la stufa, davanti fino a 50~cm dal bordo del focolare e lateralmente fino a 30~cm da un rivestimento in materiale non infiammabile, come ceramica, pietra, vetro o da una base salva-pavimento in acciaio.
2.3 Collegamento alla canna fumaria
ATTENZIONE!
Prima di procedere al collegamento dell'apparecchio consultare un technique specializzato di zona!
I tratti di collegamento della stufa devono essere ben saldati e sigillati e non devono essere insertiti in profondità nella sezione trasversale libera della canna fumaria. Il tratto di collegamento tra stufa e canna fumaria deve avere un dia-metro equivalente a quella del bocchettone di uscita fumi della stufa. Tratti orizzontali superiori ai 0,5 metri devono avere una pendenza di 10 gradi rispetto alla canna fumaria. Tubi non isolati termicamente o con andamento orizzontale non devono avere una lunghezza superiore ad un metro.
La Misura X (distanza da elementi costruttivi/materiali in-fiammabili) da rispetto è quellaindicata dal produttore dell'apparecchio.
ATTENZIONE!
Per il dimensionamento della canna fumaria consultare i dati relativi all'apparecchio nella sezione 3.


CAMINO O CANNA FUMARIA
-
Il camino o canna fumaria deve rispondere ai seguenti requisiti:
-
Essere a tenuta dei prodotti della combustione, impermeabile ed adeguatamente isolato e coibentato alla stregua delle condizioni di impiego (UNI 9615);
- Essere realizzato in materiali adatti a resistere alle normali sollecitazioni meccaniche, al calore, all'azione dei prodotti della combustione e alle eventuali condense;
- Avere andamento prevalente verticale con deviazioni dell'asse non superiori a 45^ ;
- Essere adeguatamente distanziato da materiali combustibili o inflammabili mediante intercapedine d'aria od opportuno isolante;
- Avere sezione interna preferibilmente circolare; lesezioni quadrate o rettangolari devono averangoli arrotondati con raggio non inferiore a 20~mm
- Avere categoria interna costante, libera e independente;
- Avere lesezionirettangolari con rapporto massimo tra i lati di 1,5;
- Dovranno essere rispetto leindicazioni del costruttore dell'apparecchio per quanto concerne la sezione e le caratteristiche costruttive della canna fumaria/camino. Persezioni particolari, variazioni di sezione o di percorso dovrè essere effettuata una verifica del funzionamento delsystema di evacuationione fumi con appropriato dato di calcolo fluidodinamico (UNI 9615).
- E' consigliato che il condotto funario sia dotato di una camera per raccolta materiali solidi ed eventuali condense, situata quello l'imbocco del canale da fumo, in modo da essere lavorante apribile ed ispezionabile da sportello a tenuta d'aria.
- In caso di incendio della canna fumaria munirsi di adeguati sistemi per soffocare le fiamme (es. utilizzato un estintore a polvere o ad anidride carbonica) e richiedere l'intervento dei Vigili del Fuoco.
COLLEGAMENTO DELL'APPARECCHIO ALLA CANNA FUMARIA ED EVACUAZIONE DEI PRODOTTI DELLA COMBUSTIONE (vedi anche normativa UNI 10683)
- Il collegamento tra l'apparecchio di utilizzazione e la canna fumaria deve riceveve lo scarico da un solo generatore di calore.
-
E' ammessa la realizazione di apparecchio composto da caminetto e forn o di cottura con un unico punto di scarico verso il camino, per il quale il costruttore dovrà fornire le caratteristiche costruttive del raccordo dei canali da fumo.
-
E' vietato convogliare nelle stesso canale da fumo lo scarico proveniente da cappe sovrastanti gli appearecchi di cottura.
E' vietato lo scarico diretto verso spazi chiusi anche se a cielo libero. - Lo scarico diretto dei prodotti della combustione deve essere previsto a fatto ed il condotto fumario deve averè le caratteristiche previste precedenze.
COMIGNOLO
Il comignolo deve rispondere ai seguenti requisiti:
- Avere sezione interna equivalente a quella del camino;
- Avere sezione utile di uscita non inferiore al doppio di quella interna del camino;
- Essere costruito in modo da impedire la penetrazione nel camino di pioggia, neve, corpi estranei e in modo che anche in caso di venti di agli direzione e inclinazione sia comunique assicurato lo scarico dei prodotti della combustione;
- Essere posizionato in modo da garantire una adeguata dispersione ed diluzione dei prodotti della combustione e comunique al di fuori della zona di reflusso in cui è favorita la formazione di contropressioni. Tale zona ha dimensioni e conformazioni diverse in funzione dell'angolo di inclinazione della copertura, per cui risulta necessario adottare le alteze minime indicate negli schemi seguenti:

| Inclinazione del fatto C (°) | A H | Altezza della zona di reflusso Z (m) | |
| 15 1,85 | 1,00 | 0,50 | |
| 30 1,50 | 1,30 | 0,80 | |
| 45 1,30 | 2,00 | 1,50 | |
| 60 1,20 | 2,50 | 2,10 |


Pericomignoli ela zona di reflusso vedi UNI 7129



REALIZZAZIONE DELL'ALLACCIAMENTO ALLA CANNA FUMARIA
- Eseguire il collegamento dell'apparecchio alla canna fumaria del camino estidente, assicurandosi che il tubo di uscita fumi non occupi la sezione libera della canna fumaria.
- Utilizzare esclusivamente tubi adatti allo smaltimento dei fumi della combustione.
- Limitare i tratti orizzontali del condotto di raccordo alla canna fumaria (max 1 metro) e l'uso di curve.


PRESA ARIA COMBUSTIONE DALL'AMBIENTE DI INSTALLAZIONE
-
L'apparecchio deve poter disporre dell'aria necessaria a garantirne il regolare funzionamento mediante prese d'aria esterna.
-
Le prese d'aria devono rispondere ai seguenti requisiti:
a) Avere sezione libera totale minima di 200~cm^2
b) Essere comunicanti direttamente con l'ambiente di installmente;
c) Essere protette con griglia, rete metallica o idonea protezione parché non riduca la sezione minima di cui al punto a) e posizionate in modo da evitare che possano essere ostruite.
- L'afflusso dell'aria può essere ottenutoanche da un locale adiacente a quello di installatione, purché tale flusso possa avvenire liberamente atraverso aperture permanenti comunicanti con l'esterno. Il locale adiacente rispetto a quello di installatione non deve essere messo in depressione rispetto all'ambiente esterno per effetto del tiraggio contrario, provocato dalla presenza in tale locale di altri appearecchio di utilizzazione o di dispositivo di aspirazione.
- Nel locale adiacente le aperture permanenti devono rispondere ai requisiti di cui alle lettere a) e c).
- Il locale adiacente non può essere adibito ad autorimessa, magazzino di materiale combustibile né comunque ad attività con pericolò d'incendio.
NOTA : Ventilatori di estrazione aria, quando usati nella stessa stanza o spazi vicini dell'apparecchio, potrebbero causare problemi di funzionamento.
NOTA : Il locale di installmente non deve essere什么意思 in depressione da apparecchiature quali ad esempio: cappe di aspirazione,camini, canne fumarie, ecc., presenti nel locale stesso o nei locali adiacenti posti in Communication.
3. Schede tecniche
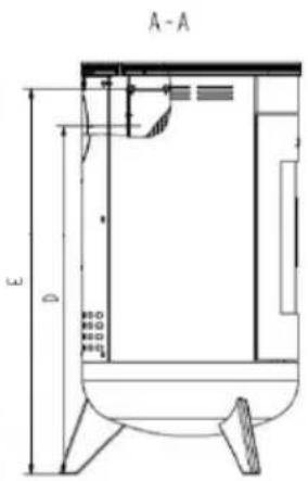
3.1 Disegno dimensionale


TYP10160 CHARISMA
TYP10170 ARTE
TYP10161 FLAIR
TYP10162 GALA
TYP10162 GALANT
TYP10170 IMPRESSION
TYP10170 AVANTGARD
TYP10170 VITA
TYP10160 BOLERO
TYP10170 EL PASO




TYP10164 METROPOLITAN
3.2 Dimensioni
| Tipo | A(mm) | B(mm) | C(mm) | D(mm) | E(mm) | F(mm) |
| TYP10160 CHARISMA 570 400 1 | 122 989 | 1095 | 100 | |||
| TYP10170 ARTE 565 450 1161 990 | 1096 | 118 | ||||
| TYP10170 FLAIR Speckstein 581 455 | 1138 990 | 1096 | 118 | |||
| TYP10161 FLAIR Granit 581 455 | ||||||
| TYP10161 FLAIR Edelstahl 581 455 | 1138 990 | 1096 | 118 | |||
| TYP10162 GALA 495 455 1138 990 | 1096 | 118 | ||||
| TYP10162 GALA Speckstein 495 455 | 1138 990 | 1096 | 118 | |||
| TYP10162 GALA GRANIT 495 455 | 1138 990 | 1096 | 118 | |||
| TYP10162 GALANT 495 395 1138 990 | 1096 | 103 | ||||
| TYP10162 GALANT Speckstein | 495 395 | 1138 990 | 1096 | 103 | ||
| TYP10170 IMPRESSION | 561 506 | 1242 897 | 1043 | 112 | ||
| TYP10170 AVANTGARD | 656 606 | 1285 950 | 1091 | 241 | ||
| TYP10170 VITA | 561 506 | 1285 897 | 1043 | 112 | ||
| TYP10160 BOLERO | 632 417 | 1255 990 | 1095 | 112 | ||
| TYP10170 EL PASO | 561 600 | 1285 950 | 1043 | 112 | ||
| TYP10164 METROPOLITAN 644 668 | 1138 962 | 1065 | 263 |
Queste dimensioni sono indicate a solo scopo informativo! Ci riserviamo il diritto di apportare eventuali modifiche strutturali avantaggio del progresso technologico o del miglioramento qualitativo!
| Tipo | TYP 10160 CHARISMA TYP 10170 ARTE / VITA TYP 10161 FLAIR TYP 10162 GALA / GALANT TYP 10170 IMPRESSION TYP 10170 AVANTGARD TYP 10160 BOLERO TYP 10170 EL PASO TYP 10164 METROPOLITAN |
| Potenza termica nominale | 7,0 kW |
| Volume riscaldabile in m3 per utilizzo non continuo secondo | |
| DIN 18893/TAB. 2 in condizioni | 148 |
| - favorevoli | 84 |
| - normali | 58 |
| - poco favorevoli | |
| Valori delle emissioni per seguenti combustibili | legna / lignite 7 pollici |
| Portata fumi | 7,0 g/s |
| Temperatura dei fumi | 380 °C |
| Depressione minima con rendimento nominale | 11 Pa |
| Polveri (in riferimento ad un tenore O2del 13%) | < 40 mg/m3 |
| CO (in riferimento ad un tenore O2del 13%) | 999 / 838 mg/Nm3 |
| Rendimento | ≥ 78 % |
Tutte le informazioni fornite dai valori dei gas di scarico sono basati sul EN 13240 in condizioni di lavoratorio stazionarie.
3.3 Dichiarazione di conformità CE

Dichiarazione di conformità CE
Produttore: WAMSLER Haus- und Kuchentechnik GmbH, Gutenbergstr. 25, D-85748 Garching, Germania
Prodotto: Stufa a combustibile solido
Modello: TYP 101 60 / 61 / 62 / 63 / 64 / 70
Si dichiara che i prodotti di cui sopra risultano in conformità a quanto previsto dalle seguenti direttive comunitarie europee:
89/106/CE: Direttiva prodotti da costruzione
La prova è costituita in base alla norma EN 13240:2001/A2:2004/AC:2007 (ZA) dal certificato di collaudio FSPS-Wa 1518 e FSPS-Wa 1919 redatto dal Centro di controlo RWE Power AG Frechen (notified body number 1427) in data 21.06.2006 e 11.11.2009.
Monaco di Bav., li 11.09.2011
K.D. Knabel A. Freund

i.v.

Direttore generale Direzione tecnica
Questa dichiarazione certifica la conformità alle direttive summenzionate, ma non contiene alcuna garanzia delle proprieta del prodotto. è opportuno consultare le avventenze di sicurezza allegate alle istruzioni del prodotto. Questa dichiarazione perde validità nel caso in cui gli appearecchi descriitti sopra vengano modificati da parte di terzi.
Ci riserviamo il diritto di apportare modifiche avantaggio del progresso technologico e/o del miglioramento qualitativo. Non ci assumiamo nessuna responsabilità per eventuali errorsi di battitura o modifiche successive alla messa in stampa.
ManualeFacile