Impression - Heizung Wamsler - Kostenlose Bedienungsanleitung
Finden Sie kostenlos die Bedienungsanleitung des Geräts Impression Wamsler als PDF.
Häufig gestellte Fragen - Impression Wamsler
Laden Sie die Anleitung für Ihr Heizung kostenlos im PDF-Format! Finden Sie Ihr Handbuch Impression - Wamsler und nehmen Sie Ihr elektronisches Gerät wieder in die Hand. Auf dieser Seite sind alle Dokumente veröffentlicht, die für die Verwendung Ihres Geräts notwendig sind. Impression von der Marke Wamsler.
BEDIENUNGSANLEITUNG Impression Wamsler
Bedienungs- und Aufstellanleitung
Sehr verehrter Kunde,
wir beglückwünschen Sie zum Erwerb unseres Kaminofens.
Sie haben die richtige Wahl getroffen.
Mit dem Kauf diesen Produktes haben Sie die Garantie für
- Hohe Qualität durch Verwendung bester und bewährter Materialien
- Funktionssicherheit durch ausgereife Technik, die streng nach der europäischen Norm EN 13240 geprüft ist
(Geräte sind für die Mehrfachbelegung geeignet)
- Lange Lebensdauer durch die robuste Bauweise
Damit Sierecht langle Freude an Ihrn neuen Kaminofen haben, sollenn Sie die folgende Bedienungsanleitung studieren. Hierin finden Sie alles Wissenswerte sowie eine zusätzliche Tipps.
ACHTUNG
Bei Ersatzteilbestellungen die am Typschild des Gerätes eingetragene Antikel-Nr./Article No. und Fertigungs-Nr./Serial No. angeben.
Inhaltsverzeichnis
Vorwort. 2
Inhaltsverzeichnis 2
SICHERHEITSHINWEISE 3
1. Bedienung
1.1 Geräteaufbau 5
1.2 Inbetriebnahme 6
1.3 Außerbetriebnahme 7
1.4 Hinweise zum Heizen 7
1.5 Reinigung und Pflege 8
1.6 Störungsursachen, Behebung 11
2.Aufstellung 12
2.1 Vorschriften 12
2.2 Aufstellräume 12
2.3 Geräteabstände 12
2.4 Schornsteinanschluss 13
3. Technische Daten 14
3.1 Maßzeichnungen, Daten 14
3.2 MaBe 16
3.3EGKonformitätserklarung 17
SICHERHEITSHINWEISE
- Die Geräte sind nach DIN EN 13240 geprüft (Typenschild).
- Bei der Aufstellung und dem abgasseitigen Anschluss sind die anwendbaren nationa- len und europäischen Normen, ortliche und baurechtliche Vorschriften/Normen (z.B. DIN 18896, DIN 4705, DIN EN 13384, DIN 18160, DIN EN 1856-2, DIN EN 15287 u.a.) sowie feuerpolizeiliche Bestimmungen (z.B. FeuVo) zu beachten. Lassen Sie das Gerät nur von einem qualifizierten Fachmann aufstellen und anschlieben. Zur korrekten Funktion Ihres Gerätes muss der Schornstein, an den Sie das Gerät anschlieben wollen, in einwandfreiem Zustand sein.
- Vor Erstinbetriebnahme und vor dem Schornsteinanschluss, die Bedienungsanleitung gründlich durchlesen und den zuständigen Schornsteinfegermeister informieren.
- Es wird empfohlen bei Aufstellung der Geräte saubere Baumwollhandschuhe zu trag, um Fingerabdrücke, die später schwierig zu entfernen sind, zu vermeiden.
- Im Interesse der Luftreinhaltung und der sicheren Funktion des Gerätes sollen den die in der Bedienungsanleitung angegebenen max. Brennstoffaufgabemengen nicht über-schritten werden und die Turen der Geräte geschlossen sein, da sonst die Gefahr des Überheizens besteht, was zu Beschädigungen am Gerät führen kann. Beschädigungen solcher Art, unterliegen nicht der Garantiepflicht.
- Die Turen der Geräte müssen während des Betriebes immer geschlossen sein.
-
Die zugelassenen Brennstoffe sind:
-
Naturbelassenes Scheitholz (bis max. 33cm Länge)
-
Braunkohlebriketts (siehe zulässige Brennstoffe in der Bedienungsanleitung)
-
Keine flüssigen Anzündhilfen verwenden. Zum anzünden sollenn spezielle Anzünder oder Holzwolle verwendet werden.
- Die Verbrennung von Abfallen, Feinhackschnitzeln, Rinden, Kohlegruß, Spanplattenresten, feuchtem und mit Holzschutzmitteln behandeltem Holz, Papier, Pappe o. ä. ist verboten.
- Es ist darauf zu Achten, dass die Aufstellfläche ausreichend tragfähig ist. Bei unzureichender Tragfähigkeit müssen geeignete Maßnahmen (z.B. Platte zur Lastenverteilung) getroffen werden.
- Beim ersten Anheizen könnte es zu Rauchentwicklung und Geruchsbelastigungkommen. Unbedingt für gute Raumbeluftung sorgen (Fenster und Turen offen) und mindestens eine Stunde auf max. Nennwärmeleistung heizen. Sollte beim ersten Heizvorgang die max. Temperatur nicht erreicht werden, so konnen diese Erscheinungen auch später noch auftreten.
- Die Bedienelemente und die Einstelleinrichtungen sind entsprechend der Bedienungsanleitung einzustellen.itte benutzen Sie bei freiem Gerat die Hilfswerkzeuge oder einen Schutzhandschuhe zur Bedienung.
- Beim Offnen der Heiztür kann es bei Fehlbedienung oder bei nicht ausreichendem Schornsteinzug zu Rauchaustritt kommt. Es ist unbedingt zu beachten, dass die Heiztür nur langsam, zuerst einen Spalt und nach ein paar Sekunden ganz geöffnet werden darf. Außer dem soll vor dem Offnen der Heiztür zum nachlegen von Brennstoff nur noch das Glutbett im Brennraum vorhanden sein, dass heißt, es dürfen keine Flammen mehr sightbar sein.
- Im Warmhaltefach und auf dem Gerät keine brennbaren Gegenstände abstellen.


- Im Heizbetrieb konnen alle Oberflächen und besonderss die Sichtscheiben sowie die Griffe und Bedieneinrichtungen sehr heißt werden. Machen sie Kinder und Jugendliche, Ältere Menschen und Tiere auf diese Gefahren aufmerksam, und halten sie wahrrend des Heizbetriebes von der Feuerstätte fern. Verwenden Sie zur Bedienung den beigelegten Schutzhandschuh oder das Hilfswerkzeug. Kinder und Jugendliche unter 16 Jahren dürfen den Ofen ohne Aufsicht Erziehungsberechtigter nicht bedieren.
- Es ist darauf zu achten, dass der Aschekasten immer bis Anschlag eingeschoben ist und besonderss darauf zu achten, dass keine weißte Asche entsorgt wird (Brandgefahr).
- In der Übergangszeit kann es zu Störungen des Schornsteinzugeskommen, so dass die Abgase nicht vollständig abgezogen werden. Die Feuerstätte ist dann mit einer geringen Brennstoffmenge, am besten mit Holzpane/-Wolle zu befüllen und unter Kontrolle in Betrieb zunehmen, um den Schornsteinzug zu stabilisieren. Der Rost sollte sauber sein.
- Nach jeder Heizperiode ist es angebracht, die Geräte durch einen Fachmann kontrollieren zu halten. Ebenfalls sollte eine grundliche Reinigung der Abgaswege und der Abgasrohre erfolgen.
- Wenn Ausbesserungen oder Erneuerungen vorgenommen werden müssen, wenden sie sichitte rechzeitig unter Angabe der genauen Art.Nr. und Fert.Nr. an ihren Fachhändler. Es sind nur Original Wamsler - Ersatzteile zu verwenden.
- Arbeiten, wie insbesondere Installation, Montage, Erstinbetriebnahme und Servicearbeiten sowie Reparaturen, * dürfen nur durch einen ausgebildeten Fachbetrieb (Heizuungs- oder Luftheizungsbau) durchgeführt werden. Bei unsachgemäßen Eingriffen erlösen Gewährleistung und Garantie.
- Da der Festbrennstoff-Ofen/Herd die zur Verbrennung benötigte Luft dem Aufstellungsraum entnimmt, ist damit zu sorgen, dass über die Undichtheiten der Fenster oder Außentüren stets genügdend Luft nachströmt. Man kann davon ausgegeben, dass dieser durch ein Raumvolumen von mind. 4m^3 je kW Nennwärmeleistung gewährleistet ist. Ist das Volumen geringer, kann über Lüftungsöffnungen ein Verbrennungsluft-verbund mit anderen Räumen hergestellt werden (min. 150cm^2 ).
- Es ist darauf zu halten, dass die Abstände zu brennbaren Bauteilen und Materialien -seitlich, vorne und hinten- eingehalten werden. Diese Abstände entnehmen Sie der Bedienungsanleitung oder dem Typenschild.
- Die Feuerstätte darf nicht verändert werden, ansonsten verlieren Sie die Zulassung.
- Der Anschluss an einem Schornstein, dessen wirksame Höhe unter 4m, bei Mehrfachbelegung 5m liegt, ist unzulässig. An dem zum Anschluss des Ofens vorgesehen Schornstein dürfen hochstens zwei bis drei weitere Feuerstätten angeschlossen sein.
- Bei einem Schornsteinbrand verschlieben Sie sofort alle Öffnungen am Gerät und verständigen sie die Feuerwehr. Versuchen sie auf keinen Fall selbst zu Löschen. Danach unbedingt den Schornstein vom Fachmann überprüfen setzen.
- Festbrennstoffe erzeugen naturgemäß Ruß, ein Verschmutzen der Sichtscheibe ist dadurch niemals vollig ausgeschlossen und stellt keinen Mangel dar.
- Speck- und Sandstein ist ein Naturstein,ecause sind Farbabweichungen und Farbänderungen normal und kein Grund zur Reklamation.
1. Bedienung
1.1 Geräteaufbau


1.2 Inbetriebnahme
Brennstoffe
Das Gerät ist ausschließlich für den Betrieb mit nachfolgend aufgeführten Brennstoffen geeignet. Nur damit ist ein raucharmer und störungsfreier Betrieb gewährleistet. Verwenden Sie nur natur belassenes, trockenes Scheitholz mit einer Restfeuchte von max. 20% und Braunkohlenbrikettes.
Bei den Geräten ist der Sekundärluftschieber an der Rückseite montiert.
Bei Holz, Sekundärluftschieber auf Stellung 2 stellen, bei Kohle auf Stellung 1 stellen.
| Brennstoffart Heizwert ca. kJ/kg | |
| Braunkohlebriketts | 19.500 |
| Hartholz | 15.900 |
| Weichholz | 11.500 |
Nicht zulässige Brennstoffe sind z.B.:
Die Verbrennung von Abfallen, Feinhackschnitzeln, Rinden, Spanplattenresten, Kohlegruß, feuchtem oder mit Holzschutzmitteln geheltem Holz, Papier und Pappe o.ä. ist verboten. Zum Anzünden sollen Holzwolle oder Grillanzünder verwendet werden. Keine flüssigen Anzündhilfen verwenden!
Achtung!
Beim ersten Anheizen konnte es zu Rauchentwicklung und Geruchsbelastigung kommt. Unbedingt für gute Raumbeluftung sorgen (Fenster und Turen öffnen) und mindestens eine Stunde auf max. Nennwärmeleistung heizen. Sollte beim ersten Heizvorgang die max. Temperatur nicht erreicht werden, so können diese Erscheinungen auch später noch auftreten.
Mit dem Primäreluftschieber konnen Sie die Nennwärmeleistung einstellen. Es dürfen nur die Einstellungen getätigt und Brennstoffmengen aufgegeben werden, die Ihrum zugelassenen bzw. gekauften Gerät entsprechen (Typenschild).
Verbrennungslufteingstellung:
Die Schiebereinstellungen müssen immer in der Mitte der Bezeichnungen liegen.
Tabelle 1
| Brennstoff | Primäreluftschie-ber Stellung | Brennstoffwäh-ler Stellung | Brenn-dauer | |
| Anheizen | III H | - | ||
| Scheitholz | Nennwärme-leistung | II H ca. 0,75 h | ||
| Braunkohle-brikett | Nennwärme-leistung | III K ca. 1h | ||
| Außerbetriebnahme | I K - | |||
Füllmengen / Anzünden:

olz max. 1,7 kg, ca. 3-4 petite Scheite pro Füllung,
Anzündvorgang Holz kreuzschlichen, Scheitholzlänge max. 33cm,
Ø 5 - 12 cm, Rundlinge spalten,
NWL Braunkohlebrikett max. 1,7 kg (ca. 2-3 Stk.) auf Grundglut
Holzbrikett nach DIN 51731 max. 1,4kg , evtl. zerkleinern
Erstes Anheizen
Vor Inbetriebnahme sind die Transportsicherungen auf der Umlenkplatte über dem Feuerraum (Bild 6) Herauszunehmen und evtl. Aufkleber auf der Sichtscheibe ruckstandsfrei zu entfernen.
Die Heiztür öffnen durch Hebden des Griffes nach oben (Bild 2). Bei weißem Gerät ist dazu ein isolierter Schutzhandschuh zu benutzen. Den Primäreluftschieber und Brennstoffwähler (Bild 3) entsprechend der Tabelle 1 einstellen.
Kohleanzünder oder Holzwolle auf den Rost legen, darüber Holzpane geben. Darauf erst ein kleineres, dann größeres Holz geben, anzüden und Heiztür wieder verschlieben. Wenn das Feuer lebhaft brennt und eine ausreichende Grundglut vorhanden ist erneut Brennstoff aufgeben. Danach den Primäreluftschieber entsprechend der Tabelle 1 „Verbrennungsluftstellung" einstellen.
Das ersten Anheizen sollt „sanft" verlaufen, mit geringer Menge Brennmaterial, damit sich die Ofenteile an die Hitze gewöhnen konnen. Beim ersten Anheizen könnte es zu Rauchentwicklung und Geruchsbelastigung kommt. Unbedingt für gute Raumbelüfung sorgen (Fenster und Turen öffnen) und mindestens eine Stunde auf max. Nennwärmeleistung heizen. Sollte beim ersten Heizvorgang die max. Temperatur nicht erreicht werden, so konnen diese Erscheinungen auch später noch auftreten.
Den Brennstoff nicht in den Brennraum einwerfen, sondern einlagen, da sonst die Ausmauerung beschädigt werden kann.
Achtung!
Beim Offnen der Heiztür kann es bei Fehlbedienung oder bei nicht ausreichendem Schornsteinzug zu Rauchaustritt kommt. Es ist unbedingt zu beachten, dass die Heiztür nur langsam, zuerst einen Spalt und nach ein paar Sekunden ganz geöffnet werden darf. Außen dem soll vor dem Offnen der Tur zum Nachlegen von Brennstoff nur noch das Glutbett im Brennraum vorhanden sein, das heißt, es)dürfen keine Flammen mehr sightbar sein.
1.3 Außerbetriebnahme
Türen schlieben, Primäreluftschieber in geschlossene - Stellung bringen.
Restglut ausbrennen und Ofen abkühlen halten.
Feuerraum und Aschenkasten bei kaltem Gerät reinigen und entleeren!
1.4 Hinweise zum Heizen
Der Kaminofenarf nur mit geschlossener Fultur (Heiztur) betrieben werden.
Thesearf nur zum Anheizen, Nachlegen oder Reinigen des Feueraums geffnet werden (evtl.Zugprobleme bei weiteren am Schornstein angeschlossenen Geraten).
Eine abgestimmt zugeführte Sekundärluft sorgt für die Nachverbrennung der im Abgas enthaltenen brennbaren Bestandteile. Ein Verschmutzen der Scheibe kann aber bei Festbrennstoffen nicht ausgeschlossen werden und stellt keinen Mangel dar. Dies bedeutet eine rauch- und russarme Verbrennung zur Schonung der Umwelt. Sollen Sie ihren Ofen in der Übergangszeit in Betrieb erhöhen, dann prufen Sie vorher den Schornsteinzug, da dieser bei hohen Außentemperaturen sehr gering sein kann. Zu dieser Zweck halten Sie ein brennendes Zündholz in die ein weniger geöffnete Heiztür. Wenn die Flamme nicht deutlich angesaugt wird, ist zunachst ein sogenannten Lockfeuer zu erzeugen. Hierzu wird kurzzeitig Holzpane/-Wolle im Ofen oder in der Reinigungsoffnung des Schornsteins entzündet. Der Rost (Bild 5) sollte vor jeder Brennstoff-aufgabe gereinigt bzw. gerüttelt werden, um eine gute Verbrennungsluftzufahr zu gewährleisten. Der Aschenkasten ist regelmäß im kalten Zustand zu entleeren (Bild 4). Bei noch freiem Gerät beiliegenden Schutzhandschuh verwenden.itte beachten Sie damit, dass keine glühenden Verbrennungsrückstände in die Mülltonne gelangen. Es ist darauf zu achten, dass der Aschenkasten immer bis Anschlag eingeschoben wird.
Achtung!
Im Interesse der Luftreinhaltung und dem Ofen sollen die angegebenen max. Brennstoffaufgabemengen nicht überschritten werden, da sonst die Gefahr des Überheizens besteht, was zu Beschädigungen am Gerät führen kann. Beschädigungen solcher Art, unterliegen nicht der Garantiepflicht. Eine reduzierte Heizleistung solle nur durch Verringerung der Aufgabemenge und nicht durch Reduzierung der Primäreluft erfolgen.
1.5 Reinigung und Pflege
Mit richtig Betrieb/Bedienung undgreater Pflege/Wartung erhohen Sie die Wertstabilität und Lebensdauer ihrer Geräte. Sie spare wertvollen Ressourcen und schonen unsere Umwelt und ihren Geldbeutel. Zur Reinigung, ist die Umlenkplatte (Bild 7 Nr. 2) nach vorne zuziehen. Dadurch kann der Abgasweg voninnen, oder wenn das Abgasrohr halten wird, von oben gereinigt werden.
Die Umlenkplatte (Bild 7 Nr. 2) ist nach dem Reinigen wieder ganz nach hinten zuschieren.
Achtung :
Nach jeder Heizperiode ist es angebracht, den Ofen gründlich zu kontrollieren. Wenn Ausbesserungen oder Erneuerungen vorgenommen werden,müssen,wenden Sie sichitterechtzeitig unter Angabe der Artikel-Nr. und der F.-Nr.(siehe Typschild) an ihren Fachhändler.
Reinigen Sie ihre Sichtscheibe vor der ersten Benutzung mit einem feuchten sauberen Tuch. Verreiben Sie danach eine Tropfen eines Pflegemittels für Glaskeramik Scheiben mit einem Kuchenpapier auf beiden Seiten der Scheibe.
Nach dem Nachwischen und Trockenpolieren ist die hochwertige Oberfläche mit einem unsichtbaren Film überzogen, dieser hilft die Scheibe sauber zu halten und erleichtert bei regelmäßiger Wiederholung die Reinigung.
Festbrennstoffe erzeugen naturgemäß Ruß, ein Verschmutzen der Sichtscheibe ist dadurch niemals vollig ausgeschlossen und stellt keinen Mangel dar.
Pflege von Nasslack und Pulverbeschichtungen: Die Pflege der äußerten Flächen ist nur bei kaltem Ofen zu empfehlen. Die lackierten Flächen sollenn nur mit klarem Wasser, vorsichtig und mit einem leicht befeuchteten weichen Tuch gereinigt werden (nicht scheuern). Vorab an einer nicht sightbaren Stelle das Lackverhalten testen. Bei pulverbeschteten Flächen kann in besonderen Fällen vorher mit Seifenlauge oder etwas Geschirrspulmittel behandelt und dann leicht trocken gerieren werden.
Pflege von Keramik- und Glasverkleidungsteilen: Schmutz und Fett kann mit Seife und Wasser entfernt werden.
Pflege von Speckstein und Sandstein: Speck- und Sandstein ist ein Naturstein, davon sind Farbabweichungen und Farbänderungen normal und kein Grund zur Reklamation! Schmutz und Fett kann mit Seite und Wasser, keine Kratzer mit Nassschleifpapier (Körnung 240) halten werden.
Achtung: Auf keinen Fall sollenn Sie bei der Pflege Schwämme, Scheuermittel, aggressive oder kratzende Reinigungsmittel verwenden!
Arbeiten, wie insbesondere Installation, Montage, Erstinbetriebnahme und Servicearbeiten sowie Reparaturen, *{d}rufen nur durch einen ausgebildeten Fachbetrieb (Heizungs- oder Luftheizungsbau) durchgefuhrt werden. Bei unsachgemäßen Eingriffen erlöschen Gewährleistung und Garantie.
Holztrocknung und -Lagerung
Holz braucht Zeit zum Austrocknen. Lufttrocken ist es bei richtiger Lagerung nach ca. 2 - 3 Jahren. Dazu einzige Hinweise:
- Sie sollen das Holz gebrauchsfertig zersagt und gespalten lagern. Dadurch ist eine rasche Trocknung gewährleistet, Denn keinere Holzstücke trocknen better als Meterspalten.
- Ihr Scheitholz sollenn Sie an einer belufteten, möglichst sonstigen Stelle regengeschützt aufschnitten (idealer weise Südseite).
- Lassen Sie zwischen den einzelnen Holzstößen eine Handbreite Abstand, damit die entströmende Luft die entweichende Feuchtigkeit mitnehmen kann.
- Decken Sie ihren Holzstoss keinesfalls mit Plastikfolie ab, sie lasst die Feuchtingkeit nicht entweichen.
- Stapeln Sie frisches Holz nicht im Keller, da es Dort wegen der geringen Luftbewegungepherr fault,statt trocknet.
Lagern Sie nur bereits trockenes Holz in trockenen Kellerräumen.

Bild 2

Bild 3




Transportsicherung Wellpapierrolle

Bild 5

Bild 7
1.6 Störungsursachen, Behebung
| Art der Störung mögliche Ursache Behebung | ||
| Geruchbildung: Austrocknung der angewerten Schutzfarbe. Verdampfung von Ölresten | Den Ofen entsprechend der Bedienungsanleitung mehrere Stunden in Kleinstellung betreiben. Danach für mehrere Stunden auf maximale Leistung heizen. | |
| Zu geringe Wärmeab-gabe: | Geräteleistung zu Klein gewählt. Zu geringer Schornsteinzug | Lassen Sie ihren Wärmebe-darf vom Fachmann kontrol-lieren. Der erforderliche Schornsteinzug muss mind. 11 Pa und damit kurzzeitig max. 18 Pa haben. Kontrollieren Sie ihren Schornstein auf Dicht-heit. Die Türen anderer an diesen Schornstein ange-schlossenen Feuerstätten dicht verschreiben. Vor allem auf undichte Schornstein- bzw. Reinigungsverschlüsse achteten. Eventuell mit senkrechter Anlaufstre-cke anschließen. Die gesamten Abgasrohr-verbindungenemen gut abgedachtet sein und feuer-fest gedämmt werden. Dichtung kontrollieren, Türen gut verschreiben. Eventuell Dichtschnur erneuern setzen. Nur gut getrocknetes Holz verwenden. |
| Zu langes und undichtes Abgasrohr | ||
| Undichtheiten an der Glas-/Heiz-/Aschentür | ||
| Verbrennung von zu feuchtem Holz | ||
Maßnahmen bei Schornsteinbrand
Bei ungenügender Reinigung des Schornsteins, bei falschem Brennstoff (z. B. zu feuchtes Holz) oder falscher Verbrennungslufteinstellung kann es zu einem Schornsteinbrand kommt. Schließen sie in so einem Fall die Verbrennungsluft an der Feuerstätte und rufen Sie die Feuerwehr. Niemals selbst versuchen mit Wasser zu Löschen.
2. Aufstellung
2.1 Vorschriften
Bei der Aufstellung und dem abgasseitigen Anschluss sind die anwendbaren nationalen und europäischen Normen, örtliche und baurechtliche Vorschriften/Normen (z.B. DIN 18896, DIN 4705, DIN EN 13384, DIN 18160, DIN EN 1856-2, DIN EN 15287 u.a.) sowie feuerpolizeiliche Bestimmungen (z.B. FeuVo) zu beachten. Lassen Sie das Gerät nur von einem qualifizierten Fachmann aufstellen und anschlieben. Zur korrekten Funktion Ihres Gerätes muss der Schornstein, an den Sie das Gerät anschreibenben sollen, in einwandfreiem Zustand sein.
2.2 Aufstellräume
Da der Kaminofen die zur Verbrennung benöttige Luft dem Aufstellungsraum entnimmt, ist damit zu sorgen, dass über die Undichthieten der Fenster oder Außentüren stets genügdent Luft nachströmt. Man kann davon ausgegeben, dass dieser durch ein Raumvolumen von mind. 4m^3 je kW Nennwärmeleistung gewährleistet ist. Ist das Volumen geringer, kann über Luftungsöffnungen ein Verbrennungsluftverbund mit anderen Räumen hergestellt werden (min. 150cm^2 ).
2.3 Geräteabstände
Alle brennbaren Bauteile, Möbel oder auch z.B. Dekostoffe in der erharen Umgebung des Ofens sind gegen Hitzeeinwirkung zu schützen.
Einrichtungsgegenstände im Strahlungsbereich
Im Sichtbereich (Strahlungsbereich) des Feuers muss zu brennbaren Bauteilen, Möbel oder auch z.B. zu Dekostoffen ein Abstand von mindestens 80 cm (A), gemessen ab Vorderkante Feuerraumöffnung eingehalten werden. Der Sicherheitsabstand reduziert sich auf 40 cm (B), wenn ein belufteter Strahlungsschutz vor das zu schützende Bauteil montiert wird (Beispiel siehe Abb. 8)
Einrichtungsgegenstände außerhalb des Strahlungsbereichs
Die Stellwände seitlich und hinter dem Gerät dürfen nicht aus brennbaren Baustoffen hergestellt, oder mit brennbaren Baustoffen verkleidet sein, sofern ein Abstand von seitlich 20 cm und halten 30 cm untersritten wird.
Der Seitenabstand zu Möbelteilen aus Holz oder Kunststoff muss ebenfalls 20 cm betragen (siehe Abb. 9).

Bild 8

Bild 9
Boden unter und vor dem Ofen
Fußböden aus brennbarem Material, wie Teppich, Parkett oder Kork, müssen unter dem Ofen sowie von der Feuerraumöffnung 50 cm nach Vorne und 30 cm seitlich durch einen Belag aus nicht brennbaren Baustoffen, z.B. Keramik, Stein, Glas oder einer Bodenplatte aus Stahl, ersetzt oder geschützt werden.
2.4 Schornsteinanschluss
ACHTUNG:
Vor dem Anschluss des Gerätes ist in jeder Fall der zuständige Bezirks-Schornsteinfegermeister zu Rate zuziehen!
Verbindungsstücke müssen am Gerät und unterinander fest und dicht verbunden sein. Sie dürfen nicht in den freien Schornsteinquerschnitt hineinragen. Das Verbindungsstück zwischen Kaminofen und Schornstein soll den gleichen Querschnitt haben wie der Rohrstutzen am Ofen. Waagerechte Verbindungsstücke über 0,5 m sollen zum Schornstein hin um 10 Grad ansteigen. Rohre, die nicht wärmegeschützt oder senkrecht ge
fuhrt sind, sollen nicht länger als einen Meter sein.
Es sind die Forderungen der Feuerungsverordnung (FeuVO), die jeweiligen Länderbauordnungen sowie für den Schornstein die DIN 4705, DIN 18896, DIN EN 13384, DIN 18160 und der DIN EN 15287 zu beachten.
Verbindungstücke müssen nach DIN EN 1856-2 geprüft sein. Das Maß X (Abstand zu brennbaren Baustoffen/Materialien) muss nach Angaben des Herstellers des Verbindungsstücks eingehalten werden.

ACHTUNG:
Der Anschluss an einem Schornstein, dessen wirksame Höhe unter 4m, bei Mehrfachbelegung 5m liegt, sollte vermieden werden. Ausschlaggebend dazu ist die Berechnung nach EN 13384. / Daten zur Schornsteinberechnung Kapitel 3. /
An dem zum Anschluss des Ofens vorgesehenen Schornstein dürfen hochstens zwei bis drei weitere Feuerstätten angeschlossen werden.

3. Technische Daten
3.1 Maßzeichnungen, Daten


TYP10160 CHARISMA
TYP10170 ARTE
TYP10161 FLAIR
TYP10162 GALA
TYP10162 GALANT
TYP10170 IMPRESSION
TYP10170 AVANTGARD
TYP10170 VITA
TYP10160 BOLERO
TYP10170 EL PASO



TYP10164 METROPOLITAN

| Typ: TYP 10160 CHARISMA | TYP 10170 ARTE TYP 10161 FLAIR TYP 10162 GALA TYP 10162 GALANT TYP 10170 IMPRESSION TYP 10170 AVANTGARD TYP 10170 VITA TYP 10160 BOLERO TYP 10170 EL PASO TYP 10164 METROPOLITAN |
| Nennwärmeleistung 7,0 kW | |
| Ruumheizvermögen m3 -bei gänstigen, -weniger gänstigen, -ungünstigen Heizbedingungen nach DIN 18893/TAB. 2 bei Zeitheziehung | |
| Abgaswerte: Brennstoff: | Scheitholz / BB7" |
| Abgasmassenstrom | 7,0 g/s |
| Abgasstutzentemperatur | 380 °C |
| Förderdruck bei Nennwärmeleistung | 11 Pa |
| Staub (bezogen auf 13% O2) | ≤ 40 mg/Nm3 |
| CO (bezogen auf 13% O2) | 999 / 838 mg/Nm3 |
| Wirkungsgrad | ≥ 78 % |
Alle Angaben der Abgaswerte beziehen sich auf die EN 13240 unter stationären Laborbedingungen
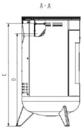
3.2 Maße
| Typ | A(mm) | B(mm) | C(mm) | D(mm) | E(mm) | F(mm) |
| TYP10160 CHARISMA 570 400 112 | 22 989 | 1095 100 | ||||
| TYP10170 ARTE 565 450 1161 990 | 1096 | 118 | ||||
| TYP10161 FLAIR Speckstein 581 455 1138 | 990 1096 | 118 | ||||
| TYP10161 FLAIR Granit 581 455 1138 990 | 1096 118 | |||||
| TYP10161 FLAIR Edelstahl 581 455 1138 990 | 1096 118 | |||||
| TYP10162 GALA 495 455 1138 990 | 118 | |||||
| TYP10162 GALA Speckstein 495 455 1138 990 | 1096 118 | |||||
| TYP10162 GALA GRANIT 495 455 1138 990 | 118 1096 118 | |||||
| TYP10162 GALANT 495 395 1138 990 | 1096 103 | |||||
| TYP10162 GALANT Speckstein 495 395 1138 990 | 1096 103 | |||||
| TYP10170 IMPRESSION | 561 506 1242 | 897 1043 | 112 | |||
| TYP10170 AVANTGARD | 656 600 1285 | 950 1091 | 241 | |||
| TYP10170 VITA | 561 506 1285 | 897 1043 | 112 | |||
| TYP10160 BOLERO | 632 417 1255 | 990 1095 | 112 | |||
| TYP10170 EL PASO | 561 506 1242 | 897 1043 | 112 | |||
| TYP10164 METROPOLITAN | 644 668 1138 | 962 1065 | 263 |
Die angeführten Abmessungsangaben sind nur zur Information! Wir behalten uns das Recht von Konstruktionsdifferungen vor, falls diese das technische Niveau erhöhen, oder die Qualität verbessern!
3.3 EG Konformitätserklärung

Wamsler Haus- und Kuchentechnik GmbH
EG-Konformitätserklärung
Hersteller:
Wamsler Haus- und Kuchentechnik GmbH, Gutenbergstr. 25, D-85748 Garching
Produktbezeichnung: Kaminofen
Typ: TYP 101 60 / 61 / 62 / 63 / 64 / 70
Die bezeichneten Produkte stimmen mit den Vorschriften folgender Europäischer Richtlinien überein:
89/106/EWG: Bauprodukten-Richtlinie
Der Nachweis erfolgt nach EN 13240:2001/A2:2004/AC:2007 gemäß Anhang ZA, durch die Prüfberichte Nr. FSPS-Wa 1518 und FSPS-Wa 1919 der staatlich akkreditierten Prüfstelle RWE Power AG Frechen (notified body number 1427) vom 21.06.2006 und 11.11.2009.
München, den 11.09.2011


Geschäftsführer
K.D. Knabel
Technische Leitung
A. Freund
These Erklärung beschinent die Übereinstimmung mit den genannten Richtlinien, beinhaltet jeder keine Zusicherung von Eigenschaften. Die Sicherheitshinweise der mitgelieferten Produktdokumentation sind zu beachten. Bei Änderungen an den o. g. Geräten durch Dritte, verliert diese Erklärung ihre Gültigkeit.
Änderungen, die dem technischen Fortschritt dienen und / oder einer Qualitätverbesserung bewirken, behalten wir uns vor. Für Druckfehler und Änderungen nach Drucklegung können wir keine Haftung übernehmen.
Foreword
GB
Dear Customer!
WAMSLER Haus- und Kuchentechnik GmbH
Manufacturer: Wamsler Haus- und Kuchentechnik GmbH, Gutenbergstr. 25, D-85748 GARCHING, Germany
WAMSLER Haus- und Kuchentechnik GmbH
Fabricant: WAMSLER Haus- und Kuchentechnik GmbH, Gutenbergstr. 25, D-85748 Garching, Allemagne
WAMSLER Haus- und Kuchentechnik GmbH
Haus – und Kuchentechnik GmbH
Gutenbergstr. 25
D-85748 Garching bei München
Telefon +49 (0)89 32084-0
Telefax +49 (0)89 32084-294
www.wamsler.eu
Änderungen, die dem technischen Fortschritt dienen und / oder einer Qualitätverbesserung bewirken, behalten wir uns vor. Für Druckfehler und Änderungen nach Drucklegung können wir keine Haftung übernehmen.
EinfachAnleitung