BHG770SS - Cocina BAUMATIC - Manual de uso y guía de instrucciones gratis
Encuentra gratis el manual del aparato BHG770SS BAUMATIC en formato PDF.
Descarga las instrucciones para tu Cocina en formato PDF gratis! Encuentra tus instrucciones BHG770SS - BAUMATIC y toma tu dispositivo electrónico nuevamente en la mano. En esta página están publicados todos los documentos necesarios para el uso de su dispositivo. BHG770SS de la marca BAUMATIC.
MANUAL DE USUARIO BHG770SS BAUMATIC
Instalación - Uso - Mantenimiento [51-62]
MESAS DE ENCASTRAR ELECTROGÁS FILOTOP TOUCH
Instalacao - Uso - Manutencao [63-74]
le agradecemos mucho y le felicitamos por su elección.
Este nuevo producto, cuidadosamente estudiado y construido con materiales de primera calidad, ha sido probado esmeradamente para poder satisfacer todas sus exigencias de una perfecta cocción. Por lo tanto le rogamos lea y respete las fácilas instrucciones que le permitiránURTAR a resultados excellentes desdela primerautilizacion.
Con este moderno aparato le expresamos nuestras miglioras felicitaciones.
EL CONSTRUCTOR
Indices
Instrucciones para el usuario
Instalacion, 52
Utilizacion, 52
Mantenimiento, 55
Instrucciones para el instalador
Instalacion, 56
Conexión gas, 59
ESTE PRODUCTO FUE CONCEBIDO PARA UN USO DE TIPO DOMESTICO. EL CONSTRUCTOR DECLINA CUALQUIER RESPONSABILIDAD EN EL CASO DE DANOS EVENTUALES A COSAS O PERSONAS QUE DERIVEN DE UN INSTALLACION INCORRECTA O DE UN USO IMPROPIO, ERRADO O ABSURDO. NO PUEDEN UTILizar EL APARATO PERSONAS (INCLUIDOS NINOS) CON CAPACIDADES FISICAS, SENSORIALES O MENTALES REDUCIDAS, NI PERSONAS QUE NO DISPONGAN DE LA

Italiano

English

Français

Deutsch

Espanol

Portugues
EXPERIENCIA Y DE LOS CONOCIMIENTOS NECESARIOS, A MENOS QUE ESTEN BAJO LA SUPERVISION DE UNA PERSONA RESPONSABLE DE SU SEGURIDAD O HAYAN RECIBIDO LAS INSTRUCCIONES NECESARIAS SOBRE LA UTILIZATION DEL APARATO. LOS NINOS TIENEN QUE ESTAR CONTROLADOS PARA ASEGURARSE DE QUE NO JUEGAN CON EL APARATO.
Instrucciones para el usuario
Instalación
Todas las operaciones relativas a la instalacion (conexion electrica, conexion de gas, adaptacion al tipo de gas, regulaciones correspondentes, etc.) tienen que ser efectuadas por personalrial significado segun las normas vigentes. Para las instrucciones especillasvease la parte reservada al instalador.
Utilización
Modalidad standby (Fig. 1-2-3)
Després de haber alimentado el dispositivo, se llama a cabo un breve autodiagnostic y una calibración del panel táctil (todos los display y los led permanecen encendidos durante algunossegundos).Al final el display quedará Completely apagado. En esta modalidad sera possible encender el dispositivo solo pulsando la tecla ON/OFF.
Encender la plac de coccion
Para encender el dispositivo es besoino pulsar de forma continua la tecla ON/OFF durante por lo menos 2segundos.El dispositivo se encenderay los display que corresponden a los quemadores visualizaran el nivel cero que corresponde al estado de quemadores apagados.
Encender un quemador
Para encender un quemador pulse las correspondientes teclas + y- en el panel de mandos. La pulsacion de las teclasiene que efectuarse de forma simultanea y continua durante por lo menos 1 segundo. Cuando se enciende el quemador el nivel de caudal del quemador se configura al caudal medio y el correspondiente display indicar a el nivel 3.
Cada quemador para el que no se ha programado el correspondiente temporizador, se apaga de forma automática tras 4 horas de funciona continuo.
El encendido del quemador seenialeda mediating el correspondiente led que se encuesta circa del display temporizador y que permanecerá activo durante todo el tiempo que el quemador permanece encondido.
Regulación del nivel de llama de un quemador
Con el quemador encendido, para augmentar el nivel de caudal es besoino pulsar la tecla +, viceversa para disminuir el nivel de capacité, es besoino pulsar la tecla - Para Obtener una variacion continua del nivel de caudal, es suficiente tener pulsada la tecla + o - y soltarla en el nivel desrado. El nivel de caudaluedevariar de 1 a 5.
Apagar un quemador
Para Obtener el apagado de un quemador es你需要 pulsar de forma contemporánea las respectivas teclas y - durante un breve instante.
Apagar todos los quemadores
Para Obtener el apagado simultaneo de todos los quemadores es suficiente pulsar brevamente la tecla ON/OFF, de esta forma el dispositivo se situara en condidion de standby.
Programar el tiempo de apagado de un quemador
Con el dispositivo es possible configurar de forma independiente para cada uno de los quemadores, un tiempo más allá del在哪 el quemador se apaga de forma automatica.
Para configurar la programación del temporizador de un quemador es necesario pulsar la tecla PT. En la parte del panel de mandos, donde se encuesta representada la posición de cada quemador con un led, el indicator del quemador A (Led-A) se encenderá paraecer al quemador A está selectionadoactualmente para la programación. Con las teclas P + y P -es possible selectionar el quemador a temporizar. El quemador selectionado se localiza por el encendido del correspondiente indicador en modalidad luz intermitente. El display temporizador落户a la indicacion 0.00 paraecer al quemador selectionado no está activo. Para configurar la programación del tiempo de apagado del quemador selectionado, pulse de nuevo la tecla PT; el display del temporizador indicará 0.00. El número que parpadea a la izquierda del punto indica las horas, los de la derecha los minutes. Pulsando las teclas P + o P -es possibleacular o disminuir el número de horas de configuracionado de 0 a 9.Manteniendo pulsadas las teclas P + o P -la variación del número de horas de produce de forma continua.
Para específicar el número de los Minutes, pulse de nuevo la tecla PT. Se activa el parpadeo de los nombres situados a lackecha del punto separador. Para configurar los Minutes efectue lo mesmo indicado para las horas.
Durante la programación del tiempo es posible poder a cero en todo momento la configuración corrente pulsando juntas las teclas P+ y P-. Un tiempo igual a cero desactiva el temporizador del quemador. Para confirmar el tiempo visualizzato en el display esnecessary pulsar la tecla PT. Se quan encendidos de forma intermitente solo los signaladores de los quemadores que tienen el temporizador activo.
Pulsando la tecla PT es possible volver a la modalidad de programacion de los temporizadores para visualizar el tiempo restante antes del apagado o para modifier las configuraciones corrientes. Si durante la programacion no se pulsa ninguna tecla durante un periodo superior
a los 10 seguidos, el procedimiento de configuración se interrupse de forma automática y se vuelve a la visualización principal. Eventuales configuraciones durante la modificacion en el quemador seleccionado no se pierden y el correspondiente temporizador resultará activo.
El temporizador se pueda programar tanto con el quemador apagado como con el quemador encendido, y el計算O empezararjusto despues de la confirmacion del tiempo configurado. Al terminar la cuenta, el quemador temporizado se apaga y de forma contemporanea se emite una secuencia de impulsos sonoros durante 30segundos.Esta secuencia se peute interruptir seleccionando la tecla PT.
El hecho que el usuario apague un quemador determina la desactivacion del correspondiente temporizador.
Regular el reloj
Tras una Interruption de alimentacion sera necessario configurar la hora visualizada por el reloj interior del dispositivo.
Para regular el reloj es besoino pulsar de forma contemporanea las teclas PT, P- y P+ durante por lo menos 3segundos.
El número que parpadea a la izquierda del punto indica las horas, los de la derecha los关键时刻. Pulsando las teclas P + o P - es possible augmentar o disminuir las horas, y mantenendo pulsadas las teclas P + o P - la variación del número de horas se produce de forma continua.
Para regular los Minutes pulse de nuevo la tecla PT. Seactivara el parpadeo de los nombres a la derecha del punto separador y bajo para variar los Minutes efectue lo mesmo que se indica para las horas.
Pulsando la tecla PT se memoriza el horario configurado.
Desbloquear quemador
Los quemadores en estado debloqueo disponible del correspondiente display que visualiza el caracter "b". El desbloqueo se activa pulsando juntas las teclas - del quemador A y la tecla KL de forma continua durante por lo menos 2segundos. Al final del desbloqueo los quemadores se situan de nuevo en el nivel O, listos para ser encendidos other.
N.B: si se repite el procedimiento de desbloqueo 5 vezes consecutivas en un periodo de 15关键时刻, el dispositivo visualizará FT06 y no aptará nunca Solicitud de desbloqueo durante los siguientes 15关键时刻.
Bloquear el teclado
Se activa pulsando la tecla KL durante por lo menos 2 segundos. Todos los niveles de los quemadores permaneceran en el nivel actual. El estado del teclado bloqueado se manifesta con el encendido de los+puntos decimales en los display del nivel de caudal de cada
quemador. Durante el bloqueo del teclado ya no es possible variar los niveles de los quemadores oCambiar las configuraciones del temporizador, pero es possible enequalquier caso apagar la placac de coccion pulsando la tecla ON/OFF.
No es posible desbloquear un quemador bloqueado,maintras el bloqueo del teclado está activo. Por lo tanto, sera necessario desbloquear el teclado antes de efectuar el procedimiento de desbloqueo de los quemadores.
Desbloquear el teclado
El teclado se desbloquea pulsando la tecla KL y la tecla + del quemador A durante por lo menos 2segundos. El desbloqueo del teclado se manifiesta con el apagado de los+puntos en los display del nivel llama.
Calor restante
Cuando se apaga un fogón, en el display correspondiente aparece una "H" para signalar en este quemador la presencia de una Temperatura todaya elevada, también el correspondiente led cerca del display del temporizador permanece encendido.
El@simbolo"H"y el led se apagan suscesivamente cuando la temperatura del correspondiente quemador se ha reducido.
Cocaciones especialas lentas (Duty cycle)
Estamericano.
La quocion de la placac de coccion segun la sequencia que aparece en la tabla.
| NIVEL CONFIGURADO | 1 2 | 3 4 5 | |||
| TIEMPO DE APAGADO | 10 Sec. | 20 Sec. | 30 Sec. | 40 Sec. | 50 Sec. |
| TIEMPO DE ENCENDIDO | 50 Sec. | 40 Sec. | 30 Sec. | 20 Sec. | 10 Sec. |
La funciona seactiva pulsando de forma contemporanea la tecla ^+ del fogon en el que se quiere aplicar, y la tecla PT (el quemador interesado tiene que estar apagado.
cuando se activa la funciona).
El quemador se enciende a nivel 3 y en ese momento se peut configurar, acontenderas teclas +y -, el nivel al cui aplicar la referencia.
Si por exemple se configura el valor a nivel 1, el quemador permanecerá encendido durante 50segundos, bajo se apagará durante 10segundos y bajo repetirá este ciclo hasta que el usuario apague el quemador.
Si el usuario no interviene, se apaga de forma automatica, las 60 horas. Cuando está activa esta funciona, el display del fogón en el que está activa parpadea.




N.B.:
- Ze aconteja utiliser sartenes de diametro apto a los quemadores evitando que la llama al máximo salga del fondo de las malmas
- noalarlasvaciasconel fuegoencendido Al final de la coccion se aconseja ciirren el grifo principal del tubo y/o de la bombona.

Fig. 4
Mantenimiento
Antes de cualquier operación desconectarélectricamente el aparato. Para una mayor duración del aparato es indispensable efectuar periodically una cuidadasa limpieza general teniendo enIELDalo suiviente:
- las partes en vidrio, de acero y/o esmaltadas tienen que ser limpiadas con productos idoneos (que se pueda encontrar a la vente) no abrasivos ni corrosivos. Eviten productos a base de cloro (lejía de algas, ecc.):
evitendefer sboreel tablerode trabajo acidas o alcalinas (vinagre, sal, zumo de limon, ecc.): - los rompellamas y las tapaderas (partes del quemador) tienen que ser lavados a bajo con agua muy caliente y detergente teniendo el cuidado de quitar toda incrustacion, SIXen que ser secados cuidadosamente, y hay que controlar que ninguno de los agujeros de los rompellamas este obturado, ni窈iera parcialmente:
Controlar periodically el estado de conservacion del tubo flexible de alimentacion gas. En caso de perdidas solicitar la intervencion inmediata del personalequalido para su sustitución.
NO UTILIZAR LIMPIADOSES A VAPOR
substencias
movibles
Instruccionespara el instalador
Instalación
Este aparato no tiene un dispositivo de descarga de los productos de la combustión. Se aconseja instalarlo en locales suficientemente aireados según las dispositionses de ley vigentes. La calidad de aire Neededa a la combustión noiene que ser menos que 2.0m^3 /h por cada kW de potencia instalado. Véase tabla potencias quemadores.
Colocacion (Fig. 5)
El aparato está preparado para ser empotrado en una mesa de trabajo tal como se ilustra en la figura correspondiente.
Antes de introducir la plac de coccion es necessario preparar la guarnacion de estanqueidad 已 en todo el perimetro de la perforacion del empotrado.
Las medidas de empotrado aparecen en las figuras 6-7-8-9.
Para los modelos Filotop esnecessary efectuar una
reduccion en alteura en la zona perimetral del orificio de
empotrado de 1,5 mm de profundidad.
Para los modelos Semifilotop este fresa no de tenerque efectuar.
La instalación se pueda realizar sobre materiales distinctos como acero, marmol, conglomerados, sintéticos, madera y madera revestida con laminados de plástico, siempre que Sean resistentes a una temperatura de 90^ .

Fig. 5

Debrero del panel se Tiene que instalar un panel de madera u other material aislante, colocado a una distancia minima de 15 mm del envase de la plac.



Fig.8 4-TRIPLE CORONA


1-AUXILIAR
2-SEMIRAPIDO
3 - RAPIDO
4-TRIPLE CORONA
N.B. Para la version Semifilotop la reduccion en alteura de 1,5 mm no es necessitiesa.

Fig. 9
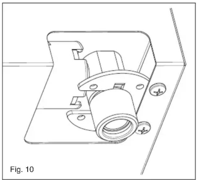
Conexión gas (Fig. 10)
La connexion a la bombona o a la instalacion tiene que efectuarla personalriallicado y compliendo con las normas UNI-CIG 7129 y 7131 en vigor y suscesivasactualizaciones verificando previamente que el equipo este preparado para el tipo de gas disponible. En caso contrariovease: "Adaptaciona un tipo de gasdistincto". Comprobar también que la presion de alimentacion se enquiryre en los values que aparecen en la tabla:"Caracteristicas.usarios".

Conexión metallica rigida/semirigida
Efectuar la connexion con racores y tubos metálicos (tambien flexibles) para Severitye esfuerzos en los dispositivos internos del aparato.
N.B. - Al final de la instalación seranecessarycontrolar, con una solution jabonosa,la perfecta estanqueidadde todo elsystemade nlace.
Nota importante: efectuar la connexion exclusivamente con racores y tubos metálicos (tubo flexible de acero de pared continua o con tubo rígido de cobre o acero) y de forma que sea possible inspeccionarlos en toda su longitud.
Conexión electrica (Fig. 11)
El instalador tiene que ser calidad y es responsable tanto de la correcta connexion electrica como del accomplishment de las normas de seguridad.
Antes de efectuar la connexion électrique comprobar que: las caracteristicas de la instalacion satisfagan cunat indicado en la placa matricula colocada sobre e
fondo de la superficie de cocccion; que la instalacion tenga una eficaz connexion de tierra segun las normas y las prescripiones de ley vigentes. La puesta a tierra es obligatoria por ley.
En el caso de que el aparato noonga el cable y/o el relativo enchufe utilizar material apto para la absorccion indicado en la plac matricula y para la temperatura de trabajo. El cable en ningún punto tendrá queURTAR a una temperatura superior de 50^ a la temperatura ambiente.Para la connexion directa a la red es necessario interponer un interruptor omnipolar dimensionado para la carga de placque asegure la desconexion de la red con una distancia de aperture delosc ontactos que permita la desconexion completa en las conditiones de la categoria de sobretension III de conformidad con las reglas de instalacion (el cable de tierra amarillo/verde noDebe estar errumpido).El enchufe o el interruptor omnipolar tiene que ser fácilmente alcanzables con el aparato instalado.

Adaptación a un tipo diferente de gas (Fig. 12)
Si el aparato estuviera preparado para un tipo de gas diferente del de la alimentacion disponible, hay que efectuar: la sustitución de los inyectores (Fig. 12) con correspondientes al tipo de gas a utiliser (vease tabla "Caracteristicas realizadores").

Procedimiento de regulación del caudal minimo de los quemadores
El procedimiento para la adquisión de los-minimos permite al operador modifier el caudal minimo predefinido, adaptando cada quemador a lascharacteristicas de la red de distribución de gas a la que la placacococci está conectada.
El procedimiento se activa pulsando las Teclas + y - del quemador A+junto con las teclas + y-del quemador D de forma continua durante 3 segundos, con los quemadores todos apagados para un Modelo de 4 fogones,@m间隙as para un Modelo de 5 fogones se pulsan las teclas + y-del quemador A+junto con las teclas + y-del quemador E.
Laactivación del procedimiento de regulación seenia en el display con el mensaje "MIN".Ahora es possible selecciónar el
quemador que se Tiene que regular actionando las teclas P+ y P- ,despues de la confirmacion con la tecla PT,el quemador seleccionado se encendera al minimo y sera posible augmentar o disminuir el caudal al nivel minimo actionando respectivamente las teclas ^+ y - del quemador.Durante el procedimiento de regulacion los display de nivel llama llevaran la indicacion -si el minimo configurado corresponde con la configuracion de fabrica,y la indicacion cambiara en 0 de forma intermitente indicando respectivamente un caudal superior or inferior respecto al predefinido.
Para confirmar el caudal minimo deseado, es necessario pulsar la tecla PT. El mensaje "MIN" permanecerá presente y ninguno de los led parpadeará, por lo tanto ahora sera posible pulsar la tecla PT para salir del procedimiento, o pulsar las teclas P+ o P- para selectionar/others quemadory configurar el caudal minimo. Por lo tanto, el dispositivo adquiere los niveles di caudal minimo y los memoriza; seutilizaran en el uso normal de la placac de coccion.
Selección del tipo de gas combustible
Es possible configurar la placía de coccción para el funciona con distinctos temas de gas (vease tablet 1). Para activar el procedimiento de selección del gas combustible utilizado es NEEDAR que la placía de coccción está en función y con todos los quemadores apagados. Es suficiente pulsar juntas las teclas "-" del quemador A, "-" del quemador B y la tecla B- durante por lo menos 2seguidos. El inicia del procedimiento de selección del tipo de gas combustible se manifesta con el apagado de los display de nivel de los quemadores y con la aparciación en los display del temporizador del mensaje "2020", "3029", "2525" o "2010", según la configuraciónactualmente en uso. Es possible escoger la configuración眼看ada utilizing las teclas P+ y P-. Para terminar el procedimiento el operador tiene que pulsar la tecla PT.
La activación de esta función componta la eliminación de eventuales tiempos de apagado programados para los quemadores.
Las tarjetas electrónicas efectuan un control continuo del propio estado. Si se verificaran eventuales problemas hardware o averías en el interior de la tarjeta capaces de perjudicar la seguridad del usuario final, el disposito se situaria en un estado "seguro" en el que las electrovalvas se apagan y en los display aparece una codificacionreferente al tipo de avería.
Advertencias para el correcto funciona bajo el circuito de detectación de llama integrado en el equipo
El presente dispositivo se pueda utilizar en redes electricas a 230V y fase a neutro, con neutro connectado a tierra.
En redes electricas distinguas el dispositivo se Tiene que adaptar.
| Error visualizzato | Tipo anomía Posible | causa Posible solución | |
| B | Un uncommon quemador en bloqueo | Falta el gas | Restablecer el gas y efectuar la operación de desbloqueo de los quemadores |
| Electrodo de ionización sueño o no a contacto con la llama | Limpiar o repositionar el electrodo y efectuar la operación de desbloqueo de los quemadores | ||
| Ausencia de conexión a tierra del dispositalo | Controlar los cableados y efectuar la operación de desbloqueo de los quemadores | ||
| F | Llama parásita / anomía circuito detectación llama en el quemador | Erróneo cableado electrodos de ionización Contralor los cableados | Volverle el cableado |
| Avería en el circuito Sustituir el dispositalo | Positivo | ||
| Flt00 | Anomalía circuito control válvula principal | Avería en el circuito Sustituir el dispositalo | Positivo |
| Flt01 | Anomalía circuito tensión de referencia | Avería en el circuito Sustituir el dispositalo | Positivo |
| Flt02 Anomalía circuito watchdog Avería en el circuito Sustituir el dispositalo | |||
| Flt03 | Anomalía puertas microcontrolador | Avería en el circuito Sustituir el dispositalo | Positivo |
| Flt04 Anomalía Eeprom Avería en el circuito Sustituir el dispositalo | |||
| Flt05 | Anomalía circuito pilotaje válvulas | Avería en el circuito Sustituir el dispositalo | Positivo |
| Flt06 | Superación del límite máximo de 5 desbloquesos en 15 instantos | Se ha efectuado la operación de desbloqueo de los quemadores más de 5 veces en 15 instantos | Esperar 15 instantos y bajoeffectuar la operación dedesbloqueo de los quemadores |
| Flt08 | Anomalía en el circuito de alimentación | Avería en el circuito Sustituir el dispositalo | Positivo |
| Flt09 | Anomalía genérica | Se ha SACado tensión al dispositalo cuando previamente se has comprobado otherwise lo de avería | Efectuar la operación dedesbloqueo de los quemadores |
| Anomalía resonator Avería en el circuito Sustituir el dispositalo | |||
| Flt0A | Todo los quemadores en estado de bloqueo | Falta el gas | Restablecer el gas y efectuar la operación de desbloqueo de los quemadores |
| Electrados de ionización sueños o no a contacto con la llama | Limpiar o repositionar los electrados y efectuar la operación de desbloqueo de los quemadores | ||
| Ausencia de conexión a tierra del dispositalo | Controlar los cableados yeffectuar la operación dedesbloqueo de los quemadores | ||
| Pérdida de gas de una válvula que ha provocado el encendido indeseado de un segundo quemador durante el encendido del primo. La presencia de llama en el segundo quemador durante más de 10segundos provoca este tipo de anomalía. | Sustituir la válvula defectuosa | ||
| Flt0[ | Erroses de communicator en la lógica de control | Avería en el circuito Sustituir el dispositalo | Positivo |
| Flt0E Error en el control del teclado | Una deformación mecánicaownsablesiberoometido el apoyo del teclado en el vidrio | Esperar durante algunosseguidos la recalibración delteclado, si el error persistésacar y dar de nuevo tensiónysi el error se encontrartra todasvipresente sustituir el dispositalo |

| CHARACTERISTICAS UTILIZADOS | ||||
| QUEMADORES DE GAS | ||||
| ALIMENTACION TIPO PRESION mbar NORM. | QUEMADOR | Ø INYECTORES 1/100 | CAPACIDAD TÉRMICA | CONSUMPTION |
| Gas natural G20 20 | rápido 129 3000 286 semirápido 101 1750 167 auxiliar 77 1000 95 corona 3 150 4000 381 | ¢ | ||
| Gas liceufacto G30/G31 28-30/37 | rápido 87 3000 218 semirápido 66 1750 127 auxiliar 50 1000 73 corona 3 102 4000 291 | ¢ | ||
| Gas natural G25 25 | rápido 132 3000 332 semirápido 102 1750 194 auxiliar 80 1000 111 corona 3 160 4000 443 | ¢ | ||
| G20 10 | rápido 155 3000 286 semirápido 117 1750 167 auxiliar 92 1000 95 corona 3 180 4000 381 | ¢ | ||
Ex.mo. Sr. Persona,
O acendimento do queimador está sinalizarado también pelo relativo led perto do display temporizador, que permanecerá activo durante todo o periodo em que o queimador permanecer aceso.
O aparecido está previsto para ser encaixado num plano de trabajo como ilustrado na responsiva figura.
ManualFácil