VEKF2015 - Kühlschrank VESTEL - Kostenlose Bedienungsanleitung
Finden Sie kostenlos die Bedienungsanleitung des Geräts VEKF2015 VESTEL als PDF.
Benutzerfragen zu VEKF2015 VESTEL
0 Frage zu diesem Gerät. Beantworten Sie die, die Sie kennen, oder stellen Sie Ihre eigene.
Eine neue Frage zu diesem Gerät stellen
Laden Sie die Anleitung für Ihr Kühlschrank kostenlos im PDF-Format! Finden Sie Ihr Handbuch VEKF2015 - VESTEL und nehmen Sie Ihr elektronisches Gerät wieder in die Hand. Auf dieser Seite sind alle Dokumente veröffentlicht, die für die Verwendung Ihres Geräts notwendig sind. VEKF2015 von der Marke VESTEL.
BEDIENUNGSANLEITUNG VEKF2015 VESTEL
VOR DER INBETRIEBNAHME. 2
Allgemeine Warnhinweise. 2
Sicherheits-Warnhinweise 4
Aufstellung und Inbetriebnahme Ihres Kuhlschranks 5
Vor der Inbetriebnahme Ihres Kuhlschranks. 6
BEDIENUNGSANLEITUNG 7
Einstellung des Thermostates 7
Zubehor 8
"Tur offen"-Anzeige 8
LAGERUNG VON LEBENMITTELN IM GERÄT 9
Kuhlschrank 9
Gefrierfach 9
REINIGUNG UND WARTUNG 11
Kuhlschrank abtauen 11
Abtauen des Gefrierfaches 12
Wechseln der Gluhlampe 12
LED-Beleuchtung auswechseln 12
TRANSPORT UND STANDORTÄNDERUNG 13
BEVOR SIE DEN KUNDENDIENST RUFEN 13
Tipps zum Energiesparen 14
INNENAUSstattUNG UND ZUBEHÖRTEILE 15
LIEFERUMFANG 16
DATENBLATT FÜR KÜHLGERÄTE 16
Montageanleitung. 18
Wechsel des Turanschlages 21
Die Bedienungsanleitung gilt für verschiedene Modèle. Deshalb konnen Unterschiede auftreten.
VOR DER INBETRIEBNAHME
Allgemeine Warnhinweise
WARNING: Halten Sie die Beluftungsöffnungen des Gerätes bzw. des Einbauschranks stets frei und offen.
WARNING: Verwenden Sie keine mechanischen Werkzeuge oder andere Mittel als vom Hersteller vorgeschlagen, um den Abtauvorgang zu beschleunigen.
WARNING: Verwenden Sie im Nahrungsmittelfach des Gerätes keine elektrischen Geräte, sofern sie nicht vom Typ sind, die vom Hersteller empfohlen sind.
WARNING: Achten Sie darauf, die Kältemittelkreise des Kuhlgeräts nicht zu beschädigen.
WARNING: Um Schaden wegen Unstätigkeit des Gerätes zu vermeiden, muss es gemäß der Anweisungen befestigt werden.
- Wenn Ihr Gerät R600a als Kältemittel verwendet - dies konnen Sie dem Typenschild am Gerät entnehmer -, mussen Sie bei Transport und Aufstellung des Gerätes darauf auf achten, die Kühlelemente nicht zu beschädigen. Obwohl R600a ein umweltfreundliches Naturgas ist, ist es explosiv. Im Falle eines Lecks durch Schäden an den Kühlerelementen, halten Sie ihren Kühlschrank von offenen Flammen oder Wärmequellen fern und luften Sie den Raum, wo sich das Gerät befindet, für ein paar Minuten.
- Achten Sie beim Transportieren und Aufstellen des Kühlschranks daraufuf, den Kaltemittelkreislauf nicht zu beschädigen.
- Lagern Sie in thisem Gerät keine explosiven Stoffe wie Spraydosen mit brennbarem Treibmittel.
-
Dieses Gerät ist zur Verwendung im Haushalt und in ähnlichen Anwendungen konzipiert wie z.B.;
-
Personalkuchenbereiche in Läden, Büros und anderen Arbeitsumgebungen
- Bauernhäuser und von Kunden in Hotels, Motels und anderen Unterkünften
- Unterkünfte mit Bett und Frühstück;
-
Catering und ähnliche Non-Retail-Anwendungen
-
Ist das Netzkabel beschädigt, muss es vom Hersteller, dem Vertrieb oder einer ähnlich qualifizierten Person ersetzt werden, um eine Gefahr zu vermeiden.
- Dieses Gerät ist nicht zur Verwendung durch Personen (einschließlich Kinder) mit eingeschränkten physischen, sensorischen oder geistigen Fähigkeiten oder mangelnder Erfahrung und Wissen bestimmt, es sei dann sie stehen unter Aufsicht oder ausfuhrlicher Anleitung zur Benutzung des Gerätes durch eine verantwortliche Person, für ihre Sicherheit. Achten Sie stets darauf, dass Kinder niemals mit dem Gerät herumspielen.
- Das Netzkabel des Kühlschranks ist mit einem geerdeten Netzstecker ausgestattet. Diese Netzstecker muss in eine geerdete, mit mindestens 16 Ampere geschichte Steckdose gesteckt werden. Wenn Sie keine geeignete Steckdose haben, halten Sie eine solche von einem qualifizierten Elektriker installmentieren.
- Dieses Gerätarf von Kindern ab 8 Jahren und äter und Personen mit eingeschränkten körperlichen, sensorischen oder geistigen Fähigkeiten oder ohne die nötige Erfahrung und das nötige Wissen verwendet werden, wenn diese unter Aufsicht stehen oder die Anweisungen zur Benutzung des Gerätes in einer sicheren Weise erhalten haben und die damit verbundenen Gefahren verstehen können. Kinder sollenn nicht mit dem Gerätspielern. Reinigung und Wartung dürfen nicht von Kindern ohne Aufsicht durchgeführt werden.
- Ist das Netzkabel beschädigt, muss es vom Hersteller, dem Vertrieb oder einer ähnlich qualifizierten Person ersetzt werden, um eine Gefahr zu vermeiden.
- Dieses Gerät ist nicht für den Einsatz auf Höhen über 2000 m vorgesehen.
Alte und defekte Kuhlgeräte
- Hat ihr alter Kühlschrank ein Schloss, so machen Sie theses vor der Entsorgung unbrauchbar. Andernfalls konnten sich Kinder beim Spieler in das Gerät einschließlich und verunglücken.
- Alte Kuhl- und Gefriergeräte können Isoliermaterialien und Kaltemittel mit FCKW enthalten. Achten sie deswegen darauf, bei der Entsorgung Ihres alten Kühlschranks die Umwelt nicht zu schädigen.

- Beite Fragen Sie ihre Gemeinde über die Entsorgung der Altgeräte zur Wiederverwendung, Recycling und Wiedergewinnungszwecke.
Hinweise:
-itte lessen Sie theses Handbuch sorgfaltig durch, bevor Sie das Gerat aufstellen und in Betriebnehmen. Unser Unternehmen ist nicht fur Schaden haftbar, die durch missbrachliche Verwendung des Gerats entstehen.
- Befolgen Sie alle Hinweise am Gerät und in der Bedienungsanleitung und bewahren Sie diese Bedienungsanleitung an einem sicheren Ort auf, damit Sie es bei eventuellen Problemen zur Hand haben.
- Dieses Gerät ist für die Verwendung in Privathaushalten vorgesehen und damit ausschließlich für den vorgesehenen Zweck verwendet werden. Es eignet sich nicht für die kummerzielle oder übliche Nutzung. Durch eine solche Verwendung wird die Garantie des Geräts hinfällig. Unser Unternehmen ist dann für keinerlei Schäden oder Verluste mehr haftbar.
- Dieses Gerät ist ausschließlich für die Verwendung in Innenräumen entwickelt und damit nur zur Lagerung / Kühlung von Nahrungsmitteln verwendet werden. Es ist nicht für die gewerbliche Nutzung geeignet und damit nicht zur Lagerung artfremder Stoffe verwendet werden (ausschließlich für Nahrungsmittel). Bei Zuwiderhandeln erlischt die Herstellergarantie.
Sicherheits-Warnhinweise
- Verwenden Sie keine Steckerleisten oder Verlängerungskabel.
- Ist der Netzstecker beschädigt, zerrissen oder verschlussen,)dürfen Sieihn nicht mehr verwenden.
- Das Kabelarf nicht gedehnt, geknicht oder beschädigt werden.

- Dieses Gerät ist nur für den Betrieb durch Erwachsene vorgesehen. Lassen Sie niemals Kinder mit dem Gerät speilen oder an der Türg hängen.
- Um elektrische Schläge zu vermeiden, dürfen Sie den Netzstecker


-
niemals mit nassen Handen aus- oder einstecken!
-
Geben Sie keine Glasflaschen oder Getränkedosen in den Gefrierteil. Flaschen oder Dosen konnten explodieren.
-
Geben Sie zu ihrer eigenen Sicherheit keine explosiven oder brennbaren Materialien in den Kühlschrank. Geben Sie Getränke mit higherem Alkoholgehalt liegend und fest verschlossen in das Gefrierfach.
-
Wenn Sie Eis aus dem Gefrierteilnehmen, dürfen Sie es nicht berühren, um Kälteverbrennungen und/oder Schnitte zu vermeiden.
-
Berühren Sie gefrorene Lebensmittel niemals mit nassen Händen! Essen Sie niemals Eis und Eiwürfel sofort nachdem Sie sie aus dem Gefrierschrank entnommen haben!
-
Frieren Sie bereits aufgetaute oder geschmolzene Nahrungsmittel nicht wieder ein. Dies kann zu gesundheitlichen Folgen wie Lebensmittelvergifting führen.
-
Decken Sie das Gehäuse oder die Oberseite des Kühlschranks nicht ab. Dies beeinträchtigt die Leistung Ihres Kühlschranks.
Fixieren Sie beim Transport die Zubehörteile im Inneren, um deren Beschädigung zu vermeiden.



Aufstellung und Inbetriebnahme Ihres Kuhlschranks
Achten Sie vor der Inbetriebnahme Ihres Kühlschranks auf folgende Punkte:
Die Betriebsspannung des Kuhlschranks beträgt 220-240 V bei 50Hz.
-
Nach der Installation muss der Stecker zugänglich sein.
-
Wenn Sie das Gerät zum ersten Mal einschalten, kann ein merkwürdiger Geruch auftreten. Diese verschwindet, wenn das Gerät zu kühlen beginnnt.
-
Bevor Sie den Anschluss an die Netzspannung vornehmen, sollen den Sie sicherstellen, dass die Spannung auf dem Typenschild mit der Spannung des elektrischen Netzes in Ihr hem übereinstimmt.
-
Stecken Sie den Stecker nur in eine Dose mit Erdungsanschluss. Wenn die Dose keinen Erdanschluss hat oder der Stecker nicht passt, sollenn Sie einen autorisierten Elektrofachmann zu Rateziehen.
-
Das Gerät muss an eine ordnungsgemäß installierte abgesicherte Steckdose angeschlossen werden. Netzteil (AC) und Spannung am Aufstellort müssen mit den Angaben auf dem Typenschild des Gerätes (Typenschild ist auf der Innenseite des Gerätes linken Seite) sein.
-
Wir übernehmen keinerlei Haftung für Schäden, die durch Verwendung mit nicht geerdeten Steckdosen entstehen können.
-
Stellen Sie den Kühlschrank an einem Ort ohne direkte Sonneneinstrahlung auf.
-
Ihr Kühlschrankarfniemals im Freien betrieben oder im Regen stehengeleussen werden.
-
Das Gerät muss in einem Mindestabstand von 50 cm zu Herden, Gasöfen und Heizgeräten sowie mindestens 5 cm zu Elektroöfen aufgestellt werden.
-
Wenn der Kühlschrank geben einem Gefrierschrank aufgestellt wird, muss ein Abstand von mindestens 2 cm zwischen den Geräten eingehalten werden, um Feuchtigkeitsbildung an den Außenflächen zu verhindern.
-
Legen Sie keine schweren Gegenstände auf das Gerät.
-
Reinigen Sie das Gerät gründlich, vor allem im Innenraum, bevor Sie es benutzen (siehe Reinigung und Wartung).
-
Vorgehensweise bei der Installation in die Kucheneinheit wird im Abschnitt "Die Vorgehensweise bei der Installation in die Kucheneinheit" in der Installationsanleitung angegeben. Dieses Produkt soll in der richtigen Kucheneinheit verwendet werden.
-
Die einstellbaren Vorderfüsse müssen in der geeigneten Höhe fixiert werden, damit das Gerät in stabiler Position safer betrieben werden kann. Sie können die Beine durch Drehen im Uhrzeigersinn (oder in die entgegengesetzte Richtung) einstellen. Dies soll getan werden, bevor Nahrungsmittel in den Kühlschrank gelegt werden.
-
Vor der Inbetriebnahme des Kühlschranks sollenn Sie alle Teile mit warmem Wasser abwischen, dem Sie einen Teelöffel Natriumbicarbonat beigefüg haben. Wischen Sie mit frischem Wasser nach und trocknen Sie alle Teile. Setzen Sie alle Teile nach der Reinigung wieder ein.
-
Montieren Sie das Plastikdistanzstück (Teil mit weiß Flügeln an der Rückseite), indem Sie es wie in der Abbildung gezeigt um 90^ drehen. Dies verhindert, dass der Kondensator die Wand berührt.


Vor der Inbetriebnahme Ihres Kuhlschranks
- Wenn Sie den Kühlschrank nach dem Transport zum ersten Mal in Betriebnehmen, halten Sieihn vorher 3 Stunden in aufrechter Stellung stehen. Stecken Sieihn erst dann ein. Dies stellt einen sicheren und effizienten Betrieb sicher. Andernfalls konnte der Kompressor beschädigt werden.

- Bei der ersten Inbetriebnahme kann der Kühlschrank einen merklichen Geruch entwickeln. Diese verliert sich, sobald der Kühlvorgang richtig eingesetzt hat.
Einstellung des Thermostates

- Der Thermostat reguliert automatisch die Innentemperatur des Kuhl- und Gefrierfaches. Durch Drehen des Knopfas von Position 1 nach 5, können Sie kältere Temperaturen erzielen,
Die Position "●" bedeutet, dass das Thermostat ausgeschaltet ist und dass nicht gekühlt werden kann. - Für kurzzeitige Lagerung von Lebensmitteln im Gefrierfach konnen Sie den Knopf zwischen minimaler und mittlerer Position einsteilen (1-3),
- Für langzeitige Lagerung von Lebensmitteln im Gefrierfach stellen Sie den Knopf auf die mittlere Position (3-4).
- Beachten Sie, dass sich Zimmertemperatur, Temperatur der gelagerten Lebensmittel und das Öffnen und Schlieben der Tur auf die Temperatur in den Kuhl- und Gefrierfächern auswirken. Falls notwendig,ändern Sie die Temperatureinstellung am Gerät.
- Wenn Sie das Gerät zum ersten Mal einschalten, sollte es idealerweise die ersten 24 Stunden ohne Lebensmittel laufen und die Türe sollen nicht geöffnet werden. Sollten Sie das Gerät sofort benötigen, legen Sie möglich weniger Lebensmittel hinein.
- Wenn das Gerät ausgeschaltet oder ausgesteckt wird, müssen mindestens 5 Minuten vergehen, bis Sie es wieder in Betrieb besteht, um den Kompressor nicht zu beschädigen.
- Kühlschränke (mit 4 Sterne-Gefrierfach): Das Gefrierfach kühlt bis auf -18^ und weniger herunter.
Zubehör
"Tür offen" -Anzeige
Die "Tür offen" -Anzeige am Schloss zeigt an, ob die Tür richtig verschlossen ist oder nicht.
- Wenn die rote Anzeige sightbar ist, ist die Türe noch offen.
- Wenn die rote Anzeige nicht sightbar ist, ist die Türe korrekt verschlossen.
- Beachten Sie, dass die Türe des Gefrierfaches immer gut verschlossen ist. Somit wird das Auftauen der Lebensmittel im Gefrierfach verhindert; dickes Eis und Frostaufbau im Gefrierfach sowieunnötg steigender Energieverbrauch werden somit vermieden.

LAGERUNG VON LEBENSMITTELN IM GERÄT
Kühlschrank
- Um zu vermeiden, daß die Feuchtigkeit ein Abtauen fordert, sollte man Flüssigkeiten zugedeckt in den Kühlschrank stellen. Der Reif neigtathamdazu, sich in den kaltesten Punkten des Verdampfers zu konzentrieren und fordert das Abtauen.
- Stellen Sie niemals warme Lebensmittel in den Kuhlraum, die Güter müssen vor dem Verstauen auf Raumtemperatur abkühlen. Plazieren Sie die Lebensmittel so, daß eine hinreichende Belüftung im Kuhlteil gewährleistet ist.
- Bringen Sie keine Gegenstände in Kontakt mit der Rückwand des Kühlschranks, daß diese daran anfrieren können. Vermeiden Sie früfiges Öffnen der Tür.
- Um die besten Frischhaltebedingungen von Fleisch und gereinigtem Fisch (in mehreren Lagen von Papier oder Plastikfolien gewickelt) zu erzielen, sollen den diese im kaltesten Teil des Kühlschranks verstaut werden. Diese befindet sich auf dem Glasabsatz des Gemüsekastens. Es versteht sich jedoch, daß Fleisch und Fisch nicht länger als 2 Tage aufbewahrt werden kann.
- Obst und Gemüse können ohne Verpackung im Gemüsefach aufbewahrt werden.
Gefrierfach
- Das Gefrierfach wird zur langfristigen Aufbewährung von Lebensmitteln und zur Herstellung von Eiswürfeln genutzt.
- Achten Sie drauf, daß die einzufrierenden Lebensmittel mit der größeren Oberfläche auf der Gefrieroberfläche liegen.
- Bereits eingefrore Lebensmittel so lagern, daß sie nicht mit den neu einzufrierenden Packungen in Berührung kommt. Dies konnte ein leichtes Aufbauen bewirken.
Die Ware portionsgerecht fur ihren Haushalt abpacken und einfrieren. - Ware, die während des Abtauens des Gefrierfaches im Kühlschrank aufbewahrt wurde, muss nach wieder Einlagerung im Gefrierfach so schnell als möglich verzehrt werden. Temperaturerhöhungen verringern die Aufbewahrungsdauer der Lebensmittel
- Stellen Sie niemals warme Lebensmittel in das Gefrierfach. Diese wurden bereits eingefrorene Kosten auftauen.
- Bei Lagerung von Tiefkuhlkost ist die vom Hersteller angegeben Lagerzeit unbedingte einzuhalten. Enthalten diese keine Informationen, sollte die Lagerzeit von 3 Monaten ab Kaufdatum nicht überschritten werden.
- Achten Sie beim Kauf von Tiefkuhlkost auf eine sachgerechte Verpackung und Lagertemperatur.
Tiefkuhlkost sollte in einer Kuhltasche transportiert werden und sochnell als möglich in das Gefrierfach gebracht werden. - Sollte die Verpackung von gefrorenen Gütern feucht und aufgebläht sein, kann man von einer unsachgemäßen Lagerung und einem Verderb des Inhaltes ausgehen.
-
Die Lebensdauer von eingefrorenen Lebensmittel hängt von verschiedenen Faktoren ab: der Umgebungstemperatur, Thermostatposition, früigem Türoffnen, Beschaffenheit der Lebensmittel und den Transportbedingungen vom Geschäft bis nach Hause. Beachten Sie immer die Herstellerinformationen und überschreiben Sie niemals die angegebene Lagerzeit.
-
Hinweis: Ist das Gerät in Betrieb und die Gefrierfach-Tür wird geöffnet und wieder geschlossen, saugt sich die Dichtung so stark an, daß sich die Tur für kurze Zeit erschwert öffnenlässt. Dies ist kein Grund zur Sorge, es sorgt davon, daß die Tur gut verschlüssen ist. Nach einer Stabilisierungsphase ist die Tur wieder leicht zu öffnen.
-
Zur Herstellung von Eiwürfeln Sie den Eiwürfelbehälter mit Wasser und gebenihn in das Gefrierfach. Sobald das Wasser ganz gefroren ist, drehen Sie den Behälter - siehe unten - um die Eiwürfel zu entnahmen.

REINIGUNG UND WARTUNG
Vor der Reinigung Stecker aus der Steckdoseziehen.
Gerat nicht mit Wasser übergehen.


-
Der Kühlraum sollte in regelmäßigen Abständen gereinigt werden. Benutzen Sie hierfür eine Lösung aus lauwarmem Wasser und Natron.
-
Zubehörteile separat mit Seifenwasser reinigen. Nicht in den Geschirrspüler geben.
-
Keine scheuernden oder atzenden Reinigungsmittel verwenden. Nach der Reinigung einfach mit klarem Wasser nachwischen und sorgfältig trocknen. Schließlich Netzstecker mit trockenen Händen wieder in die Steckdose stecken.



Kühlschrank abtauen


- Der Kühlschrank wird während des normalen Betriebs automatisch abgetaut. Das Abtauwasser wird in einer Abtauwasserschale aufgegangen und verdunstet Dort von selbst.
Die Abtauwasserschale und die Abtaurinne sollen ab und an gereinigt werden. Achten Sie daraufuf, dass die Öffnung in der Abtaurinne nicht verstopft wird und reinigen Sie sie mit dem hierfür vorgesehenen Drainagewerkzeug, um zu vermeiden, dass das Abtauwasser sich am Boden des Kühlschranks staat in der Auffangschale sammelt.
- Um die Innenleitung des Abtauwassers zu reinigen, können Sie ein halbes Glas Wasser in die Drainageöffnung geben.
Abtauen des Gefrierfaches
Achtung: Benutzen Sie niemals scharfe Metallgegenstände für diesen Vorgang, da sie den Kühlkreislauf beschädigen können, außer es wird vom Hersteller empfohlen.
Nach einer gewissen Zeit wird sich Eis in bestimmten Bereichen des Gefrierfaches bilden. Es sollte regelmäß enternfert werden (benutzen Sie den Plastikschaber, falls vorhanden).
- Das Gefrierfach muss ganz abgetaut werden, wenn die Eisschicht dicker als 3-5 mm ist, damit gewährleistet bleibt, dass das Gefrierfach zuverlüssig arbeitet.
- Ein Tag bevor Sie das Gefrierfach abtauen, stellen Sie das Thermostat auf Position „5", um die Lebensmittel vollständig einzufrierten.
- Während des Abtauens sollen die gefrorenen Lebensmittel in mehrere Papierlagen gewickelt werden und an einem kühlen Ort aufbewahrt werden. Ein unvermeidlicher Temperaturanstieg wird ihre Haltbarkeit verringn. Verbrauchen Sie diese Lebensmittel innerhalb kürzester Zeit.
- Stellen Sie den Thermostatknopf auf Position „-” und schalten Sie das Gerät aus.
- Lassen Sie die Türe auf; damit das Gerät Schneller abtauen kann. Entfern den Sie das Abtauwasser aus dem Fach.
- Reinigen Sie die Innenseite des Gefrierfaches von Hand mit lauwarmem Wasser und etwas Reinigungsmittel.
- Benutzen Sie niemals Scheuermittel oder aggressive Reiniger.
- Trocknen Sie die Innenseite des Gefrierfachs, stecken Sie das Netzkabel ein und stellen Sie den Thermostatknopf auf Position „5". Nach 24 Stunden stellen Sie das Thermostat wieder auf die gewünschte Position.
Wechseln der Gluhlampe

Wenn Sie die Gluhlampe aus dem Kuhlteil wechseln sollen:
- Netzstecker aus der Steckdoseziehen
- Lichtdeckel durch Drucken der seitlichen Haken entfernen.
- Tauschen Sie die defekte Gluhlampe gegen eine Neue aus (max. 15 W)
- Setzen Sie den Lichtdeckel wieder ein und warten Sie 5 Minuten bis Sie das Gerät wieder einschalten.
LED-Beleuchtung auswechseln
Falls Ihr Kühlschrank eine LED-Beleuchtung hat, wenden Sie sich an den Helpdesk, da sie nur von autorisiertem Personal ausgewechselt werden sollen.
TRANSPORT UND STANDORTÄNDERUNG
Transport und Änderung des Standortes
Die Orginalverpackung muss nicht verwendet werden.
- Währendes Transportes Gerätmiteinem festen Seilsichern. Die Transportbestimmungen auf dem Wellpappkarton müssen befolgt werden.
- Vor Transport alle beweglichen Teile aus dem Gerät entnahmen oder mit Klebstreifen befestigen.

BEVOR SIE DEN KUNDENDIENST RUFEN
Sollte der Kühlschrank nicht richtig Funktionieren, konnte das eine gingefugige Ursache haben. Daher prufen Sie zuerst Folgendes, bevor Sie den Kundendienst rufen.
Das Gerät kühlt nicht
Prüfen Sie, ob:
- sich evtl. ein Stromausfall ereignet hat,
- der Netzstecker abgezogen bzw. nicht richtig eingesteckt ist,
- der Thermostatknopf auf „eingestellt ist,
- die Steckdose defekt ist. Um das zu prufen, stecken Sie den Stecker eines anderen Gerätes in die Steckdose und kontrollieren Sie, ob es Funktioniert.
Das Gerät kühlt nicht richtig
Prüfen Sie, ob
- zu weitere frische Speisen in das Gerät gegeben wurden,
- die Türen nicht richtig geschlossen sind.
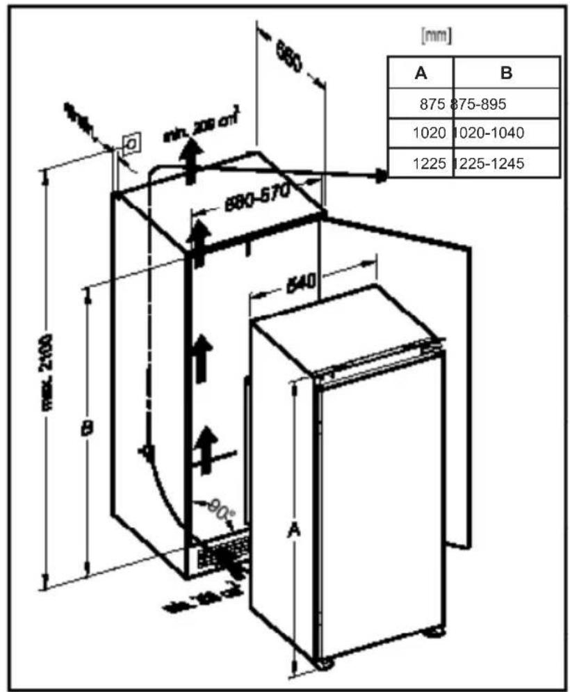
- Im Einbaumöbel sind evtl. nicht genügend Luftungsöffnungen vorhanden, wie in der Installationsanleitung angegeben.
Das Gerät gibt Gerausche von sich:
Das Kuhlmittel, das in den Leitungen des Kuhlkreislaufs zirkuliert, erzeugt naturgemäß ein gewisses Gerausch (wie ein leichtes Gurgeln), auch wenn der Kompressor nicht in Betrieb ist. Das ist kein Grund zur Beunruhigung, sondern ist als vollig normal anzusehen. Sollten
Sie andersartige Geräusche wahrnehmen, versichern Sie sich,
- dass das Gerät korrekt installiert ist, wie in der Installationsanleitung beschrieben.
- ob die Gegenstände auf oder in dem Kühlschrank vibrieren.
Sollte sich Wasser am Kühlschrankboden ansammeln
prüfen Sie, ob:
das Abflussloch des Abtauwassers verstopt ist (solle das der Fall sein, reinigen Si die Öffnung mit dem mitgelieferten Draina-gewerkzeug).
Falls Ihr Kuhlgerät nicht richtig kühlen sollen:
Ihr Kuhlgerät wurde gemäß seiner Klimaklasse zum Einsatz bei bestimmten Umgebungstemperaturen entwickelt; entsprechende Angaben finden Sie auf dem Typenschild. Wenn Sie das Kuhlgerät bei Umgebungstemperaturen außerhalb des empfohlenen Bereiches betreiben, kann die Kuhlleistung darunter leiden.
| Klimaklasse | Umgebungstemperatur °C |
| T | zwischen 16 und 43 °C |
| ST | zwischen 16 und 38 °C |
| N | zwischen 16 und 32 °C |
| SN | zwischen 10 und 32 °C |
Konformitätserklarung
- These Geräte wurden entworfen für eine Umgebungstemperatur zwischen 16^ - 32^ .
Empfehlungen
-
Um das Nutzvolumen zu erhöhen und aus ästetischen Gründen ist die Kühlschlange des Kühlschranks in der Rückwand des Kühlbereichs eingelassen. Wenn der Kompressor in Betrieb ist, bilden sich an der Kühlschrankrückwand eine)dünne Reifschrift oder einige Tropfen Wasser. Das ist vollig normal. Das Gerät sollte nur dann abgetaut werden, wenn sich an der Rückwand eine ziemlich dicke Eisschrift gebildet haben sollente.
-
Wenn das Gerät für längerere Zeit nicht benutzt wird, stellen Sie den Thermostatknopf auf die Position „. Tauen Sie das Gerät ab und setzen Sie danach die Tur offen, damit die Bildung von üblen Gerüchen oder gar Schimmel vermieden wird.
Tipps zum Energiesparen
- Stellen Sie das Gerät in einem kühlen, gut belufteten Raum auf, jedoch nicht in direkter Sonneneinstrahlung oder besoin Hitzequellen (Strahler, Herde etc.). Verwenden Sie andernfalls eine isolierende Trennwand.
- Lassen Sie warme Speisen und Getränke ganz auskühlen, bevor Sie sie in das Gerät geben.
- Geben Sie gefrore Nahrungsmittel zum Auftauen in das Kühlfach. Die tiefe Temperatur der gefrorenen Nahrungsmittel unterstützt während des Auftauens die Kühlfunktion im Kühlteil. Dies spart Energie. Werden die Nahrungsmittel außerhalb des Geräts aufgetaut, wird Energie verschwendet.
- Getränke und flüssige Speisen müssen verschlossen werden, wenn sie in das Geräte gegeben werden. Andernfalls steigt die Feuchtigkeit im Gerät an. Die Arbeitszeit der Kühlung verlangert sich dadurch. Durch das Verschlieben wird außerdem die Geruchsbildung verhindert.
- Offnen Sie die Geräte tür immer nur möglichst kurz, wenn Sie etwas hineingegeben.
- Halten Sie auch die Deckel der verschiedeneen Kühlfächer im Kuhlteil immer geschlossen (Crisper, Kühlfach etc.)
- Die Turdichtung muss stets sauber und flexibel gehalten werden. Tauschen Sie abgenützte Dichtungen aus.

These Abbildung dient lediglich der Veranschaulichung. Die Teile und Komponenten können je nach Modell variieren.
1) Ablagefläche Kühlraum
7) Eierablage
2) Gemüsefachabdeckung
8) Turabstellregal für Flaschen
(Sicherheitsglas)
9) Turabstellregal mittlere Ebene
3) Gemüsefach
10) Turabstellregal obere Ebene
4) Linker und rechter Fuß
11) Abdeckung obere Ebene
5) Thermostat
12) Eiswurfelschale (^*)
6) Gefrierfach (*)
LIEFERUMFANG
| Hersteller Geräteotyp VESTEL | |
| L | |
| Gefrierteil-Kühlschrank) | |
| Glasablagen, verstellbar 3 | |
| Gemüse-Schubladen 2 | |
| Türablage 3 | |
| Eierablage 1 | |
| Eiswürfelschale 1 | |
| Garantieunterlagen Ja | |
| Gebrauchsanleitung Ja | |
DATENBLATT FÜR KÜHLGERÄTE
| Marke VESTEL | |
| Modell VEKF2015 | |
| Produkt-Kategorie 7 (Gefrierteil-Kühlschrank) | |
| Energieklasse1) A+ | |
| Jährlicher Energieverbrauch 2) 182 kWh / Jahr | |
| Totaler Bruttoinhalt 126 l | |
| Nutzinhalt Gesamt 123 l | |
| Kühlschrank Bruttovolumen | 109 l |
| Nutzinhalt Kühlbereich | 106 l |
| Gefrierschrank Bruttovolumen | 17 l |
| Nutzinhalt Gefrierbereich | 17 l |
| Sternebewertung 3) | * *** |
| Kühlsystem | Statisch |
| Lagerzeit bei Störung (-18°C/-9°C) | 10 Stunden (25°C) |
| Gefriervermögen | 2 kg |
| Klimaklasse 4) | N (16°C - 32°C) |
| Geräuschemission | 41 dB(A) |
1) Bewertung von A (= niedriger Verbrauch) bis G (= hoher Verbrauch).
2) Der Energieverbrauch bezieht sich auf den Jahresverbrauch in 182 kWh, ermittelt nach DIN EN 153. Im praktischen Betrieb konnen je nach Nutzung und Standort des Geräts Abweichungen auftreten.
3) * = Fach mit -6 °C oder kälter
^ = Fach mit -12 °C oder kälter
= Tiefkuhl-Lagerfach mit -18 °C oder kälter
*** = Gefrierfach mit -18 °C oder kälter
4) Klimaklasse: Ihr Kuhlgerät wurde gemäß seiner Klimaklasse zum Einsatz bei bestimmen Umgebungstemperaturen entwickelt; entsprechende Angaben finden Sie auf dem Typenschild. Wenn Sie das Kuhlgerät bei Umgebungstemperaturen außerhalb des empfohlenen Bereiches betreiben, kann die Kuhlleistung darunter leiden.
| Klimaklasse | Umgebungstemperatur °C |
| T Zwischen | 16 und 43 (°C) |
| ST Zwischen | 16 und 38 (°C) |
| N Zwischen | 16 und 32 (°C) |
| SN Zwischen | 10 und 32 (°C) |
Montageanleitung
! Lesen Sie vor der Montage diese Anleitung vollständig und mit Ruhe durch.
! Da das Gerätrecht gross und schwer ist raten wir Ihnen den Einbau nicht alleine vorzunehmen.
! Montieren Sie Ihr Gerät nur in einen davon vorgesehenen Einbauschrank. Diese darf nicht beschädigt sein.
! Falls notwendig wechseln Sie den Turanschlag vor dem Einbau. Die Beschreibung hierzu findsie ab Seite 4.
! Überprüfen Sie die Bauteilgrößen nach Abbildung C. Die Position des Spalts zwischen den Turen mussen bei den Geräte turen und den Turen des Umbauschranks gleich sein.
1. Abbildung A zeigt alle mitgelieferten Befestigungs- und Einbauteile.
2. Folgen Sie der Abbildung D und schiben Sie die obere Befestigungsschiene in die Führungsschiene an der Oberseite des Kuhlgerätes und schrauben Sie diese mit den beiliegenden Schrauben fest.
3. Führn Sie nun das Netzkabel vorsichtig auf der Rückseite des Einbauchrankes zur vorgesehenen Stromsteckdose. Achten Sie darauf, daß dieser Netzstecker jederzeit gut zu erreichen ist oder让他们 Sie sich einen Schalter als Trennvorrichtung in die Zuleitung zur Steckdose einbauen.
4. !WARNUNG! Legen Sie das Netzkabel nicht über scharfe Kanten.
5. Schneiden Sie das beiliegende Dichtungsband auf die Höhe der Einbauöffnung zu. Kleben Sie das Dichtungsband nun nach Abbildung E auf die aussere Kante des Gehäuses. Das Band wird auf der Seite ohne Scharniere befestigt.
6. Hebem Sie nun dasVBbereitete Gerat an und setzen Sie es vorsichtig in die Einbauoppnung ein.
7. Richten Sie das Gerät anhand der Seite mit dem Dichtungsband so aus, daß kein Luftspalt mehr zwischen Dichtungsband und Einbauchrank zu sehen ist.
8. Nun schieben Sie das Gerät so zurecht, daß die Vorderkante der unteren Gerätefälle auf der Kante des Einbauschrankes aufsitzt. (Abbildung F) Schrauben Sie jetzt die Füssel mit den beiliegenden Schrauben5 am Boden der Einbauöffnung fest.
9. Nach Abbildung G konnen Sie nun die obere Befestigungsschiene mit den beiliegenden Schrauben5 an der Oberseite der Einbauöffnung befestigen.
10. Als nächstes schrauben Sie die beiden Führungen3 mit je einer Schraube auf die Vorderkante der Gerätetur wie in Abbildung H dargestellt.
11. Schieben Sie die Schleppschiene in die Führung ein.
12. Markieren Sie an der Vorderkante der Einbautür in Höhe der Führungen3 einen Abstand von 20mm von der Vorderkante auf der Einbautür. Öffnen Sie jetzt die Gerätetur in einem Winkel von 90^ .
13. Legen Sie die Schleppschiene4 an die Markierung auf der Einbautür an und schrauben Sie die Schleppschiene mit den beiliegenden Schrauben5 an der Einbautür fest.
14. Schliessen Sie nun die Gerätür. Prüfen Sie das korekte, vollständige Anliegen der Geräturdichtung auf dem Gerätegehause. Schliessst die Geräturdichtung nicht ordentlich ab, so kann es zu Funktionstörungen kommt.

Abbildung. A

Abbildung. C

Abbildung. B

Abbildung. D

Abbildung. E

Abbildung. F
Abbildung. G

Abbildung. H

Abbildung. J

Abbildung. K
Wechsel des Turanschlages
- Offnen Sie die Geräte tür4 nach Abbildung J.
- Demontieren Sie das Scharnier des Gefrierfaches12 und nehmen Sie die Gefrierfachtür11 aus dem Gerät. Legen Sie diese auf Seite.
- Demontieren Sie nun das Schloss der Gefrierfachtür5 und montieren Sie es auf der gegenüberliegenden Seite im Innenaum des Gerätes (Abbildung J).
- Setzen Sie die Gefrierfachtür11 wie folgt wieder ein. Beginnen Sie, indem Sie den oberen Scharnierzapfen in die Bohrung des Gehäuses einsetzen. Stecken Sie nun das Scharnier des Gefrierfaches12 auf den unteren Scharnierzapfen der Gefrierfachtür11 und schrauben Sie das Scharnier des Gefrierfaches12 im Gerät wieder fest.
- Demontieren Sie nun das obere Scharnier der Gerätetür5 und nehmen Sie die Gerätetür nach oben weg. Legen Sie die Tur zur Seite (Abbildung K).
- Schrauben Sie den oberen Scharnierzapfen16 ab und schrauben Sieihn auf der gegenüberliegenden Seite in das obere Scharnier15 ein (Abbildung Ka).
- Nehmen Sie den unteren Scharnierzapfen18 aus dem Gerätefuß und stecken Sieihn auf der gegenüberliegenden Seite in den Gerätefuß ein (Abbildung Kb).
- Verschliessen Sie die Schraubenöffnung des oberen Scharniers mit den beiliegenden Stöpseln (Abbildung Kc).
- Setzen Sie nun die Gerätetur14 auf den unteren Scharnierzapfen18 auf und stecken Sie das obere Scharnier15 in die Bohrung auf der Oberseite der Tur. jetzt können Sie das obere Scharnier15 wieder am Gerätegehause festschrauben.
Konformitätserklarung
Wir erklaren, dass unsere Produkte die geltenden europäischen Richtlinien, Entscheidungen und Regularien sowie die in den referenzierten Standards gelisteten Anforderungen erfüllen.
Entsorgung des Gerätes

Altgeräte)dürfen nicht in den Hausmüll!
Sollte das Gerät einmal nicht mehr benutzt werden konnen, so ist jeder Verbraucher gesetzlich verpflichtet, Altgeräte getrennt vom Hausmüll z.B. bei einer Sammelstelle seiner Gemeinde / seines Stadtteils abzugeben. Damit wird gewährleistet, dass die Altgeräte fachgerecht verwertet und negative Auswirkungen auf die Umwelt vermieden werden.
Deshalb sind Elektrogeräte mit dem abgebildeten Symbol gekennzeichnet.
Recycling

Unsere Verpackungen werden aus umweltfreundlichen, wiederverwertbaren Materialien hergestellt:
Außenverpackung aus Pappe
Formteile aus geschäumtem, FCKW-freiem Polystyrol (PS)
Folien und Beutel aus Polyäthylen (PE)
Spannbänder aus Polypropylen (PP).
Sollten es ihre räumlichen Verhältnisse zulassen, empfehlen wir Ihnen, die Verpackung zumindest während der Garantiezeit aufzubewahren. Sollte das Gerät zur Reparatur eingeschiedt oder in eine Reparatur-Annahmestelle gebracht werden müssen, ist das Gerät nur in der Originalverpackung ausreichend geschützt.
Wenn Sie sich von der Verpackung trennen möchten, entsorgen Sie dieseitte umweltfreundlich.
Index
BEFORE USING THE APPLIANCE 23
General warnings 23
EinfachAnleitung