Inverter 21 - Wasserpumpe Hydro-Pro - Kostenlose Bedienungsanleitung
Finden Sie kostenlos die Bedienungsanleitung des Geräts Inverter 21 Hydro-Pro als PDF.
Häufig gestellte Fragen - Inverter 21 Hydro-Pro
Benutzerfragen zu Inverter 21 Hydro-Pro
0 Frage zu diesem Gerät. Beantworten Sie die, die Sie kennen, oder stellen Sie Ihre eigene.
Eine neue Frage zu diesem Gerät stellen
Laden Sie die Anleitung für Ihr Wasserpumpe kostenlos im PDF-Format! Finden Sie Ihr Handbuch Inverter 21 - Hydro-Pro und nehmen Sie Ihr elektronisches Gerät wieder in die Hand. Auf dieser Seite sind alle Dokumente veröffentlicht, die für die Verwendung Ihres Geräts notwendig sind. Inverter 21 von der Marke Hydro-Pro.
BEDIENUNGSANLEITUNG Inverter 21 Hydro-Pro
- Die Betreiber von den Geräte, die die fluorierte Treibhausgase in Mengen von 5 ToAequivalent oder mehr enthalten und nicht in Schäumen enthalten, müssen sicherenstellen, dass das Gerät auf Dichtheit überprüft wird.
- Für die Geräte, die fluorierte Treibhausgase in Mengen von 5 Tonnen 5 Tonnen 5 Tonnen 5 Tonnen CO2-Äquivalent enthalten: mindestens alle 12 Monate.
Bild der Gleichwertigkeit CO
- Belastung von CO2 in kg und Tonnen.
| Belastung und Tonnen von CO2 | Häufigkeit der Prüfung |
| Von 2 bei 30 kg Belastung = von 5 bei 50 Tonne | Jedes Jahr |
In Bezug auf die Gaz R410a, 2,39 kg in Höhe von 5 Tonnen CO2, Engagement für die Überprüfung jeder Jahr.
Ausbildung und Zertifizierung
- Die Betreiber der betreffenden Anwendung sollen damit Sorge tragen, dass die zuständige Person die erforderliche Zertifizierung erlangt hat, die die angemessene Kenntnisse der geltenden Vorschriften und Normen sowie die notwendige Kompetenz in Bezug auf die Emissionsvermeidung und - verwertung von fluorierten Treibhausgasen und der Handhabungssicherheit der betreffenden Typen und Groß der Ausrüstung beinhaltet.
Aufbewährung der Aufzeinungen
- Die Betreiber von den Geräte, die auf Dichtheit überprüft werden müssen, müssen für jeder Gerät, das die folgenden Angaben enthalt, Aufzeichnungen erstehen und verwalten:
a) Die Menge und Art der installierten fluorierten Treibhausgase;
b) Die Mengen an fluorierten Treibhausgasen, die während der Installation, Wartung oder Service oder aufgrund von Leckagen hinzugeführten werden;
c) Ob die Mengen der installierten fluorierten Treibhausgase wiederverwandt oder zurückgefordert wurden, einschließlich der Name und Anschrift der Wiederverwendung oder Rückgewinnungsanlage und gegebenenfalls der Bescheinigungsummer;
d) Die Menge der fluorierten Treibhausgase wiederhergestellt wird;
e) Die Identität des Unternehmens, das die Ausrüstung installiert, gewartet und gegebenenfalls repariert oder außer Betrieb hat, gegebenenfalls einschließlich der Nummer des Zertifikats;
f) Datum und Ergebnisse der Prüfung durchgeführt werden;
g) Wenn das Gerät außer Betrieb hat, wurden die Maßnahmen zur Rückgewinnung und Beseitigung der fluorierten Treibhausgas getroffen.
2. Die Betreiber bewahrendie Aufzeichnungen fur mindestens fuif Jahre lang auf, wobei die Unternehmen, die die Tätigkeiten fur die Betreiber ausfuhren, die Aufzeichnungen fur mindestens fuif Jahre lang aufbewahren soll.
Kontrole szczelnosci
Bild pa likvardig GO
| Société: | Date: | |||||
| Adresse: | ||||||
| Ville: | Code postal: | Pays: | ||||
| Contact: | Tél.: | |||||
| E-mail: | Fax: | |||||
1.1 Technische gegevens hydro-pro inverter warmtepompen
| Model | Inverter 07 | Inverter 10 | Inverter 13 | Inverter 17 | Inverter 21 | |
| Item No. | 7018545 | 7018546 | 7018547 | 7018548 | 7018549 | |
| * Performance at Air 27, Water 28C, Humidity 80% | ||||||
| verwarmingscapaciteit | kW | 7-3.6 | 10-2.3 | 13-2.6 | 17-3.8 | 20-4 |
| Energieverbruik | kW | 1.06-0.3 | 1.52-0.18 | 1.94-0.2 | 2.54-0.29 | 2.98-0.3 |
| C.O.P. | 12-6.6 | 13-6.6 | 13-6.7 | 13-6.7 | 13-6.7 | |
| * Performance at Air 15, Water 28C, Humidity 70% | ||||||
| verwarmingscapaciteit | kW | 5.1-2.5 | 7.1-1.9 | 9.6-2 | 11.5-3 | 14-3 |
| Energieverbruik | kW | 1-0.38 | 1.4-0.25 | 1.84-0.27 | 2.2-0.37 | 2.7-0.37 |
| C.O.P. | 6.5-5.1 | 7.5-5.1 | 7.5-5.2 | 8.2-5.2 | 8.2-5.1 | |
| * Performance at Air 35, Water 27C, Humidity 40% | ||||||
| Koelcapaciteit | kW | 3.6-1.68 | 5.0-1.21 | 6.6-1.4 | 8.3-2.0 | 9.7-2.06 |
| Energieverbruik | kW | 1.25-0.44 | 1.75-0.28 | 2.3-0.31 | 2.88-0.42 | 3.68-0.4 |
| E.E.R. | 3.78-2.88 | 4.25-2.88 | 4.49-2.88 | 4.73-2.88 | 5.11-2.64 | |
| Beoordeeld water flux | m3/h | 2.50 | 3.00 | 4.00 | 5.00 | 6.00 |
| Fan vermogen | w | 5-20 | 8-40 | 8-40 | 10-50 | 10-50 |
| Spanning | 220~240V/50Hz/1PH | |||||
| maximale stroom | A | 4.43 | 6.65 | 8.57 | 11.31 | 12.98 |
| Minimum Fuse Current | A | 12 | 18 | 24 | 31 | 36 |
| Water in-out aansluiting | mm | 50 | ||||
| fan hoeveelheid | 1 | 1 | 1 | 1 | 1 | |
| ventilatie type | Horizontal | Horizontal | Horizontal | Horizontal | Horizontal | |
| compressor merk | GMCC | GMCC | MITSUBISHI | MITSUBISHI | MITSUBISHI | |
| Geluidsniveau op 1m | dB(A) | 40-50 | 40-52 | 40-54 | 41-56 | 41-56 |
| Net dimensie | mm | 1008*380*577 | 1050*440*709 | 1050*450*870 | ||
| Netto gewicht | Kg | 54 | 68 | 78 | 98 | 108 |
| Verpakking dimensie | mm | 1095*430*705 | 1130*470*850 | 1140*480*1010 | ||
| Bruto gewicht | Kg | 66 | 73 | 83 | 113 | 123 |
1.2 Technische gegevens hydro-pro inverter warmtepompen
| Model | Inverter 26 | Inverter 26T | Inverter 35 | Inverter 35T | |
| Item No. | 7018550 | 7018551 | 7018552 | 7018553 | |
| * Performance at Air 27, Water 26C, Humidity 80% | |||||
| verwarmingscapaciteit | kW | 26-6.8 | 26-6.8 | 35-7 | 35-7 |
| Energieverbruik | kW | 3.88-0.52 | 3.88-0.52 | 5.22-0.54 | 5.22-0.54 |
| C.O.P. | 13-6.7 | 13-6.7 | 13-6.7 | 13-6.7 | |
| * Performance at Air 15, Water 26C, Humidity 70% | |||||
| verwarmingscapaciteit | kW | 19-5.4 | 19-5.4 | 24-5.6 | 24-5.6 |
| Energieverbruik | kW | 3.6-0.66 | 3.6-0.66 | 4.8-0.68 | 4.8-0.68 |
| C.O.P. | 8.2-5.2 | 8.2-5.2 | 8.2-5 | 8.2-5 | |
| * Performance at Air 35, Water 27C, Humidity 40% | |||||
| Koelcapaciteit | kW | 13.0-3.48 | 13.0-3.48 | 17.3-3.8 | 17.3-3.8 |
| Energieverbruik | kW | 4.5-0.76 | 4.5-0.76 | 7.5-0.76 | 7.5-0.76 |
| E.E.R. | 4.55-2.88 | 4.55-2.88 | 5.02-2.3 | 5.02-2.3 | |
| Beoordeeld water flux | m3/h | 8.00 | 8.00 | 10.00 | 10.00 |
| Fan vermogen | w | 8-40 | 8-40 | 8-40 | 8-40 |
| Spanning | 220~240V/50Hz/1PH | 380V/50Hz/3PH | 220~240V/50Hz/1PH | 380V/50Hz/3PH | |
| maximale stroom | A | 17.07 | 11.43 | 23.08 | 15.46 |
| Minimum Fuse Current | A | 47 | 31 | 63 | 43 |
| Water in-out aansluitin | mm | 50 | |||
| fan hoeveelheid | 2 | 2 | 2 | 2 | |
| ventilatie type | Horizontal | Horizontal | Horizontal | Horizontal | |
| compressor merk | MITSUBISHI | MITSUBISHI | MITSUBISHI | MITSUBISHI | |
| Geluidsniveau op 1m | dB(A) | 42-60 | 42-60 | 42-60 | 42-60 |
| Net dimensie | mm | 1050*452*1295 | |||
| Netto gewicht | Kg | 120 | 120 | 130 | 130 |
| Verpakking dimensie | mm | 1130*515*1430 | |||
| Bruto gewicht | Kg | 138 | 138 | 148 | 148 |
3.7 Elektrische verbinding
5. Elektrische bedrading
5.1 ZWEMBAD WARMTEPOMP BEDRADING SCHEMA
Inverter 7/10/13/17/21

5.2 ZWEMBAD WARMTEPOMP BEDRADING SCHEMA
Inverter 26/35

5.3 ZWEMBAD WARMTEPOMP BEDRADING SCHEMA
Inverter 26T/35T

OPMERKING:
Hydro-pro inverter swimmbecken-wärmpumpe Benutzer- und Wartungshandbuch
INDEX
- Technische Daten
- Ausmaße
- Einbau und Anschluss
- Zubehör
- Verkabelung
- Display-Bedienung
- Fehlerbehebung
- Explosionszeichnung und Wartung
- Wartung
- Gewährleistung und RMA
Danke dass Sie hydro-pro inverter für das Beheizen ihres Schwimmbeckens benutzen. Es wird ihr Poolwasser aufheizen und auf einer konstanten Temperatur halten, wenn die Außentemperatur zwischen -10 und 50^ liegt.

ACHTUNG: Dieses Handbuch beinhaltet alle Informationen die fur die Benutzung und die Installation
Wärmepumpe erforderlich sind.
Der Installateur muss das Handbuch gründlich durchlesen und den Anweisungen strikt folgen, sowohl bei de Implementierung als auch bei der Wartung.
Der Installateur ist verantwortlich für die Installation des Produkts und sollene allen Anweisungen des Herstell sowie allen Vorschriften in den Anwendungen folgen. Inkorrekte Installation gegen die Anweisungen des Handbuchs macht die Garantie nicht.
Der Hersteller leht eine Verantwortung ab für Schäden die durch Menschen, Objekte oder Fehler die auf Nichtbefolgung von Anweisungen im Handbuch beruhen.Eine Nutzung die bei der Herstellung nicht vorgese war wird als gefährlich eingestuft.
WARNING:itte leeren Sie das Wasser in der Warmepumpe im Winter oder wenn die Temperatur unter 0^ sinkt, sonst wird der Titanium-Wechsler durch Frost beschadigt. In thisem Fall ist die Garantie nichtig.
WARNING:itte schalten Sie immer die Stromversorgung aus, wenn sie die Kabine offen wollen um ins Innere der Wärmepumpe vorzudringen, da drinnen Hochspannung herrscht.
WARNING: Bette bewahren Sie den Kontrolldisplay an einem trockenen Ort, oder schreiben Sie die Isolationsabdeckung sorgfältig, um es vor Beschädigung durch Nasse zu schützen.
1. Technische Daten
1.1 Technische Daten der hydro-pro inverter Wärmpumpe
| Model | Inverter 07 | Inverter 10 | Inverter 13 | Inverter 17 | Inverter 21 | |
| Item No. | 7018545 | 7018546 | 7018547 | 7018548 | 7018549 | |
| * Performance at Air 27, Water 28C, Humidity 80% | ||||||
| Heating capacity | kW | 7-3.6 | 10-2.3 | 13-2.6 | 17-3.8 | 20-4 |
| Power consumption | kW | 1.06-0.3 | 1.52-0.18 | 1.94-0.2 | 2.54-0.29 | 2.98-0.3 |
| C.O.P. | 12-6.6 | 13-6.6 | 13-6.7 | 13-6.7 | 13-6.7 | |
| * Performance at Air 15, Water 26C, Humidity 70% | ||||||
| Heating capacity | kW | 5.1-2.5 | 7.1-1.9 | 9.6-2 | 11.5-3 | 14-3 |
| Power consumption | kW | 1-0.38 | 1.4-0.25 | 1.84-0.27 | 2.2-0.37 | 2.7-0.37 |
| C.O.P. | 6.5-5.1 | 7.5-5.1 | 7.5-5.2 | 8.2-5.2 | 8.2-5.1 | |
| * Performance at Air 35, Water 27C, Humidity 40% | ||||||
| Cooling capacity | kW | 3.6-1.68 | 5.0-1.21 | 6.6-1.4 | 8.3-2.0 | 9.7-2.06 |
| Power consumption | kW | 1.25-0.44 | 1.75-0.28 | 2.3-0.31 | 2.88-0.42 | 3.68-0.4 |
| E.E.R. | 3.78-2.88 | 4.25-2.88 | 4.49-2.88 | 4.73-2.88 | 5.11-2.64 | |
| Rated water flux | m³/h | 2.50 | 3.00 | 4.00 | 5.00 | 6.00 |
| Fan power input | w | 5-20 | 8-40 | 8-40 | 10-50 | 10-50 |
| Voltage | 220~240V/50Hz/1PH | |||||
| Maximum Current | A | 4.43 | 6.65 | 8.57 | 11.31 | 12.98 |
| Minimum Fuse Current | A | 12 | 18 | 24 | 31 | 36 |
| Water in-out connection | mm | 50 | ||||
| Fan quantity | 1 | 1 | 1 | 1 | 1 | |
| Ventilation type | Horizontal | Horizontal | Horizontal | Horizontal | Horizontal | |
| Compressor brand | GMCC | GMCC | MITSUBISHI | MITSUBISHI | MITSUBISHI | |
| Noise level at 1m | dB(A) | 40-50 | 40-52 | 40-54 | 41-56 | 41-56 |
| Net dimension | mm | 1008*380*577 | 1050*440*709 | 1050*450*870 | ||
| Net weight | Kg | 54 | 68 | 78 | 98 | 108 |
| Packing dimension | mm | 1095*430*705 | 1130*470*850 | 1140*480*1010 | ||
| Gross Weight | Kg | 66 | 73 | 83 | 113 | 123 |
- Obrige Daten können ohne vorherige Ankündigung geändert werden
1.2 Technische Daten der hydro-pro inverter Wärmpumpe
| Model | Inverter 26 | Inverter 26T | Inverter 35 | Inverter 35T | |
| Item No. | 7018550 | 7018551 | 7018552 | 7018553 | |
| * Performance at Air 27, Water 26C, Humidity 80% | |||||
| Heating capacity | kW | 26-6.8 | 26-6.8 | 35-7 | 35-7 |
| Power consumption | kW | 3.88-0.52 | 3.88-0.52 | 5.22-0.54 | 5.22-0.54 |
| C.O.P. | 13-6.7 | 13-6.7 | 13-6.7 | 13-6.7 | |
| * Performance at Air 25, Water 26C, Humidity 70% | |||||
| Heating capacity | kW | 19-5.4 | 19-5.4 | 24-5.6 | 24-5.6 |
| Power consumption | kW | 3.6-0.66 | 3.6-0.66 | 4.8-0.68 | 4.8-0.68 |
| C.O.P. | 8.2-5.2 | 8.2-5.2 | 8.2-5 | 8.2-5 | |
| * Performance at Air 35, Water 27C, Humidity 40% | |||||
| Cooling capacity | kW | 13.0-3.48 | 13.0-3.48 | 17.3-3.8 | 17.3-3.8 |
| Power consumption | kW | 4.5-0.76 | 4.5-0.76 | 7.5-0.76 | 7.5-0.76 |
| E.E.R. | 4.55-2.88 | 4.55-2.88 | 5.02-2.3 | 5.02-2.3 | |
| Rated water flux | m³/h | 8.00 | 8.00 | 10.00 | 10.00 |
| Fan power input | w | 8-40 | 8-40 | 8-40 | 8-40 |
| Voltage | 220~240V/50Hz/1PH | 380V/50Hz/3PH | 220~240V/50Hz/1PH | 380V/50Hz/3PH | |
| Maximum Current | A | 17.07 | 11.43 | 23.08 | 15.46 |
| Minimum Fuse Current | A | 47 | 31 | 63 | 43 |
| Water in-out connection | mm | 50 | |||
| Fan quantity | 2 | 2 | 2 | 2 | |
| Ventilation type | Horizontal | Horizontal | Horizontal | Horizontal | |
| Compressor brand | MITSUBISHI | MITSUBISHI | MITSUBISHI | MITSUBISHI | |
| Noise level at 1m | dB(A) | 42-60 | 42-60 | 42-60 | 42-60 |
| Net dimension | mm | 1050*452*1295 | |||
| Net weight | Kg | 120 | 120 | 130 | 130 |
| Packing dimension | mm | 1130*515*1430 | |||
| Gross Weight | Kg | 138 | 138 | 148 | 148 |
- Obrige Daten können ohne vorherige Ankündigung geändert werden
2. Ausmaße
Model Inverter 7



Model Inverter 10/13



Model Inverter 17/21


Model Inverter 26/26T/35/35T



3. Installation und Anschluss
3.1 Anmerkungen
Die Fabrik liefert nur die Wärmepumpe. Alle anderen Komponenten, einschließlich eines Bypasses wenn nötig, müssen durch den Benutzer oder den Installateur gestellt werden.
Achtung:
Bitte halten Sie beim Installieren der Wärmepumpe folgende Regel ein:
- Jeder Zusatz von Chemikalien muss in der Rohrleitung stromabwärts der Wärmepumpe staatfinden.
- Installieren Sie eine Bypass, wenn der Wasserfluss aus der Schwimmbadpumpe mehr als 20% greater ist als der maximal zulässige Durchfluss durch den Wärmetauscher der Wärmpumpe ist. Installieren Sie die Wasserpumpe über dem Wasserspiegel.
- Stellen Sie die Wärmepumpe immer auf ein solides Fundament und bringen Sie die mitgelieferten Gummilager an um Vibrationen und Larm zu vermeiden.
- Die Wärmepumpe solle immer lotrecht gehalten werden. Wenn das Gerät in einem Winkel gehalten wurde, warten Sie mindestens 24 Stunden bevor Sie sie verwenden.
3.2 Positionierung der Wärmpumpe
Die Einheit wird an jeder gewünschten Position richtig arbeiten, solange die folgenden drei Elemente vorhanden sind:
1. Frische Luft - 2. Elektrizität - 3. Schwimmbecken-filter
Die Einheit kann praktisch an jedem Standort im Außenbereich installiert werden, solange die angegebenen Mindestabstände zu anderen Objekten eingehalten werden (siehe Zeichnung unter).itte konsultieren Sie fur die Installation an einem Indoor-pool einen Installateur. Die Installation an einem windigen Ort bereitet, anders als bei einem Gas-Heizer keinerlei Probleme.
ACHTUNG: Installieren Sie die Einheit niemals in einem geschlossenen Raum mit begrenztem Luftvolumen, wo die von der Einheit ausgestoßene Luft wiederverwendet wird, oder nahe an Strauchern, die den Lufteinzug blockieren können. Solche Positionen beeinträchtigen die kontinuierliche Zufahr von Frischluft, was die Effizienz reduziert, und möglicherweise auch die Wärmeabgabe befindert.
Für die minimalen Maße siehe Zeichnung unter:


3.3 Abstand zu ihrem Schwimmbecken
Die Wärmeverluste pro 30 m ergibt 0,6 kWh (2.000 BTU) für jeder 5 °C Differenz zwischen der Wassertemperatur im Pool und der Temperatur des Bodens rund um das Rohr. Dies erhöht die Betriebszeit um 3 bis 5%.
3.4 Installation des Sperrventils
Hinweis: Wenn ein automatisches Dosiergerät für den Chlor und Säuregehalt (pH) verwendet wird, ist es wichtig, die Wärmpumpe vor zu hohen chemischen Koncentrationen, die den Wärmetauscher korrodieren konnten, zuschützen. Aus thisem Grund müssen Geräte dieser Art stets in der Rohrleitung auf der stromabwärtinge der Wärmpumpe montiert werden, und es wird empfohlen, ein Rückschlagventil zu installieren, um eine Rückströmung in der Abwesenheit von Wasserzirkulation zu verhindern.
Schaden an der Wärmpumpe, die durch Nichtbeachten dieser Vorschrift entstehen, werden nicht durch die Garantie gedeckt.

3.5 Typische Anordnung

Anmerkung: These Anordnung ist nur ein illustratives Beispiel.
3.6 Einstellen des Bypasses

Verwenden Sie das folgende Verfahren, um den Bypass einzustellen:
- Öffnen Sie alle drei Ventile bis zum Anschlag
Schlieben Sie langsam Ventil 1 bis der Wasserdruck auf bis zu etwas 100 bis 20 steigt. - Schlieben Sie Ventil 3 etwa auf dem halben Weg, um den Gasdruck im Kühlsystem auszugleichen.
- Wenn das Display "ON" oder den Fehlercode EE3 zeigt, dann schlieben Sie Ventil 2 Schritt für Schritt, um den Wasserfluss zu erhöhen, und horen Sie auf, wenn der Fehlercode verschwindet.
Die Wärmepumpe arbeitet optimal wenn der Kühlgasdruck bef22bar liegt.
Dieser Druck kann auf dem Manometer geben dem Wärmepumpen-Bedienfeld abgelesen werden. Unter diesen Bedingungen ist auch der Wasserfluss durch die Einheit optimal.
Hinweis: Der Betrieb ohne Bypass oder mit unsachgemäßen Bypass Einstellungen kann zu suboptimalem Betrieb oder gar Beschädigung der Wärmepumpe führen, was die Garantie null und nicht machen wurde.
3.7 Stromanschluss
Hinweis: Obwohl die Wärmepumpe elektrisch vom Rest des Schwimmbades isoliert ist, verhindert das nur den Fluss von elektrisches Strom an oder aus dem Wasser in den Pool. Erdung ist weiterhin zum Schutz gegen Kurzschlüsse im Inneren des Gerätes erforderlich. Sorgen Sie immer für eine gut geerdete Verbindung.
Bevor Sie das Gerät anschlieben, stellen Sie safer dass die vorliegende Spannung mit der Betriebsspannung der Wärmepumpe übereinstimmt.
Es wird empfohlen, die Wärmepumpe an einen Stromkreis mit eigener Sicherung oder einem Schutzschalter (langsamer Typ, Kurve D) und ausreichende Verkabelung anzuschreiben.
Verbinden Sie die Stromkabel mit der als "POWER SUPPLY" markierten Klemmleiste.
Eine zweite Klemmleiste welche mit 'WATER PUMP' markiert ist, befindet sich darüber den ersten. Die Filterpumper (max. 5 A / 240 V) kann mit der zweiten Klemmleiste verbunden werden. Das erlaubt es die Filterpumper durch die Wärmepumper zu kontrollieren.
Anmerkung: Im Fall des Drei-Phasen-Modells, konnen zwei vertauschte Phasen dazu führren dass der Motor in die umgekehrte Richtung lauft, was zu einem Maschinenschaden führren kann. Aus thisem Grund hat das Gerät eine integrierte Schutzeinrichtung, die den Stromkreis unterbricht, wenn die Verbindung nicht korrekt ist. Wenn die rote LED-Lampe oberhalb dieser Sicherheitseinrichtung leuchtet, müssen Sie die Anschlüsse von zwei der Phasenleiter vertauschen.
3.8 Erstinbetriebnahme
Hinweis: Um das Wasser im Becken (oder Whirlpool) zu erwärmen, muss die Filterpumpe aktiviert werden, damit das Wasser durch die Wärmpumpe zirkulieren kann. Die Wärmpumpe wird nicht starten wenn das Wasser nicht zirkuliert.
Nachdem alle Verbindungen hergestellt und geprüft sind, führen Sie die folgenden Schritte durch:
- Schalten Sie die Filterpumper aus. Prufen Sie ob es ein Leck gibt, und stellen Sie sicher dass das Wasser vom und zum Schwimmbecken flieBt.
- Schlieben Sie die Wärmpumpe an ein Stromnetz an und betätigten Sie die On/Off Taste auf dem Bedienfeld. Das Gerät startet dann nach einer bestimmten Verzögerungszeit.
- Überprüfen Sie nach ein paar Minuten ob die herausströmende Luft schon kühler ist.
- Bei Ausschalten der Pumpe, sollte das Gerät auch automatisch ausschalten, wenn nicht, dann schalten Sie den Strömungswächter an.
Je nach Ausgangstemperatur des Wassers im Schwimmbad und der Lufttemperatur, kann es mehrere Tage dauernd das Wasser auf die gewünschte Temperatur zu erwärmen. Eine gute Schwimmbadabdeckung könnte die erforderliche Zeit drastisch reduzieren.
Strömungswächter:
Er soll{sicherstellen dass das HP Gerät mit einer ausreichenden Durchflussrate lauft. Er wird eingeschaltet, wenn die Pool-Pumpe lauft und schaltet sich automatisch wieder aus, wenn die Pumpe abgeschaltet wird. Wenn das Wasser im Pool hoher als 1 m über oder unter der Wärmpumpe steht, sollte ihr Handler alles nochinmal neu einstellen.
Zeitverzögerung - Die Wärmpumpe hat eine eingebaute 3-Minuten-Anlaufverzögerung, um die Schaltung zuschützen und übermäßig Verschleib der Kontakte zu vermeiden. Das Gerät startet automatisch neu, nachdem diese Zeitspanne abgelaufen ist. Selfest ein kurzer Stromausfall lösst diese Zeitverzögerung aus, und verhindern so, dass das Gerät nach einem Neustart sofort wieder lauft. Zusätzliche Stromunterbrechungen während dieser Verzögerung haben keinen Einfluss auf die 3-Minuten Dauer der Verzögerung.
3.9 Kondensation
Die Luft die in die Wärmpumpe gezogen wird ist stark durch den Betrieb der Wärmpumpe zur Erwärung des Beckenwassers abgekühlt, was zu Kondensation an den Rippen des Verdampfers führen können. Die Menge an Kondensationsprodukt kann bei relativ hoher Luftfeuchtigkeit mehrere Liter pro Stunde betragen. Daraus wird oft fällschlicherweise auf das Vorhandsein von Wasserlecks geschlossen.
3.10 Betriebsarten für optimalen Einsatz
- POWER: Wird hauptsächlich zu Beginn der Saison verwendet, da dieser Modus einen sehr schellen Temperaturanstieg erlaubt
- SMART: Die Wärmepumpe hat ihre primäre Aufgabe in dieser Modus erfüllt; Ist die Wärmepumpe in der Lage, das Schwimmbadwassernergieeffizient zu halten. Durch die automatische Einstellung der Drehzahl des Verdichters und des Gebläses liefert die Wärmepumpe eine bessere Rückkehr.
- SILENT: In den Sommermonaten, in denen die Wärmeleistung minimal besteht wird, ist die Wärmpumpe in this modus noch rentabler. Zusammenarbeit; Wenn die Wärmpumpe sich erwartet. Es gibt mit minimaler Gerauschbelastung.
4. Zubehör
4.1 Zubehörliste
| Vibrationsdämpfer, 4 Stück | Entwässerungsdüse, 2 Stück | Wasserdichte Box, 1 pc |
| 10M Signalkabel, 1 pc | Wasserabflussrohre, 2 pcs |
4.2 Installation des Zubehörs
| Vibrationsdämpfer 1. Nehmen Sie 4 Vibrationsdämpfer hereaus 2. Legen Sie einen nach dem anderen wie Bild gezeigt unter die Maschine. | |
| Entwasserungsdüse 1. Installieren Sie die Entwässerungsdüse unter dem unteren Bedienfeld. 2. Verbinden Sie sie mit einem Wasserschlauch, um das Wasser abzuleiten. Note: HebEN Sie die Pumpe an um die Düse zu installieren. Überdrehen Sie die Wärmpumpe niemals, das können den Kompressor beschädigen. |




Verbindung von Wasser Ein- und Austritt
- Verwenden Sie das Dichtband, um den Wasser-ein-und-Auslass an die Wärmepumper anzuschreiben.
- Schlieben Sie die zwei Glieder wie in der Abbildung gezeigt an.
- Drehen Sie sie in den Wasser-Ein-Auslass


Verkabelung
- Legen Sie das Stromkabel durch das weil Loch, wie im Bild gezeigt.
- Befestigen Sie die andere Seite an den Anschlüssen in der elektrischen Box.


Verkabelung der Wasserpumper
- Legen Sie das Wasserpumpenkabel durch das weiß Loch, wie markiert.
- Befestigen Sie die andere Seite an den Anschlüssen in der elektrischen Box.
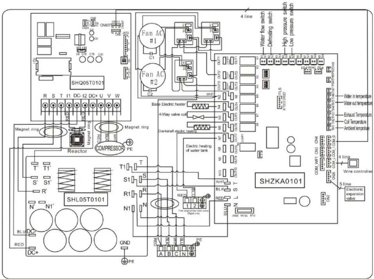
5. Elektrische Verkabelung
5.1 VERKABELUNGSDIAGRAMM DER SCHWIMMBECKEN-WÄRMEPUMPE
Inverter 7/10/13/17/21

5.2 VERKABELUNGSDIAGRAMM DER SCHWIMMBECKEN-WÄRMEPUMPE
Inverter 26/35

5.3 VERKABELUNGSDIAGRAMM DER SCHWIMMBECKEN-WÄRMEPUMPE
Inverter 26T/35T

HINWEIS:
(1) Der Schaltplan dient nur zu ihrer Referenz
(2) Die Schwimmbecken-Wärmepumpe muss gut geerdet sein, auch wenn der Wärmewechsler vom Rest der Einheit elektrisch isoliert ist. Die Erdung ist davon wichtig, um Sie vor Kurzschlüssen im Inneren des Gerätes zu schützen. Verkleben ist ebenfalls erforderlich.
Unterbrecher: Ein Unterbrecher (d.h. ein circuit breaker, fused or un-fused switch) sollte in Sichteite und vom Gerät aus leicht erreichen positioniert werden..Das ist bei kommerziellen und tatsächlichen Wärmepumpen so üblich. Es schützt davor unbeaufsichtigte Einheiten mit Strom zu versorgen, und erlaubt die Einheit auszuschalten wärend sie verwendet wird.
5.4 Installation des Displays
Foto(1) Foto(2) Foto(3) Foto(4) Foto(5)





Die Seite mit Stecker wird mit dem Control Panel (Foto1)
Die andere Seite des Signalkabels. (Foto2)
- Offnen Sie die Verdrahtungsplatte und setzen Sie die Seite ohne Stecker durch den Schaltkasten. (Foto3,4)
- Stecken Sie die Verkabelung in die designated Position (oben rechts) auf der Leiterplatte. (Foto5)
6. Display Operation en
6.1 Die Tastender LED Kabelsteuerung

6.2 Die Tasten und Betrieb
7.2.1 Fine Taste
Betätigten Sie, um die Wärmepumpeneinheit zu starten, zeigt die LED-Anzeige die gewünschte Wassertemperatur für 5 Sekunden an, zeigt dann die Einlasswassertemperatur und den Betriebsmodus an. Drücken Sie, um die Wärmepumpe zu stoppen und "OFF"
Achtung: Drücken Sie während der Überprüfung und Einstellung des Parameters die Taste um die aktuelle Einstellung zu beenden und die aktuelle Einstellung zu speichern.
Drücken Sie erneut , um das Gerät ein- oder auszuschalten.
7.2.2 M -Taste
Es wird unter Funktion nur mit anderer Taste sein.
7.2.3 Taste und
Clock / unclock die Anzeige:
Halten Sie und für 5 Sekunden, um die Anzeige zu sperren / zu entsperren.
Wassertemperatur:
Drücken Sie oder, um die Wassertemperatur direkt einzustellen.
Parameterprüfung:
Drücken Sie zuerst und drücken Sie dann, um den Benutzerparameter von d0 bis d11 zu überprüfen
| Code | Bedingung | Umfang | Anmerkung |
| d0 | IPM Werkzeugtemperatur | 0-120°C | Realer Prüfwert |
| d1 | Einlaufwassertemp. | -9°C~99°C | Realer Prüfwert |
| d2 | Auslaufwassertemp. | -9°C~99°C | Realer Prüfwert |
| d3 | Umgebungstemparatur. | -30°C~70°C | Realer Prüfwert |
| d4 | Rücklaufgastemp. | -30°C~70°C | Realer Prüfwert |
| d5 | Rohrleitungstemp. | -30°C~70°C | Realer Prüfwert |
| d6 | Abgastemperatur | 0°C~C5°C (125°C) | Realer Prüfwert |
| d7 | Schritt der EEV | 0~99 | N*5 |
| d8 | Betriebsfrequenz des Verdichters | 0~99Hz | Realer Prüfwert |
| d9 | Verdichterstrom | 0~30A | Realer Prüfwert |
| d10 | Aktuelle Lüfterdrehzahl | 0-1200 (rpm) | Realer Prüfwert |
| d11 | Fehlercode für das letzte Ma | Alle Fehlercode |
Drücken Sie zuerst und drücken Sie dann, um den Benutzerparameter von P1 auf P7 zu prufen / einzustellen
| Code | Name | Umfang | Stand ard | Anmerkung |
| P1 | Arbeitsmodus | 0-1 | 1 | 1 Heizbetrieb, 0 Kühlbetrieb |
| P2 | Timer ein / aus | 0-1 | 0 | 1 Timer ein / aus ist unter Funktion, 0 Timer ein / aus ist außer Funktion (Die Einstellung von P4 und P5 funktioniert nicht) |
| P3 | Wasserpumpe | 0-1 | 0 | 1 Immer laufend, 0 Abhängig vom Betrieb des Kompressors |
| P4 | Aktuelle Uhrzeit | HH:MM | 0:00 | 0-23:0-59 |
| P5 | Timer an | HH:MM | 0:00 | 0-23:0-59 |
| P6 | Timerausgeschaltet | HH:MM | 0:00 | 0-23:0-59 |
| P7 | Einlaufwasserte mp. Korrektur | -9~9 | 0 | Voreinstellung: 0 |
7.2.4 Systemrücksetzfungtion
Drücken Sie und in 10s, das System setzen zurück und zeigt "0000" auf dem Steuerpult an.
7.2.5

Symbol der Hezung, das Licht ist eingeschaltet, wenn es in Betrieb ist.
Beim Abtauen blinkt das Licht.
7.2.6

Symbol der Abkuhlung, das Licht ist eingeschaltet, wenn es in Betrieb ist.
7.2.7

Symbol des automatischen Stopps, das Licht leuchtet, wenn es in Betrieb ist.
7.2.8

Symbol für automatischen Start, das Licht leuchtet, wenn es in Betrieb ist.
7.2.9

Betätigen Sie diesen Knopf, die Lampe blinkt, die Wärmepumpe arbeitet nur im vollen Ausgang.
7.2.10

Während Sie den Smart auswahlen, wird die Wärmpumpe nur in 'Medium output' und 'Full output' Bei 'Medium output' blinkt das Licht von Smart.
Wenn in "Full output" die Lampe von Smart leuchtet, blinkt die Lampe Powerful.
7.2.11

Während Sie die Silent wahlen, wird die Wärmpumpe nur in "Medium Output" und "Small Output". Wenn im Modus 'Kleine Ausgabe' das Licht von Silent blinkt.
Wenn bei 'Medium output' die Lampe von Silent leuchtet, blinkt die Lampe des Smart.
7. Fehlerbehebung
7.1 Fehlercodeanzeige auf einer LED-Kabelsteuerung
| Defekt | Fehlercode | Grund | Lösung |
| Wassereinrittstemperatur Sensorausfall | PP1 | Der Sensor in Unterbrechung oder Kurzschluss | Überprüfen oder ändern Sie den Sensor |
| Wassereaustrittstemperatur Sensorausfall | PP2 | Der Sensor in Unterbrechung oder Kurzschluss | Überprüfen oder ändern Sie den Sensor |
| Heizkondensator Sensorausfall | PP3 | Der Sensor in Unterbrechung oder Kurzschluss | Überprüfen oder ändern Sie den Sensor |
| Gasrück Sensorausfall | PP4 | Der Sensor in Unterbrechung oder Kurzschluss | Überprüfen oder ändern Sie den Sensor |
| Umgebungstemperatur Sensorausfall | PP5 | Der Sensor in Unterbrechung oder Kurzschluss | Überprüfen oder ändern Sie den Sensor |
| Kondensator Gasaustritts Sensorausfall | PP6 | Der Sensor in Unterbrechung oder Kurzschluss | Überprüfen oder ändern Sie den Sensor |
| Frotschutz im Winter | PP7 | Der Sensor in Unterbrechung oder Kurzschluss | Überprüfen oder ändern Sie den Sensor |
| Niedrige Umgebungstemperatur Schutz | PP8 | Umgebungstemperatur oder Wassereinrittstemperatur zu niedrig ist | Überprüfen oder ändern Sie den Sensor |
| Kühlkondensatortemperatur zu hoch Schutz | PP10 | Kühlkondensator Temperatur zu hoch ist | Stoppen Sie die Wärmpumpe, und warten Sie auf die Absenkung vom Kühlkondensator Temperatur |
| Hochdruckausfall | EE01 | 1.Refrigerant ist zu viel2.2. Der Luftstrom ist nicht genug | 1.Discharge redundanten Kältemittel von HP Gassystem2.Clean Luftautauscher |
| Niederdruck-Ausfall | EE02 | 1.Refrigerant ist nicht genug | 1. Überprüfen Sie, ob es einen Gasaustritt, Nachfüllen des Kältemittels |
| 2.Water Fluss ist nicht genug | 2.Clean Luftautauscher | ||
| 3. Filter blockiert oder Kapillare eingeklemmt | 3 replacing den Filter oder eine Kapillare |
| Malfunktion | Fehlercode | Grund | Lösung |
| Wasserdurchflussausfall | EE03 | Niedriger Wasserdurchfluss, falsche Durchflussrichtung oder Strömungsschalter Versagen. | Prüfen Sie, ob der Wasserdurchfluss ist genug, und Strömung in richtige Richtung, oder der Strömungsschalter versagt werden können. |
| Überhitzung im Heizbetrieb | EE04 | Leiser oder kein Wasserdurchfluss | Ausfall der Wasserpumper Wasserrohr eingeklemmt Ausfall der Strömungswächter |
| Abgastemperatur Sensorausfall | EE5 | Das Abtauen ist nicht gut Mangel an GasDie Drosselvorrichtung klemmtNiedriger Wasserdurchfluss | Auftauen von HandPlus die GasÄndern die DrosseleinrichtungÜberprüfen die Wasserpumpe |
| Kontroller Fehler | EE6 | Draht-Verbindung ist nicht gut Kontroller-Fehler | Überprüfen oder ändern Sie den SignaldraughtStarten Sie die Stromversorgung oder ändern Sie den Kontroller |
| Umrichter Fehler | EE7 | Umrichtter Platinenfehler | Neustarten die Stromversorgung oder ändern die Wandlerkarte |
| Kommunikationsfehler zwischen Steuerung und Wandlerplatine | EE8 | Draht-Verbindung ist nicht gut Kontroller-Fehler | Überprüfen oder ändern Sie den LeiteranschlussStarten Sie die Stromversorgung oder ändern Sie den Kontroller |
| Kommunikationsausfall zwischen Umrichter und Außenbord | EE9 | Drahtverbindung zwischen Kommunikationsleitung und Außen Karte ist falsch Außenplatinenfehler | NeuverkabelungNeustarten die Stromversorgung oder ändern den Außenbord |
| Moduls Platinenfehler zwischen Außenplatte und Modulplatine | EE10 | Kommunikationsleitung ist defekt Außenplatine oder Modul Platinenfehler | Neustarten die Stromversorgung oder ändern die gebrochen Bord |
| Moduls Platinenfehler | EE11 | Die Daten falsch sind oder die Modulplatine ist defekt | Neustarten die Stromversorgung oder ändern die gebrochen Bord |
| Direct main current's voltage too high or too low protection die Spannung Schutz von direkter Hauptstrom zu hoch oder zu niedrig | EE12 | Der Druck zu hoch oder zu niedrig istDie innere Kommunikation Schütz ist defekt | Überprüfen die Stromversorgung Ändern Sie den Schütz |
| Überstromschutz | EE13 | Elektrische Versorgungsdruck zu niedrig ist, ist die Wärmerpumpe Überlastung | Überprüfen die Stromversorgung Überprüfen die Wassertemperatur, ob es zu hoch ist |
| T2 Wassertemp. Zu niedriger Schutz im Kühlbetrieb | PP11 | 1. Wasserpumpenfehler2. Wasserleitung verstopf3. Wasser Durchflüsschalter ergriffen | |
| IPM-Modul Temperatursensor Schaltung Ausgang Fehler | EE14 | Der Ausgang des IPM-Modultemperatursensors ist abnormal | Überprüfen Sie die Platine oder ersetzen Sie die neue |
| IPM Modultemperatur zu hoch Schutz | EE15 | Überprüfen Sie die Platine oder ersetzen Sie die neue | |
| PFC-Modulschutz | EE16 | Überprüfen Sie die Platine oder ersetzen Sie die neue | |
| DC-Lüfterausfall | EE17 | Überprüfen Sie die Platine oder ersetzen Sie die neue | |
| PFC-Modul tempure | EE18 | Überprüfen Sie die Platine oder | |
| Erkennung interne Schaltung Fehler | ersetzen Sie die neue | ||
| PFC-Modul Hochtemperaturschutz | EE19 | Überprüfen Sie die Platine oder ersetzen Sie die neue | |
| Netzausfall | EE20 | Die Versorgungsspannung schwankt zu stark | Überprüfen Sie die Platine oder ersetzen Sie die neue |
| Ausfall der Softwaresteuerung | EE21 | Kompressor lauft aus | Überprüfen Sie die Platine oder ersetzen Sie die neue |
| Fehlerstromdetektor | EE22 | Das Ausgangsspannungssignal des Verständerkers ist abnormal | Überprüfen Sie die Platine oder ersetzen Sie die neue |
| Verdichterstartfehler | EE23 | Überprüfen Sie die Platine oder ersetzen Sie die neue | |
| Fahrpanel Umgebungstemperatur Lampe Ausfall | EE24 | ||
| Verdichterphasenausfall | EE25 | 1. Verdraught falsch2. Verbindung von 1 Phase oder Phasen. | Überwachung der Steuerung |
7.2 Andere Fehlfunktionen und ihre Lösung (werden nicht auf der LED-Kabelsteuerung angezeigt)
| Fehlfunktion | Anzeichen | Ursachen | Lösung |
| Wärmpumpe lauft nicht | LED-Kabelsteuerung hat keine Anzeige | Keine Stromzufahr | Überprüfen Sie ob Kabel und Schutzschalter verbunden sind |
| LED-Kabelsteuerung zeigt die aktuelle Zeit an. | Wärmpumpe im Bereitschaftsmodus | Starten Sie die Wärmpumpe. | |
| LED-Kabelsteuerung zeigt die aktuelle Wassertemperatur an. | 1. Wassertemperatur erreicht den vorgesehenen Wert, HP ist auf konstantem Temperaturniveau2. Wärmpumpe hat erst zu arbeiten angefangen3. Im Auftaumodus | 1. Überprüfen Sie die Wassertemperatureinstellungen.2. Starten Sie die Wärmpumpe nach ein paar Minuten.3. LED-Kabelsteuerung soll "Defrosting" anzeigen. | |
| Die Wassertemperatur sinkt wenn HP im Heizmodus lauft | LED-Kabelsteuerung zeigt die aktuelle Wassertemperatur an und kein Fehlercode wird angezeigt | 1. Der falsche Modus wurde ausgewähl.2. Die Eingangsdaten sind falsch3. Steuerung ist defekt | 1. Stellen Sie den Modus richtig e2. Ersetzen Sie die defekte LED-Kabelsteuerung, und überprüfen Sie den Status nach dem Sie in den Betriebsmodu übergegangen sind, schließlich überprüfen Sie die Wassereintrits- und Austrittstemperatur.3. Ersetzen oder Reparieren Sie di Helpumpeneinheit |
| Kurze Laufzeiten | LED-Bildschirm zeigt aktuelle Wassertemperatur an, kein Fehlercode wird angezeigt. | 1. Ventilator lauft nicht2. Luftzirkulation ist nicht ausreichend.3. Unzureichende Kühlmittel. | 1. Überprüfen Sie die Kabelverbindungen zwischen dem Motor und dem Ventilator. Wenn nötig sollen den Sie ersetzt werden.2. Überprüfen Sie die Position der Wärmpumpeneinheit, und entfern den Sie alle Hindernisse um eine optimale Luftzirkulation zu erreichen.3 Ersetzen oder reparieren Sie die Wärmpumpeneinheit. |
| Wasserflecken | Wasserflecken auf der Wärmpumpeneinheit | 1. Beton.2. Wasserlecke. | 1. Nichts tun.2. Überprüfen Sie den Luft-Wärmewechsle auf Defekte. |
| Zu viel Eis am Verdampfer | Zu viel Eis am Verdampfer | 1. Überprüfen Sie die Position der Wärmpumpeneinheit, und entfern den Sie alle Hindernisse, um eine optimale Luftzirkulation zu erreichen.2. Ersetzen oder reparieren Sie die Wärmpumpeneinheit. |
8. Explosionszeichnung und Wartung
8. 1 Explosionszeichnung Modell 7 kw

| NO | Teilname | NO | Teilname |
| 1 | Obere Abdeckung | 31 | Terminal |
| 2 | Rückgrill | 32 | Verdrahtungsclip |
| 3 | Verdampfer | 33 | Druckanzeige |
| 4 | Säule | 34 | Verdrahtungsabdeckung |
| 5 | Oberer Rahmen | 35 | Nadelventil |
| 6 | Isolierverkleidung | 36 | EEV |
| 7 | Reaktor | 37 | Rohrleitungen |
| 8 | Motorhalterung | 38 | Rücklaufleitung |
| 9 | Motor | 39 | Hochdruckschalter |
| 10 | Ventilatorflügel | 40 | Niederdruckschalter |
| 11 | Linkes Seiteneil | 41 | Niederdruckschalter |
| 12 | Verdrahtungskosten | 42 | Expansionsventil zum Verteiler |
| 13 | Frontblende | 43 | 4-Wege-Ventil zum Sammelrohr |
| 14 | Kühlergrill | 44 | Zusammenbau |
| 15 | Wasserdichte Box | 45 | Verteilerbaugruppe |
| 16 | Regler | 46 | Temperaturgehäuse |
| 17 | Wassertemperaturfuhler TH5 | 47 | Temperaturfühleregähse |
| 18 | Austauschertemp. Sensor feststehende Folie | 48 | Rückwand |
| 19 | Grundplatte | 49 | Blauer Gummi |
| 20 | Elektrische Kastenabdeckung | 50 | Wasserversorgung Schraubenabdeckung |
| 21 | Wasserdurchflussschalter | 51 | Spulentemperaturfuhler TH2 |
| 22 | Kompressor | 52 | Roter Gummi |
| 23 | Titan-Austauscher | 53 | Wasserversorgung Schraubenabdeckung |
| 24 | Hauptbrett | 54 | 4-Wege-Ventil zum Austauscher |
| 25 | Austauschertemp. Sensor feststehende Folie | 55 | 4-Wege-Ventil |
| 26 | Wassereintrittstemperaturfuhler TH6 | 56 | Auspuff |
| 27 | Elektrische Box | 57 | Ablufttemperaturfuhler TH3 |
| 28 | Ablaufstopfen | 58 | Umgebungstemperaturfuhler TH1 |
| 29 | Verdrahtungskosten | 59 | Umgebungstemperatur-Clip |
| 30 | Rechte Seitenwand |

Modell 26 kw
| NO | Teilname | NO | Teilname |
| 1 | Obere Abdeckung | 36 | Rechte Seitenwand |
| 2 | Rückgrill | 37 | Druckanzeige |
| 3 | Verdampfer | 38 | Wassertemperaturfühler TH5 |
| 4 | Säule | 39 | Wasserdurchflussschalter |
| 5 | Oberer Rahmen | 40 | Verdrahtungsabdeckung |
| 6 | Isolierverkleidung | 41 | Verdrahtungsclip |
| 7 | Reaktor | 42 | 3-Klemme für Wasserpumpe |
| 8 | Stützrahmen | 43 | 3-poliges Netzteil |
| 9 | Motorhalterung | 44 | Klemmenleiste |
| 10 | Motor | 45 | Klemmleiste |
| 11 | DC-Motorgehäuse | 46 | Rücklaufleitung |
| 12 | Ventilatorflügel | 47 | Niederdruckschalter |
| 13 | Linkes Seiteinteil | 48 | Niederdruckschalter |
| 14 | Frontblende | 49 | Ablufttemperaturfühler TH3 |
| 15 | Kühlergrill | 50 | Temperaturfühlergähse |
| 16 | Verdrahtungskosten | 51 | Temperaturgehäuse |
| 17 | Regler | 52 | 4-Wege-Ventil zum Sammelrohr |
| 18 | Wasserdichte Box | 53 | Spulentemperaturfühler TH2 |
| 19 | Grundplatte | 54 | Zusammenbau |
| 20 | Kompressor | 55 | Verteilerbaugruppe |
| 21 | Lagertank | 56 | Rückwand |
| 22 | Treiberplatine | 57 | Blauer Gummi |
| 23 | Elektrische Kastenabdeckung | 58 | Wasserversorgung Schraubenabdeckung |
| 24 | Filterplatte | 59 | Reservoir zum Expansionsventil |
| 25 | Futter | 60 | Expansionsventil zum Verteiler |
| 26 | Elektrische Box | 61 | 4-Wege-Ventil zum Austauscher |
| 27 | Hauptbrett | 62 | Roter Gummi |
| 28 | Filter zum Reservoir | 63 | Wasserversorgung Schraubenabdeckung |
| 29 | Wassereintrittstemperaturfühler TH6 | 64 | Nadelventil |
| 30 | Austauschertemp. Sensor feststehende Folie | 65 | 4-Wege-Ventil |
| 31 | Ablaufstopfen | 66 | EEV |
| 32 | Titan-Austauscher | 67 | Hochdruckschalter |
| 33 | Filter | 68 | Auspuff |
| 34 | Austauscher zum Filtern | 69 | Umgebungstemperaturfühler TH1 |
| 35 | Handpumpstütze | 70 | Umgebungstemperatur-Clip |
9. Wartung
1) Sie sollen das Wasserzufuhrsystem regelmäßiger überprüfen, um zu vermeiden dass Luft in das System eindringt und geringe Wasserflussmenge verursicht, Denn das wurde die Leistung und Zuverlösigkeit der HP-Einheit reduzieren.
(2) Reinigen Sie ihr Becken und Filtersystem regelmäß um Schäden an der Einheit durch verschmutzte Filter zum vermeiden.
3) Sie sollen das Wasser am Boden der Wasserpumpe auslassen, wenn die HP-Einheit für längerere Zeit unbenutzte bleiben soll (besonders im Winter).
4) Ansonsten sollenen überprüfen ob die Einheit mit Wasser gefüllt ist, bevor Sie sie starten.
5) Nachdem die Einheit für die Winterseason ausgerüstet wurde, sollte sie mit einer speziellen Winterdecke abgedeckt werden.
6) Wärend die Einheit lauft ist es normal wenn ein weniger Wasser darunter auslauft.
10. Gewährleistung und RMA (Warenrücksendeugehmigung)
10.1 Gewährleistung
BESCHRÄNKTE GEWÄHRLEISTUNG
Danke für den Kauf unserer Wärmpumpe.
Wir garantieren für einen Zeitraum von zwei Jahren ab dem Datum des Erwerbs im Einzelhandel, das hinsichtlich Material und Ausführung frei von Herstellungsmängeln sind.
These Gewährleistung beschrankt sich auf den ersten Einzelhandelskäfer, ist nicht übertragbar und gilt Produkte, die von ihrem ursprünglichen Einbauort entfern wurden. Die Haftung des Herstellers gibt Reparatur oder Austausch der fehlerhaften Teile hinaus und umfasst weder Arbeitskosten für Ausbau und Einbau des fehlerhaften Teils, noch den Transport zum oder vom Werk oder andere für die Reparatur Materialien. Die Gewährleistung erstreckt sich nicht auf Ausfälle oder Störungen aufgrund folgender Urs
- Das Produkt wurde nicht ordnungsgemäß montiert, betrieben bzw. gewartet wie in unserer mit dem mitglicferten "Einbau- und Bcdienungsanleitung" beschrieben.
- Ausführungsqualität des Installateurs des Produkts.
- Unzureichendes chemisches Gleichgewicht in Ihrm Pool [pH Wert zwischen 7,0 und 7,8; Gesamtalkalität (TA) zwischen 80 und 150 ppm; freies Chlor zwischen 0,5 und 1,2mg/l; Gesamtgehalt an geförd (TDS) unter 1200 ppm; Salz maximal 8g/l].
- Missbrauchliche Verwendung, Umbau, Unfall, Brand, Überflutung, Blitzschlag, Nager, Insekten, Fahrlichkeit, oder höhere Gewalt.
- Abblätterungen, Frost, oder andere Bedingungen, die zu unzureichender Wasserzirkulation führen.
- Betrieb des Produkts bei Wasserdurchflussraten außerhalb der angegebenen Mindest- und Höchstkwerte.
- Verwendung nicht autorisierter Teile oder Zubehörteile in Zusammenhang mit dem Produkt.
- Chemische Verschmutzung der Verbrennungsluft oder unsachgemäß Verwendung von Desinfektionschemikalien wie die Einleitung von Desinfektionschemikalien vor der Heizvorrichtung und Reinigungsschlauch bzw. durch den Siphon.
- Überhitzung, falsche Verdrahtung, ungccignete Elektrizitätsversorgung, Kollateralschaden durch defektive O-Ringe, DE-Gitter oder Filterelemente, sowie Schäden aufgrund des Betriebs der Pumpe mit zu gewährt.
HAFTUNGSBESCHRÄNKUNG
Dies ist die einzige Gewährleistung des Herstellers. Keine andere Person ist berechtigt, in unserem Nare andere Gewährleistung zu geben.
DIES E W AHRLEISTUNG ERSETZ T ALLE Anderen G W AHRLEISTUNGEN, S OWOHL EXP LIT I ES AUCH IMPLIZITE, WIE ZUM BEISPIEL IMPLIZITE G W AHRLEISTUNGEN BEZ UGLICH DER EIGNUNG FUR BESTIMTE ZWECKE UND VERKEHRSF A HIGKEIT. JEDW HAFTUNG FUR FOLGESCHADEN, BEILAUFIG ENTSTANDENE SCHADEN, INDIREKTE SCHAD SOWIE STRAFZUSCHLAGE ZUM SCHADENERSATZ BEIM BRUCH EINER EXPLIZITEN ODER IMPLIZITEN G W AHRLEISTUNG WIRD AUSDRUCKLICH ABGELEHNT UND AUSGESCHLOSSI Durch diese Gewahrleistung erhalten Sie bestimmte Rechtsansprüche, die von Land zu Land unterschiedl konnen.
GEWÄHRLEISTUNGSANSPRÜCHE
Für eine rasche Berücksichtigung der Gewährleistung wenden Sie sichitte an ihren Handler und gebe Informationen an: Kaufnachweis, Modellnummer, Seriennummer und Datum des Einbaus. Der Installatuer mit dem Werk in Verbindung und erhält dann Anweisungen bezuglich der Ansprüche bzw. Angaben zur nachstgelegenen Servicezentrale.
Für alle zureckgeschickten Teile ist eine RMA-Nummer (Rücksendenummer) erforderlich, damit sie gemäß den Bedingungen dieser Gewährleistung untersucht werden konnen.
10.2 RMA Antragsformular
| Firma: | Datum: | |||||
| Adresse: | ||||||
| Ort: | PLZ: | Land: | ||||
| Ansprechpartner: | Tel.: | |||||
| E-Mail: | Fax: | |||||
| Ansprechpartner: | Datum: |
| Interne Verwendung | |||
| RMA-Nummer: | |||
| Ausgestellt von: | Datum: | ||
Rücksendung wegen: Kopie der Kundenrechnung beigelegt?

| Andere Unterlagen dem RMA-Antrag beigelegt? ☐ ☐ | |
| Beschreibung der Unterlagen: | |
| Modell Nr.: | Rechnung Nr.: | ||
| Seriennr.: | Rechnungsdatum: | ||
| Problem: | |||
Richtlinien zur Gewährleistungsreparatur:
- Rücksendungen sind "Fracht vorausbezahlt" zu senden. Alle Rücksendungsgebühren sind von ihren zu tragen.
- Für die Rückgabe von Produkten ist eine vorherige Genehmigung erforderlich. Nicht für die Rückgabe genehmigte Produkte werden Ohnen auf ihre Kosten zusückgeschickt.
- Wir reparieren oder ersetzen die Produkte und versenden alle Produkte kostenlos mit einem Beforderungsunternehmen unserer Wahl.
- Auf ihren Wunsch und ihre Kosten ist auch ein Versand per Eilboten möglich.
Rückgabeverfahren:
- Vor der Anforderung einer RMA-Nummer prüfen Sieitte noch einmal,ob Sie die Einbau- und Bedienungsanleitung in Ihrm Benutzerhandbuch ordnungsgemäß befolgt haben.
-
Wenden Sie sich an unsere Rücksendeabteilung und fordern Sie ein RMA-Antragsformular an.
-
Vergewissern Sie sich, dass Sie ALLE Angabenfelder des RMA-Antragsformulars ausgefüllt haben.
- Bei Rücksendungen innerhalb der Gewährleistungsfrist müssen Sie ein Kopie ihrer Originalverkaufsrechnung an ihren Kunden beilegen.
- Schicken Sie uns das RMA-Antragsformular, die Verkaufsrechnung und andere Unterlagen (Bilder, ...) per Fax oder E-Mail. Eine RMA-Nummer wird binnen 24 Stunden nach Erhalt der ordnungsgemäßen Dokumente ausgestellt. Wenn die in Punkt (3) und (4) angegebenen Informationen fehlen, kann die Ausstellung einer RMA-Nummer verweigert werden.
- Die RMA-Nummer muss deutlich auf dem Versandschild sowie auf dem Schild der Versandverpackung aufscheinen.
- Produkte ohne Schilder sowie falsch oder unleserlich gekennzeichne Produkte werden nicht angenommen und unfrei zurückgeschickt.
- Alle Verpackungen, die zum Zeitpunkt der Auslieferung an uns beschädigt erschinen, werden "IN DER VORLIEGenden FORM" abgeleht.
13.itte stnen Si sicher, dass die an uns gesandten Produkte dieselben sind, fur die die Nummer ausgestellt wurd. Wenn die Produkte nicht mit der vergebenen RMA-Nummer ubereinstimmen, schicken wir alle Produkte unfrei zuruck. - Rücksendungen ohne RMA-Nummer werden ausnahmslos nicht angenommen.
- Die RMA-Nummer gilt nur 21 Kalendertage nach der Autorisierung. Wir behalten uns vor,
Rücksendungsgegenstände nach einem Zeitraum von 21 Tagen ab Ausstellung der RMA-Nummer nicht anzunehmen.
Produkte außerhalb der Gewährleistung:
Der Kunde ragt die Versand- und Reparaturkosten. Nach einer Diagnose der returnierten Produkte wird eine Schätzung der Reparaturkosten erstellt.
Die Diagnosegebhr beträgt mind. € 50,00.
Hydro-pro inverter
7. Usterki ich usuwanie
4.2 Tilbehör Montering

EinfachAnleitung