TRP642DL - Kochfeld SCHOLTES - Kostenlose Bedienungsanleitung
Finden Sie kostenlos die Bedienungsanleitung des Geräts TRP642DL SCHOLTES als PDF.
Laden Sie die Anleitung für Ihr Kochfeld kostenlos im PDF-Format! Finden Sie Ihr Handbuch TRP642DL - SCHOLTES und nehmen Sie Ihr elektronisches Gerät wieder in die Hand. Auf dieser Seite sind alle Dokumente veröffentlicht, die für die Verwendung Ihres Geräts notwendig sind. TRP642DL von der Marke SCHOLTES.
BEDIENUNGSANLEITUNG TRP642DL SCHOLTES
Beschreibung des Gerätes, 44-45
Bedienfeld
Erweiterbare Kochzonen
Inbetriebsetzung und Gebrauch, 46-49
Einschalten des Kochfeldes
Einschalten der Kochzonen
Funktion Power
Ausschalten der Kochzonen
Programmierung der Garzeit
Die Minutenuhr
Sperre der Schaltelemente
Ausschalten des Kochfeldes
"Demo"-Mode (Vorfuhrmodus)
Praktische Ratschlage zum Einsatz des Gerätes
Sicherheitsvorrichtungen
Praktische Back-/Brathinweise
Vorsichtsmaßregeln und Hinweise, 50
Allgemeine Sicherheit
Entsorgung
Reinigung und Pflege, 51
Abschalten Ihres Gerätes vom Stromnetz
Reinigung des Gerätes
Demontage des Kochfeldes
Technische Beschreibung der Modelle, 52

Scholtès
! Bewahren Sie diese Bedienungsanleitungitte sorgfaltig auf, damit Sie sie jederzeit zu Rate ziehen konnen. Sorgen Sie davon, dass sie im Falle eines Verkaufs, eines Umzugs oder einer Übergabe an einen anderen Benutzer das Gerät stets begleitet, damit auch der Nachbesitzer die Möglichkeit hat, darin nachschlagen zu konnen.
! Lesen Sieitte die nachfolgenden Hinweise aufmerksam durch: sie liefern wichtige Informationen hinsichtlich der Installation, des Gebrauchs und der Sicherheit.
Posizionamento
! Verpackungsmaterial ist kein Spielzeug für Kinder. Es ist entsprechend den Vorschriften zur getrennten Müllsammlung zu entsorgen (siehe Vorsichtsmaßregeln und Hinweise).
! Die Installation ist gemäß den vorliegenden Anweisungen und von Fachpersonal durchzuführen.Eine unsachgemäß Installation kann Menschen und Tiere gefährden oder Sachschaden verursachen.
Einbau
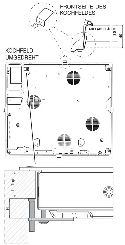
Um eine einwandfrei Betriebsweise des Gerätes zu gewährleisten, muss der Umbauschrank folgende Eigenschaften aufweisen:
Die Auflagefläche muss aus hitzebeständigem Material beschaffen sein, um einer Temperatur von ca. 100^ standzuhalten.
- Soll das Kochfeld über einem Backofen installiert werden, muss letzterer mit einem Kühlsystem mit Zwangsbelüftung ausgestellt sein.
- Von der Installation eines Kochfeldes über einem Geschirrspüler wird abgeraten. Gegebenenfalls ist zur Abdichtung ein Zwischendeil zwischen beiden Geräten zu installieren.
- Je nach dem zu installierenden Kochfeld (siehe Abbildungen) sind Arbeitsflächenausschnittte folgender Abmessungen vorzusehen:






Beluftung
Zur ausreichenden Belüftung und zur Vermeidung der Überhitzung der Flächen rund um das Gerät muss das Kochfeld wie folgt positioniert werden:
- in einem Abstand von mindestens 40 mm von der dahinter liegenden Wand bzw. jeder anderen vertikalien Fläche;
- um einen Abstand von mindestens 20 mm zwischen dem für den Einbau bestimmten Ausschnitt und dem entsprechenden Unterschrank zu gewährleisten.
Befestigung
Das Kochfeld muss auf einer perfekt ebenen Stütz-bzw. Auflagelfläche installiert werden.
Durch unsachgemäß Befestigung hervorgerufene Verformungen konnten die Eigenschaften und Leistungen des Kochfeldes beeinträchtigen.
Die Länge der Regelschrauben der Befestigungsklammern wird vor Montage derselben eingestellt, undzarjne nach der Stärke der Auflagefläche:
- 30 mm - Schraube 17,5 mm;
- 40 mm - Schraube 7,5 mm .
Verfahrens Sie zur Befestigung wie folgt:
- Schrauben Sie die 4 Zentrierungsfedern mittels der vier kurzen, stumpfen Schrauben in die in der Mitte einer jeder Kochfeldseite befindlichen Lochbohrungen.
- Setzen Sie das Kochfeld durch leichtes Andrücken des gesamten umlaufenden Randes mittig in den Möbelausschnitt ein, undzar so, dass es vorschrittsmäßig auf der gesamten Auflagefläche aufstützt.
- Für Kochfelder mit Seitenprofilen: Stecken Sie nach Einsatz des Kochfeldes in den Möbelausschnitt die 4 Befestigungshaken (ein jeder mit seinem Stift) in den umlaufenden unteren Rand des Kochfeldes, und schrauben Sie diese mittels der vier langen, spitzen Schrauben fest, bis das Glas an der Auflagelänge anhaltet.
! Die Schrauben der Zentrierungsfedern,müssen unbedingt zuganglich sein.
! Gemäß den Sicherheitsvorschriften muss nach erfolgtem Einbau die Möglichkeit einer Berührung mit Strom führenden Teilen ausgeschlossen sein.
! Alle zum Schutz dienenden Teile müssen so befestigt werden, dass ein Entfernen derselben ohne Zuhlifenahme eines Werkzeugs nicht möglich ist.
Elektröanschluss
! Bei der Installation des Kochfeldes und der eines eventuellen Einbaubackofens müssen sãmtliche Elektroanschluss getrennt vorgenommen werden, und dies nicht nur aus Sicherheitsgründen, sondern auch um den Backofen, falls nötig, leichter Herausziehen zu konnen.
Klemmengehäuse
KoCHFELD
UMGEDREHT

Das Gerät ist mit einem
Gehäuse (befindlich im unteren Teil) ausgestattet, das für den Anschluss an andersartige
Elektroversorgungen bestimm ist (die Abbildung ist nur richtungsweisend, demnach ist es möglich, dass
sie mit dem erworbenen Gerät nicht übereinstimmt).
Einphasenanschluss
Das Kochfeld ist mit einem bereits angeschlossenen Netzkabel ausgestattet und ist für einen
Einphasenanschluss voreingestellt. Schlieben Sied die Drähte gemäß nachfolgender Tabelle und
Zeichnungen an:
| Netzspannung und -frequenz | Elektrokabel | Anschluss der Drähte |
| 230-240V 1+N ~ 220-240V 1+N ~ 50/60 Hz | N L | ½: gelt/grün; N: die 2 blauen Drähte zusammen L: braun zusammen mit schwarz |
Andere Anschlussarten
Sollte die Elektroanlage einer der nachfolgenden Eigenschaften entsprechen:
Netzspannung und -frequenz
- 400V - 2+N ~ 50/60 Hz
- 220-240V 3 ~ 50/60 Hz
- 230-240V 3 ~ 50/60 Hz
- 400V - 2+2N ~ 50/60 Hz
Trennen Sie die Drähte und schlieben Sie sie gemäß nachfolgender Tabelle und Zeichnungen an:
| Netzspannung und -frequenz | Elektrokabel | Anschluss der Dühte |
| 400V - 2+N ~ 50/60 Hz | N L1 L2 | : gelt/grün; N: die 2 blauen Dühte zusammen L1: schwarz L2: braun |
| 230-240V 3 ~ 220-240V 3 ~ 50/60Hz | ||
| 400V - 2+2N ~ 50/60 Hz | N1 (N2) (L1) (L2) | : gelt/grün; N1: blau N2: blau L1: schwarz L2: braun |
Sollte die Elektroanlage einer der nachfolgenden Eigenschaften entsprechen:
Netzspannung und -frequenz
- 400V 3 - N ~ 50/60 Hz
dann vermfahren Sie wie folgt:
! Das eventuell mitgelieferte Netzkabel kann für diese Installationsarten nicht verwendet werden.
- Verwenden Sie ein geeignetes Versorgungskabel des Typs H05RR-F, oder eines hohenen Wertes, geeigneter Maße (Kabelquerschnitt: 25 mm).
- Heben Sie unter Zuhlifenahme eines Schraubenziehers die seitlichen Zungen des Klemmengehausedeckels an (siehe Abbildung Klemmengehause).
- Schrauben Sie die Schraube der Kabelklemme sowie die Schrauben der Klemmen, die der erforderlichen Anschlussart entsprechen, aus und positionieren Sie die Brücken in Anleitung an nachfolgende Tabelle und Zeichnungen:
- Verlegen Sie die Drähte gemäß nachstehenden Zeichnungen und Tabelle und schlieben Sie die Drähte an. Ziehen Sie die Klemmenschrauben hierbei fest an.
| Netzspannung und -frequenz | Elektrischer Anschluss | Klemmengehäuse | ||||
| 400V 3-N ~ 50/60 Hz | 1 L1 | 2 L2 | 3 L3 | 4 N | 5 | Dreiphasenanschluss 400 |
- Befestigen Sie das Netzkabel in der entsprechenden Kabelklemme und schreiben Sie den Deckel.


Dreiphasenanschluss 400
Dreiphasenanschluss 400
Anschluss des Netzkabels an das Stromnetz
Wird das Gerät direkt an das Stromnetz
angeschlossen, ist zwischen Stromnetz und Gerä
ein allpoliger Schalter mit einer
Mindestkontaktöffnung von 3 mm
zwischenzuschalten.
! Der Installateur ist für den ordnungsgemäßen elektrischen Anschluss sowie die Einhaltung der Sicherheitsvorschriften verantwortlich.
Vor dem Anschluss stellen Sieitte)sicher,dass:
- die Netzsteckdose geerdet ist und den gesetzlichen Bestimmungen entspricht;
- die Netzsteckdose für die auf dem Typenschild (befindlich auf dem Gerät) angegebene maximale Leistungsaufnahme des Gerätes ausgelegt ist;
- die Netzspannung im Bereich der auf dem Typenschild angegebenen Werte liegt;
- die Steckdose mit dem Netzstecker kompatibel ist. Sollte dies nicht der Fall sein, wechseln Sieitte die Steckdose oder den Netzstecker aus; verwenden Sie keine Veränderungen und Mehrfachsteckdosen.
!Netzkabel und Steckdose müssen bei installiertem Gerät weniger zugänglich sein.
! Das Netzkabelarf nichtgebogen oder eingeklemmtwerden.
! Das Netzkabel muss regelmäßig kontrolliert werden undarf nur durch autorisiertes Fachpersonal ausgetauscht werden.
! Der Hersteller lehnt jeder Verantwortung ab, falls diese Vorschriften nicht eingehalten werden sollenen.
! Entfernen oder ersetzten Sie unter keinen Umständen das Netzkabel. Wird das Kabel entfern oder ersetzt, verfallen sowohl die Gewährleistung als auch das CE-Zeichen. INDESIT übernimmt keine Verantwortung für Unfälle oder Schäden, die durch das Entfernen/Ersetzen des Original-Netzkabels verursacht werden. Der Austausch damit ausschließlich mit einem Originalersatzteil und durch autorisiertes Fachpersonal INDESIT durchgeführt werden.
DE
Bedienfeld
Das hier beschriebene Bedienfeld dient nur als Beisiel, es handelt sich nicht unbedingt um eine genaue Widergabe des von Ihnen erworbenen Modells.

- Taste ERHÖHEN DER LEISTUNG: Zum Einsatzen sowie zur Leistungsregelung der Kochzone (siehe Inbetriebsetzung und Gebrauch).
- Anzeige KÖCHZONE zur Angabe der zugehörigen Kochzone.
- Taste WAHL DER KÖCHZONE: Mittels dieser wird die gewündte Kochzone gewählt.
- LEISTUNGSANZEIGE: Auf dieser ist der jeweils erreichte Heizwert ersichtlich.
- Taste ON/OFF: Zum Ein- bzw. Ausschalten des Gerätes.
- Kontrollleuche ON/OFF: Diese zeigt an, ob das Gerät ein- oder ausgeschaltet ist.
- Taste PROGRAMMIERUNGSTIMER*: Mittels dieser Taste kann die für jeder Kochzone jeweils programmierte Zeit reguliert werden (siehe Inbetriebsetzung und Gebrauch).
- Display PROGRAMMIERUNGSTIMER*: Auf thisem Display werden die jeweils programmierten Zeiten angezeigt (siehe Inbetriebsetzung und Gebrauch).
-
Kontrolleuchten PROGRAMMIERTE KOCHZONE*: These zeigen die Kochzonen an, die programmiert wurden (siehe Inbetriebsetzung und Gebrauch).
-
Taste SPERRE DER SCHALTELEMENTE: Um versehentliche Änderungen der am Kochfeld erfolgten Einstellungen zu verhindern (siehe Inbetriebsetzung und Gebrauch).
- Kontrollleuche SCHALTELEMENTE GESPERRT: Diese signalisiert, dass die Schaltelemente gespert wurden (siehe Inbetriebsetzung und Gebrauch).
- Kontrolleuchte KURZZEITWECKER*: Diese signalisiert, dass der Kurzzeitwecker lauft
- Taste ZEITVERLÄNGERUNG* zur Veränderung der Zeit bei Verwendung des Kurzzeitweckers oder einer Programmierung (siehe Inbetriebsetzung und Gebrauch).
- Taste ZEITVERKÜRZUNG* zur Verkürzung der Zeit bei Verwendung des Kurzzeitweckers oder einer Programmierung (siehe Inbetriebsetzung und Gebrauch).
! Dieses Produkt entspricht den Vorschriften der neuen Europäischen Richtlinie zur Einschränkung des Energieverbrauchs im Standby. Werden für 2 Minuten keine Tasten gedrückt, dann stellt sich das Gerät nach Ausschalten der Anzeigen für Resthitze und des Lüfters (wenn vorhanden) automatisch in den "off mode". Das Gerät keht durch Drucken der Taste ON/OFF in den Betriebsmodus zurück.
* Nur bei einigen Modellen.
Erweiterbare Kochzonen
Einige Modelle verfügen über erweiterbare Kochzonen. Diese können unterscheidliche Formen aufweisen (rund oder oval) sowie entsprechende Erweiterungsmöglichkeiten besitzen (Doppel- oder Dreifach-Kochzone). Hier werden die entsprechenden Bedienelemente aufgeführt, mit denen die Modelle bestückt sind, die über solche Optionen verfügen.

Runde, erweiterbare Kochzone
- Taste EINSCHALTEN DER DOPPELKOCHZONE: Mittels dieser kann die Doppelkochzone aktiviert werden. (siehe Inbetriebsetzung und Gebrauch).
- Kontrolleuchte DOPPELKOCHZONE EINGESCHALTET: Diese zeigt an, dass die Doppelkochzone eingeschaltet wurde.

Ovale, erweiterbare Kochzone
- Taste EINSCHALTEN DER OVALEN KOCHZONE: Mittels dieser kann die ovale Kochzone aktiviert werden. (siehe Inbetriebsetzung und Gebrauch).
- Kontrollleuchte OVALE KOKHZONE EINGESCHALTET: Diese zeigt an, dass die ovale Kochzone eingeschaltet wurde.
DE
! Der auf die Dichtungen aufgetragene Leim könnte Fettspuren auf dem Glas hinterlassen. Wir empfehlen Ohnen, diese vor Einsatz des Gerätes mit einem herkömmlichen Reinigungsmittel (eine nicht scheuernde Poliercreme) zu entfernen. Während der ersten Betriebsstunden konnte ein Geruch verbrannten Gummis zu vernehmen sein. Dies wird sich nach kurzer Zeit geben.
! Wird das Kochfeld an das Stromnetz angeschlossen, ertont nach einigen Sekunden ein kurzes akustisches Signal. Nur daraufhin kann das Kochfeld eingeschaltet werden.
! Durch längeres Drücken der Tasten und küssen die Leistungswerte und die Minuten des Timers im Schnellauf verändert werden.
Einschalten des Kochfeldes
Das Kochfeld wird über die Taste (für ca. 1 Sekunde gedrück halten) eingeschaltet.
Einschalten der Kochzonen
Zur Inbetriebnahme einer Kochzone stellen Sie mittels der Tasten und die gewünschte Leistungsstufe ein.
- Wenn Sie die Taste + etwas 2 Sekunden lang gedrück halten, wird die Leistung der Kochzone(sofort auf die Hochstufe (16) erhöht.
- Wenn Sie die Taste — etwas 2 Sekunden lang gedrückt halten, wird die Leistung der Kochzone auf die Stufe 2 (Funktion zum Langsamgaren) herabgesetzt.
Funktion Power*
Zur Beschleunigung der Aufheizzeit der hinteren Kochzonen kann die Funktion Power eingesetzt werden: Schalten und stellen Sie das gewünschte
Kochfeld Power ein, wie im vorangegangenen Abschnitt beschreiben. Drücken Sie die Taste Power. Auf dem Display "Leistungsanzeige" wechselt die Anzeige vom Buchstaben "P" zur zuvor eingestellten Leistungsstufe solange, bis die gewünschte Leistungsstufe erreicht ist. Sobald sie erreicht ist, zeit das Display wieder die eingestellte Leistungsstufe. Um diese Funktion auszuschalten, drücken Sie erneut die Taste Power oder wahlen Sie mit dem Leistungsregler von 0 bis 9 eine andere Leistungsstufe.
* Nur bei einigen Modellen.
Ausschalten der Kochzonen
Um eine Kochzone auszuschalten:
- Drücken Sie die Taste: Die Kochzonenleistung sinkt allmählich bis zum völligen Ausschalten der Kochzone.
- Oder drücken Sie gleichzeitig die Tasten und: Die Leistung sinkt sofort auf 0, die Kochzone wird ausgeschaltet.
Programmierung der Garzeit
! Durch langes Drucken der Tasten und kann die Minutenanzeige des Timers im Schnelllauf verändert werden.
! Sümmtliche Kochzonen können gleichzeitig für eine Garzeit von 1 - 99 Minuten programmiert werden.
- Wahlen Sie die Kochzone über die entsprechende Wahltaste.
- Stellen Sie die Gartemperatur ein.
- Drücken Sie die Programmiertaste
- Stellen Sie über die Tasten und die gewünschte Garzeit ein.
- Bestätigten Sie die Einstellung durch Druck auf die
Taste
Die Zeitrechnung (rückwärfter Ablauf) des Timers setzt unverzüglich ein. Ist die programmierte Garzeit abgelaufen, ertont (1 Minute lang) ein akustisches Signal und die Kochzone wird automatisch ausgeschaltet.
Wiederholen Sie obige Schritte für jeder Kochzone, die Sie programmieren möchten.
Anzeige im Falle einer Mehrfachprogrammierung
Wurde die Betriebszeit einer oder mehrerer Kochzonen vorprogrammiert, erscheint auf dem Display die Restgarzeitanzeige der Kochzone, die für die niedrigste Zeit programmiert wurde; die entsprechende Kontrollleuchte blinkt, um anzuzeugen, um welche Kochzone es sich handelt. Die Kontrollleuchten der übrigen programmierten Kochzonen sind eingeschaltet.
Um die Restzeit der anderen programmierten Kochfelder anzuzeigen drücken Sie wiederholt die
Taste: es werden in Folge und im Uhrzeigersinn alle Zeiten der programmierten Kochfelder angezeigt, beginnend mit dem Kochfeld vorne links.
Änderung der Programmierung
- Drücken Sie mehrmals die Taste , bis die Zeit der Kochzone, deren Programmierung Sieändern möchten, angezeigt wird.
- Stellen Sie mittels der Tasten und die neue Zeit ein.
- Bestätigten Sie die Einstellung durch Druck auf die Taste
Möchten Sie eine Programmierung Löschen, dann verfahren Sie wie folgt: Bei Punkt 2 drücken Sie die Taste :Die programmierte Zeit wird fortlaufend gesenkt bis zum Ausschalten bei O. Die programmierte Zeit wird gelöscht und das Display verlasset den Programmierungs-Modus.
Die Minutenuhr
Das Kochfeld muss eingeschaltet sein.
Mit dem Minutenzahler kann ein Zeitraum bis 99
Minuten eingestellt werden.
- Drücken Sie die Programmiertaste bis sich die Kontrollleuche des Minutenzahlers einschaltet.
- Stellen Sie über die Tasten und die gewünschte Zeit ein.
- Bestätigkeiten Sie die Einstellung durch Druck auf die Taste .
Die Zeitrechnung (rückwärfter Ablauf) des Timers setzt unverzüglich ein. Nach Ablauf der Zeit ertönt ein akustisches Signal (über die Dauer von 1 Minute).
Sperre der Schaltelemente
Während der Betriebszeit des Kochfeldes konnen die Schaltelemente gespert werden, um irrtümliche Einstellungenänderungen zu verhindern (durch Kinder, bei der Reinigung usw.). Drücken Sie die Taste
für einige Sekunden, dann werden die Schaltelemente gespeppt. Die über der Taste befindliche Kontrollleuchte leuchtet auf.
Zu weiteren Einstellungen (z.B. um den Garvorgang zu unterbremen) müssen die Schaltelemente erst wieder
frei gegeben werden. Drücken Sie die Taste für eineuge Sekunden; die Kontrollleuche erlischt, die Schaltelemente werden frei gegeben.
Ausschalten des Kochfeldes
Durch Drücken der Taste ① wird das Kochfeld ausgeschaltet.
Sollten die Schaltelemente gespeppt worden sein,
bleiben diese auch bei Wiedereinschalten des Gerätes gesperrt. Um das Kochfeld wieder einschalten zu konnen, müssen die Schaltelemente vorher entsprert werden.
,Demo"-Mode (Vorfuhrmodus)
Es besteht die Möglichkeit, einen Vorfrhrmodus einzustellen, bei dem das Bedienfeld (einschließlich der zur Programmierung erforderlichen Bedienelemente) normal funktioniert, die Heizelemente dagegen schalten sich nicht ein. Zur Aktivierung eines Vorfrhrmodus muss das Kochfeld eingeschaltet und alle Platten ausgeschaltet sein.
- Halten Sie die Tasten und für 6 Sekunden gleichzeitig gedrückt. Nach 6 Sekunden blinken die Kontrollleuche ON/OFF und die Kontrollleuche SPERRE DER SCHALTELEMENTE für eine Sekunde. Lassen Sie die Tasten und los und drücken
Sie die Taste
- Auf dem Display erscheint abwechseld die Anzeige DE und MO und das Kochfeld schaltet sich aus:
- Wird das Kochfeld daraufhin wieder eingeschaltet, befindet es sich im Vorführmodus (Demo-Mode)
Zum Verlassen theses Modus verfahren Sie gemäß obiger Angaben. Auf dem Display erscheint abwechselnd die Anzeige DE und OF und das Kochfeld schaltet sich aus: Wird das Kochfeld daraufufhin wieder eingeschaltet, Funktioniert es wieder auf normale Weise.
Praktische Ratschläge zum Einsatz des Gerätes
So gibt Ichnen Ihr Kochfeld sein Bestes:
- Verwenden Sie Kochgeschirr mit dickem und ebenem Boden, um sicher zu sein, dass dieser perfekt auf der Kochzone aufliegt.

- Benutzen Sie stets nur Kochgeschirr, dessen Durchmesser mit dem der Kochzone übereinstimmt, d.h. dessen Boden die Kochzone ganz bedeckt, und somit die gesamte Wärme genutzt wird.

- Achten Sie darauf, dass der Boden des Kochgeschirrs trocken und sauber ist; nur so ist ein perfektes
Aufliegen des Geschirrbodens sowie eine lange Lebensdauer von Kochzone und Geschirr gewährleistet.
- Vermeiden Sie den Einsatz von Kochgeschirr, das auch auf Gasflammen verwendet wird. Die äußert hohe Hitzekonzentration der Gasbrenner * ^4 )nkte die Topfböden leicht verformen und demnach die korrekte Auflage beeinträchtigen.
Sicherheitsvorrichtungen
Topferkennung
Jede Kochzone ist mit einer Topferkennungs-Vorrichtung ausgerüstet. Die Kochzone bewirkt ein Erhitzen des Topfbodens nur bei einer angemessenen, der Kochzone entsprechenden Topfgroße. Das Blinken der Leistungsanzeige kann Folgendes signalisieren:
- ungeeignetes Kochgeschirr,
- ein zu geringer Topdfurchmesser,
der Topf wurde abgenommen.
Restwärmeanzeigen
Jede Kochzone ist mit einer Restwärmeanzeige ausgerüstet. Diese Anzeige signalisiert, welche Kochzonen noch eine erhöhte Temperatur haben. Zeigt die Leistungsanzeige H, dann ist die Kochzone noch warm. Es ist beispisseweich, eine Speise warm zu halten oder Schokolade oder Butter zu schmelzen. Mit dem Abkühlen der Kochzone zeigt die Leistungsanzeige H. Die Anzeige schaltet sich ab, sobald die Kochzone ausreichend abgekühlt ist.
Überhitzung
Im Falle einer Überhitzung der elektronischen Gerätekomponenten schaltet sich das Kochfeld automatisch aus, auf dem Display erscheint die Anzeige gefolggt von einer blinkenden Zahl. Diese Meldung erlischt, und das Kochfeld kann wieder eingesetzt werden, sobald die Temperatur auf einen akzeptablen Wert gesunden ist.
Sicherheitsautomatik
Das Gerät ist mit einer Sicherheitsautomatik ausgestattet, die die Kochzone automatisch abschaltet, wenn die maximale Betriebszeit auf einer gewissen Leistungsstufe erreicht wird. Bei Auftreten eines solchen Sicherheitsintervalls erscheidt auf dem Display die Anzeige „0".
Beispiel: Die wichtere rechte Kochzone wird auf Leistungsstufe 5 eingestellt, die vordere linke dagegen auf 2. Die wichtere rechte Kochzone wird nach 3 Std. Betriebszeit ausgeschaltet, die vordere linke erst nach 10 Stunden.
Beispiel: Die wichtere rechte Kochzone wird auf Leistungsstufe 5 eingestellt, die vordere linke dagegen auf 2. Die wichtere rechte Kochzone wird nach 7 1/2 Std. Betriebszeit ausgeschaltet, die vordere linke erst nach 9 1/2 Stunden.
| Heizleistung | Beschränkung der Funktdauer in Stunden |
| 1 | 10 |
| 2 | 9,5 |
| 3 | 9 |
| 4 | 8,5 |
| 5 | 7,5 |
| 6 | 7 |
| 7 | 6,5 |
| 8 | 6 |
| 9 | 5,5 |
| 10 | 5 |
| 11 | 4 |
| 12 | 3,5 |
| 13 | 3 |
| 14 | 2,5 |
| 15 | 2 |
| 16 | 1 |
Tonsignal
Einige Anomalien, wie:
- Gegenstände (Topf, Besteck usw.), die für länger als 10 Sekunden auf dem Schaltfeld liegen,
Flüssigkeit, die über das Schaltfeld gegosen wurde, - ein zu langer Druck auf eine Taste, können die Ursache für ein Warnsignal sein. Um das Warnsignal auszuschalten, muss der Grund der Störung beseitigt werden. Wird die Störung nicht beseitigt, bleibt das Warnsignal eingeschaltet und das Kochfeld wird ausgeschaltet.
Praktische Back-/Brathinweise
| Sehr stark garen | 89 | Schnellgaren Schnellkochtopf Grillen | Fritieren Kochen |
| Stark garen | 100 | Crêpes | Stark garen und bräunen (Braten, Koteletts, Schnitzel, Fischfilets, Spiegeleier) |
| Sanftgaren: | 98 | Schnell eindicken (flüssige Soßen) Kochendes Wasser (Nudeln, Reis, Gemüse) Milch | |
| 76 | Langsam eindicken (dickflüssige Soßen) | ||
| 54 | Wasserbad | Garen im Schnellkochtopf nach dem Dampfaustritt | |
| Sehr sanft Garen: | 23 | Sehr sanft Garen | Aufwärmen von Speisen |
| Extrem sanft Garen: | - | SchokoladensoBe | Warmhalten |
DE
DE
! Das Gerät wurde entsprechend den strengsten internationalen Sicherheitsvorschriften entworfen und gebaut. Nachstehende Hinweise werden aus Sicherheitsgründen gefeliefert und sollenen aufmerksam gelesen werden.
Cedes Gerat entspricht den folgenden EG-Richtlinien:
- 2006/95/EWG vom 12.12.06 (Niederspannung) und nachfolgenden Änderungen
- 2004/108/EWG vom 15/12/04 (elettromagnetische Verträglichkeit) und nachfolgenden Änderungen
- 93/68/EWG vom 22.07.93 und nachfolgenden Änderungen.
- 1275/2008 stand-by/off mode.
Allgemeine Sicherheit
! Stellen Sieitte sicher, dass das Beluftungsgitter des Geblases niemals verstoptb bzw. abgedeckt wird. Das Einbaukochfeld erfordert eine korrekte Beluftung zur Kuhlung der elektronischen Teile.
- Dieses Gerät ist für den nicht professionellen Einsatz im privaten Haushalt bestimmt.
- Das Gerätarf nicht im Freien aufgestellt werden, auch nicht, wenn es sich um einen geschützten Platz handelt. Es ist hoch gefährlich, das Gerät Gewittern und Unwettern auszusetzen.
- Berühren Sie das Gerät nicht mit nassen oder feuchten Händen oder Fußen und auch nicht, wenn Sie barfuß sind.
- Das Gerätarf nur von Erwachsenen und gemäß den Hinweisen der vorliegenden Bedienungsanleitung zur Zubereitung von Lebensmitteln verwendet werden. Verwenden Sie das Kochfeld nicht als Abstellfläche oder als Schneidebrett.
- Das Glaskeramikkochfeld ist stoßfest; davon es durch Stöße bzw. Aufprall von spitzen Gegenständen springen (oder)sogar zerbrechen), Schalten Sie das Kochfeld in einem solchen Fall vom Stromnetz und wenden Sie sich an die Kundendienstelle.
- Vermeiden Sie, dass das Netzkabel anderer Elektrogeräte in Kontakt mit bereits Kochfeldteilen gelangt.
- Beite berücksichtigten Sie, dass die Kochzonen noch für ca. 30 Minuten nach dem Ausschalten sehr heißt bleiben. Die Restwärme wird auf der entsprechenden Anzeige eingeblendet (siehe Inbetriebsetzung und Gebrauch).
- Halten Sie sãmtliche Gegenstände, die schmelzen können, wie Plastikteile oder Kunststoffe sowie Zucker oder stark zuckerhaltige Speisen von dem Kochfeld fern. Achten Siealanders auf
Verpackungsmaterial, Frischhaltefolie und Alufolie: Wird derartiges Material auf den noch bereits oder warmen Oberflächen belassen, können sie das Kochfeld dauerhaft beschädigen.
- Stellen Sie Stieltopfe und Pfannen immer mit nachinnen gerichteten Griffen auf die Kochstelle, um jegliches Risiko durch unbeabsichtigtes Anstoßen auszuschreiben.
- Ziehen Sie den Netzstecker nicht am Netzkabel aus der Steckdose, sondern nur am Netzstecker selbst.
- Ziehen Sie vor der Reinigung oder vor Wartungsmaßnahmen stets den Netzstecker aus der Steckdose.
- Das Gerät ist nicht zur Verwendung durch Personen (einschließlich Kinder) mit eingeschränkten körperlichen, geistigen oder Wahrnehmungsfähigkeiten oder aber ohne ausreichende Erfahrung und Produktkennis geeignet, sofern sie nicht durch eine für ihre Sicherheit verantwortliche Person beaufsichtigt werden oder zuvor Anleitungen zum Gerätegebrauch erhalten haben.
- Schauen Sie nicht zu intensiv auf die eingeschalteten Halogen-Kochzonen, soweit vorhanden.
- Kinder)durfen nicht mit dem Gerät spielern.
Entsorgung

- Entsorgung des Verpackungsmaterials: Befolgen Sie die lokalen Vorschriften; Verpackungsmaterial kann wiederverwertet werden.
Die europäische Richtlinie 2002/96/EG über Elektro- und Elektronik-Altgeräte (WEEE) sieht vor, dass Haushaltsgeräte nicht mit dem normalen Hausmüll entsorgt werden dürfen. Die Altgeräte müssen getrennt gesammelt werden, um die Rückführung und das Recycling der Materialen zu optimieren, aus denen die Geräte hergestellt sind, und um mögliche Belastungen der Gesundheit und der Umwelt zu verhindern. Das Mülleimersymbol ist auf allen Produktendargestellt, um an die Verpflichtung zur getrennten Abfallsammlung zu erinnern. Für weitere Informationen zur korrekten Entsorgung können sich die Besitzer von elektrischen Haushaltsgeräten an die übergeordnete öffentliche Einrichtung oder an ihren Handler wenden.
Abschalten Ihres Gerätes vom Stromnetz
Vor jeder Reinigung und Pflege ist das Gerät vom Stromnetz zu trennen.
Reinigung des Gerätes
! Der Einsatz von Scheuermitteln oder scharfen oder chemischen Reinigungsmitteln wie Backofensprays, Fleckenentferner, Rostentfernungsmittel, Reiniger in Pulverform und Scheuerschwämme ist zu vermeiden: diese können die Oberfläche des Kochfeldes dauerhaft beschädigen.
! Verwenden Sie zur Reinigung des Kochfeldes keine Dampf- oder Hochdruckreinigungsgeräte.
- Zur tätiglichen Pflege genugt es, das Kochfeld mit einem feuchten Schwamm abzuwischen und mit Kuchenpapier abzutrocknen.
- Bei entsprechenden starker Verschmutzung sollte ein spezielles Reinigungsmittel für Glaskeramik verwendet werden; anschließend ist das Kochfeld mit Wasser abzuspüssen und sorgfältig abzutrocknen.
- Starke Verschmutzungen setzen sich mit dem mitgelieferten Schaber entfernen. Sie sollenn sochnell wie möglich - und nicht erst nach Abkühlen des Kochfeldes - halten werden, um zu vermeiden, dass sich die Verschmutzungen festsetzen. Gute Ergebnisse setzen sich auch mit einem für Glaskeramik geeigneten Spezialschwamm aus Edelstahlwolle und einer einfahren Spüllauge erzielen.
! Der mitgelieferte Schaber ist äußert scharf: Seien Sieitte vorsichtig bei Gebrauch desselben.
- Auf dem Kochfeld versehentlich geschmolzene Alufolie, Plastikteile oder Kunststoffe, sowie Zuckerreste müssen umgehend mit einem Schaber von der noch warmen Oberfläche entfernt werden.
- Nach der Reinigung kann das Kochfeld mit einem Pflegeprodukt nachbehandelt werden: Der unsichtbare Schutzfilm, den ein solches Produkt hinterlässt, schützt die Oberfläche vor eventuell überkochenden Speisen. Es empfeht sich, diese Nachbehandlung bei lauwarmem oder abgekühtem Gerät vorzunehmen.
- Achten Sie darauf, das Kochfeld nach der Reinigung stets mit klarem Wasser abzuspulen und anschließend abzutrocknen. Rückstände der Reinigungsmittel können sich námlich bei der)nachsten Benutzung des Kochfeldes ihrerseits festsetzen.
Edelstahlrahmen (nur bei mit Rahmen versehenen Modellen)
Auf den Edelstahlteilen konnten Flecken zurückbleiben, sollen stark kalkhaltiges Wasser oder phosphorhaltiges Spülmittel für längerere Zeit darauf vorhanden sein.
Es ist ratsam, das Kochfeld nach der Reinigung gut nachzuspullen und abzutrocknen. Wird versehentlich Wasser darauf vonschüttet, muss es sofort sorgsam getrocknet werden.
! Einige Kochfelder sind mit einem Aluminiumrahmen versehen, der Edelstahl sehrähnlich ist. Verwenden Sieitte keine Produkte zur Reinigung und Entfettung, die nicht für Aluminium geeignet sind.
Demontage des Kochfeldes
Sollte sich die Abnahme des Kochfeldes als erforderlich erweisen, verfahren Sieitte wie folgt:
- Schrauben Sie die Schrauben aus, die zur Befestigung der seitlichen Zentrierungsfedern dieren;
- lockern Sie die Schrauben der Eck-Befestigungsbügel;
3.nehmen Sie das Kochfeld aus dem Mobelausschnitt Heraus.
! Wir empfehlen dringlich, Innemechanismen nicht eigenschaftig zu reparieren. Kontaktieren Sie bei Störungenitte den Kundendienst.
DE
In den angeführten Tabellen werden, Modell für Modell, die Energiebedarfswerte, die Art der Heizelemente und der Durchmesser einer jeder Kochzone ausgewiesen.
| Kochfelder | TEP 746 O L | TEP 645 B TEP 645 L TEP 745 L | ||
| Kochzonen | Leistung (W) | Durchmesser (mm) | Leistung (W) | Durchmesser (mm) |
| Hinten links | A 2500 | 210 | A 2500 | 210 |
| Hinten rechts | A 1200 | 145 | H 1400 | 160 |
| Vorne links | H 1200 | 145 | H 1200 | 145 |
| Vorne rechts | HO 2400/1500 | 170x260 | H 1800 | 180 |
| Gesamtleistung | 7300 | 6900 | ||
| Kochfelder | TRP 642 D L | TEP 646 L | ||
| Kochzonen | Leistung (W) | Durchmesser (mm) | Leistung (W) | Durchmesser (mm) |
| Hinten links | HD 2200/1000 | 210/140 | A 2500 | 210 |
| Hinten rechts | H 1400 | 160 | H 1400 | 160 |
| Vorne links | H 1200 | 145 | H 1200 | 145 |
| Vorne rechts | HD 1700/700 | 180/120 | A 1800 | 180 |
| Gesamtleistung | 6500 | 6900 | ||
| Kochfelder | TEP 635 O L | TRP 632 TD L | ||
| Kochzonen | Leistung (W) | Durchmesser (mm) | Leistung (W) | Durchmesser (mm) |
| Hinten links | A 2500 | 210 | ||
| Hinten rechts | H 1400 | 160 | ||
| Mitte links | HT 2700/1950/1050 | 270/210/145 | ||
| Mitte rechts | HO 2400/1600/600 | 170x260 | ||
| Vorne links | H 1200 | 145 | ||
| Vorne rechts | HD 1700/700 | 180/120 | ||
| Gesamtleistung | 6100 | 5800 | ||
| Kochfelder | TEP 846 O L | TEP 646 O L | ||
| Kochzonen | Leistung (W) | Durchmesser (mm) | Leistung (W) | Durchmesser (mm) |
| Hinten links | A 2500 | 210 | ||
| Hinten rechts | A 2500 | 210 | A 1200 | 145 |
| Mitte links | HO 2400/1500 | 170x260 | ||
| Mitte | A 1800 | 180 | ||
| Vorne links | H 1200 | 145 | ||
| Vorne rechts | H 1200 | 145 | HO 1800/1000 | 145x250 |
| Gesamtleistung | 7900 | 6700 | ||
Legende:
A = Halogen einfach
H = hilight einsfach
HO = hilight oval
HD = hilight doppel
HT = hilight dreifach

Italiano, 1

Français, 14

English,27

Deutsch, 40

Espanol, 53
TRP 632 TD L
TRP 642 D L
TEP 635 O L
TEP 645 B
TEP 645 L
TEP 646 L
TEP 646 O L
TEP 745 L
TEP 746 O L
TEP 846 O L
Sumario
Instalación, 54-56
Colocacion
Conexión electrica
EinfachAnleitung