TRP642DL - Piano cottura SCHOLTES - Manuale utente e istruzioni gratuiti
Trova gratuitamente il manuale del dispositivo TRP642DL SCHOLTES in formato PDF.
Scarica le istruzioni per il tuo Piano cottura in formato PDF gratuitamente! Trova il tuo manuale TRP642DL - SCHOLTES e riprendi in mano il tuo dispositivo elettronico. In questa pagina sono pubblicati tutti i documenti necessari per l'utilizzo del tuo dispositivo. TRP642DL del marchio SCHOLTES.
MANUALE UTENTE TRP642DL SCHOLTES
Collegamento elettrico
Descrizione dell'apparecchio, 5-6
Pannello di controllo
Zone di cottura estensibili
Avvio e utilizes, 7-10
Accensione del piano cottura
Accensione delle zone di cottura
Funzione power
Spegnimento delle zone di cottura
Programmazione della durata di una cottura
II contaminuti
Blocco dei comandi
Spegnimento del piano cottura
Modalità “demo”
Consigli pratici per l'uso dell'apparecchio
Dispositivi di sicurezza
Consigli pratici per la cottura
Precauzioni e consigli, 11
Sicurezza generale
Smaltimento
Manutenzione e cura, 12
Escludere la corrente elettrica
Pulire l'apparecchio
Smontare il piano
Descrizione tecnica dei modelli, 13

Scholtès
T
! è importante conservare quello libretto per poterlo consultare in agli momento. In caso di vendita, di cessione o di trasloco, assicurarsi che resti insieme all'apparecchio per informare il nuovo proprietario sul funzionamento e sui relativi averimenti.
! Leggere attendamente le istruzioni: ci sono importanti informazioni sull'installazione, sull'uso e sulla sicurezza.
Posizionamento
!Gli imballaggi non sono giocattoli per bambini e vanno eliminati secondo le norme per la raccolta differenziata (vedi Precauzioni e consigli).
! L'installatione va effettuata secondo queste istruzioni e da personale professionalmente qualificato. Una errata installatione cui potà causare danni a personne, animali o cose.
Incasso
Per garantire un buon funzionamento dell'apparecchio è necessario che il mobile abbia le caratteristiche adatte:
- il piano d'appoggio deve essere di materiale resistente al calore, a una temperatura di circa 100^ ;
- se si desidera installare il piano cottura sopra un forn, quello deve essere provvisto di un sistema di raffreddamento a ventilazione forzata;
- evitare di installare il piano cottura sopra una lavastoviglie: all'occorrezza frapporre un elemento di separazione a tenutaagna fra i due appearecchi;
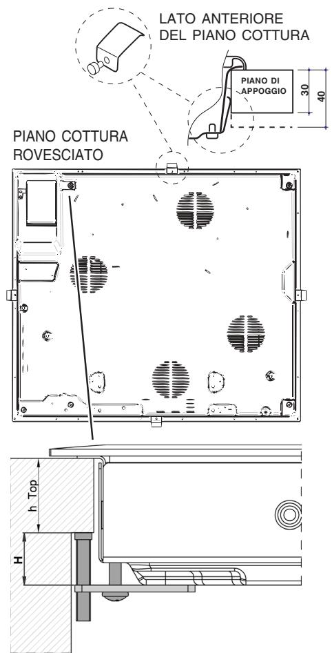
- a seconda del piano cottura che si desidera installare (vedi figure), il vano del mobile deve avere le seguenti dimensioni:



Aerazione
Per consentire un'adeguata aerazione e per evitare il surriscaldamento delle superfici attorno all'apparecchio, il piano cottura delve essere posizionato:
- a una distanza minima di 40 mm alla parete retrostante o da qualiasi altra superficie verticale;
- in modo da mantenere una distance minima di 20 mm fra il vano per l'incasso e il mobile sottostante.
- I mobili situati a fianco, la cui altezza superi quella del piano di lavoro, debbono essere situati ad almeno 600 mm dal bordo del piano stesso.



Fissaggio
L'installazione dell'apparecchio deve essere effettuata su un piano d'appoggio perfettamente piano.
Le eventuali deformazioni provocate da un errato fissaggio potrebbero alterare le caratteristiche e le prestazioni del piano cottura.
La lunghezza della vite di regolazione dei ganci di fissaggio va impostata prima del loro montaggio, in base allo spessore del piano d'appoggio:
spessore di 30~mm :vite 17,5 mm
- spessore di 40mm : vite 7,5 mm.
Per il fissaggio agire come segue:
- Con le viti corte alla punta, avvitare le 4 molle di centraggio nei fori al centro di anni lato del piano;
- inserire il piano cottura nel vano del mobile, centrarlo ed esercitare una adeguata pressione sull'intero perimetro affinché il piano di cottura aderisca bene al piano d'appoggio.
- per i piani con profili laterali: dopo aver inserito il piano cottura nel mobile, insere i 4 ganci di fissaggio (ognuno con il suo perno) sul perimetro inferiore del piano cottura, avvitandoli con le viti lunghe con punta finché il vetro non aderisce al piano d'appoggio.
! è indispensablehe che le viti delle molle di centraggio rimangano accessibili.
! In conformità alle norme di sicurezza, una volta incassato l'apparecchio, non debbono essere possibili eventuali contatti con le parti elettriche.
! Tutte le parti che assicurano la protezione debbono essere fissate in modo tale da non poter essere tolte perché l'aiuto di quale utensile.
Collegamento elettrico
! L'allacciamento elettrico del piano cottura e quello di un eventuale forno da incasso devono essere realizzativi separatamente, sua per ragioni di sicurezza elettrica sua per facilitare le operazioni di estrazione del forno.
Morsettiera
PIANO COTTURA ROVESCIATO

L'apparecchio è provvisto, nella parte inferiore, di una scatola per il collegamento a differenti tipi di alimentazione elettrica (l'imagine è indicativa e più non corrispondere al modello acquistato).
Collegamento monofase
Il piano è dotato di cavo di alimentazione più collegato e predisistosto per il collegamento monofase. Effettuare l'allaccio dei fili in accordo con la tabella e i disegni che seguono:
| Tensione tipo e frequenza rete | Cavo elettrico | Collegamento fili |
| 230-240V 1+N ~ 220-240V 1+N ~ 50/60 Hz | N L | : giallo/verde; i N: i 2 fili blu insieme L: marrone insieme al nero |
Altri tipi di collegamento
Se l'impianto elettrico corrisponde a una delle seguente caratteristiche:
Tensione tipo e frequenza di rete
- 400V - 2+N ~ 50/60 Hz
220-240V 3 ~ 50/60 Hz - 230-240V 3 ~ 50/60 Hz
- 400V - 2+2N ~ 50/60 Hz
Separare i cavi ed effettuare il collegamento dei fili in accordo con la tabella e i disegni che seguono:
| Tensione tipo e frequenza rete | Cavo eletrico | Collegamento fili |
| 400V - 2+N ~ 50/60 Hz | N L1 L2 | ÷: giallo/verde; N: i 2 fili blu insieme |
| 230-240V 3 ~ 220-240V 3 ~ 50/60 Hz | L1: nero L2: marrone | |
| 400V - 2+2N ~ 50/60 Hz | N L1 N2 L1 L2 | ÷: giallo/verde; N1: blu N2: blu L1: nero L2: marrone |
Se l'impianto elettrico corrisponde a una delle seguenti caratteristiche:
Tensione tipo e frequenza di rete
- 400V 3 - N ~ 50/60 Hz procedure come segue:
! L'eventuale cavo in dotazione non è utilizzabile per quosti tipi di INSTALLazione.
- Utilizzare un cavo di alimentazione appropriato, tipo H05RR-F o di valore superiore, delle dimensioni adatte (sezione cavo: 25 mm).
- Servendosi di un cacciavite, far leva sulle linguette del coperchio della morsettiera e aprirla (vedi immagine Morsettiera).
- Svitare la vite del serracavo e le viti dei morsetti relativi al tipo di allaccio necessario e posizionare i cavallotti di collegamento secondo la tabella e i disegni che seguono.
- Posizione are i fili in accordo con la tabella e i disegni che seguono ed effettuare il collegamento stringendo a fondo tutte le viti dei morsetti.
| Tensione tipo e Frequenza rete | Collegamenti elettrici | Morsettiera | ||||
| 400V 3-N ~ 50/60 Hz | 1 L1 | 2 L2 | 3 L3 | 4 N | 5 | Trifase 400 |
- Fissare il cavo di alimentazione nell'apposto fermacavo e chiudere il coperchio.

Trifase 400

Trifase 400
Allacciamento del cavo di alimentazione alla rete
In caso di collegamento diretto alla rete è necessario interporre tra l'apparecchio e la rete un interruptore onnipolare con aperture minima fra i contatti di 3 mm.
! L'installatore è responsabile del corretto collegamento elettrico e dell'osservanza delle norme di sicurezza.
Prima di effettuare l'allacciamento accertarsi che:
- la presa abbia la messa a terra e sua norma di legge;
- la presa sia in grado di sostortare il carico massimo di potenza della macchina,indicato nella targhetto caratteristiche posta sull'apparecchio;
- la tensione di alimentazione sia compresa nei valori della targhetto caratteristiche;
- la presa sia compatibile con la spina dell'apparecchio. In caso contrario sostuire la presa o la spina; non usare prolonghe e multiple.
! Ad apparecchio installato, il cavo elettrico e la presa della corrente devono essere facilemente raggiungibili.
! Il cavo non deve subire piegature o compressioni.
! Il cavo deve essere controllato periodicamente e sostituito solo da tecnici autorizzati.
! L'azienda declina ogni responsabilità qualora queste norme non vengano rispectate.
! Non rimuovere o sostituire per nessun motivo il cavo di alimentazione. L'eventuale rimozione o sostituzione fa' decadere la garanzia e il marchio CE. INDESIT non si assume alcuna responsabilita' per incidenti o danni derivanti alla sostituzione/ rimozione del cavo di alimentazione originale. E'ammessa solo la sostituzione con un ricambio originale ed effettuata da personale autorizzato INDESIT.
Pannello di controllo
Il pannello di controllo che qui viene descritto è rappresentato a fini esemplificativi: più non essere una esatta riproduzione del modello acquistato.

- Tasto AUMENTO POTENZA per accendere la piastra e regolare la potenza (vedi Avvio e utilizzato).
- Tasto DIMINUZIONE POTENZA per regolare la potenza e spegnere la piastra (vedi Avvio e utilizzato).
- Indicazione ZONA DI COTTURA indica la zona di cottura corrispondente.
- Indicatore POTENZA: segnala visamente il livello di calore raggiunto.
- Tasto ON/OFF per accendere e specnere l'apparecchio.
- Spia ON/OFF: segnala se l'apparecchio è acceso o spento.
- Tasto TIMER DI PROGRAMMAZIONE* per regolare la programmazione della durata di una cottura (vedi Avvio e utilizzato).
- Display TIMER DI PROGRAMMAZIONE*: visualità le scelte relative alla programmazione (vedi Avvio e utilizzato).
-
Spie ZONA DI COTTURA PROGRAMMATA*: indicano le zone di cottura quando si avvia una programmazione (vedi Avvio e utilizzato).
-
Tasto BLOCCO DEI COMANDI per impedire modifichefortuitealle regolazioni del piano cottura (vediAvvioeutilizzato).
- Spia COMANDI BLOCCATI: segnala l'avvenuto blocco dei comandi (vedi Avvio e utilizzato).
- Spia CONTAMINUTI* indica che è attivo il contaminuti
- Tasto AUMENTO TEMPO* per aumento il tempo durante l'uso del contaminuti o di una programmazione (vedi Avvio e utilizzato).
- Tasto DIMINUZIONE TEMPO* per diminuire il tempo durante l'uso del contaminuti o di una programmazione (vedi Avvio e utilizzato).
! Questo prodotto soddisfa i requisiti imposti alla nuova Direttiva Europea sulla limitazione dei consumi energetici in standby. Se non si eseguono operazioni per 2 minuti, dopo lo spegnimento delle spie di calore residuo e della ventola (ove presenti), l'apparecchio si dispone automaticamente in modalità "off mode". L'apparecchio ritorna in modalità operativa agenda sul tasto ON/OFF.
- Presente solo in alcuni modelli.
Zone di cottura estensibili
In alcuni modelli sono presenti piastre estensibili. Queste sono avere diversa forma (circolare od ovale) e diversa estensibilità (piatra doppia o tripla). Sono qui illustrati i comandi relativi, presenti solo sui modelli dotati di queste opzioni.

Piastra estensible circolare
- Tasto ACCENSIONE PIASTA DOPPIA per attivare la piastra doppia (vedi Avvio e utilizzato).
- Spia PIASTRA DOPPIA ACCESA: segnala l'accensione della piastra doppia.

Piastra estensibile ovale
- Tasto ACCENSIONE PIASTA ROVALE per attivare la piastra doppia (vedi Avvio e utilizzato).
- Spia PIASTRA OVALE ACCESA: segnala l'accensione della piastra dopbia.
! La colla applicata sulle guarnizioni lascia alcune traccé di grasso sul vetro. Prima di utilizzato l'apparecchio, si raccomanda di eliminarle con un prodotto specifico per la manutenzione non abrasivo. Durante le prime ore di funzionamento è possibile avvertire un odore di gomma, che comunque scomparirà presto.
! Quando il piano cottura viene collegato elettricamente, dopo acuni secondi viene emesso un breve segnale acustico. Soltanto a quello punto è possibile accendere il piano cottura.
Accensione del piano cottura
L'accensione del piano cottura aviene tenero premuto il tasto ① per circa un secondo.
Accensione delle zone di cottura
PerMETTEREINfunzioneuna zona di cottura
impostare la potenza desiderata tramite i tasti e +
- Premere e mantenere premuto per circa 2 secondi il tasto +: la potenza della zona di cottura sale immediatamente al livello massimo (16).
- Premere e mantenere premuto per circa 2 secondi il tasto: la potenza della zona di cottura scende al livello 2 (funzione cottura lenta).
Funzione power*
Per accelerare i tempi di riscaldamento delle zone di cottura, è possibile attivare la funzione power. Accendere e impostare la potenza della zona di cottura desiderata come descripto nel paragrafo precedente. Premere il tasto power ⑦ Sul display, indicatore della potenza, si alterna la visualizzazione della lettera "P" e del livello di potenza precedentamente impostato per tutto il tempo necessario al raggiungimento del livello di potenza desiderato. A raggiungimento avvenuto il display tornerà a visualizzare il livello di potenza impostato. Per disattivare esta funzione, premere
nuovamente il tasto (power) oppure scegliere un diverso livello di potenza tramite i tasti di selezione della potenza da 0 a 16.
- Presente solo in alcuni modelli.
Spegnimento delle zone di cottura
Per spagnere una zona di cottura:
- Premere il tasto: la potenza della zona di cottura scende progressivement, fino allo specnimento.
- Oppure premere contemporaneamente i tasti -e+ : la potenza torna immediatamente a 0 e la zona di cottura si spegne.
Programmazione della durata di una cottura
! La pressione prolongata dei tasti e consente l'avanzamento veloce dei minuti del timer.
! É possible programmare contemporaneously tutte le zone di cottura per una durata compresa tra 1 e 99 minuti.
- Regola la temperatura della zona di cottura.
- Premere il tasting di programamazione
- Impostare la durata di cottura desiderata tramite i tasti e+
- Confermare premendo il tasting
Il conto alla rovescia del timer ha inizio immediatamente. La fine della cottura programmata è indicata da un segnale acustico (per la durata di 1 minuto) e la zona di cottura si spegne.
Ripetere la procedura sopra descrietta per agli piastrache si intende programmare.
Visualizzazione in caso di programmazione multipla
Quando una o più piastre sono state programmate, il display visualizza il tempo rimanente della piastra che è più vicina al termine del tempo programmato, indicandone la posizione con la spia correspondente che lampeggia. Le spiè delle autres piastre programmate sono accese.
Per visualizzare il tempo restante delle altre piastre
programmate, premere ripeturamente il tasto verranno mostrati in sequenza e in senso orario i tempi di tutte le piastre programmate, a partire da quella anteriore sinistra.
Modificare la programmazione
- Premere ripeturamente il tasting © finché non viene molto lo tempo della piastra che si intende modificare.
- Agire sui tasti e + per impostare il nuovo tempo.
- Confermare premendo il tasting
Per cancellare una programmazione, agire come sopra. Al punto 2 premere il tasto: la durata scende progressivement fino allo spegnimento 0. La programmazione si azzzera e il display esce alla modalità programmazione.
Il contaminuti
Il piano di cottura deve essere acceso.
Il contaminuti permette di impostare una durata fine a 99 minuti.
- Premere il tasting di programamazione finché la spia contaminuti non si accende.
- Impostare la durata desiderata tramite i tasti e

- Confermare premendo il tasting
Il conta alla rovescia del timer ha inizio immediatamente. A tempo scaduto viene emesso un segnale acustico (per la durata di 1 minuto).
Blocco dei comandi
Quando il piano cottura è in funzione, è possibile bloccare i comandi per evitare il rischio di modifiche fortuite alle regolazioni (bambini, operazioni di pulizia, ecc.). Premendo il tasto =0 per quale istante i comandi si bloccano e la spia che si trova sopra al tasto si accende. Per tornare ad agire sulle regolazioni (es. interrompere la cottura) è necessario sbloccare i comandi: premere il tasto =0 per quale istante, la spia si spegne e i comandi si sbloccano.
Spegnimento del piano cottura
Premendo il tasting l'apparecchio si spegne.
Se i comandi dell'apparecchio sono stati bloccati, continueranno ad essere bloccatianche più aver
riaccesso il piano di cottura. Per poter riaccendere il piano è necessario prima sbloccare i comandi.
Modalità “demo”
È possibile impostare una modalità dimostrativa nella quale il pannello comandi funzioni normalmente (inclusi i comandi relativi alla programmazione), ma gli elementi riscaldanti non si accendono. Per attivare la modalità "demo" occorre che il piano sia accesso e tutte le piastre siano spente:
- Premere e tenere premuti contemporaneamente i tasti e + per 6 secondi. Allo scadere dei 6 secondi la spia ON/OFF e la spia BLOCCO COMANDI lampeggiano per un secondo.
Rilasciare i tasti 一 ~ e ~ + 一 e premere il tasto
- il display visualizza la scritta DE e MO e il piano si spegne;
- alla successiva riaccensione il piano si trovera in modalità "demo".
Per uscire da esta modalità seguire la procedura sopra descritta. Il display visualizza la scritta DE e OF e il piano si spegne. Alla successiva riaccensione funzionera normalmente.
Consigli pratici per l'uso dell'apparecchio
Per ottenerileglioriprestazionaldalpiano dicottura:
- Adoperare pentole con fondo piatto e di elevato spessore, per essere certi che aderiscano perfettamente alla zona riscaldante.


- Adoperare pentole di diametro sufficiente a coprir配套ttamente la zona riscaldante, in modo da garantire lo sfruttamento di tutto il calore disponibile.



-
Accertarsi che il fondo delle pentole sia sempre perfettamente asciutto e pulito, per garantire la corretta aderenza e una lunga durata, sia alle zone di cottura che alle pentole stesse.
-
Evitare di utilizzato le stesse pentole utilizzate sui bruciatori a gas: la concentrazione di calore sui bruciatori a gas più deformare il fondo della pentola, che perde aderenza.
Dispositivi di sicurezza
Rilevamento dei recipienti
Ciascuna zona di cottura è provvista di un dispositivo di rilevamento della pentola. La piastra emette calore unicamente in presenza di una pentola di dimensioni adeguate alla zona di cottura stessa. Il display indicatore di potenza lampeggiante cui includere:
- una pentola incompatible
- una pentola di diametro insufficiente
- il sollevamento della pentola
Indicatori di calore residuo
Ciascuna zona di cottura è provvista di un indiatore di calore residuo. Tale indicatese segnala quali sono le zone di cottura alla temperature elevata. Se il
display di potenza visualizza H, la zona di cottura è ancora calda. E' possibile ad esempio mantenere in caldo una pietanza o far scigliere burro o cioccolato. Con il raffreddamento della zona di
cottura, il display di potenza visualizza. Il display si spegne quando la zona di cottura si è sufficientemente raffreddata.
Surriscaldamento
In caso di surriscaldamento dei componenti elettronici, il piano cottura si spegne automaticamente e sul display appara F seguito da un numero lampeggiante. Questo messaggio scompare e il piano torna utilizzabile non appena la temperature è scesa a un livello accettabile.
Interruttore di sicurezza
L'apparecchio è dotato di un interruttori di sicurezza che spagne le zone di cottura automaticamente quando viene raggiunto un tempo limite di utilizzo a un dato livello di potenza. Durante l'interruzione di sicurezza, il display indica "0".
Esempio: la piastra posteriore destra è impostata su 5, perché la piastra anteriore sinistra su 2. La posteriore destra si spegnerà dopo 7 ore e mezza di
funzionamento, la anteriore sinistra dopo 9 ore e mezza.
| Livello di potenza | Tempo limite di funzionamento in ore |
| 1 | 10 |
| 2 | 9,5 |
| 3 | 9 |
| 4 | 8,5 |
| 5 | 7,5 |
| 6 | 7 |
| 7 | 6,5 |
| 8 | 6 |
| 9 | 5,5 |
| 10 | 5 |
| 11 | 4 |
| 12 | 3,5 |
| 13 | 3 |
| 14 | 2,5 |
| 15 | 2 |
| 16 | 1 |
Segnale acustico
Alcune anomalie, quali:
- un oggetto (pentola, posata, ecc.)izzato per altri 10 secondi sull'area dei comandi,
- un versamento sull'area dei comandi,
- una pressione esercitata a lungo su un tasting, possono provocare l'émissione di un segnale acustico. Rimuovere la causa del malfunzionamento per interrompere il segnale acustico. Se la causa dell'anomalia non viene rimossa, il segnale acustico persistsiste e il piano si spegne.
Consigli pratici per la cottura
| Cottura a fuoco vivissimo | 18 20 | Cottura a Pressione Pentola a pressione Grigliata | Frittura Ebollizione |
| Cottura a fuoco vivo | 12 14 | Crepe | Cottura a fuoco vivo e doratura (Arrosti, Bistecche, Scaloppine, Filetti di pesce, Uova al tegamino) |
| Cottura a fuoco medio | 9 8 | Addensamento rapido (Sughi liquidi) Acqua bollente (Pasta, Riso, Verdure) Latte | |
| 7 6 | Addensamento lento (Sughi consistenti) | ||
| 5 4 | Cottura a bagnomaria | Cottura Pentola a pressione dopo il sibilo | |
| Cottura a fuoco lento | 3 4 | Cottura a fuoco lento (Stufati) | Riscaldamento delle pietanze |
| Cottura a fuoco lentissimo | - | Salsa al ciocolato | Mantenimento al caldo |
! L'apparecchio è stato progettato e costruito in conformità alle norme internazionali di sicurezza. Queste avventenze sono fornite per ragioni di sicurezza e devono essere lette attentamente.
CE Questa apparecchiatura è conforme alle seguenti Direttive Comunitarie:
- 2006/95/CEE del 12/12/06 (Bassa Tensione) e successive modificazioni
- 2004/108/CEE del 15/12/04 (Compatibilità Elettromagnetica) e successive modificazioni
- 93/68/CEE del 22/07/93 e successive modificazioni.
- 1275/2008 stand-by/off mode.
Sicurezza generale
! Controllare che la presa d'ariatramite la griglia del ventilatore non sia mai ostruita. Il piano da incasso, infatti, necessita di una corretta aerazione per il raffreddamento dei componenti elettronici.
- L'apparecchio è stato concepito per un uso di tipo non professionale all'interno dell'abitazione.
- L'apparecchio non va installato all'aperto, nemmeno se lo spazio è riparato, perché è molto pericoloso lasciarlo esesto a pioggia e temporali.
Non toccare la macchina a piedi nudi o con le mani o i piedi bagnati o umidi. - L'apparecchio deve essere usato per cuocere alimenti, solo da persona adulte e secondo le istruzioni riportate in quello libretto. Non utilizzato il piano come superficie di appoggio, né come tagliere.
- Il piano in vetroceramica è resistenteagli urti meccanici,tuttavia più incrinarsi (o eventually frantumarsi) se colpito con un oggetto appuntito, quale un utensile. In quosti casi, scollegare immediatamente l'apparecchio alla rete di alimentazione e rivolgersi all'Assistenza.
- Se la superficie del piano è incrinata, spegnere l'apparecchio per evitare la possibilità di scosse elettriche.
- Evitare che il cavo di alimentazione di altri elettrodomestici entri in contatto con parti calde del piano cottura.
-
Non dimenticare che la temperatura delle zone di cottura rimane piuttosto elevata per almeno trenta minuti dopo lo spegnimento. Il calore residuo è segnalato ancche da un indicatore (vedi Avvio e utilizzato).
-
Tenere a debita distanza dal piano cottura qualsiasi oggetti che potrebbe fondere, ad esempio oggetti in plastica, in alluminio o prodotti con un elevato contento di zucchero. Fare particolare attenzione a imballaggi e pellicole in plastica o alluminio:
se dimenticati sulle superfici ancora calde o tiepide possono causare un grave danno al piano. - Assicurarsi che i manici delle pentole siano sempre rivolti verso l'interno del piano cottura per evitare che vengano urtati accidentally.
- Non staccare la spina dalla presa della corrente tirando il cavo,bensi afferrando la spina.
- Non fare pulizia o manutenzione perché aver prima staccato la spina alla rete elettrica.
- Non è previsto che l'apparecchio venga utilizzato da persona (bambini compresi) con ridotte energia fisiche, sensoriali o mentali, da persona inesperte o che non abbiano familiarità con il prodotto, a meno che non vengano sorvegliate da una persona responsabile della loro sicurezza o non abbiano ricevuto istruzioni preliminari sull'uso dell'apparecchio.
- Se presenti, non guardare a lungo le zone di cottura alogene.
- Evitare che i bambini giochino con l'apparecchio.
Smaltimento

- Smaltimento del materiale di imballaggio: atteneri alle norme locali,osi gli imballaggi potranno essere riutilizzati.
- La direttiva Europea 2002/96/CE sui rifiuti di apparecchiature elettriche ed elettroniche (RAEE), prevede che gli elettrodomestici non debbano essere smaltiti nel normale flusso dei rifiuti solidi urbani. Gli apparecchi dismessi devono essere raccolti separatamente per ottimizzare il tasso di recupero e riciclaggio dei materiali che li compongono ed impedire potenziali danni per la salute e l'ambiente. Il significolo del cestino barrato è riportato su tutti i prodotti per ricordare gli obblighi di raccolta separata.
Per ulteriori informazioni, sulla corretta
dismissione degli elettrodomestici, i detentori
potranno rivolgersi al servizio pubblico preposto o ai rivenditori.
Escludere la corrente elettrica
Prima di agli operazione isolare l'apparecchio alla rete di alimentazione elettrica.
Pulire l'apparecchio
! Evitare l'uso di detergenti abrasivi o corrosivi, quali i prodotti in bombolette spray per barbecue e fornì, smacchiatori e prodotti antiruggine, i detersivi in polvere e le spugne con superficie abrasiva: possono graffiare irrimidiabilmente la superficie.
! Non utilizzato mai pulitori a vapore o ad alta pressione per la pulizia dell'apparecchio.
- Per una manutenzione ordinaria, è sufficiente lavare il piano con una spugna umida, asciugando quindi con una carta assorbente per cucina.
- Se il piano è particolaremente sporco, strofinare con un prodotto specifico per la pulizia delle superfici in vetroceramica, sciacquare e asciugare.
- Per rimuovere gli accumuli di sporco più consistenti serviri dell'apposto raschietto fornito in dotazione. Intervenire non appena possibile, alla attendere che l'apparecchio si sia raffreddato, per evitare l'incrostazione dei residui. Eccellenti risultati si sono otenere usinga una spugnetta in filo d'acciaio inossidabile - specifica per piani in vetroceramica - imbevuta di acqua e sapone.
! Il raschetto in dotazione è tagliente: utilizzarlo con attenzione. - In caso sul piano cottura si fossoro accidentalmente fusi oggetti o materiali quali plastica o zucchero, rimuoverli con il raschietto immediatamente, finché la superficie è ancora calda.
-
Una volta pulito, il piano può essere trattato con un prodotto specifico per la manutenzione e la protezione: la pellicola invisibile lasciata da quello prodotto protegge la superficie in caso di scolamenti durante la cottura. Si raccomanda di eseguire queste operazioni con l'apparecchio tiepido o freddo.
-
Ricordarsi sempre di risciacquare con acqua pulita e asciugare accuratamente il piano: i residui di prodotti potrebbero infatti incrostarsi durante la successiva cottura.
Telaio in acciaio inox (solo nei modelli con cornice)
L'acciaio inossidabile più macchiarsi per effetto di un'acqua molto calcarea lasciata per un periodo di tempo prolongato aicontatto dello stesso oppure a causa di prodotti per la pulizia contententi fosforo. Si consiglia di sciacquare abbondamente e asciugare con cura dopo la pulizia del piano. In caso di versamenti d'acqua, intervenire rapidamente asciugando con cura.
! Alcuni piani cottura hanno una cornice in alluminio somigliante all'acciaio inox. Non utilizzato prodotti per la pulizia e lo sgrassaggio non idonei per l'alluminio.
Smontare il piano
Nel caso si renda necessario smontare il piano cottura:
- togliere le viti che fissano le molle di centraggio sui lati;
- allentare le viti dei ganci di fissaggio sugli angoli;
- estrarre il piano cottura dal vano del mobile.
! Raccomandiamo di evitare di accedere ai meccanismi interni per tentare una riparazione. In caso di guasto, contattare l'Assistenza.
In queste tabelle sono riportati, modello per modello, i valori di assorbimento energetico, il tipo di elemento riscaldante e il diametro di ciascuna zona di cottura.
| Piani cottura | TEP 746 O L | TEP 645 B TEP 645 L TEP 745 L | ||
| Zone di cottura | Potenza (in W) | Diametro (in mm) | Potenza (in W) | Diametro (in mm) |
| Posteriore sx | A 2500 | 210 | A 2500 | 210 |
| Posteriore dx | A 1200 | 145 | H 1400 | 160 |
| Anteriore sx | H 1200 | 145 | H 1200 | 145 |
| Anteriore dx | HO 2400/1500 | 170x260 | H 1800 | 180 |
| Potenza totale | 7300 | 6900 | ||
| Piani cottura | TRP 642 D L | TEP 646 L | ||
| Zone di cottura | Potenza (in W) | Diametro (in mm) | Potenza (in W) | Diametro (in mm) |
| Posteriore sx | HD 2200/1000 | 210/140 | A 2500 | 210 |
| Posteriore dx | H 1400 | 160 | H 1400 | 160 |
| Anteriore sx | H 1200 | 145 | H 1200 | 145 |
| Anteriore dx | HD 1700/700 | 180/120 | A 1800 | 180 |
| Potenza totale | 6500 | 6900 | ||
| Piani cottura | TEP 635 O L | TRP 632 TD L | ||
| Zone di cottura | Potenza (in W) | Diametro (in mm) | Potenza (in W) | Diametro (in mm) |
| Posteriore sx | A 2500 | 210 | ||
| Posteriore dx | H 1400 | 160 | ||
| Centrale sx | HT 2700/1950/1050 | 270/210/145 | ||
| Centrale dx | HO 2400/1600/600 | 170x260 | ||
| Anteriore sx | H 1200 | 145 | ||
| Anteriore dx | HD 1700/700 | 180/120 | ||
| Potenza totale | 6100 | 5800 | ||
| Piani cottura | TEP 846 O L | TEP 646 O L | ||
| Zone di cottura | Potenza (in W) | Diametro (in mm) | Potenza (in W) | Diametro (in mm) |
| Posteriore sx | A 2500 | 210 | ||
| Posteriore dx | A 2500 | 210 | A 1200 | 145 |
| Centrale sx | HO 2400/1500 | 170x260 | ||
| Centrale | A 1800 | 180 | ||
| Anteriore sx | H 1200 | 145 | ||
| Anteriore dx | H 1200 | 145 | HO 1800/1000 | 145x250 |
| Potenza totale | 7900 | 6700 | ||
Legenda:
A = alogena singolo
H = hilight singolo
HO = hilight ovale
HD = hilight doppio
HT = hilight triplo

Italiano, 1

Français,14

English,27

Deutsch, 40

Espanol, 53
TRP 632 TD L
TRP 642 D L
TEP 635 O L
TEP 645 B
TEP 645 L
TEP 646 L
TEP 646 O L
TEP 745 L
TEP 746 O L
TEP 846 O L
Sommaire
Installation, 15-17
Positionnement
Fase Cavallotto Fase Fase Neutro Terra
Notice-Facile