EUC19002W - Zamrzovalnik ELECTROLUX - Brezplačna navodila za uporabo
Brezplačno poiščite navodila za napravo EUC19002W ELECTROLUX v formatu PDF.
Prenesite navodila za vaš Zamrzovalnik v formatu PDF brezplačno! Poiščite svoja navodila EUC19002W - ELECTROLUX in vzemite svojo elektronsko napravo nazaj v roke. Na tej strani so objavljeni vsi dokumenti, potrebni za uporabo vaše naprave. EUC19002W znamke ELECTROLUX.
NAVODILA ZA UPORABO EUC19002W ELECTROLUX
Navodila za uporabo SL
Pred namestitvijo in uporabo hladilnega aparata pozorno preberite knjižico z navodili za uporabo. V navodilih za uporabo so nasveti za varno uporabo, koristni nasveti in drugi podatki. Le uporaba skladno s temi navodili zagotavlja brezhibno delovanje in dolgo Živiljenjsko dobo.
Spodaj navedeni symboli vamp bodo pomagali hitro najti ustrezna navodila:

Navodila za varno uporabo
Opozorila in informacije, označene s tem simbolom, ki jih je potrebno upoštevati, da zagotovite varnost uporabnikov in zagotovite brezhibnodelovanje hladilnika.

Koristni nasveti

Nasveti za ohranjanje Čistega okolja

Nasveti o shranjevanju Živil
S tem simbolom so označeni nasveti o primernem shranjevanjuŽivil

Simbol na izdelku ali njegovi embalaži označuje, da z izdelkom ni dovoljeno ravnati kot z obićajnimi gospodinjskimi oppadki. Izdelek opeljite na ustrezno zbirno mesto za predelavo elektricne in elektronske opreme. S pravilnim načinom odstranjevanja izdelka boste pomagali preprećiti morebitne negativne posledice in vplive na okolje in zdravje ljudi, ki bi se lahko pojavile v primeru nepravlnega odstranjevanja izdelka. Za podrobnejše informacije o odstranjevanju in predelavi izdelka se obrnite na pristojen mestni organ za odstranjevanje oppadkov, komunalno sluzbo ali na trgovino, v kateri ste izdelek kopili.
Kazalo
Pomembna navodila za varno uporabo 20
Splošni varnostni ukrepi 20
Varnost otrok. 21
Varnostniukrepi pri namestitvi. 21
Varnostniukrepi za izobutan 21
Navodila za uporabnika 22
Splošni podatki 22
Stikala in kontrolne lučke 22
Delovanje in uporaba. 22
Namestitev. 22
Nastavitev temperature 22
Zamrzovanje 23
Shranjevanie 23
Nekaj koristnih podatkov in nasvetov 23
Koristni nasveti in zamisli 23
Kako prihraniti energijo 24
Hladilni aparat in okolje 24
Vzdrzevanje 24
Odtaljevanje 24
Redno ciiscenje 25
Kozamrozvalne omare ne uporabljate 25
Odpravljanje nepravilnosti v delovanju 26
Navodila za namestitev in priklop 27
Tehnični podatki 27
Namestitev in priklop hladilnega aparata 27
Transport, odstranjevanje embalaže 27
Cischenje 27
Namestitev. 27
Spreminanje strani odpiranja vrat 28
Priklop na elektricno omrezej 29
Tabela primernih chasov shranjevanja 30

Pomembna navodila za varno uporabo
Splošni varnostni ukrepi
- Ta navodila za uporabo shranite; Če hladilni aparat prodate ali ga podarite, prilozite tudi navodila za uporabo.
- Hladilni aparat je namenjen shranjevanju zivil v gospodinjstvih skladno s temi navodili.
Servisiranje in popravila, vključno z zamenjavo elektricnega priključnega kabla, smejo opravljati le za to pooblasčeni servisi. Pri tem morajo uporabljati originalne rezervne dele. V nasprotnem primeru lahko pride do poskodbe hladilnega aparata, skode na imovini ali poskodbe oseb. - Hladilni aparat ni pod elektricno napetostjo samo, kadar vtikač ni v vticnici. Pred ciscenjem in vzdhrževanjem hladilnega aparata vedno potegnite vtikač iz vticnice (primite za vtikač, nikoli ne vlecite za kabel!). Če je vtichnica težko dostopna, izklopite elektricni tok tak, da izklopite varovalko.
- Uporaba elektricega podaljska /podajsevanje kabla/ ni dovoljena.
-
Preverite, da vtikač priključnega kabla za hladilnikom, ni stisnjen ali poskodovan.
-
poskodovan vtikač bi se lahko pregrel in vnel.
-
Pazite, da na priključni elektricni kabel ne postavite težkega predmeta ali samega hladilnega aparata.
-
to lahko povzroci kratek stik in požar.
Pri izklapljanju kabla vedno primite za vtikač;
nikoli ne vlecite za kabel.
- poskodovan elektrichi kabel lahko pouzroci kratek stik, požar in/ali udar elektrichega toka.
- poskodovani elektricni kabel smejo zamenjati samo ustrezno usposobljeni strokovnjaki ali pooblasceni servis.
- Ce vtičnica na zidu ni brezhibna, nano ne smete priključiti aparata.
- to bi lahko povzročilo požar ali udar elektrickega toka.
Pri cišcenju, otaljevanju, jemanju zamrznjenih zivil ali modelčkov za led iz hladilnega aparata si ne smete nikoli pomagati z ostrimi, konicastimi ali trdimi predmeti, saj bi lahko poskodovali hladilni aparat. - Pazite, da tekocine ne pridejo v stik z gumbom termostata, stikali in kontrlnimi lučkami.
- Sladoleda in ledenih kock ne smete dajati v usta tisti trenutek, ko jih vzamete iz zamrzovalnika; ker so izjemno mrzli, bi lahko povzroci l ozeblne v ustih!
- Odtajanih zivil ne smete ponovno zamrzovati; cimprej jih porabite.
- Tovarnisko zamrznjena Živila hranite skladno z navodili proizvajalca.
- Odtaljevanja hladilnega aparata ne pospešujte s pomocjo elektrichnih grelnikov ali kemičnih snovi.
Vrocih posod ne postavlajte na plasticne dele zamrozvalnika. - Opozorilo: Če na zamrzovalno omaro odlagate globoko zamrznjenaŽivila, lahko zaradi stika z mrazom v zgornji del omare prodre vlaga. V zgornjem delu zamrzovalne omare so elektrčni deli. Če nanje pade zbrana voda, lahko to povzroči kratek stik in s tem poskoduje zamrzovalno omaro. Zato
globoko zmrznjenih zhivil nikoli ne odlagaje na zgornji del zamrozvalne omare!
Vnetljivih plinov in tekočin ne shranjujte v hladilnem aparatu, saj bi lahko eksplodirali.
Gaziranih pijač, pijač v steklenicah ali v steklene kozarce vloženega sadja ne hranite v zamrzovalniku.
Varnost otrok
- Otrokom ne smete dovoliti, da se igrajo z embalazo; s plasticno folijo bi se lahko zadusili.
- Hladilni aparat je namenjen odraslim. Ne smete dovoliti, da bi se otroci igralis hladilnim aparatom.
- Ko imate namen zavreči svoj odsluženi hladilni aparat, potegnite vtikač iz vticnice in odrežite priključni elektrčni kabel čim blizje ohisja, nato pa smemite vrata. Tako se otroci med igro ne bi mogli zapreti vanj, pa tudi možnost elektrčnega udara bo takо izključena.
- Aparata naj ne uporabljajo osebe (vključno z otroki) z zmanjsanimi fizičnimi, Čutilnimi ali duševnimi sposobnostmi, oziroma s pomanjkljivim znanjem in izkušnjami, razen ce jih pri tem nadzorujejo ali pa jih o uporabi aparata poučijo osebe, ki so odgovorne za njihovo varnost.
Varnostni ukrepi pri namestitvi
-
Hladilni aparat naj bo s hrbtno stranjo obrnjen proti zidu, da bo dostop do delov, ki se segrevajo in bi se na njih lahko opekli, onemogocen (kompresor, kondenzator).
Pred premikanjem hladilnegaparata se prepriacjte, da vtikač ni v vticnici. -
Pri postavljanju hladilnega aparata se prepricajte, da ne stoji na elektricnem prikljucnem kablu.
- Okrog hladilnega aparata mora kroziti zrak; v nasprotnem primeru lahko pride do pregrevanja. Pri namesčanju hladilnega aparata upoštevajte navodila proizvajalca o ustreznem zračenju.
Varnostni ukrepi za izobutan
- Kot hladivo je v tem hladilnem aparatu uporabljen izobutan (R 600a), ki je vnetljiv in eksploziven.
- Uporaba gospodinjskih aparatov z elektricnim motorjem (npr. mešalnik, aparat za sladoled ipd.) v hladilnem aparatu ali v blizini odprtin na hladilnem aparatu ni dovoljena.
- Prav takone smete v hladilnem aparatu ali v blizinin odprtin na hladilnem aparatu uporabljati grelnih naprav (npr. pospeševati odtaljevanje) ali odprtega ognja.
- Ce obstaja moznost, da hladivo uhaja iz hladilnega aparata, morate prostor, v katerem hladilni aparat deluje, dobro zračen.
Da bi zagotovili varnost oseb in premozenja, vedno upostevejte navodila proizvajalca za varno uporabo. Proizvajalec ni odgovoren za skodo, ki nastane zaradi neupostevanja teh navodil.
Navodila za uporabnika
Splošni podatki
Uradni naziv hladilnega aparata je gospodinjski zamrozovalnik. Hladilni aparat jeprimeren za shranjevanje zamrznjene in globoko zamrznjene hrane, za zamrozanjeŽivil v količinah, navedenih v navodilih za uporabo, in za pripravo ledenih kock.
Hladilni aparat ustreza zahtevam normativov glede na razlicne temperaturne omejitve skladnos klimatskim razredom, v katerega je razvršcen.
Crka - simbol za ustrezni klimatski razred - je navedena na tablici s podatki.
Stikala in kontrolne lučke

A) Lučka za prikaz delovanja zelena
B) Gumb za nastavitev temperature in vklop/izklop
C)Lučka funkcjije hitrega zamrzovanja rumena
D)Zapora zvočnega signala in gumb za hitro zamrzovanje
E) Opozorilna lučka rdeča
Delovanje in uporaba
Namestitev
Vtic prikljucite v omreznvo ticnico. Zavklop naprave zavrtite termostat (B) na temperaturo, nizjo od << -16 ^ C >>. Zasveti zelena kontrlna lucka, rdeca kontrlna lucka pa utripa. Vklucena kontrlna lucka za vklop/izklop (A) pomeni, da je naprava vklopljena.
Utripanje rdece kontrlne lucke pomeni, da temperatura v zamrzovalniku ni primerna. Poleg tega sezaslisi prekinjaoz zvok, ki ga lahko izklopite z enam pritiskom na tipko (D). Zamrzovalnik lahko izklopite zzasukom termostata (B) v položaj << >.
Nastavitev temperature
Notranja temperatura zamrzovalnika se elektronsko regulira s petimi temperatumimi položaji in položajem za izklop <<
Položaj << -16°C >> prikazuje najvisjo (najmanj hladno) temperaturo, položaj << -24°C >> pa najnižjo (najbolj hladno) temperaturo. Termostat zavrtite vŽelen položaj.
Na splošno je najbolje,Če termostat nastavite na << -18°C >>, vendar pri nastaviti temperature upostevajte tudi:
- temperaturo prostora, v katerem je namescena naprava,
- pogostost odpiranja vrat,
- količino Živil, ki jih Želite shraniti v napravi,
- mesto namestitve naprave.
Upostevati je potrebno vse te dejavnike, poleg tega pa bo za dolocitev optimalne temperature morda potrebno izvesti še nekaj testiranj. ČeŽelite nizjo temperaturo, zavrtite termostat v položaj z visjo stevilko; ČeŽelite visjo temperaturo, pa termostat zavrtite v položaj z nizjo stevilko. Med dvema nastavitvama počakajte 24 ur, da se temperatura v zamrzovalniku ustali.
Opozorilna lučka za temperaturo (E)
zasveti, ko notranja temperatura v
zamrozovalniku preseže nivo (nad -12°C),
ko ni vec zagotovljeno dolgotrajno
shranjevanje Živil. Upostevejte, da pri
prvem vklopu zamrozovalnika opozorilna
lučka utripa, dokler notranja temperatura ne doseže potrebnega nivoja, ki je potreben za varno shranjevanje zamrznenihŽivil.
Temperaturna motnja:
Notranja temperatura zamrzovalnika v normalnem delovanju zagotavlja dolgotrajno shranjevanje zamrzjenih zivil. Ce ta temperatura preseze dolocen nivo (-12^) se sprozi zvočno in svetlobno opozorilo. Svetlobno opozorilo predstavlja utripajoča rdeča lucka (E), zvočno opozorilo pa prekinjaoč zvok. Zvočni signal lahko izklopite z enam pritiskom na stikalo (D).
Zamrzovanje
Razlicna zivila ustrezno prijavite za zamrzovanje in jih vedno vstavite najprej v predal za zamrzovanje. Za doseo najvecje učinkovitosti zamrzovanja vzemite posodo in kosaro iz zamrozvalne omare terživilo, ki ga zelite zamrzniti, postavite tik poleg izparilnika. Posode in kosare ni potrebno vzeti iz zamrozvalne omare pri zamrzovanju manjsih količin.
Za vklop funkcije hitrega zamrzovanja za 2-3 sekunde pritisnite tipko za vklop/izklop hitrega zamrzovanja (D); manjsa kolicina zivil zamrze po približno 4 urah, vecja kolicina svezh izivil pa po približno 24 urah. Po vklopu funkcije zasveti rumena lucka (C). Kompresor zatem neprekinjeno deluje, dokler ni dosežena potrebna temperatura zamrzovanja.
Ko soŽivila dokončno zamrznjena (to lahko traja najvec 24 ur), lahko funkcijo hitrega zamrzovanja tudi ročno izklopite z 2-3 sekunde dolgim pritiskom tipke (D). Če funkcije hitrega zamrzovanja ne izklopite ročno, jo Čez priblžno 48 ur izklopi elektronika. Ugasne tudi rumena lučka (C).
Posoda za zamrzovanje je primerna za zamrzovanje majhnega sadja (malin, jagod, ribeza itd.). Sadje v tankem sloju
vstavite v posodo brez embalaze. Po zakljucenem zamrzovanju sadje prelozite v vrecke, razvrstite in shranite v predale za shranjevanje.
Shranjevanje
Priporocamo, da zavojche zamrznenih. zivil shranite v predelke za shranjevanje. Tako bo predelek za zamrzovanje prost za naslednje zamrzovanje.
Vse košare, razen spodnje, lahko odstranite terživila postavite na police, Če Želite shraniti vecjo kolićino hrane.
Vmesno zamrzovanje ne vpliva na kakovost ze zamrznenih zivil.
i Nekaj koristnih podatkov in nasvetov
- Po odpiranju in zapiranju vrat zamrzovalnika se bo zaradi nizkete temperature v notranjosti hladilnegaparata ustvaril podtlak. Zato morate pred ponovnim odpiranjem vrat počakati 2-3 minute, da se tlak vnotranjosti izenacci.
Gumb termostata naj bo vedno v takem položaju, da se temperatura v notranjosti hladilnega aparata ne bo nikoli dvignila nad -18°C. V tem primeru bi se namrec kakovost zamrzjenih zivil poslabsala. - Priporočamo, da dnevno nadzirate delovanje hladilnega aparata in takо Čimprej ugotovite nepravilnost v delovanju ter preprecite, da bi se v njem shranjenaŽivilaPokvarila.
- Po izpadu elektricne napetosti se omara samodejno vklopi, vkluci se funkcija hitrega zamrzovanja.
Koristni nasveti in zamisli
V tem poglavju boste nasli nekaj prakticih nasvetov in zamisli o cim boljsi izrabi hladilnega aparata in o kar najvecjem prihranku energije. Navedeni so tudi podatki o vplivu hladilnega aparata na okolje.

Kako prihraniti energijo
- Hladilni aparat nj ne bo izpostavljen soncnim zarkom; postavite ga cim dlje od grelnih teles.
- Pazite, da bo zagotovljeno zadostno zračenje kompresorja in kondenzatorja. Odprtine za zračenje morajo ostati proste.
Zivila hranite v dobro zaprtih posodah, ali pa jih tesno zavijte v folijo. Tako boste prepreci bil prekomerno tvorjenje sreza. - Zavojche s svežimi Živili, ki jih Želite zamrzniti, postavite v zamrozvalnik takto, da se ne dotikajo ze zamrznjenih Živil.
Vrat ne odpirajte po nepotrebnem, pa tudi predolgo naj ne Bodies oprdra. - Tekoçine postavlajte v hladilni aparat le v zaprtih posodah.
Vrocih Jedi ne postavlajte v hladilni aparat; pocakajte, da se ohladijo na sobno temperaturo. - Kondenzator redno Čistite.

Hladilni aparat in okolje
Hladilni aparat (hladivo, izolacijski material) ne vsebuje plinov, ki razgrajujejo ozonsko plast. Hladilni aparat pa kljub temu ne smete zavreci skupaj z drugimi gospodinskimi odpadki. Pazite, da ne poskodujete hladilne enote, predvsem dela na hrbstni strani ob toplotnem izmenjevalcu (kondenzatorju). Pri obcinskih oblasteh se pozanimajte, kje je ustrezno odlagalische odpadkov.
Vsi materiali, uporabljeni pri izdelavi hladilnegaaparata, označeni s simbolom , so primemi za recikliranje.
Vzdrževanje
Odtaljevanje
Z načinom delovanja zamrzovalne omare je povezana tudi pretvorba vlage v notranjosti vvodne kapljice oziroma plasti ledu. Zgoščevanje vodnih kapljic oziromatvorjenje ledenih plasti poslabsazmogljivost zamrzovanja, kar se kaže v visanju notranje temperature, večji porabi elektricne energije in pri doloceni debelini plasti ledu lahko pride do oteženega odpiranja vratc predala za zamrzovanje, vratca se lahko tudi zlomijo.
Pri manjiši debelini ledu lahko nastaloplast ledu odstranite s priloženim strgalom.

Posoda na sliki ni v priboru zamrozvalne omare!
Ko je debelina ledu taksha, da ga s strgalom ni mozno odstraniti, je potrebno odtaljevanje. Pogostost odtaljevanja je odvisna od uporabe.
Potek odtaljevanja:
Gumb za nastavitev temperature nastavite v položaj << ⋆>.
Vrata pustite odprta.
Odtaljeno vodo vsake tolikoČasa obrisite s krpo ali gobo v smeri proti notranjosti. Voda se zbere na spodnjem delu zamrzovalne omare v odtočnem kanalu, od koder jo lahko izpustite:
Pred omaro postavite ustrezno visokoposodo.
Kanal za odtok staljene vode, ki se nahaja na srednjem delu, previdno izvlecite v smeri pusice, kjer je odprtina za odtok vode v posodo.

Odtok staljene vode lahko pospešite,Čev predale vstavite poln lonec ali posodovroče vode.
Po odtaljevanju do suhega zbrisite vlažne povrsine in kanal za odtok staljene vode potisnite nazaj.
Omrežni vtic vkljucite v omrežno vticnico.
Gumb za nastavitev temperature zavrtite v položaj << -18°C >> in pustite omaro najmanj 2 uri delovati v načinu hitrega zamrzovanja. Živila, ki ste jih predhodno vzeli iz zamrzovalne omare, zložite nazaj.
Redno ciscenje
Najbolje je, ce zamrozovalnik hkrati odtajate in očistite.
Uporaba gospodinjskih cistil ali mila ni dovoljena.
Hladilni aparat izklopite iz elektricnega omrežja in notranjost pomijte z mlacno vodo, nato pa ga obrisite do suhega.
Prah in necistoco, ki se nabereta na hrbtni strani hladilnega aparata in na kondenzatorju očistite enkrat ali dvakrat na leto.
Ko zamrzovalne omare ne uporabljate
Postopek v primeru, ko zamrzovalne omare dalj chasa ne uporabljate:
Gumb za nastavitev temperature nastavite v položaj << ◆>.
Omrežni vtič izvlecite iz omrežne vtičnice. Živila odstranite iz zamrozvalne omare.
Zamrozovalno omaro odtajaje in očistite v skladu z navodili.
Vrata pustite pripta, da v notranjosti ne nastanejo neprijetne vonjave.
Odpravljanje nepravilnosti v delovanju
Med delovanjem hladilnega aparata obcasno pride do manjsih nepravilnosti v delovanju, ki jih lahko odpravite sami brez pomovi strokovnjakov pooblascenega servisa. V spodnji razpredelnici so navodila za odpravljanje takih nepravilnosti, ki vam bodo prihranila nepotrebnste硬度.
Opozoriti pa vas zelimo, da delovanje hladilnegaa aparata spremljajo doloceni
zvoki (kompresor, krozenje hladiva), ki ne kazejo na neprvilnost v delovanju, ampak so znak normalega delovanja.
Ponovno vas opozarjamo, da hladilni aparat deluje s prekinitvami; prekinitev delovanja kompresorja ne pomeni, da hladilni aparat ni vec pod elektricno napetostjo! Zato se ne smete dotikati delov, ki so pod elektricno napetostjo, dokler je vtikač v vtčnici!
| Nepravilnost | Možni vzroki | Odpravljanje |
| Nezadostno hlajenje. | Regulator temperature je nastavljen na prenizko stopnjo.Zamrzovalnik se pred Zamržovanjem ni dovolj ohladil.Vstavljen je prevelik kosŽivila.V zamrzovalnik je naenkrat vstavljena prevelika količinaŽivil.Vstavljena so bila toplaŽivila.Vrata niso dobro zaphta. | Nastavite višjo stopnjo.Zagotovite potreben šcas za ustrezno ohlajanje.Zivilo razdelite na manjše kose.Vstavite manjšo količinoŽivil.Vstavite lahko samoŽivila, katerih temperatura ni višja od sobne temperature.Preverite,Če so vrata dobro zaphta. |
| Premočno hlajenje. | Regulator temperature je nastavljen na previsoko stopnjo. | Nastavite nižjo stopnjo. |
| Zamrzovalna omara ne hladi. | Omrežni vtični prvilno vstavljen v omrežno vtičnico.V vtičnici ni omrežne napetosti.Regulator temperature je v položaju "0". | Preverite prvilno priključitev.Preverite prisotnost napetosti.Preverite nastavitev gumba za nastavitev temperature. |
| Glasno delovanje zamrzovalne omare. | Zamrzovalna omara ni prvilno postavljena. | Preverite stabilen položaj zamrzovalne omare.(Na tleh mora stati z vsemi štirimi nogami.) |
| Utripa zelena kontrolna lučka | Okvara tipala temperature | Pokličite serviserja |
Ce vam nasveti ne pomagajo odpraviti nepravalnosti, se obrnite na najblizjo pooblasceno servisno sluzbo.
Nepravilnost v delovanju
Če elektronika ne zazna vrednosti DEJANSKE temperature, začne na prikazovalniku zamrzovalne omare utripati opozorilna lučka. Zamrzovalna omara deluje napraj z nadomestnim programom, dokler nepravilnosti ne odpravi pooblasčeni servisni delavec.
Navodila za namestitev in priklop
Tehnični podatki
| Model EUC 19002 W | |
| Bruto prostornina (I) 190 | |
| Neto prostornina (I) 168 | |
| Širina (mm) 545 | |
| Višina (mm) 1250 | |
| Globina (mm) 639 | |
| Poraba energia (kWh/24h) 0,63 (kWh/leto) 230 | |
| Energetski razred po EU normah | A+ |
| Zmogljivost zamrzovanja (kg/24 h) | 20 |
| Čas ohranjanja nastavljene temperature (h) | 18 |
| Nazivna jakost toka (A) | 0,7 |
| Teža (kg) | 45 |
Namestitev in priklop hladilnegaparata
Transport, odstranjevanje embalaže
i Priporoćamo, da hladilnik prinesete domov v originalni embalazi v pokončnem položaju. Upostevajte oznake na embalazi!
Po vsakem premikanju počakajte priblžno 4 uri in šele nato vklopite hladilni aparat.
Odstranite embalazo in se prepricajte, da so vsi deli neposkodovani. O morebitnih poskodbah takoj obvestite prodajalca; v tem primeru shranite embalazo.
Cischenje
Odstranite lepilni trak, s katerim so posamezni deli zašciteni pred premikanjem med transportom.
Notranjost hladilnega aparata očistite z mlačno vodo in blagim detergentom; uporabite mehko krpo.
Po ciscenju do suhega obrisite vse povrsine.
Namestitev
Temperatura okolja vpliva na porabo energije in na delovanje hladilnega aparata. Ko se odlocate, kam boste postavili vas novi hladilni aparat, upoštevajte omejitve, ki so navedene v spodnji razpredelnici. Upoštevajte razred, v katerega je razvršcen vas hladilni aparat; ta je navenen na tablici s podatki.
| Klimatski razred Temperatura v prostoru |
| SN +10...+32 °C |
| N +16...+32 °C |
| ST +16...+38 °C |
| T +16...+43 °C |
Ce se temperatura v prostoru spusti pod nizjo navedeno vrednost, se lahko tudi temperatura v hladilniku spusti pod predpisano temperaturo. Možno je celo nepravilno delovanje aparata.
Ce pa se temperatura v prostoru dvigne nad visjo navedeno vrednost, bo cas delovanja kompresorja daljsi, visjo temperaturo v zamrozvalniku ali bistveno vecjo porabo enerije.
Hladilni aparat mora stati vodoravno. Na spodnji sprednji strani hladilnega aparata sta dve nastavljivi nogi (1), s pomocjo katerih hladilnik pravilno uravnate v vodoravni položaj. Nastavljivi nogi sta opremljeni tudi z distancima podlozkama 1-1 (2); te lahko po potrebiti tudi odstranite.

V vrečki za pritikline sta priloženi dve držali oddaljenosti. Držala oddaljenosti se montirata v izvirtine, ki se nahajao po zadnjem delu naprave. Položite držala oddaljenosti v izvirtine. Naj pazite na to da strelica (A) na sliki stoji v ustreznem položaju., vrtajoc v 45° pritrdite držala oddaljenosti (strelica je treba stati navpćno).

Hladilni aparat naj ne bo izpostavljen direktnim soncim zarkom, pa tudi v blizino radiatorja ali stedilnika ga ne smete postaviti.
Ce pa zaradi prostorske stiske morate postaviti hladilni aparat tik ob stedilnik,
morate upostevati vsaj spodaj navedeneminimalne oddaljenosti:
- Ce postavite hladilni aparat ob plinski ali elektrichi stedilnik, mora ostati vmes vsaj 3 cm prostora; v nasprotnem primeru morate aparate lociti z negorljivo izolacijski plošco debeline 0,5 do 1 cm.
- Ce postavite hladilni aparat ob peč na olje ali na trda goriva, morate pustiti vmes vsaj 30 cm prostora, saj take peči oddajajo vec toplote.
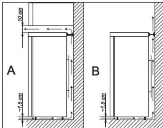
Hladilnik potisnite s hrbtno stranjo dostene.
Pri namestitvi hladilnika upostevestaje predpisane
najmanjse oddaljenosti, prikazane na skici.
A: postavitev pod zidno omarico
B: prostostojec

Spreminanje strani odpiranja vrat
Ce je zaradi razporeditve pohistva to potrebno, lahko spremenite stran odpiranja vrat.
Spreminjanje strani odpiranja vrat opravite tak, kot je to spodaj opisano in prikazano na skicah.
- Potegnite vtikač iz vticnice.
-
Previdno nagnite hladilni aparat nazaj, takdo da se kompresor ne dotika tal. Priporocamo, da vam pri tem nekdo pomaga in varno pridrzi hladilni aparat v nagjenem položaju.
-
Odvijte nastavljivi nogi na spodnji strani hladilnega aparata ter dva vijake, s katerimi je pritrjen spodnji nosilec vrat, ter vijak na drugi strani.

Vratca zamrozvalnika snemite z potiskom navzdol.

- Odvijte zatic tecaja zgornjih vrat zamrzovalnika in ga nato namestite na drugi strani.

-
Namestite vratca zamrzovalnika na zatic tečaja zgornji vrat.
-
Prestavite zatic v spodnji nosilni plošćici vrat v smeri pusćice.
- Pritrdite plošćico na drugo stran, položaj vrat naj bo pri tem nespremenjen.
- Privijte vijak v luknjo, ki je ostala prosta na drugi strani, privijte nastavljivi nogi in postavite hladilni aparatPokonci.
- Premaknite ročice na drugo stran in v odprtine namestite plastěne Žebljíčke, ki se nahajajo v plastěčni vrečki zraven priročnika z navodili.
Če ne Želite sami opraviti zgoraj opisanega premesčanja strani odpiranja vrat, se obrnite na pooblasčeni servis, ki bo to delo strokovno opravil proti placilu.
Priklop na elektricno omrežje
Hladilnik je namenjen priklopu na elektricno omrezej izmenične napetosti 230 V (750 Hz.
Vtikač mora biti vklopljen v ozemljeno vtčnico. Če vtčnica ni primerna, se obrnite na strokovnjaka (elektricarja), ki bo vgradil ozemljeno vtčnico po predpisanih normah v blizini hladilnega aparata.

Aparat ustreza naslednjim predpisom E.E.C.:
-73/23 EEC od 19.02.73 (predpis i nizki napetosti) in kasnejsim modifikacijam;
-89/336 EEC od 03.05.89 (predpisi o elektromagnetni kompatibilnosti) in kasnejsim modifikacijam;
-96/57 EEC - z dne 03.06.96 (Direktiva o učinkoviti rabi energije) in njenim naknadnim dopolnitvam.
Tabela primernih šasov shranjevanja
Čas in način shranjevanja globoko zamrznenih in zamrznenihživil
| Živilo -18°C | |
| Zelenjava grah, stročji fizol, mešana zelenjva, buče, koruza itd. 12 mesecev | |
| Že priapravljene Jedi: zelenjavne Jedi, priloge, mesne Jedi itd. 12 mesecev | |
| Že priapravljene Jedi: goveji zrezki, mesne enolončnice itd. 6 mesecev | |
| Krompirjeve Jedi, testenine: pire, svaljki, cmoki, nadevane testenine itd. 12 mesecev | |
| Juhe: mesna juha, zelenjavne juhe itd. 6 mesecev | |
| Sadje: višnje, Češnje, kosmulje, sadne kreme, kostanjev pire 12 mesecev | |
| Meso: perutnina 5 mesecev fileti, ribe 6 mesecev | |
| Lučke, sladoled 3 tedne |
Notice-Facile