TK 64 S IX - Placa de cozinha INDESIT - Manual de utilização gratuito
Encontre gratuitamente o manual do aparelho TK 64 S IX INDESIT em formato PDF.
Baixe as instruções para o seu Placa de cozinha em formato PDF gratuitamente! Encontre o seu manual TK 64 S IX - INDESIT e retome o controlo do seu dispositivo eletrónico. Nesta página estão publicados todos os documentos necessários para a utilização do seu dispositivo. TK 64 S IX da marca INDESIT.
MANUAL DE UTILIZADOR TK 64 S IX INDESIT
Descrição do aparecido, 49
Painel de comandos
Inicioeutilização,50-52
Acender o plano de cozedura
Bloqueio dos comandos
Desligar o plano de cozedura
Elementos aquecedores
Conselhos práticos para utiliser esta aparelhagem
Precauções e conselhos, 53
Seguranca geral
Eliminação
Manutenção e custados, 54
Descrição técnica dos modelos, 55
TK 64 CL
TK 64 S IX
TK 64 S
TK 64 SD IX
TK 64 SD BI
TK 64 SD
TK 63 T
TK 63 T BI
É importante guardar este folheto para poder consulúlo aMASTER quando. No caso de vend,cessão ou mudança, assegure-se que o mesmo permanece com o aparecido para informar o novo proprietário sobre o acontecimiento e sobre as respectivas advertências.
! Leia com atençao as instruções: há informações importantes sobre a instalação, a utilização e a segurança.
Posicionamento
! As embalagens não são brinquados para as crianças e devem ser eliminadas em conformidade com as regras de colecta diferenciada (veja em Precauções e Conselho).
! A instalação deve ser realizada quando estas instruções e por pessoal profissional qualificado. Uma instalação errada pode causar danos a pessoas, animais ou objectos.
Encaixe
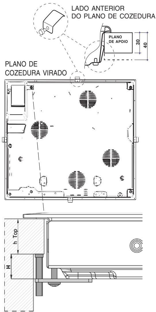
Para garantir um bom funciona do aparecido é necessário que o|móvel-seja decharacteristicas adequadas:
- o material do plano de apoio deve resistir a uma temperatura de aproximamente 100^ ;
- se desejar instalar o plano de cozedura sobre umorno, este deve ser equipado com de umsystema de arrefecimento com ventilacao forcad;
- evite instalar o plano de cozedura sobre unaquina de lavar louça: se for faze-lo, instale um

elemento de separacao entre osinous apareiros com retencao hermética; conforme o plano de cozedura que desejar instalar (veja figuras), o vao do moveldeer ter as seguintes dimensoes:
Sobre umovelvazioouuma gaveta
É necessáriodeeruma cāmara-de-ardepto menos 40mmouumaabertura de5mmna largura do móvel.

Abertura de pelo menos 5 mm em toda a largura do plano.
Ventilação
Para consentir uma adequada ventilação e para fazer o supraquecimento das superfícies ao redor do aparelho, o plano de cozedura deve ser posicionado:
- a uma distência minima de 40 mm da parede de

trás e de 600 mm de quaisquer autres superficies verticais;
- de forma a manter uma distência minima de 10 mm entre o vão para o encaixe e o móvil abaixo dele.
Fixação
A instalação do aparelho deve ser realizada sobre uma superficie de apoio perfeitamente plana.
As deformações eventualmente provocadas por uma fixação errada poderão alterar as caractéristicas e as performances do plano de cozedura.

O comprimento do parafuso de regulação dos ganchos de fixação deve ser configurado antes da sua montagem, conforme a espessura do plano de apoio:
- 30 mm de espessura: parafuso 17,55 mm;
- 40 mm de espessura: parafuso 7,55 mm.
Para a fixação proceder da其次是 maneira:
- Com os parafudos sem ponta, parafusat as 4 molas de centragem nos furos colocados no centro de cada lado do plano;
-
introduza o plano de cozedura no vao do meuvel a exercer uma adequada pressao no inteiro perimetro para o plano de cozedura prender-se perfeitamente no plano de apoio.
-
para os planos com perfis laterais: às ter inserido o plano de cozedura no|móvel,inserin os 4 ganchos de fixação (cada um com o seu perno) no perimetro inferior do plano de cozedura, parafusando-os com os parafudos compridos com ponta até que o vidro fique aderente ao plano de apoio.
! É indispensable que os parafudos das molas de centragem sejam accesivos.
! Em conformidade com as normas de segurar,进驻o o aparelho encaixado, não deve ser possivel o contacto com componentes electricos.
! Todos os componentes de garantia da proteção precisam estar presos de modo que não possam ser tirados sem o emprego de uma ferramenta.
Ligação eletrica
! A ligação eletrica do plano de cozedura e a de um eventual forno de encaixar precisam ser realizadas separadamente,cka para razoes de segurarceletrica,sea para facitar uma eventual remoacao do forno.
Ligação monofásica
O plano está provido de cabo de alimentação já ligado e predisisto na fábrica para a ligação monofásica. Effectuar a ligação dos fíos de acordo com aanela e os desenhos a seguir:
| Tensão tipo e frequência rede | Cabo eletrico | Ligação fios |
| 230V 1+N ~ 50 Hz | N L | ½: verde/amarelo N: os 2 fios azuis jintos L: marrom junto ao preto |
Outrostips deligações
Tensão tipo e frequência de rede
- 400V - 2+N ~ 50 Hz
- 230V 3 ~ 50 Hz
- 400V - 2+2N ~ 50 Hz
Soltar os cabos e efectuar a ligação dos fios de acordo com aanela e os desenhos a seguir:
| Tensão tipo e frequência rede | Cabo eletrico | Ligação fios |
| 400V - 2+N ~ 50 Hz | N L1 L2 | +: verde/amarelo; N: os 2 fios azuis jintos L1: preto L2: marrom |
| 230V 3 ~ 50Hz | ||
| 400V - 2+2N ~ 1 50 Hz | N1 N2 L1 L2 | +: verde/amarelo; N1: azul N2: azul L1: preto L2: marrom |
Tensão tipo e frequência de rede
- 400V 3 - N ~ 50 Hz
proceder da segunte maneira:
! O eventual cabo em dotação não pode ser utilizado para thesetipsode instalacao.
- Utilizar um cabo de alimentação apropriadó, tipo H05RR-F ou de valor superior, com medias adaptations (secção do cabo: 25 mm).
- Utilize una chave de fenda, para fazer alavanca nas linguetas laterais da tampa da caixa de bornes e abri-la (veja imagem Caixa de bornes).
- Desatarraxe o parafuso do grampo do cabo e os parafusos dos bornes relativos ao tipo de ligação necessária e posicao os grampos de ligação conforme aabela e os desenhos a seguir.
- Posicao os fios de acordo com aanela e os desenhos abaixo e efectue a ligaçao apertando todos os parafusos dos bornes.
| Tensão tipo e frequência rede | Ligações electrolycas | Caixa de bornes | ||||
| 400V 3-N ~ 150 Hz | 1 L1 | 2 L2 | 3 L3 | 4 N | 5 | Trifásica 400 |
- Fixe o cabo de alimentacao na apropriadaba braçadeira e feche a tampa.

Fase Grampo Fase Fase Neutro Terra
Trifasica 400
Ligação do cabo de alimentação à rede
No momento de efectuar a ligação directamente na rede, instalar entre o aparecido e a rede um interruptor omnipolar com uma abertura minima de 3 mm entre os contactos.
! O técnico instalador é responsavel pela realização certa da ligação eletrica e da obediência das regras de segurança.
Antes de effetuar a ligaço, certifique-se que:
- a tomada tenha uma ligação à terra e seja em conformidade com a leiisagem;
- a tomada tenha a capacidade de suportar a energia maxima de potência da boaquina, indicaça na placar de identificacao colocada no aparecido;
- a tensão de alimentação seja entre os values da placá de identificacao;
- a.tomada-Seja compativel com a ficha do aparelho. Em caso contrario, substitua a tomada ou a ficha; não empecgue extensions nem tomas multiples.
!Depois de ter instalado o aparelho, o acesso ao cabo eletrico e a tomada da corrente deve ser fácil.
! O cabo não delve ser dobrado nem comprimido.
! O cabo deve ser verificado periodicamente e substituindo somente por技术和 autorizados.
! A Empresa exime-se de qualquer responsabilitadese estas regras não foram obedecidas.
Painel de comandos
O paine l de comandos descrito a seguir está representado para fins explicativos: pode nao ser uma exacta reproducao do modelo comprado.

- Botão ON/OFF para ligar e desligar o aparecido.
- Botão BLOQUEIO DOS COMANDOS para impedir ALTERações acidentais das regulações do plano de cozedura (veja Início e Utilização).
- Indicador luminoso COMANDOS BLOQUEADOS sinaliza obloqueio dos comandos (veja Inicio e'utilização).
- Indicador luminoso ZONA DE COZEDURA SELECTIONADA indica que a zona de cozedura relativa foi selecionada e são portanto possível as variedas regulações.
-
Botão SELEÇÃO ZONA DE COZEDURA para selección a zona de cozedura desejada.
-
Indicador POTÊNCIA sinaliza visualmente o;nível de calor alcâncado.
- Botão AUMENTO POTÊNCIA para ligar a chapa e regular a potência (veja Início e'utilização).
- Botão DIMINUIÇÃO POTÊNCIA para regular a potência e desligar a chapa (veja Inicio e'utilização).
- Botão CHAPA EXTENSÍVEL* para fazer a chapa extensível (veja Inicio e Utilização).
- Indicador luminoso CHAPA EXTENSÍVEL LIGADA*: indica que a chapa extensível está ligada.
! A cola aplicada nas guarínções deixa algumas想不到 do graxa no vidro. Antes de utilizes o aparelho, é recomendavel elimina-la com um produit não abrasivo Shopsico para a manutenção. Durante as primeiras horas deestruturaçao, pode ser que note odor de borracha, que em todo o caso logo desaparecerá.
! Quando o plano de cozedura for ligado electricamente, toca um breve sinal acústico(befores de algunos segundos. Somente;neste punto sera possível ligar o plano de cozedura.
Acender o plano de cozedura
Para acender o plano de cozedura manter
pressionada a tecla ① por aproximadamente um
segundo.
Cada uma das zones de cozedura é actionada mediante o disposito de regulacao da potencia constituido por bois botões (- e +).
- Carregue na tecla para activar a chapa, em seguida programa a potência desejada atraves das teclas e .
- Para definir directamente a potência Tmaxima, corregue brevamente no botão (-) .
-
É possivel acelerar os tempos de aquecimento de uma zona de cozedura da segunte maneira:
-
regule a potência da zona de cozedura no máximo (9);
- e, em seguida, corregue no botão : no display da potência aparecerá “A”;
3.estopeonto,definaapotenciaa qualdesejarchegarparaacozedura(porexemplo:5).
Quando chegar a esta temperatura, a funciona de aquecimiento rápido se interromperá automaticamente e a cozedura prossseguirá normalmente com a potência 5.
- Presente apenas em algunos modelos.
Acender as zonas de cozedura extensívelis*
-
Chapa dupla:
-
Carregue no botão para activar a zona de cozedura mais interna.
-
Carregue no botão ⊙ para activar (ou desactivar) a segunda zona de cozedura.
-
Chapa tripla:
-
Carregue no botão © para activar a zona de cozedura intermedia.
- Carregue das vezes no botão © para activating toda a zona de cozedura.
! Para voltar a uma zona de tamanho menor, corregue novamente no botão.
- Carregue na tecla: a potência da zona de cozedura descera progressively até desligarse.
- Em alternativa carregue nas teclas ( ) e simultaneamente: a potência volta imeditamente para 0 e a zona de cozedura desliga-se.
Bloqueio dos comandos
Quando um plano de cozedura estiver a funciona, é possível bloquear os comandos para fazer riscos de Mudicoações acidentais das regulações (criancas, operações de limpeza etc.). Carregando no botão ① os comandos se bloquearão e o indicator luminoso situado acima do botão se acenderá.
Paravoltaramodificarasregulações (por.exemplo interromperacozedura),sera necessario
desbloquear os comandos: corregue no botão por eles instantes; o indicator luminoso se apagará e os comandos se desbloquearão.
Desligar o plano de cozedura
Carregue no botão ①; o aparecido se desligará.
Se os comandos do aparelhagem estiverem bloqueados, continuarão bloqueados mesmo antes de ter acendido novamente o plano de cozedura.
Para poder acender nowamente o plano, sera necessario primeiro desbloquear os comandos.
Elementos aquecedores
No plano de cozedura, conforme os modelos, poder ser instalados elementos aquecudos dois temas: halógenos e irradiantes.
Os halógenos transmitem o calor mediante irradiação da lâmpada halógena que content.
- Caracterizam-se pelas propriedades similares à tíPICas do gás: rápida responça aos comandos, visualização instantânea da potência.
Os elementos radiantes são constituted por uma multiplicidade de espirais que asseguram uma reparticao uniforme do calor no财运 do recipiente, para um resulto perfeito de todas as cozeduras com fogo lento: cozidos, molhos ou para aquecer pratos.
Conselhos práticos para utiliser esta aparenhagem
Para obter as melhores performances da placà:
- empecque panelas comundo chato,para ter acerteza que haberá una perfeita aderência à zona de aquecimento.


- Empregue panelas com diametro suficiente para cobrir inteiramente a zona de aquecimento, de maneira que seaproveite inteiramente o calor disponible.



- Certifique-se que ouve das panelas esta se sempre perfeitamente enxuto e limpo, para assegurar uma aderência certa e uma longa durabilitadne não somente das zonas de cozedura, mas tambem dasproprias panelas.
- Evite'utilizar as mesmas panelas que empregao nos queimadores a gás: a concentração de calor nos queimadores a gás poderá deformar o fundodas panelas, que esta maneira perdá adeência.
- nunca deixe uma zona de cozedura acesa sem uma panela, porque o seu aquecimento, ao chegar rapidamente ao;nivel maior, podera danificar os elementos de aquecimento.
Níveis de potência aconselhados para os variousicosypes de cozedura:
| Potências | Chapa(PCQUENA) (1100->1400 W) | Chapa(média (1800->2000 W) | Chapa grande (2300->2500 W) |
| Mini | Chocolate | Esquentar | Cozinho em fogo brando |
| Médio | Molho | Cozinho em fogo brando | Ferver liquidos |
| Maxi | Cozinho em fogo brando | Ferver liquidos | Fritar/ Grelhar |
Dispositivos de segurança
Se o plano for ligado mas ficar inutilizando por aproximadamente 2关键时刻, sera activada a funcao de bloqueio dos comandos. Se a mesma situacao durar por outros 4关键时刻, o plano ira desligar-se automaticamente.
Uma'utilisation prolongada do plano de cozedura pode provocar aquecimento excessivo dos componentes electrónicos.
Nestes caseos um dispositivo de protecao termica impoe temporariamente una很小a potencia (de 3) nas zonas de cozedura dianteiras ate a temperatura ter diminuido para um nivel aceitavel.
Interruptor de seguranca
O aparecido é dotado de um interruptor de segurarque desligas as zonas de cozedura automaticamente quando é alcancado um tempo maior deutilização a um determinado;nível de potência.
Durante uma interrupção de segança, o displayindicará "0".
Exemplo: a chapa posterior direita está programada no 5, enquanto a chapa anterior esquerda no 2. A posterior direita irá desligar-se antes 3 horas de acontecimiento, a anterior esquerda antes 10 horas.
| Nival de potência | Duração limite de funcionaimento |
| 1-2 | 10 horas |
| 3 | 5 horas |
| 4 | 4 horas |
| 5-6 | 3 horas |
| 7-8 | 2 horas |
| 9 | 1 horas |
Sinal acústico
Algumas anomalias, nomeadamente:
- um objecto (panela, talher etc.) foi deixado mais de 10 segundos na area de comandos;
- um derramamento na area dos comandos,
- uma pressão exercida por muito tempo em um botão, pode provocar uma sinalização acústica. Resolver a causa do mauFUNçionamento para o sinal sonoro deixar de tocar. Nestas situações os comandos bloqueiam-se automaticamente: para desbloqueá-los carregue na tecla (1), as programações são mantidas. Se a causa da anomalia não for removida, o sinal acústico persistirá e o plano irá desligar-se.
! Este aparecido foi个项目 e fabricado em conformidade com as normas internacionais de segurança. Estas advertências são fornecidas por razões de segurança e devem ser lidas com atençao.
CE Este aparecido está em conformidade com as següntes Direcitas da Comunidade
Europeia:
-73/23/CEE de 19/02/73 (Baixa Tensão) e posteriores 修改a:
-89/336/CEE de 03/05/89 (Compatibilitad
Electromagnética) e posteriores modificacoes
-93/68/CEE de 22/07/93 e posteriores modificacoes.
Segança geral
- Este aparecido foi concebido para'utilisation de tipo não professional no Ambito de moradas.
- Este aparecido não deve ser instalado ao ar livre, mesmo num=sitio protegido, porque é muito perigoso deixá-lo exposto a chuva e temporais.
- Não toque na boa com os pés descalços ou com as mês ou os pés molhados ou humidos.
- Este aparecido deve ser empregado para cozer alimentos, somente por pessoas adultas e segundo as instruçõespresentadas neste folheto. Não utilize o plano como superficie de apoio ou como tabua deURTAR.
- A placá de vitrocerâmica é resistente às batidas mecânicas, entretanto pode rachat-se (ou eventually parte-partir-se) se for batida com um objecto pontiagudo, com um utensílio. Nestes casos, deslgue imeditamente o aparecido da rede de alimentação e contacte a assistência técnica.
- Se a superficie do plano estiver rachada, deslueo aparelho para fazer a possibidade deCHOques electricos.
- Evite que o cabo de alimentação de outros electrodométricos encoste-se em partes quentes do plano de cozedura.
-
Não se esqueça que a temperatura das zones de cozedura permanece muito alta pelo menos trinta horas后再o. O calor resíduo é sinalizzato quando o um indicator (veja Inicio e Utilização).
-
Mantenha a devida distência da placá quaisquer objects que poder se derreter, por exemplo, objectos de plástico, de(ALminio ou produits com um alto conteudo de acúcar. Preste muito atençao com as embalagens e aspeléculas de plástico ou alúnio:
se deixá-los sobre as superficiesupon ainda estiverem quentes ou mornas, poder causar um dano grave à plac.
- Certifique-se que as pegas das panelas fiquem sempre viradas para o lado interno do plano de cozedura para evitar batidas acidentais.
- Não puxe pelo cabo para desligar a ficha da tomada electrica, pegue pela ficha.
- Não realizé limpeza nem manutençao sem antes ter desligado a ficha da rede electrica.
Eliminação

- Eliminação do material de embalagem: obedeça as regras locais, de maneira que as embalagens possam ser reutilizadas.
- A directiva Europeia 2002/96/CE relativa aoresíduos de equipamentos electricos eelectrónicos (REEE) prévê que oselectrodométricos não devem ser eliminados no normal fluxo dos resíduos solidos urbanos. Osaparemhos não mais realizados devem recolhidos separadamente para optimizar a taxa de recuperação e reciclagem dos materiais que os compoem e impedir potenciais danos à sauude e ao meio ambiente. O símbolo da lixeira cancelada está indicado em todos os produits para lembrar o dever de colecta selectiva. Para maiores informações sobre a correctaeliminação dos electrodométricos, ospropriétários poderão contactar o service decolecta Pública ou os revendedores.
Antes de realizar qualquer operacao, deslgue o aparelho da alimentacao eletrica.
Limpeza do aparelho
! Evite o emprego de detergentes abrasivos ou corrosivos, tais como sprays para churrasqueiras e fornos, tira-manchas e produits contra ferrugem, detergentes em pó e esponjas com superficie abrasiva: poder arranhar irremediavelmente a superficie.
! Nunca utilize equipamento de limpeza a vapor ou de alta pressão para limpar a aparenhagem.
- Para a manutenção ordinária, é suficiente lavar o plano com uma esponja humida e, em seguida, enchugar com papel absorvente de cozinha.
- Se o plano estiver muito sujo, esfregue com um produit especialico para limpeza de superficies em vidro ceramica *, enchague e enchugue.
- Para tirar as acumulacoes de sujidade maiores, use uma espátula apropriada. Intervenha assim que possível, sem aguardar que o aparecido arrefeca, para fazer que resíduos grudem. Podem ser obtidos excellentes resultados se usar uma esponja especial de fios de aço inoxidavel - exigência para planos em vidro cerámica-molhada deágua e sabão.
- No caso em que no plano de cozedura tenham-se acidentalmente fundidos objectos ou materiais como plástico ou acúcar, remove-os imeditamente com a espátula, às que a superficie esteja ainda quente.
- DepoS de limpo, o plano poderá ser tratado com um produit especialico para a manutenção e a proteção: aVELICULA invisível deixada por este produits protegerá a superficie se algo for demorado durante a cozedura. É recomendavel realizar estas operações com o aparelho morno ou frio.
- Lembre-se sempre deioxuaguar com agua limpa e enxugar o plano com cuidado: para não acontecer de resíduos de produits grudarem-se na successiva cozedura.
Quadro em aço inoxidável (semente nos modelos com moldura)
O aço inoxidável pode manchar-se por causa da alta quantidade de calcário na água em contacto durante muito tempo com o metal, ou por conta de produits de limpeza muito agressivos que contenham fósforo.
É aconsehlável enchaguar com água abundante e enchugar con cuidado,(before de ter limpado o plano. Se for derramada água, enchugue-a rapidamente com cuidado.
! Alguns planos de cozedura tem una moldura de alumínio parecida com o aço inoxidável. Não utilizeiros para a limpeza e o desengorduramento não idoneos para o alumínio.
Desmontar o plano
Caso seja necessario desmontar o plano de cozedura:
- remove os parafudos que fixam as molas decentragem nos lados;
- solte os parafusos dos ganchos de fixação nos ângulos;
- extraia o plano de cozedura do vao do movel.
! Recomendamos que se evite tentar o acesso aos mecanismos internos para tentar uma reparação. Em caso de avaria, contactar a Assistência Tecnica.
Nestas tabelas está指示, modelo por modelo, os values de absorção enerética, o tipo de elemento aquecedor (halógeno ou radiante) e o diâmetro de cada zona de cozedura.
| PLANOS DE COZEDURA | TK 64 SD TK 64 SD IX TK 64 SD BI | TK 64 CL TK 64 S TK 64 S IX | TK 63 T TK 63 T BI | |||
| Zonas de cozedura | Potência (em W) | Diâmetro (em mm) | Potência (em W) | Diâmetro (em mm) | Potência (em W) | Diâmetro (em mm) |
| Traseiro es q. | RD 2300-1000 | 210 | R 2300 | 210 | ||
| Dianteiro es q. | R 1200 | 145 | R 1200 | 145 | ||
| Traseiro dir. | R 1200 | 145 | R 1200 | 145 | R 600 | 120 |
| Dianteiro dir. | R 1800 | 180 | R 1800 | 180 | R 1800 | 180 |
| Es querda | RT 1050/1950/2700 | 250 | ||||
| Potência total | 6500 | 6500 | 5100 | |||
| R = irradiante燮, RD = irradiante duplo, RT = irradiante triplo | ||||||

Italiano, 1

English, 12

Francais, 23

Espanol, 34

Portugués, 45

Nederlands,56
Inhoud
Installatie, 57-59
Plaatsing
Notice-Facile