Santo 71330 DT18 - Koelkast AEG-ELECTROLUX - Gratis gebruiksaanwijzing en handleiding
Vind de handleiding van het apparaat gratis Santo 71330 DT18 AEG-ELECTROLUX in PDF-formaat.
Gebruikersvragen over Santo 71330 DT18 AEG-ELECTROLUX
0 vraag over dit apparaat. Beantwoord die u kent of stel uw eigen vraag.
Stel een nieuwe vraag over dit apparaat
Download de handleiding voor uw Koelkast in PDF-formaat gratis! Vind uw handleiding Santo 71330 DT18 - AEG-ELECTROLUX en neem uw elektronisch apparaat weer in handen. Op deze pagina staan alle documenten die nodig zijn voor het gebruik van uw apparaat. Santo 71330 DT18 van het merk AEG-ELECTROLUX.
GEBRUIKSAANWIJZING Santo 71330 DT18 AEG-ELECTROLUX
Gebruiksaanwijzing Mode d'emploi Gebrauchsanweisung
Geache klant,
Lees eerst aandachtig de gebruiksaanwijzing door voordat u uw nieuwe koelapparaat in gebruik neemt. Hierin staat belangrijke informatatie over een veilig gebruik, over het opstellen en over het onderhoud van het apparaat.
De gebruiksaanwijzing s.v.p. bewaren voor latere naslag. Aan eventuele vol-gende bezitters van het apparaat doorgeven.

Met de waarschuwingsdriehoek en/of door signaalwoorden (Waarschuwing!, Voorzichtig!, Let op!) worden de aandacht gevestigd op aanwijzingen die belangrijk�k voor uw verilgheid of voor het juist functioneren van het apparaat. Hier absolutut op letten.

Na dit symbol worden uitleg gegeven over de bediening en het prak-tisch gebruik van het apparaat.
Met het klaverblad worden tips en aanwijzingen voor een economisch milieuvriendelijk gebruik van het apparaat aangegeven.
Voor eventueel optredende storingen staan in de handleiding aanwijzingen om deze zich op te losesten, wie Hoofdstuk "Wat te doeen als...". Als deze aanwijzingen Niet voldoende informatie bieden staat once klantendienst u te allen tjnde ter beschikking.
Inhoud
Veiligheid 4
Weggooien 5
Informatie over de verpakking van het apparaat 5
Weggooien van oude apparaten 5
Transportbescherming verwijderen 6
Opstellen 6
Opstelplaats 6
Uw koeltoestel heeft lucht nodig 7
Muur-afstandsholders 7
Deurdraairichting 8
Elektrische aansluiting 10
Voor ingebruikname 10
In gebruik nemen en temperatuurregeling 10
Interieur 11
Legvlakken 11
Variable binnendeur 11
Luchtcirculatie 12
Flessenrek 12
Koelen van levensmiddelen 13
Invriezen en diepgevroen opslaan 13
Hetmakevan ijsblokjes.14
Diepvrieskalender 14
Ontdooiing van het toestel 15
Apparaat uitzetten 15
Reiniging en onderhoud 16
Tips om energie te besparen 17
Wat te doen als 17
Hulp bij storingen 17
Lamp verwisselen 19
Doel, normen, richtlijnen 19

Veiligheid
De verilgheit van unsere apparaten voldoet aan de Europese en Nederlandse normen. Desondanks zich wij ons genoodzaakt u met de volgende verilgheidsaanwijzingen vertrouwd te make:
Reglementaire toepassing
- Het apparaat is voor huishoudelijk gebruik bestemd. Het is geschikt voor het koelen, invriezen en diepgevroyen bewaren van levensmiddelen en voor het makeen van ijs. Als het apparaat voor andere doeleinden gebruikt worden kan de fabrikant geen verantwoording nemen voor eventuele schaden.
- Het ombouwen van of veranderingen aan het koelapparaat aanbrengen isuitveiligheidsoverwegingenniettoegestaan.
- Als het apparaat commercieel of voor andere doeleinden dan voor het koelen, diepgevroen bewaren en invriezen van levens-middelen gebruikt worden, s.v.p. letten op de hiervoor van kracht zijnde wettelijk bepalingen.
Voordat het apparaat voor de eerste keer in gebruik genomen wordt
- Controller het apparaat op transportschaden. Een beschadigd apparaat in geen geval aansluiten! Wend u in geval van schade tot de leverancier.
Koelmiddelen
Het apparaat bevat in het koelvloeistofcircuit de koelvloeistof Isobutan (R600a), een natuurlijk, zeer milieuvriendelijk gas, datECHTER wel brandhaar is.
- Bij het transport en het opstellen van het apparaat erop letten dat geen onderdelen van het koelvloeistofcircuit beschadigd worden.
- Bij beschadiging van het koelvloeistofcircuit:
- open vuur en brandhaarden absolutut vermijden;
- het vertrek waar het apparaat staat goed ventileren.
Veiligkeit van kinderen
- Verpakkingsdelen (bijv. foliën, piepschuim) können voor kinderen gevaarlijk zijn. Stikgevaar! Verpakkingsmaterial van kinderen weghonden!
- Oude apparaten voor het weggooien onbruikbaar makeen. Stekkeruit het stopcontact trekken, stroomkabel doorknippen, eventueel aanwe-zige snap- of grendelsloten verwijderen of kapotmakeen. Daardoor wordt voorkomen dat spelende kinderen in het apparaat opgesloten raken (stikgevaar!) of in andere levensgevaarlijke situatuies verecht komen.
- Dit apparaat is nicht bedoeld voor gebruik door kinderen, Personen met verminderde lichamelijke, zintuigelijkke of geestelijkke capaciteiten of een gebrek aan kennis en ervaring, tenzij er toezicht is ingesteld door desoon die verantwoordelijk is voor hun verilgheid of tenzij zij van deze loro instructies hebben gekreten over het gebruik. Laat kinderen Niet zonder toezicht in de buurt van het apparaat.
Bij dagelijks gebruik
- Containers met brandbare gassen of vloeistoffen können lek raken door de inwerking van koude. Explosiegevaar! Leg geen containers met brandbare stoffen zoals bijv. spraybussen, aanstekers, navullin-gen van aanstekers etc. in het koelapparaat.
- Flessen en blinkken mogen nicht in het vriesvak. Ze können springen als de inhoud bevriest - bij koolzuurhoudende inhoud zichs exploderen! Leg noit limonades, sappen, bier, wijn, champagne etc. in het vriesvak. Uitzondering: sterke drank met een zeer hoog alcohol percentage kan in het vriesvak gelegd worden.
- Consumptie-iks en ijsblokjes Niet direct vanuit de vriesruimte in de mond steken. Zeer koud ijs kan aan de lippen of de tong vastvriezen en verwondingen veroorzaken.
- Niet met natte handen aan diepvriesartikelenkommen. De handen kannen.daaraan vastvriezen.
- Geen elektrische apparaten (bijv. elektrische ijsmachines, mixers etc.) in het koelapparaat gebruiken.
- Voor het schoonmaken het apparaat altijd uitzetten en de stekkeruit het stopcontact trekken of de zekering in de woning uitschakelen c.q. eruit draaien.
- De stekker algijd aan de stekker zich uit het stopcontact trekken, nooit aan het snoer.
Bij storing
- Als er een storing aan het apparaat opttreedt eerst in de gebruiks-aanwij-zing kijken onder "Wat te doen als ..." Als deaar gegeven aanwijzingen Niet verder helpen zichniet verder aan het apparaat werkden.
- Koelapparaten mogen alleen dooor geschoold personeel gerepareerd worden. Door ondeskundige reparations können große bevaren ont-staan. Wend u zich bij reparations tot uw vakhandel of tot once klantendienst.
Weggooien
Informatie over de verpakking van het apparaat
Alle gelebrekte grondstoffen zijn milieuvriendelijk! Ze können zonder gevaar weggegooid of in de vuilverbrandingsoven verbrand worden!
De grondstoffen: de kunststoffen können ook opnieuw gebruikt worden en worden als volgt gekarakteriseerd:
PE< voor polyethyleen, bijv. bij de buitenste verpakking en de zakken binnen in.
PS< voor schuimpolystyrol, bijv. bij de bekledingsdelen, in principe FCKW-vrij.
De kartonnen delen zijn van oud papier gemaakt en{kunnen ook wee bij het oud-papier gedaan worden.
Weggooien van oude apparaten
Wegens milieuredenen dienen koelapparaten vakkundig ontmanteld te worden. Dit geldt voor Uw huidige apparaat en - als het ook aan verrangging toe is - ook voor Uw weitere apparaat.
Waarschuwing! Apparaten die hun tijd gezahd haben onbruikbaar make n voordat ze weggegooid worden. Stekker er afhalen, netsnoer doorknippen, eventuele snap- of grendelsloten verwijderen of kapot-maken. Hierdoor wordt voorkomen dat spelende kinderen in het apparaat opgesloten worden (verstikkingsgevaar!) of in andere levensgevaarlijke situatuies verechtkomen.
Aanwijzingen voor het weglooien:
- Het apparaat mag nicht bij hetuis- of grofvuil gezet worden.
- Het koelvloeistofcircuit, in het bijzonder de warmtewisselaar aan de achterkant, mag Niet beschadigd worden.
- Het symbol op het product of op de verpakking wijst erop dat dit product Niet als huishoudafval mag worden behandeld, maar moet worden afgegeven bij een verzamelpunt waar elektrische en elektronische apparatuur worden gerecycled. Als u ervoor zorgt dat dit product op de juiste manier worden verwijderd, voorkomt u möglichk negatieve gevolgen voor mens en milieu die zich zonden+kennen voordoen in geval van verkeerde afvalverwerking. Voor gedetailleerdere informatie over het recyclen van dit product,(Int,Intu) contact opnemen met de gemeente,de gemeentereiniging of de winkel waar u het product hebt gekocht.
Transportbescherming verwijderen
Het apparaat alsmede de onderdelen van het interieur zijn voor het transport beschermd.
- Alle plakband alsmede bekledingsdelen uit het interieur verwijderen.
Uw apparatuur is voorzien van blokkeringen, waardoor de platenijdens het transport op hunplaats blijven.
Handel als volgt om deze te verwijderen:
Beweeg de blokkeringen in de richting van de pijl, til de glasplaat aan de achechterkant op en duw deze in de richting van de pijl tot deze los raakt en verwijder de blokkeringen.
Opstellen
Opstelplaats

Het apparaat in een goed geventileerde en droge ruimte neerzetten.
De omgevingstemperatuur heeft invloed op het stroomverbruik.
Het apparatus daarom
- nied aan directe straling van de zon blootstellen;
- nied bij radiatoren, naast een kachel of andere warmtebronnenplaatsen;
- alleen op een plaats neerzetten waarvan de omgevingstemperatuur overeenkomt met de klimaat categorie waarvoor het apparaat is ont-worpen.
De klimaatcategorieen staan op het merk- en type-aanduidingsplaatje dat
zich links aan de binnenkant van het apparaat bevindt.
De volgende babel geeft aan welke omgevingstemperatuur bij welke klimaat categorie behoort:
Klimaatategorie voor een omgevingstemperatuur van
$$ \mathrm {S N} + 1 0 \mathrm {t o t} + 3 2 ^ {\circ} \mathrm {C} $$
$$ N + 1 6 \mathrm {t o t} + 3 2 ^ {\circ} C $$
$$ \mathrm {S T} + 1 8 \mathrm {t o t} + 3 8 ^ {\circ} \mathrm {C} $$
$$ \mathrm {T} + 1 8 \mathrm {t o t} + 4 3 ^ {\circ} \mathrm {C} $$
Als het onvermijdelijk is het apparaat naast een warmtebron teplaat-sen, aan weerszijden minimaal de volgende afstanden aanhouden:
-
tot elektrische kachels 3 cm;
-
tot olie- en kolenkachels 30~cm
Als men zich nicht aan deze afstanden kan houden, is een warmte-isolatie-ptaat:tussen kachel en koelapparaat aan te bevelen.
Als het koelapparaat naast een ander koel- of diepvriesapparaat staat, is een afstand van 5 cm aan weerszijden aan te bevelen, zodate zich geen condens vormt aan de buitenkant van de apparaten.
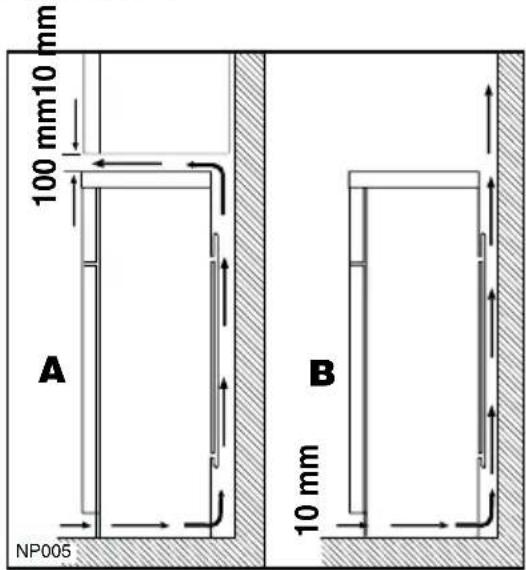
Uw apparatus heeft luckt nodig
Om veiligheidsredenen要去 de ventilatie zodanig zich als aangegeven in Fig.
Attentie: zorg ervoor dat de ventilatie openingsijdens gebruik nicht woden afgedekt.
Muur-afstandsholders
In het apparaat bevinden zich twee afstandsholders die in de bovenste hoeken aan dechterzijde geplaatst dienen te worden. Draai de schroeven los, steek de afstandsholders onder de schroefkop en draai de schroeven一周 vast.


Deurdraairichting
Het deurscharnier kan van rechts (stand waarin hij worden afgeleverd) maar links gewisseld worden als dat voor de opstelplaats nodig is.

Waarschuwing! Bij het wisselen van de deurscharnieren mag het apparaat Niet op het Lichtnet aangesloten�. Van te voren de stekker uit het stopcontact halen.
U gaat als volgt te werk:
Wij raden u aan met twee Personen het deurscharnier om te zetten. De tweede person kan dan de deuren van het apparaat stevig vasthouden.
-
Deuren openen, middelste scharnier (H) losschroeven en uitnemen door het geleidelijk aan van de koelkast weg te trekken, verwijl u det twee deuren iets schuin houdt. Kunststof pin onder het scharnier verwijderen.
-
Deur van de vriesruimte losnemen door hem ie'saar beneden te trekken.
-
Deur van de koelruimte losnemen door hem iets maar boven te trekken.
-
Bovenste kunststof pen van de deur van de vriesruimte verwijderen en op de tegenoverliggende kant wee aanbrengen.
-
Bovenste kunststof pen van de deur van de koelruimte verwijderen en op de gegenoverliggende kant wee aanbrengen.
-
Bovenste scharnierpen (G) uittraaien en op de gegenoverliggende kant waar indraaien.
-
M.b.v. gereedschap het afdekkapje (e) verwijderen, onderste scharnierpen (F) uitdraaien en op de tegenoverliggende kant wee indraaien.
-
Afdekkapje (e) op de gegenoverlig-gende kant wee aanbrengen.
-
Middelste scharnierpen in de opening links op de deur van de koelruimte aanbrengen.



-
Deur van de koelruimte op de onderste scharnierpen (f) aanbren-gen.
-
Deur van de vriesruimte op de bovenste scharnierpen aanbrengen, de deuren iets schuin houden en de middelste scharnierpen in de opening links op de deur van de vriesruimte aanbrengen.
-
Deuren openen, middelste scharnier op de linkerkant met twee schroeven bevestigen. Vergeet nicht de kunststof pin onder het middelste scharnier (H) teplaatsen.

-
Controlleren of de bovenkant van de deuren parallel loopt met het bovenblad.
-
Apparaat waar op z'n plek zetten, waterpas zetten en de stekker in het stopcontact steken.
-De handgreep losschroeven. Aan de andere kant van de deur bevestigen nadat u de dopjes met een priem doorgeprikt heeft. De vrijgekomen gaatjes afluien met de bijgeleverde dopjes; deze vindt u in het zakje van de documentationatie.
U kunt het deurscharnier ook gegen betaling door een vakman lately omzetten. Neem dan contact op met once service-afdeling.
Belangrijk
Na het omkeren van de deurdraairichting moet u controlleden of het deurrubber rondon goed op de sponning sluit. In een koud vertrek (in de winter) kan het gebeuren dat dat Niet het geval is. Na enkele dagen za het rubber zichECHTER aangepast hebben. Wilt u dat bespoedigen, dan kunt u het rubber warm maken met een fohn.
Elektrische aansluiting
Voor de elektrische aansluiting is een volgens de voorschriften geinstalleerde beschemcontactdoos vereist.
De contactdoos要去 zodanig worden geinstalleerd, dat de steker.altijd uit de contactdoos kan worden getrokken.
De elektrische zekering dient minstens 10 Ampère te zich.
Indien het stopcontact bij een ingebouwd apparaat Nieteer toegan-kelijk is, dient een maatregel in de elektrische installmenter voor te zorgen dat het apparaat van de stroom kan worden afgesloten (bijv.zekering,beveiligingsschakelaar, aardlekschakelaar of dergelijke met een contactopeningsbreedte van minimaal 3mm
- Voor ingebruikneming op het merk- en type-aanduidingsplaatje van het apparaat controleren of de netspanning en stroomsoort over-eenkomen met de waarden van het Lichtnet op de plaats waar het apparaat komt te staan.
Bijv.: AC 220 ... 240 V 50 Hz of
220 ... 240 V~ 50 Hz
(d.w.z. 220 tot 240 Volt wisselstroom, 50 Hertz)
Het typeplaatje bevindt zich links aan de binnenkant van het apparatus.
Voor ingebruikname
- Het interieur van het apparaat en alle accessoires schoonmaken voor het eerste gebruik (zie Hoofdstuk "Reiniging en Onderhoud").
In gebruik nemen en temperatuurregeling
- U steekt de steker van de koelkast in een contactdoos met randaarde. Als u de koelkastdeur opent, worden de binnenverlichting ingeschakeld. De draaiknop voor de temperatuukeuze befindt zich rechts in de koelruimte.
Stand "0" betekent:uit.
Stand "1" betekent: hoogste binnentemperatuur, warmste instelling.
Stand "6" betekent: laagste binnentemperatuur, koudste instelling.
Bij het instellen van de juiste stand dient u er rekening mee te houden dat de temperatuur in het apparaat afhankelijk is van:
-
de kamertemperatuur;
-
de frequently waarmee de deuren geopend worden;
-
de hoeveelheid levensmiddelen in de kast;
- deplaats van het apparatus.
Als verse levensmiddelen snel要去en worden ingevroren,kest u stand ^ 己 6' kiezen. Let u erop,dat de temperatuur in de koelruimte Niet beneden 0^ komt en zet de temperatuurregelaar tijdig op stand ^ 己 3 ^ of ^ 己 4 ^ terug.
Belangrijk!
Hoge omgevingstemperatuur (bijv. op hare zomerdagen) en koude instelling van de temperatuurregelaar (stand "5" tot "6"){kunnen er voor zorgen dat de compressor continu werkt.
Zet in dat geval de temperatuurregelaar op een warmere stand (stand "3" tot "4"). Bij dezeinstelling worden de compressor geregeld en begint het ontdooien wee automatisch.
Interieur
Legvlakken
Naargelang het model is het apparaat voorzien van glas legvlakken.
Het legvlak van glas boven de groente- en fruitbakken要去 algid op die plaats blijven liggen, opdat groente en fruit langer vers blijven.
De overige legvlakken zijn in hoogte verstelbaar:

Daartoe de legvlak zover maar voren trekken tot hij�<|im_start|> boven of onderen bewogen kan worden en eruit gehaald kan worden.
Om de legvlakken op een andere hoogte te zetten in omgekeerde volgorde te werk gaan.
Variabele binnendeur
Naargelang de behoefte kuren de deurvakbodems er maar boven uitgenomen worden en op andereplaatsen gezet worden.
Luchtcirculatie
De binnenruimte van de koelkast is voorzien van een speciale D.A.C. (Dynamic Air Cooling) ventilator, die door middel van een schakelaar (Fig. 1) worden ingeschakeld. Wanner het groene lampje brandt, betekent dit dat de ventilator loopt. Aangeraden worden de (D.A.C.) ventilator te gebruiken, wanner de omgevingstemperatuur de 25^ overschrijdt. Denk eraan dat de draaiknop van de thermostat van d

ijskast zich binnenin de sector (fig. 2) dient te bevinden.

Deze inrichting staat een snelle koeling van de levensmiddelen toe en een betere gelijkvormigkeit van de temperatuur binnenin de koelkast.
Flessenrek
Plaats flessen met de hals waar voren in hetrek.
Belangrijk: leg alleen
ongeopende flessen horizontaal neer.
Het flessenrek kan schuin gezet worden om geopende flessen te bewaren. Trek dan het rek maar voren tot het schuin maar boven gezet kan worden. Zet dan de voorste steun hoger vast.


Koelen van levensmiddelen
Voor een optimaal gebruik van de koelruimte adviseren wij u de volgende eenvoudige regels in acht te nemen:
- Plaats geen warme of dampende spijzen of dranken in de koelruimte;
- dek vooral sterk geurend voedsel af of verpak het;
- plaats de levensmiddelen zo, dat de lustcht vrij eromheen kan circuleren.
Enkele belangrijke tips:
Vlees (alle soorten): worden in plastic zakjes op de glazenplaat boven de groentelade geplaatst.
Bewaar vlees nicht longer dan een of twee davon.
Gekookt voedsel, koude schotels enz.: können, goed afgedekt, op elk rooster geplaatst worden.
Fruit en groente: worden schoongemaakt in de groentelade(n) gelegd.
Boter en kaas: worden, omblootstelling aan de lucht te voorkomen, in speciale koeldozen bewaard of in plastic- of aluminiumfolie verpakt.
Flessen melk: worden, goed gesloten, in het flessenrek geplaatst.
- Voor het invriezen van levensmiddelen dient de temperatuur in de vriesruimte -18^ of lager teijken.
- Let op het op het typeplaatje aangegeven vriesvermogen. Het vries-vermogen is de maximale hoeveelheid verse waren die binnen 24aar ingevroren+kennen worden. Als er gedurende meerere dames aanther elkaar ingevroren wordt,neem dan slechts 2 / 3 tot 3 / 4 van de hoeveelheid aangegeven op het typeplaatje.De kwaliteit is better,als de levensmiddelen snel tot in de Kern bevriezen.
- Warme levensmiddelen voor het invriezen lately afkoelen. De warmte leidt tot verhoogde ijsvorming en verhoegt het energieverbruik.
- Bij het bewaren van kantenklare diepvriesproducten dient u zich beslilst aan de door de fabrikant opgegeven bewaartijd te houden.
- Eenmaal ontdooide levensmiddelen[zonder verdere verwerking (bereiden tot panklare gerechten) in geen geval een tweede keer invriezen.
-
Containers met brandbare gassen of vloeistoffen können lek raken door de inwerking van koude. Explosiegevaar! Leg geen containers met brandbare stoffen zoals bijv. spraybussen, aanstekers, navullingen van aanstekers etc. in het vriesapparaat.
-
Flessen enblinkken mogen nicht in de vriesruimte. Ze können springen als de inhoud bevriest - bij koolzuurhoudende inhoud zichs exploderen! Leg noit limonades, sappen, bier, wijn, champagne etc. in de vriesruimte. Uitzondering: sterke drank met een zeer hoog alcoholpercentage kan in de vriesruimte gelegd worden.
- Alle levensmiddelen voor het invriezen luchtdicht verpakken, zodat ze Niet uitdrogen, de SMAK Niet verloren gaat en de SMAK Niet op andere diepvriesproducten overgebracht worden.
- Daardoor heeft u een beter overzicht, worden het lang openen van de deur voorkomen en worden stroom bespaard.
- Niet-bevroren articiken mogen nicht in aanraking komen met reeds bevroren waren odomat anders de bevroren articiken konnen ontdooijen.
Voorzichtig! Diepvriesartikelen nicht met natte handen aanraken. De handen können.daaraan vast vriezen.
- Plaats de in te vriezen levensmiddelen op het rek in dedipevriesvak
Het make van ijsblokjes
- Usbakje voor 3/4 met koud water vullen, in de vriesruimteplaatsen en lately bevriezen.
- Om de ijsblokjes los te makeh het ijsbakje omdraaien of kort onder stromend water houden.
Attentie! Een eventueel vastgevroren ijsbakje in geen geval met spitse of scherpe voorwerpen losmaken.
Diepvrieskalender
- De symbolen gehen de diverse soorten diep-vriesproducten aan.
- De getallen gehen voor iedere soort diepvriesproduct de opslagtijd in maanden aan. Of de hoogste of de laagste waarde van de aangegeven opslagtijd geldt, hangt af van de kwaliteit van de levensmiddelen en de behandeling voorafgaand aan het invriezen. Voor levensmiddelen met een hoog vetgehalte geldt altiid de laagste waarde.

Ontdooing van het toestel
Het ontdooien van de koelruimte
Het ontdooien van de koelkast heeft automatisch plaats. Het dooiwater wordt via een afvoerkanaaltje opgevangen in een bakje dat zich aan dechterkant bevindt. Hier verdampt het water.
Wij raden u aan het gaatje in het afvoerkanaal regelmatig schoon te makes. Gebruik voor het doorprikken het staafje dat zich in het gaatje bevindt.

Het ontdooien van de vriesruimte
In het vriesvak dient u城县 de rijp te verwijderen, wanner deze een laag van circa 4mm vormt. Gebruik hiervoor het plastic spatel. Wanner zich een dikke laag ijs gezvormd heeft, dient u het gehele apparaat te ontdooien.
Ga als volgt te werk:
- draai de thermostaaaknop op "0" of trek de steker uit het stopcontact;
- omwikkel de levensmiddelen met meertere kranten;
- LAST DEUR OPENSTAAN
- droog na het ontdooien het vriesvak zorqvuldig;
- draai de thermostaatknop in de gewenste stand of steek de steker wee in het stopcontact. Na twee of drie uur kunt u de diepvriesprodukten weer terugplaatsen.

Belangrijk
Gebruik voor het verwijderen van de rijp nooit metalen voorwerpen; u zou uw koelkast konnen beschadigen.
Geen voorwerpen of methodes gebruiken om het ontdooiprocesse te versnellen die Niet door de fabrikant zich aangegeven.
Temperatuurstijging van diepvriesproducten kan hun houdbaarheids-duur verkorten.
Apparaat uitzetten
Als het apparaat gedurende langereijd Niet gebruikt worden:
- Levensmiddelenuit koelruimte en vriesvak nemen.
- Apparaat uitzetten, daartoe de temperatuurregelaar op stand "0" draaien.
- Stekker uit het stopcontact halen of zekering uitschakelen, er resp. uithalen.
- Diepvriesruimte ontdooien en grondig reinigen (zie hoofdstuk "Reini-ging en onderhoud").
- Deuren daarna open lien om geurvorming te voorkomen.
Reiniging en onderhoud

Om hygienische redenen dient het apparaat aan de binnenkant met toebehoren geregeld gereinigd te worden.
Waarschuwing!
- Het apparaat magijdalen het schoonmaken Niet op het electrikiteits-net aangesloten�n. Gevaar voor schokken! Zet voor het schoonmaken het apparaat uit en trek de stekker uit het stopcontact of schakel c.q. draai de zekering er uit.
- Het apparaat nooit met stoomreinigingsapparaten schoonmaken. Er kan vocht in de elektrische onderdelen komen. Gevaar voor schokken! Hete damp kan kunstoffen onderdelen beschadigen.
- Het apparaat dient droog te zich voordat het werk in gebruik genomen worden.
Let op!
- Etherische oliën en organische oplosmiddelen können kunststof onderden aantasten, bijv.
- Sap van citroen- of sinaasappelschillen;
-boterzur; - schoonmaakmiddelen die azijnzuren bevatten.
Dergelijke substanties nicht in contact brengen met apparaatonderdelen.
-
Geen schurende schoonmaakmiddelen gebruiken.
-
Koel- en diepvriesartikelen er uit halen. Diepvriesartikelen in meerere lagen kranten verpakken. Alles afgedekt op een koele plaats leggen.
- Vriesvak voor het schoonmaken ontdooien (zie hoofdstuk "Ontdooien").
- Apparaat uitzetten en de stekker uit het stopcontact halen of de zeke-ring uitschakelen c.q. er uitdraaien.
- Apparaat en interieur met een doek en lauwwarm water schoonmaken. Eventueel een beetje normalaafwasmiddel gebruiken.
- Daarna met schoon water afnemen en droogmaken.

Stof op de condensor verhoogt het energieverbruik. Daarom eenmaal perJAar de condensor aan de awhilekant van het apparaat met een zichte borstel of met de stofzuiger voorzichtig schoonmaken.
- Het dooiwater-afvoergat aan dechterwand van de koelruimte controle- ren. Een verstopt dooiwater-afvoergat met behulp van het groene stopje dat met het toestel is meegeleverd schoonmaken.
- Als alles droog is, de levens-middelen er wee in doen en het apparaat wee in bedrijf nemen.

Tips om energie te besparen
- Het apparaat Niet in de buurt van kachels, verwarmingselementen of andere warmtebronnen plaatsen. Bij een hoge omgevingstemperatuur werkdt de compressor vaker en langer.
- Zorgen voor voldoende be- en ontluchting aan de onderkant van het apparaat. Ventilatieopeningen nooit afdekken.
- Geen warme spijzen in het apparaat zetten. Warme spijzen eerst lately afkoelen.
- Deur slechts zo lang open latent als nodig is.
- De temperatuur nicht lager dan nodig instellen.
Diepvriesartikelen voor het ontdooien in de koelruimte leggen. De koude in de diepvriesartikelen worden zo voor koeling van de koelruimte gebruikt. - Houd de warmte afgevende verdamper, het metalen rooster aan de achterzijde van het toestel, schoon.
Wat te doe n als …
Hulp bij storingen
Het kan bij een storing omkleine defecten gaan die zelf u aan de hand van de volgende aanwijzingen kunt oplossen. Voer zich geen verdere werkzaamhedenuit als de volgende informatie in concrete geallen nicht verder helpt.

Waarschuwing! Reparaties aan het koelapparaat mogen alleen door geschoold personeel uitgevoerd worden. Door ondeskundige reparaties kuren groe bevaren ontstaan voor de gebruiker. Wend u bij reparatie tot once klantendienst.
| Storing Mogelijk oorzaken Verhelpen | ||
| Apparaat werkt nicht. | Apparaat is nicht aangezet. Apparaat aanzetten. | |
| Stekker zit nicht in het stopcontact of zit los. | ||
| Zekering is los of kapot. | ||
| Stopcontact is kapot. | ||
| Storing Mogelijk oorzaken Verhelpen | ||
| Apparaat koelt te sterk. | Temperatuur is te laag inge-steld. | Temperatuurregelaar tij-delijk op een hogere stand zetten. |
| De levensmiddelen zijn te warm. | Temperatuur is Niet juist inge-steld. | Zie hoofdstuk "Ingebruikname". |
| Deur heeft te lang openge-staan. | Deur slechts zo lang open latent als nodig is. | |
| In de LASTe 24 eerij+zijn groete hoeveelheden warme leven-smiddelen opgeslagen. | Temperatuurregelaar op een koudere stand zetten. | |
| Het apparaat staat naast een warmtebron. | Zie hoofdstuk "Opstelplaats". | |
| Binnenverlichting werkst Niet. | Lamp is kapot. | Zie hoofdstuk "Lamp verwisse-len". |
| Sterke rijpvorming in het apparaat, eventueel ook aan de deurafdichting. | Deurafdichting islek (even-tueel na het verwisselen van de deuraanslag). | Op de ondichteplaaten de deurafdichting voorzichtig met een fohn®verwarmen (niet heter dan ca. 50 °C). Tegelijk-tijd de verwarmde deurafdich-ing met de hand zo in vorm trekken dat hij waar helemaal sluit. |
| Ongewone geluiden. | Apparaat staat Nietrecht. | Stelvoetjes bijstellen. |
| Apparaat komt gegen de muur of tegen andere voorwerpen aan. | Apparaatiets wegrekken. | |
| Een onderdeel, bijv. een leiding, aan dechterkant van het apparaat komt gegen een ander onderdeel van het appa-raat aan of tegen de muur. | Dit onderdeel voorzichtig wed-gbuigen. | |
| Na het wijzigien van de tempe-ratuurinstelling start de comprsor nicht direct. | Dit is normaal, het betreft geen storing. | De compressor start na enige tijd automatisch. |
| Water op de bodem van de koelruimte of op de leg-vlakken. | Ontdooiwaterafvoer is ver-stopt. | Zie hoofdstuk "Reinigung en onderhoud". |
Lamp verwisselen

Waarschuwing! Gevaar voor elektrische schok! Voor het verwisselen van de lamp het apparaat uitzetten en de stekkeruit het stopcontact trekken of de zekering uitschakelen c.q. eruit draaien.
Lampgegevens: 220-240 V, max. 15 W
- Om het apparaat uit te zetten de temperatuurregelaar op stand "0" draaien.
- Stekker uit het stopcontact trekken.
- Voor het verwisselen van de lamp de schroef die de afdekking van het lampje bevestigt, eruit draaien.
- Op de afdekking van het lampje drukken en deze weiteruit lately glijden.
- Defecte lamp verwisselen.
- De afdekking wee monteren en de bevestigingschroef aandraaien.
- De koelkast aanzetten.

Doel, normen, richtlijnen
Het koelapparaat is voor huishoudelijk gebruik bestemd en is met in-acht-neming van de voor deze apparaten geldende normen gemaakt. Bij de fabricage zijn special die maatregelen genomen die vereist zich volgens de Duitse wet op de verilgheid van toestellen (GSG), volgens de Duitse voor-schriften ter voorkoming van ongevallen bij koude-installaties (VBG 20) en volgens de bepalingen van de vereniging van Duitse elektotechnici (VDE). De koudecirculatie is op dichthid getest.

Dit apparaat voldoet aan de volgende EG-richtlijnen:
- 73/23/EWG van 19.2.1973 - Laagspanningsrichtlijn0
- 89/336/EWG van 3.5.1989
(met inbegrip van Wijzigingsrichtlijn 92/31/EWG) - EMC-richtlijn
Chere Cliente, Cher Client
Copyright by AEG Wijzigingen voorbehonden
Sous reserve de modifications
SimpelGids