GCR2254X - Fridge Scancool - Free user manual and instructions
Find the device manual for free GCR2254X Scancool in PDF.
Download the instructions for your Fridge in PDF format for free! Find your manual GCR2254X - Scancool and take your electronic device back in hand. On this page are published all the documents necessary for the use of your device. GCR2254X by Scancool.
USER MANUAL GCR2254X Scancool
Elektrisk og elektronisk udstyr (EEE)并不代表 the quality of the work. The work is based on a combination of the skills of the individual and the skills of the professional.
SUOMI (JAAHDYETTAVT TAULUKOT) 74
SVENSKA (KYLDISKAR) 83
DANSK (KOLE/FRYSEBORDE) 92
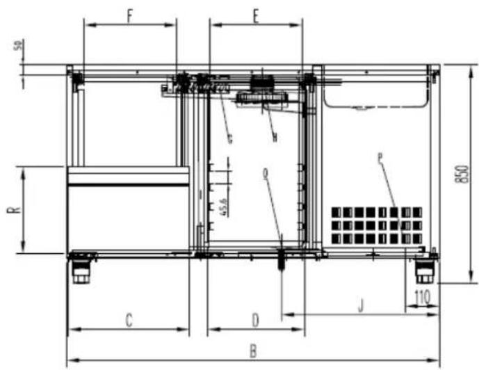
TP (Cooler)/ TN (Freezer)

Fig. 1.


| P | S | O | G | H |
| Toma de corrente | Fregadero | Desagüe | Evaporador | Ventilador |
| Alimentation | Évier | Évacuation | Évaporateur | Ventilateur |
| Plug | Sink | Drain | Evaporator | Fan |
| Stromquelle | Spülbecken | Abfluss | Verdampfer | Gebäse |
| Presa elettrica | Lavandino | Scarico | Evaporatore | Ventilatore |
| Wtyczka | Zlew | Odprowadzanie wody | Skraplacz | Wentylator |
| Stekker | Bak | Aftappen | Verdamper | Ventilator |
| Sähköllitäntä | Pesuallas | Poistoaukko | Lauhutin | Tuuletin |
| Kontakt | Handfat | Avlopp | Avdunstare | Flätt |
| Prop | Draen | Afløb | Fordamper | Blæser |
| Model | A(mm) | B(mm) | C(mm) | D(mm) | E(mm) | E1\( (mm)^1 \) | F(mm) | J(mm) | L(mm) | M(mm) | R(mm) |
| GCR1352X | 700 | 1342 | 435 | 335 | 325 | - | 336 | 590 | 385 | 597 | 311 |
| GCF1352X | |||||||||||
| GCR1803X | 1792 | ||||||||||
| GCF1803X | |||||||||||
| GCR2254X | 2242 |
Dimensiones differentes en las mesas remotas
Dimensions différentes pour les tables séparées
Different dimensions in remote tables
Verschiedene Abmessungen für Ferntische
Dimensioni differenti nei tavoli remoti
Rózne wymiary stolów bez aggregatu
Verschillende dimensies van externe tafels
Eri ulottuvuudet kauko jäkaapissa
Olika dimensioner i avsides bord
Forskellige dimensioner i fjertabeller

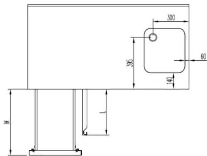
Fig. 2.
Detalle de la encimera
Granito
Details de la surface en granit
Detail of the granit top
Einzelheit der Granit-Arbeitsplatte
Dettaglio del ripiano in Granito
Szcęgóły blatu granitowego
Detail van de granieten bovenblad
Granittitason yksityiskohta
Detalj pá granitskivan
Detalje med granittop
Fig.2.
| Model | A (mm) | B (mm) | C (mm) |
| GCR1352X/GCF1352X | 1340 | 700 | 120 |
| GCR1803X/GCF1803X | 1790 | ||
| GCR2254X | 2244 |
TPB (Under Counter)
Fig. 3.
600 mm high refrigerated counters
No裱 up. No裱 up. No裱 up. No裱 up. No裱 up. No裱 up. No裱 up. No裱 up. No裱 up. No裱 up. No裱 up. No裱 up. No裱 up. No裱 up. No裱 up. No裱 up. No裱 up. No裱 up. No裱 up. No裱 up. No裱 up. No裱 up. No裱 up. No裱 up. No裱 up. No裱 up.
7. RECICLAJE DEL PRODUCTO

7. RECYCLAGE DU PRODUIT

- INDEX 29
- GENERAL INFORMATION AND WARNINGS 30
3.PRODUCT DETAILS 31
3.1 General characteristics 31
- USE AND MAINTENANCE INSTRUCTIONS 32
4.1 Removal of packaging 32
4.2 Positioning and levelling 32
4.3 Cleaning 32
4.4 Electrical connection 32
4.5 Drainage connection 33
4.6 Remote units 33
4.7 Recycling 34
- USE AND MAINTENANCE INSTRUCTIONS 35
5.1 Operation 35
5.1.1 Control panel symbols 35
5.1.2 Switching on the machine 35
5.1.3 Performance of the machine 35
5.1.4 Switch off the machine 36
5.2 Useful tips 36
5.2.1 Maintenance 36
5.2.2 Prolonged non use 36
- FAULTS, ALARMS AND BREAKDOWNS 37
- RECYCLING THE PRODUCT 37
2. GENERAL INFORMATION AND WARNINGS
This manual has been created to help you understand the operation, installation and maintenance of the machine. It contains all the necessary information and warnings to ensure that the appliance is installed and used correctly, together with information about the characteristics and possibilities offered, so that you may enjoy your machine to the full.

BEFORE STARTING THE APPLIANCE, PLEASE READ THE INSTRUCTIONS CONTAINED IN THIS MANUAL CAREFULLY.
The manual should be kept safely to hand for future reference.
If the machine is sold or transferred, please pass the manual to the new user.

THIS APPLIANCE IS EXCLUSIVELY FOR PROFESSIONAL USE, AND SHOULD ONLY BE USED BY QUALIFIED PERSONNEL.
- The positioning and installation, and all repairs or modifications, should always be carried out by an AUTHORISED TECHNICIAN, in accordance with the applicable legislation of the country. The manufacturer does not accept liability if the machine is incorrectly installed.
- The installation, incorrect adjustment, inappropriate maintenance or use of the appliance may cause material damages and injuries.

If your machine breaks down, please call the Technical Service Centre.
- Unqualified or unauthorised personnel must NOT try to repair the machine
Use of spare parts other than original parts will cancel the guarantee.
- During all maintenance operations, the refrigerator must be disconnected from the main power supply at the mains power switch.
- Abrasive or corrosive products, acids, solvents and chlorine-based detergents must NOT be used to clean the appliance, as this may damage the components.

FAILURE TO COMPLY WITH THESE INSTRUCTIONS OR THE INCORRECT USE OF THE APPLIANCE SHALL RELIEVE THE MANUFACTURER OF ANY OBLIGATIONS REGARDING THE GUARANTEE OR POSSIBLE CLAIMS.
3.PRODUCT DETAILS
All the appliances have a specification plate which identifies it and indicates its technical characteristics; it is located on one side of the machine. Don't remove the specifications plate from the unit.
Brief introduction to the plate sticked to the machine. In remote tables the coolant, load, or current fields are not filled in, as the installation is not known.

| NUMBER | DESCRIPTION |
| 1 | MANUFACTURER |
| 2 | MODEL |
| 3 | SERIAL NUMBER |
| 4 | VOLTAGE |
| 5 | FREQUENCY |
| 6 | CURRENT |
| 7 | REFRIGERATION POWER (W) |
| 8 | CLIMATIC CLASS (N=4) |
| 9 | WORKING TEMPERATURE |
| 10 | GAS TYPE |
| 11 | GAS (gr) |
| 12 | NORMATIVE |
Note: This plate is an example; reality might differ slightly from it.
These details should be given when the technical service is called.
3.1 General characteristics
Depending on the temperature that machine performs, it can be classified into the following families:
| TP (TP, TPB) /TS | R-600a (HC) | CHILLER (+ 8 a -2°C.) | Machines to keep fresh or previously cooked food for short periods. Also used to chill drinks |
| TN | R-290 (HC) | FREEZER (-18 a -22°C.) | Machines to keep food frozen for long periods. |
The machine has been tested climate class 4 and it is dessigned to workbelow following levels.
| Environmental conditions | Limits |
| Dry bulb temperature (°C) | +38°C |
| Condensing temperature | +54°C |
| Relative Humidity (%) | 60% |
Check Figure 1 to 5 to know the dimension of the machine and table 1 for the general characteristics.

The positioning and installation, and all repairs or modifications, should always be carried out by an AUTHORISED TECHNICIAN, in accordance with the applicable legislation of the country
The installation, incorrect adjustment, inappropriate maintenance or use of the appliance may cause material damages and injuries.
4.1 Removal of packaging
Remove packaging from the machine and check if any damage during transportation. If any damage is observed, immediately notify the supplier and the transport company. In the event of doubt, do not use the machine until the problem has been assessed.

Packaging (plastic, expanded polyurethane, staples, etc...) must not be left in the reach of children, they are a potential hazard.
The machine should be moved using a fork-lift truck or similar to avoid damage to the structure. Transport the machine to the installation location and then remove packaging.
All the packaging can be recycled. Dispose of packaging correctly.
4.2 Positioning and levelling
Make sure the place to store the machine is free and clean, avoiding the fan absorb the dust nearby which might block the condenser reducing the efficiency of the machine.
Remove the palet carefully, avoiding any scratch to the machine. Level the machine by using the adjustable feet. Once the machine is levelled, pill the protective film off by using a no sharp knife to avoid scratches in the stainless steelel.

A:BODY OF THE FEET
B: THREAD:
Rotate clock wise to to lower down the machine.
Rotate counter-clock wise to elevate the machine.
The table, in its final position, must be separated from the wall by 50~mm in its rear position, 30 in the side and 500 in the roof
If the machine is provided with castors, make sure the floor is totally flat. In the commissioning make sure there is no any heat source nearby. For an optimum performance of the equipment, it is important that all air intakes, both in the fan located inside the table and in the condenser, are not clogged. Do not install the table outdoors.
Do not introduce any element from the fan protector or in the refrigeration equipment area.
4.3 Cleaning
First cleaning must be carried out with water and neutral detergent. Once clean and dry, insert the accessories in the appropriate places, as you prefer.
We recommend cleaning the outside of the unit daily with a damp cloth and following the direction of the stainless steel's honing. Abrasive substances or those containing chlorine must not be used.
Rinse with clean water, avoiding direct water jets.
4.4 Electrical connection
EN
An AUTHORISED TECHNICIAN should always carry out the appliance's electrical connection.
The legal standards in force in each country regarding connection to the mains should be taken into account.

- Check that the mains voltage corresponds to that indicated on the nameplate.
- It is essential that the electrical installation where the table is going to be connected has an EARTHING SOCKET, in addition to the appropriate protection of the magnetothermalswitch and differential (we recommend 30mA ).
- The cross-section of the power cable must be suitable for the rated current of the machine.
- The plug should be Schuko type with grounding and terminals of 4.8mm (F type). It is forbidden to enlarge the plug for your safety. As optional, the equipment can be supplied with British type plugs (H type) or American type plugs (B type
If any faults are observed during the installation, the supplier should be notified immediately.

The manufacturer will not be held liable for any personal or material damage to the machine resulting from incorrect installation or failure to comply with the manufacturer's specifications.
The electric specifications of the machine are shown in the specification plate. Section 3.
There are 230V 50Hz and 115v 60 Hz versions, with the currents on the nameplate.
4.5 Drainage connection
Water drainage should be close to the equipment. Check figure 1 to 5 to see the position of the drainage.
4.6 Remote units
This section only applies for remote units. The installation should be carried out only by autorized personnel. Below some instructions are given to make the installation easier.
The machine has already passed all leakage tests, the vacuum is already done, and the programmers is already programmed to be used.
| REFRIGERATION POWER DEPENDING ON THE TABLE LENGTH (for a maximum distance of 6m) | ||
| TABLE LENGTH | FREEZER (Data CECOMAF -23.3°C) | CHILLER (Data CECOMAF -10°C) |
| TABLE 102/107 | 522 W/h | 250 W/h |
| TABLE 147/ 169 | 639 W/h | 300 W/h |
| TABLE 192/ 222 | 753 W/h | 460 W/h |
The copper pipe coming of the machine are long enough to weld, in case it is needed disassembled the side panels and follow the instructions carefully. Unfasten the screws of M4 (with top) o take them out (without top) and move the side panel as shown with the arrow.

EN
The electric installation is in the control board, unfasten the upper screw and take the bottom ones off and move the panel down. Once the the main wire is installed to do not forget to connect the grounding.
Important notes related to the pipe and electric connections (Figure 8)
- The welding should be strong with silver contribution and no tin.
- The capillary is included in the machine
- In case the distance is longer than 6 meters, a stronger refrigeration unit is recommended and an expansion valve to ensure the return of the gas to compressor.
Vacuum the refrigeration unit - Put he appropriate refrigeration gas.
- Wire the machine as per the electric diagram supplied with the machine.
4.7 Recycling
The product packaging consists of:
- A wooden pallet.
- Cardboard.
- A polypropylene band.
- Expanded polyethylene.

All the packaging used around the machine can be recycled; The correct disposal of these products will help to protect the environment. For further information regarding the recycling of these products, please refer to the relevant office of the local body. Dispos of these materials in accordance with current legislation.

BEFORE STARTING THE APPLIANCE, PLEASE READ THE INSTRUCTIONS CONTAINED IN THIS MANUAL CAREFULLY.
THE APPLIANCE IS EXCLUSIVELY FOR PROFESSIONAL USE, AND SHOULD ONLY BE USED BY QUALIFIED PERSONNEL.
5.1 Operation
The steps required to optimise the operation of your machine are shown below, with all the available options.
5.1.1 Control panel symbols
The control panel has a On / Off switch and one thermostat. In the Figure 6, you can see them in detail.
5.1.2 Switching on the machine
- Once the machine is cleaned, connect the machine to the energy supply and putt the switch ON or in I. The light of the switch will ON.
- The thermostat displays the temperature inside the counter.
- Three minutes after switching ON the machine, the led of the compressor will light on permanently, till the set point is reached. (Fig. 7.2)
- At the beginning the temperature of the displayed will be ambient one. After some time, if the doors are closed, the temperature will lower down till the set temperature.
- In freezer counters the machine is set to make defrosting two hours after the start up.
It is recommended to reach the set temperature before loading the counter.
5.1.3 Performance of the machine
This machine is dessigned for an optimum preservation of beverage and food. Therefore follow below advises:
1) In order to reach a proper performance, do not store warm products as well as beverage whose container is not correctly closed.
2) Avoid storage of chemical products, corrosive staff or drugs.
3) Protect the food and the smells with a sealed package. Store the product allowing and optimum air circulation.
4) Do not store unprotected / unpacked food to avoid rust in the device.
5) As far as possible, avoid continuous opening of the doors and above all do not leave them open.
6) Do not load the device above the marked level.

7) Momentary power interruption. If the interruption does not exceed 20 minutes, no need to take any precautions, avoid opening the doors only to the extent possible, in order to avoid loss of temperature. If the interruption lasts more than 20 minutes, check that food does not exceed the critical points, which are not altered monitor and avoid opening doors.
Maximum temperatures so that food are not deteriorated are as follows
| Type of equipment | Maximum \( T^a \)of the device |
| Chiller | + 10°C |
| Freezer | - 15°C |
8) The water of the defrost is taken back with a pipe to the evaporation container behind the condenser, where water is evaporated with the hot of the condenser.
Precautions :
EN
1) Stability is guaranteed, even with open doors, but it is forbidden to stand on them.
2) Is not recommended to load Internal grids and trays over 40kg . The load must be evenly distributed.
3) It is complete forbidden to sit or lean over the drawers.
4) In case of breakdown, it is not allowed to approach the refrigerator barefoot, wet soil or wet hands.
5.1.4 Switch off the machine
Put the switch in OFF or in O position to swith off the machine, the light will off.
5.2 Useful tips
Read the useful tips listed below carefully to allow you to get the most out of your machine.
5.2.1 Maintenance
Always clean the machine correctly to prolong the service life of the machine.
- Remove any waste from the machine at the end of each day. Before cleaning the machine, unplug the machine from the electricity supply and put the switch in OFF or O position. The counters include one drainage to help the cleaning operation, as well as the eventual output of liquids from food. During the cleaning operation it is essential to remove the drain plug and clean it, to prevent clogging by solids entrainment elements. It is intended that the liquid that may have not stagnate.
- Do not use abrasive, corrosive or acid products, chlorine-based detergents, solvents or petrol derivatives to clean the machine.
- Do not use pressurized water to clean the machine.
- Cleaning the condenser: When cleaning careful not to bend the aluminum fins condenser, since doing so would not pass the air and condense, causing serious damage to equipment and falling out of warranty repair.
- Check that the doors close perfectly.
- Take necessary precautions before entering the area of the condensing unit, the existence of high temperatures on some elements, and the risk of burns.
If you need to change the wires, do not change to a lower section one. - The inner lid of the electrical installation of the control panel is important, if you need to disassemble when you assembly back it has to be as tight, as it was.
- Call service one every two years to make the appropriate checking:
- Checking of the gaskets.
-
Checking of the component situation.
-
If the wire is damaged, it should be replaced by the manufacturer, its after sales service department or by some authorized personnel to avoid any damage to the equipment or personnel.
5.2.2 Prolonged non use
If the machine is kept out of service for a long period of time (holidays, temporary closure...), please observe the following:
Clean the equipment carefully.
- Switch off the mains power supply.
6. FAULTS, ALARMS AND BREAKDOWNS
The steps to be followed in the event of a fault or operating error are described below. The possible causes and possible solutions are listed in the following table. In the event of doubt, or if you are unable to resolve the problem, please contact the technical service.

Do not handle electrical components, as there is a risk of death as the components are live.
| FAULT | POSSIBLE CAUSE | SOLUTION |
| The machine does not work | There is no power supply. | Check whether the magneto-thermal circuit breaker has been triggered. If there is light in the switch the machine is powered. |
| Insufficient temperature | Location of the equipment | Check there is not a heat source nearby. |
| Parameters of the thermostat | Check the set temperature of the thermostat is around 0°C in refrigerators and -20 °C in freezers. Push "set" button to check it. | |
| Ambient temperaute | Check that ambient temperatura is below +32°C in freezer counters and +38 °C in refrigerators. These are devices guaranteed maximum working temperature. | |
| Food distribution inside the machine | Check that food is properly located inside the counter, without blocking the air ventilations and the time elapsed from the time the food is stored inside the counter is enough. | |
| Cleaning of the condenser | Check that the condenser is clean. Take into account that the cleaner the refrigerator is the more energy will be saved. The cleaning frequency will depend on the conditions of the location. In case the condenser is dirty call after sales service... | |
| Strange or loud noise | Incorrect levelling and bad closing of the doors. | Check the levelling and good closing of the doors. |
| Friction in the movable zones | Check there is nothing in touch with the movable elements of the refrigerator. |

NOTE: If a fault occurs and is not listed in the above table, please call the technical service. The manufacturer reserves the right to modify the technical characteristics with prior warning.
Together with this manual, it is supplied the instructions of the thermostat.
7. RECYCLING THE PRODUCT

The European Directive 2012/19/EU relating to Waste Electrical and Electronic Equipment (WEEE) states that household appliances should not be disposed of using the normal solid urban waste cycle. Exhausted appliances should be collected separately in order to optimise the cost of re-using and recycling the materials inside the machine, while preventing potential damage to the atmosphere and to public health. The crossed-out dustbin is marked on all products to remind the owner of their obligations regarding separated waste collection. For more information relating to the correct disposal of household appliances, owners should contact their local authorities or appliance dealer.
1. INHALT
- INHALT 38
- ALLGEMEINE INFORMATIONEN UND HINWEISE 39
- PROJEKTDATEN 40
- INHOUDSOPGAVE 65
- ALGEMENE INFORMATIE EN WAARSCHUWINGEN 66
3.PRODUCTBESCHRIJVING 67
3.PRODUCTBESCHRIJVING
The product packaging consists of:
Access to professional repair, such as internet webpages, addresses, contact details.
Model no: GCF1352X
Aftersales service station list:
| Address | Scandomestic A/S |
| Contact Number | 7242 5571 |
| Website | Scandomestic.dk |
| QR code | 1220474 |
| Relevant information for ordering spare parts, directly or through other channels provided by the manufacturer, importer or authorised representative; | Scandomestic A/S |
| The minimum period during which spare parts, necessary for the repair of the appliance, are available; | 8 years |
| Instruction on how to find the model information in the product database, as defined in Regulation (EU) 2019/2019 by means of a weblink that links to the model information as stored in the product database or a link to the product database and information on how to find the model identifier on the product.) | www.scandomestic.dk |
Note: The address or contact phone number of the service site is subject to change without prior notice. Please confirm whether the service station is a directly affiliated one of our company when requiring services.
DE
Lista over servicestationer ters
Access to professional repair, such as internet webpages, addresses, contact details.
Model no: GCF1803X
Aftersales service station list:
| Address | Scandomestic A/S |
| Contact Number | 7242 5571 |
| Website | Scandomestic.dk |
| QR code | 1220521 |
| Relevant information for ordering spare parts, directly or through other channels provided by the manufacturer, importer or authorised representative; | Scandomestic A/S |
| The minimum period during which spare parts, necessary for the repair of the appliance, are available; | 8 years |
| Instruction on how to find the model information in the product database, as defined in Regulation (EU) 2019/2019 by means of a weblink that links to the model information as stored in the product database or a link to the product database and information on how to find the model identifier on the product.) | www.scandomestic.dk |
Note: The address or contact phone number of the service site is subject to change without prior notice. Please confirm whether the service station is a directly affiliated one of our company when requiring services.
DE
Lista over servicestationer ters
Access to professional repair, such as internet webpages, addresses, contact details.
Model no: GCR1352X
Aftersales service station list:
| Address | Scandomestic A/S |
| Contact Number | 7242 5571 |
| Website | Scandomestic.dk |
| QR code | 1220523 |
| Relevant information for ordering spare parts, directly or through other channels provided by the manufacturer, importer or authorised representative; | Scandomestic A/S |
| The minimum period during which spare parts, necessary for the repair of the appliance, are available; | 8 years |
| Instruction on how to find the model information in the product database, as defined in Regulation (EU) 2019/2019 by means of a weblink that links to the model information as stored in the product database or a link to the product database and information on how to find the model identifier on the product.) | www.scandomestic.dk |
Note: The address or contact phone number of the service site is subject to change without prior notice. Please confirm whether the service station is a directly affiliated one of our company when requiring services.
DE
Lista over servicestationer ters
Access to professional repair, such as internet webpages, addresses, contact details.
Model no: GCR1803X
Aftersales service station list:
| Address | Scandomestic A/S |
| Contact Number | 7242 5571 |
| Website | Scandomestic.dk |
| QR code | 1220532 |
| Relevant information for ordering spare parts, directly or through other channels provided by the manufacturer, importer or authorised representative; | Scandomestic A/S |
| The minimum period during which spare parts, necessary for the repair of the appliance, are available; | 8 years |
| Instruction on how to find the model information in the product database, as defined in Regulation (EU) 2019/2019 by means of a weblink that links to the model information as stored in the product database or a link to the product database and information on how to find the model identifier on the product.) | www.scandomestic.dk |
Note: The address or contact phone number of the service site is subject to change without prior notice. Please confirm whether the service station is a directly affiliated one of our company when requiring services.
DE
Lista over servicestationer ters
Access to professional repair, such as internet webpages, addresses, contact details.
Model no: GCR2254X
Aftersales service station list:
| Address | Scandomestic A/S |
| Contact Number | 7242 5571 |
| Website | Scandomestic.dk |
| QR code | 1220538 |
| Relevant information for ordering spare parts, directly or through other channels provided by the manufacturer, importer or authorised representative; | Scandomestic A/S |
| The minimum period during which spare parts, necessary for the repair of the appliance, are available; | 8 years |
| Instruction on how to find the model information in the product database, as defined in Regulation (EU) 2019/2019 by means of a weblink that links to the model information as stored in the product database or a link to the product database and information on how to find the model identifier on the product.) | www.scandomestic.dk |
Note: The address or contact phone number of the service site is subject to change without prior notice. Please confirm whether the service station is a directly affiliated one of our company when requiring services.
DE
Lista over servicestationer ters
Access to professional repair, such as internet webpages, addresses, contact details.
Model no: GTPB1353X
Aftersales service station list:
| Address | Scandomestic A/S |
| Contact Number | 7242 5571 |
| Website | Scandomestic.dk |
| QR code | 1342786 |
| Relevant information for ordering spare parts, directly or through other channels provided by the manufacturer, importer or authorised representative; | Scandomestic A/S |
| The minimum period during which spare parts, necessary for the repair of the appliance, are available; | 8 years |
| Instruction on how to find the model information in the product database, as defined in Regulation (EU) 2019/2019 by means of a weblink that links to the model information as stored in the product database or a link to the product database and information on how to find the model identifier on the product.) | www.scandomestic.dk |
Note: The address or contact phone number of the service site is subject to change without prior notice. Please confirm whether the service station is a directly affiliated one of our company when requiring services.
DE
Lista over servicestationer ters
Access to professional repair, such as internet webpages, addresses, contact details.
Model no: GTPB1805X
Aftersales service station list:
| Address | Scandomestic A/S |
| Contact Number | 7242 5571 |
| Website | Scandomestic.dk |
| QR code | 1342789 |
| Relevant information for ordering spare parts, directly or through other channels provided by the manufacturer, importer or authorised representative; | Scandomestic A/S |
| The minimum period during which spare parts, necessary for the repair of the appliance, are available; | 8 years |
| Instruction on how to find the model information in the product database, as defined in Regulation (EU) 2019/2019 by means of a weblink that links to the model information as stored in the product database or a link to the product database and information on how to find the model identifier on the product.) | www.scandomestic.dk |
Note: The address or contact phone number of the service site is subject to change without prior notice. Please confirm whether the service station is a directly affiliated one of our company when requiring services.
DE
Lista over servicestationer ters
Access to professional repair, such as internet webpages, addresses, contact details.
Model no: GTPB2257X
Aftersales service station list:
| Address | Scandomestic A/S |
| Contact Number | 7242 5571 |
| Website | Scandomestic.dk |
| QR code | 1342790 |
| Relevant information for ordering spare parts, directly or through other channels provided by the manufacturer, importer or authorised representative; | Scandomestic A/S |
| The minimum period during which spare parts, necessary for the repair of the appliance, are available; | 8 years |
| Instruction on how to find the model information in the product database, as defined in Regulation (EU) 2019/2019 by means of a weblink that links to the model information as stored in the product database or a link to the product database and information on how to find the model identifier on the product.) | www.scandomestic.dk |
Note: The address or contact phone number of the service site is subject to change without prior notice. Please confirm whether the service station is a directly affiliated one of our company when requiring services.
DE
Lista over servicestationer ters
EU DECLARATION OF CONFORMITY
Name and address of the manufacturer or his authorise
Scandomestic A/S
Linavej 20
8600 Silkeborg
Denmark
This declaration of conformity is issued under the sole responsibility of the manufacturer (or installer):
Scandomestic A/S
Linavej 20
8600 Silkeborg
Denmark
References to the relevant harmonised standards used, or references to the specifications in relation to which conformity is declared:
EN ISO 17050-1:2004
Additional information:
The appliance is intended for professional use
Object of the declaration
(identification of product allowing traceability. It may include a colour image of sufficient clarity to enable the identification of the product)

Model number
(unique identification of the product):
GCF1352X
Product:
Storage Freezer
Brand:
Scancool
Colour:
Stainless Steel
The object of the declaration described above is in conformity with the relevant Union harmonisation legislation:
2006/42/EC, 2014/30/UE, 2004/108/EC, 89/336/EEC and its amendments 92/31/EEC and 93/68/EEC, EN 55014-1:2006 +A1:2009 +A2:2012, EN 61000-3-2: 2014, EN 61000-3-3: 2013, EN 55014-2:2015, 2014/35/UE, 2006/95/EC, 73/23/EEC and its amendment 93/68/EEC, EN 60335-2-89:2010 + A1:2016 + A2:2017, EN 60335-1:2012 + AC:2014 + A11:2014 + A12:2017 + A13:2017, EN 62233:2009,1095/2015/EC, 1094/2015/EC, ISO 22041:2020, RoHS2, 2011/65/UE, 2015/863/EU, 1907/2006/EC, REACH, ISO 9001

EU DECLARATION OF CONFORMITY
Name and address of the manufacturer or his authorise
Scandomestic A/S
Linavej 20
8600 Silkeborg
Denmark
This declaration of conformity is issued under the sole responsibility of the manufacturer (or installer):
Scandomestic A/S
Linavej 20
8600 Silkeborg
Denmark
References to the relevant harmonised standards used, or references to the specifications in relation to which conformity is declared:
EN ISO 17050-1:2004
Additional information:
The appliance is intended for professional use
Object of the declaration
(identification of product allowing traceability. It may include a colour image of sufficient clarity to enable the identification of the product)

Model number
(unique identification of the product):
GCF1803X
Product:
Storage Freezer
Brand:
Scancool
Colour:
Stainless Steel
The object of the declaration described above is in conformity with the relevant Union harmonisation legislation:
2006/42/EC, 2014/30/UE, 2004/108/EC, 89/336/EEC and its amendments 92/31/EEC and 93/68/EEC, EN 55014-1:2006 +A1:2009 +A2:2012, EN 61000-3-2: 2014, EN 61000-3-3: 2013, EN 55014-2:2015, 2014/35/UE, 2006/95/EC, 73/23/EEC and its amendment 93/68/EEC, EN 60335-2-89:2010 + A1:2016 + A2:2017, EN 60335-1:2012 + AC:2014 + A11:2014 + A12:2017 + A13:2017, EN 62233:2009,1095/2015/EC, 1094/2015/EC, ISO 22041:2020, RoHS2, 2011/65/UE, 2015/863/EU, 1907/2006/EC, REACH, ISO 9001

EU DECLARATION OF CONFORMITY
Name and address of the manufacturer or his authorise
Scandomestic A/S
Linavej 20
8600 Silkeborg
Denmark
This declaration of conformity is issued under the sole responsibility of the manufacturer (or installer):
Scandomestic A/S
Linavej 20
8600 Silkeborg
Denmark
References to the relevant harmonised standards used, or references to the specifications in relation to which conformity is declared:
EN ISO 17050-1:2004
Additional information:
The appliance is intended for professional use
Object of the declaration
(identification of product allowing traceability. It may include a colour image of sufficient clarity to enable the identification of the product)

Model number
(unique identification of the product):
GCR1352X
Product:
Counter Refrigerated
Brand:
Scancool
Colour:
Stainless Steel
The object of the declaration described above is in conformity with the relevant Union harmonisation legislation:
2006/42/EC, 2014/30/UE, 2004/108/EC, 89/336/EEC and its amendments 92/31/EEC and 93/68/EEC, EN 55014-1:2006 +A1:2009 +A2:2012, EN 61000-3-2: 2014, EN 61000-3-3: 2013, EN 55014-2:2015, 2014/35/UE, 2006/95/EC, 73/23/EEC and its amendment 93/68/EEC, EN 60335-2-89:2010 + A1:2016 + A2:2017, EN 60335-1:2012 + AC:2014 + A11:2014 + A12:2017 + A13:2017, EN 62233:2009,1095/2015/EC, 1094/2015/EC, ISO 22041:2020, RoHS2, 2011/65/UE, 2015/863/EU, 1907/2006/EC, REACH, ISO 9001

EU DECLARATION OF CONFORMITY
Name and address of the manufacturer or his authorise
Scandomestic A/S
Linavej 20
8600 Silkeborg
Denmark
This declaration of conformity is issued under the sole responsibility of the manufacturer (or installer):
Scandomestic A/S
Linavej 20
8600 Silkeborg
Denmark
References to the relevant harmonised standards used, or references to the specifications in relation to which conformity is declared:
EN ISO 17050-1:2004
Additional information:
The appliance is intended for professional use
Object of the declaration
(identification of product allowing traceability. It may include a colour image of sufficient clarity to enable the identification of the product)

Model number
(unique identification of the product):
GCR1803X
Product:
Brand:
Colour:
Counter Refrigerated
Scancool
Stainless Steel
The object of the declaration described above is in conformity with the relevant Union harmonisation legislation:
2006/42/EC, 2014/30/UE, 2004/108/EC, 89/336/EEC and its amendments 92/31/EEC and 93/68/EEC, EN 55014-1:2006 +A1:2009 +A2:2012, EN 61000-3-2: 2014, EN 61000-3-3: 2013, EN 55014-2:2015, 2014/35/UE, 2006/95/EC, 73/23/EEC and its amendment 93/68/EEC, EN 60335-2-89:2010 + A1:2016 + A2:2017, EN 60335-1:2012 + AC:2014 + A11:2014 + A12:2017 + A13:2017, EN 62233:2009,1095/2015/EC, 1094/2015/EC, ISO 22041:2020, RoHS2, 2011/65/UE, 2015/863/EU, 1907/2006/EC, REACH, ISO 9001

EU DECLARATION OF CONFORMITY
Name and address of the manufacturer or his authorise
Scandomestic A/S
Linavej 20
8600 Silkeborg
Denmark
This declaration of conformity is issued under the sole responsibility of the manufacturer (or installer):
Scandomestic A/S
Linavej 20
8600 Silkeborg
Denmark
References to the relevant harmonised standards used, or references to the specifications in relation to which conformity is declared:
EN ISO 17050-1:2004
Additional information:
The appliance is intended for professional use
Object of the declaration
(identification of product allowing traceability. It may include a colour image of sufficient clarity to enable the identification of the product)

Model number
(unique identification of the product):
GCR2254X
Product:
Brand:
Colour:
Counter Refrigerated
Scancool
Stainless Steel
The object of the declaration described above is in conformity with the relevant Union harmonisation legislation:
2006/42/EC, 2014/30/UE, 2004/108/EC, 89/336/EEC and its amendments 92/31/EEC and 93/68/EEC, EN 55014-1:2006 +A1:2009 +A2:2012, EN 61000-3-2: 2014, EN 61000-3-3: 2013, EN 55014-2:2015, 2014/35/UE, 2006/95/EC, 73/23/EEC and its amendment 93/68/EEC, EN 60335-2-89:2010 + A1:2016 + A2:2017, EN 60335-1:2012 + AC:2014 + A11:2014 + A12:2017 + A13:2017, EN 62233:2009,1095/2015/EC, 1094/2015/EC, ISO 22041:2020, RoHS2, 2011/65/UE, 2015/863/EU, 1907/2006/EC, REACH, ISO 9001

EU DECLARATION OF CONFORMITY
Name and address of the manufacturer or his authorise
Scandomestic A/S
Linavej 20
8600 Silkeborg
Denmark
This declaration of conformity is issued under the sole responsibility of the manufacturer (or installer):
Scandomestic A/S
Linavej 20
8600 Silkeborg
Denmark
References to the relevant harmonised standards used, or references to the specifications in relation to which conformity is declared:
EN ISO 17050-1:2004
Additional information:
Object of the declaration
(identification of product allowing traceability. It may include a colour image of sufficient clarity to enable the identification of the product)

Model number
(unique identification of the product):
GTPB1353X
Product:
Brand:
Colour:
Undercounter
Scancool
Stainless Steel
The object of the declaration described above is in conformity with the relevant Union harmonisation legislation:
2006/42/EC, 2014/30/UE, 2004/108/EC, 89/336/EEC and its amendments 92/31/EEC and 93/68/EEC, EN 55014-1:2006 +A1:2009 +A2:2012, EN 61000-3-2: 2014, EN 61000-3-3: 2013, EN 55014-2:2015, 2014/35/UE, 2006/95/EC, 73/23/EEC and its amendment 93/68/EEC, EN 60335-2-89:2010 + A1:2016 + A2:2017, EN 60335-1:2012 + AC:2014 + A11:2014 + A12:2017 + A13:2017, EN 62233:2009,1095/2015/EC, 1094/2015/EC, ISO 22041:2020, RoHS2, 2011/65/UE, 2015/863/EU, 1907/2006/EC, REACH, ISO 9001

EU DECLARATION OF CONFORMITY
Name and address of the manufacturer or his authorise
Scandomestic A/S
Linavej 20
8600 Silkeborg
Denmark
This declaration of conformity is issued under the sole responsibility of the manufacturer (or installer):
Scandomestic A/S
Linavej 20
8600 Silkeborg
Denmark
References to the relevant harmonised standards used, or references to the specifications in relation to which conformity is declared:
EN ISO 17050-1:2004
Additional information:
Object of the declaration
(identification of product allowing traceability. It may include a colour image of sufficient clarity to enable the identification of the product)

Model number
(unique identification of the product):
GTPB1805X
Product:
Brand:
Colour:
Undercounter
Scancool
Stainless Steel
The object of the declaration described above is in conformity with the relevant Union harmonisation legislation:
2006/42/EC, 2014/30/UE, 2004/108/EC, 89/336/EEC and its amendments 92/31/EEC and 93/68/EEC, EN 55014-1:2006 +A1:2009 +A2:2012, EN 61000-3-2: 2014, EN 61000-3-3: 2013, EN 55014-2:2015, 2014/35/UE, 2006/95/EC, 73/23/EEC and its amendment 93/68/EEC, EN 60335-2-89:2010 + A1:2016 + A2:2017, EN 60335-1:2012 + AC:2014 + A11:2014 + A12:2017 + A13:2017, EN 62233:2009,1095/2015/EC, 1094/2015/EC, ISO 22041:2020, RoHS2, 2011/65/UE, 2015/863/EU, 1907/2006/EC, REACH, ISO 9001

EU DECLARATION OF CONFORMITY
Name and address of the manufacturer or his authorise
Scandomestic A/S
Linavej 20
8600 Silkeborg
Denmark
This declaration of conformity is issued under the sole responsibility of the manufacturer (or installer):
Scandomestic A/S
Linavej 20
8600 Silkeborg
Denmark
References to the relevant harmonised standards used, or references to the specifications in relation to which conformity is declared:
EN ISO 17050-1:2004
Additional information:
Object of the declaration
(identification of product allowing traceability. It may include a colour image of sufficient clarity to enable the identification of the product)

Model number
(unique identification of the product):
GTPB2257X
Product:
Brand:
Colour:
Undercounter
Scancool
Stainless Steel
The object of the declaration described above is in conformity with the relevant Union harmonisation legislation:
2006/42/EC, 2014/30/UE, 2004/108/EC, 89/336/EEC and its amendments 92/31/EEC and 93/68/EEC, EN 55014-1:2006 +A1:2009 +A2:2012, EN 61000-3-2: 2014, EN 61000-3-3: 2013, EN 55014-2:2015, 2014/35/UE, 2006/95/EC, 73/23/EEC and its amendment 93/68/EEC, EN 60335-2-89:2010 + A1:2016 + A2:2017, EN 60335-1:2012 + AC:2014 + A11:2014 + A12:2017 + A13:2017, EN 62233:2009,1095/2015/EC, 1094/2015/EC, ISO 22041:2020, RoHS2, 2011/65/UE, 2015/863/EU, 1907/2006/EC, REACH, ISO 9001
EasyManual