STILO SX - ручка FABER - Бесплатное руководство пользователя
Найдите руководство к устройству бесплатно STILO SX FABER в формате PDF.
Вопросы пользователей о STILO SX FABER
0 вопрос об этом устройстве. Ответьте на те, что знаете, или задайте свой.
Задать новый вопрос об этом устройстве
Скачайте инструкцию для вашего ручка в формате PDF бесплатно! Найдите своё руководство STILO SX - FABER и возьмите своё электронное устройство обратно в руки. На этой странице опубликованы все документы, необходимые для использования вашего устройства. STILO SX бренда FABER.
РУКОВОДСТВО ПОЛЬЗОВАТЕЛЯ STILO SX FABER
| Овозн.К-Во | Части Истелемia |
| 1 | Корпс Витяжkin B KOMПЛЕКТС ручам уразалени, освеценьем, вентлиаторМ, Фимьтами |
| 2 | Телес_KОпунec sixthдымовая труба, состotingуан3: |
| 2.1 | Верх新聞 дымовий трубы |
| 2.2 | Ножнеддымовий трубы |
| 8 | Рergлuyер第六peшетка Вьлуха bo3dya x 0 125 mm |
| 9 | Перекондный Фразец 0 150-120 MM |
| Овозн.К-Во | Установочьke kompoнentы |
| 7.2.1 | Крөнөнгье скобы Берх新聞 дымовий трубы |
| 11 | Вкадышin |
| 12a | ВИNTы 4,2 x 44,4 |
| 12c | ВИNTы 2,9 x 6,5 |
| 12e | ВИNTы 2,9 x 9,5 |
| 13 | Шайба |
1 RykoBoDCTBO no 3KcIpyatauun







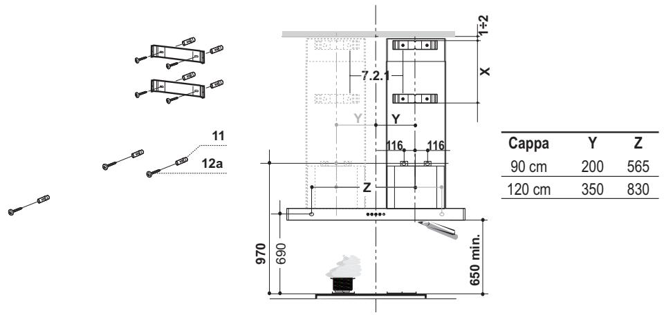
OtbepcTnB CteHe N KpePnIeHne cKo6

- Bo3bMHTe B KaueCTBe TOUKN OTCueta IeHTp IIINbI h IpoBcJIte Ha cTHe BePTHKaJIbHyIO JINHHIO CIIpaBA HJIN CJIeBA OT IeHTpa, B 3aBHCHMOCTH OT MOJIIN BbITJIKK, Ha pacCTOHHN 200 MM (JIJRA BbITJIKK N BICOTOI 90 MM) H Na pacCTOHHN 350 MM (JIJRA BbITJIKK N 120 MM) OT BEPxHErO IIpeJa I IO OTMeTKH N HA BbICOTE 650 MM OT IIINbI. 3Ta JINHHN CJIyKHT IJRA BbIPaBHHBHncko6 II BepTHKaJIH.
- IIpHIOKHTe, KaK IIOKa3aHo, cKo6y 7.2.1 K cTeHe Ha pacCTOJHHN 1 - 2 MM OT IIOToJIka HJIH BepXHeI ppeJa H bIbOPBHyIte ee IeHTp (IIa3bl) IIO BepTHKaJIbHOJ JHHHH.
OTMeTbTeIeHTpbIOBtBepCTHcKo6bl. - IIpnIIOxHHe, KaK IIOka3aHo, cKo6y 7.2.1 Ha paCCToaHHN X MM IIOI IepBoi cKo6oi (X = BbICota IIpHIIaeraMoB Y KOMIIIEKeT BePxAHe YacTH IbIMOXOJa) N BbIPOBHnTe ee IeHTp (Pi3bI) IIO yCTaHOBOUHOB BePTKaJIbHOJ JINHH.
OTMeTbTeIeHTpbIOBtBepCTHcKo6bl. - O603NaUbTe, KAK IOKa3aHO Ha pncyHke, KOHTpOJIbHyIO TOky Ha paCCToHHN 116 MM ot BePTHKaJIbHOJ JHHHH N Ha paCCToHHN 970 MM HAI IIJIHTOn.
-Повторе 3у ту операцию с ротоньюложенho CTOPOHbVEpTHKaJIbHOJINHHN. - 0603NaUbTe, KaK IIIOKA3aHO Ha pncyHke, KOHTPOJIbHyTOUky Ha paCCTOHH Z MM (Z = cm. Ta6JIHuy) OT BepTnKaJIbHOJ IINHH H Ha paCCTOHH 690 MM HAД ПЛHToI.
-ПорocверлінтЕТВерстгЯ8MMВОБЗHAчЕHHьIXTOUКАX.
BcTabbTe BOTBepCTHn BKJaIbIIIN 11.
3aKpeIITe cKO6bI IIpHJIaIgEMbIMB BHHTaMH 12a (4,2 x 44,4).
BbHTte 2 pHJIaeraMbIX BnHTa 12a (4,2 x 44,4) B OTBepCTHa JI KpeJIeHHKoPpUca BbITJKKN H OCTaBte IIPOCTpaHCTBO 5-6 MM MeKJy CTehO Hi TIOBJKAMn BnHTOB.
YctaHOBka KopnyCa BbITJxKn
- IIpeJxIe IIOBecHTb KOpIyuc BbITJgKKn, 3aTaNHTe 2 BnHTa Vr B ToUkax HABeCKN KOpIyca IpH6opa.
-ПовсьтЕ КОПИЦВБИТЯЖКИ HA BИNTBI 12a. - OkOHuaTeJIbHO 3aTHeHTe OIIOpHbIe BnHTbI 12a.
BHTAMN Vr BbIPOBHnTe IIOJIOKeHHe KOpIyCa BbITaKn. - OkohyateJIbHO 3aΦHKChpyIte IIOJOKeHne BbITJxKHN BHTOM 12a HIIaIbOoi 13 B IIpeIOxpaHHTeJIbHOM OTBepCTHH.

CoeHHnHn
BbIpyCK BO3JyXA I3 BCACbIBAIOUeB BbITJXKIN
Дя установки BCасьlaIошe BытЯжн coeINHHTb ee c BыИпскHoT pyбои kectkoи ИлгИбКоT pyбКоI dHaMeTpOM 150 HIn 120 MM, TnI KOTopoи мОжет БИбpaTb MOТаЖнК.
-ⅡHcoeHHHn Tpyko0 120 MM BCTaBHb IepexOHNb ΦHaHei 9B BbIyCKHO OEtBcTHe KOpIyCa BbIgKKn.
3aKpeHb Ty6Ky COOTBeCTBHyUIMn Tpy6HbIMn 3aJHMamH. Heo6XoImMb KpeIeKHB MaTePnaJI He BXoINB KOMIIJEKT.
- BbHyt bHJbTpbl OT 3aIIaxOB Ha aKTHBHOM yIe.

BbIXoD BO3IyXa I3 ΦNJIbTPYIOUe BbITJAKK
CJIaIbBIOJIkeHaI BbITJIKOITBePcTHe 125MM.
BcTaBnTb IepexoIhBn _IIaHeII 9 B BVbIXOJHoe OTBepCTne B KOpIyCe BbITJxKKn.
CoeHHHTb JIaHeu C BbIyucKbIM OTBepCThem IOJIKN HaD BBITJAKKO JcEeKoH HIN rH6KO Tpy60 120 MM.
3aKpeIINTB Tpy6y COOTBeTCTBYIOHMM 3aJHMAMH. Heo6xoIHMbI IJIg 3TOrO MaTePHaJI He BXoIHT B KOMJIJEKT IOCTaBKn.
3aKpeINITb peIeTky 8Ha BbIyckHOM OTBepCTHN 2 BHHTAMH 12e (2,9x9,5) (IIpHJIraHOTcJ.
- IIpoBepHTb HaJIINHe B BbITJKe HJIbTpOB OT 3aIIaxOB Ha aKTHBHOM yTJIe.

3JIeKTPnueCKOE NIOKJIIOUHHE
CoeHHHTb BbITJgKc CcTeBBIM HApJxKeHHeM, yCTaHOBnB JByXIOJIIOCHbI BbIKJIOuAteJIb C pa3BeJeHHem KOHTaKTOB He MeHee 3 MM.
CHTbIPOTHBOXKHPOBBIEΦHJIbTpBI(CMOTPNpa3JeI“YxOJ) HIIPOBEBNTIpaBUNJIbHOCTbIOJIIOKeHHaPa3BeMa IHTaIOUeRo Ka6EJI B PO3ETKE BBITJKKH

YcTaHOBKa DbIMOXOda
BepxHHn IbIM0XoI
CJIeKa pa3BecTH IBe 6OKOBIe KpOMKn IbIMOxoJa, 3aIeHHTb Hx 3a cKO6bl 7.2.1 H BHOb CBecTH IN Do yIopa.
3aKpeHnTB bIMOXoI c6Oky 4 BXOJIIHMN B KOMJIeKT BHTAMH 12c (2,9 x 9,5).
HnKnnIbIMOXoJ
CJIeKpa3BecTHIBe6OKOBIE KpOMKn IbIMOXOJa,3aIIeINtB Hx MeKJy BepXHm IbIMOXOJOM IN CTeHOIN BHOBb CBecTH IN YIO yIopa.
3aKpeHnTb HnKHHIOU YaCTb IbIMOXoJa c6Oky K KopNycy BbITJAKKN BXOJAAHMMN B KOMIIJEKT 2 BNHTAMH 12c (2,9 x 9,5).


IIaHeJIb yInpabJIeHnIa
| КЛАВИНИА | ИнДИКATОР | ФУHKПИЙ |
| T1Сkopocть | Горот | ВКЛЮает ДВИга teль на певой скорoctи. |
| Быклюает ДВИга teль. | ||
| T2Сkopocть | Горот | ВКЛЮает ДВИга teль на втори скорoctи. |
| T3Сkopocть | Горот | Кратуким Нажатем ВКЛЮает ДВИга teль на特有的 skорoctи. |
| LОсveшениe | ВКЛЮает и ВБКЛЮает освetedе lyнчу сн�temу. |
BHHMaHHe: KJIaBHIIa T1 BbIKJIIOuaET IbHrAteJIb, pa6Ota KOtOpOro BCeIgIa IpOxoIHT uepe3 IIepByIO cKOpocTb.
IpoTHBOXHIpOBbIe qHJIbTpbl
OuNCTKA METAJIINUECKNX IPOTNBOXIKPOBbIX ΦЛьТРОВ
Takoi HJIbtp MoKHO TaKKe MbytB BIOcyDOMOeHNO MaHHe. MbytB HJIbtp Heo6xoJIMo He peKe OJHO p3a B 2 MeCya HIN Yauie BCJyue erO aKTHBHOrO IprImeHeHH.
- CnIbHJIbTp, IJIa Yero IIpIHKaTb Eero K 3aJHei cSTOPHe y3Ja H OJHOBpeMeHHO IOTAHyTB BHN3.
- IIOMbIb ΦHJIbTp, CJIeIa 3a TeM, YTO6bI OH He IIOrHyJIcR, H JATb EMy IPOCOXHyTb.
-ПocTaBnTbФньTpHaMeTo TaK,ЧТоБыpyчkaHaxOДиJIaCb c HapyЖHoi CTopoHbIибьЛЯВДha.

ФильтnpOTnB 3anaxOB (Фильтpyюэг BAITJKA)
3AMEHA YTOJIbHOrO ΦIJIbTPA
-ДанньиФнЛьтг He MoETcH He BOCCTaHaBJIbHaeTc; erO cIeIyET MeHЯТb He peKe OJHOrO pa3a B 4 Mecya HJIn YauE BCJIyuae AKTHBHOTo IIpHMHeHn.
- ChrTB MeTaJIINHueckn IIpoTbHOxHPOBOI ΦJIbTp.
- OTCOeINHHTb HacbIeHHbIy yTOJIbHbI ΦHJIbTp IpOTnB 3aIIaXOB IIPIH NIOOMIIN CIEIIHaJIbHbIX 3aIIeJIOK.
- YctaHOBHTb HOBbI ΦHJIbTp B IIOJIOKeHHN N 3aKpeIIHTb erO 3aIeJIkAMH.
- IocTaBnTb Ha MeCTO metaJIInueckHn IIpoTHBOJKHpOBoI _IIbTp

OcBeHne
3AMEHA JIAMI
JAmIbHaKaJIHBaHHa 28W-40W Bt.
- ChrBbNHT KpeJIeHnI IlafoHa.
OTBHTbJAMIyH3aMeHHtbe HaHOByIO c TaKHM JxapaKTePncTHKaMn. - IIocTaBHTb Ha MeCTO MetaJIINueCKHe IpoTbBOKHPOBBleΦHJIbTpbl.

| Пампа | ПOT repeльни (Вт) | Патрон | Наррахени (В) | Размер (MM) | КоД ILCOS |
| 28 | E14 | 220 - 240 | 104 x 35 | HSGSB/C/UB-28-220/240-E14 | |
| 20 | G4 | 12 | 33 x 9 | HSG/C/UB-20-12-G4 | |
| 35 | GU10 | 230 | 51 x 50,7 | HAGS-35-230-GU10-51/40 | |
| 50 | GU10 | 230 | 51 x 50,7 | HAGS-35-230-GU10-51/20 | |
| 20 | GU4 | 12 | 40 x 35 | HRGS-20-12-GU4-35/30 | |
| 20 | GU5.3 | 12 | 46 x 51 | HRGS-20-12-GU5.3-50/10 | |
| 16 | G13 | 95 | 720 x 26 | FD--16/40/1B-E--G13--26/720 | |
| 18 | G13 | 57 | 589,8 x 26 | FD--18/40/1B--E--G13--26/600 | |
| 9 | G23 | 60 (пампа) 220-240 (nускател) | 167 x 28 | FSD-9/27/1B-I-G23 | |
| 11 | G23 | 91 (пампа) 220-240 (nускател) | 235,8 x 28 | FSD-11/40/1B-I-G23 |
ПростаяИнструкция