VITODENS 222 F & VITODENS 222 - Chaudière à gaz VIESSMANN - Notice d'utilisation et mode d'emploi gratuit
Retrouvez gratuitement la notice de l'appareil VITODENS 222 F & VITODENS 222 VIESSMANN au format PDF.
| Intitulé | Description |
|---|---|
| Type de produit | Chaudière à condensation murale |
| Modèles disponibles | VIESSMANN VITODENS 222 F et VITODENS 222 |
| Alimentation | Gaz naturel ou propane |
| Puissance nominale | De 19 à 35 kW selon le modèle |
| Rendement énergétique | Jusqu'à 98 % (à 40/30 °C) |
| Dimensions approximatives | Largeur : 600 mm, Hauteur : 850 mm, Profondeur : 450 mm |
| Poids | Environ 50 kg |
| Compatibilités | Compatible avec les systèmes de chauffage central et les chauffe-eau |
| Fonctions principales | Chauffage, production d'eau chaude sanitaire, régulation intelligente |
| Entretien et nettoyage | Entretien annuel recommandé, nettoyage du brûleur et vérification des composants |
| Pièces détachées et réparabilité | Disponibilité des pièces détachées, réparabilité facilitée par un accès direct aux composants |
| Sécurité | Système de sécurité intégré, protection contre la surchauffe et les fuites de gaz |
| Informations générales | Garantie de 2 ans, certification CE, respect des normes environnementales |
FOIRE AUX QUESTIONS - VITODENS 222 F & VITODENS 222 VIESSMANN
Questions des utilisateurs sur VITODENS 222 F & VITODENS 222 VIESSMANN
Pour ajuster la température de chauffage sur votre chaudière Viessmann Vitodens 222 F ou Vitodens 222, suivez ces étapes simples :
Étapes pour régler la température de chauffage
- Accéder au panneau de commande : Localisez le panneau de contrôle situé à l'avant de la chaudière.
- Mettre la chaudière en mode chauffage : Assurez-vous que l'appareil est en mode chauffage, ce qui peut être vérifié sur l'écran ou via le menu.
- Modifier la température : Utilisez les boutons de réglage (généralement des flèches ou des symboles de température) pour augmenter ou diminuer la température souhaitée.
- Confirmer le réglage : Validez la température sélectionnée en appuyant sur le bouton « OK » ou « Valider » si nécessaire.
- Vérifier l'affichage : Contrôlez que l'écran affiche bien la nouvelle température de consigne.
La température recommandée pour un confort optimal est généralement comprise entre 20 et 22°C, mais vous pouvez l'adapter selon vos préférences personnelles.
En ajustant correctement la température, vous optimisez le confort et l'efficacité énergétique de votre chauffage.
Pour remettre de l'eau dans votre chaudière à gaz VIESSMANN VITODENS 222 F ou VITODENS 222, il est important de suivre une procédure précise afin d'assurer le bon fonctionnement de votre installation de chauffage :
Étapes pour remettre de l'eau dans la chaudière
- Vérifiez la pression actuelle : Consultez le manomètre de la chaudière. La pression normale se situe généralement entre 1 et 1,5 bar. Si la pression est inférieure à 1 bar, il est nécessaire d'ajouter de l'eau.
- Localisez le robinet de remplissage : Ce robinet se trouve souvent sous la chaudière. Il peut être un robinet à levier ou à vis.
- Ouvrez lentement le robinet de remplissage : Tournez-le doucement pour laisser l'eau s'écouler dans le circuit de chauffage.
- Surveillez la pression : Pendant le remplissage, gardez un œil sur le manomètre. Arrêtez le remplissage lorsque la pression atteint environ 1,5 bar.
- Fermez le robinet de remplissage : Une fois la pression adéquate atteinte, refermez le robinet pour éviter toute fuite.
- Vérifiez l'absence de fuites : Contrôlez les raccordements autour du robinet et de la chaudière pour vous assurer qu'il n'y a pas de fuite d'eau.
- Redémarrez la chaudière : Si vous aviez arrêté la chaudière, rallumez-la pour qu'elle fonctionne normalement avec la pression correcte.
Important : Ne remplissez jamais la chaudière au-delà de 1,5 bar pour éviter tout risque de surpression. Si la pression chute fréquemment, cela peut indiquer une fuite dans le circuit, et il est conseillé de faire appel à un professionnel.
Téléchargez la notice de votre Chaudière à gaz au format PDF gratuitement ! Retrouvez votre notice VITODENS 222 F & VITODENS 222 - VIESSMANN et reprennez votre appareil électronique en main. Sur cette page sont publiés tous les documents nécessaires à l'utilisation de votre appareil VITODENS 222 F & VITODENS 222 de la marque VIESSMANN.
MODE D'EMPLOI VITODENS 222 F & VITODENS 222 VIESSMANN
avec régulation en fonction de la température extérieure à module de commande Comfortrol


Vitodens 222, type WS2

Vitodens 200, type WB2
Pour votre sécurité

Respecter scrupuleusement ces conseils de sécurité afin d'éviter tout risque et tout dommage pour les personnes et les biens.
Odeur de gaz
- Ne pas fumer ! Eviter toute flamme nue et toute formation d'étincelles (manoeuvre d'interrupteurs électriques, par exemple)
Ouvrir les fenêtres et les portes
Fermer la vanne d'alimentation de gaz - Prévenir le chauffagiste depuis l'extérieur du bathtub
Se conformer aux consignes de sécurité de gaz de France.
En cas de danger
- Mettre immediatement l'installation hors tension, au portefusible du tableau électrique ou à l'interrupteur principal, par exemple (sauf en cas d'odeur de gaz)
Fermer les vannes d'arrêt des conduites de fioul ou la vanne d'alimentation gaz
Employer un extincteur adapté en cas d'incendie.
Travaux sur I'appareil
Le montage, la première mise en service, l'entretien et les réparations devront être impérativement effectués par du personnel qualifié (chauffagistes/installateurs).
Couper l'alimentation électrique (au porte-fusible du tableau électrique ou à l'interrupteur principal, par exemple) avant de commencer l'intervention sur l'appareil/ l'installation de chauffage et la bloquer pour interdir tout rétablissement.
Fermer également la vanne d'alimentation gaz et la bloquer pour empêcher toute réouverture intempéstive.
Montage de composants supplémentaires
Le montage de composants supplémentaires non testés avec l'appareil peut nuire au bon fonctionnement. Nous déclinons toute garantie et toute responsabilité en cas de dommages causés par ces composants.
Conditions à replir par la chaufferie
- Pas d'air pollué par des hydrocarbures halogénés (contenus dans les bombes aerosols, les peintures, les solvants et les produits de nettoyage, par exemple)
Pas de poussière abondante
Pas d'humidité de l'air élevée en permanence
Hors gel - Température ambiente: 35^ maxi
Bien ventilée et ne pas obstruer les ouvertures d'arrivée d'air existantes.
Sommaire
Page
Première information
Pour vous sécurité 2
Commandes immédiates
Votre installation de chauffage a ete preréglee ... 4
Vue d'ensemble des organes de commande et d'affichage 5
Selectionner le programme de fonctionnement (hiver, eté) 6
Modifier la températe ambiente 7
Interroger les températures et les états de fonctionnement 8
Utiliser les fonction comport
Régler le régime réceptions 9
Activer la marche économique 10
Enclencher et neutraliser la fonction comport 10
Enclencher et arrête l'installation
Première mise en service et remise en service de l'installation de chauffage 11
Modifier la température d'eau chaude sanitaire 17
Régler une marche économe en énergie pour la durée des vacances 18
Modifier l'heure et la date 20
Que faire, si ...
Diagnostic et elimination des pannes 21
Maintenance 25
Conseils pour economiser I'energie 26
Récapitulatifs
Vue d'ensemble des structures des menus 27
Index 30
Votre installation de chauffage a ete preréglee ...
La régulation a été prérgée en usine pour un fonctionnement standard.
Votre installation de chauffage est ainsi opérationnelle. Le réglage de
base d'usine pourra etre modifie a la carte selon vos desires.
Le jour de la semaine et l'heure
ont ete prerégles en usine et une pile de longue durée empêche leur effacement.
L'inversion heures d'hiver/heure d'été est automatique.
Le programme de fonctionnement
a été réglé sur "Chauffage et eau chaude", c'est-à-dire qu'il y achauffage et production d'eau chaude sanitaire d'après la programmation.
Programmation
L'heure de début de la plage d'activation a ete reglee a 6 h, I'heure de fin a 22 h.
De 6 à 22 h, le chauffage est assure à la température ambiente normale et il y a production d'eau chaude sanitaire.
De 22 à 6 h, il y a protection contre le gel.
Pour remettre la programmation au réglage de base d'usine, appuyez sur la touche "K".
Toutes les valeurs qui ont eté modifiées sont remises au réglage de base d'usine.
La fonction comport
de la chaudière double service est opérante c'est-à-dire que l'eau chaude est immédiatement disponible.
Courbe de chauffe
La pente de la courbe de chauffe a eté réglee à 1,4, le parallèle à 0.
Les modifications de la courbe de chauffage devront etre effectuées par une personne qualifiée.
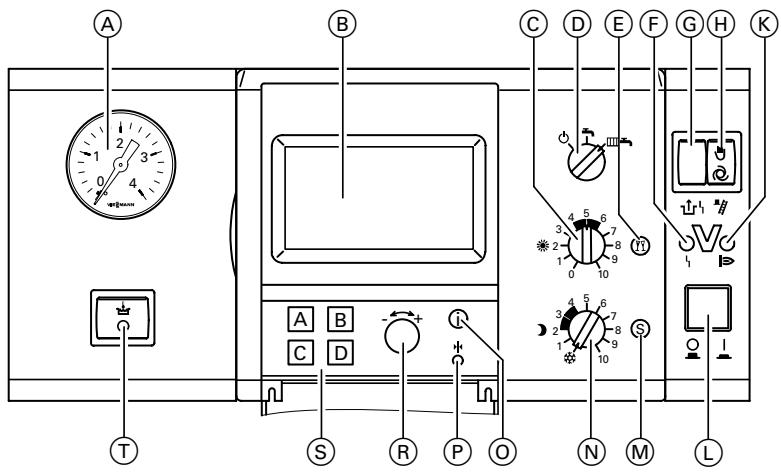
Vue d'ensemble des organes de commande et d'affichage

A Manometre
Ecran d'affichage
C Bouton "Temperature ambiente normale"
D Selecteur de programme de fonctionnement
Marchedeveille
Eau chaude uniquement
Chauffage et eau chaude
E Touche réceptions
F Voyant bruleur en dérangement
⑥ Touche de réarmement brûleur
Commutateur de marche provisoire
Voyant bruleur en fonctionnement
Interrupteur installation
M Touche economique
N Bouton "Temperature ambiente réduite"
Touche information
Touche "Réglage de base"
Bouton de réglage
(5) Touches de seLECTION
① Commutateur fonction comport

5586400-F
Manoeuvres
Le module de commande Comfortrol est à menu déroulant.
Si vous abaissez le cache du module de commande Comfortrol, l'écran affiche une liste de réglages possibles. Procedez à la sélection à l'aide des touches "A", "B", "C" ou "D".
Une vue d'ensemble des structures des menus se trouve sous "Récapitulatifs", page 27.
Sélectionner le programme de fonctionnement (hiver, été)
Sélectionnez un des programmes de fonctionnement en fonction de vos besoiniers membres.

Chauffage et eau chaude.
Example : Hiver et demi-saison.
Chauffage s'il n'y a pas de production d'eau chaude sanitaire
Production d'eau chaude sanitaire (si unallon ou un échangeur instantané est existant)
Protection de la chaudière et du ballon d'eau chaude contre le gel.

Eau chaude sanitaire uniquement
Example:Eté.
Pas de chauffage
Production d'eau chaude sanitaire (si unallon ou un échangeur instantané est existant)
Protection de la chaudière et du ballon d'eau chaude contre le gel.

Marche de veille
Pas de chauffage
Pas de production d'eau chaude sanitaire
Protection de la chaudière et du ballon d'eau chaude contre le gel.
Remarque importante!
Le circulateur est enclenché toutes les 24 heures pour éviter tout grippage.
Modifier la températe ambiente
En marche «chauffage et eau chaude», le chauffage est assurec avec, en alternance, une "température ambiente normale" et une "température ambiente réduite" selon la programmation.
Modifier la température ambiente

- Manoeuvrer le bouton "ou" Les températures (ancienne et nouvelle) sont affichées à l'écran.
- Affichez la température désirée (nouvelle) à l'aide du bouton.
- L'affichage disparait automatiquement au bout de 5 secondes environ. La nouvelle température est mise en mémoire.

"Temperature ambiente normale"
Exemple : Pour les heures où vous vous trouvez chez vous et souhaitez une température/agréable dans votre logement.
Réglage de base d'usine: de 6 à 22 h
La position "5" correspond à une température ambiente de 20^ environ si la courbe de chauffe est régée correctement.
La température ambiente normale peut être régée de 5 à 25^ .

"Temperature ambiente réduite"
Exemple : Pour les heures de sometime ou les heures où vous étés absent de chez vous.
Réglage de base d'usine : de 22 à 6 h
La position "..." correspond à une température ambiente de 5^ environ si la courbe de chauffe est régée correctement.
La "température ambiente réduite" peut être régée de 5 à 20^ .
Interroger les températures et les états de fonctionnement
Interrogier les températures et les états de fonctionnement.
| CIRCUIT A / ETAT AFFECTATION MODULE DE COMMANDE : CIRCUIT A |
| >SUITE :......A |
| >RETOUR :......C |
| >MENU PRINCIPAL :..D |
Appuyez sur les touches suivantes :
Chauffage
- A pour "Circuit A" (sans vanne mélangeuse) ou
B pour "Circuit B" (avec vanne mélangeuse) - [C] pour "Etat"
- A pour "Suite", afin d'introger les valeurs désirées
Production d'eau chaude sanitaire
- C pour "Eau chaude"
- A pour "Préparateur"
- [p] pour "Etat"
Vous ave la possibilité d'intéroger d'autres températures et d'autres états de fonctionnement en selectionnant l'option "Installation" du menu principal (voir "Vue d'ensemble des structures des menus", page 27).
Terminez l'interrogation en refermant le cache.
Régler le régime réceptions
Activez le régime réceptions si vous voulez chauffer pendant une brève période sans prendre en compte le programme de fonctionnement régle et la programmation可以选择 (si vous voulez vous coucher plus tard que d'habitude parce que vous avez des invitations, par exemple).
Voussouspoucezreglerla consignede tempereurambiante(temperaturereceptions) commeyoulesdésirez.
LUNDI, 20.05.97 10H30
REGIME RECEPTION CHOISI: 20°C
MODIFIER CONSIGNE: OUVRIR CACHEDT EMP. CHAUD: 53^
Activer le régime réceptions
Appuyer sur la touche réceptions "F".
L'écran affiche le régime réceptions avec la température réceptions pré régée.
Modifier la température ambiente (température réceptions)
Abaissez le cache et suivez les indications à l'écran.
Refermez le cache, la modification effectuee.
Terminer le régime réceptions
Le régime réceptions prend fin à la prochaine inversion automatique à "température ambiente normale".
Si vous voulez terminer le régime réceptions plus tout, appuyez à nouveau sur la touche réceptions "Y".
Activer la marche économique
Activez la marche économique si vous voulezCHAuffer pendant une brève période de manière particulièrement économique (si la maison est inoccupée provisoirement, par exemple). En marche économique, la consigne de température ambiente réglée est automatiquement abaissée de 2^ environ.
Mardi, 21.05.97 10H35 REGIME ECONOMIQUE S TEMP.CHAUD: 53^ INFO: OUVRIR Cache
Activer le régime économique
Appuyer sur la touche
economique ^S^ L'ecran affiche le regime
economique.
Terminer la marche economique La marche economique prend fin à la prochaine inversion automatique à "température ambiente normale". Si vous pouze terminer le régime économique plus tout, appuyez à nouveau sur la touche économique "S".
Activer et neutraliser la fonction comport
Chaudiere double service uniquement.
Si la fonction comport est activée, l'échangeur de chaleur instantané est maintenu en température. L'eau chaude est ainsi immédiatement disponible.

Le commutateur "permet d'enclencher et de neutraliser la fonction comport.
Remarque importante!
La fonction comport pourra etre neutralisée afin d'eviter I'enclenchement de la chaudiere et donc la consommation d'énergie pour le maintain en temperature s'il n'y a pas de soutirage d'eau chaude (la nuit, par exemple).
Première mise en service et remise en service de l'installation de chauffage
La première mise en service et l'adaptation de la régulation aux caractéristiques locales et duBATIMENT devrontetreffectueespar voitrechauffagiste.
Nous vous recommendons de vousmettre en rapport avecvoitréchauffagiste avant de remetre en service une installation de chauffage après un arrêt de longue durée.


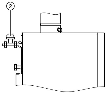
Vitodens 222 - Vue de côté
- Contrôlez la pression de l'installation de chauffage sur le manomètre ①.
Pression minimale de
l'installation : 0,8 bar. Si l'aiguille du manomètre est en dessous de 0,8 bar, la pression de l'installation est insuffisante - veuillez dans ce cas prévenir votre chauffagiste.
- Uniquement si la chaudière est raccordée à une cheminée : l'air de combustion, est puisé dans la piece.
Contrôlez si les orifices d'aération du local sont ouverts et non obstrués. - Ouvrir la vanne d'alimentation de gaz ②.
- Etablit l'alimentation électrique (au portefusible du tableau électrique, par exemple).
- Enclencher l'interrupteur installation ③.
Votre installation de chauffage et la commande à distance, si cette dernière est raccordée, sont désormais opérationnels.
Mettre l'installation de chauffage hors service
Si vous foulez ne pas utiliser momentanément votre installation de chauffage, pendant les vacances d'été, par exemple, faites la passer en marche de voir ("Sélectionner le programme de fonctionnement", page 6).
Si vous voulez ne pas utiliser provisoirement votre installation de chauffage pendant une durée assez longue (plusieurs mois), vous devez la mesure hors service.
Avant demettre l'installation hors service pour une période assee longue, nous vous conseillons de vousmettre en relation avec lechauffagiste. Ce dernier pourra, si nécessaire, prendre des dispositions adaptees pour la mise hors gel de l'installation ou la protection des surfaces d'échange.

- Couper l'interrupteur installation.
- Fermer la vanne d'alimentation de gaz et la bloquer pour interdire toute réouverture intempéstive.
- Couper l'alimentation électrique (au porte-fusible du tableau électrique, par exemple). L'installation est désormais hors tension, la protection contre le gel de l'installation est inopérante.
Remarque importante !
Les réglages de la régulation sont conservés en mémoire.
Interrogger et modifier les plages d'activation
Il est possible de régler sur l'horloge 4 plages d'activation chaque fois pour le chauffage, la production d'eau chaude sanitaire et la pompé de bouclage eau chaude sanitaire. C'est-à-dire que:
- le chiffage peut passer jusqu'à 4 fois par jour de "température ambiente normale" à "température ambiente réduite" et vice-versa.
La production d'eau chaude sanitaire et la pompe de bouclage eau chaude sanitaire peuvent etre enclenchees et arretees jusqu'à 4 fois par jour. Le réglage de base d'usine vous assure la "température ambiente normale" et la production d'eau chaude sanitaire tous les jours de 6 à 22 heures. La pompe de bouclage eau chaude sanitaire est enclenchée de 6 à 22 heures.
Veuillez prendre en compte le tempo de reaction de votre installation de chauffage pour le réglage des plages d'activation.
Avancez donc en conséquence les heures de début et de fin des plages.
Voussupportreglerdesplagesd'activationidentiquespour tousles jours de la semaine ou specifiquesauchquocque jourde la semaine.
Interrogier et modifier les plages d'activation (suite)
Programmation identique pour tous les jours de la semaine
Vouvasce la possibilité d'entrer une heures de début et une heures de fin sur chacune de 4 lignes affichées à l'écran.
Chauffage

Appuyez sur les touches suivantes :
Production d'eau chaude sanitaire

Voussoupiezegalementinterrogerdecette maniere laprogrammation sansla modifier.
Terminez le réglage de la programmation en refermant le cache ou en returnant à l'option "heures" par la touche "C".
Interrogier et modifier les plages d'activation (suite)
Programmation spécifique pour différents jours de la semaine
Vouvasce la possibilité d'entrer une heures de début et une heures de fin sur chacune de 4 lignes affichées à l'écran.
Chauffage
Appuyez sur les touches suivantes :
- A pour "Circuit de chiffage A" (sans vanne mélangeuse) ou B pour "Circuit de chiffage B" (avec vanne mélangeuse)
- A pour "Heures"
- A pour "Heures"
- B pour "Autres jours"
- A à appuyer jusqu'à ce que le jour souhaïté clignote.
- B pour confirmer votrechoix.
- A pour "Modifier heures"
- Maneuvrez le bouton de réglage "−+", pour régler la programmation
- A pour confirmer chaque fois le réglage.
Voussouspoucezegalementinterrogerdecette maniere laprogrammation sans la modifier.
Terminez le réglage de la programmation en refermant le cache ou en returnant à l'option "heures" par la touche "C".
Interrogier et modifier les plages d'activation (suite)
Production d'eau chaude sanitaire
Appuyez sur les touches suivantes :
- C pour "Eau chaude"
- A pour "Préparer" ou B pour "Pompe de bouclage"
- A pour "Heures"
- B pour "Autres jours"
- A à appuyer jusqu'à ce que le jour souhaïte clignote.
- B pour confirmer votrechoix.
- A pour "Modifier heures"
- Manoeuvrez le bouton de réglage “-+”, pour régler la programmation
- A pour confirmer chaque fois le réglage.
Voussupportezegalementinterrogerdécetemamierelaprogrammationsansl'modifier.
Terminé le réglage de la programmation en refermant le cache ou en returnant à l'option "heures" par la touche "C".
Modifier la température d'eau chaude sanitaire
Chaudières simple service coupées à un préparateur d'eau chaude ou chaudières double service.
Sélectionnez la température d'eau chaude sanitaire en fonction de vos besoinions personnels (pour prendre une douche, par exemple).
Appuyez sur les touches suivantes :

- pour "Eau chaude"
- A pour "Préparateur"
- B pour "Température"
-
A pour "Modifier température"
-
Manoeuvrez le bouton de réglage “-+”, pour régler la température
- A pour confirmer chaque fois le réglage.
Terminez le réglage de la température en refermant le cache ou en returnant à l'option "heures" par la touche "C".
Régler la marche économique pour la durée des vacances
Sélectionnez un des programmes de fonctionnement suivants si vous partez en vacances et souhaitez régler votre chauffage sur une consommation minimale d'énergie (voir paragraphe " Sélectionner le programme de fonctionnement", page 6).

Marche de veille
Uniquement protection de l'installation de chauffage contre le gel.
Programme vacancies
- consigne de température ambiante constante régliable de 5 à 35^
- pas de production d'eau chaude sanitaire
- durée programmable de 1 à 99 jours
- puis passage automatique au chiffage et à la production d'eau chaude sanitaire selon programme.
Entrer ou effacer le programme vacances
Remarques importantes!
N'oubliez pas que le programme vacances prend toujours fin à 24 heures du dernier jour enregistré. Reglez donc la fin du programme vacances sur la veille de votre retour de vacances. Notre chiffage sera ainsi à nouveau opérant le lendemain.
Selectionnez "Effacer" si vous voulez avancer la fin du programme vacances régle.
Si la régulation pilote un circuit de chauffage A (sans vanne mélangeuse) et un circuit de chauffage B (avec vanne mélangeuse), le programme vacances agit sur les deux circuits de chauffage.
Appuyez sur les touches suivantes :
- A pour "Circuit de chauffage A" (sans vanne mélangeuse) ou
B pour "Circuit de chauffage B" (avec vanne mélangeuse) - A pour "Heures"
- B pour "Programme vacancies"
- A pour "Modifier" ou
B pour Effacer
Régler la marche économique pour la durée des vacances (suite)
02.06.97,11H06CIRCUIT A/PROG.VACDEBUT----,00:00FIN----,24:00TEMP. 14^ >MODIFIER:...A>EFFACER:...B>MENU PRINCIPAL ..C
- A pour "Modifier heures"
- Manoeuvrez le bouton de réglage " ^- + ", pour régler le début et la fin du programme vacances.
- A pour confirmer chaque fois le réglage.
Modifier la température du programme vacances
- B pour "Modifier température"
- Manoeuvrez le bouton de réglage “-+”, pour régler la température.
- A pour confirmer chaque fois votrechoix.
Modifier l'heure et la date (si nécessaire)
Le jour et l'heure ont ete prereglés en usine.
L'inversion heures d'hiver/heure d'été et vice-versa est automatique. Si nécessaire, vous avez la possibilité de régler l'heure à la main.
| INSTALLATION/HEURE NOUS SOMMES LE JEUDI 21.08.97 15H30 |
| >DATE MODIFIER ...A |
| >HEURE MODIFIER ...B |
| >RETOUR :......C |
Appuyez sur les touches suivantes :
- D pour "Installation"
- A pour "Réglage de base"
- A pour "Heure"
Vous yout trouvezdesormais dans le menu"Heures".Suivez les indications à l'écran et reglez la date souhaitee ou I'heure désirée.
Diagnostic et élimination des pannes
Si vousCHAuffage presente un defaut, il est affiché à l'écran, cache fermé. Une interrogation à l'écran vous permet de dire le défaut et de le communiquer au chauffagiste.

Appuyez sur les touches suivantes :
- A pour "Recherche défaut". La source du défaut est affichée en texte clair ou sous forme de code défaut.
- ① pour "Installateur". L'adresse et le nom de l'installateur sont affichés (si mémorisés).
- ① pour quitter le menu information.
- A pour "Acquirer"
Le message de début est effacé et un dispositif d'alarme évientuelles raccordé à la régulation est arrêté. Le message réapparaitra à 0 heures le lendemain si le début n'a pas été éliminé.
Diagnostic et élimination des pannes (suite)
| Que faire, si ... | Cause | Remède |
| ... l'installation ne démarre pas | Interrupteur installation de la régulation coupé | Enclencher cet interrupteur |
| Fusible de l'alimentation électrique ou de la régulation "grillé" | Prévenir le chauffagiste | |
| ... le brûleur n'est pas ou est mal enclenché | Pas de gaz | Propane : contrôler les réserves de combustible, en recommender, le cas échéant. Gaz naturel : ouvrir la vanne d'alimentation gaz ou prévenir Gaz de France. |
| Régulation mal programmée ou mal réglée | Contrôler et corriger, le cas échéant, la position du sélecteur de programme et la programmation de l'horloge | |
| Régulation en dérangement | Prévenir le chauffagiste. ÀpRES avoir consulté le chauffagiste, il est possible de faire fonctionner provisoirement la chaudière à température élevée en actionnant le commutateur de marche provisoire "###" | |
| ... le brûleur ne démarre pas ; levoyant de dérangement de la régulation "†" est allumé | Mauvais démarrage | Appuyer sur le bouton de réarmement "↑". Si cet essai de démarrage est lui aussi vain, prévenir le chauffagiste |
| Manque d'eau | Prévenir le chauffagiste |
Diagnostic et élimination des pannes (suite)
| Que faire, si ... | Cause | Remède |
| ... le brûleur est arrêté, même si les chaudières n'ont pas encore la température désirée | Dysfonctionnement dans l'arrivée d'air ou l'évacuation des fumées | Prévenir le chauffagiste |
| ... les pièces sont froides bien que le brûleur soit en fonctionnement | Priorité de la production d'eau chaude sanitaire (uniquement avec un gallon d'eau chaude) | Chaudières couplées à unallon séparé : attendre que la production d'eau chaude soit satisfaite Chaudières double service : terminer le soutirage d'eau chaude. |
| Régulation en dérangement | Prévenir le chauffagiste | |
| ... Si l'installation est équipée d'une régulation à action sur vanne mélangeuse : chaudière en fonctionnement, mais le circuit de chauffage reste froid | Régulation à action sur vanne mélangeuse défectueuse | Désaccoupler la vanne mélangeuse ① et régler à la main le levier ② de la vanne mélangeuse. Prévenir le chauffagiste |
| ... "Défaut" clignote à l'écran | Installation de chauffage en dérangement | Noter le code défaut et prévenir le chauffagiste (voir page 21). |
Diagnostic et élimination des pannes (suite)
| Que faire, si ... | Cause | Remède |
| ... «changer les piles» apparaît à l'écran ou ... l'éclairage de l'écran s'éteint | Piles usées | 1. Couper l'interrupteur installation de la régulation et l'alimentation électrique2. Extraire le module de commande.3. Sortir le logement de piles de la face arrière.4. Remplacer les piles. Employer des piles alcalines au manganèse type MICRO/ LR3 (AAA)Attention! Placer les piles comme représenté sur la figure.5. Remettre le logement de piles en place. Remettre le module de commande en place.6. Réencclencher l'interrupteur installation et rétabrir l'alimentation électrique.Remarque importante ! Les piles usagées devont être recupérées dans des con teneurs prévus à cet effet (déchetterie, par exemple...) |
5586400-F
Entretien, contrôle et maintenance
Contrôle et entretien
Nous vous recommendons vivement de faire régulièrement entretenir votre installation de chauffage pour garantir un fonctionnement fiable, économé en énergie et respectant l'environnement. Pour ce faire, le mistrés est de passer un contrat d'entretien avec votre chauffagiste.
Ballon d'eau chaude sanitaire
Il est recommandé d'effectuer des travaux d'entretien et de nettoyage au plus tard deux années après la mise en service puis à intervalles réguliers. Le nettoyage de l'intérieur du gallon d'eau chaude sanitaire, y compris des raccords eau froide et eau chaude ne devra être effectué que par un chauffagiste qualifié.
Si un organe de traitement de l'eau ( comme un adoucisseur) est implanté dans l'arrivée d'eau froide du gallon, refaire le plein en temps utile. Il en va de même si un collecteur de boues et un filtré sont implantés sur la conduite eau froide. Ces organes devront être rincés et entretenus à intervalles réguliers.
Vitocell 100 :
Nous conseillons de faire contrôle la fonction de l'anode au magnésium tous les ans par le chauffagiste. Ce contrôle peut être réalisé sans interruption du fonctionnement de l'installation. Le chauffagiste mesure le courant de protection à l'aide d'un contrôleur d'anode.
Soupape de sécurité (ballon d'eau chaude sanitaire)
La réaction de la soupape de sécurité devra être contrôle par l'utilisateur tous les six mois en manoeuvrant légément cet organe.
Il y a risque d'encrassement du siège de la soupape (voir notice d'utilisation du fabricant de la soupape de sécurité).
Filtre d'eau potable (si l'installation en est équipée). - Recommendation Pour des raisons d'hygiène
la cartouche filtrante sera remplacée tous les 6 mois, (contrôle visuel tous les 2 mois) sur les filtres sans rinceage à contre-courant,
les filtres à rincage à contre-courant seront rincés tous les deux mois.
Nettoyage
La jaquette de la chaudière sera nettoyée à l'aide d'un nettoyant menager du commerce (pas de détergents).
Remarque concernant l'évacuation des déchets
L'appareil contient une pile intégrée ne contenant pas de produits nocifs. Les piles usagées seront déposés au points de collecte prévus à cet effet. Le démontage ne devra être effectué que par du personnel qualifié.
Conseils pour économiser l'énergie
En plus des conditions techniques d'une installation de chauffage moderne, votre comportement peut vous permettre d'augmenter vos économies d'énergie.
Les conseils suivants vous y aideront :

aérer judicieusement: ouvrir en grand les fenêtres ① pendant quelques minutes après avoir fermé les robinets thermostatiques de radiateur ②
ne pas chauffer excessivement : la température ambiente doit être de 19^ , chaque degré de température ambiente en moins économique jusqu'à 7 % de frais de chauffage
fermer les volets des fenêtres à la tombée de la nuit
■ régler correctement les robinets thermostatiques de radiateur ②
ne pas cacher les radiateurs ③ ni les robinets thermostatiques de radiateur ②
■ profiter des possibilités de réglage spécifiques offertes par la régulation ④: "température ambiente normale" et "température ambiente réduite" en alternance, par exemple
■ régler la température d'eau chaude sanitaire du ballon ⑤ sur la régulation ④
contrôler la consommation d'eau chaude sanitaire Une douche consomme, en règle générale, moins d'énergie qu'un bain.
Vue d'ensemble de la structure des menus
Le menu principal contient des options vous conduitant à d'autres fonctions et d'autres informations. Le menu est affché après avoir abaissé le cache du module de commande.
Structure menu circuits de chauffage A et B

Si le module de commande
Comfortrol est employé comme commande à distance.
Récapitulatif des structures des menus (suite)
Structure du menu "Production de l'eau chaude sanitaire"

Récapitulatif des structures des menus (suite)
Structure du menu "Installation"

À ne faire réaliser que par l'infallateeur.
Index
A
Appareil, arrête, 12
Appareil, enclencher, 11
Arrêt de l'installation, 12
B
Ballond'eau chaude, 25
C
Chauffage et eau chaude, 6
Commande à distance, 11
Conseils de sécurité, 2
Contrat d'entretien, 25
Courbe de chauffe, 4
D
Danger, 2
Diagnostic, 21, 23
Dérangements brûleur, 5, 22, 23
E
Eau chaude, 6
Economiser l'energie, 18, 26
Elimination des déchets, 25
Energie de chauffage, economiser, 18, 27
Entretien, 25
F
Filtred'eau potable,25
Fonction comfort, 4, 5, 10
H
Heure, modifier, 20
1
Inspection, 25
Interrogation des températures, 8
Interrupteur installation, 5, 11, 12
J
Jour de la période, modifier, 20
L
Local chaufferie, 2
M
Manometre, 5, 11
Marchedeveille,6
Marché économique, 10
Marchesstandard,4
Mise hors service, 12
Mise en service, 11
N
Nettoyage, 25
0
Odeur de fumées, 2
Odeur degaz,2
Organes d'affichage, 5
Organes de manoeuvre, 5
P
Pannes, éliminer, 21, 22
Parallele de la courbe de chauffe, 4
Plages d'activation, 13, 15
Pompe de bouclage ECS, 13, 14,
Pente de la courbe de chauffe, 4
Production d'ECS, 10, 17
Programme de fonctionnement, selectionner, 6
Protection contre le gel, 6, 12, 18
Première mise en service, 11
0
Que faire si ..., 22, 23
R
Régime réceptions, 9
Réglagedebase,4
Réglage de base d'usine, 4
Remise en service, 11
Index (suite)
s
Sommaire, 3
Soupape de sécurité, 25
Structures des menus, 28, 28
T
Température ambiente, modifier, 7
Température ambiente
réduite, 6, 7
Travaux sur l'appareil, 2
V
Vacances, 18
Vanne d'alimentation gaz, 2, 11
Vanne mélangeuse, 14, 23
Votre interlocuteur
Adressez-vous à votre chauffagiste pour tout ce qui concerne l'entretien ou la réparation de votre installation de chauffage.
Vous trouverez une liste des chauffagistes de votre région sous
www.viessmann.fr, par exemple.
Viessmann S.A. 57380 Faulquemont
Tel. 03 87 29 17 00
www.viessmann.fr
Notice Facile