Peca large - Cheminée FABER - Notice d'utilisation et mode d'emploi gratuit
Retrouvez gratuitement la notice de l'appareil Peca large FABER au format PDF.
| Caractéristiques techniques | Dimensions : Largeur 120 cm, Hauteur 60 cm, Profondeur 40 cm |
|---|---|
| Type de combustible | Bois ou granulés |
| Puissance nominale | 12 kW |
| Rendement énergétique | 80% |
| Utilisation | Chauffage d'appoint ou principal, ambiance chaleureuse |
| Maintenance | Nettoyage régulier du foyer, ramonage annuel recommandé |
| Réparation | Consulter un professionnel pour les réparations majeures |
| Sécurité | Installation conforme aux normes, détecteur de fumée conseillé |
| Informations générales | Garantie de 2 ans, certification CE |
FOIRE AUX QUESTIONS - Peca large FABER
Questions des utilisateurs sur Peca large FABER
0 question sur cet appareil. Repondez a celles que vous connaissez ou posez la votre.
Poser une nouvelle question sur cet appareil
Téléchargez la notice de votre Cheminée au format PDF gratuitement ! Retrouvez votre notice Peca large - FABER et reprennez votre appareil électronique en main. Sur cette page sont publiés tous les documents nécessaires à l'utilisation de votre appareil Peca large de la marque FABER.
MODE D'EMPLOI Peca large FABER
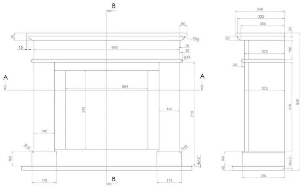
1 Plaque supérieure
2 Partie supérieure
3 Partie droite
4 Partie gauche
5 Plaque de sol
6 Passe-partout
UK
1 Topplate
2 Lintel
3 Right leg
4 Left leg
5 Floorplate
6 Filler piece
DE
4.1 Introduction 15
4.2 Conseils de sécurité 15
4.3 Preparation 15
4.4 Montage de la cheminée 16
4.5 Nettoyage et entretien 17
Blessum 18
Marssum 18
Boksum 19
Wirdum. 19
Wirdum 840 20
Wirdum 770 20
Wirdum 670 21
Wirdum 560 21
Jellum 22
Jellum 840 22
Jellum 670 23
Dokkum 23
Arta large 24
Cora 24
Tera 25
Tara. 25
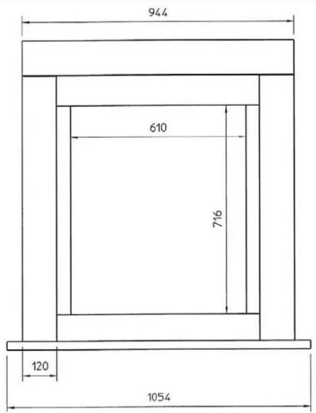
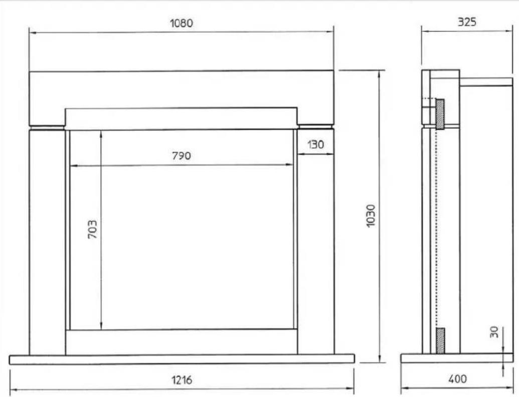
Peca 26
Peca large 26
1 INSTALLATIEVOORSCHRIFT
La cheminée est construite en pierre naturelle, généralement en marbre ou pierre calcaire, ce qui explique les différences de couleur ou de structure qui peuvent apparaitre entre les différents blocs d'une même cheminée.
Il est conseilé de conserver la garantie ainsi que la preuve d'achat ensemble dans un endroit sûr.
Malgré de nombreux contrôle des qualités rigoureux, il est possible qu'une partie de la cheminée soit livrée cassée ou endommagée. Merci de contrôle systématiquement chaque éléments de l'appareil avant montage.
Tout défaut ou dommage signalé après montage n'est pas couvert par la garantie.
« Une cheminée montée est une cheminée acceptée »
Les pieces d'assemblage (1000x90x30) sont disponibles de stock dans toutes les nuances de couleur. Les éléments plus volumineux de la cheminée doivent être commandés.
4.1 Introduction
Vous trouvrez dans ce guide d'installation, les informations nécessaires à l'installation et à l'entretien de votre cheminée.
4.2 Conseils de sécurité
- Ne pas modifier la construction de l'appareil.
- Préparer un endroit propre où les éléments déballés de la cheminée pourront être provisoirement entreprises.
- Contrôler au déballage que la cheminée soit complète et vérifier qu'aucun élément ne soit endommagé.
- S'assurer que la surface sur laquelle la cheminée va etre construite soit parfaitement plane, stable, horizontale et propre.
- Monter la cheminée dans un premier temps sans colle afin de vérifier que chaque bloc soit à la bonne mesure.
- Le collage peut être effectué au moyen de la collè spéciale pierre naturelle fournie avec la cheminée ou de mastic silicone non acide. Si le mastic silicone ou la collè spécial marbre est seulement appliqué par points, la cheminée pourra sans problème être démontée ultérieurement. ÀpRES collage à la collè spécial marbre, le démontage ne poursra être réalisé qu'au moyen d'un marteau de caoutchouc.
4.3 Préparation
La cheminée peut être place de différentes façon :
-
La cheminée est placé directement devant le poêle. Dans ce cas, le dos de la cheminée s'adapte à la façade du poêle.
-
Le poèle est encastré par rapport à la cheminée. Ici, la cheminée sera recouverte de blocs Ytong, Durox ou Promatec.
- La cheminée recouvre partiellement le poêle. Il est important, dans ce cas particulier, de savoir qu'elle saillie aura le poêle par rapport au mur.
Quel que soit le montage choisi parmi ces trois possibilités, l'utilisation de différents passée-partout sera nécessaire afin de compenser d'eventuels définuts.
Plusieurs passè-partout sont livrés avec certains modèles de cheminée. Ils devront parfois être scés à la mesure. Lors de la commande, nous considérons que la cheminée sera montée comme indiqué sur les dessins explicatifs fournis.
La qualité de la surface sur laquelle la cheminée sera montée déterminé en grande partie le résultat final. C'est la raison pour laquelle cette surface doit être plane, horizontale, propre et parfaitement stable. Il suffit souvent, pour assurer une surface de montage ajusté, de placer une couche de feucre sous la plaque de sol de la cheminée.
Retirer ensuite les blocs de cheminée de leur emballage en bois en les contrôleant attentivement afin de déceler toute fissure eventuelle (à ne pas confondre avec la病因 du marbre) ou détiéroration. Mesurer les blocs et vérifier que les mesures correspondant à celles indiquées sur les dessins explicatifs correspondants, fournis en annexes.
Egaliser le sol, si nécessaire, à l'endet (en utilisant par exemple un produit de type Fix & finish). Si la cheminée est en pierre calcaire, il est conseilé de la traiter entièrement avant montage avec un produit d'imprégnation, afin de la protégger contre les tâches.
Utiliser exclusivement du ciment blanc et jamais de ciment gris pour ne pas tâcher la pierre naturelle.
4.3.1 Attention au parquet :
Scier le parquet à la mesure de la plaque de sol de la cheminée, moins 2 cm afin que la plaque le recouvre légèrement.
Si le parquet n'est pas encore posé, la plaque de sol doit être placee de façon à ce que le parquet puisse être par la suite glissé au dessous (egalement à environ 2 cm des bords de la plaque).
Il est conseilé, dans un premier temps, de monter la cheminée sans colle ou mastic afin de pouvoir la démonter facilement en cas de problème.
L'utilisation de cales en plastique permet de résoudre d'eventuelles différences de hauteur.
Enfin, il est conseilé de plâtrer (si nécessaire) après montage de la cheminée.
4.4 Montage de la cheminée
- Marquer le milieu de la cheminée sur le mur contre lequel elle sera montée.
- Désiminer la distance entre la cheminée et le mur arrêté.
FR BE
- Si le mur arrirée n'est pas parfaitement plan, il est possible de l'égaliser par la suite.
- Poser la plaque de sol parfaitement d'équerre avant le montage des autres éléments de la cheminée.
- Placer le poèle et le brancher comme indiqué dans le guide d'installation.
- Placer les deux jambages (piliers) de façon symétrique à une distance appropriée l'un de l'autre. Attention, leur position ne pourrait plus être modifiée.
- Désiminer les ouvertures entre la cheminée et le mur arrêté.
- Remplir les ouvertures entre les piliers en les maçonnant et /ou à l'aide d'un matériel inflammable comme Promatec.
- Monter les piliers contre le mur arrêté.
- Continuer l'installation des éléments de la cheminée.
- Mesurer et scier les passé-partout à la longueur désirée.
- Les éléments à fixer doivent être collés à l'aide de mastic silicone non acide ou de colle spécial marbre à deux composants. Le mastic silicone a l'avantage de secher plus lentement, ce qui permet d'ajuster les éléments de la cheminée plus facilement. De plus, l'utilisation de mastic silicone permet de démonter une cheminée sans problème en utilisant par exemple un fil de nylon. Cela dit, le mastic silicone comme la colle spécial marbre, même utilisés en petites quantités, garantissant tous deux une construction très stable.
- Les joints d'une cheminée en pierre peuvent être replis à l'aide d'un mastic pour céramique. Dans le cas d'une cheminée en pierre calcaire, on peut utiliser un mastic fabriqué à partir des restes d'un passé-partout (poussières/copeaux) et de plâtre (1 mesure de copeaux pour 5 mesures de plâtre).
- Dans le cas de l'utilisation d'un poèle à gaz, s'assurer que tous les branchements de gaz soient en bon état et que le poèle fonctionne correctement.
- Terminer le montage.
4.5 Nettoyage et entretien
- Les parties en marbre ou en pierre naturelle de la cheminée peuvent etre nettoyees à l'aide d'un chiffon propre et sec ou à l'aspirateur.
- Attention! L'utilisation de produits de nettoyage liquides peut tâcher la pierre. Il est pour la même raison déconseilé de poser des vases ou des pots de fleurs sur la cheminée.
- Demander conseil à votre fournisseur si vous désirez tout de même utiliser un produit nettoyant liquide.
Blessum


Marssum


Boksum


Wirdum

Wirdum 840

Wirdum 770


Wirdum 670

Wirdum 560


Jellum

Jellum 840
Jellum 670


Dokkum



Arta large
Cora


Tera


Tara


Peca


Pecalarge


faber
www.faber.nl

info@faber.nl
Saturnus 8 NL-8448 CC Heerenveen
Postbus 219 NL - 8440 AE Heerenveen
T. +31(0)513 656500
F. +31(0)513656501
Notice Facile