WKL 3002 - Chauffage AEG - Notice d'utilisation et mode d'emploi gratuit
Retrouvez gratuitement la notice de l'appareil WKL 3002 AEG au format PDF.
| Caractéristiques | Détails |
|---|---|
| Type de chauffage | Chauffage électrique |
| Puissance | 3000 W |
| Dimensions | 600 x 400 x 200 mm |
| Poids | 10 kg |
| Thermostat | Thermostat réglable intégré |
| Utilisation | Idéal pour le chauffage d'appoint dans les pièces de vie |
| Installation | Montage mural ou sur pied |
| Maintenance | Nettoyage régulier de la grille pour éviter l'accumulation de poussière |
| Sécurité | Protection contre la surchauffe et les projections d'eau |
| Garantie | 2 ans |
| Consommation énergétique | Classe énergétique A |
FOIRE AUX QUESTIONS - WKL 3002 AEG
Questions des utilisateurs sur WKL 3002 AEG
0 question sur cet appareil. Repondez a celles que vous connaissez ou posez la votre.
Poser une nouvelle question sur cet appareil
Téléchargez la notice de votre Chauffage au format PDF gratuitement ! Retrouvez votre notice WKL 3002 - AEG et reprennez votre appareil électronique en main. Sur cette page sont publiés tous les documents nécessaires à l'utilisation de votre appareil WKL 3002 de la marque AEG.
MODE D'EMPLOI WKL 3002 AEG
Notice d'utilisation et de montage
Convector
- Notice d'utilisation 9 1.1 Mettre l'appareil en service 9
1.2 Chauffage 9 1.2.1 Protection contre le gel 9 1.2.2 Limitation du régulateur de température 9 1.3 Règles de sécurité 9 1.4 Entretien et maintenance 9
- Notice de montage 10 2.1 Montage du support mural 10
2.2 Fixation du convecteur 10 2.3 Raccordement électrique 11 Dispositif de sécurité 11
- Garantie 11 3.1 Environnement et recyclage 11
1.1 Mettre l'appareil en service
L'interrupteur (1) sur le côté droit de l'appareil permet de mettre le convecteur en service (position de l'interrupteur I) ou hors service (position de l'interrupteur O).
1.2 Chauffage
En tournant la molette de température (2) vers la gauche, on enclenche le chauffage et on sélectionne la température. Après la mise en service, l'appareil chauffe le local rapidement et de manière homogène. L'air entre par le bas dans l'appareil, y est échauffé et ressort dans le haut de l'appareil par convection à travers la grille de sortie d'air. La température ambience désirée peut être réglée en continu entre 6°C et env. 30°C. Le régulateur de température coupe le chauffage dès que la température ambience réglée est atteinte, laquelle

est ensuite maintenue constante par chauffage intermittent. Il est normal que les molettes de commandes ne soient pas réglées sur la même position pour obtenir la même température dans deux locaux différents. La même chose s'applique à deux radiateurs installés dans le même local. Afin d'éviter une consommation de courant trop élevée lorsque la fenêtre est ouverte, l'appareil devrait être coupé à l'aide de l'interrupteur.
1.2.1 Protection contre le gel
La molette de température (2) est réglée sur
Le régulateur de température enclenche automatiquement le chauffage si la température ambiantе tombe en dessous d'env. +6 °C. Tenir compte de l'adaptation correcte du besoin calorifique à la puissance de chauffage de l'appareil!
1.2.2 Limitation du régulateur de température
Afin de limiter la molette de sélection à un réglage déterminé, détacher les deux pions (3) sur la face arrière du boîtier de commande et les monter des deux côtés du chiffre repéré désiré. Les deux pions peuvent également être utilisés pour la limitation d'une plage de température.

1.3 Règles de sécurité

L'appareil ne peut pas être utilisé
-dans les locaux qui présentent un risque d'incendie ou d'explosion en raison de la présence de produits chimiques, de poussière, de gaz ou vapeurs; - à proximité immédiate de tuyauteries ou récipients transportant ou contenant des substances inflammables ou à risque d'explosion.
Pour cette raison, les distances minimales doivent être respectées.
Dans les ateliers ou autres locaux dans lesquels des gaz d'échappement, des odeurs d'huile et d'essence etc. apparaissent ou dans lesquels on travaille avec des agents d'extinction et des produits chimiques, il peut se produire des nuisances olfactives durables et le cas échéant des contaminations.
La libre sortie de l'air ne peut pas être obstruée. Pour raisons de sécurité, les grilles de ventilation supérieure et inférieure de l'appareil ne peuvent donc être ni entièrement ni partiellement recouvertes, p. ex. par des rideaux, pièces de linge ou autres. On ne peut pas appuyer des objets contre l'appareil ni en placer entre l'appareil et le mur. Dans le flux d'air chaud proche de l'appareil de chauffage, il ne peut pas se couvrir d'objets combustibles en bois, papier, textiles etc. ni de substances inflammables ou présentant un risque.

d'incendie telles que cire, essence, bombes d'aérosols, etc. L'air chaud montant peut, comme pour tous les autres appareils de chauffage similaires, provoquer un changement de coloration du mur.

N'effectuer de travaux susceptibles de dégager des vapeurs inflammables, tels que la pose ou la vitrification de parquet ou de revêtement en PVC ou l'utilisation d'encaustique en bombe de pulvérisation, d'essence et produits similaires, que si l'appareil de chauffage a été mis hors service.
1.4 Entretien et maintenance
On ne peut pas utiliser de produits de nettoyage abrasifs ou mordants pour le nettoyage de l'enveloppe. Nettoyez régulièrement les grilles de ventilation supérieure et inférieure de l'appareil avec un aspirateur.
2. Notice de montage
Le montage et le raccordement des convecteurs AEG doivent être effectués par un spécialiste dans le respect de ces instructions de montage.
Les instructions de montage font partie de l'appareil et doivent être conservées avec soin par son propriétaire. En cas de changement de propriété, elles doivent être remises au propriétaire suivant.
Les convecteurs AEG sont des appareils de chauffage électrique direct qui se fixent au mur et conviennent particulièrement pour le chauffage de petits locaux tels qu'un local de bricolage, une cuisine, une salle de bains, une buanderie, etc.

La première mise en service de l'appareil donne lieu à une formation d'odeurs, aussi est-il nécessaire de veiller à une ventilation suffisante du local (p. ex. fenêtre entrebaillée).
Le convecteur est livré complet avec câble de raccordement et fiche. (Exception: WKL502 C à WKL3002 C)
L'appareil de chauffage ne peut pas être placé directement à côté d'une prise de courant murale!
2.1 Montage du support mural
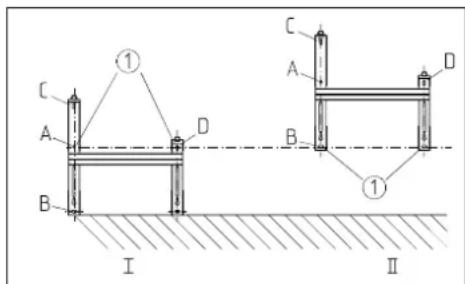
Le support mural est basé sur un point central (voir illustration et tableau ci-dessous). Il peut lui-même servir de gabarit pour la fixation et garantir ainsi la distance nécessaire par rapport au sol. Posez le support mural sur le sol et dessinez l'emplacement des trous inférieurs (①), correspondant aux trous A et D (I).

| Type WKL WKL WKL WKL WKL WKL WKL WKL | ||||||
| 502 752 | 1002 1502 | 2 2002 25 | 02 3002 | |||
| Puisance nominale W 500 750 | 1000 1500 | 2000 2500 | 3000 | |||
| Largeur mm 370 370 445 590 740 890 1036 | ||||||
| Hauteur mm 450 450 450 450 450 | 50 450 450 | |||||
| Profondeur mm 78 78 78 78 78avec support mural 100 100 | 78 78100 100 100 | 00 100 100 | ||||
| Dimension A 121 121 195 343 | 491 639 790 | |||||
| Poidskg | 4,1 4,1 | 4,7 6,1 7,4 | 8,1 10,0 | |||
Soulevez ensuite le support mural, de telle façon que les trous B dans le support mural coincident avec les points (1) que vous venez de dessiner.
Vous pouvez maintenant dessiner à travers les trous C et D dans le support mural les deux trous supérieurs pour la fixation murale (II).
Forer ensuite les trous, placer les chevilles et fixer le support mural avec 4 vis.

2.2 Fixation du convecteur
Accrochez le convecteur par ses fentes d'accrochage situées à la face arrière de l'appareil simultanément sur les 4 languettes du support mural et poussez-le vers le bas pour le bloquer en position. Tournez ensuite le boulon de blocage (4) du support mural dans le sens des aiguilles d'une montre jusqu'à la butée ; la fixation est alors verrouillée.
Pour détacher le convecteur, vous devez effectuer dans l'ordre inverse les mesures qui viennent d'être décrites.

2.3 Raccordement électrique

L'appareil est conçu pour le courant alternatif 230 V.
Respectez les stipulations NFC 15-100, les prescriptions de votre entreprise de distribution d'électricité et de la plaque signalétique. Ne pas installer l'appareil sous une prise de courant.
Sécurité électrique!
Les convecteurs possèdent la classe de protection II (IP24) et la Protection contre les projections (IP24).
Tenir compte de la plaque signalétique !
La tension indiquée doit correspondre à la tension de réseau. Sélectionner une section suffisante pour le conducteur d'alimentation. Pour le raccordement, une prise de courant ou un boîtier de raccordement d'appareil pour raccordement fixe doit être installé à distance d'au moins 10 cm sur le côté de l'appareil de chauffage.
Conformément aux conditions de construction, l'installation électrique posée à demeure doit être équipée d'un dispositif de commutation omnipolaire ayant une ouverture de contact de 3 mm au moins.
Si le cable d'alimentation est endommage, il doit être remplace par le fabricant, son service après-vente ou une personne de qualification similaire afin d'eviter un danger.
Lors de l'installation de l'appareil de chauffage dans des locaux équipés d'une baignoire ou d'une douche, tenir compte du volume de protection suivant NF C 15 100 en respectant les indications sur la plaque signalétique.
Pour les appareils équipés d'une prise de courant et commercialisés en France, il est obligatoire de couper la prise de courant pour effectuer le raccordement électrique.
Dispositif de sécurité
Les convecteurs possèdent un limiteur de température de sécurité qui coupe le chauffage en cas de danger. Si la protection contre les températures excessives a déclenché, la cause doit être éliminée (p. ex. ouverture de sortie d'air bouchée).
Après un temps de refroidissement de quelques minutes, l'appareil se remet en service. Si la protection contre les températures excessives se déclenche à nouveau après la remise en service, un service après-vente autorisé doit être chargé d'éliminer le défaut.

Attention!
Respecter les distances de sécurité (mm) suivant l'illustration suivante.

3. Garantie
La garantie est à faire valeur dans le pays où l'appareil a été acheté. À cette fin, veuillez prendre contact avec la filiale AEG concernée, à défaut l'importateur agréé.

Le montage, les raccordements, la maintenance ainsi que la première mise en service sont à réaliser par un installateur qualifié.
Le fabricant ne saurait être rendu responsable des dommages causés par un appareil qui n'aurait pas été installé ou utilisé conformément à la notice de montage et d'utilisation jointe à l'appareil.
3.1 Environnement et recyclage
Nous vous demandons de nous aider à préserver l'environnement. Pour ce faire, merci de vous débarrasser de l'emballage conformément aux règles nationales relatives au traitement des déchets.
Notice Facile