WKL 3002 - Heizung AEG - Kostenlose Bedienungsanleitung
Finden Sie kostenlos die Bedienungsanleitung des Geräts WKL 3002 AEG als PDF.
Benutzerfragen zu WKL 3002 AEG
0 Frage zu diesem Gerät. Beantworten Sie die, die Sie kennen, oder stellen Sie Ihre eigene.
Eine neue Frage zu diesem Gerät stellen
Laden Sie die Anleitung für Ihr Heizung kostenlos im PDF-Format! Finden Sie Ihr Handbuch WKL 3002 - AEG und nehmen Sie Ihr elektronisches Gerät wieder in die Hand. Auf dieser Seite sind alle Dokumente veröffentlicht, die für die Verwendung Ihres Geräts notwendig sind. WKL 3002 von der Marke AEG.
BEDIENUNGSANLEITUNG WKL 3002 AEG
Gebrauchs- und Montageanweisung
Deutsch
Convector heater
- Gebrauchsanweisung 3 1.1 Geräteness 3
1.2 Heizung 3
1.2.1 Frostschutz 3
1.2.2 Begrenzung des Temperaturreglers 3
1.3 Sicherheitshinweise 3
1.4Wartung 3
- Montageanweisung 4 2.1 Montage der Wandhalterung 4
2.2 Befestigung des Konvektors 4
2.3 Elektrischer AnschluB 5
- Kundendienst und Garantie 5 3.1 Entsorgung von Verpackung und Altgerät 5
Français
1. Gebrauchsanweisung
1.1 Gerä einschalten
Mit dem Schalter (1) an der rechten Seite des Gerätes kann der Konvektor ein-(Schalterstellung I) bzw. ausgeschaltet (Schalterstellung O) werden.
1.2 Heizung
Durch Drehen des Temperatur-Wahlknopfes (2) nach links wird die Heizung eingeschaltet und die Temperatur gewählt. Nach dem Einschalten erwartt das Gerät den Raum schnell und gleichmäßig. Die Luft strömt unter in das Gerät ein, wird Dort erwartt und tritt mit Hilfe der Konvektion ober durch das Luftastrittsgitter aus dem Gerät wieder aus. Die gewünschte Raumtemperatur kann zwischen 6 °C und ca. 30 °C stufenlos eingestellt werden. Der Temperaturregler schaltet die Heizung ab, sobald die eingestellte Raum-

temperatur erreicht ist, die dann durch intermittierendes Heizen konstant gehalten wird. Für die gleiche Temperatur in zwei verschieden Räumen ist es normal, daß die Bedienungsknöfe nicht identisch eingestellt sind. Gleiches gilt für zwei Heizkörper, die im selbst Raum installiert sind. Um bei geöffneten Fenstern einen zu hohen Stromverbrauch zu vermeiden, sollte das Gerät über den Schalter ausgeschaltet werden.
1.2.1 Frostschutz
Der Temperatur-Wahlknopf (2) wird auf 水 eingestellt.
Der Temperatur-Regler schaltet die Heizung automatisch ein, falls die Raumtemperatur unter ca. +6^ absinkt. Richtige Abstimmung des Wärmebedarfs zur Heizleistung des Gerätes beachten!
1.2.2 Begrenzung des Temperaturreglers
Um den Wahlknopf auf eine bestimmte Einstellung zu begrenzen, werden die beiden Stifte (3) auf der Rückseite des Schaltgehäuses gelost und auf beiden Seiten der gewünschten Merkzahl montiert. Die beiden Stifte können ebenfalls für die Begrenzung eines Temperaturbereichs verwendet werden.
1.3 Sicherheitshinweise

Das Gerät damit nicht betrieben werden
- in Räumen, die durch Chemikalien, Staub, Gase oder Dämpfe feuer- oder explosionsgeführdet sind;
- in unmittelbarer Höhe von Leitungen oder Behältnissen, die brennbare oder explosionsgeführde Stoffe führen oder enthalten.

Aus thisem Grund dürfen die Mindestabstände nicht untersritten werden.
In Werkstätten oder sonstigen Räumen, in denen Abgase, Öl- und Benzingeruch usw. aufreten oder mit Löschmitteln und Chemikalien gearbeitet wird, kann es zu länger anhaltenden Geruchsbelastigungen und gegebenenfalls zu Verunreinigungen kommt.
Der frei Luftastrittarf nicht beeinträchtigt werden. Aus Sicherheitsgrunden durren daher die oberen und unteren Luftungsgitter des Gerates weder ganz noch teilweise bedeckt werden, z. B. durch Vorhange, Waschestücke oder dgl. Es durren auch keine Gegenstände an das Gerat angelehtn oder zwischen Gerat und Wand gesteckt werden. Im Warmluftstrom in der Nane des Heizgerates durren sich keine brennbaren Gegenstände aus Holz, Papier, Textilien usw. sowie entzündbare oder feuergefährliche Stoffe wie Wachs, Benzin, Spraydosen usw. befinden.

Durch aufsteigende Warmluft kann, wie bei allen anderen gleichartigen Heizgeräten, an der Wand eine Verfährung auftreten.

Nur bei außer Betrieb gesetztem Heizgerät Arbeiten verrichten, bei denen entzündbare Dämpfe entstehen können, wie z. B. beim Verlegen oder Versiegeln von Parkett bzw. PVC-Belag oder bei der Anwendung von Spray-Bohnerwachs, Benzin oder dergleichen.
1.4 Wartung
Für die Reinigung des Gehäuses dürfen keine scheuernden oder scharfen Reinigungsmittel verwendet werden. Reinigen Sie die oberen und unteren Luftungsgitter des Gerätes regelmäßig mit einem Staubsauger.
2. Montageanweisung
Die Montage und der Anschluß der AEG Konvektoren müssen von einem Fachmann unter Bechtung dieser Montageanweisung durchgeführt werden.
Die Montageanweisung gehört zum Gerät und ist vom Besitzer sorgfältig aufzubewahren. Im Falle eines Besitzerwechsels ist sie dem Nachfolger auszuhändigen.
AEG Konvektoren sind Elektro-Direktehzigerate, die an der Wand befestigt werden und sich besonder fur die Beheizung kleinerer Räume eignen, wie z. B. Arbeitsraum, Küche, Bad, Waschaum usw.

Bei Erstinbetriebnahme des Gerätes tritt eine Geruchsbildung auf, daß sollte für ausreichende Belüftung des Raumes gesorgt werden (z. B. gekippte Fensterstellung).
Der Konvektor wird komplett mit Anschlußleitung und Stecker geliefert. (Ausnahme: WKL502 C bis WKL3002 C) Das Heizgerätarf nicht unmittelbar unterhalb einer Wandsteckdose angebracht werden!
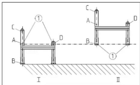
2.1 Montage der Wandhalterung
Die Wandhalterung ist mittelpunktorientiert (siehe Abbildung und unterstehende Tabelle).
Sie kann selbst als Schablone für die Befestigung dienen und darauf den notwendigen Bodenabstand gewährleisten.
Stellen Sie die Wandhalterung auf den Boden und zeichnen Sie die unteren Bohrlocher (①), die den Lochern A und D entsprechen, an (I).

Heben Sie danach die Wandhalterung hoch, undzarso, daB die Bohrungen B in der Wandhalterung deckungsgleich sind mit den gerade angezeichneten Punkten (①).
Jetzt können Sie durch die Bohrungen C und D in der Wandhalterung die beiden oberen LÖcher für die Wandbefestigung anziehnen (II).
Danach LÖcher bohren, Dübel setzen und die Wandhalterung mit 4 Schrauben befestigen.

2.2 Befestigung des Konvektors
Der Konvektor wird mit seinen Aufnahmeschlitzen in der Geräterückseite gleichzeitig auf die 4 Laschen der Wandhalterung gehängt und zur Arretierung heruntergedrückt. Danach wird der Verschlußbolzen (4) der Wandhalterung im Uhrzeigersinn bis zum Anschlag gedreht und damit die Befestigung verriegelt.
Zum Lösen des Konvektors müssen die eben aufgeführten Maßnahmen in umgekehrter Reihenfolge vorgenommen werden.

2.3 Elektrischer Anschluß

Das Gerät ist für Wechselstrom 230 V bestimmt.
Beachten Sie die VDE-Bestimmungen 0100, die Vorschriften Ihres Elektrizitätsversorgungs-Unternehmens und das Leistungsschild.
Elektrische Sicherheit!
Die Konvektoren besitzen Schutzklasse II (回) und Spritzwasserschutz (AP24).
Das Leistungsschild beachten!
Die angegebene Spannung muß mit der Netzspannung übereinstimmen. Ausreichenden Zuleitungsquerschnitt wahren. Für den Anschluß ist im Abstand von mindestens 10 cm seitlich vom Heizgerät eine Steckdose oder Geräte-Anschlußdose für Festanschluß zu installieren.
Die festverlegte elektrische Installation muss nach Errichterbestimmungen mit einer omnipolaren
Schaltvorrichtung ausgerüst werden, die einen Kontaktöffnungsbstand von mindestens 3 mm hat.
Bei sightbaren Beschädigungen der Anschlussleitung des Gerätes muss sie durch den Hersteller oder seinen Kundendienst oder einem qualifizierten Fachmann ersetzt werden, um Gefährung zu vermeiden.
Allgemein gilt:
Bei der Installation des Heizgerätes in Räumen mit Badewanne oder Dusche ist der Schutzbereich nach VDE 0100/DIN 57 100, Teil 701 in Abstimmung mit den Angaben auf dem Leistungsschild zu berücksichtigten.
Sicherheitseinrichtung
Die Konvektoren besitzen einen Sicherheitstemperaturbegrenzer (STB), der bei Gefahr die Heizung abschaltet. Hat der Übertemperaturschutz abgeschaltet, ist die Ursache zu beseitigen (z. B. verdeckte Luftastrittsöffnung).
Nach einer Abkuhlzeit von einigen Minuten geh das Gerät wieder in Betrieb. Spricht bei Wiederinbetriebnahme der Übertemperaturschutz erneut an, ist ein autorisierter Kundendienst zu beauftragen, der die Störung beseitigt.

Achtung!
Sicherheitsabstände (mm) gemäß nachfolgender Abbildung beachten.

3. Kundendienst und Garantie
Informationen zu Kundendienst- und Garantiebedingungen finden Sie in unserem Beiblatt «Kundendienst und Garantie».
3.1 Entsorgung von Verpackung und Altgerät
Verpackungsmaterial entsorgen
Entsorgen Sie das Verpackungsmaterial des Gerätes sachgerecht. Transportverpackungen überlassen Sie dem Fachhandel. Verkaufsverpackungen (Grüner Punkt) entsorgen Sie über DSD (Duales System Deutschland). Alle verwendeten Verpackungsmaterialien sind umweltverträglich und wiederverwertbar.
- Kunststoffeile sind, soweit vorhanden, folgendermaßen gekennzeichnet:
- PE für Polyethylen, z. B. Verpackungsfolien
- EPS für expandiertes Polystyrol, z. B. Styropor-Polstereile (grundsätzlich FCKW-frei)
- POM für Polyoxymethylen, z. B. Kunststoffklammern
-
PP für Polypropylen, z. B. Spannbänder
-
Kartonteile sind aus Altpapier hergestellt.
Altgeräte entsorgen
Aus Umweltschutzgründen müssen alle ausgedienten Geräte fachgerecht nach den geltenden Vorschriften entsorgt werden. Dies gilt für Ihr bisheriges Gerät und, nach dem es eines Tages nicht mehr benutzt wird, auch für Ihr neues Gerät.
Entsorgungshinweise
- Das GeratarfindmitdemHausmullentsorgtwerden.
- Auskunft über Abholtermine oder Sammelpläte erhalten Sie bei der ortlichen Stadtreinigung oder der Gemeindeverwaltung.
Adressen und Kontakte
Vertriebszentrale
EHT Haustechnik GmbH
Markenvertrieb AEG
Gutenstetter Straße 10
90449 Nürnberg
info@eht-haustechnik.de
www.aeg-haustechnik.de
Tel. 0 18 03 / 91 13 23
Fax 09 11 / 96 56 - 44 4
Kundendienstzentrale
Holzminden
Fürstenberger Str. 77
37603 Holzminden
Briefanschrift
37601 Holzminden
Der Kundendienst und Ersatzteilverkauf ist in der Zeit von Montag bis Donnerstag von 7.15 bis 18.00 Uhr und Freitag von 7.15 bis 17.00 Uhr, auch unter den nachfolgenden Telefon- bzw. Telefaxnummern erreichbar:
Kundendienst
Tel. 0 18 03 / 70 20 20 Fax 0 18 03 / 70 20 25
Ersatzteilverkauf
Tel. 01803/702040 Fax 01803/702045
Regionen
AEG Kundendienst
Dortmund
Oespel (Indupark)
Brennaborstr. 19
44149 Dortmund
Postfach 76 02 47
44064 Dortmund
Tel. 02 31 / 96 50 22-11
Fax 02 31 / 96 50 22-77
Hamburg
Georg-Heyken-Str. 4a
21147 Hamburg
Tel. 0 40 / 75 20 18-11
Fax 0 40 / 75 20 18-77
Holzminden
Fürstenberger Str. 77
37603 Holzminden
Ersatzteile
Tel. 0 55 31 / 7 02-1 37
Fax 0 55 31 / 7 02-3 35
Kundendienst
Tel. 0 55 31 / 7 02-111
Fax 0 55 31 / 7 02-1 07
Leipzig
Airport Gewerbepark-Glesien
Ikarusstr. 10
04435 Schkeuditz
Tel. 03 42 07 / 7 55-11
Fax 03 42 07 / 7 55-77
Stuttgart
Weilimdorf
Motorstr. 39
70499 Stuttgart
Tel. 07 11 / 9 88 67-11
Fax 07 11 / 9 88 67-77
Ausland
Schweiz
EHT Haustechnik AG
Industriestrasse 10
CH-5506 Magenwill
Tel. 0 62 / 8 89 92 14
Fax 0 62 / 8 89 91 26
Nederland
AEG Home Comfort
Daviottenweg 36
NL-5222 BH's
Hertogenbosch
Tel. 073 / 6230000
Fax 073 / 6231141
Belgium
AEG Home Comfort
Havenlaan - Av. du port, 104
B-1000 Brussel - Bruxelles
Tel. 02 / 4 22 25 22
Fax 02 / 4 22 25 24
Czech Republic
Stiebel Eltron Czech
K Hajum 946
CZ-Prague 5 - Stodulky
Tel. 0 04 20 / 251 11 61 11 Fax 0 04 20 / 235 51 21 22
Polska
Stiebel Eltron Polska Sp. z o.o.
UI. Instalatorów 9
02-237 Warszawa
Tel. 0 22 / 8 46 48 20
Fax 0 22 / 8 46 67 03
EHT Haustechnik GmbH
Markenvertrieb AEG
Gutenstetter Straße 10
D-90449 Nürnberg
GERMANY
www.aeg-haustechnik.de info@eht-haustechnik.de
H 262 403 545
© EHT-Haustechnik GmbH
EinfachAnleitung