NQ5B4553FBS - Micro-ondes SAMSUNG - Notice d'utilisation et mode d'emploi gratuit
Retrouvez gratuitement la notice de l'appareil NQ5B4553FBS SAMSUNG au format PDF.
| Type de produit | Four micro-ondes combiné |
| Capacité | 28 litres |
| Puissance micro-ondes | 900 W |
| Puissance grill | 1100 W |
| Dimensions intérieures | Dimensions : 32.5 x 22.5 x 32.5 cm |
| Dimensions extérieures | Dimensions : 51.7 x 31.5 x 48.9 cm |
| Poids | 18 kg |
| Matériau de la cavité | Émail céramique |
| Fonctions principales | Micro-ondes, grill, cuisson combinée, décongélation |
| Programmes automatiques | 15 programmes de cuisson préenregistrés |
| Affichage | Écran LED |
| Entretien et nettoyage | Nettoyage facile grâce à l'émail céramique, pas de produits abrasifs recommandés |
| Consommation électrique | Énergie : 1.25 kWh |
| Sécurité | Système de verrouillage de sécurité, protection contre la surchauffe |
| Garantie | 2 ans |
FOIRE AUX QUESTIONS - NQ5B4553FBS SAMSUNG
Téléchargez la notice de votre Micro-ondes au format PDF gratuitement ! Retrouvez votre notice NQ5B4553FBS - SAMSUNG et reprennez votre appareil électronique en main. Sur cette page sont publiés tous les documents nécessaires à l'utilisation de votre appareil NQ5B4553FBS de la marque SAMSUNG.
MODE D'EMPLOI NQ5B4553FBS SAMSUNG
Manuel d'utilisation
NQ5B4553F**
Consignes de sécurité 3
Consignes de sécurité importantes 3
Consignes de sécurité générales 7
Précautions à prendre pour l'utilisation du four à micro-ondes 8
Garantie limitée 9
Définition du groupe de produits 9
Les bons gestes de mise au rebut de ce produit (Déchets d'équipements électriques et électroniques) 9
Installation 10
Accessoires fournis 10
Consignes d'installation 11
Entretien 14
Nettoyage 14
Remplacement (réparation) 14
Précautions contre une période prolongée de non-utilisation 14
Avant de commencer 15
Tableau de commande 15
Horloge 15
Glissières latérales 16
Ustensiles pour micro-ondes 17
Opérations 18
Vue d'ensemble de la fonction 18
Manuel 19
Mode automatique 23
Guide de cuisson automatique 24
Fonctions spéciales 27
Autres fonctions 29
Commande intelligente 30
Cuisiner intelligemment 31
Cuisson manuelle 31
Rapide et facile 38
Dépannage 38
Points de contrôle 38
Codes d'information 43
Annexe 44
Annonce de logiciel de source libre (open source) 44
Consignes de sécurité importantes
LISEZ ATTENTIVEMENT CE MANUEL ET CONSERVEZ-LE PRÉCIEUSEMENT EN VUE D'UNE CONSULTATION ULTÉRIEURE.
AVERTISSEMENT: Si la porte ou les joints de la porte sont endommagés, le four ne doit pas être utilisé tant que ces pièces n'ont pas été réparées par une personne qualifiée.
AVERTISSEMENT : Il est très dangereux pour toute personne non habilitée d'effectuer des manipulations ou des réparations impliquant le démontage de l'habillage de protection contre les micro-ondes.
AVERTISSEMENT : Les liquides et autres aliments ne doivent pas être réchauffés dans des récipients fermés car ils risquent d'exploser.
AVERTISSEMENT : N'autorisez un enfant à utiliser le four sans surveillance que si vous lui avez donné les instructions appropriées lui permettant de se servir de l'appareil en toute sécurité et de comprendre les dangers qu'implique une mauvaise utilisation.
Cet appareil est destiné à une utilisation domestique uniquement et il n'est pas destiné à être utilisé :
- dans l'espace cuisine réservé au personnel de magasins, bureaux ou autres environnements des professionnels;
- dans les fermes;
- par les clients d'hôtels, moteliers et autres lieux résidentiels;
- dans les lieux de type, chambre d'hôtes.
Utilisez uniquement des ustensiles adaptés à la cuisson au four micro-ondes.
Lorsque vous faites réchauffer des aliments dans des récipients en plastique ou en papier, veillez à ce que ces derniers ne s'enflamment pas dans le four.
Ce four micro-ondes est prévu pour faire chauffer des aliments et des liquides. Le séchage des aliments ou de vêtements et le chauffage de compresses chauffantes, pantoufles, éponges, chiffon mouillé ou similaire peut entraîner des blessures, des flammes ou un incendie.
Si de la fumée est constatée (s'échappe de l'appareil), éteignez-le ou débranchez-le de la prise murale et laissez la porte de celui-ci fermée afin de détouffer les flammes.
Si vous faites réchauffer des liquides au four à micro-ondes, l'ébullition peut survenir à retardement. Faites donc bien attention lorsque vous sortez le récipient du four.
Avant de consommer le contenu des biberons et des petits pots pour bébé, vérifiez-en toujours la température pour éviter tout risque de brûlure ; pour ce faire, mélangez-en le contenu ou secouez-les.
Consignes de sécurité
Ne faites jamais réchauffer d'œufs (frais ou durs) dans leur coquille car ils risquent d'éclater, et ce même une fois le cycle de cuisson terminé.
Le four doit être nettoyé régulièrement afin d'enlever tout reste de nourriture.
En négligeant la propriété de votre four, vous risquez d'en déterminer les surfaces et par conséquent, d'en réduire la durée de vie et de créer des situations dangereuses.
L'appareil est destiné à être utilisé en version encastrée uniquement. L'appareil ne doit pas être installé dans un élément de cuisine.
Les récipients métalliques pour les aliments et les boissons ne sont pas autorisés pour une cuisson au four à micro-ondes.
Veillez à ne pas déplacer le plateau tournant lorsque vous sortez des récipients de l'appareil. (Modèles avec plateau tournant uniquement)
Ne tentez jamais de nettoyer l'appareil avec un nettoyeur vapeur. Ne tentez jamais de nettoyer le four au jet d'eau.
L'appareil n'est pas destiné à être installé dans un véhicule (ex. : caravane ou tout autre véhicule similaire).
Cet appareil n'est pas conçu pour être utilisé par des personnes (y compris les enfants) dont les capacités physiques, sensorielles ou mentales sont réduites, ou ayant une expérience et des connaissances insuffisantes sur le sujet, sauf si celles-ci sont sous la surveillance de la personne responsable de leur sécurité ou si cette dernière leur a expliqué comment utiliser l'appareil.
Les enfants doivent rester sous la surveillance d'un adulte afin de s'assurer qu'ils ne jouent pas avec l'appareil.
Cet appareil peut être utilisé par des enfants à partir de 8 ans et des personnes ayant des capacités physiques, sensorielles ou mentales réduites ou un manque d'expérience et de connaissances, uniquement s'ils sont assistés ou si vous leur avez donné les instructions appropriées leur permettant de se servir de l'appareil en toute sécurité et de comprendre les risques encourus. Les enfants ne doivent pas jouer avec l'appareil. Le nettoyage et l'entretien de l'appareil ne doit pas être effectué par un enfant sans surveillance.
Cet appareil doit pouvoir être débranché de l'alimentation après installation. Pour que l'appareil puisse être facilement débranché une fois en place, veillez à ce que la prise murale reste accessible ou faites poser un interrupteur sur le câblage fixe, conformément aux normes de câblage.
Si un cordon d'alimentation sans prise murale est installé sur l'appareil, le moyen de débranchement doit être incorporé dans le câblage fixe, conformément aux règles de câblage.
Si le cordon d'alimentation est endommagé, il doit être remplaçé par le fabricant, son réparateur agréé ou par toute personne de qualification相似的中文回答如下: 根据提供的规则,以下是纠正后的文本。请注意,不会添加任何未在原始文本中出现的词。 纠正后的文本: 若电源线损坏,必须由制造商、其授权维修人员或具有同等资格的人士更换,以避免任何危险。 请记住,仅纠正了拼写和语法错误,并保持原文内容不变。
La méthode de fixation indiquée ne doit pas utiliser d'adhésifs, car ceux-ci ne sont pas considérés comme un moyen de fixation fiable.
Ce four doit être positionné dans une direction appropriée et à une hauteur permettant un accès facile à la zone intérieure et aux commandes.
Avant d'utiliser votre four pour la première fois, celui-ci doit fonctionner pendant 10 minutes avec de l'eau.
Si l'appareil génère un bruit anormal, une odeur de brûlé ou de la fumée, débranchez immédiatement la prise et contactez le service de dépannage le plus proche.
AVERTISSEMENT : En raison des températures élevées que le four génère, l'appareil ne doit être utilisé par des enfants que sous la surveillance d'un adulte lorsqu'il fonctionne en mode combiné.
Cet appareil devient très chaud pendant son utilisation. Prenez garde à ne pas toucher les éléments chauffants situés à l'intérieur du four.
Si cet appareil dispose d'une fonction de nettoyage, lors du nettoyage, les surfaces peuvent être plus chaudes que d'habitude et les enfants doivent être tenus à l'écart. La fonction de nettoyage dépend du modèle.
AVERTISSEMENT : Les parties accessibles peuvent devenir très chaudes pendant l'utilisation. Les enfants en bas âge doivent être tenus à l'écart.
N'utilise jamais de produits abrasifs ou de grattoirs métalliques pour nettoyer la vitre de la porte du four; ils pourraient en rayer la surface et, par conséquent, casser le verre.
Un nettoyeur vapeur ne doit pas être utilisé.
AVERTISSEMENT : Afin d'éviter tout risque d'électrocution, veillez à ce que l'appareil soit hors tension avant de procéder au remplacement de l'ampoule.
L'appareil ne doit pas être installé derrière une porte décorative, afin d'éviter tout risque de surchauffe.
Consignes de sécurité
AVERTISSEMENT : L'appareil et ses pièces accessibles deviennent très chauds pendant l'utilisation.
Prenez garde à ne pas toucher les éléments chauffants.
Les enfants de moins de 8 ans ne doivent pas s'approcher de l'appareil s'ils sont sans surveillance.
ATTENTION : Le processus de cuisson doit être effectué sous surveillance. Un processus de cuisson rapide doit être sous surveillance continue.
Lors de l'utilisation du four, la porte ou la surface extérieure peut devenir chaude.
Lors de l'utilisation du four, les surfaces accessibles peuvent devenir très chaudes.
Les surfaces sont susceptibles de devenir chaudes pendant l'utilisation.
Les appareils ne sont pas conçus pour être utilisés avec une minuterie extérieure ou une télécommande.
Cet appareil peut être utilisé par des enfants à partir de 8 ans et des personnes ayant des capacités physiques, sensorielles ou mentales réduites ou un manque d'expérience et de connaissances, uniquement s'ils sont assistés ou si vous leur avez donné les instructions appropriées leur permettant de se servir de l'appareil en toute sécurité et de comprendre les risques encourus. Les enfants ne doivent pas jouer avec l'appareil. Le nettoyage et l'entretien par l'utilisateur de l'appareil ne doit pas être effectué par un enfant âgé de moins de 8 ans si celui-ci est sans surveillance.
Maintenez l'appareil et son cordon hors de la portée des enfants âgés de moins de 8 ans.

Veuillez placer le cadre plié vers l’arrière, afin de soutenir la position de repos lors de la cuisson d’éléments lourds. (Selon le modèle)
Consignes de sécurité générales
Toute modification ou réparation doit être effectuée par du personnel qualifié uniquement. Ne faites pas chauffer des aliments ou des liquides fermés dans des récipients pour la fonction micro-ondes.
N'utilisez pas de benzène, de diluant, d'alcool ou de nettoyeur vapeur ou haute pression pour nettoyer le four.
N'installez pas le four : près d'un radiateur ou d'une matière inflammable; dans des lieux humides, huileux, poussiéreux ou exposés à la lumière directe du soleil ou à l'eau; dans des endroits avec un risque de fuite de gaz; ou sur une surface non plane.
Ce four doit être correctement relié à la terre en conformité aux normes locales et nationales. Utilisez régulièrement un chiffon sec pour retirer les substances étrangères générées sur les bornes et les points de contact de la fiche d'alimentation.
Ne tirez pas sur le cordon d'alimentation et faites en sorte de ne jamais le plier à l'excès ou de poser des objets lourds dessus.
En cas de fuite de gaz (propane, GPL, etc.), aérez immédiatement. Ne touchez pas non plus l'appareil.
Ne manipulez pas le cordon d'alimentation avec les mains mouillées.
Lorsque le four est en marche, ne l'éteignez pas en débranchant le cordon d'alimentation.
N'insérez pas vos doigts ou des substances étrangères. Si des substances étrangères pénètrent dans le four, débranchez le cordon d'alimentation et prenez contact avec un centre de réparation Samsung local.
N'exercez pas de pression excessive ni de choc sur le four.
Ne placez pas le four sur des objets fragiles.
Veillez à ce que la tension, la fréquence et l'intensité du courant soient conformes aux caractéristiques de l'appareil.
Branchez fermement la fiche d'alimentation dans la prise murale. N'utilisez pas d'adaptateurs multiprise, de rallonges ou de transformateurs électriques.
N'accrochez pas le cordon d'alimentation sur des objets métalliques. Assurez-vous que le cordon passe entre les objets ou derrière le four.
N'utilise jamais une fiche d'alimentation ou un cordon d'alimentation endommagé ou une prise murale mal fixée. En cas de fiches ou de cordons d'alimentation endommagés, prenez contact avec un centre de réparation Samsung local.
Ne versez et ne vaporisez jamais d'eau directement sur le four.
Ne posez pas d'objets sur le dessus du four, à l'intérieur ou sur la porte.
Ne vaporisez pas de substances volatiles, telles que de l'insecticide, sur la surface du four.
N'entreposez aucun produit inflammable dans le four. Du fait que les vapeurs d'alcool peuvent entrer en contact avec les parties chaudes du four, faites attention lorsque vous faites chauffer des aliments ou des boissons contenant de l'alcool.
Les enfants peuvent se cogner ou se coincer les doigts avec la porte. Lors de l'ouverture/fermeture de la porte, tenez les enfants à l'écart.
Avertissement pour la cuisson au four à micro-ondes
Si vous faites réchauffer des boissons au four à micro-ondes, l'ébullition peut survenir à retardement ; faites donc toujours bien attention lorsque vous manipulez le récipient. Laissez toujours reposer les boissons au moins 20 secondes avant de les manipuler. Si nécessaire, mélangez pendant le réchauffage. Remuez toujours après le réchauffage.
En cas de brûlure, effectuez les gestes de premiers secours suivants :
- Immergez la zone brûlée dans de l'eau froide pendant au moins 10 minutes;
- Recouvrez-la d'un tissu propre et sec;
- N'applique aucune crème, huile ou lotion;
Pour éviter d'endommager le plateau ou la grille, ne le/la plongez pas dans l'eau immédiatement après la cuisson.
N'utilise pas le four pour une cuisson à bain d'huile car la température de l'huile ne peut pas être régulée. Cela pourrait entraîner un débordement soudain d'huile chaude.
Précautions à prendre pour le four à micro-ondes
Utilisez uniquement des ustensiles adaptés à la cuisson aux micro-ondes. N'utilisez pas de récipients métalliques, de vaisselle importante des ornements dorés ou argentés, de brochettes, etc.
Retirez les attaches métalliques. Un arc électrique peut se former.
N'utilise pas le four pour faire sécher du papier ou des vêtements.
Utilisez des temps de cuisson ou de chauffe réduits pour les petites quantités d'aliments afin de leur éviter de surchauffer et de brûler.
Tenez le cordon et la fiche d'alimentation à distance de sources d'eau et de chaleur.
Pour éviter le risque d'explosion, ne faites pas chauffer d'œufs avec leur coquille ou des œufs durs. Ne faites pas chauffer de récipients fermés hermétiquement ou sous vide, des noisettes, des tomates, etc.
Ne couvrez jamais les orifices de ventilation du four avec un torchon ou du papier. Il existe un risque d'incendie. Le four peut surchauffer et s'éteindre automatiquement. Il restera arrêté jusqu'à ce qu'il ait suffisamment refroidi.
Utilisez toujours des maniques lorsque vous sortez un plat du four.
Remuez les liquides à la moitié du temps de chauffe et laissez reposer au moins 20 secondes une fois le temps écoulé pour éviter les projections brûlantes.
Lorsque vous ouvrez la porte du four, maintenez une certaine distance entre vous et l'appareil pour éviter d'être brûlé par l'air chaud ou la vapeur sortant du four.
Ne faites jamais fonctionner le four à vide. Le four s'arrête automatiquement pendant 30 minutes pour des raisons de sécurité. Nous vous recommandons de laisser en permanence un verre d'eau à l'intérieur du four ; ainsi, si vous le mettez en marche par inadvertance alors qu'il est vide, l'eau absorbera les micro-ondes.
Installez le four en respectant les dégagements indiqués dans le présent manuel. (Voir Installation du four micro-ondes).
Soyez prudent lorsque vous branchez d’autres appareils électriques sur une prise située à proximité du four.
Précautions à prendre pour l'utilisation du four à micro-ondes
La non-observation des précautions d'emploi suivantes peut se traduire par une exposition dangereuse à l'énergie des micro-ondes.
- N'utilisez pas le four avec la porte ouverte. Ne manipulez pas les systèmes de verrouillage (loquets de la porte). N'insérez pas d'objets dans les orifices de verrouillage de sécurité.
- Ne placez aucun objet entre la façade du four et la porte et ne laissez aucun résidu alimentaire ni aucun reste de produit d'entretien s'accumuler sur les surfaces assurant l'étanchéité. Maintenez la porte et les joints d'étanchéité propres en permanence : après chaque utilisation du four, essuyez-les d'abord avec un chiffon humide, puis avec un chiffon doux et sec.
- N'utilisez pas le four si celui-ci est endommagé. Utilisez-le uniquement après l'avoir fait réparer par un technicien qualifié.
Important : la porte du four doit fermer correctement. La porte ne doit pas être courbée ; les charnières de la porte ne doivent pas être cassées ou lâches ; les joints de la porte et les surfaces d'étanchéité ne doivent pas être endommagées.
Tous les ajustements et réparations doivent être effectués par un technicien qualifié.
Garantie limitée
Samsung facturera les travaux de réparation lorsqu’un accessoire doit être réparé ou un défaut esthétique corrigé, si l’endommagement de l’appareil ou de l’accessoire a été occasionné par le client. Les éléments concernés par cette stipulation sont :
- Une porte, des poignées, un panneau extérieur ou un tableau de commande bosselé(es), rayé(es) ou cassé(es).
- Un plateau, un guide de plateau roulant, un coupleur, ou une grille métallique brisée ou manquante.
Utilisez ce four uniquement pour l'usage auquel il est destiné, tel que décrit dans le présent manuel. Les avertissements et les consignes de sécurité importantes contenus dans ce manuel ne sont pas exhaustifs. Il est de votre responsabilité de faire appel à votre bon sens et de faire preuve de prudence et de minutie lors de l'installation, de l'entretien et de l'utilisation du four. Ces consignes d'utilisation couvrant plusieurs modèles, les caractéristiques de votre four micro-ondes peuvent différer légèrement de celles décrites dans ce manuel et certains symboles d'homologation peuvent ne pas s'avérer. Pour toute question ou doute, prenez contact avec un centre de réparation Samsung local ou recherchez de l'aide et des informations en ligne sur www.samsung.com.
Utilisez ce four uniquement pour faire chauffer des aliments. Il est uniquement destiné à un usage domestique. Ne faites jamais chauffer de textiles ou de coussins remplis de grains. Le fabricant ne peut être tenu responsable des dommages provoqués par une utilisation non conforme ou incorrecte du four.
Pour éviter de détériorer la surface du four et de générer des situations dangereuses, assurez-vous que le four soit toujours propre et bien entretenu.
Définition du groupe de produits
Cet appareil est un équipement qui utilise des fréquences ISM de classe B groupe 2. Le groupe 2 contient tous les équipements ISM dans lesquels l'énergie radioélectrique est intentionnellement générée et/ou utilisée sous la forme de radiations électromagnétiques pour le traitement de matière ainsi que les équipements d'usinage par électro-érosion et de soudure à l'arc.
Les équipements de classe B sont des équipements adaptés à l'usage dans les établissements domestiques et ceux directement reliés à un réseau d'alimentation électrique basse tension qui alimente les bâtiments utilisés à des fins domestiques.
Les bons gestes de mise au rebut de ce produit (déchets d'équipements électriques et électroniques)

(Applicable aux pays disposant de systèmes de collecte séparés)
Ce symbole sur le produit, ses accessoires ou sa documentation indique que ni le produit, ni ses accessoires électroniques usagés (chargeur, casque audio, câble USB, etc.) ne peuvent être jetés avec les autres déchets ménagers. La mise au rebut incontrôlée des déchets représentant des risques environnementaux et de santé publique, veuillez séparer vos produits et accessoires usagés des autres déchets. Vous favoriserez ainsi le recyclage de la matière qui les compose dans le cadre d'un développement durable.
Les particuliers sont invités à contacter le magasin leur ayant vendu le produit ou à se renseigner auprès des autorités locales pour connaître les procédures et les points de collecte de ces produits en vue de leur recyclage.
Les entreprises et particuliers sont invités à contacter leurs
fournisseurs et à consulter les conditions de leur contrat de vente. Ce produit et ses accessoires ne peuvent être jetés avec les autres déchets
Pour obtenir des informations sur les engagements environnementaux de Samsung et sur les obligations réglementaires spécifiques à l'appareil (par ex. la règlementation REACH, la directive DEEE, la norme relative aux Batteries), rendez-vous sur :
Cet appareil et ses accessoires se recyclent
Points de collecte sur www.quefaredemesdechets.fr
Privilégiez la réparation ou le don de votre appareil !
Accessoires fournis
Assurez-vous que toutes les pièces et tous les accessoires sont inclus dans l'emballage de l'appareil. Si vous avez un souci avec le four ou ses accessoires, contactez un service après-vente Samsung ou le revendeur.
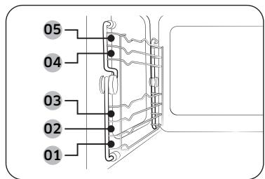
Coup d'œil sur le four
Tableau de commande
02 Glissières latérales
03 Verrouillage de sécurité de la porte
04 Porte
05 Poignée de la porte
Accessoires
Le four est livré accompagné de plusieurs accessoires pour vous assister dans la préparation de différents types d'aliments.
Plaque en céramique (Utile pour le mode micro-ondes.)
Plaque à pâtisserie (Ne pas utiliser pour le mode micro-ondes.)
Plateau métallique (Util pour les modes Menu rapide et Grill.)
3 Vis (M4 L25)

Remarque
Reportez-vous à la section Cuisiner intelligemment aux pages 31 à 38 pour déterminer l'accessoire approprié pour vos plats.
Consignes d'installation
Informations techniques générales
| Alimentation électrique | 230 V ~ 50 Hz | |
| Dimensions (L x H x P) | Taille définie | 595 x 456 x 570 mm |
| Taille encastrée | 560 x 446 x 549 mm | |
Cet appareil est conforme aux règlements UE.
Mise au rebut de l'emballage et de l'appareil
L'emballage est recyclable.
L'emballage peut se composer des matériaux suivants :
- un carton;
- un film de polyéthylène (PE) ; polystyrène sans CFC (mousse rigide PS).
Veuillez éliminer ces matériaux de manière responsable, conformément aux règlements gouvernementaux.
Les autorités peuvent vous fournir des informations concernant la mise au rebut des appareils domestiques de manière responsable.
Sécurité
Cet appareil ne doit être raccordé que par un technicien qualifié. Le four n'est pas conçu pour une utilisation dans un environnement commercial. Il doit être utilisé pour la cuisson d'aliments dans un environnement domestique. L'appareil est chaud pendant et après l'utilisation. - Faites preuve de prudence en présence de jeunes enfants.
Raccordement électrique
Le réseau électrique de la maison auquel l'appareil est branché doit être conforme aux réglementations nationales et locales.
L'appareil doit pouvoir être débranché de l'alimentation après l'installation. Pour que l'appareil puisse être facilement débranché une fois en place, veillez à ce que la prise murale reste accessible ou faites poser un interrupteur sur le câblage fixe, conformément aux normes de câblage.
Installation dans le meuble
Les meubles de cuisine en contact avec le four doivent être résistants à une chaleur de 100°C
Samsung décline toute responsabilité pour les dommages sur les meubles dus à la chaleur.
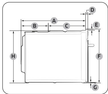
Dimensions requises pour l'installation (Ce produit est destiné aux produits à encastrer.)

Four (mm)
| A | 560 | F | 595 |
| B | 446 | G | 354 |
| C | 549 | H | 85 |
| D | 21 | I | 456 |
| E | 341 |

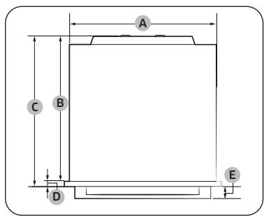
Four (mm)
| A | 595 |
| B | 85 |
| C | 360 |
| D | 6 |

Four (mm)
| A | 549 | E | 10 |
| B | 233 | F | 456 |
| C | 316 | G | 6 |
| D | 21 | H | 446 |

Four (mm)
| A | 560 | D | 21 |
| B | 549 | E | 45 |
| C | 570 | ||

Meuble encastré (mm)
| A | 600 |
| B | 564 à 568 minimum |
| C | 550 minimum |
| D | 446 minimum / 450 maximum |
| E | 50 minimum |
| F | 200 cm2 |
| G | 200 cm2 |
| H | Espace pour la prise électrique (Orifice de Ø 30) |


Meuble sous évier (mm)
| A | 550 minimum |
| B | 564 minimum / 568 maximum |
| C | 446 minimum / 450 maximum |
| D | 50 |
| E | 200 cm² |

Remarque
La hauteur minimum requise (c) est pour l'installation du four seul.
Installation avec une table de cuisson
Pour installer une table de cuisson sur le four, consultez les instructions d'installation de cette dernière pour connaître l'espace d'installation requis.
Montage du four

- Faites glisser le four partiellement dans la niche. Acheminez le câble électrique jusqu'à la source d'alimentation.

- Faites glisser le four entièrement dans la niche.

- Fixez le four à l'aide des deux vis (4 x 25 mm) fournies.

- Effectuez le branchement électrique. Vérifiez que l'appareil fonctionne.

01 Poignée de la porte
02 Poignée latérale
Veillez à tenir l'appareil à l'aide des 2 poignées latérales et de la poignée de la porte lorsque vous déballez le produit.
Une fois l'installation terminée, retirez le film protecteur, l'adhésif et autres éléments d'emballage, et sortez les accessoires fournis présents à l'intérieur du four. Pour retirer le four du meuble, débranchez tout d'abord le cordon d'alimentation puis retirez les 2 vis de chaque côté du four.
Nettoyage
Nettoyez le four régulièrement pour éviter que des impuretés se forment sur ou à l'intérieur du four. Prêtez également une attention particulière à la porte, aux joints de la porte (sur les modèles concernés uniquement).
Si la porte ne s'ouvre pas ou ne se ferme pas correctement, vérifiez d'abord s'il n'y a pas d'impuretés qui se sont formées sur les joints de la porte. Utilisez un chiffon doux avec de l'eau savonneuse pour nettoyer les surfaces intérieures et extérieures du four. Rincez et séchez minutieusement.
Pour retarder les impuretés incrustées produit à l'intérieur du four
- Lorsque le four est vide, mettez une tasse de jus de citron dilué au centre à l’intérieur.
- Faites chauffer le four pendant 10 minutes à puissance maximale.
- Une fois le cycle terminé, attendez que le four refroidisse. Ensuite, ouvrez la porte et nettoyez le compartiment de cuisson.

Attention
Veillez à ce que la porte et les joints de la porte soient toujours propres et assurez-vous que la porte s'ouvre et se ferme correctement. Si ce n'est pas le cas, le cycle de vie du four peut en être réduit. - Faites attention à ne pas renverser d'eau à l'intérieur des orifices de ventilation du four. N'utilisez aucune substance abrasive ou chimique pour le nettoyage. - Après chaque utilisation du four, utilisez un détergent doux pour nettoyer le compartiment de cuisson, après avoir attendu que le four refroidisse.

Avertissement
Ce four ne possède pas de pièces remplaçables par l'utilisateur à l'intérieur. N'essayez pas de remplacer ou de réparer le four vous-même.
- Si vous rencontrez un problème avec les charnières, les joints et/ou la porte, prenez contact avec un technicien qualifié ou un centre de réparation Samsung local pour obtenir de l'assistance technique. Si vous souhaitez remplacer l'ampoule, prenez contact avec un centre de réparation Samsung local. Ne la remplacez pas vous-même.
- Si vous rencontrez un problème avec la protection extérieure du four, débranchez d'abord le câble d'alimentation de la source, puis contactez un centre de service Samsung local.
Précautions contre une période prolongée de non-utilisation
Si vous n'utilisez pas le four pendant une période prolongée, débranchez le câble d'alimentation et déplacez le four dans un endroit sec et sans poussière. La poussière et l'humidité qui se forment à l'intérieur du four peuvent affecter les performances du four.
Vous devez connaître certains composants avant de réaliser directement une recette.
Tableau de commande
Le tableau en façade est disponible dans une vaste gamme de matériaux et de couleurs. À des fins d'amélioration de la qualité, l'aspect réel du four est sujet à modification sans préavis.



| 01 | Molette de sélection du mode | Tournez la Molette de sélection du mode pour allumer le panneau de commande ou pour sélectionner la fonction ou le mode de cuisson de votrechoix. |
| 02 | Température | Utilisez pour modifier la température. |
| 03 | Niveau de puissance | Utilisez pour modifier le niveau de puissance. |
| 04 | Horloge | Appuyez sur ce bouton pour modifier l'houre actuelle. |
| 05 | Minuterie | Appuyez sur ce bouton pour utiliser la fonction de minuterie de cuisine. |
| 06 | Écran | Affiche le menu, les informations et la progression de la cuisson. |
| 07 | Commande intelligente | Activez ou désactivez la fonction Commande intelligente. REMARQUE La connexion facile doit être réglée avant d'utiliser cette fonction. |
| 08 | OK | Sélectionnéz la valeur actuelle. |
| 09 | Start | Appuyez sur ce bouton pour démarrer le fonctionnement du four. |
| 10 | Éclairage | Appuyez sur ce bouton pour allumer ou éteindre l'éclairage interieur du four. • Maintenez ce bouton,enforcé pendant 3 secondes pour activer oudéactiver. Le bouton Sécurité enfants n'est disponible qu'en état deveille. |
| 11 | Retour | Appuyez sur ce bouton pour passer à l'écran précédent ou pour annuler lacuisson. |
| 12 | Stop | Appuyez sur ce bouton pour arrêté le fonctionnement du four. |
| 13 | Molette de sélection de la valeur | Tournez la Molette de sélection de la valeur pour ajuster la valeur deréglage pour l'élément que vous avez sélectionné. Tournez-la vers la droitepour augmenter la valeur ou vers la gauche pour la diminuier. |
Horloge
Il est important de régler l'heure correctement afin de garantir le bon fonctionnement automatique de l'appareil.

Réglage de l'heure de l'horloge
- Maintenez ce bouton enfoncé (P) pendant 3 secondes.
- Réglez l'horloge (heures et minutes) à l'aide de la molette de sélection de la valeur et du bouton OK.

Remarque
- Ne pouvez pas modifier l'heure de l'horloge si le four est en marche.
Glissières latérales

- Insérez les accessoires dans leur position correcte à l'intérieur du four.
- Soyez prudent lorsque vous retirez les ustensiles et/ou les accessoires chauds du four. Les plats ou les accessoires chauds peuvent provoquer des brûlures.
| 01 | Niveau 1 | Fonction micro-ondes |
| 02 | Niveau 2 | Fonction four |
| 03 | Niveau 3 | |
| 04 | Niveau 4 | |
| 05 | Niveau 5 |
Les micro-ondes sont des ondes électromagnétiques à haute fréquence. Le four utilise le magnétron intégré pour générer des micro-ondes qui sont utilisées pour cuire ou réchauffer les aliments sans les déformer ou les décolorer.

- Le magnétron génère des micro-ondes qui se répartissent de façon homogène à travers le système de distribution tournant. C'est pourquoi les aliments sont cuits de manière uniforme.
- Les micro-ondes sont absorbées par les aliments sur une profondeur d'environ 2,5 cm. Puis, les micro-ondes se diffusent à l'intérieur des aliments alors que la cuisson se poursuit.
- La durée de cuisson dépend des conditions suivantes des aliments.
Quantité et densité Teneur en eau - Température initiale (notamment en cas de congélation)
Remarque
Les aliments cuits conservent la chaleur au cœur une fois la cuisson terminée. C'est pourquoi vous devez respecter les temps de repos spécifiés dans ce manuel, qui garantissent une cuisson uniforme jusqu'au cœur.
Ustensiles pour micro-ondes
Les ustensiles utilisés pour le mode Micro-ondes doivent laisser les micro-ondes les traverser et pénétrer dans les aliments. Les métaux tels que l'acier inoxydable, l'aluminium et le cuivre réfléchissent les micro-ondes. Par conséquent, n'utilisez pas d'ustensiles composés de matériaux métalliques. Les ustensiles marqués comme adaptés à la cuisson au four à micro-ondes peuvent toujours être utilisés en toute sécurité. Pour obtenir plus d'informations sur les ustensiles adaptés, réferez-vous aux directives suivantes et placez un verre d'eau ou des aliments à l'intérieur.
Exigences :
Fond plat et bords droits. Couvercle hermétique. Récipient bien équilibré avec des poignées pesant moins lourd que le récipient principal.
| Matériau | Adapté à la cuisson aux micro-ondes | Description |
| Papier aluminium | Δ | Utilisez pour une petite quantité afin d'éviter la surcuisson des alimentes. Des arcs électriques peuvent se former si le papier est trop près des parois ou si vous utilisez une trop grande quantité de papier. |
| Plat croustilleur | Ο | Ne l'utilisez pas pour un temps de préchauffage supérieur à 8 minutes. |
| Porcelaine ou terre cuite | Ο | S'ils ne comportent pas d'ornements métalliques, les recipients en céramique, en terre cuite, en faience et en porcelaine sont généralement adaptés à la cuisson au four à micro-ondes. |
| Plats jetables en carton ou en polyester | Ο | Certain aliments surgelés sont emballés dans ce type de plast. |
| Matériau | Adapté à la cuisson aux micro-ondes | Description | |
| Emballages de fast-food | Tasses ou réciements en polystyrrène | ○ | Une température trop élevé risque de les faire fondre. |
| Sacs en papier ou journal | × | Ils peuvent s'enflammer. | |
| Papier recyclé ou ornements métalliques | × | Ils peuvent creator des arcs électriques. | |
| Plats en verre | Plats allant du four à la table | ○ | Adaptés à la cuisson au micro-ondes sauf s'ils comportent des ornements métalliques. |
| Plats en cristal | ○ | Les objets fragiles peuvent se briser ou se fendre en cas de chauffage trop rapide. | |
| Pots en verre | ○ | Adaptés au réchauffage uniquement. Retirez le couvercle avant la cuisson. | |
| Métal | Plats | × | Ils peuvent provoquer des arcs électriques ou s'enflammer. |
| Sacs de congélation avec attaches métalliques | × | ||
| Papier | Assiettes, tasses, serviettes de table et papier absorbant | ○ | Utilisez pour une cuisson de courte durée. Ils permettent d'absorber l'excess d'humidité. |
| Papier recyclé | × | Provoque des arcs électriques. | |
Avant de commencer
| Matériau | Adapté à la cuisson aux micro-ondes | Description | |
| Plastique | Récipients | ○ | Utilisez des récipients en thermoplastique uniquement. Certaines matières plastiques peuvent se voiler ou se décolorer lorsqu'elles sont soumises à des températures élevées. |
| Film étirable | ○ | Utilisez-le pour conserver l'humidité après la cuisson. | |
| Sacs de congélation | △ | Utilisez des sacs supportant la température d'ébullition ou adaptés à la cuisson au four uniquement. | |
| Papier paraffiné ou sulfurisé | ○ | Utilisez-le pour conserver l'humidité et éviter les éclaboussures. | |
O: Adapté à la cuisson aux micro-ondes
Pas adapté à la cuisson au four à micro-ondes
Opérations
Vue d'ensemble de la fonction
| Fonction | Plage de températures(Puissances) | Température (Puisance)par défaut | ||
| Manuel | Micro-ondes | 100 à 800 W | 800 W | |
| L'énergie des micro-ondes permet de faire cuire ou réchauffer les alimentés sans en altrérer la forme ni la couleur. | ||||
| Micro-ondes + Convection | 40 à 200 °C100 W à 600 W | 180 °C300 W | ||
| Les éléments chauffants générent de la chaleur et le ventilateur de convection répartit la chaleur dans le four, laquelle est renforcée par l'énergie des micro-ondes. | ||||
| Micro-ondes + Gril | 40 à 200 °C100 W à 600 W | 200 °C300 W | ||
| Les éléments chauffants générent de la chaleur, qui est renforcée par l'énergie des micro-ondes. | ||||
| Convection | 40 à 230 °C | 160 °C | ||
| L'élement chauffant postérieur génére de la chaleur, distribuée de façon uniforme par le ventilateur de convection. Utilise ce mode pour la cuisson et le rôtissage sur différents niveaux en même temps. | ||||
| Chaleur tournante classique | 40 à 230 °C | 180 °C | ||
| La chaleur est généree par les éléments chauffants supérieur et inférieur avec les ventilateurs. Ce réglage convient pour la cuisson traditionnelle et le rôtissage. | ||||
| Fonction | Plage de températures(Puissances) | Température (Puissance)par défaut | ||
| Manuel | Grand gril | 150 à 230 °C | 220 °C | |
| Le gril à grande surface émet de la chaleur. Utilisezece mode pour faire brunir en surface les alimentés (la viande, les lasagnes ou les gratins par exemple). | ||||
| Gril ventilation | 40 à 230 °C | 180 °C | ||
| Les deux éléments chauffants supérieurs générentde la chaleur, distribuée par le ventilateur. Utiliseze ce mode pour cuire au grill la viande ou le poisson. | ||||
| Auto | Cuissonautomatique | Pour les cusiniers débutants, le four offre un total de20 programmes de cisson automatique. | ||
| Décongélationauto | Le four offre 5 programmes de décongélationadaptés à vos besoin. | |||
| Fonctionsspeciales | Maintien auchaud | 60 à 100 °C | 60 °C | |
| Utilisez ce mode uniquement pour maintainir auchaud des alimentés qui viennent juste d'être cuits. | ||||
| Nettoyage | Le four dispose des fonctions Nettoyagevapeur et Désodorisation. La fonctionNettoyage vapeur est utile pour nettoyer àla vapeur des salissures légères. De même,la fonction Désodorisation est utile pourdésodoriser le four. | |||
Manuel
La température (ou puissance) par défaut change en fonction du réglage le plus fréquemment utilisé au cours des 10 dernières opérations.
Étape 1. Sélection d'un mode
- Utilisez la molette de sélection du mode pour réveiller le panneau de commande, puis sélectionnez le manuel.
Étape 2. Réglage de la température itée.
- Tournez la Molette de sélection de la valeur pour sélectionner la température souhaitée.
- Une fois que vous avez terminé, appuyez sur OK.
- Si vous souhaitez lancer un démarrage rapide, appuyez sur START. Le four commence la cuisson. (Disponible pour les modes Convection, Chaleur tournante classique, Grand gril et Gril ventilation)
Étape 3. réglage de la durée de cuisson (et de la puissance)



- Tournez la Molette de sélection de la valeur pour sélectionner la durée de cuisson. Si vous appuyez sur , vous pouvez régler la durée de cuisson.
- Pour régler l'heure de fin, appuyez à nouveau sur et tournez la Molette de sélection de la valeur pour régler l'heure de fin souhaitée.
- Pour modifier le niveau de puissance, appuyez sur et tournez la Molette de sélection de la valeur pour modifier.
- Une fois que vous avez terminé, appuyez sur START pour commencer la cuisson.
- Vous pouvez également régler des options avant de démarrer le four.

Attention
Ne conservez pas les aliments cuits au four trop longtemps. Ils pourraient s'abîmer.
Étape 4. préchauffage (uniquement pour les modes convection, chaleur tournante classique, grand gril, gril ventilation)
Le four démarre le préchauffage jusqu'à ce qu'il atteigne la température réglée. Une fois le préchauffage terminé, le four émet un signal sonore et le voyant de préchauffage disparaît.
Modification de la température (ou de la puissance) et de la durée de cuisson pendant la cuisson



- Appuyez sur OK pendant la cuisson.
- Sélectionnez la température (ou la puissance) ou la durée de cuisson à l'aide de la Molette de sélection de la valeur.
- Appuyez sur OK.
- Modifiez la valeur à l'aide de la molette de sélection de la valeur.
- Si vous appuyez sur OK, vous pouvez modifier la valeur.
- Pour modifier uniquement la durée de cuisson, appuyez sur OK. Ensuite, modifiez la durée de cuisson à votre guise.
Arrêt de l'opération



- Tournez la molette de sélection du mode sur Arrêt.
L'écran du four s'éteint et l'horloge apparait au bout de 2 secondes. Le four s'éteint même si la cuisson est en cours et l'horloge apparait au bout de 2 secondes.
- Appuyez sur STOP
Le four s'interrompt. Appuyez à nouveau pour annuler ou appuyez sur START pour reprendre la cuisson.
Micro-ondes
Les micro-ondes sont des ondes électromagnétiques à haute fréquence. L'énergie des micro-ondes permet de faire cuire ou réchauffer les aliments sans en ALTERER la forme ni la couleur. Utilisez uniquement des récipients adaptés à la cuisson au micro-ondes.
Étape 1
Micro-ondes
Étape 2
Étape 3
Durée de cuisson
(Puissance)
Étape 4

- Placez les aliments dans un plat adapté à la cuisson au micro-ondes, déposez le plat sur l'accessoire recommandé, puis fermez la porte.
- Suivez les étapes 1 à 3 de la section Manuel aux pages 19 à 20. Le four démarrera une fois que vous aurez réglé la durée de cuisson.
- Une fois la cuisson terminée, utilisez des maniques pour sortir votre plat.
Niveau de puissance
| Niveau | Pourcentage (%) | Puisance de sortie (W) | Description |
| ÉLEVÉ | 100 | 800 | Utilisez pour réchauffer des liquides. |
| HAUT FAIBLE | 88 | 700 | Utilisez pour réchauffer et cuire. |
| MOYENNEMENT ÉLEVÉE | 75 | 600 | |
| MOYENNE | 56 | 450 | Utilisez pour cuire la viande et réchauffer les légumes. |
| MOYENNEMENT FAIBLE | 38 | 300 | |
| DéCONGÉLATION | 22 | 180 | Utilisez pour déconceler avant la cuisson. |
| FAIBLE | 13 | 100 | Utilisez pour déconceler les légumes. |
Le mode combiné associe l’énergie des micro-ondes et l’air chaud, ce qui permet de réduire la durée de cuisson et d’obtenir des aliments dorés et croustillants. Utilisez ce mode pour toutes vos viandes et volailles, ainsi que pour les gratins et plats mijotés, les biscuits de Savoie et cakes aux fruits, les tartes et crumbles, les légumes grillés, les scones et le pain.
Étape 1
Étape 2
Étape 3
Micro-ondes +
Température
Durée de cuisson
Étape 4
Convection
(Puissance)

- Placez les aliments dans un plat adapté, déposez le plat sur la grille, puis fermez la porte.
- Suivez les étapes 1 à 3 de la section Manuel aux pages 19 à 20. Le four démarrera une fois que vous aurez réglé la durée de cuisson.
- Une fois la cuisson terminée, utilisez des maniques pour sortir votre plat.
Attention
Utilisez uniquement des plats allant au four, par exemple en verre, poterie, porcelaine tendre sans ornements métalliques.
Micro-ondes + grill
Les éléments chauffants générent de la chaleur, qui est renforcée par l'énergie des micro-ondes. Utilisez uniquement des récipients adaptés à la cuisson au micro-ondes, comme des récipients en verre ou en céramique.
| Étape 1Micro-ondes + Gril | Étape 2Température | Étape 3Durée de cuisson(Puissance) | Étape 4- |

- Placez les aliments dans un plat adapté, déposez le plat sur l'accessoire recommandé, puis fermez la porte.
- Suivez les étapes 1 à 3 de la section Manuel aux pages 19 à 20. Le four démarrera une fois que vous aurez réglé la durée de cuisson.
- Une fois la cuisson terminée, utilisez des maniques pour sortir votre plat.
Attention
Utilisé uniquement des plats allant au four, par exemple en verre, poterie, porcelaine tendre sans ornements métalliques.
Convection
Les éléments chauffants générent de la chaleur, distribuée de façon uniforme à l'intérieur du four par le ventilateur de convection. Utilisez ce mode pour les biscuits, les scones, les petits pains et les gâteaux, ainsi que pour les cakes aux fruits, les choux et les soufflés.
Étape 1
Convection
Étape 2
Température
Étape 3
Durée de cuisson
Étape 4
Préchauffage

- Placez les aliments dans un plat adapté, déposez le plat sur l'accessoire recommandé, puis fermez la porte.
- Suivez les étapes 1 à 4 de la section Manuel aux pages 19 à 20.
- Une fois la cuisson terminée, utilisez des maniques pour sortir votre plat.
Chaleur tournante classique
La chaleur est générée par les éléments chauffants supérieur et inférieur avec les ventilateurs. Cette fonction est adaptée à la cuisson et au rotissage traditionnels de la plupart des types de plats.
Étape 1
Chaleurur
tournante
classique
Étape 2
Température
Étape 3
Durée de cuisson
Étape 4
Préchauffage

- Placez les aliments dans un plat adapté, déposez le plat sur l'accessoire recommandé, puis fermez la porte.
- Suivez les étapes 1 à 4 de la section Manuel aux pages 19 à 20.
- Une fois la cuisson terminée, utilisez des maniques pour sortir votre plat.
Grandgril
Les éléments chauffants générent de la chaleur. Assurez-vous qu'ils sont en position horizontale.
Étape 1
Gril
Étape 2
Temperature
Étape 3
Durée de cuisson
Étape 4
Prechauffage

- Placez les aliments dans un plat adapté, déposez le plat sur l'accessoire recommandé, puis fermez la porte.
- Suivez les étapes 1 à 4 de la section Manuel aux pages 19 à 20.
- Une fois la cuisson terminée, utilisez des maniques pour sortir votre plat.
Grill ventilation
Les éléments chauffants générent de la chaleur. Assurez-vous qu'ils sont en position horizontale.
Étape 1
Gril
Étape 2
Temperature
Étape 3
Durée de cuisson
Étape 4
Prechauffage

- Placez les aliments dans un plat adapté, déposez le plat sur l'accessoire recommandé, puis fermez la porte.
- Suivez les étapes 1 à 4 de la section Manuel aux pages 19 à 20.
- Une fois la cuisson terminée, utilisez des maniques pour sortir votre plat.
Mode automatique
Le four offre 2 modes automatiques différents adaptés à vos besoins. Décongélation auto et Cuisson automatique. Sélectionnez le mode qui répond le mieux à vos besoins.



- Utilisez la Molette de sélection du mode pour réveiller le panneau de commande, sélectionnez un mode automatique. Cuisson automatique (un), Décongélation auto (0).
- Tournez la Molette de sélection de la valeur pour sélectionner le programme préféré et appuyez sur OK pour confirmer.
- Tournez la Molette de sélection de la valeur pour régler le poids souhaité, puis appuyez sur OK pour confirmer.
- L'écran affiche le menu et le guide des accessoires. (Appuyez sur OK.)
- Appuyez sur START ou sur OK pour démarrer la cuisson.
ATTENTION
Utilisez toujours des maniques pour sortir vos aliments du four.
REMARQUE
La durée de cuisson est préprogrammée pour chaque menu et ne peut pas être modifiée.

Cuisson automatique
Pour les cuisiniers débutants, le four offre un total de 20 programmes de cuisson automatique. Beneficiez de ces fonctions pour gagner du temps ou raccourcir votre courbe d'apprentissage. La durée et la température de cuisson seront ajustées en fonction de la recette sélectionnée.
Étape 1
Cuisson automatique
Étape 2
Menu
Étape 3
Poids

- Placez les aliments dans un plat adapté, déposez le plat sur l'accessoire recommandé, puis fermez la porte.
- Suivez les étapes 1 à 3 de la section Mode automatique aux pages 23 à 25.
- Une fois la cuisson terminée, utilisez des maniques pour sortir votre plat.
Guide de cuisson automatique
| Non. | Aliment | Quantité (kg) | Accessoire | Niveau |
| 1 | Plat préparé | 0,3-0,4 | Plaque en céramique | 1 |
| 0,4-0,5 | ||||
| Placez les alimentés dans une assiette en céramique et recouvrez-la d'un film plastique spécial micro-ondes. Ce programme convient à la cuisson de plats composés de 3 alimentents différents (par ex. viande en sauce, légumes et accompagnements tels que pommes de terre, riz ou pâtes). Une fois la cuisson terminée, laissez reposer 3 minutes. | ||||
| 2 | Pizza surgelée | 0,3-0,4 | Plateau métallique + | 2 |
| 0,4-0,5 | Plaque en céramique | |||
| Placez la pizza surgelée dans le four. | ||||
| 3 | Lasagnes surgelées | 0,4-0,5 | Plateau métallique + | 2 |
| 0,6-0,7 | Plaque en céramique | |||
| Placez les lasagnes surgelées dans un plat en Pyrex ou en céramique adapté. ÀpRES le réchauffage, laissez reposer 2 à 3 minutes. | ||||
| 4 | Poulet entier | 1,1-1,2 | Plateau métallique + | 2 |
| 1,2-1,3 | Plaque en céramique | |||
| Badigeonnez le poulet réfrigéré d'huile et saupoudrez d'épices. Placez-le, côte poitrine en bas, au milieu de la grille du plateau métallique avec la plaque en céramique. Retournez-le dès que le signal sonore retentit. Appuyez sur le bouton de départ pour poursuivre le processus. Laissez reposer 5 minutes une fois la cuisson terminée. | ||||
| 5 | Morceaux de poulet | 0,6-0,7 | Plateau métallique + | 4 |
| 0,9-1,0 | Plaque en céramique | |||
| Badigeonnez les morceaux de poulet réfrigéré d'huile et saupoudrez d'épices. Placez-les sur le plateau métallique avec la plaque en céramique, côte peu en bas. Retournez-le dès que le signal sonore retentit. ÀpRES la cuisson, laissez reposer 2 à 3 minutes. | ||||
| 6 | Rôti d'agneau | 0,8-0,91,1-1,2 | Plateau métallique + Plaque en céramique | 3 |
| Placez le rôti d'agneau mariné sur la grille du plateau métallique avec la plaque en céramique. Lorsque le signal sonore retentit, returnez-le et redémarrez. | ||||
| 7 | Frites surgelées | 0,3-0,40,4-0,5 | Plaque à pâtisserie | 3 |
| Répartissez les frites au four surgelées sur la plaque à pâtisserie métallique. | ||||
| 8 | Pommes de terre coupées en deux | 0,4-0,50,6-0,7 | Plateau métallique + Plaque en céramique | 4 |
| Coupez les pommes de terre en deux. Disposez-les en cercle sur la plaque, côte coupé tourné vers le grill. ÀpRES la cuisson, laissez reposer 2 à 3 minutes. | ||||
| 9 | Tarte aux pommes | 1,2-1,4 | Plaque à pâtisserie | 2 |
| Placez la tarte aux pommes dans un plat rond en métal. Posez-le sur la plaque à pâtisserie. Les poids indiqués complènment les pommes, etc. | ||||
| 10 | Quatre-quarts | 0,7-0,8 | Plaque à pâtisserie | 3 |
| Placez la pâte fraîche dans un plat à gâteau métallique rectangulaire et de taille adaptée (25 cm de long). Placez le plat dans le sens de la longueur sur la plaque à pâtisserie. | ||||
| 11 | Brocolis en morceaux | 0,2-0,30,3-0,4 | Plaque en céramique | 1 |
| Coupez les brocolis en morceaux ou en deux. Ajoutez seulement 15 ml (1 cuillère à soupe) d'eau. Répartissez-les dans une cocotte en verre et couvrez. Faites cuire à couvert. Remuez après cuisson. | ||||
| 12 | Fleurettes de choux-fleurs | 0,2-0,30,3-0,4 | Plaque en céramique | 1 |
| Rincez et nettoyez le chou-fleur frais, puis séparez les fleurettes. Répartissez-les dans une cocotte en verre et couvrez. Ajoutez 30 ml (2 cuillères à soupe) d'eau pour la cuisson d'une portion de 0,2 à 0,3 kg et ajoutez 45 à 60 ml (3 à 4 cuillères à soupe) pour une portion de 0,3 à 0,4 kg. Placez le bol au centre à l'intérieur. Faites cuire à couvert. Remuez après cuisson. | ||||
| Non. | Aliment | Quantité (kg) | Accessoire | Niveau |
| 13 | Carottes en rondelles | 0,2-0,30,4-0,5 | Plaque en céramique | 1 |
| Rincez et nettoyez les carottes et coupez-les en tranches égales.Répartissez-les dans une cocotte en verre et couvrez. Ajoutez 30 ml (2 cuillères à soupe) d'eau pour la cisson d'une portion de 0,2 à 0,3 kg et ajoutez 45 à 60 ml (3 à 4 cuillères à soupe) pour une portion de 0,4 à 0,5 kg. Placez le bol au centre à l'intérieur. Faites cuire à couvert.Remuez après cisson. | ||||
| 14 | Pommes de terre en robe des champes | 0,3-0,40,7-0,8 | Plaque en céramique | 1 |
| Rincez et nettoyez les pommes de terre. Badigeonnez-les d'huile d'olive et percez la peau à l'aide d'un couteau. Placez-les sur la plaque en céramique. ÀpRES la cisson, laissez reposer 3 à 5 minutes. | ||||
| 15 | Pommes de terre épluchées | 0,4-0,50,7-0,8 | Plaque en céramique | 1 |
| Rincez et épluchez les pommes de terre. Coupez-les en deux et placez-les dans un bol en verre adapté à la cisson au four. Couvrez avec le couvercle. Ajoutez 15 à 30 ml (1 à 2 cuillères à soupe) d'eau. Remuez après cisson. Lors de la cisson de quantités plus importantes, remuez pendant la cisson. Laissez reposer 3 à 5 minutes. | ||||
| 16 | Courgettes | 0,2-0,30,3-0,4 | Plaque en céramique | 1 |
| Coupez les courgettes en rondelles. Ajoutez 30 ml (2 cuillères à soupe) d'eau ou une noix de beurre. Répartissez-les dans une cocotte en verre et couvrez. Faites cuire à couvert. Faites-les cuire jusqu'à ce qu'elles soient tendres. | ||||
| 17 | Aubergines éminçées | 0,1-0,20,3-0,4 | Plaque en céramique | 1 |
| Coupez les aubergines en fines rondelles et arrosez-les de 15 ml (1 cuillère à soupe) de jus de citron. Répartissez-les dans une cocotte en verre et couvrez. Faites cuire à couvert. Remuez après cisson. | ||||
Opérations
| Non. | Aliment | Quantité (kg) | Accessoire | Niveau |
| 18 | Oignons éminçés | 0,2-0,30,4-0,5 | Plaque en céramique | 1 |
| Émincez les oignons ou coupez-les en deux. N'ajoute que 15 ml (1 cuillère à soupe) d'eau. Répartissez-les dans une cocotte en verre et couvrez. Faites cuir à couvert. Remuez après cuisson. | ||||
| 19 | Jardinière de légumes | 0,2-0,30,4-0,5 | Plaque en céramique | 1 |
| Rincez et nettoyez les légumes frais. Répartissez-les dans une cocotte en verre et couvrez. Ajoutez 15 ml (1 cuillère à soupe) d'eau pour la cuisson d'une portion de 0,2 à 0,3 kg et ajoutez 30 ml (2 cuillères à soupe) pour une portion de 0,4 à 0,5 kg. Placez le bol au centre à l'intérieur. Faites cuir à couvert. Remuez après cuisson. | ||||
| 20 | Riz blanc | 0,2-0,3 | Plaque en céramique | 1 |
| Utilisez une grande cocette en Pyrex avec couvercle. (Notez que le riz double de volume pendant la cuisson.) Faites cuir à couvert. Une fois la durée de cuisson écoulée, remuez avant de laisser reposer. Ajoutez du sel ou des herbes et du beurre. Il est possible que le riz n'ait pas absorbé toute l'eau une fois la durée de cuisson écoulée. | ||||
Décongélation
Le four offre 5 programmes de décongélation adaptés à vos besoins. La durée et le poids sont réglés automatiquement en fonction du programme sélectionné.
Étape 1 Décongélation auto Étape 2 Étape 3 Menu Poids
- Placez les aliments dans un plat adapté, déposez le plat sur l'accessoire recommandé, puis fermez la porte.
- Suivez les étapes 1 à 3 de la section Mode automatique aux pages 23 à 25.
- Une fois la cuisson terminée, utilisez des maniques pour sortir votre plat.
Guide de décongélation
| Non. | Aliment | Quantité (kg) | Accessoire | Niveau |
| 1 | Vande | 0,2-1,5 | Plaque en céramique | 1 |
| Protégéz les extrémités avec de l'aluminium. Retournez la viande au signal sonore. Ce programme convient à la décongélation du boeuf, de l'agneau, du porc, des cotelettes ou des éminçés. | ||||
| 2 | Volaille | 0,2-1,5 | Plaque en céramique | 1 |
| Protégéz les extrémités des cuisses et des ailes avec de l'aluminium. Retournez la volaille au signal sonore. Ce programme convient aussi bien à la décongélation d'un poulet entier qu'à celle de morceaux. | ||||
| 3 | Poisson | 0,2-1,5 | Plaque en céramique | 1 |
| Protégéz la queue d'unoisson entier avec du papier d'aluminium. Retournez leoisson au signal sonore. Ce programme convient aussi bien à la cisson desoissons entiers qu'à celle des filets. | ||||
| 4 | Pain/Gâteaux | 0,1-0,8 | Plaque en céramique | 1 |
| Placez le pain sur une feuille de papier absorbant et returnnez-le dés que le signal sonore retentit. Posez le pain sur la plaque en céramique et, si possible, returnez-le au signal sonore. (Le four continue de fonctionner et s'arrête, lorsque vous ouvrez la porte.) Ce programme convient à la décongélation de toutes sortes de pains, en tranches ou entier, ainsi qu'à celle des petits pains et des baguettes. Disposez les petits pains en cercle. Ce programme convient à la décongélation de toutes sortes de gâteaux à base de levure ainsi qu'à celle des biscuits, de la tarte au fromage et de la pâtte feuilletée. Il n'est pas adapté à la cuisson des pâtes brisées, des gâteaux à la crème et aux fruits ou des gâteaux nappés de chocolat. | ||||
| 5 | Fruit | 0,1-0,6 | Plaque en céramique | 1 |
| RépartissezUniformément les fruits surgelés sur la plaque en céramique. Ce programme est ajusté aux fruits comme les framboises, les mélanges de fruits des bois et les fruits tropicaux. | ||||
Maintien au chaud
Avec cette fonction, seul l'élément chauffant de convection fonctionne. Il s'arrête et se rallume par cycles pour maintenir les aliments au chaud.
Une fois la cuisson terminée :

- Utilisez la Molette de sélection du mode pour réveiller le panneau de commande, puis sélectionnez Maintien au chaud (35).
- Tournez la Molette de sélection de la valeur pour sélectionner la température souhaitée (60 à 100 °C).
- Une fois que vous avez terminé, appuyez sur OK. Si vous souhaitez lancer un démarrage rapide, appuyez sur START. Le four commence le réchauffage.
- Tournez la Molette de sélection de la valeur pour sélectionner le temps de fonctionnement.
- Une fois que vous avez terminé, appuyez sur OK ou sur START pour commencer.
Attention
Utilisez toujours des maniques pour sortir vos aliments du four. - N'utilisez pas cette fonction pour faire réchauffer des aliments froids. Utilisez ce mode uniquement pour maintenir au chaud des aliments qui viennent juste d’être cuits. - N'utilisez pas cette fonction pendant une durée supérieure à 1 heure. Sinon, cela risque d'affecter la qualité des aliments. Pour garder le croustillant des aliments, ne les couvrez pas lorsque vous utilisez cette fonction.
Opérations
Guide de maintenance au chaud
| Aliment | Température (°C) | Temps de repos (min.) | Instructions |
| Plats | 80 | 30 | Pourmaintenir la vande, le poulet, les gratins, la pizza, les pommes de terre et les plats préparés au chaud. |
| Boissons | 80 | 30 | Pourmaintenir l'eau, le lait et le café au chaud. |
| Pain/Pâtisseries | 60 | 30 | Pourmaintenir le pain, les tartines, les petits pains, les muffins et les gâteaux au chaud. |
| Plats/Vaisselle | 70 | 30 | Pour préchauffer les plats et la vaisselle. Placez les plats à l'intérieur. Ne le surchargez pas. (Charge maximale: 7 kg) |

Nettoyage
Le mode Nettoyage dispose des fonctions Nettoyage vapeur ( ) et Désodorisation ( )

Nettoyage vapeur
Cette fonction est utile pour nettoyer à la vapeur des salissures légères.

- Versez 100 ml d'eau dans le fond du four et fermez la porte.

- Tournez la Molette de sélection du mode pour utiliser la fonction Nettoyage.
- Sélectionnez C1 sur l'écran à l'aide de la Molette de sélection de la valeur et du bouton OK pour démarrer Nettoyage vapeur.
- Appuyez sur le bouton START pour démarrer Nettoyage vapeur.

- Une fois le cycle Nettoyage vapeur terminé, utilisez un chiffon sec pour nettoyer l'intérieur du four.

Avertissement
N'ouvre pas la porte avant la fin du cycle. L'eau à l'intérieur du four est très chaude et elle peut causer des brûlures.

Remarque
- N'utilisez cette fonction que lorsque le four a complètement refroidi et est revenu à la température ambiante. N'utilisez PAS d'eau distilée. N'utilisez PAS de nettoyeur haute pression (eau ou vapeur) pour nettoyer le four à micro-ondes. Si le four est chaud à l'intérieur, le nettoyage automatique ne s'activera pas. Attendez que le four refroidisse, puis réessayez.
- Ne versez pas d'eau sur le dessous en forçant. Faites-le doucement. Sinon, de l'eau pourrait déborder vers l'avant.

Désodorisation
Cette fonction est utile pour désodoriser le four. Utilisez régulièrement cette fonction pour éliminer les mauvaises odeurs dans votre four.

- Utilisez la Molette de sélection du mode pour réveiller le panneau de commande, puis sélectionnez Nettoyage (□).
- Tournez la Molette de sélection de la valeur pour sélectionner C2 Désodorisation (3)
- Une fois que vous avez terminé, appuyez sur OK.
- Tournez la Molette de sélection de la valeur pour régler la durée, puis appuyez sur OK ou START pour commencer. (La durée réglée par défaut est de 5 minutes.)
Autres fonctions
| Menu | Description |
| Minuterie | You pouvez régler la minuterie. |
| Verrouiller | You pouvez verrouiller le panneau de commande. |
| Son | You pouvez activer ou désactiver le son (signaux sonores) du four. |
| Wi-Fi | You pouvez activer ou désactiver le Wi-Fi. |
Minuterie
- Appuyez sur pour utiliser la fonction Minuterie.
- Réglez la minuterie (heures et minutes) à l'aide de la molette de sélection de la valeur.
- Appuyez sur OK pour lancer la minuterie.
- Appuyez sur STOP pour arrêter la minuterie et appuyez sur pour modifier la minuterie.
Verrouiller
- Maintenez enfoncé pendant 3 secondes pour verrouiller le four.
- Pour déverrouiller le four, maintenez enfoncé pendant 3 secondes.
Son
- Maintenez enfoncé pendant 3 secondes pour utiliser les Autres fonctions.
- Réglez l'option sur le numéro 1 à l'aide de la Molette de sélection de la valeur et appuyez sur le bouton OK pour modifier le réglage du son.
- Activez ou désactivez l'option à l'aide de la Molette de sélection de la valeur, puis appuyez sur OK.
Wi-Fi
- Maintenez enfoncé pendant 3 secondes pour utiliser les Autres fonctions.
- Réglez l'option sur le numéro 2 à l'aide de la Molette de sélection de la valeur et appuyez sur le bouton OK pour modifier le réglage Wi-Fi.
- Activez ou désactivez l'option à l'aide de la Molette de sélection de la valeur, puis appuyez sur OK.
Commande intelligente
Pour utiliser la fonction Commande intelligente du four, vous devez télécharger l'application SmartThings sur un appareil mobile. Les fonctions exécutées par l'application SmartThings peuvent ne pas fonctionner avec fluidité si les conditions de communication sont mauvaises ou si le four est installé à un endroit avec un faible signal Wi-Fi.
Procédure de connexion du four à micro-ondes
- Téléchargez et ouvrez l'application SmartThings sur votre appareil mobile.
- Suivez les instructions affichées à l’écran pour connecter votre four.
- Une fois le processus terminé, l'icone située sur l'écran de votre four et l'application confirmeront que la connexion a été établie.
- Si l'icone n'apparaît pas, suivez les instructions affichées sur l'application pour vous reconnecter.
Pour commander le four à distance
Pour des raisons de sécurité, cette fonction n'est pas disponible pour le mode Micro-ondes.
- Le message « Appuyez sur Commande intelligente » apparait sur l'écran. Le four peut maintenant être commandé à distance à l'aide d'un appareil connecté.
- Sélectionnez l'icône du four sur l'application SmartThings pour ouvrir l'application Contrôle du four.
Une fois l'application connectée au four, vous pouvez actionner les fonctions suivantes via l'application :
| Commande à distance du four à l'aide de l'application SmartThings | |
| Surveillance du four | Vérifiez de l'état du four. |
| Commande à distance du four | Réglez ou ajustez à distance les paramètres du four. (Pas disponible pour le mode Micro-ondes) |
| Ma cuisson | Éteignez le four à distance. Une fois que la cuisson démarre, modifie à distance la durée et la température de cuisson régliées. |
| Contrôle d'erreur | Reconnaissez automatiquement les erreurs. |

Remarque
Si l'icône n'apparaît pas sur l'écran, vous pouvez quand même surveiller l'état du four et l'éteindre.
Guide de cuisson au micro-ondes
- N'utilisez pas de récipients métalliques en mode Micro-ondes. Placez toujours les récipients avec les aliments sur la plaque en céramique. Pour un résultat optimal, il est recommandé de couvrir les aliments.
- Une fois la cuisson terminée, laissez les aliments reposer dans leur propre vapeur.
Légumes surgelés
Utilisez un récipient en Pyrex avec un couvercle. Remuez les légumes deux fois pendant la cuisson et une fois après. Assaisonnez après la cuisson.
| Aliment | Quantité (g) | Puisance (W) | Temps de cuisson (min.) | Temps de repos (min.) |
| Épinards | 150 | 600 | 5-6 | 2-3 |
| Ajoutez 15 ml (1 cuillère àSoupe) d'eau froide. | ||||
| Brocolis | 300 | 600 | 8-9 | 2-3 |
| Ajoutez 30 ml (2 cuillère àSoupe) d'eau froide. | ||||
| Petits.POIS | 300 | 600 | 7-8 | 2-3 |
| Ajoutez 15 ml (1 cuillère àSoupe) d'eau froide. | ||||
| Haricots verts | 300 | 600 | 7½ à 8½ | 2-3 |
| Ajoutez 30 ml (2 cuillère àSoupe) d'eau froide. | ||||
| Jardinière de létigumes (Carottes/Pois/Mais) | 300 | 600 | 7-8 | 2-3 |
| Ajoutez 15 ml (1 cuillère àSoupe) d'eau froide. | ||||
| Jardinière de létigumes (à la chinoise) | 300 | 600 | 7½ à 8½ | 2-3 |
| Ajoutez 15 ml (1 cuillère àSoupe) d'eau froide. | ||||
Légumes frais
Utilisez un récipient en Pyrex avec un couvercle. - Ajoutez 30 à 45 ml d'eau froide tous les 250 g. Remuez une fois pendant la cuisson et une fois après. Assaisonnez après la cuisson. Pour une cuisson plus rapide, il est recommandé de couper en morceaux plus petits et uniformes. Cuisez tous les légumes frais en utilisant le micro-ondes à pleine puissance (800 W).
| Aliment | Quantité (g) | Temps de cuisson (min.) | Temps de repos (min.) |
| Brocolis | 250 | 4-5 | 3 |
| 500 | 5-6 | ||
| Préparez des sommités de taille égale. DisPOSEz-les en orientant les tiges vers le centre. | |||
| Choux de Bruxelles | 250 | 5-6 | 3 |
| 500 | 7-8 | ||
| Ajoutez 60 à 75 ml (4 à 5 cuillères à soupe) d'eau. | |||
| Carottes | 250 | 5-6 | 3 |
| Coupez les carottes en rondelles de taille égale. | |||
| Chou-fleur | 250 | 5-6 | 3 |
| 500 | 7-8 | ||
| Préparez des sommités de taille égale. Coupez les plus gros morceaux en deux. Orientez les tiges vers le centre. | |||
| Courgettes | 250 | 3-4 | 3 |
| Coupez les courgettes en rondelles. Ajoutez 30 ml (2 cuillères à soupe) d'eau ou une noix de beurre. Faites-les cuire jusqu'à ce qu'elles soient tendres. | |||
| Aubergines | 250 | 3-4 | 3 |
| Coupez les aubergines en fines rondelles et arrosez-les d'un filet de jus de citron. | |||
| Poireaux | 250 | 3-4 | 3 |
| Coupez les poiraux en épaisses rondelles. | |||
Cuisiner intelligemment
| Aliment | Quantité (g) | Temps de cuisson (min.) | Temps de repos (min.) |
| Championons | 125 | 1-2 | 3 |
| 250 | 2-3 | ||
| Coupez les championons en morceaux ou prenez des petits championons entiers. N'ajoute pas d'eau. Arrosez de jus de citron. Salez et poivrez. Égouttez avant de servir. | |||
| Oignons | 250 | 4-5 | 3 |
| Émincez les oignons ou coupe-les en deux. Ajouteze seulement 15 ml (1 cuillère à soupe) d'eau. | |||
| Poivrons | 250 | 4-5 | 3 |
| Coupez les poivrons en fines lamelles. | |||
| Pommes de terre | 250 | 4-5 | 3 |
| 500 | 7-8 | ||
| Pesez les pommes de terre épluchées et coupe-les en deux ou quatre morceaux de taille égale. | |||
| Chou-rave | 250 | 5-6 | 3 |
| Coupez le chou-rave en petits dés. | |||
Riz et pâtes
Remuez de temps en temps pendant et après la cuisson.
Cuisez à découvert et mettez le couvercle pendant le temps de repos. Puis, égouttez soigneusement.
Riz : utilisez une grande cocotte en Pyrex avec un couvercle car le riz double de volume pendant la cuisson. Pâtes : utilisez une grande cocotte en Pyrex.
| Aliment | Quantité (g) | Puisance (W) | Temps de cuisson (min.) | Temps de repos (min.) | Instructions |
| Riz blanc (étuvé) | 250 | 800 | 17-18 | 5 | Ajoutez 500 ml d'eau froide. |
| 375 | 18-20 | Ajoutez 750 ml d'eau froide. | |||
| Riz complet (étuvé) | 250 | 800 | 20-22 | 5 | Ajoutez 500 ml d'eau froide. |
| 375 | 22-24 | Ajoutez 750 ml d'eau froide. | |||
| Riz mélange (riz + riz sauvage) | 250 | 800 | 17-19 | 5 | Ajoutez 500 ml d'eau froide. |
| Céréales mélangées (riz + céréales) | 250 | 800 | 18-20 | 5 | Ajoutez 400 ml d'eau froide. |
| Pâtes | 250 | 800 | 10-11 | 5 | Ajoutez 1000 ml d'eau chaude. |
Réchauffage
- Ne rechauffez pas de trop grandes quantités d'aliments, comme de grosses pièces de viande, car elles risquent d'être trop cuites. Il est plus sûr de rechauffer les aliments à une puissance moins élevée.
- Remuez correctement et retournez pendant et après la cuisson.
- Soyez prudents avec les liquides ou les aliments pour bébé. Remuez correctement avant, pendant et après la cuisson à l'aide d'une cuillère en plastique ou d'une touillette en verre afin d'éviter toute projection de liquide bouillant et brûlant. Laissez-les reposer dans le four le temps recommandé. Accordez un temps de réchauffage plus long que pour les autres types d'aliments. Le temps de repos recommandé après le réchauffage est de 2 à 4 minutes. Consultez le tableau ci-dessous à titre de référence.
Liquides et aliments
| Aliment | Quantité | Puisance (W) | Temps de cuisson (min.) | Temps de repos (min.) |
| Boisson | 250 ml (1 grande tasse) 500 ml (2 grandes tasses) | 800 | 1½-2 2-3 | 1-2 |
| Versez la boisson dans une tasse en céramique et réchauffez sans couvrir. Placez la tasse au centre de la plaque en céramique. Remuez avec précaution avant et après le temps de repos. | ||||
| Soupe (Réfrigérée) | 250 g | 800 | 3-4 | 2-3 |
| Versez le tout dans une assiette creuse en céramique. Recouvre le écipient d'un couvercle en plastique. Remuez bien après le réchauffage. Remuez de nouveau avant de servir. | ||||
| Plat mijoté (Réfrigéré) | 350 g | 600 | 5-6 | 2-3 |
| Versez le tout dans une assiette creuse en céramique. Recouvre le écipient d'un couvercle en plastique. Remuez bien après le réchauffage. Remuez de nouveau avant de servir. | ||||
| Pâtes en sauce (froid) | 350 g | 600 | 5-6 | 2-3 |
| Versez le tout dans une assiette creuse en céramique. Recouvre le écipient d'un couvercle en plastique. Remuez bien après le réchauffage. Remuez de nouveau avant de servir. | ||||
| Plat préparé (réfrigéré) | 350 g 450 g | 600 | 5-6 6-7 | 3 |
| Placez le plat réfrigéré composé de 2 à 3 alimentents sur une assiette en céramique. Recouvre les de film étirable spécifique micro-ondes. | ||||
Aliments et lait pour bébé
| Aliment | Quantité | Puisance (W) | Temps de cuisson (seconds) | Temps de repos (min.) |
| Aliments pour bébé (légumes + viande) | 190 g | 600 | 30-40 | 2-3 |
| Versez les alimentés dans une assiette creuse en céramique. Faites cuire à couvert. Remuez après la cuisson. Laissez reposer 2 à 3 minutes. Avant de servir, remuez bien et vérifiez la température. | ||||
| Bouillie pour bébé (Céréales + Lait + Fruits) | 190 g | 600 | 20-30 | 2-3 |
| Versez les alimentés dans une assiette creuse en céramique. Faites cuire à couvert. Remuez après la cuisson. Laissez reposer 2 à 3 minutes. Avant de servir, remuez bien et vérifiez la température. | ||||
| Lait pour bébé | 100 ml | 300 | 30-40 | 2-3 |
| Remuez ou agitez bien avant de verser le tout dans un biberon en verre stérisé. Placez le recipient au centre de la plaque en céramique. Faites cuire le tout sans couvrir. Agitez bien et laisser reposer le tout pendant au moins 3 minutes. Avant de servir, agitez bien et vérifiez la température. | ||||
Décongélation
Placez les aliments congélés dans un récipient avec couvercle adapté au micro-ondes. Retournez-les pendant la décongélation, égouttez le liquide et retirez les abats après la décongélation. Pour une décongélation plus rapide, coupez les aliments en petits morceaux et enveloppez-les de papier d'aluminium avant de les faire décongeler. Lorsque la surface extérieure des aliments surgelés commence à fondre, arrêtez la décongélation et laissez reposer comme indiqué dans le tableau ci-dessous.
Ne modifies pas la puissance par défaut (180 W) pour la décongélation.
| Aliment | Quantité (g) | Temps de décongélation (min.) | Temps de repos (min.) | |
| Vande | Vande hachée | 250 | 6-7 | 15-30 |
| 500 | 8-12 | |||
| Escalopes de porc | 250 | 7-8 | ||
| Placez la viande sur la plaque en céramique. Protégez les parties les plus fines avec de l'aluminium. Retournez à la moitié du temps de décongélation. | ||||
| Volaille | Morceaux de poulet | 500 | 12-14 | 15-60 |
| Poulet entier | (2 morceaux) | 28-32 | ||
| Commencez par placer les morceaux de poulet, côté peu vers le bas, ou le poulet entier, poitrine vers le bas, sur la plaque en céramique. Recouvrez les parties les plus fines (ex.: ailes et extrémités) d'aluminium. Retournez à la moitié du temps de décongélation. | ||||
| Poisson | Filets de.POISSON | 200 | 6-7 | 10-25 |
| POISSON entier | 400 | 11-13 | ||
| Placez le.POISSON surgelé au centre de la plaque en céramique. Glissez les parties les plus fines sous les plus épaisSES. Recouvrez les extrémités les plus fines des filets et la queue du.POISSON entier d'aluminium. Retournez à la moitié du temps de décongélation. | ||||
| Fruit | Baies | 300 | 6-7 | 5-10 |
| Disposez les fruits dans un récipient rond en verre et à fond plat de grand diamètre. | ||||
| Aliment | Quantité (g) | Temps de décongélation (min.) | Temps de repos (min.) | |
| Pain | Petits pains (50 g chacun) | 2 parts | 1 à 1½ | 5-20 |
| 4 parts | 2½ à 3 | |||
| Tartine/Sandwich | 250 | 4 à 4½ | ||
| 500 | 7-9 | |||
| Disposez les petits pains en cercle (ou le pain entier à plat) sur du papier absorbant sur la plaque en céramique. Retournez à la moitié du temps de décongélation. | ||||
Guide de cuisson au grill
Les éléments chauffants du grill sont situés sous la paroi supérieure du four.
Ces éléments fonctionnent uniquement lorsque la porte est fermée.
Lors de la cuisson des aliments au grill, placez-les sur la grille la plus haute, sauf indication contraire.
Préchauffez le grill pendant 2 à 3 minutes en mode Grill et, sauf indication contraire ci-dessous, grillez les aliments sur la grille la plus haute. Une fois la cuisson au grill terminée, utilisez des maniques pour retirer vos plats.
Récipient
Gril et Gril ventilation : utilisez des récipients résistants aux flammes, pouvant contenir des parties métalliques.
N'utilise jamais de récipient en plastique.
Micro-ondes + Gril : n'utilisez pas de récipients composés de substances métalliques ou de plastiques.
Type d'aliment
Côtelettes, saucisses, steaks, hamburgers, tranches de bacon et de jambon fumé, filets de poisson, sandwiches et tous types de tartines garnies.
Faire griller
Réglez le grill à une température de 220°C et faites préchauffer pendant 5 minutes.
| Aliment | Accessoire | Niveau | Temps de cuisson (du 1er côte) (minutes) | Temps de cuisson (du 2ème côte) (minutes) |
| Brochettes | Plateau métallique + Plaque en céramique | 5 | 8-10 | 6-8 |
| Escalopes de porc | Plateau métallique + Plaque en céramique | 5 | 7-9 | 5-7 |
| Saucisses | Plateau métallique + Plaque en céramique | 5 | 6-8 | 6-8 |
| Morceaux de poulet | Plateau métallique + Plaque en céramique | 5 | 20-25 | 15-20 |
| Steaks de saumon | Plateau métallique + Plaque en céramique | 5 | 8-12 | 6-10 |
| Légumes en rondelles | Plateau métallique + Plaque en céramique | 5 | 15-20 | - |
| Toast | Plateau métallique + Plaque en céramique | 5 | 2-3 | 1-2 |
| Tartines au fromage | Plateau métallique + Plaque en céramique | 5 | 3-5 | - |
Grill de ventilation
Réglez la température figurant dans ce tableau et faites préchauffer pendant 5 minutes.
| Aliment | Temp. (°C) | Accessoire | Niveau | Temps de cuisson (du 1er côté) (minutes) | Temps de cuisson (du 2ème côté) (minutes) |
| Pommes de terre en morceaux | 200-220 | Plaque à pâtisserie | 4 | 25-30 | - |
| Croquettes surgelées | 210-220 | Plaque à pâtisserie | 4 | 15-20 | - |
| Beignets de poulet surgelés | 210-220 | Plaque à pâtisserie | 4 | 15-20 | - |
| Poisson entier | 200-220 | Plateau métallique + Plaque en céramique | 4 | 10-15 | 10-15 |
| Morceaux de poulet | 200-210 | Plateau métallique + Plaque en céramique | 4 | 20-25 | 15-20 |
| Poulet entier | 200-210 | Plateau métallique + Plaque en céramique | 3 | 30-35 | 25-30 |
Cuisiner intelligemment
Micro-ondes + Gril
| Aliment | Puissance (W) | Temp. (°C) | Accessoire | Niveau | Temps de cuisson (du 1er côté) (minutes) | Temps de cuisson (du 2ème côté) (minutes) |
| Pommes de terre au four | 1er : 450 2ème : - | 1er : 180-200 2ème : 220 | Plateau métallique + Plaque en céramique | 4 | 10-15 | 2-4 |
| Tomates grillées | 180 | 160-180 | Plateau métallique + Plaque en céramique | 4 | 10-15 | - |
| Gratin de légumes | 450 | 180-200 | Plateau métallique + Plaque en céramique | 4 | 10-15 | - |
| Poisson grillé | 300 | 180-200 | Plateau métallique + Plaque en céramique | 4 | 5-8 | 6-10 |
| Morceaux de poulet | 300 | 180-200 | Plateau métallique + Plaque en céramique | 4 | 13-17 | 13-17 |
Convection et chaleur tournante classique
En mode Convection et Chaleur tournante classique, l'élément chauffant et le ventilateur fonctionnent ensemble pour faire circuler la chaleur dans le four.
Tous les récipients, moules et papiers adaptés à la cuisson au four, tous les ustensiles que vous utilisez dans un four à convection classique, peuvent être utilisés.
Le mode combiné associe l'énergie des micro-ondes et l'air chaud, ce qui permet de réduire la durée de cuisson et d'obtenir des aliments dorés et croustillants. Le four offre 5 modes combinés différents adaptés à vos besoins. Utilisez ce mode pour toutes vos viandes et volailles, ainsi que pour les gratins et plats moyens, les biscuits de Savoie et cakes aux fruits, les tartes et crumbles, les légumes grillés, les scones et le pain. Utilisez uniquement des plats allant au four, par exemple en verre, poterie, porcelaine tendre sans ornements métalliques.
Convection
Faites préchauffer le four avec le mode Convection.
| Aliment | Temp. (°C) | Accessoire | Niveau | Temps de cuisson (min.) |
| Moule carré pour gâteau aux noiséttes | 160-170 | Plateau métallique + Plaque en céramique | 2 | 60-70 |
| Cercle ou moule rond pour gâteau au citron | 150-160 | Plateau métallique + Plaque en céramique | 2 | 50-60 |
| Biscuit de Savoie | 150-160 | Plateau métallique + Plaque en céramique | 2 | 25-35 |
| Pâté pour flan aux fruits | 150-170 | Plateau métallique + Plaque en céramique | 2 | 25-35 |
| Cake aux fruits streusel plat (pâté à la levure de boulanger) | 150-170 | Plaque à pâtisserie | 3 | 30-40 |
| Croissants | 170-180 | Plaque à pâtisserie | 2 | 10-15 |
| Petits pains | 180-190 | Plaque à pâtisserie | 2 | 10-15 |
| Cookies | 160-180 | Plaque à pâtisserie | 3 | 10-20 |
| Frites au four | 200-220 | Plaque à pâtisserie | 3 | 15-20 |
Chaleur tournante classique
Utilisez les températures et durées indiquées dans ce tableau comme consignes pour la cuisson traditionnelle.
Nous vous recommandons de faire préchauffer le four avec le mode Chaleur tournante classique.
| Aliment | Temp. (°C) | Accessoire | Niveau | Temps de cuisson (min.) |
| Lasagnes | 180-190 | Plaque à pâtisserie | 3 | 25-30 |
| Gratin de pommes de terre | 170-180 | Plaque à pâtisserie | 2 | 45-50 |
| Biscuit de Savoie | 150-160 | Plaque à pâtisserie | 2 | 35-40 |
| Cake hollandais | 150-160 | Plaque à pâtisserie | 2 | 50-60 |
| Pain blanc | 170-180 | Plaque à pâtisserie | 2 | 20-25 |
| Pizza maison | 180-200 | Plaque à pâtisserie | 2 | 20-30 |
| Pizza surgelée à pâte à levure | 180-200 | Plaque à pâtisserie | 2 | 15-20 |
| Quiche Lorraine | 180-190 | Plaque à pâtisserie | 2 | 40-50 |
| Tarte aux pommes | 160-170 | Plaque à pâtisserie | 2 | 60-80 |
| Pâte feuilletée, garniture aux pommes | 180-190 | Plaque à pâtisserie | 3 | 15-20 |
| Aliment | Puissance (W) | Temp. (°C) | Accessoire | Niveau | Temps de cuisson (du 1er côté) (minutes) | Temps de cuisson (du 2ème côté) (minutes) |
| Poulet entier de 1,2 kg | 1er : 450 2ème : 300 | 180-200 | Plateau métallique + Plaque en céramique | 3 | 20-25 | 23-27 |
| Rôti de bœuf / Agneau (à point) | 300 | 180-200 | Plateau métallique + Plaque en céramique | 3 | 17-22 | 18-25 |
| Lasagnes surgelées / Gratin de pâtes | 450 | 180-200 | Plateau métallique + Plaque en céramique | 3 | 30-35 | - |
| Gratin de pommes de terre | 450 | 180-200 | Plateau métallique + Plaque en céramique | 3 | 15-20 | - |
| Flan de fruits frais | 100 | 160-180 | Plaque en céramique | 3 | 45-50 | - |
Faire fondre du beurre
Mettez 50 g de beurre dans un petit plat creux en verre. Recouvrez le réseau d'un couvercle en plastique. Faites chauffer pendant 30 à 40 secondes à 800 W jusqu'à ce que le beurre ait entièrement fondu.
Faire fondre du chocolat
Mettez 100 g de chocolat dans un petit plat creux en verre. Faites chauffer pendant 3 à 5 minutes à 450 W jusqu'à ce que le chocolat ait entièrement fondu. Remuez une ou deux fois en cours de cuisson. Utilisez des maniques pour sortir le plat du four.
Faire fondre du miel cristallisé
Mettez 20 g de miel cristallisé dans un petit plat creux en verre. Faites chauffer pendant 20 à 30 secondes à 300 W, jusqu'à ce que le miel ait entièrement fondu.
Faire fondre de la gélatine
Faites tremper des feuilles de gelatine (10 g) pendant 5 minutes dans de l'eau froide. Placez la gelatine égouttée dans un petit bol en Pyrex. Faites chauffer pendant 1 minute à 300 W. Remuez une fois fondue.
Confectionner un glaçage (pour gâteaux)
Mélangez le glaçage instantané (environ 14 g) avec 40 g de sucre et 250 ml d'eau froide. Faites cuire à découvert dans une cocotte en Pyrex pendant 3 12 minutes à 4 12 minutes à 800 W, jusqu'à ce que le glaçage devienne transparent. Remuez deux fois en cours de cuisson.
Faire de la confiture
Mettez 600 g de fruits (ex. : mélange de fruits) dans une cocotte en Pyrex et couvrez. Ajoutez 300 g de sucre spécial confiture et remuez bien. Couvrez et faites cuire pendant 10 à 12 minutes à 800 W. Remuez plusieurs fois en cours de cuisson. Placez directement dans de petits pots à confiture munis de couvercles quart de tour. Laissez reposer 5 minutes à couvert.
Faire cuire du pudding
Mélangez la préparation pour pudding avec du sucre et du lait (500 ml) en suivant les instructions du fabricant et remuez bien. Utilisez une cocotte en Pyrex de taille adaptée et munie d’un couvercle. Couvrez et faites cuire pendant 6 minutes 30 à 7 minutes 30 à 800 W. Remuez plusieurs fois en cours de cuisson.
Faire dorer des amandes effilées
Disposez uniformément 30g d'amandes effilées sur une assiette en céramique de taille moyenne. Remuez plusieurs fois au cours du brunissage, pendant 3 minutes 30 à 4 minutes 30 à 600 W. Laissez reposer 2 à 3 minutes dans le four. Utilisez des maniques pour sortir le plat du four.
Dépannage
Vous pouvez rencontrer un problème lors de l'utilisation du four. Dans ce cas, vérifiez d'abord le tableau ci-dessous et essayez les suggestions proposées. Si le problème persiste, ou si un code d'information continue à s'afficher sur l'écran, contactez un centre de service Samsung local.
Points de contrôle
Si vous rencontrez un problème avec le four, consultez d'abord le tableau ci-dessous et essayez les suggestions.
| Problème | Cause | Action |
| Général | ||
| Les boutons ne peuvent pas être réinitialisés correctement. | Des corps étrangers peuvent se coincer entre les boutons. | Retirez les corps étrangers et réessayez. |
| Pour les modèles tactiles : Il y a de l'humidité à l'extérieur. | Essuyez l'humidité à l'extérieur. | |
| La fonction Sécurité enfants est activée. | Déactivez la fonction Sécurité enfants. | |
| L'heure n'est pas affichée. | Il n'y a pas d'alimentation. | Assurez-vous que la prise est alimentée. |
| La fonction Éco (economie d'énergie) est activée. | Déactivez la fonction Éco. | |
| Le four ne fonctionne pas. | Il n'y a pas d'alimentation. | Assurez-vous que la prise est alimentée. |
| La porte est ouverte. | Fermez la porte et réessayez. | |
| Les mécanismes de sécurité d'ouverture de la porte sont recouverts de corps étrangers. | Retirez les corps étrangers et réessayez. | |
| Le four s'accêté en cours de fonctionnement. | L'utilisateur a ouvert laporte pour returner les aliments. | Après avoir returné les aliments, appuyez de nouveau sur le bouton ⇔ pour démarrer le fonctionnement. |
| L'appareil s'éteint lors du fonctionnement. | Le four a effectué une très longue cuisson. | Après une longue cuisson, laissez le four refroidir. |
| Le ventilateur de refroidissement ne fonctionne pas. | Écoutez le bruit émis par le ventilateur de refroidissement. | |
| Essayez de faire fonctionner le four sans alimentés à l'intérieur. | Placez les alimentés dans le four. | |
| L'espace de ventilation est insuffisant pour le four. | Des systèmes d'entrée/ d'évacuation sont prêts à l'avant et à l'arrête du four pour la ventilation. Maintenez les espaces spécifique dans le guide d'installation du produit. | |
| Plusieurs fiches d'alimentation sont utilisées dans la même prise. | Affectez au four une prise en exclusivité. | |
| Il n'y a pas d'électricité au four. | Il n'y a pas d'alimentation. | Assurez-vous que la prise est alimentée. |
| Un crépitement est audible durant le fonctionnement et le four ne fonctionne pas. | La cuisson d'aliments fermés hermétiquement ou utiliser un récipient muni d'un couvercle peut provoquer des bruits de crépitement. | N'utilise pas de récipients fermés hermétiquement car ils peuvent explode au cours de la cuisson en raison de la dilatation du contenu. |
| Problème | Cause | Action |
| L'extérieur du four est trop chaud lors du fonctionnement. | L'espace de ventilation est insuffisant pour le four. | Des systèmes d'entrée/ d'évacuation sont présents à l'avant et à l'arrête du four pour la ventilation. Maintenez les espaces spécifique dans le guide d'installation du produit. |
| Des objets sont situés sur le four. | Retirez tous les objets situés sur le four. | |
| La porte ne peut pas être ouverte correctement. | Des résidus d'aliments sont collés entre la porte et l'intérieur du four. | Nettoyez le four correctement puis ouvre la porte. |
| Le four ne chauffe pas. | Le four peut ne pas fonctionner, trop d'aliments ont été mis à cuire ou un ustensile incorrect est utilisé. | Placez une tasse d'eau dans un écipient adapté aux micro-ondes et laisseriez tournier le four à micro-ondes durant 1 à 2 minutes pour vérifier si l'eau chauffe. Réduire la quantité d'aliments et démarrez à nouveau la fonction. Utilisez un écipient de cuisson à fond plat. |
| Le chauffage est faible ou lent. | Le four peut ne pas fonctionner, trop d'aliments ont été mis à cuire ou un ustensile incorrect est utilisé. | Placez une tasse d'eau dans un récipient adapté aux micro-ondes et laisseriez tournier le four à micro-ondes durant 1 à 2 minutes pour vérifier si l'eau chauffe. RÉduire la quantité d'aliments et démarrez à nouveau la fonction. Utilisez un récipient de cuisson à fond plat. |
| La fonction de réchauffage ne fonctionne pas. | Le four peut ne pas fonctionner, trop d'aliments ont été mis à cuire ou un ustensile incorrect est utilisé. | Placez une tasse d'eau dans un récipient adapé aux micro-ondes et laisseriez tournier le four à micro-ondes durant 1 à 2 minutes pour vérifier si l'eau chauffe. RÉduire la quantité d'aliments et démarrez à nouveau la fonction. Utilisez un récipient de cuisson à fond plat. |
| Problème | Cause | Action |
| La fonction de décongélation ne fonctionne pas. | Le four peut ne pas fonctionner, trop d'aliments ont été mis à cuire ou un ustensile incorrect est utilisé. | Placez une tasse d'eau dans un récipient adapté aux micro-ondes et laissertz tournier le four à micro-ondes durant 1 à 2 minutes pour vérifier si l'eau chauffe.Réduire la quantité d'aliments et démarrez à nouveau la fonction.Useisz un récipient de cuisson à fond plat. |
| L'éclairage interieur est faible ou ne s'allume pas. | La portea été laissée ouverte un long moment. | L'éclairage interieur peut s'éteindre automatiquement lorsque la fonction Éco est activée.Fermez et rouvre la porte ou appuyez sur la touche « Éclairage » . |
| L'éclairage interieur est recouvert de corps étrangers. | Nettoyez l'intérieur du four puis vérifie à nouveau. | |
| Un signal sonore retentit durant la cuisson. | Si la fonction Cuisson automatique est utilisée, ce signal sonore signifie que vous nevez returner les alimentés qui sont en cours de décongélation. | Après avoir returné les alimentés, appuyez à nouveau sur le boutonStart pour redémarrer le fonctionnement. |
| Le four n'est pas de niveau. | Le four est installé sur une surface irrégulière. | Assurez-vous que le four est installé sur une surface plane et stable. |
| Des étincelles apparaisent durant la cuisson. | Des récipiens métalliques sont utilisés durant l'utilisation du four/de la décongélation. | N'utilisez pas de récipiens métalliques. |
| Lorsqu'il est sous tension, le four fonctionne immidiatement. | La porte n'est pas correctement fermée. | Fermez la porte et vérifie à nouveau. |
| Il y a de l'électricité provenant du four. | L'alimentation ou la prise n'est pas correctement reliée à la terre. | Assurez-vous que l'alimentation et la prise sont correctement reliées à la terre. |
| Il y a de l'eau qui coule. | Dans certains cas, il se peut qu'il y ait de l'eau ou de la vapeur selon les aliments. Il ne s'agit pas d'un dysfonctionnement du four. | Laissez le four refroidir puis essuyez avec un chiffon sec. |
| De la vapeur s'échappe de la porte. | Dans certains cas, il se peut qu'il y ait de l'eau ou de la vapeur selon les aliments. Il ne s'agit pas d'un dysfonctionnement du four. | Laissez le four refroidir puis essuyez avec un chiffon sec. |
| Il reste de l'eau dans le four. | Dans certains cas, il se peut qu'il y ait de l'eau ou de la vapeur selon les aliments. Il ne s'agit pas d'un dysfonctionnement du four. | Laissez le four refroidir puis essuyez avec un chiffon sec. |
| Problème | Cause | Action |
| La luminosité à l'intérieur du four varie. | La luminosité varie en fonction des changements de puissance selon la fonction utilisée. | Les changements de puissance au cours de la cuisson ne constituent pas des dysfonctionnements. Il ne s'agit pas d'un dysfonctionnement du four. |
| La cuisson est terminée, mais le ventilateur de refroidissement fonctionne toujours. | Pour ventiler le four, le ventilateur continue de fonctionner environ 5 minutes après la fin de la cuisson. | Il ne s'agit pas d'un dysfonctionnement du four. |
| Appuyez sur le bouton +30 secs a pour effet de faire fonctionner le four. | Cela se produit lorsque le four n'est pas en fonctionnement. | Le four à micro-ondes est créé pour fonctionner en appuyant sur le bouton +30 secs lorsqu'il n'était pas en fonctionnement. |
| Gril | ||
| De la fumée s'échappe lors du fonctionnement. | Lors du fonctionnement initial, de la fumée peut s'échapper des éléments chauffants lorsque vous utilisez le four à micro-ondes pour la première fois. | Ceci n'est pas un dysfonctionnement et cela devrait cesser après 2 ou 3 utilisations du four. |
| Des alimentents sont présents sur les éléments chauffants. | Laissez le four refroidir et retirez les alimentents présents sur les éléments chauffants. | |
| Des alimentents sont situés tropstalks du grill. | Placez les alimentents à une distance raisonnable durant la cuisson. | |
| Les alimentents ne sont pas correctement préparés et/ou disposés. | Assurez-vous que les alimentents sont correctement préparés et disposés. | |
| Four | ||
| Le four ne chauffe pas. | La porté est ouverte. | Fermez la porte et réessayez. |
| De la fumée s'échappe lors du préchauffage. | Lors du fonctionnement initial, de la fumée peut s'échapper des éléments chauffants lorsque vous utilisez le four à micro-ondes pour la première fois. | Ceci n'est pas un dysfonctionnement et cela devrait cesser après 2 ou 3 utilisations du four. |
| Des alimentents sont présents sur les éléments chauffants. | Laissez le four refroidir et retirezles alimentents présents sur les éléments chauffants. | |
| Il y a une oedur de brûlé ou de plastique lorsque vous utilisez le four. | Vous utilisez un récipient en plastique ou non résistant à la chaleur. | Utilisez des récipiens en verre adaptés à de haute températures. |
| Problème | Cause | Action |
| Une mauvaise oedur provient de l'intérieur du four. | Des résidus d'aliments ou du plastique fondu adhérent à l'intérieur. | Utilisez la fonction de nettoyage vapeur puis essuyez à l'aide d'un chiffon sec. Vouces pouvez placer une tranche de citron à l'intérieur et faire fonctionner le four pour éliminer plus rapidement les mauvaises odeurs. |
| Le four ne cuit pas correctement. | La porte du four est également ouvertependant la cuisson. | N'ouvre pas féquements la porte, sauf si vous faites cuire des choses qui doivent être tournées. Si la porté est ouverte souvent, la température interieure sera abaisée et cela affectera les résultats de votre cuisson. |
| Les commandes du four n'ont pas été correctement régliées. | Régliez correctement les commandes du four puis réessayez. | |
| Le grill ou d'autres accessoires ne sont pas inséréscorrectement. | Insérez correctement les accessoires. | |
| Des éléments de taille ou de type inadapté(e) sont utilisés. | Réinitialisez les commandes du four ou utilisez des éléments adaptés avec des fonds plats. |
Codes d'information
Si le four ne fonctionne pas correctement, un code d'information apparaîtra à l'écran. Vérifiez le tableau ci-dessous et essayez les suggestions proposées.
| Code | Description | Action |
| C-20 | Le capteur de température est ouvert. | Débranchez le cordon d'alimentation du four et contactez un centre de service Samsung local. |
| Le capteur de température est court-circuité. | ||
| C-F0 | S'il n'y a pas de communication entre le MICOM principal et secondaire. | |
| C-F1 | Ce code ne s'affiche que lorsque la fonction de lecture ou d'écriture de la mémoire EEPROM ne fonctionne pas. | |
| C-21 | Ce code s'affiche lorsque la température du four est trop élevé. En cas d'élévation de la température au-delà de la limite lors du fonctionnement de chaque mode. (Incendie détecté.) | Débranchez le cordon d'alimentation pour laisser refroidir l'appareil, puis redémarrez le four micro-ondes. |
| C-F2 | Dysfonctionnement du clavier tactile. | Arrêtez le four et réessayez. |
| C-d0 | Débranchez le cordon d'alimentation pour laisser refroidir l'appareil, puis nettoyez le bouton. (Poussière, Eau) Si le même problème apparait de nouveau, contactez un centre de service Samsung local. |
SAMSUNG s'efforce sans cesse d'améliorer ses produits. Les caractéristiques et le mode d'emploi de ce produit peuvent être modifiés sans préavis.
| Alimentation | 230 V ~ 50 Hz | |
| Consommation d'énergie | Puisance maximale | 2700 W |
| Micro-ondes | 1600 W | |
| Gril | 2600 W | |
| Convection | 2600 W | |
| Puisance de sortie | 100 W / 800 W (IEC-705) | |
| Fréquence de fonctionnement | 2450 MHz | |
| Magnétron | OM75P (21) | |
| Méthode de refroidissement | Moteur de ventilation | |
| Dimensions (L x H x P) | Unité principale | 595 x 456 x 570 mm |
| Encastré | 560 x 446 x 549 mm | |
| Capacité | 50 litres | |
| Poids | Net | 38,8 Kg |
| Transport | 45,6 Kg | |
- Ce produit contient une source de lumière de catégorie d'efficacité énergétique.
| Consommation d'énergie totale en mode Veille (W) (Tous les ports réseau sont activés) | 1,9 W | |
| Durée pour la gestion de la puissance (minutes) | 20 min. | |
| Connexion Wi-Fi | Consommation d'énergie en mode Veille (W) | 1,9 W |
| Durée pour la gestion de la puissance (minutes) | 20 min. | |
| Mode Arrêt | Consommation d'énergie | 0,5 W |
| Durée pour la gestion de la puissance (minutes) | 30 min. | |
Données déterminées conformément à la norme EN 50564 et au Règlement (CE) n° 1275/2008.

Remarque
Par la présente, Samsung déclare que cet appareil de type matériel radio est conforme à la Directive 2014/53/UE et aux exigences réglementaires pertinentes en vigueur au Royaume-Uni. L'intégralité du texte de la déclaration de conformité de l'UE et de la déclaration de conformité du Royaume-Uni est disponible à l'URL suivant : La Déclaration de conformité officielle est disponible sur http://www.samsung.com; rendez-vous dans Assistance > Rechercher une assistance produit, puis saisissez le nom du modèle.
| Gamme de fréquences | Puissance de l'émetteur (Max) | |
| Connexion Wi-Fi | 2412-2472 MHz | 20 dBm |
| Bluetooth | 2402-2480 MHz | 10 dBm |
Annonce de logiciel de source libre (open source)
Cet appareil contient un logiciel de source libre (open source).
L'URL suivant http://opensource.samsung.com/opensource/SMART_TP1_0/seq/0 vous redirige vers les informations concernant la licence de logiciel de source libre (open source) relatives à cet appareil.

Veuillez noter que la garantie Samsung n'inclut pas les déplacements du service après-vente pour expliquer le fonctionnement de l'appareil, corriger une installation non correcte ou effectuer des opérations de nettoyage ou d'entretien normaux.
UNE QUESTION ? UN COMMENTAIRE ?
| PAYS | APPELEZ LE | OU CONTACTEZ-NOUS EN LIGNE SUR |
| AUSTRIA | 0800 72 67 864 (0800-SAMSUNG) | www.samsung.com/at/support |
| BELGIUM | 02-201-24-18 | www.samsung.com/be/support (Dutch) www.samsung.com/be_fr/support (French) |
| DENMARK | 707 019 70 | www.samsung.com/dk/support |
| FINLAND | 030-6227 515 | www.samsung.com/fi/support |
| FRANCE | 01 48 63 00 00 | www.samsung.com/fr/support |
| GERMANY | 06196 77 555 77 | www.samsung.com/de/support |
| ITALIA | 800-SAMSUNG (800.7267864) | www.samsung.com/it/support |
| CYPRUS | 8009 4000 only from landline, toll free | www.samsung.com/gr/support |
| GREECE | 80111-SAMSUNG (80111 726 7864) only from land line (+30) 210 6897691 from mobile and land line | www.samsung.com/gr/support |
| LUXEMBURG | 261 03 710 | www.samsung.com/be_fr/support |
| NETHERLANDS | 088 90 90 100 | www.samsung.com/nl/support |
| NORWAY | 21629099 | www.samsung.com/no/support |
| PORTUGAL | 210 608 098 Chamada para a rede fixa nacional Dias úteis das 9h às 20h | www.samsung.com/pt/support |
| SPAIN | 91 175 00 15 | www.samsung.com/es/support |
| SWEDEN | 0771-400 300 | www.samsung.com/se/support |
| SWITZERLAND | 0800 726 786 | www.samsung.com/ch/support (German) www.samsung.com/ch_fr/support (French) |
| UK | 0333 000 0333 | www.samsung.com/uk/support |
| IRELAND (EIRE) | 0818 717100 | www.samsung.com/ie/support |
Magnetron
Trin 1. Vaelg en fonction
Notice Facile