CHAFFOTEAUX & MAURY INOA GREEN ULTRA - Chaudière à condensation CHAFFOTEAUX ET MAURY - Notice d'utilisation et mode d'emploi gratuit
Retrouvez gratuitement la notice de l'appareil CHAFFOTEAUX & MAURY INOA GREEN ULTRA CHAFFOTEAUX ET MAURY au format PDF.
| Type de produit | Chaudière murale à gaz à condensation |
| Caractéristiques techniques principales | Chaudière à condensation, rendement énergétique élevé, classe A |
| Alimentation électrique | 230 V |
| Dimensions approximatives | 700 x 400 x 300 mm |
| Poids | 35 kg |
| Compatibilités | Compatible avec les systèmes de chauffage central et production d'eau chaude |
| Type de batterie | Non applicable (fonctionne sur alimentation électrique) |
| Tension | 230 V |
| Puissance | De 24 à 30 kW selon le modèle |
| Fonctions principales | Chauffage central, production d'eau chaude sanitaire |
| Entretien et nettoyage | Vérification annuelle par un professionnel, nettoyage des filtres |
| Pièces détachées et réparabilité | Disponibilité des pièces détachées, réparabilité facilitée |
| Sécurité | Système de sécurité intégré, protection contre la surchauffe |
| Informations générales utiles | Installation par un professionnel recommandée, garantie constructeur |
FOIRE AUX QUESTIONS - CHAFFOTEAUX & MAURY INOA GREEN ULTRA CHAFFOTEAUX ET MAURY
Questions des utilisateurs sur CHAFFOTEAUX & MAURY INOA GREEN ULTRA CHAFFOTEAUX ET MAURY
0 question sur cet appareil. Repondez a celles que vous connaissez ou posez la votre.
Poser une nouvelle question sur cet appareil
Téléchargez la notice de votre Chaudière à condensation au format PDF gratuitement ! Retrouvez votre notice CHAFFOTEAUX & MAURY INOA GREEN ULTRA - CHAFFOTEAUX ET MAURY et reprennez votre appareil électronique en main. Sur cette page sont publiés tous les documents nécessaires à l'utilisation de votre appareil CHAFFOTEAUX & MAURY INOA GREEN ULTRA de la marque CHAFFOTEAUX ET MAURY.
MODE D'EMPLOI CHAFFOTEAUX & MAURY INOA GREEN ULTRA CHAFFOTEAUX ET MAURY
CHAUDIÈRE MURALE À GAZ À CONDENSATION

SOMMAIRE
Généralités 3
Normes de sécurité 3
Avertissements 5
Avertissements avant l'installation 5
Informations pour l'utilisateur 6
Explications de nos conditions de garantie 6
Réglementation à respecter 6
Nettoyage de I'installation de chauffage 7
Installations avec plancher chauffant 7
Marquage CE 7
Raccordement des conduits d'arrivee d'air et evacuation des gaz brulés.... 8
Type de raccordement de la chaudière au tuyau d'évacuation de fumées.... 8
Raccordement electrique 8
Description 9
Documentation produit 9
Plaque signalétique 9
Tableau de commande 10
Afficheur 10
Vue globale 11
Scheme de principe 11
Pressuredisplayable. 11
Dimension de la chaudière 12
Distances minimales pour l'installation 12
Installation 13
Pose de la barrette robinetterie 13
Prefabrication 13
Raccordement des canalisations 13
Description de la barrette robinetterie 13
Pose de la chaudière 13
Instructions pour démontage de l'habillage 16
Nettoyage de l'installation 17
Evacuation de la condensation 17
Raccordement fumées 18
Tableaux longueurs des ventouses 19
Raccordement electrique 20
Raccordement des péripériques. 20
Raccordement thermostat d'ambiance 20
Scheme 21
Mise en route 22
Preparation à la mise en route. 22
Circuitélectrique 22
Procedure de mise en marche 23
Premier mise en marche et activation Fonction Purge 23
Réglages 24
Procedure de contrôle de la combustion. 24
Réglage de la puissance chauffage Tmaxale 25
Allumage lent. 25
Réglage du retard à l'allumage chauffage 25
Tableau réglage gaz 25
Changement de gaz 25
Menu Technicien 26
Système de protection de la chaudière 29
Conditions d'arrêt de sécurité de l'appareil 29
Arrêt de sécurité 29
Arrêt verrouillé 29
Tableau des codes erreur 30
Fonction Hors-gel 30
Entretien 31
Remarques generales 31
Nettoyage échangeur primaire 31
Nettoyage du siphon 31
Test de fonctionnement 31
Opérations de vidange 31
Informations pour I'usager 31
Démontage et recyclage de l'appareil. 31
Caracteristiques techniques 32
Fiche de produit 33
Étiquette relative aux produits combinés 34
NORMES DE SECURITE
Legendedeusymboles:
Le non-respect des avertissements comporte un risque de lésions et peut même entraîner la mort.
Le non-respect de l'avis de danger peut porter atteinte et endommager, gravement dans certains cas, des biens, plantes ou animaux.
Icône pour informations et des instructions supplémentaires



Installer l'appareil sur une paroi solide, non soumise aux vibrations.
Fonctionnement bruyant
Ne pas endommager, lors du perçage de la paroi, les câbles électriques ou les tuyaux.
Electrocution par contact avec des conducteurs sous tension. Explosions, incendies ou intoxications en cas de fuite de gaz émanant des conduites endommagées. Dommages aux installations existantes. Inondations en cas de fuite d'eau provenant des conduites endommagées.

Effectuer les raccordements électriques à l'aide de conducteurs de section ajustate.
Incendie suite à surchauffe provoquée par le passage de courant électrique dans des cables sous dimensionnés.

Protégé les câbles de raccordement de manière à éviter qu'ils ne soient endommagés.
Electrocution par contact avec des conducteurs sous tension. Explosions, incendies ou intoxications suite à une fuite de gaz émanant des conduites endommagées. Inondations suite à une fuite d'eau provenant des conduites endommagées.

S'assurer que la piece et les installations auxquelles l'appareil sera raccordé sont bien conformes aux réglementations applicables en la matière.
Electrocution par contact avec des conducteurs sous tension mal installés.

Dommages à l'appareil en raison de conditions de fonctionnement inadéquates.

Utiliser des accessoires et du matériel manuel propre à l'utilisation (veiller à ce que l'outil de ne soit pas détiérioré et que la poignée soit correctement fixée et en bon état), utiliser correctement ce matériel,
protégger contre toute chute accidentelle, ranger après utilisation.
Lésions personnelles provoquées par la projection déclats ou de fragments, inhalation de poussières, cognements, coupures, piqures, abrasions

Dommages à l'appareil ou aux objets à proximé en raison de projection de débris ou de fragments, coups, incisions.

Utiliser des équipements électriques adéquats (s'assurer notamment que le cable et la fiche d'alimentation sont en bon état et que les parties à mouvement rotatif ou alternatif sont bien fixées). Les employerer correctement. Ne pas générer pas le passage en laissant trainer le cable d'alimentation. Les fixer pour éviter toute chute. Les débrancher et les ranger après utilisation.
Lésions personnelles provoquées par la projection d'éclats ou de fragments, inhalation de poussières, cognements, coupures, piçûres, abrasions, bruit, vibrations.

Dommages à l'appareil ou aux objets à proximé en raison de projection de débris ou de fragments, coups, incisions.

Assurez-vous de la stabilité des échelles portatives, de leur résistance, du bon état des marches et de leur adhérence. Veiller à ce qu'une personne fasse en sorte qu'elles ne soient pas déplacées quand quelqu'un s'y trouve.
Lésions provoquées par chute d'une hauteur élevée ou par coupure (echelle plante).

Veiller à ce que les échelles mobiles soient stables, suffisamment résistantes, avec des marches en bon état et non glissantes, qu'elles disposent de garde-fou le long de la rampe et sur la plate-forme.
Lésions provoquées par la chute d'une hauteur élevé.

Faire en sorte que, lors de travaux en hauteur (généralement en cas d'utilisation en présence de dénivélés supérieurs à 2 m), une rambarde de sécurité encadre la zone de travail ou que les équipements individuels permettent de prévenir toute chute, que l'espace parcouru en cas de chute ne soit pas enchombré d'objets dangereux, et que l'impact eventuel soit amorti par des supports semirigides ou déformables.
Lésions provoquées par la chute d'une hauteur élevé.
S'assurer que le lieu de travail dispose de conditions hygieniques et sanitaires déquates en ce qui concerne l'éclairage, l'aération, la solidité des structures, les issues de secours.
Lésions personnelles provoquées par cognements, trèbuchements, etc.

Protégér par du matériel ajusté l'appareil et les zones à proximé du lieu de travail.
Endommagement de l'appareil ou des objets avoisinants par projection d'éclats, coups, entailles.

Déplacer l'appareil avec les protections qui s'imposent et un maximum de précaution.
Endommagement de l'appareil ou des objets avoisinants par suite de heures, coups, entailles, écrasement.

Pendant les travaux, se munir de vêtements et déquipements de protection individuels.
Lésions personnelles provoquées par électrocution, projection d'éclats ou de fragments, inhalation de poussières, cognements, coupures, piqures, abrasions, vibrations.

Faire en sorte que le rangement du matériel et des équipements rende leur manutention simple et sure, éviter de former des piles qui risquent de s'écrouler.
Endommagement de l'appareil ou des objets avoisinants par suite de heures, coups, entailles, écrasement.

Les opérations internes à l'appareil doivent être effectuees avec le soin nécessaire permettant d'eviter de brusques contacts avec des pieces pointues.
Lésions personnelles par suite de coupures, piqures, abrasions.

Rétablit toutes les fonctions de sécurité et de contrôle concernées par une intervention sur l'appareil et s'assurer de leur bon fonctionnement avant toute remise en service.
Explosions, incendies ou intoxications dus à des fuites de gaz ou à une mauvaise évacuation des fumées.

Dommages ou blocage de l'appareil en raison de conditions de fonctionnement incontrôlées.

Ouvrir les composants pouvant contenir de l'eau chaude, ouvrir au besoin les évets, avant toute intervention.
Lésions personnelles dues à brûlures.

Proceder au détartrage des composants en suivant les recommendations de la fiche de sécurité du produit utilisé, aérer lapiece, porter des vêtements de protection, éviter de mélanger des produits entre eux,protéger l'appareil et les objetsavoisinants.
Lésions personnelles par contact de la peau et des yeux avec des substances acides, inhalation ou ingestion d'agents chimiques nocifs.

Dommages à l'appareil ou aux objets à proximé en raison de la corrosion par des substances acides.

En cas de présence d'une odeur de brûlé ou de fumée s'échappant de l'appareil, couper l'alimentation électrique, ouvrir les fenêtres et appeler un technicien.

Lésions personnelles en raison de brûlures, inhalation de fumée, intoxication. Explosions, incendies ou intoxications.


SI VOUS DÉTECTEZ UNE ODEUR DE GAZ :
N'allumez pas la lumière
- N'allumez aucun apparéil électrique
- Ne téléphone pas dans la zone de danger
- Éteignez toutes les flammes et ne fumez pas
- Ouvrez les fenêtres et les portes situées dans la zone de danger
- Fermez les dispositifs de blocage des conduites de gaz sur le compteur
- Prévenez vos colocataires/voisins et quitterze le logement le plus vite possible.
Cette apparéil peut être utilisé par des enfants de plus de 8 ans et par des personnes à capacités physiques,


mentales réduites et ayant peu d'expérience ou connaissance sils sont sous supervision et si des instructions ont été données pour l'utilisation sécuritaire de l'appareil et si les risques sont connus. Enfants ne doivent pas jouer avec l'appareil.
Nettoyage et entretien ne devraient pas etre effectués par les enfants sans surveillance.
AVERTISSEMENTS AVANT L'INSTALLATION
Cet apparéil sert à produit de l'eau chaude à usage domestique.
Il doit être raccordé à une installation de chauffage et à un réseau de distribution d'eau chaude adapté à ses performances et à sa puissance.
Toute utilisation autre que cette prévue est interdite. Le fabricant ne peut enaucun cas etre tenu responsable de dommages derivant d'uneutilisation incorrecte ou du non-respect des instructions containues dans cette notice.
L'installation, l'entretien et toute autre intervention doivent être effectués conformément aux normes en vigueur et aux indications fournies par le fabricant. Le fabricant décline toute responsabilité en cas de dommages subis par des personnes, des animaux ou des biens des suites d'une mauvaise installation de l'appareil.
En cas de panne et/ou de mauvais fonctionnement, éteindre l'appareil et fermer le robinet du gaz. Ne pas essayer de le réparer soi-même, faire appel à un professionnel qualifié.
Avant toute intervention d'entretien/réparation de la chaudière, couper l'alimentation électrique en plaçant l'interrupteur bipolaire extérieur à la chaudière sur "OFF".
Pour toute réparation, faire appel à un professionnelnel qualifié et exiger l'utilisation de pieces détachées originales.
Le non-respect de ce qui précède peut compromètre la sécurité de l'appareil et faire déchoir toute responsabilité du fabricant.
En cas de travaux ou d'opérations d'entretien de structures placées pres des conduits ou des dispositifs d'évacuation de fumées et de leurs accessoires, éteindre l'appareil en plaçant l'interrupteur bipolaire extérieur sur OFF et en fermant le robinet du gaz. Une fois que les travaux sont terminés, faire vérifier par un professionnel le bon état de fonctionnement des conduits et des dispositifs.
Pour le nettoyage des parties extérieures, eteindre la chaudiere et placer l'interrupteur extérieur sur "OFF".
Nettoyer avec un chiffon imbibé d'eau savonneuse. Ne pas utiliser de détergents agressifs, d'insecticides ou de produits toxiques.
Pour un fonctionnement sur, écologique et une économie d'énergie, veiller au respect de la réglementation en vigueur. En cas d'utilisation de kits ou d'options, il est recommendé de n'utiliser que des produits ou accessoires CHAFFOTEAUX.
Avant de raccorder la chaudière, il est nécessaire :
d'éviter l'installation de l'appareil dans des zones où l'air de combustion contient des taux de chlore élevés (ambiance de type piscine), et/ou d'autres produits nuisibles tels que l'ammoniac (salon de coiffure), les agents alcalins (laverie)...
- de vérifier la prédisposition de la chaudière pour le fonctionnement avec le type de gaz disponible (lire les indications figurant sur l'étiquette de l'emballage et sur la plaque portant les caractéristiques de la chaudière)
- de vérifier à l'aide des étiquettes apposées sur l'emballage et de la plaque signalétique sur l'appareil que la chaudière est destinée au pays dans lequel elle devrait être installée et que la catégorie de gaz pour laquelle la chaudière a été concise correspond à l'une des catégories autorisées dans le pays de destination.
- de vérifier que le taux de foufre du gaz utilisé doit être inférieure aux normes européennes en vigueur : maximum de pointe dans l'année pendant un court temps : 150 mg/m3 de gaz et moyenne dans l'année de 30 mg/m3 de gaz
- de vérifier que dans le cas d'une durée de l'eau supérieure à 20^ , prévoir un traitement de l'eau.
- de vérifier que le circuit d'alimentation du gaz doit être réalisé selon les normes spécifiques et ses dimensions doivent être conformes. Il faut également considérer la puissance maximale de la chaudière et veiller à ce que les dimensions et le raccordement du robinet de fermeture soient conformes.
AVANT L'INSTALLATION, IL EST CONSEILLÉ DE PROCESSER À UN NETTOYAGE MINUTIEUX DE L'ARRIVÉE DE GAZ AFIN DE RETIRER LES ÉVENTUELS RÉSIDUS QUI POURRAIENT COMPROMETTURE LE FONCTIONNEMENT DE LA CHAUDÈRE.

IL EST ÉGALEMENT IMPORTANT DE VÉRIFIER QUE LA PRESSION DU GAZ À LA CHAUDÈRE SOIT CONFORME.
Vérifier que la pression maximale de l'alimentation en eau ne dépasse pas 3,5 bars. Dans le cas contraire, il est nécessaire d'inverterir un réducteur de pression.
Informations pour l'utilisateur
Informer les utilisateurs sur la mécanique du dispositif en particulier en ce qui concerne les informations de sécurité.

Informer l'utilisateur sur les modalités de fonctionnement de l'installation. En particulier lui délivrer le manuel d'instruction, en l'informant qu'il doit être conservé à proximité de l'appareil.
En outre, informer l'usage sur les tâches qui lui incombent :
- Contrôler périodiquement la pression de l'eau de l'installation,
- Rétablir la pression et dégazer l'installation si besoin,
- Régler les consignes et les dispositifs de régulation pour une correcte et plus économique gestion de l'installation,
- Faire exécuter, comme la réglementation le prévoit, l'entretien périodique de l'installation,
- Ne modifier, enaucun cas, les réglages d'alimentation d'air de combustion et du gaz de combustion.
Exclusions de nos conditions de garantie
Nous ouvrir toute prestation de garantie pour tous les dommages résultats de:
- Emploi ou maniement impropre ou incorrect.
- Montage défectueux et mise en marche incorrecte par des acheteurs ou des tiers.
- Utilisation d' éléments d'origine étrangère.
- Utilisation à pression trop élevée/en dehors des caractéristiques de l'appareil.
- Utilisation de combustibles propres.
- Inobservance des indications du mode d'emploi et des autocollants sur la chaudière.
Installation qui ne respecte pas les normes en vigueur et les recommendations du fabricant.

RÉGEMENTATION À RES PECTER
1. Batiments d'habitation
Conditions réglementaires d'installation et d'entretien
L'installation et l'entretien de l'appareil doivent être effectués par un professionnel qualifié, conformément aux textes réglementaires et règes de l'art en vigueur notamment :
- Arrêté du 2 août 1977 modifié
Régles Techniques et de Sécurité applicables aux installations de gaz combustible et hydrocarbures liquéfies situées à l'intérieur desBATIMENTS d'habitation et de leurs dépendances
-NormeDTUP45-204
Installations de gaz (anciensement DTU 61-1 - Installations de gaz - Avril 1982 + additif n° 1 juillet 1984)
- Règlement Sanitaire Départemental
Pour les appareils raccordés au réseau électrique :
- Norme NFC 15-100
Installations électriques à basse tension-Régles.
2. Etablissements recevant du public
Conditions réglementaires d'installation
L'installation et l'entretien de l'appareil doivent être effectués conformément aux textes réglementaires et règes de l'art en vigueur, notamment :
Règlement de sécurité contre l'incendie et la panique dans les établissements recevant du public :
a) Prescriptions generales :
- Articles GZ
Installations aux gaz combustibles et hydrocarbures liquifiés
- Articles CH
Chauffage, ventilation, réfrigération, conditionnement d'air et production de vapeur et d'eau chaude sanitaire
b) Prescriptions particulières à chaque type d'établissements recevant du public (hôpitaux, magasins, etc...).
3. Raccordement fumées
Pour les appareils étanches (ventouse), il convient de respecter les prescriptions de l'arrêté du 2 août 1977, de la norme DTU P 45-204 et pour les mini-chaufferies, le cahier des charges ATG C.321.4.
La chaudière devra fonctionner exclusivement avec les conduites d'évacuation des fumées/d'admission d'air livrées par CHAFFOTEAUX.
Pour les apparèils raccordés à une cheminée à tirage naturel sous pression de type B23p, il convient d'utiliser un système d'évacuation titulaire d'un avis technique délivré par le CSTB.
La mise en oeuvre doit se faire conformément aux dossiers techniques et aux normes de mise en oeuvre NF DTU 24.1 et NF DTU 61.1 notamment pour ce qui concerne le conduit vertical qui doit être installé dans une gaine.
Nettoyage de l'installation de chauffage
Dans le cas d'une installation ancienne il est conseilé de proceser à un nettoyage de l'installation afin de retarder les événuels résidus qui pourrait comprometer le fonctionnement de la chaudière. Veiller à ce que le vase d'expansion dispose d'une capacité suffisante pour le volume d'eau de l'installation.
Installations avec plancher chauffant
Dans les installations avec plancher chauffant, monter un organe de sécurité, à réarmement manuel, sur le départ chauffage du plancher suivant les recommendations DTU 65.11. Pour la connexion électrique du thermostat voir paragraphe "Raccordements Electriques".
Dans le cas d'une température départ trop élevée, la chaudière s'arrête aussi bien en sanitaire qu'en chauffage et sur l'affcheur apparait le code erreur 116 "thermostat plancher ouvert". La chaudière redémarre à la fermeture du thermostat à réarmement manuel.
L'installation et la première mise en service de la chaudière doivent être effectues par un professionnel conformément aux réglementations matrice d'installation en vigueur dans pays et aux réglementations éventures des autorités locales et des organismes préposés à la santé publique.

Par application de l'article 25 de l'arrêté

du 2/08/77 modifié et de l'article
1 de l'arrêté modificatif du 5/02/99, l'insealleur est tenu d'établit des certificates de conformité approuvés par les ministres chargés de la construction et de la sécurité du gaz:
- de modèles distincts (modèles 1, 2 ou 3) après réalisation d'une installation de gaz neuve,
- de "modèle 4" après remplacement en particulier d'une chaudière par une nouvelle.
ATTENTION
Aucun object inflammable ne doit se couver à proximé de la chaudière.
S'assurer que l'environnement de l'appareil et les installations où il sera raccordé, sont conformes aux normes en vigueur.
Si des poussières et/ou vapeurs nocives se trouvent dans le local où la chaudière est installée, celle-ci devra fonctionner à l'aide d'un autre circuit d'air.
Certificates de conformité pour les rénovations / remplacements d'appareil sur installations existantes.
L'installation d'une chaudière gaz doit obligatoirement faire l'objet d'un Certificat de Conformité visé par Qualigaz ou tout autre organisme/agréé par le Ministère de l'Industrie (arrêté du 2 août 1977 modifié):
- Modèle 2 pour une installation neuve complétée ou modifiée ;
- Modèle 4 pour le remplacement d'une chaudière.
Certification CE
La marque CE garantit que l'appareil répond aux exigences de la directive :
- 2009/142/CEE
sur les apparèils à gaz
- 2014/30/EU
sur la compatibilité electromagnetique
-92/42/CEE
sur le rendement énergétique
- Seul l'article 7 (§ 2), l'article 8 et des annexes III à V
2009/125/CE
sur la sécurité électrique.
Raccordement des conduits d'arrivée d'air et évacuation des gaz brûlés
La chaudière est prévue pour le fonctionnement de type B par préelèvement de l'air ambient et de type C par préelèvement de l'air à l'extérieur.
Lors de l'installation d'un système d'évacuation, faire attention à l'étanchéité pour éviter l'infiltration de fumée dans le circuit d'air.
Les raccords installés à l'horizontale doivent être inclinés de 3% vers le haut pour éviter que les condensats ne stagnent.
En cas d'installation de type B, le local où est installée la chaudière doit-disposer d'une amende d'air adequate dans le respect des normes en vigueur en matière d'aération. Dans les pieces soumises à un risque de vapeur corrosive (lavoirs, salons de coiffure, entreprises de galvanisation...), it est très important d'utiliser l'installation de type C avec préelèvement d'air pour la combustion à l'extérieur.
Les apparèils de type C, dont la chambre de combustion et le circuit d'alimentation d'air sont étanches, neprésentent aucune limitation due aux conditions d'aération et au volume de la pierce.
Pour ne pas compromètement le fonctionnement de la chaudière, le lieu de l'installation doit correspondre à la température limite de fonctionnement et être protégé de manière à ce que la chaudière n'entre pas directement en contact avec les agents atmosphériques. Une ouverture respectant les distances minimales a été prévue pour permettre l'accès aux pieces de la chaudière - voir page 12.
Pour la réalisation des systèmes d'aspiration/évacuation de type coaxial, des accessoires d'origine doivent être utilisés.
En cas de fonctionnement à la puissance thermique nominale, les températures des gaz évacués ne dépassent pas 80^ . Veiller néanmoins à respecter les distances de sécurité en cas de passage à travers des parois ou des matérielles inflammbables.
La jonction des tubes d'évacuation des fumées est réalisée à l'aide d'une connexion mäle-femelle et d'un collier.
Les branchements doivent être disposés à l'inverse du sens d'écoulement de la condensation.
ATTENTION

S'assurer que les passages d'évacuation et de ventilation ne soient pas obstrués.
Verifier l'étanchité de le conduits d'évacuation fumeés.
Type de raccordement de la chaudière au tuyau d'évacuation de fumées
Pour le raccordement de la chaudière au tuyau d'évacuation de fumées, il faut toujours utiliser des produits résistant à la condensation. Pour la longueur et les changements de direction des raccordements, consulter le tableau reconnant les types d'évacuation (voir page 18) et le catalogue général CHAFFOTEAUX.
Les kits de raccordement aspiration/évacuation des fumées sont fournis séparément en fonction des exigences d'installation.
La chaudière est prévue pour un raccordement à un système coaxial d'aspiration et d'évacuation des fumées.
En cas de perte de charge dans les conduits, consulter le catalogue des accessoires. La résistance supplémentaire doit être prise en considération pour ces dimensions.
Pour la méthode de calcul, les valeurs des longueurs équivalentes et les exemples, consulter le catalogue général.
Raccordement electrique
Pour une plus grande sécurité, faire effectuer un contrôle rigoureux de l'installation électrique par un personnel qualifié.
Le fabricant n'est pas responsable des évventuels dommages provoqués par une installation non reliée à la terre ou en raison d'anomalies au niveau de l'alimentation électrique.
Vérifier que l'installation est adaptée à la puissance maximale absorbée par la chaudière et indiquée sur la plaque signalétique.
Le raccordement électrique doit être réalisés à l'aide d'un raccordement fixe (ne pas utiliser de prise mobile) et dotés d'un interrupteur bipolaire disposant d'une distance d'ouverture des contacts d'au moins 3 mm.
Veiller à ce que la section des câbles soit supérieure ou égale à 0,75 mm2.
Il est indispensable de relier l'appareil à une installation de mise à la terre efficace pour garantir la sécurité de l'utilisateur.
Raccorder le cable d'alimentation fourni à un réseau 230V-50Hz et veiller à respecter la polarisation L-N et le raccordement à la terre.


Important: Si le cable d'alimentation est endommagé, il doit être remplace par le fabricant, son service après vente ou une personne de qualification similaire afin d'éviter un danger un utilisant une piece de rechange d'origine.
Les prises multiples, rallonges et adaptateurs sont interdits.
Il est interdit d'utiliser les tubes de l'installation hydraulique, de chauffage ou du gaz pour la mise à la terre de l'appareil.
La chaudière n'est pas protégée contre la foudre.
S'il faut changer les fusibles, utiliser des fusibles de type rapides.
Documentation produit
Le mode d'emploi s'applique aux produits mentionnés sur le tableau :
Le numéro d'article du produit se trouve sur la plaque signalétique.
| Numero article | Type de produit |
| 3310546 | INOA GREEN ULTRA 25 |
| 3310547 | INOA GREEN ULTRA 30 |
Contenu de la livraison
L'appareil est livre emballe dans un carton. ÀpRES déballage, contrôle la chaudière à la recherche de dommages éventuels et vérifie l'intégralité de la livraison.

| Quantité | Description | |
| 1 | Chaudière | |
| 1 | Vis de fixation WDS | |
| 1 | Tuyau d'évacuation des condensats | |
| 1 | Documents | |
| 1 | Notice pour l'usage | |
| 1 | Notice pour l'stiption et l'entretien | |
| 1 | Garantie | |
AVERTISSEMENT!
VERIFIEZ SI LES VIS DE FIXATION SONT ADAPTES A LA NATURE DU MUR.
DANS LE CAS CONTRAIRE PREVOIR UN SYSTEME DE FIXATION ADAPTE.

AVERTISSEMENT!
CONSERVEZ TOUS LES EMBALLAGES
(AGRAFES, SACHETS PLASTIQUES
ETC.) HORS DE LA PORTEE DES ENFANTS,
ETANT DONNE QU'ILS PEUVENT
REPRESENTER UN DANGER.

PLAQUE SIGNALÉTIQUE
La plaque signalétique est fixée en usine sur le couvercle du panneau de commande.

| 1 | 25 | ||||||||||||||||
| 3 | 4 | ||||||||||||||||
| 6 | |||||||||||||||||
| 7 | |||||||||||||||||
| 8 | MAX | MIN | |||||||||||||||
| 9 | 12 | 14 | |||||||||||||||
| 13 | 15 | ||||||||||||||||
| 16 | 17 | ||||||||||||||||
| 10 | 11 | 18 | |||||||||||||||
| Gas | |||||||||||||||||
| mbar | |||||||||||||||||
| Gas | |||||||||||||||||
| mbar | 19 | ||||||||||||||||
| Gas | |||||||||||||||||
| mbar | |||||||||||||||||
Legende:
- Marque
- Fabricant
- Modèle - N° de série
- Référence commerciale
5.Numero homologation - Pays de destination - catégorie gaz
- Réglage Gaz
- Type installation
- Données électriques
- Pression maxi sanitaire
- Pression maxi chauffage
- Type de chaudière
- Classe NOx/Efficiency
- Débit calorifique nominalCHAUFFAGE
- Puissance utile chauffage
- Débit spécifique
- Rendement puissance chaudière
- Débit calorifique nominal sanitaire
- Gaz utilisable
- Température ambiente de fonctionnement
- Température maxi chauffage
- Température maxi sanitaire.

Legende:
- Touche ON/OFF et de sélection du MODE de fonctionnement
- Touche + / - réglage température eau chaude sanitaire
- Afficheur
- Touche +/- réglage température chauffage
- Touche RESET
AFFICHEUR

| 88.8 | Chiffre pour indication: - statut chaudière et indication température (°C) - signalisation code d'erreur (Err) - réglage menu |
| R | Demande de pression touche Reset (chaudière en blocage) |
| - | Demande intervention assistance technique |
| 6 | Flamme: chaudière allumée. |
| . . . . . . . . . . . . . . . . . . . . . . . . . . . . . . . . . . . . . . . . . . . . . . . . . . . . . . . . . . . . . . . . . . . . . . . . . . . . . . . . . . . . . . . . . . . . . . . . . . . . . . . . . . . . . . . . . . . . . . . . . . . . . . . . . . . . . . . . . . . . . . . . . . . . . . . . . . . . . . . . . . . . . . . . . . . . . . . . . . . . . . . . . . . . . . . . . . . . . . . . .. . . . . . . . . . . . . . . . . . . . . . . . . . . . . . . . . . . . . . . . . . . . . . . . . . . . . . . . . . . . . . . . . . . . . . . . . . . . . . . . . . . . . . . . . . . . . . . . . . . . . Fonctionnement en mode chauffage Demande chauffage active | |
| . . . . . . . . . . . . . . . . . . . . . . . . . . . . . . . . . . . . . . . . . . . . . . . . . . . . . . . . . . . . . . . . . . . . . . . . . . . . . . . . . . . . . . . . . . . . . . . . . . . . . . . . . . . . . . . . . . . . . . . . . . . . . . . . . . . . . . . . . . . . . . . . . . . . . . . . . . . . . . . . . . . . . . . . . . . . . . . . . . . . . . . . . . . . . . . . . . . . . . . . . . . . . . . . . . . . . . . . . . . . . . . . . . . . . . . . . . . . . . . . . . . . . . . . . . . . . . . . . . . . . . . . . . . . . . . . . . . . . . . . . . . . . . . . . . . . . . . . . . . . . . . . . . . . . . . . . . . . . . . . . . . . . . . . . . . . . . . . . . . . . . . . . . . . . . . . . . . . . . . . . . . . . . . . . . . . . . . . . . . . . . . . . . . . . . . . . . . . . . . . . . . . . . . . . . . . . . . . . . . . . . . . . . . . . . . . . . . . . . . . . . . . . . . . . . . . . . . . . . . . . . . . . . . . . . . . . . . . . . . . . . . . . . . . . . . . . . . . . . . . . . . - réglage menu | |
| R | |
| Demande intervention assistance technique | |
| 6 | |
| Flamme: chaudière allumée. | |
| . . . . . . . . . . . . . . . . . . . . . . . . . . . . . . . . . . . . . . . . . . . . . . . . . . . . . . . . . . . . . . . . . . . . . . . . . . . . . . . . . . . . . . . . . . . . . . . . . . . . . . . . . . . . . . . . . . . . . . . . . . . . . . . . . . . . . . . . . . . . . . . . . . . . . . . . . . . . . . . . . . . . . . . . . . . . . . . . . . . . . . . . . . . . . . . . . . . . . . . . . . . . . . . . . . . . . . . . . . . . . . . . . . . . . . . . . . . . . . . . . . . . . . . . . . . . . . . . . . . . . . . . . . - réglage menu | |
| R | |
| Demande de pression touche Reset (chaudière en blocage) | |
| R | |
| Demande intervention assistance technique | |
| 6 | |
| Flamme: chaudière allumée. | |
| . . . . . . . . . . . . . . . . . . . . . . . . . . . . . . . . . . . . . . . . . . . . . . . . . . . . . . . . . . . . . . . . . . . . . . . . . . . . . . . . . . . . . . . . . . . . . . . . . . . . . . . . . . . . . . . . . . . . . . . . . . . . . . . . . . . . . . . . . . . . . . . . . . . . . . . . . . . . . . . . . . . . . . . . . . . . . - réglement - réclame - réclame - réclame - réclame - réclame - réclame - réclame - réclame - réclame - réclame - réclame - réclame - réclame - réclame - réclame - réclame - réclame - réclame - réclame - réclame - réclase - réclase - réclase - réclase - réclase - réclase - réclase - réclase - réclase - réclase - réclase - réclase - réclase - réclase - réclase - réclase - réclase - réclase - réclase - réclase - réclasse - réclase - réclase - réclase - réclase - réclase - réclase - réclase - réclase - réclase - réclase - réclase - réclase - réclase - réclase - réclase - réclase - réclase - réclase - réclase - récluse - récluse - récluse - récluse - récluse - récluse - récluse - récluse - récluse - récluse - récluse - récluse - récluse - récluse - récluse - récluse - récluse - récluse - récluse - récluse - réclase - récluse - récluse - récluse - récluse - récluse - récluse - récluse - récluse - récluse - récluse - récluse - récluse - récluse - récluse - récluse - récluse - récluse - récluse - réclause - récluse - récluse - récluse - récluse - récluse - récluse - récluse - récluse - récluse - récluse - récluse - récluse - récluse - récluse - récluse - récluse - récluse - récluse - récluse - réclause - réclause - réclause - réclause - réclause - réclause - réclause - réclause - réclause - réclause - réclause - réclause - réclause - réclause - réclause - réclause - réclause - réclause - réclause - réclause - récluse - réclause - réclause - réclause - réclause - réclause - réclause - réclause - réclause - réclause - réclause - réclause - réclause - réclause - réclause - réclause - réclause - réclause - réclause - réclaus - réclause - réclause - réclause - réclause - réclause - réclause - réclause - réclause - réclause - réclause - réclause - réclause - réclause - réclause - réclause - réclause - réclause - réclause - réclause - réclaus - réclaus - réclause - réclause - réclause - réclause - réclause - réclause - réclause - réclause - réclause - réclause - réclause - réclause - réclause - réclause - réclause - réclause - réclause - réclause - réclaus - réclau - réclause - réclause - réclause - réclause - réclause - réclause - réclause - réclause - réclause - réclause - réclause - réclause - réclause - réclause - réclause - réclause - réclause - réclause - réclause - réclipse - réclause - réclause - réclause - réclause - réclause - réclause - réclause - réclause - réclause - réclause - réclause - réclause - réclause - réclause - réclause - réclause - réclause - réclause - réclause - réclauc - réclause - réclause - réclause - réclause - réclause - réclause - réclause - réclause - réclause - réclause - réclause - réclause - réclause - réclause - réclause - réclause - réclause - réclause - réclause - réclauer - réclause - réclause - réclause - réclause - réclause - réclause - réclause - réclause - réclause - réclause - réclause - réclause - réclause - réclause - réclause - réclause - réclause - réclause - réclause - récl nause - réclause - réclause - réclause - réclause - réclause - réclause - réclause - réclause - réclause - réclause - réclause - réclause - réclause - réclause - réclause - réclause - réclause - réclause - réclause - réclauses - réclause - réclause - réclause - réclause - réclause - réclause - réclause - réclause - réclause - réclause - réclause - réclause - réclause - réclause - réclause - réclause - réclause - réclause - réclause - réclau - réclause - réclause - réclause - réclause - réclause - réclause - réclause - réclause - réclause - réclause - réclause - réclause - réclause - réclause - réclause - réclause - réclause - réclause - réclaus - réclauc - réclause - réclause - réclause - réclause - réclause - réclause - réclause - réclause - réclause - réclause - réclause - réclause - réclause - réclause - réclause - réclause - réclause - réclause - réclaus - réclauer - réclause - réclause - réclause - réclause - réclause - réclause - réclause - réclause - réclause - réclause - réclause - réclause - réclause - réclause - réclause - réclause - réclause - réclause - réclaus - réclaur - réclause - réclause - réclause - réclause - réclause - réclause - réclause - réclause - réclause - réclause - réclause - réclause - réclause - réclause - réclause - réclause - réclause - réclause - réclause - réclaur - réclause - réclause - réclause - réclause - réclause - réclause - réclause - réclause - réclause - réclause - réclause - réclause - réclause - réclause - réclause - réclause - réclause - réclause - réclaus - réclaux - réclaux - réclaux - réclaux - réclaux - réclaux - réclaux - réclaux - réclaux - réclaux - réclaux - réclaux - réclaux - réclaux - réclaux - réclaux - réclaux - réclaux - réclaux - réclaux - récloux - réclaux - réclaux - réclaux - réclaux - réclaux - réclaux - réclaux - réclaux - réclaux - réclaux - réclaux - réclaux - réclaux - réclaux - réclaux - réclaux - réclaux - réclaux - réclaux - récl aux - réclaux - réclaux - réclaux - réclaux - réclaux - réclaux - réclaux - réclaux - réclaux - réclaux - réclaux - réclaux - réclaux - réclaux - réclaux - réclaux - réclaux - réclaux - réclaux - réclux - réclaux - réclaux - réclaux - réclaux - réclaux - réclaux - réclaux - réclaux - réclaux - réclaux - réclaux - réclaux - réclaux - réclaux - réclaux - réclaux - réclaux - réclaux - réclaux - récliaux - réclaux - réclaux - réclaux - réclaux - réclaux - réclaux - réclaux - réclaux - réclaux - réclaux - réclaux - réclaux - réclaux - réclaux - réclaux - réclaux - réclaux - réclaux - réclaux - récl Aux - réclaux - réclaux - réclaux - réclaux - réclaux - réclaux - réclaux - réclaux - réclaux - réclaux - réclaux - réclaux - réclaux - réclaux - réclaux - réclaux - réclaux - réclaux - réclaux - réclAux - réclaux - réclaux - réclaux - réclaux - réclaux - réclaux - réclaux - réclaux - réclaux - réclaux - réclaux - réclaux - réclaux - réclaux - réclaux - réclaux - réclaux - réclaux - réclaux - réclax - réclaux - réclaux - réclaux - réclaux - réclaux - réclaux - réclaux - réclaux - réclaux - réclaux - réclaux - réclaux - réclaux - réclaux - réclaux - réclaux - réclaux - réclaux - réclaux - réclieux - réclaux - réclaux - réclaux - réclaux - réclaux - réclaux - réclaux - réclaux - réclaux - réclaux - réclaux - réclaux - réclaux - réclaux - réclaux - réclaux - réclaux - réclaux - réclaux - réclwx - réclaux - réclaux - réclaux - réclaux - réclaux - réclaux - réclaux - réclaux - réclaux - réclaux - réclaux - réclaux - réclaux - réclaux - réclaux - réclaux - réclaux - réclaux - réclaux - réclaos - réclaux - réclaux - réclaux - réclaux - réclaux - réclaux - réclaux - réclaux - réclaux - réclaux - réclaux - réclaux - réclaux - réclaux - réclaux - réclaux - réclaux - réclaux - réclaux - réclatrix - réclaux - réclaux - réclaux - réclaux - réclaux - réclaux - réclaux - réclaux - réclaux - réclaux - réclaux - réclaux - réclaux - réclaux - réclaux - réclaux - réclaux - réclaux - réclaux - réclinx - réclaux - réclaux - réclaux - réclaux - réclaux - réclaux - réclaux - réclaux - réclaux - réclaux - réclaux - réclaux - réclaux - réclaux - réclaux - réclaux - réclaux - réclaux - réclaux - réclau - réclaux - réclaux - réclaux - réclaux - réclaux - réclaux - réclaux - réclaux - réclaux - réclaux - réclaux - réclaux - réclaux - réclaux - réclaux - réclaux - réclaux - réclaux - réclaux - récl AUX - réclaux - réclaux - réclaux - réclaux - réclaux - réclaux - réclaux - réclaux - réclaux - réclaux - réclaux - réclaux - réclaux - réclaux - réclaux - réclaux - réclaux - réclaux - réclaux - réclNX - réclaux - réclaux - réclaux - réclaux - réclaux - réclaux - réclaux - réclaux - réclaux - réclaux - réclaux - réclaux - réclaux - réclaux - réclaux - réclaux - réclaux - réclaux - réclaux - réclNx - réclaux - réclaux - réclaux - réclaux - réclaux - réclaux - réclaux - réclaux - réclaux - réclaux - réclaux - réclaux - réclaux - réclaux - réclaux - réclaux - réclaux - réclaux - réclaux - réclAX - réclaux - réclaux - réclaux - réclaux - réclaux - réclaux - réclaux - réclaux - réclaux - réclaux - réclaux - réclaux - réclaux - réclaux - réclaux - réclaux - réclaux - réclaux - réclaux - réclnx - réclaux - réclaux - réclaux - réclaux - réclaux - réclaux - réclaux - réclaux - réclaux - réclaux - réclaux - réclaux - réclaux - réclaux - réclaux - réclaux - réclaux - réclaux - réclaux - récl.xx - réclaux - réclaux - réclaux - réclaux - réclaux - réclaux - réclaux - réclaux - réclaux - réclaux - réclaux - réclaux - réclaux - réclaux - réclaux - réclaux - réclaux - réclaux - réclaux - récl队伍 - réclaux - réclaux - réclaux - réclaux - réclaux - réclaux - réclaux - réclaux - réclaux - réclaux - réclaux - réclaux - réclaux - réclaux - réclaux - réclaux - réclaux - réclaux - réclaux - réclyx - réclaux - réclaux - réclaux - réclaux - réclaux - réclaux - réclaux - réclaux - réclaux - réclaux - réclaux - réclaux - réclaux - réclaux - réclaux - réclaux - réclaux - réclaux - réclaux - réclawes - réclaux - réclaux - réclaux - réclaux - réclaux - réclaux - réclaux - réclaux - réclaux - réclaux - réclaux - réclaux - réclaux - réclaux - réclaux - réclaux - réclaux - réclaux - réclaux - réclaws - réclaux - réclaux - réclaux - réclaux - réclaux - réclaux - réclaux - réclaux - réclaux - réclaux - réclaux - réclaux - réclaux - réclaux - réclaux - réclaux - réclaux - réclaux - réclaux - réclWX - réclwx - réclwx - réclwx - réclwx - réclwx - réclwx - réclwx - réclwx - réclwx - réclwx - réclwx - réclwx - réclwx - réclwx - réclwx - réclwx - réclwx - réclwx - réclwx - réclwx - réclWX - réCLX |
- collecteur sortie fumée
- purgeur manuel
- Sonde sortie échangeur principal
- brûleur
- electrode d'ionisation/ d'allumage
- silencieux
- échangeur sanitaire
8 siphon - soupape chauffage
- vanne gaz
- filtré chauffage
- circulateur
- débistat sanitaire
- vanne distributrice
- Pressostat ON/OFF
- sonde entrée échangeur principal
- ventilateur
- prise analyse fumées

SCHEMA DE PRINCICE
A. Départ chauffage
B. Sortie eau chaude sanitaire
C. Entrée gaz
D. Entrée eau froide sanitaire
E. Retour chauffage

PRESSON DISPONIBLE

A. Départ chauffage 3/4''
B. Sortie eau chaude sanitaire 1/2
C. Entrée gaz 3 / 4''
D. Entrée eau froide sanitaire 1/2
E. Retour chauffage 3/4''


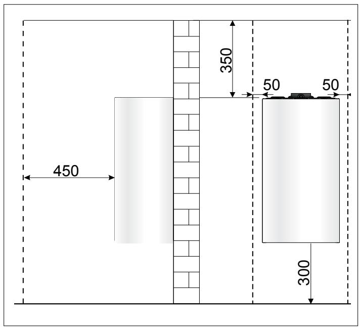
Distances minimales pour I'installation
Afin de permettre l'entretien de la chaudiere, il est nécessaire de respecter les distances minimales figurant dans le schéma CI-CONTRE. Pour positionner la chaudiere correctement, utiliser un niveau.
Distance par rapport aux composants inflammables
Dans le cas de puissance thermique nominale, il n'y aura pas de température supérieure à la température maximale autorisée de 85^ , c'est pourquoit il n'est pas nécessaire de prévoir une distance par rapport aux composants inflammables.
REMARQUE:
IL EST IMPORTANT DE RESPECTER UN ECART SUFFISANT AU Niveau DES COTES (AU MOINS 50 MM), VOUS POUVEZ DEMONTER LES PIECES LATERALES PERMETTANT UN ACCES PLUS FACILE EN CAS DE TRAVAUX DE MAINTENANCE OU DE REPARATION.

Pose de la barrette robinetterie et de la patte d'accrochage
En cas de passage de tuyauteries derrière la chaudière, il est nécessaire d'utiliser le kit d'écartement mural livré avec la chaudière.
Prefabrication
Pour la pose de la barrette robinetterie et de la patte d'accrochage :
-présenter le gabarit papier fourni pour la préfabrication à l'endetroit retenu et suivre les recommendations de celui-ci (gabarit page précédente).
Raccordement des canalisations
Les douilles de raccordement ne sont pas inclues dans le kit de préfabrication.
Divers peux de douilles sont disponibles chez votre founisseur.
-
1ère installation
-
remplacement de chaudière Chaffoteaux
-
remplacement de chaudière autres marques
Une fois la barrette fixée au mur, vous avez la possibilité de régler l'écartement de la position des robinets de la barrette en dévisant les 2 vis laterales (seulément pour le Kit de remplacement), ensuite vous pouvez raccorder les douilles de raccordements et procéder au replissage de l'installation ainsi qu'à la vérification de l'étanchéité des circuits eau et gaz sans avoir à raccorder la chaudière.

Description de la barrette robinetterie
NOUVELLE INSTALLATION

REEMPLACEMENT
- Robinet département chauffage
- Départ eau chaude sanitaire
- Robinet gaz (manette jaune)
- Robinet d'alimentation eau-froide sanitaire
- Robinet retour chauffage
- Disconnecteur
- Robinets de replissage et d'isolement du circuit chauffage
DANGER EN CAS DE FIXATION INSUFFISANTE LE MATERIAL DE FIXATION DE LA CHAUDIERE DOIT ETRE ADAPTE A LA NATURE ET A L'ETAT DU MUR. EN CAS DE FIXATION INSUFFISANTE, L'APPAREIL PEUT CHUTER. PAR AILLEURS, L'APPARITION DE FUITES AU Niveau DES RACCORDEMENTS PEUT EGALEMENT IMPLIQUER UN DANGER MORTEL.
L'APPAREIL EST CONC U POUR UNE INSTALLATION MURALE ET NE PEUT PAS ETRE INSTALLED SUR UN CHASSIS OU SUR LE SOL.

L'appareil doit être installé sur un mur non endommagé, solide, qui est suffisamment robuste pour supporter le poids de l'appareil. Ainsi, tout contact avec les pieces électriques sous tension via la partie arrrière ouverte de l'appareil est évité.
Dans le cas d'une installation dans une piece ou une niche, il convient de respecter des distances minimales, permettant l'accès aux différentes pieces de l'appareil de chauffage.
Retirez l'appareil de son emballage en carton. Enlevez le film plastique de toutes les pieces de l'appareil.
Pose de la chaudière
Utilisation du gabarit de montage :
- Disposer le gabarit de montage sur l'emplacement retenue pour la fixation de l'appareil.
- Fixer le gabarit au mur.
- Marquer sur le mur les trouc de perçage nécessaires pour votre installation (utilisation d'un niveau et vérifier l'aplomb).
- Retirer le gabarit de montage du mur.
- Fixer les chevilles au mur et l'aligner (schéma 1).
- Ouvrez les zones de rupture théorique nécessaires.
- Accrochez l'appareil par le haut à l'aide du support de suspension dans l'étrier.

scheme 1 - Installation Neuve sans cadre écarteur
- déposer la façon de l'appareil (voir page suivante)
- dévisser les 2 vis B, retireur le peigne et le jeter (schéma 2)
-présenter la chaudière au dessus de la barrette, la laisser descendre en appui sur celle-ci.
-mettre en place les différents joints - serrer les robinets et raccords de la barrette sur les raccords de la platine de la chaudière
L'orifice de vidange du disconnecteur, de la soupape de sécurité chauffage (9) doit obligatoirement etre raccordés à une canalisation d'eau usée.

scheme 3 - Installation Neuve avec cadre écarter 3678411 et Kit barrette 3678358

scheme 2 - Installation Neuve sans cadre écarteur Kit barrette 3678358

scheme 4 - Replacement
avec Kit barrette 3318918 + cadre écarteur



schéma 5 - Remplacement avec Kit barrette è 3318924 sans cadre écarteur
Instructions pour démontage de l'habillage et inspection de l'appareil.
Avant toute intervention dans la chaudière, couper l'alimentation électrique par l'interrupteur bipolaire extérieur et fermer le robinet gaz.
Pour acceder à l'intérieur de la chaudière :
- dévisser les deux vis du panneau avant (a), tirer le panneau vers l'avant et le décrocher des pions supérieur (b),
- pivoter le boitier électronique en le tirant vers l'avant (c).

(a)

(c)
Nettoyage de l'installation
Les raccordements hydrauliques terminés, il est indispensable de procéder au nettoyage de l'installation avec un produit approprié (dispersant) afin d'éliminer les limailles, soudures, huiles d'usinage et graisses diverses.
Proscire tout solvant ou hydrocarbure aromatique (essence, petrole...).
Le traitement complet de l'installation de chauffage est conseilé dans la mise en service afin de maintainir un PH entre 9 et 9,5.
Evacuation de la condensation
Pour évacuer les condensats produits par la combustion, raccorder un tuyau plastique au siphon d'évacuation de l'appareil.
Respecter les normes d'installation en vigueur dans le pays d'installation et se conformer aux réglementations éventuelles des autorités locales et des organismes préposés à la santé publique.

Avant la première mise en route de l'appareil, il est impératif de replir le siphon de la chaudière avec de l'eau. Le siphon est repli d'eau pendant l'opération de purgege de l'air de la chauc (ou système de chauffage) - voir p. 22 Ouvrir le purgeur manuel sur l'échange principal jusqu'à son replissage comp À la fin, vérifier la pression du circuit chauffage sur le manomètre.

ATTENTION! LE MANQUE D'EAU DANS LE SIPHON PROVOQUE LA FUITE DES FUMÉES DANS L'AIR AMBIANT.

Raccordement fumées
La chaudière doit être installée uniquement avec un dispositif d'entrée d'air frais et de sorties de fumées fourni par le constructeur de la chaudière.
Ces kits sont fournis séparément de l'appareil pour pouvoir répondre aux différentes solutions d'installation.
Pour plus d'informations concernant les accessoires entrée/sortie consulter la notice de l'appareil, catalogue général et les instructions d'installation continues à l'intérieur des kits.
La chaudière est prévue pour le raccordement à un système d'aspiration et d'évacuation de fumées coaxial 60/100 - 80/125.
Pour les chaudières à condensation, respecter une pente de 3 % de manière à ce que les condensats s'évacuant vers la chaudière.

A
Ouvrant

B
Entrée d'air

C
Lucarne

D
2 sorties sur le même mur

E1
Pénetration sur un pignon avec ouvrant

E2
Pénetration sur un pignon aveugle

F
Distance au-dessus du sol
Sans protection

Avec protection

G

H
Saillie de toiture ou balcon
Mur en angle rentrant

J
Ouvrant

K
Ouvrant

L
Entrée d'air

M
Vis-à-vis

Avec ouvrant

Zones interdites

Zones déconseillées
| GAZ CONDENSATION | ||
| L3* | L4* | |
| Sans déflecteur | 8m | 8m |
- longueur minimum conseillée
Conformément au Cahier des Prescriptions Techniques Communes du CSTB n° 3592

Tableaux longueurs des ventouses
| Type d'évacuation des gaz brûlés | Longueur maximale conduits amnéé d'air/ évacuation (m) | Diamètre des conduits (mm) | ||
| INOA GREEN ULTRA | ||||
| 25 | 30 | |||
| Systèmes à tubes coaxiaux | C13 | 8 | 7 | Ø 60/100 |
| C33 | ||||
| C43 | ||||
| C13 | 21 | 21 | Ø 80/125 | |
| C33 | ||||
| C43 | ||||
| C93 | ||||
| B23P | 100 pa | 100 pa | ||
= Pression airisable
Respecter une pente de 3% (3cm/metre) de manière à ce que les condensats s'évacuent vers la chaudière.

UTILISER EXCLUSIVEMENT UN KIT SPECIFIQUE POUR CONDENSATION.


Schemas à titre indicatif
Raccordement electrique
AVANT TOUTE INTERVENTION DANS LA CHAUDIÈRE, COUPER L'ALIMENTATION ÉLECTRIQUE EN PLAÇANT L'INTERRUPTEUR BIPOLAIRE EXTERIEUI "OFF".

RESPECTER LES CONNEXIONS NEUTRE/PHASE.
Alimentation 230V+ terre
Le raccordement s'effectue avec le cable 2P+ T fourni avec l'appareil, connecté sur la carte principale du boîtier électrique.
Raccordement des périhériques
Pour acceder aux raccordement des péripériques procédér comme suit :
basculer boitier électrique vers l'avant
- pousser sur les 2 clips A, puis faire une rotation au couvercle afin d'acceder aux connexions des périhériques et à la carte principale.
On y trouve les connexions pour :
BUS - Expert control ou Easy control bus ou autre produits et accessoires BUS
FLOOR-TA2 - le thermostat plancher chauffant OU le thermostat d'ambiance de la zone 2 (seLECTIONner par le paramètre 223)
SE - sonde extérieure (en option)
SOL - sonde solaire (en option pour installation de système solaire)
TA1 - thermostat d'ambiance de la zone 1
Pour plus d'informations sur les accessoires disponibles, consulter nos catalogues spécifiques ou notre site
www.chaffoteaux.fr


EXPET CONTROL
Interface de système (option)

ZONE CONTROL
Sonde d'ambiance modulante (option)


AVERTISSEMENT :
SI LA CHAUDIERE EST RACCORDEE A DES COMMANDES EXTERIEURES, N'UTILISEZ PAS ENSEMBLE DES CABLES 230V ET DES CABLES DE CIRCUIT DE COMMANDE (CABLE BASSE TENSION), UTILISEZ PLUTOT DES CABLES SEPARES OU BLINDES POUR EVITER TOUTE TENSION INDUITE SUR LE CIRCUIT BASSE TENSION.

Raccordement d'un thermostat d'ambiance
- basculer le boîtier électrique vers l'avant
- pousser les deux clips puis faire une rotation du couvercle
- enlever le shunt avant de raccorder le TA sur le connecteur TA1
-REFERMER le couvercle, rebasculer le boitier électrique et remonter la façade.

Préparation à la mise en route
Circuit sanitaire
- ouvrir le robinet d'eau froide
- purger l'installation en faisant aux différents robinets d'eau chaude et vérifier les étanchéités
Circuit chauffage
ATTENTION !!
RACCORDER LE TUYAU D'ÉVACUATION DES CONDENSATS


(APRÉS AVOIR RETIRE LE BOUCHON)
AVANT DE REMPLIR ET DE PURGER L'ÉCHANGEUR PRINCIPAL.
Lors de l'installation initiale ou d'entretien extraordinaire doit être effectue une purge de l'air précise du circuit de chauffage et de la chaudière.
Proceder comme suit:
- ouvrir les purgeeurs des radiateurs de l'installation
ouvrir le purgeur manuel place sur l'échangeur primaire (2). Le purgeur est d'éjà relié à une conduite d'évacuation raccordé au siphon d'évacuation de consensat. - vérifier que le purgeur automatique du circulateur est ouvert (bouchon de purgeur en position haute)
- graduelles ouvrir le robinet de replissage du disconnecteur, ne pas ouvrir complètement.
- fermer les purgeurs d'air sur l'échangeur primaire et sur les radiateurs, dés qu'il sort de l'eau.
- Continuer à replir le système jusqu'à une pression de 1-1,5 bar.
ATTENTION !!
VÉRIFIER QUE LE SIPHON DE CONDENSAT CONTINNE DE


L'EAU. REMPLIR À L'AIDE DU PURGEUR MANUEL PLACÉE SUR L'ÉCHANGEUR PRIMAIRE (2) JUSQU'A REMPLISSAGE COMPLET.
VÉRIFIER DE NOUVEAU LA PRESSION DU SYSTEME DE SUR LE MANOMETRE.
ATTENTION: LA PROCÉDURE DE PURGE AUTOMATIQUE DOIT ÉTRE EFFECTUÉ À LA PREMIÈRE


MISE EN ROUTE OU À CHAQUE ARRÊT DE L'APPAREIL CONSÉCUTIF À UNE VIDANGE TOTALE OU PARTIELLE DU CIRCUIT DE CHAUFFAGE, OU ENCORE APRès CHAQUE MAINTENANCE
Circuit gaz
- ouvrir le robinet gaz
purger le circuit gaz - vérifier les étanchéités sur toute la ligne gaz
Circuitélectrique
- vérifier que la tension et la fréquence d'alimentation coïncident avec les données rapportées sur le tableau Données Techniques (voir à la fin du document).
- basculer le commutateur bipolaire de l'alimentation générale sur ON.

Procedure de mise en marche
Appuyer sur la touche ON/OFF, l'afficheur s'allume.
L'initialisation de l'afficheur lors de la mise en route.

L'afficheur indique
- la modalité de fonctionnement
- en mode chauffage, la température de consigne
- en demande sanitaire la température de réglage de l'eau chaude sanitaire
La chaudière signale aussi l'activation de certaines fonctions:
| Fonction Purge | P |
| Demande chauffage en cours - brûleur éteint | °C 88 |
| Puisage eau chaude en cours - brûleur éteint | 38 |
Premier mise en marche et activation Fonction Purge
-
S'assurer que :
-
le robinet de gaz est fermé;
- le raccordement électrique a été effectué correctement. Veiller à ce que le fil de terre vert et jaune soit raccordé à une bonne mise à la terre.
-
le bouchon de le purgeur automatique de dégazage se trouvant sur le circulateur est douvert;
-
presser la touche ON/OFF, la chaudiere se trouve en attente de fonctionnement "Eté" ou "Hiver"

- Activer le cycle de dégazage en appuyant sur la touche 1 pendant 5 secondes, la chaudière entamera un cycle de dégazage d'environ 7 minutes qui peut être interrompu, si nécessaire en pressant la touche 1, à terme vérifier que l'installation est complètement dég répéter l'opération

- Purger l'air dans les radiateurs;
- Les conduits d'évacuation des produits de la combustion soient appropriés et non obtrués
- Les évventuels bouches de ventilation du local soient ouvertes
- Vérifier que le siphon est rempli d'eau et si nécessaire ouvrir le purgeur manuel sur l'échangeur primaire.
ATTENTION! LE MANQUE D'EAU DANS LE SIPHON PROVOQUE LA FUITE DES FUMÉES DANS L'AIR AMBIANT.
- Ouvrir le robinet gaz et vérifier l'étanchéité des raccords y compris ceux de la chaudière en vérifant que le compteur ne signale aucune fuite de gaz, éliminer les événuelles fuites.
- Mettre en fonction la chaudière en activant le fonctionnement "Eté" ou "Hiver".
Fonction Dégazage
S'assurer que la chaudière est en Stand-by, sans aucune demande chauffage ou sanitaire.
Appuyer sur la touche 1 pendant 5 secondes, la chaudière active un cycle de dégazage
d'environ 7 minutes. La fonction peut être interrompue en appuyant sur la touche 1. Si nécessaire il est possible d'activer un nouveau cycle.

PROCEDURE DE CONTRÔLÉ DE LA COMBUSTION
L'ordre des opérations doit impérativement être respecté dans cette procédure.
Opération 1 - Préparation du matériel de mesure
Raccorder l'appareil de mesure étalonné dans la prise de combustion de gauche en dévisant la vis et en retardant l'obturator.
Vérifier que rien n'obstrue le silencieux (7).
Le caisson de la chaudière doit être ensuite fermé.

Opération 2 Ajustement du CO2 au début gaz maximal (sanitaire)
Effectuer unuisage sanitaire au débit d'eau maximal.
Sélectionner la fonction Contrôle de combustion en appuyant sur la touche RESET pendant 10 secondes.
ATTENTION! En activant la fonction Contrôle de combustion, la température de l'eau sortant de la chaudière peut être supérieure à 65^ .
Note : la fonction Contrôle de combustion se désactive automatiquement après 30 minutes ou manuellement en appuyant brievement sur la touche RESET.
Sur l'afficheur apparait le pictogramme
(puissance maximale chauffage)
Appuyer sur la touche 2 por sélectionner le pictogramme (puissance maximale sanitaire)


Attendre 1 minute pour que la chaudière se stabilise avant de réaliser les analyses de combustion.
Relever la valeur de CO2 (%) et la comparer aux valeurs containues dans le tableau ci-dessous.
| INOA GREEN ULTRA 25/30 | ||
| Gaz | CO2 (%) | |
| MAX | MIN | |
| G20 | 9,2 ± 0,5 | 8,9 ± 0,5 |
| G31 | 10,0 ± 0,5 | 10,0 ± 0,5 |
Si la valeur de CO2 (%) relevée est différente des valeurs indiquées dans le tableau, procéder au réglage de la vanne gaz en suivant les indications ci-dessous, sinon passer directement à l'opération 3.
Réglage de la vanne gaz au début gaz maximal
Effectuer le réglage de la vanne gaz à l'aide de la vis de réglage
(4) par rotation successive vers la droite pour diminuer le taux de CO2.
Attendre 1 minute après chaque réglage, pour stabiliser la valeur de CO2.
Effectuer les reglages afin d'obtenir les valeurs indiqués dans le tableau (Attendre toujours 1 minute après chaque
réglage afin d'obtenir une valeur de CO2 stabilisé).

Opération 3 Vérification du CO2 au débit gaz minimal
Appuyer sur la touche 2 ⊙ por sélectionner le pictogramme (puissance minimale chauffage)

Attendre 1 minute pour que la chaudière
se stabilise avant de réaliser les analyses de combustion.
Si la valeur du CO2 (%) relevée est différente de 0,5 à la valeur trouvée lors du réglage au début gaz maximal, procéder au réglage de la vanne gaz en suivant les indications ci-dessous, sinon passer directement à l'opération 4.
Réglage de la vanne gaz au débit gaz minimal
Enlever le bouchon et effectuer le réglage de la vis (2) par
rotation successive vers la gauche pour diminuer le taux de CO2.
ATTENTION!! Ce réglage est très sensible!!
Attendre 1 minute après chaque réglage, pour stabiliser la valeur de CO2.
Effectuer les reglages afin d'obtenir les valeurs indiqués dans le tableau (Attendre toujours 1 minute après chaque réglage afin d'obtenir une valeur de CO2 stabilisée).

ATTENTION!! Dans le cas d'une modification de la valeur du CO2 au minimum il est nécessaire ensuite de mesurer de nouveau la valeur du CO2 à la puissance maximale sanitaire.
Opération 4 Fin du réglage
Quitter le Contrôle de combustion en appuyant sur RESET.
Arrête leuisage.
Remonter la façade de l'appareil.
Remonter l'obturator des prises de combustion.
Réglages gaz
menu 2 - Paramètre chaudière
sous-menu 3 - paramètre 1 (231)
Réglage puissance chauffage maxi
sous-menu 2 - paramètre 0 (220)
Réglage allumage lent
sous-menu 3 - paramètre 5 (235)
Réglage retard allumage chauffage
Réglage de la puissance chauffage maximale
Ce paramètre limite la puissance utile de la chaudière.
Le pourcentage équivaut à une valeur de puissance comprise entre la puissance mini (0) et la puissance nominale (100) indiqué dans le graphique ci-dessous.
Pour contrôler la puissance maxi chauffage de la chaudière, accéder au menu paramètre 231.

| Tableau réglage gaz | ||||||
| Paramètre | INOA GREEN ULTRA | |||||
| 25 | 30 | |||||
| G20 | G31 | G20 | G31 | |||
| Indice de Wobbe inférieur(15°C, 1013 mbar) (MJ/m3) | 45,67 | 70,69 | 45,67 | 70,69 | ||
| Pression d'alimentation gaz (mbar) | 17-25 | 25-45 | 17-25 | 25-45 | ||
| Allumage lent | 220 | 64 | 62 | |||
| Pourcentage Puissance mini (%) | 233 | 55 | 60 | |||
| Pourcentage Puissance maxichauffage (%) | 234 | 9 | 11 | |||
| Pourcentage Puissance MaxSanitaire (%) | 232 | 75 | 85 | |||
| Réglage puissance chauffage max. | 231 | 90 | 91 | |||
| Diaphragme gaz (ø) | 5,8 (*) | 3,6 | 6,5 (*) | 4,3 | ||
| Débit gaz max/min(15°C, 1013 mbar)(nat - m3/h) (GPL - kg/h) | max sanitaire | 2,75 | 2,02 | 3,17 | 2,33 | |
| max chauffage | 2,33 | 1,71 | 2,96 | 2,18 | ||
| min | 0,58 | 0,43 | 0,69 | 0,50 | ||
(*) Diaphragme vanne gaz intégré dans le mixer air/gaz
(non amovable)
Changement de gaz
Ces apparueils sont prévus pour fonctionner avec différents types de gaz. Le changement de gaz doit être effectué par un professionnel qualifié. Ce changement de gaz est assure par un kit et sa notice.
Allumage lent
Ce paramètre limite la puissance utile de la chaudière en phase d'allumage. Le pourcentage équivaut à une valeur de puissance utile comprise entre la puissance mini (0) et la puissance maxi (100)
Pour contrôle l'allumage lent de la chaudière, acceder au paramètre 220 et modifier la valeur si nécessaire.
Réglage du retard à l'allumage chauffage
Ce paramètre 235, permet de régler en manuel (0) ou en automatique (1) le temps d'attente avant un prochain réallumage du brûleur après extinction afin de se rapprocher de la température de consigne.
En sélectionnant manuel, il est possible de régler l'anticycle sur le paramètre 236 de 0 à 7 minutes.
En selectionnant automatique, l'anticycle sera calculé automatiquement par la chaudière sur la base de la température de consigne.
Accès au menu de : Affchage - réglage - diagnostique
La chaudière permet de gérer de manière complète le système de chauffage et de production d'eau chaude à usage sanitaire.
La navigation à l'intérieur des menus permet de personnelier le système de la chaudière + les périfériques connectés en optimisant le fonctionnement pour un maximum de comport et d'économie.
En outre, il donne des informations importantes au bon fonctionnement de la chaudière.
Les paramètres sont rapportés dans les pages suivantes.
L'accès et la modification des divers paramètres sont effectuels à travers les touches 2 et 4.

- Touches "+" et "-" pour acceder aux paramètres et modifier la valeur
- Touche "+" OK pour mémoriser les modifications apportées aux paramètres Touche "-" ESC pour quitter
Attention! Les paramètres sont accessibles exclusivement au technicien qualifié et sont accessibles uniquement après avoir introduit le code d'accès.
Pour acceder aux paramètres procédér comme suit :
(par exemple : Modifier le valeur du paramètre 2 3 1):
- Appuyer simultanément sur les touches 1 "+" et "- pendant 5 secondes. La chaudière demande l'insertion du code d'accès. L'écran affiche 222.
- Appuyer sur la touche "+" pour selectionner le code 234.
- Appuyer sur la touche" ^+ OK pour acceder aux parametes.
L'écran affiche le premier paramètre disponible: 220.
-
Pour selectionner les parametes appuyer sur la touche "+"
-
Exemple : Modification du paramètre 2 3 1
-
Appuyer sur la touche "+" OK pour acceder aux paramètres.
- L'écran affiche la valeur « par ex : 10 ». L'affichage clignote.
- Appuyer sur les touches 2 "+" ou "- pour sélectionner la nouvelle valeur « par ex: 65"
- Appuyer sur la touche "+" OK pour memoriser les changements ou la touche "- ESC pour quitter sans enregistrer.
Pour quitter, appuyer sur la touche " - " ESC jusqu'au return à l'affichage normal.






| menu | sous-menù | parâtre | description | valeur | réglage d'usine |
| note | |||||
| INSERTION CODE D'ACCès | 222 | ||||
| tournier l'encodeur en sens hora pour selectionner 234 et appuyer sur la touche MENU/OK | |||||
| 2 | 1 | 4 | Type de pompé chaudière (inactif) | ||
| 2 | 2 | 0 | Allumage lent | de 0 à 100 (%) | |
| voir Tableau réglage gaz | |||||
| 2 | 2 | 8 | Version Chaudière | de 0 à 5 | |
| NON MODIFIABLE | 0= Mixte micro-accumulé | 0 | |||
| RESERVER AU SAV Seulement en cas de changement de carte électronique | |||||
| 2 | 2 | 9 | Version puissance chaudière | de 0 à 200 | |
| RESERVER AU SAV Seulement en cas de changement de carte électronique | |||||
| 2 | 3 | 1 | Réglage puissance installation chauffage (max.) | de 0 à la valeur du paramètre 234 | |
| voir Tableau réglage gaz | |||||
| 2 | 3 | 2 | Réglage Puissance Max Sanitaire | de 0 à 100 (%) | |
| RESERVER AU SAV Seulement en cas de changement de carte électronique | |||||
| 2 | 3 | 3 | Réglage Puissance Mini | de 0 à 100 (%) | |
| RESERVER AU SAV Seulement en cas de changement de carte électronique | |||||
| 2 | 3 | 4 | Réglage Puissance Max Chauffage | de 0 à 100 (%) | |
| RESERVER AU SAV Seulement en cas de changement de carte électronique | |||||
| 2 | 3 | 6 | Réglage temporisation retard à l'allumage en chauffage (si 235=0) | de 0 à 7 minutes | 3 |
| 2 | 4 | 5 | Puisance maxi pompe | de 75 a 100(%) | 100 |
| 2 | 4 | 6 | Puisance mini pompe | de 40 à la puissance MAX pompe | 40 |
| 2 | 4 | 7 | Type détection pression circuit primaire | 0 = Sondes températures1 = Pressostat ON/OFF circuit primaire2 = Capteur de pression proportionnel | 2 |
| RESERVER AU SAV Seulement en cas de changement de carte électronique | |||||
| menu | sous-menù | description | valeur | réglage d'usine |
| note | ||||
| 2 | 5 | 0 | Fonction COMFORT Sanitaire | 0 = désactivée1 = temporisée2 = toujours active | 0 |
| Temporisé: Permet une gestion horsaire du maintain en température de l'échangeur à plaques. | |||||
| L'appareil permet d'assurer le comport d'eau chaude sanitaire enMAINANT EN TEMPERATURE L'EAU CHADE dans l'échangeur à plaques/reserve sanitaire.0 = désactivée - L'échangeur à plaques/serve sanitaire n'est pas Maintenu en température.1 = temporisé - COMFORT ⊙programmé:l'échangeur à plaques/serve sanitaire est maintenu en température pendant des périodes programmées(voir la notice Usager).2 = toujours active - COMFORT:l'échangeur à plaques/serve sanitaire est maintenu en température 24 heures sur 24, 7 jours sur 7 | |||||
| 2 | 5 | 2 | Retard départ sanitaire | de 5 à 200(de 0,5 à 20 secondes) | 5 |
| Anti coup de bélier | |||||
| 2 | 5 | 3 | Extinction du brûleur en sanitaire | 0 = coupure brûleur à 67 °C1 = coupure brûleur à la consigne +4 °C | 1 |
| 2 | 5 | 4 | Post-circulation et post-ventilation après unuisage sanitaire | de 0 à 1 | 0 |
| 0 = 3 minutes de post-circulation et post-ventilation après unuisage sanitaire si la température relevée de la chaudière le besoin.1 = toujours activé à 3 minutes de post-circulation et post-ventilation après unuisage sanitaire. | |||||
| 2 | 7 | 0 | Fonction Contrôle de combustion | fonctionnementmax puissance chauffage | |
| fonctionnementmax puissance sanitaire | |||||
| fonctionnement àpuissance mini | |||||
| Activation obtenue également en appuyant 10 secondes sur la touche RESET.La fonction se désactive après 30 min. ou en appuyant sur RESET. | |||||
| 2 | 7 | 1 | Activation du Cycle PURGE | ||
| Activation obtenue également en appuyant 5 secondes sur la touche ESC. | |||||
| menu | sous-menu | description | valeur | réçage d'usine |
| note | ||||
| menu | sous-menu | description | valeur | réçage d'usage |
| note | ||||
| 4 | 2 | 0 | Type d'installation chauffage Zone 1 | 0 = basse température (de 20 à 45 °C) 1 = haute température (de 35 à 82 °C) | 1 |
| à sélectionner en fonction du type de l'installation (plancher chauffant ou radiateur) | |||||
| 4 | 2 | 1 | Sélection du type de thermorégulation | 0 = température de départ fixe 1 = Thermostat ON/OFF 2 = Sonde ambiente seule 3 = Sonde externe seule 4 = Sonde ambiente + externe | 1 |
| Pour activer la thermorégulation, appuyer sur la touche SRA. Sur l'afficheur s'allume le symbole SRA | |||||
| 4 | 2 | 2 | Pente de thermorégulation | de 0.2 à 0.8 (param. 420 = 0) | 0.6 |
| de 1.0 à 3.5 (param. 420 = 1) | 1.5 | ||||
| 3.5 3.0 2.5 2.0 chaute température 10 5 0 -5 -10 -15 -20 °C température externe | |||||
| Dans le cas d'utilisation de la sonde extérieure, la chaudière calcule la température de départ la plus adaptée en tenant compte de la température extérieure et du type de l'installation. Le type de courbe doit êtrecision en fonction du type d'émetteur de l'installation et de l'isolation de l'habitation. | |||||
| 4 | 2 | 3 | Décaille parallèle de pente | de -7 à +7 (param. 420 = 0) | 0 |
| de -14 à +14 (param. 420 = 1) | 0 | ||||
| Pour adapter la courbe thermique aux exigences de l'installation il est possible de la décaler parallèlement de façon à modifier la température de départ calculée. | |||||
| Lorsque la fonction SRA est active, il est possible d'apporter une correction manuelle à la température de départ calculée grâce à l'encodeur (9): • de -7 à +7 pour la base température • de -14 à +14 pour la haute température Un système de barre s'affiche sur l'écran. | |||||
| 4 | 2 | 4 | Compensation d'ambiance | de 0 à 20 | 20 |
| Si réglage = 0, la température relevée de la sonde ambiente n'influe pas sur le calcul de la consigne. Si réglage = 20, la température relevée a une influence maximum sur la consigne de départ chauffage. | |||||
| 4 | 2 | 5 | Réglage température maximum chauffage zone 1 | de 35 à 82 °C (Param. 420 = 1) | 82 |
| de 20 à 45 °C (Param. 420 = 0) | 45 | ||||
| 4 | 2 | 6 | Réglage température minimum chauffage zone 1 | de 35 à 82 °C (Param. 420 = 1) | 35 |
| de 20 à 45 °C (Param. 420 = 0) | 20 | ||||
| 8 | 2 | 1 | Statut ventilateur | 0 = OFF 1 = ON | |
| 8 | 2 | 2 | Vitesse ventilateur (x100 tr/min) | ||
| 8 | 2 | 4 | Position vanne distributrice | 0 = Sanitaire 1 = Chauffage | |
| 8 | 2 | 5 | Débit Sanitaire (l/min) | ||
| 8 | 2 | 7 | % modulation de la pompe | ||
| 8 | 3 | 1 | Température liépart chauffage (°C) | ||
| 8 | 3 | 2 | Température退还 chauffage (°C) | ||
| 8 | 4 | 2 | Température entrée sanitaire solaire (°C) | ||
| activé seulement avec la sonde solaire connectée sur le tube de entrée eau froide chaudière. | |||||
Conditions d'arrêt de sécurité de l'appareil
La chaudière est sécurisée grâce à des contrôles internes réalisés par la carte électronique, qui placent la chaudière en arrêt lorsqu'un disfonctionnement apparait. Un code clignote alors sur l'afficheur à l'emplacement indiquant la cause qui a géné r l'arrêt. Il en existe plusieurs types :
Arrêt de sécurité
Ce type d'erreur est de type "volatile", c'est à dire qu'elle est automatiquement éliminée des que sa cause cesse.
L'écran affiche le code précédé de la mention Err (par ex. Err/II0) ainsi que le symbole - v. Tableau Erreurs.
D'autre part, dans la plupart des cas, dés
que la cause de l'arrêt disparait, l'appareil redémarre et reprend un fonctionnement normal.
Si la chaudière signale encore un arrêt de sécurité, il faut l'éteindre.
Si ce type d'arrêt se repête : éteindre la chaudière, couper l'alimentation électrique à l'aide de l'interrupteur bipolaire externe, fermer le robinet gaz et contacter un technicien qualifié.

Nota : en cas d'erreur IOB - Arrêt pour insuffisance pression eau, il suffit de rétablier la pression de la chaudière.

Arrêt verrouillé
Arrêt verrouillé
L'écran affiche le code précisé de la mention Err (par ex. Err/SOI) ainsi que le symbole R correspondant.
Pour rétablier le fonctionnement normal de la chaudière, appuyer sur la touche Reset du tableau de bord. Si après plusieurs tentatives
de déverrouillage et si le verrouillage se repète, l'intervention d'un technicien qualifié est nécessaire.


Important
Pour des raisons de sécurité, la chaudière ne permettra que 5 tentatives au maximum de déverrouillage en 15 minutes (appuis sur la touche RESET. Ensuite, elle se bloque totally avec le code d'erreur 304. Pour la débloquer couper et remettre l'alimentation électrique à l'aide de l'interrupteur bipolaire externe.
Le première chiffre du code d'erreur (Ex : 1 01) indique de quel groupe fonctionnel de la chaudière provient le problème
1 - Circuit Primaire
2 - Circuit Sanitaire
3 - Carte Electronique
4 - Carte Electronique
5 - Allumage
6 - Entre air- sortie fumées
Avis de début de fonctionnement
Cette alerte est affiché sur l'écran dans le format suivant:
5 P1, le premier chiffre indique le groupe fonctionnel est suivi par un P (préavis) et le code de l'avis.
Avis de dysfonctionnement du circulateur
Le circulator est équipé d'un voyant qui indique son état de fonctionnement :
Voyant éteint :
Le circulateur n'est pas alimenté en électricité.
Voyant vert fixe :
circulateur actif
Voyant vert clignant :
changement de vitesse en cours
Voyant rouge :
indique le blocage du circulateur ou le manque
d'eau

Tableau des codes erreur
| Circuit primaire | |
| Afficheur | Description |
| 1 01 | Surchauffe du circuit primaire |
| 1 03 | Anomalie débitCHAuffage |
| 1 04 | |
| 1 05 | |
| 1 06 | |
| 1 07 | |
| 1 08 | Remplissage circuit chauffage demandé |
| 1 10 | Défaut sonde sortie échangeur princ. |
| 1 12 | Défaut sonde entrée échangeur princ |
| 1 14 | Anomalie sonde extérieure |
| 1 16 | Thermostat plancher ouvert |
| 1 18 | Anomalie sonde circuit primaire |
| 1 P1 | Anomalie débitCHAuffage |
| 1 P2 | |
| 1 P3 | |
| Circuit sanitaire | |
| 2 05 | Anomalie sonde entrée sanitaire (solaire) |
| Carte électronique (interne) | |
| 3 01 | Anomalie afficheur EEPR |
| 3 02 | Anomalie communication GP-GIU |
| 3 03 | Anomalie carte principale |
| 3 04 | Trop de reset éffectués |
| 3 05 | Anomalie carte principale |
| 3 06 | Anomalie carte principale |
| 3 07 | Anomalie carte principale |
| 3 P9 | Prévoir entretien. Contacter SAV |
| Carte électronique (external) | |
| 4 11 | Sonde ambiance zone 1 non dispo. |
| 4 12 | Sonde ambiance zone 2 non dispo. |
| 4 13 | Sonde ambiance zone 3 non dispo. |
| Allumage | |
| 5 01 | Absence de flamme |
| 5 02 | Détection de flamme avec la vanne gaz fermée |
| 5 04 | Echec lors de la première tentative d'allumage |
| 5 P1 | Echec lors de la deuxieme tentative d'allumage |
| 5 P2 | Décollement de flamme |
| 5 P3 | Défault pression gazasse |
| Entrée air / sortie fumées | |
| 6 12 | Anomalie sur ventilateur |
Fonction hors-gel
La chaudière est équipée d'un dispositif qui contrôle la température de sortie de l'échangeur telle que si la température descend sous les 8^ , il démarre la pompe (circulation dans l'installation de chauffage) pour 2 minutes.
Après les deux minutes de circulation :
a) si la température est d'au moins 8^ la pompe s'arrête,
b) si la température est entre 4^ et 8^ , la circulation continue 2 minutes de plus,
c) si la température est inférieure à 4^ , le brûleur s'allume en chauffage à la puissance minimale jusqu'à ce que la température de sortie atteigne 33^ . Le brûleur s'éteint alors et la pompe continue à fonctionner encore deux autres minutes.
Important!
La fonction hors-gel ne peut fonctionner correctement que si :
- la pression de l'installation est correcte,
- la chaudière est alimentée électricquement,
- la chaudière est alimentée en gaz,
-aucunarrétdésecuritéouverrouillage n'esten cours.
L'entretien est une opération essentielle pour la sécurité, le bon fonctionnement et la durée de vie de la chaudière. Il doit être effectué conformément aux réglementations en viqueur. Il est nécessaire d'effectuer périodiquement l'analyse de la combustion pour contrôler le rendement et la pollution généres par la chaudière en fonction des normes en viqueur.
Avant de procéder aux opérations d'entretien :
- couper l'alimentation électrique en positionnant l'interrupteur bipolaire externe à la chaudière sur OFF,
-fermerle robinet gaz - fermer les robinets d'eau du circuit de chauffage et d'eau chaude sanitaire.
Remarques générales
Il est nécessaire d'effectuer au moins une fois par an les contrôles suivants :
- Contrôle visuel de l'etat général de l'appareil.
- Contrôle de l'étanchéité du circuit d'eau avec changement des joints (si nécessaire).
- Contrôle de l'étanchéité du circuit de gaz avec changement des joints (si nécessaire).
- Nettoyage de l'échangeur principal.
- Contrôle du fonctionnement du système de sécurité du chauffage:
- sécurité température limite.
- Contrôle du fonctionnement du système de sécurité du circuit gaz : - sécurité absence de gaz ou de flamme (ionisation).
- Contrôle de l'efficacité de la production d'eau chaude (verification du début et de la température).
- Contrôle général du fonctionnement de l'appareil.
- Analyse de combustion.
Nettoyage de I'échangeur primaire
Pour acceder à l'échangeur principal, il faut déposer le brûleur. Laver le avec de l'eau et du détergent en se servant d'un pinceau non métallique. Rincer à l'eau.
L'accès à l'échangeur primaire ayant nécessité l'ouverture de la porte du brûleur, il est indispensable de vérifier l'état et l'intégrité du joint de porte.
En cas de dommages, usure, ou déformation, il est obligatoire de le replacer par un joint d'origine.
Nettoyage du siphon
Pour acceder au siphon, devisser le bouchon du système de récapération de la condensation situé en bas. Laver avec de l'eau et du détergent.
Remonter le le bouchon du dispositif de récapétation de la condensation.
Note: En cas d'arrêt prolongé de l'appareil, replir le siphon avant tout nouvel allumage.
L'absence de rétablissement du niveau de l'eau dans le siphon peut s'avérer dangereuse car des gaz brûlés peuvent envahir la pierce - voir page 17.
Test de fonctionnement
Après avoir effectué des opérations d'entretien, replir évientuèlement le circuit de chauffage à la pression recommandaee et purger l'installation.
Vidange du circuit chauffage ou utilisation de produit antigel
La vidange de l'installation doit être effectue comme suit :
- arrêté la chaudière et mettre l'interrupteur bipolaire externe en position OFF.
-fermerle robinet gaz, - libérer le purgeur automatique de dégazage,
- ouvrir la soupape de l'installation,
- ouvrir le robinet de purgege de la chaudière avec une clé 6 pans de 8
- ouvrir les différentes purges aux points les plus bas de l'installation (prévus à cet effet).
S'il est prévu de garder l'installation à l'arrêt dans des régions où la température ambiente peut descendre en hiver au-dessous de 0^ , nous conseillons d'ajouter du liquide antigel dans l'eau de l'installation de chaffage pour éviter d'avoir à procéder à des vidanges répétés. En cas d'utilisation d'un tel liquide, contrôleur sa compatibilité avec l'accier inox dont est constitué l'échangeur principal de la chaudière.
Nous conseillons l'utilisation de produits antigels contenant du GLYCOL de la série PROPYLENIQUE anti-corrosif selon les doses prescrites par le fabricant et en fonction de la température minimum prévue.
Contrôler périodiquement le pH du mélange eau-antigel dans le circuit et le remplacer lorsque la valeur mesurée est inférieure à la limite prescrite par le producteur de l'antigel.
NE PAS MÉLANGER DIFFÉRENTS TYPES D'ANTIGEL.
Le constructeur n'est pas responsable en cas de dommages causés à l'appareil ou à l'installation en raison d'une'utilisation d'antigels ou d'additifs non appropriés.
Vidange de l'installation sanitaire
Dés qu'il existe un risque de gel, l'installation sanitaire doit être vidangée de la manière suivante :
-fermerle robinetd'arrivee eau del installation,
- ouvrir tous les robinets de l'eau chaude et de l'eau froide,
- vider par les points les plus bas de l'installation (s'il y en a de prévus).
Informations pour l'Usager
Informer l'usage sur les modalités de fonctionnement de l'installation. En particulier lui délivrer le manuel d'instruction, en l'informat qu'il doit être conservé à proximité de l'appareil.
En outre, informer l'usage sur les tâches qui lui incombent :
- Contrôler périodiquement la pression de l'eau de l'installation,
- Rétablier la pression et dégazer l'installation si besoin,
- Régler les consignes et les dispositifs de régulation pour une correcte gestion de l'installation,
- Faire exécuter, comme la réglementation le prévoit, l'entretien périodique de l'installation,
- Ne modifier, enaucn cas, lesreglages d'alimentation d'air de combustion et du gaz de combustion.
- informer le client que pour toute réparation, il doit faire appel à un professionnel qualifié et exiger l'utilisation de pieces détachées d'origine. Le non-respect de ce qui précède peut compromettre la sécurité de l'appareil et faire déchoir toute responsabilité du fabricant.
Démontage et recyclage de l'appareil
Nos produits sont conçus et fabriqués à partir de composants dont des matières sont recyclables. La chaudière murale et ses accessoires doivent être différencier correctement.
Les emballages utilisés pour le transport de l'appareil doivent être repris par l'instandateur/distributeur.
ATTENTION!!
recyclage de l'appareil et des accessoires doit se faire conformément à la réglementation.
| NOTE GEN. | Modèle | INOA GREEN ULTRA | ||
| 25 | 30 | |||
| Certification CE (pin) | 0085CR0394 | |||
| Catégorie gaz | II2N3+ | |||
| Type chaudière | C13(X)-C23-C33(X)-C43(X)-C53(X)-C63(X)C83(X)-C93(X) B23-B23P-B33 | |||
| CHARACTERISTQUÉS ENERGETIQUÉS | Débit calorifique nominal max/min (Hi) Qn | kW | 22.0 / 5.5 | 28.0 / 6.5 |
| Débit calorifique nominal max/min (Hs) Qn | kW | 24.4 / 6.1 | 31.1 / 7.2 | |
| Débit calorifique nominal sanitaire max/min (Hi) Qn | kW | 26.0 / 5.5 | 30.0 / 6.5 | |
| Débit calorifique nominal sanitaire max/min (Hs) Qn | kW | 28.9 / 6.1 | 33.3 / 7.2 | |
| Puisance utile max/min (80°C-60°C) Pn | kW | 21.3 / 5.2 | 27.4 / 6.2 | |
| Puisance utile max/min (50°C-30°C) Pn | kW | 23.6 / 5.8 | 30.2 / 6.9 | |
| Puisance utile max/min sanitaire Pn | kW | 24.7 / 5.2 | 28.6 / 6.2 | |
| Rendement de combustion (aux fumées) | % | 98,0 | 97,9 | |
| Rendement au débit calorifique nominal (60/80°C) Hi/Hs | % | 97 / 87.4 | 97.9 / 88.2 | |
| Rendement débit calorifique nominal (30/50°C) Hi/Hs | % | 107.3 / 96.6 | 107.7 / 97 | |
| Rendement à 30 % à 30°C Hi/Hs | % | 109 / 98.1 | 109.6 / 98.7 | |
| Rendement au débit calorifique minimum (60/80°C) Hi/Hs | % | 94.6 / 85.1 | 94.9 / 85.5 | |
| Etoiles de Rendement (dir. 92/42/EEC) | étoile | ★★★★★ | ||
| Perte au niveau des fumées brûlée en fonctionnement | % | 2.0 | 2.1 | |
| EMISSIONS | Pression air disponible max | Pa | 100 | 100 |
| Class Nox | class | 5 | ||
| Température des fumées (G20) (80°C-60°C) | °C | 62 | 62 | |
| Teneur en CO2 (G20) (80°C-60°C) | % | 9.2 / 8.9 | 9.2 / 8.9 | |
| Teneur en CO (0%O2) (80°C-60°C) | ppm | 130.3 | 114 | |
| Teneur en O2 (G20) (80°C-60°C) | % | 4,1 | 4,4 | |
| Débit maxi des fumées (G20) (80°C-60°C) | Kg/h | 42,2 | 48,5 | |
| Excès d'air (80°C-60°C) | % | 24 | 27 | |
| CIRCUIT CHAUF-FAGE | Pression de gonflage vase d'expansion | bar | 1 | |
| Pression maximum de chauffage | bar | 3 | ||
| Capacité vase d'expansion | I | 8 | ||
| Température de chauffage min/max (plage haute température) | °C | 35 / 82 | ||
| Température de chauffage min/max (plage basse température) | °C | 20 / 45 | ||
| CIRCUIT SANITAIÈRE | Température sanitaire min/max | °C | 36 / 60 | |
| Débit spécifique en sanitaire (ΔT=30°C) selon EN13203-1 | I | 12,4 | 14,1 | |
| Quantité d'eau chaude ΔT=25°C | I | 14,9 | 17,0 | |
| Quantité d'eau chaude ΔT=35°C | I | 10,6 | 12,1 | |
| Etoile comfort sanitaire (EN13203) | étoile | ★★★ | ||
| Débit minimum d'eau chaude | I | 2 | ||
| Pression eau sanitaire max/min | bar | 7 / 0,2 | ||
| ELECTRIQUE | Tension/fréquence d'alimentation | V/Hz | 230 / 50 | |
| Puisance électrique absorbée totale | W | 77 | 83 | |
| Température ambiente minimum d'utilisation | °C | >0 | ||
| Niveau de protection de l'installation électriche | IP | X5D | ||
| Poids | kg | 29,7 | 32,3 | |
| Modèle | INOA GREEN ULTRA | ||
| 25 | 30 | ||
| Appareil à condensation | oui/non | oui | oui |
| Appareil basse température | oui/non | non | non |
| Chaudière de type B1 | oui/non | non | non |
| Dispositif de chauffage des locaux par cogénération | oui/non | non | non |
| Dispositif de chauffage mixte | oui/non | oui | oui |
| Coordonnées de contactNom et adresse du fabricant ou de son mandatairesire | ARISTON THERMO S.p.A. Viale A. Merloni 45 60044 FABRIANO AN - ITALIA | ||
| ErP CHAUFFAGE | |||
| Puisance thermique nominale Pn | kW | 22 | 28 |
| Puisance thermique nominale à régime haute température P4 | kW | 22.0 | 28.0 |
| 30% de la puissance thermique nominale à régime basse température 1) P1 | kW | 6.6 | 8.4 |
| Efficacité énergétique saisonnière pour le chauffage des locaux DS | % | 93 | 94 |
| Rendement à la puissance thermique nominale à régime haute température (60-80°C) D4 | % | 87.4 | 88.1 |
| Rendement à 30% de la puissance thermique nominale régime basse température 1) D1 | % | 98.1 | 98.7 |
| ErP ECS | |||
| Profil de soutirage déclaré | XL | XL | |
| Efficacité énergétique pour le chauffage de l'eau DWh | % | 83 | 85 |
| Consommation journalière d'électricité Qelec | kWh | 0.210 | 0.180 |
| Consommation journalière de combustible Qfuel | kWh | 22.690 | 23.500 |
| CONSOMMATION D'ÉLECTRICITÉ AUXILIAIRE | |||
| À pleine charge elmax | kW | 0,033 | 0,041 |
| À charge partielle elmin | kW | 0,015 | 0,015 |
| En mode veille PSB | kW | 0,004 | 0,003 |
| AUTRES CARACTERISTIQUES | |||
| Pertes thermiques en régime stabilisé Pstby | kW | 0.045 | 0.048 |
| Consommation d'électricité du brûleur d'allumage Pign | kW | 0.000 | 0.000 |
| Niveau de puissance acoustique, à l'intérieur LwA | dB | ||
| Émissions d'oxydes d'azote NOx | mg/kWh | 49 | 43 |
| FICHE DE PRODUIT - EU 811/2013 | |||
| Marque | CHAFFOTEaux | ||
| Modèle(s):[informations d'identification du ou des modèles concernés] | INOA GREEN ULTRA | ||
| 25 | 30 | ||
| Profil de soutirage déclaré ECS | XL | XL | |
| Classe d'efficacité énergétique saisonnière pour le chauffage des locaux | A | A | |
| Classe d'efficacité énergétique pour le chauffage de l'eau | A | A | |
| Puisance utile | Pn | kW | 22 |
| Consommation annuelle d'énergie - chauffage QHE | kWh | 43 | |
| Consommation annuelle d'électricité - sanitaire AEC | kWh | 45 | |
| Consommation annuelle de combustible - sanitaire AFC | GJ | 18 | |
| Efficacité énergétique saisonnière pour le chauffage des locaux DS | % | 93 | |
| Efficacité énergétique pour le chauffage de l'eau Dw | % | 83 | |
| Niveau de puissance acoustique, à l'intérieur LWA | dB | ||
Instructions pour replir l'étiquette relative aux produits combinés constitués d'un dispositif de chauffage des locaux (ou d'un dispositif de chauffage mixte), d'un régulateur de température et d'un dispositif solaire.

ENERG
eHepnra-Evpeyela




1 1 2
3
4







+


+


+


+


2015 811/2013
- Le nom ou la marque commerciale du distributeur et/ou du fournisseur;
- La reférence du ou des modèles donnée par le distributeur et/ou par le fournisseur;
- La classe d'efficacité énergétique saisonnière, pour le chauffage des locaux, du dispositif de chauffage des locaux, déjà rempli;
- Les classes d'efficacité énergétique pour le chauffage de l'eau, du dispositif de chauffage mixte, déjà rempli;
- Une indication de la possibilité ou non d'inclure dans le produit combiné constitué d'un dispositif de chauffage mixte (ou de chauffage des locaux), d'un régulateur de température et d'un dispositif solaire, un capteur solaire, un ballon d'eau chaude, un régulateur de température et/ou un dispositif de chauffage d'appoint;
- La classe d'efficacité énergétique saisonnière, pour lechauffage des locaux, du produit combiné constitué d'un dispositif de chauffage des locaux, d'un régulateur de température et d'un dispositif solaire, déterminé comme indiqué sur la Figure 1 dans les pages suivantes.
La pointe de la flèche comportant la classe d'efficacité énergétique saisonnière, pour le chiffage des locaux, du produit combiné constitué d'un dispositif de chiffage des locaux, d'un régulateur de température et d'un dispositif solaire est placée à la même hauteur que la pointe de la flèche correspondante dans l'échelle des classes d'efficacité énergétique.
- La classe d'efficacité énergétique, pour le chauffage de l'eau, du produit combiné constitué d'un dispositif de chauffage mixte, d'un régulateur de température et d'un dispositif solaire, déterminé comme indiqué sur la Figure 5 dans les pages suivantes.
La pointe de la flèche comportant la classe d'efficacité énergétique, pour le chauffage de l'eau, du produit combiné constitué d'un dispositif de chauffage mixte, d'un régulateur de température et d'un dispositif solaire est place à la même hauteur que la pointe de la flèche correspondante dans l'échelle des classes d'efficacité énergétique.
PRODUITS COMBINÉS CONSTITUÉS D'UN DISPOSITIF DE CHAUFFAGE MIXTE, D'UN RÉGULATEUR DE TEMPERATURE ET D'UN DISPOSITIF SOLAIRE
La fiche relative aux produits combinés constitués d'un dispositif de chauffage mixte, d'un régulateur de température et d'un dispositif solaire contient les éléments indiqués aux points a) et b):
a) les éléments figurant respectivement sur les figures 1 pour l'évaluation de l'efficacité énergétique saisonnière, pour le chiffage des locaux, des produits combinés constitués d'un dispositif de chiffage mixte, d'un régulateur de température et d'un dispositif solaire, notamment les informations suivantes:
- I: la valeur de l'efficacité énergétique saisonnière, pour le chiffage des locaux, du dispositif de chauffage mixte utilisé à titre principal, exprimée en %;
- II: le coefficient de pondération de la puissance thermique du dispositif de chauffage utilisé à titre principal et du dispositif de chauffage d'appoint d'un produit combiné, (voir RÉGLEMENT DÉLÉGUE (UE) N o 811/2013 - annexe IV - 6.a);
- III: la valeur de l'expression mathématique: 294/(11 - Prated), dans laquelle Prated renvoie au dispositif de chauffage mixte utilisé à titre principal;e;
- IV: la valeur de l'expression mathématique: 115/(11 - Prated), dans laquelle Prated renvoie au dispositif de chauffage mixte utilisé à titre principal;
en outre, pour les dispositifs de chauffage mixtes par pompe à chaleur utilisés à titre principal:
V: la valeur de la différence entre les efficacités énergétiques saisonnées pour le chauffage des locaux dans les conditions climatiques moyennes et plus froides, exprimée en%;
- VI: la valeur de la différence entre les efficacités énergétiques saisonnées pour le chiffage des locaux dans les conditions climatiques plus chaudes et moyennes, exprimée en%;
b) les éléments donnés sur la figure 5 aux fins de l'évaluation de l'efficacité énergétique, pour le chauffage de l'eau, d'un produit combiné constitué d'un dispositif de chauffage mixte, d'un régulateur de température et d'un dispositif solaire, avec notamment les informations suivantes:
- I: la valeur de l'efficacité énergétique, pour le chiffage de l'eau, du dispositif de chauffage mixte, exprimée en %.
- II: la valeur de l'expression mathématique: (220 · (220 · Q_ref ) / Q_nonsol , dans laquelle Q_ref provient de l'annexe VII - tableau 15 du RÉGLEMENT DÉLÉGUE (UE) Nr. 811/2013, et Q_nonsol de la fiche de produit du dispositif solaire pour le profil de soutirage déclaré M, L, XL et XXL du dispositif de chauffage mixte;
- III:la valeur de l'expression mathématique: (Q_aux · 2,5) / (220 · Q_ref) , exprimée en %, dans laquelle Q_aux provient de la fiche de produit du dispositif solaire et Q_ref de l'annexe VII - tableau 15 du RÉGEMENT DÉLÉGUE (UE) Nr. 811/2013 pour le profil de soutirage déclaré M, L, XL et XXL.
L'efficacité énergétique obtenue avec cette fiche pour le produit combiné peut ne pas correspondre à son efficacité énergetique réelle une fois le produit combiné installé dans unBATIMENT,car celle-ci varie en fonction d'autres facteurs tels que les pertes thermiques du système de distribution et le dimensionnement des produits par rapport à la taille et aux caractéristiques duBATIMENT.

sneepnneepnneepnneepnneepnneepnneepnneepnneepnneepnneepnneepnneepnneepnneepnneepnneepnneepnneepnneepnneepnneepnneepnneepnneepnneepnneepnneepnneepnneepnneepnneepnneepnneepn


aennnnnne nnnnne ennnnne
:
nne nee nee nee nee nee nee nee nee nee nee nee nee nee nee nee nee nee nee nee nee nee nee nee nee nee nee nee nee nee nee nee nee nee nee nee nee nee nee nee nee nee nee nee nee nee nee nee nee nee nee neee
CHAFFOTEAUX
Le Carré Pleyel - 5, rue Pleyel 93521 Saint-Denis - France
Tel : 33 (0)1 55 84 94 94
fax : 33 (0)1 55 84 96 10
www.aristonthermo.fr
www.chaffoteaux.fr


Trouvez la Station Technique la plus proche de chez vous à l'adresse suivante www.chaffoteaux.fr, rubrique Service.
Il suffit d'entrer le numéro de votre département et le type d'appareil à dépanner, alors les coordonnées de nos partenaires régionaux les plus proches vous seront transmises.
Pour toute réparation, faire appel à un professionnel qualifié et exiger l'utilisation de pieces détachées d'origine. Le non-respect de ce qui précède peut comprométre la sécurité de l'appareil et faire déchoir toute responsabilité du fabricant.
Notice Facile