AG 80MC - Chauffage gaz S.PLUS - Notice d'utilisation et mode d'emploi gratuit
Retrouvez gratuitement la notice de l'appareil AG 80MC S.PLUS au format PDF.
| Type d'appareil | Aérotherme gaz à condensation |
| Alimentation | Gaz |
| Mode de chauffage | Condensation |
| Installation | Professionnelle requise |
| Usage recommandé | Locaux industriels ou commerciaux |
| Risque d'explosion | Non adapté aux zones à risque |
| Contrôle | Thermostat ou coffret de commande |
| Arrêt en cas de coupure électrique | Obligatoire |
| Normes | Conforme aux normes en vigueur |
| Maintenance | Professionnelle |
| Émissions | Vapeurs et solvants à éviter |
| Environnement d'installation | Locaux sans poussières combustibles |
| Modèles disponibles | Plusieurs puissances (35 à 150 MC) |
| Garantie | Non précisé |
| Poids | Non précisé |
| Dimensions | Non précisé |
FOIRE AUX QUESTIONS - AG 80MC S.PLUS
Téléchargez la notice de votre Chauffage gaz au format PDF gratuitement ! Retrouvez votre notice AG 80MC - S.PLUS et reprennez votre appareil électronique en main. Sur cette page sont publiés tous les documents nécessaires à l'utilisation de votre appareil AG 80MC de la marque S.PLUS.
MODE D'EMPLOI AG 80MC S.PLUS
Il ne doit pas'être installé d'aerothermes dans les locaux représentant des risques d'explosion par la nature des produits entreprises, dégageant des vapeurs ou des solvants, ou dans des locaux à forte teneur en poussières combustibles (sciure de bois...).
L'installation de l'appareil doit être réalisée par un professionnel qualifié et conformément aux normes en vigueur ainsi qu'aux régles de l'art.
ATTENTION
L'arrêt des apparèls par coupure de l'alimentation électrique est strictement interdit. Seul est autorisé l'arrêt par manipulation du thermostat ou du coffret de commande.
Réf. AGMC 1.10-2010/iu
| MODELE | 35 | 40 | 60 | 80 | 100 | 150 | |||
| Puisance supérieure | A | kW | 38,8 | 44,4 | 66,7 | 88,8 | 114,4 | 166,7 | |
| Puisance inférieure | B | kW | 34,9 | 40,0 | 60,0 | 80,0 | 103,0 | 150 | |
| Rendement 100% puissance | C | % | 95,7 | 94,8 | 94,2 | 94,3 | 94,2 | 94,8 | |
| Rendement 30% puissance | D | % | 105,7 | 105,7 | 105,8 | 105,8 | 105,6 | 104,9 | |
| G25 : Débit de gaz (15°C) max/min | E | G25 | m³/h | 4,10-1,02 | 4,73-1,02 | 7,03-1,47 | 9,30-2,57 | 11,98-3,23 | 17,05-3,75 |
| C02 : max puissance | % | 9 | 9,0 | 9,0 | 9,0 | 9,0 | 8,9 | ||
| Offset, point de consigne min. puis. | Pa | -2 | -2 | -6 | -11 | -16 | -38 | ||
| Pression d'alimentation | mBar | 25 | 25 | 25 | 25 | 25 | 25 | ||
| G20 : Débit de gaz (15°C) max/min | G20 | m³/h | 3,65,-088 | 4,18-0,88 | 6,22-1,34 | 8,16-2,25 | 10,67-2,94 | 15,3-3,37 | |
| C02 : max puissance | % | 8,8 | 8,8 | 8,8 | 8,8 | 8,8 | 8,5 | ||
| Offset, point de consigne min. puis. | Pa | -1,2 | -1,2 | -5 | -10 | -11 | -54 | ||
| Pression d'alimentation | mBar | 20 | 20 | 20 | 20 | 20 | 20 | ||
| G30 : Débit de gaz (15°C) max/min | G30 | m³/h | 2,92-0,72 | 3,46-0,72 | 5,05-1,11 | 6,70-1,89 | 8,48-2,48 | 12,35-2,72 | |
| C02 : max puissance | % | 11,1 | 11,1 | 10,8 | 10,8 | 10,7 | 10,7 | ||
| Offset, point de consigne min. puis. | Pa | 4 | 4 | -6 | -5 | -7 | -70 | ||
| Pression d'alimentation | mBar | 29 | 29 | 29 | 29 | 29 | 29 | ||
| G31 : Débit de gaz (15°C) max/min | G31 | m³/h | 2,68-0,64 | 3,17-0,64 | |||||
| C02 : max puissance | % | 10,3 | 10,3 | 10,2 | 10,1 | 10,2 | 10,3 | ||
| Offset, point de consigne min. puis. | Pa | 3,5 | 3,5 | -5 | -5 | -8 | -63 | ||
| Pression d'alimentation | mBar | 37/50 1) | 37/50 1) | 37/50 1) | 37/50 1) | 37/50 | 37/50 | ||
| Plage brûleur | F | -- | 04:01 | 5:1 | 5:1 | 4:1 | 4:1 | 4:1 | |
| Temp. Gaz fumée | G | °C | 105 | 124 | 134 | 131 | 133 | 121 | |
| Emissions Nox bas 3% 02 | H | ppm | 32/7 | 42/7 | 42/9 | 41/16 | 45/11 | 37/16 | |
| Ventilateur brûleur démarrage-max-min | I | Tr/mn | 3500 / 4450 / 1330 | 3500/5150/ 1330 | 2500/4960/ 1300 | 3500/5900/ 1840 | 3500/5800/ 1800 | 2250/5700/ 1400 | |
| Résistance fumée | J | Pa | 78 | 90 | 90 | 166 | 165 | 200 | |
| Diam. Evacuation des gaz de combustion | K | Ø-Ø | 80-80 | 80-80 | 100-100 | 100-100 | 100-100 | 130-130 | |
| Connection électrique | L | V/Hz | 230/50 | 230/50 | 230/50 | 230/50 | 230/50 | 230/50 | |
| Puisance électrique | M | kW | 0,3 | 0,3 | 0,4 | 0,65 | 0,75 | 1,4 | |
| Fusible | N | A | 6,3 | 6,3 | 6,3 | 6,3 | 6,3 | 10 | |
| Classification protection moteur | O | IP | 20 | 20 | 20 | 20 | 20 | 20 | |
| Débit d'air (20°C) | Q | m³/h | 5000 | 5000 | 6500 | 10000 | 12500 | 18500 | |
| Delta T d'air | R | T | 20 | 22,8 | 26,3 | 22,8 | 23,5 | 23,1 | |
| Portée | M | 28-36 | 26-36 | 26-36 | 32-46 | 36-50 | 48-68 | ||
| Temp. Ambiente min./maxi. | U | °C | -0,375 | -15/+40 | -15/+40 | -15/+40 | -15/+40 | -15/+40 | |
| Ventilateur | V | Ø | 500 | 500 | 560 | (2x) 500 | (2x) 560 | (2x) 650 | |
| Vitesse rotation vent. Tr/mn | W | Tr/Mn | 865 | 865 | 900 | 865 | 900 | 880 | |
| Niveau sonore 5m côte Poids GS+ | X | dB (A) | 48 | 48 | 51 | 52 | 52 | 58 | |
| Poids + | Y1 | kg | 95 | 95 | 111 | 136 | 155 | 230 | |
| Condensation | Z | Ph | 3,4 | 3,4 | 3,4 | 3,4 | 3,4 | 3,4 | |
| Lmax cable de réarmement | Z1 | m/mm2 | 50,0/1,5 | 50,0/1,5 | 50,0/1,5 | 50,0/1,5 | 50,0/1,5 | 50,0/1,5 | |
| Quantité maximale condensation | ltr/h | 2 | 2 | 3 | 4 | 5 | 6 |



03-1432

| 35 | 40 | 60 | 80 | 100 | 150 | 200* | |
| C | 430 | 430 | 450 | 450 | 450 | 600 | 600 |
| D | 780 | 780 | 780 | 780 | 780 | 1100 | - |
| E | 130 | 130 | 200 | 200 | 200 | 300 | 300 |
| E' | 350 | 350 | 450 | 450 | 450 | 600 | 600 |
| Fx [min] | 400 | 400 | 400 | 400 | 400 | 400 | 400 |
| F2 [adv] | 4000 | 4000 | 4500 | 5000 | 5000 | 7000 | x |
| G | 600 | 600 | 600 | 600 | 700 | 750 | 750 |
| J [min] | 1400 | 1400 | 1600 | 1800 | 2200 | 2600 | x |
- Manuel Technique - Informations
> Installation
Vérifiez après déballage que l'appareil ne présente pas de traces de déteriorations.
Vérifiez le type/modèle, la tension électrique (230V / 50Hz) et la catégorie du gaz.
Généralités
Conserve le manuel technique dans ou à proximé de l'appareil. Les personnes chargées de l'installation et de l'utilisation doivent respecter les consignes relatives à l'installation et à l'utilisation de l'appareil.
Une installation ou une utilisation incorrecte peut entrainer des dommages au niveau de l'appareil. La garantie du fabricant est alors annulée.
Les travaux d'entretien et de maintenance doivent uniquement être réalisés par du personnel qualifié, faute de quoi la garantie du fabricant est annulée.
Lors de l'installation de l'appareil, vous doivent respecter les consignes nationales et locales en vigueur. Nous vous renvoyons notamment à la première publication des consignes d'installation relatives au gaz.
L'installation de l'appareil doit uniquement etre réalisés dans des espaces adaptés, à un emplacement adapte.
Espace libre nécessaire
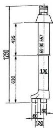
Veillez à laisser suffisamment d'espace autour du brûleur et des accessoires gaz pour permettre les travaux d'entretien. Afin d'éviter tous risques de brûlures, laissez suffisamment d'espace devant l'alimentation d'air du chauffage et n'entravez pas la sortie de l'air chaud (reportez-vous aux illustrations 03-1432 et au tableau page 3)
ATTENTION
Respecter la reglementation par installation en ERP /puissance, ventilation, etc....
- Alimentation Gaz
Il est nécessaire d'installer un robinet de gaz normalisé, de diamètre correct, à proximité de l'appareil (reportez-vous à l'illustration 03-1398R). Lors du démarriage de l'appareil, assurez-vous que le type de gaz délivré est conforme avec les indications de la plaque de signalisation. Vérifiez également que la pression d'arrivée du gaz est conforme avec les indications de la plaque de signalisation. Nettoyez soigneusement la conduite de gaz demettre l'appareil en fonctionnement. Cette opération permet d'éviter d'endommager l'alimentation en gaz de l'appareil et de purger la conduite de gaz.
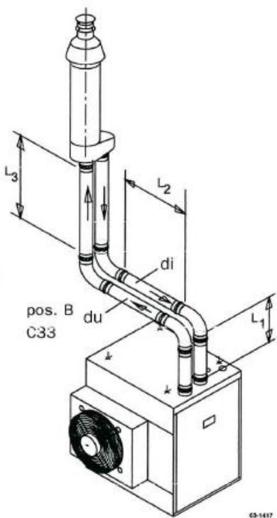
- Alimentation d'air de combustion et évacuation des gaz brûlés.
Evitez, dans la mesure du possible, de recouer les conduites d'alimentation en air neuf du chauffage et les conduits d'évacuation des gaz de fumée. La perte de charge des conduites est trop élevée, la charge technique du gaz risque de diminuer (reportez-vous aux illustrations 03-1417, 03-1420R et 03-1405 et au tableau page 5).
Les conduits d'alimentation en air du chauffage et les conduits d'évacuation des gaz brûlés ne doivent pas être détachés de l'appareil. Elles doivent néanmoins être suspendues de manière efficace.
Les conduits d'évacuation des gaz brûlés doivent respecter les conditions permettant l'évacuation des condensats vers l'appareil.
Le tableau des pertes de charge de la page 5 s'applique exclusivement aux matériaux d'évacuation fournis ou recommends par le fabricant.



| 1D | 3D | 3D |
| ∅80 | ∅100 | ∅130 |
| -m | -m | -m |
| 1,0 | 1,2 | 1,3 |
| 1,7 | 1,9 | 2,0 |
03-5441
45* 90

B23

C33/C63

C53

C13

B23

C13

3540

60/80/100

150/200



C13:
17-1012

C33:
- Alimentation d'air de combustion et évacuation des gaz brûlés.
Les aérothermes MC sont adaptés aux systèmes d'évacuation suivants :
B23; V13; C33; C53 et C63.
La signification de ces symboles est détaillée dans les croquis (page 6);
Les conduits 'extension doivent uniquement'être installées en parallèle ;
Les conduits d'évacuation des gaz de fumée doivent de préférence être constitués d'INOX.
Les conduits d'alimentation en air doivent être constitués d'aluminium fin ou de PP.
Attention: la structure d'évacuation C63 doit être conforme aux exigences GASTEC relatives aux apparciels de condensation avec une température des gaz de fumée maximale autorisée 160^ C. Attention: les valeurs données dans le tableau des pertes de charge s'appliquent exclusivement aux matériaux d'évacuation des gaz de fumée fournis ou commandés par le fabricant. Les matériaux d'évacuation dont la résistance ne correspond pas aux valeurs du tableau peuvent influencer la longueur de l'ensemble du parcours d'alimentation et d'évacuation.
Attention: la valeur du pH de l'eau condensée est égale à 3.4
Raccordement de condensation
La condensation générae dans le chauffage doit etre evacuée à l'aide d'un raccordement ouvert à l'égout. Le conduit doit etre constitue en matière synthetique et etre équipé d'un entonnoir de réception et d'un siphon.
L'évacuation de la condensation par le toit (gouttière) est interdite en raison des risques de gel.
N. B.: voirlez à ce que la distance entre la bouche d'évacuation de la condensation et la conduite d'évacuation soit comprise entre 5 et 10mm . Il est ainsi possible d'obtenir le raccordement ouvert nécessaire. L'entretien de l'appareil est également facilité.

03-1416

[7-8]

AG 35-100 MC

AG 150 MC
03-1414


Raccordement électrique
Assurez-vous que la tension d'alimentation électrique est correcte.
Assurez-vous que l'appareil dispose d'une mise à la terre fiable. Le microproceseur est utilisé indépendamment des phases. Veuillez vérifier que le neutre soit bien raccordé (reportez-vous aux illustrations 03-1416.03-1414 et 17-1013).
Le schéma électrique estitué sur la partie interieure du couvercle de l'appareil (reportez-vous à l'illustration 03-1396).
Mise en marche
Vérifications à effectuer avant la mise en marche.
- Désactivez l'interrupteur électrique.
- Réglez le thermostat/signal de la pierce au minimum depuis le système de gestion du日正式.
- Nettoyez la canalisation d'arrivée de gaz et vérifier l'absence de fuites.
- N'utilisez en aucun cas une flamme neue!
- Refermez en suite le robinet de gaz.
- Installez toujours le siphon fourni par le fabricant. Raccordez le siphon à l'évacuation des condensats de l'aérotherme et à l'égout (enlevez le bouchon rouge).
- Vérifiez que le siphon soit correctement installé et qu'il ne présente pas de traces de gel. Remplissez-le ensuite d'eau.
- Vous pouvez ensuitemettre l'appareil en marche (reportez-vous à l'illustration 03- 1439).
- Assurez-vous que les ailettes de soufflage sont ouvertes dans (angle minimal d'ouverture de 4^ , reportez-vous page 14).
- Vérifiez la pression statique externe du système pour aérotherme avec ventilateur centrifuge.
- Vérifiez si les valeurs correspondant aux valeurs mentionnées sur la plaquette technique.
- Vérifiez la direction de rotation du ventilateur (voir direction flèche).
- Vérifiez le courant absorbé du ventilateur.


Premier démarrage
- Activez l'interrupteur électrique.
- Reglez le thermostat/signal de la piece au maximum depuis le système de gestion duBATIMENT.
- ÀpRES un temps de préchauffage, le microprocesseur présente dans l'appareil doit générer une étincelle électrique au niveau du brûleur. Le clapet du gaz s'ouvre : étant donné que le robinet du gaz est fermé, aucune flamme ne se forme. Trois tentatives de démarrage ont lieu avant que le microprocesseur ne signale une erreur.
- L'appareil doit être réinitialisé à distance (manuellement).
- Placez de préférence la touche de réinitialisation dans un emplacement à partir duquel vous pouvez observer l'appareil.
>Une fois les vérifications effectuees
- Reglez le thermostat/signal de la piece au maximum depuis le système de gestion duBATIMENT.
- Ouvrez le robinet de gaz.
- Activez l'interrupteur électrique.
- Une fois que le microprocesseur remplit toutes les conditions nécessaires au démarrage, l'appareil se met en marche. Assurez-vous que la flamme du brûleur est régulière.
- Assurez-vous que la pression du gaz est conforme aux données de la plaque de désignation.
>Mise en marche de l'appareil
- La mise en marche de l'appareil s'effectue à l'aide d'un thermostat/signal situé dans le système de gestion du法律顾问.
- Si de la chaleur est requise, le microproceseur fait parvenir un signal au ventilateur du chauffage.
- ÀpRES un temps de préchauffage d'environ 30 secondes, le régime du ventilateur de chauffage baisse de manière à permettre la mise à feu du mélange gaz/air. Une fois la flamme formée et le signal de protection de la flamme suffisamment stable, le « réglage du début » est effectué après environ 10 secondes. Le brûleur est mis en marche et fonctionne. Le ventilateur du système se met en fonctionnement après environ 40 secondes.

06 08 094
AG 35-40 MC

06 08 076
AG 60-80-100 MC

1 Prise de pression Amont gaz
2 Prise de pression Aval gaz
3 Reglage pression Max
4 Reglage pression Min
- Mise au point du bloc de réglage du gaz
Après la mise en service, il n'est d'ordinaire pas nécessaire demettre au point le bloc gaz. Si le bloc gaz doit quand même estre de nouveau mis au point, il est important que ce soient desgens competents qui le fassent. Un mauvais reglage peut entrainer la surchauffe et/ou uneproduction d'oxyde de carbone.
Il y a deux vis avec lesquelles le bloc gaz doit être mis au point. L'offset adjuster (3) et le drossel adjuster (4).
-1
Mettez l'appareil en service à pleine charge en mettant le régulateur de température de la pièce sur le maximum.
Si l'appareil ne veut pas s'allumer, vous pouvez eventuèlement pendant l'allumage boucher avec le pouce et l'index l'orifice pour l'air du mélangeur à gaz. Ainsi, le mélange devient plus riche et s'allumera plus facilement.
Contrôlez le taux de CO_2 en position haute de l'appareil. Si celui-ci est trop élevé, tournez le drossel ajuster (4) vers la droite correcte se trouve dans le tableau de la page 2.
-2
Réglez l'appareil sur charge minimale en réglient la température souhaitée du régulateur de température de la piece aux environ de la température ambiente. Ouvrez la douille de mesurage de pression « P offset » (2) et raccordez un manomètre. Lorsque l'appareil est allumé, la dépression affichée doit correspondre à celle du tableau de la page 3 ou 5. Vous pouvez modifier cette dépression en tournant l'offset adjuster (3) sous le bouchon. Vers la gauche, plus de dépression, vers la droite, moins de dépression. Lorsque la dépression est correctement réglée, fermez la douille de mesure de pression « P offset » (2).
Contrôlez toujours la production de C0 de l'appareil. Trop de C0 signifie la plupart du temps que le mélange est trop riches et constitue un danger pour l'environnement.


- Haut Rendement
Si un régulateur est utilisé pour le brûleur, le microproesseur doit régler la quantité de gaz en fonction des besoin. La température de la chaleur produit varie donc en conséquence. Si la capacité produit diminue, le rendement en matière de charge partielle peut alors augmenter de plus de 106% . Le rendement en matière de charge completé est supérieur à 94% . Si la quantité de gaz maximal définie diminue, le processus de condensation commence.
Important!
N'éteignez jamais l'appareil en coupant l'alimentation électrique.
Cette opération contribue en effet à déconnecter le ou les ventilateurs du système. L'échangeur de chaleur n'a alors plus la possibilité de se refroidir (de manière force/contrôle).
L'appareil est équipé d'un thermostat de protection pour chaque ventilateur du système. Un verrouillage contre les surchauffes peut donc être mis en place en cas de coupure d'électricité. Ce verrouillage doit être réinitialisé manuellement au niveau du thermostat de protection (reportez-vous à l'illustration 03-1403).
En cas de surchauffe excessive, le thermostat de protection peut être gravesment endommagé et nécessiter un remplacement. Si le microproesseur fait partie du verrouillage, il doit être réinitialisé manuellement à l'aide d'une touche antiparasitage (page 20).
Contrôlez le taux fonctionnement du thermostat/signal de la pièce depuis le système de gestion du bâtiment.
Le point de consigne du thermostat d'ambiance est inférieur à la température ambiente, le brûleur doit être désactivé.
Le point de consigne du thermostat d'ambiance est supérieur à la température ambiente, le brûleur doit être activé.
Assurez-vous que le fonctionnement de l'appareil n'est pas influencé de manière négative par autres apparèils.
Réglages
Généralités
Après la fin de la demande de chaleur, la période anti-pendulaire commence.
Pendant cette période (1 minute), il est impossible de (re)démarrer l'acrotherme. Lorsque la température de l'air sortant de l'aérotherme, mesurée par le senseur approprié, est encore trop élevé, la température de blocage intervient. Pendant ce blocage, le brûleur module de nouveau étape par étape jusqu'à ce que la position minimale soit atteinte. Si, suite à une température encore trop élevé, le brûleur doit continuer à moduler, l'aérotherme est déconnecté et la période anti-pendulaire commence. Ce n'est que lorsque l'aérotherme est suffisamment refroidi qu'un nouveau cycle de démarrage est possible.
>0-10 Volts (Coffret centralisé)
Un régulateur 0-10 Volts dc donne un signal à l'aérotherme. Lorsque ce signal est supérieur à 2 Volts dc, l'aérotherme se met en marche. Lorsque le signal descend en dessous de 1 Volt dc, l'aérotherme s'éteint. Le nombre de tours du ventilateur d'air de combustion et donc la charge du brûleur se règle linéairement entre 2 et 10 Volts dc. Pour un signal entre 1 et 2 Volts dc, le nombre de tours du ventilateur d'air de combustion se trouve constamment dans la position minimale. Pour une ventilation continue, les bornes A et B (230 Volts ac) doivent être interconnectés. Un signal 0-10 Volts dc doit être connecté avec un cable à faible intensité à deux conducteurs protégés. Faites attention à la polarité.
>OpenTherm (Thermostat Individual)
Un thermostat OpenTherm mesure la température qui règne dans la piece, la température souhaïée dans la piece et la température actuelle de l'air-sortant. A l'aide de ces données, la température souhaïée de l'air-sortant est déterminée. Le microproessesur installé dans l'aerotherme réglera la capacité du brûleur de façon à ce que la température sortante souhaïée soit réalisée. Un thermostat OpenTherm doit être connecté à l'aide d'un cable à faible intensité à deux conducteurs protégés « twisted-pair ». La polarité n'est pas importante. Le thermostat OpenTherm livre par le fabricant offre la possibilité de déverrouiller la commande du brûleur au thermostat. Ce thermostat donne aussi une indication de la position de fonctionnement ou de panne. Ce thermostat permet d'actionner une ventilation continue.
Thermostat 230 Volts ac
A l'aide du thermostat 230 Volts ac, l'acrotherme peut ettre actionne et debranché. Le thermostat doit etre connecte aux bornes 1 et 2, les bornes A et C doivent etre interconnectees, voir schema electrique. En cas de demande de chaleur, l'appareil atteindra la charge maximale par échelons. L'acrotherme fonctionnera en « tout ou rien »
- Extinction du chauffage
Pendant une période de temps limitée
Reglez le thermostat/signal de la piece au minimum depuis le système de gestion du法律顾问
Ne désactivez pas l'interrupteur électrique en raison des déteriorations possibles au niveau du thermostat de protection, et notamment du verrouillage du thermostat de protection.
Pendant une période de temps prolongée
Reglez le thermostat/signal de la piece au minimum depuis le système de gestion du法律顾问.
Après environ 5 minutes, vous pouvez couper l'alimentation électrique de l'appareil. La chaleur encore présente dans l'échangeur de chaleur est expulsée de force.
Ventilation en eté
La ventilation en période estivale est possible.
Reportez-vous au schéma électrique.
Conversion des types de gaz
La conversion des types de gaz est possible. De telles modifications peuvent etre réalisées :
lors de la procédure de réglage à l'usine par le fabricant,
chez le client, par un technicien de maintenance qualifié







- Entretien
Les apparêils à gaz nécessitant un entretien régulier.
Les travaux d'entretien nécessaires doivent être réalisés par des techniciens de maintenance qualifiés.
Pour une évaluation objective, le technicien doit dispose du module de maintenance du fabricant.
Tous les réglages doivent être effectuels par un technicien équipé d'un ordinateur, du logiciel approprié et d'un apparéil d'analyse des gaz.
Avant de commencer les travaux d'entretien, il est nécessaire de couper l'alimentation en gaz et l'alimentation électrique.
L'alimentation en gaz peut être entièrement retiree de l'appareil. Il est nécessaire pour cela de retarder six ecrous M6 et le cablage electrique (reportez-vous page 18). Une fois l'alimentation en déposée, il est possible d'acceder au brûleur et à l'électrode d'ionisation/de mise à feu (reportez-vous feuille page 18). Le cas échéant, retirez absolument l'oxydation presente sur les electrodes. Assurez-vous que le revêtement du brûleur ne présente pas de traces d'irregularités. Pour plus de détails sur le réglage, reportez-vous aux illustrations 03-1434. L'utilisation de brosses métalliques est formellement interdite!
Nettoyez le dispositif de mélange du gaz à l'aide d'unerosse douce. Veillez à ce qu'aucune poussière ne pénétre dans le brûleur et dans le conduit d'alimentation en gaz.
Réinstalléz l'alimentation en gaz et rebranchez le gaz et l'électricité. Le système de collecte des gaz de fumée est situé sous la conduite d'évacuation des gaz de fumée. Il est possible d'acceder à l'échangeur de chaleur en déposant la bande d'arrêt. Remplacez toujours les joints après vérification.
L'extrémité de l'évacuation de la condensation est situé dans la partie inférieure du système de collecte des gaz de fumée. Cette ouverture et le siphon doivent impérativement être contrôlés afin de vérifier qu'ils neprésentent pas de traces de saleté. Le système de collecte des gaz de fumée dispose d'un capteur de niveau de l'eau. Ce capteur désactive l'appareil si la conduite de condensation ou le siphon est obstrué et qu'une quantité d'eau supérieure à la limite autorisée est présente dans le système de collecte des gaz de fumée.
- Thermostat OpenTherm
Le thermostat OpenTherm est équipé d'un programme hebdomadaire.
Ce thermostat offre aussi au consommateur la possibilité, en cas de panne, de le commander, au moyen d'un code, suivant la nature de la panne et la solution possible.
Une panne dans le micro processeur se débloque en appuyant sur le bouton OK de l'Open Therm. Les ventilateurs de l'appareil peuvent être actionnés en continu en appuyant plus de 5'' sur le bouton OK du thermostat. Faire de même pour les désactionner.
| Code d'erreur | Cause possible | Consequence | Solution | |
| 2 | Le thermostat de surchauffe a fonctionné | Trop peu d'air chauffant, ce qui fait que la chaudière et l'échangeur thermique sont surchauffés | Le brûleur est débranché, le(s) ventilateur(s) du système refroidit(ssent) l'échangeur thermique Le(s) thermostat(s) maximal (aux) et le microproces-seur se verrouillent. | Contrôlez si la cause est correcteDéverrouillez le thermostat maximal et le microprocesseur |
| 4 | Panne du brûleur | Le robinet à gaz fermé ou l'évacuation du condensat est bloqué, | Le microprocesseur entrepandre quatre essais de démarrage et ensuite, se verrouille | Contrôlez l'alimentation gaz Contrôlez le fonctionnement du siphonDéverrouillez le microprocesseur |
| 5 | Pendant une demande de fonctionnement, l'appareil doit redémarrer plus de quatre fois | mauvais signal d'ionisation | Le microprocesseur se verrouille | Déverrouillez le microprocesseur. |
| 6 | Erreur de flamme pendant le pré-rinçage ou en mode veille | En mode veille ou pendant le pré-rinçage, on constate un signal d'ionisation. | Le microprocesseur se verrouille | Contrôlez si l'électrode d'ionisation est saleDéverrouillez le microprocesseur |
| 7 | La vitesse de rotation du ventilateur n'est pas correcte | Le nombre de tours actuel du ventila-teur s'écarte de plus de 10% du nombre de tours exigé | Le microprocesseur se verrouille | Contrôlez le câblage du ventilateur de l'air chauffant Déverrouillez le microprocesseur |
| 8 | Les paramètres dans le microprocesseur sont programmés à partir d'un ordinateur externe | Programmation des paramètres | Le microprocesseur se verrouille | Déverrouillez le microprocesseur |
| 10 | Le microprocesseur exécute trop de redémarrages internes | Des problèmes internes dans le microprocesseur | Le microprocesseur se verrouille | Mettre l'appareil momentarily hors tension et ensuite réamorcer |
| 11 | Voir description du thermostat |

REARMER

- Réglage de la température
Réglage par modulation
Le chauffage à modulation utilise une technologie bus simple comme mode de communication entre le chauffage HR et le thermostat de la piece. Cette technologie est appelé « OpenTherm »
Il s'agit désormais d'une technologie standard dans le domaine des techniques de chauffage. Les AG MC sont tous équipés d'un microproessesur concu pour permettre un raccordement « OpenTherm » adapté.
Lors de l'utilisation d'un bus « OpenTherm » double, la communication entre le régulateur de chaleur et le chauffage s'effectue de manière bidirectionnelle. Cela signifie que l'échange des informations a lieu dans les deux sens à la fois.
L'interface « OpenTherm», située dans le chauffage, assure la communication avec le thermostat de la pièce et avec le microproesseseur du chauffage. L'interface transmet ensuite au bus toutes les données au réglage de la chaleur.
Utilisation simple et comport
L'alimentation du thermostat (24V) est réalisée à l'aide du bus. Le régulateur gère l'envoi des données dans le système du bus. L'interface du chauffage est chargée de transmettre la réponse. L'utilisation d'un régulateur « OpenTherm » est tout aussi simple que celle d'un thermostat avec interrupteur.
La différence est que la communication bus bidirectionnelle offre plus de fonctionnalités en matière de réglages sans pour autant compliquer l'utilisation du chauffage.
Réglage avec interrupteur
Dans le cas d'un réglage traditionnel avec interrupteur, le thermostat de la piece fonctionne de manière autonome. Le thermostat calcule la température de la piece à l'aide de son capteur intégré et compare la valeur obtenue avec la température définie.
Lors du réglage traditionnel avec interrupteur, la communication se déroule dans un seul lieu : le thermostat du chauffage. La communication ne s'effectue pas de manière bidirectionnelle. Elle se limite au contact MARCHE ou ARRET.

AG 35.40.80 MC : 06 21 665
AG 60.100 MC : 06 21 663
AG 150 MC : 06 21 664

302403 302404 GS+35:40:60:80:100 3022403 GS+150:200 3022404


NB:En cas de raccordement sur "OPEN THERM" les bornes 0 - 10 V ne sont pas utilisées.
- Schéma électrique AG 35-100 MC
F/F1/F2............Fusible
GV. .Electrovanne
H1. Lampe défaut brûleur
H2. Lampe brûleur marche
H3. Lampe température maximale
H4. Lampe encrasement filtre
PF.. .Pressostat de filtrre
R1 . Sonde de température extérieure
R2 .Sonde de température du système
RT. Thermostat d'ambiance
SI............Commutateur
S2. Rémèment à distance
STB1. Thermostat de sécurité
STB2. Thermostat de sécurité
VLV .Ventilateur de l'air de combustion
VM1 .Moteurventilatour
VM2 .Moteurventilatueur
W-sensor. Sonde d'eau de condensation
WS.Linterrupteur de proximé
COa/COB. Cable blnder « twisted pair » pour la connection thermostat OpenTherm
K1. Relais (ventilateur extérieur)
K2. Relais
MK. .Electrovanne by-pass
Purple.Violet
White . . . . . . . . . . . . . . . . . . . . . . . . . .
Grey.. Gris
Yellow.....Jaune
Cool. Eté
Off.....Stop
Heat. Hiver
- Schéma électrique AG 150 MC
F/F1/F2.......Fusible
GV. .Electrovanne
H1. Lampe défaut brûleur
H2. Lampe brûleur marche
H3. Lampe température maximale
H4. Lampe encrasement filtre
PF............Pressostat de filtrre
R1. Sonde de température extérieure
R2 . Sonde de température du système
RT. Thermostat d'ambiance
SI............Commutatetrue
S2. Rémèment à distance
STB1. Thermostat de sécurité
STB2. Thermostat de sécurité
VLV .Ventilateur de l'air de combustion
VM1 .Moteurventilatour
VM2 .Moteurventilatour
W-sensor............Sonde d'eau de condensation
WS.Linterrupteur de proximé
COa/COB. Cable blnder « twisted pair » pour la connexion thermostat OpenTherm
K1. Relais (ventilateur extérieur)
K2 .Relais
MK. .Electrovanne by-pass
Purple.Violet
White . . . . . . . . . . . . . . . . . . . . . . . . . . .
Grey.. Gris
Yellow.....Jaune
Cool. Eté
Off.....Stop
Heat.Hiver
Notice Facile